Palingénesis

Page 1


ESCUELADEARQUITECTURAYURBANISMO

RECICLAJEADAPTATIVO

DISEÑOARQUITECTÓNICOV

DOCENTE:

Dr.Arq.CarlosBardalesOrduña

AUTORES:

CáceresLeón,MaríadelCielo

LayzaRuiz,BryanJesús

RodriguezAgreda,LuisAndrés

RodriguezChiques,Jeremías

QuezadaMedina,TreysiAriana

VillarrealOrdonio,AldairAlexander

VillegasVidal,GabrielArturo

PALINGÉNESIS es un libro de investigación elaborado por estudiantes del sexto ciclo de la carrera de Arquitectura y Urbanismo de la Universidad Nacional de Trujillo. Su objetivoesdejarunlegadoqueacerqueel conocimiento al público, no necesariamenteespecializado,yabriruna nuevamiradasobreelreciclajeadaptativo en la arquitectura, contribuyendo a la valoración de los procesos de transformación y resignificación de edificacionesexistentes.

El trabajo surge de una experiencia académicapresencialcomplementadacon recursos digitales, que permitió comprenderdemaneraintegralelvalorde estas estructuras y su potencial de adaptación. Con el acompañamiento del docente y el compromiso del grupo, se construyóuncontenidoaccesible,dirigido tantoalacomunidaduniversitariacomoa cualquier lector interesado en entender y visibilizar esta práctica como una alternativa sostenible para pensar la ciudadylaarquitectura.Lainvitaciónesa repensarlosedificios,susciclosdeviday susposibilidadesderenovación.

LOSAUTORES

LA EXPERIENCIA Y EL PROCESO

01 01

ELRECICLAJE ADAPTATIVO

NUEVASALTURAS SOBRE VIEJOS CIMIENTOS

EL RECICLAJEADAPTATIVO COMO CRECIMIENTO DESDE LO EXISTENTE

Autores: Cáceres León, Cielo + Layza Ruiz, Bryan + Rodríguez Agreda, Luis + Rodríguez Chiques, Jeremías + Quezada Medina, Treysi + Villarreal Ordonio, Aldair + Villegas Vidal,Arturo

El reciclaje adaptativo deja de ser una alternativamarginalparaconvertirseenun imperativo urbano en tiempos donde la expansión desmedida y la demolición indiscriminada ya no son sostenibles ni deseables. Crecer desde lo existente planteaunadiscusióncrítica:nobastacon aplaudir sus beneficios ambientales y culturales, también es necesario advertir lastensionestécnicas,socialesypolíticas que muchas veces convierten lo que debería ser un proceso de renovación responsableensimplesgestosestéticoso especulativos.

que merecen ser respetadas. Demoler equivale no solo a generar toneladas de residuosynuevasemisionesdecarbono, sinotambiénaborrarhistoriasyvínculos colectivos.

Lareadaptaciónrespondeaestaurgencia ambiental y cultural, prolongando la vida útil de las estructuras y resignificándolas paranuevasfunciones.Enmuchoscasos, la conservación parcial se reduce a un “fachadismo” que mantiene una piel antigua como escenografía, mientras detrás se inserta un cuerpo completamenteajenoalalógicaoriginal.

Elroldeestaestrategiaenlaarquitectura debe entenderse como un ejercicio complejo, donde la memoria del pasado seenfrentaalasdemandasdelpresentey a las proyecciones de futuro. Reutilizar infraestructurassignifica,enprimerlugar, reconocer que cada edificio contiene energía,huellasmaterialesysimbólicas

Elverdaderoretoconsisteenencontrarun equilibrio. Adaptar no es copiar ni congelar, sino intervenir con honestidad, haciendo legible lo que se añade y respetando lo que se hereda. Desde el punto de vista ambiental, los beneficios son evidentes: ahorro de materiales, reducciónderesiduos,aprovechamiento

deredesyestructuraspreexistentes.Pero desdeunamiradacrítica,estosbeneficios

no deben sobrevalorarse sin un análisis riguroso del ciclo de vida de cada proyecto.

En ocasiones, las exigencias normativas, los refuerzos estructurales y las actualizaciones de instalaciones pueden volver el proceso más costoso y demandantequeunaconstrucciónnueva.

No obstante, allí radica precisamente la virtud de esta estrategia: asumir la complejidadcomopartedelproyectoyno buscaratajosfáciles.

En lo social, el reciclaje adaptativo significa darle una nueva vida a los espaciosquenoshanacompañadoenel tiempo.

Nosetratasolodemurosytechos,sino de lugares cargados de memorias que puedenseguirsiendopartedelaciudadsi losadaptamosalasnecesidadesdehoy.

Un edificio que parecía olvidado puede convertirseenunpuntodeencuentropara vecinos, jóvenes, adultos mayores y nuevasgeneraciones,unespaciodondela comunidadsereconoceysefortalece.

Sin embargo, cuando estas transformaciones se hacen pensando únicamenteenelmercadoinmobiliario,los edificios terminan siendo escenarios exclusivosyajenos,dondepocosacceden y muchos quedan fuera. Ahí nace la pregunta inevitable: ¿para quién adaptamosrealmente?Enciudadescomo Trujillo,dondelasdiferenciasentrebarrios son visibles, reciclar no debería ser un lujo, sino una forma de abrir puertas a todos, creando espacios culturales, de trabajocolectivoydedesarrollolocalque respondan a la gente y no solo a la rentabilidad.

Técnicamente, losdesafíossonmúltiples, lacompatibilidadentrematerialesantiguos y sistemas constructivos modernos exige diagnósticos exhaustivos para evitar patologías futuras. Modernizar implica también actualizar servicios, mejorar la eficiencia energética y responder a las nuevas normas de seguridad sin desvirtuarelvalormaterialdeledificio.La clave está en diseñar soluciones reversibles,modularesyprogresivas,que noimponganunatransformaciónviolenta, sinoqueacompañenlavidadelinmueble eneltiempo.

EnTrujillo,ciudadmarcadaporsuhistoria

prehispánica, colonial y republicana, así como por procesos acelerados de urbanizacióninformal,larecuperacióndel

patrimonio edificado adquiere una dimensión particular. No se trata solo de conservaredificiosemblemáticos,sinode

replantear infraestructuras clave para darles nuevos usos acordes a las necesidadesactuales.

Unaeropuerto,unafábricaabandonadao una estación en desuso pueden convertirseenpolosdeinnovación,cultura

o servicios, siempre que la intervención respete tanto la lógica espacial original como las necesidades contemporáneas.

La utilidad real de estas operaciones no se mide solo en términos de ahorro económico o ambiental, sino en su capacidaddegenerarvínculossocialesy defortalecerlaresilienciaurbanafrentea losretosdelfuturo.

avance tecnológico fue reinterpretada para convertirse en uno de los museos másimportantesdelmundo.

El proyecto no solo preservó la monumentalidad arquitectónica de la estructura original, sino que le otorgó un nuevo rol social y cultural. Este ejemplo demostró que la arquitectura en desuso puede reinsertarse en la vida contemporánea.

De manera similar, en Latinoamérica encontramos múltiples experiencias que muestran tanto el potencial como las tensiones de estas operaciones. En São Paulo, la antigua Fábrica de Pompeia, rehabilitada por Lina Bo Bardi, se transformó en un centro cultural y deportivoabiertoalacomunidad.Másallá de rescatar un patrimonio industrial, el proyecto resignificó el espacio como un lugar de encuentro intergeneracional, en el que el arte, el ocio y la participación socialconvivendemaneraorgánica.

Estedebatetrasciendefronteras.Uncaso paradigmáticoanivelmundialeseldela antigua estación de tren de Orsay en París, convertida en el Museo d’Orsay.

Una infraestructura ferroviaria del siglo XIXquehabíaquedadoobsoletafrenteal

Por otro lado, en Santiago de Chile, la antiguaestaciónMapochofuerehabilitada como centro cultural y espacio de ferias, recuperando su carácter simbólico como nodourbanoycomoespaciodeencuentro

En Buenos Aires, los docks de Puerto Maderorepresentanotracaradelamisma moneda: la recuperación de estructuras portuarias se orientó principalmente a un mercado elitista, convirtiéndose en un distrito de alto valor inmobiliario que, si bienpreservópartedelpatrimonio,generó dinámicasdeexclusiónyprivatizacióndel espaciourbano.

Estos ejemplos evidencian que la reconversiónarquitectónicanoesneutral: puede convertirse en un motor de cohesión social y sostenibilidad o, por el contrario, en un instrumento de segregaciónyespeculación.

constructiva, se convierte en una herramienta poderosa para construir ciudades más justas, resilientes y diversas. Como estudiantes de arquitectura, este desafíonosinterpeladirectamente:nose trata solo de aprender a proyectar espacios, sino de asumir la responsabilidaddedecidirquéconservar, qué transformar y cómo esas decisiones impactanenlavidacolectiva.

Nuestropapelesimaginarfuturosposibles quenopartandelanegacióndelpasado, sino de su integración creativa en la construccióndeciudadesmáshumanas.

Endefinitiva,crecerdesdeloexistentees una apuesta por la sostenibilidad, pero tambiénporlaéticaylamemoria.Supone reconocer que la arquitectura no es desechable y que los edificios, como las ciudades, son organismos vivos capaces detransformarse.

Apostar por nuevas alturas sobre viejos cimientos no significa ocultar el pasado bajoundisfrazmoderno,sinodialogarcon él, ampliarlo y enriquecerlo. Si la reconversiónsepracticaconmetodología rigurosa,justiciasocialyhonestidad

Referencias

Adaptive reuse. (2021, octubre 7).

Libguides.com.

https://disd.libguides.com/adaptivereuse/case-studies?

Wong, L. (2023). Adaptive Reuse in Architecture: A Typological Index. De Gruyter.

https://doi.org/10.1515/978303562564

02 02

ELREFERENTE

EXAEROPUERTODEQUITO

El Parque Bicentenario de Quito, inaugurado en 2013, es un espacio público emblemático de la capital ecuatoriana, dedicado a la recreación, el deporte, la cultura y la integración comunitaria.Selevantasobrelosterrenos que antes ocupara el Aeropuerto InternacionalMariscalSucre,quefuncionó en este lugar desde 1960 hasta su trasladoaTababelaenesemismoaño.

Su ubicación estratégica, en el norte de Quito,loconvierteenunpulmónverdede gran valor urbano y ambiental. Con más de100hectáreasdeextensión,elparque se ha consolidado como un referente de encuentro ciudadano, atrayendo a familias, deportistas, colectivos culturales yvisitantesnacionaleseinternacionales.

El proyecto original del Parque Bicentenariorespondióalanecesidadde transformar la antigua infraestructura aeroportuaria en un espacio abierto y multifuncional.Seconservaronelementos históricos, como las pistas de aterrizaje, que hoy funcionan como senderos para caminar,correryandarenbicicleta.

Ensuinteriorseintegraronampliaszonas verdes, canchas deportivas, jardines, lagunas y humedales que promueven la biodiversidad. El diseño también contempla áreas recreativas para niños, ciclovías conectadas al bulevar Amazonas, esculturas y espacios culturales. Desde2013,elparquehasidoobjetode mejoras y renovaciones continuas, entre ellas la creación del Centro de Convenciones,laPlazadelaBienveniday la conexión con la estación del Metro. Actualmente, se ejecutan planes de transformación que incluyen repotenciación de canchas, espacios infantiles, paisajismo y accesibilidad universal,beneficiandoamásde200mil usuariosmensuales.

Con esta reconversión, Quito ganó un símbolo de recuperación del espacio público, donde convergen historia, naturaleza y modernidad. El Parque Bicentenario se ha consolidado como un espacio único que une deporte, cultura, memoria y vida comunitaria, proyectándose como un eje urbano fundamentalparaeldesarrollosocial.

2.1 ANÁLISIS TIPOLÓGICO

ANÁLISIS FORMAL

Presentacomounconjuntodevolúmenes predominantemente horizontales que refuerzan la integración con el entorno inmediato. La composición se basa en líneas rectas y planos continuos que generan una lectura clara y ordenada desde todos los ángulos del espacio urbano.Lasfachadasexhibensuperficies amplias y neutras, sin excesiva ornamentación,loqueenfatizasucarácter contemporáneoysobrio.Loscerramientos combinan materiales sólidos con elementos traslúcidos, equilibrando protecciónypermeabilidadvisual.

La piel arquitectónica se resuelve con acabados lisos y tonos neutros que refuerzan la unidad compositiva del conjunto. El ritmo de vanos, puertas y ventanasrespondeacriteriosfuncionales y estéticos: permiten la entrada de luz natural, facilitan la ventilación cruzada y generanunacadenciaregularenelplano de fachada. Esta configuración formal aporta identidad al edificio y lo integra armónicamentealcontextocircundante.

VOLUMETRÍA- CENTRO DE CONVENCIONES

El lenguaje exterior integra aleros, parasolesycelosíasquefuncionancomo filtros solares y protecciones frente a la lluvia.Estoselementosmejoranelconfort ambiental, refuerzan la escala humana y aportandinamismoconsombras,texturas y variaciones de luz que rompen la monotonía de las fachadas. La articulación de espacios abiertos y cerrados se resuelve con transiciones suaves que equilibran monumentalidad y proximidad, mientras que el empleo de materialesadecuadosyacabadosneutros refuerzalasostenibilidadylaintegración conelentornourbanoinmediato.

La volumetría conserva proporciones controladasycontinuidadvisual,evitando rupturas entre los distintos cuerpos. La relaciónentremasasconstruidasyvacíos genera explanadas, áreas intermedias y espacios de encuentro que fortalecen la conexión del edificio con su contexto y facilitan la apropiación por parte de los usuarios.Estaorganizaciónformalotorga al conjunto una imagen clara, legible y coherente con sus funciones, consolidándolo como un referente arquitectónicoquecombinafuncionalidad, estéticaypertenenciaalentorno.

2.1 ANÁLISIS TIPOLÓGICO

ACCESOS

Tiene accesos distribuidos en tres fachadas, lo que permite un ingreso simultáneodevisitantes.Cadaaccesose conecta con rampas, escaleras y áreas cubiertas que protegen del clima y refuerzanlaescalahumanaenlospuntos deingreso.Estadisposiciónmultiplicalas posibilidadesdeusoyfacilitalaoperación de eventos de gran concurrencia, conectandodemaneradirectaelespacio públicoexteriorconlosinterioresdeforma eficiente.

ZONIFICACIÓN

En la primera planta se concentran los ambientes de mayor aforo, como el auditorio principal con mobiliario fijo, salonesdeexposiciónampliosyunhallde recepciónquefuncionacomoespaciode distribución. En la segunda planta se desarrollan áreas de apoyo y espacios complementarios, incluyendo una zona amplia con vistas directas al parque que funciona como área de descanso y contemplaciónparalosvisitantes.

CIRCULACIÓN HORIZONTAL

La circulación es fluida y jerarquizada. Pasillosanchosydespejadosconectanlas áreas principales, mientras que rampas exteriores, escaleras convencionales y elevadores, incluyendo ascensores accesibles para personas con discapacidad, aseguran la comunicación vertical entre niveles. La zona central de doblealturaactúacomonúcleoarticulador desde donde se distribuyen los flujos hacia auditorios, salones y áreas de servicio, evitando cruces y congestionamientos.

MOBILIARIO

Elauditorioposeebutacasfijasdispuestas para garantizar visibilidad y acústica óptimas, mientras que los salones de exposición combinan un gran espacio central con áreas menores periféricas paraactividadessimultáneas.Elmobiliario seorganizademanerafuncionalparano obstaculizar pasillos ni zonas de circulación. La presencia del hall y las áreas intermedias facilita la transición entre ambientes y refuerza el carácter multifuncional del conjunto, permitiendo adaptarseadistintasescalasdeevento.

2.1 ANÁLISIS TIPOLÓGICO

ANÁLISIS ESPACIAL

ESCALA Y PROPORCIONES DE LOS ESPACIOS

Eledificiosedesarrollaendosniveles:un primerpisode7mdealturayunsegundo de 5 m. Estas dimensiones permiten albergareventosnumerososyactividades propiasdeuncentrodeconvenciones.En la zona central destaca un espacio de doble altura que articula los ambientes y refuerza la sensación de amplitud. La escala combina monumentalidad con proporción humana, generando interiores representativosyversátiles.

ILUMINACIÓN Y VENTILACIÓN

Lafachadaacristaladafavoreceelingreso abundante de luz natural y la conexión visual interior–exterior. Esta condición reduce la dependencia de iluminación artificial y aporta amplitud a los espacios. La ventilación se logra con aperturas estratégicas y sistemas mecánicos, garantizandoconforttérmicoyrenovación de aire, esenciales para auditorios y salones de exposición, garantizando asi unbuenyfuncionamientoesapacial.

CORTE LONGITUDINAL

CIRCULACIÓN Y CONECTIVIDAD

La circulación es continua, jerarquizada y claramente legible. Rampas exteriores, escaleras convencionales y una escalera eléctrica conectan de forma eficiente los dos niveles, asegurando accesibilidad para todos los usuarios. Estos elementos convergen en el área central de doble altura, desde donde se distribuyen los flujoshaciaauditorios,salonesyservicios complementarios. Esta disposición ordenada optimiza los recorridos, reduce tiempos de desplazamiento y evita congestión,permitiendounusosimultáneo y flexible de los ambientes para distintos tiposdeeventos.

CONFIGURACIÓN DE ESPACIOS INTERIORES

Elauditoriocuentaconasientosfijosyuna disposición que optimiza visibilidad y acústica. Los salones de exposición se organizan en un gran espacio principal con ambientes periféricos menores para actividadescomplementarias.Elmobiliario ordenado refuerza la circulación libre y la adaptabilidad del conjunto, manteniendo uncarácterabiertoydinámico.

2.1 ANÁLISIS TIPOLÓGICO

CORTE - ZONA DE JUEGOS “YOYO” Y CICLOVIA

Laampliasuperficiequeantesservíaala

aviación se ha convertido en las vías principales para una gran variedad de actividades deportivas y de ocio. La imponenteescalayeldiseñolinealdelas antiguas pistas de aterrizaje y calles de rodaje se han reutilizado de forma inteligente para acoger a corredores, ciclistas y patinadores. Estas áreas también funcionan como canchas informales, adaptándose de forma espontánea a las necesidades de la comunidadparadiversosjuegosurbanos, comoelfútbolyelbaloncesto.

Asimismo, los espacios verdes adyacentes, que se crearon en lo que antes eran áreas de seguridad o hangares, demuestran otro nivel de reinvención funcional. Estos jardines y praderas albergan un diverso equipamiento lúdico para niños y son ideales para el desarrollo de actividades grupales,comoelcrossfitylabailoterapia.

Se crearon modernas canchas de baloncestoytenisparausopúblico.Estas nuevasáreasdeportivas,queseadaptan perfectamentealatopografíadelterreno, permiten a los residentes disfrutar de actividadesfísicasyfomentanunpuntode encuentro activo para la comunidad. La creación de estas infraestructuras deportivas aprovecha la vasta extensión dellugarparaofrecerespaciosampliosy funcionales, contribuyendo así a la vitalidadurbana.

Además de las instalaciones deportivas, se instalaron áreas de juegos infantiles conequipamientovibranteyseguro.Estos espacios de recreación familiar se convierten en puntos focales de reunión, ofreciendo un verdadero oasis para la infancia y la convivencia familiar. La creación de estas zonas resalta el valor social del proyecto, evidenciando la capacidaddeldiseñoparatransformarel entornoparaelbienestarylaintegración de sus habitantes, mejorando significativamentesucalidaddevida.

2.1 ANÁLISIS TIPOLÓGICO

ZONIFICACIÓN

La zonificación del espacio en este proyecto permite maximizar su uso. La Sala de Exposiciones, un área principal, fue diseñada para albergar eventos masivos de gran escala. Adyacente a esta, el Espacio Central de doble altura actúacomoelnúcleoprincipaldeledificio, sirviendo como un punto de encuentro clave y una zona de transición que conectalasdistintasáreasdelrecinto.

LEYENDA: Saladeexposición

Servicioscomplementarios

Espaciocentraldoblealtura

Áreaadministrativa

Servicioshigiénicos

Circulación

2.2

LatransformacióndelantiguoAeropuerto

MariscalSucreenelParqueBicentenario

es un caso emblemático de reciclaje adaptativo a gran escala, basado en la recuperación y reutilización de la infraestructura existente en lugar de su demolición. Se conservaron elementos claveparamantenerlamemoriadellugar, otorgándoles nuevos significados y usos acordes a las demandas sociales, culturalesyambientalesdeQuito.

La antigua terminal se convirtió en el Centro de Convenciones Metropolitano, manteniendo su volumetría pero cambiando su función de tránsito a espacio cultural y de eventos. Los hangares y edificios de apoyo se adaptaron como equipamientos recreativosycomunitarios

El parque combina tres tipos de intervenciones: conservación con cambio de uso (terminal, hangares, pistas como huellashistóricas),recuperaciónambiental y construcción de nuevos servicios en áreas periféricas. De este modo, la zonificaciónreflejaunsistemahíbrido

1960

EnelnortedeQuitoseinauguraelAeropuerto InternacionalMariscalSucre,convirtiéndoseen la principal terminal aérea del país. Con su pistayterminalmoderna,marcóeliniciodeuna nuevaetapadeconectividadinternacionalpara la ciudad, además de convertirse en un referenteurbanoenmediodeunsectorque luegocreceríadeformaacelerada.

Elcrecimientourbanorodeóalaeropuertoy laoperaciónaéreasevolviómásriesgosa. La pista resultaba corta para vuelos internacionales,habíacongestiónaéreayel ruido afectaba a los barrios cercanos. En 2013, se traslada la operación al nuevo aeropuertodeTababela,liberandomásde 120hectáreasenunazonaestratégica.

Apenas cerradas las operaciones aéreas, el espacio comienza a habilitarse de manera básica para la ciudadanía. Se adaptan las antiguaspistascomosenderosparacaminary ciclovías, además de improvisar canchas y zonas recreativas. El lugar empieza a ser usadocomoparquemetropolitano,generando unnuevopuntodeencuentrourbano.

Se realizan intervenciones más organizadas, incorporando zonas verdes, áreas de juegos infantilesyequipamientosdeportivos.Partede la infraestructura del antiguo aeropuerto comienza a reutilizarse para actividades comunitariasyculturales,dándoleunanueva vidaaunespacioqueantesestabadedicadoal tránsitoaéreo.

Se consolida con obras emblemáticas: el Centro de Convenciones Bicentenario que reutilizainstalacionesdelaterminal,elBulevar Amazonas,ylaPlazadelaBienvenida,que marca un nuevo ingreso al parque. Estos espacios transforman la infraestructura aeroportuaria en un nodo cultural, social y urbanodegranescala.

Inicialaprimerafasedetransformaciónintegral del Parque. Se realizan demoliciones de estructuras en desuso, repotenciación de canchasdeportivas,creacióndenuevasáreas verdes y zonas de sombra, mejoras paisajísticas. Con estas obras, se busca consolidaralBicentenariocomoelparquemás grande,modernoymultifuncionaldeQuito.

LA TRANSFORMACIÓN

Tras el traslado del Aeropuerto Mariscal Sucre en 2013, se decidió convertir las 125hectáreasenunespaciopúblicovital.

Elplansebasóenunavisiónprogresiva, reutilizando la infraestructura existente paraunnuevopropósito.

El proceso se ejecutó en fases. Inicialmente, se partió de la pista de aterrizaje y los edificios preexistentes. A estosesumaronlasestacionesdetreny elCentrodeConvenciones,conectandoel parque con la red de transporte de la ciudad. El proyecto luego incorporó servicios como una Estación de bomberos, áreas recreativas y zonas de picnic.

Más adelante, el plan se enfocó en espacios culturales. Se construyó una Sala de Exposiciones, lo que permitió al parquesersededegrandeseventos.Hoy en día, la antigua pista es una vía para peatonesyciclistas,ylosnuevosedificios

sirven como centros deportivos y culturales.

EdificiosPreexistentes Terminal

EstaciónmultimodalElLabrador

EstacióndetrendeQuito

Estacióndebomberos

Canchasdeportivas

Centrodeconvenciones Áreaverdereforestada Espacioparaferias

Museodeaeronáutica

2.3. CRITERIOS TÉCNICOS, CONSTRUCTIVOS Y NORMATIVOS

SISTEMA ESTRUCTURAL ANTIGUO

El edificio original descansa sobre una estructura portante de concreto armado, concolumnasyvigasquesoportancargas verticales y horizontales. Los elementos han sido dimensionados para una menor cargadeuso,menorexigenciaencuanto anormativasismorresistentemoderna.La cubiertaycerramientoseranmássimples, sin los voladizos y cerchas inclinadas actuales, y la estructura se resolvía en formas ortogonales simples, con techos conligerainclinación.

SISTEMA ESTRUCTURAL NUEVO

Incluye la implementación de cerchas inclinadas, que forman las nuevas cubiertas y ampliaciones, permitiendo luces mayores en los espacios. Para mejorarlaestéticayproporcionarsombra, también se han añadido voladizos en la cubierta o fachada. Estas cerchas inclinadas permiten además que la cubierta drene mejor el agua de lluvia. Para fijarlas, se utilizaron anclajes especialesenlaestructuraexistente,

SECCIÓN DE VENTANAL DEL CENTRO DE CONVENCIONES

DETALLE CONSTRUCTIVO DE COLUMNA DEL CENTRO DE CONVENCIONES

Recubrimiento

Lámina galvanizada Vigas Acero estructural

2.3 CRITERIOS TÉCNICOS, CONSTRUCTIVOS Y NORMATIVOS

SISTEMA ESTRUCTURAL ANTIGUO

Lapistadelaeropuertoestabaconformada

solo por asfalto, diseñada para soportar el pesoyfriccióndeaeronavesendespegue y aterrizaje. Su estructura rígida no contemplaba revestimientos adicionales ni condiciones para ciclovías o atletismo. El espacio era exclusivamente técnico y sin adaptacionesrecreativas.

SISTEMA ESTRUCTURAL NUEVO

Se implementó un revestimiento especial sobre el asfalto para optimizar su uso deportivo, mejorando la adherencia y comodidadparalosusuarios.Además,se añadieronadoquinesyunabasegranular en sectores puntuales para garantizar el drenajeylaestabilidaddelterreno.

Ahora, linfraestructura ofrece condiciones seguras y ergonómicas para ciclistas y corredores. Esto demuestra una exitosa transformación de un espacio funcional en una infraestructura recreativa y social que fomenta la actividad física, la integración comunitaria Y el turismo sostenible.

DETALLE CONSTRUCTIVO DE CICLOVIA Y PISTADEATLETISMO

ESTRATEGIAS DE ILUMINACIÓN Y VENTILACIÓN NATURAL

El diseño arquitectónico integra iluminación natural mediante un gran ventanalfrontalymuroscortinadevidrio templado. Esta disposición permite un ingreso equilibrado de luz diurna, reduciendo la necesidad de iluminación artificial constante. La orientación del ventanal responde a criterios solares, evitando deslumbramientos y aprovechando la ganancia lumínica. Al mismotiempo,latransparenciadelvidrio refuerzalaconexiónvisualconelentorno inmediato.

En ventilación se aplicó un sistema de corrientes cruzadas con aperturas estratégicasenmurosycubierta.Elaire circuladesdelosaccesosprincipalesyse evacúa por salidas superiores que renuevan el ambiente. Esta estrategia pasivadisminuyelademandaenergéticay aseguracondicionesinterioressaludables. Como complemento, se añadieron parasoles y aleros que regulan la radiaciónsolar.

03 03

ELCONTEXTO URBANODE INTERVENCIÓN

3.1.

HISTÓRICA DEL SECTOR

ConquistaInca

TraslaexpansióndelImperioIncaenelsiglo

XV,Huanchacoseintegraasuredterritorial.

Los incas respetaron y mantuvieron su rol estratégico como puerto y centro pesquero, aunquetambiénloreforzaroncomopuntode controlyabastecimiento.

Huanchaco surge como caleta pesquera vinculadadirectamenteaChanChan,capital del reino Chimú. Su organización era dispersayrespondíaalaactividadmarítimay ritual.Loscaballitosdetotora,usadosparala pesca desde hace más de dos mil años, marcaronnosololaeconomíasinotambién laidentidadculturaldellugar.

Con la independencia, Huanchaco es reconocidooficialmentecomodistritoen1821 por decreto de San Martín. Se consolida como balneario de la élite trujillana, que construyó casas de descanso de estilo republicano, con grandes ventanales, balcones y portadas. En este periodo aparecetambiénelprimermuelledemadera, querefuerzasucarácterdepuertoactivo.

Hoy, Huanchaco combina tradición y modernidad. Es reconocido como Reserva MundialdeSurfdesde2013ysiguesiendo un centro pesquero ancestral con caballitos de totora. Sin embargo, enfrenta retos urbanos como el crecimiento informal, la presióninmobiliariaylaerosióncostera.

En 1535–1536, con la llegada de los españoles,Huanchacocambiasufisonomía urbana.SeconstruyelaIglesiadelaVirgen del Socorro, considerada una de las más antiguasdelPerú,sobreunaantiguahuaca. Elnuevopatrónurbanoseorganizóentorno a la plaza principal, con casas de adobe y techosadosaguas.

En 1942 se construye el muelle definitivo, convirtiéndose en un hito paisajístico. La carretera que conecta con Trujillo permite mayor afluencia de visitantes y fomenta la actividad turística. El trazado urbano se regulariza, sobre todo en el malecón, y las nuevasviviendasdeconcretoreemplazanen partelaarquitecturatradicional,marcandoun cambioenlaimagendelpueblo.

ÉpocaPrecolombina
Fundaciónespañola
Balnearioymodernización
ÉpocaRepublicana
contemporáneo

En la actualidad, Huanchaco se ha consolidado como un balneario de proyección internacional gracias a la práctica del surf y a la permanencia de tradicionesancestralescomoelusodelos caballitos de totora, símbolos que refuerzan su identidad cultural frente al turismo global. Este dinamismo ha permitido la llegada de visitantes que buscan tanto la experiencia deportiva como el contacto con la herencia pesquera milenaria, aunque también ha generado transformaciones urbanas visiblesenelfrentecostero,dondenuevas

edificacionesturísticasyresidencialeshan alterado la imagen arquitectónica tradicionaldeldistrito.

LacercaníaconChanChan,capitaldela cultura Chimú y Patrimonio de la Humanidad,otorgaaHuanchacounvalor patrimonialúnico,perotambiénloenfrenta a tensiones derivadas del crecimiento urbano. La expansión hacia zonas de amortiguamiento del sitio arqueológico evidencia la necesidad de una planificación sostenible que proteja la memoriahistóricadellugar.

En este escenario, conviven las casonas republicanasyviviendasveraniegascomo “LaClimática”conedificacionesmodernas que responden a las exigencias del turismo,generandouncontrastemarcado entretradiciónycontemporaneidad.

Al mismo tiempo, la modernidad se expresa a través de equipamientos estratégicos como el Aeropuerto InternacionalCapitánFAPCarlosMartínez dePinillos,queconvierteaHuanchacoen la principal puerta de ingreso aéreo del norte del Perú. Esta infraestructura fortalece la conectividad regional y potencia actividades vinculadas al comercio, la hotelería y los servicios. Huanchacoseconfiguracomounespacio en constante transformación, donde la identidadcultural,lapresióninmobiliariay lasdemandasdemodernidadconvivenen unequilibriofrágil.

El futuro del distrito dependerá de cómo se logre integrar el turismo y la modernidad sin sacrificar el patrimonio heredado.Enesatarea,laarquitecturay elurbanismojueganunroldecisivocomo herramientasparaconstruirunHuanchaco sostenible.

HUANCHACO
TRUJILLO

ANTES DESPUÉS

Elsectordelimitado,queabarcapartede

Huanchaco,lasLomasdeHuanchacoyla

zona previa al aeropuerto, presenta un predominio del uso residencial, con una tramaurbanacompuestamayormentepor viviendasunifamiliares.Unaproporciónde los lotes se destina a vivienda–taller, modalidad en la que la residencia incorporabodegasopequeñoscomercios de escala barrial, lo que refleja una dinámica mixta de vivienda y actividad económica.

En las áreas más consolidadas y urbanizadas se observa una mayor presencia de equipamientos urbanos, principalmente de carácter educativo, recreativo y comercial. No obstante, se evidencia una carencia significativa de equipamiento de salud, lo que genera la necesidad de trasladarse hacia otras zonas de la ciudad para cubrir este servicio esencial. En conjunto, el sector mantieneuncrecimientoenconsolidación, con predominio habitacional y una creciente integración de actividades complementariasdecomercioyservicios.

RESIDENCIAL:

RECREACIONAL:
EDUACIÓN:

PERFILURBANO

El primer perfil, el que se desarrolla directamente frente a la vía principal, buscaproyectarunaimagenmásestética hacia el tránsito. Aquí se perciben fachadas alineadas y acabados más cuidados, pues el frente urbano actúa comocartadepresentaciónhaciaquienes circulanporlacarretera.Estacondiciónde exposición genera un mayor interés por mantener cierto orden y una mejor presenciaarquitectónica.

Encontraste,elperfilmáscorto—ubicado

detrás y sin visibilidad directa desde la carretera— carece de esa intención de mostrarse. Su función es más interna y práctica, por lo que actúa como un telón que oculta las dinámicas residenciales y comerciales que se desarrollan en el interior. Esta diferencia entre un frente estético y un trasfondo discreto refleja

cómo la orientación hacia la vía principal influye directamente en la forma de ocupar,presentaryconstruirlaciudaden estesector.

RUTAALAEROPUERTO

PASAJE

PERFILURBANO

Por el lado opuesto del sector se identifican dos perfiles que reflejan la tendencia de desarrollo de esta zona. A diferenciadelasáreasmáshorizontales, aquí se observa una inclinación hacia la verticalidad. Este sector cuenta con más equipamiento urbano, presenta construcciones con mejores acabados y materialidad. Dichas características puedenexplicarseporlacercaníaconel distrito de Huanchaco, cuya influencia directa impulsa un crecimiento más estructuradoyconmayoresestándaresen sudesarrollo.

Asimismo,lapresenciadeequipamientos yserviciosgeneraunefectodeatracción quefomentaladensificacióndelazonay favorecelaaparicióndeedificacionescon mayorinversiónendiseñoyconstrucción.

Esto contribuye a consolidar un perfil urbano más competitivo y moderno, que nosolorespondealasnecesidadesdela población local, sino que también busca integrarsealadinámicametropolitana.

CALLE SANTO TORIBIO
CALLE LAS LOMAS

3.3. EQUIPAMIENTOS URBANOS

El entorno inmediato al aeropuerto se caracterizaporunazonificaciónurbanaen la que destacan distintos usos del suelo claramentedelimitados.Lainfraestructura aeroportuaria actúa como un eje central que divide el territorio en sectores diferenciados, organizando la dinámica urbana a partir de la distribución de equipamientosyáreasresidenciales.Esta condición convierte al aeropuerto en un referente espacial, pero al mismo tiempo en una barrera que fragmenta la continuidaddeltejido.

El noroeste concentra funciones educativasyrecreativas,mientrasqueel sureste articula servicios más diversos, generando dos centralidades complementariaspesealafragmentación urbana.

LEYENDA: Educación

Áreasagrícolas

Salud

Religión

Áreasverdes

Es un establecimiento de atención primaria que ofrece servicios básicos de salud y cuidado preventivo a la población asegurada del distrito.

SALUD

ElSantuarioArquidiocesanode la Virgen de la Candelaria del Socorro, en Huanchaco, es un templodegranvalorreligiosoe histórico, centro de devoción mariana y punto de encuentro paralacomunidad.

RELIGIÓN

Es un establecimiento de atención primaria que ofrece servicios básicos de saludycuidadopreventivoalapoblación asegurada del distrito.Es un establecimientodeatenciónprimariaque ofrece servicios básicos de salud y cuidado preventivo a la población aseguradadeldistrito.

EDUCACIÓN

ElSantuarioArquidiocesanode la Virgen de la Candelaria del Socorro, en Huanchaco, es un templodegranvalorreligiosoe histórico, centro de devoción mariana y punto de encuentro paralacomunidad.

INSTITUCIONAL

3.4. ESPACIOS PÚBLICOS

Sonáreasabiertasydelibreaccesoque promueven la interacción social, el esparcimiento y la construcción de identidad colectiva. Se expresan en plazas, plazoletas, parques y miradores, que además de ordenar el tejido urbano cumplen un rol esencial en la vida cotidianadelapoblación.Estosespacios no solo funcionan como puntos de encuentro y recreación, sino también como escenarios donde se preservan y transmitenlastradicioneslocales,comola pescaartesanalyelusodeloscaballitos detotora.

Losespaciospúblicosrefuerzanelvínculo de la comunidad con el mar y con su memoria ancestral, convirtiéndose en símbolosdepertenenciayorgullolocal.

LEYENDA:

Plaza

Plazoletas

Iglesias

Mirador

Polideportivos

Parques

Espacios de gran importancia histórica y patrimonial que funcionan como puntos de encuentro social, cultural, político, y favoreciendo la interacción ciudadana. Además,contribuyealordenamientourbano.

Dentrodelperímetrosoloexisteunayesla

(A) Plaza de Armas de Las Lomas de Huanchaco,conunáreade6016.32m².

Espacio de menor tamaño que una plaza, generalmente ubicado en intersecciones de calles. Su función es servir como área de estancia,descansoyencuentrovecinal.

Dentrodelperímetroexisten3siendoestos:

(B) Plazuela Los Ficus, (C) Estatua de la Virgen de Huanchaco y Plazuela HuanchaquitoAlto.

Edificio destinado al culto religioso, principalmenteenlatradicióncristiana,donde se realizan ceremonias, celebraciones y reunionesdelacomunidaddefieles.Dentro delperímetro,seregistraron:(D)Iglesiadela

Virgen de la Candelaria del Socorro de Huanchaco, (E) la Iglesia El Señor de los MilagrosyIglesiaAdventistaDelSéptimoDía

Espacio elevado, natural o construido, diseñado para permitir la observación panorámica del paisaje y de la ciudad. Su función principal es brindar un punto de contemplación y disfrute visual, por lo que suele ubicarse en lugares estratégicos con ampliasvistas.Enelperímetro,solohayuno yestájuntoala(D)IglesiadelaVirgen.

Espacio público abierto, generalmente ajardinado y con áreas verdes, destinado al esparcimiento,recreación,encuentrosocialy contacto con la naturaleza dentro de la ciudad.Dentrodelperímetroseencuentra5 siendo estos: (F) Parque Los Tablazos, Parque María del Socorro, Parque Infantil VillaAeropuerto,etc.

Complejo diseñado para la práctica de múltiplesdisciplinasdeportivasenunmismo espacio.Generalmentecuentaconcanchasy juegos para niños, que cumple funciones recreativas,favoreciendolaintegraciónsocial ylapromocióndelaactividadfísica. Dentrodelperímetroseregistraron2siendo: (G)LosadeportivaLasLomasyElCruce.

3.5 RECREACIÓN PÚBLICA Y ÁREA VERDE

En el sector de Huanchaco, las áreas verdescumplenunrolfundamentalcomo espaciosderecreaciónyencuentrosocial.

Los parques distribuidos en la zona permitenalosvecinosrealizarcaminatas, conversar en las bancas y disfrutar de la vegetación como parte del descanso diario. Estos lugares funcionan como puntosdecohesióncomunitariadondese fomenta la convivencia y el contacto con elentornonatural.

El aeropuerto, como hito urbano del sector,tambiéninfluyeenlaorganización de las áreas verdes. Su presencia ha generado zonas de amortiguamiento con vegetaciónquenosolocumplenfunciones ambientales,comolareduccióndepolvoy

ruido, sino que también ofrecen espacios detransiciónhacialosparquescercanos.

Esta articulación convierte al aeropuerto enunelementocentralalrededordelcual se estructuran las dinámicas recreativas delsector.

LEYENDA:

Áreasverdes

Los parques más cercanos presentan un uso variado: en ellos se llevan a cabo actividades deportivas informales, reunionesfamiliaresyjuegosalairelibre. La presencia de arbolado y jardines mejora las condiciones microclimáticas, brindando sombra y un ambiente adecuado para el esparcimiento. Estos espacios,aunquenodegranescala,son significativos porque complementan la funciónurbanadelsector,equilibrandolo residencialconlorecreativo.

En conjunto, las áreas verdes del sector de estudio en Huanchaco fortalecen la calidad de vida de los habitantes y visitantes.Larelaciónentrelosparquesy el aeropuerto como centro del territorio otorga un carácter particular, donde la infraestructura y la naturaleza coexisten.

Así,seconstruyeunescenarioenelque la recreación, la interacción social y la sostenibilidad ambiental se integran en beneficiodelacomunidad.

VEGETACIÓNYMOBILIARIO

El entorno inmediato del aeropuerto de Huanchaco combina mobiliarios sencillos conáreasderecreaciónquefortalecenla identidaddellugar.Lasbancasinstaladas enlosparquespermiteneldescansoyla interacciónsocial,mientrasquelosfaroles aseguran iluminación y seguridad. Estos elementos, aunque básicos, cumplen un rol importante al mejorar la calidad del espacio público. Además, generan un carácter acogedor que invita a la permanencia de los habitantes y visitantes.

En cuanto a la vegetación, predominan especiescomoelalgarrobo,latotorayel eucalipto, cada una con un aporte específico. El algarrobo ofrece sombra y frescura,latotoraconectaconlatradición

ancestral de Huanchaco y el eucalipto ayudaalimpiarelaire.Estasespeciesno solo embellecen el paisaje, sino que también crean ambientes agradables y sombreados.Deestamanera,losparques delsectorseconsolidancomolasáreas

preferidas de recreación y convivencia comunitaria.

3.6. MOVILIDAD URBANA

FLUJO PEATONAL Y VEHICULAR

El flujo vehicular en la zona presenta su mayor intensidad en la vía de acceso a Huanchaco, donde se genera un punto crítico de congestión a la altura de un espacio de comida muy concurrido. Esta situación se da principalmente los días sábado y domingo, cuando el distrito recibe un mayor número de visitantes debido a su carácter turístico. En contraste, el resto de las vías no llega a presentar problemas significativos de saturación. Cabe resaltar que en el área soloexisteunavíadestinadaaltransporte público, mientras que la Panamericana Norte cumple un rol diferente, siendo utilizada con mayor frecuencia para el tránsitodetransportepesado.

LEYENDA:

VíadeTransportePesado

VíadeTransportePesado

VíaAeropuerto

VíadeTransportePúblico

VíasSecundarias

PuntoCrítico

3.8 SITUACIÓN MEDIO AMBIENTAL

En el análisis del flujo vehicular en Huanchaco se identifica un punto crítico de congestión en la vía principal, especialmente a la altura de un espacio de comida concurrido. Este problema se acentúa los fines de semana, cuando la afluencia de visitantes aumenta por la condición turística del distrito. Asimismo, seobservaqueelparaderodetransporte público se ubica en un espacio poco estratégico,loquegeneradesordenenla circulaciónydificultalafluidezdeltránsito. En cuanto a los atractivos urbanos, el diagnóstico evidencia que la mayoría de los puntos de reunión corresponden a plazas, losas deportivas y centros de recreación, mientras que fuera de estos espacios predominan restaurantes y establecimientosdecomercio.Estepatrón limita la diversidad de atractivos y concentraelflujodepersonasyvehículos en áreas reducidas, reforzando la congestiónendeterminadossectores.

LEYENDA:

Paraderos

Puntosdeatracción

3.7 PATRIMONIO Y NORMATIVA

MUELLE DE HUANCHACO

Construido en 1891, es uno de los principales hitos patrimoniales del sector costero. Su valor simbólico radica en representar la pesca ancestral en caballitosdetotora,seremblematurístico

y parte esencial del paisaje marino de Huanchaco. Actualmente está cerrado al público por riesgo estructural debido al desgaste marino; su conservación es precaria.Serequiereintervenciónurgente para estabilizar y recuperar su uso como patrimonioarquitectónicoehistórico.

IGLESIA VIRGEN DEL SOCORRO

Otro hito patrimonial del sector, ubicada en una elevación con vista al mar. Su valor simbólico reside en ser centro de devoción religiosa, albergando festividades tradicionales. Su estado de conservación es activo y bueno, con intervenciones de mantenimiento que respetan su estructura y elementos originales, asegurando su permanencia como patrimonio cultural y religioso del balneario.

MUELLE
IGLESIA VIRGEN DEL SOCORRO

CARNAVAL HUANCHAQUERO

organizada por el Club Huanchaco, Incluyeactividadescomolacoronaciónde

reinas, el Gran Corso con comparsas, trajes alegóricos, carros decorados, música, baile por la av La Ribera fortaleciendoelorgullolocal.

FIESTA DE SAN PEDRO

Se realiza del 18 al 30 de junio, se desarrolla una procesión de la sagrada imagendeSanPedroporlasprincipales calles de Huanchaco. Esta festividad integra música, danzas y actos de fe, convirtiéndoseenuneventoquefortalece la identidad cultural y religiosa del balneario.

VIRGEN CANDELARIA DEL SOCORRO

Vinculada al sector pesquero. Incluye procesiones por las principales calles, misas,bendicionesdeembarcacionesyel tradicional recorrido marítimo con caballitos de totora y embarcaciones de pescadores.Esteeventoserealizaenla playa y el muelle de Huanchaco, reforzandoelvínculoentrelacomunidad, elmarysuscostumbresancestrales. PATRIMONIO

VARIACIONES EN ZONIFICACIÓN COSTERA

LaOrdenanzaapruebalamodificaciónal

PDUdelsectorcosterodeHuanchaco(N.º

021-2014-MPT)ajustaplanosdeusodel suelo y localización, lo que limita los proyectos si el uso deseado no está previstoenlosplanosdezonificación.

ALTURA MÁXIMA DE EDIFICACIONES

Los planos y zonificación establecen límites de altura para edificaciones construidas frente al mar o en zonas costeras, para preservar paisaje y visibilidad desde playas/humedales; nuevasconstruccionessobreesoslímites requierenanálisisespecial.

CONTAMINACIÓN DE AGUAS

RESIDUALES

Según políticas del PDM y acciones del MinisteriodelAmbiente,Huanchacosufre contaminación costera que impacta humedales y ecosistemas; la falta de PTAR adecuado limita el uso seguro y disfrutepúblicodellitoral.

PROHIBICIÓN

DE RELLENOS EN

ZONAS ECOLÓGICAS

Los humedales, balsares y zonas de protección costera tienen restricciones explícitas contra relleno de terreno, alteración de suelos naturales o construcciónpermanentesinautorización técnicaambiental.

CAPACIDAD LIMITADA DEL MUNICIPIO

Losmecanismosdecontrolyfiscalización no siempre tienen recursos suficientes para supervisar cumplimientos de zonificación u obras dentro de sectores sensibles.

USOS SEGÚN ZONIFICACIÓN

No todos los usos son permitidos: la zonificación costera define usos compatibles turísticos, comerciales moderados, residenciales bajos; usos industriales pesados, estacionamientos extensos, edificios altos u otros se prohíbenenciertasáreas.

3.8 SITUACIÓN MEDIO AMBIENTAL

CONTAMINACIÓN AMBIENTAL, VISUAL Y SONORA

PROBLEMÁTICA

EnHuanchaco,laproblemáticaambiental

más grave es la contaminación del agua producida por desbordes de aguas servidas en la zona de El Tablazo, afectando humedales y totorales. La acumulaciónderesiduosenplayasgenera contaminación visual que impacta la imagen turística. A esto se suma la contaminación sonora originada por músicaamplificadayfiestasenviviendas

cercanas al muelle y la playa, afectando tantoapobladorescomoavisitantes.

Los focos más visibles se ubican en la franja costera: los humedales y totorales deHuanchacopresentanaguasresiduales y basura acumulada. Además, en calles adyacentesalmuelle,comolacalleUnión, donde hay contaminación sonora intensa que afecta directamente a residentes, turistasyalequilibrioambientaldelárea.

LEYENDA:

El Tablazo

GESTIÓN DE RESIDUOS SÓLIDOS

EnHuanchaco,larecolecciónderesiduos se lleva a cabo de manera regular mediante los camiones de basura, que recorrenlasprincipaleszonasdeldistrito para trasladar los desechos hacia los puntos de disposición final. Este servicio resulta fundamental para evitar la acumulacióndedesperdiciosenlascalles ymantenerunentornomásordenado.

De manera complementaria, la municipalidad y diversas organizaciones no gubernamentales impulsan constantemente campañas de limpieza y concientización.Estasactividadesbuscan no solo fomentar la correcta segregación de residuos entre los vecinos, sino tambiénprotegerelmarylasplayas,que son parte esencial de la identidad de Huanchaco. Con estas acciones, se refuerzalaimportanciadelaparticipación ciudadanaenelcuidadodelambienteyla preservacióndelbalneario.

LEYENDA:

Recorridodelcamióndebasura

ElTablazo

ELEDIFICIO EXISTENTE

4.1 UBICACIÓN DEL EDIFICIO

EL EMPLAZAMIENTO

El Aeropuerto Internacional Capitán FAP

Carlos Martínez de Pinillos se encuentra emplazadoeneldistritodeHuanchaco,en la provincia de Trujillo, dentro del predio destinado exclusivamente para uso aeroportuario. Está ubicado hacia el noroestedelaciudaddeTrujillo,loquele otorga una posición estratégica al encontrarse próximo a la urbe, pero separado del núcleo urbano principal, manteniendo un entorno despejado para sufuncionamiento.

Suaccesoserealizaúnicamenteatravés

de la ruta al aeropuerto que conecta con el óvalo de Huanchaco, generando un ingreso exclusivo y controlado. Esta localización, además de ser un referente territorial visible, presenta ventajas en su funcionalidad, pero también limitaciones en su conectividad con el entorno inmediato,loqueplantealanecesidadde mejoras en infraestructura vial y de integraciónurbana.

4.1 UBICACIÓN DEL EDIFICIO

TERRENOS Y AREAS

El Aeropuerto Internacional de Trujillo se encuentra en el distrito de Huanchaco y ocupaunterrenode78hectáreasconuna configuraciónirregular.Ensuextensiónse integranlapistaprincipal,lasplataformas deaeronaves,laterminaldepasajerosy diversos edificios de servicio. Su emplazamiento estratégico permite una conexióndirectaconlaciudadmediantela carreteraalaeropuerto.

La mayor parte del área corresponde a zonas libres destinadas a la operación aérea, como rodajes y franjas de seguridad. La pista principal tiene una longitudde3024metrosyunanchode44 metros. Estas condiciones garantizan un funcionamiento eficiente y seguro en las maniobrasdeaterrizajeydespegueenel mismoaeropuerto.

ÁREA: 780000m²(78ha)

ÁREA LIBRE: (pista,rodajes,plataformas yfranjas):670000m²

ÁREA OCUPADA: (terminales,hangares, servicios):~110000m²

PERÍMETRO:aprox.4800m

Al analizar el área libre y ocupada del aeropuerto de Huanchaco, se evidencian deficiencias que afectan su funcionamiento. Predomina la dependenciadeluzartificialporlaescasa iluminación natural, reduciendo el confort ambiental. También se carece de áreas verdes o sombreadas que mejoren las condiciones del entorno y la percepción delespacio.

El principal problema es la falta de planificación integral, lo que originó construcciones dispersas y sin una estructura clara. Esta ausencia de orden afecta la relación entre los espacios y genera recorridos ineficientes. En conjunto, se observa una organización pocofuncionalquelimitalaexperienciade losusuarios.

En el área ocupada, las edificaciones cuentan con módulos dispuestos sin coherencianijerarquíafuncional.Lapista y las plataformas son el único elemento estructurador del conjunto. Esta falta de articulación limita la operatividad y el crecimiento futuro del aeropuerto, afectandosuproyecciónurbana.

ÁREAOCUPADA
ÁREALIBRE

4.1 UBICACIÓN DEL EDIFICIO

VIAS Y ACCESIBILIDAD

Respecto a las vías y accesibilidad del Aeropuerto Internacional Capitán FAP

Carlos Martínez de Pinillos, su conexión vial es limitada, ya que solo se accede a travésdeunarutaprincipalquelounecon elóvalodeHuanchacoyconlaciudadde Trujillo. Esta condición convierte a la carretera en el único medio de ingreso y salida,generandodependenciadeunsolo acceso.

El tramo vial que conduce al aeropuerto presenta características de vía secundaria,conunapistade6.50metros de ancho y veredas de 1.50 metros. La faltadevíascomplementariasaumentala dependencia del tráfico en la ruta principal,sobretodoenhoraspuntaoen coincidenciaconvuelos.

En la zona de ingreso no existe una jerarquización vial ni paraderos formales de transporte público, lo que obliga a los pasajerosadependercasiexclusivamente de taxis, autos privados o aplicativos, limitandolaaccesibilidaddelaeropuerto.

CALLE SAN CRISTOBAL
CALLE SAN LUCAS

4.2 RESEÑA HISTORICA DEL EDIFICIO

ORIGEN PLANIMÉTRICO DEL EDIFICIO

El Aeropuerto de Trujillo remonta su origen a las primeras décadas del siglo XX, con una infraestructura cuyas instalaciones, como la terminal y la torre de control, datan de mediados del siglo

XX. Su diseño inicial sentó las bases operativas, convirtiéndose en el principal puntodeconexiónaéreaparaLaLibertad.

Posteriormente, la infraestructura experimentó cambios significativos, ya quelapistadeaterrizajefueampliadaen

2005, y el terminal pasó a estar en concesión privada desde el 2006. Estos eventos impulsaron una etapa de adaptaciónymodernizaciónparamanejar elcrecientetráficodepasajeros. Enconsecuencia,sibienelaeropuertoha evolucionado notablemente para responder a las demandas actuales, su estructuraoriginalsiguesiendoelnúcleo histórico.

PRIMERAFASEDE INTERVENCIÓN

4.2 RESEÑA HISTORICA DEL EDIFICIO

ETAPAS DE INTERVENCIÓN

La evolución de la infraestructura del Aeropuerto Internacional Capitán FAP

Carlos Martínez de Pinillos se puede dividirentresetapasprincipales,cadauna

reflejando una adaptación a las necesidades de la aviación regional. Al igual que el local central de la UNT, los primeros elementos construidos constituyeron la base esencial de la estructura.

La primera etapa es la Configuración

Original (1960 - 2000), que estableció la terminal y la torre de control bajo la administración estatal (CORPAC). El diseñooriginalpresentabaunesquemade

color más antiguo, con tonos salmón y azul (visible en la imagen superior del documento de etapas), sentando las basesoperativas.

Posteriormente, la Fase de Transición y Concesión(2000-2015)marcóuncambio crucialenlahistoriadelaeropuerto.Esta fasesecaracterizóporunaremodelación estética, adoptando el esquema de colores más neutros de blanco/crema y amarilloocre.

Esteperiodofuedegranactividad,yaque en2005seampliólapista,yen2006se concretóelcambiodeadministraciónala concesión privada de AdP. Estas intervenciones respondieron a la necesidaddeadaptarlainfraestructuraal crecimientodeltráficoaéreoregional.

Finalmente,dentrodeestamismafasede transición, se implementó una ModificacióndeCubiertayServicios,que fuelaúltimaintervenciónenlafachaday entradaprincipaldelterminalantesdela gran expansión. Esta modificación se muestra en la imagen principal de la derecha del documento, donde se ve el cambioeneláreadeacceso.

Paralograrlo,seutilizóunaexpansiónde la cubierta con perfiles de acero y materialesmetálicosyligerosenconjunto conmamparasdevidrio,contrastandocon la construcción de concreto original. De este modo, el aeropuerto evitó un crecimiento desordenado, priorizando la optimizaciónyunaimagenmodernaantes delaconstruccióndelanuevaterminal.

FASE I DEL AEROPUERTO (1960-2000)
FASE II DEL AEROPUERTO (2000-2015)

El entorno inmediato al Aeropuerto Internacional de Huanchaco, a diferencia de un centro monumental, se caracteriza por un perfil urbano bajo en los frentes adyacentes al edificio. Se observa una altura de edificación predominantemente modesta, lo que facilita las operaciones aéreas.Lasconstruccionesalcanzanentre unaytresplantas,generandounasilueta urbanacontinuaydebajadensidad. Las características de construcción en esta zona son sencillas, basadas en materiales y sistemas constructivos tradicionales como el ladrillo de arcilla o bloque de concreto, con un estado de conservación generalmente adecuado. Las fachadas muestran ampliaciones o acabados parciales, evidenciando un desarrolloprogresivoyautoconstruido. Por consiguiente, las tipologías circundantes son principalmente residenciales o de servicios de bajo impacto,dondeelúnicoelementodegran escala urbana y jerarquía es el propio aeropuerto, el cual domina el perfil adyacente.

CALLE ALEDAÑA DERECHA A LA CARRETERA RUTA AL AEROPUERTO
CALLE SAN CRISTOBAL
FOTOGRAFÍA DE LA CALLE SAN CRISTOBAL

TEMPERATURA

En Huanchaco predomina un clima templado a lo largo del año, con temperaturas que varían entre los 17 °C durantelasnochesmásfríasylos27°C enlosdíasmáscálidos.

Lasmáximasmediasdiariassepresentan entre enero y marzo, cuando el calor se intensifica y el ambiente se vuelve ligeramente más húmedo. En los demás meses, la temperatura se mantiene estable,generandounasensacióntérmica agradable y constante, mientras que las precipitaciones son escasas, con ligeros aumentosentrefebreroymarzo.

El cielo suele mantenerse nublado la mayor parte del año, reflejando la típica neblina costera del norte peruano. No obstante, en los meses de verano, especialmente en marzo, se incrementan losdíassoleadosylaradiaciónsolar.En esemismoperiodotambiénsepresentan algunas lluvias breves y de baja intensidad, aunque el clima continúa siendo mayormente seco en el resto del año.

TEMPERATURAS MEDIAS Y PRECIPITACIONES

CIELO NUBLADO, SOL Y DÍAS DE PRECIPITACIÓN

TEMPERATURAS MÁXIMAS

CANTIDAD DE PRECIPITACIÓN

LastemperaturasmáximasenHuanchaco

alcanzansusvaloresmásaltosentrelos meses de marzo y diciembre, con registrosquevandesdelos32°Chasta los 36 °C. Este aumento térmico se asocia directamente con la estación de verano,cuandolaradiaciónsolaresmás intensaylascorrientescálidasdelnorte influyensobrelacosta.Enotrosmeses, la temperatura máxima se mantiene dentrodeunrangomástemplado,entre 28 °C y 32 °C, generando un ambiente cálidoperocómodoquepredominagran partedelaño.

Asimismo, Huanchaco presenta un régimen de lluvias muy bajo, característico del litoral peruano. La mayor parte del tiempo los días son completamente secos, especialmente entre abril y noviembre. Sin embargo, entre diciembre y marzo se registran ligeros episodios de precipitación, generalmente en forma de lloviznas o lluvias breves. Estas no alcanzan volúmenes significativos, pero sí marcan unpequeñocambioestacionalqueaporta

humedad al ambiente y favorece la vegetacióncostera.

ROSADEVIENTOS

La rosa de vientos de Huanchaco revela que las direcciones predominantes están orientadas principalmente hacia el sur y suroeste, lo cual indica que los vientos marinos ingresan desde el océano hacia tierra firme con más frecuencia en esas orientaciones.Enelgráficoseobservaun mayor grosor de las “pétalos” en esas direcciones, lo que sugiere que la frecuencia del viento en esas orientaciones es significativamente superioralresto.Esconstanteyuniforme, importanteparadisiparcaloryrenovarel aireenedificacionescosteras.

Además,losvientosconorientaciónestey sureste también muestran presencia moderada, aunque en menor magnitud. Estas direcciones menores podrían corresponder a fenómenos locales de brisasterrestresoefectostopográficos.El análisis de la rosa de vientos permite identificar no solo la dirección frecuente del viento, sino también su intensidad relativa comparativa, lo cual es esencial paraorientarfachadas,ubicaraberturasy diseñarproteccióncontraráfagas.

Presentalosarcosdetrayectoriasolaralo largo del año, mostrando cómo el sol cambia su altura y azimut según las estaciones. En ella se puede ver que durante los meses de verano los recorridossolaressonmáselevados,con mayor inclinación hacia el norte, lo que resultaenunamayorincidenciadirectade radiación sobre fachadas orientadas al norte y este. En cambio, en invierno los arcossolaressereducen,contrayectorias más bajas en el cielo y ángulos de incidenciamásoblicuos.

Este análisis es clave para el diseño bioclimático:conlacartasolarsepueden proyectarlassombrasútiles,determinarel grado de exposición solar en cada fachada y decidir estrategias de protección (voladizos, parasoles, vegetación). En Huanchaco, los picos solares durante el mediodía del verano muestran que las horas de mayor radiación coinciden con orientación surnorte, lo que obliga a diseñar elementos que atenúen la ganancia térmica directa, especialmenteenfachadascríticas.

CARTASOLAR

ENVOLVENTE

La envolvente presenta una composición sobria y funcional, donde los elementos constructivos se organizan de forma equilibradaparadefinirlaimagenprincipal delconjunto.Lasaberturassedistribuyen estratégicamente,predominandoventanas de proporción media que permiten la entrada controlada de luz y ventilación. Las barandas metálicas complementan la envolvente al aportar ligereza visual y reforzar la seguridad en las áreas abiertas.

Aunque se observan algunas mamparas que introducen cierto grado de transparencia,lafachadafrontalmantiene unaaparienciamáscerrada,priorizandola proteccióntérmicaylaprivacidadinterior. Por su parte, en la parte posterior del edificio, la envolvente adquiere un carácter más abierto gracias a la mayor presencia de mamparas. Además, las puertasyaccesosposterioresseintegran con las áreas de servicio y circulación, garantizando funcionalidad sin romper la coherenciadeldiseñoarquitectónico.

ELEVACIÓN FRONTAL
ELEVACIÓN TRASERA

En la elevación derecha, la envolvente adquiere un carácter más cerrado y privado.Seobservaunacantidadreducida de ventanas en comparación con las fachadaslongitudinales,loquereflejauna intención de limitar la exposición visual y controlarelingresodeluz.Deestemodo, se mantiene un ambiente interior más protegido del calor y de las corrientes de aire directas. La composición de la fachada, aunque discreta, conserva la coherenciaformaldeledificio,combinando muros sólidos con aberturas puntuales queequilibranventilaciónyprivacidad.

ELEVACIÓN DERECHA

Asimismo, la materialidad de esta envolvente resalta el predominio de superficiescontinuasyopacas,reforzadas con elementos estructurales que aportan solidez visual. La presencia mínima de barandas y mamparas evidencia una intención de crear un frente funcional, priorizandoelrendimientoclimáticosobre laaperturavisual.

Porotrolado,enlaelevaciónizquierda,la envolvente mantiene un lenguaje sobrio, conlapresenciadesolodosventanasy

ELEVACIÓN IZQUIERDA

unamamparadeproporciónmedia.Esta composición evidencia un control de la transparenciaylailuminación,generando un ambiente interior más reservado. A diferencia de la parte posterior, aquí las aberturasseconcentranenpuntosdonde se requiere ventilación o vista puntual haciaelexterior.

Además,destacalaenvolventedelatorre de control, conformada por ventanales perimetrales que permiten una visibilidad panorámica del entorno. Este contraste entreopacidadytransparenciaequilibrael conjunto arquitectónico, reforzado por techos opacos que protegen del sol directo y muros sólidos que aportan sensacióndeestabilidad. En síntesis, las cuatro elevaciones del edificio reflejan una envolvente diseñada con criterios funcionales y climáticos.

Mientrasquelasfachadasposterioresyla torre de control destacan por su transparenciayaperturahaciaelentorno, las laterales y frontales priorizan la protección solar, la privacidad y la eficiencia térmica. De esta manera, la envolventenosolocumpleunrolestético.

En la isometría del edificio se puede apreciarconclaridadladistribucióndelas ventanas,mamparasypuertas,elementos queconformanlaenvolventeydeterminan la relación entre el interior y el exterior. Lasventanasseubicanestratégicamente en diferentes fachadas para garantizar una correcta iluminación y ventilación natural,permitiendoelingresocontrolado deluzsingenerardeslumbramientos.Las mamparas, presentes principalmente en las zonas de mayor conexión con el entorno,aportantransparenciayamplitud visual, favoreciendo la interacción entre los espacios interiores y las áreas exteriores.

Por su parte, las puertas cumplen un rol funcionaldentrodelconjunto,organizando losaccesosprincipalesysecundariosdel edificio.Suubicaciónrespondetantoala circulación interna como a las necesidades operativas del proyecto, permitiendounflujoordenadoyeficiente. En conjunto, estos elementos definen el carácter arquitectónico del edificio, equilibrando apertura y protección, y reforzandoelvínculoentreforma,función yconfortambiental.

VENTANA
PUERTA DE UNA HOJA
VENTANA

La torre de control presenta una escala monumental en relación con el resto del edificio del aeropuerto, ya que sobresale visualmente por su altura y ubicación estratégica.Suproporciónverticalgenera un punto de referencia dominante dentro del conjunto arquitectónico, transmitiendo unasensacióndejerarquíaycontrol.Esta escala permite una amplia visibilidad del entorno, esencial para las funciones operativas del aeropuerto, y a la vez estableceunaconexiónvisualdirectacon elpaisajecosterodeHuanchaco.

A nivel de percepción humana, la torre mantiene una escala funcional y técnica, adaptada a las necesidades de observación y supervisión aérea. Aunque supresenciaesimponente,suvolumenno resulta opresivo gracias al uso de superficies transparentes y barandas ligerasquesuavizansumasavisual.Así, latorrelograequilibrarmonumentalidady ligereza, destacando como el elemento mássignificativodeledificio.

Debido a su ubicación elevada y exposición directa, la torre de control recibe una ventilación constante proveniente de los vientos marinos característicos de Huanchaco. La ausenciadecerramientosopacospermite el paso libre del aire, garantizando una circulación natural que mantiene el espacio fresco. Las barandas que la rodean no solo cumplen una función de seguridad, sino que también facilitan la entradadecorrientesdeaire,reduciendo la necesidad de sistemas mecánicos de ventilación.

ILUMINACIÓN

La torre de control se encuentra completamente expuesta a la radiación solar durante gran parte del día, especialmenteenlashorasdemediodía. Sus superficies transparentes permiten una excelente entrada de luz natural, asegurando visibilidad plena hacia el entorno y un ambiente luminoso en su interior. Sin embargo, esta misma exposición implica una ganancia térmica considerable, por lo que es fundamental incorporar elementos de control solar o materiales reflectantes que mitiguen el impactodirectodelsol.

Lazonadeembarquepresentaunaescala monumental, propia de los espacios destinados a recibir y concentrar un alto flujodepersonas.Suamplitudytechado elevado generan una sensación de aperturayamplitudespacial,quefacilitala circulación y evita la sensación de aglomeración. La ausencia de mobiliario excesivo contribuye a reforzar esta percepción, permitiendo que los usuarios se desplacen libremente y que las visualessemantengandespejadas.

Anivelperceptual,elespaciomantieneun

equilibrio entre monumentalidad y funcionalidad. Aunque su volumen es imponente, el diseño interior busca conservar una sensación de ligereza mediante el uso de superficies amplias, iluminación natural y estructuras visibles que transmiten transparencia. La proporcióndeloselementosestructurales ylaalturadeltechootorganalambiente una dimensión generosa, propia de un espacio público significativo dentro del conjuntoaeroportuario.

Cuenta con una ventilación adecuada graciasasugranvolumeninterioryala disposición estratégica de aberturas que permitenelflujocruzadodelaire.Alestar techada pero parcialmente abierta en algunossectores,sefacilitalaentradade corrientes naturales que refrescan el ambiente sin necesidad de sistemas mecánicos intensivos. Este diseño promueve el confort térmico de los usuarios, especialmente considerando el climacálidoyventosodeHuanchaco.

Lazonadeembarqueaprovechaamplias superficies vidriadas y mamparas que permitenelingresodeluznaturaldurante el día. Esta condición reduce la dependencia de la iluminación artificial y generaunambienteluminosoyagradable paralospasajeros.Laluzsedistribuyede manera uniforme gracias a la altura del techoyalusodematerialesreflectantes, evitando sombras marcadas o deslumbramientos.Así,lacombinaciónde claridad,ventilaciónyamplitudconviertea la zona de embarque en un espacio cómodo, funcional y visualmente equilibradodentrodelaeropuerto.

VENTILACIÓN
ILUMINACIÓN

ESCALA

Lazonadecheck-inpresentaunaescala intermediaentremonumentalynormal,ya que, aunque se encuentra dentro del edificio principal, conserva amplitud suficienteparaalbergarelflujoconstante de pasajeros. Su configuración con múltiples ángulos genera dinamismo espacial,evitandolamonotoníatípicade losespacioslineales.Lasalturasamplias del techo y la disposición abierta de los mostradores refuerzan la sensación de amplitudyfluidez.

A pesar de su tamaño considerable, la escaladelespaciosemantieneacogedora y funcional, pues los cerramientos de vidrio y las divisiones internas transparentes equilibran la sensación de amplitud con la necesidad de orientación visual. El diseño interior permite percibir unacontinuidadconlasdemásáreasdel aeropuerto, manteniendo coherencia formalyespacial.Deestaforma,elárea de check-in logra combinar la monumentalidad necesaria para su función pública con una escala humana que favorece la comodidad y la interacción.

En cuanto a la ventilación, la zona de check-in se beneficia de la presencia de ventanas, mamparas y puertas que facilitan la circulación de aire dentro del recinto. Su ubicación cercana a los accesosprincipalespermitelaentradade brisasnaturalesprovenientesdelexterior, loquecontribuyeamantenerunambiente frescoyventilado.Laformaanguladadel espacio también ayuda a canalizar las corrientes de aire, garantizando una renovación constante del ambiente sin necesidaddedependercompletamentede sistemasmecánicos.

La iluminación natural juega un papel fundamental en esta zona. Las amplias mamparasyventanaspermitenelingreso de luz difusa durante gran parte del día, creandounentornoluminosoyagradable para los pasajeros. El reflejo de la luz sobre las superficies interiores ayuda a distribuirlauniformemente,reduciendolas sombrasymejorandolavisibilidadenlos mostradores. Esta estrategia no solo optimizaelconsumoenergético,sinoque tambiénrefuerzalasensacióndeapertura y transparencia característica del diseño generaldelaeropuerto.

VENTILACIÓN
ILUMINACIÓN

ÁREAS LIBRES

Lazonadecheck-inpresentaunaescala intermediaentremonumentalynormal,ya que, aunque se encuentra dentro del edificio principal, conserva amplitud suficienteparaalbergarelflujoconstante de pasajeros. Su configuración con múltiples ángulos genera dinamismo espacial, evitando la monotonía típica de losespacioslineales.Lasalturasamplias del techo y la disposición abierta de los mostradores refuerzan la sensación de amplitudyfluidez.

A pesar de su tamaño considerable, la escaladelespaciosemantieneacogedora y funcional, pues los cerramientos de vidrio y las divisiones internas transparentes equilibran la sensación de amplitud con la necesidad de orientación visual. El diseño interior permite percibir unacontinuidadconlasdemásáreasdel aeropuerto, manteniendo coherencia formalyespacial.Deestaforma,elárea de check-in logra combinar la monumentalidad necesaria para su función pública con una escala humana que favorece la comodidad y la interacción.

PALMERA
ÁRBOL: INGA MARGINATA

ZONIFICACIÓN

Se organiza en distintas zonas según su función y nivel de acceso. La zona de controlincluyelatorredecontrol,aduanas y migraciones, donde se supervisan los vuelos y se gestionan los ingresos y salidas del país. Por otro lado, la zona pública abarca los mostradores de atención al cliente, la venta de pasajes, los baños y las áreas de espera, accesibles para todos los visitantes. Siendoesteespacioelpuntodeencuentro entreviajerosyacompañantes.

Las zonas complementarias agrupan almacenes, depósitos, oficinas administrativas y espacios de apoyo logístico, donde se realizan tareas de mantenimiento,cargaygestiónoperativa.

Finalmente,lazonaprivadasedestinaal embarque y desembarque de pasajeros, consalasdeesperayserviciosexclusivos paraquienesyahanpasadoloscontroles de seguridad. En conjunto, esta organización permite el funcionamiento ordenado, eficiente y seguro del aeropuerto, facilitando las operaciones aéreasyladeatenciónalospasajeros.

ISOMETRÍA DE LOS ESPACIOS

Zonadecontrol

Zonapública

Complementarias

Administrativo

Embarque

Zonaprivada

Atenciónalcliente

Desembarque

Servicioshigiénicos

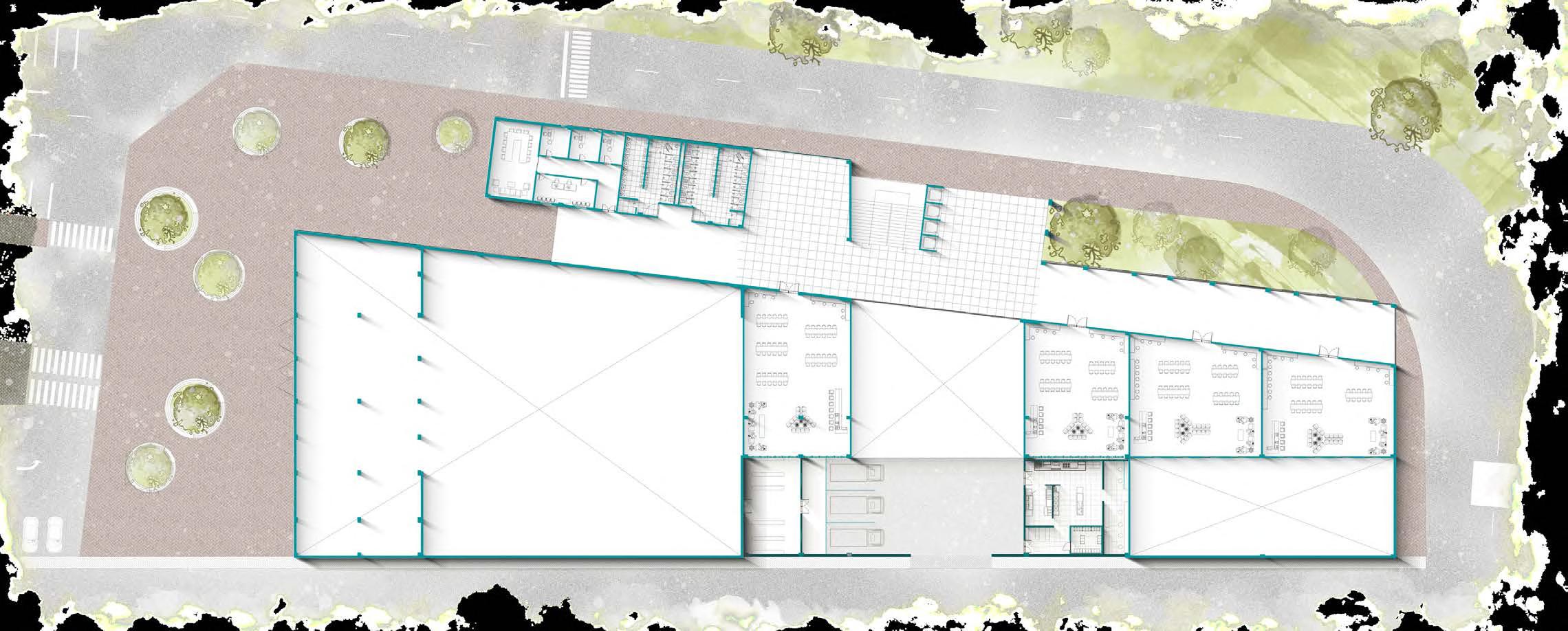
PLANTA ARQUITECTÓNICA

CIRCULACIÓN VERTICAL

Seorganizamedianteescalerasyrampas distribuidas estratégicamente a lo largo deledificio.Estoselementosrespondena los distintos desniveles presentes en la estructura, permitiendo la conexión entre áreas públicas, administrativas y de servicio.

Lasrampas,identificadasencolorceleste, se ubican principalmente en la zona de desembarque, facilitando el desplazamiento de personas con movilidadreducida,equipajeocarritosde servicio.

Por su parte, as escaleras, constituyen los principales puntos de enlace entre niveles, garantizando una circulación funcional y continua entre los distintos sectores del edificio. Sin embargo, el accesoprincipalaúnpresentalimitaciones estructurales que dificultan el tránsito universal, lo que evidencia la necesidad de reforzar las condiciones de accesibilidad y ampliar los puntos de conexiónvertical.

LEYENDA: Circulaciónvertical

INGRESO PRINCIPAL

ESCALERA

CIRCULACIÓN HORIZONTAL

Se organiza mediante recorridos diferenciados para pasajeros, público y personal, garantizando un tránsito ordenado y seguro dentro del edificio. Desde el ingreso principal, los flujos se distribuyenhacialaszonasdefacturación, embarque y servicios, permitiendo una orientaciónclaraycontinuaencadaetapa deldesplazamiento.

El recorrido público conecta las áreas principalesdelterminal,comolaatención al cliente, las salas de espera y los servicios generales, mientras que el recorrido privado se dirige a zonas operativas restringidas destinadas al personal autorizado y a las actividades técnicas del aeropuerto. El flujo de pasajeros mantiene independencia para asegurar el control, la seguridad y la eficienciaenlosdesplazamientos.Apesar de su organización funcional, algunos pasillos presentan limitaciones de amplitud y un único acceso principal que reducelafluidez.

LEYENDA:

Recorridopúblico

Recorridoprivado

Recorridodepasajeros

DISTRIBUCIÓN

CHECK-IN

El área de facturación del Aeropuerto

Internacional de Trujillo es uno de los espaciosmásconcurridos,diseñadapara registrar y atender a los pasajeros antes del embarque. Se compone de mostradores de facturación, cintas separadoras y quioscos de autoservicio quefacilitanelordenyoptimizanelflujo deusuariosdentrodelterminal.

Su disposición lineal permite una circulación continua y clara, donde los pasajeros pueden elegir entre el servicio asistido o el autoservicio, reduciendo los tiempos de espera. Los quioscos electrónicos representan una mejora tecnológica que agiliza los procesos y disminuye la carga de trabajo del personal.

Sinembargo,seobservanlimitacionesen cuanto a accesibilidad universal, ya que algunossectorescarecendeseñalización táctilyrutasadaptadasparapersonascon movilidad reducida. Es necesario incorporar mejoras que garanticen un desplazamiento seguro y una atención inclusivaparatodoslosusuarios.

PLANTA ARQUITECTÓNICA

MOSTRADOR DE CINTAS

SALADEEMBARQUE

La sala de embarque del Aeropuerto Internacional de Trujillo constituye el espacio final de espera antes del abordaje, diseñada para brindar comodidad y control al pasajero. En ella se ubican bancas metálicas distribuidas de manera ordenada, escritorios de boarding pass y equipos de control de seguridad como escáneres de rayos X paraequipaje.

Su distribución permite una circulación fluida,separandolaszonasdeesperade las áreas operativas y de control. El mobiliario y la señalética se organizan paraorientaralusuariohacialaspuertas deembarque,mientrasquelailuminación artificialmantieneunaatmósferauniforme entodoelrecinto.

Noobstante,seobservanlimitacionesen cuantoalconfortambientalylacapacidad del espacio, especialmente en horas de alta demanda. La falta de áreas de descanso amplias y una ventilación más eficiente afectan la experiencia del usuario, evidenciando la necesidad de mejoras en funcionalidad y confort espacial.

ESCRITORIO DE BOARDING PASS BANCA DE ESPERA

PLANTA ARQUITECTÓNICA

4.7 ANÁLISIS ESTRUCTURAL

SSITEMA CONSTRUCTIVO

Elsistemaconstructivodelaeropuertode

Trujillo se caracteriza por el uso de un sistemamixto,conformadoprincipalmente por albañilería confinada con pórticos de concreto armado, el cual garantiza estabilidad y resistencia frente a las cargas estructurales. Aunque el edificio cuenta con un solo nivel, su extensión y configuración funcional demandaron la divisiónencuatrobloques,cadaunocon características constructivas particulares. En todos ellos se observa la presencia combinada de dos sistemas: el mixto tradicional y la estructura metálica, aplicadaprincipalmenteenlascubiertasy elementoscomplementarios.

Inicialmente, la edificación fue concebida bajo un sistema mixto convencional, donde los muros portantes, columnas y vigasconformabanlaestructuraprincipal. Sinembargo,conelpasodeltiempoylas diversasintervencionesyremodelaciones, se incorporó progresivamente un sistema metálico compatible con el anterior, buscandooptimizarelcomportamiento

Cubierta

PlanchaAluzinc

DISTRIBUCIÓN EN BLOQUES DEL EDIFICIO

Cubierta Principal PlanchaAluzinc

estructuralylafuncionalidadespacialdel conjunto. El uso de cerchas metálicas y planchasdealuzincparalascubiertasha permitido ampliar las luces estructurales, reduciendo la necesidad de apoyos intermedios y generando espacios más libres, especialmente en zonas de alto flujo como el área de embarque o el check-in.

Este refuerzo mediante elementos metálicos no solo mejora la capacidad estructural ante cargas de viento y peso propio,sinoquetambiénaportaligerezay facilita futuras ampliaciones o mantenimientos.Además,elusodeestos materialesofreceunamayorresistenciaa la corrosión, aspecto relevante por la cercanía del aeropuerto al mar, y garantiza un adecuado comportamiento térmico y funcional frente a las condicionesclimáticaslocales.

En conjunto, el sistema constructivo del aeropuertoreflejaunaadaptacióntécnica eficiente, donde la integración entre albañilería, concreto y acero garantiza durabilidad, estabilidad y coherencia arquitectónica.

Cercha metálica Acero Inoxidable
Muro
Hormigon

MATERIALIDAD

Enelcasodelamaterialidaddeledificio, se realiza un análisis por bloques que evidenciaelusodiferenciadodesistemas constructivos según su función y ubicación.EnelbloqueA,predominanlos murosdeladrilloKingKongde18cmde espesor, asentados con mortero de cemento y arena, lo que proporciona solidez estructural y buen aislamiento térmico. Sobre este volumen se dispone unacubiertaligeradeplanchasdealuzinc de0.45mm,sostenidaporunaestructura metálica secundaria, ofreciendo protección ante la radiación solar y favoreciendolaventilacióninterior.

En el bloque B, la composición adquiere mayorligerezavisualmedianteelusode cerchasmetálicasconformadasportubos cuadradosdeaceroinoxidablede2”x2”, soldadasentresíyancladasalosmuros portantes. Este sistema permite cubrir luces más amplias sin recurrir a apoyos intermedios,manteniendolapresenciadel muro de ladrillo como elemento de cerramiento.

Por su parte, el bloque C presenta un equilibrio entre la albañilería y la estructurametálica,observándoseun

adecuado encuentro entre ambos sistemas gracias al uso de perfiles de anclaje que garantizan compatibilidad y rigidez. En este sector se incorpora ademásunapresenciamoderadadevidrio templado de 8 mm en ventanales y puertas, permitiendo el ingreso de luz naturalsincomprometerlaseguridadniel conforttérmico.

Finalmente, en el bloque D predomina nuevamenteelusoextensivodemurosde ladrillo, reforzados con columnas y vigas deconcretoarmado,juntoconcerchasde aceroinoxidablequesostienenlacubierta deplanchasdealuzinc.Estacombinación refuerza la estabilidad estructural y la coherencia material del conjunto, manteniendo una relación entre masa y ligereza, entre opacidad y transparencia, acorde con las exigencias funcionales y climáticasdeledificio.

Además, la disposición de las cerchas metálicas permite una mayor altura interior,optimizandolacirculacióndelaire yladisipacióndelcalor,loquefavoreceel

confort térmico del espacio. solar y una mayor durabilidad en el tiempo, consolidando así un sistema constructivo adaptablealascondicionesdelentorno.

BLOQUE

DETALLES CONSTRUCTIVOS

En los detalles constructivos se observa con claridad la intersección entre dos

sistemas estructurales: el sistema mixto de albañilería confinada con pórticos de concreto armado y el sistema de estructura metálica, conformando un conjunto coherente y funcional. Esta combinación responde tanto a criterios estructurales como a condiciones ambientales propias del entorno costero, donde la exposición a la humedad y la salinidadexigematerialesresistentesala corrosión y uniones seguras entre componentesdedistintanaturaleza.

En las uniones principales se aprecia la conexiónentrelascerchasmetálicasylas

columnas de hormigón armado, resuelta mediante placas de conexión de acero inoxidableAISI304conpernosdeanclaje galvanizados de alta resistencia (grado 8.8), asegurando una transmisión adecuada de esfuerzos entre ambos sistemas. Estas placas, de aproximadamente8a10mmdeespesor, estánfijadasainsertosempotradosenel concreto mediante anclajes químicos epoxídicos,garantizandounauniónsólida yduradera.Elusodeaceroinoxidableen

GRÁFICO DE ENCUENTRO ENTRE SISTEMA CONSTRUCTIVO METÁLICO Y DE CONCRETO

Interesección de Sistemas Constructivos

Metal - Hormigón

DETALLE CONSTRUCTIVO UNION ENTRE CERCHAS

Sistema Constructivo

Estructura Metálica

PlacadeConexión

Acero Inoxidable

estospuntossejustificaporlacercaníaal mar, donde la acción salina puede acelerar los procesos de oxidación en elementosmetálicosconvencionales.

Union entre Elementos

Junta con Soldadura

Pernos deAnclaje

Acero Inoxidable

DETALLE CONSTRUCTIVOANCLAJE DE CERCHACON COLUMNA

UniónentrePlacay

EstructuraMetálica

Soldadura

Sistema Constructivo

Hormigón

Tubo Cuadrado

Acero Inoxidable

Pernos deAnclaje

Acero Inoxidable

Placa Base para Unión

Acero Inoxidable

Columna de Hormigón

Sistema Constructivo

Asimismo,enlosempalmesentrecerchas metálicas se observa un sistema combinado de pernos y soldadura continua, técnica que otorga rigidez estructural y precisión en el montaje, resistiendo ante cargas de viento y peso propio de la cubierta. Las uniones soldadas, protegidos con pintura anticorrosiva epóxica, reforzando la durabilidadestructural.

En cuanto a las cubiertas, estas se incorporaron progresivamente, conforme se identificaban las necesidades y se evaluabaeldesempeñodelosmateriales existentes.Esteprocesopermitióadoptar elsistemadeplanchasdealuzincde0.45 mm, por su compatibilidad con la estructura mixta y su eficiencia térmica. Enconjunto,seevidencianunaresolución técnica eficiente y adaptativa, donde la integraciónentremampostería,concretoy acerogarantizalaestabilidadydurabilidad arquitectónica del edificio frente a las condicionesambientalesdelentorno.

4.8 ANÁLISIS DE VULNERABILIDAD Y RIESGOS

MAPEO DE DAÑOS

En el análisis de vulnerabilidad realizado en el Aeropuerto de Trujillo, no se han identificadogrietasnifisurasvisiblesenel edificioprincipal,loqueevidenciaunbuen estadoestructuralgeneral.Estacondición

se asocia principalmente al proceso de remodelación ejecutado a inicios de este año,enelcual,aunquesolounapartedel edificiofueintervenidademaneraintegral, se realizó también un mantenimiento preventivoycorrectivoenelrestodelas áreas, reforzando los elementos estructuralesymejorandolascondiciones deconservación.

Dentrodelanálisis,sehanclasificadolos espacios en diferentes niveles de seguridad. Los espacios en verde son consideradoszonasseguras,alcontarcon señalización adecuada, rutas de evacuación claramente identificadas y elementos estructurales sólidos, como muros portantes y columnas de concreto armado en buen estado, que garantizan estabilidadanteposibleseventossísmicos odecarga.

INGRESO PRINCIPAL

Por otro lado, los espacios en amarillo representan zonas con vulnerabilidad potencial,yaque,aunqueactualmenteno presentan daños, podrían desarrollar afectacionesafuturosinosecontinúacon un mantenimiento periódico. En estas áreas se concentran cerchas metálicas que sostienen cubiertas añadidas posteriormente a la construcción original del edificio, lo que requiere un seguimiento constante para asegurar su compatibilidadestructuralydurabilidad. Asimismo,seobservaqueestosespacios presentan mayor exposición a factores ambientales, como la humedad y la radiaciónsolardirecta,loscualespueden acelerar procesos de corrosión en las uniones metálicas o generar deformacionespordilatacióntérmica.Por ello, resulta fundamental implementar un plandeinspecciónpreventivaqueincluya larevisióndelestadodelascerchas,las soldadurasylosanclajes,detalmodoque genereseguridadalapersona.

LEYENDA:

VíadeTransportePesado

VíaAeropuerto

RUTA DE EVACUACIÓNES

Las rutas de evacuación del aeropuerto presentan una organización clara y accesible,garantizandoorientaciónrápida de los usuarios en caso de emergencia.

Un elemento esencial dentro de este sistema es el plano de seguridad, que muestra con precisión las rutas de evacuación,puntosdeencuentroyzonas seguras. Este plano se ubica en lugares estratégicos y visibles, especialmente en el ingreso principal del aeropuerto, permitiendo que cualquier persona identifique fácilmente las salidas y zonas deresguardoanteunaeventualidad.

A lo largo del edificio se observa señalización uniforme y bien distribuida, conindicadoresluminosos,pictogramasy flechas direccionales que orientan a los pasajeros hacia las rutas de escape y salidasdeemergencia.Laszonasseguras están correctamente delimitadas y señaladas con colores contrastantes, lo quefacilitasurápidaubicación.Además, el recinto cuenta con señalizaciones informativasydeadvertencia delespacio, evidenciando un sistema eficaz que contribuyealaproteccióndelosusuarios yalordengeneraldelrecorrido.

INGRESO PRINCIPAL

4.9 GESTIÓN DE RESIDUOS

RESIDUOS ORGÁNICOS E INORGÁNICOS

Lagestiónderesiduosenelaeropuertose organizademanerafuncionalyaccesible, permitiendo una correcta disposición de los residuos orgánicos e inorgánicos. En diferentes puntos del edificio se han instalado contenedores diferenciados por tipodedesecho,debidamenteseñalizados ydistribuidosenzonasdealtotránsito,lo quefacilitaalospasajerosyalpúblicola separación de sus residuos. Esta estrategiapromueveprácticassostenibles y contribuye a mantener la limpieza y el ordenenlasáreascomunes.

Sibiennosehaidentificadounpuntode acopio central dentro del edificio, los residuossonevacuadosperiódicamentea travésdelosdistintosaccesosyáreasde servicio con los que cuenta la infraestructura. Este sistema descentralizado permite una recolección continua y eficiente, evitando acumulaciones y reduciendo el riesgo de contaminación. En conjunto, la gestión evidencia una adecuada organización operativaorientadaalcuidadoambientaly lafuncionalidaddelespacio

05 05

PROPUESTAGENERAL DEINTERVENCIÓN

5.1 UBICACIÓN Y TERRENO

TERRENO Y AREA

Elterrenodestinadoalproyectoseubica

frente al terminal del Aeropuerto de Huanchaco, en un espacio actualmente baldío y subutilizado, cuya condición ofrece una oportunidad estratégica para potenciar el entorno aeroportuario. La intervención en este sector permite no solo mejorar la imagen y el atractivo del aeropuerto, sino también rehabilitar su entorno inmediato, generando una articulación más sólida entre el equipamientoaeroportuarioylaciudad.

El área total del terreno comprende 13 550 m², presentando una morfología irregularque,lejosdeserunalimitación,

abre la posibilidad de desarrollar una propuesta flexible y adaptada a las necesidades funcionales del nuevo equipamientoculturalydeconvenciones. Esta intervención forma parte de una ampliación planificada, orientada a complementarlosserviciosdelaeropuerto yaincorporarnuevosespaciosculturales, recreativos y de integración pública, fortaleciendo así la relación entre infraestructura,comunidadyvisitantes.

LEYENDA

TERRENO Y AREA

Elproyectodeintervenciónsedesarrollará sobreunterrenoubicadoenunazonade amplio potencial para el desarrollo aeronáutico.Eláreatotaldestinadaesde aproximadamente 13 m², ofreciendo un espacio significativo para la implementación de infraestructura especializada. Su extensión permite una distribución estratégica de ambientes y zonasfuncionales.

El terreno presenta una forma irregular, esta característica implica una planificaciónminuciosaenlaubicaciónde lasestructurasyáreaslibres,asegurando funcionalidad y armonía entre los componentes del proyecto. La geometría del predio también influirá en la orientacióndelapistayaccesosinternos. Asimismo, el terreno cuenta con acceso directodesdevíasperiféricasquefacilitan lallegadadeusuarios,personaltécnicoy servicios logísticos. Esta ubicación favorece la conectividad con zonas externas, asegurando un flujo ordenado para visitantes y operaciones aeronáuticas.

Edificio existente

Encuantoalaszonasdeintervención,se implementaráunaeródromoequipadocon una pista destinada al despegue y aterrizaje de avionetas, constituyendo el eje principal del proyecto. Este espacio será diseñado cumpliendo criterios de seguridad, orientación adecuada y dimensiones funcionales. Su presencia potenciará las actividades recreativas y formativasrelacionadasconlaaviación.

Además, se desarrollará una zona exclusiva para pilotos y aficionados, concebidacomounespaciodeencuentro, capacitación y convivencia aeronáutica. Este sector contará con ambientes complementarios para el intercambio de conocimientos, descanso y preparación previa a los vuelos. Será un punto clave parafomentarlacomunidadaérealocal.

Finalmente, la propuesta contempla la incorporacióndeunhelipuertoyunaplaza de ingreso,. El helipuerto permitirá operaciones rápidas y eficientes para aeronaves de ala rotatoria, mientras que laplazaservirácomoespaciopúblicode recepciónyarticulación.

5.2 RADIO DE INFLUENCIA

ElproyectoubicadodentrodelAeropuerto de Huanchaco presenta un radio de influenciaparticulardebidoasucondición de equipamiento inserto en una infraestructura aeroportuaria. Su radio de influencia primario está conformado por los usuarios directos del aeropuerto, es decir, pasajeros, acompañantes, personal aeroportuario y visitantes inmediatos que transitan por la terminal aérea. Para este grupo, el equipamiento funciona como un espacio complementario que ofrece servicios culturales, áreas de espera cualificadas y actividades breves que enriquecenlaexperienciaaeroportuaria.

Sin embargo, el proyecto también desarrolla actividades dirigidas a un público más amplio, lo que extiende su radio de influencia secundario hacia los habitantesdeHuanchaco,zonascercanas de Trujillo y visitantes atraídos por actividades culturales y eventos convirtiendo al equipamiento en un nodo articuladorentrelaciudadyelaeropuerto.

El radio de influencia de los equipamientos culturales abarca rango poblacional de aproximadamente 125 000 habitantesaloscualesseleesperaservir,dentrodelcual se incluye a los residentes cercarnos tanto como a los visitantesdeotrossectores,loscualessesienteatraídos ocuentanconlanecesidaddeldesarrollodeactividades dentrodelequipamiento.

EQUIPAMIENTO

CULTURAL

REQUERIDO

JERARQUÍA URBANA
RANGO POBLACIONAL
ÁREA METROPOLITANA
DEMANDA DE LOS EQUIPAMIENTOS CULTURALES
HABITANTES

5.3 PROGRAMACIÓN ARQUITECTÓNICA

La programación arquitectónica del Aeropuerto de Huanchaco inicia agrupando los espacios en zonas funcionalesopaquetes,segúnsuafinidad y uso, como Zona Operacional Aérea, Pasajeros, Administrativa, Servicios y Comercial.Estaorganizaciónestableceun funcionamientoclaroycoherente.

Luego,sedebejerarquizardichaszonas, entendiendo que no todas poseen la mismaimportanciadentrodelproyecto.La Zona Operacional Aérea y la Zona de Pasajerosdestacanporsurolesencialen la tipología aeroportuaria, seguidas por áreas administrativas y de apoyo. Esto determinalosespaciosprincipales.

Finalmente, corresponde dimensionar el programa de forma ordenada y gráfica, indicando el perfil de usuario, necesidades, actividades, espacios requeridos, número de ambientes, aforo, índice de ocupación y dimensiones referenciales.Tododeberápresentarsede maneradidácticayvisualmenteatractiva.

OPERACIONES AÉREAS

FORMACIÓN PROFESIONAL DEPILOTOS ZONA ADMINISTRATIVA

SERVICIOAL PASAJERO ZONA COMPLEMENTARIA

ZONAPÚBLICA

YDEEVENTOS

ZONADE ACCESOY RECEPCIÓN ZONA COMPLEMENTARIA

ZONADE SERVICIOS GENERALES ÁREA ADMINISTRATIVA

5.3 CONCEPTUALIZACIÓN Y ESTRATÉGIAS

Elproyectosedesarrollasobreunáreaen desuso dentro del Aeropuerto de Trujillo, Perú, entendida no como un remanente sin función, sino como una oportunidad para ampliar y diversificar la infraestructuraaeroportuariaexistente.La estrategia central parte del reciclaje adaptativo, no desde la reutilización de estructuras, sino desde la revalorización del territorio disponible, aprovechándolo para introducir un nuevo programa especializado que complemente y potenciealaeropuertoactual.

La ampliación se plantea como una operación estratégica que incorpora un aeródromo turístico, concebido para dinamizar la oferta aérea regional y fortalecerlarelacióndelaeropuertoconel territorio y el turismo local. Este nuevo equipamiento se articula con un aulario paralaenseñanzadepilotajedeavionesy helicópteros,unrestaurante,unhelipuerto y hangares para avionetas, conformando un sistema completo orientado a la formación, operación aérea ligera y actividades recreativas vinculadas al sectoraeronáutico.

TERRENO TOTAL:

CONSTRUCCIONES EN LAAMPLIACIÓN:

Todaslaspiezasdelproyectosediseñan

bajounalógicamodular.Cadamóduloes una unidad autónoma con capacidad de replicarse,desplazarseoampliarsesegún necesidades futuras, permitiendo que el aeródromocrezcaporfasessinafectarla operación del aeropuerto principal. Esta modularidad asegura eficiencia constructiva, optimización del mantenimiento y adaptabilidad programáticaalargoplazo.

La conceptualización general integra tres estrategias principales: activación de un terreno desaprovechado dentro de una infraestructura mayor, diversificación del programaaeroportuariohacialoturístico, educativo y operativo y flexibilidad espacialmedianteunsistemamodular

En conjunto, estas decisiones permiten transformar un espacio sin uso en un nuevo nodo aeronáutico que complementa, ordena y fortalece el Aeropuerto de Trujillo, generando un equipamiento funcional, adaptable y proyectado para responder a las necesidadesfuturasdelaregión.

LEYENDA:

CENTRO DE CONVENCIONES

Lapropuestapartedelreciclajeadaptativo como eje conceptual, tomando como referencia las ideas de Manuel Callejana en Reciclaje Arquitectónico, especialmenteloscriteriosvinculadosala conservación de lo existente. Bajo este enfoque,elAeropuertodeHuanchacose valora no solo como infraestructura operativa, sino como un hito urbano y el únicoaeropuertodelaciudaddeTrujillo, lo que refuerza la necesidad de preservarloypotenciarlo.

La estrategia del proyecto consiste en rehabilitar el aeropuerto y complementar sus funciones mediante una ampliación, orientada a integrarlo de manera más activa con la ciudad. Esta ampliación se concretaconlaincorporacióndeuncentro deconvenciones,unequipamientocapaz de diversificar su uso y albergar actividadescomotalleres,exposicionesy conferencias. Con ello, el aeropuerto adquiereunanuevavida,transformándose en un espacio cultural y social que conecta de forma más directa con la comunidad, sin perder su valor original comoinfraestructuradetransporte.

TERRENO TOTAL:

1.

CONCEPTOS Y ESTRATEGIAS:

2. REHABILITAR

CONSERVAR LO EXISTENTE

5.4 ORGANIZACIÓN, ZONIFICACIÓN YACCESOS

La zonificación se organiza de manera lineal para optimizar los accesos y la circulación. En el primer nivel, la plaza exteriorconectaconlazonadeaccesoy recepción,desdedondesedistribuyenlas

áreas principales: la zona pública y de eventosconsaladeexposiciónysalasde usos múltiples y las zonas de servicios complementarios, que agrupan servicios higiénicosyespaciostécnicos.

Enelsegundonivel,semantienelamisma estructura funcional, ubicando nuevamente las salas de exposición y usos múltiples, articuladas por un eje de circulacióncentral.

La organización resalta una separación clara entre áreas públicas, servicios y zonas complementarias, facilitando el recorrido del usuario y garantizando un usoeficientedeledificio.

Zonacomplementarias

Zonapúblicaydeeventos

Zonadeservicioscomplementarios

Zonadeaccesoyrecepción

CIRCULACIÓN

Lacirculaciónseestructuramediantedos sistemas principales que organizan el desplazamientodelosusuarios.Enprimer lugar,lacirculaciónverticalsedaatravés delasescalerasydelosdosnúcleosde ascensores ubicados estratégicamente a lo largo del edificio. Estos elementos permiten conectar de forma eficiente los dos niveles del proyecto, garantizando accesibilidad universal y una distribución equilibradadelosflujosinternos. Complementariamente, la circulación horizontal se organiza mediante un eje longitudinalqueatraviesatodoeledificioy

actúa como el corredor principal de distribución. Este eje articula diferentes áreas programáticas, permitiendo un accesodirectoyordenadoalassalasde exposición, talleres, salas de usos múltiples y zonas de apoyo. Gracias a este esquema, los recorridos son intuitivos, fluidos y facilitan la orientación delusuariodentrodelequipamiento.

Circulaciónvertical

Circulaciónhorizontal

La organización espacial del Centro de Convenciones se da a partir de un eje articulador que estructura y conecta la totalidaddelproyecto.Esteeje,destacado en color azul, funciona como la columna vertebral del edificio, ya que atraviesa ambos niveles y vincula de manera continuatodaslasáreasprogramáticas. Gracias a este elemento, las salas de exposición, talleres, zonas de servicios y espacioscomplementariosseordenande forma coherente en torno a un mismo recorrido, permitiendo una circulación fluida,intuitivaylegibleparalosusuarios.

Elejenosolodistribuye,sinoquetambién unifica el conjunto arquitectónico, garantizando que cada ambiente mantengaunarelacióndirectaconelresto

En síntesis, el gráfico evidencia cómo la organizacióndelproyectosedefineporun único eje lineal que articula, estructura y da cohesión a todos los espacios, optimizando los desplazamientos y reforzando la claridad funcional del

PLANO DE RECORRIDOS
PLANO DE ORGANIZACIÓN

AERÓDROMO TURÍSTICO

El proyecto de ampliación del aeródromo presentaunaorganizacióngeneraldetipo

lineal, donde la edificación principal se alinea y sirve de apoyo a la pista, facilitando una clara segregación de accesosentreeltráficovehicularexterno, provenientedelarutaúnicaalaeropuerto, y la circulación interna peatonal y vehicular.

Laimplantacióndelaszonasfuncionales enelterrenosigueunalógicadeservicioy protección, colocando la Zona de operaciones aéreas y las áreas complementarias del aeródromo en proximidadinmediataalapista,mientras que los bloques de soporte (servicio, administrativa, formación) forman el núcleocentralmásresguardado.

LEYENDA

Rutaalaeropuerto

Accesibilidadvehicularinterna

Accesibilidadpeatonal

Accesibilidadvehicularexterna

La jerarquía funcional sitúa la Zona de servicioyapoyoalpasajerocomoelpunto deinicioyprincipaldistribuidordeflujos, estableciendo una relación secuencial y necesaria con las áreas administrativa y deoperaciones,reflejandounaestructura diseñada para optimizar la logística aeroportuaria. Respecto al contexto inmediato, la implantación de todas las zonas se subordinaalaRutaalaeropuerto,quees elúnicopuntodecontactoconelexterior, condicionandoasíeldiseñodelasáreas de acceso vehicular y peatonal para gestionar eficientemente esta conexión vitalconlaciudad.

LEYENDA

Zonadeservicioyapoyoal pasajero

Zonadeformaciónacadémica

Zonaadministrativa

Zonadeoperacionesaéreas

ZonacomplementariaAeródromo

ZonacomplementariaÁrealibre

PLANO DE ZONIFICACIÓN
PLANO DE RECORRIDOS

5.5 DISTRIBUCIÓN GENERAL

AERÓDROMO TURÍSTICO

La distribución general del Aeródromo Turístico fue concebida para ser intrínsecamente inclusiva, concentrando las zonas de servicio y atención al pasajero cerca del punto de acceso principal. Esta proximidad garantiza la accesibilidad universal y facilita la orientación a los usuarios más vulnerables, como ancianos, niños y personascondiscapacidadescognitivas.

Eldiseñopermitequetodoslosusuarios, incluyendo mujeres embarazadas y personascondiscapacidadfísica,puedan accederyrecorrereledificiosinbarreras.

La ubicación estratégica de servicios comoelmódulodeinformación,boleterías yservicioshigiénicosasegurauntránsito cómodoyseguroparatodos.

Laintegracióndeáreasdeapoyocomoel tópico y la ubicación accesible de la plazuela refuerzan el compromiso con la accesibilidad universal. Este enfoque garantiza que el aeródromo no solo sea funcional, sino que también ofrezca un ambientedeseguridadyconfortparacada turista.

DISTRIBUCIÓN DE ESPACIOS

ZONADESERVICIOA

PASAJEROSYDEAPOYO

Saladeespera

Zonadecontrol/check-in

Servicioshigiénicos

Tiendas/comercioauxiliar

Boleterías

Módulodeinformación

Saladeesperageneral

Cafetería

Tópico

CuartodeLimpieza

ZONADEOPERACIONES AÉREAS

saladecontrol

Tallerdemantenimiento

Saladedescansodepilotos

Bañoparapilotos/mecánicos

ServiciosdeRescate

AbastecimientodeCombustible

ZONASCOMPLEMENTARIAS

Restaurantes

Hangar

Tallerdemantenimiento

ZONADEFORMACIÓN ACADÉMICA

Aulas

OficinadeinstructoresdeVuelo

CuartodeSimulación

Servicioshigiénicos

Cafetín

ZONAADMINISTRATIVA

Oficinaadministrativa

Saladereuniones

Oficinadeseguridad/videovigilancia

Estacionamientopúblicoparausuarios

Plazuela

Pistasdeaterrizaje

Plataformadeestacionamiento

Veredasexteriores

Accesovehiculargeneral

CENTRO DE CONVENCIONES

ElCentrodeConvencionesseubicaenun

terrenoendesusodelantiguoaeropuerto de Trujillo, aprovechando un espacio subutilizado y respondiendo a la falta de equipamientosdeestetipoidentificadaen el diagnóstico del sector. Su distribución seorganizaapartirdeuningresoprincipal que conecta con la zona de acceso y recepción, donde se ubican el vestíbulo, controlymódulosdeapoyo.

Al centro se desarrolla la zona pública y de eventos, compuesta por la sala principal de exposiciones, talleres, galeríasyelSUM,conformandoelnúcleo

funcionaldelproyecto.Entornoaestase disponen los servicios generales, como sanitarios, tópico y patio de comidas, asegurando operatividad y soporte continuo.

El conjunto se complementa con áreas exteriores,queincluyenveredas,accesos vehiculares, estacionamiento público y áreas verdes, generando una transición cómoda y articulada con el entorno. La distribuciónbuscaclaridad,accesibilidady una operación eficiente para diversos tiposdeeventos.

INGRESO PRINCIPAL

DISTRIBUCIÓN DE ESPACIOS

ZONADEACCESOY RECEPCIÓN

Vestíbulo

Zonadecontrol

Lockers

Módulodeinformación

ZONAPÚBLICAYDE EVENTOS

Salaprincipaldeexposiciones

Saladetalleres

Galerías

SUM

ZONADESERVICIOS GENERALES

Servicioshigiénicos

Tópico

Patiodecomida

ZONACOMPLEMENTARIA

Veredasexteriores

Accesovehiculargeneral

Estacionamientopúblicoparausuarios

Plazoleta/áreaverde

El segundo nivel del Centro de Convenciones está diseñado para complementar las actividades principales del proyecto, reforzando la operación y ampliando la capacidad funcional de los espacios. En este nivel predominan las zonas públicas y de eventos, donde se ubicanlassalasdeexposiciones,talleres, galerías y el SUM, distribuidos en volúmenes amplios que permiten configuracionesflexiblessegúneltipode actividadoafororequerido.

Alolargodelejecentralseorganizanlas

zonas de servicios generales, que incluyen servicios higiénicos, depósitos y cuartostécnicos.Suubicaciónestratégica

garantiza un soporte eficiente para las actividades del nivel sin interferir con la circulacióndelosusuarios.

Hacia el extremo superior del plano se sitúa la zona administrativa, conformada por la oficina de gerencia, secretaría y sala de reuniones. Este sector se encuentra separado de las áreas de mayorafluencia,asegurandoprivacidady un funcionamiento adecuado del equipo administrativodelcentro.

SEGUNDO NIVEL

DISTRIBUCIÓN DE ESPACIOS

ZONAPÚBLICAYDE EVENTOS

Salaprincipaldeexposiciones

Saladetalleres

Galerías

SUM

ZONADESERVICIOS GENERALES

Servicioshigiénicos

Depósitos

Cuartostécnicos

ZONA ADMINISTRATIVA

Oficinadegerencia

Secretaría

Saladereuniones

VENTILACIÓN

Lapropuestadelaeródromoincorporaun sistema de ventilación natural que responde a la escala monumental del edificio principal. Los espacios de mayor beneficiosonlasáreasdecheck-inysala de espera, donde la circulación de aire garantiza confort térmico sin recurrir a sistemas mecánicos. Se emplea ventilación cruzada, aprovechando el asoleamientoylaorientacióndeledificio, ademásdedoblesalturasquepermitenel movimientoverticaldelaireyfavorecenla extracciónnatural.Lafachadapermeable posibilita el ingreso de corrientes desde ambos lados, asegurando un flujo constante y eficiente en las zonas más concurridasdelaeródromo.

ILUMINACIÓN

El proyecto plantea un sistema de iluminación combinada, utilizando luz natural durante el día y apoyo artificial durante la noche para mantener un funcionamiento eficiente. El edificio principal aprovecha su doble altura para captarunamayorcantidaddeluznatural,

generando ambientes amplios y visualmente confortables. En la zona académica de formación de pilotos, el diseño incluye un patio interior que funcionacomodistribuidorlumínicohacia los pasadizos y aulas. Además, se incorporan aleros en las fachadas para regular el asoleamiento directo, optimizandolailuminaciónygarantizando unusoracionaldelaenergía.

LEYENDA:

5.6

VENTILACIÓN

El centro de convenciones ha sido diseñado considerando criterios ambientales que optimizan el confort interiorapartirdelaventilaciónnatural.La sala principal de exposiciones, caracterizada por su doble altura y su condición espacial amplia, facilita la circulacióndelaireyladisipacióndelcalor acumuladoenlaszonassuperiores.

Los vanos orientados hacia el sur, dirección de los vientos predominantes, han sido ubicados estratégicamente para garantizar una ventilación cruzada eficiente, permitiendo que el aire ingrese de forma continua. Complementándose con la presencia de una explanada con área verde, cuya vegetación contribuye a refrescarelairequeingresaaledificio.

Asimismo,lasterrazasabiertasorientadas hacia la pista de despegue no solo generan un vínculo visual con el entorno, sino que también funcionan como espacios de transición. En conjunto, permiten que el usuario perciba un espacio ventilado, con una relación fluida entreinterioryexterior.

LEYENDA:

ILUMINACIÓN

Elproyectoaprovechademaneraóptima

lascondicionesdeasoleamientodellugar para garantizar una iluminación natural equilibrada.Lasaladeexposicionesylos espacios complementarios cuentan con ventanales de gran formato y muros cortina, que permiten el ingreso abundante de luz durante gran parte del día, reduciendo la dependencia de iluminaciónartificial.

La fachada este capta el sol saliente, generandounailuminaciónsuavedurante

la mañana, mientras que la fachada opuesta recibe el sol poniente, asegurando un aporte lumínico continuo hacia la tarde. Además, una sección del techoincorporacelosíasparailuminación

cenital, permitiendo que la luz ingrese desde arriba y se distribuya de manera homogénea, aprovechando el recorrido solar.

Estacombinacióndeaperturaslateralesy superiores construye un ambiente luminoso, visualmente conectado con el exterior y coherente con la espacialidad ampliayabiertadeledificio.

LEYENDA:

06 06

AERÓDROMO KUNTURSKY

PRESENTACIÓN DEL EQUIPO

Somos estudiantes del VI ciclo de la EscueladeArquitecturayUrbanismodela

Universidad Nacional de Trujillo, y en el marco del curso Taller V de Diseño

Arquitectónico hemos desarrollado una propuesta arquitectónica que consiste en un Aeródromo Turístico ubicado en el distrito de Huanchaco. El proyecto se emplaza a pocos metros del Aeropuerto

InternacionalCapitánFAPCarlosMartínez dePinillos,loquepermiteestableceruna

relación estratégica con una infraestructura aérea existente, actualmente subutilizada en términos de potencialturísticoyurbano.

Apartirdeldiagnósticourbanoyfuncional

realizado,identificamoslaoportunidadde potenciar esta zona mediante un equipamiento complementario, capaz de diversificar las actividades aéreas y reforzarelcarácterturísticodelsector.En

ese sentido, la propuesta plantea un aeródromoturísticoorientadoavisitantes nacionales y extranjeros, quienes podrán realizar recorridos aéreos en avionetas y helicópteros.

Asimismo, el proyecto no se limita únicamentealenfoqueturístico,sinoque incorpora una escuela de aviación civil, destinada a la formación de futuros pilotos.Estafuncióneducativarefuerzael carácter técnico y especializado del aeródromo, consolidándolo como un equipamiento mixto de uso turístico, formativoyoperativo.

PROYECTISTAS

LAYZA RUIZ, BRYAN JESUS
QUEZADA MEDINA, TREYSI ARIANA

AERÓDROMO

TURÍSTICO KUNTUR SKY

UBICACIÓN

Elproyectodeintervenciónsedesarrolla

en un terreno con alto potencial aeronáuticoyunáreaaproximadade13 m², apta para la implementación de infraestructura especializada. La geometría irregular del predio exige una planificacióncuidadosaquegaranticeuna adecuada disposición de los espacios y unfuncionamientoeficiente.

El Aeropuerto Internacional Carlos Martínez de Pinillos, ubicado en Huanchaco,Trujillo–LaLibertad,cumple

un rol estratégico en la conectividad del nortedelPerúyenelimpulsodelturismo haciaimportantessitiosarqueológicos.A

pesarderequerirmodernización,continúa siendoclaveparaeldesarrolloregional.

Lapistademásde3,000metrospermite la operación de aeronaves de diverso tamaño,favoreciendovuelosnacionalese internacionales. Su proximidad al litoral ofrece condiciones operativas favorables reforzando el potencial de crecimiento económicoyturísticodelaciudad.

ZONIFICACIÓN DEL PROYECTO

La zonificación del proyecto se organiza deformalineal,conlaedificaciónprincipal

alineada a la pista, lo que permite una clara segregación entre el acceso vehicular externo y la circulación interna. Laszonasoperativasseubicanpróximas

a la pista, mientras que los bloques administrativosydeservicioconformanun núcleocentralmásprotegidoyfuncional, optimizandolaoperación.

Asimismo,lazonadeservicioyapoyoal pasajeroactúacomoejearticuladordelos

flujos y distribuye la relación entre las distintas áreas del aeródromo. Toda la implantaciónsesubordinaalaúnicaruta deaccesoalaeropuerto,garantizandouna

conexión ordenada y eficiente con el entornourbanoinmediato.

LEYENDA

Rutaalaeropuerto

Plazadeingreso

Estacionamiento

Aeródromo

Plataformadeestacionamiento

Restaurante

Aulario

La jerarquía funcional sitúa la Zona de servicioyapoyoalpasajerocomoelpunto deinicioyprincipaldistribuidordeflujos, estableciendo una relación secuencial y necesaria con las áreas administrativa y deoperaciones,reflejandounaestructura diseñada para optimizar la logística aeroportuaria.

Cuartodedepósito

Almacéndelimpieza

Cuartodevigilancia

Saladereuniones

Tópico

Comercio

Saladeespera

Boletería

Cuartodeoficinas

Saladedescanso

Servicioshigiénicos/vestidores

Workinghub

Servicioshigiénicosgenerales

Recorridos

LEYENDA

ZONIFICACIÓN DEL PROYECTO

La zonificación del aulario organiza los espacios académicos de forma clara y eficiente, agrupando aulas, salas de clases,laboratoriodecómputoyáreasde apoyo educativo. La disposición facilita recorridos ordenados y una relación directaentrelosambientesdeenseñanza yservicioscomplementarios.Enconjunto, el aulario garantiza funcionalidad, control yconfortparaestudiantesydocentes.

LEYENDA

Biblioteca

Servicioshigiénicos

Cuartodevigilancia

Recepción

Áreadeexhibicionestemporales

Saladeexhibicionespermanentes

SUM

Saladebriefing

Recorridos

Cuartosdesimuladores

Salóndeclases

Áreadedescanso

Laboratoriodecómputo

La zonificación del restaurante organiza demaneralinealyfuncionallosambientes decocina,almacényservicioshigiénicos, optimizandolosflujosoperativosinternos.

Esta disposición permite una separación clara entre las áreas de preparación y el espacio destinado a los usuarios. Asimismo, se garantiza eficiencia en el servicio y un adecuado control del funcionamientogastronómico. Elpatiodecomidasyelmiradorseubican estratégicamente para aprovechar las visuales y brindar una experiencia agradable al usuario. Los accesos articulan ambos niveles, facilitando la circulación,laconexiónentreespaciosyel correcto uso integral del conjunto arquitectónico.

LEYENDA

Servicioshigiénicos

Almacén

ZONIFICACIÓN RESTAURANTE

Cocina

Patiodecomidas

Accesos

Mirador

Ladistribucióndelaeródromoseorganiza mediante un esquema funcional que separa claramente las áreas públicas, administrativasydeservicio.Losespacios decomercio,boletería,oficinasyservicios higiénicos se articulan a través de circulaciones claras y continuas. Esta organizaciónpermiterecorridosordenados y seguros, facilitando el acceso a todos losambientes.

LEYENDA

Además, la disposición prioriza la jerarquía de usos y la proximidad entre funciones complementarias, optimizando lostiemposdedesplazamiento.Lasáreas de mayor afluencia se ubican estratégicamente para reforzar la orientaciónyelcontrolvisual. Asimismo, el esquema favorece la flexibilidad operativa y el crecimiento futurodelaeródromosinalterarsulógica espacial. La claridad en la distribución contribuye a una experiencia cómoda, eficienteysegurapara losusuarios.

LEYENDA

Elproyectodelaeródromoseconcibecon un enfoque inclusivo, garantizando la accesibilidad universal en todos sus espacios. Sus recorridos y accesos permiten el desplazamiento autónomo de todos los usuarios, asegurando un uso equitativo y sin barreras arquitectónicas parapersonasvulnerables.

La distribución del restaurante organiza eficientemente las áreas de cocina, patio de comidas, servicios y mirador. Sus circulaciones accesibles permiten un tránsitofluido,garantizandoquetodoslos usuarios puedan acceder y recorrer el espacio sin restricciones y con comodidad.

Asimismo,la disposición espacial prioriza la relación funcional entre la cocina y el patio de comidas, optimizando los flujos de servicio para un funcionamiento eficiente. Esta organización evita cruces innecesarios y favorece un uso ordenado y seguro de los espacios. Además, la articulación entre las áreas de servicio y laszonaspúblicasaseguraunaoperación claraycontroladaentodoelconjunto. Porotrolado,laubicaciónestratégicadel mirador refuerza la experiencia del visitante al integrar visuales hacia el entorno inmediato. Este espacio complementa el carácter público del proyectoypromuevelapermanenciayel disfrute. Su integración espacial contribuye a una lectura clara y atractiva delconjuntoarquitectónico.

PLANO DISTRIBUCIÓN RESTAURANTE

Finalmente,elproyectoincorporacriterios deconfortambientalmedianteiluminación natural y ventilación cruzada. Estas condicionesmejoranlacalidadespacialy consolidan un ambiente funcional y sostenible para todos los usuarios, incluyendo el confort que brindará el ambiente

SEGUNDA PLANTA
PRIMERA PLANTA

DISTRIBUCIÓN DEL PROYECTO

Ladistribucióndelaularioseorganizaen dos niveles, diferenciando claramente los espacios públicos, académicos y de apoyo.Enlaprimeraplantaseconcentran la recepción, biblioteca, SUM, salas de exposiciones y áreas de vigilancia, articuladasporunhallcentralqueordena losrecorridos.Estaconfiguraciónpermite uncontroleficienteyunarelacióndirecta entrelosambientesdeusocomún.

LEYENDA

AULARIO SEGUNDA PLANTA
AULARIO PRIMERA PLANTA

El corte del aeródromo muestra una escala normal funcional con grandes aperturas que integran el interior con el exterior. Estos vanos permiten el ingreso masivo de luz natural y garantizan una ventilacióncruzadaeficiente,regulandola temperaturaenzonasdealtotránsito.

La conectividad se resuelve mediante rampas y circulaciones amplias que aseguran la accesibilidad universal para adultos mayores y discapacitados. El diseño elimina barreras arquitectónicas, permitiendoundesplazamientoautónomo, seguro y equitativo, apoyado por una señalética clara para usuarios con discapacidadcognitiva.

La estructura de techumbre ligera libera las plantas, facilitando la orientación cognitiva y la identificación rápida de los flujos. Este entorno diáfano reduce el estrés del pasajero al mantener una conexión visual constante con las pistas, reforzadaporunamaterialidadquerefleja laluz.

Elrestaurantepresentaunaescalaíntima en dos niveles, utilizando balcones y terrazasparaconectarloscomedorescon elpaisaje.Estasgaleríasfuncionancomo reguladores climáticos que proporcionan sombra y facilitan la entrada de aire fresco, creando microclimas agradables segúnlahoradeldía.

Los conectores verticales y pasillos anchos garantizan que mujeres embarazadas y personas con movilidad reducida accedan a ambos niveles. Se asegura un entorno inclusivo mediante superficies niveladas y texturas podotáctiles que cumplen estrictamente conlosestándaresdediseñouniversalen cadarincóndeledificio.

La iluminación natural se optimiza mediante ventanales estratégicos que bañan el espacio, reduciendo la dependencia de energía artificial y resaltando la espacialidad. La configuración busca un equilibrio térmico saludable, priorizando el confort del comensal y la renovación constante del aireenáreascerradas.

AquítieneselanálisisespacialdelAulario

basado en los cortes arquitectónicos, organizadoenseispárrafosdedoslíneas ymediacadauno:

EspacialidadyEscalasdelAulario

Elcortelongitudinaldelaulariorevelauna

escala normal y funcional que prioriza el ordenenlaszonasdeaprendizajeteórico.

Losespaciossedistribuyenendosniveles con alturas constantes que favorecen la concentración y el desarrollo de actividadesacadémicasdinámicas.

Se observa una escala más monumental en los accesos y vestíbulos, donde la doblealturajerarquizalaentradaprincipal aledificio.Estaamplitudespacialfacilitala

transición desde el exterior y mejora la percepción visual de los usuarios al ingresaralrecintoeducativo.

Los espacios interiores mantienen una relación directa con el exterior mediante grandes ventanales que bañan las aulas deluznatural.Estatransparenciarefuerza

el confort visual y permite que los estudiantes mantengan un vínculo constante con el entorno paisajístico del campus.

La conectividad vertical mediante escaleras y ascensores estratégicamente ubicadosgarantizaunflujoeficientepara personasconmovilidadreducidayadultos mayores. Estos núcleos integran descansos amplios que permiten un acceso cómodo y fluido a todos los niveles,eliminandoporcompletolafatiga enlosrecorridosinternos.

El diseño inclusivo utiliza rampas normativasypasillosanchosquefacilitan el desplazamiento autónomo de niños, embarazadas y discapacitados de forma segura y constante. Se incorporan superficies antideslizantes y pasamanos dobles para asegurar una transición equitativa, reforzando siempre la seguridad física de los usuarios vulnerablesencadaplanta.

Laventilaciónnaturalcruzadayelusode aleros de protección solar optimizan el conforttérmico,reduciendodrásticamente el consumo energético innecesario del edificio. Esto genera un ambiente saludable y renovado que potencia directamente el rendimiento académico y el bienestar cognitivo de todos los estudiantesydocentes.

PLANO DE CORTE AULARIO

El sistema estructural del aeródromo se plantea mediante el uso de concreto armado, ya que este material garantiza resistencia,durabilidadyestabilidadfrente alascargaspropiasdeunainfraestructura aeroportuaria, asegurando un adecuado desempeño estructural a lo largo del tiempo.

Las columnas de concreto armado constituyen los elementos verticales principales del proyecto, permitiendo una transmisión eficiente de las cargas hacia el terreno, con su disposición ordenada contribuyeaunsistemaclaroyfuncional acordealaconfiguraciónarquitectónica. Los cimientos se resuelven mediante zapatas aisladas, las cuales distribuyen las cargas de forma uniforme al suelo, siendo velando por la economía y compatibilidadconlaescalaycondiciones delaeródromo.

Columnas Zapataaislada LEYENDA Vigasdeconcreto

UNIÓN VIGA - COLUMNA

El sistema de vigas de concreto armado permite una correcta distribución de esfuerzos horizontales y verticales, contribuyendoalcontroldedeformaciones yaladecuadocomportamientoestructural frente a solicitaciones dinámicas, como vibracionesysobrecargasasociadasala operacióncontinuadelaeródromo.

Las vigas de madera, empleadas de manera estratégica en cubiertas y espacios de menor exigencia estructural, aportanflexibilidadaldiseñoymejoranel desempeño térmico del edificio, además de facilitar procesos constructivos más rápidosysostenibles,permitiendoresolver grandeslucesconmenorpesopropio.

ISOMETRÍA SISTEMA ESTRUCTURAL

En conjunto, la combinación de sistemas estructurales responde a criterios técnicos, funcionales y ambientales, permitiendo una estructura adaptable a futuras ampliaciones y cambios de uso, asegurando seguridad, eficiencia estructural y coherencia con el carácter arquitectónico integral del aeródromo, dentro del contexto aeroportuario contemporáneo.

Lapropuestadematerialidaddelproyecto

se concibe de manera integral para los tresedificiosqueconformanelconjuntoel aeródromo,elrestauranteyelaulario,con elfindelograrunaimagenarquitectónica homogénea y una lectura continua del proyecto. La selección de materiales responde tanto a criterios funcionales y estructuralescomoaaspectosclimáticos, dedurabilidadyexpresiónarquitectónica.

Lacubiertasuperiorseresuelvemediante policarbonatosólidonegroconprotección

UV, material que permite filtrar la radiación solar directa, controlar el deslumbramientoyfavorecerelingresode

luz natural de forma controlada, contribuyendo al confort térmico y lumínico de los espacios interiores. Este elemento aporta además una imagen ligera y contemporánea al conjunto. La estructura portante de la cubierta y los arcos se ejecuta en madera laminada estructuraldepinoradiatatratada,elegida porsuresistencia,estabilidadycapacidad paragenerargrandesluces,asícomopor

CUBIERTA SUPERIOR POLICARBONATOSÓLIDO NEGROCONPROTECCIÓNUV.

CERCHAS

MADERALAMINADAESTRUCTURALDE PINORADIATATRATADA.

CELOSÍAS VERTICALES

MADERAWPCYVIDRIO LAMINADODECOLORESCON PROTECCIÓNUV.

CELOSÍA DE CUBIERTA MADERATECNOLÓGICAWPC PARAEXTERIORES, RESISTENTEASOLYLLUVIA.

MUROS

CONCRETOARMADOPIGMENTADO COLORROJO,ACABADOAPARENTE.

sucaráctercálidoynaturalquecontrasta conloselementosmásrobustos. Las circulaciones verticales incorporan madera tecnológica WPC y vidrio laminado de colores con protección UV, permitiendo una mayor relación visual entre los distintos niveles y aportando transparencia, seguridad y dinamismo espacial. Para los elementos expuestos directamentealascondicionesexteriores, especialmenteenlascubiertas,seemplea madera WPC para exteriores, material altamenteresistentealsol,lahumedady lalluvia,quegarantizabajomantenimiento yunamayorvidaútil.

PISOS

ISOMETRÍA EXPLOTADA DEL AULARIO

MADERAPARAALTO TRANSITO

Los muros se materializan en concreto armado pigmentado de color rojo con acabado aparente, otorgando solidez, permanencia y una identidad visual marcadaalproyecto,ademásdereducirla necesidad de revestimientos adicionales.

En contraste, los pisos se resuelven con madera para alto tránsito, material que aportaconfort,resistenciaalusointensivo y una experiencia espacial más cálida paralosusuarios.

DETALLES ESTRUCTURALES

La zapata aislada de concreto armado consolida la base estructural al distribuir uniformemente las presiones sobre el suelofirmeyresistentedeformaeficiente ysegura.Elanclajeseaseguramediante barras longitudinales y separadores que garantizan el recubrimiento del acero frente a la corrosión ambiental externa y humedadporfiltraciones.

La columna vertical utiliza estribos para confinar las barras longitudinales y evitar el pandeo bajo intensas cargas de compresión axial y cortante del sistema estructural. Este sistema de refuerzo permite una transmisión constante de esfuerzos desde los niveles superiores hacia los elementos de apoyo inferiores definitivos del edificio de manera equilibrada.

Elencuentroentrelacolumnaylavigade carga representa el ensamblaje crítico donde los refuerzos se entrelazan de forma monolítica y rígida sin fisuras. Los ganchosdeanclajepenetranenelnúcleo del nudo para garantizar la transferencia eficiente del momento flector estructural bajosismosyvibraciones

DETALLE DE ZAPATA

ZAPATAS

SEPARADORES TIPO MALLA 5 CM

ESTRIBOS

BARRAS

LONGITUDINALES

REFUERZO

SUPERIOR GANCHOS

ARMADO VERTICAL

ESTRIBOS

COLUMNA DE CONCRETO

ISOMÉTRICO DE COLUMNA Y ZAPATA

BOVEDILLAS

Lalosaaligeradaconbovedillasseintegra alasvigasmedianteunrefuerzosuperior que actúa como un diafragma rígido y ligerodesoportetécnico.Esteensamblaje horizontal permite repartir las cargas gravitacionales de manera equilibrada hacia los pórticos de la edificación en altura proyectada por diseño arquitectónico.

Losmecanismosdesujeciónylalongitud de los anclajes son fundamentales para asegurar la adherencia mecánica total dentrodelamasadeconcretovaciadode calidad. Estos detalles técnicos evitan el deslizamiento del acero y previenen fisuras en las zonas de transición entre sistemas distintos y complejos de construcción.

ISOMÉTRICO DE VIGAS Y LOSA ALIGERADA

La continuidad estructural se logra mediante la ejecución precisa de cada ensamblaje, desde la zapata de cimentación hasta la losa superior de concreto armado final. Esta integración total garantiza que el flujo de tensiones sea fluido y protege la estabilidad global de la obra arquitectónica moderna de concreto

EFICIENCIA ENERGÉTICAY SOSTENIBILIDAD

La estrategia de eficiencia energética y sostenibilidad del proyecto se aplica de manera integral en los tres edificios que conforman el conjunto arquitectónico el aeródromo, el restaurante y el aulario, mediantelaimplementacióndeunsistema degeneracióndeenergíasolarcompuesto por doce paneles fotovoltaicos. Esta solución permite reducir el consumo energéticoconvencionalypromovereluso defuentesrenovables,contribuyendoaun funcionamiento más eficiente y responsabledelconjunto.

Los paneles fotovoltaicos se instalan sobre las cubiertas mediante un sistema de montaje especializado que garantiza estabilidad estructural, adaptabilidad y correctodesempeñoalolargodeltiempo.

El sistema incorpora un soporte trasero ajustable y un soporte frontal ajustable, los cuales permiten regular la inclinación óptima de los paneles para maximizar la captaciónderadiaciónsolar.Asimismo,se

DETALLE A

SOPORTE TRASERO AJUSTABLE

DETALLE B

ABRAZADERA UNIVERSAL

DETALLE C

EMPALME DE RIEL

DETALLE D

ABRAZADERA UNIVERSAL

DETALLE E

SOPORTE FRONTAL AJUSTABLE

DETALLE F

CONECCIÓN A TIERRA

empleaunempalmederielqueasegurala continuidadyalineacióndelsistema,junto conabrazaderasuniversalesquefijanlos panelesdemaneraseguraalaestructura portante. Como parte fundamental del sistema, se integraunaconexiónatierraqueprotege lainstalaciónfrenteadescargaseléctricas y garantiza la seguridad operativa del conjunto. La correcta disposición y montajedelosdocepanelesfotovoltaicos en los tres edificios permite abastecer parcialmente la demanda energética del aeródromo, el restaurante y el aulario, reduciendo la dependencia de fuentes convencionalesylasemisionesasociadas al consumo eléctrico. Esta estrategia no solooptimizaeldesempeñoenergéticodel conjunto, sino que también refuerza el compromisodelproyectoconcriteriosde sostenibilidad, eficiencia y adaptación climática, integrando la tecnología solar como parte activa del lenguaje arquitectónico y del funcionamiento cotidianodelosespacios.

DETALLE DE SISTEMA DE MONTAJE DE 12 PANELES FOTOVOLTAICOS

La estrategia de ahorro y reutilización de agua implementada en el aeródromo, el restaurante y el aulario se plantea como un sistema integral orientado a optimizar el uso del recurso hídrico y reducir la dependencia del suministro de agua potable. En primer lugar, se desarrolla un sistema de captación de agua de lluvia que aprovecha las superficies de cubierta como áreas de recolección, permitiendo canalizar el agua pluvial de manera controlada hacia un separador de primer flujo.Estecomponenteesfundamental,ya que elimina las impurezas iniciales acumuladas en las cubiertas, asegurando una mejor calidad del agua recolectada desdeeliniciodelproceso.

Posteriormente, el agua de lluvia es conducida hacia una unidad primaria de almacenamiento, donde se regula su volumenantesdepasarporunaunidadde desinfección que mejora sus condiciones sanitarias. A través de un sistema de bombeo, el agua tratada es impulsada hastauntanqueelevado,desdeelcualse

ALMACENAMIENTO

ELEVADO DE AGUA

UNIDAD DE DESINFECCIÓN SISTEMA DE BOMBEO

LINEA DE TRATAMIENTO DE AGUAS GRISES

DOSIFICACIÓN DE OXIDANTE

ÀREA DE RECOLECCIÓN

distribuye por gravedad para diferentes usosnopotablesdentrodelconjunto.

SEPARADOR DEL PRIMER FLUJO UNIDAD PRIMARIA DE ALMACENAMIENTO

DOSIFICACIÓN DE HIPOCLORITO

De forma complementaria, el proyecto incorpora una línea de tratamiento de aguas grises provenientes de lavamanos yduchasdelostresedificios.Estasaguas son dirigidas inicialmente a un tanque de aguas grises, donde se realiza una dosificacióncontroladadeoxidanteconel objetivo de disminuir la carga orgánica y preparar el agua para las siguientes etapas de tratamiento. Posteriormente, el agua es impulsada mediante una bomba sumergible hacia un sistema de filtración progresiva que garantiza un tratamiento eficiente.

El sistema de filtración está compuesto por un filtro de discos y un filtro de ultrafiltración, los cuales permiten la eliminación de sólidos suspendidos y microorganismos. Finalmente, mediante un dosificador se incorpora hipoclorito, asegurandoladesinfeccióndelaguaysu adecuadacalidadparalareutilización.

GESTIÓN DE RESIDUOS

Lagestiónderesiduosenesteaeródromo se ha diseñado para convertir al edificio en un hito de eficiencia y sostenibilidad. En nuestras instalaciones se generan tanto residuos orgánicos como inorgánicos, provenientes principalmente de las áreas de servicios y salas de espera.

Para facilitar la clasificación, hemos dispuestopuntosestratégicoscontachos de basura señalizados que permiten una segregación inmediata. Estos elementos estánubicadosdeformaquegarantizanla comodidaddelusuariosincomprometerla estéticanilahigienedelentorno. La estrategia de evacuación se basa en un sistema logístico que utiliza carros transportadores de carga especializados dentro del edificio. Estos vehículos recorren rutas técnicas diseñadas para retirar los desechos de manera rápida, discreta y sin interferir con el flujo de pasajeros.

Mobiliarioderecolecciónde residuos

Depósitoderesiduos

El destino final es un cuarto de depósito ubicado estratégicamente para el almacenaje temporal de todos los desechosgenerados.Esteespaciotécnico cuenta con ventilación controlada para evitar olores y contaminantes. Su diseño permite el acceso directo de camiones externossinafectarelingresoprincipal.

Este sistema garantiza que la basura se procese ordenadamente, separando lo orgánico de lo inorgánico mediante protocolos de reciclaje estrictos. La eficiencia del circuito interno minimiza el impacto ambiental y optimiza la operatividad diaria. Esta logística reduce tiempos de transporte y manejo de desechos.

En conclusión, el proyecto asegura limpieza impecable mediante depósitos centralizados y puntos de acopio funcionales distribuidos por toda la terminal.Eledificioseposicionacomoun referente en el manejo responsable de residuosagranescala.Estavisióncumple conlanormativayelevalosestándaresde salud.

PUNTOS DE RECOLECCION

INFRAESTRUCTURA VERDE

La vegetación se compone de zapotes costeños, árboles de follaje perenne que actúancomoreguladorestérmicosyejes estructurales del paisaje biodiverso de gran escala. Se seleccionan por su resistenciaparamaximizarlaabsorciónde

CO2 y fortalecer la biodiversidad local, aportandosombradensaygrancalidadal airepurorenovado.

Elprocesodeplantacióniniciaconunfoso quedupliqueelcepellón,asegurandoque elcuellodelaraízquedesiempreanivel delsuelofirmeyfértil.Seinstalauntutor lateralfirmeparagarantizarelcrecimiento verticalysefinalizaconunriegoprofundo yacolchadoorgánicoparaelzapotejoven reciénplantado.

El pavimento utiliza adoquines de hormigón fotocatalítico sobre arena nivelada para reducir la contaminación y permitirlapermeabilidaddelsueloentoda

el área peatonal del proyecto. La transición se resuelve con bordillos elevados que protegen las raíces y facilitaneldrenajepluvialdirectohacialas zonas de plantación técnica profesional delcomplejo.

DETALLE A BORDILLO PERIMETRAL

DETALLE B ANCLAJE RADICULAR EN ÁRBOLES

ISOMÉTRICO DE VEGETACIÓN

Se emplea un sustrato de tierra vegetal, compostyperlitaqueoptimizalaaireación radicular y garantiza un drenaje eficiente entodomomentodelluviaintensaoriego. Esta mezcla evita la compactación y aseguralosnutrientesnecesariosparael desarrollo del zapote costeño en este entorno urbano de alta densidad y exigencia.

Lapropuestaintegraárboles,tapizantesy huertos urbanos que fomentan la agricultura de proximidad y la educación ambientaldentrodelvolumenedificadode forma integral y participativa. Esta estratificación crea un volumen verde denso que regula el microclima, transformandoeledificioenunorganismo vivoyproductivoparatodalacomunidad. Eledificioesunhitodesostenibilidadcon un volumen verde que envuelve la estructuraysuavizaelimpactovisualdel diseñoarquitectónicoinnovadorpropuesto de manera singular. Se aplican técnicas innovadorasdepaisajismoqueconvierten las fachadas en ecosistemas verticales activos,evidenciandouncompromisoreal conelmedioambienteyfuturo.

La puerta abatible emplea madera de cedro seleccionado y un tablero macizo muy resistente y duradero. Este material noble resalta las vetas naturales y asegura gran durabilidad en todos los interiores. La estructura incluye una manija de acero inoxidable apta para el usodiariocontinuoeintenso.

El sistema corredizo utiliza paneles de vidrio acústico de 4 mm para transparenciayunaislamientoeficaz.Las hojassemontansobremarcosdemadera de cedro, equilibrando perfectamente calidez y mucha ligereza. El conjunto posee perfiles metálicos que facilitan un desplazamiento suave, seguro y también muyfuncional.

Lacarpinteríausamaderadecedropara unificarvisualmentemarcosyestructuras de soporte firmes y estables. La combinacióndeelementosorgánicoscon cristal permite una transición fluida y estética muy coherente y limpia. Accesorios metálicos satinados complementan la madera y aseguran un óptimo desempeño técnico y bastante profesional.

DETALLE A FIJACIÓN DE PUERTAS

DETALLE B UNIÓN PRINCIPAL

PERFIL DE ACERO TUBULAR RECTANGULAR 40×20 MM

TABLEROS MDF DE 18 MM

MANIJA DE ACERO INOXIDABLE

El estante se diseña como un elemento funcional y resistente, destinado a las aulas teóricas del aulario, donde cumple una función de almacenamiento y organización del material académico. La estructura principal se resuelve mediante perfilesdeacerotubularrectangularde40 × 20 mm, los cuales conforman el armazónportantedelmuebleyaseguran una adecuada capacidad de carga, además de aportar una imagen contemporánea acorde al carácter educativodelespacio.

El cuerpo del estante se conforma con tableros de MDF de 18 mm de espesor, utilizados en repisas y paneles, proporcionando superficies uniformes y continuas aptas para un uso frecuente. Las manijas son de acero inoxidable, garantizando resistencia al desgaste y durabilidad en el tiempo. La unión entre los distintos elementos se realiza principalmente mediante tornillos, lo que permite un ensamblaje firme y preciso, facilitandoelmantenimientoyasegurando la funcionalidad del mobiliario dentro del aulario.

MADERA DE CEDRO 2'’
MARCO MADERA CEDRO

La losa de rodadura emplea concreto de alta resistencia para soportar el peso de aeronavesyeldesgaste.Estematerialse complementaconseñalizacióntécnicade pintura base solvente para garantizar visibilidad clara y duradera. El conjunto asegura una superficie firme y segura para las maniobras de aterrizaje y despeguediario.

La estructura interna tiene una capa estabilizadora y base de 30 cm que distribuyen cargas equilibradamente.

Estosnivelesutilizanáridosseleccionados que proporcionan cimentación robusta y evitan deformaciones bajo presión intensa. La integración de materiales pétreosgarantizalaestabilidadnecesaria paramantenerlaintegridaddelapista.

El soporte final descansa sobre una subbase de 40 cm y subrasante compactada de 30 cm estable. Estos componentes de suelo granular ofrecen drenaje eficiente y resistencia mecánica superior ante exigencias operativas. La combinación de capas asegura un desempeñotécnicoprofesionalyunabase niveladaparatodoelcomplejo.

DETALLE A CAPAS DE LA PISTA DE ATERRIZAJE

PANEL DE INSTRUMENTOS SIMULADOS

LOSADERODADURA 30M

CAPAESTABILIZADORA-15M

CAPABASE-30M

CAPADESUBBASE-40M

SUBRASANTECOMPACTADA-30M

ISOMETRÍA DE PISTA DE ATERRIZAJE

DETALLE B ESTRUCTURA DE SOPORTE

PANTALLA CURVA CONTINUADEPROYECCIÓN

PANEL DE INSTRUMENTOS SIMULADOS

El simulador de vuelo se proyecta como un espacio especializado para la formación aeronáutica, integrando tecnología y una estructura sólida que garantice estabilidad y realismo. El sistema incorpora un panel de instrumentos simulados y una pantalla curva continua de proyección, los cuales permitenrecreardemanerainmersivalas condicionesdeunacabinadevuelorealy ampliarelcampovisualdelusuario.

PAREDDEACERODE175MMDEESPESOR

PANELTRASERODETVDEMADERADE50MMDEESPESOR

CONTRACHAPADODE38MMDEGROSOR

ELEVACIÓN DE SIMULADOR DE VUELO

La estructura de soporte se resuelve mediante un panel de acero de 175 mm de espesor, que asegura rigidez y resistenciaparaelmontajedelosequipos. Enlaparteposteriorseincorporaunpanel de madera de 50 mm de espesor para soporte de pantallas, mientras que los controlessemontansobreunpanelde38 mmdeespesor,garantizandodurabilidad y correcto desempeño. El conjunto se complementa con una silla ergonómica, pantallas auxiliares y estantes técnicos, conformando un sistema funcional, resistente y adecuado para el uso continuodelsimulador.

VIDRIO PINTADO DE 18 MM DE GROSOR FIJADO CON SILICIO NO ÁCIDO
SALA DE ESPERA DEL AERÓDROMO
PATIO DE COMIDA DEL RESTAURANTE
VISTA EXTERIOR DE LA BIBLIOTECA DEL AULARIO

CENTRODE CONVENCIONES

PRESENTACIÓN DEL GRUPO

En el marco del Taller V de Diseño

Arquitectónico(VIciclo)delaEscuelade

Arquitectura y Urbanismo de la Universidad Nacional de Trujillo, nuestro grupo, conformado por tres compañeros, desarrolló una propuesta de Centro de Convenciones ubicada en el distrito de Huanchaco.

El proyecto se plantea como una ampliación estratégica del Aeropuerto de Trujillo,apartirdeundiagnósticourbano que identifica la falta de equipamientos capaces de articular los sectores colindantes, actualmente frag por la infraestructura aeroportuaria, que actúa como una barrera urbana y social dentrodeltejidoexistente.

La propuesta busca transformar esta condición de ruptura en una oportunidad deintegración,medianteunequipamiento deescalaurbanaquegenerecontinuidad espacial, active el espacio público, fomenteactividadescolectivas,refuercela identidad urbana y contribuya a la revalorización del aeropuerto como parte activa de la ciudad, aportando al desarrollo urbano de Huanchaco y su proyecciónmetropolitana.

CÁCERES LEÓN, MARÍA DEL CIELO
VILLARREAL ORDONIO, ALEXANDER PROYECTISTAS
VILLEGAS VIDAL, GABRIEL ARTURO

7.1 UBICACIÓN

La ubicación del proyecto constituye uno de los factores determinantes para su concepción arquitectónica y urbana. El CentrodeConvencionesseemplazaenel

Aeropuerto Internacional Capitán FAP

CarlosMartínezdePinillos,ubicadoenel distrito de Huanchaco, provincia de Trujillo, región La Liber estratégicoporsucondicióndepuertade ingreso aérea a la ciudad y por su cercaníadirectaconunodelosbalnearios y centros culturales más representativos delnortedelpaís.

El proyecto se sitúa íntegramente dentro de la poligonal del aeropuerto, configurándose como una ampliación planificadadesuinfraestructuraexistente.

Suemplazamientofrentealactualterminal deembarqueydesembarquenoresponde únicamente a una lógica funcional, sino también a una intención clara de integración espacial y programática. De estemodo,elcentrodeconvencionesno se concibe como un elemento aislado, sinocomounapiezacomplementariaque dialoga directamente con el terminal aéreo, reforzando su rol como nodo de intercambio,encuentroytransición.

Esta proximidad permite que ambos edificios funcionen de manera conjunta, ampliandolaexperienciadelusuariomás allá del acto estrictamente aeroportuario. Mientras el terminal atiende las necesidades operativas del transporte aéreo, el Centro de Convenciones introduceunadimensióncultural,socialy representativa, capaz de acoger eventos, exposiciones y actividades que vinculan tanto a los viajeros como a la población local.Así,elproyectoseconvierteenun espacio de interacción entre quienes llegan a la ciudad, quienes la habitan y quieneslaproyectanhaciaelexterior. La implantación dentro del recinto aeroportuariorefuerzaademáslaideade un aeropuerto entendido no solo como infraestructura de transporte, sino como un equipamiento urbano de mayor complejidad,capazdegeneraridentidady sentido de lugar. En este contexto, el Centro de Convenciones actúa como un umbralcultural,unaantesalasimbólicade Trujillo y Huanchaco, donde la arquitectura se convierte en medio de representaciónyencuentro,articulandolo funcional con lo cultural y lo local con lo global.

PLANTAARQUITECTÓNICA

trabajo colaborativo, reuniones y tareas administrativas en un entorno flexible y equipado, dirigido a pasajeros, pilotos y usuarios vinculados al aeropuerto. Complementando este uso, la planta alberga la zona administrativa. En conjunto,estenivelrefuerzalacontinuidad espacial del proyecto y equilibra las funciones públicas, laborales y administrativas dentro del conjunto arquitectónico.

PLANTAARQUITECTÓNICA

7.3 DISTRIBUCIÓN

El bloque A del Centro de Convenciones constituyeelvolumendemayorjerarquía del proyecto, al albergar la sala de convenciones principal destinada a eventos vinculados a temas aeroportuarios.Elaccesoaestebloquese organizaatravésdeunaplazuelaexterior quefuncionacomoespaciodetransición, esparcimiento y descanso, la cual conduce al foyer, encargado de articular los flujos de ingreso y salida de los usuarios.

En el primer nivel se integran ambientes complementarios como el tópico y el cuarto de vigilancia, que garantizan el adecuado funcionamiento y la seguridad deledificio.Enelsegundonivelseubica la zona administrativa, permitiendo una claraseparaciónfuncionalentrelasáreas públicas y las de gestión, sin perder la coherencia espacial del bloque, reforzando su carácter institucional y representativo dentro del conjunto arquitectónico, y consolidando una organización espacial eficiente, clara y coherentegeneral.

PLANTAARQUITECTÓNICA BLOQUE A
SEGUNDO NIVEL
PLANTAARQUITECTÓNICA BLOQUE A
PRIMER NIVEL

El bloque B se destina a la zona de exposiciones,concebidacomounespacio de carácter didáctico y cultural enfocado en temáticas aeroportuarias. En este bloqueseexhibenmaquetasdeavionesa escalayotroselementosrelacionadoscon laactividadaérea,permitiendoalusuario una experiencia expositiva complementaria a los eventos desarrolladosenlasaladeconvenciones.

Al situarse en el centro del conjunto, lo que le permite establecer una relación visual desde distintos puntos y generar vistas integrales hacia el entorno inmediato. Asimismo, el bloque B cuenta con una entrada y salida secundaria, pensada para aquellos usuarios que no necesariamente participan de la sala de convenciones, facilitando recorridos independientesyunusomásflexibledel edificio.Enelsegundonivelsedesarrollan terrazas y espacios de coworking, concebidos como áreas de trabajo colaborativoydescanso,queaprovechan

las visuales y refuerzan la dinámica pública y contemporánea del conjunto arquitectónico.

PLANTAARQUITECTÓNICA BLOQUE B
SEGUNDO NIVEL
PLANTAARQUITECTÓNICA BLOQUE B
PRIMER NIVEL

El bloque C se destina a la atención al usuario en lo referente a servicios de alimentación. Este bloque alberga un restaurante concebido como un espacio de encuentro y permanencia, donde se ofrecen diversos platos típicos del Perú, con especial énfasis en la gastronomía local de Trujillo, reforzando así la identidad cultural del proyecto y la experienciadelvisitante.

El restaurante se complementa con una cocinaindustrialadecuadamenteequipada para atender la demanda del conjunto, garantizando un funcionamiento eficiente y ordenado. Asimismo, este bloque establece una relación directa con el entorno paisajístico, al contar con vistas hacia los jardines verticales y el jardín exterior,integrandoelespaciointeriorcon áreas verdes que aportan confort ambiental y calidad espacial. En el segundo nivel se disponen espacios adicionalesdecoworking,queamplíanlas áreasdetrabajocolaborativoydescanso, consolidando al bloque C como un componente activo y flexible dentro del CentrodeConvenciones.

PRIMER NIVEL

PLANTAARQUITECTÓNICA BLOQUE C
PLANTAARQUITECTÓNICA BLOQUE C

7.4 ESPACIALIDAD

ESCALASESPACIALES

La propuesta arquitectónica incorpora de manera consciente el manejo de las escalas espaciales como un recurso fundamental para jerarquizar los ambientes y construir distintas sensacionesenelusuario.Atravésdela escala monumental, normal e íntima, el proyecto establece una lectura clara de sus espacios, reforzando su carácter público, funcional y humano. La escala monumental se expresa en los espacios de mayor jerarquía, como la sala de convenciones, el ingreso principal y secundario e incluso la zona de exposiciones,dondelaamplitudylaaltura

generan una sensación de grandeza, apertura y relajación, haciendo evidente surolprotagónicodentrodelconjunto.

Las escalas normales se aplican en ambientes de uso cotidiano y funcional, como el tópico, la videoteca y las áreas administrativas,manteniendounarelación equilibradayconfortableconelusuario. Porsuparte,laescalaíntimaseintroduce enlassalasdecoworking,dondelas

ESCALA MONUMENTAL
ESCALA NORMAL
ESCALA ÍNTIMA
Espacio
Espacio
Espacio

proporcionesespacialesbrindanungrado

deprivacidadyrecogimientoquefavorece laconcentraciónyeltrabajocolaborativo,

sin generar sensaciones de encierro. El contraste y la transición entre estas escalasseresuelvendemaneragradual, permitiendo que el usuario perciba el cambiodejerarquíaespacialsinrupturas

bruscas. De este modo, la arquitectura guíalaexperienciadelrecorrido,pasando de espacios abiertos y representativos a otros más contenidos y especializados, consolidando una propuesta coherente que responde tanto a las funciones del centro de convenciones como a la dimensiónhumanadelusuario.

Asimismo, el manejo de las escalas espaciales se convierte en una herramientaparareforzarlaidentidaddel proyecto, vinculando la experiencia arquitectónica con la temática aeronáutica.Losgrandesvacíosyalturas

evocan la amplitud y la tecnología asociadas al mundo de la aviación, mientras que los espacios de menor escalapriorizanlaconcentraciónyeluso

cotidiano, generando un equilibrio entre monumentalidad, funcionalidad y confort espacial.

flexibilidad espacial y la claridad estructuralsonprioritarias.

Estaelecciónestructuralnosoloresponde a criterios técnicos, sino que también favorecelaintegraciónentreestructuray arquitectura,permitiendounalecturaclara del edificio y facilitando futuras adaptaciones o ampliaciones sin comprometersufuncionamientogeneral.

El sistema estructural se ha desarrollado mediante una organización por bloques, estrategiaquepermitelaincorporaciónde

juntas de dilatación entre cada volumen del conjunto, mejorando el comportamiento estructural frente a movimientos térmicos y sísmicos, y garantizando mayor durabilidad y seguridaddeledificioeneltiempo.

Ladivisiónporbloquesrespondetambién a una lógica funcional y programática clara. En el Bloque A se concentran los ambientesdemayorjerarquíayafluencia, como la plazuela principal y la sala de convenciones, espacios que requieren grandes luces y una estructura capaz de responderaconcentracionessignificativas de usuarios. El Bloque B alberga el ingreso y salida secundaria, junto con la zona de exposiciones, funcionando como un espacio de transición y articulación entre el exterior y los ambientes principales del proyecto, además de ordenarlosflujospeatonales.Finalmente, elBloqueCcontieneelpatiodecomidas, concebidocomounespaciomásflexibley dinámico, donde la estructura acompaña un uso continuo y diverso a lo largo del día,integrandoáreasdecirculación.

LEYENDA:

Laestructuradelacubiertaseconcibea

partir de un sistema ligero de cerchas metálicas, seleccionado específicamente por su capacidad para cubrir grandes lucesdemaneraeficienteysegura.Esta elección responde a la necesidad de generar un espacio amplio y continuo, libredeapoyosintermediosquepudieran interrumpir la circulación y el funcionamiento del área cubierta. Al tratarsedeunespaciodeusodinámico,la ausencia de columnas interiores permite unamayorflexibilidadespacial,mejorando tanto la movilidad como la percepción visualdelconjunto.Lasoluciónestructural se organiza mediante una retícula compuestapornueveejesverticalesytres

ejes horizontales, los cuales definen la modulación general de la cubierta y permiten una correcta distribución de los apoyos hacia la estructura portante. Las cerchas metálicas empleadas presentan módulos triangulares, una geometría ampliamente utilizada en este tipo de sistemas debido a su alta eficiencia estructural.Eltriángulo,alserunafigura

geométrica indeformable, garantiza una adecuadatransferenciadecargas,

distribuyendo los esfuerzos de manera uniforme hacia los apoyos y reduciendo deformaciones no deseadas. Esto contribuyeaquelaestructuraseanosolo resistente,sinotambiénseguraypráctica desde el punto de vista constructivo. Asimismo,elusodeelementosmetálicos permiteunareduccióndelpesopropiode la cubierta, lo que optimiza el comportamiento estructural general y facilita los procesos de montaje. Como elemento complementario, la estructura incorpora una correa central que une las cerchasentresí,cumpliendounafunción fundamental de arriostramiento y estabilidad. Esta correa contribuye a mantener la alineación de las cerchas, mejoraelcomportamientofrenteacargas horizontalesyasegurauntrabajoconjunto de todo el sistema. En conjunto, la cubiertaseresuelvecomounaestructura eficiente, funcional y coherente con los requerimientos espaciales y técnicos del proyecto.

LEYENDA:

7.6. MATERIALIDAD

La materialidad del Centro de Convenciones se define bajo criterios de sostenibilidad, eficiencia e innovación, respondiendo al contexto climático y constructivo de Trujillo. En ambos pisos, losmurosdeconcretoexpuestofuncionan como estructura y acabado final, reduciendo el uso de revestimientos y aportando inercia térmica y una imagen contemporánea. Los pisos de microcemento y porcelanato se emplean porsualtaresistencia,fácilmantenimiento

y durabilidad, adecuados para áreas de altotránsito.

PRIMER PISO

PISO

Las vigas y cubiertas se resuelven con madera tornillo, la especie más utilizada en Trujillo, seleccionada por su disponibilidad local, buen desempeño estructural y menor impacto ambiental, aportando calidez al espacio. Las ventanascuentanconmarcosdealuminio yvidriotemplado,garantizandoseguridad, iluminaciónnaturalyeficienciaenergética.

En conjunto, esta materialidad consolida una propuesta arquitectónica coherente, sostenibleeinnovadoraparaelCentrode Convenciones.

7.7. DETALLES ESTRUCTURALES

En el proyecto se optó como sistema principal al aporticado, conformado por columnasyvigasquetrabajandemanera conjunta para absorber y transmitir las cargas verticales y horizontales hacia la cimentación. Este sistema permite una mayor libertad en la distribución de los espacios interiores, favoreciendo plantas flexibles, amplias luces y posibles adaptaciones futuras, cualidades fundamentales para un centro de convencionesyespaciosexpositivos.

Complementando la estructura principal, se plantea una cubierta de madera , diseñadaconunageometríadedosaguas inversa que permite la eficiente recolección y conducción de las aguas pluvialeshaciapuntosdealmacenamiento o drenaje controlado. Esta solución no solorespondeacriteriosdesostenibilidad y manejo del recurso hídrico, sino que también refuerza el concepto arquitectónico, ya que la forma de la cubiertaevocasimbólicamentelasalasde un avión, fortaleciendo la relación del proyectoconlaactividadaeroportuaria.

ISOMÉTRICO SISTEMAAPORTICADO

7.7. DETALLES ESTRUCTURALES

En el proyecto se optó como sistema principal al aporticado, conformado por columnasyvigasquetrabajandemanera conjunta para absorber y transmitir las cargas verticales y horizontales hacia la cimentación. Este sistema permite una mayor libertad en la distribución de los espacios interiores, favoreciendo plantas flexibles, amplias luces y posibles adaptaciones futuras, cualidades fundamentales para un centro de convencionesyespaciosexpositivos.

Complementando la estructura principal, se plantea una cubierta de madera , diseñadaconunageometríadedosaguas inversa que permite la eficiente recolección y conducción de las aguas pluvialeshaciapuntosdealmacenamiento o drenaje controlado. Esta solución no solorespondeacriteriosdesostenibilidad y manejo del recurso hídrico, sino que también refuerza el concepto arquitectónico, ya que la forma de la cubiertaevocasimbólicamentelasalasde un avión, fortaleciendo la relación del proyectoconlaactividadaeroportuaria.

ISOMÉTRICO SISTEMAAPORTICADO

La rosa de vientos de Huanchaco revela que las direcciones predominantes están orientadas principalmente hacia el sur y suroeste, lo cual indica que los vientos marinos ingresan desde el océano hacia tierra firme con más frecuencia en esas orientaciones.Enelgráficoseobservaun mayor grosor de las “pétalos” en esas direcciones, lo que sugiere que la frecuencia del viento en esas orientaciones es significativamente superioralresto.Esconstanteyuniforme, importanteparadisiparcaloryrenovarel aireenedificacionescosteras.

Además,losvientosconorientaciónestey sureste también muestran presencia moderada, aunque en menor magnitud. Estas direcciones menores podrían corresponder a fenómenos locales de brisasterrestresoefectostopográficos.El análisis de la rosa de vientos permite identificar no solo la dirección frecuente del viento, sino también su intensidad relativa comparativa, lo cual es esencial paraorientarfachadasyubicaraberturas.

RECORRIDOSOLAR

Este análisis es clave para el diseño bioclimático:conlacartasolarsepueden proyectarlassombrasútiles,determinarel grado de exposición solar en cada fachada y decidir estrategias de protección (voladizos, parasoles, vegetación). En Huanchaco, los picos solares durante el mediodía del verano muestran que las horas de mayor radiación coinciden con orientación surnorte, lo que obliga a diseñar elementos que atenúen la ganancia térmica directa, especialmenteenfachadascríticas. ROSADEVIENTOS

Presentalosarcosdetrayectoriasolaralo largo del año, mostrando cómo el sol cambia su altura y azimut según las estaciones. En ella se puede ver que durante los meses de verano los recorridossolaressonmáselevados,con mayor inclinación hacia el norte, lo que resultaenunamayorincidenciadirectade radiación sobre fachadas orientadas al norte y este. En cambio, en invierno los arcossolaressereducen,contrayectorias más bajas en el cielo y ángulos de incidenciamásoblicuos.

ILUMINACIÓNYVENTILACIÓN

Laestrategiadeiluminaciónyventilación

natural del Centro de Convenciones se basa en un enfoque bioclimático que respondealascondicionesclimáticasde Huanchaco.Laventilaciónnaturalselogra

mediante un sistema de ventilación cruzada, apoyado por ventanas longitudinales ubicadas en las partes laterales superiores de la cubierta, las cuales permiten la entrada y salida constante del aire. Estas aberturas aprovechanlosvientospredominantesdel surysuroeste,identificadosenlarosade vientos, favoreciendo la renovación del aireinterioryladisipacióndelcalor.

Lailuminaciónnaturalseoptimizaatravés

delacorrectaorientacióndeledificioyel

control de la radiación solar según el estudio del recorrido del sol. La incorporacióndevoladizosyelementosde protección solar permite regular la incidencia directa, especialmente en los meses de verano, garantizando espacios bien iluminados sin sobrecalentamiento. En conjunto, estas estrategias pasivas mejoran el confort interior y reducen el consumoenergéticodeledificio.

Laestrategiadeeficienciaenergéticase

basa en la integración de sistemas pasivosyactivosquepermitenreducirel consumo energético y mejorar el confort interior del edificio. La implantación del proyecto frente al aeropuerto, aprovecha las condiciones climáticas locales medianteunacorrectaorientación,control

solar y el uso de cubiertas ligeras que favorecenlaventilaciónylareducciónde cargastérmicas.

Comosistemaactivoprincipal,elproyecto incorporapanelesfotovoltaicosintegrados en las cubiertas, dispuestos estratégicamente para maximizar la captación de radiación solar. Estos paneles permiten generar energía eléctrica limpia destinada al funcionamiento del edificio, como iluminación, sistemas de climatización y equipamiento general, reduciendo la dependencia de la red convencional. La integración de los paneles en la arquitectura de la cubierta no solo optimizasurendimiento,sinoquerefuerza una imagen contemporánea y sostenible delcentrodeconvenciones.

ISOMÉTRICO DEL PROYECTO CON LAUBICACIÓN DE LOS PANELES FOTOVOLTAICOS

ISOMETRÍA DE CUBIERTA LIGERA
DETALLE 1
DETALLE 2
VISTA LATERAL VISTA FRONTAL
PANELESFOTOVOLTAICOS

7.9. AHORRO Y REUTILIZACIÓN DELAGUA

Lareutilizacióndelaguaseplanteaenel

proyecto como una estrategia ambiental integradadesdelaconcepciónvolumétrica

y formal de la arquitectura. La propuesta para la parte superior del edificio se materializaatravésdeuntechoinclinado

a dos aguas invertidas, una decisión que nosolorespondeacriteriostécnicos,sino también a una intención simbólica clara: reforzar el sentido de pertenencia al contextoaeroportuario.

Desdeelpuntodevistafuncional,eltecho

a dos aguas invertidas cumple un rol fundamental en la gestión de las aguas pluviales. A diferencia de una cubierta tradicional,enlaqueelaguaesconducida hacialosbordes,lainclinacióndeambas pendientesseorientahaciaunejecentral, permitiendo que el escurrimiento natural del agua de lluvia converja en una canaletalongitudinal.

Esta canaleta actúa como elemento colector principal, garantizando una recolección eficiente y controlada del agua, incluso durante precipitaciones de mayorintensidad.

El agua recolectada es conducida mediante bajantes hacia un sistema de almacenamiento, donde pasa por un procesobásicodefiltradoinicialdestinado

a retener sólidos, hojas y partículas en suspensión. Este pretratamiento asegura unamejorcalidaddelrecursoantesdesu reutilizaciónyprolongalavidaútildelas instalaciones. Una vez almacenada, el agua pluvial se integra a un sistema de aprovechamiento interno, reduciendo de manera significativa el consumo de agua potable dentro de las instalaciones y destinándose principalmente al riego de áreasverdesyausosdemantenimiento.

De este modo, la cubierta deja de ser únicamente un elemento de protección climática para convertirse en una infraestructura activa, capaz de articular forma, identidad y eficiencia ambiental.

Esta solución evidencia cómo la arquitectura puede responder simultáneamente a aspectos simbólicos, funcionales y sostenibles, integrando el manejo responsable del recurso hídrico como parte esencial del diseño y reforzando el carácter innovador y conscientedelCentrodeConvenciones.

7.10. GESTIÓN DE RESIDUOS

Uno de los aspectos más relevantes del proyecto en relación con la gestión sosteniblederesiduoseslaincorporación deunbiodigestorcomopartedelsistema ambiental del conjunto. Este elemento cobra especial importancia debido a la presencia del restaurante y del patio de comidas,loscualesgeneranunacantidad constante de residuos orgánicos que, en lugar de ser desechados, son aprovechados como recurso. De esta manera, el proyecto transforma un problema operativo en una oportunidad para reforzar su enfoque ambiental y autosuficiente. El biodigestor funciona a partir de un proceso de descomposición anaerobia, en el cual los residuos orgánicos provenientes de la cocina industrialydelasáreasdeconsumoson introducidos en un recipiente hermético donde, en ausencia de oxígeno, son degradados por bacterias Este proceso genera dos productos principales: biogás y biofertilizante, los cuales pueden ser aprovechados aplicándose en las áreas verdes y la cocina industrial que se propusoenelproyecto.

SEAPROVECHAEL BIOFERTILIZANTE

SEAPROVECHAEL BIOGAS

7.11. INFRAESTRUCTURA VERDE

La propuesta paisajística del Centro de Convenciones se concibe como un sistema integral de infraestructura verde, en el que la vegetación se integran a la arquitectura para conformar un volumen vivofrentealAeropuertoCarlosMartínez de Pinillos. Los jardines verticales, ubicados en el interior del restaurante, aportancontroltérmico,mejoranlacalidad ambientalytransformanlosplanosduros en superficies orgánicas que enriquecen laexperienciadelusuario,mientrasquea nivel del suelo los maceteros de gran escala y áreas verdes funcionan como paisajeymobiliariourbano.

La vegetación arbórea estructura las áreas exteriores y define hitos paisajísticosqueaportanescalahumanay confort climático, complementada por vegetaciónbajayplantasaromáticasque introducentextura,coloryunaexperiencia sensorial cercana. En conjunto, la superposicióndeplanosverdesverticales, masas arbóreas y vegetación a escala peatonal configura una propuesta innovadora de volumen verde y áreas paisajísticas, que humaniza el entorno aeroportuario.

ISOMÉTRICO DE JARDÍN VERTICAL

ISOMÉTRICO DE MACETERO DE CO-WORKING

ISOMÉTRICO DE MACETERO DE LAPLAZOLETA

7.12. MOBILIARIO

Eldiseñodelospanelesparalazonade exposicionessurgecomounapiezaclave

dentro de la propuesta arquitectónica, concebido como un recurso espacial capazdeconstruiridentidadydinamizarla experiencia del usuario. Lejos de plantearse como un panel expositivo convencionalyestático,estemobiliarioha sido diseñado con una lógica modular y móvil, permitiendo múltiples configuracionesyadaptacionessegúnlas necesidadesdecadaeventooexposición.

Uno de los aspectos más relevantes del diseño es su geometría no lineal. A diferenciadeunpanelrectotradicional,el

sistema propone planos dispuestos en distintos ángulos, generando múltiples vistas, recorridos y perspectivas. Esta fragmentación volumétrica enriquece la lectura del espacio, invita al desplazamientodelusuarioypermiteuna interacción visual continua desde diferentespuntosdeobservación.Elpanel deja de ser un simple fondo para convertirseenunelementotridimensional que participa activamente en la configuracióndelambiente.

El diseño de las butacas para la sala de convenciones se concibe como una extensión del concepto general del proyecto,tomandocomoreferenciadirecta los asientos utilizados en las aeronaves comerciales.Estainspiraciónnoselimita

a una analogía formal, sino que busca reproducir la sensación de comodidad, contención y eficiencia espacial que caracterizaalosinterioresdelosaviones, adaptándolaaunespaciodepermanencia prolongadayusocolectivocomoloesuna saladeconvenciones.

Desde el punto de vista constructivo y funcional, las butacas se organizan en conjuntos anclados al piso mediante pernos y abrazaderas metálicas, garantizandoestabilidad,ordenycorrecta alineaciónvisualhaciaelescenario.Esta disposiciónpermiteoptimizarlacapacidad de la sala sin afectar la circulación ni la experiencia del usuario, equilibrando la escalacolectivadelespacioconelconfort individual.Deestemodo,elmobiliariose integra plenamente a la arquitectura, consolidándose como un elemento clave en la construcción de identidad y calidad espacialdelasaladeconvenciones.

08 08

AERÓDROMO TURÍSTICODE HUANCHACO

Somos estudiantes del VI ciclo de la EscueladeArquitecturayUrbanismodela

Universidad Nacional de Trujillo, y en el marco del curso Taller V de Diseño

Arquitectónico hemos desarrollado una propuesta arquitectónica que consiste en un Aeródromo Turístico ubicado en el distrito de Huanchaco. El proyecto se emplaza a pocos metros del Aeropuerto InternacionalCapitánFAPCarlosMartínez dePinillos,loquepermiteestableceruna

relación estratégica con una infraestructura aérea existente, actualmente subutilizada en términos de potencialturísticoyurbano.

Apartirdeldiagnósticourbanoyfuncional realizado,identificamoslaoportunidadde

potenciar esta zona mediante un equipamiento complementario, capaz de diversificar las actividades aéreas y reforzarelcarácterturísticodelsector.En ese sentido, la propuesta plantea un aeródromoturístico orientadoavisitantes nacionales y extranjeros, quienes podrán realizar recorridos aéreos en avionetas y helicópteros.

Asimismo, el proyecto no se limita únicamentealenfoqueturístico,sinoque incorpora una escuela de aviación civil, destinada a la formación de futuros pilotos.Estafuncióneducativarefuerzael carácter técnico y especializado del aeródromo, consolidándolo como un equipamiento mixto de uso turístico, formativoyoperativo.

PROYECTISTAS

RODRÍGUEZ AGREDA LUIS ANDRÉS
RODRÍGUEZ CHIQUES JEREMÍAS

8.1 UBICACIÓN

UBICACIÓN DEL BLOQUE

ElAeródromoTurísticodeHuanchacose

emplaza como parte de la propuesta de ampliación del Aeropuerto de Trujillo, consolidándose como un bloque aeronáutico–turístico de obra nueva dentro del master plan general. Su ubicación responde a criterios de conectividad, funcionalidad operativa y articulación con el sistema aeroportuario existente, permitiendo el desarrollo de vuelos turísticos y de aviación ligera sin interferir con las operaciones principales delaeropuerto.

La orientación del Aeródromo aprovecha las condiciones climáticas predominantes deHuanchaco,especialmenteladirección de los vientos y la radiación solar, optimizandolascondicionesdeoperación aérea, iluminación natural y confort ambiental.Altratarsedeunaobranueva, se permite una implantación flexible y contemporánea, integrándose al paisaje costero y reforzando el carácter turístico del conjunto aeroportuario, sin generar conflictosconlainfraestructuraexistente.

ANÁLISIS DEL EMPLAZAMIENTO

ElAeródromoTurísticodeHuanchacose implantadentrodeláreadeampliacióndel aeropuerto, ocupando un bloque destinado exclusivamente a la implantación de las edificaciones del aeródromo,mientrasquelapistayelpatio de maniobras se desarrollan en áreas independientes, garantizando una clara separaciónentrezonasedificadasyáreas operativas. El bloque presenta una configuración poligonal regular de cinco lados, condición que permite una implantación flexible y una adecuada organizacióndelconjuntoarquitectónico.

El proyecto se localiza al interior del recinto aeroportuario, hacia el lado derecho del acceso principal, a pocos metros del terminal existente, lo que refuerzasuaccesibilidadysuintegración funcionaldentrodelsistemaaeroportuario. La topografía del terreno es predominantemente plana, favoreciendo unaimplantacióneficienteyreduciendola necesidad de intervenciones mayores sobreelsuelo.

LEYENDA

8.2 ZONIFICACIÓN

ZONIFICACIÓN DELAERÓDROMO TURÍSTICO DE HUANCHACO

LazonificacióndelAeródromoTurísticode

Huanchaco se plantea priorizando la experiencia integral del usuario, garantizando recorridos claros, seguros y accesibles para los distintos tipos de usuariosquehacenusodelequipamiento.

Desde esta lógica, la zona pública de pasajeros se configura como el núcleo principal del proyecto, concentrando los espaciosdeingreso,espera,embarquey desembarque,yasegurandounarelación directa, fluida y controlada con las áreas exterioresyelpaisajecircundante.

De manera complementaria, la zona administrativa se dispone estratégicamente para facilitar el control, lagestiónylasupervisióneficientedelas actividades del aeródromo, fortaleciendo la organización interna del conjunto. La zonaeducativa,destinadaalaescuelade pilotos, refuerza el carácter formativo y técnico del proyecto sin interferir con los flujospúblicosnioperativosexistentes.

ZonaPública–Pasajeros

ZonaRestringidaoPrivada

ZonaAdministrativa

ZonaEducativa

ZonaGastronómica

ZonaExteriorPública

ZonadeServicios

ZONIFICACIÓN PRIMER NIVEL
ZONIFICACIÓN SEGUNDO NIVEL

Elproyectosedesarrollaendosnivelesy

se organiza mediante cuatro bloques principales, lo que permite diferenciar usos, optimizar los flujos de usuarios y garantizar una operación eficiente del conjunto. Esta organización responde tanto a las necesidades aeronáuticas como a los requerimientos turísticos y formativosdelproyecto.

El Bloque A concentra las áreas administrativas, destinadas a la gestión, control y funcionamiento interno del aeródromo. El Bloque B alberga los espacios de atención a pasajeros, incluyendo las áreas de embarque y desembarque, configurándose como el núcleooperativoypúblicodelproyecto.El Bloque C corresponde al patio de comidas y funciona como espacio de encuentro para usuarios y visitantes.

Finalmente,el Bloque D estádestinadoa la escuela de pilotos de la aeronáutica civil, incorporando espacios especializados para la formación y capacitación.

TERRENOAGRÍCOLA TERRENOAGRÍCOLA

8.3 DISTRIBUCIÓN

La escala monumental seexpresaenel espacioprincipaldelaeródromo,dondese desarrollanlassalasdeespera,embarque ydesembarque.Enloscortes,estaescala se reconoce por sus mayores alturas libres y amplitud espacial, consolidando estosambientescomoelnúcleopúblicoy representativo del proyecto. La escala normal se presenta en el patio de comidas y en el área administrativa, definidos por proporciones equilibradas que garantizan funcionalidad y confort, actuando como transición dentro del conjunto.Finalmente,la escala íntima se identifica en los servicios higiénicos y en algunas aulas de la escuela aeronáutica, donde las dimensiones se reducen para favorecerlaprivacidadyelusoespecífico. CORTES GENERALES

El proyecto evidencia una jerarquización espacial clara a partir del manejo de distintas escalas arquitectónicas, las cuales responden a la función y carácter de cada ambiente del aeródromo, permitiendoordenarelconjuntoyreforzar laexperienciadelusuario.

PLANO - EDIFICIO DE ÁREA

ADMINISTRATIVA BLOQUE A

PASILLO

OFICINADEGERENCIA

SECRETARÍA

TÓPICO

SALADEREUNIONES

ÁREADEDESCANSO PILOTOS

VESTIDORPILOTOS

SS.HH

OFICINADESEGURIDAD

CUARTODECÁMARAS

CUARTOTÉCNICOELÉCTRICO

CUARTOTÉCNICOCOMUNICACIONES

CUARTODELIMPIEZA

ENCARGODEEQUIPAJE

MÓDULODETIENDA

INGRESO

MÓDULODEINFORMACIÓN

MÓDULODEAEROLÍNEA

SALADEESPERA

PUERTADEEMBARQUE

ESCALERA

SS.HH

PATIOEXTERIOR

EMBARQUEVIP

SS.HH

ÁREALIBRE

PATIODECOMIDAS MIRADOR

INGRESOMIRADOR SS.HH

PLANO SEGUNDO PISO

CUARTODESIMULACIÓN

LABORATORIODE

NAVEGACIÓN

GALERÍAAERONÁUTICA

ÁREALIBRE

ALMACÉN

ESCALERA

AULA

SECRETARÍA

DIRECCIÓN

AULADEINSTRUCTORES

SS.HH

CUARTODESIMULACIÓN

LABORATORIODE

NAVEGACIÓN

GALERÍAAERONÁUTICA

ÁREALIBRE

ALMACÉN

ESCALERA

AULA

SECRETARÍA

DIRECCIÓN

AULADEINSTRUCTORES

SS.HH

BIBLIOTECA

SALADEUSOSMÚLTIPLES

8.4 ESPACIALIDAD

ORGANIZACIÓN ESPACIAL

Se define a partir de una organización

claradevolúmenesyalturasquepermite diferenciar las funciones del proyecto y facilitar la lectura arquitectónica del conjunto.Eledificiosedesarrollaendos niveles,generandounajerarquíaespacial quedistingue osespaciosdeusopúblico, administrativo y formativo, sin perder la unidad del proyecto. Esta organización volumétricaseevidenciaprincipalmentea

través de los cortes arquitectónicos, los cuales permiten comprender las relacionesentrelosbloquesdelproyecto.

ESCALAS ESPACIALES

Losespaciosdestinadosalaatenciónde

pasajeros y al uso público se conciben con una mayor amplitud y altura, generando una escala institucional que refuerza el carácter representativo del aeródromo. En contraste, las áreas administrativas y los espacios correspondientes a la escuela de pilotos presentan una escala más controlada y funcional,adecuadaalasactividadesde gestión,aprendizajeyconcentración

CORTE ARQUITECTÓNICO

RECORRIDOS YACCESIBILIDAD

La articulación entre los dos niveles del proyectoseresuelvemedianteconectores verticales estratégicamente ubicados, como escaleras, rampas y circulaciones accesibles, garantizando recorridos fluidos, continuos y sin barreras arquitectónicas. La disposición de estos elementos asegura la accesibilidad universal, permitiendo que todos los usuarios puedan acceder y recorrer el edificio de manera segura y autónoma, independientemente de sus condiciones físicas.

ILUMINACIÓN, VENTILACIÓN Y CONFORT AMBIENTAL

La espacialidad del proyecto incorpora criterios pasivos de confort ambiental, priorizando el ingreso de iluminación natural y la ventilación cruzada en los espacios principales. La disposición de aperturas, vacíos y alturas diferenciadas permitemejorarlacalidadespacialdelos ambientes y reducir la dependencia de sistemas artificiales. En conjunto, estas decisiones consolidan una espacialidad funcional, inclusiva y coherente con el carácterturístico

CORTE ARQUITECTÓNICO
CORTE ARQUITECTÓNICO

8.5 SISTEMA ESTRUCTURAL

El sistema estructural del Aeródromo TurísticodeHuanchacoseplanteaapartir de criterios de estabilidad, eficiencia constructiva y adecuación al programa arquitectónico,diferenciandodossistemas estructurales según el carácter y uso de cadabloque.Enamboscasos,seemplea una cimentación mediante zapatas aisladas, las cuales reciben columnas que funcionan como elementos portantes principales, permitiendo una correcta transmisiónde cargas haciaelterreno.

BLOQUEAERÓDROMO

En el bloque principal del aeródromo, la estructura se organiza a partir de columnas que actúan como pilares verticales,sobrelascualesseapoyauna cerchademadera,encargadadesostener la cobertura. Este sistema permite resolverlucesampliasygenerarespacios interioresflexibles,acordesalasáreasde atenciónapasajeros.Loscerramientosse resuelven mediante muros de ladrillo tarrajeado, los cuales cumplen una funciónnoestructural.

ESTRUCTURA CERCHA DE MADERA

BLOQUE A

MUROS DE CERRAMIENTO

PLANO ESTRUCTURAL CUBIERTA

La cimentación del edificio principal del Aeródromoseresuelvemediantezapatas aisladas de concreto armado, diseñadas pararecibirlascargastransmitidasporlas columnas que conforman el sistema portantevertical Las columnas funcionan como los elementos estructurales verticales, conformando un sistema de soporte regularyordenado.

Los muros de cerramiento se plantean como elementos no estructurales, ejecutados en albañilería de ladrillo. Su función es delimitar los espacios interiores, proteger al edificio de las condiciones climáticas y contribuir al conforttérmicoyacústico.

La cubierta del edificio principal se resuelve mediante una estructura de cerchas de madera, apoyadas sobre las columnas del sistema portante. Este sistema permite cubrir grandes luces de manera eficiente, reduciendo el peso propio de la estructura y generando espacios interiores de mayor amplitud y altura.

ZAPATAS DE CONCRETO 210KG/CM2

8.5 SISTEMA ESTRUCTURAL

BLOQUE PRINCIPALAERÓDROMO

PLANO ESTRUCTURAL CUBIERTA
ISOMETRÍA MÓDULO

Ventanasconperfilesdeacero yvidriotemplado.

Mamparas de vidrio templado conperfilesdealuminio

Piso laminado para ambientes ycerámicaparapacillos.

Concreto (cemento, arena, grava, agua) y acero de refuerzo(varillascorrugadas).

Cercha reticulada compuesta por piezas metálicas, ensambladas con conectores metálicos.

Placasdeconcretoarmado

Estructura compuesta por perfiles y láminas de acero o aluminio, con herrajes de aceroinoxidable.

Elemento estructural vertical de concreto reforzado con acero.

8.7 DETALLES ESTRUCTURALES

PEFÍL VERTICAL DE50CM

TRASLÚCIDO DE POLICARBONATO

PERFIL SECUNDARIO METÁLICO

PERFIL PRINCIPAL METÁLICO

ANCLAJEMETÁLICO COLUMNAS

DETALLE DE CERCHA

CONCRETOARMADO

VARILLASDEACERO

LADRILLODETECHO

ESPACIOPARAVACIADO

DETALE LOSA ALIGERADA

ISOMÉTRICO ESTRUCTURAL BLOQUE C

ISOMÉTRICO DE COLUMNA Y ZAPATA
VIGAPRINCIPAL
VARILLASDEACERO
ZAPATA
VACIADODECONCRETO

8.8 EFICIENCIA ENERGÉTICAY SOSTENIBILIDAD

La propuesta arquitectónica se fundaLa propuesta arquitectónica se fundamenta en criterios de eficiencia energética y sostenibilidad, integrando estrategias pasivasyactivasqueoptimizanelusode los recursos naturales disponibles en el entorno. El diseño busca reducir el consumoenergéticodeledificiosinafectar el confort de los usuarios ni la funcionalidaddelosespacios.

La geometría inclinada de la cubierta ha sido aprovechada para orientar adecuadamente los paneles solares, garantizando una correcta captación de radiaciónsolardurantegranpartedeldía yalolargodelaño.Estasoluciónpermite convertirlacubiertaenunelementoactivo desdeelpuntodevistaenergético.

Los rayos solares inciden directamente sobre los paneles fotovoltaicos ubicados en la cubierta, donde la energía solar es transformada en energía eléctrica en corriente continua para su posterior uso interno.Esteprocesoconstituyelaprimera etapadelsistemadegeneracióneléctrica sostenibleincorporadoaledificio.

RAYOS SOLARES INSIDEN EN EL PANEL FOTOVOLTAICO

EL INVERSOR CONVIERTE

LA CORRIENTE CONTINUA EN CORRIENTE ALTERNA,

LA ENERGÍA ES ENVIADA AL MEDIDOR PARA NO SER DESPERDICIADA

FINALEMNTE SE LE ENVÍA A LOS TOMACORRIENTES

reforzando su carácter sostenible y su compromiso con el cuidado del medio ambiente.

ILUMNICACIÓN

El diseño aprovecha la geometría inclinada de la cubierta de madera en el restaurante para captar luz cenital indirecta. Esta solución baña el salón principaldeformahomogénea,resaltando la calidez del material y evitando el deslumbramientodirecto,loquegarantiza una atmósfera confortable para el uso gastronómico.

En el bloque del instituto, se emplean vanos laterales proporcionales que aseguranunailuminaciónprofundaenlas aulasdeestudio.Laestructuraaporticada permitequelaclaridadnaturalalcancelas zonas centrales, optimizando el confort visualyreduciendoelconsumoenergético durantelasactividadesacadémicas.

Finalmente,elusodealerosperimetrales actúa como un filtro solar efectivo en ambosniveles.Estoselementosprotegen los interiores de la radiación directa en horas críticas, manteniendo una luminosidad constante que refuerza la conexión visual con el exterior y la identidadarquitectónicadelconjunto.

VENTILACIÓN

y manteniendo un ambiente fresco y saludable que favorece la concentración de los estudiantes mediante métodos pasivos. La flexibilidad del sistema estructural permitequelascorrientesdeairecirculen sin obstáculos significativos a través de las plantas. Gracias a la combinación de inerciatérmicaenlabaseyligerezaenla cubierta, el edificio logra un confort higrotérmico óptimo sin depender de sistemasdeclimatizaciónmecánicos.

8.9

Eledificioincorporaunsistemaintegralde ahorro y reutilización de agua, diseñado bajocriteriosdesostenibilidadyeficiencia ambiental. Este sistema aprovecha el recurso hídrico desde su origen natural, reduciendoelconsumodeaguapotabley promoviendounagestiónresponsabledel aguadentrodelproyectoarquitectónico.

Elprocesoiniciaenlacubiertadeledificio, cuya geometría facilita la captación de agua pluvial. El agua de lluvia es recolectada mediante canaletas ubicadas estratégicamenteeneltechoyconducida atravésdeunareddetuberíasverticales integradasaldiseñodeledificio.

Durante su recorrido, el agua captada pasa por una serie de filtros que garantizan su adecuada depuración. En una primera etapa, se emplean filtros primarios que retienen hojas, polvo y partículas sólidas de mayor tamaño. Posteriormente, el agua atraviesa filtros secundarios que eliminan sedimentos finos e impurezas, mejorando significativamentesucalidad

Finalmente,elaguatratadaesconducida hacia una cisterna subterránea de almacenamiento, ubicada estratégicamente bajo el edificio. Este reservorio permite conservar el agua de manera segura y protegida de agentes externos, asegurando su disponibilidad duranteperiodosdemenorprecipitacióny garantizando un uso eficiente y continuo delrecursohídrico.

El sistema incorpora una bomba que impulsa el agua almacenada hacia la superficie, permitiendo su distribución eficiente y controlada a los distintos puntos de uso dentro del edificio. Este procesoseintegradeformaadecuadaala infraestructura general, asegurando un funcionamiento estable y confiable del sistema.

El agua reutilizada se destina principalmentealriegodeáreasverdes,la limpieza de espacios exteriores y el uso ensistemassanitarios,contribuyendoala reducción del consumo de agua potable. Esta estrategia refuerza el enfoque sostenibledelproyecto.

CAPTACIÓN DE AGUA DEL TECHO
ELIMINACIÓNDEIMPUREZAS
SISTERNA SUBTERRÁNEA PARAALMACENARELAGUA BOMBA QUE IMPULSA EL AGUAHACIALASUPERFICIE
FILTRO DE AGUA SUCIA A LIMPIA

8.10 GESTIÓN DE RESIDUOS

El sistema de gestión de residuos se concibe como una infraestructura silenciosa pero fundamental, integrada estratégicamente para mitigar el impacto ambiental de las actividades humanas dentro del complejo. El primer nodo se sitúa en la zona de transición entre los estacionamientos y la Plaza de Armas, actuando como un filtro sanitario que intercepta los desechos desde el umbral de ingreso, garantizando que el espacio público mantenga su pureza visual y funcionalentodomomento.

En los sectores operativos de alta especificidad,comolaadministraciónylos laboratorios en la zona superior, la disposición de puntos ecológicos respondeaunalógicadesegregaciónen origen. Esta ubicación estratégica facilita el manejo de residuos diferenciados, permitiendoqueladinámicaacadémicay administrativa fluya sin interferencias higiénicas, mientras se refuerza la concienciaambientalmedianteestaciones dereciclajeaccesibles.

Para el núcleo gastronómico y las áreas demayorpermanencia,losdispositivosde acopioselocalizanconprecisiónparadar soporte a la alta demanda de residuos orgánicos e inorgánicos, minimizando los recorridos de servicio y optimizando las labores de mantenimiento. Esta red de puntos limpios no solo resuelve una necesidadtécnica,sinoquesealineacon la visión de un edificio eco-eficiente que priorizalasaludpúblicaylapreservación estética de sus frentes hacia el entorno urbano.

Finalmente, la distribución perimetral de estoselementospermiteunalogísticade evacuación rápida y discreta hacia el exterior, evitando el cruce de flujos de residuosconlascirculacionesprincipales delosusuarios.Deestemodo,lagestión de desechos deja de ser un servicio secundario para convertirse en un componente activo del diseño bioclimático,contribuyendoalaresiliencia delproyectoyasegurandounciclodevida sostenibleparatodalainfraestructura.

Plantaperennevertical,resistentealsoly al clima cálido, ideal para áreas verdes. Aporta orden visual y sombra ligera sin afectarlaventilación.

Planta de follaje denso y copa compacta que aporta sombra y control visual en áreasverdes.Seadaptaalclimacálidoy requiereriegomoderadoypodaperiódica.

Árbol denso para control térmico natural.

Planta ornamental de porte bajo y floración vistosa que aporta color y vitalidad. Se adapta bien al clima cálido, requiere riego moderado, buena exposiciónsolarysuelosbiendrenados.

Planta ornamental con flores alargadas decolorrojointensoqueaportancolory texturaaáreasverdes.Seadaptabienal clima cálido, requiere buena exposición solaryriegomoderado.

8.12 MOBILIARIO

Elsimuladordevueloseconcibecomoun mobiliarioespecializadoquereproducelas condiciones operativas de una cabina aérea, priorizando la funcionalidad y el realismo. Su diseño permite una experiencia inmersiva, adecuada para actividades de formación y simulación dentrodeledificio.

La configuración integra monitores laterales y centrales que garantizan un ampliocampovisualyunacorrectalectura del entorno de vuelo, junto a un asiento ergonómico que asegura comodidad durantesuusoprolongado.Ladisposición depanelesdecontrol,pulsadores,teclado e indicadores facilita una interacción precisa,intuitivayseguraparaelusuario.

La estructura metálica de soporte proporciona estabilidad, resistencia y durabilidad, asegurando un funcionamientoeficientedelequipamiento tecnológico. Este mobiliario se integra armónicamente al espacio interior, reforzando el carácter tecnológico, educativo y funcional del proyecto arquitectónico.

MONITORIZQUIERDO

MONITORCENTRAL

PULSADORES INICADOR DE VELOCIDAD

SOPORTEGENERAL

MONITORDERECHO

ESTRUCTURA METÁLICA DE SOPORTE

PULSADORES DE EMERGEMCIA

TECLADON°1

MONITORDERECHO

TECLADON°2

Labancaconpérgolaesunelementode mobiliario exterior diseñado para el descanso,lapermanenciaylainteracción de los usuarios, generando espacios de encuentro,pausaycontemplacióndentro del conjunto arquitectónico. Su diseño contribuyeamejorarlacalidaddelespacio públicoyelconfortdelusuario.

La pérgola de madera de cedro proporcionasombra,protecciónfrenteala radiaciónsolarycontroldelasoleamiento, permitiendounusocontinuodelmobiliario durante distintas horas del día. Los asientos de madera ofrecen confort térmico y resistencia al uso prolongado, mientras que los elementos metálicos complementanelconjuntoyrefuerzansu durabilidad.

La estructura metálica curva se ancla a una base de concreto simple mediante pernosdeanclaje,asegurandoseguridad, firmeza y estabilidad estructural. Este mobiliario fortalece la relación entre arquitectura,paisajeyclima,integrándose de manera armónica al entorno y reforzando el enfoque sostenible y funcionaldelproyecto.

ESTRCTURA MÉTALICA DESOPORTE
BRAZALETEMETÁLICO
CONCRETOSIMPLE
ARRIOSTRE DE MADERA CEDRO
PERNOSDEANCLAJE ARRIOSTRES
METALCURVO
ARRIOSTRE DE MADERA
PERFILDEACERO
PERFILDEACERO

8.12 MOBILIARIO

La puerta se concibe como un elemento de mobiliario arquitectónico que organiza la circulación interior y permite el control de accesos entre los distintos ambientes del edificio. Su diseño prioriza la funcionalidad, la resistencia y la correcta integración con el espacio, aportando ordenycontinuidadalrecorridointerior.

La estructura está conformada por un bastidor de madera de 1”x4” y un marco de 2”x4”, elementos que garantizan estabilidad, rigidez y un adecuado comportamiento frente al uso constante.

La incorporación de herrajes, cerradura interior y tornillería asegura un funcionamiento eficiente, seguro y duraderodentrodelsistemademobiliario.

Este elemento refuerza el carácter práctico y funcional del espacio interior, aportando claridad en la organización y unaadecuadarespuestaalusocotidiano. La solución adoptada se integra armónicamentealproyectoarquitectónico, manteniendo coherencia formal y constructiva.

Laventanaseplanteacomounelemento de mobiliario fijo que permite el ingreso controlado de iluminación natural y favorecelarelaciónvisualconelexterior, contribuyendo al confort ambiental del espacio interior. Su diseño enfatiza la transparencia y la continuidad visual, integrándose de manera equilibrada al conjunto.

El sistema constructivo está compuesto porunbastidormetálicoqueproporciona estabilidad y durabilidad, incorporando vidrio templado de 5 mm que garantiza resistencia y seguridad. Los herrajes, burletesylacanaletainferiorpermitenun correcto sellado, un funcionamiento eficiente y una adecuada evacuación del agua.

Este mobiliario contribuye al control ambiental y al desempeño funcional del recinto,optimizandolailuminaciónnatural y la protección del espacio interior. La ventanaseintegradeformacoherenteal lenguaje arquitectónico del proyecto, reforzando su carácter contemporáneo y técnico.

MURO CANALETA
BASTIDORMETÁLICO BURLETE
VENTANA
SALA DE ESPERA

ENCARGO DE EQUIPAJE

HELIPUERTO
ESCUELA AERONÁUTICA TERRAZA

09 09

LAEXPERIENCIAYEL PROCESO

A lo largo de este proceso, vivimos una experiencia de diseño que trascendió ampliamente el resultado arquitectónico final. Este proyecto nos transformó no solo como estudiantes de arquitectura, sino también como equipo humano, permitiéndonos comprender que el diseño es tanto una construcción técnica como una experiencia colectiva. Desde los primeros acercamientos conceptuales, los bocetos iniciales y las discusiones de idea, hasta las extensas y exigentes jornadas de trabajo en maquetas, compartimos tiempo, ideas, desacuerdos, aprendizajesyunesfuerzoconstante.

El camino no estuvo exento de conflictos, confusiones e incertidumbre, especialmente durantelaelaboracióndelasmaquetas,donde surgieron errores, correcciones de último momentoydecisionescomplejasquepusieron a prueba nuestra capacidad de organización, comunicación y adaptación. Las amanecidas enlacasadeuncompañeroseconvirtieronen parte esencial del proceso: noches largas entre cartón, pegamento, planos, maquetas y café, marcadas por la presión del tiempo y la constante duda de no saber si lograríamos cumplirconlosplazosestablecidos.

A esta dinámica se sumaron las exigencias cotidianasdelavidauniversitaria:correrdeun curso a otro, regresar apresuradamente por materialesolvidados,coordinarentregas

paralelas y resolver imprevistos sobre la marcha. Pasamos horas esperando nuestro turno para una crítica, escuchando observaciones a otros proyectos, y al finalizar cada revisión volvíamos a acercarnos para preguntar, contrastar ideas y entender qué decisiones funcionaban mejor en cada caso,siempre con el objetivo de mejorar elproyectoyavanzardemaneraconjunta.

En medio del cansancio, la tensión y la exigencia académica, aprendimos a apoyarnos mutuamente, a distribuir responsabilidades de forma más consciente y a confiar en el trabajo colectivo.Laangustiainicialsetransformó progresivamenteensatisfacciónalverel proyecto consolidarse, alcanzando resultadosquenosolorespondieronalos objetivos planteados, sino que superaron nuestras propias expectativas. Este proceso nos dejó no solo un proyecto arquitectónico, sino una experiencia compartidadecrecimiento,perseverancia y aprendizaje continuo, reafirmando el valor del trabajo en equipo como parte fundamental de nuestra formación profesional y humana como futuros arquitectos.

REFERENCIAS BIBLIOGRÁFICAS

Fernando,C.G.D.,David,M.M.G.,&Yeraldin,S.C.(2023,April11).DiseñodelaeródromoanexoalaeropuertointernacionalelDorado

Aeropuerto Internacional Capitán FAP Carlos Martínez de Pinillos. (s. f.). Datos generales y servicios del aeropuerto de Trujillo. Recuperadodehttps://aeropuertosglobales.com/aeropuerto-internacional-capitan-fap-carlos-martinez-de-pinillos-tru/ Aeropuertos del Perú. (s. f.). Información general del aeropuerto de Trujillo – sede Huanchaco. Recuperado de https://www.adp.com.pe/es/sede/trujillo

Carrillo Juez, R. D. (2018). Reciclaje de infraestructura urbana: Parque Bicentenario, antiguo aeropuerto de Quito, Ecuador. Universitat PolitècnicadeValència.

Neufert, E., Kister, J., & Lohmann, M. (2013). Neufert: Arte de proyectar en arquitectura (16.ª ed.). Editorial Gustavo Gili, Barcelona, España.

Stewart, R. (2024). The Evolution of Airport Design. Routledge. Tratado contemporáneo sobre la evolución histórica y arquitectónica del diseñodeaeropuertosdesdeunaperspectivaintegral.

Leiva,S.(2024,18octubre).LCC/IDOM.ArchDailyEnEspañol.https://www.archdaily.cl/cl/802624/lcc-idom?redirect_from=pe

CCMQ.(2025,2octubre).CentrodeConvencionesMetropolitanodeQuito EventosEcuador.https://ccmq.ec/ Norkin, B., & Norkin, B. (2025, 17 julio). Architecture Master Plan. What Is It and Do You Need One? Ben Norkin Architecture.

https://bennorkinarchitecture.com/architecture-master-plan/

Guerra, M. (2013, May 1). Arquitectura Bioclimática como parte fundamental para el ahorro de energía en edificaciones. https://rd.udb.edu.sv/items/59a1b335-123e-4bb5-bddc-a98b40b66345 MonumentDigital. (2025, 28 octubre). Master Planning Guide | BASE Architects. Base. https://www.basearchitecture.co.uk/news/anintroduction-to-master-planning/ Natalia,P.C.(2010).Propuestadeunsistemadeaprovechamientodeagualluvia,comoalternativaparaelahorrodeaguapotable,enla

institución educativa María Auxiliadora de Caldas, Antioquia. https://bibliotecadigital.udea.edu.co/entities/publication/9fc4e04e-61a4-441ca486-7a867e59fe24

Luis Carlos Galán Sarmiento como alternativa a la movilidad aérea para vuelos nacionales repercutiendo en la mejora de las operaciones del aeropuerto Perales en la ciudad de Ibagué. Repositorio Institucional Universidad Cooperativa De Colombia. https://repository.ucc.edu.co/items/8202a0e3-62a3-4486-aa5d-4bd4c9eba623

Carasay,D.,Pitrelli,S.,Alejandro,D.B.C.,Marino,P.,&Pesarini,A.J.(2013).Metodologíaparadeterminarlaclavedereferenciadeun aeródromoexistentesegúnsudiseñogeométrico.https://sedici.unlp.edu.ar/handle/10915/72202

Carasay,D.,Pitrelli,S.,Alejandro,D.B.C.,Marino,P.,&Pesarini,A.J.(2013).Metodologíaparadeterminarlaclavedereferenciadeun aeródromoexistentesegúnsudiseñogeométrico.https://sedici.unlp.edu.ar/handle/10915/72202

Martínez,P.A.(2015).Diseñodeáreasverdesconcriteriosecológicos.Dialnet.https://dialnet.unirioja.es/servlet/articulo?codigo=5464594

De Carvalho, G. L., & Fulgêncio, V. A. (2013, December 10). EL DISEÑO COMO

LENGUAJE DE CONCEPCIÓN DEL PROYECTO

ARQUITECTÓNICO.https://publicaciones.ucuenca.edu.ec/ojs/index.php/tsantsa/article/view/25

Turn static files into dynamic content formats.

Create a flipbook
Issuu converts static files into: digital portfolios, online yearbooks, online catalogs, digital photo albums and more. Sign up and create your flipbook.