Liselot Buurman - Woonerf van de Toekomst

Page 1


Het woonerf van de toekomst

Ontwerpend onderzoek naar de transformatie van bloemkoolwijken tot toekomstbestendige wijken die invulling geven aan de demografische veranderingen

Master Stedenbouw Academie van Bouwkunst

Liselot Buurman

HET WOONERF VAN DE TOEKOMST

Ontwerpend onderzoek naar de transformatie van bloemkoolwijken tot toekomstbestendige wijken die invulling geven aan de demografische veranderingen

2026

Liselot Buurman Liselotbuurman@hotmail.nl

Afstudeerproject

Master Stedenbouw Academie van Bouwkunst Amsterdam

Commissieleden

Jessica Tjon Atsoi

Herman Zonderland

Michelle Provoost

Toegevoegde commissieleden ten behoeve van examen

Martin Probst

Iruma Rodriguez

2026 Liselot Buurman. Alle rechten voorbehouden. Geen enkel deel van deze publicatie mag worden gekopieerd, opgeslagen in een geautomatiseerd gegevensbestand of op welke manier dan ook openbaar worden gemaakt zonder voorafgaande schriftelijke toestemming van de auteur.

VOORWOORD

Beste lezer,

Voor u ligt mijn afstudeerproject ´Het woonerf van de toekomst´. Een project dat ingaat op één van mijn grote interesses binnen het vak stedenbouw: de bloemkoolwijken en collectiviteit.

Ik heb onderzoek gedaan naar de wijk de Maten in Apeldoorn, de grootste bloemkoolwijk van Nederland. Daar ben ik gaan wandelen, gaan verdwalen, in de literatuur maar ook op straat. De kwaliteiten en valkuilen van de wijk tot me gaan nemen, maar ook kijken naar hoe bewoners

op de dag van elkaar met elkaar omgaan. Eenzaamheid en ouderdom liggen op de loer. De huishoudenssamenstelling sluit niet meer aan bij het huidige woningaanbod.

In dit project neem ik jullie mee op mijn zoektocht naar een toekomstbestendige bloemkoolwijk waar ruimte is voor verschillende doelgroepen met een divers woningaanbod.

Veel leesplezier!

SAMENVATTING

Dit boekwerk is het resultaat van mijn afstudeerproject aan de Academie van Bouwkunst in Amsterdam. ‘Het woonerf van de toekomst’ laat zien hoe we de bloemkoolwijken in Nederland kunnen transformeren naar toekomstbestendige wijken die aansluiten bij de huidige en toekomstige huishoudenssamenstelling van Nederland. De bloemkoolwijk die in de spotlight staat is De Maten in Apeldoorn, tevens de grootste bloemkoolwijk van Nederland.

Bloemkoolwijken ook wel woonerfwijken genoemd, zijn gebouwd in de jaren ’70 en ’80, een periode waarin de stedenbouw vooral streefde naar kleinschaligheid en de menselijke maat als tegenreactie op de grote repeterende volumes gebouwd in de wederopbouw periode. Nederland kent veel bloemkoolwijken, meer dan 1 miljoen woningen zijn gepositioneerd in deze wijken. De wijk ‘de Maten’ is een typische bloemkoolwijk met een hiërarchische wegenstructuur, voornamelijk eengezinswoningen, een grote groenstructuur en gescheiden voorzieningen. De Maten moest een wijk voor iedereen worden, een echte gezinswijk.

In de afgelopen 50 jaar is er veel veranderd. De jonge gezinnen wonen er niet meer en zijn verandert veranderd in alleenstaanden en ouderen nog steeds woonachtig in de grote eengezinswoningen. De Maten heeft een toenemend aantal ouderen en eenpersoonshuishoudens, terwijl de woningvoorraad in de wijk grotendeels bestaat uit eengezinswoningen. De huidige woningtypologieën sluiten niet aan bij de veranderende huishoudens samenstelling, dit zorgt voor weinig doorstroming en een woningtekort voor specifieke doelgroepen. Er is een mismatch tussen het woningaanbod in de bloemkoolwijk de Maten en de bewonersgroepen.

Fysiek en sociaal benadrukken

Om de mismatch op te lossen en antwoord te geven op andere transities die spelen, zoals mobiliteitstransitie en klimaattransitie, heb ik door ontwerpend onderzoek in de vorm van scenario’s een ontwerpkader opgesteld die begeleidt in het transformeren van de bloemkoolwijk. Het ontwerpkader is verdeeld over drie thema’s: kwaliteiten versterken en

behouden van een bloemkoolwijk, diversifiëren van de woningvoorraad en collectief samenleven. De kaders zijn verdeeld over drie schaalniveaus afhankelijk van de grootte van de ingreep en het eigenaarschap: op eigen kavel, in de straat/op het erf en op buurtniveau.

Dit project geeft de kwaliteiten van de bloemkoolwijk die in de wortels van het ontwerp zitten een nieuwe impuls of invulling zodat ze aansluiten bij de hedendaagse vragen ipv transities. Zo biedt de hiërarchische wegenstructuur een goede basis voor het meer autoluw inrichten van de woonerven, maar ook de buurtontsluitingswegen krijgen een inrichting meer gericht op het langzaam verkeer. De groenstructuur biedt een sterke basis om verder uit te breiden door woonerven te vergroenen en woningen te verduurzamen. Door het aanbrengen van hiërarchie en herkenningspunten in hoogte en architectuur wordt de oriëntatie in de wijk verbeterd. Benoem ook sociale (winst) punten.

Het oplossen van de mismatch tussen de woning en de bewoner begint bij de bewoner zelf.

Door splitsen/optoppen of het plaatsen van een kleine woning in de achtertuin is het voor bewoners zelf mogelijk om hun woonsituatie aan te pakken. Op het schaalniveau van de straat en buurt gaat het over grotere ingrepen uitgevoerd door, woningbouwcoop. gemeente of projectontwikkelaar, gefocust op de doelgroepen waar nu geen passende woningen voor zijn. Rondom het buurtcentrum of een leeg parkeerveld zijn de aangewezen plekken om iets aan het woningaanbod toe te voegen.

Een bloemkoolwijk wordt ook wel gekenmerkt door ‘het woonerf’ een gedeelde ruimte omringd door woningen bedacht als collectief verblijfsgebied, maar de laatste jaren ingericht als openbaar parkeerveld. In mijn ontwerp verandert het woonerf door collectieve ingrepen gericht op samenleven, gedeelde voorzieningen en verblijven weer in een gebied waar je elkaar ontmoet en samen leeft.

Mijn ontwerp voor de Maten laat zien hoe je door grote en kleine ingrepen met gebruik van de kwaliteiten van de bloemkoolwijk deze klaar kan maken voor de toekomst

INHOUDSOPGAVE

Voorwoord

Samenvatting

Inhoudsopgave

01. Inleiding

Fascinatie

Aanleiding

Projectgebied

Hoofdvraag

02. Bloemkoolwijken in Nederland

Geschiedenis en opkomst van de bloemkoolwijk

De bloemkoolwijk is overal te vinden

Kenmerken van een bloemkoolwijk

03. Analyse de Maten

De nieuwe uitbreidingswijk van Apeldoorn

Van schets tot realiteit

De eerste jaren

De Maten anno 2025

De veranderende maatschappij

Conclusie analyse

Opgaven wijkniveau

04. Analyse de Dreven

De dreven

Opgaven buurtniveau

05. Ontwerpend onderzoek

Vier scenario’s

Scenario 1: De uitbreidbare buurt

Scenario 2: De rationele buurt

Scenario 3: De samenwoonbuurt

Scenario 4: De collectieve buurt

Conclusie ontwerpend onderzoek

06. Ontwerp

Ontwerpvisie

Toolbox

De gezonde en klimaatbewuste wijk

Diversifiëren van de woningvoorraad

Collectief samenleven

De veerkrachtige buurt

07. Verhalen van bewoners

Het verhaal van Truus

Het verhaal van Anneleen

Het verhaal van Tim

Het verhaal van Henk en Carla

08. Het woonerf van de toekomst

Toolbox op heel de Maten

Het woonerf van de toekomst

Dankwoord

INLEIDING

Inleidende tekst over fascinatie, aanleiding, urgentie en het projectgebied

FASCINATIE

Stel je voor: opgroeien op een plek waar elke dag een avontuur is. Elk steegje wat je doorloopt leidt weer naar een nieuwe speeltuin. Auto’s hoor je in de verte, maar bang zijn hoeft niet, want auto’s zijn te gast. De kronkelige straatjes laten je opa en oma elke keer verdwalen wanneer ze op bezoek komen, maar jij kent elke uithoek van de wijk.

Het lijkt een utopie, maar dit is een korte beschrijving van hoe het leven van een kind in een bloemkoolwijk eruit kan zien. Als je de wijk kent zal je niet verdwalen, maar voor bezoekers lijkt elk kronkelig straatje op elkaar en wanneer je de verkeerde afslag neemt zal je echt niet op bestemming aankomen.

Ik vind bloemkoolwijken een zeer fascinerende stedenbouwkundige structuur hebben. Als kind ging ik naar de basisschool in een typische bloemkoolwijk. Kronkelige straatjes, grote rijtjes woningen, woonerven, autoluwe straten en veel groen om in te ravotten.

Bloemkoolwijken zijn tegenwoordig vaak in het nieuws en niet echt positief. Er wordt gesproken over verpaupering en vergrijzing. De bloemkoolwijk bungelt aan de onderkant van de woningmarkt.

De bloemkoolwijk wordt gekenmerkt door kleinschaligheid en fijnmazigheid. Bloemkoolwijken worden ook wel woonerfwijken genoemd. De

woonerven zijn bedacht als huizen geclusterd om een gedeeld binnenterrein perfect voor laagdrempelige ontmoeting. Een manier om collectiviteit te stimuleren.

Collectiviteit heb ik altijd een belangrijk onderwerp binnen stedenbouw gevonden. Iets wat in de wortels van de bloemkoolwijk zit, maar ook zeker niet nieuw is. Denk aan begijnhoven en esdorpen met een brink. Collectiviteit is iets wat altijd opgezocht wordt in ontwerpen in binnen samenlevingen.

Bloemkoolwijken zijn na 40 - 50 jaar toe aan een vernieuwingsslag. Voor bloemkoolwijken staat het stoplicht nog niet op rood, maar eerder op oranje. En juist daarom vind ik dat we nu actie moeten ondernemen.

Zijn de idealen van toen nog van toepassing? Dienen de bloemkoolwijken nog steeds de juiste doelgroepen of is onze maatschappij inmiddels zo verandert dat dit ook vraagt om een andere typologie in de bloemkoolwijk?

Met mijn afstudeerproject heb ik de kans aangegrepen ontwerpend onderzoek te doen naar de transformatie van bloemkoolwijken tot toekomstbestendige wijken die invulling geven aan demografische veranderingen.

Basisschool de Terp

AANLEIDING

Bloemkoolwijken zijn tegenwoordig veel in het nieuws. Hierin is te zien dat de meningen over bloemkoolwijken verdeeld zijn.

Experts en veel stedenbouwkundigen vinden het maar rommelige buurten zonder structuur, terwijl uit een enquête onder bloemkoolwijkbewoners blijkt dat vrijwel iedereen erg gelukkig is in een bloemkoolwijk. Behalve de bezoekers die verdwalen omdat ze de bestemming niet kunnen vinden. Veel bloemkoolwijken vertonen slijtage, woningen en woonomgeving bereiken het einde van hun levensduur. Veel huizen zijn van lage kwaliteit en het omliggende groen blijft maar groeien, waardoor de buurt een verwaarloosd karakter krijgt. Dit is deels te wijten aan slecht onderhoud door bezuinigingen op beheer en onderhoudskosten.

Bloemkoolwijken hebben een specifiek sociaaleconomisch profiel, bloemkoolwijken trekken vooral kwetsbare groepen aan door de eenzijdige woningvoorraad met weinig differentiatie in koop- en huurwoningen. Sommige bloemkoolwijken experimenteerden wel met andere woningtypes.

Nederland staat voor een grote transitieopgave. Er ligt een grote woningbouwopgave die gepaard gaat met meerdere uitdagingen. Klimaatverandering vraagt om duurzaamheid, waaronder energietransitie, mobiliteitstransitie, verbetering van biodiversiteit en natuurherstel. Ook binnen de woningbouwopgave is duurzaamheid een belangrijk thema. Daarnaast spelen ook sociale transities een rol.

De woningopgave is groot. Er moeten meer dan 1,65 miljoen woningen gebouwd worden voor 2050. Een te kort wat onder andere komt door de verandering in huishoudens.

Een van die grote sociale transities is de verandering van de samenstelling van huishoudens in Nederland. Er zijn steeds meer eenpersoonshuishoudens en dit percentage zal alleen maar toenemen. Dit betekent dat de vraag naar gezinswoningen afneemt en die naar eenpersoonshuishoudens toeneemt. Een grote groep eenpersoonshuishoudens bestaat

uit ouderen. Veranderingen in demografie, cultuur en behoeften zorgen onder andere voor veranderingen in de samenstelling van huishoudens.

Meer dan 28% van de Nederlandse woningvoorraad staat in een bloemkoolwijk, gebouwd tussen 1965 en 1985. Deze wijken, waren het antwoord op opgaves uit die tijd. Hoge woningnood, grotere vraag naar auto’s en experimentele woningbouw. Deze uitdagingen hebben we nog steeds. Ze zijn wel verandert en complexer geworden. Bloemkoolwijken zijn ongeveer 50 jaar oud en toe aan vernieuwing, herwaardering en/of opknappen.

Verandering van huishouden leidt ertoe dat mensen in een huis wonen dat niet aan hun behoeften voldoet. Ouderen wonen lange tijd in een te groot huis, terwijl gezinnen niet de mogelijkheid hebben om van hun flat te verhuizen naar een ruimere eengezinswoning. De belangrijkste reden hiervoor is dat er niet genoeg woningen zijn. Er is een mismatch en een tekort.

Ik ben ervan overtuigd dat een deel van de woningbouwopgave maar ook de veranderende huishoudenssamenstelling haar antwoord moet vinden in de bloemkoolwijken. Hierdoor kan de neerwaartse spiraal die de bloemkoolwijken meemaken verandert worden naar een veerkrachtige, robuuste wijk voor iedereen.

PROJECT GEBIED

Het projectgebied dat onderzocht gaat worden is de bloemkoolwijk De Maten in Apeldoorn. Met meer dan 11.000 woningen is dit de grootste bloemkoolwijk in heel Nederland. De meeste woningen zijn gebouwd in de periode tussen 1965 en 1985. Door de grootte van de wijk zijn er door de ´gehele´ bloemkoolwijk periode woningen gebouwd. Dit is ook terug te zien.

HOOFDVRAAG

Met mijn afstudeerproject ga ik de volgende hoofdvraag beantwoorden:

Hoe kunnen bloemkoolwijken veerkrachtig en toekomstbestendig worden door invulling te geven aan de demografische veranderingen en andere transities in de maatschappij?

Om antwoord te geven op de hoofdvraag ga ik drie onderwerpen onderzoeken. Deze onderwerpen staan gelijk aan mijn grootste interesses en sluiten aan bij de aanleiding, fascinatie maar ook de urgentie die er ligt.

Het eerste thema richt zich op het identificeren van de ruimtelijke, sociale en landschappelijke kwaliteiten die kenmerkend zijn voor de bloemkoolwijken. Ik breng in kaart welke elementen bijdragen aan de identiteit van de bloemkoolwijk. Hoe kunnen de kwaliteiten van een bloemkoolwijk behouden en versterkt worden, maar ook welke kenmerken laten we los in de toekomst?

BEHOUDEN EN VERSTERKEN KWALITEITEN VAN EEN BLOEMKOOLWIJK

Het tweede thema gaat in op de demografische veranderingen in de maatschappij en in het specifiek de bloemkoolwijken. Hoe zijn de veranderingen binnen de huishoudens en leeftijden binnen de inwoners verandert ten opzichte van de eerste bewoners. Vervolgens kijk ik naar de huidige woningvoorraad hoe deze ruimtelijk en programmatisch gediversifieerd kan worden.

WONINGVOORRAAD DIVERSIFIËREN NAAR DE VERANDERENDE HUISHOUDENSSAMENSTELLING

Het derde onderwerp gaat over collectiviteit en samenleven. Welke vormen van gedeelde voorzieningen, ruimtes en woningen kunnen bijdragen aan meer collectiviteit. Hoe kan de gedachte van het woonerf daar een rol in spelen of zelfs als basis bieden?

COLLECTIEF SAMENLEVEN

In de komende hoofdstukken ga ik deze drie thema’s afpellen waardoor een integrale benadering ontstaat waarin de vondsten van alle drie de ontwerpen leidden tot een integraal ontwerp.

Bloemkoolwijk periode en kenmerken

GESCHIEDENIS EN OPKOMST VAN DE BLOEMKOOLWIJK

Wat voorafging – de wederopbouw

De stadsuitbreidingen uit de jaren zeventig en tachtig verschillen sterk van die uit de eerdere naoorlogse periode. In de jaren zestig werd, op basis van bevolkingsprognoses van het CBS, uitgegaan van een sterke groei richting 20 miljoen inwoners. In de Tweede Nota over de Ruimtelijke Ordening (1966) koos het Rijk daarom voor ‘gebundelde decentralisatie’, waarbij groeikernen en groeisteden buiten de Randstad werden aangewezen, waaronder Apeldoorn. De Rijksoverheid stuurde hierbij nadrukkelijk op locatie en aantallen woningbouw.

De woningbouw uit de jaren vijftig en zestig was gebaseerd op modernistische stedenbouwkundige principes. Door schaalvergroting en industrialisatie van het bouwproces konden grote aantallen woningen in korte tijd worden gerealiseerd. Licht, lucht en ruimte vormden de uitgangspunten, met vrijstaande bouwvolumes in een doorlopende groene ruimte en een strikte functiescheiding.

Deze sterk gecentraliseerde en gerationaliseerde woningproductie leidde tot uniforme woonwijken met een eenvoudig en repetitief ruimtelijk patroon, vaak opgebouwd uit herhaalbare ‘stempels’. Richting het einde van de jaren zestig nam het aandeel hoogbouw toe. Grootschalige voorzieningen en werkfuncties werden buiten de woonwijken geplaatst, terwijl dagelijkse voorzieningen op loopafstand aanwezig bleven. De wijken waren overzichtelijk en vertoonden een grote stedenbouwkundige en architectonische samenhang.

De opkomst van een nieuwe utopie – de bloemkoolwijken

Tussen circa 1970 en 1985 werden bloemkoolwijken gerealiseerd als reactie op de grootschaligheid en uniformiteit van de wederopbouwwijken. Deze wijken kenmerken zich door een kleinschalige, fijnmazige wegen- en verkavelingsstructuur, die door gebruikers vaak als minder overzichtelijk wordt ervaren.

De sterke functiescheiding in eerdere wijken leidde tot een forse groei van het autogebruik en de aanleg van een uitgebreid snelwegennet. Steden groeiden snel en grote delen van Nederland veranderden van open landschap in uitgestrekte suburbane woongebieden. In het westen van het land groeiden steden steeds vaker aaneen, wat leidde tot grote aaneengesloten bebouwde zones.

Om deze ontwikkeling te sturen, werden in de Derde Nota over de Ruimtelijke Ordening (1974) opnieuw groeikernen aangewezen. Met financiële ondersteuning vanuit de Nota Volkshuisvesting (1972) leidde dit tot een snelle ruimtelijke ontwikkeling en sterke bevolkingsgroei in deze gemeenten. Tegelijkertijd werden groene bufferzones ingesteld om verdere verstedelijking te begrenzen.

Daarna – de Vinex-wijken (ca. 1995–2020)

Vanaf de jaren negentig richtte het ruimtelijk beleid zich met de Vinex-wijken op het principe van de compacte stad. Wonen, werken en voorzieningen werden sterker gebundeld binnen bestaande stadsgewesten om verdere versnippering van het landschap tegen te gaan.

Hoewel Vinex-wijken onderling verschillen in schaal en ligging, worden zij gekenmerkt door een grote mate van uniformiteit in woningtypen. De nadruk lag op grondgebonden koopwoningen voor middenklassegezinnen, wat resulteerde in relatief homogene woonmilieus. De ambitie om het autogebruik te beperken werd in de praktijk slechts deels gerealiseerd, mede door de perifere ligging en ruimtelijke opzet van de wijken.

Na 2005 verschoof de focus in nieuwbouw steeds meer naar duurzaamheid en economische haalbaarheid. Grootschalige ontwikkelgebieden vragen sindsdien om een nieuwe stedenbouwkundige benadering, waarin naast woningproductie ook leefkwaliteit en maatschappelijke waarde centraal staan.

DE BLOEMKOOLWIJK IS OVERAL TE VINDEN

Er zijn veel bloemkoolwijken in Nederland. Als je kijkt naar de kaart hiernaast zie je dat de bloemkoolwijken door heel Nederland verspreidt zijn. Waarbij de grootste hoeveelheid zich richting de randstad bevindt en een stuk minder in Zeeland en Drenthe. Dat de bloemkoolwijken door heel Nederland zitten heeft te maken met de decentralisatie koers die de overheid inzette in de periode van bouwen. Het decentraliseren van de randstad.

Ook is het goed om door middel van deze kaart te beseffen dat we ongelofelijk veel bloemkoolwijken in Nederland hebben. Er staan wel meer dan 1

miljoen woningen in bloemkoolwijken. Dit beslaat bijna 28% van de Nederlandse woningvoorraad.

Er bevinden zich meer bloemkoolwijken in de randstad, brabant en limburg. Dit is waarschijnlijk te herleiden door de toegewezen groeikernen van die tijd.

KENMERKEN VAN EEN BLOEMKOOLWIJK

De bloemkoolwijk wordt ook wel een woonerfwijk genoemd. Niemand weet wie het woord bloemkoolwijk bedacht heeft. Wat wel veel mensen kennen is het kenmerkende plaatje uit het Duitse boek ‘Ein Mensch wandert durch die Stadt’ geïllustreerd door stedenbouwkundige Walter Schwagenscheidt.

De bloemkoolwijken vormen een belangrijk kantelpunt in de Nederlandse stadsontwikkeling. De bloemkoolwijken zijn ongeveer gebouwd tussen 1970 en 1985. Deze ontwikkeling kwam deels voort uit de Nota Volkshuisvesting van 1972 die de middelen beschikbaar stelde voor woningbouw en beleid voor onder meer openbaar vervoer. Ook werd er vanuit de Tweede Kamer onder leiding van het kabinet Den Uyl meer gestuurd op participatie en woningbouw voor de laagste inkomensklasse. De bloemkoolwijk periode is een typische reactie op de wederopbouw. Waar de eerste wederopbouw projecten vooral uit grote, gelaagde repeterende volumes bestonden staat bij de bloemkoolwijk juist kleinschaligheid en fijnmazigheid centraal.

De grootste kenmerken van een bloemkoolwijk zijn:

• De wijk heeft een hierarchische wegenstructuur waarbij de auto vanaf de hoofdontsluiting steeds verder aftakte en uiteindelijk in het woonerf uitkwam

• De meeste huizen staan geclusterd om elkaar heen. Ook wel een woonerf genoemd. Bedacht als collectieve verblijfsruimte waar laagdrempelige ontmoeting plaats kan vinden.

• Het woonerf is een specifieke stedenbouwkundige opzet waarbij de clusters door middel van verkavelingsvormen en 45 graden hoeken om een gedeelde ruimte zijn gecentreerd.

• De meeste bloemkoolwijken zijn erg groen. Er loopt een dominante groenstructuur door de wijk, die via groene vingers verworven zit tot in de woonerven.

• De wijken zijn opgezet als zeer kindvriendelijke wijken. Er bevinden zich dan ook heel erg veel eengezinswoningen.

• Het was ook de tijd van de experimentele woningbouw waarbij architecten

experimentele woningtypen en verkavelingsstructuren toepaste op een aantal woningen in de wijk

• Elke buurt heeft haar eigen verzorgend centrum, waardoor voorzieningen op loopafstand zijn

• De wijken beschikken over veel wandelpaden.

Het oorspronkelijke collectieve karakter van de bloemkoolwijk staat hierdoor onder druk. De wijken zijn grotendeels ontworpen voor gezinnen, terwijl de huidige woonvraag sterk is veranderd. Huishoudens worden kleiner en het aandeel eenpersoonshuishoudens neemt toe. Deze ontwikkeling vraagt om andere woningtypen en een andere manier van omgaan met de bestaande woningvoorraad.

Bekende afbeelding bloemkoolwijk

ANALYSE DE MATEN

Een inventarisatie en analyse van de Maten op wijkniveau

DE NIEUWE UITBREIDINGSWIJK VAN APELDOORN

Apeldoorn bevindt zich in het oosten van Nederland. Apeldoorn wordt ook wel de hoofdstad van de Veluwe genoemd en grenst ook met de linkerzijde aan de Veluwe.

Aan de oost- en zuidzijde wordt Apeldoorn omringd door de snelweg A50 en A1. Dwars door Apeldoorn loopt het Apeldoornskanaal. Apeldoorn kent zo’n 141.000 inwoners. Apeldoorn heeft twee treinstations: Apeldoorn en de Maten.

De wijk de Maten is de tweede grote uitbreidingswijk Apeldoorn wordt in de Nota inzake Ruimtelijke Ordening van 1960 genoemd als ‘overloopstad’ ten behoeve van de deconcentratie. De eerste wijk die uitgewerkt wordt is Zevenhuizen. Tijdens de bouw van Zevenhuizen is er gestart met tekenen voor de Maten.

Veluwe
Centrum
A1
A50
Kanaal
Treinstation
Treinstation
Schets van Apeldoorn

VAN SCHETS TOT REALITEIT

De Maten bestond in de 13e eeuw voornamelijk uit veengebied. Door de ligging tussen de stuwwal van de Veluwe en de stroomrug van de Ijssel. In de 13e eeuw is dit gebied grotendeels ontgonnen. De Maten was onderdeel van het Wormensche veld.

13e eeuw

1858 - 1868

Het Apeldoornskanaal werd gegraven tussen 1858 en 1868. Aan het kanaal waren ter hoogte van de Maten boerderijen en een vuilnisbelt gevestigd.

In de 19e eeuw is naast het noordelijk gedeelte van de Maten ook de rest ontgonnen en omgetoverd tot grasland met een rechtlijnige verkavelingsstructuur.

19e eeuw

1923

In het uitbreidingsplan 1923 van Apeldoorn voornamelijk gericht op het westen van Apeldoorn.

Pas in het structuurplan van 1960 werd de Maten als woonwijk voor het eerst genoemd. Waar eerst alleen industrieplannen voor waren.

1960

1962 - 1966

Aanleiding grootschalige stadsuitbreiding kwam door de Nota inzake de Ruimtelijke Ordening (1960) waarin deconcentratie en Apeldoorn als ‘overloopstad’ genoemd werd. Eerst werd het plan voor Zevenhuizen uitgewerkt en de bouw gestart. Ondertussen werd er verder getekend aan de Maten.

Het eerste bestemmingsplan door de stedenbouwkundige dienst onder leiding van ir. Delver: een stemvork vorm voor 6.000 woningen met een groene kern noodzakelijk voor de waterhuishouding.

1965

Het tweede plan: De Maten als woonstructuur

1968 - 1970

Het derde plan: bestemmingsplan voor de Maten

De planvorming werd overgenomen door de Stedenbouwkundige Dienst stedenbouwkundigen Klaas Liesker en Willem Stigter. verder bordurend op de plannen van Van Eyck en Apon.

Door liberalisering van de volkshuisvesting kon er een gedifferenteerd woningaanbod ontwikkeld worden met ‘experimentele woningbouw’. Dick Apon en Van Eyck gingen aan de slag.

1973

DE MATEN KOMT OBSTAKELS TEGEN

Na het eerste plan voor de Maten met 6.000 woningen is er nog veel veranderd.

Tweede plan: De Maten als woonstructuur (19681970)

Ontworpen door Aldo van Eyck en Dick Apon. Door liberalisering van de volkshuisvesting konden woningbouwverenigingen een gedifferentieerder woningaanbod ontwikkelen. Door vele opstakels zoals het bruine water van de beoogde centrale waterpartij gaven van Eyck en Apon de opdracht terug.

Derde plan: bestemmingsplan voor de Maten ( 1972)

woningen nam toe naar 9.000 woningen, waar de dichtheid naar het zuiden toe steeds verder af zou nemen.

De realisatie: bestemmingsplan De Maten (1977) Na het bouwen van de eerste twee buurten: Matendreef en Matenhorst onderging het bestemmingsplan een herziening. Er werd verdicht naar ruim 11.000 woningen, voornamelijk in het zuidelijk gedeelte ten koste van de grootte van het Matenpark. De vertakking in de wegenstructuur is een rondweg geworden.

Vergelijk bestemmingsplannen 1968, 1972 en huidige situatie

De planvorming werd overgenomen door de Stedenbouwkundige Dienst stedenbouwkundigen Klaas Liesker en Willem Stigter. De verkeersstructuur met de vertakkende wegenstructuur bleef behouden. Het totale aantal

Bestemmingsplan 1968

Bestemmingsplan 1972 Realisatie 1977

DE EERSTE JAREN

De bloemkoolwijk de Maten gerealiseerd tussen 1970 en 1985. De wijk bestaat uit zes buurten en twee bedrijventerreinen. De woonbuurten: Matenhort, Matendreef, Matendonk, Matenveld, Matenhoeve en Matengaarde. De bedrijventerreinen: Matenhoek en Kuipersveld.

De wijk kent nu circa 26.000 inwoners. In 1991 kende de wijk haar hoogste aantal inwoners namelijk: 32257. De Maten is een typische bloemkoolwijk.

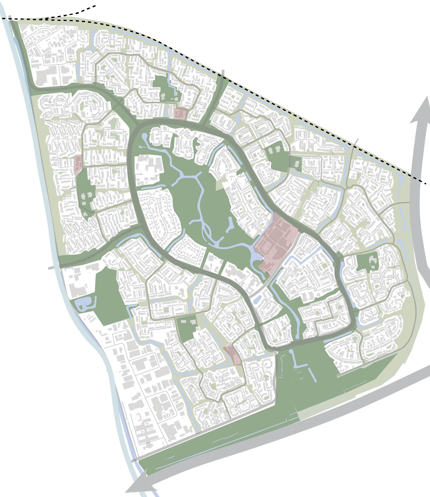
De wijk wordt omsloten door het spoor aan de noordoost zijde, de A50, de A1 en aan de westzijde het Apeldoorns kanaal.

‘De eerste bewoners van de Maten in 1972’

´Maten moest een woonwijk worden voor iedereen.´

MENSEN IN MATEN

Voor de eerste bewoners van de Maten is er een boekje uitgebracht, genaamd: “Mensen in Maten”.

De Maten bedacht als wijk waarbij verschillende buurten rondom het wijkpark liggen. De woonbuurten zijn opgebouwd uit meerdere woningbouw complexen met elk een eigen buurtmidden.

De Maten is bedacht als zeer groene wijk, meer dan één zevende bestaat uit groen. In het midden het grote Matenpark met groene vingers de wijk in en bomenlanen op de hoofdontsluitingswegen.

De Maten moest een echte gezinswijk worden.

De huizen in de Maten mochten niet te veel op elkaar lijken qua uiterlijk. Daarnaast was er voornamelijk laagbouw gepland met incidentele middelhoogbouw langs de laan van de Maten.

Mensen in Maten: “Groenvoorzieningen”

Mensen in Maten: “Soorten woningen”

Mensen in Maten: “Wijkindeling”

Het woonerf is een intiem pleintje rondom geclusterde woningen met maar één ingang voor de auto waarbij de weg doodloopt.

Een woonbrink is een pleintje met twee ingangen, waar ook auto´s de brink passeren.

De Maten, een groene gezinswijk, met idyllische uitgangspunten. Uiteindelijk zijn er 11.000 woningen gerealiseerd. 2000 meer dan de voorgestelde 9000 woningen.

Mensen in Maten: “Woonerf”
Mensen in Maten: “Woonbrink”

DE MATEN ANNO 2025

aan de voorzijde

Achterkanten naar grasveld

Bergingen
Woondek
Parkeren op het woonerf Schuttingen aan rand entree woonerf
Mee ontworpen carporten voorzijde woning

Impressie uitbreidbare woning

Woonerf

Woningen aan groenstructuur

Achterkanten woningen naar klein speelveld

HIERARCHISCHE WEGENSTRUCTUUR VORMT EEN GOEDE BASIS

‘De automobilist zal, naarmate hij verder de wijk in stuurt, steeds meer gas moeten terugnemen’

De hoofdontsluitingsweg is de Laan van Maten. Vanaf deze hoofdweg vertakken de wegen steeds verder tot kronkelige paadjes die de woonerven bereiken (hiërarchische wegenstructuur.

De Maten heeft een eigen treinstation en over de hoofdontsluitingsweg rijden twee bussen. Op een klein stukje door de Matenveld na rijden de bussen

niet door de buurten heen. Net niet alle woningen zijn binnen een straal van 400 meter vanaf de bushalte te bereiken.

Wandel en fietspaden gaan langs de hoofdontsluitingswegen en door de groenstructuren. De Maten is voor alle verkeersmodaliteiten redelijk goed ontsloten.

Infrastructuur de Maten

De buurtontsluitingswegen hebben een zeer brede opzet en zijn grotendeels geasfalteerd. Ondanks dat hier maar 30 km/u gereden mag worden. Ook zijn voornamelijk de achterkanten van woningen naar deze wegen gericht.

Buurtontsluitingsweg Imkersdreef

Laan van Maten

De Maten kent veel fiets- en wandelpaden. De hoofd fietswegen lopen voornamelijk langs de randen van de wijk en de Laan van de Maten.

Vanuit daar gaan de fietswegen de wijken in en veranderen al snel in gedeelde erven met de auto of gemixte fiets- en wandelpaden.

Dit zelfde geldt voor de wandelpaden.

Langzaamverkeerroutes de Maten

Veel fietspaden en wandelpaden lopen aan de achterkanten van woningen in het groen en langs hoge schuttingen. Hierdoor is er op deze plekken weinig sociale veiligheid.

Er zijn ook minder doorlopende routes in de buurten zelf. Deze worden vaak opgebroken in materialisering in de woonerven.

De woonerven bedacht als gedeelde ruimten, worden vooral opgevuld door auto’s. Bewoners zijn gewend de auto voor de deur te parkeren, wat resulteert in openbare parkeervelden in plaats van ontmoetingsruimten.

Fiets/wandelpaden aan achterkanten
Laan van Maten

STERKE GROENSTRUCTUUR EN HOGE BIODIVSERITEIT

De Maten had als één van de belangrijke uitgangspunten dat het een groene wijk moest worden. De groene long het Matenpark wat dwars door de wijk loopt. Door het park lopen doorgaande fiets- en wandelpaden.

Het water in het Matenpark heeft een bruine kleur doordat het zeer ijzerhoudend is.

Het Matenpark staat d.m.v. groene vingers in verbinding met de omliggende buurten. Elke buurt

heeft haar eigen groene buurtmidden waarin zich vrijliggende voorzieningen bevinden zoals scholen.

Langs de hoofdontsluitingswegen staan grote brede volwassen bomen rijen in een breed wegprofiel met veel ruimte voor groen.

De Maten is een zeer groene wijk met een belangrijke groene structuur als belangrijke drager.

Groenstructuur de Maten

Het Matenpark heeft veel volwassen groen en een hoge biodiversiteit.

Elk buurtmidden is bedacht als groene ontmoetingsplek.

Matenpark
Groene buurtmidden

De openbare ruimte is aan vernieuwing toe. Zeker in de twee eerst gebouwde buurten: Matendreef en Matenhorst. Het eerste groot onderhoud is uitgevoerd, maar er liggen nog meer kansen.

Veel achterkanten naar de groene zones. Ook is het groen op sommige plekken erg verwilderd. Er is geen fijne overgang tussen privé en openbaar gebied.

Verhard woonerf
Achterkanten naar groen

BUURTCENTRA

EN BUURTMIDDENS

Elke buurt heeft haar eigen groene buurtmidden. Dit is een zone waarbij de auto te gast is en er een groen park is waar vaak ook een schoolgebouw zich in bevindt.

De buurten Matendreef, Matenhorst en Matenveld hebben elk een eigen buurtcentrum waar zich dagelijkse voorzieningen zich bevinden. De wijken Matengaarde, Matendonk en Matenhoeve zijn toegewezen op het grote wijk winkelcentrum de Eglantier gelegen in het midden van de wijk.

Verspreidt door de wijk bevinden zich nog losse voorzieningen, vaak in de vorm van een basisschool of buurtvoorziening.

In de wijk de Matengaarde liggen de meeste voorzieningen om het Matenpark heen. Zoals een middelbare school, ziekenhuis, woonzorgcomplex en andere grotere voorzieningen.

Voorzieningenstructuur de Maten

In en rondom de bedachte groene buurtmiddens is vooral veel verharding met parkeerplaatsen te vinden. Ook liggen de functies gescheiden van elkaar in het groen en zijn er weinig rust plekken te vinden.

Verhard buurtmidden

Achterstallig onderhoud bij de buurtcentra en scholen. De centra hebben veel achterkanten met dichte plinten. Er zijn weinig rust of recreatie plekken te vinden. Ook de schoolgebouwen zijn aan vernieuwing toe.

Buurtcentrum De Maat
School

WOONERVEN

De wijk de Maten is een typische bloemkoolwijk waarbij de buurtontsluitingswegen overgaan in een woonerf waar woningen rondom een gedeelde ruimte zijn geclusterd.

Er werd veel ingezet op kleinschaligheid en fijnmazigheid. Het woonerf moest een collectieve ruimte worden waar bewoners elkaar laagdrempelig konden ontmoeten.

Woonerf in de Matendonk

Woonerf in de Matendreef

WONINGSTRUCTUUR

´Maten moest een woonwijk worden voor iedereen.´

De Maten kent net als elke bloemkoolwijk voornamelijk woningen voor gezinnen, eengezinswoningen (zo’n 80%). De wijk bestaat voornamelijk uit rijtjeswoningen.

Hoogbouw bevindt zich voornamelijk langs de Laan van Maten en bij de winkelcentra.

Eenlaagse ouderen woningen zijn verspreidt door de hele wijk. De vrijstaande woningen bevinden zich in het midden van de wijk.

De Maten kent veel grote woningen. De meeste woningen zijn hier tussen de 100 en 150 m2. 30% is kleiner dan 100 m2.

De huurwoningen zitten vooral in de gestapelde bebouwing en in ouderenwoningen. Een deel van de huurwoningen is inmiddels verkocht.

Woningtypes in de Maten, bron: Apeldoornincijfers.nl N 200m 400m

Woningstructuur de Maten

EXPERIMENTELE WONINGBOUW

De bloemkoolwijk periode is ook de periode van de experimentele woningbouw. Ook in de Maten zijn er meerdere voorbeelden hiervan.

In de buurt de Matenveld bevindt zich de uitbreidbare woning. Woningen voor lage inkomens die later uitbreidbaar zouden zijn. Ontworpen door architect van Duivenbooden. In de buurt de Matendreef bevindt zich de versprongen woning. L-vormige woningen die als het ware in elkaar haken. Het buurtje heeft

De

De versprongen woning (stadsarchief)

ook een L-vorm waardoor er kleine woonerven ontstaan aan de voorkanten of achterkant want ook deze verspringt telkens.

De gemeente Apeldoorn is bezig deze en andere plekken aan te wijzen als monumenten.

uitbreidbare woning (stadsarchief)
De versprongen woning (stadsarchief)
De uitbreidbare woning (eigen foto)

INWONERS VAN DE MATEN

Bevolking naar leeftijd 2000 tot 2025 (bron: Apeldoornincijfers)

Verhouding huishoudens 2011 tot 2025 (bron: Apeldoornincijfers)

Waar de Maten vroeger gebouwd is als een echte gezinswijk. Wijzen de bewoners er nu op dat er helemaal niet meer zo veel gezinnen wonen.

Het totaal aantal bewoners per buurt neemt af. In de afgelopen 20 jaar is het aantal bewoners zo’n 15% gedaald.

De leeftijdsgroep 65+ neemt toe, terwijl andere leeftijdsgroepen afnemen per buurt

Het aantal personen per huishouden neemt af. De groep alleenstaanden en eenoudergezinnen nemen toe, de rest neemt af.

Het aantal kwetsbare personen in de wijk neemt toe (eenzaam en armoede)

Daarnaast is er weinig doorstroming, dit kan ook komen door het beperkte aantal passende woningen.

DE VERANDERENDE MAATSCHAPPIJ

Het aantal eenpersoonshuishoudens is in heel

Nederland in de afgelopen jaren flink toegenomen. De verwachting is dat in het jaar 2070 44% van de huishoudens bestaat uit eenpersoonshuishoudens.

Wanneer we kijken hoe het aantal huishoudens naar leeftijd toe neemt en wat hier de prognose voor is lijkt het erop dat vooral de groep 65+ en 80+ veel zullen toenemen. In 2070 is de verwachting dat 28% van de alleenstaanden 75+ is.

Voorspelling huishoudens (bron: CBS)

Voorspelling verhouding leeftijdsgroepen bevolking (bron: CBS)

Dit vraagt om een verandering in de woningen die we bouwen en dit geldt niet alleen voor de Maten!

De Maten heeft een toenemend aantal ouderen en eenpersoonshuishoudens, terwijl de woningvoorraad in de wijk grotendeels bestaat uit eengezinswoningen (zo’n 80%).

Er is een mismatch tussen het woningaanbod in de bloemkoolwijk de Maten en de bewonersgroepen.

CONCLUSIES ANALYSE - De Maten

De hiërarchischer wegenstructuur is een goede basis. Alleen tijdens het ontwerp is er rekening gehouden met de auto, maar de hoeveelheid auto’s die er uiteindelijk zijn gekomen is niet op gerekend

De auto is te dominant

Het Matenpark is een belangrijke groene drager

Wateroverlast in woonerven en op de Laan van Maten

De buurtmiddens zijn geen groene ontmoetingsplek zoals ze bedacht zijn

Bedacht als gezinswijk, nu veel meer ouderen zonder passende woningen (monotone woningvoorraad)

- eenzaamheid en armoede liggen ook op de loer

Winkelcentra en openbare ruimte in het noorden zijn aan vernieuwing toe

Langzaamverkeerroutes en groene zones aan de achterkanten van woningen zorgen voor slechte oriëntatie en weinig sociale veiligheid

Woonerven zijn verhard en meer een openbaar parkeerveld, dan het bedachte collectieve erf

Voorzieningen erg gescheiden van elkaar, weinig werkgelegenheid in de buurten

Druk op de openbare ruimte neemt toe naar het zuiden van de wijk

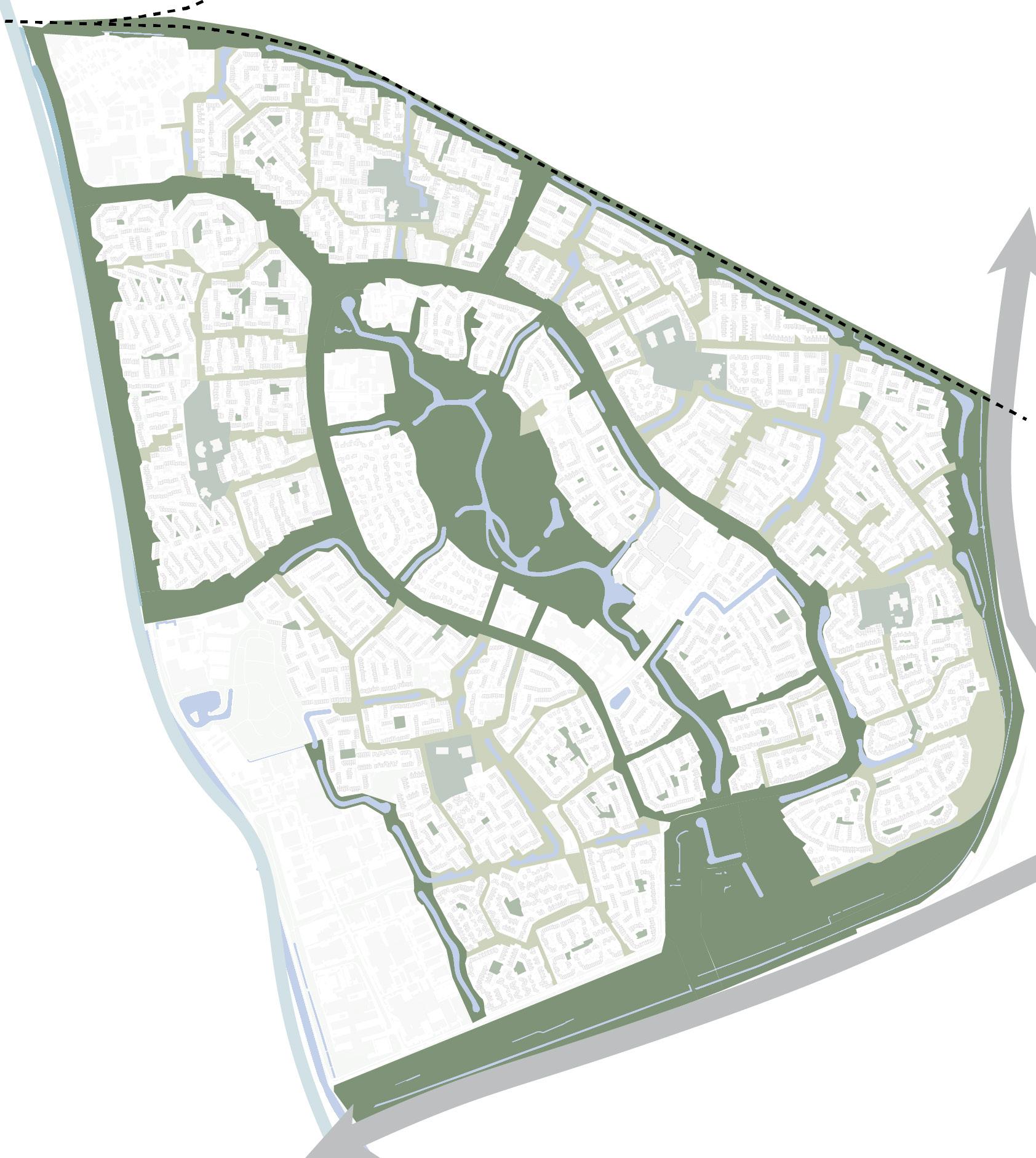
Conclusiekaart De Maten

Matenpark belangrijke groene drager

Anonieme wijkentrees

Brink ontmoetingsplek in de buurt

Slechte verbinding brinken onderling

Druk op OR neemt toe richting het zuiden

Winkelcentrum aan vernieuwing toe

Wateroverlast op Laan van Maten

Kwaliteit openbare ruimte komt onder druk te staan naar het zuiden toe

OPGAVEN WIJKNIVEAU

BEHOUDEN EN VERSTERKEN KWALITEITEN VAN EEN BLOEMKOOLWIJK

Opgaves

Auto meer weren, meer autoluw

Groenstructuur drager behouden en versterken

Oriëntatie in de wijk verbeteren

Voorzieningen aanbod verbeteren en clusteren

WONINGVOORRAAD DIVERSIFIËREN NAAR DE VERANDERENDE HUISHOUDENSSAMENSTELLING

Opgaves

Bewoners in hun wijk laten wonen, door woningvoorraad diversifiëren

Flexibiliteit in het woningaanbod aanbrengen

COLLECTIEF SAMENLEVEN

Opgaves

Buurtmidden als ontmoetingsplek behouden en sociaal versterken

Woonerf weer als collectief verblijfsgebied

Sociaal veilige langzaam verkeerroutes

ANALYSE DE DREVEN

Een inventarisatie en analyse van een van de buurten in de Maten

DE DREVEN

De Maten is een grote wijk met zo’n 11.000 woningen om een goede analyse uit te voeren is het belangrijk ook in te zoomen op het buurten erfniveau. Hiervoor heb ik gekozen voor een uitsnede uit de Matendreef.

Kaart wijk met buurtje de Dreven

Het buurtje de dreven heeft een typische bloemkoolwijk opzet. Daarnaast zit in dit buurtje een buurtmidden, waardoor het goed vergelijkbaar is met andere buurten in de Maten.

Opbouw:

• Auto ontsluiting hiërarchisch

• De woningen zijn bijna altijd grondgebonden eengezinswoningen

• Aan de Laan van Maten en bij het buurtcentra bevindt zich hogere bebouwing

• Eenlaagse ouderen woningen zijn door de hele wijk te vinden

• Elke buurt heeft een buurtmidden hierin ligt de school en het buurtcentrum de groene stroken bevinden zich voornamelijk ook de voetpaden en fietspaden

Stedenbouwkundige opzet de Dreven

Het buurtje de Dreven heeft zoals eerder genoemd een typische bloemkoolwijk opbouw. Er zijn een aantal dingen die opvallen.

Er zit onderscheidt in het noordelijke en zuidelijke gedeelte. Het noordelijke gedeelte zijn tweelaagse woningen met plat dak met de voorzijde naar het woonerf en de achtertuinen vaak naar elkaar. Hierdoor zitten de achtertuinen ook naar de groenzone.

Het zuidelijke buurtje zijn tweelaagse woningen met kap die ook met de voorkanten naar elkaar staan met ertussen een smal voetpad en juist de achtertuinen met garages naar het woonerf gericht. Ook hier geen voorkanten naar de groenzone.

De scholen en het winkelcentrum worden van elkaar gescheiden door wegen en het groene buurtmidden. Elk van deze functies liggen gescheiden van elkaar.

Inventarisatie de Dreven
N 30m 60m

VAN EN NAAR

VAN subtiele overgangen NAAR dichte carports

Plekken zoals deze bergingen die een half open overgang tussen privé en openbaar creëren zijn in de loop van de jaren verandert naar dichte bergingen en carports zonder enige sociale controle op het woonerf.

VAN subtiele overgangen

NAAR dichte carports

VAN gedeelde ruimte NAAR openbaar parkeerveld

Het woonerf is bedacht als gedeelde ruimte. Daarom ook het verkeersbord waarop je fiets,auto,kind, huis en spel tegelijk ziet. De woonerven zijn ontworpen/bedacht als collectief verblijfsgebied, maar zijn inmiddels eerder openbare parkeervelden doordat ze grotendeels ingevuld worden door de auto. Ook zijn er veel dichte voorkanten en weinig sociaal contact

VAN gedeelde ruimte

NAAR openbaar parkeerveld

VAN groene ontmoetingsplek NAAR gescheiden functies

De auto en parkeervelden scheiden het buurtcentrum van het groene buurtmidden. Ook de scholen en kinderopvang worden gescheiden door de auto. Ook is er maar één bankje in het buurtmidden te vinden en zitten vooral achterkanten van woningen en gescheiden schoolpleinen naar het buurtmidden toe. Daarnaast is het buurtcentrum aan vervanging toe.

VAN groene ontmoetingsplek

NAAR gescheiden functies

VAN groen voor subtiele overgang NAAR dichte schuttingen

In het ontwerp werd een klein stukje publiek groen vaak aan het einde van de achtertuinen gepositioneerd. Dit samen met een stukje meeontworpen open schutting moest zorgen voor lage erfafscheidingen. Tegenwoordig zijn de stukjes publiek groen geclaimd en is er een hoge schutting omheen gezet. Hierdoor is er weinig sociale

INWONERS MATENDREEF

VAN subtiele overgangen NAAR dichte carports

VAN subtiele overgangen

Bevolking in leeftijdsgroepen 2000 -2025 (bron: ApeldoorninCijfers)

Net als op wijkniveau laten ze cijfers van de Matendreef hetzelfde zien.

Het totaal aantal bewoners per buurt neemt af. In de afgelopen 20 jaar is het aantal bewoners zo’n 15% gedaald.

De leeftijdsgroep 65+ neemt toe, terwijl andere leeftijdsgroepen afnemen per buurt

NAAR dichte carports

Verandering huishoudens 2011-2025 (bron: ApeldoorninCijfers)

Het aantal personen per huishouden neemt af. De groep alleenstaanden en eenoudergezinnen nemen toe, de rest neemt af.

Het aantal kwetsbare personen in de wijk neemt toe (eenzaam en armoede)

Daarnaast is er weinig doorstroming, dit kan ook komen door het beperkte aantal passende woningen.

OPGAVEN BUURTNIVEAU

De analyse van De Dreven laat zien dat de buurt in haar opzet sterk geworteld is in de oorspronkelijke principes van de bloemkoolwijk: een hiërarchische verkeersstructuur, een fijnmazig netwerk van woonerven en een groen buurtmidden als sociaal hart. In de huidige situatie functioneren deze elementen alleen niet meer goed.

De ruimtelijke structuur is in de loop der tijd steeds sterker gefragmenteerd geraakt. De sociale controle en het collectieve karakter van de woonerven is afgenomen. Tegelijkertijd is de auto dominant geworden in de openbare ruimte. Waardoor de verblijfskwaliteit van de buurt onder druk staat.

Het groene buurtmidden, oorspronkelijk bedoeld als ontmoetingsplek en verbindend element tussen wonen en voorzieningen, functioneert nu voornamelijk als een geïsoleerde groenzone. De scheiding tussen het buurtcentrum, scholen en het groen, in combinatie met een gebrek aan actieve randen en verblijfsmogelijkheden, beperkt het gebruik en de sociale betekenis van deze ruimte.

De opgaven voor De Dreven liggen daarmee niet zozeer in het introduceren van nieuwe structuren, maar in het herwaarderen en versterken van de bestaande.

Conclusiekaart de Dreven

De opgaven voor de Dreven komen sterk overeen met de opgaven die er voor de wijk de Maten zijn.

Door de woonerven opnieuw in te richten als collectieve verblijfsruimten, de relatie tussen woningen en openbare ruimte te verbeteren en het buurtmidden programmatisch en ruimtelijk te activeren, kan De Dreven weer functioneren als een samenhangend en sociaal buurtje binnen De Maten.

COLLECTIEF SAMENLEVEN

Opgaves

Buurtmidden als ontmoetingsplek behouden en sociaal versterken

Woonerf weer als collectief verblijfsgebied

BEHOUDEN EN VERSTERKEN KWALITEITEN VAN EEN BLOEMKOOLWIJK

Opgaves

Woonerven meer autoluw

Groense verbindingszone drager behouden en versterken

Oriëntatie in de wijk verbeteren

Programma versterken rondom scholen passend bij de doelgroepen - Winkelcentrum vernieuwen

WONINGVOORRAAD DIVERSIFIËREN NAAR DE VERANDERENDE HUISHOUDENSSAMENSTELLING

Opgaves

Bewoners in hun wijk laten wonen, door woningvoorraad diversifiëren

Flexibiliteit in het woningaanbod aanbrengen

ONTWERPEND ONDERZOEK

Scenario’s om mogelijke toekomstbeelden te verkennen 05

VIER SCENARIO’S

Dit hoofdstuk beschrijft het ontwerpend onderzoek dat is uitgevoerd naar aanleiding van de analyse en inventarisatie van de wijk De Maten. Waar de analyse inzicht biedt in de ruimtelijke structuur, het gebruik en de knelpunten van de bloemkoolwijk, vormt het ontwerpend onderzoek het instrument om mogelijke toekomstbeelden te verkennen. Scenario’s worden hierbij ingezet als methode om ruimtelijke en maatschappelijke vraagstukken niet eenduidig op te lossen, maar in samenhang en vanuit verschillende perspectieven te onderzoeken.

Op basis van de analyse en de waargenomen maatschappelijke transities zijn vier scenario’s geformuleerd. Deze scenario’s zijn geen eindbeelden, maar onderzoeksmodellen die ruimte bieden om in extremen te denken en uiteenlopende ontwikkelrichtingen te verkennen. Door het expliciet opzoeken van uitersten ontstaat inzicht in de ruimtelijke consequenties van verschillende keuzes en wordt duidelijk waar spanningen, kansen en overlap ontstaan.

De scenario’s zijn gepositioneerd binnen een assenstelsel dat is opgebouwd aan de hand van twee centrale uitgangspunten die richtinggevend zijn voor de ontwerpstrategie.

Behoud van de wijkstructuur vs. Loslaten van de wijk structuur

Wordt er door ontworpen op de kleinschaligheid en fijnmazigheid de stedenbouwkundige opzet van de bloemkoolwijk. Of wordt deze structuur losgelaten en wordt er ook sloop nieuwbouw toegepast.

Het tweede uitgangspunt richt zich op het streven naar collectiviteit. Deze as verkent het spanningsveld tussen individuele en collectieve ingrepen. Een wijk met 80% eengezinswoningen, terwijl haar bewoners ouder worden en andere behoeftes hebben is de vraag. Kunnen individuele interventies aan deze verandering in woning vraag bijdragen of is dit voornamelijk mogelijk met collectieve interventies.

Door deze twee assen te combineren ontstaan vier scenario’s, die elk een eigen ruimtelijke benadering laten zien. Op de volgende pagina’s is het assenstelsel te zien en de uitwerkingen van de vier scenario’s.

ASSENSTELSEL

De Maten staat op een kruispunt. De wijk is gerealiseerd binnen de stedenbouwkundige opzet van fijnmazigheid en kleinschaligheid. Daarnaast is er in de periode van realisatie voor het eerst veel aan participatie gedaan. Ook is een belangrijk kenmerk natuurlijk het woonerf als collectief verblijfsgebied. De wijk is opgezet met een grote collectieve gedachte.

Met deze vier scenario’s heb ik ruimte gecreëerd om in extremen te denken en verschillende

oplossingsrichtingen te verkennen. Het assenstelsel gaf de ruimte om meer ‘out of the box’ te denken.

Voor elk scenario zijn de condities bepaald en aan de hand daarvan bouwstenen geformuleerd.

Individualistische oplossingen

De Maten Nu

Behoud van de wijkstructuur (geen sloopnieuwbouw)

De Maten 1985

Collectieve oplossingen

Loslaten van de wijkstructuur (Sloopnieuw bouw)

SCENARIO 1 : DE UITBREIDBARE BUURT

In dit scenario transformeert de buurt vanuit de uitgangspunten individuele oplossingen binnen de bestaande bebouwing. Geen sloop, geen grote herverkaveling elke ingreep wordt gedaan vanuit eigen belang. Vanuit de gemeente zijn de volgende spelregels opgelegd:

• Slopen is niet mogelijk

• Het uitvoeren van een ingreep op eigen terrein verreist gedaan te worden binnen de verduurzamings eisen

• Er geldt een maximaal volume per kavel

• Extra parkeermogelijkheden dienen op eigen terrein opgelost te worden

Bewoners transformeren hun woning stap voor stap. Elke kavel wordt een mini-experiment, waarmee de wijk langzaam verandert zonder grootschalige ingrepen.

Ook projectontwikkelaars en woningcorporaties transformeren uit eigen belang. Ook voor hun gelden de spelregels.

WONEN IS EEN VRIJE EXPRESSIE

Woningvoorraad wordt gediversifieerd door woningen te splitsen, op te toppen, verhuren en of aan te bouwen.

Kamer verhuur Aanleunwoning Optoppen/splitsen

WERKEN OP ZOLDER

Werken vanuit huis wordt gestimuleerd, dit scheelt woonwerk verkeer en zorgt voor meer productiviteit.

Thuiswerken

VOORZIENINGEN AAN HUIS

Aan huis geleverd. Voorzieningen zoals de huisarts en boodschappen komen aan huis. Je hoeft er de deur niet meer voor uit.

Zorg aan huis

OPENBARE RUIMTE ALS KLIMAATZONE

De openbare ruimte is ingericht om van A naar B te komen. Groene zones zijn klimaatadaptief ingericht.

MOBILITEIT: AUTO IS DOMINANT

Extra ruimte voor parkeerplaatsen moet op eigen kavel worden opgelost. Bewoners zonder auto maken gebruik van een taxi service.

Auto op eigen kavel Taxi service

SCENARIO 2 : DE RATIONELE BUURT

In dit scenario transformeert de buurt vanuit de uitgangspunten individuele oplossingen met alleen sloopnieuwbouw ingrepen. Ook hier wordt elke ingreep uit eigen belang gedaan. Vanuit de gemeente zijn de volgende spelregels opgelegd:

• Sloopnieuw bouw mag

• Het uitvoeren van een ingreep op eigen terrein verreist gedaan te worden binnen de verduurzamingseisen

• Er geldt een maximaal volume per kavel

• Extra parkeermogelijkheden dienen op eigen terrein opgelost te worden

Door sloopnieuwbouw maakt de kleinschaligheid plaats voor een efficiënte herverkaveling met meer woningen en

WONEN IN EFFICIËNTE HERVERKAVELING

Sloopnieuwbouw vanuit individueel belang. Grote ingrepen op lege plekken maakt dat ouderen bewoners naar een appartement verhuizen, waardoor het mogelijk is ook een heel woonerf in één keer aan te pakken.

moderne typologieën.

Ook projectontwikkelaars en woningcoörporaties passen sloopnieuwbouw toe. Ook voor hun gelden de spelregels.

WERKEN OP ZOLDER

Werken vanuit huis wordt gestimuleerd, dit scheelt woonwerk verkeer en zorgt voor meer productiviteit.

Thuiswerken

VOORZIENINGEN AAN HUIS

Aan huis geleverd. Voorzieningen zoals de huisarts en boodschappen komen aan huis. Je hoeft er de deur niet meer voor uit.

Zorg aan huis

ZORG SERVICE

Groot appt. complex Rug aan rug Klein appt. complex

OPENBARE RUIMTE ALS KLIMAATZONE

De openbare ruimte is ingericht om van A naar B te komen. Groene zones zijn klimaatadaptief ingericht.

MOBILITEIT: AUTO IS DOMINANT

Extra parkeerplaatsen op eigen kavel of betaalde parkeergarage. Bewoners zonder auto maken gebruik van een taxi service.

Auto op eigen kavel Taxi service Parkeergarage

TAXI

SCENARIO 3 : DE SAMENWOON BUURT

In dit scenario transformeert de buurt vanuit de uitgangspunten collectieve oplossingen binnen de bestaande bebouwing. Bij elke ingreep wordt er omgekeken naar de andere bewoners. Vanuit de gemeente zijn de volgende spelregels opgelegd:

• Slopen is niet toegestaan

• Ingrepen moeten op een duurzame manier bij dragen aan klimaatadaptiviteit

• Ingrepen die invloed hebben op mobiliteit, woning aantal enz. moeten collectief binnen het cluster opgelost worden.

Bewoners wonen in kleine clusters met gedeelde voorzieningen, tuinen en mobiliteit. Collectiviteit vormt de basis.

WONEN

OP DE BOVENVERDIEPING

De begane grond van elke woning is gedeeld. Wonen wordt op de tweede en eventueel derde verdieping gedaan. De begane grond wordt op basis van cluster behoeftes ingevuld.

Woonzorg cluster Studio Optoppen/splitsen + +

WERKEN IN EN OM HET HUIS

Er zijn co-work plekken en een groot onderdeel van werken zijn de ‘corvee’ klussen binnen het cluster.

Thuiswerken

Ook projectontwikkelaars en woningcorporaties doen collectieve ingrepen. Ook voor hun gelden de spelregels.

AFGESTEMDE VOORZIENINGEN NABIJ Voorzieningen worden zo veel mogelijk binnen het cluster naar behoefte ingevuld.

Corvee cluster Fysio/huisarts Kinderopvang

GEDEELDE OPENBARE RUIMTE

Prive tuinen zijn verdwenen evenals de verharde woonerven. Er is veel ruimte die de bewoners per cluster kunnen inrichten.

Moestuin

DEELMOBILITEIT

Deelmobiliteit is het uitgangspunt. Dit gaat verder dan alleen auto, maar ook fiets, busje en een buurt bus.

Taxi service Deelmobiliteit

BUURTBUS

SCENARIO 4 : DE COLLECTIEVE BUURT

In dit scenario transformeert de buurt vanuit de uitgangspunten collectieve oplossingen door middel van sloopnieuwbouw. Bewoners en projectontwikkelaars werken samen aan vernieuwing van de wijk. Vanuit de gemeente zijn de volgende spelregels opgelegd:

• Sloopnieuw bouw mag

• Het uitvoeren van een ingreep op eigen terrein verreist gedaan te worden binnen de verduurzamingseisen

• Er geldt een maximaal volume per kavel

• Extra parkeermogelijkheden dienen op eigen terrein opgelost te worden

De wijk wordt getransformeerd naar een netwerk van meergeneratiehoven, kleinschalige appartementen complexen en

meerdere collectieve hubs. Collectiviteit vormt de basis.

Ook projectontwikkelaars en woningcoörporaties doen collectieve ingrepen. Ook voor hun gelden de spelregels.

WONEN IN NIEUWE TYPOLOGIEËN

Nieuwbouw op lege plekken en eenlaagse bebouwing om de woningvoorraad te

WERKEN IN EN OM HET HUIS

Er zijn cowork plekken en een groot onderdeel van werken zijn de ‘corvee’ klussen binnen het cluster.

Thuiswerken

Corvee cluster

AFGESTEMDE VOORZIENINGEN NABIJ

Voorzieningen worden zo veel mogelijk binnen het cluster naar behoefte ingevuld.

Fysio/huisarts Kinderopvang

GEDEELDE OPENBARE RUIMTE

Prive tuinen zijn verdwenen evenals de verharde woonerven. Er is veel ruimte die de bewoners per cluster kunnen inrichten.

Moestuin

DEELMOBILITEIT

Deelmobiliteit is het uitgangspunt. Dit gaat verder dan alleen auto, maar ook fiets, busje en een buurt bus.

Taxi service Deelmobiliteit

BUURTBUS

CONCLUSIE ONTWERPEND ONDERZOEK

De scenario’s geven een breed scala van ingrepen gebaseerd op extreme uitgangspunten. Met de scenario´s heb ik gekeken vanuit extreme uitgangspunten hoe deze bij kunnen dragen aan de opgaves die er voor de wijk de Maten zijn.

Elk van de scenario’s heeft onderdelen die op een plek met de juiste condities goed van pas zullen komen. Daarom zullen van elk scenario de relevante elementen en inzichten gebruikt worden voor het uiteindelijke ontwerp.

Het heeft niet geleidt tot één scenario wat het beste naar voren kwam, maar naar een toolbox met ontwerp ingrepen.

Ontwerprincipes + masterplan + deeluitwerkingen

ONTWERPVISIE

Uit mijn analyse en ontwerpend onderzoek door middel van scenario’s is een ontwerprichtlijn ontstaan waarbij alle drie de onderzochte thema’s tot hun recht komen.

Zoals al eerder genoemd zijn de drie thema’s niet volledig los van elkaar te zien. Ze zijn altijd via onderwerpen of subthema’s met elkaar verbonden. Het afpellen van de drie hoofdthema’s: behouden en versterken van de kwaliteiten van een bloemkoolwijk, het woningaanbod laten aansluiten op de veranderende huishoudenssamenstelling en collectief samenleven.

BEHOUDEN EN VERSTERKEN

KWALITEITEN VAN EEN BLOEMKOOLWIJK

We behouden en versterken de kwaliteiten van een bloemkoolwijk:

- Het groene karakter die door treedt diep in de haarvaten van de wijk

- De hiërarchische wegenstructuur, een goede basis

- Het woonerf als basis voor de sociale cohesie moet weer versterkt worden

We laten los wat niet meer past bij de toekomst:

- De dominante auto, de auto verdwijnt op de achtergrond

- Anonieme architectuur en oriëntatie maakt ruimte voor expressie

WONINGVOORRAAD

DIVERSIFIËREN NAAR DE VERANDERENDE HUISHOUDENSSAMENSTELLING

De ideale gezinswijk past niet meer bij onze maatschappij. De maatschappij is veel diverser. In de wijk wordt ruimte gemaakt voor andere doelgroepen zodat, de Maten weer een wijk voor iedereen wordt zoals deze ooit bedacht was.

Ook wordt er flexibiliteit aangebracht in de wijk om veranderingen in de huishoudenssamenstelling in de toekomst op te kunnen vangen.

COLLECTIEF

SAMENLEVEN

Het sociale netwerk in de buurt vormt een belangrijke basis. Een structuur die in de wortels van de bloemkoolwijk zit, de sociale betekenis wordt opnieuw geactiveerd. Door de straat/het woonerf weer als verlengde van de woonkamer te zien. Omkijken naar elkaar en de mogelijkheid je sociale netwerk wanneer de woon behoefte verandert doordat er de mogelijkheid is om in de straat te blijven wonen.

TOOLBOX

Mijn ontwerprichtlijnen heb ik vertaald naar een toolbox waarin ik ontwerp interventies voorstel per schaalniveau. Het onderscheidt in schaalniveau is niet alleen belangrijk vanuit stedenbouwkundig oogpunt, maar ook vanuit de verschillende stakeholders die zich in de wijk bevinden.

De toolbox is als volgt op gebouwd:

• De toolbox bestaat uit de drie bekende thema’s

• De toolbox is opgesplitst in drie schaalniveau’s:

- Eigen kavel

- Straat/woonerf

- Buurt (wijk)

• Voor de thema’s ‘gezonde en klimaatbewuste wijk’ en ‘collectief samenleven’ geldt dat de ingrepen een aantal hoofd interventies hebben en dat dit iets anders betekent door de schaalniveau’s heen.

• Voor het thema ‘diversifiëren woningvoorraad’ staan er verschillende ingrepen per schaalniveau’s maar hebben ze verticaal met elkaar geen betekenis

Onder elke interventie staat een korte toelichtende tekst met daaronder afgebeeld welke stakeholders hierbij aan zet zijn. Er wordt onderscheidt gemaakt tussen: particulier, gemeente en woningcorporatie.

Ontwerpen door de schalen heen, niet alleen de gemeente, maar samenwerken met bewoners en corporaties/ontwikkelaars.

Kavel
Straat
Buurt

DE GEZONDE EN KLIMAATBEWUSTE WIJK

VERSTERKEN LANGZAAM VERKEER ROUTES

Vanaf nu wordt de openbare ruimte en haar wegen vooral gedomineerd door langzaam verkeer gebruikers en openbaar vervoer. De auto is voornamelijk te gast.

Op buurtniveau betekent dit dat de auto nog ongestoord rijdt over de Laan van Maten (de wijkontsluitingsweg van de Maten), maar zodra de auto een afslag de buurt in maakt komt deze op een fiets straat uit.

Het wegprofiel is verandert naar een fiets straat waar de auto te gast is. Aan de zijkanten van de weg bevinden zich goede doorlopende wandelpaden. Er is een extra busverbinding toegevoegde die door de buurten rijdt en de buurtcentra met elkaar verbindt. Deze bus sluit aan op de stads/wijk busverbindingen en de trein.

Door de groene parken en structuren lopen vooral de wandelpaden. Fietsen wordt hier gedoogd. De wandelpaden komen uit bij de buurtontmoetingsplekken en voorzieningen. De wandelpaden starten vanuit een woonerf. De woonerven zijn autoluw. Er is een parkeerhof aanwezig aan het begin van het hof, maar verder dan dat reikt de auto niet.

Minder parkeerplekken is geen probleem, doordat inwoners gestimuleerd worden gebruik te maken van een deelauto. Ook is het openbaar vervoer erg verbeterd waardoor een auto minder nodig is.

HERKENNINGSPUNTEN EN BELEVINGSWAARDE

Tot voorheen kende de Maten veel achterkanten naar het groen met hoge schuttingen. Dit gaf veel bewoners een onveilig gevoel als het ging om gebruik maken van wandelpaden door het groen. Daarnaast was oriënteren vooral bij de langzaam verkeer routes lastig.

Door het toevoegen van een aantal herkenningspunten in de vorm van hoogte accenten waardoor iets meer hiërarchie ontstaat tussen de verschillende gebouwen. Aan de groene verbindingszone worden twee gebouwen toegevoegd. Ook het nieuwe winkelcentrum met hogeree gebouwen zorgt voor herkenning.

In de straat en op het woonerf en omgeving gaat het vooral om herkenning en belevingswaarde. Door meer zicht op de wandelpaden te creëren door verdichting of het creëren van voorkanten worden de wandelpaden psychologisch veiliger.

Door gebruik te maken van dezelfde materialisering ontstaat er duidelijke wayfinding. Daarnaast zijn langs de langzaam verkeer routes verschillende activiteiten en/of speeltoestellen gecentreerd hierdoor neemt de belevingswaarde ook toe.

Op de eigen kavel kan een particulier bijdragen aan de oriëntatie door duidelijke voor- en achterkanten te creëren, maar vooral om zicht te hebben vanuit de woning op het woonerf om bij te dragen aan de psychologische veiligheid van de buurt.

De waarde van psychologische en sociale veiligheid moet in de buurt niet onderschat worden. Het legt een basis voor contacten en je veilig voelen in je eigen buurt. Bovenstaand zijn een aantal ruimtelijke ingrepen die bij kunnen dragen aan deze veiligheid.

VERSTERKEN GEBRUIKSWAARDE VAN HET GROEN

De Maten is in de huidige situatie al een onwijs groene buurt met krachtige groenstructuren van en naar het Matenpark toe. Deze parkstructuur is de groene verbinder door de hele wijk heen. Het vormt de basis.

Groen is van groot belang voor de biodiversiviteit, ecologie en klimaatbestendigheid van een wijk. Door de grote parkstructuur van de Maten zit dit op wijkniveau best goed.

De woonerven daarentegen zijn bijna volledig verhard. Door de woonerven te vergroenen en aan te laten sluiten op de parkstructuur wordt het groene netwerk vergroot. Ook ten behoeve van de leefbaarheid van een woonerf heeft dit zijn voordelen: hitte-eilanden tegen gaan, betere water infiltratie bij regenbuien.

Op de eigen kavel worden particulieren vanuit de overheid gestimuleerd om hun woning te verduurzamen door middel van zonnepanelen, sedumdak en/of het vergroenen van de tuin.

Zelf zie ik groen altijd als een decor/onderlegger voor een plek waar de auto niet komt, ruimte voor langzaam verkeer routes en ontmoeting kan plaatsvinden.

DIVERSIFIËREN VAN DE WONINGVOORRAAD

HUISHOUDENS EN BIJPASSENDE WOONVORMEN

De Maten moest een echte gezinswijk worden. Met 80% eengezinswoningen was het woningaanbod hier ook echt op ingericht, maar zoals al eerder benoemd is de huishoudenssamenstelling inmiddels flink verandert zo ook in de wijk de Maten.

Hiernaast is de tabel nog een keer herhaald waar de verschillende huishoudens staan weergegeven. De verhoudingen lijken erg op die van de toekomst. De groep ouderen (70plus) zal voornamelijk nog groter worden. Het huidige woningaanbod in de Maten sluit hier totaal niet op aan.

De zin ´De Maten moest een wijk voor iedereen worden´. Laat zien dat toen met de beste bedoelingen de woningtypologieën zijn verdeeld en in de toen passende verhouding zijn gebouwd. Het laat zien dat de huishoudens verdeling niet te voorspellen is en daarmee ook niet het aantal benodigde woningen en de typologie.

Op de volgende pagina staan vier doelgroepen vertaald naar alleenstaanden, koppel en een gezin. Deze vier staan voor de woningzoekende in de wijk en zullen later in het ontwerp weer terugkomen.

Bewoners in de Maten

kinderen

Truus (72 jaar)

Zoektocht: kleine gelijksvloerse woning

Truus woont al meer dan 40 jaar in de buurt de Matendreef. Een aantal jaar terug is haar man overleden. De eengezinswoning waarin ze woont is veelste groot. Ze is opzoek naar een kleine gelijksvloerse woning waar ze rustig oud kan worden. Een woning in binnen een collectief gezelschap is een plus, want eenzaamheid ligt op de loer.

Henk en Carla (69 en 67 jaar)

Zoektocht: gelijksvloerse woning

Wonen al jaren de buurt de Matendreef. Ze zijn hier komen wonen toen de kinderen klein waren, zij zijn inmiddels het huis uit. Nu wonen ze in een grote eengezinswoning, het onderhoud begint hun te veel te worden. Ze zouden graag een gelijksvloerse woning in de buurt vinden, alleen is er nauwelijks aanbod. Buren nabij is belangrijk voor hun.

Tim (26 jaar)

Zoektocht: starterswoning

Tim woont nog bij zijn ouders, maar is al een aantal jaar opzoek naar zijn eigen plek. Een studio of klein appartement waar hij een aantal jaar kan wonen voordat hij een gezin wilt starten.

Anneleen, Jelle en twee kids (35 en 37 jaar)

Zoektocht: eengezinswoning

Na een aantal jaar in een klein appartement in de stad is het tijd voor een eengezinswoning. De Maten spreekt hun aan door de hoeveelheid groen in de wijk. Er komen alleen bijna geen woningen beschikbaar doordat er totaal geen doorstroming in de wijk is.

Diversifiëren woningvoorraad aansluitend op de huishoudens

Er wonen veel alleenstaanden of ouderen in een grote eengezinswoning door hun de mogelijkheid te geven hun woning op te toppen en vervolgens te splitsen of door een schuur/garage om te bouwen tot kleine woning. Wanneer de gemeente dit mogelijk maakt en bewoners gestimuleerd worden komt er ruimte voor andere huishoudens in de wijk.

In de straat of op het woonerf betekent dit dat er wanneer er ruimte is een klein appartementencomplex van circa 6 appartementen gebouwd wordt. Hierdoor kunnen bewoners in hun straat blijven wonen, maar toch verhuizen naar een passende woning. Ook hier is het belangrijk dat de gemeente dit mogelijk maakt, denk hierbij ook aan gezamenlijke projecten van 2 tot 5 buren die hun woningen gezamenlijk transformeren tot appartementen. Participatie is bij dit schaalniveau van groot belang.

Op het schaalniveau van de buurt gaat het over grotere projecten. In het geval van deze buurt wordt het winkelcentrum verplaatst naar de locatie naast de scholen. Dit is een kans om het programma te versterken en van deze plek echt een ankerpunt in de wijk te maken. Het nieuwe winkelcentrum beschikt over veel voorzieningen en bovenop de winkels zijn appartementen gerealiseerd.

Op plekken die vrij komen door andere ingrepen of minder autogebruik kan een projectontwikkelaar of woningcorporatie aan de slag met het realiseren van bijvoorbeeld een meergeneratiehof.

COLLECTIEF SAMENLEVEN

Collectief samenleven vormt een essentiële bouwsteen voor de toekomstbestendigheid van de wijk De Maten. Iets wat vanuit oorsprong al besloten ligt in het bloemkoolwijk concept. De ruimtelijke opzet met woonerven daaromheen geclusterde woningen en soepele overgangen tussen privé, semi openbaar en openbaar vormen een sterke basis voor ontmoeting en gedeeld gebruik. Door deze bestaande structuren opnieuw te activeren en te verfijnen zet het ontwerp in op het versterken van collectief samenleven als vanzelfsprekend onderdeel van het dagelijks leven.

Collectiviteit maar ook contact begint op de eigen kavel, waar bewoners een praatje maken met de buren. Door zachte overgangen tussen privé en openbaar ontstaat er ruimte voor informeel contact, zonder dat de privacy van de woning wordt aangetast.

De woonerven zijn semi-openbaar terrein, hier staat gedeeld gebruik en herkenning tussen bewoners centraal. Het woonerf fungeert als dagelijks ontmoetingsgebied, waarin verblijven, spelen en passeren samenkomen en waar sociale relaties op een vanzelfsprekende manier kunnen ontstaan.

Op buurtniveau manifesteert collectief samenleven zich in het publieke domein, langs wandelpaden, ontmoetingsplekken en bij voorzieningen zoals het winkelcentrum. Deze plekken vormen de sociale ruggengraat van de wijk en verbinden verschillende woningclusters met elkaar. Onderdeel van het ontwerp is het herwaarderen van de tussenzones die deze clusters met elkaar verbinden. Door deze ruimtes opnieuw leesbaar en bruikbaar te maken, ontstaat een samenhangend systeem waarin de overgang van privé naar publiek wordt verzacht en collectief samenleven stap voor stap wordt gefaciliteerd. Kleine schaalinterventies, zoals verblijfsplekken, zichtrelaties en gedeelde functies, dragen bij aan een herkenbaar en uitnodigend woonmilieu waarin bewoners elkaar op een laagdrempelige manier informeel kunnen ontmoeten.

VERSTERKEN WERKGELEGENHEID EN FUNCTIEMENGING

Een eerste thema richt zich op het verbeteren van werkgelegenheid en functiemenging. Door voorzieningen en werkplekken te clusteren op buurtniveau ontstaat een herkenbaar centrum waar wonen, werken en ontmoeten samenkomen.

Op straatniveau maken flexibele werkplekken en kleinschalige bedrijvigheid het mogelijk om dagelijkse activiteiten dichter bij huis te organiseren. Het is mogelijk een kleine werkplek te huren in de buurt van het wooncluster.

Op kavelniveau wordt functiemenging verder verfijnd door aan-huis-gebonden beroepen en gedeelde werkruimtes te faciliteren. Deze gelaagdheid vergroot niet alleen de levendigheid van de wijk, maar verlaagt ook de drempel voor sociale interactie.

Een voorbeeld van een op eigen kavel bedrijf kan zijn het realiseren van een werkplaats in de één van de schuren die aan de wijkontsluitingsweg gelegen zijn. Deze plek is zeer zichtbaar voor vele bewoners en bezoekers in de wijk.

ZICHTLIJNEN

EN VERBINDING OM CONTACT TE STIMULEREN

Het tweede thema, zichtlijnen en verbindingen, laat zien hoe ruimtelijke oriëntatie en transparantie bijdragen aan sociaal contact. Door centrale assen als onderdeel van de langzaam verkeer routes, ontstaan natuurlijke ontmoetingslijnen binnen de wijk.

Op straatniveau zorgen zichtbare entrees, doorzichten en semi-openbare zones voor informele momenten van herkenning en contact. De zichtbare entrees en het gebruik van het juiste materiaal in bestrating zorgen voor duidelijke paden.

Op kavelniveau wordt dit vertaald naar een architectonische schaal, bijvoorbeeld door ramen en buitenruimtes te positioneren op plekken waar zij bijdragen aan sociale veiligheid en onderlinge zichtbaarheid. Het verplaatsen van de berging naar de achterzijde en/of een lage erfafscheiding te creëren op z’n minst aan de voorzijde van de woning zorgt voor een duidelijk onderscheidt tussen voor- en achterkanten. Daarnaast creërt het goede zichtlijnen op straat vanuit de woning.

GEDEELDE VOORZIENINGEN

Gedeelde voorzieningen spelen een belangrijke rol in het stimuleren van collectief gebruik en eigenaarschap. Buurtvoorzieningen zoals ontmoetingsruimtes in een buurthuis of een gemeenschappelijk groen schoolplein.

Op straat/woonerf niveau betekent dit een collectieve inrichting van het woonerf wat kan leiden tot een gemeenschappelijke tuin, gemeenschappelijke moestuin, speeltoestellen of een tiny house wat te huren is of gebruikt wordt voor buurtactiviteiten. Deze gedeelde voorzieningen intensiveren het dagelijks gebruik van de openbare ruimte.

Op kavel niveau kan een bewoner ervoor kiezen om bijvoorbeeld een kleine buurtbieb op de rand van de kavel te plaatsen. Het gezamenlijk inkopen van energieduurzame maatregelen zoals zonnepanelen is ook een goed voorbeeld.

CREËREN VAN VERBLIJFSRUIMTEN

Het vierde thema richt zich op het creëren van verblijfsruimtes. Collectief samenleven vraagt niet alleen om routes en functies, maar vooral om plekken waar mensen kunnen blijven. Door verblijfsruimtes strategisch te positioneren op buurtniveau, bijvoorbeeld rond een buurtkamer of groen ontmoetingsgebied, ontstaat ruimte voor georganiseerde én spontane ontmoeting.

Op het woonerf zijn verblijfsplekken extra belangrijk om contact te leggen tussen buren, maar ook zoiets simpels als meerdere bankjes rondom een speelplek voor kinderen zodat ouders hun kind in de gaten kunnen houden maar ook een praatje kunnen maken. Het toevoegen van een buurtkamer op een woonerf kan ook een uitkomst bieden.

Op kavelniveau gaat het om kleinschalige aanpassingen. Op plekken waar voornamelijk appartementen zitten of woningen zonder voortuin wordt ‘stoepwonen’ gestimuleerd hierbij wordt een bankje voor de gevel geplaatst waar bewoners of voorbijgangers gebruik van kunnen maken. Een bankje verzacht te overgang tussen privé en openbaar.

DE VEERKRACHTIGE BUURT

Het toepassen van de toolbox ingrepen op de buurt De Dreven heeft een veerkrachtige buurt als resultaat.

De buurt is getransformeerd van een buurt met een eentonig woningaanbod met een grote mismatch tussen haar bewoners en de woningen. Naar een buurt waar appartementen en gelijkvloerse woningen (met lift) zijn gerealiseerd.

De woonerven zijn getansformeerd van openbare parkeervelden naar groene oases met ruimte voor spelen, recreëren en gedeelde buurtvoorzieningen. Woningen zijn gesplitst en opgetopt. Schuren/ garages getransformeerd naar kleine woningen, waar weer nieuwe jonge mensen zijn gaan wonen. Het woonerf heeft weer een nieuwe impuls gekregen.

Het winkelcentrum is verplaatst naar de schoollocatie en vormt samen met de scholen het sociale ankerpunt van de wijk waar volop voorzieningen aanwezig zijn.

Het groene buurtmidden is weer in verbinding met haar omgeving en via de groene verbindingszone ook met het Matenpark.

De auto is op de achtergrond verdwenen en er wordt volop gefietst en gewandeld door de buurt.

VERHALEN VAN BEWONERS

Fictieve verhalen van bewoners wonend in de toekomstige bloemkoolwijk

HET VERHAAL VAN TRUUS

Truus (72 jaar)

Truus woont al sinds 1980 in een eengezinswoning in de Matendreef. Toen is ze er met haar man komen wonen. Inmiddels zijn de kinderen allang het huis uit en is haar man 4 jaar terug overleden.

Tot 2 jaar geleden zag de situatie van Truus er niet goed uit. Het huis werd te groot, het onderhoud te veel (waaronder verduurzamen). Er was steeds minder contact met omliggende buren. Truus begon zich steeds eenzamer te voelen. Een auto had Truus niet meer en de eerste bushalte was erg ver weg. Het vroeger zo mooie groen, was inmiddels overgroeid, dit met hoge schuttingen maakte het onprettig om door het groen te wandelen. Goede wandelpaden langs de wegen waren er niet.

De komst van het nieuwe winkelcentrum heeft Truus als kans gezien. Hierdoor is zij eindelijk verhuisd naar een kleinere woning.

Plattegrond winkelcentrum (1:1000)

N 10m 20m

BUURTDRAGERS VAN TRUUS

Het winkelcentrum voorziet in alle dagelijkse behoeftes: supermarkt, fysio, bakker, cafe ens. Er stopt een bus die door de buurt rijdt en aansluit op de wijk/stads verbindingen.

Ook gaat het winkelplein soepel over in het park en is het buurtmidden via langzaamverkeerroutes goed bereikbaar voor heel de buurt.

Vanuit haar nieuwe duurzame appartement met lift heeft Truus vanuit haar balkon uitzicht over het winkelplein. Hier is altijd wat te zien of te beleven. Ook ziet ze verderop de kinderen in de pauze buitenspelen op het schoolplein wat in het park ligt.

Doorsnede winkelcentrum (1:400)

Doorsnede

Bang voor eenzaamheid is Truus niet meer. Rondom haar nieuwe woning is altijd wat te beleven. Op dinsdagmiddag haalt ze één van haar kleinkinderen uit school en gaan ze even naar de bakker voor wat lekkers. Onderweg komt ze Hanneke tegen en maakt even een praatje.

HET VERHAAL VAN ANNELEEN

Anneleen, Jelle en twee kids (35 en 37 jaar)

Na een aantal jaar in een klein appartement in de stad is het tijd voor een eengezinswoning. Doordat de moeder van Anneleen (Truus) is verhuisd is haar eengezinswoning vrijgekomen. Dit is een geweldige uitkomst! Eerder lukte het het jonge gezin niet een woning te vinden in de Maten, omdat er bijna geen doorstroming was. De wijk spreekt hen aan door de hoeveelheid groen, basisschool en voorzieningen dichtbij.

Na het verbouwen en verduurzamen van de woning zijn Anneleen, Jelle en kids verhuisd. Tegelijkertijd tijdens de verbouwing hebben zij deelgenomen aan een participatie traject voor een nieuwe invulling van het woonerf samen met andere omliggende bewoners. Er zijn aardig wat nieuwe mensen in de wijk komen wonen, sinds de oudere bewoners een appartement bij het winkelcentrum of elders in de buurt gevonden hebben.

Plattegrond gezin woonerf (1:500)
N 5m 10m

BUURTDRAGERS VAN ANNELEEN

Het woonerf van Anneleen en Jelle is weer verandert in een jong gezinserf met veel nieuwe jonge gezinnen. Voor de inrichting van hun woonerf hebben ze dan ook gekozen voor: autoluw, veel speelplekken, goed zicht vanuit de woning/voortuin/achtertuin op de spelende kinderen.

Door de mogelijkheid om te kunnen splitsen/ optoppen hebben een aantal bewoners van deze mogelijkheid gebruik gemaakt om voor hunzelf een gelijkvloerse woning te creëren en ruimte te maken voor een alleenstaanden op de bovenverdieping(en).

Andere woonerven zijn door middel van participatie ook opnieuw ingericht. Een woonerf met een al wat oudere generatie heeft juist gekozen voor de transformatie naar een woonzorg functie. Via het participatie traject is er van alles mogelijk geweest. Hierdoor zijn er verschillende ‘smaken’ woonerven ontstaan. In de loop van de jaren kunnen deze door hun flexibele inrichting weer transformeren naar een andere passende inrichting.

De kinderen gaan verderop in de buurt naar de basisschool. Als Guus 8 jaar is kan hij zelfstandig naar school toe via de veilige wandelpaden, hier is geen auto te bekennen. De familie maakt gebruik van een deelauto.

Het buurthuis heeft door de week heen verschillende invullingen, waaronder een gastouder.

Doorsnede gezin woonerf (1:250)

Nadat Anneleen Guus bij haar moeder (Truus) heeft opgehaald gaan ze naar het buurthuis in het woonerf waar de gastouder op kleine Joan heeft gepast. De kinderen gaan nog even buitenspelen terwijl, Anneleen zicht op ze houdt vanuit het keukenraam terwijl ze het eten voorbereid.

HET VERHAAL VAN TIM

Tim (28 jaar)

Tim heeft al zijn hele leven in de Matendreef gewoond. Al een aantal jaar was hij opzoek naar een woning, maar telkens werd hij overboden en het aanbod is niet groot.

Twee jaar geleden heeft de gemeente nieuwe regels opgesteld, wat splitsen/optoppen/kleine woning in de achtertuin mogelijk maakt. Hier heeft Tim goed gebruik van gemaakt, samen met zijn ouders heeft hij de oude garage omgetoverd tot een kleine woning, met een verdieping erop. Over de jaren heen zal Tim zijn ouders terugbetalen voor deze investering.

Plattegrond Tim woonerf (1:500)

N 5m 10m

BUURTDRAGERS VAN TIM

Het woonerf zelf is ook getransformeerd van openbaar parkeerveld naar groene omgeving met verschillende buurtfuncties. Door nieuwe voorkanten naar het woonerf te maken, is het erf weer tot leven gekomen. Er zijn gedeelde plantenbakken en een buurt bbq plek onder een pergola.

Ook is aan de noordzijde een kleinschalig appartementencomplex gerealiseerd. Waar het buurmeisje van Tim is gaan wonen.

Doorsnede Tim woonerf (1:250)

Een levendig woonerf. Huizen zijn verduurzaamd. De dichte achterkanten van garages hebben ruimte gemaakt voor nieuwe voorkanten naar het woonerf.

HET VERHAAL VAN HENK EN CARLA

Henk en Carla (69 en 67 jaar)

Henk en Carla hebben jaren in een grote eengezinswoning gewoond van de corporatie verderop in de wijk. Ze willen al een aantal jaar kleiner wonen, maar er kwam maar geen ouderenwoning vrij bij de woningcorporatie.

Een tijd geleden is de gemeente begonnen met het stimuleren van transformaties van het woningaanbod binnen de wijk. Waaronder ook de eenlaagse woning in de Matendreef. Deze zijn gesloopt en hier is een samenwerking met de buurt en nieuwe bewoners een plan gemaakt voor een fijn nieuw hof met appartementen.

Plattegrond Tim woonerf (1:500)
N 5m 10m

BUURTDRAGERS VAN HENK EN CARLA

Het winkelcentrum is een kleine 10 minuten wandelen of enkele minuten op de fiets. Op het groene binnenplein is een buurthuis waar Carla elke dinsdagochtend leesclub heeft.

Henk en Carla zijn gaan wonen in een benedenwoning. Aan de ene kant kijken ze op het woonerf en aan de andere kant op de Laan van de Maten. Daar stopt tevens ook de bus om hun naar eht stadscentrum te brengen.

Doorsnede corporatiehof (1:250)

GROENE VERBINDINGSZONE DOOR DE BUURT

Samen met de appartementen die aan de zuidzijde van de verbindingszone zijn gerealiseerd, wordt er ingezet op een actieve groenzone door speelveldjes, maar ook meer bankjes om te recreëeren. Het woonerf van de corporatie sluit hier goed opaan.

Henk en Carla maken vaak gebruik van de groene zone om s’avonds nog een blokje om te doen, zo blijven ze vitaal.

Doorsnede groene verbindingszone (1:250)

Doorsnede

Wanneer ze terugkomen van een bezoek aan hun kinderen met de deelauto lopen ze terug over het woonerf en komen Evert tegen. Ze spreken gelijk af de volgende dag een bakkie koffie te doen.

TOOLBOX OP HEEL DE MATEN

Om de werking van de toolbox inzichtelijk te maken is deze toegepast op het onderzoeksbuurtje De Dreven. Wanneer de toolbox wordt doorvertaald naar het schaalniveau van de gehele wijk De Maten, ontstaat een toekomstbestendige bloemkoolwijk die actief inspeelt op de veranderende huishoudenssamenstelling.

Bij toepassing van de toolbox op het schaalniveau van wijk en buurt worden ingrepen op hoofdlijnen gedaan. Het bestaande busnetwerk wordt versterkt, het netwerk van langzaamverkeerroutes uitgebreid en verfijnd, en op alle buurtontsluitingswegen wordt de auto ondergeschikt gemaakt aan voetgangers en fietsers. De verbeterde langzaamverkeerroutes sluiten aan op de robuuste groenstructuur die reeds in de wijk aanwezig is en op verschillende plekken wordt versterkt. Daarnaast wordt de oriëntatie binnen de wijk verbeterd, zowel door de duidelijke structuur van deze routes als door het toevoegen van hoogteaccenten, met name op en rondom de buurtcentra.

De buurtcentra, evenals de buurtmiddens, spelen een centrale rol bij het toevoegen en clusteren van programma. De oorspronkelijke buurtcentra in de verschillende buurten zijn vervangen door compacte winkelcentra waarin wonen wordt gecombineerd met voorzieningen en functies die zijn gericht op de dagelijkse leefwereld van bewoners. Zowel de buurtcentra als de buurtmiddens functioneren hierdoor opnieuw als sociale ankerpunten binnen de buurten.

De combinatie van meer ruimte voor groen, hoogwaardige langzaamverkeerroutes en het combineren van functies vormt een belangrijke basis voor ontmoeting op buurtniveau en draagt bij aan de sociale samenhang binnen de wijk.

Ook op de schaalniveaus van straat, woonerf en kavel is de toolbox toegepast. Dit is zichtbaar in de zogenoemde ‘gespikkelde’ woningen op de afbeelding, die aangeven waar op kleinschalig niveau aanpassingen in de woningvoorraad mogelijk zijn.

De toolbox biedt daarmee een antwoord op alle opgaven die eerder voor de wijk zijn gesignaleerd. Het globale wijkontwerp laat zien hoe het mogelijk is dat bewoners binnen hun eigen wijk kunnen blijven

wonen en dat er tegelijkertijd ruimte ontstaat voor nieuwe bewoners, zonder de bestaande ruimtelijke structuur los te laten. Door deze aanpak wordt ontmoeting gestimuleerd en wordt de onderlinge betrokkenheid tussen bewoners versterkt.

HET WOONERF VAN DE TOEKOMST

Met mijn afstudeerproject ‘Het woonerf van de toekomst’ heb ik laten zien hoe de bloemkoolwijken weer toekomstbestendig kunnen worden ingericht terwijl ze invulling geven op de veranderende huishoudenssamenstelling. Het project laat zien hoe de huidige mismatch tussen het bestaande woningaanbod en de woningbehoefte van de bewoners kan worden verkleind door gerichte ruimtelijke en programmatische ingrepen.

Ik heb voor de Maten een ontwerp gemaakt waarbij haar bewoners die er soms al meer dan 40 jaar wonen ook oud kunnen worden in hun wijk door het toevoegen van passende en levensloopbestendige woningen. Hoe jonge gezinnen hun plek kunnen vinden in verduurzaamde woningen in een groene omgeving. Ook voor alleenstaanden worden nieuwe woonmogelijkheden gecreëerd, door woningen te realiseren in de buurtcentra, waardoor eenzaamheid niet meer op de loer licht. Hoe de wijk die al divers is aan bewoners eindelijk ook divers is geworden in woningaanbod. Meer woningen, maar vooral meer flexibiliteit. Klaar voor een toekomst die per definitie onzeker is. Een veerkrachtige verdeling van woningtypologieën vormt hierbij een belangrijk uitgangspunt.

Het is een wijk waar de karakteristieken van de bloemkoolwijk weer tot hun recht komen in hedendaagse context. Door soms een aanpassing: de auto wordt meer teruggedrongen en meer ruimte voor het langzaamverkeer. Soms door de sterke structuren weer in hun kracht te zetten, zoals het volwassen groen en de hoge biodiversiteit. Een nieuwe impuls voor het woonerf om weer ruimte te maken voor laagdrempelige ontmoeting.

De laagdrempelige ontmoeting is maar het begin van wat er weer kan ontstaan in de wijk. Veel ingrepen zijn gefocust op het faciliteren van meer interactie en collectief samenleven. Gedeelde voorzieningen, gedeeld eigenaarschap en sociale veiligheid zodat de bewoners zich weer prettig in hun wijk voelen, maar ook om eenzaamheid tegen te gaan.

De toolbox laat zien hoe door de schalen heen ontwerpen zorgt voor een gelaagd ontwerp met verschillende stakeholders: de bewoner, de woningcorporatie en de gemeente. Elk op een ander moment aan zet, maar ook allemaal essentieel

voor het laten slagen van de transformatie. Bloemkoolwijken weer toekomstbestendig maken is een gezamenlijke inspanning.

Ik hoop dat mijn project een inspiratie is voor hoe we door middel van grote en kleine ingrepen, samenwerkend met elkaar de bloemkoolwijken en onze samenleving klaar kunnen maken voor de toekomst. Met het belangrijkste uitgangspunt dat de bewoners in de buurt kunnen wonen en het woonerf weer een collectief verblijfsgebied wordt.

DANKWOORD

Het afstuderen is een bijzonder proces met vele ups en downs. Dit afstudeerproject was niet tot stand gekomen zonder de steun en betrokkenheid van verschillende mensen. Graag wil ik mijn mentor en commissieleden bedanken voor hun kritische blik, inhoudelijke feedback en vertrouwen gedurende het ontwerpproces. Tot slot ben ik dankbaar voor de steun van familie en vrienden, die mij gedurende dit traject hebben gemotiveerd en aangemoedigd.

BIBLIOGRAFIE

Bronnen

Bureau Lofvers, Jutten Architectuur, & Nio Stedelijk Onderzoek. (2008). Studie woonerven. Lay-out, 2–22.

Hancke, N., 415828. (2024). Een leefbare bloemkoolwijk: Ontwerpend onderzoek naar de herinrichting van de openbare ruimte in Tuikwerd (Delfzijl) (R. Gerritsen, R. Ferwerda, M. Sekuur, K. Peeters, J. Kasemier, & J. Benus; Door Institute of Future Environments, HKB Stedenbouw & Landschap, K. Koch, M. Meulendijks, N. Nijhuis, P. Peppelenbosch, S. Sanders, S. Steinvoort, A. Kuipers, M. Eggenkamp, H. Kroodsma, M. Venema, & S. Leemans).

Klok, V. D. (2017). Woningsplitsing door woningcorporaties in de praktijk. In Platform31. Ministerie van Volkshuisvesting en Ruimtelijke Ordening. (2025, 29 september). Ontwerp-Nota Ruimte (webversie). Rapport | Rijksoverheid. nl. https://www.rijksoverheid.nl/documenten/ rapporten/2025/09/26/ontwerp-nota-ruimtewebversie

Nio, I. (z.d.). Tussen collectiviteit en privacy: De onvoltooide zoektocht naar het ideale woonerf. DASH.

Nio, I. (2012). Probleemwijken of vitale wijken? [Bespreking van: M. Ubink, T. van der Steeg (2011) Bloemkoolwijken: analyse en perspectief]. Data Archiving And Networked Services (DANS), 45(1), 72–73. https://dare. uva.nl/personal/pure/en/publications/ probleemwijken-of-vitale-wijken-bespreking-vanm-ubink-t-van-der-steeg-2011-bloemkoolwijkenanalyse-en-perspectief(d92826fe-4942-4340-919d7bb8dcd6593c).html

Opkomst en ontwikkeling van de bloemkoolwijk - Het ontwerp van woonwijken in Nederland en de zoektocht naar identiteit. (z.d.). https://www. cultureelerfgoed.nl/documenten/2020/01/01/ opkomst-en-ontwikkeling-van-de-bloemkoolwijk Quaedflieg, J., Mooij, H., Han Joosten, Hoofd Marktonderzoek van Bouwfonds Ontwikkeling, & Agnes Franzen, programmamanager praktijkleerstoel Gebiedsontwikkeling TU Delft.

(2013). Bloemkoolwijken: een uitgekookt concept. https://dh1hpfqcgj2w7.cloudfront.net/media/ documents/2013.12.12_Bloemkoolwijken_een_ uitgekookt_concept.pdf

stoa. (2012). De Maten cultuurhistorische analyse. In De Maten.

Stoa & gemeente Apeldoorn. (2013). D E M A T E N ruimtelijke en cultuurhistorische waardering van karakteristieke bebouwing gemeente Apeldoorn, januari 2013.

Unknown. (z.d.). Woningdelen en woningsplitsen mogelijk én gemakkelijker maken. In Unknown. https://www.volkshuisvestingnederland.nl/ binaries/volkshuisvestingnederland/documenten/ publicaties/2025/02/20/handreiking-platform31woningdelen-en-woningsplitsen-mogelijk-engemakkelijker-maken/Woningdelen+en+wonin gsplitsen+mogelijk+en+gemakkelijker+maken++Platform31.pdf

Unknown. (2014a). Nota van uitgangspunten Bestemmingsplan Stadsdeel Zuid – Oost De Maten. Unknown. (2014b). HANDREIKINGEN RUIMTELIJKE KWALITEIT EN WELSTANDSKADER BEELDKWALITEITSPLAN DE MATEN. https://digitaleplannen.apeldoorn. nl/pdfplannen/Stadsdeel_Zuid_Oost_De_Maten_ Beeldkwaliteitsplan_inspraak/Beeldkwaliteitsplan_ De_Maten_concept.pdf

Veldhuis, W., Van Ooijen, B., Must Stedenbouw, OverMorgen, College van Rijksadviseurs, Atelier Rijksbouwmeester, Gemeente Apeldoorn, Aarden, T., Van Staveren, D., Alkemade, F., Zandbelt, D., Stapel, R., Kuijpers, H., Veenhuizen, M., Veldhuis, W., Van Ooijen, B., Kuijpers, H., & Veenhuizen, M. (z.d.). Meten met vier Maten. In Rijksadviseurs, Atelier Rijksbouwmeester, & Gemeente Apeldoorn, Rijk&Wijk [Report].

Afbeeldingen

Boersma, M. (2012, 24 januari). Vuil, graffiti en niksig groen in bloemkoolwijk. Nederlands Dagblad. https://www.nd.nl/nieuws/nederland/790331/vuilgraffiti-en-niksig-groen-in-bloemkoolwijk

Centraal Bureau voor de Statistiek. (2024a, december 17). Prognose: huishoudensgroei in de toekomst vooral door meer alleenstaanden. Centraal Bureau Voor de Statistiek. https://www.cbs.nl/nlnl/nieuws/2024/51/prognose-huishoudensgroeiin-de-toekomst-vooral-door-meer-alleenstaanden

Centraal Bureau voor de Statistiek. (2024b, december 17). Prognose: huishoudensgroei in de toekomst vooral door meer alleenstaanden. Centraal Bureau Voor de Statistiek. https://www.cbs.nl/nlnl/nieuws/2024/51/prognose-huishoudensgroeiin-de-toekomst-vooral-door-meer-alleenstaanden

De redactie. (2025, 11 mei). Klassieke muziek live op het Begijnhof - Amsterdam gespot. Amsterdam Gespot. https://amsterdamspotted.com/nl_be/ klassieke-muziek-live-begijnhof/

Gemeente Amsterdam. (z.d.). De Terp, Schoolwijzer Amsterdam. Schoolwijzer Amsterdam. https:// schoolwijzer.amsterdam.nl/nl/po/vestiging/deterp/

HeuvelmanRijbewijshulp.nl. https://rijbewijshulp. nl/woonerf-regels/

Hjr. (z.d.). hervkerk. HJR. http://www.oudzuidlaren. nl/html/hervkerk.html

Hoe de sfeer uit de bloemkoolwijk verdween. (z.d.). AD. https://www.ad.nl/den-haag/hoe-de-sfeerverdween-uit-de-bloemkoolwijk-nieuwe-burenkomen-niet-eens-even-kennismaken~a693ef25/

HollandLuchtfoto | Aetsveld weesp. (z.d.). HollandLuchtfoto. https://www.hollandluchtfoto. nl/-/galleries/dorpensteden/noord-holland/ weesp/-/medias/5eb8f4f9-d747-4a98-a27f35a1299a736d-aetsveld-weesp

Luchtfoto Apeldoorn. (z.d.). Apeldoorn. https:// www.apeldoorn.nl/dataportaal/dataportaalproduct?pid=41

Redactie. (2024, 11 december). Wordt de samenleving te individualistisch? ‘Deel bevolking ongevoelig voor sociale controle’. WNL. https:// wnl.tv/2022/01/01/wordt-de-samenleving-teindividualistisch-deel-bevolking-ongevoelig-voorsociale-controle

Siraanamwong. (z.d.). Kaart van Nederland. iStock. https://www.istockphoto.com/nl/vector/kaart-vannederland-gm868349118-144489507

Waarom zijn bloemkoolwijken uit de mode. (z.d.). BLOG. https://www.reddit.com/r/ thenetherlands/comments/oh5lw3/waarom_zijn_ bloemkoolwijken_uit_de_mode/?tl=nl

Weesp. (z.d.). https://www.bruggenvanamsterdam. nl/aetsvu3.htm

Turn static files into dynamic content formats.

Create a flipbook
Issuu converts static files into: digital portfolios, online yearbooks, online catalogs, digital photo albums and more. Sign up and create your flipbook.