As Melbourne’s leading independent commercial property agency, we take pride in creating worth across all four points of this city.

![]()
As Melbourne’s leading independent commercial property agency, we take pride in creating worth across all four points of this city.

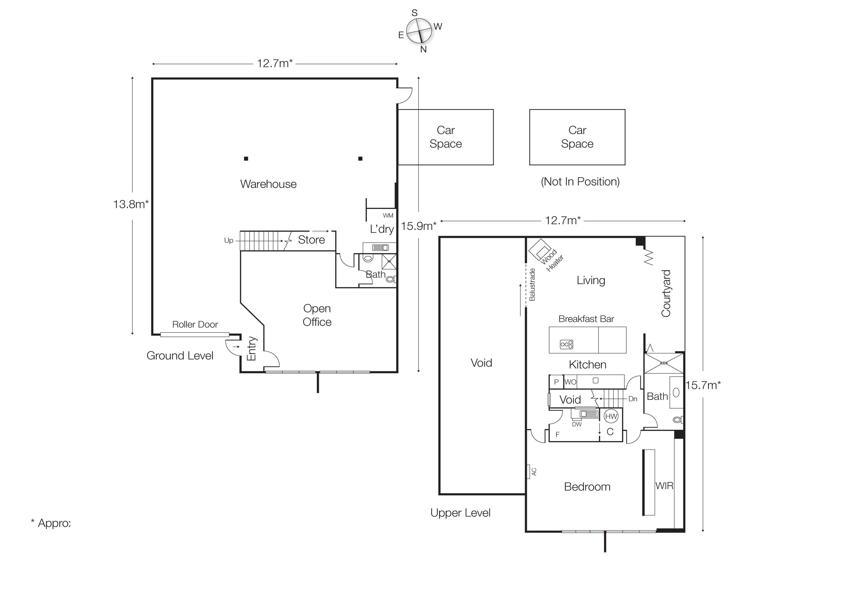
A bold, luxurious, and seriously special rebranding of what it means to bring work home with you, this spacious and uniquely designed warehouse-meets-apartment will have every tradie, creative, and highperforming Founder doing a triple-take.
318 sqm*
Total freehold building area.
120 sqm* Live here.
Fully Permitted Caretakers Residence.
780 m*

fully selfcontained apartment.
2.4 km* 198 sqm*
Allocated on-site car-spaces.
Industrial 1 Secured 2
Zoning. High security systems, both internally and externally, with sensor floodlighting.

Part warehouse, part penthouse, and entirely unique to anything else that’s come across our desks this year — this is a property that rewards early mornings in the office with late nights on the deck, all without needing to leave your front door.

“Part warehouse, part penthouse, and entirely unique to anything else that’s come across my desk this year — this is a property that rewards early mornings in the office with late nights on the deck, all without needing to leave your front door.”

John Nockles | 0404 530 393 john.nockles@cva.melbourne John Nockles | Director - Agency
John’s experience in commercial real estate is now pushing a decade, and over that time, he’s proud to see change when it comes to property in Melbourne. By adopting a lateral approach within a linear industry, he understands that success within Melbourne’s commercial real estate market occurs by looking beyond what has been done, to what can be. It’s an approach that mirrors this city’s originality, commercially — and with it, creativity that extends beyond St Kilda Road.
“Two car spaces, a courtyard with electric louvres, and a fireplace make for an apartment listing beyond anything you can find in Highett right now — let alone the polished warehousing on the ground floor.”

Stirling Findlay | 0481 848 240 stirling.findlay@cva.melbourne Property Executive | Southern Region
Honest. Ambitious. Professional. From scaffolding sites to sales doors, Stirling built his work ethic the hard way — early starts, long days and zero shortcuts. But it was in commercial real estate that he found his stride: where discipline meets people, hustle meets strategy, and every move is about doing right by clients — helping each make decisions that matter, not just closing deals. Because Stirling knows, real estate can be complicated — but it doesn’t have to be. As the bridge, he spots opportunities, clears obstacles, and keeps clients connected to what matters most. The outcome? Smarter strategies, stronger deals, and relationships that last well beyond the contract.
*Approx.

If home is where the heart is, then at Unit 8, it’s also where the smarts are — with a rare masterclass in live-work design, bringing together industrial grit and residential sophistication under one roof. Spanning 318 sqm* in total, the warehouse / office space on the ground floor delivers high ceilings, exposed steel beams, concrete surfaces, and built-in high-bay pallet racks. Clever. Then, three allocated car spaces, LED lighting, workbenches, and single and threephase power also plug your business into its highestperforming chapter.
Above it all, the fully permitted caretaker’s residence reflects the upper echelon Bayside luxury you’d expect from Brighton or Elwood, carefully curated with inclusions you wouldn’t expect. The 120 sqm* apartment features a stunning master bedroom with a walk-in robe, a large designer bathroom, and a living-dining area that flows seamlessly to
an internal courtyard with automated electric louvres. Concrete-inset kitchen benches, custom cabinetry, reclaimed timber floors, a fireplace, and premium finishes throughout create a space that feels more penthouse than mezzanine.
Every corner has been engineered for effortless living and working. Ducted and split-system air-conditioning, security alarms and cameras, built-in Sonos speakers, multiple data points, and separate working zones ensure this property works as hard as you do — before retiring upstairs when you’re done. Unit 8 offers an unmatched combination of style, utility, and seriously enviable Bayside flair, and you have to see it to believe it.










Site
Title particulars
Certificate of Title — Volume 10948 Folio 362 Lot. 8 526865
Zoning Industrial 1 Zone (IN1Z)
Planning Overlays
Municipality City of Kingston
Highett isn’t just a place to park your business or your boots — it’s a suburb that knows how to live well. From cafés and craft brewers to parks, gyms, and leisure hubs, this pocket delivers everything you need to work, play, and unwind without ever leaving the postcode:
Bread and butter.
This pocket has local favourites baked in. From Woodfrog Bakery and Mattisse Bread to Cafe96 and Penny for Pound, your morning almond latte also comes with Bayside’s most coveted sourdough.
Business with leisure.
Waves Leisure Centre, a popular gym and pool hybrid facility, is a 6-minute walk away, while Highett Reserve is your green and leafy backyard — including an off-leash dog area, playgrounds, and great running tracks.
Errands to run.
Your step count is about to skyrocket. Southland is 1.2 km* from your front door, offering every retailer and supermarket option you can think of. This also includes some big name gym and Pilates studios, as well as the services that are handy to have down the road — a GP, pharmacists, and the banks.
Southland

Going elsewhere.
At some point, you need to leave the bubble. Highett railway station is 2.4 km* away and services the Frankston line. If you’re behind the wheel, jump onto the Nepean and you’ll get into the CBD in 40 minutes.
Like-minded neighbours.
Morris Moor, a former factory site recently transformed into a vibrant, net-zero precinct blending work, wellness, and play, sits down the road and reflects the vibe of the area. Spanning 62,700 sqm*, it houses eight historic buildings now home to co-working spaces, childcare, yoga studios, retail outlets, and standout venues like Stomping Ground Brewery.
To blend the workplace with a caretaker’s residence is to, actually, take care of the new-age owner-occupier. Committed, creative, and cutting the commuting corners — this is your playground where ambition and comfort collide. AND THE POINT?
Morris Moor Food & Entertainment Precinct

Highett is shedding its quiet under-the-radar reputation and embracing its coveted profile, a motif the suburb is already familiar with. In the early 1900s, while the other Bayside suburbs were booming as residential up-and-comers, Highett remained an agricultural district with a small township for longer than most — nurturing their wood yards and produce merchants as standout commercial offerings.
Home now to over 12,000 residents with a sprightly median age of 40, this southeast enclave blends the calm of bayside living with a hint of city-edge energy. Median weekly household incomes of $2,119 and median house prices around $1.375 million (units $842,750) reflect a community that’s comfortable, aspirational, and increasingly in demand.
The property market here has been quietly punching above its weight: houses have
appreciated nearly 14% over the past five years, with units keeping pace at just over 5%, while competitive rental yields of 4.5% make Highett a magnet for investors looking for stability paired with growth. Owner-occupiers and families are moving in, drawn by both the lifestyle and the sense that this is a suburb quietly building momentum — one boutique café, craft brewer, and leafy park at a time.
What makes Highett truly compelling is the mix of convenience and community. Around two-thirds of households are family-based, with another 28% single-person homes, creating a vibrant, balanced demographic. Easy access to the Nepean Highway, train stations, and the beach means residents can live, work, and play without compromise. With limited commercial stock tightly held and local loyalty running strong, standout properties here — like Unit 8 — don’t just offer space; they offer a penthouse view to a suburb on the rise.

The document following this cover sheet is an imaged document supplied by LANDATA®, Secure Electronic Registries Victoria.
Document Type
Document Identification
Number of Pages
(excluding this cover sheet)
Document Assembled
02/10/2025 10:18
Copyright and disclaimer notice: © State of Victoria. This publication is copyright. No part may be reproduced by any process except in accordance with the provisions of the Copyright Act 1968 (Cth) and for the purposes of Section 32 of the Sale of Land Act 1962 or pursuant to a written agreement. The information is only valid at the time and in the form obtained from the LANDATA® System. None of the State of Victoria, LANDATA®, Secure Electronic Registries Victoria Pty Ltd (ABN 86 627 986 396) as trustee for the Secure Electronic Registries Victoria Trust (ABN 83 206 746 897) accept responsibility for any subsequent release, publication or reproduction of the information.
The document is invalid if this cover sheet is removed or altered.





33 01
31/07/2018 VC148
KINGSTON PLANNING SCHEME
Shown on the planning scheme map as IN1Z
Purpose
To implement the Municipal Planning Strategy and the Planning Policy Framework
To provide for manufacturing industry, the storage and distribution of goods and associated uses in a manner which does not affect the safety and amenity of local communities
33.01-1
14/01/2025 VC237
Table of uses
Section 1 - Permit not required
Use
Automated collection point
Convenience shop
Crop raising
Grazing animal production
Home based business
Industry (other than Materials recycling and Transfer station)
Condition
Must meet the requirements of Clause 52.13-3 and 52.13-5.
The gross floor area of all buildings must not exceed 50 square metres.
Must not be a purpose listed in the table to Clause 53.10 with no threshold distance specified.
The land must be at least the following distances from land (not a road) which is in an Activity Centre Zone, Capital City Zone, Commercial 1 Zone, Docklands Zone, residential zone or Rural Living Zone, land used for a hospital, an education centre or a corrective institution or land in a Public Acquisition Overlay to be acquired for a hospital, an education centre or a corrective institution:
The threshold distance, for a purpose listed in the table to Clause 53.10.
30 metres, for a purpose not listed in the table to Clause 53.10.
Must not:
Exceed a fire protection quantity under the Dangerous Goods (Storage and Handling) Regulations 2022
Require a notification under the Occupational Health and Safety Regulations 2017
Require a licence under the Dangerous Goods (Explosives) Regulations 2011
Require a licence under the Dangerous Goods (HCDG) Regulations 2016.
Must not adversely affect the amenity of the neighbourhood, including through the:
Transport of materials, goods or commodities to or from the land.
Appearance of any stored goods or materials.
Page 1 of 9
KINGSTON PLANNING SCHEME
Condition
Emission of noise, artificial light, vibration, odour, fumes, smoke, vapour, steam, soot, ash, dust, waste water, waste products, grit or oil. Informal
Service station
Shipping container storage
The land must be at least 30 metres from land (not a road) which is in an Activity Centre Zone, Capital City Zone, Commercial 1 Zone, Docklands Zone, residential zone or Rural Living Zone, land used for a hospital, an education centre or a corrective institution or land in a Public Acquisition Overlay to be acquired for a hospital, an education centre or a corrective institution.
Must not adversely affect the amenity of the neighbourhood, including through the:
Transport of materials, goods or commodities to or from the land.
Appearance of any stored goods or materials.
Emission of noise, artificial light, vibration, odour, fumes, smoke, vapour, steam, soot, ash, dust, waste water, waste products, grit or oil.
Must not be a purpose listed in the table to Clause 53.10 with no threshold distance specified.
The land must be at least the following distances from land (not a road) which is in an Activity Centre Zone, Capital City Zone, Commercial 1 Zone, Docklands Zone, residential zone or Rural Living Zone, land used for a hospital, an education centre or a corrective institution or land in a Public Acquisition Overlay to be acquired for a hospital, an education centre or a corrective institution:
The threshold distance, for a purpose listed in the table to Clause 53.10.
100 metres, for a purpose not listed in the table to Clause 53.10.
Must not:
Exceed a fire protection quantity under the Dangerous Goods (Storage and Handling) Regulations 2022
Require a notification under the Occupational Health and Safety Regulations 2017
Require a licence under the Dangerous Goods (Explosives) Regulations 2011
Require a licence under the Dangerous Goods (HCDG) Regulations 2016
The site must adjoin, or have access to, a road in a Transport Zone 2 or a Transport Zone 3.
Shipping containers must be setback at least 9 metres from a road in a Transport Zone 2 or a Transport Zone 3.
The height of shipping container stacks must not exceed 6 containers or 16 metres, whichever is the lesser
Must not adversely affect the amenity of the neighbourhood, including through the:
Use
Take away food premises
Tramway
Warehouse (other than Mail centre and Shipping container storage)
KINGSTON PLANNING SCHEME
Condition
Transport of materials, goods or commodities to or from the land. Appearance of any stored goods or materials.
Emission of noise, artificial light, vibration, odour, fumes, smoke, vapour, steam, soot, ash, dust, waste water, waste products, grit or oil.
Any use listed in Clause 62.01
Must not be a purpose listed in the table to Clause 53.10 with no threshold distance specified.
The land must be at least the following distances from land (not a road) which is in an Activity Centre Zone, Capital City Zone, Commercial 1 Zone, Docklands Zone, residential zone or Rural Living Zone, land used for a hospital, an education centre or a corrective institution or land in a Public Acquisition Overlay to be acquired for a hospital, an education centre or a corrective institution:
The threshold distance, for a purpose listed in the table to Clause 53.10.
30 metres, for a purpose not listed in the table to Clause 53.10.
Must not:
Exceed a fire protection quantity under the Dangerous Goods (Storage and Handling) Regulations 2022.
Require a notification under the Occupational Health and Safety Regulations 2017
Require a licence under the Dangerous Goods (Explosives) Regulations 2011
Require a licence under Dangerous Goods (HCDG) Regulations 2016
Must not adversely affect the amenity of the neighbourhood, including through the:
Transport of materials, goods or commodities to or from the land. Appearance of any stored goods or materials.
Emission of noise, artificial light, vibration, odour, fumes, smoke, vapour, steam, soot, ash, dust, waste water, waste products, grit or oil.
Must meet the requirements of Clause 62.01.
Section 2 - Permit required
Adult sex product shop Must be at least 200 metres (measured by the shortest route reasonably accessible on foot) from a residential zone or land used for a hospital, primary school or secondary school or land in a Public Acquisition Overlay to be acquired for a hospital, primary school or secondary school.
Page 3 of 9
Agriculture (other than Apiculture, Crop raising, Grazing animal production, Intensive animal production, Pig farm and Poultry farm)
Caretaker's house
Container deposit scheme centre
Education centre
Leisure and recreation (other than Informal outdoor recreation)
Materials recycling
Office
Place of assembly (other than Carnival, Cinema based entertainment facility and Circus)
Restricted retail premises
Retail premises (other than Shop and Take away food premises)
Sex services premises
Transfer station (other than Automated collection point and Container deposit scheme centre )
Must not be a primary or secondary school.
Utility installation (other than Minor utility installation and Telecommunications facility).
The land must be at least 30 metres from land (not a road) which is in an Activity Centre Zone, Capital City Zone, Commercial 1 Zone, Docklands Zone, residential zone or Rural Living Zone or land used for a hospital, an education centre or a corrective institution or land in a Public Acquisition Overlay to be acquired for a hospital, an education centre or a corrective institution.
The leasable floor area must not exceed the amount specified in the schedule to this zone.
Any other use not in Section 1 or 3
The land must be at least 30 metres from land (not a road) which is in an Activity Centre Zone, Capital City Zone, Commercial 1 Zone, Docklands Zone, residential zone or Rural Living Zone or land used for a hospital, an education centre a corrective institution or land in a Public Acquisition Overlay to be acquired for a hospital, an education centre or a corrective institution.
Any gas holder, or sewerage or refuse treatment or disposal works, must be at least 30 metres from land (not a road) which is in an Activity Centre Zone, Capital City Zone, Commercial 1 Zone, Docklands Zone, residential zone or Rural Living Zone, land used for a hospital, an education centre or a corrective institution or land in a Public Acquisition Overlay to be acquired for a hospital, an education centre or a corrective institution.
Page 4 of 9
33.01-2
14/01/2025 VC237
Section 3 - Prohibited
KINGSTON PLANNING SCHEME
Use
Accommodation (other than Caretaker's house)
Cinema based entertainment facility
Hospital
Intensive animal production
Pig farm
Poultry farm
Shop (other than Adult sex product shop, Convenience shop, Restricted retail premises and Sex services premises)
Application requirements
An application to use land for an industry or warehouse must be accompanied by the following information, as appropriate:
The purpose of the use and the types of processes to be utilised.
The type and quantity of goods to be stored, processed or produced
How land not required for immediate use is to be maintained
Whether a Development Licence, Operating Licence, Permit or Registration is required from the Environment Protection Authority
Whether a notification under the Occupational Health and Safety Regulations 2017 is required, a licence under the Dangerous Goods Act 1985 is required, or a fire protection quantity under the Dangerous Goods (Storage and Handling) Regulations 2022 is exceeded.
The likely effects, if any, on the neighbourhood, including:
Noise levels
Air-borne emissions
Emissions to land or water
– Traffic, including the hours of delivery and despatch
– Light spill or glare
Decision guidelines
Before deciding on an application, in addition to the decision guidelines in Clause 65, the responsible authority must consider, as appropriate:
The Municipal Planning Strategy and the Planning Policy Framework
The effect that the use may have on nearby existing or proposed residential areas or other uses which are sensitive to industrial off-site effects, having regard to any comments or directions of the referral authorities
The effect that nearby industries may have on the proposed use
Page 5 of 9
33.01-3
31/07/2018 VC148
KINGSTON PLANNING SCHEME
The drainage of the land.
The availability of and connection to services
The effect of traffic to be generated on roads
The interim use of those parts of the land not required for the proposed use
Subdivision Permit requirement
A permit is required to subdivide land
VicSmart applications
Subject to Clause 71 06, an application under this clause for a development specified in Column 1 is a class of VicSmart application and must be assessed against the provision specified in Column 2
Class of application
Subdivide land to realign the common boundary between 2 lots where:
The area of either lot is reduced by less than 15 percent. The general direction of the common boundary does not change.
Subdivide land into lots each containing an existing building or car parking space where:
The buildings or car parking spaces have been constructed in accordance with the provisions of this scheme or a permit issued under this scheme.
An occupancy permit or a certificate of final inspection has been issued under the Building Regulations in relation to the buildings within 5 years prior to the application for a permit for subdivision.
Subdivide land into 2 lots if:
The construction of a building or the construction or carrying out of works on the land:
– Has been approved under this scheme or by a permit issued under this scheme and the permit has not expired. – Has started lawfully
The subdivision does not create a vacant lot.
Exemption from notice and review
Information requirements and decision guidelines
Clause 59.01
Clause 59.02
Clause 59.02
An application is exempt from the notice requirements of section 52(1)(a), (b) and (d), the decision requirements of section 64(1), (2) and (3) and the review rights of section 82(1) of the Act This exemption does not apply to land within 30 metres of land (not a road) which is in a residential zone or land used for a hospital or an education centre or land in a Public Acquisition Overlay to be acquired for a hospital or an education centre
Page 6 of 9
KINGSTON PLANNING SCHEME
Before deciding on an application, in addition to the decision guidelines in Clause 65, the responsible authority must consider, as appropriate:
The Municipal Planning Strategy and the Planning Policy Framework
Any natural or cultural values on or near the land
Streetscape character
Landscape treatment
Interface with non-industrial areas.
33.01-4 15/03/2024 VC256
A permit is required to construct a building or construct or carry out works. This does not apply to:
A building or works which rearrange, alter or renew plant if the area or height of the plant is not increased
A building or works which are used for crop raising or informal outdoor recreation.
A rainwater tank with a capacity of more than 10,000 litres if the following requirements are met:
– The rainwater tank is not located within the building’s setback from a street (other than a lane) – The rainwater tank is no higher than the existing building on the site
– The rainwater tank is not located in an area that is provided for car parking, loading, unloading or accessway.
A building or works which are used for grazing animal production, except for permanent or fixed feeding infrastructure for seasonal or supplementary feeding constructed within 100 metres of:
A waterway, wetland or designated flood plain
A dwelling not in the same ownership
A residential or urban growth zone
Subject to Clause 71 06, an application under this clause for a development specified in Column 1 is a class of VicSmart application and must be assessed against the provision specified in Column 2
Class of application
Construct a building or construct or carry out works with an estimated cost of up to $1,000,000 where the land is not:
Within 30 metres of land (not a road) which is in a residential zone.
Used for a purpose listed in the table to Clause 53.10.
Used for an Adult sex product shop.
Information requirements and decision guidelines
Page 7 of 9
An application to construct a building or construct or carry out works must be accompanied by the following information, as appropriate:
A plan drawn to scale which shows:
– The boundaries and dimensions of the site
– Adjoining roads
– Relevant ground levels
– The layout of existing and proposed buildings and works.
– Driveways and vehicle parking and loading areas
– Proposed landscape areas
– External storage and waste treatment areas
Elevation drawings to scale which show the colour and materials of all buildings and works
Construction details of all drainage works, driveways and vehicle parking and loading areas
A landscape layout which includes the description of vegetation to be planted, the surfaces to be constructed, a site works specification and the method of preparing, draining, watering and maintaining the landscape area
Exemption from notice and review
An application is exempt from the notice requirements of section 52(1)(a), (b) and (d), the decision requirements of section 64(1), (2) and (3) and the review rights of section 82(1) of the Act This exemption does not apply to an application for a building or works within 30 metres of land (not a road) which is in a residential zone or land used for a hospital or an education centre or land in a Public Acquisition Overlay to be acquired for a hospital or an education centre
Before deciding on an application, in addition to the decision guidelines in Clause 65, the responsible authority must consider, as appropriate:
The Municipal Planning Strategy and the Planning Policy Framework
Any natural or cultural values on or near the land.
Streetscape character
Built form
Landscape treatment
Interface with non-industrial areas
Parking and site access
Loading and service areas
Outdoor storage
Lighting
Stormwater discharge.
Maintenance
All buildings and works must be maintained in good order and appearance to the satisfaction of the responsible authority
Page 8 of 9
PLANNING
Sign requirements are at Clause 52 05 This zone is in Category 2
Page 9 of 9