25 Flight Drive, Tullamarine - information Memorandum

Page 1


As Melbourne’s leading independent commercial property agency, we take pride in creating worth across all four points of this city.

01. Point of Interest

02. Point of View 03. Property Features

04. Property Particulars

05. Location

06. Sales Process

07. Appendices Floor Plan Private Sale & Lease Form

POINT OF INTEREST

FOR SALE OR LEASE BY CLOSING DATE OF 11TH DECEMBER 2025

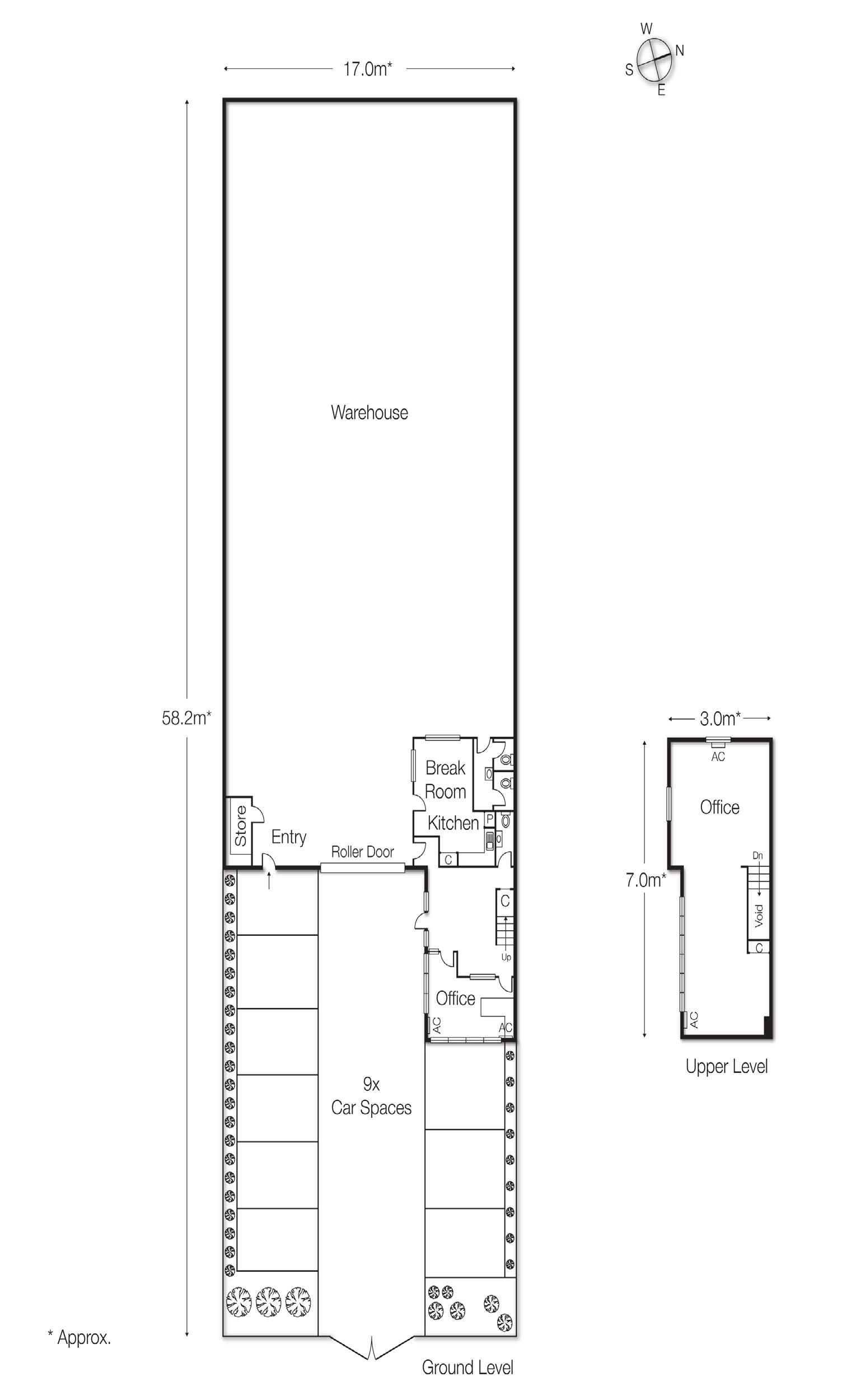
25 Flight Drive is a fully refurbished freehold with its engines already warm. Fresh from a complete internal and external overhaul — paintwork, carpets, lighting, landscaping — this 756 sqm* asset gives your operation the clarity, capacity, and corporate presence to hit altitude from day one. Inside, the warehouse-office balance is clean and considered, with upgraded amenities, climate control, modern finishes, and 10 car spaces pulling their weight in day-to-day efficiency.

Outside, the 1,016 sqm* landholding and revitalised façade ensure your brand lands exactly the way it should to the public. And the location speaks for itself. Minutes from Melbourne Airport and surrounded by high-performing logistics operators, you’re also only 2 km* from Western Ring Road and even less to Calder Freeway.

Beyond the present, the Melbourne Airport Rail Link (now underway) will connect you directly to the Sunshine-Metro Tunnel corridor. The Third Runway Project will increase capacity, create thousands of jobs, and intensify the demand for aviation-aligned commercial and industrial services. And ongoing road and local upgrades — from the Tullamarine Freeway to local arterials — are strengthening the entire movement network that businesses in this precinct rely on.

Total building area.
Total land area.
Complete refurbishment of exterior and interior. To Calder Freeway.
From Western Ring Road. Zone.
To Tullamarine Freeway. To Westfield Airport West.

John Nockles | 0404 530 393

john.nockles@cva.melbourne

“25 Flight Drive is the freehold that proves the best investments come fully fuelled. In a market where quality barely touches the tarmac before being claimed, this asset gives buyers and tenants a runway to grow without spending a dollar more.”

John’s experience in commercial real estate is now pushing a decade, and over that time, he’s proud to see change when it comes to property in Melbourne. By adopting a lateral approach within a linear industry, he understands that success within Melbourne’s commercial real estate market occurs by looking beyond what has been done, to what can be. It’s an approach that mirrors this city’s originality, commercially — and with it, creativity that extends beyond St Kilda Road.

Leo Mancino | 0418 343 147

“Flight Drive is one of those addresses that gives you leverage before you’ve even turned the lights on — access, exposure, and a location occupiers compete for.”

It’s the expertise accumulated over three decades paired with a realistic outlook on life, that makes Leo not just a seasoned director to the CVA team, but a significant asset when it comes to dealing with yours. From personable first impressions to successful business transactions, he has not just built a solid and loyal client base, but developed negotiation techniques that have earned him great

Freehold opportunities with this level of finish — in a precinct this tightly held — are the exception, not the rule. Recently refurbished from façade to fitout, 25 Flight Drive arrives as a fully refreshed Commercial 2 Zone asset with vacant possession, ready for the next occupier to roll in without spending another cent.

Spanning 756 sqm* of building area on a commanding 1,016 sqm* landholding, the property offers a balanced blend of warehouse functionality and office amenity, complemented by 10 on-site car spaces and upgraded interiors throughout. Fresh paint, new carpet, improved lighting, and a revitalised exterior give the whole site a modern, corporate edge — ideal for businesses that want presentation and practicality in equal measure.

Positioned within Tullamarine’s established industrial and logistics heartland, the address provides immediate access to Melbourne Airport, Keilor Park Drive, the M80 Ring Road, Calder Freeway and Tullamarine Freeway. The present is already strategic, but the future of Tullamarine’s infrastructure is looking even better — more on that, later.

Principle Outgoings

Site Details

Title particulars

Certificate of Title — Volume 10711 Folio 327 Lot 1 on Plan of Subdivision PS506865

Zoning Commercial 2 Zone (C2Z)

Planning Overlays

Melbourne Airport Environs Overlay - Schedule 2 (MAEO2)

Municipality City of Hume

All signs point to: Flight Drive.

Tullamarine isn’t just where the Ubers go — it’s one of Melbourne’s most active employment and logistics engines. You’re surrounded by multi-national operators, transport specialists, freight forwarders, aviation services, and high-volume distributors who choose this pocket for its reliability and round-the-clock access.

Gateway advantage.

Literally. You’re within minutes of Melbourne Airport, Keilor Park Drive, the M80 Ring Road, Calder Freeway and Tullamarine Freeway. Whether it’s freight, staff, clients or suppliers, everything moves faster from here.

Fuel for the day.

This precinct knows how to keep operators caffeinated. Local favourites like Little Sister Café, Cravins, and the ever-reliable Degani are all within a short drive, while the nearby Airport West and Gladstone Park hubs serve up everything from quick lunches to corporate meeting spots.

Errands made easy.

Need banking, groceries, medical services, or a midday gym fix? Westfield Airport West is just moments away, offering major retailers, supermarkets, gyms, pharmacies, and all the essentials operators tend to need within arm’s reach. Gladstone Park Shopping Centre adds even more convenience to the mix.

In good company.

The neighbourhood reads like a who’s-who of industrial and logistics operators: DHL, Toll, TNT, Australia Post, and a mix of aviation-aligned businesses that capitalise on the airport’s proximity.

Onward connections.

If you’re heading further afield, the transport links do the heavy lifting. The M80 sends you east or west, the Calder gets you regional in a heartbeat, and the Tullamarine Freeway draws a straight line into the CBD. For staff relying on public transport, multiple bus routes service the precinct with direct links to surrounding train stations.

In a suburb where quality stock barely taxis before it’s taken, a fully refurbished freehold with vacant possession is the kind of opportunity that should ignite the fight for Flight response. AND THE POINT?

All signs point to: Tullamarine.

Historically, while nearby residential zones grew, Tullamarine’s identity remained rooted in light industry and aviation-linked supply chain infrastructure — its economic engine always humming in the background.

Today, Tullamarine is home to around 6,733 people, with a median age of 39. The suburb’s demographic is a mix of families (about 64%) and renters, with strong ties to the local industrial precinct and airport operations. Its median weekly household income is approximately $1,505, according to the 2021 Census.

On the residential front, the property market is quietly thriving. Over the past five years, houses in Tullamarine have appreciated by 25.6%, while units have increased by 29.7%. As of October 2025, the median value of a house is around $803,351, and a unit comes in at about $580,172. The rental scene is strong too — median rent sits at $598/week for houses and $550/week for units.

Investors are paying attention: on the unit side,

gross rental yields are hovering around 4.8%, per recent suburb reports. What underpins Tullamarine’s draw isn’t just residential stability — it’s the industrial backbone. The suburb is heavily zoned for industry, with many properties structured for warehouse, logistics, and officewarehouse use.

More than that, it benefits directly from its proximity to Melbourne Airport. The airport’s presence has shaped road networks, land use, and economic growth — making Tullamarine a critical node in Greater Melbourne’s logistics infrastructure.

On the commercial front, demand remains tight. A recent off-market leasing deal handled by Colliers saw a 5,299 sqm* warehouse snapped up ahead of broader marketing, underlining how compressed vacancy is in this precinct. The deal also highlighted strong effective rent growth in 2024/25, despite broader economic headwinds.

SALES PROCESS

PRIVATE SALE OR LEASE BY CLOSING DATE

A Private Sale/Lease by Closing Date is a method where a property is released to the market with a clearly defined deadline for submitting offers. This approach helps generate strong interest and a sense of urgency among prospective buyers and tenants, encouraging them to act promptly.

During the campaign period, interested parties are invited to submit their offers to the vendor—via the selling agent—on or before the nominated closing date. While the timeframe creates momentum, this method also provides the vendor with valuable flexibility. They can consider a variety of terms and conditions, making the property accessible to a broader range of potential purchasers and tenants.

In addition, offers submitted prior to the closing date are welcomed and will be carefully reviewed, giving motivated parties the opportunity to secure the property ahead of schedule if an acceptable arrangement is reached.

For more information, contact

John Nockles

0404 530 393

john.nockles@ cva.melbourne

Leo Mancino

0418 343 147

leo.mancino@ cva.melbourne

SITE

Private Sale & Lease Form

Point of interest: 25 Flight Drive, Tullamarine

Complete this form and return it to our office via email or post by Thursday 11th December 2025 at 12PM

ADDRESS TO: CVA Property Consultants

Attention: John Nockles & Leo Mancino

POST or HAND DELIVER 18-20 Russell Street, Melbourne VIC 3000

E-MAIL

Please submit your offer to the agent you have been working with throughout the campaign.

john.nockles@cva.melbourne leo.mancino@cva.melbourne

Purchasing Entity Entity/Individual: Address:

Attention:

ABN: Telephone: Email:

Proposed Purchase Terms

Purchase Price: Deposit (%): Settlement Period: Conditions:

Solicitor Company: Attention: Address:

Telephone:

Email:

Additional information or special conditions, which supports or clarifies a Registrant’s submission, may be annexed to this ‘Private Sale Form’. The Contract of Sale & Vendor’s Statement has been available during the marketing campaign and parties acknowledge that they have received a copy

Signed for and on behalf of the Purchasing Entity Date

Name of Signatory (PLEASE PRINT)

NOTE: The Vendor has the right, at its sole discretion, to vary the sales process, to postpone or cancel the sale of the property and to modify or add any terms and conditions to any proposed contract of sale or Vendor’s Statement which may be made available to a potential purchaser.

Turn static files into dynamic content formats.

Create a flipbook
Issuu converts static files into: digital portfolios, online yearbooks, online catalogs, digital photo albums and more. Sign up and create your flipbook.