52-64
OLD GEELONG ROAD HOPPERS CROSSING
AN INFORMATION MEMORANDUM PRESENTED BY CVA
![]()
AN INFORMATION MEMORANDUM PRESENTED BY CVA

Not every investment needs imagination — some already come with scale, income, and a location that pays dividends. Five adjoining freeholds with over 1.2 ha of Commercial 2 land, a combined income of approximately $1.4 million+ anchored by Spotlight and other national brands, and a commanding 102 m frontage to Old Geelong Road — this is the Golden Mile of the West at its brightest.

• 5 individual titles offered separately or as a whole
• Diverse mix of national brands incl. Spotlight, government, medical and financial tenants
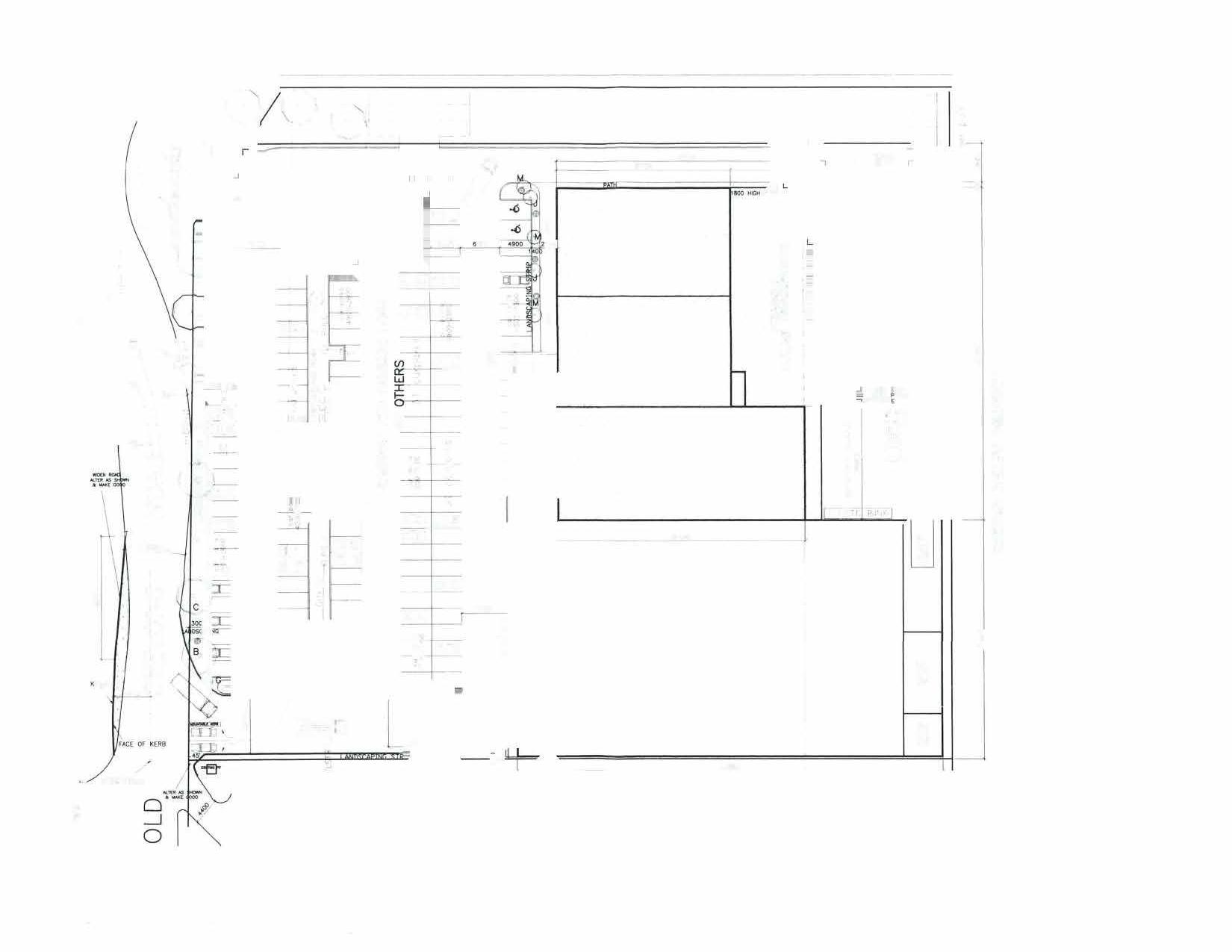
• Total land area 1.21 ha
• Total building area 4,733 sqm
• Commercial 2 zoning (C2Z) — supporting large-format retail, office and commercial services
• $1,458,909 per annum total income (estimated as at 01/01/2026)
• Individual rents ranging from $149,809 to $540,974
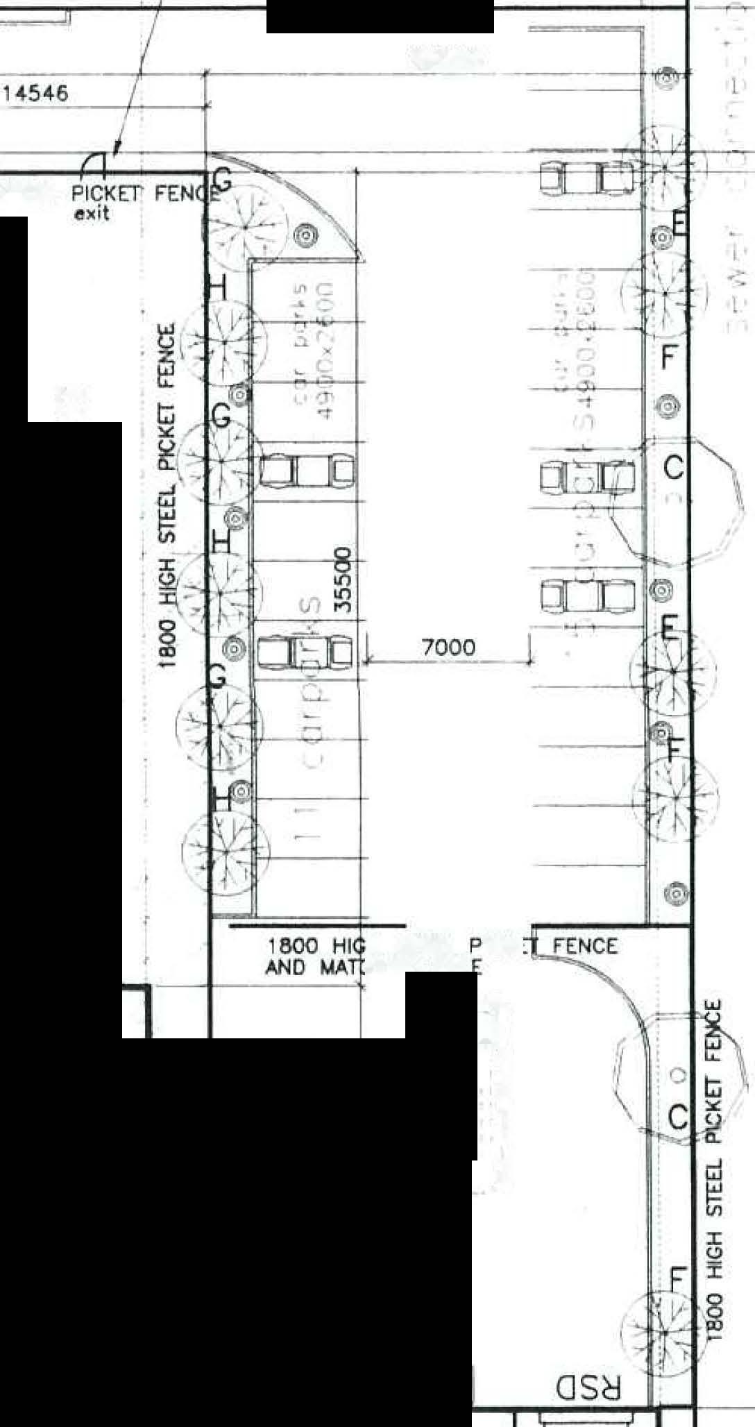
• 192 common car spaces
• Significant 102 m frontage to Old Geelong Road
• Abutting Hoppers Crossing Shopping Centre including Coles and Woolworths
• Direct access to Princes Freeway (M1)
• 450 m to Hoppers Crossing railway station




Positioned on one of Melbourne’s most powerful commercial stages, this commerical retail investment isn’t just real estate, it’s retail royalty. With over 4,700 sqm* of building across five individual adjoining titles and a commanding 102 m* frontage to Old Geelong Road, the property is as much about presence as it is about performance. Sitting within a 12,162 sqm* landholding, it benefits from 192 common car spaces, a Commercial 2 zoning that supports future flexibility, and a high-profile location in the heart of the Golden Mile of the West.
Tenancy strength is the backbone here, with a combined income stream of approximately $1.458 million. This allows for the purchase of individual properties generating annual returns between $149,809 to $540,974 per annum underpinned by a diverse mix of secure, high-performing occupiers. Spotlight anchors the site on a long-term lease, joined by national names such as Tabcorp, VicRoads, as well as medical, financial, and service tenants like Peak Health Medical Centre and Noone Schoolwear. This breadth of tenancy not only diversifies income streams but also reflects the precinct’s evolution — from traditional bulky goods retail to a mixed-use hub of health, services, and homemaker retail. For investors, that means both immediate cash flow and long-term adaptability in one of Melbourne’s fastest-growing corridors.


Tenant Spotlight Pty Ltd Use Spotlight Store
Rental p/a as at 1/1/25 based on 2.5% increase on 21/10/25 $540,974.50 Area m2













2

TITLE PARTICULARS
52 Old Geelong Road, Hoppers Crossing:
Lot 1 on Plan of Subdivision 442048E VOLUME 10576 FOLIO 965
54-64 Old Geelong Road, Hoppers Crossing:
Lot S2 on Plan of Subdivision 442048E VOLUME 10576 FOLIO 966
Lot 2 is undergoing further subdivision into 4 allotments awaiting registration at land titles office.
ZONING
Commercial 2 Zone (C2Z).
SITE DETAILS
4,733 sqm total building area. 12,162 sqm total land area.
MUNICIPALITY
City of Wyndham



In Hoppers Crossing, this is the address with gravitational pull — drawing shoppers, retailers, and returns in equal measure. So much so that you don’t need directions to Old Geelong Road. Just follow the traffic, the trolleys, and the retail giants.
The major drawcards.
There’s a Spotlight on this strip, and beyond this allotment, you’ll find Harvey Norman, Bunnings, JB Hi-Fi, Amart, and Officeworks
all within the bulky goods precinct. Next door at Hoppers Crossing Shopping Centre, Coles, Woolworths and Liquorland draw the locals in daily, while McDonald’s and 7-Eleven across the road handle convenience.
The commute.
Access to Melbourne’s major western arterial is only metres away via the recently constructed M1 on/off ramp connecting you to the CBD in 25 km, or head to Geelong 40 km west. Hoppers



Crossing railway station is also only 450 m away, servicing the Werribee line and the locals within the postcode.
The amenities.
Beyond the showrooms and shops, the surrounding amenities support a better nine-to-five for the workforce here. Fitness First is practically next door, while BodyFit are 600 m away too. For a Friday lunch, the Tigers Clubhouse is a suburban institution,
but you’ll find an abundance of cafes and quick takeaway options at your doorstep.
Zoned Commercial 2, although unofficially classified as a major activity centre, Wyndham City Council’s 2016 Activity Centre Strategy report states that this hub could convert to commercial 1 zoning, anticipating a more intensive multi-level development on the horizon.


From family streets to commercial heartbeat, Hoppers Crossing has transformed into one of Melbourne’s most active growth corridors. Once prized simply for its community feel and accessible housing, the suburb now pulses with largeformat retail, service hubs, and national brands anchoring the Golden Mile along Old Geelong Road.
With Wyndham projected to grow from 300,000 to over 500,000 residents in the next 20 years, Hoppers Crossing is firmly on the map for investors chasing scale, exposure, and future upside. Strong-performing homemaker centres, automotive dealerships, and medical and service tenants have positioned the suburb as a flagship destination in Melbourne’s west.
Purchasers and tenants are clearly backing Hoppers Crossing’s bulky-goods precinct with sales and leasing campaigns attracting strong engagement from a diverse buyer and tenant profile.
Located just 25 km from the CBD with direct freeway and rail access, it combines connectivity with catchment growth, making it a suburb where commercial opportunity meets strategic advantage. High-quality sites with frontage and flexibility remain scarce — and those that do exist are commanding attention.


At CVA, we provide prospective purchasers full transparency, fairness, and respect during the EOI process.
To make our point, we’ve defined and outlined the process below so you’re across it prior to submitting an offer.
Offers are due no later than the date and time advertised for the EOI campaign. They must be submitted through this form with every section completed, signed and emailed to the relevant contact persons by campaign closure. Any offers submitted after this time will be deemed as noncompliant.
Our point of view: we strongly encourage all interested parties to submit their best offer, as the vendor reserves the right to accept an initial offer or to deal exclusively with certain offers in a second round.
All offers will be compiled and presented to the vendor for their consideration after the closing of the EOI campaign.
Upon feedback, we will contact all parties promptly to communicate the vendors instructions relating to their offer.
In the event of a second round, we will request all offers to be provided on a contract of sale with a deposit payable to the CVA Trust account, for the vendor’s consideration.
“WITH ZONING PROSPECTS AND MAJOR ACTIVITY CENTRE STATUS, THIS SITE ISN’T WAITING FOR APPROVAL — IT’S WAITING FOR FUTURE VISION.”

CHARLES CINI
Chief Executive Officer / Development Consultancy 0411 423 389
charles.cini@cva.melbourne
As CEO of CVA, Charles has an impressive history of over 35 years in commercial property. Focusing on establishing CVA and promoting its values, culture and most importantly, creating worth, Charles has recently focused his energy on identifying opportunities within the development arena. With a record of impressive successes, he has been instrumental in creating and establishing some of Melbourne’s most lucrative and longstanding projects.
“THINK BEYOND THE LEASES — THIS IS A LAND BANK WITH BUILT-IN RETURNS AND A FRONT-ROW SEAT TO MELBOURNE’S WESTWARD GROWTH.”

Director - Sales 0439 977 121
daniel.philip@cva.melbourne
An agent that turns first impressions into lasting commitments. Since the early days of his career, Daniel has established a level of service that is defined by indepth market knowledge and responsive communication. Committed to creating value in the commercial real estate opportunities he matches with his clients’ objectives, and the ability to think outside the square. Especially if that extends well beyond Melbourne’s inner-city grid.
“300M TO PRINCES HIGHWAY, 420M TO THE STATION, AND METRES FROM SERIOUS RETAIL MUSCLE — THIS CORNER OF HOPPERS ISN’T CROSSING, IT’S CONQUERING.”

LEO MANCINO
Director - Western Region 0418 343 147
leo.mancino@cva.melbourne
It’s the expertise accumulated over three decades paired with a realistic outlook on life, that makes Leo not just a seasoned director to the CVA team, but a significant asset when it comes to dealing with yours. From personable first impressions to successful business transactions, he has not just built a solid and loyal client base, but developed negotiation techniques that have earned him great respect in this city’s industry.
“WHEN YOUR NEIGHBOURS ARE COLES, WOOLIES, AND HOMEMAKER HEAVEN, YOU DON’T JUST INVEST — YOU DOMINATE.”

IAN ANGELICO
Managing Director - Agency 0418 336 088
ian.angelico@cva.melbourne
In more than 30 years, Ian has witnessed the successful signing of more than two thousand commercial real estate transactions – which is more of a legacy, than a track record. And it’s one that has been achieved by adopting a methodical approach amongst a myriad of changing variables. It’s one that has been sharpened through his holistic exposure to commercial projects across all points of Melbourne. Ian ensures that at the end of the day, it’s maximising value that determines his success.

PARISH:
TOWNSHIP:
SECTION:
CROWN ALLOTMENT:
CROWN PORTION:
TITLE REFERENCE:
LAST PLAN REFERENCE:
POSTAL ADDRESS: (At time of subdivision)
UNDER SECTION 37 OF THE SUBDIVISION ACT 1988
LOCATION OF LAND
MGA 2020 Co-ordinates (Of approx. centre of land in plan) TARNEIT
S2 ON
442048E 52-64 OLD GEELONG ROAD, HOPPERS CROSSING 3029 E 298 225ZONE 55 N 5 804 925 PLAN OF
VESTING OF ROADS AND/OR RESERVES
IDENTIFIER COUNCIL/BODY/PERSON
DEPTH LIMITATION: 15 metres applies to Crown Allotment 15 only.
SURVEY
This plan is based on survey.
STAGING
This is a staged subdivision.
Planning Permit No.
This survey has been connected to TARNEIT PM 13 In Proclaimed Survey Area No. -
Median: Boundaries shown marked Interior Face: Boundaries shown marked Exterior Face: All other boundaries. -Common Property. PS442048E/S2 LOTS IN THIS PLAN MAY BE AFFECTED BY ONE OR
For details of Owners Corporation(s) including purpose, responsibility, entitlement &
EASEMENT REFERENCE

Boundaries shown by thick continuous lines are defined by buildings.
LOCATION OF BOUNDARIES DEFINED BY BUILDINGS
No Easement in this stage is labeled E-2, E-3
Common Property No. 1 is all the land in the plan except the lots, Common Property No. 2 & Common Property No. 3
ALL INTERNAL COLUMNS, SERVICE DUCTS, PIPE SHAFTS AND CABLE DUCTS WITHIN THE BUILDING ARE DEEMED TO BE PART OF COMMON PROPERTY NO. 2 THE POSITIONS OF THESE COLUMNS, SERVICE DUCTS, PIPE SHAFTS AND CABLE DUCTS MAY NOT HAVE BEEN SHOWN ON THE DIAGRAMS CONTAINED WITHIN.

PS442048E/S2













As an owner of an investment property, claiming maximum depreciation deductions can make a big difference to your cash flow. BMT Tax Depreciation are pleased to inform you of the likely deductions you could be entitled to claim.
Depreciation is the wear and tear of a building and the plant and equipment items within it. The Australian Taxation Office allows property investors to claim this depreciation as a deduction in their annual tax return, meaning that they pay less tax.
Research shows that approximately 80 per cent of property investors are not claiming the maximum depreciation they are entitled to, which can lead to thousands of dollars missed in tax deductions.
Depreciation facts:
BMT guarantee if we can’t find double our fee in deductions in the first full financial year there will be no charge for our services
Claim thousands through property depreciation
As an owner of an investment property, claiming maximum depreciation deductions can make a big difference to your cash flow
BMT Tax Depreciation are pleased to inform you of the likely deductions you could be entitled to claim.
BMT guarantee if we can’t find double our fee in deductions in the first full financial year there will be no charge for our services.
If you are successful in purchasing this property, please contact BMT Tax Depreciation on 1300 728 726 or email info@bmtqs.com.au to arrange your depreciation schedule.
Expected deductions:
By obtaining a BMT Tax Depreciation Schedule for your property located at L Lot 1-5 52-64 Old Geelong Road, HOPPERS CROSSING VIC 3029 your depreciation deductions for the first full year of ownership are outlined below.
Note: Depreciation deductions obtained will depend on the purchase price and unit size.
Disclaimer: This report has been compiled on the basis of information available. Though efforts have been made to verify or establish the accuracy of all material, it is not possible to warrant that it is accurate. Some predictions are estimates only and necessarily based on assumptions which may not occur. All parties should make their own independent enquires with regard to all the information contained in this report. The report is intended to be general information only and will not form part of any contract nor is it to be taken as any form of any representation, warranty or inducement. The agents and representatives do not accept any responsibility for and will not be liable in respect of any of the contents of this report.

Point of interest: 52-64 Old Geelong Road, Hoppers Crossing
Complete this form and return it via email by Wednesday 26 November, 3:00pm 2025
Please submit your offer to the agent you have been working with throughout the campaign
EMAIL TO: CVA Property Consultants
Attention: Charles Cini, Daniel Philip, Ian Angelico, Leo Mancino charles.cini@cva.melbourne, daniel.philip@cva.melbourne, ian.angelico@cva.melbourne, leo.mancino@cva.melbourne
Purchasing Entity Entity/Individual:
Address:
Attention:
Telephone:
Proposed Purchase Terms
Lot Number:
Purchase Price: Deposit (%): Settlement Period:
Conditions:
Solicitor
Company:
Attention:
Address:
Telephone:
ABN:
Email:
Email:
Additional information or special conditions, which supports or clarifies a Registrant’s submission, may be annexed to this ‘Expressions of Interest Form’. The Contract of Sale & Vendor’s Statement has been available during the marketing campaign and parties acknowledge that they have received a copy
Signed for and on behalf of the Purchasing Entity Date
Name of Signatory (PLEASE PRINT)
NOTE: The Vendor has the right, at its sole discretion, to vary the sales process, to postpone or cancel the sale of the property and to modify or add any terms and conditions to any proposed contract of sale or Vendor’s Statement which may be made available to a potential purchaser.

At CVA, we provide prospective purchasers full transparency, fairness, and respect during the EOI process
To make our point, we’ve defined and outlined the process below so you’re across it prior to submitting an offer.
1. Submitting Offers:
Offers are due no later than the date and time advertised for the EOI campaign. They must be submitted through this form with every section completed, signed and emailed to the relevant contact persons by campaign closure. Any offers submitted after this time will be deemed as non-compliant.
Our point of view: we strongly encourage all interested parties to submit their best offer, as the vendor reserves the right to accept an initial offer or to deal exclusively with certain offers in a second round.
2. Review Process:
All offers will be compiled and presented to the vendor for their consideration after the closing of the EOI campaign.
Upon feedback, we will contact all parties promptly to communicate the vendors instructions relating to their offer.
In the event of a second round, we will request all offers to be provided on a contract of sale with a deposit payable to the CVA Trust account, for the vendor’s consideration.
NOTE: The Vendor has the right, at its sole discretion, to vary the sales process, to postpone or cancel the sale of the property and to modify or add any terms and conditions to any proposed contract of sale or Vendor’s Statement which may be made available to a potential purchaser.
SOUTHERN
EASTERN OFFICE 2/5 Corporate Blvd, Bayswater VIC 3153
WESTERN OFFICE 3B/36 Hume Road, Laverton North VIC 3026