As Melbourne’s leading independent commercial property agency, we take pride in creating worth across all four points of this city.
01. Point of Interest 02. Point of View
Property Features 04. Property Particulars 05. Location
06. Sales Process
07. Appendices Floor Plan Private sale by closing date form


POINT OF INTEREST
Private sale by closing date: Thursday 23rd October 2025 at 3pm.
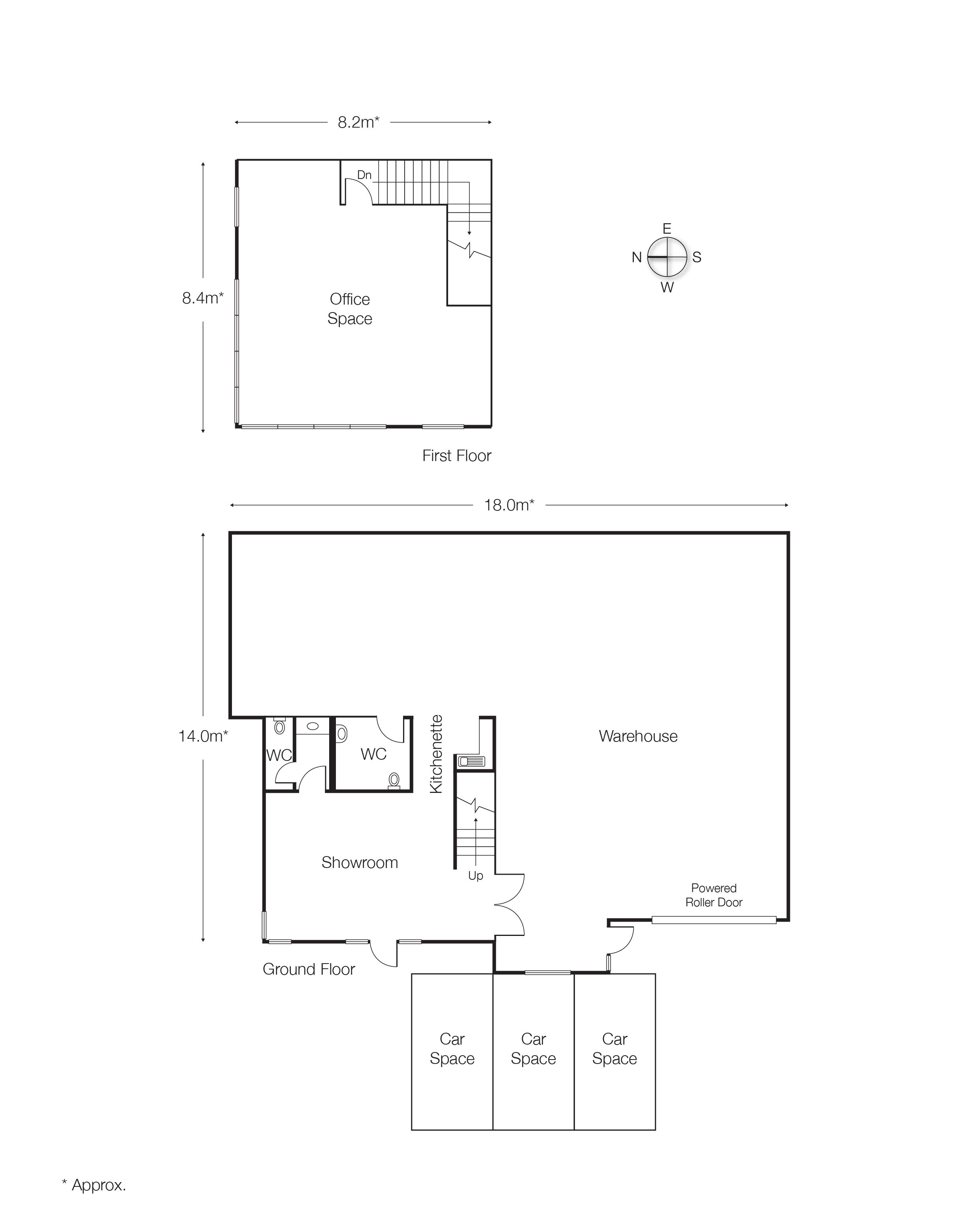
In Mitcham’s tightly held industrial pocket, this significant power play puts your business on the corner — literally and strategically. Unit 38 combines high-clearance warehousing with sleek office modernity, offering a reception area, carpeted workspace and heating/cooling to keep business running smoothly. There’s a container height roller door and dedicated loading zone, while a kitchenette, toilet amenities and three ontitle car spaces cover the practicalities.
Positioned within a well-maintained complex buzzing with established businesses, the site also comes with an onsite café — perfect for quick meetings or morning refuels. With unbeatable connectivity to Eastlink, Maroondah Highway and every major arterial worth naming, it’s as easy to get here as it is to get moving.

For owner-occupiers, the corner positioning means visibility and functionality rolled into one. For investors, it’s a low-maintenance asset in a tightly held industrial pocket, where demand consistently outweighs supply. For both, cornering Cook Road is the smartest move you’ll make.



Stan Dawidowski | 0400 448 755 stan.dawidowski@cva.melbourne
“Strategically placed, seriously impressive cook road, delivers the goods.”
It’s old school work ethic meets new school adaptability. The diligence that Stan brings to your property transaction is one that cannot be taught — only developed over time. He’s a specialist in project work, off-theplan sales and the current status of the market. It’s his willingness to share this professional advice with you that has Stan’s customers transitioning to clients before final contracts are signed.
Charlie Hicks | 0420 643 202 charlie.hicks@cva.melbourne
“Corner the market, literally and figuratively”.
Naturally business and strategy minded, but with the credentials to back it up — Charlie has a Bachelor of Business and Arts that keeps his processes sharp and campaigns organised. In saying that, his intuition has driven a large part of his success, from his relationship-building to the trust he fosters between colleagues and clients alike. It’s why CVA knew they had a leading Property Executive on their hands, and why Charlie channelled his media experience into creating worth across all points of Melbourne. Hardworking. Organised. Reliable. But those around him for more than a moment would say that he has a way of getting along with everyone. And while the saying ‘fail to plan, plan to fail’ is used by many, they’re words Charlie lives by — and it’s exactly

The property presents a well-balanced mix of office and warehouse improvements designed for functionality and modern appeal. The ground floor office/showroom features timber-style flooring, a glass entry door and generous natural light, creating a bright and welcoming space for clients and staff. Upstairs, the first-floor office provides a professional setting with full-height windows, carpet tiles, suspended ceilings and ducted air-conditioning, delivering comfort and flexibility for a range of office layouts.
The warehouse area is equally impressive, offering high-clearance, clear-span space with epoxy-coated floors, insulated roofing and solid concrete walls, making it suitable for storage, light manufacturing, or distribution. A motorised roller shutter door allows for efficient access and handling of goods, while the layout provides excellent flow between office and warehouse areas. Overall, these improvements combine to deliver a clean, versatile and highly functional premises, ideal for a wide range of commercial or industrial users seeking a modern and practical workspace.


Principle Outgoings
Council Rates:
Water Rates:
Title particulars
$3,857.85 per annum*
$1,216.00 per annum*
Owners Corporation: $2,403.60 per annum*
Land Tax (Single Holding): $975.00 per annum*
Certificate of Title — Volume 11368 Folio 841 Lot 38 on Plan of Subdivision 701357
Zoning Industrial 3 Zone (IN3Z)
Planning Overlays
Development Contributions Plan Overlay - Schedule 1 (DCPO1)
Municipality City of Whitehorse

All signs point to: Cook Road
Cook Road, Mitcham offers a prime business location with excellent connectivity, strong commercial presence and everyday convenience. Here are some notable aspects and benefits of buying property in this area:
Prime Connectivity:
Located close to Eastlink, Whitehorse Road, and Mitcham Road, Cook Road offers direct routes to Melbourne CBD and key eastern suburbs. This makes it ideal for businesses that rely on transport, logistics, and easy access for clients.
Thriving Business Hub:
The area is home to a wide range of established companies, from warehouses and showrooms to light manufacturing. This creates a supportive ecosystem where businesses can benefit from nearby suppliers, partners and service providers.
Public Transport Access:
With Mitcham Train Station and multiple bus routes just minutes away, staff and visitors have reliable transport options. This accessibility adds to the appeal for businesses looking to attract and retain employees.
Generous Parking Options:
Many properties along Cook Road feature on-site parking and surrounding street availability. This provides convenience for staff while ensuring clients and delivery vehicles have easy access without the congestion found in inner-city areas.

Lifestyle & Amenities:
The surrounding precinct includes cafes, retail outlets, gyms and essential services. These nearby conveniences not only support day-to-day business needs but also enhance work-life balance for staff.
Cook Road, Mitcham is a prime business destination offering excellent connectivity to major roads and public transport. With a thriving commercial hub, ample parking and nearby amenities, it provides everything a business needs to grow and succeed. AND THE POINT?

