Information Memorandum - 377-379 Sydney Road, Coburg

Page 1


As Melbourne’s leading independent commercial property agency, we take pride in creating worth across all four points of this city.

01. Point of Interest 02. Point of View

Property Features 04. Property Particulars 05. Location

06. Sales Process

07. Appendices Sale Process Private Sale Form Floorplan

POINT OF INTEREST

PRIVATE SALE BY CLOSING - THURSDAY 16TH OCTOBER

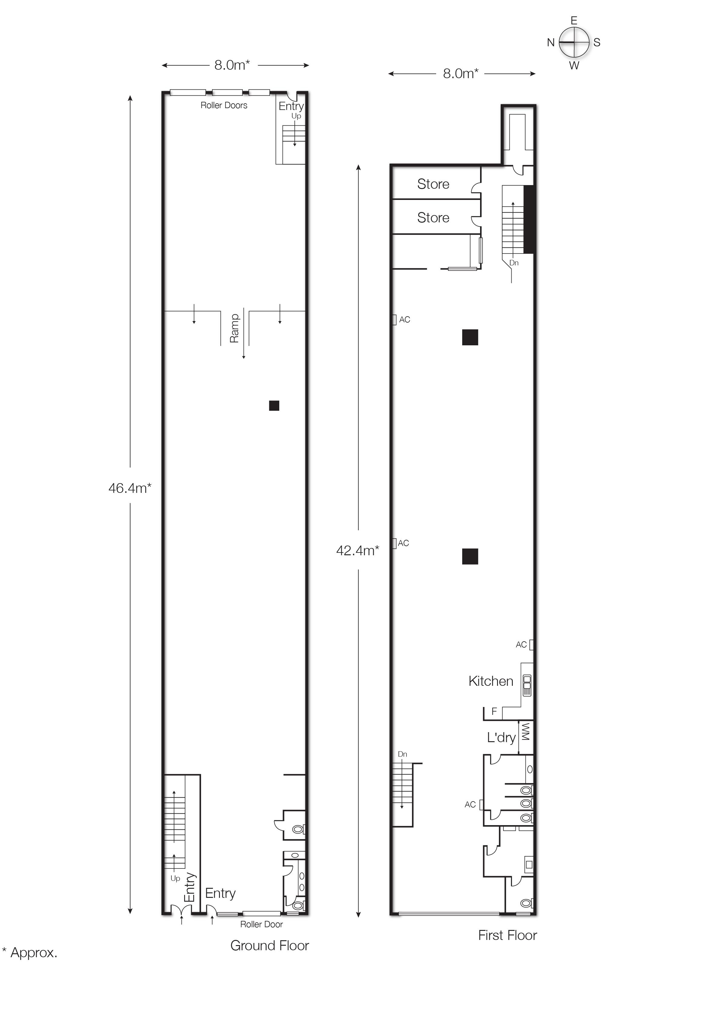
Coburg might just be commercial real estate’s next big headline, and this is your opportunity to write your own growth-filled chapter. Sitting squarely on the suburb’s busiest arterial, Sydney Road sees over 19,000+ passing cars daily, and your frontage could be a welcome distraction from morning traffic. The versatile space takes up 416 sqm* of land with an 800 sqm* building spread across two levels and offering dual entry points. The ground floor offers spacious office space plus access to 500 public car parks at the rear, while the upstairs floor is currently leased as a studio/warehouse hybrid. Whether you’re after substantial space or the buzz of multiple tenancies, you’ll find it right here.

And if your household-name neighbours — Woolworths, Coles, and Chemist Warehouse — are anything to go by, you’ll be joining a hub that pulls in serious foot traffic. Getting around is easy: CityLink is one turn away via Bell Street to the north or Moreland Road to the south, and if you’re PT-inclined, tram 19 stops right outside, travelling to Flinders Street, while Coburg Station is a 6-minute* walk.

Car Parking

Access to 500 poblic car spaces

Total building area.
Total land area.
To Coburg Railway Station 8 metres* to Sydney Road
To Bell Street. Zoning.
To Moreland Road.

Suburb trajectory: growing. Daily passers-by: steady. Rental yields: up year on year. If you’re in the market for a commercially savvy investment in a buzzing environment, all signs point to the north.

Luca Angelico | 0447 772 782 luca.angelico@cva.melbourne

“Opportunities like this don’t come up often on Sydney Road. With 19,000+ cars passing daily and Woolworths, Coles, and Chemist Warehouse as your neighbours, this property sits at the heart of Coburg’s growth corridor — a proven formula for strong visibility and tenant demand. ”

With an interest in commerce and experience in construction management, Luca has both the creativity and practical problem-solving skills needed to cut it in this industry. Enthusiastic. Committed. Diligent. Having joined CVA in 2017, it was 2020 that saw him become a Sales and Leasing Executive. A role in which Luca is able to showcase his enthusiastic side, fixated on even the smallest of details which make all the difference in helping both developers and investors alike. It’s all of this that will keep you interested in working with him, well beyond the point at which your transaction concludes.

Craig McKellar | 0431 892 780 craig.mckellar@cva.melbourne

“This is more than just a building — it’s a foothold in one of Melbourne’s most dynamic activity centres. Offering scale, versatility, and exceptional connectivity, it’s the kind of asset that delivers immediate returns with long-term growth upside.”

Craig has been transacting commercial real estate in Melbourne’s north for more than a decade. And in that time, he’s marvelled at how the properties within this point of the city have adapted to the burgeoning urban landscape. It’s a transformation he has witnessed not just as a real estate agent but a property consultant, too. He’s equipped with the resources to think beyond today and forecast

Luca Angelico | 0447 772 782 luca.angelico@cva.melbourne

Leo Mancino | 0418 343 147 leo.mancino@cva.melbourne

“Opportunities like this don’t come up often on Sydney Road. With 19,000+ cars passing daily and Woolworths, Coles, and Chemist Warehouse as your neighbours, this property sits at the heart of Coburg’s growth corridor — a proven formula for strong visibility and tenant demand. ”

“Whether you’re chasing substantial space or a multi-tenancy investment, this property delivers flexibility in one of Melbourne’s most in-demand corridors.””

It’s the expertise accumulated over three decades paired with a realistic outlook on life, that makes Leo not just a seasoned director to the CVA team, but a significant asset when it comes to dealing with yours. From personable first impressions to successful business transactions, he has not just built a solid and loyal client base, but developed negotiation techniques that have earned him great respect in this city’s industry.

With an interest in commerce and experience in construction management, Luca has both the creativity and practical problem-solving skills needed to cut it in this industry. Enthusiastic. Committed. Diligent. Having joined CVA in 2017, it was 2020 that saw him become a Sales and Leasing Executive. A role in which Luca is able to showcase his enthusiastic side, fixated on even the smallest of details which make all the difference in helping both developers and investors alike. It’s all of this that will keep you interested in working with him, well beyond the point at which your transaction concludes.

“This is more than just a building — it’s a foothold in one of Melbourne’s most dynamic activity centres. Offering scale, versatility, and exceptional connectivity, it’s the kind of asset that delivers immediate returns with long-term growth upside.”

Craig has been transacting commercial real estate in Melbourne’s north for more than a decade. And in that time, he’s marvelled at how the properties within this point of the city have adapted to the burgeoning urban landscape. It’s a transformation he has witnessed not just as a real estate agent but a property consultant, too. He’s equipped with the resources to think beyond today and forecast

Second Stitch is a social enterprise that empowers women from diverse backgrounds economically and socially through textiles. Second Stitch offers alterations, and training. The training is accredited textile training and were they offer workshops and seamstreses bring your beloved items back to life.

The property boasts a total building area of 800 sqm* spread across two versatile levels, positioned on a 416 sqm* landholding. With dual entry points, the layout is designed to accommodate a wide range of commercial uses under its Activity Centre Zoning (ACZ).

On the ground floor, spacious office space is complemented by direct access to over 500 public car parks at the rear, ensuring convenience for both staff and customers. The upper level is currently configured as a leased studio/warehouse hybrid, providing valuable income-generating potential or flexibility for future reconfiguration.

Positioned for maximum exposure, the property enjoys a prominent frontage along Sydney Road, where more than 19,000 vehicles pass daily. Surrounding anchors such as Woolworths, Coles, and Chemist Warehouse further enhance the site’s profile, drawing strong and consistent foot traffic to the area.

Connectivity is another highlight. Public transport access is effortless with tram 19 stopping at the doorstep and Coburg Railway Station just 380m* away. Major road links are equally accessible, with Bell Street only 490m* from the site, Moreland Road 1.2km* to the south, and CityLink just 3.2km* away. The Melbourne CBD is a straightforward commute, located approximately 13 km* from Coburg.

Principle Outgoings

Site Details

Title particulars

Zoning

Planning Overlays

Municipality

$8,610.09 p.a

$1,600 p.a + usage

$7,350 p.a (single holding)

Frontage to street

Southern side boundary

Total site area

Certificate of Title — Volume 04411 Folio 047

Lot 1 on Plan of Subdivision 232183G

Activity Centre Zone - Schedule 1 (ACZ1)

metres*

metres*

sqm*

Development Contributions Plan Overlay - Schedule 1 (DCPO1)

Parking Overlay - Precinct 1 (PO1)

City of Merri Bek

All signs point to: Sydney Road

Sydney Road, Coburg, is more than just a busy street—it’s a thriving commercial destination where businesses gain exposure, growth, and long-term success. Here are some notable aspects and benefits of buying property in this area:

High Traffic Exposure:

Sydney Road is not just busy—it’s a lifeline of Coburg. With 19,000+ cars passing daily, along with heavy pedestrian and tram activity, your business gets maximum visibility. Every storefront benefits from this built-in advertising, making it an ideal spot for retail, dining, or services seeking high exposure and customer flow.

Established Commercial Hub:

Sydney Road has built its reputation as a thriving commercial strip, hosting everything from cafés and boutique stores to professional offices and large-scale retailers. Being part of such a well-known business corridor means your brand immediately positions itself in a place people already trust for shopping and services.

Strong Community & Demographics:

Coburg is a multicultural and fast-growing suburb where families, professionals, and long-term residents create a loyal customer base. The area’s cultural diversity also opens doors to a wider market, supporting businesses that cater to different lifestyles, cuisines, and services. This steady community presence ensures reliable and repeat customers.

Accessibility & Transport Links:

Sydney Road is extremely well-connected, serviced by trams, buses, and Coburg train station nearby. Customers and employees can easily reach the area, whether by public transport or car. Ample on-street parking and accessibility make it convenient for both quick visits and long shopping trips, adding to the overall appeal for businesses.

Growth & Investment Potential:

Coburg is currently undergoing revitalisation projects, urban upgrades, and residential developments that are transforming the suburb into a modern commercial and lifestyle hub. This ongoing investment means businesses on Sydney Road aren’t just part of the current market—they’re positioned right at the heart of future growth and opportunity.

Strategic. Visible. Connected.

Investing in Sydney Road isn’t just about securing a property—it’s about securing a place in Coburg’s future. Here, every storefront becomes part of a bigger story of growth, diversity, and enduring success. AND THE POINT?

All signs point to: Coburg

Coburg is fast becoming one of Melbourne’s most exciting commercial and lifestyle destinations. Anchored by Sydney Road’s high visibility and constant activity, it provides businesses with daily exposure to thousands of passing cars, trams, and pedestrians. The suburb’s multicultural and growing community ensures a steady and diverse customer base, creating opportunities across retail, dining, and professional services.

Backed by ongoing urban renewal projects, new residential developments, and upgraded infrastructure, Coburg is set for long-term growth. Investors benefit from strong capital appreciation and rental demand, while business owners enjoy accessibility, community support, and reliable foot traffic.

With its mix of heritage character and modern growth potential, Coburg offers a rare chance to secure both stability today and opportunity for the

And the point?

Coburg offers everything a business needs to thrive. With Sydney Road delivering over 19,000+ passing cars daily along with steady tram and foot traffic, businesses enjoy unmatched visibility and exposure. The suburb’s multicultural and expanding community provides a strong and diverse customer base, supporting a wide range of industries from retail and dining to professional services. Coburg is also experiencing significant urban renewal and residential growth, creating even more demand and boosting its appeal as a commercial hub. Excellent public transport connections and major arterial access make it easy for customers and staff to reach, while its reputation as an established business strip ensures consistent activity. With rising property values and strong rental demand, Coburg offers not only a prime location for business but also a solid investment for the future.

PRIVATE SALE BY CLOSING

Private Sale by Closing Date Process

At CVA, we provide prospective purchasers full transparency, fairness, and respect during the Private Sale process. To make our point, we’ve defined and outlined the process below so you’re across it prior to submitting an offer.

1. Submitting Offers:

Offers are due no later than the date and time advertised for the Private Sale campaign. They must be submitted through this form with every section completed, signed and emailed to the relevant contact persons by campaign closure. Any offers submitted after this time will be deemed as non-compliant.

Our point of view: we recommend all interested parties submit their best offer, as the vendor reserves the right to accept an initial offer or to deal exclusively with certain offers in a second round. If you can do so, we strongly encourage submitting an offer signed on a Contract of Sale as this may influence the vendors feedback and/or decision.

2. Review Process:

All offers will be compiled and presented to the vendor for their consideration after the closing of the Private Sale campaign. Upon feedback, we will contact all parties promptly to communicate the vendors instructions relating to their offer.

In the event of a second round, we will request all offers to be provided on a contract of sale with a deposit payable to the CVA Trust account, for the vendor’s consideration.

3. Contract and Settlement

Following the acceptance of an offer, a contract of sale will be prepared. At this stage, a deposit will typically be required to secure the property. The terms of the sale, including the settlement date, will then be finalised between the vendor and the successful buyer.

We are dedicated to maintaining clear communication and ensuring that all participants are fully informed throughout the private sale process by closing date. Our goal is to provide a seamless and respectful transaction for all parties involved.

For more information, contact

Luca Angelico

0447 772 782

luca.angelico@ cva.melbourne

Craig McKellar

0431 892 780 craig.mckellar@ cva.melbourne

Leo Mancino

0418 343 147 leo.mancino@ cva.melbourne

Private Sale Form

Point of interest: 377-379 Sydney Road, Coburg

Complete this form and return it to our office via email or post by Thursday 16th October 2025 at 3PM

ADDRESS TO: CVA Property Consultants

Attention: Luca Angelico, Craig McKellar & Leo Mancino

POST or HAND DELIVER 18-20 Russell Street, Melbourne VIC 3000 E-MAIL

Please submit your offer to the agent you have been working with throughout the campaign.

luca.angelico@cva.melbourne craig.mckellar@cva.melbourne leo.mancino@cva.melbourne

Purchasing Entity Entity/Individual: Address:

Attention: ABN: Telephone: Email:

Proposed Purchase Terms

Purchase Price: Deposit (%): Settlement Period: Conditions:

Solicitor Company: Attention: Address:

Telephone:

Email:

Additional information or special conditions, which supports or clarifies a Registrant’s submission, may be annexed to this ‘Private Sale Form’. The Contract of Sale & Vendor’s Statement has been available during the marketing campaign and parties acknowledge that they have received a copy

Signed for and on behalf of the Purchasing Entity Date

Name of Signatory (PLEASE PRINT)

NOTE: The Vendor has the right, at its sole discretion, to vary the sales process, to postpone or cancel the sale of the property and to modify or add any terms and conditions to any proposed contract of sale or Vendor’s Statement which may be made available to a potential purchaser.

Turn static files into dynamic content formats.

Create a flipbook
Issuu converts static files into: digital portfolios, online yearbooks, online catalogs, digital photo albums and more. Sign up and create your flipbook.