As Melbourne’s leading independent commercial property agency, we take pride in creating worth.
01. Point of Interest 02. Point of View 03. Property Features
04. Property Particulars
05. Location
06. Sales Process
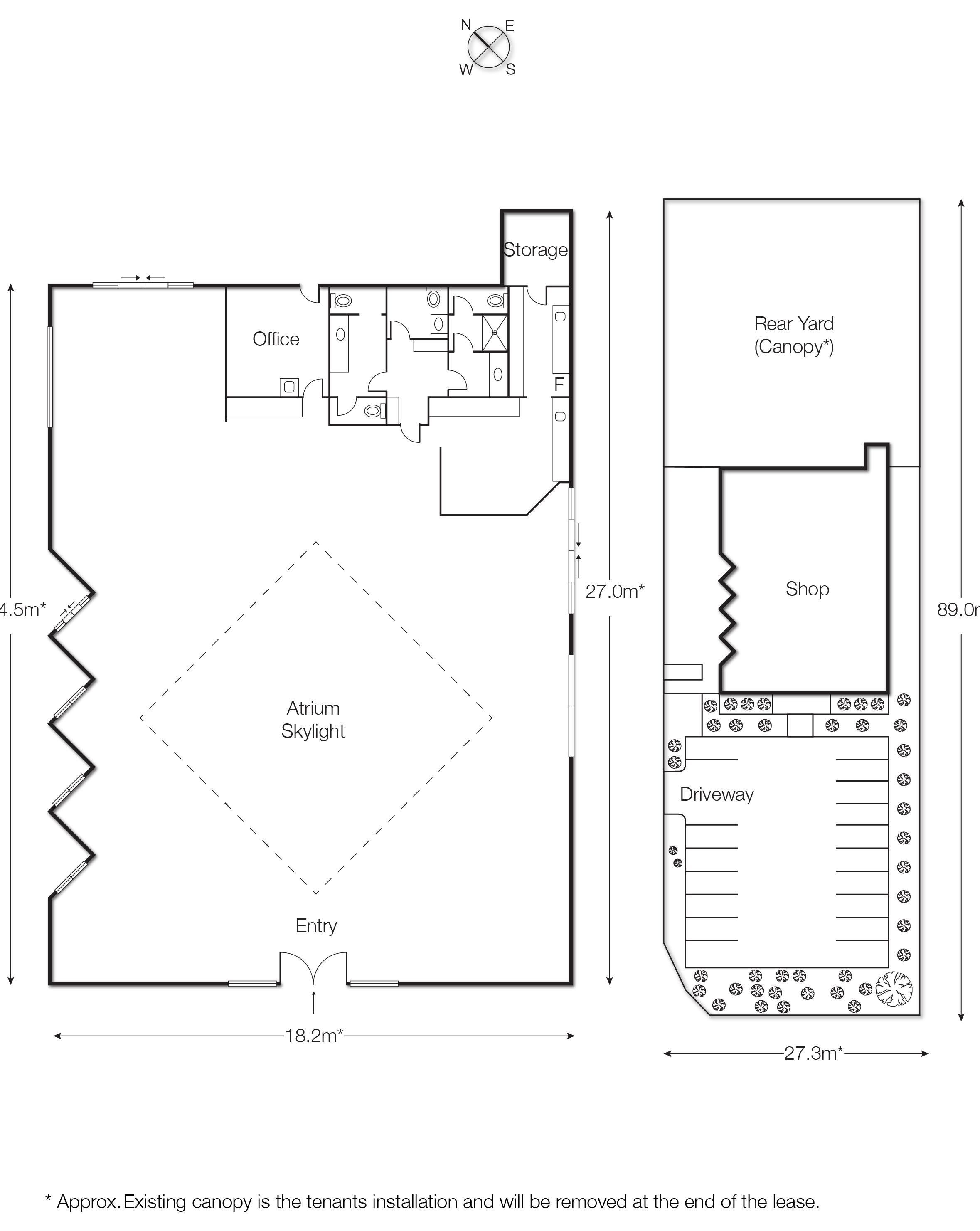
07. Appendices Floor Plan

EXPRESSION OF INTEREST - CLOSING WEDNESDAY 8TH OCTOBER 2025 AT 3PM
Sitting on 2,414 sqm* of land with over 110 metres of dual frontage to Fifteenth Street and Benetook Avenue, this high-profile corner landholding is one of Mildura’s most prominent addresses, recently growing everything from ferns to palms to seasonal blooms. Here, position does the heavy lifting — surrounded by Australia’s retail heavyweights, including Bunnings, McDonald’s, KFC, United Petroleum, and the Homemaker Centre, ensuring unrivalled traffic flow and visibility.
The existing 460 sqm* building provides holding income until March 2026, giving you the time and flexibility to strategically plan your next move. So, whether you’re an owner-occupier looking to plant your brand in Mildura’s busiest commercial corridor or a developer ready to reimagine the site entirely, this is a position primed for growth.
2,414 sqm*

Landmark Position
460 sqm*
17 Car Spaces Opportunity 110 m*

Over 110 metres of corner frontage.

And your 15th reason? This is a corner that counts: Rare dual frontage ensures maximum visibility and impact, putting any future opportunity firmly on Mildura’s map.


Jarrod Moran | 0413 251 621
jarrod.moran@cva melbourne
“Mildura’s flagship corner location, offering an irreplaceable opportunity for the high-profile occupier.”
The key word you’re looking for is knowledge. It’s Jarrod’s established market understanding, extensive business experience and strong work ethic defined by motivation and dedication, that makes him a seasoned asset not just to CVA but to your day to day. And it’s this energy that amplifies opportunity — in Melbourne, in the market and in the minds of his clients.

Daniel Philip | 0439 977 121
daniel.philip@cva.melbourne
“Corner the market with 2,414 sqm* of opportunity.”
An agent that turns first impressions into lasting commitments. Since the early days of his career, Daniel has established a level of service that is defined by in-depth market knowledge, expert advice and responsive communication. Committed to creating value in the commercial real estate opportunities he matches with his clients’ objectives, and the ability to think outside the square. Especially if that extends well beyond Melbourne’s inner-city grid.

Set across a generous 2,414 sqm* site, this landmark corner commands more than 110 metres of dual frontage to Fifteenth Street and Benetook Avenue - one of Mildura’s most high-profile positions. With neighbours including Bunnings, McDonald’s, KFC, United Petroleum and the Homemaker Centre, visibility and passing traffic are second to none. The site currently features a 460 sqm* building and 17 on-site car parks, delivering holding income until March 2026, allowing the incoming owner the time and flexibility to shape their next move.
This property represents a rare chance to value-add, reposition or completely redevelop, with the bonus of a 50% regional stamp duty concession strengthening the case. Whether you are an occupier looking to establish your brand in Mildura’s busiest commercial corridor, or a developer seeking to unlock the full potential of this corner site, the opportunity here is clear and compelling.




Principle Outgoings
Site Details
Title particulars
Zoning
Planning Overlays
Municipality
Council Rates:
Water Rates:
Building Insurance:
Land Tax (Single Holding):
Frontage to street
$7,935 p.a approx.
$1,056 p.a approx.
$2,096 p.a approx
$2,322 p.a approx.
metres* Eastern side boundary
Southern side boundary
Certificate of Title — Volume 10008 Folio 520
Lot 2 on Plan of Subdivision 437771J
Special Use Zone - Schedule 9 (SUZ9)
metres*
metres*
Development Contributions Plan Overlay - (DCPO3)
Design And Development Overlay - (DDO10)
Specific Controls Overlay - (SCO1)
Mildura Rural City Council

All signs point to: Fifteenth Street

Mildura offers a prime blend of location, resources, and community support, making it an ideal place to start or grow a business. Here are some notable aspects and benefits of buying property in this area:
Strategic Location:
Fifteenth Street benefits from a prime urban location, providing excellent connectivity to major roads and transport hubs. Its accessibility makes logistics, deliveries and commuting easier for both businesses and customers.
Commercial Potential:
The area is surrounded by a mix of residential and commercial developments, offering opportunities for retail, offices and service-based businesses. Its growing neighborhood ensures a steady customer base and strong demand.
Mildura Homemaker Centre:



The nearby Mildura Homemaker Centre is the region’s premier large-format retail hub, home to a mix of national brands and lifestyle retailers that draw consistent, highvolume visitation. Strategically positioned along Fifteenth Street, it serves as a one-stop destination for homewares, furniture, electrical, and everyday essentials, making it a key anchor in Mildura’s thriving commercial precinct. Its strong tenant line-up, ample parking, and proximity to major roads cement its role as a retail powerhouse for both locals and visitors across north-west Victoria.
Growing Foot Traffic:
Fifteenth Street attracts consistent foot and vehicle traffic due to nearby shopping centers, cafes and local attractions, increasing visibility and sales opportunities for businesses. Seasonal events and community activities further boost customer engagement.
Supportive Business Community:
Local councils and business associations actively support entrepreneurs with networking opportunities, grants and programs designed to help small and new businesses thrive in the area.
AND THE POINT?
Positioned along Mildura’s bustling Fifteenth Street, this site offers exceptional connectivity, steady customer flow and strong commercial potential. Surrounded by both residential and retail growth - and anchored by the Mildura Homemaker Centre with its national brands and consistent visitation - the location delivers unrivalled exposure, high traffic volumes and a supportive business environment that makes success here almost inevitable.

