

G ENBRU G PÅ MATRIKLE N
REUSE ON SIT E
GENBRUG PÅ MATRIKLEN
REUSE ON SITE










GENBRUG PÅ MATRIKLEN
REUSE ON SITE
LÆSEVEJLEDNING OG INDHOLDSFORTEGNELSE
READING GUIDE AND TABLE OF CONTENTS
Læsevejledning
Metode
Afsnittet beskriver aktionsforskning som ramme for at forske i designprocesser og hvordan aktionsforskning er praktiseret i indeværende projekt. Rammen for udvælgelsen af de to cases udfoldes.
Den Omvendte Designproces - Resume og reflektion
Teksten retter sig til byggesektoren uden dyb erfaring med direkte genbrug. Den både opsummerer vigitige pointer fra projektet, samtidig med at der en overordnet reflektionen over projektets forløb og resultater.
Artikler og interviews og idé-/proceskatalog
Resultaterne præsenteres i tre hovedkapitler, med en række underartikler, som læseren kan orientere sig i og selv udvikle egne guidelines udfra. Artiklerne uddyber punkterne fra ’Den omvendte designproces – Resume og reflektion’.
1 - Scanning, NDT og miljøscreening i ’den omvendte designproces’
Afsnittet inkluderer behovet for nye visualiserings- og repræsentationsformater, som gør det muligt at integrere den samlede tilgængelige information i arkitekters beslutningsprocesser. Heldigvis er netop repræsentation og visualisering et kernefelt for arkitekter. Non Destructive Testing (NDT) og miljøscreeningsdata er videnstyper, som i stigende grad bliver centrale for – også helt tidlige - designbeslutninger i byggeriet.
2 - Den omvendte designproces i praksis
Kapitlet viser resultaterne fra de to iterationer af designprocesser, hvor arkitekter har haft adgang til forskellige måder at visualisere ressource kortlægning NDT, og miljøscreeningsdata.
3 - Økonomi og bæredygtighed
I afsnittet om økonomi og bæredygtighed perspektiveres projektets to casestudier.
Reading guide
Method
This section describes action research as a framework for researching design processes and how action research is practiced in the current project. The framework for selecting the two cases is explained.
The reverse design process - Summary and reflection
This text is aimed at the part of the construction sector that does not have extensive experience with direct reuse. It summarizes important points from the project, while also providing an overall reflection on the project’s progress and results.
Articles and interviews and catalogue of ideas
The results are presented in three main chapters, with a number of sub-articles that the reader can use to orient themselves and develop their own guidelines. The articles elaborate on the points from ’The reverse design process - Summary and reflection’.
1 - Scanning, NDT, and environmental screening in the ‘reverse design process’
This section includes the need for new visualization and representation formats that make it possible to integrate all available information into architects’ decision-making processes. Fortunately, representation and visualization are core areas for architects. Non-destructive testing (NDT) and environmental screening data are types of knowledge that are becoming increasingly central to design decisions in construction, even at the earliest stages.
2 - The reverse design process in practice
This chapter presents the results of two iterations of design processes in which architects had access to different ways of visualizing resource mapping, NDT, and environmental screening data.
3 - Economics and sustainability
This section on economics and sustainability puts the project’s two case studies into perspective.
Indholdsfortegnelse
10 Metode
Lotte Bjerregaard Jensen, Anders Kruse Aagaard, Niels Martin Larsen
16 Den omvendte designproces - Resume og reflektion
Lotte Bjerregaard Jensen, Anders Kruse Aagaard, Peer Tue Näthke, Niels Martin Larsen
1 - Scanning, NDT og miljøscreening i ’den omvendte designproces’
44 Udførelse af ikke-destruktiv prøvning (NDT) i ’Genbrug På Matriklen’ 44
Serkan Karatosun
60 Koblingsfladen mellem konstruktionsingeniører og NDT-eksperter
Interview med Peter Vejrum, Rasmus Kristian Holst, Lisbeth M. Ottosen, Serkan Karatosun, Frederikke Paulin Petersen, Peer Tue Näthke, Lotte Bjerregaard Jensen
74 Digital hjælp til ’den omvendte designproces’
Janin Brandt, Niclas Brandt
78 Den omvendte miljøscreening - Interview med Tim Tolman
Tim Tolman, Lotte Bjerregaard Jensen, Peer Tue Näthke
86 Scanning i den omvendte designproces - Ringparken og Listefabrikken
Anders Kruse Aagaard, Niels Martin Larsen, Peer Tue Näthke
94 Repræsentationsstrategier: Den digitale model som databeholder og designredskab
Oskar Holst Kurtzweil og Peer Tue Näthke, Jon Andersen
Table of contents
10 Method
Lotte Bjerregaard Jensen, Anders Kruse Aagaard, Niels Martin Larsen
16 The reverse design process - Summary and reflection
Lotte Bjerregaard Jensen, Anders Kruse Aagaard, Peer Tue Näthke, Niels Martin Larsen 1 - Scanning, NDT, and environmental screening in the ‘reverse design process’
44 Practicing non-destructive testing (NDT) in ’Reuse on Site’
Serkan Karatosun
60 The interface between structural engineers and NDT experts
Interview with design engineers: Peter Vejrum, Rasmus Kristian Holst, Lisbeth M. Ottosen, Serkan Karatosun, Frederikke Paulin Petersen, Peer Tue Näthke, Lotte Bjerregaard Jensen
74 Digital assistance in the reverse design process
Janin Brandt, Niclas Brandt
78 Reverse environmental screening - Interview with Tim Tolman
Tim Tolman, Lotte Bjerregaard Jensen, Peer Tue Näthke
86 Scanning in the reverse design process – Ringparken and Listefabrikken
Anders Kruse Aagaard, Niels Martin Larsen, Peer Tue Näthke
94 Strategies of representation: The digital model as a holder of data and a design tool
Oskar Holst Kurtzweil, Peer Tue Näthke, Jon Andersen
2
122 Første case-designproces: Ringparken i Slagelse.
Tegnestuer: JJW, Arkitema, CEBRA, Anna Mette Exner Arkitektur, EFFEKT
Anna Mette Exner, David Ploug, Mikkel Schlesinger, Kasper Ax, Thomas Fænø Mondrup samt Vilius Thorsgaard Frølunde-Vizgaudis og Lotte Bjerregaard Jensen
Praktikanter: Julie Møller Pedersen, Marco Kromann Bøgehøj Nielsen, Katrin Olesen, Lovisa Andersson, Anna Hemdorff
158 Mockup: ’Ringparken i Slagelse’
Vilius Thorsgaard Frølunde-Vizgaudis, Anders Kruse Aagaard, Niels Martin Larsen
174 Modelhus
Anders Kruse Aagaard, Matiss Groskaufmanis
182 Anden case-designproces: Ringparken I Åbyhøj
Tegnestuer: Arkitema, CEBRA, Anna Mette Exner Arkitektur, EFFEKT, SLETH
Anna Mette Exner,David Ploug, Eva Aaby, Kasper Ax, Niels Eli Kjær Thomsen, Stina Rask Jensen, Esben Dannemand Frost samt Peer Tue Näthke
Praktikanter: Karen Emilie Mølgaard Rasmussen, Karen Helene Brobakken, Sara Bengtson, Haidy Mousa, Mathilde Strandberg Hallin
214 Mock-Up : ‘Listefabrikken, Åbyhøj’
Peer Tue Näthke, Anders Kruse Aagaard, Niels Martin Larsen
3 - Økonomi og bæredygtighed
234 Er genbrug af betonelementer bæredygtigt? - En konsekvens-LCA betragtning
August Sørensen
246 Det økonomiske perspektiv
Samtale mellem Lotte Bjerregaard Jensen, Frank Jensen, Samuel Mydland, Søren Malund Thomsen, Marie Pilegaard, Jens Møller Boeriis and Eva Aaby
262 Biografier og tak til bidragydere
2 - The reverse design process in practice – catalogue of ideas
122 First case design process: Ringparken in Slagelse
Architectural firms: JJW, Arkitema, CEBRA, Anna Mette Exner Arkitektur, EFFEKT
Anna Mette Exner, David Ploug, Mikkel Schlesinger, Kasper Ax, Thomas Fænø Mondrup, Vilius Thorsgaard Frølunde-Vizgaudis, Lotte Bjerregaard Jensen
Interns: Julie Møller Pedersen, Marco Kromann Bøgehøj Nielsen, Katrin Olesen, Lovisa Andersson, Anna Hemdorff
158 Mockup: ‘Ringparken in Slagelse’
Vilius Thorsgaard Frølunde-Vizgaudis, Anders Kruse Aagaard, Niels Martin Larsen
174 Model house
Anders Kruse Aagaard, Matiss Groskaufmanis
182 Second case design process: Ringparken in Åbyhøj
Architectural firms: Arkitema, CEBRA, Anna Mette Exner Arkitektur, EFFEKT, SLETH
Anna Mette Exner, David Ploug, Eva Aaby, Kasper Ax, Niels Eli Kjær Thomsen, Stina Rask Jensen, Esben Dannemand Frost, Peer Tue Näthke
Interns: Karen Emilie Mølgaard Rasmussen, Karen Helene Brobakken, Sara Bengtson, Haidy Mousa, Mathilde Strandberg Hallin
214 Mock-Up: ‘Listefabrikken, Åbyhøj’
Peer Tue Näthke, Anders Kruse Aagaard, Niels Martin Larsen
3 - Economy and sustainability
234 Is the reuse of concrete elements sustainable? – Consequential-LCA consideration
August Sørensen
246 The financial perspective
Conversation between Lotte Bjerregaard Jensen, Frank Jensen, Samuel Mydland, Søren Malund Thomsen, Marie Pilegaard, Jens Møller Boeriis and Eva Aaby
262 Biographies and acknowledgements to contributors
Lotte Bjerregaard Jensen
Anders Kruse Aagaard
Niels-Martin Larsen
METODE METHOD
Introduktion
Hvis nøglen til bæredygtighed ligger i designprocessen, hvilke roller spiller digitale værktøj?1
Designprocessen er et ofte overset, ikke fysisk-taktilt felt, som er vanskeligt at kvantificere teknisk-videnskabeligt. Derfor risikerer designprocessen at blive overset, til trods for at det er i designprocessen, beslutninger tages; De beslutninger, der fører til bæredygtighedsniveauet. En designproces er en kæde af beslutninger baseret på både kvalitative og kvantitative informationer.
Der er en række interessante startups indenfor miljøkortlægning, som arbejder med machine learning og nemt-håndterbare apps. Samtidigt er der et fokus på nye ikke-destruktive testmetoder, som kan håndtere at ’certificere’ hver konstruktive del off og on site. Alle eksisterende konstruktioner og byggevarer er i princippet ’unikke’, hvilket udgør en barriere i forhold til en sammenligning med standard, nye byggevarer. Grandsolution projektet StructuralReuse (før: BusinessReuse) har identificeret 14 relevante ikke-destruktive-testmetoder (NDT), som udgør en grundstamme i indeværende projekt.2 Den viden og ’kultur’ som miljøkortlæggere, nedrivere, sælgere af genbrugsmaterialer og entreprenører besidder om genbrug, matcher ikke helt hvad arkitekter og ingeniørrådgivere arbejder med i forhold til cirkulære praksisser. En hypotese, er at der kan udvikles designprocesser og kulturer, som integrerer denne viden.
Siden etableringen af de første moderne arkitektskoler i slutningen af 1600-tallet, har arkitekter designet ud fra en række forløb i en kunstnerisk proces, hvorefter der på et tidspunkt indgår et materialevalg. Restaureringsprojekter matcher på nogle felter ’den omvendte designproces’, men opererer indenfor helt andre forudsætninger og med andre målsætninger. Med en større andel af direkte genbrug vendes designprocessen ’på hovedet’, hvor man starter med hvilke byggevarer, der er i ’materialebanken’.3 Det er en stor ændring af designkulturen.
Formålet med projektet er at visualisere4 og bidrage med endnu et lag til samtalen om en ’omvendt’ designproces, hvor der tages udgangspunkt i ’hvad der er i banken’, med indarbejdelse af ny viden fra digitaliseret miljøkortlægning og ikke-destruktive testmetoder, samt at give sælgere af genbrugsmaterialer mere viden om hvad designere og arkitekter har brug for.
Introduction
If the key to sustainability lies in the design process, what role do digital tools play?1
The design process, which is a chain of decisions based on both qualitative and quantitative information, is an often-overlooked field that is neither physical nor tactile and difficult to quantify technically and scientifically. Therefore, the design process risks being overlooked, despite the fact that it is during the design process that decisions are made and that these decisions can dictate the level of sustainability in a building project.
There are a number of interesting start-ups in the field of environmental mapping that work with machine learning and easyto-use apps. At the same time, there is a focus on new non-destructive testing methods that can handle ‘certifying’ each structural component off and on site. All existing structures and building materials are, in principle, ‘unique’, which poses a barrier to comparison with standard, new building materials. The Grand Solutions project StructuralReuse (formerly BusinessReuse) has identified 14 relevant non-destructive testing (NDT) methods that form the basis for the current project2. The knowledge and ‘culture’ that environmental surveyors, demolition contractors, sellers of reused materials, and contractors possess about reuse does not entirely match what architects and engineering consultants work with in relation to circular practices. One hypothesis is that design processes and cultures that integrate this knowledge can be developed.
Since the establishment of the first modern architecture schools in the late 17th century, architects have designed based on a series of steps in an artistic process, after which a choice of materials is made at some point. In some areas, restoration projects match the ‘reverse design process’, but operate under completely different conditions and with different objectives. With a larger proportion of direct reuse, the design process is turned ‘upside down’, starting with the building materials available in the ‘material bank’3. This is a major change in design culture.
The purpose of the project is to visualize4 and contribute another layer to the conversation about a ‘reverse’ design process where the starting point is, ‘what is in the bank’, how to incorporate new knowledge from digitized environmental mapping and non-destructive testing methods, as well as how to provide sellers of reused materials with more knowledge about what designers and architects need.

Aktionsforskning
I værdibygs rapport om nedrivninger efterspørges fokus på nye designprocesser.5 At tænke sig om koster ikke CO2 og det er med henblik på at foretage de helt rigtige indgreb i det fysiske miljø, at designprocessens analyser og kunstneriske udvikling kræver mere tid. Dette afspejles i projektets iterative plan, inspireret af Smith Innovations forslag til at udfordre ’lineære’ forskningsplaner.6
Aktionsforskning som forskningsmetode er bredt dækkende og har en række underdefinitioner. Den har rod i hermeneutik og kritisk teori7 og har tentakler ind i nyere metodologi, såsom Research through design via det relaterede felt: Practicebased Research.8 Aktionsforskning er et felt indenfor casestudy metode-familien. Det er en casestudy proces, hvor forskeren selv kan deltage aktivt.9
Action Research
The Værdibyg report on demolition calls for a focus on new design processes.5 Thinking does not cost CO2. Therefore, in order to make the right interventions in the physical environment, the analysis and artistic development phases of the design process should be given more time.” This is reflected in the project’s iterative plan, inspired by Smith Innovation’s proposal to challenge ‘linear’ research plans.6
Action research as a research method is broad in scope and has a number of sub-definitions. It has its roots in hermeneutics and critical theory7 and has tentacles into newer methodologies, such as research through design via the related field: practice-based research.8 Action research is a field within the case study method family. It is a case study process in which the researcher can actively participate.9
Fig. 1: Case: Ringparken i Slagelse 2023-2024


Den primære forskningsmetode er aktionsforskning, det vil sige at operere i feltet mellem forskning og praksis via to konkrete designproces casestudier, hvor nye proceselementer afprøves i en systematisk rammeværk. Processen planlægges med introduktionen af ’et element’, f.eks. en ny type data, et nyt værktøj: her digital miljøkortlægning og ikke-destruktive testmetoder.10
Hver af de to casedesignprocesser havde en varighed af samlet et år, hvor en fuld aktionsforskningscyklus gennemføres, bestående af faserne: ’Plan’, ’Act’, ’Observe’, ’Reflect’ 11
’Plan:’ Arbejdspakke 1 (tilvejebringelse af data, miljøscreening, scanninger, NDT). Planlægningen af aktionen involverede også i høj grad arbejdspakke 2 (arkitektoniske ’mellemregninger’, nye måder at visualisere data på).
The primary research method is action research. This means operating in the field between research and practice via two specific design process case studies, where new process elements are tested in a systematic framework. The process is planned with the introduction of ‘an element’, e.g., a new type of data or a new tool. In this case, digital environmental mapping and non-destructive testing methods are the new elements.10
Each of the two case study design processes lasted a total of one year, during which a full action research cycle was completed, consisting of the phases: ‘Plan’, ‘Act’, ‘Observe’, and ‘Reflect’.11
Plan: Work package 1 (provision of data, environmental screening, scans, and NDT). The planning of the action also involved work package 2 to a large extent (architectural ‘interim calculations’ and new ways of visualizing data).
Fig 2: Case: Listefabrikken, Åbyhøj, 2024-2025.
’ACT’: Arbejdspakke 3 involverede en månedlang designsprint med deltagelse af seks arkitekttegnestuer. Med virkelige steder og analyser med professionel metoder afprøvedes integrationen af nye typer data i den ’omvendte’ designproces, med daglige reflektioner og observationer. Ved de daglige møder skete en systematisk anotering på Miroboard.
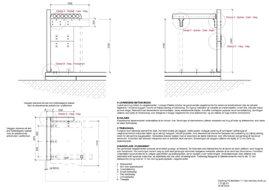
Som en ekstra ’ACT’ fase udføres en 1:1 Mock-up, der yderligere kvalificerer og syntetiserer de ideer, design sprinten gav. Mockup 1:1 er tilsidst syntetiseret som ’byggesystem’ for at kunne beregne LCA.
De kommende generationer spiller i projektet en stor rolle, idet praktikanter på tegnestuerne fungerer som ’agenter’, både i uddannelsesmiljøet og i arkitektfirmaerne, når de i løbet af deres praktik perioder udfører en stor del af ’Act’ delen.12 Det skete som en måneds designsprint med deltagelse af tegnestuernes ansatte.
Observe/reflect: Som nævnt blev effekten af aktionen observeret (der registredes dagligt på Miroboards i løbet af ’Act’ fasen).
LCA har en særlig rolle, som en del af det datagrundlag, der indgår i PLAN faserne i hver af de to aktionsforskning cyklusser, bl.a. ved en hypotese om at nå under et fastsat niveau for miljøpåvirkning (Kg. Co2 ækvl. Pr m2 pr år).13 Men ydermere er LCA en del af den observerende og reflekterende del af metoden, (Mock-up anskuet som system).14
Der udvikledes en konsekvens-LCA betragtning, på baggrund af en analyse af miljøpåvirkning fra genbrug, når nedtagning, opbevaring, oparbejdning og transport medtages i analysen.
En overordnet reflektion over begge aktionsforskning cylusser er præsenteret i teksten – ’Den omvendte designproces, Resúme og reflektion’.
Udvælgelse af casebygninger
Kritierierne for udvælgese af de to case bygninger var defineret, selve udvælgelsen blev foretaget i dialog med industripartnere i projektet, for at sikre relevans. Udvælgelseskriterierne addresserer representative byggetekniske typologier svarende til TABULA projektets kategorier af etageejendomme fra 1851-1930 og fra 1960 til 1970.15 Case bygninger som typologi og kategori skulle samtidigt være statistisk set i risiko for nedrivning.16 Skaleringspotentialet er dermed også en del af udvælgelsesgrundlaget.
ACT: Work package 3 involved a month-long design sprint with the participation of six architectural firms. Using real locations and professional methods of analysis, the integration of new types of data into the ‘reverse’ design process was tested, with daily reflections and observations. At the daily meetings, systematic notes were taken on Miroboard.
As an additional ‘ACT’ phase, a 1:1 mock-up was constructed to further qualify and synthesize the ideas generated by the design sprint. The 1:1 mock-up is ultimately synthesized as a ‘building system’ in order to calculate the LCA.
Future generations of architects play a major role in the project, as student interns at the design studios acted as ‘agents’ both in the educational environment and in the architectural firms when they carried out a large part of the ‘ACT’ phase during their internships.12 This took place as a month-long design sprint with the participation of the design studios’ employees.
Observe/Reflect: As mentioned, the effect of the action was observed (recorded daily on Miroboards during the ‘Act’ phase).
LCA has a special role in the project as part of the ‘Observation’ –‘Reflection‘ action research cycles, including a goal of achieving below a set level of environmental impact (kg CO2 eq. per m2 per year).13 In order to perform this LCA, it was necessary to develop a conceptual building project based on the 1:1 mock-up.14
A Consequential LCA consideration was added developed on an analysis of the environmental impact of reusing prefabricated concrete slabs (the most significant building part in the project’s first design iteration, Ringparken).
An overall reflection on the projects two action research cycles is presented in the text – ‘The reverse design process, Summary and reflection’.
Selection of case buildings
The criteria for selecting the two case buildings were defined, and the selection itself was made in dialogue with industry partners in the project to ensure relevance. The selection criteria address representative building typologies corresponding to the TABULA project’s categories of multi-story buildings from 1851-1930 and from 1960 to 1970.15 Case buildings as a typology and category should also be statistically at risk of demolition.16 The scaling potential is, therefore, also part of the selection criteria.
1 Jensen, L.B. ed., (2018.)Informing Sustainable Architecture, Polyteknisk Forlag
2 Karatosun, S., Ingeman-Nielsen, T., & Ottosen, L. M. (2025). Evaluation of NDT Methods for In Situ Documentation of Concrete for Reuse: Laboratory Studies. Materials, 18(11), Article 2470. https://doi.org/10.3390/ma18112470
3 https://www.bamb2020.eu/
4 Landgren, M., Jakobsen, S. S., Wohlenberg, B. & Jensen, L. B.,( 2019, ) Informing sustainable building design: The importance of visualizing technical information and quantifying architectural decisions, In: Archnet-IJAR : International Journal of Architectural Research. 13, 1, p. 194-203 10 p.
5 Koch-Ørvad, N.(Værdibyg), 2020, TRE VEJLEDNINGER OM NEDRIVNINGSPROCESSEN, p. 12-13, København https://vaerdibyg.dk/vejledning/circular-demolition/
6 Mossin N., Hau I. Beim A.,Thomassen M., Munch-Petersen P., Petersen T., (2023), Innovation of Nothing: The capabilities needed to lead sustainable change in the built environment, Royal Danish Academy
7 Kemmis, S. (2008) Critical Theory and Participatory Action Research, The Sage Handbook of Action Research p. 121139. London
8 Kjørup, S. (2010). Pleading for Plurality: Artistic and Other Kinds of Research in The Routledge companion to research in the arts (1st ed). Routledge.
9 Yin R.K. (2017), Case Study Research and Applications: Design and Methods. p 190
10 McNiff, J., (2002)Action Research Booklet: Action Research for professional development
11 Bradbury, H., Reason, P. (2000)The Sage Handbook of Action Research –participative Inquiry and Practice –p.11-15, p.15-31, p.77-93. London
12 Jensen, L. B, (2015) Students as agents – connecting faculty with industry and creating collaborative projects, In: Journal of Engineering Education.
13 Reduction Roadmap (2022, sept 27) Reduction Roadmap: Preconditions and Methodologies. www.reductionroadmap.dk.
14 Hauschild, Michael Z., Rosenbaum, Ralph K., (2018) Life Cycle Assessment: Theory and Practice. Springer.
15 Danish Building Research Institute. (n.d.). National residential building typology: Denmark. EPISCOPE / TABULA. Retrieved September 4, 2025, from https://episcope.eu/ building-typology/country/dk/
16 Andersen, R., Bjerregaard Jensen, L. M., & W. Ryberg, M. (2022). Adaptation of circular design strategies based on historical trends and demolition patterns. IOP Conference Series: Earth and Environmental Science, 1085(1), Artikel 012062. https://doi.org/ doi:10.1088/1755-1315/1085/1/012062
Lotte Bjerregaard Jensen
Niels Martin Larsen
Anders Kruse Aagaard
Peer Tue Näthke
DEN OMVENDTE DESIGNPROCES – RESUMÉ OG REFLEKTION
THE REVERSE DESIGN PROCESS
– SUMMARY AND REFLECTION
Introduktion
Dét at udforme arkitektur på baggrund af de materialer, der er til rådighed i ’genbrugsbanken’, adskiller sig mere fra en gængs designproces, end man umiddelbart skulle tro. Selvom gode arkitekter i ind- og udland har demonstreret denne tilgang i årtier, er der stadig meget at øve.1,2,3,4 En af grundene til, at der i dag ikke er en etableret cirkulær økonomi til trods for implementeret lovgivning i både EU og Danmark,5,6 skyldes, at det er vanskeligt at ændre kultur, specifikt 400 års Beaux-Arts tradition. Projektet udforsker ’den omvendte designproces’. ’Form follows availability’ er det begreb Anders Lendager bruger om dét, at udvikle arkitektoniske løsninger med afsæt i genbrugte materialer.7 Ønsket er at skærpe ambitionen om at begrænse ressourcespildet ved at tage afsæt i materialer, der kan findes direkte på projektets eget matrikel i forvejen. Det kan være et realistisk scenarie, fordi nedtagninger typisk sker for at give plads til nybyggeri, og fordi fra 1. juli 2025 skal nedrivninger af bygninger med et samlet etageareal over 250 m² udføres som selektiv nedrivning, hvor materialerne identificeres, sorteres og håndteres for at øge genbrug og genanvendelse. Det vil gøre det mere omkostningstungt at fjerne nedrevne materialer fra matriklen.8
Hvad er den omvendte designproces? Det illustreres med en anekdote:
I foråret 2025 henvendte en yngre arkitekt fra en arkitekttegnestue sig til, Greendozer, fordi arkitektens chef, gerne ville introducere mere genbrug i projekterne. Arkitekten forespurgte om han kunne købe 20 venstrehængte yderdyre døre 948 x 2115 mm i karmmål med glasfelt, 300x1000 mm, farvekode x.
Selvfølgelig ville det ikke kunne lade sig gøre. Istedet skal designet udformes ud fra, hvad der er i ’genbrugsbanken’.
Introduction
Circularity in the building industry – understood as ‘Designing architecture based on the materials available in a ‘reuse bank’ differs from a conventional design process more than one might initially think. Although talented architects in Denmark and abroad have been demonstrating this approach for decades, there is still much to learn.1,2,3,4 One of the reasons why there is no established circular economy today, despite legislation having been implemented in both the EU and Denmark,5,6 is that it is difficult to change culture, specifically 400 years of Beaux-Arts tradition. This project explores ‘the reverse design process’. “Form follows availability” is how Anders Lendager describes the development of architectural solutions based on reused materials.7 The aim of the project ‘Reuse on site’ and the reverse design process explored in the project, is to limit resource waste by using materials that can be found directly on a demolition site. This may be a realistic scenario because demolition typically takes place to make room for new construction, and because from July 1, 2025, the demolition of buildings with a total floor area of more than 250 m² must identify, sort, transport and deposit materials separately to increase recycling and reuse. This will make it more costly to remove demolished materials from a demolition site.8
What is the reverse design process? It is illustrated by an anecdote:
In the spring of 2025, a young architect from an architectural firm approached Greendozer because the architect’s boss wanted to introduce more reuse into their projects. The architect asked if he could buy 20 left-hinged, extra-expensive doors measuring 948 x 2115 mm with glass panels measuring 300 x 1000 mm, color code x.
Of course, this would not be possible. Instead, the design must be based on what is available in the ‘reuse bank’.

Designprocessen er blevet udforsket i to case-projekter, dvs. Een case-designproces pr projektår. Case-designprocesserne repræsenterer typologier med høj nedtagningsrisiko, og dermed skalerbare situationer i forhold til at opnå højere grad af genbrug på matriklen. Det drejer sig om henholdsvis industribygninger fra midten af det 20. århundrede og præfabrikeret socialt boligbyggeri.
Igennem ti designprocesser – fem for hver case –har seks arkitektfirmaer systematisk afprøvet en række værktøj og visualiseringsformer, som på nye måder kan informere designbeslutningerne. Formålet er, at give et øjebliksbillede af, hvad der i 2025 og fremover kan informere arkitekters designprocesser i forhold til at opnå ’genbrug på matriklen’. Fokus har været på nye måder at 3D scanne, samt at anvende Non-Destructive Testing (NDT) og miljøscreeings-data samt ikke mindst hvordan det kan visualiseres.
The design process has been explored in two case projects: one case design process per project year. The case design processes represent two typologies with a high risk of demolition and thus scalable situations in relation to achieving a higher degree of reuse on the site. These typologies are prefabricated social housing (Ringparken) and industrial buildings from the mid-20th century (Listefabrikken).
Through ten design processes – five for each case – six architectural firms have systematically tested a range of tools and visualization forms that can inform design decisions in new ways. The aim is to provide a snapshot of what, in 2025 and beyond, can inform architects’ design processes in relation to achieving reuse on site. The focus of the ‘reuse on site’ project has been on visualizing new ways of 3D scanning, as well as the use of Non-Destructive Testing (NDT) and environmental screening data.
Fig. 1
Scanning, NDT og miljø screening i den omvendte designproces
Den omvendte miljøscreening
Miljøscreening er som rådgivning primært rettet mod affaldsregler, nyligt opdateret 1. juli 2025. Ønsket er, at bygninger skal nedtages selektivt, og miljøscreeningen skal sørge for, at de forskellige typer byggeaffald ikke sammenblandes, og at de transporteres og behandles korrekt efter affaldstype. Miljøscreeningen varetages i dag af ingeniører. Der er en række apps som hjælper ingeniøren, både med at vide hvilke fysiske prøver, der skal udtages, men også med at generere selve miljøscreeningsrapporten. Jo flere miljøscreeninger, jo mere ’klog’ bliver app’en via machine learning features indarbejdet i værktøjet. Det er derfor i sandsynligt, at miljøscreening i fremtiden kan indgå i en arkitekts designproces, fordi der vil være en række forhold som statistisk set vil være helt forudsigelige.
I miljøscreeningsrapporten fra partneren i projektet gennemgås alle bygningsdele i de bygninger, der er planlagt til nedtagning. De klassificeres i forhold til affaldssortering. I app’en har byggevaren en farvekode. F.eks. indikerer ’rød farve’ at deponi er påkrævet pga. f.eks. tungmetal-indhold eller asbest. ’Rød’ er en farvekode for at byggevaren er miljø- og sundhedskadelig som affald. ’Gul’ farvekode adresserer et behov for afrensning inden affaldshåndtering (f.eks. visse malingstyper). ’Grøn’ farvekode indikerer at komponenten kan håndteres direkte, uden yderligere tiltag.
Som arkitekt, der skal bruge materialer fra en selektiv nedtagning, ville det være nemt at forholde sig til de tre farvekoder. Men så enkelt er det desværre ikke. P.g.a. affalds-fokus (ikke genbrugs-fokus) vil f.eks en metalplade have ’rød’ farvekode, til trods for, at den uden sundheds- og miljøproblemer kan genbruges direkte som den er i byggeri. Men en metalplade vil som affald indeholde ’tungmetaller’ og skal derfor deponeres i henhold til lovgivningen, og har derfor ’rød farvekode’ - selvom den burde være ’grøn’ for genbrugssituationen.
PCB-forurenede byggevarer udgør en anden ’rød’ kategori, hvor materialet faktisk kan ’oparbejdes’ fra at have været ’rød’ miljø og sundhedsskadelig affaldskategori, til at være helt ufarligt. F.eks. er mange parketgulve og betonelementer fra 1970’erne pga. PCB ’rød’ kategori i en miljøscreening. Men det er muligt at afrense dem, på en forholdsvis enkel måde til at være uden sundhedsrisici og dermed anvendelige som direkte genbrug.
Scanning, NDT, and environmental screening in the reverse design process
Reverse environmental screening
Environmental screening, like consulting, is primarily aimed at waste regulations, which were updated on July 1, 2025. The desire is for buildings to be demolished selectively. The environmental screening must ensure that the different types of construction waste are not mixed together and that they are transported and treated correctly according to the waste type. Environmental screening is currently carried out by engineers. There are a number of apps that help engineers, both in knowing which physical samples to take and in generating the environmental screening report itself. The more environmental screenings that are carried out, the more ‘intelligent’ the app becomes through machine learning features incorporated into the tool. It is, therefore, likely that environmental screening will be part of an architect’s design process in the future, especially because there will be a number of factors that will be completely predictable from a statistical point of view.
The environmental screening report from the project partner reviews all building components in the buildings scheduled for demolition. The building components are classified in relation to waste sorting. In the app, the building material has a color code. For example, the ‘red’ color code indicates that the building material is harmful to human health and/or the environment and that it must be sent to a landfill, e.g., due to heavy metal content or asbestos. The ‘yellow’ color code indicates a need for cleaning before waste disposal. (For example, certain types of paint must be removed). The ‘green’ color code indicates that the component can be handled directly, without further action.
As an architect who needs to use materials from selective demolition, it would be easy to relate to the three color codes. But unfortunately, it is not that simple. Due to the focus on waste (rather than reuse), a metal plate, for example, will have a ‘red’ color code, even though it can be reused directly in construction without any health or environmental problems. However, as waste, a metal plate will contain ‘heavy metals’ and must therefore be disposed of in accordance with legislation, and therefore has a ‘red color code’ – even though it should be ‘green’ for reuse.
PCB-contaminated building materials constitute another ‘red’ category, where the material can actually be ‘reused’ from being ‘red’ environmentally and health-hazardous waste to being completely harmless. For example, many parquet floors and

17 5 Gulve Fliser, glaseret tegl Bygning 3 - 2 - TV P19

16 3 Vægge Fliser, glaseret tegl Bygning 3 - 2 - TV P18
træ


16 8 Vægge
Brædder, uimprægneret træ Bygning 3 - 2 - TV
18 3 Indvendige vinduer og døre Uimprægneret træ + Maling (Hvid) Bygning 3 - 2 - TV

19 2 Indvendigt træværk Uimprægneret træ + Lak Bygning


5 5 Udvendige vinduer og døre Uimprægneret træ + Maling (Hvid) Bygning 3 - Udvendige bygningsdele
En tredje ’rød’ kategori, er byggevarer, som under ingen omstændigheder kan genbruges. Her var det en overraskelse for arkitektfirmaerne i projektet, hvor omfattende deponikravet er i forhold til f.eks. et asbest-eternittag, hvor alt træværk i tagkonstruktionen skulle deponeres. Desværre eksisterer pt. ingen oprensningsmetoder – men oparbejdningsindustrien udvikler sig dag for dag.
concrete elements from the 1970s are in the ‘red’ category in an environmental screening due to PCBs. However, it is possible to clean them in a relatively simple way to remove any health risks, making them suitable for direct reuse.


I de to designforløb i projektet viste det sig at miljøscreeningsinformationer var helt afgørende for arkitekters beslutninger, fra dag eet.
Derfor blev der arbejdet med forskellige ideer til repræsentation af miljøscreeningsdata. I den første designproces var miljøscreeningsdata indlejret direkte i en digital model, hvor alle byggevarer fra en nedtaget, ’høstet’ bygning, var visualiseret som om det var lagt ud på ’en fodboldbane’. Alle dele på ’fodboldbanen’ var informeret med miljøscreeningsdata.
Den direkte integrering af MILVAs data i den digitale model er teknisk muligt, men vil først for alvor være en stor fordel, hvis det ’cirkulære ’informationslag i MILVAs og andre miljøscreeningsvirksomheder værktøj udvikles9. Det er netop dét informationslag, som har betydning for arkitekters designbeslutninger, mens det nuværende ’affaldsfokuserede’ faktisk misinformerer arkitekter, som det demonstreredes i eksemplet med metalplader.
A third ‘red’ category is building materials that cannot be reused under any circumstances. The architectural firms involved in the project were surprised by the extent of the landfill requirement in relation to, for example, an asbestos-cement roof, where all the woodwork in the roof structure had to be sent to a landfill. Unfortunately, there are currently no purification methods available, but the reuse industry is developing day by day.
In the projects two cases it turned out that environmental screening information was crucial to the architects’ decisions from day one.
Therefore, various ideas for representing environmental screening data were explored. In the first design process, environmental screening data was embedded directly in a digital model, where all of the building materials from a building that was ‘harvested’ before demolition were visualized as if they were laid out on a ‘soccer field’. All parts on the ‘soccer field’ were labeled with environmental screening data.
The direct integration of environmental screening data (MILVA’s data) into the digital model is technically possible, but will only be a real advantage if the ‘circular’ information layer in MILVA’s
Fig. 3: Komponenter fra Ringparken, Slagelse, med miljøscreenings informationer indlejret i digitale objekter. / Components from Ringparken, Slagelse, with environmental screening information embedded in the digital objects.

Et af resultaterne i projektet er udarbejdelsen af et forslag til et nyt informationslag i miljøscreenings app’en. Et nyt ’cirkulært’ informationslag, som er rettet mod direkte genbrug (og ikke affaldshåndtering). I dét informationslag i app’en vil der f.eks. ud for ’rød farvekode’ for metalplader, kunne stå den væsentlige information, at metalplader kan genbruges direkte uden fare i en bygning. I dét tilfælde vil tilslutningen af det ’cirkulære informationslag’ i app’en gøre en ’rød’ farvekode til ’grøn’ uden behov for oparbejdning. Det andet eksempel kunne være det PCB-inficerede parketgulv. Den samme type rensning af gulvet, som kræves i forhold til affaldsregler, vil kunne ændre ’rød’ farvekode til ’grøn ’ i app’ens cirkulære informationslag - der måske også kunne komme med forslag til hvor rensningen kunne foregå.
De seks arkitekttegnestuer i projektet havde ikke adgang til det cirkulære informationslag i app’en, da det kun findes på idéniveau, og de havde derfor et stort behov for at konsultere miljøscreeningseksperterne dagligt med hensyn til, hvad der ville kunne genbruges uden sundhedsrisici eller evt. ville kræve en speciel type oparbejdning og afrensning, og hvilke maskiner og firmaer, der kunne udføre det.
and other environmental screening companies’ tools is developed.9 It is precisely this layer of information that is important for architects’ design decisions, while the current ‘waste-focused’ approach actually misinforms architects, as demonstrated in the example with the metal sheets.
One of the results of the project is the development of a proposal for a new layer of information in the environmental screening app: a new ‘circular’ information layer aimed at direct reuse (rather than waste management). In this information layer, for example, next to the ‘red’ color code for metal sheets, the app could display the important information that the metal sheets can be reused directly without risk in a building. In that case, the addition of the ‘circular information layer’ in the app will change the ‘red’ color code to ‘green’ without the need for reprocessing. The second example could be the PCB-contaminated parquet floor. The same type of floor cleaning required by waste regulations could change the ‘red’ color code to ‘green’ in the app’s circular information layer; it could also suggest where the cleaning could take place.
The six architectural firms involved in the project did not have access to the circular information layer in the app, as it only exists as an idea. Therefore, they had a great need to consult the environmental screening experts on a daily basis regarding what could be reused without health risks or what might require special processing and cleaning, and which machines and companies could perform this.
Bærende konstruktioner af genbrugsvarer: Non Destructive Testing (NDT) – det kontinuerte testregime
At genbruge køkkenskabe, døre og kabelbakker sker alt for sjældent, selv om det er enkelt. Partner i projektet Søren Jensen Rådgivende Ingeniører, har dokumenteret dette.10 Denne type genbrug kræver ikke umiddelbart involvering af en konstruktioningeniør. Men i Genbrug på Matriklen-projektet blev det primært udforsket, hvordan arkitekter kan lade eksisterende bærende konstruktioner og byggevarer derfra indgå i design af nye bærende konstruktioner. En stor del af CO2 aftrykket kommer fra fundamenter, bærende vægge, søjler, dæk og bjælker i f.eks. beton. Tæt samarbejde mellem arkitekter og konstruktionsingeniører er altid en fordel, men med cirkulært byggeri er det helt centralt.
Når arkitekter designer nybyggeri kan konstruktionsingeniøren relativt sent i designprocessen definere dimensioner, specificere materialet yderligere, justere armering, som gør det statiske system acceptabelt. I Genbrug på Matriklen, blev det tydeligt, at bærende konstruktioner af genbrugsmaterialer kræver et helt tæt samarbejde med konstruktionsingeniører fra dag eet... og kontinuert igennem designprocessen. Men selv hvis det skulle være muligt, er der certificerede konstruktionsingeniører, som ikke vil basere deres statiske systemer på genbrug, pga. manglende data. Derfor ser vi transformationer, hvor der ikke er tiltro til den eksisterende konstruktion, og et nyt parallelt statisk system af virgine materialer er indsat - Just in case. I samarbejde med Grand Solution projektet ’structural reuse’ er der udforsket hvordan NDT-data kan informere designbeslutninger – i samarbejdet mellem konstruktionsingeniører og arkitekter, så den nødvendige data tilvejebringes.
Statikere, der skal godkende bærende systemer af genbrugsvarer kan i stedet kræve at konstruktionen overdimensioneres, hvilket er en relevant arkitektonisk og miljømæssig strategi, fordi materialerne på sin vis er miljøpåvirkningsmæssigt ’gratis’. Det er også en designstrategi, som kræver tæt samarbejde mellem konstruktionsingeniør og arkitekter.
Ringparken – præfabrikerede elementer af beton I den første case-iteration var fokus på bærende konstruktioner af præfabrikerede betonelementer. Første skridt var en klassifikation af de eksisterende historiske dokumenter, fordi dokumentationsniveauet bestemmer hvilket testregime, der er behov for.11 I Ringparken, viste dokumentation-klassifikationen at informationer var stort set fraværende. Derfor var der behov for NDT i forhold til bestemmelse af betontype (trykstyrke), viden om placering af armering og undersøgelse af ikke-synlige revnedannelser. Til det formål blev anvendt følgende metoder:
Load-bearing structures made from reused materials: Non-Destructive Testing (NDT) –The continuous testing regime
Reusing kitchen cabinets, doors, and cable trays happens far too rarely, even though it is simple. One partner in the project, Søren Jensen Consulting Engineers, has documented this.10 This type of reuse does not immediately require the involvement of a structural engineer. However, the Genbrug på Matriklen (Reuse on Site) project primarily explored how architects can incorporate existing load-bearing structures and building materials into the design of new load-bearing structures. A large part of the CO2 footprint comes from foundations, load-bearing walls, columns, decks, and beams in, for example, concrete. Close collaboration between architects and structural engineers is always an advantage, but with circular construction, it is absolutely essential.
When architects design new buildings, structural engineers can define dimensions, further specify materials, and adjust reinforcement relatively late in the design process to make the static system acceptable. In ’Reuse on Site’ project, it became clear that load-bearing structures made from reused materials require close collaboration with structural engineers from day one and continuously throughout the design process. But even when it is possible, there are certified structural engineers who will not base their static systems on reused materials due to a lack of data. That is why we see transformations where there is no confidence in the existing structure, and a new parallel static system of virgin materials is inserted – just in case. In collaboration with the Grand Solutions project StructuralReuse, research has been conducted into how NDT data can inform design decisions made in collaboration between structural engineers and architects, so that the necessary data is provided.
Structural engineers who have to approve load-bearing systems made from reused materials may instead require the structure to be oversized, which is a relevant architectural and environmental strategy because the reused materials are, in a sense, ‘free’ in terms of environmental impact. It is also a design strategy that requires close collaboration between structural engineers and architects.
Ringparken – Prefabricated concrete elements
In the first case iteration, the focus was on load-bearing structures made of prefabricated concrete elements. The first step was to classify the existing historical documents, because the level of documentation determines which test regime is needed.11 In Ringparken, the documentation classification showed that information was largely absent. Therefore, NDT was needed to determine the concrete type (compressive strength), to obtain knowledge of the reinforcement locations, and to





Fig. 4: Miljøscreeningsdata og NDT-data, informerer den samme digitale model. Den digitale model er samtidigt også ’holder’ af ressourcekortlægningen. / Environmental screening data and NDT data inform the same digital model. The digital model also ‘holds’ the resource mapping.

The ressource mapping is contained in the digital model, obtained from 3D scanning.
This digital model also holds the information from the environmental screening and the Non-destructive testing.
Ultrasonic pulse velocity / ultrasonic pulse-echo (UPE, ultrasonic tomography) giver ligesom rebound hammer en numerisk værdi, så det er muligt at estimere betontrykstyrke. Ultrasonic pulse er mere præcis end at have det største potentiale i forhold til at kunne angive betontype uden fysiske prøver (boreprøver).
Groundpenetrating radar (GPR), giver viden om ikke-synlige skader/mangler i komponenterne (revner, fejlplacering af armering. Ground penetrating radar er det mest visuelle og benyttes i dag i specialopgaver, men kan i fremtiden indgå i en mainstream proces.
De eksisterende tekniske specifikationer beskriver, hvor stor en andel af genbrugs-byggevaren, som skal testes destruktivt. Kravet om destruktive tests er en barriere for genbrug til bærende konstruktioner. Når en industriel byggevare af nye virgine materialer certificeres, sker det med meget omfattende tests. Men når de tests én gang er udført, vil byggevaren kunne
examine for non-visible cracks. The following methods were used for this purpose:
Ultrasonic pulse velocity/ultrasonic pulse-echo (UPE, ultrasonic tomography) provides a numerical value, similar to a rebound hammer, making it possible to estimate concrete compressive strength. Ultrasonic pulse is more accurate than Rebound Hammer and has the greatest potential in terms of being able to identify the concrete type without physical samples (core samples).
Ground penetrating radar (GPR) provides information about invisible damage/defects in components (e.g., cracks, misplacement of reinforcement, etc.). Ground penetrating radar is the most visual and is currently used in special tasks, but in the future it may become part of mainstream NDT processes.





Non destructive testing after new building with reused materials




The ressource mapping is contained in the digital model, obtained from 3D scanning.
This digital model also holds the information from the environmental screening and the Non-destructive testing.

Fig. 5: Kontinuert testregime, hvor NDT anvendes før bygningen ’høstes’, efter opbevaring/oparbejdning og til sidst efter opsætning. / Environmental screening data and NDT data inform the same digital model. The digital model also ‘holds’ the resource mapping.
produceres i en årrække. Genbrugte byggevarer er potentielt unikke, har været udsat for forskellig belastning fra brug og klima. Derfor skal testregimet for genbrug være dynamisk og kontinuert.
Resultaterne fra Genbrug på Matriklens 1:1. Mock-up og hvor der udførtes NDT efter færdiggørelse, viste at byggevarerne var uskadte på trods af en hårdhændet nedtagning, opbevaring og opsætning. Det åbner muligheden for et testregime, hvor byggevarer kan få ’nulstillet’ deres restlevetid, via NDT. Restlevetid er et centralt designparameter for arkitekternes designproces.






Non-Destructive Testing after selective demolition
In the existing technical specifications, what proportion of the reused building material must be tested destructively? The requirement for destructive testing is a barrier to reuse in load-bearing structures. When industrial building material made from new virgin materials is certified, it undergoes very extensive testing. But once the tests have been carried out, the building material can be produced for a number of years. Reused building materials are potentially unique, having been exposed to different stresses from use and climate. Therefore, the testing regime for reuse must be dynamic and continuous.
The results from the project’s 1:1 Mock-Up, where NDT was performed after completion, showed that the reused building products were undamaged despite rough dismantling, storage, and installation. This opens up the possibility of a testing regime where building materials can have their remaining service life ‘reset’ via NDT. Remaining service life is a key design parameter for architects’ design processes with reuse.


Hvordan indgår NDT i en designproces?
I Ringparken-casen blev NDT-data, overdraget til konstruktionsingeniør Rasmus Kristian Holst, som med DTU’s hjælp kunne skabe en præcis statisk model, af den eksisterende ’høstede’ bygning, fordi han, på trods af manglende tegninger og dokumentation for Ringparkens betonelementer, kunne få en betontrykstyrke og -klasse.
Fordi casen (Ringparken) kun havde et simpelt statisk system (baseret på skiver) og tusindvis af ens elementer, afprøvede en gruppe DTU-studerende og Rasmus Kristian Holst (Holst Engineering) om man kunne forberede en digital model i Rhino med statik information – ideen var at en arkitekt kunne ’høste’ betonelementer fra den eksisterende bygning og sammensætte de konkrete betonelementer, og direkte få viden om det plausible ved det nye statiske systems design. Hvis der var en svaghed, eller armeringen f.eks. vendte forkert i betonelementet, ville den digitale model blive ’rød’, og omvendte have en ’grøn’ farve, hvis det statiske system var sundt. For arkitekten var det som at have en ’konstruktionsingeniør i lommen’ undervejs i designprocessen. Men det var en fremgangsmåde, som primært virkede for det repetitive, standardbyggeri med mange ens elementer i Ringparken.
How does NDT fit into a design process?
In the Ringparken case, the NDT data was transferred to structural engineer Rasmus Kristian Holst (Holst Engineering), who, with the help of DTU, was able to create a precise static model of the existing ‘donor’ building. Despite the lack of drawings and documentation for Ringparken’s concrete elements, he was able to obtain concrete compressive strength and class data from the NDT results, which enabled the creation of the model.
Because the Ringparken case only had a simple static system (based on discs) and thousands of identical elements, a group of DTU students and Rasmus Kristian Holst tested whether it was possible to prepare a digital model in Rhino with static information. The idea was that an architect could ‘harvest’ concrete elements from the existing building, assemble the concrete elements, and directly obtain knowledge about the plausibility of the new static system design. If there was a weakness, or if the reinforcement was turned the wrong way in the concrete element, for example, the digital model would turn ‘red’, and conversely, it would turn ‘green’ if the static system was sound. For the architect, it was like having a ‘structural engineer in their pocket’ during the design process. But it was an approach that primarily worked due to the repetitive, standard construction that used many identical elements in Ringparken.
Fig. 6: Ground penetrating radar, Ringparken.
Fig. 7: Ultrasonic Pulse Echo, Listefabrikken, Åbyhøj

Fig. 8: Digital model, med statikinformation til arkitekter, der designer med de genbrugte betonelementer. / Digital model with static information for architects designing with reused concrete elements.
Listefabrikken
Projektets andet år fokuserede på en case beliggende i et industrikvarter, tæt på en større by. Listefabrikken i Åbyhøj indeholder flere hybride statiske systemer, og er typisk for industribygninger, tilbygget over årtier.
NDT-data af tømmer- og limtræskonstruktionsdele blev leveret til konstruktionsingeniør Peter Vejrum (Søren Jensen Rådgivende Ingeniører). En række store limtræskonstruktioner, og en traditionel tømmerkonstruktion, havde ringe dokumentation ifølge klassifikationen.
Designprocessen med arkitektfirmaerne, startede med en indledende workshop med konstruktionsingeniør Peter Vejrum, der gav en række designprincipper – et løsningsrum – generelle principper. Her var designstrategien, at overdimensionere konstruktionerne, for at kompensere for usikkerhederne. De seks tegnestuer oplevede workshoppen til trods, at der var et udpræget behov for tæt samarbejde med konstruktionsingeniøren om selv små designbeslutninger i de første uger af designprocessen, med to ugentlige møder.
Listefabrikken (Millwork Factory)
The second year of the project focused on a case located in an industrial district, close to a larger city. The millwork or molding factory (Listefabrikken) in Åbyhøj contains several hybrid static systems and is typical of industrial buildings that have been added on to over decades.
The NDT data on timber and glulam structural components was delivered to structural engineer Peter Vejrum (Søren Jensen Consulting Engineers). A number of large glulam structures and a traditional timber structure had poor documentation according to the initial classification of existing documentation.
The design process with the architectural firms began with an introductory workshop by Peter Vejrum who presented a number of design principles, a solution space, and general principles. The design strategy here was to oversize the structures to compensate for uncertainties. Despite the workshop, the six design studios found that there was a distinct need for close collaboration with the structural engineer on even minor design decisions in the first weeks of the design process.

Fig. 9: ’Fodboldbanen’ – giver informationer om opbevaringsareal-behovet på matriklen, og hvor der kan placeres oparbejdningsfaciliteter. Den giver en designmæssig frihed samt et visualiseret ’regnskab’ over hvad der allerede er anvendt i designet. /
Datahåndtering - Visualiseringsformater
Der er et behov for at der udvikles nye visualiseringsformater, der matcher nye typer af information, der kan informere en ’omvendt designproces’.
En verden af ressourcekortlægninger
For at kunne begynde at arbejde med ’ koreografien ’ for genbrug på matriklen, er nye visualiseringer af ’ressourcekortlægning’ et udviklingsfelt. Ressourcekortlægning er oftest en simpel optælling, noteret i f.eks. et Excelark. Excelarket med optællingen af byggevarer og deres tilstand på matriklen, er et vigtigt værktøj i arkitektens designproces. Det er en mainstream rådgiverydelse, som leveres af både arkitekter, konstruktører og ingeniører. Excel-listen med ressourcekortlægningen dannes via en gennemgang af bygningen, suppleret af fotos og historiske tegninger fra f.eks. BBR og andre bygningsarkiver. Ofte foregår det i kombination med 3D-scanninger af bygningerne, hvor den digitale model, fungerer som et annoteringsredskab i forhold til gennemgangen af bygningen. Der forskes i om 3D-scanning og ressourcekortlægning kan hjælpes af AI, trænet til at genkende f.eks. spær etc., men AI er pt. primært trænet til at genkende møbler, dyr etc. Derfor er det ikke pt. en mulighed som konkret ydelse.12
The ‘soccer field’ provides information about the storage space requirements on the property and where processing facilities can be located. It provides design freedom and a visualized ‘account’ of what has already been used in the design.
Data management – Visualization formats
There is a need to develop new visualization formats that match new types of information that can inform a ‘reverse design process’.
A world of resource mapping
In order to begin working on the ‘choreography’ for reuse on a property, new visualizations for ‘resource mapping’ need to be developed. Resource mapping is usually a simple count, noted in, for example, an Excel spreadsheet. The Excel spreadsheet with the count of building materials and their condition on the property is an important tool in an architect’s design process. It is a mainstream consulting service provided by architects, designers, and engineers. The Excel list with the resource mapping is created through a review of the building, supplemented by photos and historical drawings from, for example, BBR and other building archives. Often, this is done in combination with 3D scans of the buildings, where the digital model serves as an annotation tool in relation to the review of the building. Research is being conducted into whether 3D scanning and resource mapping can be aided by AI that has been trained to recognize, for example, rafters, etc. However, today AI is primarily trained to recognize furniture, animals etc. Therefore, it is not currently an option as a specific resource mapping service.12

Fig. 10: ’Høstbygningen’ – det er vigtig information at vide hvor genbrugskomponentent stammer fra - hvilken rolle spillede den i ’høstbygningen’? / The ‘donor building’ – model provides information about where the reused components come from and what role they played in the ‘donor building’?
Ydelser, som leverer en automatisk genereret ressourcekortlægning, baseret på data fra offentlige, digitale databaser såsom BBR, SAVE-registreringer og data fra Energimærkeordningen, koblet med historisk byggeteknikdata fra f.eks. Tabula-projektet, vil kunne ændre den måde vi udfører ressourcekortlægning. Ideerne er blev lanceret i flere sammenhænge f.eks. i Bygnings- og Materialepas13 og i Grand Solutions-projektet Circle Bank.14 og er kommercielt realiseret i f.eks. CIRCUEs ydelser.15 Det er ikke lykkedes at indarbejde CIRCUE-produktet16 i designprocesserne, da udviklingsprojektet ikke var færdigt. Zupply17 eller andre lignende tjenester kan også være en mulighed.
Visualiseringen af ressourcekortlægningen er med andre ord central for arkitekters ’genbrug på matriklen’-designproces og konsulteres konstant, dels for at se mulighederne og dels holde hus med det allerede anvendte. En del materiale går til spilde, enten pga. eksisterende skader, nødvendigheden af udvalgte, destruktive tests, eller nye skader, der kan opstå i udførelsesfasen.
I de udviklede designprocesser har især to typer visualiseringer af ressourcekortlæning vist sig nyttige; ’fodboldbanen’ og ’høst bygningen’.
Services that provide automatically generated ‘resource mapping’ based on data from public digital databases such as BBR, SAVE registrations, and data from the Energy Labeling Scheme, linked with historical building technology data from, for example, the Tabula project, could change the way we perform resource mapping. The ideas have been launched in several contexts, e.g., in Bygnings- og Materialepas13 and in the Grand Solution project Circle Bank.14 They have also been commercially realized in, for example, CIRCUEs services.15 It has not been possible to incorporate the CIRCUE product16 into the design process, as the development project was not completed. Zupply17 or other similar services could also be an option.
In other words, the visualization of the ‘resource mapping’ is central to architects’ ‘reuse-on-site’ design process and is constantly consulted. This is partly to see the possibilities and partly to keep track of what has already been used. Some material is wasted, due to existing damage, the need for selected destructive tests, or new damage that may occur during the execution phase.
In the developed design processes two types of resource mapping visualizations have proven particularly useful: the ‘soccer field’ and the ‘donor building’.


Fig. 11: Et eksempel på en ’ressourcekortlægnings’-visualisering fra een specifik bygning, som samtidig er en gensalgshjemmeside. https://baselpavillon.store/, https://bauteile-ibs.ch/ /
An example of a ‘resource mapping’ visualization from a specific building, which is also a resale website. https://baselpavillon.store/, https://bauteile-ibs.ch/
Gensalgshjemmesiden som visualiseringstypologi, kan også tolkes som ’holder’ af en form for ressourcekortlægning. Netop den visualisering af ressourcekortlægningen blev undersøgt i 2. iteration, Listefabrikken i Åbyhøj. Ideen var, at der altid vil være en koblingsflade mellem en ressourcekortlægning på matriklen, og gensalgshjemmesiden, fordi der vil være behov for at supplere med materiale, som ikke findes på stedet, og omvendt sælge materiale videre, der ikke blev anvendt på matriklen.
Konklusionen på projektets 2. iteration blev, at arkitekter har brug for alle 4 typer repræsentationer af ressourcekortlæning, for at kunne ’genbruge på matriklen’ i et direkte genbrugs regime; Excel arket, ’høstbygningen’ og ’fodboldbanen’ og ’gensalgshjemmesiden’.
En verden af 3D-scanninger ’Fodboldbanen’ og ’høstbygningen’ er digitale modeller, som skabes på baggrund af 3D-scanninger af bygningen. Udarbejdelse af en digital bygningsmodel på baggrund af 3D-scanninger er en gængs ydelse fra landinspektører, der er blevet etableret gennem det seneste årti og kan inkludere scanning med droner såvel som interiørscanninger.
The resale website, as a visualization typology, can also be interpreted as a ‘holder’ of a form of resource mapping. This visualization of resource mapping was examined in the second iteration, Listefabrikken in Åbyhøj. The idea was that there would always be a link between resource mapping on the property and the resale website, because there would be a need to supplement with material that was not available on site, and conversely, to resell material that was not used on site.
The conclusion from the project’s second iteration was that architects need all four types of resource mapping representations in order to be able to ‘reuse on site’ in a direct reuse regime; the Excel sheet, the ‘soccer field’, the ‘donor building’, and the ‘resale website’.
A world of 3D scans
The ‘soccer field’ and ‘donor building’ are digital models created on the basis of 3D scans of the building. The creation of a digital building model based on 3D scans is a common service provided by land surveyors. It has been established over the last decade and can include exterior scanning with or without drones as well as interior scans.


Fig. 12: Gensalgshjemmeside som også er ressourcekortlægning, digital model, fotorealistiske scanninger, ’holder’ af NDT og miljøscreeningsdata, Listefabrikken, Åbyhøj. / Resale website - format, that includes resource mapping, digital models, photorealistic scans, NDT and environmental screening data, Listefabrikken, Åbyhøj.
Måske fordi scanningerne sjældent udføres af arkitekter, er der en erfaring blandt arkitekter at data kan være for omfattende, og at der mangler kompetencer til at kunne håndtere landinspektørernes data clouds. Det er derfor en vigtig pointe at 3D-scanninger af bygninger er et felt i rivende udvikling – det sidste ord er langt fra sagt om 3D-scaninger. Der er en vifte af metoder til at scanne og visualisere eksisterende bygninger med forskellige grader af præcision og tilsvarende kompleksitet i håndteringen
Med opmærksomhed på den stadig større tilgængelighed af LIDAR-scanning og fotogrammetri for eksempel ved hjælp af mobiltelefoner, er der i projektet udforsket, hvordan 3D-scanninger kan være mange forskellige ting, og at de kan udføres af arkitekter, til kontekstbestemte behov. For eksempel kan fotorealistiske scanninger kobles til specifikke objekter i overordnede BIM-modeller.
En komplet fotorealistisk scanning af den eksisterende bygning kan være datatung, og besværlig at håndtere i en kreativ proces. Der er således et stort ønske om at have forskellige varianter eller balancer mellem en digital oversigtsmodel og fotorealistiske ’nedslag’. De fotorealistiske nedslag er nødvendige fordi de unikke karaktertræk, ved f.eks. et betonelement med nogle særlige badeværelsesfliser, en metalplade med flot graffiti, en
Perhaps because the scans are rarely performed by architects, there is a perception among architects that the data can be too extensive and that they lack the skills to handle the land surveyors’ data clouds. It is, therefore, important to note that 3D scanning of buildings is a rapidly developing field and the last word on 3D scanning is far from being said. There are a range of methods for scanning and visualizing existing buildings with varying degrees of precision and corresponding complexity in handling.
With attention to the increasing availability of LIDAR scanning and photogrammetry, for example using mobile phones, the project has explored how 3D scans can be many different things and that they can be performed by architects for context-specific needs. For example, photorealistic scans can be linked to specific objects in overall BIM models.
A complete photorealistic scan of an existing building can be data-heavy and cumbersome to handle in a creative process. There is, therefore, a great desire to have different variants or balances between a digital overview model and photorealistic ‘snapshots’. The photorealistic snapshots are necessary because the unique characteristics of, for example, a concrete element with special bathroom tiles, a metal plate with beautiful graffiti, or the tactility of a glulam timber arch, are among

Fig. 13: Scanning til digital oversigtsmodel, kombineret med fotorealistiske scans, Listefabrikken. / Scanning for digital overview model, combined with photo-realistic scans, Listefabrikken.
limtræsbues taktilitet, hører med til de ’gaver’ som driver og motiverer ’den omvendte designproces’. Det er derfor afgørende, at der findes et visualiseringsformat i 3D-scannings- og ressourcekortlægningsregimet, som giver plads til det.
Gensalgshjemmesidernes visuelle kommunikation
Alle har prøvet at købe noget brugt på DBA, men det er en helt anden sag at skulle designe en bygning med materiale der ’høstes’ fra en gensalgshjemmeside. Ofte har byggevarerne kun små og dårlige visualiseringer, og overordnede mål. I projektet overvejedes, om der kunne etableres et samarbejde med AU Computer Science om at ’scrape’ gensalgshjemmesider, så der automatisk kunne genereres digitale objekter, arkitekter kunne arbejde med. Alternativt kunne gensælgere af byggevarer 3D-scanne varerne på en måde, så de kan indgå i en digital model. I dag gentegner arkitekter selv old school alle genbrugte dele, de køber til deres projekter på gensalgshjemmesider. Nogle arkitekter sætter pris på arbejdet, fordi det giver dem mulighed for at ’lære’ komponenten at kende’. Andre ville gerne have et mere direkte digitalt flow, mellem deres 3D-model og gensalgshjemmesiden.
Der foregår en hurtig innovation på gensalgsområdet, men det vil være en effektiv barriere fjernelse, at designe hjemme-
the ‘gifts’ that drive and motivate the ‘reverse design process’. It is therefore crucial that there is a visualization format in the 3D scanning and resource mapping regime that allows for this.
The visual communication of resale websites
Everyone has tried to buy something used on e.g., eBay, but it is a completely different matter to design a building with materials ‘harvested’ from a resale website. Often, building materials only have small and poor visualizations and general dimensions. The project considered whether a collaboration could be established with AU Computer Science to ‘scrape’ resale websites so that digital objects could be automatically generated for architects to work with. Alternatively, resellers of building materials could 3D scan the goods in a way that would allow them to be included in a digital model. Today, architects redraw all the reused parts they buy for their projects on resale websites by themselves in an ‘old-school’ approach. Some architects appreciate the work because it gives them the opportunity to ‘get to know’ the component. However, others would like a more direct digital flow between their 3D-model and the resale website.
There is rapid innovation in the resale area, but designing websites to work more smoothly with architects’ design processes would be an effective way to remove barriers to reuse.

Fig. 14: Nedtagnings- og oparbejdningskoreografi, Listefabrikken. SLETH, Anna Mette Exner Arkitektur, Arkitema, EFFEKT, CEBRA, JJW. / Choreography of disassembly and processing.
SLETH, Anna Mette Exner Arkitektur, Arkitema, EFFEKT, CEBRA, JJW.
siderne, så de fungerer mere gnidningsfrit i arkitekters designprocesser.
I projektet afprøvedes et format, hvor scanninger af bygningen som helhed, var suppleret af fotorealistiske delscanninger af byggevarer, lagt ind i et gensalgshjemmesideformat. Det fungerede dermed både som holder af den digitale model og potentielt NDT- og miljøscreeningsdata, og var samtidig en ressourcekortlægning, der tillod køb direkte på hjemmesiden.
Den omvendte designproces i praksis
I to designsprints af en måneds varighed, arbejdede de seks tegnestuer med de visualiserede datapakker af scanninger, miljøscreeing og NDT. I et aktionsforskningsformat afprøvedes ’den omvendte designproces’ med daglige reflektioner og observationer noteret i Miroboards.
Nedtagnigs-, opbevarings-, og oparbejdningskoreografi
I de designforløb, som blev ’øvet’ i projektet, var noget af det sidste, der blev visualiseret, den selektive ’nedtagningskoreografi’, men det burde have været det første. Selektiv nedtagning, er ikke umiddelbart et felt som beskæftiger arkitekter. Vi har interviewet nedtagningsfirmaerne i projektet om, hvordan de
The project tested a format in which scans of the building as a whole were supplemented by photorealistic partial scans of building materials posted on a resale website. It, thus, functioned both as a digital model and potentially as ‘container’ of NDT and environmental screening data, while also serving as a resource map that allowed purchases to be made directly on the website. A truly integrated solution; one point of entry.
The
reverse design process in practice
During two month-long design sprints, the six design studios worked with the visualized data packages containing the results from 3D scanning, environmental screening, and NDT. In an action research format, the ‘reverse design process’ was tested with daily reflections and observations noted in Miro boards.
Demolition, storage, and processing ‘choreography’.
In the design processes that we practiced, one of the last things to be visualized was the ‘choreography’ of selective dismantling. However, it should have been the first. Selective dismantling is not immediately a field that concerns architects. We interviewed the demolition companies involved in the project about how they visualize or communicate the demolition
visualiserer eller kommunikerer nedtagningsprocessen i rum og tid. Der er ikke umiddelbart et udviklet format for det, da det typisk blot aftales på pladsen.
Fælles for de forslag, som udvikledes i projektet er den rejste plan eller axonometri. En rumlig oversigtstegning over den eksisterende matrikel, ’høstbygningen’ bygning, med mulighed for at manipulere den samme tegning i en slags ’tegneserie’. Serien af tegninger, giver det filmiske, tidsmæssige aspekt – koreografien af nedtagning, opbevaring, oparbejdning off- og onsite, opbygning.
Logistikken for nedtagning, transport, opbevaring (hvor på pladsen og hvor længe?), oparbejdning (onsite og off-site) frem til proces med at bygge med komponenterne på ny, er en væsentlig ændring af arkitekters designprocess og kultur. Det er en anderledes proces, end at vælge byggevarer fra kataloger.18
For at arkitekter kan arbejde med det, er spørgsmålet om repræsentation/visualisering afgørende.
Samme serie af visualiseringer med små ’tændstikmænd’, der udfører handlinger, kan vise hvad der placeres hvor i det endelige byggeri.
Simuleringsvideoer er endnu en mulighed, som vi dog ikke har afprøvet som led i den kreative proces i dette projekt, da det vurderedes at tage for meget tid, i forhold til at skulle indgå i en åben designproces.
Udarbejdelse af fysiske modeller i mindre skala eller mindre prototypemodeller af bestemte bygningskomponenter eller materialesammensætninger i 1:1 skala, kan vise sig at være nyttige design- og kommunikationsredskaber, for koreografien.
Byggepladskoordinatorer benytter forskellige former for Gantt charts, men de er vanskelige at benytte i en kunstnerisk, kreativ arkitektonisk designproces, hvor der skal vælges mellem mange af beslutningsmuligheder. Termen ’koreografi’ er åben, hvorimod Gantt charts bygger på et etableret teknisk fælleseje, hvor ydelser er velbeskrevne. Dette er endnu ikke tilfældet for ’genbrug på matriklen’- processer.
Oparbejdning
Oparbejdning har i det sidste årti været et emne inden for cirkulær økonomi. Diskussionen har omfattet hvilke industrier, der vil kunne varetage behovet for at rense, klargøre, tilskære etc.genbrugsmaterialer. De nuværende materialeproducenter i tilbagetagningsordninger? En ny upcomming oparbejdningsindustri? Entreprenører og bygherrer som byggevareleverandører?
process in space and time. There is no universal format for this, as it is typically just agreed upon on site.
Common to the proposals developed in the project is the raised plan or axonometric projection. This is a spatial overview drawing of the existing property, the ‘donor building’, with the possibility of manipulating the same drawing in a kind of ‘comic strip’. The series of drawings provides a cinematic, temporal aspect – the choreography of dismantling, storage, processing off and onsite, and construction.
The logistics of dismantling, transport, storage (where on site and for how long?), and processing (onsite and offsite) up to the process of rebuilding with the components is a significant change in architects’ design process and culture. It is a different process than choosing building materials from catalogs.18
For architects to work with it, the question of representation/ visualization is crucial.
The same series of visualizations with little ‘stick figures’ performing actions can show what will be placed where in the final construction.
Simulation videos are another option, but we have not tested them as part of the creative process in this project, as it was considered too time-consuming to be included in an open design process.
The creation of small-scale physical models or small prototype models of specific building components or material compositions on a 1:1 scale can prove to be useful design and communication tools for the choreography.
Construction site coordinators use various types of Gantt charts, but these are difficult to use in an artistic, creative architectural design process where there are many decisions to be made. The term ‘choreography’ is open-ended, whereas Gantt charts are based on established technical common property, where services are well described. This is not yet the case for ‘Reuse on Site’- processes.
Preparation for reuse
The topic of preparation for reuse has been a topic of discussion in the circular economy community over the past decade. The discussion has focused on which industries will be able to meet the need for cleaning, preparing, cutting, etc., reused materials. Should it be the current material producers in take-back schemes? Should it be done by a new up-and-coming reprocessing industry? Should it be done by contractors and builders as building material suppliers?

Projektet tog det udgangspunkt, at oparbejdningsindustrien ikke skal foregå i et storskala genanvendelsesperspektiv, men vil blive udført så pladsnært som muligt.
Vi forsøgte at udføre en kortlægning af de seks tegnestuers oparbejdningskontrakter/-repetoire indenfor:
• Æstetisk oparbejdning
• Funktionelt oparbejdning (tilskæring til nye mål etc.).
• Miljømæssig oparbejdning (respons på risici defineret i miljøscreeningsrapporten).
Det viste sig imidlertid, at der var meget lidt at kortlægge. Derfor var kontakten med nedtagningspartnerne meget vigtig i projektets ti designprocesser, fordi de pt. var ene om at have ideer til konkrete oparbejdningsmaskiner, off- og on-site. Det drejede sig f.eks. om maskiner til at skære render i eksisterende betonfundamenter i industrihaller, on-site rensning af mørtelfuger på mursten, metoder til hurtigt on-site, at fraskære rustne søm i spær etc.

In the project, we took the approach that the reprocessing industry should not be carried out on a large-scale recycling basis, but should be carried out as close to the source as possible.
We attempted to map the six design studios’ reuse contacts/ repertoire within:
• Aesthetic reuse
• Functional processing (cutting to new dimensions, etc.)
• Environmental refurbishment of components (response to risks defined in the environmental screening report)
However, it turned out that there was very little to map. Therefore, contact with the demolition partners was very important in the project’s ten design processes, because at the time they were the only ones with ideas for specific processing machines, both off-site and on-site. These included, for example, machines for cutting trenches in existing concrete foundations in industrial halls, on-site cleaning of mortar joints on bricks, methods for quickly cutting off rusty nails in rafters, etc.

I forhold til visualisering, er der et åbent felt, når det kommer til oparbejdning. Nye byggevarer er visualiseret i kataloger, og findes ofte som digitale objekter. Fordi oparbejdningsindustrien er i sin vorden er der et behov for at finde et visualiseringsformat, som viser både den ønskede proces, men også det ønskede udtryk. Tilskæring i forhold til dimensioner – funktionel oparbejdning er selvsagt etableret. De æstetiske ’gaver’ som findes i det allerede brugte, ’as found’ er til stede og kan visualiseres i scanninger.
Et af de vigtigste resultater i projektet var, hvor vigtig miljømæssig oparbejdning er, jfv. afsnittet om miljøscreening. Der ligger et stort potentiale i at oparbejde byggevarer fra ’rød’, sundhedsskadelig kategori til ’grøn’ kategori, som kan anvendes direkte i nyt byggeri. Potentialet er også økonomisk, fordi affaldshåndteringen af nedrevne materialer i ’rød kategori’ er en tung økonomipost. Det giver dermed omvendt en positiv, motiverende faktor for direkte genbrug på matriklen.
Fig. 15-17: Genbrugsgaver, fundet i Listefabrikken, Åbyhøj, og oparbejdet til nyt byggeri, forslag fra SLETH, Anna Mette Exner Arkitektur, Arkitema, EFFEKT, CEBRA, JJW. / ‘Reuse gifts’, found in Listefabrikken, Åbyhøj, and reworked for new construction, proposal by SLETH, Anna Mette Exner Arkitektur, Arkitema, EFFEKT, CEBRA, JJW arkitekter.
In terms of visualization, there is an open field when it comes to processing. New building materials are visualized in catalogs and are often available as digital objects. Because the processing industry is in its infancy, there is a need to find a visualization format that shows both the desired process and the desired expression. Cutting in relation to dimensions – functional refurbishment – is, of course, established. The aesthetic ‘gifts’ found in the already used, ‘as found’ state are present and can be visualized in scans.
One of the most important results of the project was how important environmental reuse is. (See the section on environmental screening). There is great potential in reuse building materials from the ‘red’ category, which is harmful to health, to the ‘green’ category, which can be used directly in new construction. The potential is also economic, because the waste management of demolished materials in the ‘red category’ is a heavy economic item. Conversely, this provides a positive, motivating factor for direct reuse on site.
Fra det unikke til et system, forberedt for fremtidigt genbrug
Som afslutning på hver af de to designsprints, udførtes en 1:1 mock-up af et udvalg af ideerne.
Den første mock-up addresserede genbrug af betonelementer. Det har vist sig meget nemmere og billigere at nedtage betonelementer end hidtil antaget.19 Men når gravkoen ’knækker’ vægelementer fri, mistes noget af højden – hvilket gør det vanskeligt at leve op til nutidige rumhøjdekrav, når elementet genbruges.I mock-up’en undersøgtes bl.a. konsolidéen, om at kombinere trækonstruktion i form af limtræsbjælker, der kan optage den store tolerence i højder på betonelementer.
Demonterbare (design for adskillelses) samlinger med synlige stålbeslag mellem vægelementer og dækelementer blev udforsket.


From the unique to a system prepared for future reuse
At the end of each of the two design sprints, a 1:1 mock-up of a selection of the ideas was created. So in all two 1:1 mock-ups were developed in the ‘Reuse of site’ project.
The first mock-up addressed the reuse of concrete elements. It has proven to be much easier and cheaper to dismantle concrete elements than previously assumed.19 However, when the excavator ‘breaks’ the wall elements free, some of the height is lost – which makes it difficult to meet current room height requirements when the element is reused. The mock-up examined, among other things, the ‘console idea’ of combining wooden structures in the form of glued laminated beams that can accommodate the large tolerance in the heights of concrete elements.
Demountable (design for disassembly) joints with visible steel fittings between wall elements and deck elements were explored.


Kan man bygge i højden med genbrugsvægelementer? Her blev samlinger af stål også afprøvet.
Vilius Thorsgaard Frølunde-Vizgaudis videreudviklede ideerne til et system, der kunne klare tolerencer – det unikke fra genbrug – og samtidigt var forberedt på fremtidigt genbrug.
I et efterfølgende forløb designede 30 arkitektstuderende rækkehuse med ’systemet’.
Endnu mere udfordrende var 2. Iterations design af mock-up, hvor ambitionen også var at skabe en bro mellem det unikke genbrug (buede limtræsspær) og et system, som kan håndtere tolerencer og være forberedt for fremtidig adskillelse.
Fig. 18-19: Ringparken, 1. case: Mock-up bearbejdet til system for et rækkehus. / Ringparken Mock-up, which was later adapted for a terraced house system. Anna Mette Exner Arkitektur, Arkitema, EFFEKT, CEBRA, JJW arkitekter.
Is it possible to build upwards with reused wall elements? Steel joints were also tested here.
Vilius Thorsgaard Frølunde-Vizgaudis further developed the ideas into a system that could handle tolerances—the unique feature of reuse—while also being prepared for future reuse.
In a subsequent process, 30 architecture students designed terraced houses using the system.
Even more challenging was the second iteration of the mockup design, where the ambition was also to create a bridge between the unique reused material (curved glulam rafters) and a system that could handle tolerances and be prepared for future disassembly.
Økonomi og bæredygtighed
Det er velkendt at pionererne indenfor genbrug har trukket et tungt læs – også partnere i dette projekt. Den store systemiske kulturændring, er vanskelig.
I projektet er, i samarbejde med DTU, udført en LCA-beregning, som medtager transport, opbevaring og oparbejdning, samt spild – estimeret til 10%. Den er supleret af konsekvens-LCA-betragtninger: hvad sker der egentlig hvis vi genbruger betonelementer – har det negative konsekvenser når man skal skaffe vejfyld fra andre kilder f.eks.? Konsekvens-LCA’en demonstrerede tydeligt, at det erbæredygtigt, at genbruge bygninger og byggevarer.
En afsluttende samtale om økonomi og bæredygtighed fandt sted med ideer skabt i projektet som konkret udgangspunkt. Samtalen var mellem rådgivere, entreprenører, nedtagere og gensælgere. Digitale redskaber kan gøre designprocessen mere ’lean’, selvom den ikke vil kunne matche standardiseret nybyggeri med virgint-baserede byggevarer i pris, på nuværende tidspunkt, derfor er andre typer kontrakter end AB nødvendige, der tillader tid til analyser og tests. 20
Det blev suppleret af en survey blandt borgere, under udstillingen i offentligt rum af projektets mock-ups, i forhold til accept af en helt anden æstetik.
Economy and sustainability
It is well known that pioneers in reuse have had to carry a heavy burden – and the partners in this project are no exception. Major systemic cultural change is difficult.
In collaboration with DTU, an LCA calculation was performed for the project, which included transport, storage, and processing, as well as waste – estimated at 10%. This was supplemented by consequential LCA considerations: what actually happens if we reuse concrete elements? Does it have negative consequences when road fill has to be obtained from other sources, for example? The consequential LCA clearly demonstrated that it is sustainable to reuse buildings and building materials.
A concluding discussion on economics and sustainability took place, using ideas generated in the project as a concrete starting point. The discussion was between consultants, contractors, demolition companies, and resellers. Digital tools can make the design process more ‘lean’, although it will not be able to match standardized new construction with virgin-based building materials in price at this time, so types of contracts other than AB are necessary to allow time for analysis and testing.
This was supplemented by a survey among citizens during the exhibition of the project’s mock-ups in public spaces, in relation to the acceptance of a completely different aesthetic.
Noter
1 N. M., Poulsgård, K. S., Hauge Schmith, K., Haukhol, J., Gimmel, K. S., Udbye, K., Udbye, K., Dalvang, L., & Eberhardt, L. C. M. (2021). Ressource Blokken: Upcycling af 60’erne og 70’ernes almene byggeri. Realdania. http://grafisk.3xn.dk/files/permanent/Ressource_Blokken_-_Idekatalog.pd
2 Lendager A., Pedersen E., 2020, Solution : circular buildings.
3 Hinte E., Peeren C., 2007, Superuse : Constructing new architecture by shortcutting materials flows, 010 NL. / https://baselpavillon.store/, https://bauteile-ibs.ch/
4 Værdibyg, 35 Cirkulær nedrivning 36 Udbud af nedrivningsopgaver 37 Miljøkortlægning og nedrivning 43 Dilemmaer og beslutninger i den cirkulære nedrivningsproces 44 Samarbejder i nedrivningsprojekter
5 Miljø- og Fødevareministeriet og Erhvervsministeriet (SEPTEMBER 2018) Strategi for cirkulær økonomi -Mere værdi og bedre miljø gennem design, forbrug og genanvendelse,
6 New Circular Economy Action Plan (CEAP) 2020 / European Commission. Circular Economy at different levels. Environment ec.europa.eu/topics/circular-economy/levels_en
7 Lendager A., Vind D.L.,2018, A changemaker’s guide to the future.
8 https://mst.dk/erhverv/groen-produktion-og-affald/ affald-og-genanvendelse/affaldshaandtering/affaldsfraktioner/bygge-og-anlaegsaffald/selektiv-nedrivning/ autorisationsordning-for-selektiv-nedrivning / samt, MST, Handlingsplan for cirkulær økonomi, National plan for forebyggelse og håndtering af affald 2020-2032/ https://www. retsinformation.dk/eli/lta/2024/1749
9 Milva miljø- og ressourcekortlægning transformerer bygninger til data | Milva
10 www.cirkulærtdriftedeboliger.dk /
11 Snabe, K., Gustafsson, K, Vind D.L. Ottosen, L.M., April 2023, STRUCTURAL REUSE Enabling business by reuse of basic building components/PUBLICATION FOR MIDWAY CONFERENCE
12 Sonne-Frederiksen, P. F. (2025). 3D Mapping of Vacant Buildings for Reuse.
13 Jensen L. B., Negendahl K.,. &,J. Karlshøj, Analyse af frivillig ordning for bygnings- og materialepas, 2021, Technical University of Denmark, Department of Civil Engineering.
14 https://realdania.dk/projekter/ grand-solutions-for-byggeriet
15 https://realdania.dk/nyheder/2023/12/ ny-platform-skal-fremme-cirkulaert-byggeri
16 Circue - circue
17 zupply - circular automation platform
18 https://www.superuse-studios.com/publication/ harvest-collect-re-use/
19 https://www.teknologisk.dk/_/images/tools/ PRECAST_Rapport5_2025-03-21_v1.2.pdf
20 Jensen, L. B. (2025). Vi skal holde op med at sammenligne genbrug med superoptimeret standardbyggeri. Byrummonitor. https://byrummonitor.dk/Debat/art10248657/ Vi-skal-holde-op-med-at-sammenligne-genbrug-med-superoptimeret-standardbyggeri



1 - SCANNING, NDT OG
MILJØSCREENING I ’DEN
OMVENDTE DESIGNPROCES’
Serkan Karatosun
Peter Vejrum
Rasmus Kristian Holst
Lisbeth Ottosen
Frederikke Paulin Petersen
Peer Tue Näthke
Lotte Bjerregaard Jensen
Janin Brandt
Niclas Brandt
Tim Tolman
Anders Kruse Aagaard
Niels Martin Larsen
Oskar Holst Kurtzweil
Jon Andersen
Udførelse af ikke-destruktiv prøvning (NDT) i ’Genbrug På Matriklen’
Serkan Karatosun
1. Vurdering af eksisterende bygningsdele, der er beregnet til genbrug
Overgangen til en cirkulær økonomi i byggesektoren har accelereret udviklingen af strategier, der sigter mod at reducere miljøpåvirkningen. En særlig lovende strategi er genbrug af bærende elementer, såsom bjælker, plader og søjler, fra eksisterende bygninger. Denne tilgang kan reducere byggeaffald betydeligt, begrænse forbruget af råmaterialer og sænke det energiforbrug, der typisk er forbundet med produktion af nyt virgint, materiale – f.eks. beton.
På trods af øget opmærksomhed fra både forskning og industri i det seneste årti er genbrug af bærende beton- og træelementer stadig mindre udbredt end andre cirkulær-økonomi-praksisser, såsom genanvendelse. En væsentlig barriere er vanskeligheden ved at dokumentere egenskaberne i eksisterende konstruktioner. Der findes i øjeblikket ingen standardiserede protokoller eller omfattende retningslinjer til formålet. Det medfører usikkerhed og potentielt ansvar, hvilket gør interessenter tilbageholdende med at genbruge af beton- og træelementer.
2. NDT i genbrugsworkflowet
Praktisk og pålidelig dokumentation af mekaniske ydeevne, holdbarhed og generelle tilstand er afgørende for sikker og skalerbar genbrug af bærende elementer. Traditionelt har vurderinger været baseret på destruktive teknikker. Selvom de metoder kan give nøjagtige oplysninger, er de ofte dyre, tidskrævende og fysisk invasive. Som følge heraf kan de kompromittere de elementer, der ellers kunne være egnede til genbrug.
Ikke-destruktiv testning (NDT) udgør et værdifuldt alternativ, da det gør det muligt at vurdere bærende dele uden at forårsage skader. NDT-metoder gør det muligt at evaluere egenskaber, hvilket giver indsigt i elementernes genbrugspotentiale. Når flere NDT-metoder anvendes i kombination, kan de understøtte en omfattende og effektiv dokumentationsproces. En integreret tilgang gør det mere praktisk at genbruge f.eks. beton i bærende konstruktioner og bidrager til en mere systematisk og skalerbar genbrugspraksis.
Practising Non-Destructive Testing
(NDT) in ’Reuse
on Site’
1. Assessment of existing structural elements intended for reuse
The shift toward a circular economy in the construction sector has accelerated the development of strategies aimed at reducing environmental impacts. One particularly promising strategy is the reuse of structural elements, such as beams, slabs, and columns, from existing buildings. This approach can significantly reduce demolition waste, limit the consumption of raw materials, and lower the energy demand typically associated with the production of new concrete.
Despite increased attention from both research and industry over the past decade, the reuse of these structural concrete and timber elements is still less widespread than other circular economy practices, such as recycling. A major barrier is the difficulty of documenting the properties in existing structures. Currently, there are no standardized protocols or comprehensive guidelines for this purpose. This lack of reliable documentation introduces uncertainties and potential liability, making stakeholders hesitant to commit to the reuse of concrete and timber elements.
2. NDT Within the Workflow of Reusability Assessment
Practical and reliable documentation of their mechanical performance, durability, and overall condition is critical for safe and scalable reuse of structural elements. Traditionally, such assessments have relied on destructive techniques. Although these methods can provide accurate information, they are often expensive, time-intensive, and physically invasive. As a result, they can compromise the integrity of elements that might otherwise be suitable for reuse.
Non-destructive testing (NDT) presents a valuable alternative by enabling the assessment of structural components without causing damage. NDT methods make it possible to evaluate properties that correlate with key performance indicators, providing insight into the reuse potential of the elements. When multiple NDT methods are applied in combination, they can support a comprehensive and efficient documentation process. This integrated approach improves the practicality of reusing structural concrete and contributes to a more systematic and scalable reuse practice.
Fig. 1: Et bærende element gennem genbrugsprocessen: fra restlevetids og potentiale bestemmelse, gennem nedtagning,, til et nyt liv i en bærende konstruktion. /
The journey of a structural element through reuse: from service life, through disassembly, to a new life in a reused structure.
NDT spiller en afgørende rolle i hele arbejdsgangen for vurdering af genbrugspotentialet, som er udviklet af StructuralReuse. Det muliggør informerede beslutninger i forskellige faser. Figur 1 viser de vigtigste faser i processen for genbrug af bærende elementer: elementets levetid i det oprindelige statiske system, selektiv nedtagelse og anvendelse i en ny bærende konstruktion.
Den indledende anvendelse af NDT i genbrugsvurderingen sker på stedet før nedrivning, for både beton- og trækonstruktioner.
NDT-metoder i denne fase bruges til at screene konstruktionselementer, mens de forbliver på plads. Tidlige tests hjælper med at identificere elementer med genbrugspotentiale og udpege dem med tegn på skader eller uhomogenitet. Forløbet af NDT-undersøgelsen varierer afhængigt af materialet. For beton foretages den helst i løbet af levetidsfasen – i den eksisterende bygning før nedtagning. For trækonstruktioner foretages den typisk først efter nedtagning.
3. Bærende betonelementer
Det er afgørende for genbrug at dokumentere mekanisk ydeevne, holdbarhed og den generelle tilstand af bærende betonelementer. De vurderinger er traditionelt blevet udført ved hjælp af kerneboring og stikprøvekontrol af armeringen.
3.1. Procedure for vurdering af genbrugspotentialet
StructuralReuse-projektet har udviklet en NDT-baseret procedure til vurdering af genanvendeligheden af bærende betonelementer. Denne procedure er offentliggjort som DS/INF 671, Vejledning for genbrugelighedsvurdering af eksisterende betonelementer. Den er designet til at evaluere betonelementer, der har været udsat for passive miljøforhold, især i eksponeringsklasse X0 og XC1, hvor risikoen for miljøforringelse anses for at være lav. Retningslinjen giver en struktureret og praktisk tilgang til dokumentation af egenskaberne for elementer, der er beregnet til genbrug.
NDT plays a critical role throughout the workflow of reusability assessment developed by StructuralReuse by enabling informed decisions at different stages of reusing existing structures. Figure 1 shows the main phases in the reuse process of structural elements: the service life of the element in the original structure, the disassembly for reclaim, and its use in a new structure.
The initial application of NDT in reusability assessment takes place on-site before demolition for both concrete and timber structures. NDT methods in this stage are used to screen structural elements while they remain in place. These early tests help identify elements with reuse potential and flag those with signs of damage or inhomogeneity. Completing NDT investigation, however, differs in its timing depending on the material. For concrete, it is preferably carried out during the service life phase. For timber structures, however, it is conducted only after disassembly.
3. Structural Concrete Elements
Documenting mechanical performance, durability, and overall condition of structural concrete elements is crucial for the reuse. Such assessments have traditionally performed using core drilling and spot checks reinforcement inspections.
3.1. Reusability Assessment Procedure
The StructuralReuse project has developed an NDT based procedure for assessing the reusability of structural concrete elements. This procedure has been published as DS/INF 671, Guidelines on Reusability Assessment of Structural Concrete Elements. It is designed to evaluate concrete elements that have been exposed to passive environmental conditions, particularly in exposure classes X0 and XC1, where the risk of environmental degradation is considered low. The guideline provides a structured and practical approach to documenting the properties of elements intended for reuse.
Visual condition assessment
Subsurface assessment

Reinforcement assessment
Compressive strength assessment
GPR: Ground Penetrating Radar, UPE: Ultrasonic Pulse Echo, UPV: Ultrasonic Pulse Velocity, RH: Rebound Hammer
Fig. 2: Arbejdsgang for vurderingsproceduren in-situ. Hvert trin involverer specifikke NDT-metoder. /




Workflow of the in-situ assessment procedure. Each step involves specific NDT methods.
Effektiv dokumentation opnås ved at maksimere potentialet i NDT-metoder og begrænse destruktiv prøveudtagning til kun det, der er nødvendigt for kalibrering og verifikation. Proceduren omfatter fire komplementære teknikker: jordradar/ground Penetrating Radar (GPR), Ultrasonic Pulse-Echo (UPE), Ultrasonic Pulse Velocity (UPV) og rebound hammer (RH). De metoder er organiseret i en firetrinssekvens, der muliggør en systematisk evaluering, der begynder med grundlæggende inspektioner på overfladeniveau og fortsætter med mere detaljerede vurderinger under overfladen og mekaniske vurderinger.
Visuel inspektion udføres som det første trin, hvilket giver et generelt overblik over overfladens tilstand og identificerer synlige tegn på skader eller forringelse. Det andet trin omfatter vurdering af under overfladen ved hjælp af GPR og UPE, hvilket gør det muligt at opdage interne anomalier og heterogeniteter, der ikke er synlige fra overfladen. Det tredje trin fokuserer på vurdering af armering ved hjælp af GPR for nøjagtig at lokalisering. Denne information er afgørende for at vælge passende steder til yderligere mekanisk evaluering. Endelig estimeres trykstyrken gennem en kombination af UPV- og RH-målinger, hvilket muliggør en ikke-destruktiv bestemmelse af betonens bæreevne.
Efficient documentation is achieved by maximizing the potential of NDT methods and restricting destructive sampling to only what is necessary for calibration and verification. The procedure incorporates four complementary techniques: ground penetrating radar (GPR), ultrasonic pulse echo (UPE), ultrasonic pulse velocity (UPV), and rebound hammer (RH). These methods are organized into a four-step sequence that allows for a systematic evaluation, beginning with basic surface-level inspections and progressing to more detailed subsurface and mechanical assessments.
Visual inspection is performed as the initial step, providing a general overview of the surface condition and identifying any visible signs of damage or deterioration. The second step involves subsurface assessment using GPR and UPE, which makes it possible to detect internal anomalies and heterogeneities that are not visible from the surface. The third step focuses on reinforcement assessment using GPR to locate embedded steel accurately. This information is critical for selecting appropriate locations for further mechanical evaluation. Finally, compressive strength is estimated through a combination of UPV and RH measurements, allowing for a non-destructive determination of the structural capacity of the concrete.

Denne procedure er blevet løbende testet gennem feltundersøgelser på en række forskellige bygningstyper og under forskellige forhold. Disse casestudier spillede en vigtig rolle i valideringen af proceduren ved at evaluere bæreevne under forskellige begrænsninger på byggepladsen og i de statiske systemer. Resultaterne har bidraget til at forfine metodologien og sikre dens anvendelighed i virkelige genbrugsscenarier.
3.2. Casestudier i GPM-projektet
Proceduren til vurdering af genbrug, udviklet til betonelementer, blev også testet gennem to casestudier som en del af Genbrug På Matriklen (GPM)-projektet. Det første var en fuldskala anvendelse i et stort boligkompleks; Ringparken, Slagelse. Det andet var en kontrolleret vurdering udført på en mock-upstruktur samlet ved hjælp af genbrugs- betonelementer.
Ringparken-casestudiet fungerede som en omfattende prøve af dokumentationsproceduren på stedet. Projektstedet er et stort boligkompleks bygget i 1960’erne, der består af 868 boligenheder med et samlet areal på 67.920 kvadratmeter (fig. 3). Det er en del af et bredere regionalt initiativ med fokus på omdannelsen af store boligbyggerier.
Der blev foretaget genbrugsvurderinger i fem bygninger, der var ubeboede på tidspunktet for testningen. Vurderingen begyndte med en visuel inspektion, efterfulgt af en vurdering af under overfladen og af armeringen ved hjælp af UPE og GPR (fig. 4a-b). Trykstyrken blev vurderet på alle teststeder ved hjælp af UPV- og RH-metoder (fig. 4c-d). Derudover blev der udtaget kerneprøver fra udvalgte steder og testet for at validere trykstyrken (fig. 5 og 6). Disse steder er markeret med rødt i layoutdiagrammet (fig. 5).
Fig. 3: Luftfoto af bygningerne i Ringparken-projektet. / The aerial view of the buildings in the Ringparken project.
This procedure has been continuously tested through field studies across a variety of building types and structural conditions. These case studies played an important role in validating the procedure by evaluating its performance under different site constraints, material characteristics, and structural configurations. The results have contributed to refining the methodology and ensuring its applicability in real-world reuse scenarios.
3.2. Case Studies in GPM project
The reusability assessment procedure developed for concrete elements was also tested through two case studies as part of the Genbrug På Matriklen (GPM) project. The first was a fullscale application in a large residential complex known as Ringparken. The second was a controlled assessment performed on a mock-up structure assembled using reclaimed structural concrete elements.
The Ringparken case study served as a comprehensive field test of the in-situ documentation procedure. The project site is a large-scale housing complex built in the 1960s, consisting of 868 residential units with a total floor area of 67,920 square meters (Fig. 3). It forms part of a broader regional initiative focused on the transformation of mass housing developments.
Reuse assessments were carried out in five buildings that were unoccupied at the time of testing. The assessment began with a visual inspection, followed by subsurface and reinforcement evaluation using UPE and GPR (Fig. 4a-b). Compressive strength was assessed at all test locations using UPV and RH methods (Fig. 4c-d). In addition, core samples were extracted from selected locations and tested to determine compressive strength (Fig. 5 and 6). These locations are marked red in the layout diagram (Fig. 5).




4: Anvendelse af NDT-metoder: a) GPR, b) UPE, c) UPV, d) RH. / Application of NDT methods: a) GPR, b) UPE, c) UPV, d) RH.



Fig. 5: Test- og kerneprøvesteder i lejligheder. UPV og RH blev anvendt på alle steder (a-e). Kerneprøver blev udtaget på de rødt markerede steder i a-c. /


Test and core locations in apartments. UPV and RH were used in all locations (a-e). Core samples were extracted at red-marked locations in a-c.
Fig.


Fig. 6: Kerneprøveudtagning: a) boring, b) kerneprøver, c) skæring af kerner, d) trykprøvning. /


Core sampling: a) drilling, b) core samples, c) cutting cores d) compression test.
Scanninger udført med UPE og GPR afslørede ingen væsentlige indvendige skader på teststederne. GPR-data dokumenterede ingen indstøbt armering, hvilket indikerer, at de testede vægge var konstrueret af uarmeret beton (fig. 7).
Resultaterne af estimeringen af trykstyrken, baseret på korrelationer mellem NDT-målinger og kerneboringer, er vist i figur 8. Data fra tre bygninger blev anvendt til at udvikle korrelationer. UPV-metoden viste en moderat sammenhæng med trykstyrken med en koefficient (R²) på 0,63. RH-metoden viste en stærkere korrelation med en R² på 0,78 og en lavere kvadratisk middelværdifejl.

Fig. 7: Scanninger af uarmeret betonelement i Ringparken ved hjælp af (a) GPR og (b) UPE. /
Scans obtained using UPE and GPR revealed no significant internal defects at the test locations. GPR data further confirmed the absence of embedded reinforcement, indicating that the tested walls were constructed of unreinforced concrete (Fig. 7).
Compressive strength estimation results, based on correlations between NDT measurements and core strength values, are presented in Figure 8. Data from three buildings were used to develop correlations. The UPV method demonstrated a moderate relationship with compressive strength, with a coefficient of determination (R²) of 0.63. The RH method showed a stronger correlation, yielding an R² of 0.78 and a lower root mean square error.

Scans of unreinforced concrete element in Ringparken using (a) GPR and (b) UPE.
(a)
(b)
8: Korrelation mellem trykstyrke og (a) UPV- og (b) RH-metoderne. /
Correlation between compressive strength and (a) UPV and (b) RH methods.
Den rumlige variation i betonegenskaberne inden for de enkelte bærende elementer udgør en vigtig udfordring for vurderingen til genbrug. For bedre at forstå det blev der foretaget RH-målinger flere steder på overfladen af den samme væg (fig. 9a). For at kvantificere denne variation blev der genereret en sandsynlighed ud fra de samme data. Fig. 9b giver et statistisk overblik over resultaterne, herunder gennemsnitsværdier, standardafvigelse og intervaller. RH-målinger gav en koefficientvariation på cirka fire procent. De resulterende konturkort illustrerer den interne variation i de målte egenskaber, som ikke ville være synlig ved isolerede enkeltpunktsmålinger (fig. 9c). Derudover er konturplottet præsenteret øverst på væggen i fig. 10 for at fremhæve den variation, der er observeret på tværs af en enkelt vægoverflade.
Ved at gennemføre vurderingen i forhold til genbrug blev armeringskonfigurationen og trykstyrken af betonvæggene i Ringparken dokumenteret med succes. Resultaterne leverede et omfattende datasæt til understøttelse af de testede elementers genbrugspotentiale.
Den anden betonkonstruktion, der blev undersøgt i GPM-projektet, var en fuldskalamodel i skala 1:1, der blev opført i Aarhus ved hjælp af genbrugte konstruktionsbetonelementer (fig. 11). Denne model var designet til at simulere genbrug af komponenter i et kontrolleret miljø og til at teste vurderingsprocedurens robusthed under praktiske forhold.
The spatial variability of concrete properties within individual structural elements presents an important challenge for reusability assessment. To better understand this variability, RH measurements were performed at several locations across the surface of the same wall (Fig. 9a). To quantify this variation, a probability density function was generated from the same data. Fig. 9b provides a statistical overview of the results, including mean values, standard deviations, and ranges. RH measurements yielded a coefficient variation of approximately four percent. The resulting contour maps illustrate the internal variation in measured properties, which would not be visible from isolated single-point readings (Fig. 9c). Additionally, the contour plot is presented on top of the wall in Fig. 10 to highlight the variation observed across a single wall surface.
By completing the reusability assessment, the subsurface conditions, reinforcement configuration, and compressive strength of the concrete walls at Ringparken were successfully documented. These results provided a comprehensive dataset to support the reuse potential of the tested elements.
The second concrete structure evaluated in the GPM project was a full-scale 1:1 mock-up constructed in Aarhus using reclaimed structural concrete elements (Fig. 11). This mock-up was designed to simulate the reuse of components in a controlled environment and to test the robustness of the assessment procedure under practical conditions.
Fig.

Fig. 9: Rumlig variansanalyse af et betonelement i Ringparken ved hjælp af RH-metoden: a: testlayout, b,c: sandsynlighedsfunktionen for RH-resultater (gennemsnit, standardafvigelser og fordelingsinterval er angivet
Spatial variability analysis of an concrete element in Ringparken using RH method: a: test layout, b,c: the probability density function of RH results (mean, Standard deviations, and range of the distribution are provided in the legend)

Den samme firetrins procedure til vurdering i forhold til genbrug, som er beskrevet i figur 2, blev anvendt på mock-up-konstruktionen, bortset fra kerneboringsprocessen i trinnet med vurdering af trykstyrke. Dette omfattede visuel inspektion, vurdering af under overfladen, kortlægning af armering og estimering af trykstyrke. Formålet var at fastslå, om de ’høstede’ elementers tilstand og ydeevne fortsat var tilstrækkelige efter nedtagning, transport og genmontering.
4. Konstruktionselementer af træ Genbrug af trækonstruktioner spiller en stadig vigtigere rolle i cirkulært byggeri, især i lyset af skovrydning og den begrænsede tilgængelighed af nyt træ, der opfylder de krav til bærende konstruktioner. For at sikre, at genbrugstræ kan anvendes sikkert og effektivt, er der behov for en praktisk og pålidelig vurderingsmetode til at verificere dets tilstand og bæreevne. Som en del af StructuralReuse-projektet blev der udviklet en totrinsprocedure til vurdering af genbrug af bærende træelementer. Denne procedure blev anvendt i et casestudie gennemført inden for GPM-projektet.
Fig. 10:Rumlig varians af rebound-tal i en af de testede vægge. / Spatial variability of rebound numbers in one of the tested walls.
The same four-step reusability assessment procedure described in Figure 2 was applied to the mock-up structure except the core drilling process in the compressive strength assessment step. This included visual inspection, subsurface evaluation, reinforcement mapping, and compressive strength estimation. The objective was to determine whether the condition and performance of the reclaimed elements remained adequate following deconstruction, transport, and reassembly.
4. Structural Timber Elements
The reuse of structural timber plays an increasingly important role in circular construction, particularly considering deforestation and the limited availability of virgin timber that meets structural demand. To ensure that reclaimed timber can be used safely and effectively, a practical and reliable assessment approach is required to verify its condition and structural capacity. As part of the StructuralReuse project, a two-phase procedure was developed to assess the reusability of load-bearing timber elements. This procedure was applied in a case study conducted within the GPM project.


Fig. 11: Mock-up-konstruktionen bygget af genbrugte bærende betonelementer. / The mock-up structure built using reclaimed structural concrete elements.
Proceduren består af to faser: viability-vurdering og kvalitetsvurdering. I viability-vurderingen foretages inden nedrivning, træelementerne er stadig er en del af den bærende konstruktion. Formålet er at identificere elementer med genbrugspotentiale og udelukke dem, der udviser synlige skader eller forringelse. Kvalitetsvurderingen finder sted efter nedtagning, når elementerne kan rengøres, forberedes og undersøges mere detaljeret. Denne fase leverer de data, der er nødvendige for at tildele bæreevne til genbrug baseret på visuel klassificering og NDT-testning.
I GPM-casestudiet blev kun Viability-analysen udført. Da donorbygningerne fortsat var i aktiv brug, kunne elementerne ikke fjernes og inspiceres under de betingelser, der kræves for kvalitetsvurderingen. På trods af denne begrænsning gav viability-analysen vigtig information om træets tilstand og dets potentiale for fremtidig genbrug i en bærende konstruktion.
The procedure consists of two phases: Viability Assessment and Quality Assessment. The Viability Assessment is conducted prior to deconstruction, while the timber elements are still part of the standing structure. Its purpose is to identify elements with reuse potential and to exclude those that exhibit visible damage or deterioration. The Quality Assessment takes place after deconstruction, when the elements can be cleaned, prepared, and examined in more detail. This phase provides the data needed to assign structural properties for reuse based on visual grading and testing.
In the GPM case study, only the Viability Assessment was carried out. Because the donor buildings remained in active use, the elements could not be removed and inspected under the conditions required for the Quality Assessment. Despite this limitation, the Viability Assessment yielded important information about the condition of the timber and its potential for future structural reuse.



Fig. 12: Scanninger af genbrugte bærende elementer i mockup’en ved hjælp af (a) UPE- og (b) GPR-metoder. /
Scans of reclaimed structural element in the mock-up using (a) UPE and (b) GPR methods.
4.1. Procedure for vurdering af genbrugspotentiale Proceduren for vurdering til genbrug for bærende træ består af to forskellige faser, der hver især vedrører et specifikt trin i processen (fig. 13). Den første fase, viability-undersøgelsen, gennemføres før nedrivningen (fig. 14). Den kombinerer dokumentationsgennemgang, visuel inspektion og ikke-destruktiv prøvning for at evaluere træelementerne, mens de stadig er en del af den eksisterende struktur. Målet er som sagt at identificere elementer med genbrugspotentiale og udelukke dem, der viser tegn på forringelse eller beskadigelse.
Under viability-vurderingen indsamles relevante data fra tilgængelige kilder. Dette omfatter byggeår, træsort og -kvalitet, miljøpåvirkningsforhold og servicehistorik. Der foretages besøg på stedet for at observere konstruktionen og udføre foreløbige inspektioner. Visuelle vurderinger fokuserer på at påvise biologisk nedbrydning, mekaniske skader og ændringer i træet, såsom hak, snit eller huller efter fastgørelser, der kan kompromittere bæreevnen. Elementer, der viser betydelige eller uoprettelige skader, udelukkes fra yderligere overvejelse på dette stadium.
4.1. Reusability Assessment Procedure
The reusability assessment procedure for structural timber consists of two distinct phases, each addressing a specific stage in the reuse process (Fig. 13). The first phase, known as Viability Assessment, is conducted before deconstruction (Fig. 14). It combines documentation review, visual inspection, and non-destructive testing to evaluate timber elements while they are still part of the existing structure. The aim is to identify elements with reuse potential and to exclude those that display signs of deterioration or damage.
During the Viability Assessment, relevant data are collected from available sources. This includes the construction year, wood species and grade, environmental exposure conditions, and service history. Site visits are conducted to observe the structure and carry out preliminary inspections. Visual assessments focus on detecting biological decay, mechanical damage, and modifications such as notches, cuts, or fastener holes that could compromise structural integrity. Elements showing significant or irreparable damage are excluded from further consideration at this stage.
Viability assessment
Data collection
Initial Visual Screening
Deconstruction
Quality assessment
Geometrical properties
Visual Assessment
Non-Destructive Testing
Destructive Testing
Reusability Documentation
Fig. 13: Procedure for vurdering til genbrug af bærende træelementer. / Reusability Assessment Procedure for Structural Timber Elements.
1. Viability Assessment
• Before deconstruction
• Quick Screening
Fig. 14: Procedure for vurdering til genbrug i forbindelse med genbrugstræ. /


2. Quality Assessment Reusability Documentation
• After disassembly
• Comprehensive testing
Reusability assessment procedure in the journey of a reclaimed timber.
Ikke-destruktiv testning fungerer som et supplerende værktøj i viability-fasen. Fugtindholdet måles på stedet, med en tærskel på 20 procent for at minimere risikoen for råd. Elementer, der overskrider denne grænse, klassificeres som uegnede til genbrug. Hvor det er muligt, anvendes UPV til at estimere det dynamiske elasticitetsmodul, hvilket giver en indikation af træets stivhed. Materialets densitet fås enten fra dokumentation eller estimeres ved hjælp af egnede feltteknikker.
Den anden fase, selve kvalitetsvurderingen, udføres efter nedrivning og gælder kun for de træelementer, der er bevaret under den indledende viability-vurdering. Visuel klassificering udføres i overensstemmelse med fastlagte standarder såsom NS 3691 eller DS/INSTA 142. NDT-metoder, herunder vibrationstest i elementernes længderetning og UPV, anvendes i dette trin.
På et udvalg af repræsentative prøver foretages destruktiv testning. Bøjningstest anvendes til at bestemme både styrke og stivhed, og disse resultater anvendes til at kalibrere de ikke-destruktive målinger. Karakteristiske værdier udledes derefter gennem statistisk analyse af testdata, typisk ved hjælp af den femte percentil. Denne proces gør det muligt at bestemme bæreevnepå en pålidelig og praktisk måde.
Non-destructive testing serves as a supplementary tool during the viability phase. Moisture content is measured in situ, with a threshold of 20 percent used to minimize the risk of decay. Elements exceeding this limit are classified as unsuitable for reuse. Where feasible, ultrasonic pulse velocity (UPV) testing is used to estimate the dynamic modulus of elasticity, offering an indication of the timber’s stiffness. Material density is either obtained from documentation or estimated using suitable field techniques.
The second phase, known as Quality Assessment, is carried out after deconstruction and applies only to the timber elements retained during the initial Viability Assessment. Visual grading is conducted in accordance with established standards such as NS 3691 or DS/INSTA 142. NDT methods including longitudinal vibration testing and UPV are employed in this step.
A selection of representative samples is subjected to destructive testing. Bending tests are used to determine both strength and stiffness, and these results are used to calibrate the non-destructive measurements. Characteristic values are then derived through statistical analysis of the test data, typically using the fifth percentile. This process enables the assignment of structural properties reliably and practically.

4.2. Casestudier i GPM-projektet
Som en del af GPM-projektet blev der gennemført et casestudie på Listefabrikken i Åbyhøj for at bedømme genbrugspotentialet for bærendetræelementer. Bygningen er en tidligere industribygning, der indeholder forskellige typer trækonstruktioner (fig. 15).
Vurderingen var begrænset til viability-vurderingsfasen, da konstruktionen stadig var i brug og endnu ikke var blevet nedrevet (fig. 16). Vurderingsteamet begyndte med at indsamle tilgængelig dokumentation. Disse data blev suppleret med observationer og inspektioner på stedet.
Der blev foretaget en visuel vurdering for at identificere skader eller råd. De fleste elementer var i god stand uden tegn på biologisk nedbrydning. Fugtindholdet blev målt flere steder. Mange af målingerne lå omkring eller over tærsklen på 20 procent, hvilket indikerede, at træet havde været vådt og var i fare for at rådne.
Der blev udført UPV på udvalgte elementer for at estimere stivheden. Resultaterne varierede mellem de forskellige elementer. Resultaterne viste varierende stivhed. Selvom testningen var begrænset til NDT, gav de indsamlede data nyttig indsigt i det eksisterende træs tilstand og bæreevne.
4.2. Case Studies in GPM project
As part of the GPM project, a case study was conducted at Listefabrikken in Åbyhøj to evaluate the reuse potential of structural timber elements. The building is a former industrial facility that includes structural timber in different types (Fig. 15).
The assessment was limited to the Viability Assessment phase, as the structure remained in use and had not yet been deconstructed (Fig. 16). The assessment team began by collecting available documentation. This data was supplemented by onsite observations and inspections.
Visual assessment was carried out to identify damage or decay. Most elements were in good condition, with no signs of biological degradation. Moisture content was measured at multiple points. Many of the readings were around or beyond the 20 percent threshold, indicating that the timber had remained wet and was at risk of decay.
Ultrasonic pulse velocity testing was performed on selected elements to estimate stiffness. The results varied across different members. Results showed varying stiffness. While the testing was limited by NDT, the collected data provided useful insights into the condition and performance of the existing timber.
Fig. 15: Casestudiet med træelementer i GPM-projektet / The timber element case study building in GPM project.


(a) (b)
Fig. 16: Viability- vurdering i Listefabrikken: (a) Indledende visuel screening, (b) NDT-test (UPV). /
Viability assessment in the Listefabrikken: (a) Initial visual screening, (b) NDT test (UPV).
Selvom Quality Assesment-fasen ikke kunne gennemføres på dette stadium, viste casestudiet af Listefabrikken, at der kan foretages en meningsfuld vurdering, mens en bygning stadig er i brug. Viability-vurderingen gav et effektivt rammeværk for tidlig beslutningstagning og hjalp med at identificere specifikke elementer, der kunne prioriteres til genbrug. På trods af disse udfordringer bekræftede undersøgelsen værdien af strukturerede vurderingsprocedurer til støtte for genbrugsstrategier i trækonstruktioner.
5. Konklusion
I dette kapitel er det præsenteret, hvordan ikke-destruktiv testning (NDT) integreres i vurderingen af genbrug af bærende elementer gennem udvalgte casestudier i Genbrug På Matriklen-projektet. De vurderingsprocedurer, der blev udviklet i StructuralReuse-projektet, blev anvendt på både beton- og træelementer.
For betonkonstruktioner blev den fulde vurderingsproces testet i to casestudier: Ringparken-bygningerne før nedrivning og en mock-up-konstruktion bygget af genbrugte bærende betonelementer. Visuel tilstandsvurdering, vurdering af materialet, vurdering af armering og vurdering af trykstyrke blev udført ved hjælp af visuel undersøgelse, NDT-metoder og valideret af kerneprøveudtagning.
Although the Quality Assessment phase could not be implemented at this stage, the Listefabrikken case study demonstrated that meaningful assessment can be carried out while a building remains in service. The Viability Assessment provided an effective framework for early decision-making and helped identify specific elements that could be prioritised for reuse. Despite these challenges, the study confirmed the value of structured assessment procedures for supporting reuse strategies in timber construction.
5. Conclusions
This paper has presented how non-destructive testing (NDT) is integrated into the reusability assessment of structural elements through selected case studies in the Genbrug På Matriklen project. The assessment procedures developed in the StructuralReuse project were applied to both concrete and timber elements.
For concrete structures, the full assessment workflow was tested in two case studies: Ringparken buildings before demolition and a mock-up structure built using reclaimed structural concrete elements. Visual condition evaluation, subsurface assessment, reinforcement assessment and compressive strength assessment were performed using visual evaluation, NDT methods and core sampling.
For trækonstruktioner blev kun den første fase af vurderingen anvendt, da den anden fase kun kan gennemføres efter nedtagning. Resultaterne viste, at viabilityvurderingen giver værdifuld input til beslutninger om genbrug. Den mere detaljerede kvalitetsvurdering er dog stadig nødvendig efter nedtagning for at sikre pålidelig dokumentation af mekaniske egenskaber.
Resultaterne bekræfter, at NDT udgør et effektivt grundlag for vurdering med henblik på genbrug af konstruktionselementer. Procedurerne har bidraget til udviklingen af de informative standarder DS/INF 671 og DS/INF 672. Disse standarder understøtter beslutningstagningen og reducerer usikkerheden i forbindelse med selektiv nedrivning og planlægning af genbrug. Arbejdet bidrager til fremme af cirkulært byggeri og understreger vigtigheden af at tilpasse vurderingsarbejdsgange til materialespecifikke forhold og praktiske begrænsninger på byggepladsen.
For timber structures, only the first phase of the assessment was applied, as the second phase can only be conducted after disassembly. The results showed that the Viability Assessment provides valuable input for reuse decisions. However, the more detailed Quality Assessment remains necessary after disassembly to ensure reliable documentation of mechanical properties.
The findings confirm that NDT offers an effective foundation for assessing the reusability of structural elements. The procedures have contributed to the development of the informative standards DS/INF 671 and DS/INF 672. These standards support decision-making and reduce uncertainty during selective demolition and reuse planning. The work contributes to the advancement of circular construction and highlights the importance of tailoring assessment workflows to material-specific conditions and practical site constraints.
NDT i den omvendte designproces – en samtale mellem konstruktionsingeniører, forskere og arkitekter.
Dette er en samtale om arbejdet med ikke-destruktiv tests (NDT): hvordan er det at udøve det, hvordan skal vi behandle data, og hvad er potentialet?
Idag er der standarder, der foreskriver destruktive tests, når genbrugsmaterialer skal anvendes i nye bærende konstruktioner. Der er store miljømæssige fordele ved at fokusere på bærende konstruktionsdele. Ofte er dokumentationen fra BBR (Bygnings- og boligregistret) ikke fyldestgørende nok til, at en konstruktionsingeniør vil basere beregninger på det eller anden tilgængelig dokumentation om det eksisterende. Derfor er der en mulighed for at de ikke-destruktive testmetoder, der før var en specialanvendelseskategori til inspektion af f.eks. broer, kan blive mere mainstream. Men tilbage står spørgsmålet om, hvordan NDT-data kan indgå i designprocesserne mellem arkitekter og ingeniører? Når arkitekter designer med genbrug, har de konstant brug for at have adgang til konstruktionsingeniørviden fra dag ét –og ingeniøren har brug for viden om genbrugsbyggevarerne – f.eks. fra NDT.
Den følgende samtale omhandler denne specifikke udfordring, og er en samtale om to test-designprocesser med NDT (Ringparken og Listefabrikken). Hvordan oplever konstruktionsingeniøren at modtage og beregne med NDTdata? Kan vi finde et dataformat og en måde at visualisere på, der kan hjælpe både ingeniører og arkitekter i samarbejdet om genbrug af bygninger og bærende konstruktionsdele? Hvordan kan NDT indgå i designprocessen, og hvordan er koblingsfladen til miljøscreeningsdata og estimering af restlevetid?
INTERVIEW
NDT in the reverse design process – a conversation between structural engineers, researchers, and architects.
This is a conversation about working with non-destructive testing (NDT): what is it like to perform, how should we process data, and what is its potential?
Today, there are standards that prescribe destructive testing when reused materials are to be used in new load-bearing structures. There are major environmental benefits to focusing on load-bearing structural components. Often, the documentation from BBR (Danish Building and Housing Register, Bygnings- og boligregistret) is not sufficient for a structural engineer to base calculations on it or other available documentation about the existing structure. Therefore, there is an opportunity for NDT methods to become more mainstream, where they previously were a special application category e.g., for inspecting bridges. But the question remains as to how NDT data can be incorporated into the design processes between architects and engineers. When architects design with reuse in mind, they constantly need access to structural engineering knowledge from day one – and engineers need knowledge about reused building materials – e.g. from NDT.
The following conversation addresses this specific challenge and is a conversation about two test design processes with NDT (Ringparken and Listefabrikken). How do structural engineers experience the use of NDT data in their calculations? Can we find a data format and a way of visualizing that can help both engineers and architects in their collaboration on the reuse of buildings and load-bearing structural elements? How can NDT be incorporated into the design process, and how does it interface with environmental screening data and remaining life estimation?
Deltagerne: DTU-forskere Professor Lisbeth M. Ottosen, Post.doc. Serkan Karatosun og forskningsassistent Frederikke Paulin Petersen i samtale med bygningsingeniørerne Rasmus Kristian Holst (Holst engineering) og Peter Vejrum (Søren Jensen Rådgivende Ingeniører) og arkitekter og forskere Lotte Bjerregaard Jensen og Peer Näthke (Arkitektskolen Aarhus) .
Lotte Bjerregaard Jensen: Ringparken i Slagelse var den første case-designproces i projektet ’ Genbrug på Matriklen’. Det er et socialt boligprojekt fra slutningen af 1960’erne, der er opført som et system af præfabrikerede betonelementer. Hvordan arbejdede du med NDT i praksis, Serkan?
Serkan Karatosun: Vi gennemførte hele proceduren i DS/ INF 670, som omfatter vurdering af armering, vurdering i dybden og trykstyrke af betonen. Med hensyn til armering fandt vi, at alle vægge var uarmerede betonelementer, hvilket var overraskende, da der ikke fandtes nogen oprindelig dokumentation for projektet. Til vurderingen i dybden gennemførte vi GPR (Ground Penetrating Radar) og UPE (Ultrasonic Pulse Echo) for at se, om betonelementerne havde indvendige defekter, som vi ikke kunne se med det blotte øje. Vi kunne ikke teste alle elementerne, men vi fandt ingen problemer i dem, vi testede. Til vurderingen af trykstyrken havde vi adgang til fem lejligheder i fem forskellige bygninger. Vi gennemførte NDT-undersøgelser på mere end 30 vægge. Vi borede kerneprøver fra de tre lejligheder, vi kunne få tilladelse til. Kerneboring er støjende og kan være problematisk, når naboerne stadig bor i nærheden, så vi forsøgte at begrænse boringen til kun tre lejligheder. I fremtiden forventer vi, at NDT vil reducere behovet for omfattende kerneboring. I sidste ende var vi i stand til at estimere trykstyrken for alle fem lejligheder ved hjælp af NDT kalibreret med kerneboring. Resultatet var en vurdering i forhold til potentialet for direkte genbrug dokumenteret i dybden, armeringsdetaljerne og betonens trykstyrke for Ringparken.
Lotte Bjerregaard Jensen: Rasmus, som konstruktionsingeniør modtog du derefter dataene fra Serkan. Hvordan brugte du dem?
Rasmus Kristian Holst: Vi var mere involveret i at vejlede de DTU-studerende, der fik data. De fik data – den forventede trykstyrke – for betonelementerne. SDe studerende indsatte derefter data i en BIM-model af donorbygningen, så NDT-data var tilknyttet de specifikke betonelementer. Styrken var vigtigst, da [betonen] ikke var armeret – hvis den havde været armeret, ville GPR have fået større betydning i processen.
Participants: DTU researchers Professor Lisbeth M. Ottosen, Post.doc. Serkan Karatosun, and research assistant Frederikke Paulin Petersen in conversation with civil engineers Rasmus Kristian Holst (Holst Engineering) and Peter Vejrum (Søren Jensen Consulting Engineers) and architects and researchers Lotte Bjerregaard Jensen and Peer Näthke (Aarhus School of Architecture) .
Lotte Bjerregaard Jensen: Ringparken in Slagelse was the first case in the project. It is a social housing project from the late 1960s constructed as a system of prefabricated concrete slabs. How did you work with NDT in practice, Serkan?
Serkan Karatosun: We did the full procedure of DS/INF 670, which includes reinforcement, subsurface, and compressive strength assessments of the concrete. In terms of reinforcement, we found that all the walls were unreinforced concrete elements, which was surprising because there was no prior documentation. For the subsurface assessment, we conducted GPR (Ground Penetrating Radar) and UPE (Ultrasonic Pulse Echo) to see if the concrete elements had any internal defects that we couldn’t detect visually. We couldn’t test all the elements, but we didn’t find any problems in the ones we tested. For the compressive strength assessment, we had access to five apartments in five different buildings. We conducted NDT surveys on more than 30 walls. We drilled core samples from the three apartments we could get permission for. Core drilling is noisy and can be problematic when neighbors are still living nearby, so we tried to limit drilling to only three apartments. In the future, we expect NDT to reduce the need for extensive core sampling. In the end, we were able to estimate the compressive strength of all five apartments using NDT calibrated with core drilling. By completing the reusability assessment, we documented the subsurface conditions, reinforcement detailing, and concrete compressive strength of the walls in Ringparken.
Lotte Bjerregaard Jensen: Rasmus, as the structural engineer, you then received the data from Serkan. How did you use it?
Rasmus Kristian Holst: We were more involved on guiding the DTU students who got the data. They got the data - the expected compressive strength - for the concrete elements. The students then placed the data into a BIM model of the donor building. The strength was most important since [the concrete] was not reinforced – had it been reinforced, the GPR would have gained more significance in the process.
Lotte Bjerregaard Jensen: Rasmus, du foreslog, at vi bare skulle beregne, hvad den oprindelige (donor) bygning kunne klare i form af belastning, og så ville vi have et skøn over, hvad dens elementer kunne klare i fremtiden i en ny bygning.
Rasmus Kristian Holst: Det kunne vi især gøre i den tidlige fase for at få en nogenlunde idé. Vi kunne tage en konservativ tilgang, og så kunne designere og ingeniører altid ændre disse værdier senere på baggrund af NDT. Det ville være helt normalt.
Lotte Bjerregaard Jensen: Men i dette tilfælde beviste NDT faktisk, at det kunne bære mere belastning, end du oprindeligt havde forventet.
Rasmus Kristian Holst: At betonens styrke var højere end forventet eller beregnet, ja. Og det er faktisk noget, vi også har set i et par andre projekter. Selv om vi har dokumentation for de eksisterende elementer fra da bygningen blev opført. Måske ser vi det fordi elementleverandøren nogle gange har optimeret uden at ændre dokumentationen.
Desuden udvikler betonens styrke sig over tid; for eksempel kan den stige efter 56 dage, men dette tages ikke med i beregningerne.
Serkan Karatosun: I DS 11990, om test af eksisterende konstruktioner, angives det, at hvis betonen er ældre end f.eks. 35 år, kan man forvente en styrkeforøgelse på op til 25 % i forhold til dokumentationen. Og hvis den er nyere, f.eks. op til 10 % osv.
Lotte Bjerregaard Jensen: Spørgsmålet er selvfølgelig, hvordan man skal ’opbevare’ og repræsentere disse NDTdata. DTU-studerende forsøgte at bruge modelleringssoftware til at ’holde’ og visualisere NDT-data...
Rasmus Kristian Holst: Det var et meget simpelt skive-pladesystem, og der var tusindvis af ens præfabrikerede elementer. Så det gav mening at lave en (situeret) digital model, der på en måde forsøgte at informere om, at hvis man som arkitekt brugte elementerne forkert, ville den digitale model ’kommunikere’ dette – [programmet brugte] rød farve for: ’fungerer ikke’. DTU’s bygningsingeniørstuderende indhentede oplysninger fra NDT, som jeg formoder var et stort Excel-ark. Derefter forsøgte de at informere den digitale model ved at knytte geometrien til disse oplysninger. Arkitekterne havde et ønske om at ’tage elementer fra bygningen’ digitalt og lægge dem som bunker af byggeklodser på en ’fodboldbane’ og stadig have den forbindelse til NDT-data, så vi ved, hvilket ID og hvilken styrke der var forbundet med hvert element. Og så var den sidste del at forsøge at tage denne information og sige: Hvis man modellerer noget som en blok fra Rhino gennem Grasshopper,
Lotte Bjerregaard Jensen: Rasmus, you suggested that we should just calculate what the original building could take in terms of load and then we would have an estimate of what its elements could take in the future.
Rasmus Kristian Holst: We could do this especially in the early phase to get an idea. Take a conservative approach and then designers and engineers could always change these values later on informed by NDT. I think that could be quite normal.
Lotte Bjerregaard Jensen: But in this case the NDT actually proved that it could take more load than you expected initially.
Rasmus Kristian Holst: That the strength of the concrete was higher than expected or calculated, yes. And that’s actually something we’ve seen in a few other projects as well. Even if we have documentation of the existing elements from when the building was constructed, because sometimes the element supplier has optimized without changing the documentation. Also, the strength of concrete evolves over time; for example, after 56 days it may increase, but this is not considered in the calculations.
Serkan Karatosun: In DS 11990, which is the testing of existing structures, it indicates that if the concrete is older than, let’s say, 35 years, you can expect a strength gain of up to 25% compared to the documentation. And if it is newer, let’s say up to 10%, and so on.
Lotte Bjerregaard Jensen: The question is, of course, how to ‘hold’ and represent this NDT data. DTU students tried using modeling software to make use of the data…
Rasmus Kristian Holst: It was a very simple structural slab system, and there were thousands of equal prefab elements. So, it made sense to make a digital model that tries to inform, in a way, that if you use the elements incorrectly as an architect, the digital model would ‘communicate’ this – [the program used a] red color for ‘not working’. The DTU structural engineering students would take on information from NDT, which I guess was a big Excel sheet. Then they tried to inform the digital model, linking the geometry with this information. There was a wish to ‘take elements from the building’ digitally and lay them down as piles of building blocks on a ‘football field’ and still have that link, so we know which ID, which strength was associated with each element. And then the last part was trying to take this information and saying; if you’re modeling something like a block from Rhino through Grasshopper, do we then have something to test the geometry with - for example, the height? And then do a rough estimation of what the loads on this
har vi så noget at teste geometrien med – for eksempel højden? Og så lave en grov estimering af, hvad belastningen på dette element ville være. Modellen ville blive ’rød’, hvis der var for stor belastning på den. Ideen er der stadig, men den skal selvfølgelig finpudses, før den kan fungere som en reel vejledning.
Peter Vejrum: Hvis man bare kunne have et værktøj, der viste, om en væg i det strukturelle system fungerede godt, og man kunne få en simpel indikation i farvekode, rød eller grøn, ville det være meget nyttigt. Det er kompliceret at lave et stykke software, der fungerer sådan universelt, men man kunne gøre det til en specifik situation som Ringparken.
Rasmus Kristian Holst: Jeg tror, at ideen også bare var at se, om geometri-kontrol ville være en god ting at have. For eksempel: ”Nu laver jeg noget, der er 3,5 meter højt, men jeg har kun tre meter høje plader, skal jeg sænke min spændvidde?” Jeg tror, at den del ville være let at kontrollere.
Serkan Karatosun: Det var et godt bevis på konceptet, det er jeg enig i. For nylig har vi startet et nyt casestudie, der stort set har identisk geometri som Ringparken og sandsynligvis også meget lignende materialeegenskaber i hundredvis af lignende elementer. Så vi følger den idé, det bevis på konceptet, og vi vil bygge videre på den idé.
Lotte Bjerregaard Jensen: Ser du et perspektiv for NDT i fremtiden, og hvordan?
Rasmus Kristian Holst: Vi er nødt til at begrænse antallet af boringer, vi kan udføre, og hvor vi kan udføre dem, på grund af adgangen til lejlighederne og de mennesker, der bor der. Med et mere holistisk syn på NDT tror jeg, at det helt sikkert ville være meget gavnligt, men vi er nødt til at vide, hvad omkostningerne ville være. Ville kunden være villig til at betale for disse ekstra data, eller skal vi acceptere manglen på information? Det er bestemt vigtigt at udføre så mange forskellige tests fra forskellige enheder som muligt, og NDT kan muligvis give os mulighed for det, for i dag er dette begrænset. Samtidig var mange af resultaterne de samme, fordi det er samme type bygning fra samme periode eller bygget af samme leverandør, så der bør ikke være for mange overraskelser...
Peer Näthke: Vi kunne også lave en hurtig opsummering af Listefabrikken, Åbyhøj, hvor fokus var på NDT af limtræ og tømmer, vores anden casestudie-designproces i ’Genbrug på Matriklen’, og stille det samme spørgsmål igen: Hvad var resultaterne af de tests, der blev udført?
Serkan Karatosun: Det vi primært estimerede, var det dynamiske elasticitetsmodul for disse limtræelementer, fordi
element would be. The model would turn a red color if it there was too much load on it. The idea is still there, but it obviously needs some work for it to be a true guide.
Peter Vejrum: If you could just have a tool that would show if a wall in the structural system was working well, and you could get a simple indication in color code, red or green, that would be very helpful. It is complicated to make a piece of software that would work like that universally, but you could do it for a specific situation like Ringparken.
Rasmus Kristian Holst: I think the idea was also just to see if the geometry checks would be a nice thing to have. For example: “Now I’m doing something that’s 3.5 meters tall, but I only have three-meter-tall slabs, should I lower my span?” I think that part would probably be low-hanging fruit to check.
Serkan Karatosun: It was a great proof of concept, I agree. Recently, we’ve started a new case study that basically has identical geometry as Ringparken and most likely very similar material properties as well throughout hundreds of similar elements. So, we are following that idea, that proof of concept, and we will build on that idea.
Lotte Bjerregaard Jensen: Do you see a perspective for NDT in the future, and how?
Rasmus Kristian Holst: We have to limit the number of drillings we could do and where we could do them because of access to the apartments and the people living there. With a more holistic view on NDT, I think it would definitely be very beneficial but we need to know what the cost would be. Would the client be willing to pay for this extra data, or should we accept that lack of information? It is certainly important to do as many different tests from different entities as possible and NDT might allow us to do that, because today this is limited. At the same time, many of the results were the same because it’s the same type of building from the same period, or built by the same supplier, so there shouldn’t be too many surprises….
Peer Näthke: We could also do a quick recap of Listefabrikken, Åbyhøj where the focus was on NDT of glulam and timber, our second case, and ask the same question again: what were the results of the tests that were conducted?
Serkan Karatosun: What we mainly estimated was the dynamic modulus of elasticity of those glulam elements because that was the only thing we could do. We didn’t take any samples for laboratory testing to establish the correlation between the actual bending strength and the NDT measurements. So, for the first time, we used only non-destructive
det var det eneste, vi kunne gøre. Vi tog ikke prøver til laboratorietest for at fastslå sammenhængen mellem den faktiske bøjningsstyrke og NDT-målingerne. Så for første gang brugte vi kun ikke-destruktive testdata til at estimere de mekaniske egenskaber uden at have nogen kalibrering. Det er ikke et særligt sjældent tilfælde for træ, fordi det dynamiske elasticitetsmodul for træ er ret godt korreleret med den faktiske bøjningsstyrke. For beton er det ikke så ligetil. For træ kunne vi gøre det, og derfor brugte vi den egenskab, der kun var baseret på NDT-test i marken. Og så brugte vi disse data med nogle ret konservative estimater. Vi var i stand til at levere data til Peter Vejrum, der viste de forventede mekaniske egenskaber for træ baseret på kun én NDT-test. Der var fire eller fem typer træelementer, som vi testede.
Peter Vejrum: Jeg kunne bruge det. Jeg modtog grundlæggende en styrkeklasse for hver trædel I testede. Og når man har en styrkeklasse for træ, svarer det til en række styrkeværdier for materialet. Det meste af træet var i styrkeklasse C18. Noget af det var i C24, og jeg tror, at et af dem – jeg er ikke sikker på, hvilken del af konstruktionen det var – var i C30. Men størstedelen var klassificeret som C18, hvilket er en ret lav styrke sammenlignet med de klasser, vi normalt bruger til nye trækonstruktioner. I hvert fald i de typer konstruktioner, jeg kender til, bruger vi normalt højere klasser, og det medfører nogle begrænsninger. Men grundlæggende er det ikke så forskelligt at designe nye konstruktionssystemer med genbrugstræ som at designe med nyt træ – det er bare svagere, fordi de styrkeklasser, vi tildeler, måske er lidt konservative. Det betyder lavere bøjningsstyrke og lavere trækstyrke.
Så spørgsmålet er: Hvordan designer vi konstruktioner med denne lavere styrkeklasse, som vi normalt ikke arbejder med? En af de ting, vi diskuterede i dette projekt med arkitekterne, var: Hvilke typer konstruktionssystemer kan vi faktisk designe med dette materiale? Jeg husker også, at jeg i et af vores første møder forsøgte at fremhæve, hvad en lavere styrkeklasse betyder i forhold til, hvilke typer konstruktionskomponenter det genbrugte træ ville være mest fordelagtigt til. For eksempel er det måske ikke en god idé at bruge det som bjælker, fordi en C18-styrkeklasse er ca. 67 % svagere end den type træ, vi normalt bruger til bjælker. Men med hensyn til trykstyrke er det kun ca. 28 % svagere. Så måske er det en god idé at bruge det til konstruktioner, der hovedsageligt er udsat for tryk. Det var en del af det, vi diskuterede: at kende begrænsningerne ved det træ, vi havde. Træ er meget let at tilpasse, skære og bearbejde, så vi kan designe konstruktioner, der kombinerer genbrugstræ med nye materialer og skaber hybridkonstruktioner. Hvor vi har brug for højere bøjnings- eller trækstyrke, kan vi bruge nye materialer, og hvor tryk er tilstrækkeligt, kan vi bruge det genbrugte træ. Eller vi sørger for at designe systemer, hvor belastningen i det nye system er så lav, at vi kan bruge det eksisterende materiale til det hele. Det er nogle af de diskussioner, vi har haft.
testing data to estimate the mechanical properties without having any correlation. That’s not a very rare case for wood, because for wood the dynamic modulus of elasticity is quite well correlated with the actual bending strength. For concrete, it’s not that straightforward. So, for wood, we could do that, and that’s why we used that property based only on NDT testing in the field. And then we used those data with some quite conservative estimates. We were able to provide data to Peter showing the expected mechanical properties of timber based on only one NDT. There were four or five types of wooden elements that we tested there.
Peter Vejrum: I could use it. I basically received a strength class for every piece of timber that you tested. And when you have a strength class in timber, it corresponds to a series of strength values for the material. Most of the timber was strength class C18. Some of it was C24, and I think one of them—I’m not sure which part of the structure it was— was C30. But the majority was rated as C18, which is quite a low strength compared to the grades we normally use for new timber structures. At least in the types of structures I’m familiar with, we usually use higher grades, and that comes with some limitations. But basically, designing new structural systems with repurposed timber is not so different from designing with new timber—it’s just weaker, because the strength classes we assign are, perhaps, a bit conservative. That means lower bending strength, lower tensile strength. So, the question is: how do we design structures with this lower strength class that we don’t usually work with? One of the things we discussed in this project with the architects was: what kind of structural systems can we actually design with this material? I also remember, in one of our first meetings, I tried to highlight what a lower strength class means in terms of which types of structural components the repurposed timber would be most beneficial for. For example, using it as beams might not be a good idea, because a C18 strength class is about 67% weaker than the type of timber we normally use for beams. But in terms of compression strength, it’s only about 28% weaker. So maybe it’s a good idea to use it for structures that are mainly in compression. That was part of what we discussed: knowing the limitations of the timber we had. Timber is very easy to adapt, cut, and manipulate, so we can design structures that combine repurposed timber with new materials, creating hybrid structures. Where we need higher bending or tensile strength, we can use new materials, and where compression is sufficient, we can use the reclaimed timber. Or, we make sure to design structural systems where the stresses in the new system are so low that we can use the existing material for all of it. Those are some of the discussions we’ve had.
Serkan Karatosun: Var det NDT-baserede data tilstrækkeligt til, at du kunne træffe disse beslutninger og udarbejde disse designs?
Peter Vejrum: Når vi får en styrkeklasse, er det stort set alt, hvad vi har brug for. Der er også spørgsmålet om træets resterende levetid, som vi altid skal vurdere, når vi designer trækonstruktioner. Hvad bliver konstruktionens levetid?
Normalt kan vi som ingeniører vælge den styrkeklasse, der er nødvendig – for eksempel, hvis vi designer en bjælke. I dette tilfælde er det omvendt: Vi kender allerede styrkeklassen på forhånd. Det kan være lidt konservativt, for med NDT skal man ofte være konservativ. Man har ikke taget emnerne med tilbage til laboratoriet. Man har ikke foretaget sammenlignende eller destruktive tests. Derfor kan styrkeklassen være på den sikre side. Jeg er ikke sikker på, om det var tilfældet her, om man har været konservativ med klassificeringen eller ej. Uanset hvad, selv om vi har en lav styrkeklasse som C18, kan vi stadig designe konstruktioner med den information, fordi vi har alt, hvad vi har brug for til at lave designet. Så for mig føles det ikke rigtig anderledes. Sammenlignet med at designe en ny konstruktion har vi ikke alle de dimensioner, vi gerne vil have. Det er selvfølgelig en begrænsning, og derfor diskuterede vi, hvordan vi kunne kombinere eksisterende materiale med nyt materiale. Det er meget vigtigt at have en elegant designproces, når man arbejder med disse eksisterende trækonstruktioner – og det er det altid – vi kan ikke ’overkonstruere’ os ud af et dårligt design, som vi normalt ville kunne. Vi er virkelig nødt til at beregne meget nøje sammen med arkitekterne og sikre os, at de er fortrolige med de konstruktionssystemer, vi forsøger at designe, så vi ikke skaber rum, som konstruktionssystemet ikke kan honorere.
Lotte Bjerregaard Jensen: I modsætning til Ringparken udvidede resultaterne fra NDT ikke løsningsrummet. Næsten det modsatte. Måske var I meget konservative, Serkan og Frederikke, så det endte med at blive lavere end det, du, Peter, ville have estimeret ved hjælp af din normale procedure?
Peter Vejrum: Jeg ved, at når vi ser på ældre trækonstruktioner, siger vi normalt, at massive trækonstruktioner har styrkeklasse C24, som er betydeligt stærkere end C18. Men måske var Listefabrikkens tilfælde anderledes. Det var en fabrik. Den var udsat. Og du målte også træets fugtindhold, som var ret højt. Ikke alarmerende højt, men stadig højt. Så måske er tilstanden af dette træ lidt dårligere end det, vi kan håbe at finde i mange andre projekter, hvor vi forsøger at genbruge træ.
Serkan Karatosun: Fugtindholdet i de fleste af de træelementer, vi testede, var tæt på 20 %, hvilket også er den grænse, vi har sat. Hvis træet har et fugtindhold på over
Serkan Karatosun: Was the NDT-based data enough for you to make these decisions and designs?
Peter Vejrum: When we get a strength class, that’s basically all we need. There’s also the question of the remaining lifespan of the timber, which is something we always have to evaluate when designing timber structures. What will the lifespan of the structure be? Normally, as engineers, we get to choose the strength class that is necessary—for example, if we are designing a beam. In this case, it’s the other way around: we already know the strength class beforehand. It might be a bit conservative, because with NDT you often need to be conservative. You haven’t taken the pieces back to the laboratory. You haven’t done comparative or destructive testing. That’s why the strength class might be on the safe side. I’m not sure if that was the case here, if you’ve been conservative with the classification or not. Either way, even if we have a low strength class like C18, we can still design structures with that information, because we have everything we need to complete the design. So, for me, it doesn’t really feel that different. Compared to designing a new structure, we don’t have all the dimensions we would like. That’s obviously a limitation, and that’s why we discussed how to combine existing material with new material. It’s very important to have an elegant design process when working with these existing timber structures— and it always is—we cannot over-engineer our way out of a bad design as we might normally be able to. We really need to calculate very closely with the architects and make sure they are familiar with the structural systems we’re trying to design, so we don’t create spaces that the structural system cannot support.
Lotte Bjerregaard Jensen: Contrary to Ringparken, the results from the NDT did not expand the Listefabrikken’s. Almost the opposite. Maybe you were very conservative, Serkan and Frederikke, so it just turned out to be lower than what you, Peter, would have estimated using your normal procedure?
Peter Vejrum: I know that typically, when we look at older timber structures, if you have massive timber structures, we usually say they are C24 strength grade, which is quite a lot stronger than C18. But maybe Listefabrikken’s case was different. It was a factory. It was exposed. And you also measured the moisture content of the timber, which was quite high. Not alarmingly high, but still high. So maybe the condition of this timber is a bit poorer than what we can hope to find in many other projects where we try to repurpose timber.
Serkan Karatosun: The moisture content of most of the timber elements we tested was close to 20%, which is also
20 %, er vi faktisk ikke så sikre på at bruge det, fordi det signalerer en ret høj forventet risiko for indre nedbrydning. Og med hensyn til NDT-dataværdierne var vi konservative. Det handlede også om densiteten. Disse elementer blev testet, mens de stadig var forbundet i det statiske system på stedet, så vi kunne ikke udføre vibrationstest og var ikke i stand til at måle densiteten præcist. Vi var nødt til at estimere densitetsværdierne konservativt for denne type træ.
Peter Vejrum: Densitetsværdien er meget vigtig, når vi laver samlinger.
Serkan Karatosun: Ja. Så vi måtte arbejde med dataene for at give de lavest mulige værdier. Men sandsynligvis vil de faktiske værdier være meget højere. Hvis man justerer densitetsværdierne, vil de mekaniske egenskaber sandsynligvis være tilstrækkelige til C24 og derover, for selv med disse meget lave estimerede densiteter kunne træet klare C18 og nogle C24. Med hensyn til udvidelse af designløsninger er jeg ikke helt sikker. Værdierne giver nogle oplysninger, men enhver konstruktion kan designes med enhver form for materiale. Så det begrænser ikke rigtig udvalget. Mere vigtigt er det, at uden testresultater ville det ikke have været muligt at tildele disse træelementer nogen form for styrkeklasse. Det bedste, vi kunne have gjort, var visuel klassificering, og med hensyn til visuel klassificering ville det alligevel ikke have givet en styrkeklasse på C18. Så faktisk hjalp NDT med at udvide løsningsrummet i dette tilfælde.
Peer Näthke: Har du et eksempel på en situation, hvor du faktisk var nødt til at have et parallelt konstruktionssystem, fordi du ikke vidste noget om den eksisterende konstruktion? Hvor NDT kunne have hjulpet med at undgå det? Hvor NDT kunne have gjort en forskel?
Peter Vejrum: Ja, vi har sikkert nogle referencer. Vi har arbejdet med bygninger, hvor der var eksisterende stabiliserende kernevægge, og da vi foretog beregningerne ved hjælp af Eurocodes, kunne vi ikke dokumentere, at de kunne modstå vindbelastningen på bygningen. Derfor designede vi nye stabiliserende strukturer på ydersiden af kernevæggene. Hvis vi havde haft mere viden om materialet, havde vi måske været i stand til at udnytte den eksisterende struktur bedre. Vi har en tendens til at bruge de eksisterende strukturer ret meget.
Lotte Bjerregaard Jensen: Kan du mere frit foretage nogle mellemliggende vurderinger i ombygnings- eller renoveringsprojekter?
Peter Vejrum: Det er i hvert fald noget, vi har diskuteret, og som jeg finder ret interessant: Når vi udfører
the limit we set. If the timber is conditioned above 20% moisture, then we’re actually not so confident in using it, because that signals quite a high expected risk of internal degradation. And in terms of the NDT data-values, we were conservative. It was also about the density. These elements were tested while they were still connected in the structural system, so we couldn’t conduct vibration testing and weren’t able to measure the density properly. We had to estimate density values very conservatively for this kind of timber.
Peter Vejrum: The density value is very important when we do connections.
Serkan Karatosun: Yes. So, we had to work with the data to give the lowest possible values. But most likely, the actual values will be much higher. If you adjust the density values, the mechanical properties would probably be enough for C24 and above, because even with these very low estimated densities, the timber could cope with C18 and some with C24. In terms of expanding design solutions, I’m not entirely sure. The values give some information, but any structure can be designed with any kind of material. So, it doesn’t really limit the selection. More importantly, without any test results, it wouldn’t have been possible to assign any kind of strength class to these timber elements. The best we could have done was visual grading, and in terms of visual grading, it wouldn’t have given a strength class of C18 anyway. So actually, NDT did help to expand the range of solutions in that case.
Peer Näthke: Do you have an example, a situation, where you actually had to have a parallel structural system because you didn’t know anything about the existing structure? Where NDT could have helped avoid that? Where NDT could have made a difference?
Peter Vejrum: For sure, we probably have some references. We’ve done buildings where there were existing stabilizing core walls, and when we did the calculations using the Eurocodes, we couldn’t document that they could resist the wind loads on the building. So, we designed new stabilizing structures on the outside of the core walls. Maybe if we had known more about the material, we would have been able to push the existing structure further. We tend to use the existing structures quite a lot.
Lotte Bjerregaard Jensen: Can you more freely make some intermediate assessments in transformation or renovation projects?
Peter Vejrum: At least it’s something we discussed that I find quite curious: whenever we do transformation projects, we
ombygningsprojekter, kan vi beregne – eller i hvert fald beregner vi – den eksisterende konstruktions kapacitet. Men så snart vi fjerner elementerne og placerer dem i en anden bygning, bliver det et stort problem. Så hvorfor er det anderledes? Det er bare sådan, reglerne er. Men materialet er stadig det samme, og fysikkens love er de samme, uanset om materialet er nyt eller ej.
Lotte Bjerregaard Jensen: Måske er der en parallel til det, Rasmus sagde indledningsvis – at man beregner, hvad elementerne kan klare i den oprindelige eller eksisterende situation, og så tager man udgangspunkt i det. Og så, når man tager dem ned og bygger noget nyt, ville det være det samme?
Rasmus Kristian Holst: Det kunne være i de meget tidlige stadier. Og hvis man ikke havde dokumentation for det eksisterende, ja... så ville det helt sikkert ikke være muligt. Jeg tror også, det kommer an på, at NDT stadig er nyt – DTU arbejder på at få specifikationerne publiceret. Jeg tror også, det er et spørgsmål om ansvar og kundens risiko. Hvis man kunne udføre disse tests, ville kunderne sandsynligvis være villige til at gøre mere. I dag renoverer og genbruger vi systemer i langt højere grad, fordi alle er opmærksomme på det. Og de kunder, der ønsker det, gør det. Jeg er sikker på, at der kunne være mange flere kunder, hvis det var økonomisk effektivt, og de kunne genbruge mere med større sikkerhed. NDT ville hjælpe meget. Jeg er sikker på, at der har været mange projekter, jeg har arbejdet på før, men jeg kan ikke huske et specifikt projekt, hvor det ville have gjort en stor forskel. I de seneste projekter ønsker folk alligevel at gøre dette... I tilfælde af nye projekter, der bruger gammelt træ, bør NDT være nyttigt i stedet for at ødelægge en masse træ med destruktiv testning. Det bliver virkelig, virkelig vigtigt.
Peer Näthke: Hvordan kan dataene om disse materialers styrke og holdbarhed, herunder NDT-data, integreres bedre i planlægningen af nybyggeri, der bruger eksisterende materialer? Hvordan skal disse oplysninger organiseres og kommunikeres mellem de forskellige aktører i nedtagningsog byggeprocesserne?
Peter Vejrum: Når man designer en ny bygning med nye materialer, kan man bare vælge det materiale og den styrke, man ønsker. Der er ingen begrænsninger i designprocessen – man kan hurtigt beslutte, at en træbjælke skal være C30, eller at man vil bruge en limtræsbjælke. Det går altså meget hurtigt at designe noget. Når vi begynder at designe nye strukturer ved hjælp af eksisterende materialer, skal alle oplysninger om disse materialer være tilgængelige, let tilgængelige og velorganiserede. Vi har talt meget om, hvilken type digitalt miljø der giver os mulighed for hurtigt at
can calculate—or at least we do calculate—the capabilities of the existing structure. But as soon as we take the elements down and put them in another building, it becomes a big problem. So why is it different? That’s just how the regulations are. But the material is still the same, and the laws of physics are the same, whether the material is new or not.
Lotte Bjerregaard Jensen: Maybe there is a parallel to what Rasmus said initially - that you calculate what the elements could take in the original or existing situation and then go from there. And then, when you take them down and build something new, it would be the same?
Rasmus Kristian Holst: That could be in the very early stages. And if you didn’t know anything about it, well… for sure, that would not be possible. I think it also comes down to the fact that NDT is still new—DTU is still trying to get the specifications finalized. I think it’s also a matter of responsibility and client risk. If you could do these tests, clients would probably be willing to do more. These days, we are doing a lot more renovation and reusing systems because everyone is aware of it. And the clients who want to do it, do it. I’m sure there could be many more clients if it were economically efficient and they could reuse more with more security. NDT would help a lot. I’m sure there have been many projects I’ve worked on before, but I can’t remember a specific project where it would have made a huge difference. In recent projects, people want to do this anyway. We also have many small renovation projects, like someone renovating a bathroom. You have timber elements, and the certifier would be fine with saying it’s C18, which is quite a low strength class for old timber. That’s been done hundreds of times. But if you’re just spanning two beams over three meters, I don’t think you would do NDT for that anyway. So, I can’t remember a strong example from previous projects where it would have made a big difference, but it could have made the process more cost-efficient. In cases of new projects using old timber, NDT should be useful instead of breaking a lot of timber with destructive testing. That’s going to be really, really important.
Peer Näthke: How can the data on the strength and durability of these materials, including the NDT data, be better integrated into the planning of new construction using existing materials? How should this information be organized and communicated between the different actors in the demolition and construction processes?
Peter Vejrum: When you’re designing a new building with new materials, you can just choose the material and strength you want. There’s no limit in the design process—you can quickly decide, for example, that a timber beam needs to
finde disse oplysninger. I Genbrug på Matriklen er I begyndt at opbygge systemer med store 3D-modeller, hvor man kan klikke på et element og få oplysninger om det: dets styrke, eventuelle problemer, der skal tages i betragtning, og også geometrien. Efter min mening er det helt klart den rigtige retning – en pakke, hvor alle oplysninger er samlet ét sted. Man behøver ikke at søge i regneark, på hjemmesider og i rapporter. Hvis oplysningerne kommer fra forskellige kilder, bliver det en stor hindring. Som ingeniører har vi i skitsefasen svært ved at følge med arkitekterne og alle deres designændringer. Hvis vi sætter farten ned, kan de ikke vente på os, og vi kan ikke levere de input, de har brug for. Derfor skal vi sikre os, at der ikke er nogen forhindringer i den proces. Alt skal være let tilgængeligt. Jeg kender endnu ikke den nøjagtige løsning, men det er meget vigtigt for fremtidige projekter at gøre disse oplysninger tilgængelige.
Rasmus Kristian Holst: Og jeg tror også, det handler om ikke kun hvordan og hvad, men også hvornår og hvem der er ansvarlig. Som Peter sagde, er det ofte sådan, at i den tidlige fase, hvor vi er med om bord og forsøger at komme med input, er disse oplysninger sandsynligvis endnu ikke indsamlet. Så spørgsmålet er: bør ejeren allerede bestille vurderingen i de tidlige beslutningsfaser? Og er der overhovedet en kunde på det tidspunkt? Ellers hvordan skulle vi få alle de relevante oplysninger – som for os ikke er mindre detaljer, men ting som styrkeklasse. Og hvis noget er beskadiget eller forringet, skal det selvfølgelig også samles et sted, hvor det er let at få et overblik. En BIM-model ville være en god løsning, fordi man kan udtrække og importere data og gøre alt, hvad man har brug for. Eller en anden database [kunne bruges]. Jeg synes, at en geometribaseret database giver mening. Men spørgsmålet er også: hvornår skal det ske? Hvem ejer den? Hvis man vil genbruge en eksisterende bygning i et nyt projekt, kommer den så fra kunden, eller er det noget andet? Vi antager normalt, at det er den samme kunde, der ejer den gamle bygning, donorbygningen og den nye bygning. Ellers, hvem skal betale for undersøgelsen og oprette en Revit-model? Skal det være en model af den eksisterende bygning, og er det det værd, hvis den skal rives ned? Eller en model af den nye bygning? Vi har lavet nogle forslag, hvor det kunne have været relevant, men jeg ved ikke, hvem jeg skal henvise til, hvornår det skal gøres, hvordan og hvad det vil koste.
Peter Vejrum: Det er bestemt et meget relevant pointe – det skal være omkostningseffektivt og sammenligneligt. Vi har mange kunder, der ønsker at gøre det rigtige, men så snart det koster bare lidt mere end alternativerne, er det ikke det, de vælger. Det skal være sammenligneligt i pris med nye materialer, ellers ender de bare med at bruge nye materialer. Hvem skal betale for at modellere en hel bygning? Det skal være strømlinet og så automatiseret som muligt. Lige
be C30, or use a glue-laminated beam. So, it’s very rapid to design something. When we start designing new structures using existing materials, we need all the information about those materials to be available, easily accessible, and well-organized. We’ve talked a lot about what kind of digital environment allows us to find that information quickly. In Genbrug på Matriklen you’ve started building systems with large 3D models where you can click on an element and get information about it: its strength, any issues to consider, and also the geometry. In my opinion, that’s definitely the right direction—a package where all the information is in one place. You don’t have to search through spreadsheets, websites, and reports. If the information comes from different sources, it becomes a big roadblock. As engineers, in the sketching phases, we have a hard time keeping up with the architects and all their design changes. If we slow down, they can’t wait for us, and we can’t provide the inputs they need. So, we need to make sure there are no obstacles in that process. Everything needs to be easily available. I don’t know the exact solution yet, but making this information accessible is very important for future projects.
Rasmus Kristian Holst: And I guess it’s also about not just how and what, but also when, and who is responsible. Often, as Peter said, in the early phase when we’re on board trying to give input, most likely this information hasn’t been collected yet. So, then the question is: should the client already order this check? And is there even a client at that point? Otherwise, how would we get all the relevant information—which, for us, isn’t minor details, it’s things like the strength class. And of course, if something is damaged or degraded, that should also be combined in a place where it’s easy to get an overview. A BIM model would be a good way, because you can extract and import data and do everything you need. Or some other database [could be used]. I think a geometry-based database makes sense. But the question is also: when should it happen? Who owns it? If you want to reuse an existing building in a new project, does it come from the client, or is it by something else? We usually assume it’s the same client who owns the old building, the donor building, and the new building. Otherwise, who is supposed to pay for the investigation and set up a Revit model? Should it be a model of the existing building, and is that worth it if it’s going to be torn down? Or a model of the new building? We’ve done some proposals where it could have been relevant, but I don’t know who to point to, when it should be done, how, and what the cost would be.
Peter Vejrum: That’s definitely a very valid point—it needs to be cost-effective and comparable. We have a lot of clients who want to do the right thing, but as soon as it costs just a little more than the alternatives, that’s not what they’ll choose. It needs to be comparable in cost to new materials;
nu siger vi bare, hvad vi gerne vil have. Så skal vi finde ud af, i mindre trin, hvordan vi rent faktisk kommer dertil.
Serkan Karatosun : Jeg vil gerne følge op på Peters pointe om at have alle de nødvendige data samlet ét sted – næsten kun et klik væk. Jeg synes, det er en ideel løsning, men jeg vil gerne vide, hvilken platform der er bedst til dette formål. Hvis vi for eksempel taler om arkitekter, vil en BIM-model i Revit nok være ideel for dem. Men jeg har også nogle betænkeligheder ved, om alle bygningsingeniører bruger den samme platform eller forskellige eksterne platforme. Så mit forslag er, at vi i stedet for at fokusere på en enkelt platform kunne oprette et databaseformat, der let kan importeres og eksporteres til alle slags platforme.
Peter Vejrum: Det ville være det bedste.
Serkan Karatosun: Men bruger du den samme platform som arkitekterne, når du designer strukturen?
Peter Vejrum: Ja, typisk set, ja. I hvert fald for mig er det det samme som for Rasmus: mange arkitekter bruger Rhino i deres indledende faser og skifter senere til Revit. Revit er ikke så fleksibelt til skitsering, men det behøver det heller ikke at være. Det vigtige er, at det kan implementeres i Rhino, Revit, ArchiCAD eller hvilken platform du nu bruger. Der findes udvekslingsformater, som f.eks. Speckle, hvor dataene kan findes og ses på enhver platform. Det ville give mening.
Rasmus Kristian Holst: Arkitekter bruger ofte Rhino, især i den tidlige fase, og så kombinerer vi det normalt med Grasshopper. Det fungerer nok bedst for os. Jeg tror, at det også kan være en god metode at gøre det i Revit, som vi gjorde med Ringparken, især hvis man vil modellere en gammel struktur. Det er ligetil, og man kan nemt tilføje alle parametrene. Det kan man også gøre i Rhino, men det er ikke helt så nemt. Og så er der Speckle – en onlineplatform, hvor man kan uploade data og geometri. Det kunne være en rigtig god mulighed. Det afhænger også af, hvor detaljeret man ønsker at gøre modellen af den gamle (donor)bygning. Nogle gange er grove ”fodboldbanestørrelser” nok. Men i alle tilfælde ville en form for åbent format være ideelt.
Peter Vejrum: Men der er også spørgsmålet om, hvem der skal betale for det, og hvem der skal gøre det. Det giver mening i et isoleret tilfælde – hvor man ønsker at genbruge materialer fra en enkelt grund, bygge nye ting og have alt dette eksisterende materiale. Men hvis man ønsker at gå videre, har man brug for en kæmpe database. Forestil dig det som et nyt XL- eller STARK-lager – men i stedet for et lager er det en database over alle de bygninger, der er tilgængelige i hele landet, hvor man kan vælge og vrage. Udfordringen er, at det
otherwise, they’ll just end up using new materials. Who’s going to pay for modeling an entire building and creating this? It needs to be streamlined and as automated as possible. Right now, we’re just saying what we would like to have. Then we need to figure out, in smaller steps, how to actually get there.
Serkan Karatosun : I’d like to follow up on Peter’s point about having all the required data in one place—almost one click away. I think that’s an ideal solution, but I’d like to learn which environment would be best for this purpose. For example, if we’re talking about architects, I guess a BIM model in Revit would be ideal for them. But I also have some concerns if all the structural engineers use the same environment or different external environments. So, my suggestion is that, instead of focusing on a single environment, we could create a database format that can be easily imported and exported to any kind of environment.
Peter Vejrum:That would be the best.
Serkan Karatosun: But do you use the same environment as the architects while designing the structure?
Peter Vejrum: Yes, typically, yes. At least for me, it’s the same as Rasmus: many architects use Rhino in their preliminary phases and then shift to Revit later on. Revit isn’t as flexible for sketching, but it doesn’t need to be.What’s important is that it can be implemented in Rhino, Revit, ArchiCAD, or whatever platform you’re using. There are exchange formats, like Speckle, where the data could exist and be viewed in any platform. That would make sense.
Rasmus Kristian Holst :Architects often use Rhino, especially in the early phase, and then we usually combine it with Grasshopper. That probably works best for us.I think doing it in Revit, as we did with Ringparken, could also be a good way, especially if you want to model an old structure. It’s straightforward, and you can easily attach all the parameters. You can do that in Rhino as well, but it’s not quite as easy. And then there’s Speckle—an online platform where you can upload data and geometry. That could be a really good option. It also depends on how detailed you want to make the model of the old building. Sometimes rough “football field” volumes are enough. But in all cases, some kind of open format would be ideal.
Peter Vejrum: But there’s also the question of who’s going to pay for this and who’s going to do it. It makes sense in an isolated case—where you want to reuse materials from a single plot, building new things and having all this existing material. But if you want to go further, you’d need a giant database. Imagine it like a new XL or STARK (building
ikke kun er én bygning, men 500 bygninger eller mere, som alle er scannet, NDT-testet og organiseret. Og når du vælger et spær fra en bygning, kan du ende med at ødelægge resten af bygningen. Så det bliver et meget vanskeligt puslespil at samle...det kunne tale for genbrug på matriklen. Men det signalerer også, at vi har brug for den samme type dataformat til at gemme de samme data. Ellers kan vi ikke bruge data fra forskellige bygninger i en enkelt database. Jeg behøver ikke at se dataene bagved; jeg har bare brug for egenskaberne. Når jeg designer noget med dette materiale, hvilke parametre skal jeg så bruge? Det er alt, hvad jeg har brug for.
Lotte Bjerregaard Jensen: Har du nogensinde prøvet at købe noget på ”Blå Avis” eller ”Green Dozer” og bruge det i en ny struktur?
Rasmus Kristian Holst: Det har jeg ikke. Men forsyningskæden har været rigtig vigtig i det Realdania-projekt, jeg har været involveret i, og det er her, man kan se, at logistikken – hvor tingene skal placeres – er afgørende. Den findes ikke rigtig endnu, og vi forsøger at oprette en arbejdsgang. Det er stadig under udvikling, og vi forsøger at få NDT-data ind i den proces. Jeg tror, det er noget, vi skal diskutere nærmere, men ideelt set bør det integreres i den normale forsyningskæde. Det var også det, Peter mente: Vi vil gerne have nogle oplysninger tidligere i processen, i de indledende faser, så arkitekterne ved, hvad de har. Det ene er styrkeparametrene, men det grundlæggende, som dimensioner, er også vigtigt. I et andet projekt var vi for eksempel nødt til at kombinere elementer på grund af deres størrelse – som betonvægge, hvor høje de er, hvor tykke de kan være. Det var en del af udfordringen. Det ville være fantastisk, hvis virksomheder som Green Dozer – eller lignende virksomheder – havde et digitalt katalog. Ideelt set kunne NDT-data integreres der, så man før eller under nedrivningen ville vide, hvad der er tilgængeligt. Så når nogen køber det, kan de få adgang til oplysninger om materialerne. Måske ikke fuldt ud i en 3D-model endnu, men i det mindste i databasen.
Peter Vejrum: Ideelt set ville de have så meget materiale, at vi ikke behøvede at tænke over det længere. Der ville være så meget tømmer til rådighed, at vi bare kunne tage det, vi havde brug for, eller i det mindste noget, der var meget tæt på.
Rasmus Kristian Holst: Man kunne have en webcrawler, der søger efter forskellige leverandører. Det er ret interessant. I dette tilfælde ville det være som en webcrawler, der søger efter døre, vinduer eller andre materialer – og finder disse produkter hos alle forskellige leverandører. Jeg gætter på, at Green Dozer forsøger at gøre noget lignende. Hvis disse leverandører hurtigt kan give det overblik, kunne NDT-dataene allerede være inkluderet. Den information ville følge med kataloget. Det ville være det perfekte scenarie, synes jeg. Og
material supplier) warehouse—but instead of a warehouse, it’s a database of all the buildings available across the country where you can pick and choose. The challenge is that it’s not just one building, it’s 500 buildings or more, all scanned, NDT’d and organized. And when you pick one rafter from one building, you might end up destroying the rest of the building. So, it becomes a very tricky puzzle to put together.
Serkan Karatosun: But that also signals that we need the same type of data format to store the same data. Otherwise, we cannot use data from different buildings in a single database. I don’t need to see the data behind it; I just need the properties. When I design something with this material, what parameters am I going to use? That’s all I need.
Lotte Bjerregaard Jensen: Have you ever tried to buy something on “Blå Avis” or “Green Dozer” and use it in a new structure?
Rasmus Kristian Holst: I haven’t. But the supply chain has been really important in the Realdania project I’ve been involved with, and that’s where you can see the logistics— where to put things—are crucial. It doesn’t really exist yet, and we’re trying to set up a workflow. It’s still evolving, and we’re trying to get NDT data into that loop. I think that’s something we need to discuss further, but ideally it would be integrated into the normal supply chain. That’s also what Peter meant: we’d like to have some information earlier in the process, during the initial phases, so the architects know what they have. One thing is the strength parameters, but the basics, like dimensions, are also important. For example, in another project, we had to combine elements because of their sizes—like concrete walls, how high they are, how thick they can be. That was part of the challenge. It would be great if companies like Green Dozer—or similar companies—had a digital catalogue. Ideally, NDT data could be integrated there, so that before or during demolition, you’d know what’s available. Then, when someone buys it, they can access information about the materials. Maybe not fully in a 3D model yet, but at least in the database.
Peter Vejrum: Ideally, they would have so much material that we wouldn’t have to think about it anymore. There would be so much timber available that we could just take whatever we need, or at least something very close to it.
Rasmus Kristian Holst: You could have a web crawler that looks for different suppliers. That’s pretty interesting. So, in this case, it would be like a web crawler looking for doors, windows, or other materials—finding these products across all different suppliers. I guess Green Dozer is trying to do something similar. If those suppliers can provide that overview quickly, then the NDT data could already be included.
noget, jeg gerne vil have, er en simpel indikator: grøn eller rød – kan jeg bestille det eller ej? Hvis vi ved det tidligt, kan vi justere designet lidt, hvis det er nødvendigt.
Peer Näthke: I Listefabrikken-casestudiet, Åbyhøj, prøvede vi også noget lignende – en slags forhandlerhjemmeside, men med miljøscreeningsdata og NDT integreret.
Rasmus Kristian Holst: Før nedrivningen kunne de håndtere registreringen – klassificeringen – både fra arkivdokumentation og fra selve bygningen på stedet. Er den blevet beskadiget? Jeg går ud fra, at noget af det er gjort nu, men jeg er ikke sikker på, hvor meget. Hvis NDT er en del af den proces. Hvis der var en forretningsmæssig begrundelse for det, ville det være fantastisk, hvis nedrivningsteamet havde de data, før de solgte materialerne til f.eks. Green Dozer.
Lotte Bjerregaard Jensen: Bør genbrugsmaterialer certificeres som jomfruelige materialer? Med hensyn til levetiden, som du nævnte, Peter – kan vi teste for at estimere materialets forventede resterende levetid? Kan vi ’nulstille’ materialets levetid, hvis det er i perfekt stand? Er det noget, der er muligt?
Peter Vejrum: Jeg ved ikke nok om materialers fysik til at kunne besvare det spørgsmål. I øjeblikket slår vi det bare op i tabeller. For eksempel tjekker vi den forventede levetid for en bestemt træsort ud fra de forhold, den vil blive brugt under. Så hvis det er gran eller fyr, og det placeres i et opvarmet indendørs miljø, kan vi slå det op i tabellen og se, at det typisk vil holde i omkring 400 år.
Lotte Bjerregaard Jensen: Hvornår siger man: ”Det er ikke nok resterende levetid”?
Peter Vejrum: Hvis vi tager træ og placerer det udendørs, uopvarmet og uden god ventilation, kan levetiden være kun 15 eller 20 år. Derfor er det vigtigt. Når vi tester, kan vi i det mindste måle træets tørhed, men kan vi også måle den estimerede resterende levetid?
Rasmus Kristian Holst: Hvis vi sammenligner det med nye materialer, tror jeg, det svarer til det, Peter sagde om at se på materialetypen – beton, stål, træ (og for træets vedkommende typen og behandlingen) – [for at afgøre], om det er et godt sted at bruge det, og om det er egnet med hensyn til levetid. For nye materialer angiver dokumentationen en levetidskategori, ofte 50 år, selvom vi ikke forventer, at konstruktionssystemet holder præcis så længe. Jeg synes, at genbrugte materialer skal behandles retfærdigt. Det skal bemærkes, at det har været brugt før. I dag kan det endda være værdifuldt at kende historien – hvad det blev brugt til, hvor det blev brugt – fordi det kan gøre det mere attraktivt
That information would come with the catalogue.That would be the perfect scenario, I think. And something I’d like to have is a simple indicator: green or red—can I order it or not? If we know that early on, we can adjust the design slightly if needed.
Peer Näthke: In the Listefabrikken case study, Åbyhøj we also tried something like this—a kind of reseller homepage but informed with environmental screening data and NDT.
Rasmus Kristian Holst: Before demolition, they could handle the registration – the classification—both from archival documentation and for the building itself. Has it been damaged? I guess some of that is done now, but I’m not sure how much. If NDT is part of that process. If there was a business case for it, it would be great if the demolition team had that data before selling the materials to, for example, Green Dozer.
Lotte Bjerregaard Jensen: Should reused materials be certified as virgin materials? Regarding the lifespan, as you mentioned, Peter—can we test to estimate the expected remaining life of the material? Can we ‘reset’ the life span of the material if it is in perfect shape? Is that something that’s feasible?
Peter Vejrum: I don’t know enough about the physics of materials to answer that question. Currently, we just look it up in tables. For example, we check the expected lifespan of a type of timber given the conditions it will be used in. So, if it’s spruce or fir, and it’s placed in an indoor, heated environment, we can look it up in the table and see that it would typically last around 400 years.
Lotte Bjerregaard Jensen: At what point do you say, “That’s not enough remaining life”?
Peter Vejrum: If we take timber and place it outside, unheated and not well-ventilated, the lifespan might be only 15 or 20 years. That’s why it matters. When testing, at least we can measure the dryness of the timber, but can we also measure the estimated remaining lifespan?
Rasmus Kristian Holst: If we compare it to new materials, I think it’s similar to what Peter said about looking at the material type—concrete, steel, timber (and, for timber, the type and treatment)—[to determine] if it’s a good place to use it and to see if it’s suitable in terms of lifespan. For new materials. Normally, the documentation gives a lifespan category, often 50 years, although we don’t expect the structure to last exactly that long. I think reused materials should be treated fairly. It should be noted that they’ve been used before. Nowadays, it could even be valuable to know the history—what it was used for, where it was used—because that might make it
at genbruge. Det kan være nyttigt at vide, hvor længe det har været brugt, men det afhænger selvfølgelig af forhold og mange faktorer, som vi måske ikke kan kende.
Lotte Bjerregaard Jensen: Men med dbetonelementerne i Genbrug på Matriklen kan man vel sige, at de trods deres alder var overraskende solide. Man kan endda sige, at de var lige så gode som nye og kunne få deres forventede levetid nulstillet på baggrund af den seneste vurdering.
Rasmus Kristian Holst: Det samme gælder for nye materialer. For eksempel når man foretager styrkeklassificering af C24 – for nylig gennemførte vi et lille kursus i et andet projekt, hvor vi lærte, hvordan det gøres. Der er dog stadig en stor forskel mellem teorien og det, der faktisk sker i praksis. Man kan se, at selv nyt C24-træ kan have store revner eller andre fejl, der ikke blev opdaget under klassificeringen. Så hvordan definerer man egentlig den præcise kvalitet? Man har tabellerne, der giver generelle retningslinjer baseret på test. Jeg synes, at den samme tilgang bør gælde for eksisterende konstruktioner. Man bør ikke kræve meget mere – man skal være rimelig i sine forventninger.
Lotte Bjerregaard Jensen: Kan du nævne nogle faktorer, der faktisk kan fremme brugen af NDT-data? Levetiden kan være en af dem, men det ser ikke ud til at være den vigtigste. Hvad kan ellers fremme dette?
Peter Vejrum: Hvis NDT giver os mulighed for faktisk at genbruge materiale i en ny bygning, er det en fordel – for uden NDT ville vi måske slet ikke gøre det, simpelthen fordi vi ikke ved nok om materialet.
Rasmus Kristian Holst: Vi har brug for nogle oplysninger om den eksisterende struktur, især hvis der ikke findes nogen dokumentation. Som jeg sagde før, har vi i lignende projekter – selvom de er mindre i omfang – stadig brug for en eller anden form for viden om strukturen. Vi ville helt sikkert have haft mere viden, hvis vi havde kunnet bruge NDT. Så en eller anden form for dokumentation er nødvendig. Kunden skal vide det, og nogen skal tage ansvaret. NDT giver bredere viden og forhåbentlig til en lavere pris end omfattende kerneboringer.
Peter Vejrum: Forhåbentlig kan NDT reducere behovet for destruktiv prøvning, så vi kan genbruge mere af materialet. Det gør argumentet for genbrug endnu stærkere – måske behøver vi ikke ødelægge så mange prøver bare for at kende deres styrke.
Serkan Karatosun: Grunden til, at vi ender med at udføre så mange destruktive test, er, at lovgivningen kræver det på grund af usikkerheden. NDT kan hjælpe os med at forstå
more attractive for reuse.It could be useful to know how long it has been used, but of course, that depends on conditions and many factors we might not be able to know.
Lotte Bjerregaard Jensen: But with concrete elements in Genbrug på Matriklen, I guess you could say that, despite their age, they were surprisingly sound. You might even say they were just as good as new and could have their expected lifespan reset, based on the last assessment.
Rasmus Kristian Holst: It’s the same with new materials. For example, when you do strength grading for C24—just recently, in another project, we ran a small course and learned how it’s done. Still, there’s a big gap between the theory and what actually happens in practice. You can see that even new C24 timber can have large cracks or other defects that weren’t caught during grading. So how would you actually define the precise quality? You have the tables, which give general guidance based on testing. I think the same approach should apply to existing structures. Not much more should be demanded—you need to be fair in your expectations.
Lotte Bjerregaard Jensen: Could you list some factors that could actually drive the use of NDT data? Lifespan might be one, but it doesn’t seem like the main one. What else could push this forward?
Peter Vejrum: If NDT allows us to actually reuse material in a new building, that’s the benefit—because without NDT, we might not do it at all, simply because we don’t know enough about the material.
Rasmus Kristian Holst: We do need some information about the existing structure, especially if there’s no existing documentation. As I said before, in similar projects—even if smaller in scale—we still need some kind of idea about the structure. Definitely, we would have had more knowledge if we could have used NDT. So, some form of documentation is necessary. The client has to know, and someone has to take responsibility. NDT provides broader knowledge, and hopefully at a lower cost than doing extensive core drillings.
Peter Vejrum: Hopefully, NDT can reduce the need for destructive testing so we can reuse more of the material. That makes the case for reuse even stronger—maybe we don’t have to destroy so many samples just to know their strength.
Serkan Karatosun: The reason we end up doing so much destructive testing is that the legislation requires it due to the uncertainty. NDT can help us understand the expected uncertainty in the population, and in that way, it can definitely
den forventede usikkerhed i populationen, og på den måde kan det helt sikkert bidrage til at reducere mængden af nødvendige destruktive test. I hvert fald for træ er den ikke-destruktive test – især den visuelle vurdering – allerede ret omfattende. Det skyldes delvis, at vi stadig er i gang med at finde ud af, hvilke oplysninger der skal indsamles. Med tiden vil denne proces blive meget hurtigere, mere strømlinet og kunne udføres ikke kun af akademikere på universiteter, men også af andre. Den fase, vi er i nu, handler om at udvikle disse procedurer. Derfor gør vi selvfølgelig lidt mere end nødvendigt, og grunden til, at vi gør dette, er simpelthen, at en sådan procedure endnu ikke findes. Så i fremtiden vil det sandsynligvis blive meget nemmere og mere ligetil.
Peter Vejrum: Noget, vi ikke har diskuteret, er, at det før man investerer i NDT eller andre vurderinger, er fornuftigt at have en slags forfilter, der identificerer, hvilke elementer der faktisk er værd at genbruge. Ellers kan man bruge tid og penge på at teste stykker, hvor fordelen er ubetydelig – som mindre elementer. For større, mere ressourcekrævende elementer, som de limtræsbuer, du nævnte, er investeringen i testning berettiget, fordi genbrug af dem sparer materiale, reducerer emissioner og sænker omkostningerne i forhold til at producere nye. Så denne form for filtrering kunne gøre hele processen meget mere effektiv og omkostningseffektiv og sikre, at NDT bruges strategisk frem for universelt.
Lotte Bjerregaard Jensen: Og desuden var nogle af de NDT-tests, DTU udførte på tagkonstruktionen på Listefabrikken i Åbyhøj, faktisk forgæves, fordi vi ikke vidste, at miljøscreeningen viste, at der var et tag af asbestplader. Og jeg kendte ikke reglerne, så alt det tømmer, der havde været i direkte kontakt med asbestpladerne i den tagkonstruktion, måtte sendes til deponering. Så i den forstand er miljøscreeningen måske det afgørende trin for, hvad du skal NDT teste.
help reduce the amount of destructive testing needed. At least for timber, the non-destructive testing—especially the visual assessment—is already quite comprehensive. This is partly because we’re still figuring out what information needs to be gathered. Over time, this process will become much quicker, more streamlined, and could be done not just by academics at universities, but also by others. The phase we’re in now is about developing those procedures. That’s why we’re doing a bit more than necessary, of course, and the reason we’re doing this is simply that no such procedure exists yet. So, most likely, in the future it will be much easier and more straightforward.
Peter Vejrum: Something we haven’t discussed is that before investing in NDT or other assessments, it makes sense to have a kind of pre-filter that identifies which elements are actually worth reusing. Otherwise, you could spend time and money testing pieces where the benefit is negligible—like small timber offcuts or minor elements. For larger, more resource-intensive elements, like the glue-laminated arches you mentioned, the investment in testing is justified because reusing them saves material, reduces emissions, and lowers cost compared to producing new ones. So, this kind of filtering step could make the whole process much more efficient and cost-effective, ensuring that NDT is used strategically rather than universally.
Lotte Bjerregaard Jensen: And also, some of the NDT testing DTU did on the roof structure of Listefabrikken, Åbyhøj was actually in vain, because what we didn’t know was that the environmental screening showed there was an asbestos plate roof. And I didn’t know the rules, so all the timber that had been in direct contact with the asbestos plates in that roof structure had to go to a deposit. So, in that sense, the environmental screening is maybe the knockout step for what you need to NDT before you do NDT.
Digital hjælp til ’den omvendte designproces’
Niclas Brandt og Janin Brandt
I Ringparken-sagen arbejdede en gruppe DTU-studerende sammen med Rasmus Kristian Holst fra Holst Engineering for at yde den massive konstruktionstekniske support, der er nødvendig fra dag ét i ’den omvendte designproces’. Niclas Brandt og Janin Brandt – bror og søster – er nyuddannede civilingeniører fra DTU og var meget vigtige drivkræfter i udviklingen af de innovative ideer og deres realisering.
Den oprindelige idé
I modsætning til standardiserede nye materialer har genbrugskomponenter en række foruddefinerede fysiske egenskaber, der fundamentalt ændrer designprocessen. Deres dimensioner, overfladekvalitet, slidgrad og strukturelle integritet bestemmes alle af deres tidligere anvendelse.
Dette medfører nye udfordringer for designere. Traditionelle designworkflows forudsætter en høj grad af kontrol over materialespecifikationerne, hvilket gør det muligt at optimere geometri og struktur fra bunden. I modsætning hertil kræver design med genbrugsbeton en omvendt proces: De tilgængelige elementer skal informere og begrænse designet i stedet for at tilpasse sig det problemfrit. I denne sammenhæng bliver behovet for avancerede digitale værktøjer tydeligt.
Idéen bag udviklingen af et digitalt værktøj var at give arkitekter tidlig, tilgængelig konstruktionsteknisk feedback, når de designer med genbrugte betonelementer. I stedet for at behandle genbrugte komponenter som ubegrænsede eller abstrakte, tager værktøjet udgangspunkt i et fast lager, hvor hvert element har sine egne dimensioner og bæreevne. Ved direkte at vise, om et element er egnet til den tilsigtede placering gennem visuel feedback, omdanner værktøjet strukturelle begrænsninger til klare visuelle signaler. Dette hjælper arkitekter med at træffe informerede designbeslutninger tidligt i processen, hvilket undgår senere stål-forstærkninger og tilskynder til en mere kreativ og gennemførlig genbrug af eksisterende materialer.
I sidste ende er udviklingen af sådanne digitale værktøjer afgørende for at øge genbrug af betonelementer. Ved at bygge bro mellem materialets realiteter og designambitionerne kan disse værktøjer give designere mulighed for at omfavne genbrugte ressourcer, ikke som begrænsninger, men som muligheder for innovation inden for bæredygtigt byggeri.
Digital help til in the ’reverse design process’
In the Ringparken case, a group of DTU students worked together with Rasmus Kristian Holst from Holst Engineering to provide the massive structural engineering support needed from day one in the ‘reverse design process’. Niclas Brandt and Janin Brandt—brother and sister—are newly graduated civil engineers from DTU and were very important driving forces in the development of the innovative ideas and their realization.
The initial idea
Unlike standardized new materials, reclaimed components arrive with a set of predefined physical properties that fundamentally reshape the design process. Their dimensions, surface qualities, degrees of wear, and structural integrity are all determined by their previous use.
This introduces new challenges for designers. Traditional design workflows assume a high level of control over material specifications, allowing geometry and structure to be optimized from scratch. By contrast, designing with reclaimed concrete requires a reversal of this process: the available elements must inform and constrain the design rather than adapt seamlessly to it. In this context, the need for advanced digital tools becomes evident.
The idea behind the development of a digital tool was to provide architects with early, accessible engineering feedback when designing with reclaimed concrete elements. Instead of treating reused components as unlimited or abstract, the tool starts from a fixed stock, each element with its own dimensions and load-bearing capacity. By showing directly whether an element is suitable for its intended position through visual feedback, the tool turns structural constraints into clear visual cues. This helps architects make informed design decisions early on, avoiding later strengthening and encouraging more creative, feasible reuse of existing materials.
Ultimately, the development of such digital tools is essential for scaling up the reuse of concrete elements. By bridging the gap between material realities and design ambitions, these tools can empower designers to embrace reclaimed resources not as limitations, but as opportunities for innovation in sustainable construction.

Fig. 1: Venstre: Lager af genbrugte elementer, højre: Foreslået struktur / Left: Stock of reclaimed elements, Right: Proposed structure
Det digitale værktøj
Der er blevet undersøgt to digitale strategier til anvendelse i design med genbrugte betonelementer. Disse repræsenterer to fundamentalt forskellige tilgange, der hver især tilbyder en særskilt måde at arbejde med et begrænset materialelager på. Begge metoder er implementeret i Python/Grasshopper, hvilket sikrer kompatibilitet med almindelige digitale arbejdsgange i arkitektpraksis.
1. Materialebaseret design
I denne tilgang arbejder designeren direkte med et katalog over genbrugte betonelementer, hvor dimensioner og materialegenskaber fungerer som designbegrænsninger fra starten. For effektivt at understøtte designprocessen prioriterer værktøjet realtids- konstruktionsfeedback til arkitekten.
I stedet for at stole på kompleks finite element (FE)-software og de tilhørende modelleringskrav anvender værktøjet en specialudviklet grafbaseret statisk-system analysemetode, der fungerer problemfrit med enkle BREP-geometrier, der ofte bruges i arkitektoniske modeller (fig. 1). Grafenetværket definerer forbindelsen mellem konstruktionselementer og inkorporerer information om belastningsfordelingsområder og materialegenskaber (fig. 3). Dette muliggør konstruktionsvurderinger i realtid, der giver øjeblikkelig indsigt i gennemførligheden af det foreslåede design (fig. 2).
The digital tool
Two digital strategies have been explored for their application in designing with reclaimed concrete elements. These represent two fundamentally different approaches, each offering a distinct way of working with a constrained material stock. Both methods are implemented in Python/Grasshopper, ensuring compatibility with common digital workflows in architectural practice.
1. Material-informed design
In this approach, the designer works directly with a catalogue of reclaimed concrete elements, where dimensions and material properties serve as design constraints from the outset. To effectively support the design process, the tool prioritizes real-time structural feedback for the architect.
Instead of relying on complex finite element (FE) software and its associated modelling requirements, the tool employs a custom-developed graph-based structural analysis method that works seamlessly with simple BREP geometries commonly used in architectural models (fig 1). The graph network defines the connectivity between structural elements and incorporates information on load distribution areas and material properties (fig 3). This enables real-time structural assessments that provide immediate insights into the feasibility of the proposed design (fig 2).


2. Designorienteret integration
I denne tilgang designer arkitekten bygningen uden i første omgang at tage hensyn til begrænsningerne ved de genbrugte elementer. Værktøjet forsøger derefter at integrere så mange genbrugte elementer som muligt i designet, samtidig med at deres materialegenskaber respekteres. For at opnå dette anvender værktøjet en Bin Packing-algoritme, der systematisk placerer genbrugte elementer i den foreslåede struktur for at maksimere deres genbrug. Processen er illustreret i det efterfølgende billede, der viser, hvordan algoritmen effektivt passer de tilgængelige elementer ind i det arkitektoniske design.
Konklusion
Valget af designstrategi har afgørende indflydelse på resultatet. Tilgangen med ”materialebaseret design” maksimerer genbrug af materialer, men begrænser designfriheden. Omvendt giver tilgangen med ”designorienteret integration” mulighed for
2. Design-oriented integration
In this approach, the architect designs the building without initially considering the limitations of the reclaimed stock. The tool then attempts to integrate as many reclaimed elements as possible into the design while respecting their material properties. To achieve this, the tool employs a Bin Packing algorithm, which systematically places reclaimed elements within the proposed structure to maximize their reuse. The process is illustrated in the subsequent image, showing how the algorithm efficiently fits available elements into the architectural design.
Conclusion
The choice of design strategy has a decisive impact on the outcome. The “material-informed design” approach maximizes material reuse but places constraints on design freedom. Conversely, the “Design-oriented integration” approach allows for an unconstrained design process, but inevitably limits the
Fig. 2: Graf, der viser vægudnyttelse. / Graph showing wall utilizations.
Fig. 3: Etableret graf, der viser topologiske relationer. / Established graph showing topological relations.

Fig. 4: Lagerelementer matches med elementer i det nye design ved hjælp af bin packing-algoritmer. / Stock elements being matched with elements in the new design utilizing bin packing algortihms.
en ubegrænset designproces, men begrænser uundgåeligt graden af genbrug. Det er derfor afgørende, at designere og interessenter fra starten definerer deres prioriteter og vælger den strategi, der bedst passer til deres projektmål.
Fremtidigt arbejde
Begge værktøjer er funktionsdygtige, men er stadig under udvikling, og der er behov for yderligere funktioner for at reducere afhængigheden af løbende ingeniørrådgivning under designprocessen. For eksempel tager det første værktøj i øjeblikket højde for vertikale belastninger, men inddrager endnu ikke horisontale belastninger. Ud over den løbende forbedring af disse værktøjer kan alternative tilgange, såsom mekanik/fysik-informeret maskinlæring, også være lovende for at fremme designet af bærende konstruktioner, der indeholder genbrugte elementer.
degree of reuse. It is therefore essential for designers and stakeholders to define their priorities at the outset and select the strategy best aligned with their project goals.
Future Work
Both tools are functional but remain under development, with additional features required to further reduce reliance on continuous engineering consultancy during the design process. For example, the first tool currently accounts for vertical loads but does not yet incorporate horizontal load considerations. Beyond the ongoing refinement of these tools, alternative approaches, such as physics-informed machine learning, may also hold promise for advancing the design of structures incorporating reclaimed elements.
Den omvendte miljøscreening – Interview med Tim Tolman
Denne tekst præsenterer en række indsigter og pointer fra en længere interviewsamtale med miljøkonsulent Tim Tolman om digitalisering af miljøscreening og ressourcekortlægning i byggesektoren.
Tim Tolman er civilingeniør i bæredygtigt design og har værdifuld erfaring med ledelse og facilitering af cirkulær økonomi og byggepraksis, tidligere fra Lendager og nu hos Milva. Milva er en miljø- og ressourcerådgivningsvirksomhed, og arbejder samtidig med udvikling af digitale værktøjer til bl.a. strukturering og effektivisering af registreringsprocessen. I samtalen diskuteredes Milvas digitale værktøj til systematiske bygningsinspektioner, integrationen af miljø- og ressourcedata og den skiftende rolle, som miljøviden spiller i arkitektoniske designprocesser. Tolmans refleksioner bidrager til forståelsen af, hvordan digitale arbejdsgange, lovgivningsmæssige rammer og kulturelle forandringer former overgangen til cirkulære byggepraksisser.
I de senere år har byggebranchen i stigende grad lagt vægt på genbrug og genanvendelse af byggematerialer som en del af en cirkulær økonomi. Digitale værktøjer og datadrevne metoder giver nye muligheder for at bygge bro mellem disse processer.
Reverse environmental screening - Interview with Tim Tolman
This text presents insights from an extended conversation with environmental consultant Tim Tolman regarding the digitalization of environmental screening and resource mapping in the construction sector.
Tim Tolman is a civil engineer in sustainable design and has valuable experience in managing and facilitating circular economy and construction practices, previously at Lendager and now at Milva. Milva is an environmental and resource consulting company that also works with the development of digital tools for, among other things, structuring and streamlining the registration process. The discussion focuses on Milva’s digital tool for systematic building inspections, the integration of environmental and resource data, and the evolving role of environmental knowledge in architectural design processes. Tolman’s reflections contribute to understanding how digital workflows, regulatory frameworks, and cultural change are shaping the transition towards circular construction practices.
In recent years, the construction industry has increasingly emphasized the reuse and recycling of building materials as part of a circular economy agenda. Digital tools and data-driven methods offer new opportunities to bridge these processes.
Interviewet med Tim Tolman er organiseret af Lotte M. Bjerregaard Jensen og Peer Tue Näthke og er efterfølgende redigeret af Johan Hvidtfeldt Rahbek.
The interview with Tim Tolman was conducted by Lotte M. Bjerregaard Jensen and Peer Tue Näthke and has been edited by Johan Hvidtfeldt Rahbek.
INTERVIEW
Peer Näthke: Du og dine kolleger arbejdede med miljøscreening ved Ringparken og Listefabrikken. Vil du sige lidt om de to cases, og hvad de fortæller om de typer byggeri?
Tim Tolman: Ringparken var et klassisk boligbyggeri fra 1960’erne. Vi var kun inde i én lejlighed, som vi tog udgangspunkt i og generaliserede hele projektet ud fra. Så vidt jeg husker, var der ikke noget, der var udslagsgivende eller anderledes end andre boligbyggerier i forhold til miljøprøver. Jeg husker, at der var en høj PCB-koncentration, som også var kendetegnende for den tid. Den anden bygning, Listefabrikken, var også en klassisk bygning, som havde primære bygningsdele, med eternittag og lagerbygnings-opsætning. Der var ikke noget alarmerende ved nogle af de her bygninger, rent miljørådgivningsmæssigt.
Peer Näthke: Hvordan er det at arbejde med denne type screening og kortlægning, og hvilken betydning har de digitale værktøjer for jeres arbejde?
Tim Tolman: Selvom vi har fået adgang til dette værktøj, er der stadig behov for dygtige rådgivere og bygningsekspertise, men med værktøjet kan vi systematisere bygningsgennemgangen og metoden, så vi sikrer os, at vi kommer igennem hele bygningen og får registreret alle materialer som er berørt af enten renovering eller nedrivning, og vi kan udpege, hvor der er behov for at tage miljøprøver i henhold til arbejdsmiljø eller affaldshåndtering. Hvis man har et byggeteknisk kendskab, kan man hurtigt få identificeret, hvor der kan være en miljørisiko med appen, også uden at have en miljørådgiverbaggrund. Efter man har lavet undersøgelsen med Milva, kan man inddrage eksperter, der ved hvordan man arbejder med sanerings- og nedrivningsdelen. Appen hjælper med at fortælle hvor der skal tages analyser og hvilke materialer der er risikomaterialer.
Lotte Bjerregaard Jensen: Hvordan er koblingsfladen til ressourcekortlægningen? Er det altid jer der laver den, eller overtager I ressourcekortlægninger fra andre?
Tim Tolman: Vi udfører rigtig mange ressourcekortlægninger. I en miljøscreening går man i udgangspunktet ud for at identificere de miljøkritiske materialer. Ressourcekortlægningen omhandler alle materialer, også de ikke-miljø-
Peer Näthke: You and your colleagues worked with environmental screening at Ringparken and Listefabrikken. Could you say more about the cases, and what they tell us about these types of construction?
Tim Tolman: Ringparken is a typical 1960s residential building. We only went inside one apartment, which we used as a starting point, and generalized the entire project based on it. As far as I remember, there was nothing significantly different from other residential buildings in terms of environmental testing. I remember that there was a high concentration of PCBs, which was also characteristic of the time. The other building, Listefabrikken, was also a typical case with primary building components, an asbestos roof, and a warehouse layout. There was nothing alarming about any of these buildings in terms of environmental consulting.
Peer Näthke: What is it like to work with this type of screening and mapping, and how important are digital tools for your work?
Tim Tolman: Even though we now have access to this tool, there is still a need for skilled consultants and building expertise. But with the tool we can systematize the building survey and the method, so we can ensure that we go through the entire building and register all materials that are affected by either renovation or demolition, and we can identify where environmental samples need to be taken in accordance with working environment health regulations or waste management requirements. If you have a knowledge of building technology, you can quickly identify where there may be an environmental risk using the app, even without having a background in environmental consulting. After completing the survey with Milva, you can bring in experts who know how to work with cleanup and demolition. The app helps you identify where to take samples and which materials are hazardous.
Lotte Bjerregaard Jensen: How does this link to resource mapping? Do you always do it yourselves, or do you take over resource mapping from others?
Tim Tolman: We carry out a lot of resource mappings. In environmental screening, the focus is on identifying envi-
kritiske, men fordi vi har lavet en metode i vores app, hvor vi registrerer alle materialer og derefter tager prøver af de miljøkritiske, så har vi også allerede registreret de rene fraktioner, eller i hvert fald dem, som man kan arbejde med højere oppe i et affaldshierarki. I dag, jævnfør det nye direktiv om selektiv nedrivning, skal man, når det er mere end 250 m², både have miljøscreening og miljøkortlægning, ressourcescreening og ressourcekortlægning som dokumentation, når man anmoder om nedrivning eller renovering. Før den 1. juli i år, var udgangspunktet kun en miljøscreening og miljøkortlægning i forhold til miljøkritiske materialer, uden fokus på at kortlægge og registrere de rene fraktioner. Det er ændret nu.
Lotte Bjerregaard Jensen: Vil dét med kun at have en ressourcekortlægning blive udfaset, eller vil det altid være koblet med en miljøscreening i fremtiden?
Tim Tolman: Jeg tror, man vil komme til at se begge dele. Man vil se dem, der i dag laver miljøscreening og miljøkortlægning, også udbyde ressourcekortlægning og ressourcescreening, fordi de to er meget tæt koblet, men man vil også se nogle, der kun udfører ressourcescreening og -kortlægning, og så laver en tom kolonne i et skema for miljøscreening, miljøkortlægning eller miljøkritiske stoffer og måske pointerer, at hér skal der laves en undersøgelse, før man kan identificere genbrug og genanvendelsespotentialet. I de vejledninger, der bliver lagt ud, er der fokus på at få miljørådgivning og miljøanalyser inddraget i ressourcekortlægningsoversigten. Det koster tid og penge at lave, og derfor vil man, ved at slå det sammen i samme flow også gøre det mere spiseligt for bygherrer og andre økonomisk set. Der kommer mere dokumentationsarbejde, som jo er rigtig vigtigt og nødvendigt, men det er også en ekstra proces, en ekstra økonomi, som pålægges. Samtidig vil vores værktøj også kunne bruges til dem, der kun laver ressourcekortlægning, fordi man kan registrere alle materialerne, hvorefter værktøjet vil udpege risici for miljøkritiske materialer, som man senere kan få en miljørådgiver til at verificere og tage prøver på. Når man laver den her indledende ressourcescreening igennem Milva, vil den også udpege, hvor man måske bør tage prøver, og så har man et forslag til miljørådgiveren på projektet.
Lotte Bjerregaard Jensen: Er den indledende screening udført på baggrund af ’machine learning’ og historisk data?
Tim Tolman: Den er udført på statistik og de grænseværdier, der foreligger i de forskellige branchestandarddokumenter. Og så læner vi os op ad vores egen statistik, når vi begynder at lære mere om, hvorhenne vi typisk finder de her materialer.
ronmentally critical materials. Resource mapping covers all materials, including non-environmentally critical ones, but because we have developed a method in our app where we register all materials and then take samples of the environmentally critical ones, we have also already registered the clean fractions, or at least those that can be worked with higher up in a waste hierarchy. Today, according to the new directive on selective demolition regarding buildings larger than 250 m², both environmental screening and environmental mapping and resource screening and resource mapping must be documented when applying for demolition or renovation. Before the 1st of July this year, only environmental screening and environmental mapping in relation to environmentally critical materials were required, without a focus on mapping and registering the clean fractions. That has now changed.
Lotte Bjerregaard Jensen: Will having a resource mapping alone be phased out, or will it always be linked to environmental screening in the future?
Tim Tolman: I think we will see both. Those who currently perform environmental screening and environmental mapping will also offer resource mapping and resource screening, because the two are very closely linked, but we will also see some who only perform resource screening and mapping, and then leave a blank column in a form for environmental screening, environmental mapping, or environmentally critical substances, and perhaps point out that an investigation must be carried out here before the potential for reuse and recycling can be identified. The guidelines that are being published focus on incorporating environmental consulting and environmental analyses into the resource mapping overview. This takes time and money, so combining it in the same flow will also make it more palatable for builders and others from a financial perspective. There will be more documentation work, which is really important and necessary, but it is also an extra process and an extra expense. At the same time, our tool can also be used by those who only do resource mapping, because you can register all the materials, after which the tool will identify risks for environmentally critical materials, which you can later have an environmental consultant verify and take samples of. When you do this initial resource screening through Milva, it will also identify where samples should be taken, and then you have a suggestion for the environmental consultant on the project.
Lotte Bjerregaard Jensen: Are the initial screenings performed based on machine learning and historical data?
Tim Tolman: They are performed based on statistics and the threshold values specified in the various industry stan-
Lotte Bjerregaard Jensen: Vi har tidligere talt om, at I skulle lave et ekstra ’lag’, man kunne slå til i jeres system, hvor man fik at vide, hvordan man kunne oparbejde et miljøkritisk materiale til at kunne være ’rent’. Er det noget I har kommet videre med, eller er det stadigvæk kun en idé? Eller er der andre ideer til, hvad der kunne gøre, at det cirkulære kunne komme videre?
Tim Tolman: Vi har flere projekter hvor vi jo prøver at rense nogle af de her materialer. Vi prøver at arbejde med det på nogle projekter som rådgiver, og derfra kigge på, om vi kan implementere det som et ekstra lag i vores system, men det er afgørende, at vi også har nogle produktvirksomheder med, fordi det er dem, der også skal være med til at kigge på eventuelle risici, give garanti og danne den forretningsmulighed, der kunne ligge i at kunne varetage oparbejdning og recirkulering af deres egne produkter ind i et nyt projekt. Der vil være en ændring fra at bygherren leverer genbrugsmaterialerne til sit eget projekt, altså en bygherreleverance, hvor bygherren påtager sig ansvaret for produktet, til at det kommer forbi en producent som giver de fornødne garantier og vi kan arbejde hen imod, at flere produktvirksomheder kan se en forretningsmulighed i at garantere for en genbrugsbyggevare.
Lotte Bjerregaard Jensen: En oparbejdning, som har fokus på det miljømæssige og ikke kun det funktionelle og æstetiske?
Tim Tolman: Ja, lige præcis. F.eks. var der til et andet projekt i Aarhus gamle stålplader, som kom forbi en produktionsvirksomhed, der kunne se, at det var en god forretning, gerne ville undersøge det, og derved gav garanti på det. De fandt en forretningsmulighed i at oparbejde de gamle stålplader. Der er data, som er vigtigt i forhold til miljørådgivning, men der er også andre parametre. NDT-data (non-destructive testing) kan også være med til at gøre det mere sandsynligt at nogle ville stille garanti for oparbejdede byggevarer.
Lotte Bjerregaard Jensen: Kunne jeres app i fremtiden integrere NDT- og LCA-data?
Tim Tolman: Det vigtigste for os er at have et produkt, der er compliant i forhold til miljørådgivning, affaldsbekendtgørelsen og arbejdsmiljøloven, men vi arbejder hen imod, at gøre det nemmere og mere sikkert og skabe et genbrugsog genanvendelsesmarked. NDT, kan nok være med til at inddrage produktionsvirksomheder i forhold til de krav, de stiller, for at kunne se en forretningsmulighed i det.
Peer Näthke: Kan du sige noget om hvordan jeres værktøjer og rapporter visualiserer den information grafisk og visuelt,
dard documents. And then we rely on our own statistics as we begin to learn more about where we typically find these materials.
Lotte Bjerregaard Jensen: We have previously discussed the idea of creating an additional ‘layer’ to your system, with options for how to process an environmentally critical material to make it ‘clean’. Have you made any progress on this, or is it still just an idea? Or are there other ideas for how to move the circular economy forward?
Tim Tolman: We have several projects where we are trying to clean some of these materials. We are trying to work with this in some projects as consultants, and from there we will look at whether we can implement it as an extra layer in our system, but it is crucial that we also have some material manufacturers on board, because they are the ones who also need to be involved in looking at any risks, providing guarantees, and creating the business opportunity of being able to handle the processing and recycling of their own products into a new project. It would be a shift from the developer supplying the reused materials for their own project, where the developer assumes responsibility for the product, to making the materials go through a manufacturer who provides the necessary guarantees, and we can work towards more manufacturers finding a business opportunity in guaranteeing reused building materials.
Lotte Bjerregaard Jensen: A reprocessing that focuses on the environmental aspect and not just the functional and aesthetic aspects?
Tim Tolman: Yes, exactly. For example, for another project in Aarhus, there were old steel sheets that came through a manufacturing company that saw that it was a good business opportunity, wanted to investigate it, and thereby provided a guarantee for it. They saw a business opportunity in processing the old steel sheets. This is some data that is important in relation to environmental consulting, but there are also other parameters. NDT (non-destructive testing) data can also help make it more likely that someone would provide a guarantee for reused building materials.
Lotte Bjerregaard Jensen: Could your app integrate NDT and LCA data in the future?
Tim Tolman: The most important thing for us is to have a product that is compliant with environmental regulations, the Statutory Order on Waste, and the Working Environment Act, but we are working towards making it easier and safer to create a market for recycling and reuse. NDT can probably help involve manufacturing companies in relation to the requirements they set in order to see a business opportunity in it.
og hvem de er henvendt mod? Er det også arkitekter? Og har de nået deres endelige form?
Tim Tolman: Miljørådgivningsdokumentation har primært fokus på nedrivnings- eller renoveringsfaserne, som ikke er med på samme måde i en traditionel arkitektproces dikteret af ydelsesdirektivet, altså fra skitse, projektering, design og hele den rejse hen til myndighedsprojekt og så videre. De to ting har været meget afkoblet fra hinanden, og det bliver nødvendigt at gentænke. Alt det vi ved fra nedrivningsfasen og de aktører, skal have relevans for nye aktører, heriblandt arkitekter og bygherrer på det nye projekt. Derfor skal miljørådgivning og farvekoderne om miljørisici; ’rød’ –’gul’ –’grøn’ og hele dokumentationen ikke kun kunne bruges til at affaldshåndtere. Den skal også bruges sådan, at arkitekter og dem, der skal genbruge det, kan se en nytte og værdi i den viden. Det er grundlaget for at arbejde med den visuelle kommunikation af miljødata, som har mere fokus på at komme med input over i ydelsesdirektiv-faserne og bliver et input til dem, der tegner og beregner bygninger. Jeg tror ikke, vi er i mål, men pointen er, at miljørådgivning historisk set især har været knyttet til nedrivningsprojektet og derfor ofte står ret afkoblet fra selve byggeprojektet.
Lotte Bjerregaard Jensen: Men måske er det mere byggeøkonomer eller forretningsfolk, der tager beslutningerne?
Tim Tolman: Det handler meget om, at man river en bygning ned for at bygge noget nyt. For at kunne bygge det nye skal vi rive det gamle ned, og de to projekter er afkoblet fra hinanden. Det data som vi eller en miljørådgiver genererer, ligger generelt ovre i nedrivningsdelen og aktiveres ikke hos arkitekter, ingeniører eller bygherrer i det nye projekt.
Lotte Bjerregaard Jensen: Kunne der være plads til det i ydelsesdirektivets bæredygtighedsledelse? Kan man udforme kontrakter, der kan rumme miljøscreeningseksperthjælp i designfaserne?
Tim Tolman: Det fylder rigtig meget i renoveringsprojekter, fordi der er en helt anden agenda. Det ligger i bæredygtighedsledelsen, og det er klart at den ressourcescreening og ressourcekortlægning, som er blevet nødvendig nu, også kommer til at fylde mere. Om det ligger i bæredygtighedsledelsen er nok forskelligt fra firma til firma i forhold til deres ydelser, men det er helt sikkert noget, der kommer til at fylde rigtig meget i arkitektydelser. Så hvis bæredygtighedsledelsen også ligger dér, hvilket den gør ved mange arkitektfirmaer, så bliver det en nødvendig del.
Peer Näthke: Can you elaborate on how your tools and reports visualize that information, and who they are aimed at? Is it also aimed at architects? Have they reached their final form?
Tim Tolman: Environmental consulting documentation primarily focuses on the demolition or renovation phases, which are not included in the same way in a traditional architectural process dictated by the Services Directive, i.e., from sketch, planning, design, and the entire journey to the approval by authorities and so on. The two things have been very disconnected from each other, and it will be necessary to rethink this completely. Everything we know from the demolition phase and the actors involved must become relevant to new actors, including architects and builders on the new project. Therefore, environmental consulting and the color codes for environmental risks - ‘red’, ‘yellow’, ‘green’ - and all the documentation must not only be used for waste management. It must also be used in such a way that architects and those who are to reuse can see the usefulness and the value of the knowledge. This is the basis for working with the visual communication of environmental data, so that there is more focus on providing input during the phases of the ‘Description of services for Building’ and becoming an input for those who design and perform calculations for buildings. I don’t think we’re there yet, but the point is that, historically, environmental consulting has been linked primarily to demolition projects and is therefore often quite disconnected from the construction project itself.
Lotte Bjerregaard Jensen: But maybe it’s more construction economists or businesspeople who make the decisions?
Tim Tolman: It’s very much about demolishing a building to build something new. In order to build the new, we have to demolish the old, and the two projects are disconnected from each other. The data that we or environmental consultants generate is generally located in the demolition section and is not activated by architects, engineers, or builders in the new project.
Lotte Bjerregaard Jensen: Could it fit in the sustainability management of the ‘Description of services’? Is it possible to draft contracts that can accommodate environmental screening expert assistance in the design phases?
Tim Tolman: It is more significant in renovation projects because there is a completely different agenda. It is clear that the resource screening and resource mapping that has become necessary now will also become more important. Whether it is part of sustainability management probably
Jeg mener ikke, at arkitekter også skal blive miljørådgivere, men det bliver vigtigere at inddrage data fra nedrivningsprojekter og bruge den i byggeprojektet. Det kommer til at fylde mere. Jeg kender for eksempel en arkitekt- en tidligere kollega, som har taget miljø- og ressourcekoordinator (MRK) -uddannelse, fordi han ved, det er nødvendigt at få den tekniske indsigt for at komme videre med genbrug, genanvendelse og transformation. Måske vil han ikke selv tage prøverne, men han forstår det og kan sætte sig ind i det. Han kan tage det synspunkt og så trække det med ind i hans daglige virke som arkitekt.
Peer Näthke: Er barriererne for større integration af data fra nedrivninger i arkitekters designproces mest kulturmæssige og historiske, eller er der også tale om nogle regulative og lovmæssige barrierer?
Tim Tolman: Jeg tror helt sikkert, der ligger noget forandringsledelse og noget kultur fordi det er en ny viden. Der var mange spørgsmål om miljødata, da vi arbejdede med designsprinten, som viser, at det er et helt nyt felt, som der ikke har været inddraget før i arkitektprocesserne. Den her forståelse af; hvad betyder de her analyser? Hvad betyder det, når et materiale er markeret som farvekode ’rød’, ’gul’ og ’grøn’? Selvfølgelig kender vi rigtig meget til asbest fra medierne, men der er også alle de andre udfordringer. Hvis jeg tager fat i dit ord ”kultur” – tror jeg, noget nyt skal med i processerne. Det betyder, at der også er ny faglig viden, som man ikke behøver at forstå 100%, men i hvert fald bør have kendskab til, og så kan man inddrage en aktør, der ved noget om det, i sin proces, hvis man gerne vil genbruge. Der er helt klart noget med regulativer i forhold til grænseværdierne, som fortsat mest er sat op til affaldshåndtering. Desuden fylder regulativet omkring ansvaret for genbrug og genanvendelse, rigtig meget, og er en ret kompleks situation. Jeg synes, det her projekt repræsenterer rigtig godt, at miljødata er ny viden og et nyt parameter, der skal tages med ind, hvis man vil genbruge og genanvende. Dér bliver arkitektens rolle mere og mere central. De skal ikke lære miljørådgivning, det er ikke målet, men bare man husker, at det er parametre, der skal håndteres. Det husker jeg også fra Lendager, hvor vi også skulle inddrage miljørådgivningsdelen i processerne hos arkitekten, og hvor vi sikrede os, at vi fik oparbejdet materialerne, så der også var grønt lys på miljørådgivningsdelen, ligesom der var på holdbarhed, ingeniørberegninger og levetid, og hvad det nu ellers er af risici.
Lotte Bjerregaard Jensen: Tror du, vi ser ind i en tid, hvor I kommer til at tage et færre fysiske prøver pga. statistik og ’machine learning’? Ser du sådan en bevægelse allerede nu i jeres arbejde?
Tim Tolman: Ikke i vores daglige virke, men vores stati-
varies from company to company in relation to their services, but it is definitely something that will become very important in architectural services. So, if sustainability management is also part of that, which it is at many architectural firms, then it will become a necessary part. I don’t think architects must become environmental consultants too, but it will become more important to incorporate data from demolition projects and use it in construction projects. For example, I know an architect - a former colleague - who has taken environmental and resource coordinator (MRC) training because he knows that technical insight is necessary to move forward with recycling, reuse, and transformation. He may not do the material tests himself, but he understands them. He can take that point of view and incorporate it into his daily work as an architect.
Peer Näthke: Are the barriers to greater integration of demolition data into architects’ design processes mostly cultural and historical, or are there also regulatory and legal barriers?
Tim Tolman: I definitely think there is some management and culture involved because it is new knowledge. There were many questions about environmental data when we were working on the design sprint, which shows that this is a completely new field that has not been included in architectural processes before. What do these analyses mean? What does it mean when a material is marked with the color codes ‘red’, ‘yellow’ or ‘green’? Of course, we know a lot about asbestos from the media, but there are also all the other challenges. In relation to ‘culture’ – I think something new needs to be included in the processes. This means that there is also new professional knowledge that you don’t need to understand 100%, but you should at least be aware of, and then you can involve someone who knows something about it in your process if you want to reuse more. There is clearly something about regulations in relation to threshold values, which are still mostly set up for waste management. In addition, the regulations surrounding responsibility for reuse and recycling are very extensive and quite complex. I think this project really well represents the fact that environmental data is new knowledge and is a new parameter that must be taken into account if you want to recycle and reuse. This is where the architect’s role becomes increasingly relevant. They don’t have to learn environmental consulting - that’s not the goal. They just need to remember that these are parameters that need to be taken into account. I remember this from Lendager, where we also had to incorporate environmental consulting into the architect’s processes, and where we made sure that we had the materials ready so that we also had the green light on the environmental consulting part, just as we did on durability, engineering calculations, service life, and whatever other risks there might be.
stik peger på, at grænseværdierne ofte ligger det samme sted, og udfaldene er meget det samme, men det er også et spørgsmål om myndighedernes krav. Lige nu skal vi tage de prøver. Jeg ved ikke, om vi har statistikken helt på plads endnu. Vi har rigtig mange projekter, men vi skal længere ud i fremtiden. Vi kan dog begynde at se en tendens til, at vi kender koncentrationerne på forhånd og har en ret god idé om, hvor det ligger henne, baseret på vores statistik. Det ville også gøre det hurtigere at få lavet screeningsdelen og vise, ikke bare at der kunne være potentiale for miljøkritiske materialer eller stoffer, men allerede derfra sige hvilket spænd det ligger i. Det kan give et praj om hvorvidt man kan genbruge materialerne eller ej, før man overhovedet inddrager analysehåndtering, for det koster jo også penge og tid at analysere.
Peer Näthke: Kan I mærke effekten af det nye affaldsdirektiv om selektiv nedrivning, der er trådt i kraft her til sommer? Kommer Milvas rolle til at ændre sig med det?
Tim Tolman: Vi kan mærke at det giver stor værdi for bygherrer, at vi kan tage hånd om begge dele i den samme proces, både på det økonomiske og proces- og tidsmæssige plan. Der er mange, der trækker hen til app’en af de to årsager. Den ene årsag er, at vi samler data om hele bygget i samme proces og metode, og den anden er, at vi har den her digitale rapport, hvor man kan trække dataen videre ind i nogle andre processer end bare nedrivningsprocessen. Dataen ligger digitalt, og det er nemmere at forholde sig til i et byggeprojekt. På den måde inddrager man materialet til genbrug og genanvendelse den vej.
Lotte Bjerregaard Jensen: Kan du sige mere om ideen med forslag til oparbejdning, som et lag man kan slå til i jeres app?
Tim Tolman: Første trin er, at mange aktører har fået den selektive nedrivningsplan i gang, og de er med til at skabe oplysninger og transparens i de rene fraktioner i en nedrivning. Derudover findes der allerede en god proces for f.eks. genbrug af mursten med aktører som Gamle Mursten der har fået lavet CE-mærkning. Samtidig ser vi at mange af materialerne, med den standardiserede nedrivningsplan, markeres til genanvendelse og ikke højere oppe på affaldshierarkiet. Trin to bliver, at få CE-mærkning på andre materialer også, så de, ligesom genbrugte mursten nu, kan komme højere op i affaldshierarkiet. Producenter bliver en væsentlig spiller for at få det til at lykkes. Der skal være en forretningsmulighed for dem, og dér skal der leveres noget data. Det er både miljørådgivningsdata og også NDT-data afhængigt af, hvilke materialer det er. Det kan også være nogle mere simple ting som; ”hvordan skrues de her plader af?” ”er de limet eller ikke limet?” – altså nogle meget banale
Lotte Bjerregaard Jensen: Do you think we are entering a time when you will be taking fewer physical samples due to statistics and machine learning? Are you already seeing this trend in your work?
Tim Tolman: Not in our daily work, but our statistics indicate that the threshold values are often the same and the outcomes are very similar. It is also a question of the authorities’ requirements. Right now, we have to do the tests. I don’t know if we have the statistics completely in place yet. We have a lot of projects, but we need to look further into the future. However, we are beginning to see a trend where we know the concentrations in advance and have a pretty good idea of where they are based on our statistics. This would also speed up the screening process and show not only that there could be potential for environmentally critical materials or substances, but also indicate the range in which they are found. This can give an indication of whether or not the materials can be reused before analysis is even considered, as analysis also costs money and time.
Peer Näthke: Can you feel the impact of the new Waste Directive regarding selective demolition, which became effective this summer? Will Milva’s role change as a result?
Tim Tolman: We can see that it is of great value to builders that we can take care of both parts in the same process, both in terms of economics and in terms of process and time. Many people are drawn to the app for two reasons. One reason is that we collect data on the entire building using the same process and method, and the other is that we have this digital report where you can transfer the data into processes other than just the demolition process. The data is stored digitally, which makes it easier to work with in a construction project. In this way, the material is incorporated for reuse and recycling.
Lotte Bjerregaard Jensen: Can you say more about the idea of a layer that can be activated in your app with ideas for material processing?
Tim Tolman: The first step is that many players in the industry have implemented the selective demolition plan, and they are helping create information and transparency about the clean fractions of a demolition. In addition, there is already a good process in place for, for example, the reuse of bricks, with players such as Gamle Mursten (Old Bricks) having obtained CE certification. At the same time, we see that many of the materials, with the standardized demolition plan, are marked for reuse and not higher up in the waste hierarchy. Step two will be to obtain CE certifications for other materials as well, so that, like reused bricks now, they can move higher up the waste hierarchy. Manufacturers will
spørgsmål. Det hele bygger op til, at man får et produkt- eller et dataark, hvor forskellige parametre, som producenterne kan give grønt lys, og at nedrivningen kan ske på den måde, den selektive nedrivning foreskriver. Vi tror virkelig at producenterne er afgørende at få inddraget producenterne for at få opbygget standardiseringer og CE-mærkning
Lotte Bjerregaard Jensen: Hvad er forskellen på at lave miljørådgivning til renovering og transformation og til nedrivning og genbrug?
Tim Tolman: Som udgangspunkt er det nogenlunde de samme prøver, der tages, men der ligger et anderledes arbejde, især i saneringen og saneringsplanen. F.eks. vil der ved en tagkonstruktion med et udnyttet loftsrum, med malede hanebåndsbjælker frit inde i rummet, være to forskellige processer afhængigt af, om man vil bevare det eller ikke bevare det, i forhold til at rense malingen af osv. Der vil ligge en anden proces i forhold til saneringen og miljøhåndteringen.
Men som udgangspunkt, vil selve kortlægningen være tæt på den samme.
Lotte Bjerregaard Jensen: I forhold til asbestpladerne på Listefabrikken – hvis det var en renovering, ville man så også skulle fjerne hele trækonstruktionen under?
Tim Tolman: Teknisk set vil man kunne rense det meste. Det er lige så meget et spørgsmål om økonomien og sikkerheden i det. Fordi GPM var et teoretisk projekt, tog vi blot en enkelt prøve, som var udslagsgivende. Man ville sætte en større undersøgelse i gang for at finde ud af, hvor stort omfanget er, ved forskellige målemetoder, og derfra lave en saneringsplan, eller lave en vurdering på, at man kunne bevare noget af træet med en eller anden form for rensning. Der findes metoder for at få asbesten væk, men det ville kræve en større forundersøgelse. Det er et spørgsmål om kroner og ører til sidst, og hvad det arbejde koster, der kræves for at rense, kontra, hvad myndighederne eller sagsbehandleren siger i forhold til at få nedrivningstilladelse, og hvor meget man skal gøre for at komme af med træet som affald. Hvis det er dyrt, kan en rensning være billigere. Så der er flere aktører på spil dér.
be key players in making this happen. There must be a business opportunity for them, and data must be provided. This includes both environmental advisory data and NDT data, depending on the materials involved. It can also be simpler things such as: “How do you unscrew these panels?” “Are they glued or not?” – in other words, some very mundane questions. It all builds up to getting a product or data sheet where different parameters can be given the green light by the manufacturers, and the demolition can take place in the way that is prescribed by selective demolition. We really believe that it is crucial to involve the manufacturers in order to establish standardization and CE certification.
Lotte Bjerregaard Jensen: What is the difference between providing environmental consulting for renovation and transformation versus for demolition and recycling?
Tim Tolman: As a starting point, the tests performed are roughly the same, but the work involved is different, especially in terms of remediation and the remediation plan. For example, in the case of a roof structure with a usable attic space, with painted collar beams exposed inside the room, there will be two different processes depending on whether you want to preserve it or not, in terms of cleaning the paint, etc. There will be a different process in terms of remediation and environmental management. But as a starting point, the mapping itself will be pretty much the same.
Lotte Bjerregaard Jensen: In relation to the asbestos roof at Listefabrikken – if it were a renovation, would you also have to remove the entire timber roof structure underneath?
Tim Tolman: Technically, you could clean most of it. It is just as much a question of economy and safety. Because GPM was a theoretical project, we only took a single sample, which was decisive. A larger study would be launched to determine the extent of the problem using various measurement methods, and from there, a cleaning plan would be drawn up, or an assessment would be made as to whether some of the wood could be preserved with some form of cleaning. There are methods for removing asbestos, but it would require a major preliminary study. Ultimately, it is a question of money and what the work required for cleaning costs, versus what the authorities say in relation to obtaining a demolition permit, and how much work is required to dispose of the wood as waste. If it is expensive, cleaning may be cheaper. There are many factors at play here.
Scanning i den omvendte designproces – Ringparken og Listefabrikken
Scanning in the reverse design process – Ringparken and Listefabrikken
Anders Kruse Aagaard, Niels Martin Larsen, Peer Tue Näthke
Teknologien for forskellige digitale scannings- og registreringsværktøjer er under hastig udvikling i to spor. På den ene side udvikles superpræcise og sofistikerede scanningsteknologier med henblik på nøjagtig opmåling og dokumentation af eksisterende forhold, udført og bearbejdet af specialister. På den anden side bliver mindre præcise teknologier gjort mere tilgængelige og brugervenlige for lægfolk. Førstnævnte tilbyder præcision og høj detaljering, men på bekostning af store, tunge modeller og mere træge arbejdsgange, mens sidstnævnte giver hurtige og mindre komplicerede resultater til gengæld for færre tilpasningsmuligheder og lavere præcision. De digitale, fotorealistiske scanninger har potentiale for at tilføje stor værdi i den omvendte designproces med transformation eller genbrug, men det kræver, at man er bevidst om, hvordan man vil bruge dem og hvorfor. Er det nødvendigt at scanne hele bygningen med høj præcision for at skabe en nøjagtig digital tvilling, eller er det nok at scanne enkelte bygningsdele, der er særligt interessante og frembringe lettere scanninger, som hurtigt kan sættes sammen som konceptuelle collager tidligt i designprocessen?
Design med genbrug kræver mere og andre typer data, end hvad arkitekter typisk arbejder med, men mere data er ikke altid bedre, hvis den ikke er organiseret rigtigt og har et klart formål. Tværtimod kan for tunge modeller hurtigt blive en belastning. Med Genbrug på Matriklen er vi begyndt at øve, hvordan scanninger af genbrugskomponenter kan indgå i designprocessen. Efterhånden som arkitekter får mere erfaring med scanningsværktøjer, kan de potentielt blive centrale i den omvendte designproces.
Digital registrering – muligheder og begrænsninger
Paletten af tilgængelige teknologier til at foretage digital registrering af eksisterende bygninger og materialer til genbrug udvides konstant. Dels bliver avancerede former for præcisions-LIDAR-scanning mere fleksible, intelligente og effektive, dels bliver alment tilgængelig teknologi og software, som for eksempel i mobiltelefoner, løbende forbedret og udviklet. For eksempel findes LIDAR-teknologi (infrarød laserscanning) i nyere iPhones, og apps til at danne 3-dimensionelle repræsentationer med realistiske teksturer ved hjælp af fotos og mobiltelefoners almindelige kamera bliver konstant bedre, og resultaterne kan sammenlignes med professionelle løsninger.
The technology for various digital scanning and recording tools is developing rapidly in two tracks. On one hand, super-precise and sophisticated scanning technologies are being developed for the accurate measurement and documentation of existing conditions, carried out and processed by specialists. On the other hand, less precise technologies are being made more accessible and user-friendly for laypeople. The former offer precision and high detail, but at the expense of large, heavy models and more cumbersome workflows, while the latter provide fast and less complicated results in exchange for fewer customization options and lower precision. Digital, photorealistic scans have the potential to add great value in the reverse design process of transformation or reuse, but this requires awareness of how and why they will be used. Is it necessary to scan the entire building with high precision to create an accurate digital twin, or is it enough to scan individual building parts that are particularly interesting and produce lighter scans that can be quickly assembled as conceptual collages early in the design process?
Designing with reuse requires more and different types of data than architects typically work with, but more data is not always better if it is not organized properly and doesn’t have a clear purpose. On the contrary, overly heavy models can quickly become a burden. With Reuse on Site, we have begun to practice how scans of reuse components can be incorporated into the design process. As architects gain more experience with scanning tools, they could potentially become central to the reverse design process.
Digital registration – opportunities and limitations
The range of technologies available for digitally registering existing buildings and materials for reuse is constantly expanding. On one hand, advanced forms of precision LIDAR scanning are becoming more flexible, intelligent, and efficient, and on the other hand, commonly available technology and software, such as in mobile phones, are being continuously improved and developed. For example, LIDAR technology (infrared laser scanning) is found in newer iPhones, and apps for creating 3-dimensional representations with realistic textures using photos and standard mobile phone cameras are constantly improving with results comparable to professional solutions.

Fig. 1: Case 1, Ringparken i Slagelse. Snit gennem punktsky. / Case 1, Ringparken in Slagelse. Cross-section through the point cloud.
En ambition med projektet Genbrug på Matriklen er at undersøge hvordan både avancerede scanningsteknologier og mere alment tilgængelige teknikker kan bringes i spil og bidrage til at arbejde med genanvendelse af byggematerialer. Professionelle LIDAR-scannere, såsom Faro Focus til større rumligheder og Faro Freestyle til objekter kan bruges til at registrere bygninger og objekter med meget høj præcision. Resultatet er primært højt opløste punktskyer, der giver mulighed for at definere afstande og positioner meget præcist, samtidig med, at de visuelt kan give en god idé om de rumligheder og former, der arbejdes med. En af de udfordringer der kan være med disse teknikker er, at de som regel indebærer meget store datamængder og filer, som både er besværlige at flytte rundt og dele, men også stiller store krav til computer-ressourcer såvel som erfaring med og engagement i at processere dataformaterne med dedikeret software. En anden udfordring er, at det ofte er udfordrende at oversætte punktskyerne til mere håndgribelige geometriske formater, der kan integreres i den almindelige arkitektfaglige designproces.
Teknikker, der baseres på fotogrammetri, evt. i kombination med små LIDAR-scannere i mobiltelefoner, har nogle fordele fremfor høj-præcisions LIDAR-scanningerne. For eksempel dannes typisk, på baggrund af fotoregistreringer, umiddelbart
One ambition of the Reuse on Site project is to investigate how both advanced scanning technologies and more commonly available techniques can be brought into play and contribute to the reuse of building materials. Professional LIDAR scanners, such as Faro Focus for larger spaces and Faro Freestyle for objects, can be used to record buildings and objects with very high precision. The result is primarily high-resolution point clouds that make it possible to define distances and positions very precisely, while also providing a good visual idea of the spaces and shapes being worked with. One of the challenges with these techniques is that they usually involve very large amounts of data and files, which are both difficult to move around and share, but also place high demands on computer resources as well as experience with and commitment to processing the data formats with dedicated software. Another challenge is that it is often difficult to translate point clouds into more tangible geometric formats that can be integrated into the standard architectural design process.
Techniques based on photogrammetry, possibly in combination with small LIDAR scanners in mobile phones, have some advantages over high-precision LIDAR scanning. For example, based on photo registrations, a coherent geometry of the scanned object is typically formed immediately, including the image of
en sammenhængende geometri af det scannede objekt inklusive billedet af overfladen repræsenteret. Med andre ord ses objektet som 3-dimensionelt og farvet med den tekstur der blev registreret med kameraet. Typisk kan man under selve scanningsprocessen også følge med i hvilke dele af objektet, der er scannet og hvilke dele, der mangler. Overordnet er processen fra scanning til et brugbart resultat kortere end LIDAR-scanninger med høj præcision. Samtidig er resultatet typisk en letvægtsrepræsentation i form af 3D-geometri med farver og tekstur i stedet for en ’tung’ punktsky. Til gengæld får man heller ikke samme præcision som med mere avancerede scannere, og det kan være svært at scanne større rumligheder og hele bygninger. Disse teknikker egner sig således bedst til at registrere dele af rum, overflader og objekter.
Teknologier og faggrupper
Der findes flere teknologier der kan benyttes til at registrere den virkelig verden som digital repræsentation. Grundlæggende findes der teknologier, som kræver berøring af det fysiske objekt men med en måleprobe (kontaktbaseret scanning) og teknologier der uden kontakt indfanger den virkelig verden. Indenfor sidstnævnte findes flere variationer hvor enten laser, foto eller lys bruges til at registrere former og geometrier af rum og objekter. De fleste teknologier har eksisteret i mange år og har typisk været målrettet enkelte specialiserede faggrupper og industrier. Eksempelvis har kontaktbaseret 3D-registrering typisk været anvendt til kvalitetskontrol pga. den høje præcision, mens laserregistrering (LIDAR) har været det foretrukne redskab for større emner såsom bygninger og byrum. Brugen af foto til dannelse af 3D-repræsentation, såkaldt fotogrammetri, har ofte være anvendt til situationer hvor en høj grad af farve og fotorealisme har været nødvendigt. De enkelte teknologier tilbyder forskellige variationer af præcision herunder både mål og farve, samt forskellige arbejdsgange og -hastigheder. Gældende for alle teknologier er, at registrering af data resulterer i en sky af millionvis af punkter hvor hvert punkt har en xyz-koordinat og ofte en farvekode.
Selvom de tilgængelige teknologier for 3D-scanning har været på markedet i årtier har de seneste år budt på nye muligheder. Dels har kraftigere computere og bedre software gjort det nemt at blande de forskellige teknologier, og dels har udvikling af mobile apparater (telefoner og tablets) gjort at både fotogrammetri og laserteknologi nu er til stede hos de fleste. Moderne telefoner kan nemt indfange 3D-repræsentation i relativ god kvalitet via ganske brugervenligt software. Det har gjort at 3D-repræsentation og punktskyer nu er et mere udbredt og velkendt medie. Mens den bagvedliggende hardware stadig tilbydes i specialiserede løsninger til særlige faggrupper så som landmålere, ingeniører eller designere/arkitekter, har bruger- og prisvenlige muligheder altså udbredt tilgængeligheden og kendskabet til 3D-scanning.
the surface represented. In other words, the object is seen as three-dimensional and colored with the texture that was recorded by the camera. Typically, during the scanning process itself, it is also possible to see which parts of the object have been scanned and which parts are missing. Overall, the process from scanning to a usable result is shorter than with high-precision LIDAR scans. At the same time, the result is typically a lightweight representation in the form of 3D geometry with colors and texture instead of a ‘heavy’ point cloud. On the other hand, you do not get the same precision as with more advanced scanners, and it can be difficult to scan larger spaces and entire buildings. These techniques are therefore best suited for recording parts of rooms, surfaces, and objects.
Technologies and Professions
There are several technologies that can be used to record the real world as a digital representation. Basically, there are technologies that require contact with the physical object using a measuring probe (contact-based scanning) and technologies that capture the real world without contact. Within the latter, there are several variations where either laser, photo, or light is used to record the shapes and geometries of spaces and objects. Most technologies have been around for many years and have typically been targeted at specific professional groups and industries. For example, contact-based 3D registration has typically been used for quality control due to its high precision, while laser registration (LIDAR) has been the preferred tool for larger objects such as buildings and urban spaces. The use of photos to create 3D representations, known as photogrammetry, has often been used in situations where a high degree of color and photorealism has been necessary. The individual technologies offer different variations in precision, including both measurement and color, as well as different workflows and speeds. Common to all technologies is that data registration results in a cloud of millions of points, each of which has an xyz coordinate and often a color code.
Although the available technologies for 3D scanning have been on the market for decades, recent years have brought new opportunities. On one hand, more powerful computers and better software have made it easy to combine the different technologies, and on the other hand, the development of mobile devices (phones and tablets) has made both photogrammetry and laser technology accessible to most people. Modern phones can easily capture 3D representations in relatively good quality using user-friendly software. This has made 3D representation and point clouds a more widespread and well-known medium. While the underlying hardware is still offered in specialized solutions for specific professional groups such as surveyors, engineers, or designers/architects, user-friendly and affordable options have increased the availability and awareness of 3D scanning.

Netop de seneste års udvikling har været udgangspunktet for 3D-scanningsstrategien i forskningsprojektet Genbrug på Matriklen. Arkitekter arbejder bredt med 3D-modellering på computer og benytter digitale data på forskelligvis i samspil med øvrige processer. Genbrug på Matriklen har benyttet denne diversitet til at blande forskellige teknologier i 3D-registerringsprocesserne. I praksis har det betydet at 3D-repræsentationer blev sammensat af både data fra professionel LIDAR-scanner, professional lysbaseret (structured light) scanner og fotogrammetri fra iPhone-kamera baseret på gratis software. Denne strategi tillader en afprøvning af forskellige arbejdsgange og 3D-repræsentation med forskellige præcisioner og visuelle udtryk.
Repræsentationsformer og formater
De forskellige scanningsmetoder har således forskellige former for relevans i designprocessen, og det kan være en god idé at overveje hvilken typer scanning der vil have størst værdi for den videre designproces forud for selve registreringen. Det kan samtidig være fordelagtigt at opdele registreringen i faser, sådan at de tidlige registreringer retter sig mod de mere overordnede beslutninger i designprocessen, hvilket også kan indebære lokale scanninger af specifikke materialer. Der planlægges så efterfølgende registreringer, der dels skal hjælpe med at opklare evt. usikkerheder og spørgsmål som opstår i den tidlige designproces, og ellers retter sig mod egentlig implementering af det workflow for genbrug eller transformation, der er blevet
2: Case 2, Listefabrikken. Scanning af blåmalet stolpe. / Case 2, Listefabrikken. Scanning of a blue-painted post.
Recent developments have been the starting point for the 3D scanning strategy in the research project Reuse on Site. Architects work extensively with 3D modeling on computers and use digital data in various ways in interaction with other processes. Reuse on Site has used this diversity to combine different technologies in the 3D registration processes. In practice, this has meant that 3D representations were composed of data from professional LIDAR scanners, professional light-based (structured light) scanners, and photogrammetry from iPhone cameras based on free software. This strategy allows for the testing of different workflows and 3D representations with different levels of precision and visual expression.
Representation forms and formats
The different scanning methods thus have different forms of relevance in the design process, and it may be a good idea to consider which types of scanning will be of greatest value to the further design process prior to the actual registration. It may also be advantageous to divide the registration into phases, so that the early registrations focus on the more general decisions in the design process, which may also involve local scans of specific materials. Subsequent registrations are then planned, partly to help clarify any uncertainties and questions that arise early in the design process, and partly to focus on the actual implementation of the workflow for reuse or transformation that has been decided upon. An example of this is the scanning of some blue-painted wooden structures in some warehouse
Fig.
besluttet. Et eksempel på dette, er scanningen af nogle blåmalede trækonstruktioner i nogle lagerbygninger i Case 2, Listefabrikken, som ses ovenfor (fig. 2). Ønsket om at kunne bruge søjlernes konkrete geometrier og overflader i afprøvningen af designløsninger opstod således i forbindelse med de tidlige designundersøgelser, foretaget af de fem arkitektfirmaer, der var involveret i Genbrug på Matriklen. På samme vis blev scanninger af spærkonstruktionerne trukket ud, så deres designpotentiale kunne afprøves mere konkret, som vist nedenfor (fig. 3).
De mere nøjagtige scanningsteknologier har som nævnt særlig relevans i tilfælde hvor de præcise dimensioner af de eksisterende konstruktioner er afgørende, og denne information ikke er tilgængelig. I tilfælde hvor der ikke findes tegninger eller 3D-modeller af de eksisterende forhold kan det også være relevant at foretage komplet 3D-scanning for simpelthen at have et grundlag at arbejde ud fra. Traditionelt ville eksisterende bygninger således blive opmålt med håndkraft, altså målebånd og vaterpas, hvor størstedelen af dette arbejde i dag kan udføres på baggrund af 3D-scanningerne på kontoret. Som regel er det dog ikke helt ligetil at trække de relevante tegninger ud af en punktsky, da det kræver en person, der udvælger de korrekte målepunkter og forbindelser. Automatisering af dette arbejde er dog et forskningsfelt under hastig udvikling, og der findes efterhånden features i 3D-modelleringssoftware med det formål, selvom de ikke fungerer optimalt i alle sammenhænge endnu. I dette projekt var ambitionen, snarere end at opnå maksimal præcision, at finde en balance imellem værdifuld information via scanning og et workflow, der er så let som muligt. Hovedkonklusionen, som især kan ses i Listefabrikken, kan siges at være, at det kan være effektivt at udvælge hvilke dele af de eksisterende forhold, der har særlig interesse og så fokusere scanningsopgaverne i den retning. Derved opnås både en stærkt reduceret tid med selve scannings- og efterbearbejdningsprocesserne, og samtidig et overskueligt datasæt af hvilke materialer, der er tilgængelige.
Anvendelse i designsprinten og potentiale
Hvordan genbrugsmaterialer og -komponenter gennem visuelle repræsentationsformater, herunder mesh-overflader baseret på 3D-scanninger, kan understøtte beslutninger i designprocessen har været et af Genbrug på Matriklens underliggende undersøgelsesfelter. Hvor den største andel af den information, der registreres for genbrugsmaterialer består af numerisk data relateret til størrelse, vægt, bæreevne, skader og fugt, forefindes der ofte relativt begrænset og usofistikeret information om deres visuelle, æstetiske karakteristika. For den arkitektoniske praksis kan sidstnævnte dog være særligt relevant, da en af gevinsterne ved genbrug netop er materialernes særlige karakter, brugstegn, historie og lignende ’gaver’, som ikke kan opnås med virgine materialer. Projektets forsøg med at integrere mere visuel information om de høstede materialer i den omvendte designproces gennem teksturerede overflader fra scanninger
buildings in Case 2, Listefabrikken, as seen above (Fig. 2). The desire to use the specific geometries and surfaces of the columns in testing design solutions thus arose in connection with the early design studies carried out by the five architectural firms involved in Reuse on Site. Similarly, scans of the truss structures were extracted so that their design potential could be tested more specifically, as shown below (Fig. 3).
As mentioned, the more accurate scanning technologies are particularly relevant in cases where the precise dimensions of the existing structures are crucial and this information is not available. In cases where there are no drawings or 3D models of the existing conditions, it may also be relevant to perform a complete 3D scan simply to have a basis from which to work. Traditionally, existing buildings would be measured manually, i.e., with tape measures and spirit levels, but today most of this work can be done in the office based on 3D scans. However, it is not usually straightforward to extract the relevant drawings from a point cloud, as it requires someone to select the correct measurement points and connections. However, the automation of this work is a rapidly developing field of research, and features are gradually being added to 3D modeling software for this purpose, although they do not yet work optimally in all contexts. In this project, the ambition was not so much to achieve maximum precision as to find a balance between finding valuable information via scanning and a workflow that is as easy as possible. The main conclusion, which is particularly evident in Listefabrikken, is that it can be effective to select which parts of the existing conditions are of particular interest and then focus the scanning tasks in that direction. This results in both a significant reduction in the time spent on the scanning and post-processing processes themselves and, at the same time, a manageable dataset of the materials that are available.
Use in the design sprint and potential
How reused materials and components can support decisions in the design process through visual representation formats, including mesh surfaces based on 3D scans, has been one of the underlying areas of research of Reuse on Site. While the majority of the information recorded for reused materials consists of numerical data related to size, weight, load-bearing capacity, damage, and moisture, there is often relatively limited and unsophisticated information about their visual and aesthetic characteristics. For architectural practice, however, the latter may be particularly relevant, as one of the benefits of reuse is precisely the special character of the materials, signs of use, history, and similar ‘gifts’ that cannot be achieved with virgin materials. The project’s attempt to integrate more visual information about the harvested materials into the reverse design process through textured surfaces from scans therefore builds on the hypothesis that they can create value for architects and help inform design decisions and ultimately enhance the architectural quality of reuse in construction.

bygger derfor på en hypotese om, at de kan skabe værdi for arkitekterne og hjælpe med at informere designbeslutninger og i sidste ende højne den arkitektoniske kvalitet ved byggeri med genbrug.
I projektets første iteration var der hovedsageligt fokus på opmåling og dokumentation af eksisterende forhold ved hjælp af højpræcisionsscanninger med LIDAR-teknologi. En forholdsvis udetaljeret Revit-model for Ringparken var lavet på baggrund af en 3D-scanning udført af ingeniørfirmaet Wissenberg. Imidlertid dækkede den kun den overordnede geometri og havde ikke information om teknisk opbygning, komponenter og materialer. Som supplement gennemførtes LIDAR-scanninger af opgang og eksteriør/facade, som tilsammen dannede baggrund for en mere detaljeret 3D-model. De supplerende LIDAR-scanninger blev udført med 3D-korlægningsservicen Matterport, som på den ene side giver høj præcision og detaljeringsgrad, men på den anden fungerer som et lukket system, der som udgangspunkt ikke tillader eksport af data i forskellige bearbejdelige formater. Derfor var den videre anvendelse af LIDAR-scanningerne fra Ringparken begrænset. I forlængelse heraf påpegede Mikkel Schlesinger (CEBRA), at informationer fra 3D-scanningen om bygningsdelenes overflader, ville gøre det attraktivt for arkitekter at kunne arbejde med den unikke karakter, komponenter har fået af at være brugt (f.eks. graffiti, en reminiscens fra en bemaling, flisebeklædning etc.), og bekræftede dermed projektets underliggende tese om interessen og behovet for dette.
Baseret på erfaringerne fra første iteration, blev der i ved anden case (Listefabrikken), som beskrevet i forrige afsnit, udført færre, men nøjere udvalgte scanninger. Da der for Listefabrikken var muligt at finde mere tegningsmateriale, og bygningerne i
Fig. 3: Case 2, Listefabrikken. Del af tagkonstruktionen skåret ud af større scanning af bygningen. / Case 2, Listefabrikken. Part of the roof structure cut out from a larger scan of the building.
The first iteration of the project focused mainly on surveying and documenting existing conditions using high-precision scans with LIDAR technology. A relatively detailed Revit model of Ringparken was created based on a 3D scan by the engineering firm Wissenberg. However, it only covered the overall geometry and did not include information about technical construction, components, and materials. As a supplement, LIDAR scans of the stairwell and exterior/facade were carried out, which together formed the data basis for a more detailed 3D model. The supplementary LIDAR scans were performed using the 3D mapping service Matterport, which on one hand provides high precision and detail, but on the other hand functions as a closed system that does not allow data to be exported in various editable formats. Therefore, further use of the LIDAR scans from Ringparken was limited. In relation to this, Mikkel Schlesinger (CEBRA) pointed out that information from the 3D scans of the surfaces of the building components would make it attractive for architects to work with the unique character that the components have acquired from being used (e.g., graffiti, traces of paint, tile cladding, etc.), thus confirming the project’s underlying thesis about the interest in and need for this.
Based on the experiences from the first iteration, fewer but more carefully selected scans were performed in the second case (Listefabrikken), as described in the previous section. As it was possible to find more drawing material for Listefabrikken, and the buildings were also more easily accessible, the focus here was more on recording surfaces and visual characteristics rather than precision for measurement purposes. At Listefabrikken, the registrations were made with different scanning tools, this time all with the possibility of processing their output. Faro Focus was used to register exterior surfaces and larger indoor spaces, while Faro Freestyle was used to register

øvrigt nemmere kunne tilgås, fokuseredes der her i højere grad på registreringen af overflader og visuelle karakteristika frem for præcision for opmålingsformål. Ved Listefabrikken blev registreringerne foretaget med forskellige scanningsværktøjer, denne gang alle med mulighed for bearbejdning af deres output. Med Faro Focus registreredes udvendige overflader og større indendørsrum og Faro Freestyle blev brugt til registrering af individuelle bygningskomponenter og konstruktionsudsnit. Der blev desuden foretaget enkelte scanninger med en iPad, for at afprøve mere brugervenlige og tilgængelige værktøjer.
De bearbejdede scanninger eksporteredes som mesh-overflader og blev inkluderet som separate lag i den samlede, overleverede 3D-model (nærmere beskrevet i det efterfølgende kapitel om sammensætning og repræsentation af information). Undervejs blev det overvejet, om overfladeteksturene fra scanningerne kunne overføres til de mere præcise, modulerede NURB-geometrier af bygningskomponenterne og dermed integreres direkte i 3D-modellen frem for som separat lag. Der blev dog ikke fundet en løsning for dette, som ikke ville være enormt arbejdskrævende.
På trods af den øgede opmærksomhed på scanningsdata som æstetisk værktøj i anden iteration, blev overfladeregistreringerne aldrig for alvor omfavnet eller taget i brug af tegnestuerne i designsprinten. Det kan der være flere grunde til.
Før det første har det sandsynligvis haft en negativ påvirkning, at informationen har ligget i et lag for sig, der nemt kan overses. Det kunne måske have været undgået, hvis det var lykkedes at transponere teksturerne til de geometriske komponentmodeller. Flere af tegnestuerne lagde allerede tidligt i designprocessen selv generiske teksturer på modellerne for hurtigt at teste
Fig. 4: Tekstureret mesh fra scanninger tilføjet som separat lag i 3D-modellen / Textured mesh from scans added as a separate layer in the 3D model
individual building components and construction sections. In addition, a few scans were made with an iPad to test more user-friendly and accessible tools.
The processed scans were exported as mesh surfaces and included as separate layers in the overall 3D model that was delivered (described in more detail in the following chapter on the composition and representation of information). During the process, it was considered whether the surface textures from the scans could be transferred to the more precise, modelled NURB geometries of the building components and thus integrated directly into the 3D model rather than as a separate layer. However, no solution was found for this that would not be extremely labor-intensive.
Despite the increased focus on scan data as an aesthetic tool in the second iteration, the surface registrations were never really embraced or used by the design studios in the design sprint. There may be several reasons for this.
Firstly, the fact that the information was stored in a separate layer that could easily be overlooked probably had a negative impact. This could perhaps have been avoided if the textures had been successfully transposed to the geometric component models. Early in the design process, several of the architectural firms added generic textures to the models in order to quickly test moods and material compositions. Here, the registrations of the actual surfaces could probably have added value.
Secondly, the participating architects’ lack of experience with 3D scanning as a design tool was probably a significant barrier.


Fig. 5-6: Fotocollager som tidlige design- og konceptskitser.
Tv. Karen Emilie Mølgaard Rasmussen (Anna Mette Exner Arkitektur)
Th. Mathilde Strandberg Hallin (SLETH)
Photo collages as early design and concept sketches.
Left: Karen Emilie Mølgaard Rasmussen (Anna Mette Exner Arkitektur)
Right: Mathilde Strandberg Hallin (SLETH)
stemninger og materialesammensætninger. Her kunne registreringerne af de faktiske overflader formodentlig have tilføjet værdi.
For det andet har de deltagende arkitekters manglende erfaring med 3D-scanninger som designredskab sandsynligvis været en væsentlig barriere.
I den sammenhæng bør det nævnes, at visuel information om bygningernes overflader i andre formater faktisk spillede en betydelig rolle i flere af tegnestuernes designprocesser, hvor for eksempel Mathilde Strandberg Hallin (SLETH), Karen Emilie Mølgaard Rasmussen (Anna Mette Exner Arkitektur) og Karen Helene Brobakken (Arkitema) brugte fotocollager, både tidligt i processen med hurtige, stemningsfyldte skitsecollager af fotos fra Listefabrikken, og senere til visualisering i opstalter af facader med materialitet. Det er altså tydeligt, at den visuelle information, som også er indlejret i 3D-scanningerne, kan være et værdifuldt element i den omvendte designproces, men at der fortsat er behov for at øve og afprøve hvor, hvornår og til hvilke formål den finder anvendelse. Mens nogle scanningsværktøjer tilbyder stor præcision med henblik på dokumentation og opmåling, giver andre adgang til agile arbejdsgange, hvor hurtige scanninger tidligt i designprocessen kan sættes sammen i skitsecollager, der afspejler de genbrugte komponenters særlige karakteristika.
In this context, it should be mentioned that visual information about the surfaces of the buildings in other formats actually played a significant role in the design processes of several of the architectural firms, where, for example, Mathilde Strandberg Hallin (SLETH), Karen Emilie Mølgaard Rasmussen (Anna Mette Exner Arkitektur), and Karen Helene Brobakken (Arkitema) used photo collages, both early in the process with quick, atmospheric sketch collages using photos from Listefabrikken, and later for visualization in elevations of facades with materiality. It is therefore clear that the visual information embedded in the 3D scans can be a valuable element in the reverse design process, but that there is still a need to practice and test where, when, and for what purposes it can be used. While some scanning tools offer high precision for documentation and measurement, others provide access to agile workflows where quick scans early in the design process can be assembled into sketch collages that reflect the specific characteristics of the reused components.
Repræsentationsstrategier: Den digitale model som databeholder og designredskab
Oskar Holst Kurtzweil, Peer Tue Näthke, Jon Andersen
Designprocesser er formgivningsprocesser der er kendetegnet ved, at de medier der anvendes undervejs i processen ‘taler tilbage’ og indgår i dialog med de udførende formgivere.1
Repræsentationsværktøjer er aldrig neutrale, og enhver måde at tælle, udvælge, opstille, tegne og rendere eksisterende materialer på vil få indflydelse på designprocessens forløb.2 Når cirkulære formgivningsprocesser direkte afhænger af tilgængeligheden og tilstanden af eksisterende materialeforekomster, får måden hvorpå de forekomster kvantificeres og repræsenteres stor betydning.
Den moderne konventionelle lineære designproces kan diagrammatisk opstilles som;
Idé > Form > Stof
I den omvendte designproces byttes der om på placeringen af stof og ide:
Stof > Form > Idé
Denne subtile ombytning har direkte implikationer for de involverede formgivningsproffesisoner og de arbejdsgange der historisk og kulturelt har formet formgivningsfagenes moderne teori og praksis: -Fra ’tabula rasa’ og et vidensgrundlag funderet i materialers generelle egenskaber til ’tabula plena’ og et vidensgrundlag, der helt konkret er bundet op på det materiale, der allerede udgør den eksisterende bygningsmasse - fra det universelle til det partikulære - fra globale forsyningskæder til lokale gensalgsvirksomheder - fra en formgivningsproces informeret af materialeproducenternes standardiserede certificeringer og digitale 3D-modeller hentet fra deres seneste webbaserede produktkataloger til designprocesser informeret af NDT-kvalificerede gisninger om et eksisterende træspærs bæreevne efter 25 års anvendelse.
Repræsentationstrategier i den omvendte designproces
Et gennemgående tema gennem arbejdet i projektets to iterationer har kredset om implikationerne af forskellige repræsentationsstrategier i den omvendte designproces. Vil forskellige repræsentationsstrategier have indflydelse på den efterfølgende
Strategies of representation: The digital model as a holder of
data and a design tool
Design processes are creative processes characterized by the fact that the media used during the process ‘talk back’ and engage in dialogue with the designers.1
Representation tools are never neutral, and any way of counting, selecting, arranging, drawing, and rendering existing materials will influence the course of the design process.2 When circular design processes depend directly on the availability and condition of existing materials, the significance of how such materials are quantified and represented becomes essential.
The modern conventional linear design process can be diagrammatically represented as such:
Idea > Form > Material
In the reverse design process, the placement of material and idea are reversed:
Material > Form > Idea
This subtle reversal has direct implications for the design professions involved and the workflows that have historically and culturally shaped the modern theory and practice of design: -From ‘tabula rasa’ and a knowledge base founded on the general properties of materials to ‘tabula plena’ and a knowledge base that is specifically tied to the material that already constitutes the existing building stock - from the universal to the particular - from global supply chains to local resellers - from a design process informed by material manufacturers’ standardized certifications and digital 3D models taken from their latest web-based product catalogs to design processes informed by NDT-qualified estimates of the load-bearing capacity of an existing wooden truss after 25 years of use.
Representation strategies in the reverse design process:
A recurring theme throughout the work in the project’s two iterations has revolved around the implications of different representation strategies in the reverse design process. Will different representation strategies influence the subsequent design process? Do the different strategies affect the scope of possibilities for the designers involved?

designproces? Påvirker de forskellige strategier mulighedsrummet for de involverede formgivere?
Under arbejdet med Genbrug på Matriklen, er vi stødt på eksempler, der på forskellig vis kategoriserer og visuelt præsenterer det arkiv af byggematerialer, bygningskomponenter eller hele bygningsdele, der tænkes at indgå i nye konstruktioner efterfølgende. Repræsentationsstrategierne er forskellige i deres valg af informationsmængder, datatyper og teknik.
I følgende afsnit beskrives en række af de forskellige repræsentationsstrategier. Der beskrives hvilken type data der er fokuseret på, hvordan dataen er visuelt bearbejdet og præsenteret, samt hvilken teknologi der er anvendt til arbejdet.
1. Excel-core (og PDF-fatigue)
Sammenlignet med de sofistikerede værktøjer, strømlinede processer og BIM-integrerede informationsmodeller, som bruges i de fleste konventionelle byggeprojekter, befinder organiseringen af information vedrørende genbrugsmaterialer og cirkulært byggeri sig fortsat på et relativt primitivt stadie. Ressourcekortlægninger og miljøscreeningsdata er fortsat mest rettet mod affaldshåndtering, hvilket afspejles i måden information om materialer fra nedrivningsopgaver organiseres på. For en arkitektonisk designproces indeholder en typisk ressourcekortlægning uhensigtsmæssigt få og upræcise informationer om de enkelte materialer. Det vil typisk være begrænset til en identifikationskode, navn, antal, dimensioner (målt i meter), omtrente placering, evt. resultater fra en miljøscreening

Fig. 1-2: Typiske eksempler på repræsentation af data fra ressourcescreening i hhv. pdf- og regnearksformat. / Typical examples of data representation from resource screening in PDF and spreadsheet formats, respectively.
While working with Reuse on Site, we have encountered examples that categorize and visually present the archive of building materials, building components, or entire building parts that are intended to be incorporated into new constructions in different ways. The representation strategies differ in their choice of information quantities, data types, and techniques.
The following section describes a number of different representation strategies. It describes the type of data that is focused on, how the data is visually processed and presented, and the technology used for the work.
1. Excel core (and PDF fatigue)
Compared to the sophisticated tools, streamlined processes, and BIM-integrated information models used in most conventional construction projects, the organization of information regarding reused materials and circular construction remains at a relatively primitive stage. Resource mapping and environmental screening data continue to be primarily focused on waste management, which is reflected in the way that information about materials from demolition projects is organized. For an architectural design process, a typical resource map contains inappropriately little and imprecise information about the individual materials. It will typically be limited to an identification code, name, quantity, dimensions (measured in meters), approximate location, any results from an environmental screening (if one has been carried out), and possibly also a picture. The information is often collected in an Excel spreadsheet or PDF document.

Fig. 3: Tegning af ’Inventory’. Flores & Prats / ‘Inventory’ drawing. Flores & Prats.


Fig. 4-5: Aksonometrisk koncepttegning for transformationen af Sala Beckett. Flores & Prats. Interiørfoto fra Sala Becket. Flores & Prats. / Axonometric drawing for the transformation of Sala Beckett. Flores & Prats. Interior photo from Sala Beckett. Flores & Prats
(hvis en sådan er foretaget) og muligvis også et billede, og informationen samles ofte i et Excel- og PDF-dokument.
I takt med stigende efterspørgsel og behov for data, samt initiativer for standardisering og organisering af den (herunder materialepasinitiativer som f.eks. BAMB3) bliver holdere af kvalitativ information essentielle. Her bliver det vigtigt, at information samles i maskinlæsbare, åbne dataformater (som JSON, XML og CSV), der muliggør brug af Application Programming Interfaces (API) og kobling til f.eks. BIM, samt udveksling af data mellem aktører, software og computerenheder.4
2. Den Analoge Opmåling
Den spanske tegnestue Flores og Prats har under deres arbejde med Sala Beckett repræsenteret eksisterende bygningskomponenter i analog tegning. Tegningen til venstre viser døre fra den eksisterende bygning, der er blevet opmålt og gengivet som deskriptiv geometri i opstalt, snit og aksonometri. Opmålingsarbejdet er udført i et højt detaljeringsniveau og de enkelte døres geometriske detaljer, farver og overfladestruktur er forsøgt gengivet.
”We wanted to keep and reuse all the elements we could turn to account from the abandoned building: mosaic tiles, doors, windows, wainscoting, lamps, ceiling roses … In order to identify them all, and to know exactly what we had, we spent three months or so in the abandoned building, gathering information, taking measurements, and drawing everything that was still there in great detail: every melding, flashing, and mullion, every design on the tiles, it all interested us alike”.5
With an increasing demand and need for data, as well as initiatives for standardization and organization (including material passport initiatives such as BAMB3), holders of qualitative information are becoming essential. Here, it is important that information is collected in machine-readable, open data formats (such as JSON, XML, and CSV) that enable the use of Application Programming Interfaces (APIs) and linking to, for example, BIM, as well as the exchange of data between actors, software, and computer devices.4
2. Analog surveying
During their work on Sala Beckett, the Spanish architectural firm Flores and Prats represented existing building components in analog drawings. The drawing on the left shows doors from the existing building that have been measured and reproduced as descriptive geometry in elevation, section, and axonometric projections. The measurement work was carried out at a high level of detail, and an attempt was made to reproduce the geometric details, colors, and surface structure of each door.
“We wanted to keep and reuse all the elements we could turn to account from the abandoned building: mosaic tiles, doors, windows, wainscoting, lamps, ceiling roses... In order to identify them all, and to know exactly what we had, we spent three months or so in the abandoned building, gathering information, taking measurements, and drawing everything that was still there in great detail: every melding, flashing, and mullion, every design on the tiles, it all interested us alike”.5

Tegningsmaterialet af dørene og de øvrige bygningskomponenter der blev registreret i de første måneder af projektet, bliver af tegnestuen kaldt ‘Inventaret’. ‘Inventaret’ har dannet grundlag for fysiske modeller udført undervejs i designprocessen og været et væsentligt værktøj til at give de eksisterende bygningskomponenter værdi og kommunikerer denne værdisætning til de øvrige aktører i formgivningsprocessen.
”The inventory would be a way of making the contractor understand their importance in the future project”.6
Oversættelsen af bygningskomponenter til fysiske modeller i en nedskaleret udgave er også illustreret hos den belgiske kunstner Philippe De Goberts værkserie med titlen ’toolboxes’. Her har kunstneren udført modeller af eksisterende atelierrum, og efterfølgende adskilt og arkiveret rummets konstruktive elementer i en, til formålet, snedkereret opbevaringskasse. De fysiske byggeklodser kan i hænderne på fremtidige formgivere enten genetablere det oprindelige rum, eller indgår i nye rumlige konstruktioner evt. i sammenstilling med andre byggeklodser.
3. Zirkular - ‘Den schweiziske model’
Det schweiziske rådgivningskontor Zirkular blev etableret i 2020 som en afstikker af Baubüro. Zirkular arbejder med cirkulære byggeprocesser med speciale i, hvad de selv beskriver som ‘bygningsanalyse og komponentjagt’ (ressourcekortlægning). Firmaet var involveret i konkurrenceoplæg til bl.a. Basel Pavillon (2022), samt udførelsen af et bygningskomponentkatalog for IBS. Begge cases anvender et digitalt komponentkatalog som repræsentationsstrategi. Kataloget er oprettet som en hjemmeside, hvor byggematerialer og komponenter fra
6: Philippe De Gobert, L. Wittgenstein, Boite à outils / Toolbox n° 1, 22x45x33 cm, 2008.
The drawings of the doors and other building components that were recorded in the first months of the project are referred to by the architectural firm as ‘Inventaret’ (The Inventory). ‘The Inventory’ formed the basis for physical models created during the design process and was an essential tool for adding value to the existing building components and for communicating this value to the other participants in the design process.
“The inventory would be a way of making the contractor understand their importance in the future project”.6
The translation of building components into physical models in a scaled-down version is also illustrated in Belgian artist Philippe De Gobert’s series of works entitled ‘toolboxes’. Here, the artist has created models of existing studio spaces and subsequently separated and archived the structural elements of the space in a storage box specially crafted for this purpose. In the hands of future designers, the physical building blocks can either re-establish the original space or be incorporated into new spatial constructions, possibly in combination with other building blocks.
3. Zirkular – ‘The Swiss model’
The Swiss consulting firm Zirkular was established in 2020 as an offshoot of Baubüro. Zirkular works with circular construction processes, specializing in what they themselves describe as ‘building analysis and component hunting’ (resource mapping). The company was involved in competition proposals for, among others, the Basel Pavilion (2022), as well as the creation of a building component catalog for IBS. Both cases use a digital component catalog as a representation strategy. The catalog is set up as a website where building materials and components
Fig.


Fig. 7-8: Bauteilkatalog © Basel Pavillon 2022. (Screenshots fra projektets hjemmeside, oktober 2025). / Component catalog © Basel Pavilion 2022. (Screenshots from the project webpage, October 2025).
nedrivningsprojekter fra Basel er registreret og samlet. Data for det enkelte komponent er gengivet under kategorierne: ‘Beskrivelse’, ‘Dimensioner’, ’Mængder’ og ‘CO2-udledninger’. Dataen er suppleret med fotos af komponentet fra dets eksisterende placering i det nedrivningstruede byggeri, og der kan i nogle tilfælde downloades en CAD-fil der gengiver komponentens geometri. Under ‘beskrivelse’ kan der fremgå yderligere tekstinformation vedrørende materialets tilstand eller særlige opmærksomhedspunkter i forbindelse med genanvendelse. Et eksempel på tekstdata fra kategorien ’beskrivelse’ er:
• INP 300 steel girders.
• Gray coating and bolted connections. Limited quantity.
• If further use is desired, have a civil engineer assess the design.
• Check the plan and profiles on-site.
• Observe “steeldoc 02/23 - Reuse: Reusing Steel Components.”
• Check the coating for harmful substances.
• Total quantity: 5 pieces.
• Total linear meters: 38.75 m.
Hjemmesiden er designet som et digitalt supermarked, en webshop, hvor brugeren kan tilgå produktoplysninger, tekst og billeder og tilføje de oplistede komponenter til sin ‘kurv’.
4. Digital asset libraries.
Det svenske firma Quixel lancerede i 2011 deres ‘Megascan asset library’. Megascan-biblioteket er et digitalt arkiv af fotogrammetrisk producerede 3D-modeller, der anvendes i film-, spil- og visualiseringsindustrien. Modellerne er mesh-baserede
from demolition projects in Basel are registered and collected. Data for each component is reproduced under the categories: ‘Description’, ‘Dimensions’, ‘Quantities’, and ‘CO2 emissions’. The data is supplemented with photos of the component from its existing location in the building threatened with demolition, and in some cases a CAD file can be downloaded that reproduces the component’s geometry. Under ‘Description’, additional text information may be provided regarding the condition of the material or special points of attention in connection with reuse. An example of text data from the ‘Description’ category is:
• INP 300 steel girders.
• Gray coating and bolted connections. Limited quantity.
• If further use is desired, have a civil engineer assess the design.
• Check the plan and profiles on-site.
• Observe “steeldoc 02/23 - Reuse: Reusing Steel Components.”
• Check the coating for harmful substances.
• Total quantity: 5 pieces.
• Total linear meters: 38.75 m.
The website is designed as a digital supermarket, a web shop, where users can access product information, text, and images, and add the listed components to their ‘basket’.
4. Digital asset libraries
In 2011, the Swedish company Quixel launched its ‘Megascan asset library’. The Megascan library is a digital archive of photogrammetrically produced 3D models used in the film, gaming, and visualization industries. The models are mesh-based and,

og indeholder foruden geometrisk data også data i form af en række ‘texture maps’ der anvendes indenfor PBR-workflows. PBR-kalibrerede teksturer gør det muligt at undersøge hvordan de scannede materialer og bygningskomponenter tager sig ud under forskellige lysforhold og i andre materielle kompositioner. Materialer og komponenter fra eksisterende bygninger kan således indgå i matematisk korrekte simuleringer, der kan anvendes i arkitektoniske forstudier af de stoflige virkninger, der vil opstå i mødet mellem lys, form og materie. Digital asset libraries mindsker den tidskrævende proces med at producere 3d modeller af bygningskomponenter på baggrund af opmålingsarbejde og 3D-scans. De realistiske gengivelser af materialeoverfladernes struktur, farve og særegenhed giver formgiveren den bedst mulige information mht. den videre designproces. De digitale biblioteker er opført som webtjenester hvor hver enkelt bygningskomponent er indekseret og kan downloades i forskellige filformater (OBJ, 3DS, FLB osv.). Idet de enkelte bygningsdele er digitaliseret med henblik på at indgå i digitale miljøer til anvendelse i spil og filmindustrien, er der ikke gengivet data vedr. vægt, mængde, eller materialeegenskaber. Fokus kan her siges at være på ydre og ikke indre kvaliteter.
5. ‘Digital knolling’
I 2020 var titlen på udstillingen i den japanske pavillon ved Venedig Biennalen; ‘Co-ownership of Action: Trajectories of Elements’. Udstillingen, der var kurateret af Kozo Kadowaki, forsøgte at synliggøre bevægelsen af bygningsmateriale gennem helt konkret at adskille et gammelt træhus i Tokyo og transportere det til Venedig. Det oprindelige hus, i sin rumlige og konstruktive helhed, blev først 3D-(laser)scannet og derefter adskilt. De enkelte bygningskomponenter blev derefter fragtet
Fig. 9: Udsnit fra 3D asset-biblioteket fab.com, hvor Quixel i mellemtiden er blevet indoptaget (Screenshot, oktober 2025) / Excerpt from the 3D asset library fab.com, where Quixel has since been incorporated (Screenshot, October 2025)
in addition to geometric data, also contain data in the form of a series of ‘texture maps’ used in physically-based rendering (PBR) workflows. PBR-calibrated textures make it possible to examine how the scanned materials and building components appear under different lighting conditions and in other material compositions. Materials and components from existing buildings can thus be included in mathematically accurate simulations that can be used in architectural preliminary studies of the material effects that will arise in the encounter between light, form, and matter. Digital asset libraries reduce the time-consuming process of producing 3D models of building components based on surveying work and 3D scans. The realistic representations of the structure, color, and uniqueness of material surfaces provide designers with the best possible information for the further design process. The digital libraries are listed as web services where each individual building component is indexed and can be downloaded in various file formats (OBJ, 3DS, FLB, etc.). As the individual building components have been digitized for use in digital environments in the gaming and film industries, no data on weight, quantity, or material properties has been reproduced. The focus here can be said to be on external rather than internal qualities.
5. ‘Digital knolling’
In 2020, the title of the exhibition in the Japanese pavilion at the Venice Biennale was ‘Co-ownership of Action: Trajectories of Elements’. The exhibition, curated by Kozo Kadowaki, attempted to visualize the movement of building materials by physically dismantling an old wooden house in Tokyo and transporting it to Venice. The original house, in its spatial and structural entirety, was first 3D (laser) scanned and then dismantled.

Fig. 10: Den japanske pavillon ved Venedig Biennalen i 2020, kurateret af Kozo Kadowaki. Foto af Francesco Galli / Pavilion of Japan at the 2020 Venice Biennale by Kozo Kadowaki. Photograph by Francesco Galli
til et opbevaringslager hvor de blev 3D-(foto)scannet. De digitaliserede bygningskomponenter blev forsøgt samlet i en digital database, og organiseret efter ‘knolling’ princippet.
Det engelske udtryk ‘knolling’ er betegnelsen for den organisatoriske praksis at placere genstande eller adskilte elementer på en flad overflade og vinkelret i relation til hinanden. At adskille eller dekonstruere en bygning i mindre komponenter og organisere dem i 2 dimensioner i relation til hinanden skaber i sig selv et nyt lag af information.
“Organizing the relationships between objects, or between parts of an object, in two dimensions creates a new layer of information that enables us to view the organization of the world from a different perspective”.7
Repræsentationsstrategier der skiller bygningerne ad og distribuerer dem ud i ét plan synliggør de logistiske udfordringer ved direkte genbrug på matriklen.
The individual building components were then transported to a storage warehouse where they were 3D (photo) scanned. The digitized building components were assembled in a digital database and organized according to the ‘knolling’ principle.
The English term ‘knolling’ refers to the organizational practice of placing objects or separate elements on a flat surface at right angles to each other. Separating or deconstructing a building into smaller components and organizing them in two dimensions in relation to each other creates a new layer of information.
“Organizing the relationships between objects, or between parts of an object, in two dimensions creates a new layer of information that enables us to view the organization of the world from a different perspective”.7
Representation strategies that separate the buildings and distribute them across a single plane highlight the logistical challenges of direct reuse on the site.

Fig. 11: ‘Deconstruction site’ for S.R. Crown Hall (1956) af Mies van der Rohe. Rendering af Frederikke Adamsen Hammer og Charlotte Sandbrekke, som del af Studio 3A, Arkitektskolen Aarhus, 2022.
Deconstruction site of S.R. Crown Hall (1956) by Mies van der Rohe. Drawing made by Frederikke Adamsen Hammer & Charlotte Sandbrekke, as part of Studio 3A, Aarhus School of Architecture, 2022.
6. Eksploderede (aksonometriske) komponenter
Hvor ‘knolling’-tilgangen giver overblik over bygningens komponenter og logistiske udfordringer ved nedtagningen, kan repræsentationsstrategier der viser bygningerne som de var opført informerer om de rumlige sammenhænge og de tektoniske motiver der opstår i mødet mellem de enkelte komponenter.
Aksonometriske projektioner har særligt fra det 19. århundrede og frem været et værdsat teknisk tegneredskab til udformning og repræsentation af komplekse strukturer og rumlige forhold og kan vise tredimensionelle objekter med matematisk præcision og klarhed som perspektiviske fremstillinger ikke kan. Meget senere er aksonometrier, i takt med udviklingen af superrealistiske 3D-renderinger, i tiltagende grad blevet brugt mere diagrammatisk og kreativt eksperimenterende alternativ, både til kommunikation og som designværktøj.8
Den eksploderede aksonometri, der viser en konstruktions enkeltdele adskilt, tilføjer endnu et lag af dissekeret abstraktion, der som en mellemting mellem den samlede bygning og bygningen adskilt som knolling både viser de adskilte komponenter og anviser deres oprindelige placering i sammenhængen.
6. Exploded (axonometric) components
Where the ‘knolling’ approach provides an overview of the building’s components and the logistical challenges involved in demolition, presentation strategies that show the buildings as they were constructed can inform about the spatial contexts and tectonic motifs that arise in the encounter between the individual components.
Axonometric projections have been a valued technical drawing tool for the design and representation of complex structures and spatial relationships, particularly from the 19th century onwards, and can show three-dimensional objects with mathematical precision and clarity that perspective representations cannot. Much later, with the development of super-realistic 3D renderings, axonometries have increasingly been used as a more diagrammatic and creatively experimental alternative, both for communication and as a design tool.8
The exploded axonometry, which shows the individual parts of a construction separately, adds another layer of dissected abstraction that, as something between the assembled building and the building separated into its components, shows both the separate components and indicates their original location in the context.

7. Logistisk koreografi - Rumlig-temporal kortlægning Der indgår adskillige arbejdsdokumenter og -tegninger i både bygge- og nedrivningsprojekter. Ofte vil disse arbejdsdokumenter være adskilte og funktionsopdelte mellem økonomistyring, tidsplaner, organisering af byggepladsen, konstruktionstegninger osv. Kompartmentalisering kan dog give blinde vinkler, mens skjulte sammenfald og muligheder kan vise sig, når man sammenlægger f.eks. Gantt-diagrammer og situationsplaner til rumlig-temporale tegninger. Der findes adskillige eksempler på rumlig-temporale repræsentationsformer.
Bernard Tschumi repræsenterede tid og bevægelse i rumlige tegninger og udfoldede ‘Event spaces’ med små montage-agtige sekvenser med ‘Manhattan Transcripts’. Tegnestuen BIG bruger små serier af diagrammatiske aksonometrier både til formidling og som designmetode. Sarah Wigglesworth berømte spisebordstegninger viser et middagsselskab udfolde sig over en aften udelukkende gennem bordækningsens og objekters bevægelser. Tegneserietegneren Chris Ware bruger lige dele tid og rum til at udfolde sine fortællinger, mens Richard McGuires illustrationer viser rum med vinduer på tværs af tid. Tegnestuen Morphosis lavede udover den eksploderede aksonometriske fremstilling en detaljeret tegneserie til deres 2-4-6-8 House, der som arbejdstegning eller samlehæfte til et Lego-sæt eller IKEA-møbel viser hvordan huset skal bygges skridt for skridt. Designkollektivet Friends Making Work bruger ligeledes tegneserien, men med modsat fortegn, og viser hvordan bygninger kan demonteres med deres ‘Un-installation Guide’ fra projektet ’Planetary Home Improvement’.
Som Pierre Beauchamp og Raoul-Auger Feuillets dansenotationer kan den rumlig-temporale tegning guide koreografien for nedrivning, opbevaring, oparbejdning og genopbygning og kan derfor både blive et vigtigt logistisk værktøj og en integreret del af designprocessen.
Fig. 12: PARTS: Eksploderet aksonometrisk fremstilling af ’24-6-8 House’ af tegnestuen Morphosis. (Exploded GA Houses. 9 1981, 158) / PARTS: Exploded axonometric drawing of the 2-46-8 House by Morphosis. (Exploded GA Houses. 9 1981, 158)
7. Logistical choreography – spatio-temporal mapping
Several working documents and drawings are involved in both construction and demolition projects. These working documents are often separate and divided into different functions, such as financial management, schedules, construction site organization, construction drawings, etc. However, compartmentalization can create blind spots, while hidden overlaps and opportunities can emerge when, for example, Gantt charts and site plans are combined into spatio-temporal drawings.
There are several examples of spatio-temporal forms of representation. Bernard Tschumi represented time and movement in spatial drawings and unfolded ‘Event spaces’ with small montage-like sequences in ‘Manhattan Transcripts’. The architectural firm BIG uses small series of diagrammatic axonometric projections both for communication and as a design method. Sarah Wigglesworth’s famous dining table drawings show a dinner party unfolding over an evening solely through the movements of the table setting and objects. Cartoonist Chris Ware uses equal parts time and space to unfold his stories, while Richard McGuire’s illustrations show rooms with windows across time. In addition to the exploded axonometric representation, the Morphosis architectural firm created a detailed comic for their 2-4-6-8 House, which, like a working drawing or instruction booklet for a Lego set or IKEA furniture, shows how the house should be built step by step. The design collective Friends Making Work also uses comics, but in reverse, showing how buildings can be dismantled with their ‘Un-installation guide’ from the Planetary Home Improvement project.
Like Pierre Beauchamp and Raoul-Auger Feuillet’s dance notation, the spatio-temporal drawing can guide the choreography of demolition, storage, processing, and reconstruction, and can therefore become both an important logistical tool and an integral part of the design process.


Fig. 13-14:Eksploderede aksonometriske modeller af bygning i Ringparken i Slagelse. / Exploded axonometric models of buildings in Ringparken in Slagelse

Fig. 15: Eksempel på dansenotation af Raoul-Auger Feuillets. / Example of dance notation by Raoul-Auger Feuillets.9

Fig. 16: Moving Stuff Around Map. tegning af Heloise Dussault-Cloutier og Daniel Epprecht (Studio Tom Emerson, ETH https://www.emerson.arch.ethz.ch) / Moving Stuff Around Map. Drawing by Heloise Dussault-Cloutier and Daniel Epprecht (Studio Tom Emerson, ETH https://www.emerson.arch. ethz.ch)
Arkitektoniske mellemregninger
De forskellige repræsentationsstrategier kan ses som et gyldigt argument for, at der på nuværende tidspunkt tilsyneladende ikke arbejdes ud fra en ensartet standard når det kommer til at samle, overlevere og anvende data fra ressourcekortlægninger og ind i formgivningsarbejdet, selvom der i eksisterende praksis findes adskillige forslag til hvordan forhåndenværende materialer og komponenter synliggøres, ’bogføres’, værdisættes, ophøjes og aktualiseres med fremtidigt brug i tankerne.
Under overskriften ’arkitektoniske mellemregninger’ har vi undersøgt hvordan den indsamlede data fra Ringparken og Listefabrikken bearbejdes og overleveres til de forskellige aktører i ’den omvendte designproces’, bl.a. med udgangspunkt i og gennem forskellige sammensætninger af repræsentationsstrategierne beskrevet i forrige afsnit. Projektet har arbejdet med dataformidling (bygningsinformation) i to spor. I iteration 1 ‘Ringparken’ omhandlede arbejdet især oversættelsen af information fra forskellige kilder til forskellige repræsentationsstrategier. I iteration 2 ‘Listefabrikken’, arbejdede vi på forsøgsbasis, med hvordan de forskellige strategier kunne samles på en digital platform. Data fra de to cases blev indsamlet gennem ressourcekortlægning, miljøscreening, ikke-destruktive tests, 3D-scanninger og arkivstudier. Den indsamlede data skal finde anvendelse i designprocessen – den skal gøres tilgængelig, synlig og anvendelig for de formgivningsprofessioner der er involverede i formgivnings-processen. Bygningskomponenternes antal, form, placering, dimension, materialeegenskaber, kemi, tilstand og visuelle kvaliteter kan beskrives og gengives gennem anvendelsen af forskelligartede datatyper.
Iteration 1: En digital model informeret med miljøscreeningsdata
Ved første iteration kom arbejdet i stigende grad til at behandle spørgsmål vedrørende informationsniveau, estimater, arkivmateriale, klassificering og forskellen mellem synlig og ikke-synlig data.
Vi tog afsæt i en 3D model der var overleveret fra tegnestuen JJW. Modelarbejdet blev udført i CAD-softwaren Rhinoceros. Det viste sig hurtigt at detaljeringsniveauet ikke var tilpasset de materialefraktioner som Milvas miljøscreening anvendte i deres kategoriseringssystem. Der var med andre ord en dissonans mellem de forskellige informationsstrømme, som vi tænkte burde udlignes, så al information kunne indeholdes i én 3D-model. Målet var at øge den overordnede detaljeringsgrad så det digitale modelmateriale kunne tilbyde aktørerne i designfaserne et anvendeligt informationsniveau.
Hvordan data og informationer skal overleveres, hænger sammen med spørgsmål om ’hvilken’, ’hvornår’ og ’hvem’. Det praktiske arbejdet med at samle og repræsentere heterogene datatyper i en ordnet og centraliseret 3D-model rejste allerede tidligt
Architectural intermediate calculations:
The various representation strategies can be seen as a valid argument for the fact that, at present, there does not appear to be a uniform standard for collecting, transferring, and applying data from resource mapping into the design work, even though existing practice offers several suggestions for how existing materials and components can be made visible, ‘accounted for’, valued, elevated, and actualized with future use in mind.
Under the heading ‘architectural intermediate calculations’, we have examined how the data collected from Ringparken and Listefabrikken is processed and transferred to the various actors in the ‘reverse design process’, based on and through various combinations of the representation strategies described in the previous section. The project has worked with data dissemination (building information) in two tracks. In iteration 1, ‘Ringparken’, the work focused in particular on translating information from different sources into different representation strategies. In iteration 2, ‘Listefabrikken’, we worked on a trial basis with how the different strategies could be brought together on a digital platform. Data from the two cases was collected through resource mapping, environmental screening, non-destructive testing, 3D scanning, and archive studies. The collected data will be used in the design process—it must be made accessible, visible, and usable for the design professions involved in the design process. The number, shape, location, dimensions, material properties, chemistry, condition, and visual qualities of the building components can be described and reproduced through the use of various types of data.
Iteration 1: A digital model informed by environmental screening data
In the first iteration, the work mostly focused on issues relating to information levels, estimates, archive materials, classification, and the differences between visible and invisible data.
We started with a 3D model provided by by JJW Arkitekter. The modeling work was done in the CAD software Rhinoceros. It quickly became apparent that the level of detail was not adapted to the material fractions used by Milva’s environmental screening in their categorization system. In other words, there was a dissonance between the different information flows, which we thought should be balanced out so that all information could be contained in a single 3D model. The goal was to increase the overall level of detail so that the digital model material could offer the actors in the design phases a usable level of information.
How data and information should be transferred is linked to the questions of what, when, and who. The practical work of collecting and representing heterogeneous data types in an orderly and centralized 3D model raised the first overall questions early in iteration 1:

Fig. 17: Det sparsomme, oprindelige tegningsmateriale måtte suppleres af byggeteknisk litteratur om industrialiseret byggeri fra perioden. Udsnit fra ’Bygge-System-Nøgle’ af Klaus Blach og Filip Wanning (1982).
i iteration 1 de første overordnede hv-spørgsmål: Hvilken ny sammenhæng skal de eksisterende materialer indgå i? Hvornår i designfasen skal informationen leveres og hvem er det informationen skal leveres til?
At fastslå et ’anvendeligt informationsniveau’ relaterer sig direkte til ’hvem’- og ’hvornår’-spørgsmålene, for hvornår i designprocessen har man brug for hvilke informationsmængder? Har alle aktører samme informationsbehov i de forskellige dele af designprocessen?
I LOIN-standarden (DS/EN ISO 7817-1:2024) italesættes udfordringen ved at producere for meget information til enten de forkerte modtagere eller det forkerte tidspunkt. Overproduktionen af information medfører informationsaffald, der er ineffektivt i et tidsøkonomisk perspektiv. For at ingeniøren kan udføre statiske beregninger har de ikke brug for fotogrammetrisk detaljeret overfladegeometri på de enkelte bygningskomponenter, mens arkitekten måske finder netop sådan særlige stoflige eller ornamentale kvaliteter væsentlige i sin formgivningsproces.
De enkelte bygningsdele blev analyseret med baggrund i arkiveret originalt tegningsmateriale af Ringparken, relevant byggeteknisk litteratur, Matterport scanninger, 3D-LIDAR-scans, site besøg og Milvas miljøscreening. På baggrund af analysen var det muligt at opdele og modellere de enkelte bygningsdele i

The sparse, original drawings had to be supplemented by technical literature on industrialized construction from the period. Excerpt from ‘Bygge-System-Nøgle’ (Building System Key) by Klaus Blach and Filip Wanning (1982).
What new context should the existing materials be included in? When in the design phase should the information be delivered, and to whom?
Determining a ‘usable level of information’ relates directly to the ‘who’ and ‘when’ questions, because when in the design process do you need what amounts of information? Do all actors have the same information needs in the different parts of the design process?
The LOIN standard (DS/EN ISO 7817-1:2024) addresses the challenge of producing too much information for either the wrong recipients or at the wrong time. Overproduction of information leads to information waste, which is inefficient from a time-saving perspective. Engineers do not need photogrammetrically detailed surface geometry of individual building components to perform static calculations, while architects may find precisely such special material or ornamental qualities essential in their design process.
The individual building components were analyzed based on archived original drawings of Ringparken, relevant construction literature, Matterport scans, 3D LIDAR scans, site visits, and Milva’s environmental screening. Based on the analysis, it was possible to divide the individual building components into their structural ‘layers’ and to model them so that information

Fig. 18: De høstede materialer repræsenteret som ‘digital knolling’, som spillebrikker på et ’spillebræt’ eller lagt ud på en fodboldbane.
The harvested materials represented as ‘digital knolling’, as game pieces on a ‘game board’, or laid out on a soccer field.

Fig. 19: Miljøscreeningsdata fra Milva er repræsenteret med simple farvekoder direkte i 3D-modellen.
Environmental screening data from Milva is represented by simple color codes directly in the 3D model.


Fig. 20-23 Hver enkel bygningsdel har tilkyttet et hyperlink, der henviser til tilsvarende materiale i Milvas digitale miljøscreeningsrapport.
deres konstruktive ’lag’ således at information vedrørende bygningsdelenes opbygning og materialer kunne kvantificeres og bringes i direkte relation til NDT og miljøscreenings data. Undervejs var det udfordrende at finde de tekniske informationer. Der var en del estimater, bla. baseret på ’Betonelementbogen’ fra 1970’erne.10 Der var møder med DTU og MILVA om det var muligt at integrere viden fra miljøscreeningen og NDT i modellen - f.eks. benyttende en ’grøn, gul, rød’ farvekode, som Milva i forvejen benyttede.
Det blev besluttet at arbejde med to modeller af de ’høstede’ materialer – én som indholdt informationer fra miljøscreeningen, så man kunne have en ide om oparbejdningspotentialet og barrieren, og én som indeholdt informationer af statisk karakter, herunder NDT (skabt i samarbejde med Rasmus Holst Engineering og en gruppe studerende fra DTU som skræddersyede grasshopper-plugin, der kan ‘real-time’-visualisere information om statik af designkoncepter). I begge tilfælde var informationerne knyttet til et koncept, hvor det høstede materiale var repræsenteret som ‘digital knolling’, altså som byggeklodser opdelt i bygningsdele og organiseret som spillebrikker på et ’spillebræt’ (lagt ud på en imaginær ’fodboldbane’). Netop ’spillebræts’-repræsentationsformen af de potentielt tilgængelige materialer for direkte genbrug på matriklen bragte ved flere lejligheder spørgsmål op vedrørende byggepladslogistik,

Each individual building component has a hyperlink that refers to corresponding material in Milva’s digital environmental screening report.
regarding the construction and materials of the building components could be quantified and directly related to NDT and environmental screening data. Along the way, it was challenging to find the technical information. There were a number of estimates, based in part on the ‘Concrete Element Book’ from the 1970s.10 Meetings were held with DTU and MILVA to discuss whether it was possible to integrate knowledge from the environmental screening and NDT into the model – e.g., using a ‘green, yellow, red’ color code, which Milva already used.
It was decided to work with two models of the ‘harvested’ materials – one containing information from the environmental screening, so that an idea of the processing potential and barriers could be obtained, and one containing information of a static nature, including NDT (created in collaboration with Rasmus Holst Engineering and a group of students from DTU who tailored a Grasshopper plugin that can visualize information about the statics of design concepts in real time). In both cases, the information was linked to a concept in which the harvested material was represented as ‘digital knolling’, i.e., as building blocks divided into building parts and organized as game pieces on a ‘game board’ (laid out on an imaginary ‘football field’). It was precisely the ‘game board’ representation of the potentially available materials for direct reuse on the site that raised questions on several occasions regarding construction site

Fig. 24: Oversigtssiden til webplatformen i anden iteration. Gennem fotos og interaktive widgets af 3D-scannede overflader, kan man klikke sig gennem områdets bygninger.
opbevaring og arbejdsgange, da den tydeliggør de logistiske udfordringer der opstår i forbindelse med selektiv nedrivning.
Iteration 2: Gensalgshjemmesiden som ’holder’ af information Med udgangspunkt i de erfaringer og udfordringer vi stødte på undervejs med arbejdet i iteration 1, afprøvede vi i anden iteration udviklingen af en digital webplatform der kunne samle de forskellige informationer i en ‘one point of entry’-format. Vi ville forsøge at supplere den information der allerede findes på eksisterende hjemmesider for gensalg af genbrugsmaterialer11 med de nye informationslag fra Milvas miljøscreeninger og de udførte NDT’s samt muligheden for at downloade 3D-modeller af de enkelte materialefraktioner, der er opgjort. Ideen var at udføre en prototype på en ideel webshop for arkitekter på komponentjagt. Hvordan ville det virke hvis mængder, miljødata, oparbejdningsprocesbeskrivelser dimensioner, placering, fotos, 3D-modeller og NDT data kunne tilgås fra en platform der samtidig agerede arkiv og salgskanal for projektet?
Overview page for the web platform in the second iteration. Through photos and interactive widgets of 3D-scanned surfaces, you can click through the buildings in the area.
logistics, storage, and workflows, as it highlights the logistical challenges that arise in connection with selective demolition.
Iteration 2: The resale website as an ‘information repository’ Based on the experiences and challenges we encountered during iteration 1, in the second iteration we tested the development of a digital web platform that could gather the various pieces of information in a ‘one point of entry’ format. We wanted to supplement the information already available on existing websites for the resale of reused materials11 with the new layers of information from Milva’s environmental screenings and the NDTs performed, as well as the option to download 3D models of the individual material fractions that have been calculated. The idea was to create a prototype of an ideal webshop for architects looking for components. How would it work if quantities, environmental data, descriptions of the processing process, dimensions, location, photos, 3D models, and NDT data could be accessed from a platform that also acted as an archive and sales channel for the project?


Fig. 25-26: Webplatformen giver overblik og info om hver enkelt bygnings komponenter og mulighed for direkte nedhentning af 3D-filer ligesom et 3D assset library. / The web platform provides an overview and information about each building’s components and the option to directly download 3D files, similar to a 3D asset library.
Ved siden af blev en samlet pakke af 3D-modeller, scanninger, mængdeopgørelser mv. også gjort direkte tilgængelig for tegnestuerne (ud fra et rationale om, at det kunne være interessant at undersøge, hvordan de fem deltagende tegnestuer hver især ville tilgå materialet, og om tegnestuernes forskellige profiler ville afspejle sig i anvendelsen af bestemte informations- og repræsentationsmodeller i processen). Pakken indeholdt nøjagtig den samme information som gensalgshjemmesiden, bare gjort tilgængelig som filer i en mappe i stedet for det digitale interface.
Da Rasmus Holst og de DTU-studerende ikke deltog i anden iteration, og statik-værktøjet desuden ikke på samme måde kunne anvendes på Listefabrikkens komponenter, blev den indsamlede information denne gang samlet i en enkelt 3D-model, der på samme måde som i første iteration også indeholdt miljøscreeningsdata og hyperlinks til Milva-rapporten. For at øge fokus på logistiske overvejelser i designprocessen, blev bygningsmodellerne i anden iteration overleveret som samlede bygninger frem for knolling-konceptet. Gennem webplatformen er det dog også muligt at tilse bygningskomponenterne enkeltvis, som var det varer i en webshop.
In addition, a complete package of 3D models, scans, quantity calculations, etc., was also made directly available to the architectural firms (based on the rationale that it would be interesting to examine how the five participating architectural firms would each access the material and whether the different profiles of the architectural firms would be reflected in the use of specific information and representation models in the process). The package contained exactly the same information as the resale website, but made available as files in a folder instead of via the digital interface.
As Rasmus Holst and the DTU students did not participate in the second iteration and the static tool could not be used in the same way on Listefabrikken’s components, the information collected this time was compiled into a single 3D model, which, as in the first iteration, also contained environmental screening data and hyperlinks to the Milva report. To increase the focus on logistical considerations in the design process, the building models in the second iteration were delivered as complete buildings rather than using the knolling concept. However, the web platform also makes it possible to view the building components individually, as if they were items in a web shop.

Erfaringer med repræsentationsstrategier i den omvendte designproces
Indsigter fra iteration 1 I forbindelse med sammensætningen af data i første iteration medfulgte nogle diskussioner vedrørende de forskellige repræsentationers indlejrede bias for designprocessen. Som designer er der forskel på at modtage en 3D-model, hvor Ringparken visualiseres henholdsvis som dekonstruerede bygningsdele udlagt som byggeklodser, eller som et samlet byggeri, der visualiseres i sin konstruktive helhed og nuværende form. Umiddelbart virker fodboldbane-strategien særligt godt og befordrende for arkitektens designproces, hvis hele bygningen skal rives ned og materialet benyttes til nyopførelse, i tråd med det opstillede scenarie for designsprinten. Der er dog også udfordringer ved denne strategi, især vedrørende viden om statik, og projektets involverede arkitekter havde konstant brug for en konstruktionsingeniør ved hånden, både i form af statik-værktøjet som Rhino-plugin, men i særdeleshed også med fortløbende dialog og rådføring med levende eksperter. Der viste sig på den anden side klare fordele ved af ’plukke’ komponenter fra en model, der har samme form som den oprindelige bygning, man ’høster’ fra, fordi man; 1) ser hybride muligheder, hvor kun noget af bygningen nedrives; 2) bedre kan se ’koreografien’ på byggepladsen for sig, og; 3) har en intuitiv forståelse af det statiske system, som hjælper i designet af de nye strukturer.
Som beskrevet i forrige kapitel ledte den første designsprint i øvrigt til drøftelser om værdien af visuelle informationslag efter Mikkel Schlesingers om at lade den digitale model indeholde 3D-scanningsdata om bygningernes overflader og komponenternes unikke karakteristika.
Fig. 27: Den samlede, overleverede 3D-model af Listefabrikken i anden iteration. / The complete, delivered 3D model of Listefabrikken from the second iteration.
Experiences with representation strategies in the reverse design process:
Insights from iteration 1
In relation to the compilation of data in the first iteration, there were some discussions regarding the bias for the design process embedded in the various forms of representation. For a designer, there is a difference between receiving a 3D model in which Ringparken is visualized as deconstructed building parts laid out as building blocks, or as a complete building visualized in its constructive entirety and current form. At first glance, the soccer field strategy seems particularly well suited and conducive to the architect’s design process if the entire building is to be demolished and the material used for new construction, in line with the scenario set out for the design sprint. However, there are also challenges with this strategy, especially regarding knowledge of statics, and the architects involved in the project constantly needed a structural engineer on hand, both in the form of the Rhino-plugin statics tool, but also, in particular, for ongoing dialogue and consultation with living experts. On the other hand, there were clear advantages to ‘picking’ components from a model that has the same shape as the original building from which you ‘harvest’, because you: 1) see hybrid possibilities where only part of the building is demolished; 2) you can better visualize the ‘choreography’ on the construction site, and; 3) you have an intuitive understanding of the static system, which helps in the design of the new structures.
As described in the previous chapter, the first design sprint also led to discussions about the value of visual information layers, following Mikkel Schlesinger’s suggestion that the digital model should contain 3D scanning data about the surfaces of the buildings and the unique characteristics of the components.
Indsigter fra iteration 2
Webplatformen som et ‘one point of entry’-format for adgang til information om Listefabrikkens bygninger og materialer i projektets anden iteration viste sig i første omgang desværre ikke at være så anvendelig i tegnestuernes arbejde som håbet. Særligt i designsprintens første par uger tilskyndedes tegnestuerne til at afprøve formatet og give feedback på oplevelsen med interfacet. Der var dog ikke for alvor nogen af tegnestuerne, for hvem webplatformen blev deres primære adgang til projektmaterialet, eller som fortsatte med at bruge den senere i processen. Der kan der være forskellige årsager til.
For det første rapporterede tegnestuerne om en række mindre fejl og mangler på platformen, hvor der nogle steder manglede information, hvor downloadlinks ikke fungerede og lignende. Det er selvfølgelig fejl, som nemt kunne rettes op på, men som ikke desto mindre havde stor betydning for brugeroplevelsen.
For det andet må det have gjort en væsentlig forskel, at tegnestuerne også kunne tilgå de samme materialer og filer direkte gennem adgang til et fælles drev, og altså ikke var tvunget til at bruge webplatformen. Webformatet er ikke et typisk designværktøj, og når arkitekter skal gå til en opgave med en begrænset tidsramme og mange andre hensyn, vil de naturligvis tage udgangspunkt i de værktøjer og formater, de er bedst kendt med.
For det tredje står det endnu ikke klart, hvordan informationen bedst kan organiseres på webplatformen. Den nuværende model lader brugeren klikke sig igennem Listefabrikkens bygninger via billeder og interaktive 3D-overflader med teksturer. Man navigerer med andre ord gennem materialet ved hjælp af visuel information om overflader, stemninger og materialer. Alternativt kunne en rumligt baseret organisering anvendes, hvor information om materialerne tilgås gennem kort og plantegninger, der angiver, hvor hver enkel bygningsdel oprindeligt er placeret, eller man kunne have anvendt et indeksinterface, der samler materialer på tværs af bygningerne sorteret efter f.eks. type, størrelse, vægt, pris ved gensalg, indlejret CO2 osv.
Selvom resultaterne med webplatformen i første omgang ikke er entydigt positive, mener vi fortsat, at formatet har potentiale og bør videreudvikles. Der er stor værdi i at samle al relevant data i et samlet interface, som tilbyder højere detaljeringsniveau og er rettet mere mod byggebranchens aktører, herunder arkitekter, end de fleste gensælgerhjemmesider er i dag. Det er dog muligt, at sådan et interface ikke bør være et separat format, men i højere grad skal integreres i de værktøjer og software, som arkitekterne arbejder i på forhånd, på samme måde som flere af de store ‘asset libraries’ der tilbyder plugins til diverse programmer, evt. ved hjælp af eksisterende løsninger for udveksling af 3D- og bygningsinformation mellem software og enheder som Speckle eller ShapeDiver.
Insights from iteration 2
The web platform as a ‘one point of entry’ format for accessing information about Listefabrikken’s buildings and materials in the project’s second iteration unfortunately did not initially prove to be as useful in the architectural firms’ work as hoped. Especially in the first few weeks of the design sprint, the design studios were encouraged to try out the format and provide feedback on their experience with the interface. However, none of the design studios really used the web platform as their primary access to the project material, nor did they continue to use it later in the process. There may be various reasons for this.
Firstly, the design studios reported a number of minor errors and shortcomings on the platform, where information was missing in some places, where download links did not work, and so on. These are, of course, errors that could be easily corrected, but which nevertheless had a significant impact on the user experience.
Secondly, it must have made a significant difference that the architectural firms could also access the same materials and files directly through a shared drive, and were therefore not forced to use the web platform. The web format is not a typical design tool, and when architects have to tackle a task with a limited time frame and many other considerations, they will naturally start with the tools and formats they are most familiar with.
Thirdly, it is not yet clear how the information can best be organized on the web platform. The current model allows users to click through Listefabrikken’s buildings via images and interactive 3D surfaces with textures. In other words, you navigate through the material using visual information about surfaces, moods, and materials. Alternatively, a spatially-based organization could be used, where information about the materials is accessed through maps and floor plans that indicate where each individual building component was originally located, or an index interface could have been used that collects materials across buildings sorted by, for example, type, size, weight, resale price, embedded CO2, etc.
Although the results with the web platform are not entirely positive at first glance, we still believe that the format has potential and should be further developed. There is great value in gathering all relevant data in a single interface that offers a higher level of detail and is more targeted at players in the construction industry, including architects, than most resale websites are today. However, it is possible that such an interface should not be a separate format, but should instead be integrated into the tools and software that architects already work with, in the same way that several of the large asset libraries offer plugins for various programs, possibly using existing solutions for exchanging 3D and building information between software and devices such as Speckle or ShapeDiver.

Fig. 28: Ressourceopgørelse for Listefabrikken i regnearksformat
Resource inventory for Listefabrikken in a spreadsheet format
En af de centrale udfordringer ved Listefabrikken, hvor der, trods store mængder genbrugsegnede materialer, er relativt få ens bygningskomponenter sammenlignet med Ringparken, var hele tiden i designprocessen at holde styr på hvor meget og hvilke materialer, der bruges i det nye design, og hvor mange komponenter, der er tilbage at bruge. Her blev Excel-arket med nummeriske opgørelser over materialer og komponenter til nogen overraskelse et vigtigt instrument, som arkitekterne måtte have ved hånden og løbende konsultere, mens de tegnede.
Desuden kom ‘knolling’-formatet tilbage i anden iteration, denne gang på tegnestuernes eget initiativ. I forlængelse af excel-arkets materialeopgørelse og diskussioner om hvor stor en andel af komponenterne, som ville være uegnede til genbrug på grund af skader, fugt og lignende, begyndte flere af tegnestuerne at arbejde med todimensionelle diagrammer af bygningernes materialer lagt ud efter knolling-princippet. Tegningerne fungerede som et enkelt, visuelt instrument til overblik over tilbageværende, brugbare materialer.
One of the key challenges at Listefabrikken, where, despite large quantities of reusable materials, there are relatively few identical building components compared to Ringparken, was to keep track throughout the design process of how much and which materials were used in the new design and how many components were left to use. Here, the Excel spreadsheet with numerical calculations of materials and components became, somewhat surprisingly, an important tool that the architects had to have at hand and consult regularly while they were drawing.
In addition, the ‘knolling’ format returned in the second iteration, this time on the initiative of the architectural firms themselves. Following on from the Excel spreadsheet’s material calculations and discussions about how many of the components would be unsuitable for reuse due to damage, moisture, and the like, several of the architectural firms began working with two-dimensional diagrams of the buildings’ materials laid out according to the knolling principle. The drawings served as a simple, visual tool for providing an overview of the remaining usable materials.

Fig. 29: Oversigtsdiagram over materialer og mængder fordelt på Listefabrikkens bygninger. Tegning af Haidy Mousa (EFFEKT)
Overview diagram of materials and quantities distributed across the Listefabrikken buildings. Drawing by Haidy Mousa (EFFEKT)
På trods af behovet for også at præsentere de ‘høstede’ materialer kvantitativt, viste overleveringen af 3D-modellerne som samlede bygninger sig at have nogle fordele i den aktuelle case. Listefabrikken bygningsdele er ikke på samme måde helstøbte enkeltdele som Ringparkens. Et spærfag fra Listefabrikken vil kunne genbruges som adskilte lægter, men der er flere fordele ved at bruge det i sin fulde form. Desuden kan komponenternes oprindelige placering i donorbyngingen give udtryk for, hvor meget den givne bygnigsdel kan bære, om den har været udsat for vind, vejr og fugt, om hvilket konstruktivt system den har indgået i tidligere og dermed også hvilken konstruktiv rolle den kan spille i det nye design.
Der er samtidig nogle (ikke nødvendigvis negative) bias med denne repræsentationsstrategi, som på den ene side måske i højere grad tilskynder transformation af det eksisterende frem for fuld rekonstruktion, som det i designsprinten var tilfældet for Karen Emilie Mølgaard Rasmussen og Haidy Mousa. På den anden side præsenteres materialerne adskilt, fordelt på de forskellige bygninger og kan derved begrænse muligheden for at se sammensætninger af komponenter fra flere af bygningerne. I designsprinten tog næsten alle tegnestuerne udgangspunkt i en enkelt bygning (eller bygningstype) og brugte hovedsageligt de øvrige til høst af supplerende materialer.
Despite the need to also present the ‘harvested’ materials quantitatively and laid out according to the knolling principle, the transfer of 3D models as complete buildings proved to have some advantages in the current case. The Listefabrikken building components are not cast in the same way as those of Ringparken. A truss section from Listefabrikken could be reused as separate battens, but there are several advantages to using it in its entirety. Furthermore, the original location of the components in the donor building can indicate how much weight the given building component can bear, whether it has been exposed to wind, weather, and moisture, what structural system it has been part of in the past, and thus also what structural role it can play in the new design.
At the same time, there are some (not necessarily negative) biases with this representation strategy, which on the one hand may encourage transformation of the existing rather than complete reconstruction, as was the case in the design sprint for Karen Emilie Mølgaard Rasmussen and Haidy Mousa. On the other hand, the materials are presented separately, distributed across the different buildings, which may limit the possibility of seeing combinations of components from several of the buildings. In the design sprint, almost all of the design studios took a single building (or building type) as their starting point and mainly used the others to harvest supplementary materials.

En stor fordel ved repræsentationstrategien med samlede, hele bygninger er, at den danner grundlag for ikke bare at visualisere mængden og formen af de høstede komponenter, men også at overveje hvordan bygningerne skal adskilles, i hvilken rækkefølge de enkelte bygninger skal nedrives og komponenterne skal høstes, hvordan materialerne skal flyttes rundt på matriklen og hvor de kan opbevares og oparbejdes i forbindelse med det nye byggeprojekt. I designsprinten forsøgte enkelte af tegnestuerne (særligt Sara Bengtson fra CEBRA) ligefrem at starte designprocessen med nedtagningslogistikken, for at undersøge om den kunne hjælpe med at styre designbeslutninger. Samtidig benyttede både Karen Emilie Mølgaard Rasmussen (Anna Mette Exner Arkitektur) og Haidy Mousa (EFFEKT), der begge arbejdede med omfattende transformationer eksisterende bygningskonstruktioner, tegneserien som visualiseringsform og som redskab til at tænke gennem processer for trinvis de- og rekonstruering af udvalgte bygninger.
Et par væsentlige erfaringer har gjort sig gældende for designsprinten i begge itereationer. For det første findes der givetvis ikke én repræsentationsstrategi eller overleveringsform for data, der passer til alle. Tegnestuer og individuelle arkitekter har forskellige tilgange, designfilosofier og metoder og derfor også forskellige typer af information, de foretrækker at arbejde med. Det er altså vigtigt at overlevere information i formater, der ikke er for låste i deres form. Erfaringer med webplatformen og designsprinten i anden iteration viser desuden tydelige fordele ved at have adgang til og kunne veksle imellem forskellige repræsentationsstrategier og hvordan krydslæsning af forskellige datarepræsentationer giver det overblik, som den omvendte desingproces fordrer.
A major advantage of the representation strategy with whole buildings is that it provides a basis not only for visualizing the quantity and shape of the harvested components, but also for considering how the buildings should be separated, the order in which the individual buildings should be demolished and the components harvested, how the materials should be moved around the site, and where they can be stored and processed in connection with the new construction project. In the design sprint, some of the design studios (especially Sara Bengtson from CEBRA) attempted to start the design process with the demolition logistics in order to investigate whether this could help guide design decisions. At the same time, both Karen Emilie Mølgaard Rasmussen (Anna Mette Exner Arkitektur) and Haidy Mousa (EFFEKT), who were both working on extensive transformations of existing building structures, used comics as a form of visualization and as a tool for thinking through processes for the step-by-step demolition and reconstruction of selected buildings.
A couple of key lessons have come out of the design sprint in both iterations. Firstly, there is obviously no single representation strategy or data transfer format that suits everyone. Architectural firms and individual architects have different approaches, design philosophies, and methods, and therefore also different types of information that they prefer to work with. It is therefore important to transfer information in formats that are not too rigid in their form. Experience with the web platform and the design sprint in the second iteration also shows clear advantages in having access to and being able to switch between different representation strategies and how cross-reading different data representations provides the overview required by the reverse design process.
Fig. 30: Tegning af Sara Bengtson (CEBRA)
Drawing by Sara Bengtson (CEBRA)


Samtidig demonstrerede de to designsprints at der ikke kun kan være en envejsoverlevering af en færdig pakke af organiseret data. Arkitekterne foretrækker i nogle tilfælde selv at foretage undersøgelser og registreringer af bygninger, fordi de gennem den langsomhed kan blive bedre “attuned’ med det eksisterende.
Derudover er det afgørende, at dataoverlevering, hvor godt den end er repræsenteret og organiseret, ikke kan erstatte tæt dialog mellem projektets parter særligt miljørådgivere, nedtagere (som ved noget om oparbejdningsmaskiner og koreografi på pladsen) og konstruktionsingeniører.
Når de gængse excel-spreadsheets er udgangspunktet for ressourcekortlægningen, er det måske forventeligt at de visuelt opdragne og æstetisk orienterede arkitekter opfinder supplerende repræsentationsformer, der supplerer den ’hårde’ numeriske data med kvalitative og sensoriske dimensioner. Her
At the same time, the two design sprints demonstrated that there cannot be a one-way transfer of a finished package of organized data. In some cases, architects prefer to conduct their own surveys and registrations of buildings because the slow pace allows them to become better attuned to the existing situation.
In addition, it is crucial that data transfer, no matter how well represented and organized, cannot replace close dialogue between the project parties, especially environmental consultants, demolition contractors (who know about processing machines and choreography on site), and construction engineers.
When standard Excel spreadsheets are the starting point for resource mapping, it is perhaps to be expected that visually trained and aesthetically oriented architects will invent supplementary forms of representation that complement the ‘hard’ numerical data with qualitative and sensory dimensions. Here,
Fig. 31: Tegning af Karen Emilie Mølgaard Rasmussen (Anna Mette Exner Arkitektur) / Drawing by Karen Emilie Mølgaard Rasmussen (Anna Mette Exner Architecture)
Fig. 32: Tegning af Haidy Mousa (EFFEKT) / Drawing by Haidy Mousa (EFFEKT)
kunne man dristes til at fremlægge den gamle dialektiske tese om at der i den omvendte design proces også her må skelnes mellem ’kunst’ og ’teknik’.12
Et sådan dobbelt perspektiv på de indledende faser i den cirkulære designproces vil ikke kun tydeliggøre at f.eks. ressourcekortlægning altid både eksisterer som et kvantitativt og kvalitativt foretagende. At inspicere, registrere og gengive en eksisterende bygning fra helhed til komponent niveau kan i forlængelse heraf anskues på to niveauer: 1) på et numerisk, praktisk og teknisk niveau og; 2) på et visuelt, formskabende, kunstnerisk niveau. Formgivningsprocessen starter ikke når dataen er høstet, når punktskyen er scannet og oversat til digitale BIM-modeller, når de originale tegningssæt er studeret eller når de bygningsarkæologiske undersøgelser er foretaget. Det er derimod under og igennem dette arbejde, at den ’gode’ designproces eksisterer. Dette indledende arbejde, der i øvrigt er velkendt fra transformations- og restaureringsopgaver, kan sagtens uddelegeres til forskellige specialiserede aktører med hver deres ydelsesbeskrivelser, og skærpede fokus. Oplevelsen fra ’Genbrug på matriklen’ peger måske på, at det først er når dette arbejde sammenføjes og diskuteres på tværs af fagligheder, at der opstår synergier, der muliggør kvalitets- og effektivitetsfremmende vidensdeling. En digital dekonstruktion og organisering af den eksisterende bygningsmasse indeholder altid beslutninger, der utilsigtet eller ej, ændrer vores anskuelse eller perspektiv. Den valgte repræsentationsstrategi påvirker alt andet lige den måde som modtageren af informationerne anskuer dem på. Data kan i den sammenhæng ikke overleveres ‘neutralt’, men er altid allerede iscenesat. Et konkret eksempel fra genbrug på matriklen er de tilbagevendende diskussioner vedrørende at få overleveret en 3D-model med eller uden tekstur, og digitalt adskilt eller samlet.
Teknologi og automatisering forøger gradvist den tilgængelige informationsmængde, hvilket ikke gør diskussioner vedrørende datavisualisering mindre relevant i fremtiden. Det glatte og modstandsløse digitale rum hvori det moderne byggeri produceres spiller en væsentlig rolle når det kommer til at omstille fra det lineære til det cirkulære og ikke mindst når de løsninger og nye arbejdsgange der udvikles undervejs i transitionen skal skaleres, finde bred anvendelse og økonomi.
Nye informationslag vil blive en del af arkitekternes ’data management’ og arkitektens arbejde med at syntetisere de mange forskellige informationslag vil måske, i endnu større omfang end tidligere, mime en mere kuratorisk proces. Hvad skal vises til hvem og hvordan og hvornår skal det vises? Hvilke indsigter vil opstå når de forskellige informationsstrømme sammenstilles og hvordan vil det påvirke formgivningsprocesserne fremadrettet?
one could venture to present the old dialectical thesis that in the reverse design process, a distinction must also be made between ‘art’ and ‘technique’.12
Such a dual perspective on the initial phases of the circular design process will clarify that, for example, resource mapping always exists as both a quantitative and qualitative undertaking. Inspecting, recording, and reproducing an existing building from the whole to the component level can additionally be viewed on two levels: 1) on a numerical, practical, and technical level, and 2) on a visual, form-creating, artistic level. The design process does not begin when the data has been harvested, when the point cloud has been scanned and translated into digital BIM models, when the original drawings have been studied, or when the building archaeological surveys have been carried out. Rather, it is during and through this work that the ‘good’ design process exists. This preliminary work, which is well known from transformation and restoration projects, can easily be delegated to various specialized actors, each with their own service descriptions and sharpened focus. The experience from ‘Reuse on Site’ perhaps indicates that it is only when this work is brought together and discussed across disciplines that synergies arise that enable quality and efficiency-enhancing knowledge sharing. A digital deconstruction and organization of the existing building stock always involves decisions that, intentionally or not, change our perception or perspective. No matter what, the, chosen representation strategy influences the way in which the recipient of the information perceives it. In this context, data cannot be delivered ‘neutrally’, but is always already staged. A concrete example from Reuse on Site is the recurring discussions about whether to deliver a 3D model with or without texture and digitally separated or assembled.
Technology and automation are gradually increasing the amount of information available, which does not make discussions about data visualization any less relevant in the future. The smooth and unresisting digital space in which modern construction is produced plays a significant role when it comes to transitioning from linear to circular, and not least when the solutions and new workflows developed during the transition need to be scaled, widely applied, and made economically viable.
New layers of information will become part of architects’ data management work, and architects’ work of synthesizing the many different layers of information may, to an even greater extent than before, mimic a more curatorial process. What should be shown to whom, and how and when should it be shown? What insights will emerge when the various information flows are compiled, and how will this affect design processes going forward?
1 Schön, D.A. (1983). The reflective practitioner: How professionals think in action. Basic Books.
2 Pérez-Gómez, A. (2012). The Historical Context of Contemporary Architectural Representation. In Phil Ayres (ed.), Persistent Modelling: Extending the Role of Architectural Representation (1st ed. pp. 13-25). Routledge. https://drawingmatter.org/wp-content/uploads/2022/07/ The-Historical-Context-of-Contemporary-Architectural-Representation.pdf
3 Buildings As Material Banks: https://www.bamb2020.eu/
4 Jensen, L. B., Negendahl, K., & Karlshøj, J. (2021). Analyse af frivillig ordning for bygnings- og materialepas. Technical University of Denmark, Department of Civil Engineering. https://adk.elsevierpure.com/da/publications/ analyse-af-frivillig-ordning-for-bygnings-og-materialepas/
5 Flores, R. (2020). Flores and Prats: Sala Beckett: International Drama Centre. Spanien: Editorial Arquine.
6 ibid
7 Kōzō, K., & Iio, J. (Eds.). (2020). Co-ownership of action: Trajectories of elements. Toto Publishing (TOTO Ltd.).
8 Cocozza, F. (2017). Axonometry: The Grip of Thought on Space—A Short Survey on the Relation between the Act of Planning and a Visionary Visualization Technique. Proceedings, 1(9), 884. https://doi.org/10.3390/proceedings1090884
9 Feuillets dansenotation for en rigadoon af Isaac. Reproduktion af original indgravering fra 1721 fra Malkin, M. A. O., Goff, M., Thorp, J., Noble, R., Belanger, T., Kelly, J. (2003). Dancing by the Book: A Catalogue of Books, 1531-1804, Pennsylvania State University.
10 Blach, K., Wanning, F. (1982). SBI 21 BYGGE-SYSTEM-NØGLE -Eksempel på systematisk præsentation af bygningsdetailler for et byggesystem. SBI. https://danskbyggeskik.dk/Publikationer/294%20-%20 D%C3%A6k%20og%20v%C3%A6gelementer.%203%20 rev.%20udg.pdf
11 Greendozer, Genbyg etc..
12 Mumford, L. (1952). Art and Technics. Columbia University Press.



2 - DEN OMVENDTE DESIGNPROCES I PRAKSIS
– IDÉKATALOG
Anna Mette Exner
David Ploug
Mikkel Schlesinger
Kasper Ax
Thomas Fænø Mondrup
Vilius Thorsgaard Frølunde-Vizgaudis
Julie Møller Pedersen
Marco Kromann Bøgehøj Nielsen
Katrin Olesen
Lovisa Andersson
Anna Hemdorff Anders Kruse Aagaard
Niels Martin Larsen
Matiss Groskaufmanis
Eva Aaby
Niels Eli Kjær Thomsen
Stina Rask Jensen
Esben Dannemand
Peer
Tue Näthke
Karen Helene Brobakken
Karen Emilie Mølgaard Rasmussen
Sara Bengtson
Haidy Mousa
Mathilde Strandberg Hallin
FØRSTE CASE DESIGNPROCES
– RINGPARKEN I SLAGELSE
FIRST CASE DESIGN PROCESS – RINGPARKEN IN SLAGELSE
EFFEKT: Kasper Ax, Lovisa Andersson
Anna Mette Exner Arkitektur: Anna Mette Exner, Anna Hemdorff
Arkitema: Thomas Fænø Mondrup, Marco Kromann Bøgehøj Nielsen
JJW: David Ploug, Julie Møller Pedersen
CEBRA: Mikkel Schlesinger, Katrin Lilian Olesen
Introduktion
Om designsprinten
Genbrug på matriklen handler om at forske i ’den omvendte’ designproces, hvor man designer med hvad der er i ’banken’, på matriklen. I hver af projektets to iterationer har fem tegnestuer sammen med entreprenører, nedtager og miljørådgivere samt forskere, i ’slow motion’ performet designprocessen.
De to designsprints er gennemført med kontinuerlig dokumentation af arbejdsprocesser på Miro-boards og daglige samtaler om udfordringer og diskussioner af spørgsmål og ideer i samarbejde med forskellige fageksperter.
Formålet var med andre ord ikke at producere et produkt, et byggeprojekt – men at undersøge design processen ved at øve den på konkrete case.
Ringparken
Omdrejningspunktet for den første iterations designsprint er Ringparken i Slagelse (ejet af Slagelse almennyttige Boligselskab og FOB) hvor JJW er tilknyttet som totalrådgiver. I Ringparken skal der nedrives en række blokke, og tegnestuen ønsker at genbruge det nedrevne til de planlagte nyopførelser. Det blev besluttet at arbejde med Ringparken i Slagelse, fordi der er et skaleringspotentiale og mulighed for at tilføje nye lag til ’Ressource Blokken’ -projektet hvad angår til designprocesser.
Ringparken ligger i den nordlige del af Slagelse og bestod af over 800 boliger fordelt på 24 boligblokke i fire etager. Bygningerne er opført over en periode fra 1963-1969 og er typisk for perioden opført som montagebyggeri af standardiserede, præfabrikerede betonelementer. Desuden er boligområdet undergået omfattende renoveringer i slutningen af 1990’erne.
Introduction
About the Design Sprint
Reuse on site involves researching the ‘reverse’ design process, where you design using what is available on the property. In each of the project’s two iterations, five architecture offices, together with contractors, demolition contractors, environmental consultants, and researchers, performed the design process in ‘slow motion’.
The two design sprints were carried out with continuous documentation of work processes on Miro boards and daily conversations about challenges and discussions of questions and ideas in collaboration with various experts.
In other words, the purpose was not to produce a product, a construction project, but to explore the design process by practicing it on specific case studies.
Ringparken:
The focal point for the first iteration of the design sprint is Ringparken in Slagelse (owned by Slagelse almennyttige Boligselskab and FOB), where JJW is affiliated as a lead consultant. Several of the housing blocks in Ringparken are to be demolished, and the architectural firm wants to reuse the demolished material for the planned new buildings. It was decided to work with Ringparken in Slagelse because of the potential for scaling and the opportunity to add new layers to the ‘Ressource Blokken’ project in terms of design processes.
Ringparken is located in the northern part of Slagelse and consisted of over 800 homes spread across 24 four-story apartment blocks. The buildings were constructed between 1963 and 1969 and are typical of the period, built using standardized, prefabricated concrete elements. Additionally, the residential area underwent extensive renovations in the late 1990s.
Designsprinten i første iteration
Designsprintens ’brief’ var i al sin enkelthed at etablere så mange gode boliger som muligt, af materiale ’høstet’ fra den udvalgte boligblok, placeret inden for matriklen i Ringparken. I denne iteration var der særligt fokus på udviklingen af byggesystemer for genbrug af præfabrikerede betonelementer i bærende konstruktioner.
Den første designsprint udfoldede sig over fire uger i april 2024, og indledtes med en workshops om oparbejdning, om ”gaver” ved genbrug, en introworkshop til det digitale statik-værktøj udviklet af studerende fra DTU i samarbejde med Rasmus Kristian Holst, og introduktion til digital model udarbejdet af Jon Andersen og Oskar Holst Kurtzweil.
I løbet af de fire uger afholdtes daglige møder med tegnestuerne med drøftelse af usikkerheder og spørgsmål. I den sammenhæng organiseredes løbende ’ekspertmøder’ med relevante fageksperter til hjælp med specifikke problemstillinger, herunder ugentlige møder med de studerende fra DTU om spørgsmål vedrørende statik. Tegnestuernes dokumenterede og samlede undervejs refleksioner, procesmateriale og designiterationer i et samlet Miro-board
Foruden Anna Hemdorff, Marco Kromann Bøgehøj Nielsen, Katrin Lilian Olesen, Lovisa Andersson, og Julie Møller Pedersen, var de fem deltagende tegnestuer repræsenteret af hhv. Anna Mette Exner (Anna Mette Exner Arkitektur), Thomas Fanø Mondrup (Arkitema), Mikkel Schlesinger (CEBRA), Kasper Ax (EFFEKT) og David Ploug (JJW).
Designsprinten er desuden gennemført med bidrag, hjælp og input fra Vilius Thorsgaard Frølunde-Vizgaudis, Jon Andersen og Oskar Holst Kurtzweil (Arkitektskolen Aarhus), August Sørensen (Ekolab), Rasmus Kristian Holst (Holst Engineering), Tuomo Joensuu (Tampere University), samt Rasmus Toft Sandgaard, Ida-Marie Solveig Højbak Hansen, Helene Frey, Lucca Alberte Klyver, Lærke Rode Nielsen, Niclas Brandt og Janin Brandt (DTU).
Det følgende afsnit er en opsamling af resultater og processer fra første designsprint udvalgt og kommenteret af tegnestuerne selv.
The First Iteration Design Sprint
The design sprint brief was simply to establish as many good homes as possible, using materials harvested from the selected apartment block located within the Ringparken site. This iteration focused particularly on the development of building systems for the reuse of prefabricated concrete elements in load-bearing structures.
The first design sprint took place over four weeks in April 2024 and began with workshops on processing and the ‘gifts’ of reuse, an introductory workshop on the digital statics tool developed by students from DTU in collaboration with Rasmus Kristian Holst, and an introduction to the digital model developed by Jon Andersen and Oskar Holst Kurtzweil.
During the four weeks, daily meetings were held with the architecture offices to discuss uncertainties and questions. Ongoing ‘expert meetings’ were organized with relevant experts to help out with specific issues, including weekly meetings with the students from DTU on questions concerning statics. The architectural offices documented and collected reflections, process material, and design iterations in a comprehensive Miro board.
In addition to Anna Hemdorff, Marco Kromann Bøgehøj Nielsen, Katrin Lilian Olesen, Lovisa Andersson, and Julie Møller Pedersen, the five participating design studios were represented by Anna Mette Exner (Anna Mette Exner Arkitektur), Thomas Fanø Mondrup (Arkitema), Mikkel Schlesinger (CEBRA), Kasper Ax (EFFEKT), and David Ploug (JJW).
The design sprint was carried out with contributions, help, and input from Vilius Thorsgaard Frølunde-Vizgaudis, Jon Andersen, and Oskar Holst Kurtzweil (Aarhus School of Architecture), August Sørensen (Ekolab), Rasmus Kristian Holst (Holst Engineering), Tuomo Joensuu (Tampere University), and Rasmus Toft Sandgaard, Ida-Marie Solveig Højbak Hansen, Helene Frey, Lucca Alberte Klyver, Lærke Rode Nielsen, Niclas Brandt, and Janin Brandt (DTU).
The following section is a summary of the results and processes from the second design sprint, curated and commented on by the individual design studios.

Fig. 1: Screenshot fra Miro-board for 1. Iteration designsprint / Screenshot from the Miro-board for the 1st iteration design sprint

Fig. 2: Screenshot fra Miro-board for 1. Iteration designsprint / Screenshot from the Miro board in the 1st iteration design sprint

Fig. 3: Ringparken i Slagelse. Foto: JJW / Claus Bruun Kofoed
Ringparken in Slagelse. Photo: JJW / Claus Bruun Kofoed

Fig. 3: Udsnit fra Johs F. Munch-Petersen ’Dæk- og Vægelementer’. 3. reviderede udgave. Den polytekniske Læreanstalt, Danmarks tekniske Højskole Lyngby 1982
Section from fra Johs F. Munch-Petersen ’Dæk- og Vægelementer’.

Fig. 5: Skitser fra den indledende workshop til designsprinten i første iteration. Af Julie Møller Pedersen (JJW)
Sketches from the introduction workshop for the 1st iteration design sprint. By Julie Møller Pedersen (JJW)
Instead of demolishing to reuse the materials for new buildings…






... we maintain the buildings and their material integrities as high as possible, instead focusing on maximizing the value of the existing building stock.




EFFEKT: Kasper Ax, Lovisa Andersson
Perspektiv på performance
I stedet for det oprindelige spørgsmål om hvordan, spørger vi nu hvorfor. Set ud fra et performanceperspektiv har bygningernes tekniske levetid endnu ikke overskredet deres muligheder. Derfor er den mest rentable foranstaltning for bæredygtig områdeudvikling at sigte mod at bevare materialernes integritet ved minimal bearbejdning. Gennem nødvendige renoveringer og fokus på udvikling af grønne områder kan området blive mere attraktivt og samtidig muliggøre billige boliger. Midlerne måles op mod målene for at sikre, at effekten retfærdiggør indsatsen.
Perspective of Performance
Instead of the initial question being how, we are asking why. Proceeding from a perspective of performance, the technical lifespan of the buildings has not yet exceeded. Therefore, the most profitable measure for sustainable area development is to aim for maintenance of the materials’ integrity to keep it as high as possible by minimal processing. Through necessary renovations and instead focusing on developing the green spaces, the area can become more desirable while enabling affordable housing. Means are measured against the ends to ensure the effort justifies the impact.
Existing building stock
Existing building stock
Demolish
Renovating
Urban development
Fig. 1.

PRESERVE
Instead of demolishing the existing buildings, we propose to preserve them to create new qualities within the existing. This increases quality of life for the current residents.


REUSE UPCYCLE
Minimizing the interventions through direct reuse. This leads to significant ecological and economic savings.
Materials that otherwise would end up as waste, acquire new value and function. The resident gets increased ownership and identity, when involved in the design process.
Increasing potential for savings (materials, labour, energy, emissions) High Low
We identified 5 design strategies to develop the existing building stock and area.
1 GABLES
Street

Pedestrian

De lukkede gavle skaber barrierer mod gaden og gangstierne, der er placeret på langs af bygningerne. Dette skaber en klar retning for bygningen, der fremhæver for- og bagsiden. Ved at åbne bygningen i alle retninger på indgangsetagen såvel som i lejlighederne får bygningen et mere åbent og indbydende udtryk.

The enclosed gables create barriers toward the street and pedestrian paths placed lengthwise of the buildings. This creates a clear direction of the building emphasizing the front and back. By opening the building in all directions on the entrance floor as well as in the apartments, the building gets a more open and welcoming impression.
Fig. 2.
Fig. 3.
2 MASS



Creating an open corner or ground floor. Changing the materiality, window size or height on the ground floor indicates urbanity and public space. The visual connection increases the sense of safety.
By creating a protected path toward the street the building becomes more approachable and encourages pedestrians to get closer and engage with the building.
Open ground floor
Removing the whole ground floor to raise the building on pillars. There is flow underneath and connects courtyards both physically and visually. Under the buildings there are possibilities for activities and activation.

Fig. 4.
Removing a chunk of the building to divide it into two blocks with a gap in-between. The removed part can be reused in its existing condition or split into smaller pieces and used as common buildings on the courtyard. There are two possible splits - one big and one small:
Ved at ændre bygningsmassen gennem forskellige strategier får de monotone boligblokke identitet og karakteristika, der hjælper med at finde vej, og i de forskellige byrum, der skabes, kan der placeres forskellige funktioner for at aktivere området. Det fjernede materiale kan genbruges direkte til at skabe fælles bygninger i gårdhaverne.
By altering the mass through different strategies, the monotonous building blocks receive identity and characteristics helping with wayfinding, in the range of different urban rooms created different functions can be placed to activate the area. The removed material can be directly reused to enable common buildings on the courtyards.





Proposed reuse as common building
3 APARTMENTS

Existing kitchen
Fig. 5.


Rooms through the apartment
When possible, the common rooms in the apartment should be connected to achieve the perception of bigger space and increased daylight.


Avoid corridors
Removing the walls enclosing the corridors to achieve better orientation and a more open space.
Lejlighederne trænger til renovering. Indsatsen bør fokusere på at skabe sunde og beboelige miljøer. Størstedelen af giftstofferne findes i overfladerne (maling osv.) på betonvæggene. Ved at dekontaminere væggene, lade overfladerne være ærlige og rå og tilføje andre nødvendige indgreb i naturlige, biobaserede eller genanvendte materialer kan lejlighederne blive både sunde og indbydende.
The apartments need renovation. The interventions should focus on creating healthy and livable environments. Majority of the toxins can be found in the surfaces (paint etc.) of the concrete walls. By decontaminating the walls, leaving the surfaces honest and raw and adding other necessary interventions in natural, biobased or reused materials the apartments can become both healthy and inviting.
Small split


Placeringen af cykelopbevaring, beplantning og befæstede områder skaber en grænse i gården mellem den ene bygnings forside og den anden bygnings bagside. Græsset bliver et ingenmandsland uden anvendelse. Gårdenbliver kun et gennemgangsrum og tilskynder ikke til aktivitet.
Gennem en mere flydende planlægning med grønne områder som grundlag kan rummet mellem bygningerne aktiveres. Det klippede græs udskiftes med en række forskellige arter og forbindelser gennem området, der etableres for at tilskynde til bevægelse igennem i stedet for omkring.
5
URBAN + INFRASTRUCTURE
The placement of bicycle storage, vegetation and paved areas creates a boundary at the courtyard between the front of one building and the back of the other. The grass becomes a nomans-land without use. The courtyard only becomes a means of transportation and does not encourage activity.
Through a more fluid planning with greenery as the foundation, the space in-between the buildings can be activated. The cut grass is exchanged for a variety of species and connections through the area established to encourage movement through instead of around.

Hegn, beplantning og kunstige bakker til støjbeskyttelse i området får området til at virke lukket. Hele området vender indad, hvor størstedelen af pladsen optages af veje og parkeringspladser, der yderligere adskiller området indeni.
The fences, vegetation and artificial hills for sound protection in the area make the area appear enclosed. The whole area turns inwards, where majority of the space is occupied by roads and parking that further separates the area within.
Fig. 6.
Fig. 7.
8.

Existing traffic

De lige veje skaber et problem med hastighedsovertrædelser i området. Det fremstår som en isoleret ø, som man ikke kører ind på eller igennem, hvis ens destination ikke ligger inden for området. Disse karakteristika forstærkes af den problematiske placering af parkeringspladser og grønne områder. Der er stærke skel mellem det offentlige og det private, hvor de offentlige dele ikke indbyder til at komme ind i området.
Taget fra et forslag til området. En problematisk løsning med en blokstruktur, der er almindelig i flere bykvarterer med en direkte forbindelse gennem området. Bilen står over mennesker og natur i byhierarkiet, hvilket skaber stærkere grænser end før. Parkering optager en betydelig mængde plads og er placeret ved siden af vejene og foran indgangene.

Problematic
vision

The straight roads create an issue with speeding in the area. It appears as an isolated island that you don´t enter or pass through if your destination isn´t within the area. These characteristics are reinforced through the problematic placement of parking and greenery. Strong thresholds between public and private, where the public parts doesn´t invite into the area.
Taken from a suggestion for the area. A problematic solution with a block structure common in more urban neighborhoods with a straight connection through the area. The car is above humans and nature in the urban hierarchy, creating stronger borders than before. Parking occupies a significant amount of space and is situated on the side of the roads and in front of the entrances.

Fig. 9.
Vision
Mennesker og natur prioriteres i de urbane rum, hvor cykel- og fodgængertrafik strømmer gennem området, med mulighed for at køre igennem i tilfælde af nødsituationer, flytning eller af hensyn til tilgængelighed. Flydende bevægelser, der tilskynder til at slentre både ind i og inden for området.
Vision
People and nature are prioritized in the urban rooms where bike and pedestrian flows are going through the area, with the possibility to drive through in case of emergency, moving or for accessibility purposes. Fluid movements that encourage to stroll both into and within the area.
Fig.

Fig. 1:Axonometri, Blok13 (og 14)
Subtraktion af duplexer fra blokken
Heraf bliver materialer til direkte genbrug til evt. kvarterhus, rækkehustypologi, pavilloner etc. placeret i gårdrummet foran blok 13. Fokus er lagt på transformation efter stillingtagen til “hvorfor overhovedet rive ned?” /
Axonometry, Block 13 (and 14).
Subtraction of duplexes from the block.
These materials will be directly reused for possible neighborhood houses, terraced houses, pavilions, etc. in the courtyard in front of Block 13. The focus is on transformation although it has been questioned: “Why demolish at all?”

Fig. 2: Situationsplan, Ringparken, blok 13. / Site plan, Ringparken, block 13.
Anna Mette Exner Arkitektur: Anna Mette Exner, Anna Hemdorff

Fig. 3:Designmodel: “Albert Ipsensvej 18_blok 13_ afdeling 26_ Ringparken_ rød_grøn_gul_Milva_rhino6”
Modellen duplikeres for at genskabe den fulde blok13. Herefter fjernes duplexer, som synes at være problemet for formen. /
Design model: “Albert Ipsensvej 18_block 13_ section 26_ Ringparken_ red_green_yellow_Milva_rhino6”
The model is duplicated to recreate the entire block 13. Duplexes, which appear to be the problem for the form, are then removed.




Processkitser
Øverst: vision for nedtrapning af blokken. Her af fastlægges også de forskellige typologier i blokken
Stue: Fælleskøkkener og familieboliger. Direkte adgang til terræn 1. sal: Studios/studieboliger. Cirkulation på svalegang 2. sal: sammenlægges med 3. sal. Boliger i 2 plan og dobbelthøje rum (Se snit) Tagterasse udstyres med “betonlandskab”/paviloner fra materialebanken, til ophold.
Nederst skitser ud fra den bærende konstruktion i blokken. 1., 2., 3. sal ses cirkulation på svalegangen og gennemgående lejligheder. samt tagterasse.
nedtrapning af blokken. Her af fastlægges også de forskellige typologier i blokken
Fælleskøkkener og familieboliger. Direkte adgang til terræn Studios/studieboliger. Cirkulation på svalegang sammenlægges med 3. sal. Boliger i 2 plan og dobbelthøje rum
Fig. 4-5: Processkitser
Øverst: Vision for nedtrapning af blokken. Her af fastlægges også de forskellige typologier i blokken
Stue: Fælleskøkkener og familieboliger. Direkte adgang til terræn.
1. sal: Studios/studieboliger. Cirkulation på svalegang
2. sal: Sammenlægges med 3. sal. Boliger i 2 plan og dobbelthøje rum (Se snit).
Tagterrasse udstyres med “betonlandskab”/pavilloner fra materialebanken, til ophold.
Nederst: Skitser ud fra den bærende konstruktion i blokken. På 1., 2. og 3. sal ses cirkulation på svalegangen og gennemgående lejligheder, samt tagterrasse. /
Process sketches
Top: Vision for a staircase motif of the block. The various typologies in the block are also determined here.
Ground floor: Communal kitchens and family housing. Direct access to the grounds.
1st floor: Studios/student housing. Circulation on the walkway. 2nd floor: Merged with the 3rd floor. Two-story homes and double-height rooms (see section).
The roof terrace is equipped with “concrete landscaping”/pavilions from the material bank for recreation.
Bottom: Sketches based on the load-bearing structure in the block. 1st, 2nd, and 3rd floors show circulation on the walkway and through apartments, as well as on the roof terrace.
Fig. 6-7: Forslag til ændring af dækkenes placering:
En rammekonstruktion af limtræ skal erstatte dækkets oprindelige spænd.
Den nye placering af det genbrugte betondæk skal bæres af en konsolløsning.
Den monotone rytme i modernismens modulbyggeri forsøges brudt, når rumhøjden øges, det plane niveau splittes og dækkenes placering ændres. /
Proposal for changing the location of the floor slabs:

A frame structure must replace the original span of the slab. The new location of the reused concrete slab must be supported by a console solution.
The monotonous rhythm of modernist modular construction is broken by increasing the height of the rooms, splitting the flat level, and changing the location of the floor slabs.
Ændring af dækkenes placering Forslag herpå:
En ramme konstruktion skal erstatte dækkets oprindelige spænding.
Den nye placering af det genbrugte betondæk skal bæres af en konsolløsning.
Den monotone rytme i modernismens modulbyg geri forsøges at blive brudt, når rumhøjden øges, det plane niveau splittes og dækkenes placering ændres.

Ændring af dækkenes Forslag herpå:
En ramme konstruktion oprindelige spænding.
Den nye placering skal bæres af en konsolløsning.
Den monotone rytme geri forsøges at blive det plane niveau splittes ændres.



Fig. 8: LCA-beregninger
Der foretages LCA beregninger individuelt på bygningens dæk.
1. Nyt betondæk: 40.000 kg CO2
2. Genbrugt (direkte) betondæk: 1000 kg CO2
3. Nyt trædæk: 6000 kg CO2
LCA calculations
LCA calculations are performed individually on the building’s floor slabs.
1. New concrete slabs: 40,000 kg CO2
2. Reused (direct) concrete slabs: 1,000 kg CO2
3. New timber floor slabs: 6,000 kg CO2




Fig. 9-14: Det kan virke ’unaturligt’ for mange, at trækonstruktioner, bærer betonkonstruktioner, men der er en lang række muligheder ved at introducere limtræskonstruktioner i transformationen af boligblokken i Ringparken.
Selve træ-materialet introducerer en anden materialitet, der arkitektonisk fjerner noget af den negative stigma ved betonelement blokken.

It may seem ‘unnatural’ to many that wooden structures support concrete structures, but there are a wide range of possibilities in introducing glulam structures in the transformation of the apartment block in Ringparken.
The wood material itself introduces a different materiality that architecturally removes some of the negative stigma associated with the concrete housing block.
Limtræs- konstruktionerne er også vigtige i forhold til at bære og afstive den eksisterende bloks konstruktioner, fordi dens eksisterende huldæk og vægge tilskæres for at give plads til dobbelthøje rum og ændrede størrelse lejligheder.
Når betonelementer ’knækkes’ fri, mistes en kant, som kan gøre det vanskeligt at opnå en passende rumhøjde, efter nutidens standarder, når betonelementet genbruges. Derfor er en ’konsol’/’gesims’ af limtræ, som bærer genbrugs betonelementer, et element der kan etablere den tolerance, der er behov for.

The glulam structures are also important in terms of supporting and bracing the existing block’s structures, because its existing hollow decks and walls are cut to make room for double-height spaces and apartments of different sizes.
When concrete elements are ‘broken’ free, an edge is lost, which can make it difficult to achieve a suitable room height according to today’s standards when the concrete element is reused. Therefore, a ‘console’/’cornice’ of glulam, which supports the reused concrete elements, is an element that can establish the tolerance that is needed.


Arkitema: Thomas Fænø Mondrup, Marco Kromann Bøgehøj Nielsen
20m2 bolig til så mange studerende som muligt af materialer høstet på matriklen.
En lejlighedsbygning rummer altid spor af liv – døre, der er blevet åbnet og smækket tusindvis af gange, gulve der har knirket under beboeres leven, og vindueskarme, der har holdt planter og lysestager gennem årtier. Når maskiner og håndværkere træder ind, er det derfor ikke bare mursten og beton, der skal nedtages; det er lag på lag af historier, som samtidig danner grundlag for noget nyt. Oplevelsen bliver ikke kun fysisk hård, men også mentalt tankevækkende: Hvordan kan man nedbryde noget, uden at alt går tabt og kan man bevare historien og nostalgien ved samtidigt at give det et nyt liv?
20m2 of living space for as many students as possible, using materials harvested on the property.
An apartment building always bears traces of life - doors that have been opened and slammed thousands of times, floors that have creaked under the footsteps of residents, and window sills that have held plants and candlesticks for decades. When machines and craftsmen step in, it is therefore not just bricks and concrete that need to be demolished; it is layers upon layers of stories that also form the basis for something new. The experience is not only physically demanding, but also mentally thought-provoking: How can you break something down without losing everything, and can you preserve history and nostalgia while giving it a new life?
Fig. 1
Fig. 2



Hvert element – i dette tilfælde, facadeelementer, vinduer, køkkener og gulvelementer – Det føles næsten som en form for arkæologi, hvor man graver frem i bygningslagene, ikke for at dokumentere fortiden, men for at sikre fremtidens ressourcer.
Selve nedrivningen rummer en paradoksal skønhed. Hver gang en komponent reddes fremfor at blive smadret, opstår en følelse af sejr: endnu et stykke, der kan transformeres, endnu en byggesten til fremtidige designprojekter. Det er en proces, hvor destruktion og konstruktion smelter sammen til én bevægelse.
Når materialerne sorteres, bliver potentialet mere synligt. Gamle vinduesrammer kan blive til lette skillevægge Selv stumper af beton kan findeles og indgå i nye kompositmaterialer. Oplevelsen af at se affaldet skifte status til ressource ændrer måden, man kan og burde se på hele byggebranchen. Hvor der før var en lineær tankegang – opfør, brug, nedriv, kassér – åbner der sig nu en cirkulær horisont.
Som designer/arkitekt burde det føles næsten som at stå i et værksted fyldt med uventede råmaterialer. Hvert genbrugt element bærer unikke dimensioner, farver og teksturer, der ikke kan findes i fabriksnye materialer. Det giver både udfordringer og muligheder: Hvordan indpasser man et vindue fra 1960’erne i en moderne konstruktion? Hvordan får man træ med ridser
Each element—in this case, facade elements, windows, kitchens, and floor elements—feels almost like a form of archaeology, where you dig into the layers of the building, not to document the past, but to secure the resources of the future.
The demolition itself has a paradoxical beauty. Every time a component is saved rather than destroyed, there is a sense of victory: another piece that can be transformed, another building block for future design projects. It is a process where destruction and construction merge into one movement.
When the materials are sorted, their potential becomes more visible. Old window frames can be turned into lightweight partitions. Even pieces of concrete can be crushed and incorporated into new composite materials. The experience of seeing waste change status to become a resource changes the way we can and should view the entire construction industry. Where there used to be a linear way of thinking—build, use, demolish, discard—a circular horizon is now opening up.
As a designer/architect, it should feel almost like standing in a workshop filled with unexpected raw materials. Each reused element has unique dimensions, colors, and textures that cannot be found in brand-new materials. This presents both challenges and opportunities: How do you fit a window from the
Fig. 3
Fig. 4
Fig. 5


og skrammer til at indgå æstetisk i et design? Disse spørgsmål skaber kreativitet, fordi de tvinger en til at tænke fleksibelt og se skønheden i det uperfekte.
Det mest markante ved oplevelsen er dog erkendelsen af ansvar. At rive en bygning ned uden at tage hensyn til materialerne føles som at ignorere den energi, det arbejde og de ressourcer, der allerede er investeret, samt respekt for fremtiden og kloden vi alle lever på. Når man i stedet vælger at redde og genbruge, mærker man, at man er en del af en større bevægelse – et opgør med spildkulturen. Denne oplevelse bliver en påmindelse om, at byggeri ikke kun handler om funktion og æstetik, men også om etik og bæredygtighed.
Hvordan er designprocessen arkitektonisk, hvad er effekten på CO2 og økonomi, og hvad er forskellen på at genopbygge og transformere?
Hvad er muligt med disse ’byggeklodser’ vi havde fået virtuelt (se billede 1.)?
Da der er mange ens elementerne, vil det være muligt at bygge ét eksemplar og gentage det, men først skal man opbygge ’eksemplaret’ (Se billede 2-4), og hvordan kunne det gentages?

1960s into a modern construction? How do you make wood with scratches and dents fit aesthetically into a design? These questions spark creativity because they force you to think flexibly and see the beauty in imperfection.
However, the most striking thing about the experience is the realization of responsibility. Demolishing a building without considering the materials feels like ignoring the energy, labor, and resources that have already been invested, as well as disrespecting the future and the planet we all live on. When you choose to salvage and reuse instead, you feel like you are part of a larger movement - a split with the culture of waste. This experience serves as a reminder that construction is not only about function and aesthetics, but also about ethics and sustainability.
How is the design process, architecturally; what is the effect on CO2 and the economy; and what is the difference between rebuilding and transforming?
What is possible with these ‘building blocks’ we had been given virtually (see image 1)?
As there are many identical elements, it will be possible to build one copy and repeat it, but first you have to build the ‘copy’ (see images 2-4), and how could it be repeated?
The virtually cut concrete elements already dictated sizes and areas.
After constructing various floor plans, it was time to give them form, function, and a hierarchy (see image 5).
Image 5 shows that it is clearly possible to create a community with student housing, and thus the first successful experience with the design aspect was complete.
Could a given floor plan be solved vertically instead of horizontally? This raised a number of questions. How much load could the existing concrete elements withstand (see image 6)? What was the load-bearing capacity of the walls if they were
Fig. 6
Fig. 7
Fig. 8

Allerede virtuelt-udskårne betonelementer dikterede størrelser og areal.
Efter at have konstrueret forskellige planløsninger var det på tide at give dem form, funktion og et hierarki (se billede 5).
Billede 5 viser at det tydeligt er muligt at lave et fællesskab med studieboliger og derfor var den første succesoplevelse med det designmæssige aspekt fuldført.
Kan en given planløsning i stedet for at blive udviklet horisontalt, kunne løses vertikalt? Med dette udviklede sig nogle spørgsmål: Hvor stort en last kunne de eksisterende betonelementer holde til (se billede 6)? Hvilke bæreevne havde væggene, hvis de kobledes i 2 og 3 dobbelte lag? Ville det overhovedet betyde noget for et højhus statiske system?
Da vi i fremtiden løber tør for plads, må vi bygge vertikalt, hvilket betyder en masse materiale både over og under jorden, men kan vi derfor bruge eksisterende bygninger enten som fundament eller konstruktioner i højden?
Ofte nedriver man bygninger, for at kunne bygge flere nye kvadratmeter. Kan vi koble de slanke elementer til mere bastante, som i fællesskab kan bære vægten af et højhus og samtidigt efterlade plads til at kunne fortætte?
Den sidste tid blev brugt på at undersøge om de eksisterende elementer kunne bruges til at tilpasse sig et design der ikke var formet efter de eksisterende elementer (se billede 7-8). Hvis man skulle gøre noget anderledes, ville det være en fordel at sidde mere tid til bords med konstruktører og ingeniører hele vejen igennem processen.


connected in 2 and 3 double layers? Would it even matter for the static system of a high-rise building?
As we run out of space in the future, we will have to build vertically, which means a lot of material both above and below ground, but can we therefore use existing buildings either as foundations or structures in height?
Buildings are often demolished to make way for new square meters. Can we connect the slender elements to more solid ones, which together can bear the weight of a high-rise building while leaving room for densification?
The last part of the project was spent investigating whether the existing elements could be used to adapt to a design that was not shaped according to the existing elements (see images 7-8). If we were to do something different, it would help to spend more time at the table with structural engineers throughout the entire process.
Fig. 9
Fig. 10
Fig. 11







Iteration 1: Villa


















CEBRA: Mikkel Schlesinger, Katrin Lilian Olesen
Iteration 1: Villa
For at kunne anvende fodboldbanemetoden var der behov for meget plads til opbevaring. Selvom der muligvis var tilstrækkelig plads på stedet, skulle der også være plads til at opføre den nye bygning. Derfor blev det nødvendigt at transportere materialerne til et andet lager, hvilket viste sig at være både dyrt og tidskrævende på grund af leje af plads og transportomkostninger. Jeg valgte i stedet at høste materialerne direkte fra bygningen på stedet. Processen begyndte fra de øverste etager og fortsatte gradvist ned mod de nederste.
Iteration 1: Villa
To use the “football field method,” you would need a lot of space for storage. Although there might be enough space on site to store it, you would also need room to build the new construction. Therefore, it might require transport to another storage facility/space, which would be expensive and time-consuming (e.g. due to the renting of space and transport costs). Therefore, I would rather try to harvest directly from the building on the site, starting from the top floors, then moving downward to the lower floors.
Fig. 1: Direkte høst / Direct harvesting
Fig. 2: Kortlægning af materialer / Material mapping







elevation
Ved at bruge materialet fra blok 13 kunne denne iteration gentages 12 gange, mens 1. sal og kælderen i den oprindelige bygning forblev intakte. 12 var det maksimale antal iterationer, så hvis det ikke lykkedes at høste alt materialet, kunne det erstattes med materialer fra en af de ekstra lejligheder.
For at bestemme, hvor mange materialer der faktisk var nødvendige for at samle villaen, arbejdede jeg i Revit- og Rhino-modellen. Modellen viste alle materialer og lag hver for sig, og jeg samlede den igen, som vist til højre. På den måde kunne jeg planlægge, hvordan materialerne skulle høstes og genanvendes på det sted, hvor villaen skulle opføres.
Using the material from Block 13, this iteration can be multiplied 12 times and still leaves the 1st floor including the basement of the original block 13 intact. 12 is the max, so in the case that not all material can be successfully harvested, it can be substituted by materials from one of the “extra” apartments.
In order to know how many materials are actually required to assemble the villa typology, I went into the Revit/Rhino model, which is disassembled showing all the materials and layers. I reassembled the model as seen on the right and will now be able to harvest the materials onto the site where the villa will be built.
Fig. 4: Snit, plan og opstalt / Section, plan and

Iteration 2: Transformation
For at genbruge så meget af ydervæggene og vinduerne som muligt og samtidig åbne kælderen, havde jeg brug for endnu en etage. Det adskilte sig fra det første forsøg, hvor jeg brugte de tre øverste etager til at skabe de 12 villaer. Jeg besluttede derfor at tage et skridt tilbage og arbejde videre med den oprindelige model af blok 13.
Jeg fjernede to etager med taget, som skulle bruges til villaerne. Hvis materialerne fra de to etager var intakte, kunne der skabes op til otte enheder. Derefter isolerede jeg den resterende toetagers bygning med kælderen for at undersøge de materialer, der stadig kunne anvendes, både udvendigt og indvendigt. Glasboksene ved indgangen blev dog udeladt.
Jeg fjernede herefter alle indvendige vægge og materialer, selv de bærende, så der kun stod en tom skal tilbage med trapperne som det eneste element.
Under forsøget på at omdanne kælderen opdagede jeg hurtigt, at det var svært at skabe lys, åbenhed og udgang til det fri. At åbne facaden var ikke tilstrækkeligt, men ved at skabe åbninger
Iteration 2: Transformation


Iteration 2: Transformation
To try using as much of the exterior walls/windows as possible and opening the basement, I will need another floor. This is unlike in my first attempt where I used 3 upper floors to create the 12 villas. I am taking a step back and building from the outside inward.
I took a few steps back and started working on the original model of block 13 again. I removed two stories with the roof, to be used for the villas (8 in total if the two-story materials are intact). I isolated the remaining two-story building including the basement (3), to look at the available materials, both outside and inside (excluding the entrance glass boxes).
I thereafter removed all walls and materials from the inside, even the bearing walls, leaving what is essentially an empty shell, save for the staircases.
Upon the last attempt at transforming the basement I quickly realized that it was hard to give the space light, more openness, and an exit to the outside. Opening up only at the facade wasn’t enough, but maybe opening up between the different units would do the trick.
Fig. 6: Bevaring af det eksisterende / Keeping the existing
Fig. 5: Broer/balkonner mellem bygningsblokkene / Creating bridge balconies between blocks
Fig. 7: Mulig understøttelse af balkonnerne / Possible support under balconies




mellem de forskellige enheder opstod nye muligheder for sammenhæng og lysindfald.
For at bevare bygningens stabilitet under og efter transformationen designede jeg en altan, der fungerede som en bro mellem enhederne og styrkede konstruktionen. Et vigtigt spørgsmål var, om det oprindelige betondæk kunne bevares, eller om det skulle erstattes for at sikre stabiliteten.
Jeg undersøgte derefter, hvordan bygningens ydre og indre kunne forbedres ved hjælp af nye eller genbrugte materialer. Da den overordnede struktur var fastlagt, begyndte jeg at arbejde mere detaljeret for at finde løsninger på de problemer, der opstod undervejs. Trappen skulle bevares, men fjernelsen af gamle vægge og elementer skabte flere huller og udfordringer med stabilitet. For at bevare styrken valgte jeg at eksperimentere med nye træelementer, der blev integreret i betonen. Træet kunne være genbrugstræ fra DBA eller lignende steder, men jeg begrænsede mig ikke til bestemte mål. Jeg ønskede, at trappen skulle fungere som et centralt og æstetisk element i lejlighederne og give bygningen karakter.
In order to maintain the stability of the building while transforming it, as well as after completing it, a “bridge” in the form of a balcony would tie the units together and provide strength to the building. The question is: Is it possible to leave the original concrete slab, or does it have to be added in a new way for it to truly be stable?
How can the exterior and interior be transformed/improved using new/used materials? Now that the basic exterior structure has been decided, I have allowed myself to go into more detail to figure out how to solve certain problems. In this case, the staircase is to remain, but there are several gaps and stability issues that arise when removing some of the old elements and walls that were in the way. To uphold the stability, I have chosen to experiment with new wood elements integrated with the concrete. The wood can of course be reused wood, from DBA or other websites, however I did not limit myself to measurements since I wanted the stairs to be a centerpiece to the individual apartment buildings and have an aesthetic solution.
Fig. 8: Visualisering / Visualization
Retined staircase as centerpiece
Fig. 9: Visualisering / Visualization




Fig. 11-13: Blokken blev høstet oppefra i en nøje planlagt proces, hvor materialerne blev genanvendt til at opføre nye rækkehuse. Når blokken var høstet, stod stubben tilbage, et fundament og en in-situ-støbt cykelkælder i beton. Den repræsenterede en stor mængde indlejret energi, var af høj kvalitet og ville have været dyr at fjerne.
The block has been harvested ‘from above’ in a carefully planned choreography involving the processing and construction of new terraced houses ’next door’ reusing materials from the donor block. When the block has been harvested, the ‘stump’ remains – a foundation, an in-situ cast concrete bicycle cellar and the ground floor apartment, which combined represent a great deal of embodied energy, are of good quality and would be expensive to remove.

Fig. 14-15: Ved at etablere dobbelthøje rum fra kælderniveau og skabe forsænkede gårdhaver blev de nederste etager omdannet til rækkehuse med nye rumlige kvaliteter og direkte adgang til gårdhaven.
By establishing double-height rooms from basement level and establishing ’sunken courtyards’, the lower floors are utilized in a transformation of the ‘stump’ into terraced houses with new spatial qualities and direct access to the courtyard.

JJW: David Ploug, Julie Møller Pedersen
Designprocessen
Vi begyndte med en opstart-workshop, hvor materialebanken blev placeret på matriklen. Her blev det tydeligt, at logistik og plads var en central udfordring. Spørgsmålet var, hvorvidt der var tilstrækkelig plads til både en byggeplads og opbevaring af materialerne, hvordan materialerne skulle stables, om de skulle overdækkes, og en udfoldelse af projektets omfang og rammer.
Her blev det tydeligt at logistik og pladsforhold er en stor faktor når man gerne vil minimere transporten af elementer. I takt med nedrivningsprocessen rejste der sig yderligere overvejelser: Kunne den midlertidige materialebank etableres på den såkaldte “fodboldbane”? Hvordan kunne opbevaring
The design process
We began with a kick-off workshop, where the material bank was placed on the site. Here, it became clear that logistics and space were key challenges. The questions were whether there was enough space for both a construction site and storage of the materials, how the materials should be stacked, whether they should be covered, and an explanation of the scope and framework of the project.
It became clear that logistics and space are major factors when you want to minimize the transport of elements. As the demolition process progressed, further considerations arose. Could the temporary material bank be established on the so-called
Fig. 1: Opstartsworkshop / Kick-off workshop

Fig. 2: Er der plads til en materialebank? / Is there room for a material bank?
af nedrivningsmaterialer, adgang for nedrivningskøretøjer og plads til opbygning af nybyggeri med genbrugsmaterialer tænkes sammen i én samlet logistik? Disse praktiske og rumlige spørgsmål blev startskuddet for den videre udvikling af projektet.
Eksperimenter med vægforhøjelser
I forbindelse med udskæringen af betonelementerne blev det tydeligt, at der uundgåeligt ville gå nogle centimeter tabt af den eksisterende rumhøjde. Samtidig er standarderne for opholdsrum blevet hævet siden Ringparken oprindeligt blev opført, hvilket betød, at genbrug af elementerne i nybyggeri ville kræve en
“football field”? How could the storage of demolition materials, access for demolition vehicles, and space for the construction of new buildings with reused materials be combined into a single logistics solution? These practical and spatial questions were the starting point for the further development of the project.
Experiments with wall height increases
When cutting the concrete elements, it became clear that a few centimeters of the existing room height would inevitably be lost. At the same time, standards for living spaces have been raised since Ringparken was originally built, which meant that


kan det lade sig gøre at forhøje bygningen??
hvordan vil samlingerne se ud??
både mellem ens elementer og forskellige?
kan det bære til et overlæggende etagedæk??
trappe højder ved flere etager efter forhøjning??

forhøjelse for at kunne leve op til nutidens krav til komfort og proportioner.
Denne erkendelse førte til en række eksperimenter med mulige metoder til at forhøje gennem genbrugsmaterialer. Jeg udforskede blandt andet, hvordan de eksisterende betonelementer kunne kombineres med nye tilføjelser, og hvilke udfordringer der opstod i samlingerne mellem gammelt og nyt. Kunne facadeelementerne genanvendes til at bære en ekstra etage? Kunne en flippet væg fungere, eller måtte den reduceres til en let skillevæg?
Murstenene viste sig særligt interessante i deres udtryk, som et tungt bælte øverst i facaden, eller som sokkel under betonelementerne, eller som fyld i de ’skårne’ partier. I disse kombinationer opstod en ny arkitektonisk fortælling, hvor materialerne ikke blot lappede hinandens mangler, men også fremhævede deres respektive egenskaber og historiske spor.

reusing the elements in new construction would require an increase in height in order to meet today’s requirements for comfort and proportions.
This realization led to a series of experiments with possible methods of raising buildings using reused materials. Among other things, I explored how the existing concrete elements could be combined with new additions and what challenges arose in the joints between the old and new. Could the facade elements be reused to support an extra floor? Could a flipped wall with its original horizontal load-bearing capacity function as a load-bearing vertical element, or would it have to be reduced to a light partition wall?
The bricks proved particularly interesting in their expression, as a heavy belt at the top of the facade, or as a plinth under the concrete elements, or as filler in the cut sections. In these combinations, a new architectural narrative emerged, where the materials not only patched each other’s shortcomings, but also highlighted their respective properties and historical traces.
Arbejde med rumhøjder, detalje og facade udtryk??
Får elementerne til at fortælle dens historie ved at kombinere materialerne. udfylde
hiandens huller
mursten som forhøjende element - sokkel - overlægger
som fyld mellem element
Forhøjelse med murstens
Fig. 3: Forsøg med forhøjelse med beton / Experiments increasing hight with concrete
Fig. 4: Forsøg med forhøjelse med mursten / Experiments increasing hight with bricks
Udtryk i forhøjelsen

Forhøjelsse med mursten i toppen skaber et tungt bælte, men leger med højderne af beton elemeneterne.

Fig. 5: Forsøg med forhøjelse med stål / Experiments increasing hight with steel



Fig. 6: Det visuelle udtryk af forhøjelsen / Appearance of height increase

løsninger, der kunne tilgodese både studerende, erhvervsaktive og familier, som ville give en blandede beboelsesform.
De seks udskårne dæk blev på den måde en slags byggesæt, hvor vi afprøvede forskellige kombinationer for at se, hvilke rumlige muligheder de kunne skabe, og hvordan de kunne tilpasses konteksten. Her opstod spørgsmål om adgang, overgang og fællesskab: hvordan kunne man skabe boliger med direkte forbindelse til den fælles gårdhave, samtidig med at der var en glidende overgang mellem private og offentlige zoner? Vi arbejdede med idéen om fælles indgangssider og fælles bagsider, et system uden traditionel forside og bagside, men hvor indgang vendte mod indgang og ophold mod ophold.
Ligesom reduktionen af væghøjden, gik der også kvadratmeter tabt i dækudskæringerne, som gav dækkene nye dimensioner,
Connection between slab sizes and typologies
Working with the cut slab elements raised questions not only about construction, but also about how the home as a whole could be designed. Should the original functions of the rooms be retained or rearranged? Could the existing room layouts be reused in the new building, or was it necessary to develop entirely new typologies? Discussions revolved around which types of housing would be most relevant today: small units targeted at students, or larger homes that could accommodate families. The desire for social diversity meant that we sought solutions that could accommodate students, working people, and families, resulting in a mixed residential form.
Forhøjelse med mursten under beton elementerne, skaber et lettere udtryk og løber som en sokkel eller en fod til beton elementet, men betonen højder kommer tiludtryk med bund med evt dør åbninger.
The six carved slabs thus became a kind of construction set, where we tested different combinations to see what spatial possibilities they could create and how they could be adapted to the context. This raised questions about access, transition, and community: How could we create homes with direct access to the shared courtyard, while also ensuring a smooth transition between private and public zones? We worked with the idea of shared entrance sides and shared rear sides, a system without a traditional front and back, but where the entrance faced the entrance and the living area faced the living area.
Just like the reduction in wall height, square meters were also lost in the slab cutouts, which gave the slabs new dimensions.
Har den flippede væg samme bæreevne dens oprindelig vandret bæreevne?
kan det flippede væk kun bruges som kan den gå som en blrende væg?







De reducerede mål åbnede for alternative måder at placere og sammenkoble elementerne på, hvilket skabte et eksperimenterende rum for at udvikle nye boligtypologier. Seks udskårne dæk dannede grundlag for en række scenarier: dobbelthuse, vinkelhuse og kvadratiske enheder, hvor de oprindelige rektangulære formater blev sat i spil i nye sammenhænge. Herfra voksede forskellige boligkoncepter frem, enkeltlejligheder i to etager med fuldt udnyttede dæk, dobbeltlejligheder hvor enhederne spejlede hinanden, og familieboliger organiseret omkring et køkken/alrum, stue og fire værelser fordelt på to etager.
Diskussionerne bevægede sig dog hurtigt ud over det rent typologiske. Det handlede også om social diversitet. Skulle vi satse på små studieboliger, eller skabe større enheder for familier?
Målet var at undgå ensidighed og i stedet åbne for et blandet beboermiljø, hvor forskellige livsformer kunne mødes. Vi arbejdede indgående med, hvordan elementerne kunne samles lodret og vandret, og hvordan mursten kunne indgå som samlende element og ikke kun som forhøjelse. Også spørgsmålet om vinduer blev centralt: Skulle vi acceptere de oprindelige udskæringer som givne rammer og dermed lade materialernes historie definere udtrykket, eller skulle vi skære nye åbninger for at forbedre dagslyset? Overvejelserne pegede på en grundlæggende balance i projektet mellem at respektere materialernes oprindelige logik og samtidig tilpasse dem til nutidens krav.
The reduced dimensions opened up alternative ways of placing and connecting the elements, creating an experimental space for developing new housing typologies. Six carved slabs formed the basis for a number of scenarios: double houses, angular houses, and square units, where the original rectangular formats were put into play in new contexts. From this, various housing concepts emerged: single apartments on two floors with fully utilized slabs, double apartments where the units mirrored each other, and family homes organized around a kitchen/family room, living room, and four bedrooms spread over two floors.
However, the discussions quickly moved beyond just typology. It was also about social diversity. Should we focus on small studio apartments or create larger units for families?
The goal was to avoid uniformity and instead create a diverse residential environment where different lifestyles could coexist. We worked extensively on how the elements could be assembled vertically and horizontally, and how bricks could be used as a unifying element rather than just for elevation. The question of windows also became central: Should we accept the original cutouts as given frames and thus let the history of the materials define the expression, or should we cut new openings to improve daylight? The considerations pointed to a fundamental balance in the project between respecting the original logic of the materials and at the same time adapting them to today’s requirements.
Sammensætning af dæk dæk opskåret efter milva, sammensat på forskelligvis for at udnytte det der bliver givet. hvilke rum kan de 6 udskåret dæk elementer skabe? hvordan paser de ind i konteksten?
Mulige placeringer sætninger af dækelementer grunden.
hvordan skaber mest rumlighed binationer skaber
hvilken form er de med? hvilken sjovest rumlighed udenfor?
hvordan er der placeringerne hvordan udnytter rummet bedst?
hvordan placer ter man boligerne tilgang til gårdrummet?
Placering af forskellige dæk
Fig. 7: Sammensætning af dæk / Composition of the slabs
Fig. 8: Placering af dæk og rumlig komposition / Placement of slabs and spatial composition

Fig. 9: Rumlig komposition og adgang til fælles gård / Spatial composition and acces to courtyard
grøn tilgang - samiprivat have med blid overgang til fælles gård.
Refleksion
placering: adgang til fælles gårdhave, både fra bolig og for forbipasserende. en blød overgang mellem privat og offentlig havetilgang. fælles indgangs sider og fælles bagside - ingen forside mod bagside, men kun indgang mod indgang og bagside mod bagside
Projektet tog afsæt i en eksperimenterende og stedsspecifik tilgang til genbrug, ikke blot som et teknisk eller bæredygtigt greb, men som en metodisk strategi for at udvikle nye arkitektoniske potentialer gennem det eksisterende.
Materialernes begrænsninger tvang os til at tænke kreativt, ved at arbejde med materialer udvundet direkte fra matriklen og gjorde designprocessen forankret i en konkret virkelighed, hvor materialernes fysiske egenskaber, slidspor og historie aktivt blev integreret som en del af det arkitektoniske narrativ.
Arbejdet med de udskårne betonelementer og dæk satte særligt fokus på dimensionstab og transformation, et centralt vilkår ved materialegenbrug. Disse fysiske ændringer affødte ikke kun tekniske udfordringer, men fungerede også som katalysator for nye mulige boligtypologier og rumlige sammenhænge. De reducerede mål blev afsæt for at udvikle modulære, fleksible og kontekstnære boligformer, hvor skiftet mellem private og fælles zoner blev nøje orkestreret.
Logistikken omkring nedrivning, opbevaring og genanvendelse understregede projektets kompleksitet og pegede på, at den arkitektoniske værdi af genbrugsmaterialer i høj grad også afhænger af, hvordan de tænkes ind i hele byggeprocessens infrastruktur. Spørgsmål om adgangsforhold, midlertidige

Reflection
The project was based on an experimental and site-specific approach to reuse, not just as a technical or sustainable measure, but as a methodical strategy for developing new architectural potential through the existing.
The limitations of the materials forced us to think creatively, working with materials extracted directly from the site and anchoring the design process in a concrete reality, where the physical properties, wear marks, and history of the materials were actively integrated as part of the architectural narrative.
The work with the cut concrete elements and slabs placed particular focus on dimensional loss and transformation, a key condition for material reuse. These physical changes not only gave rise to technical challenges, but also served as a catalyst for new possible housing typologies and spatial contexts. The reduced dimensions became the starting point for developing modular, flexible, and context-specific housing forms, where the transition between private and communal zones was carefully orchestrated.
The logistics of demolition, storage, and reuse underscored the complexity of the project and pointed to the fact that the architectural value of reused materials also depends to a large extent on how they are incorporated into the infrastructure of

udnyttelse af dækflader, tilpasning af dæk for at skabe kvardratisk udtryk
Enkelt lejlighed, med to etager og udnytte fulde sammensat dæk
10: Rumlighed / Spaciousness

Dobbeltlejlighed, med to etager spejlvendt af hinanden. afskåret dæk for at skabe rektangulære lejligheder sammensat til kvadratiske enheder.
materialebanker og byggepladsens rumlige organisering blev derfor ikke blot praktiske forudsætninger, men integrerede designparametre.
I arbejdet med elementdimensioner, samlinger og typologier blev det tydeligt, at grænserne mellem gammelt og nyt ikke er entydige. Tværtimod opstod de mest interessante arkitektoniske løsninger i netop de steder, hvor det eksisterende måtte forhandles, bearbejdes og overskrides. Projektet demonstrerede, hvordan genbrug kan være en form for arkitektonisk forhandling, mellem fortid og nutid, mellem materialelogik og nye behov, mellem stedets historie og dets fremtidige potentiale.

Fig. 11: Elementer brugt i den bærende konstruktion af facaden / Elements used in the load-bearing structure and facade
the entire construction process. Issues of access, temporary material banks, and the spatial organization of the construction site therefore became not just practical prerequisites, but integrated design parameters.
In working with element dimensions, joints, and typologies, it became clear that the boundaries between old and new are not clear-cut. On the contrary, the most interesting architectural solutions arose precisely in those places where the existing had to be negotiated, reworked, and transcended. The project demonstrated how reuse can be a form of architectural negotiation between the past and present, between material logic and new needs, and between the history of the site and its future potential.
vinkel hus - to etager regtangel hus - dobbelhus
Fig.

familie bolig, med køkken/alrum, stue og 4 værelser fordelt på to etager med en centeret trappe opgang.

tobelt bolig, med en lejlighed på hver etage, med køkken/ alrum og tre værelser.
Fig. 12: Rumlighed med udnyttelse af sammensatte dæk / Spaciousness with the use of combined slabs
Vinduer
Skal man beholde betonelementerne oprindelig vindues udskæringer og på den måde lade dem ”bestemme” udtrykket af vindues placeringer, eller vil man kunne skære yderligere i betonelementerne og sætter vinduer i for at øge lysindfald?
Det genbrugt betondæk vil have et GWP på 8073 kg CO2-eq, mens et nyt trædæk vil have et GWP på 1160 kg CO2-eq
hvordan kan boligen indrettes??
skal man omdiagere rummenes tidligere funktioner?
kan rum funktionerne genbruges i nybyg?
Rumlighed med udnyttelse af sammensatte dæk
hvilken typologi er mest efterspurgt?
skal det være studieboliger, når man gerne vil have en befolknings diversitet, med både studerende, profileret erhvervs mennesker og familier.
skal det være større boliger end små studie enheder? skal man bo sammen?

familie bolig, med køkken/alrum, stue og 4 værelser fordelt på to etager med en centeret trappe opgang.

tobelt bolig, med en lejlighed på hver etage, med køkken/ alrum og tre værelser.
tained, thereby allowing them to “determine” the appearance of The recycled concrete slabs will have a GWP of 8073 kg CO2eq, while a new timber slab will have a GWP of 1160 kg CO2-eq.
Vilius Thorsgaard Frølunde-Vizgaudis
Matiss Groskaufmanis
Anders Kruse Aagaard
1:1-MOCKUP – BYGGESYSTEM FOR GENBRUGSBETON
1:1 MOCKUP - SYSTEM FOR REUSE OF CONCRETE
Mockup - Ringparken i Slagelse
Vilius Thorsgaard Frølunde-Vizgaudis
1:1 Mockup-modellen som refleksion: Arkitektur i en verden af begrænsninger
Danmark har længe været kendt for sin arkitektoniske klarhed – en kultur, hvor lys, taktilitet og præcision flettes sammen med en stille moralsk ansvarlighed. Men i takt med at klimakrisen accelererer, står denne tradition ved en skillevej. Hvad der engang var en historie om materialemestring, er nu et spørgsmål om materialers efterliv.
Den danske regerings strategi for cirkulær økonomi (2018) markerede et vendepunkt og foreslog en økonomisk model, der prioriterer genbrug og minimal udvinding. Inden for denne ramme stiller projektet Genbrug på Matriklen spørgsmålet: Hvad sker der, når arkitekturen ikke starter med et blankt papir, men med resterne af sin egen skabelse?
Dette er ikke genanvendelse, som vi kender det – ikke en handling, der består i at knuse og smelte, men i at læse, fortolke og komponere med det, der allerede findes. Projektet undersøger, hvordan direkte genbrug eller cirkularitet på stedet kan danne grundlaget for en ny designkultur, hvor arkitekten fungerer som både arkæolog og komponist ved at udgrave det byggede miljø, afkode dets strukturelle logik og omskrive dets rumlige potentiale.
Mockup - Ringparken in Slagelse
The 1:1 Mock-up as reflection: Architecture in a World of Limits
Denmark has long been celebrated for its architectural clarity — a culture where light, tactility, and precision intertwine with a quiet moral responsibility. Yet as the climate crisis accelerates, this tradition finds itself at a crossroads. What was once a story of material mastery is now a question of material afterlife.
The Danish Government’s Strategy for Circular Economy (2018) marked an inflection point, proposing an economic model that prioritises reuse and minimal extraction. Within this framework, the project Genbrug på Matriklen asks: What happens when architecture begins not with a blank page, but with the debris of its own making?
This is not recycling as we know it — not an act of crushing and melting, but of reading, interpreting, and composing with what already exists. The project explores how direct reuse, or on-site circularity, can form the foundation for a new design culture in which the architect acts as both archaeologist and composer: excavating the built environment, decoding its structural logic, and rewriting its spatial potential.
Fig. 1: Designprocessen i første iterations designsprint og de forskellige designforslags overordnede retning. / The first iteration design process and the overall trajectory of the different design proposals.
EXNER
CEBRA
EFFEKT
Rækkehus Rækkehus Transformation Transformation Gavle Masse Lejligheder Landskab Urbanoginfrastruktur
Transformer eller bygge nyt med genbrug? Typologier statiske systemer samlinger LCA dagslys
Sammenhængende proces, transformation og bygge nyt. Samlinger, vinduer
Radikal transformation og ændring i snittet - konsol Radikal transformation og ændring i snittet - konsol Højhuset u-verdier
Landskab og typologier
Højhuset 1
Gårdrum 2
Dobbelthus
Opmærksomhedens økonomi
Den moderne byggebranche opstod i en tid med overflod – en periode, hvor materialer var billige, udvinding var usynlig og hvor hastighed blev hyldet som effektivitet. Som følge heraf gled designkulturen væk fra sit tætte forhold til opfindsomhed. Ideen om en cirkulær arkitektur virkede næsten unødvendig. Men på bare et århundrede har menneskeheden produceret mere bygget masse end i hele sin tidligere historie tilsammen. Der er nu – helt bogstaveligt – flere bygninger end der er biologi.1 I denne nye planetære situation skifter arkitektens opgave fra at producere til at kuratere: Fra overflod til opmærksomhed. Cirkulær arkitektur handler ikke om at vende tilbage til knaphed, men om at lære at se det eksisterende som et sted med latent rigdom –materiel, kulturel og rumlig. Den omdanner affald til potentiale og begrænsninger til form.
Design med begrænsninger
For at teste denne hypotese blev fem danske arkitektfirmaer –Anna Mette Exner Arkitektur, Arkitema, CEBRA, EFFEKT og JJW – i april 2024 inviteret til at deltage i et designeksperiment baseret på en enkelt regel: Form følger tilgængelighed. Deres udfordring var at designe nye boliger kun ved brug af det, der allerede var til stede på en given matrikel, med hjælp fra moderne digitale værktøjer.
Den udvalgte case var Ringparken i Slagelse, et efterkrigsboligkvarter, hvor flere blokke stod til at blive revet ned. En bygning – Blok 13 – blev projektets laboratorium. Gennem 3D-scanning, ikke-destruktiv testning og miljøscreening blev bygningen digitalt dekonstrueret og omdannet til et katalog over komponenter – en slags materialeindeks over plader, vægge og facader.
Denne database blev visuelt lagt ud på en imaginær fodboldbane – et stort digitalt landskab af bygningsfragmenter, farvekodet efter tilstand og forurening. Arkitekter kunne bogstaveligt talt »plukke« komponenter til genbrug, ligesom på et bondemarked for arkitektoniske materialer. Processen afslørede både potentialet og vanskeligheden ved at designe med en begrænset mængde ressourcer: Når lageret er opbrugt, må designet tilpasses.
The Economy of Attention
The modern building industry was born in an age of excess — a period when materials were cheap, extraction invisible, and speed celebrated as efficiency. As a result, design culture drifted from its intimate relationship with resourcefulness. The idea of a circular architecture seemed almost unnecessary. Yet, in a single century, humanity has produced more built mass than in all of its previous history combined. There is now — quite literally — more building than biology.1 In this new planetary condition, the task of the architect shifts from producing to curating: from abundance to attentiveness. Circular architecture is not about returning to scarcity, but about learning to see the existing as a site of latent wealth — material, cultural, and spatial. It transforms waste into potential and constraint into form.
Designing within Limits
To test this hypothesis, In April 2024, five Danish architecture studios — Anna Mette Exner, Arkitema, CEBRA, EFFEKT, and JJW — were invited to participate in a design experiment built on a single rule: Form follows availability. Their challenge was to design new dwellings using only what was already present on a given site, aided by the tools of contemporary digital practice.
The chosen case was Ringparken in Slagelse, a post-war housing district where several blocks faced demolition. One building — Blok 13 — became the project’s laboratory. Through 3D scanning, non-destructive testing, and environmental screening, the building was digitally deconstructed and transformed into a catalogue of components — a kind of material index of slabs, walls, and façades.
This database was laid out visually on an imaginary football field — a vast digital landscape of building fragments, colour-coded by condition and contamination. Architects could literally “pick” components for reuse, much like a farmer’s market of architectural matter. The process revealed both the promise and the difficulty of designing with abundance that is finite: once the stock runs out, design must adapt.

Fig. 2: Skitser til forskellige samlingstyper. Tegninger af Julie Møller Pedersen (JJW). / Sketches for different joining techniques Drawings by Julie Møller Pedersen (JJW).

Fem tilgange til nye begyndelser
Hvert af arkitektfirmaerne udforskede en særskilt indgangsvinkel til cirkularitet:
• Anna Mette Exner Arkitektur fulgte subtraktion som designmetode: At fjerne gulve og hæfte dem sammen i nye højder for at åbne rum med dobbelt volumen. Stål- og trækonsoller dannede bro over hullerne – dels af strukturel nødvendighed, dels som arkitektonisk ornament.
• JJW Arkitekter behandlede genbrug som en hybridisering, hvor genvundet beton blev kombineret med genbrugt murværk for at skabe nye hustyper på samme sted.
• CEBRA tilgik den cirkulære økonomi som en urban koreografi: at transformere eksisterende strukturer og samtidig opføre nye rækkehuse af det høstede materiale, hvilket gjorde stedet mere tætbefolket uden ny udvinding.
• Arkitema afprøvede vertikal stabling – og undersøgte, hvordan eksisterende elementer kunne samles på ny til nye typer, endda højhusformer, gennem fordobling, lagdeling og kompositsamlinger.
• EFFEKT arbejdede på tværs af landskab og arkitektur og skar, foldede og hæftede blokkene sammen på ny for at skabe nye gårdhaver og sociale tærskler – og demonstrerede dermed, hvordan genbrug også kan omorganisere det urbane felt.
Five Ways of Beginning Again
Each studio explored a distinct entry point into the circular condition:
• Anna Mette Exner Arkitektur pursued subtraction as design method: removing floors and re-stitching them at new heights to open double-volume rooms. Steel and timber consoles bridged the gaps — part structural necessity, part architectural ornament.
• JJW Arkitekter treated reuse as an act of hybridisation, combining recovered concrete with reused brickwork to craft new house typologies within the same site.
• CEBRA approached the circular economy as urban choreography: transforming existing structures while simultaneously erecting new rowhouses from the harvested material, densifying the site without new extraction.
• Arkitema tested vertical stacking — exploring how existing elements might be re-assembled into new typologies, even high-rise forms, through doubling, layering, and composite assemblies.
• EFFEKT worked across landscape and architecture, cutting, folding, and re-stitching the blocks to create new courtyards and social thresholds — demonstrating how reuse can also reorganise the urban field.

3: Tidligere skitsemodel til mockup-modellen. / Early sketch model of the mock-up prototype.
Sammen tegnede disse eksperimenter et billede af genbrug som designintelligens. Hver begrænsning blev en generator for opfindelser. Arkitekterne opdagede, at begrænsninger – hvad enten det drejer sig om geometri, dimensioner eller mængde – kan skabe uventet rumlig generøsitet. Når man fjerner noget, kan der opstå nye former for overflod.
Den arkitektoniske gave Ud af disse øvelser voksede begrebet ’den arkitektoniske gave’ – de uforudsete rumlige og æstetiske kvaliteter, der kommer til syne, når man arbejder med det, der allerede eksisterer.
Når plader fjernes, kommer lys og volumen til syne; når elementer ikke passer sammen, mødes teksturer i en overraskende dialog. De uheld der opstår ved genbrug – flossede kanter, forkert justerede samlinger, spor fra tidligere liv – afslører en ukurateret poesi, der ikke findes i nybyggeri. Disse øjeblikke udfordrer den industrielle besættelse af glathed og præcision og anviser en ny form for skønhed, der er rodfæstet i ufuldkommenhed, minder og tid.
Cirkulær arkitektur er altså ikke kun et spørgsmål om, hvordan vi bygger, men også om, hvilken form for skønhed vi vælger at værdsætte.
Together, these experiments painted a portrait of reuse as design intelligence. Each constraint became a generator of invention. The architects discovered that limits — whether of geometry, dimension, or quantity — can produce unexpected spatial generosity. In the act of taking away, new forms of abundance emerge.
The Architectural Gift
From these exercises grew the concept of the architectural gift — the unforeseen spatial and aesthetic qualities that surface when one works with what already exists.
When slabs are removed, light and volume appear; when elements are mismatched, textures meet in surprising dialogue. The accidents of reuse — chipped edges, misaligned joints, traces of earlier lives — reveal an uncurated poetry absent from new construction. These moments challenge the industrial obsession with smoothness and precision, proposing a new kind of beauty rooted in imperfection, memory, and time.
Circular architecture, then, is not only a question of how we build, but what kind of beauty we choose to value.
Fig.

Fig. 4: Skitsering af betonplatform/pladefundament af genbrugte huldæk. / Sketches of the concrete platform/slab foundation made from reused hollow core slabs.
Fra digitalt til tektonisk: Opbygning af mock-up
Erfaringerne fra designsprinten blev videreført til fysiske tests i skala 1:1, udført i samarbejde med Kingo, der leverede betondæk og vægge fra et lokalt projekt i Gellerup, Aarhus. Her blev det digitale katalog over komponenter til håndgribelig arkitektur: Genbrugte huldæk stablet som pladefundament; vægpaneler forbundet med synlige stålbeslag; trækonsoller indsat mellem forskudte niveauer for at absorbere tolerancer og skabe nye tektoniske rytmer.
Tidlige modeller havde antydet, at betonvæggene og dækkene fra Blok 13 kunne stables på ny i nye konfigurationer – en slags arkitektonisk LEGO genopbygget af sine egne ruiner. Men mock-up’en afslørede en uventet sandhed: Udover at de originale vægelementer aldrig var høje nok til at opfylde nutidens minimumskrav til loftshøjde. Selv i perfekt stand ville de mangle
From Digital to Tectonic: Building the Mock-Up
The lessons of the design sprint were taken forward into physical testing at 1:1 scale, carried out with partners Kingo who supplied concrete slabs and walls harvested from a local project in Gellerup, Aarhus. Here, the digital catalogue of components became tangible architecture: reused hollow-core slabs stacked as a plate foundation; wall panels joined with exposed steel brackets; timber consoles inserted between misaligned levels to absorb tolerances and create new tectonic rhythms.
Early modelling had suggested that the concrete walls and decks from Blok 13 could be re-stacked into new configurations — a kind of architectural LEGO rebuilt from its own ruin. But the mock-up revealed an unexpected truth: apart from that the original wall elements were never tall enough to meet today’s minimum head-height requirements. Even in perfect condition,

Fig.5: Plan og opstalter af mockuppen. / Plan and elevations of the mock-up model.
10-20 centimeter, hvilket kun blev forværret af de små brud og uregelmæssigheder, der opstod under demonteringen.
Denne tilsyneladende mindre uoverensstemmelse viste sig at være transformativ. Det oprindelige konstruktionssystem, hvor hver etagedæk hvilede direkte oven på en væg med standardhøjde, kunne ikke længere fungere. Den påkrævede rumhøjde nødvendiggjorde en fuldstændig adskillelse mellem væg og gulv, hvilket brød den faste rytme i efterkrigstidens elementlogik.
For at løse dette problem introducerede reseach-grupppen et nyt konsolsystem i træ – et mellemliggende bånd, der absorberede både det dimensionelle underskud og de fysiske skader på den genbrugte beton, meget lig det, der blev brugt af Anna Mette Exner Arkitektur i deres transformationsforslag. Konsollen udførte flere funktioner samtidigt:
they would fall short by 10–20 centimetres, a gap only exacerbated by the small fractures and irregularities caused during dismantling.
This seemingly minor discrepancy proved transformative. The original construction system, where each floor slab rested directly atop a wall of standard height, could no longer function. The required spatial height forced a complete decoupling between wall and floor, breaking the fixed rhythm of the post-war element logic.
To resolve this, the research team introduced a new timber console system — an intermediary band that absorbed both the dimensional deficit and the physical damage of the reused concrete, much like the one used by Anna Mette Exner office in their transformation proposal. The console performed several

Fig.6: Detaljetegninger af mockuppen. / Detail drawings from the mock-up.

• Den kompenserede for den manglende højde og genoprettede den påkrævede afstand mellem gulv og loft;
• den dannede bro mellem de ujævne betonkanter, der var tilbage efter udvindingen, og undgik dermed behovet for kostbar diamantskæringspræcision;
• og den skabte en fleksibel grænseflade, der gjorde det muligt at montere etagedækkene i variable niveauer uafhængigt af vægfugerne.
På den måde frigjorde konsollen planen. Det oprindelige modulopbyggede systems stive skillevægslogik gav plads til en tilpasningsdygtig tektonisk ramme – en ramme, der kunne rumme uregelmæssige komponenter og skiftende dimensioner. Træbjælken, der før var en teknisk løsning, blev et arkitektonisk instrument: En forhandlingslinje mellem gammelt og nyt, mellem struktur og rum.
Som materiale tilbød træ den nødvendige fleksibilitet, som beton aldrig kunne tilbyde – det kunne skæres, justeres og var taktilt. På sitet kunne tømrerne trimme, kile eller justere hvert stykke, så det passede til de genbrugte elementers ufuldkommenheder. Resultatet var ikke en ligefrem genopbygning, men en ny form for ærlighed: Synlige bolte, blottede samlinger og strukturerede overgange, der fremhævede samlingen frem for at skjule den.
roles simultaneously:
• it compensated for the missing height, re-establishing the legal floor-to-ceiling clearance;
• it bridged the uneven concrete edges left by extraction, avoiding the need for costly diamond-cut precision;
• and it created a flexible interface, allowing the floor slabs to be mounted at variable levels independent of the wall joints.
In doing so, the console liberated the plan. The rigid partition logic of the original modular system gave way to an adaptable tectonic framework — one that could accommodate irregular components and shifting dimensions. The timber beam, once a technical fix, became an architectural instrument: a line of negotiation between old and new, structure and space.
As a material, wood offered the necessary forgiveness that concrete never could — cuttable, adjustable, and tactile. On site, the carpenters could trim, wedge, or realign each piece to suit the imperfections of the reused elements. The result was not a seamless reinstatement but a new form of honesty: visible bolts, exposed joints, and textured transitions that celebrated assembly rather than concealment.
When the excavator tears a building apart, concrete loses its seamlessness — it can no longer be poured “invisibly.” The

Når gravemaskinen river en bygning ned, mister betonen sin helstøbthed – den kan ikke længere støbes »usynligt« sammen. Med Mockuppen accepteredes dette som en æstetisk forudsætning. I stedet for at skjule skaderne foreslog den en slags »Arts & Crafts of reuse«, hvor håndværket ikke ligger i perfektion, men i forsoning. Det rå møde mellem beton og træ, gammelt og nyt, blev en principiel erklæring: Ufuldkommenhed som præcision, skader som design. En slags Kintsugi af den moderne industrielle arkitektur.
Økonomien i dette arbejde kræver også opmærksomhed. Mens æstetikken i genbrug kan inspirere fremtidige projekter, afhænger deres gennemførlighed i sidste ende af realiteterne med hensyn til omkostninger og tid. Gennem dialog med betonmontageentreprenøren stødte teamet på det skjulte arbejde, der er forbundet med at arbejde med genbrugsmaterialer – den langsommere boring, den manuelle tilpasning, de uregelmæssige overflader, der modstår automatisering. Hvert genbrugt vægelement krævede ekstra timer på byggepladsen, hvor nye elementer blot ville være blevet løftet med kran og støbt på plads. Dækkene, der er relativt ensartede, kunne fungere næsten på lige fod med nyproduktion, men vægkonstruktionerne – brudte, ujævne og uforudsigelige – medførte højere arbejdsomkostninger. Denne ekstra tid skal i sidste ende udlignes; enten ved en lavere pris på »udvundne« materialer i forhold til nyproducerede, eller ved at ofre noget andet i projektets økonomi – finish, hastighed eller omfang.
mock-up accepted this as an aesthetic premise. Instead of disguising the damage, it proposed a kind of “Arts & Crafts of reuse,” where the craft lies not in perfection but in reconciliation. The rough meeting of concrete and timber, old and new, became a statement of principle: imperfection as precision, damage as design. A sort of Kintsugi of the modern industrial architecture.
The economy of this work also demands attention. While the aesthetics of reuse can inspire future projects, their feasibility ultimately depends on the realities of cost and time. Through dialogue with the concrete mounting contractor, the team encountered the hidden labour of working with reclaimed materials — the slower drilling, the manual fitting, the irregular surfaces that resist automation. Each reused wall element required extra hours on site, where new elements would have simply been craned and cast into place. The slabs, being relatively uniform, could perform almost one-to-one with new production. But the wall assemblies — fractured, uneven, and unpredictable — carried a higher labour cost. This additional time must eventually be offset: either by a lower price of “mined” materials compared to newly manufactured ones, or by sacrificing something else in the project’s economy — finish, speed, or scope.
Fig. 7: Mockuppens byggesystem. / The construction system of the mock-up.

Fig 8: Genbrugsbetonen til mockuppen stammer fra Kingo Karlsens nedrivningsarbejde i Gellerupparken. / The reused concrete for the mockup is sourced from the demolition work in Gellerup by Kingo.

Fig 9: Konstruktion af betonplatformen. / Assemblage of the concrete platform foundation.
Men dette offer er ikke uden betydning. Da størstedelen af en bygnings CO2-aftryk ligger i dens bærende konstruktion, repræsenterer hvert genbrugt element en konkret økologisk besparelse. I dette lys bliver den langsommere byggeproces og de ekstra arbejdstimer en investering i en anden form for værdi – en økonomi, der ikke handler om hastighed, men om forvaltning.
I sidste ende stod mock-up’en både som teknisk prototype og filosofisk model – et manifest i snit. Den beviste, at genbrug kan generere sin egen strukturelle logik og æstetiske sprog, et sprog, der er fleksibelt, reversibelt og åbent for tidens og materialets tilfældigheder. Væggene, der engang dikterede et fast system, understøttede nu en mere tilpasningsdygtig arkitektur – en arkitektur, der lærer, snarere end at insistere.
Refleksioner: Mod en arkitektur baseret på tilgængelighed
1:1-mockuppen satte fokus på det, som hele Genbrug på Matriklen-projektet havde drejet sig om; at cirkulær arkitektur ikke blot er et spørgsmål om materialelogistik, men om at
Yet this sacrifice is not without meaning. Since the majority of a building’s carbon footprint lies embedded in its structure, every reused element represents a tangible ecological saving. In this light, the slower assembly and additional man-hours become an investment in a different kind of value — an economy not of speed, but of stewardship.
Ultimately, the mock-up stood as both technical prototype and philosophical model — a manifesto in section. It proved that reuse can generate its own structural logic and aesthetic language, one that is flexible, reversible, and open to the contingencies of time and material. The walls that once dictated a fixed system now supported a more adaptive architecture — an architecture that learns, rather than insists.
Reflections: Towards an Architecture of Availability
The 1:1 mock-up brought into focus what the entire Genbrug på Matriklen project had been orbiting: that circular architecture is not simply a question of material logistics, but of reframing the discipline’s operating system. The task is no longer to



Fig 11-12: Rå samlinger og eksponerede beslag og sammenhæftninger. / Rough joints and exposed brackets and stichings.
omformulere disciplinens modus operandi. Opgaven er ikke længere at komponere ideelle former, men at koreografere det eksisterende – at arbejde inden for det ujævne, det ufuldstændige, det allerede skabte.
Opdagelserne fra prototypen kondenserede måneders spekulationer til ét klart princip: Genbrug er ikke replikation. Når bygningskomponenter samles igen, vender de ikke tilbage til det, de engang var; de danner en helt ny typologi – en typologi, der er defineret af huller, forskydninger og improvisation. Det, der kan synes at være teknisk improvisation, bliver på en anden skala en ny arkitektonisk syntaks.
Trækonsollen i mockuppen blev for eksempel udtænkt som en pragmatisk løsning – en måde at genvinde loftshøjden og absorbere skaderne på. Men gennem sin nødvendighed udtrykte den en dybere æstetisk og etisk holdning. Den genindførte håndværket i den industrialiserede verden af præfabrikeret beton og lod genbrugets ufuldkommenheder komme til syne som en del af det arkitektoniske sprog. Samlingen – engang et svagt punkt – blev et meningsfuldt punkt.
compose ideal forms, but to choreograph the existing — to work within the uneven, the incomplete, the already-made.
The discoveries from the prototype condensed months of speculation into one clear principle: reuse is not replication. When building components are reassembled, they do not return to what they once were; they form a new typology altogether — one defined by gaps, shifts, and improvisation. What might appear as technical improvisation becomes, at another scale, a new architectural syntax.
The timber console in the mock-up, for instance, was conceived as a pragmatic fix — a way to regain ceiling height and absorb damage. Yet, through its very necessity, it articulated a deeper aesthetic and ethical stance. It reintroduced craftsmanship into the industrialised world of precast concrete, allowing the imperfections of reuse to surface as part of the architectural language. The joint — once a point of weakness — became a point of meaning.
Fig 10: Samling af mockuppen. / Assembling of the mock-up

Fig 13: mockup-prototypen fra første iteration circa et år efter den blev bygget. / The mock-up prototype from first iteration about one year after its construction.
Dette eksperiment rejste også nye spørgsmål for praksis og pædagogik. Hvordan kan digitale værktøjer udvikle sig til at arbejde med unøjagtighed i stedet for at slette den? Hvordan kan modelleringssoftware repræsentere tolerance, skader eller usikkerhed, ikke som fejl, men som information? 3D-modellen af ’fodboldbanen’ med sit farvekodede katalog over elementer antydede allerede dette – et digitalt miljø ikke med uendelige muligheder, men med begrænsede, håndgribelige valg.
Implikationerne rækker ud over det tekniske. Ved at samle Blok 13 igen begyndte projektet også at samle arkitektens rolle igen. I stedet for at være mesterbygger af ’nyt’ bliver arkitekten en forhandler mellem historier; mellem det sociale og det materielle, mellem regulering og improvisation, mellem det, der er tilbage, og det, der stadig kan være.
Kulturelle og æstetiske forandringer
Cirkulær arkitektur kræver en ny æstetisk forståelse – en forståelse, der kan se værdien i det, som tidligere generationer betragtede som affald. Dette er måske den største kulturelle
This experiment also opened new questions for practice and pedagogy. How might digital tools evolve to work with imprecision rather than erase it? How can modelling software represent tolerance, damage, or uncertainty not as errors, but as information? The 3D “football field” model, with its colour-coded catalogue of elements, already hinted at this — a digital environment not of infinite possibility, but of finite, tangible choices.
The implications stretch beyond the technical. In reassembling Blok 13, the project also began to reassemble the role of the architect. Instead of the master-builder of newness, the architect becomes a negotiator between histories: between the social and the material, between regulation and improvisation, between what remains and what might still be.
Cultural and Aesthetic Shifts
Circular architecture demands a new aesthetic literacy — one that can read value in what previous generations called waste. This is perhaps its greatest cultural challenge. The reuse of concrete panels, brick fragments, or window frames inevitably

Fig. 14: Mockuppens konstruktive system som udgangspunkt for udvikling af replikerbart genbrugsbyggesystem / The structural system of the mock-up as starting point for developing a replicable system of construction with reuse.
Fig. 15-16: Mockuppens konstruktive system implementeret designforslag til rækkehuskoncept (CEBRA). / The Construction system of the mock-up implemented in the design proposal for a terraced house concept (CEBRA).

udfordring. Genbrug af betonpaneler, murstensfragmenter eller vinduesrammer medfører uundgåeligt uregelmæssigheder, farveforskelle og patina, men i stedet for at betragte disse som urenheder foreslår Genbrug på Matriklen at behandle dem som spor af tiden – spor, der giver den nye bygning en følelse af kontinuitet, ja endda af arv.
I denne forstand argumenterer projektet for en langsom arkitektur – en arkitektur, der bygger mindre, observerer mere og griber ind med omhu. Konceptet ’Form Follows Availability’ (form følger tilgængelighed) sammenfatter denne forandring. Det er ikke en tilbagevenden til funktionalisme, men et skridt i retning af situeret intelligens: Form som et resultat af dialog med materiale, kontekst og begrænsninger. Tilgængelighedens æstetik ligger et sted mellem reparation og nyopfindelse. Den værdsætter tilpasning frem for tilføjelse, komposition frem for forbrug. I praksis opfordrer den arkitekter til at tænke som arkæologer eller improviserende jazzmusikere – at give mening til eksisterende hovedtemaer og fragmenter, at give plads til tilfældigheder og at designe med det, der er til rådighed.
Fremtidsudsigter: Et levende laboratorium
De igangværende iterationer af Genbrug på Matriklen (WP4 og WP5) fortsætter med at forfine denne metodologi – ved at teste samlinger, udvikle digitale værktøjer og dokumentere miljøpåvirkningerne gennem livscyklusvurderinger (LCA). Hvert eksperiment, hvad enten det er fysisk eller digitalt, bidrager til en bredere forståelse af, hvad en virkelig cirkulær designproces indebærer: ikke en enkelt bæredygtig gestus, men en kontinuerlig feedback-loop mellem analyse, design og fremstilling.
Ambitionen er, at disse indsigter ikke forbliver begrænset til akademisk forskning, men vil finde vej ind i praksis – og påvirke, hvordan kommuner, entreprenører og arkitekter tilgår nedrivning og genopbygning. Mockuppen på Arkitektskolen Aarhus bliver således mere end bare en model; den er et pædagogisk værktøj og en symbolsk prototype på en fremtidig bygningskultur, hvor cirkularitet ikke er en undtagelse, men reglen.
introduces irregularity, colour shifts, and patina. But instead of viewing these as impurities, Genbrug på Matriklen proposes to treat them as records of time — traces that lend the new building a sense of continuity, even ancestry.
In this sense, the project argues for a slow architecture — one that builds less, observes more, and intervenes with care. The concept of Form Follows Availability encapsulates this shift. It is not a return to functionalism, but a move towards situated intelligence: form as an outcome of dialogue with material, context, and limitation. The aesthetic of availability stands somewhere between repair and invention. It values adaptation over addition, composition over consumption. In practice, it invites architects to think like archaeologists or improvising jazz players — to make sense of existing main themes, fragments, to allow accidents, to design with what is at hand.
Outlook: A Living Laboratory
The ongoing iterations of Genbrug på Matriklen (WP4 and WP5) continue to refine this methodology — testing assemblies, developing digital tools, and documenting the environmental impacts through life-cycle assessments (LCA). Each experiment, whether physical or digital, contributes to a broader understanding of what a truly circular design process entails: not a single sustainable gesture, but a continuous feedback loop between analysis, design, and making.
The ambition is that these insights will not remain confined to academic research, but will filter into practice — influencing how municipalities, contractors, and architects approach demolition and reconstruction. The mock-up at Arkitektskolen Aarhus thus becomes more than a model: it is a pedagogical tool and a symbolic prototype of a future building culture where circularity is not an exception, but the rule.

I denne vision forsvinder Danmarks arkitektoniske arv af præcision, kvalitet og omhu ikke; den udvikler sig. Cirkulært design bliver dens moderne fortsættelse – mindre om kontrol, mere om dialog. Et håndværk bestående af koordination snarere end komposition.
At begynde på ny
At arbejde med det, der allerede eksisterer, er at arbejde med tiden selv. Den genbrugte mur bærer mindet om sin første opførelse; trækonsollen bærer intelligensen fra sin justering. Sammen antyder de en ny form for skønhed – en skønhed, der ikke søger at slette historien, men at indgå i dialog med den.
Genbrug på Matriklen er således ikke kun en teknisk udforskning, men også en invitation til at forestille sig arkitektur som en levende organisme, der er i stand til at forny sig indefra. I denne verden af begrænsninger genopdager vi overflod – ikke i mængde, men i opfindsomhed.
In this vision, Denmark’s architectural legacy of precision, quality, and care does not vanish; it evolves. Circular design becomes its contemporary continuation — less about control, more about dialogue. A craft of coordination rather than composition.
Beginning Again
To work with what already exists is to work with time itself. The reused wall carries the memory of its first construction; the timber console carries the intelligence of its adjustment. Together they suggest a new kind of beauty — one that does not seek to erase history, but to converse with it.
Genbrug på Matriklen thus stands not only as a technical exploration but as an invitation: to imagine architecture as a living organism, capable of renewal from within. In this world of limits, we rediscover abundance — not in quantity, but in imagination.
1 Elhacham, E., Ben-Uri, L., Grozovski, J., Bar-On, Y.M. & Milo, R. 2020. Global human-made mass exceeds all living biomass. Nature 588:442-444

Halv-boligkarréprojekt af
MODELHUS
Matiss Groskaufmanis, Anders Kruse Aagaard
Hvordan designer man en bolig med begrænsede midler? Dette spørgsmål dannede rammen om arbejdet i Unit 2/3F på Arkitektskolen Aarhus i forårssemestret 2025. Unit 2/3F satte sig for at undersøge, hvordan kompakte boliger kan udformes og bygges med begrænsede midler, og hvordan designbeslutninger på byggeelementniveau påvirker projektet som helhed. For at kunne det organiserede Unit 2/3F sit arbejde omkring genbrug som en materiel forudsætning. Deltagerne blev opfordret til at udvikle et projektforslag til en kompakt boligblok. I deres tilgang blev de opfordret til at finde måder at skabe balance mellem hjemmets rumlige hygge og byggeriets mest pragmatiske realiteter. De blev udfordret til udelukkende at arbejde med genbrugte præfabrikerede betonpaneler, der stammede fra nedrivningen af socialt boligbyggeri fra 1970’erne i Danmark. På denne måde blev genbrug udgangspunktet for både arkitektonisk fantasi og teknisk opfindsomhed.
MODEL HOUSE
How to compose a dwelling using limited means? This question framed the work of Unit 2/3F at the Aarhus School of Architecture in the spring semester of 2025. The unit set out to explore how compact housing might be conceived and built with limited means, and how design decisions at a scale of building components do affect the project as a whole. To do this, it organized its work around reuse as a material condition. The participants were invited to develop a project for a compact apartment building. In their approach, they were invited to seek ways to balance the coziness of domestic space with the most pragmatic realities of construction. They were challenged to work exclusively with reused prefabricated concrete panels, harvested from the demolition of 1970s mass housing built in Denmark. This way, reuse became the starting point for both architectural imagination and technical invention.
Fig.1:
Timothy James Korlas Martin / Half-perimeter block project by Timothy James Korlas Martin
Fig. 2: Et værelse i Hans Scharouns Geschwister-Scholl-skole i Lünen (1962) af Alberte Bonefeld Rønde / A room in Hans Scharoun’s Geschwister-Scholl Comprehensive School in Lünen (1962) by Alberte Bonefeld Rønde

Fig. 3: Soveværelse på 1. sal i Melnikov-huset (1929) af Candice Schröder / Melnikov House’s 1st floor bedroom (1929) by Candice Schröder

Dette undervisningseksperiment var baseret på forskningsprojektet Genbrug på Matriklen, der blev afholdt på Arkitektskolen Aarhus i samarbejde med ingeniører, entreprenører, nedrivningsfirmaer og arkitekttegnestuer. Forskningsprojektet undersøger, hvordan bygningskomponenter kan genbruges direkte på stedet. Undervisningseksperimentet tager udgangspunkt i projektets første iteration, hvor store betonelementsystemer fra gamle boligkomplekser blev analyseret, testet og re-designet med henblik på systematisk genbrug i nye byggerier. Et byggesystem afsluttede den første iteration, og en 1:1-prototype af dette system står foran skolen. Det er en beskeden, men overbevisende demonstration af, hvad genbrug kan betyde, når det bliver et bygningsprincip, der skaber rumlighed.
Kurset udledte tilgangen til byggeri fra denne forskningskontekst, og byggesystemet og 1:1-prototypen blev udgangspunkt og katalysator i undervisningseksperimentet. Det bestod af tre kategorier af elementer: Genbrugte betonpaneler, en træunderkonstruktion og en række metalbeslag, der holder systemet sammen. Der blev anvendt to hovedtyper af paneler: Armerede betonhuldæk på 1,2 x 4 meter i fuld skala og massive,
This teaching experiment was grounded the research project titled Genbrug på Matriklen (“Reuse on Site”), hosted at the Aarhus School of Architecture in collaboration with engineers, contractors, demolition companies, and architectural design offices. The research project investigates how building components can be directly reused on-site. The teaching experiment takes its departure from the project’s first iteration, where large concrete element systems from outdated housing estates were analysed, tested, and redesigned to be systematically re-employed in new constructions. A building system concluded the first iteration. A 1:1 prototype of this system stands at the front of the school. It is a modest but compelling demonstration of what reuse can mean when it becomes a building principle that generates space.
The course derived the approach to building from this research context and the building system and 1:1 prototype became a starting point and catalyst in the teaching experiment. It consisted of three categories of elements: reused concrete panels, a wooden substructure, and a series of metal brackets that hold the system together. Two main panel types were used: hollow

ikke-armerede vægpaneler på 2,5 x 2,4 meter. Disse strenge dimensioner blev både en begrænsning og en guide. De krævede forhandling og tilpasning, hvilket afspejlede de reelle udfordringer ved at arbejde med genbrugsmaterialer, hvor intet passer helt på samme måde som nye materialer. Arbejdet inden for denne struktur krævede samtidig opmærksomhed på geometri, proportioner og modularitet. Hver beslutning om forbindelse eller støtte havde betydning for den type boligrum, der skulle fusioneres, og hvordan det skulle bebos. Hvis en given panelstørrelse for eksempel bestemte en gulv-til-loft-højde på 2,2 meter, hvilke konsekvenser ville det så have?
Det vigtigste medium til at udforske disse spørgsmål var den fysiske model, der blev bygget i skala 1:20. Modellen fungerede ikke som en repræsentation af en færdig idé, men snarere som et aktivt medium til at tænke og skabe arkitektur. Den gjorde det muligt for deltagerne at arbejde med problemer vedrørende rum, struktur og komposition med deres hænder og øjne og direkte forstå og føle fysikken i de komponentbaserede bygningssystemer. Den udfordrede også de computerbaserede arbejdsgange, som arkitekturen i stigende grad arbejder med. I modsætning til den hastighed og allestedsnærværende
Fig. 2: En række modeller under projektgennemgangen i foråret 2025. / An arrangement of models during the project review in Spring, 2025.
reinforced deck slabs measuring 1.2 by 4 meters in full scale, and solid non-reinforced wall panels of 2.5 by 2.4 meters. These strict dimensions became both a limitation and a guide. They required negotiation and adjustment, mirroring the real challenges of working with reused materials, where nothing quite fits the way new materials do. Working within this structure required attention to geometry, proportion, and modularity at the same time. Each decision about connection or support had implications for the kind of domestic space that would merge, and how it would be inhabited. For example, if a given panel size determined a floor-to-ceiling height of 2.2 meters, what implications would that bring?
The main medium for exploring these questions was the physical model, built at a scale of 1:20. The model served not as a representation of a finished idea, but rather as an active medium for thinking and making architecture. It allowed participants to work through problems of space, structure, and composition with their hands and eyes and directly understand and feel the physics of the components-based building systems. It also challenged the computer-based workflows that architecture operates with increasingly. As opposed to the speed and


tilstedeværelse, som det virtuelle rum på en computer tilbyder, bremsede den fysiske model tænkningen og handlingen, da alle modelkomponenter skulle fremstilles i stedet for at blive fremtryllet eller slettet med et tryk på en knap.
Processen begyndte i den mindste skala med fremstillingen af et enkelt rum. Hver deltager modtog en præcedens: Et billede eller et maleri af et rum fra en eksisterende bygning fra den nyere eller ældre kunst- og arkitekturhistorie. Derefter genopbyggede de rummet ved hjælp af et byggesystem med genbrugte paneler. Denne øvelse krævede, at en kendt rumlig situation blev oversat til en ukendt materialelogik. De begrænsede panelstørrelser var i modstrid med de generøse rum med dobbelt loftshøjde, buede vægge eller rigt teksturerede indvendige overflader i de givne casestudier, hvilket førte til en forhandling mellem arkitektur og konstruktion.
Resultaterne af denne forhandling var afslørende. En tynd væg blev til en tyk. Placeringen og den nøjagtige størrelse af åbningerne ændrede sig, fordi panelernes dimensioner dikterede nye proportioner. Lysforholdene og synligheden ændrede sig, da materialets tykkelse ændrede forholdet mellem indvendigt og
ubiquity that the virtual space of a computer offers, the physical model slowed down the thinking and acting, as all model parts had to be made, as opposed to conjuring them up or deleting them with a press of a button.
The process began at the smallest scale, with the making of a single room. Each participant received a precedent: a picture or a painting of a room from an existing building from the recent or more distant parts of art and architecture history. They then rebuilt that room using the construction system of reused panels. This exercise required translating a known spatial situation into an unfamiliar material logic. The limited panel sizes dissented with the generous double-height ceiling rooms, curved walls, or richly textured interior surfaces of the given case studies, prompting a negotiation between architecture and construction.
The results of this negotiation were revealing. A thin wall became a thick one. The location and exact size of openings shifted because the panel dimensions dictated new proportions. The conditions of light and visibility changed as the material thickness altered the relationship between inside and outside.
Fig. 5: Valentin Serovs maleri The Hall of the Old House (1904) af Clara Sonne Mortensen / Valentin Serov’s painting The Hall of the Old House (1904) by Clara Sonne Mortensen
Fig. 6: Et værelse i Arne Jacobsens sommerhus (1937) af Kamille Aslaug Ramm / A room in Arne Jacobsen’s summer house (1937) by Kamille Aslaug Ramm

udvendigt. Gennem disse ændringer begyndte hver deltager at se, hvordan byggemetoder former oplevelsen. Dette tilskyndede også til improvisation af byggesystemet. Deltagerne undersøgte, hvordan tekstur, farve eller spor af det gamle udgjorde et særligt arkitektonisk sprog.
Efter at have udforsket byggesystemet ved at ombygge værelserne, blev arbejdets omfang udvidet. Med udgangspunkt i erfaringerne med panelets muligheder udtænkte deltagerne deres egne typologier for lejligheder og til sidst boligblokke. Herfra udfoldede semestret sig som en langsom proces med opbygning og genopbygning, hvor ideer blev afprøvet gennem fremstilling, som fungerede som en erstatning for byggeri. Ved slutningen af semestret havde hver deltager ikke kun udviklet et design til en boligblok, men også en vis forståelse for, hvordan materialer, struktur og rum er forbundet. Store modeller fyldte skolens største rum – Didakteket. Formet som rækkehuse, boliger i flere etager eller halve boligkarréer afslørede de, hvordan genbrug af de mest begrænsede midler kan skabe formmæssig rigdom
Through these shifts, each participant began to see how construction methods shape experience. This also encouraged improvisation of the construction system. The participants explored how texture, color, or the traces of old constituted a particular architectural language.
After exploring the building system in remaking the rooms, the work expanded in scale. Based on the learnings about the affordances of the panel system, the participants devised their own typologies of apartments and, eventually, the housing blocks. From here on, the semester unfolded as a slow process of building and rebuilding, where ideas were tested through making, which served as a proxy for building. By the end of the semester, each participant had developed not only a design for a housing block, but also a certain understanding of how materials, structure, and space are intertwined. Large models filled up the largest room of the school—Didakteket. Shaped as row houses, multi-level dwellings, or partial perimeter blocks, they revealed how the reuse of the most limited means can generate richness of form.
Fig. 7: Model af et rækkehusprojekt af Kamille Aslaug Ramm / Model of a row house project by Kamille Aslaug Ramm


Inddragelsen af forskningsprojektet Genbrug på Matriklen i den pædagogiske ramme tilføjede semesteropgaven en særlig dimension. Den direkte vidensoverførsel fra forskningen tilførte aktualitet og friskhed for både kursusdeltagere og undervisere. Det skabte også et alternativt, men præcist funderet aspekt af boligdesign i de studerendes arbejde. Kombinationen af et meget konkret, men stadig aldeles spekulativt byggesystem fra forskningsprojektet tilførte en legende holdning til rum- og bygningsdesign – og frigjorde tilsyneladende mange af de studerende og deres projekter fra forudfattede ideer om boliger. Især under designet af boligblokkene blev det klart, at deltagernes designprocesser var blevet individuelle i sine tilgange, og at deres rumlige sprog langt oversteg både etablerede byggesystemer og forskningsprojektets udgangspunkt.
Set i bakspejlet handlede eksperimentet mindre om at producere færdige bygninger og mere om at dyrke en forståelse af boligrum og byggeprocesser i en tid med ressourceknaphed og stadig mere håndgribelige materielle grænser for vækst. På samme måde udfordrede semestret den billedcentrerede
The integration of the Genbrug på Matriklen research project in the educational framework brought a special flavor to the semester assignment. Direct knowledge transfer from the research injected topicality and freshness for both course participants and teachers. It also established an alternative yet precisely grounded aspect of dwelling design in the participants’ work. The combination of a very concrete, but still highly speculative, building system from the research project brought a playful attitude to space and building design – and seemingly freed many projects and their authors from preconceived ideas of dwellings. Especially during the design of the building blocks, it became clear that the participants’ work had become individual in its approaches and their spatial language has far surpassed both established building systems as well as the research starting point.
Looking back, the experiment was less about producing finished buildings and more about cultivating an understanding of domestic space and building processes in the era of resource scarcity and increasingly tangible material limits of growth.
Fig. 8: Model og plantegninger af en boligblok af Florian Phil Rother / Model and a floor plan of an apartment block by Florian Phil Rother

9: Bygningsfragment, der afslører kombinationen af materialer af Morten Jensen / Building fragment revealing the combination of materials by Morten Jensen
Fig.

kultur inden for arkitektur ved at arbejde med fysiske modeller som stedfortrædere for byggeprocessen. Det bragte vores opmærksomhed tilbage til de konkrete realiteter ved at skabe og bygge rum og antydede, at aspekter af bæredygtighed ikke kun er et spørgsmål om præstationsmålinger, teknik og ledelsesmæssig optimering, men også et spørgsmål om rumkvalitet og måske et sted for nyt arkitektonisk udtryk.
Likewise, working with physical models as proxies of the building process, the semester challenged the image-centric culture of architecture. It brought our attention back to the tangible realities of making and building space, and suggested that aspects of sustainability are not only a matter of performance metrics, engineering, and managerial optimization, but also a matter of quality of space, and perhaps a site for new architectural expression.
Fig. 10: Tvillingehus af Iben Horup Jørgensen / Twin house by Iben Horup Jørgensen
ANDEN CASE DESIGNPROCES
– LISTEFABRIKKEN I ÅBYHØJ
SECOND CASE DESIGN PROCESS
– LISTEFABRIKKEN IN ÅBYHØJ
CEBRA: Stina Rask Jensen, Sara Bengtson
Arkitema: Eva Aaby, Karen Helene Brobakken
EFFEKT: Kasper Ax, Haidy Mousa
SLETH: Niels Eli Kjær Thomsen, Mathilde Strandberg Hallin, Anna Mette Exner Arkitektur: Esben Dannemand, Karen Emilie Mølgaard Rasmussen
Introduktion
Listefabrikken
Brødrene Eskildsens Listefabrik eller ’Listefabrikken’ er et kompleks af industrielle bygninger og lagerhaller beliggende i et mindre industriområde i Åby i den vestlige del af Aarhus, mellem Elkjærvej og Sylbækvej. Kompleksets bygninger er opført over en periode fra starten af 1960’erne og op til midten af 1980’erne. Desuden er der udført løbende ombygninger og modificeringer frem til i dag. Bygningerne varierer i størrelse og form. Nogle af bygningerne er opført som store, åbne haller med limtræsspær, mens andre har traditionelle bærende konstruktioner af massivt tømmer og spinkle spærfag. Alle bygningerne er opført på betonfundamenter med en klimaskærm af røde tegl og malede planker. Flere af bygningerne har stadig gamle asbesttage, og resten er belagt med malede trapezplader af stål.
Bygningskomplekset blev solgt til Ejendomskoncernen Domis omkring 2010, og er siden da blevet lejet ud til forskellige virksomheder og foretagender. En ny lokalplan for området (Lokalplan nr. X174), som i øjeblikket er under afklaring hos Aarhus Kommune, lægger op til en byudviklingsproces, der skal transformere kvarteret fra primært at være et erhvervsområde til et mere blandet kvarter med både boliger, erhverv og rekreative områder. Det forventes at den nye lokalplan vil træde i kraft fra 2026.
Domis (med rådgivning fra bl.a. SLETH Arkitekter) udarbejder en plan for transformationen af Listefabrikken, der (for nu) omfatter nedrivning af nogle bygninger, bevarelse og transformation af andre, opførelse af etageejendomme til boliger samt etablering af byrum og grønne områder mellem og omkring bygningerne. I første omgang er der planer om at udvikle ca. 8.000 m2 boliger, der udlægges som byggeretsgivende i den kommende lokalplan, mens den øvrige del af Listefabrikken, der udlægges som rammegivende.
Introduction
Listefabrikken:
‘Brødrene Eskildsens Listefabrik’, or ‘Listefabrikken’, is a complex of industrial buildings and warehouses located in a small industrial area in Åby in the western part of Aarhus, between Elkjærvej and Sylbækvej. The buildings were constructed over a couple of decades from the early 1960s to the mid-1980s. Additionally, ongoing renovations and modifications have been carried out up to the present day. The buildings vary in size and shape. Some of the buildings are large, open halls with glulam beams, while others have more traditional load-bearing structures made of solid timber and slender roof trusses. All the buildings are built on concrete foundations and with a climate screen of red brick and painted planks. Several of the buildings still have old asbestos roofs. The rest are covered with painted trapezoidal steel sheets.
The building complex was sold to the Domis real estate group around 2010 and has since been leased to various smaller companies and enterprises. A new local district plan for the area (Local Plan No. X174), which is currently processed by Aarhus Municipality, proposes an urban development process that will transform the neighborhood from a primarily industrial area into a more mixed neighborhood with residential, commercial, and recreational areas. The new local district plan is expected to become effective in 2026.
Domis (with consultancy from SLETH Arkitekter, among others) is currently drawing up plans for the transformation of Listefabrikken, which (for now) includes the demolition of some buildings, the preservation and transformation of others, the construction of multi-story residential buildings, and the establishment of urban spaces and green areas between and around the buildings. For the first stage, there are plans to develop approximately 8,000 m2 of housing, which will be designated/granted building rights in the upcoming local district plan, while the rest of Listefabrikken will be covered by a framework agreement.

Designsprinten i anden iteration
I anden iterations designsprint fik de deltagende tegnestuer stillet den udfordring at udvikle et byggesystem, der kan anvendes til boliger med udgangspunkt i Domis’ eksisterende ambitioner for udviklingen af listefabrikken, men med afsæt i mest muligt genbrug af materialer fra et udvalg af bygningerne på matriklen (Bygningerne C1, C2, D1, D2, E1, E2, F og G samt evt. B1 og B2). Målet med opgaven var at udvikle byggesystemer, der bruger mest muligt af materialet, så mindst muligt vil gå til spilde og samtidig gør det muligt at bygge mest muligt med de forhåndenværende materialer fra matriklen. Kort sagt: at bygge så meget som mulig af den fremtidige lokalplan for området med materialer fra matriklen.
Designsprinten i anden iteration forløb over lidt mere end en måned i april og maj 2025. Som i første iteration blev der afholdt daglige ’check-ins’ og ugentlige opsamlingsmøder med diskussion af problemstillinger og faglige inputs, og tegnestuernes arbejde og refleksioner samledes løbende i et fælles Miro-board.
The second iteration design sprint
In the second iteration design sprint, the participating architectural firms were challenged to develop a building system for housing based on Domis’ existing ambitions for the development of Listefabrikken, but with a focus on maximising the reuse of materials from a selection of the buildings on the site (Buildings C1, C2, D1, D2, E1, E2, F, and G, as well as B1 and B2). The goal of the task was to develop building systems that use as much of the material as possible so that as little as possible goes to waste, while at the same time making it possible to build as much as possible only using the existing materials from the site.
The second iteration of the design sprint took place over a little more than a month in April and May of 2025. As in the first iteration, there were daily check-ins and weekly follow-up meetings to discuss challenges and share ideas, and the architectural offices’ work and reflections were continuously compiled in a shared Miro board.
Fig. 1: Luftfoto af Listefabrikken: Foto: Domis / Aerial photo of Listefabrikken. Photo: Domis

Foruden Karen Emilie Mølgaard Rasmussen, Karen Helene Brobakken, Sara Bengtson, Haidy Mousa og Mathilde Strandberg Hallin var de fem deltagende tegnestuer repræsenteret af hhv. Esben Dannemand (Anna Mette Exner Arkitektur), Eva Aaby (Arkitema), Stina Rask Jensen (CEBRA), Kasper Ax (EFFEKT) og Niels Eli Kjær Thomsen (SLETH).
Dertil har Peter Vejrum (AARCH/Søren Jensen), Tim Tolman (Milva), Søren Malund Thomsen (Kingo), Claus Juul Nielsen (Gamle Mursten) samt Jens Møller Boeriis og John Skovbjerg (Domis) bidraget med faglige inputs i forløbet.
Det følgende afsnit er en opsamling af resultater og processer fra anden designsprint, udvalgt og kommenteret af tegnestuerne selv.
Fig 2: Listefabrikkens bygnigner / The buildings of ‘Listefabrikken’
Apart from Karen Emilie Mølgaard Rasmussen, Karen Helene Brobakken, Sara Bengtson, Haidy Mousa, and Mathilde Strandberg Hallin, the five participating architecture offices were represented by Esben Dannemand (Anna Mette Exner Arkitektur), Eva Aaby (Arkitema), Stina Rask Jensen (CEBRA), Kasper Ax (EFFEKT), and Niels Eli Kjær Thomsen (SLETH).
Additionally, Peter Vejrum (AARCH/Søren Jensen), Tim Tolman (Milva), Søren Malund Thomsen (Kingo), Claus Juul Nielsen (Gamle Mursten) and Jens Møller Boeriis and John Skovbjerg (Domis) contributed with professional input during the process.
The following section is a summary of the results and processes from the second design sprint, curated and commented on by the individual design studios.

3: Lagerhallernes store spænd med limtræsspær / Large open warehouse spaces made possible with glulam beams

Fig


Fig 5: Tagkonstruktionen I bygning C1 / Timber roof structure of building C1
Fig 6: Besøg på Listefabrikken med projektdeltagerne og Domis / Site visit at ’Listefabrikken’ with the project participants and Domis
Fig 4: Bygning C1’s ladeagtige tømmerkonstruktion / The barnlike solid timber structure of building C1

fig. 1: Plan rækkehus, 1:100 / Plan of terraced house, 1:100 / Eksploderet isometri, 1:200 / Exploded isometric drawing, 1:200
Arkitema: Eva Aaby, Karen Helene Brobakken
Designet tager udgangspunkt i genbrug af limtræsbjælker fra bygningerne D1 og D2. Disse bjælker er samlet i en ’A’-profil, der optimerer træets trykstyrke og muliggør et treetagers rækkehus. Denne ’A’-profil blev tidligt hoveddriver i mit projekt, både på grund af dens form og dens bæreevne. Ved at bruge overdimensioneret træelementer var det muligt at designe en bygning hvor den bærende konstruktion kunne være genbrugstræ. Den fysiske begrænsning til genbrugselementerne har ført til et mere organisk og materialebaseret design, hvor arkitekturen ikke blot er en form der kan formes arbitrært, men et resultat af materialernes iboende muligheder.
The design is based on the reuse of glulam beams from buildings D1 and D2. These beams are assembled in an ‘A’ profile that optimizes the compressive strength of the wood and enables a three-story terraced house. This ‘A’ profile became an early driving force in my project, both because of its shape and its load-bearing capacity. By using oversized wooden elements, it was possible to design a building where the load-bearing structure could be reused wood. The physical limitations of the reused elements have led to a more organic and material-based design, where the architecture is not just a form that can be shaped arbitrarily, but a result of the inherent possibilities of the materials.

Cyclopean concrete af mursten og fundament
Cyclopean concrete of brick and foundation

Planløsningen har med denne tilgang gennemgået flere iterationer, hvor areal og funktionalitet blev udfordret af tilgængelige materialer og konstruktionsteknikker. Gennem designprocessen har jeg arbejdet med flere forskellige tilgange og iterationer til rækkehuse, blandt andet Øko-hus-boligtypologier hvor jeg indarbejdet en buffersone der bidrager til indeklima og energistyring. I den endelige planløsning har jeg valgt at forskyde og rotere ’A’-profilen, så der skabes udspring og overhæng, der både giver dynamik og inviterer lys og udsigt ind i boligerne.
Gennem projektet har jeg arbejdet med genbrug som en flerlaget proces der omfatter flere niveauer og tilgange til genbrug. Jeg har arbejdet med om-brug, genanvendelse og
With this approach, the floor plan has undergone several iterations, where space and functionality were challenged by the available materials and construction techniques. Throughout the design process, I have worked with several different approaches and iterations for terraced houses, including Ecohouse housing typologies, where I have incorporated a buffer zone that contributes to the indoor climate and energy management. In the final floor plan, I chose to shift and rotate the ‘A’ profile to create canopies and overhangs that make it more dynamic and invite light and outdoor views into the homes.
Throughout the project, I worked with reuse as a multi-layered process that encompasses several levels and approaches
Fig. 2: Rækkehus i lokalplan (SLETH), 1:200 / Terraced house in local district plan (SLETH), 1:200
Fig 3.: Tagfacade med genbrugsvindue / Roof facade with reused window








































Process af cyclopean concrete (H Arquitectes, Social Housing 2104)
1. Selektiv nedtagning af eksisterende bygning
2. Udvalg af tilslag: tegl fra facade og beton fra fundament
3. Pladedannelse: Støbt og vibreret betonbase
4. Pladedannelse: Placering af tilslag
5. Pladedannelse: Beton hældes over, vibreres og udjævnes
6. Snit i pladen for at lave blokkene: 10 dage efter støbning af plade, skæres de til blokke ved hjælp af skivesag
upcycling; tre forskellige strategier der bidrager til projektets bæredygtighed:
Om-brug har jeg benyttet på tagbeklædningen, der genanvendes i sin oprindelige form uden behandling, for at undgå spredning af PCB, en farlig kemisk forbindelse der er blevet fundet i malingen.
Genanvendelse ligger i limtræbjælkerne, som efter bearbejdning og sammenføjning får nyt liv i “a”-profiler der udgør en del af den bærende konstruktion. De gamle bjælker tilpasses og sammensættes, så de kan løfte en bygningsstruktur – et tydeligt eksempel på at det genbrugte, ikke nødvendigvis er svagere, men kan konkurrere med nye materialer gennem innovativ design.

Samling af limtræbjælke / Assembly of glulam beams
Process of cyclopean concrete (H Arquitectes, Social Housing 2104)
1. Selective demolition of existing building
2. Selection of aggregate: brick from facade and concrete from foundation
3. Slab formation: Cast and vibrated concrete base
4. Slab formation: Placement of aggregate
5. Slab formation: Concrete is poured, vibrated, and leveled
6. Cutting the slab to make the blocks: 10 days after casting the slab, it is cut into blocks using a circular saw
to reuse. I have worked with reuse, recycling, and upcycling –three different strategies that contribute to the sustainability of the project:
Reuse has been applied to the roof cladding, which is reused in its original form without treatment to avoid the spread of PCBs, a hazardous chemical compound found in the paint.
Recycling is evident in the glulam beams, which, after processing and joining, are given new life in ‘A’ profiles that form part of the load-bearing structure. The old beams are adapted and assembled so that they can lift a building structure – a clear example of how recycled materials are not necessarily weaker but can compete with new materials through innovative design.
Opstalt rækkehus / Elevation of terraced house
Eksploderet E1 & E2. Rød = bruges ikke
Exploded E1 & E2. Red = not used
Upcycling er fremtrædende i håndteringen af nedrivningsmaterialer som tegl og betonfundamenter, der knuses og bruges som tilslag i betonblokke. Inspireret af H Arquitectes’ Social Housing 2104, hvor de bruger metoden cyclopean concrete, sikrer denne metode udnyttelse af ressourcerne, samtidig med at der skabes bærende elementer der kan monteres og demonteres på samme måde som tegl.
Mængden af genbrugbare materialer har også været en vigtig praksisovervejelse gennem processen. Hvor mange rækkehuse kan opføres med det tilgængelige materiale? Og hvordan kan jeg optimere brugen af genbrugsmaterialer? Med en beregning der tager højde for 20% materiale som går tabt, gennem skader eller destruktive-tests, vurderes det at der kan bygges 8 enheder, men ikke flere - på grund af begrænsningen i limtræbjælker.
Eksploderet D1 & D2. Rød = bruges ikke
Exploded D1 & D2. Red = not used
Upcycling is prominent in the handling of demolition materials such as bricks and concrete foundations, which are crushed and used as aggregate in concrete blocks. Inspired by H Arquitectes’ Social Housing 2104 where they use the cyclopean concrete method, this method ensures the utilization of resources while creating load-bearing elements that can be assembled and disassembled in the same way as bricks.
The amount of reusable materials has also been an important practical consideration throughout the process. How many terraced houses can be built with the available material? And how can I optimize the use of reused materials? With a calculation that takes into account 20% material loss due to damage or destructive testing, it is estimated that eight units can be built, but no more, due to the limitation of glulam beams.

1

Fig. 2


CEBRA: Stina Rask Jensen, Sara Bengtson
Listefabrikken består for det meste af teglsten, limtræ og trælister. Blandt disse materialer vakte især de buede limtræsbjælker interesse – deres særegne æstetik inspirerede til at undersøge de forskellige udtryk, man kan skabe med dem. Formundersøgelser og sammensætninger blev gennemført med limtræsbjælkerne i fokus (Se fig. 1). Ud over limtræet blev også genbrugte teglsten fra stedet inddraget i materialepaletten. Processen med at rense og genbruge teglsten er veludviklet i Danmark, hvilket gør det til et godt alternativ, hvis teglstenen fra site løber tør. De buede limtræsbjælker er et problem, da der kun findes 64 stk. og hvert rækkehus bruger 8 stk. Dette var noget som ikke blev overvejet i startfasen i dette projekt.
Listefabrikken consists mainly of bricks, glulam, and wooden strips. Among these materials, the curved glulam beams were of particular interest – their distinctive aesthetics inspired an investigation into the different expressions that can be created with them. Form studies and compositions were carried out with a focus on the glulam beams (see fig. 1). In addition to the glulam, reused bricks from the site were also included in the material palette. The process of cleaning and reusing bricks is quite advanced in Denmark, so it is a good alternative even if the bricks from the site run out. The curved glulam beams are a problem, as there are only 64 of them and each terraced house uses eight. This was not considered in the initial phase of this project.
Fig.

Fig. 3
Det opstod hurtigt praktiske udfordringer – særligt i forhold til bæreevne og vejrbestandighed. Limtræsbjælkerne, som oprindeligt var indendørs, skulle nu tænkes ind i en udendørs konstruktion. Dette krævede en kritisk undersøgelse af, hvordan de kunne beskyttes, eksempelvis gennem dobbelte vægopbygninger, der tillader ventilation og reducerer risikoen for fugtophobning (se fig. 2). Her opstod nye lag i designet, hvor funktion og materialeforståelse blev vævet tæt sammen. Hvordan dette vil fungere i realiteten, er problemer som må undersøkes med ressurser som vi ikke havde tilstrekkelig med. Et tæt samarbejde med ingeniører eller andre professioner med specifik erfaring indenfor genbrugsmaterialer ville have hjulpet processen meget.
Practical challenges quickly arose, particularly in relation to load-bearing capacity and weather resistance. The glulam beams, which were originally indoors, now had to be incorporated into an outdoor structure. This required a critical examination of how they could be protected, for example through double wall constructions that allow ventilation and reduce the risk of moisture accumulation (see fig. 2). This gave rise to new layers in the design, where function and material understanding were closely interwoven. How this will work in reality are issues that could not be fully investigated within the framework of this project. Close collaboration with engineers and/or other professionals with specific experience in reused materials would have greatly helped the process.

4
Sideløbende kom manglen på tilstrækkelige bjælker til etagedækket op som et problem. Gennem afsøgning af de gamle tagkonstruktioner i nærliggende bygninger blev det muligt at udvinde brugbart genbrugstræ. I stedet for at genskabe limtræsbjælker, blev idéen om gitterbjælker introduceret (se fig. 3). Gitterbjælker tillader lange spænd uden store mængder træ, fordi de kun bærer, hvor det er nødvendigt – en tilgang, der harmonerer med ønsket om at udnytte ressourcerne så effektivt som muligt. Det krævede dog yderligere materialer, som eksempelvis metal.
Begrænsningerne ved materialernes dimensioner, mængder og tilstand blev retningsgivende. Vinduer blev overlappet med tegl på ydersiden for at skabe et spil mellem nyt og gammelt, indvendigt og udvendigt. Teglen blev ikke bare en beklædning, men en måde at iscenesætte genbrugsvindens forskellighed og dermed give designet mere spillerum. Undervejs blev muligheden for en biodiversitetsvæg også undersøgt – en levende facade, hvor planter kan vokse og gradvist ændre bygningens udtryk (se fig. 4) Tanken var at lade tiden og naturen blive medskabere i en arkitektur, der allerede er præget af historiske materialer. Igen ved at udnytte teglens mange muligheder.




At the same time, the lack of sufficient beams for the floor slab emerged as a problem. By searching through the old roof structures in nearby buildings, it became possible to extract usable reused wood. Instead of recreating glulam beams, the idea of lattice beams was introduced (see fig. 3). Lattice beams allow for long spans without large amounts of wood because they only bear weight where necessary – an approach that harmonizes with the desire to utilize resources as efficiently as possible. However, this required additional materials, such as metal.
The limitations of the materials’ dimensions, quantities, and condition were decisive. Windows were overlapped with tiles on the outside to create an interplay between new and old, inside and outside. The tiles became not just a covering, but a way of showcasing the diversity of reused wood and thus giving the design more scope. Along the way, the possibility of a biodiversity wall was also explored – a living façade where plants can grow and gradually change the appearance of the building (see fig. 4). The idea was to let time and nature become co-creators in an architecture that is already characterized by historical materials, again by exploiting the many possibilities of brick.
Fig. 5
Fig. 6
Fig.


Fig. 7

Efter det arkitektoniske arbejde blev der arbejdet med logistikken omkring selektiv nedrivning. Ved at analysere og visualisere, hvordan materialerne kunne demonteres skånsomt og genbruges i nye sammenhænge, blev materialestrømme og opmagasineringsmuligheder kortlagt (se fig. 5-6). Det blev hurtigt klart, at de genbrugelige materialer fyldte langt mindre end først antaget, hvilket gjorde det realistisk at opbevare dem midlertidigt i de eksisterende haller. Problemet er, at mange materialer løber tør og derfor ikke er realistisk at kunne bygge de nødvendige rækkehuse. Derfor tror jeg at logistikanalysen burde være en del af startprocessen. Så får alle et godt indblik i hvad vi har og hvor meget vi skal udfylde af lokalplanen.
Alt i alt har processen vist, hvordan genbrug ikke kun handler om at spare på ressourcer, men om at skabe et arkitektonisk udtryk, der er dybt forankret i konteksten og materialernes tidligere liv. Det er en designmetode, som defineres af det eksisterende, og udfordrer designerne til at finde metoder til at videreføre det.
After the architectural work, the logistics of selective demolition were worked out. Analyzing and visualizing how the materials could be carefully dismantled and reused in new contexts helped to map material flows and storage options (see figs. 5-6). It quickly became clear that the reusable materials took up far less space than initially assumed, making it realistic to store them temporarily in the existing halls. The problem is that many materials are running out, making it unrealistic to build the necessary terraced houses. That is why I believe that logistics analysis should be part of the initial process. This gives everyone good insight into what we have and how much we need to fill in the local plan.
All in all, the process has shown how reuse is not just about saving resources, but about creating an architectural expression that is deeply rooted in the context and the previous life of the materials. It is a design method that is defined by what already exists and challenges designers to find ways to continue it.




EFFEKT: Kasper Ax, Haidy Mousa
TRIN 1: SELEKTIV DEMONTERING AF TAGPANELER

STEP 1: SELECTIVE DISMANTLING OF ROOF PANELS

3)
PROCESS:

- Trin 1 er at fjerne udvalgte områder af det eksisterende tag i følgende rækkefølge:
4)

1) Ubehandlet træ i loftet (15,1) demonteres nedenfra.
Kan genbruges direkte.
2) Stenuldplader (15.2) fjernes. Kan ikke genbruges – farligt.
3) Fjern de bølgede tagplader (1.2). Kan ikke genbruges – farligt.
4) Fjern de bølgede tagplader (1.1). OBS! ›Asbest‹ skal håndteres med forsigtighed. Kan genbruges i utilgængelige områder uden behandling.

PROCESS:
- Step 1 is to take down selected areas of the existing roof in the following order:
1) Ceiling untreated wood (15.1) dismantled from below. Directly reusable.

5) Loftsbjælker af træ (15.1) fjernet. Kan genbruges direkte.

2) Rockwool boards (15.2) are taken down.
Not to be reused - hazardous.

3) Take down the corrugated top roofing sheets (1.2).
Not to be reused - hazardous.
4) Take down the corrugated top roofing sheets (1.1).
Note: ‘Asbestos’ should be handled with care!
Reusable in inaccessible areas w/o treatment.
5) Ceiling wooden beams (15.1) taken down. Directly reusable.


PROCES:
1)
2)
- Trin 2 er at fjerne eksisterende vinduer og døre. Derefter demonteres det udvendige træværk.
3)
1) Fjern døre og vinduer (5.1). Kan genbruges direkte.


2) Fjern alle metaldele (11.1). Kan genbruges direkte.

3) Demonter omhyggeligt udvendigt træværk (10.1) til genbrug, da det kan genbruges efter dekontaminering.

PROCES:
- Trin 3 er at fjerne eksisterende vinduer og døre. Derefter demonteres det udvendige træværk.
1) Skær murværket (4.1) i stykker på 1-2 m og opbevar dem vandret til genbrug. Kan genbruges direkte.
2) Stenuldplader (4.2) fjernes. Kan ikke genbruges – farligt.

PROCESS:

- Step 2 is to take out the existing windows and doors. After, the exterior woodwork is dismantled.
1) Take out the doors and windows (5.1).
Directly reusable.
2) Take out all metal parts (11.1). Directly reusable.
3) Carefully dismantle exterior woodwork (10.1) for repurposing. Can be reused after decontamination.

PROCESS:
- Step 3 is to take out existing windows and doors. After, the exterior woodwork is dismantled.

1) Cut the brickwork (4.1) into patches of 1-2m and store them horizontally for repurposing. Directly reusable.
2) Rockwool boards (4.2) are taken down.
Not to be reused - hazardous.



PROCESS:
- Trin 4 er at skære og fjerne limtræsbjælkerne selektivt. Til dette trin skal der foretages en række forberedende trin.
1) Fordel de indre hjørner af hver bolig.
2) Bor huller i betonpladen og indsæt pælefundamenter.
3) Oven på pælefundamenterne: Indsæt træsøjler.
4) Tilskær limtræet. Kan genbruges direkte.

PROCESS:
- Step 4 is to selectively cut and take down the glulam beams. For this step, a series of preparation steps need to take place.
1) Allocate the inner corners of each housing unit.
2) Drill holes in the concrete slab and insert pile foundations.
3) On top of the pile foundations, insert wooden columns.
4) Cut the glulams. Directly reusable.
TRIN 5: SELEKTIV FJERNELSE AF BETONBUNDPLADE

REMOVAL OF CONCRETE BASE SLAB

PROCES:
- Trin 5 består i selektivt at skære og udskifte dele af terrændækket og placere de skårne dele oven på det resterende terrændæk for at skabe en
gang, der giver trinfri adgang til alle hoveddøre.
1) Skær og fjern betondækdelene. Kan genbruges direkte.


PROCESS:
- Step 5 is to selectively cut and replace parts of the base slab and place the cut parts on top of the remaining slab in order to create a pathway that


gives step free access to all front doors.

1) Cut and remove the concrete slab parts. Directly reusable.









PROCES:
- Trin 6 er at bygge en basisramme af det genanvendte limtræ og trævægge af genanvendte træbjælker fra taget. Der skal isoleres.
1) Indsæt genanvendt limtræ som grundlag.
Genbrugt limtræ.
2) Byg vægkonstruktionerne. Genbrugte tagbjælker. 3) Tilføj isolering. Nyt.
PROCESS:
- Step 6 is to build a base frame out of the reused glulam and wooden wall frames out of reused wood beams from the roof. Insulation has to be new.

1) Insert repurposed Glulam as base. Upcycled Glulam.
2) Build the wall frames. Upcycled roof beams.
3) Add insulation. New.





PROCES:
2)
- Trin 7 er at indsætte vinduer, døre og murværkssektioner.
3)
1) Indsæt vinduer. Genbrugt for at matche energibehovet.


2) Indsæt døre. Genbrugt, så de opfylder energikravene.
3) Byg murstensvægge. Genbrugte 1-1,5 m murstenssektioner.
PROCES:
- Trin 8 er at tilføje indvendig træbeklædning og udvendig bræddelag til let udvendige facade.
1) Tilføj indvendig træbeklædning. Upcyclet for at matche funktionelle krav.
PROCESS:
- Step 7 is to insert windows, doors and brick patches.
1) Insert windows. Upcycled to match energy demands.

2) Insert doors. Upcycled to match energy demands.
3) Build brick walls. Upcycled 1-1.5m brick patches.


2) Tilføj udvendigt bræddelag som forberedelse til den udvendige finish. Direkte genanvendelig.

PROCESS:
- Step 8 is to add interior wood cladding and exterior lath for light exterior façade.
1) Add interior wood cladding. Upcycled to match functional demands.

2) Add exterior lath as preparation for exterior finish. Directly reusable.





PROCESS:
2)
- Trin 9 er at tilføje den endelige udvendige finish.
1) Tilføj udvendig træfinish. Direkte genanvendelig, men placeret således at den er utilgængelig.
MATERIALER: MATERIALS:
15 - 20 % Uberørt
30 - 35 % Genbrugt / Genbrugt direkte
5 - 10 % Upcyclet
2) Tilføj udvendig bølgefinish, Upcyclet for at matche de funktionelle krav.
PROCESS:
- Step 9 is to add the final exterior finish.
1) Add exterior wood finish. Directly reusable but placed so they are inaccessible.

2) Add exterior corrugated finish. Upcycled to match functional demands.

10 - 15 % Test
10 - 15 % Ikke-brugbart 10 - 15 % Nyt
15 - 20% Untouched 30 - 35% Recycled / reused directly 5 - 10% Upcycled
10 - 15% Testing 10 - 15% Non-usable 10 - 15% New









SLETH: NIELS ELI
KJÆR
THOMSEN,
MATHILDE STRANDBERG HALLIN
På sitetet er SF-sten en gennemgående del af belægningen. Disse industrielt fremstillede betonmoduler opfattes ofte som rent funktionelle og uden nævneværdige æstetiske kvaliteter. Ved at eksperimentere med SF-stenen som et arkitektonisk element – eksempelvis i facader, søjlekonstruktioner eller som strukturelt modul – undersøgte jeg, hvordan stenen gennem gentagelse, skalering, rotation og transformation kunne fungere som et bærende motiv. Ved at stable, rotere og bygge med dem i mock-ups viste de deres æstetiske og taktile potentiale. De bar patina, nuance og uperfekthed, som er interessant. For at indfange dette har jeg arbejdet med collager for at indkapsle projektets stoflighed. For også at skabe en forbindelse til det eksisterende har jeg desuden undersøgt byggeskikprincipper,
On site, ‘SF’ stones are a recurring feature. These industrially manufactured concrete stones are often perceived as purely functional and without any real aesthetic qualities. By experimenting with SF stone as an architectural element – for example, in facades, in pillars, or as a structural module – I explored how the stone could function as a recurring motif through repetition, scaling, rotation, and transformation. By stacking, rotating, and building with them in mock-ups, they revealed their aesthetic and tactile potential. They had patina, nuance, and imperfection, which is interesting. To capture this, I worked with collages to encapsulate the materiality of the project. To also create a connection to the existing, I examined building customs principles, which I translated into diagrams – with a
Fig. 2.1
Fig. 2.2
Fig. 2.3

som jeg har oversat til diagrammer – med fokus på rytme og inddeling – som inspiration til udviklingen af facadeprincippet.
Selve skelettet, konstruktionen, kom først efter det indledende arbejde med SF-stenen. Men allerede på site blev jeg fascineret af de buede limtræsbjælker, som findes i bygning D1 og D2. De blev undersøgt for deres potentiale som konstruktivt system. Da deres længder og dimensioner var givne, måtte konstruktionen tilpasses dem – ikke omvendt. Ved kun at vende og skære dem lidt til, kunne de danne skelet til bygningskroppen. Det blev hurtigt tydeligt, at limtræsbjælkerne ikke var høje nok til at kunne huse fire etager. Derfor blev murede søjler af tegl fra site tilføjet for at løfte bjælkerne op i den nødvendige højde.
Til opbygningen af dækkene har der været mange overvejelser –også med hensyn til træets historik: Kan det holde? Hvor meget skal suppleres? Etagedækket blev eksperimenteret frem – først med alt for stor tykkelse, siden med en lettere version inspireret af ribbedæk med sand, brugt i MiniCO2-husene i Fredericia.
I projektet blev konstruktionen en slags underliggende fortælling. Detaljen, hvor en muret søjle møder en limtræsbjælke, blev ikke kun en teknisk løsning – men også et billede på, hvordan nye og gamle systemer kan mødes. Detaljen afslører materialernes


focus on rhythm and division – as inspiration for the development of the façade principle.
The skeleton or construction itself came only after the initial work with the SF stone. But already on site, I was fascinated by the curved glulam beams found in buildings D1 and D2. They were examined for their potential as a structural system. Since their lengths and dimensions were given, the construction had to be adapted to them – not the other way around. By simply turning and cutting them a little, they could form the skeleton for the building structure. It quickly became clear that the glulam beams were not high enough to support four floors. Therefore, brick columns from the site were added to raise the beams to the required height.
Many considerations went into the construction of the floor slabs, including the history of the timber: Would it hold? How much would need to be supplemented? The floor slab was developed through experimentation – first with excessive thickness, then with a lighter version inspired by ribbed floor slabs with sand, which was used in the MiniCO2 houses in Fredericia.
In the project, the construction became a kind of underlying narrative. The detail where a brick column meets a glulam beam
Fig. 4.1
Fig. 4.2
Fig.3



karakter og samspil og understreger ønsket om at skabe ærlige, stoflige samlinger. I stedet for at skjule overgange bliver de fremhævet og anerkendt.
Trappen blev med tiden et fokus. Ikke kun som funktion, men som rum og mulighed for fællesskab. Trappetårnet er konstrueret som en let struktur i limtræ, genbrugt fra bygning G. Selve trappen og rækværket er udviklet som nye elementer, men der har været overvejelser om, hvordan også disse kunne fremstilles af overskudstræ eller metalrester – dog rakte tiden ikke til det. Trappetårnet fungerer som en arkitektonisk forgrening og samtidig som en social og bæredygtig løsning: flere boliger kan kobles op omkring én trappe. Tanken er, at to bygningskroppe
became not only a technical solution but also an image of how new and old systems can meet. The detail reveals the character and interaction of the materials and emphasizes the desire to create honest material joints. Instead of hiding transitions, they are highlighted and acknowledged.
Over time, the staircase became a focal point, not only as a function, but as a space and an opportunity for community. The stair tower is constructed as a light structure in glulam, reused from building G. The staircase and railing themselves have been developed as new elements, but consideration has been given to how these could also be made from surplus wood or metal scraps – however, there was not enough time for this. The stair
Fig. 5.1
Fig. 5.3
Fig. 6
Fig. 5.2
– måske flere – kan dele én opgang, hvilket både sparer materiale og åbner for fællesarealer, hvor beboere mødes.
Helt fra start arbejdede jeg inden for et grid i plan. Da projektet er baseret på genbrug, virkede det naturligt at organisere boligen i moduler. Inden for dette grid blev boligen opdelt i seks felter, som svarer til rum. Jeg har arbejdet med, hvordan planen bedst rummer køkken, stue, bad og to værelser – samtidig med, at der skabes rumlige kvaliteter: lange kig, hvor limtræsbjælkerne kommer til syne, og visuelle forbindelser gennem boligen. Planen er både funktionel og rumlig – og tæt koblet til konstruktionen.
Den sprængte aksonometri viser, hvor materialerne kommer fra, hvordan de flytter sig, og hvor de bliver brugt. På den måde bliver det muligt at aflæse ikke blot bygningens fysiske opbygning, men også dens cirkulære kredsløb. Kortlægningen af materialestrømme gør det tydeligt, hvordan nedrivning og opbygning er dybt forbundne, og hvordan ressourcerne på én matrikel kan omformes til noget nyt – med respekt for det gamle. Diagrammet blev et værktøj til at forstå arkitekturen som system – ikke kun af rum, men af ressourcer og forbindelser.
Kombinationen af SF-sten, opskåret beton og limtræ skaber en rytmisk og ru æstetik. Facaden er ikke glat eller ensartet – men levende og sammensat. Overliggere i beton, variation i mønster
tower functions as an architectural extension and, at the same time, as a social and sustainable solution: several dwellings can be connected around a single staircase. The idea is that two building structures – perhaps more – can share a single staircase, which both saves material and opens up common areas where residents can meet.
From the outset, I worked within a grid plan. As the project is based on reuse, it seemed natural to organize the home into modules. Within this grid, the home was divided into six fields, corresponding to rooms. I have worked on how the plan best accommodates a kitchen, living room, bathroom, and two bedrooms – while also creating spatial qualities: long views where the glulam beams are visible and visual connections throughout the home. The plan is both functional and spatial – and closely linked to the construction.
The exploded axonometric shows where the materials come from, how they move, and where they are used. In this way, it is possible to read not only the physical structure of the building, but also its circular cycle. The mapping of material flows makes it clear how demolition and construction are deeply connected and how the resources on a single plot of land can be transformed into something new – with respect for the old. The diagram became a tool for understanding architecture as a system – not only of spaces, but of resources and connections.
Fig. 7



og tydelige overgange mellem materialer skaber visuel klarhed uden at miste taktilitet. Genbrug handler her ikke kun om form og funktion, men er blevet bærende for projektets atmosfære og karakter. Begrænsningen om udelukkende at bruge materialer fra samme matrikel var i starten en udfordring – men blev hurtigt en drivkraft. Man tvinges til at undersøge, gentænke og gentage. Det ændrer tempoet i designprocessen: i stedet for hurtige skitser kræver det research, mock-ups, test og løbende justering. Det blev en langsommere, men også langt mere reflekterende proces. En, hvor løsningerne ikke lå på forhånd, men blev udviklet i tæt dialog med materialerne. Designsprinten har fået os til at give det skæve og uperfekte værdi. Det, der i nybyggeri ofte sorteres fra – pletter, patina, skævheder – er her blevet til kvaliteter. Det er netop forskellene og afvigelserne, der har givet projektet karakter. De er blevet indarbejdet og fremhævet i et forsøg på at skabe noget, der ikke kunne være opstået på ny. Det er i spændingsfeltet mellem det præcise og det uensartede, at æstetikken og arkitekturen i dette projekt har fundet sin form.

The combination of SF stone, cut concrete, and glulam creates a rhythmic and rough aesthetic. The façade is not smooth or uniform – but lively and complex. Concrete lintels, variations in pattern, and clear transitions between materials create visual clarity without losing tactility. Here, reuse is not just about form and function but has become fundamental to the atmosphere and character of the project. The restriction of using only materials from the same plot was initially a challenge, but quickly became a driving force. One is forced to investigate, rethink, and repeat. This changes the pace of the design process: instead of quick sketches, it requires research, mock-ups, testing, and ongoing adjustment. It became a slower but also much more reflective process – one where the solutions were not predetermined but were developed in close dialogue with the materials. The design sprint has led us to value the quirky and imperfect. What is often discarded in new construction – stains, patina, and irregularities – have here become qualities. It is precisely these differences and deviations that have given the project its character. They have been incorporated and highlighted in an attempt to create something that could not have been recreated. It is in the tension between the precise and the uneven that the aesthetics and architecture of this project have found their form.
Fig. 10
Fig. 8
Fig. 9
11
12.1
Fig. 12.2
Fig.
Fig.
Fig. 1: Listefabrikken
















Fig. 2: Stedets Karakter / The character of the site
Anna Mette Exner Arkitektur: Esben Dannemand, Karen Emilie Mølgaard Rasmussen
LISTEFABRIKKEN: Mange steder finder man gamle, forladte fabriksbygninger. Modulære bygninger bygget i taktfast rytme med solide skeletter. Der er ofte tale om store volumener og dublerede tvillinger placeret ved siden af hinanden eller i tæt sammenhæng. Ved Listefabrikken blev jeg opmærksom på tvillingerne igennem en nærmere registrering af området, hvor især tvillingebygningerne D1 og D2 fangede min opmærksomhed. Hvad sker der, hvis man sætter to tvillingebygninger sammen? Hvad sker der, når man ændrer tvillingernes funktion? Kan man fjerne den ene tvilling og lade den understøtte den anden uden at tilføje nyt? Hvordan kan man bygge nye boliger ved kun at genbruge hvad der i forvejen er på matriklen? Og hvor mange boliger kan man bygge?
LISTEFABRIKKEN: In many places, one finds old, abandoned factory buildings – modular buildings constructed in a rhythmic pattern with solid frames. These are often large structures and duplicate twins placed side by side or in close proximity. At Listefabrikken, I became aware of the twins through a closer examination of the area, where the twin buildings D1 and D2 in particular caught my attention. What happens if you put two twin buildings together? What happens when you change the function of the twins? Can you remove one twin and let it support the other without adding anything new? How can you build new homes by only reusing what is already on the land? And how many homes can you build?

PROCESSEN: For at arbejde konstruktivt med denne kompleksitet, valgte jeg at forsøge at strukturere min designproces for at skabe greb, der kunne hjælpe mig med at vurdere og prioritere. Som en del af strukturen ønskede jeg at arbejde med et byggefællesskab, og undersøge hvilken effekt dette kan have på en designproces og især koreografien. Hvad vil der ske, hvis man lader et byggefællesskab stå for opførelsen af de nye bo-enheder?
FRA TO TVILLINGER TIL EN: Her ses det diagrammatisk, hvordan det er tiltænkt, at to tvillinger bliver til nye bo-enheder, og hvordan materialet fra den ene tvilling genbruges til at understøtte den anden tvillings nye funktioner.
MATERIALITET: Diagrammet viser registreringer af udvalgte materialer fra Listefabrikkens tvillingebygninger og deres taktilitet. De registrerede materialer og kortlægningen heraf viste sig, at blive grundlæggende for mit videre arbejde med bo-enhedernes nye bærende konstruktioner.










THE PROCESS: To work constructively with this complexity, I chose to try to structure my design process to create a framework that could help me assess and prioritize. As part of the structure, I wanted to work with a building community and investigate the effect this could have on the design process and, in particular, the choreography. What would happen if a building community were responsible for constructing the new residential units?
FROM TWO TWINS TO ONE: This diagram shows how the two twins are intended to become new residential units and how the material from one twin is reused to support the new functions of the other twin.
MATERIALITY: The diagram shows records of selected materials from Listefabrikken’s twin buildings and their tactility. The recorded materials and their mapping proved to be fundamental to my further work with the new load-bearing structures of the housing units.
Hvordan bliver
når
Fig. 5: Materialitet / Materiality
Fig. 3: Processen / The process
Fig. 4: Fra to tvillinger til én / From two twins to one
Fig. 6: En sammensat æstetik / A


7: Bo-enhederne / The housing units
EN SAMMENSAT ÆSTETIK: Med collagen undersøgte jeg, hvordan æstetikken påvirkes, når vi genbruger alt på matriklen. Hvis vi i højere grad skal genbruge og genanvende byggematerialer, betyder det en ny og mere sammensat form for arkitektur, end den vi kender i dag. Æstetikken vil opstå som en konsekvens af det stedbundne og i dialog med det eksisterende, og som collagen viser, vil æstetikken i højere grad kræve en accept af det slidte, skæve, forvredne og ufuldkommene. Resultatet vil stå ufærdigt og upoleret i den klassiske forstand, men materialernes tidligere liv vil blive en aktiv del af fortællingen.
BO-ENHEDERNE: Efter en række volumenstudier af den eksisterende tvillingebygning og undersøgelser af, hvordan man kan indrette nye boliger i det eksisterende, kom jeg frem til, at den mest optimale løsning i forhold til at forbruge mindst muligt materiale, så man i sidste ende kan få flest bo-enheder, er at placere bygningerne op mod hinanden, og undgå indvendige gennemgangssystemer og i stedet have adgang udefra. Ifølge SLETHs lokalplan skal boligerne have mindst to etager. Det
A COMPOSITE AESTHETIC: With the collage, I explored how aesthetics are affected when we reuse everything on the site. If we are to reuse and recycle building materials to a greater extent, this will mean a new and more composite form of architecture than we know today. The aesthetics will arise as a consequence of the site-specific nature and in dialogue with the existing, and as the collage shows, the aesthetics will require a greater acceptance of the worn, crooked, twisted, and imperfect. The result will be unfinished and unpolished in the classical sense, but the previous life of the materials will become an active part of the narrative.
THE HOUSING UNITS: After a series of volume studies of the existing twin building and investigations into how to design new homes within the existing structure, I concluded that the most optimal solution, in terms of using the least amount of material so the most housing units can be created, is to place the buildings next to each other and to avoid internal passageways, instead providing access from the outside. According to SLETH’s
Fig.




Fig. 8: Et byggestystem / A building system




løses ved at opbygge en kerne i bo-enhedens ene ende, der klodser op mod bo-enhederne på den anden side.
ET BYGGESYSTEM: Hvordan genbruges materialerne fra den ene tvillingebygning til at understøtte den anden tvillings bo-enheder? Hvilke materialer anvendes til hvilke konstruktioner? Hvad bevares i den blivende tvilling? Og hvordan designer man et generelt byggesystem med afsæt i genbrug af matriklens materialer? Som det ses i diagrammet, er det tiltænkt, at byggefællesskabet selv skal konstruere bo-enhedens ydre beklædning i en form for grid-system. Her er det tiltænkt, at alle de materialer, som ikke bruges til bo-enhedens kerne og anden etage, skal kunne indgå i en moderne form for bindingsværk, hvor grid-strukturens tavl udfyldes ud af de materialer, der er tilbage efter bo-enhedens kerne er bygget.
NYE KONSTRUKTIONER AF GAMLE MATERIALER: Efter kortlægningen af fabrikkens materialer gik jeg i gang med at forsøge at konstruere bo-enhedernes kerner. Virkelig en svær
Fig. 9: Nye konstruktioner af gamle materialer / New constructions from old materials
local plan, the dwellings must have at least two floors. This is solved by building a core at one end of the residential unit that connects to the residential units on the other side.
A BUILDING SYSTEM: How are the materials from one twin building reused to support the residential units of the other twin? Which materials are used for which structures? What is preserved in the remaining twin? And how do you design a general building system based on the reuse of the land registry’s materials? As shown in the diagram, the building community itself is intended to construct the outer cladding of the residential unit in a kind of grid system. The intention here is that all materials not used for the core and second floor of the residential unit can be incorporated into a modern form of half-timbering, where the grid structure is filled in with the materials left over after the core of the residential unit has been built.
NEW CONSTRUCTIONS FROM OLD MATERIALS: After mapping the factory’s materials, I set about trying to construct the cores
KERNEN: BETON OG MURSTEN?
Når boligerne ligger op ad hinanden støder væggene op til hinanden, derfor kan der bruges mindre materiale
muret op, så murstenene støtter betonen EKSISTERENDE
KERNEN BYGGEFÆLLESSKAB
opgave, hvor der manglede konstruktiv viden. Det blev dog klart for mig, at de tunge materialer såsom terrændæk og mursten var smarte at bruge til bo-enhedens tunge kerne på grund af mangel på lettere materiale til det moderne bindingsværk
LOKALPLANEN: Når vi fjerner den ene tvillingebygning for at understøtte den anden, mister vi nogle kvadratmeter. Ifølge SLETHs lokalplan ønskes 80 nye boliger på matriklen på 80 kvadratmeter hver, men måske vi skal bo anderledes i fremtiden? Når materialer genbruges og anvendes på ny, er det anslået, at det koster 20% af materialet. Måske vi kigger ind i en fremtid, hvor vi skal bo på færre kvadratmeter? Ved at sammensætte de to tvillingebygninger D1 og D2 har jeg estimeret, at man vil kunne bygge 16 bo-enheder. Hvis man skalerer det op til resten af området og forestiller sig, at man kan sammensætte Listefabrikkens andre tvillingebygninger på samme måde, vil man måske kunne bygge 45-50 bo-enheder på omkring 30 kvadratmeter. Måske denne tilgang kan være en del af løsningen?
KOREOGRAFIEN OG BYGGEFÆLLESSKABET: Hvordan kan det logistisk set lade sig gøre, at sammensætte tvillingerne og bygge bo-enhederne? Hvordan og i hvilken rækkefølge overfører man den ene tvillings materialer til den anden? Hvordan opbevarer man materialet? Hvornår og hvordan overføres taget fra

of the residential units. This was a really difficult task, as I lacked the necessary construction knowledge. However, it became clear to me that heavy materials such as terrazzo and bricks were a smart choice for the heavy core of the housing unit due to the lack of lighter materials for modern half-timbering.
THE LOCAL PLAN: When we remove one of the twin buildings to support the other, we lose a few square meters. According to SLETH’s local plan, 80 new homes are desired on the 80-square-metre plot, but perhaps we will have to live differently in the future? When materials are recycled and reused, it is estimated that this costs 20% of the material. Perhaps we are looking at a future where we will have to live in fewer square meters? By combining the two twin buildings, D1 and D2, I have estimated that 16 residential units could be built. If you scale this up to the rest of the area and imagine that you can combine Listefabrikken’s other twin buildings in the same way, you could perhaps build 45-50 residential units of around 30 square meters. Perhaps this approach could be part of the solution?
CHOREOGRAPHY AND THE BUILDING COMMUNITY: How is it logistically possible to assemble the twins and build the residential units? How and in what order do you transfer the materials from one twin to the other? How do you store the materials?
Mængden af materiale, der bruges på kerne og gridstruktur er visket bort. Resten skal bruges til beklædning af gridstrukturen.
En ukendt mængde mursten?
Noget af den anden tvilling står endnu. Flere materialer.
Fig. 10: Lokalplanen /The
The choreography and the building community



den ene tvilling til den anden? Disse spørgsmål blev tydelige, da jeg gik dybere ned i koreografien, når to tvillingebygninger sammensættes. Måske man skulle have taget koreografien ind tidligere i designprocessen? Diagrammet viser, hvordan kernen først bygges, hvorefter grid-strukturen og det moderne bindingsværk sammensættes, for at man til sidst individuelt i byggefællesskabets bo-enheder tilføjer tavl til det moderne bindingsværk ud fra de kernens overskydende materialer.
HELHEDEN: Når den ene tvillingebygning overføres for at understøtte den anden tvillings nye funktioner, opstår nye strukturer. Igennem min designproces opstod mere kompakte, sammensatte og improviserede bo-enheder afhængige af fællesskab. Det foreslåede byggefællesskab peger på en anden måde at skabe bo-enheder på, hvor man ikke bare bor i en bygning, men også bygger og lever sammen. I den virkelighed bliver kvadratmeter mindre vigtige, og vi behøver måske derfor ikke bo så stort. Lokalplanen stiller en række krav. Målsætninger, der peger mod en bestemt forestilling om boliger på en vis størrelse og standard. Hvis vi skal genbruge alt på matriklen, er vi muligvis nødt til igennem vores designprocesser at revurdere lokalplanen og tænke genbrug på matriklen som en del af en større helhed for at gøre genbrug og genanvendelse realistisk.
When and how do you transfer the roof from one twin to the other? All these questions occurred to me as I delved deeper into the choreography of putting two twin buildings together. Perhaps the choreography should have been incorporated earlier in the design process? The diagram shows how the core is built first, followed by the grid structure and the modern half-timbering, so that finally, individually in the building community’s residential units, boards are added to the modern half-timbering from the core’s surplus materials.
THE WHOLE: When one twin building is transferred to support the new functions of the other twin, new structures emerge. Throughout my design process, more compact, composite, and improvised housing units dependent on community emerged. The proposed building community points to a different way of creating housing units, where you not only live in a building, but also build and live together. In reality, square meters become less important, and we may therefore not need to live in such large spaces. The local plan sets out several requirements. Objectives that point towards a specific idea of housing of a certain size and standard. If we are to reuse everything on the site, we may need to re-evaluate the local plan through our design processes and think of reuse on the site as part of a larger whole in order to make reuse and recycling realistic.
Byggefællesskab
Fig. 12: Helheden / The whole
Fig. 11: Koreografien og byggefællesskabet
Peer Tue Näthke
Niels Martin Larsen
Anders Kruse Aagaard
1:1-MOCKUP
1:1 MOCKUP
Mockup - Listefabrikken i Åbyhøj
Peer Tue Näthke
Ligesom i projektets første iteration udmundede anden iteration i en 1:1 Mockup af tegnestuernes ideer til konstruktive byggesystemer.
Igen er mockup-modellen udført i materialer der afspejler materialeressourcerne i den aktuelle cases’ bygninger og omgivelser. Hvor den første mockup særligt adresserede udviklingen af et konstruktivt system med genbrug af præfabrikerede betonelementer, er der i denne omgang inddraget et bredere udvalg af materialer, som repræsenterer Listefabrikkens sammensatte bygninger. Omdrejningspunktet har været genbrug af de store limtræsbuer, som er karakteristiske for flere af Listefabrikkens industrielle haller, men her er byggesystemet suppleret af blandt andet genbrugstegl, gamle SF-belægningssten, løst tømmer og fibercementtagplader.
Formålet med mockup-modellerne fra begge iterationer har været at undersøge praktiske udfordringer og æstetiske mulighede eller ’gaver’ fra tegnestuernes designforslag, understøttet af hands-on erfaring med de konkrete materialer, og i sidste ende at give bud på tektoniske systemer og tekniske løsninger.
Mockup - Listefabrikken i Åbyhøj
Just like in the project’s first iteration, the second iteration resulted in a 1:1 mock-up based on the ideas for constructive building systems made by different architecture firms.
Once again, the mock-up was made from materials that reflect the material resources in the buildings and in the surroundings of the project case. Where the first mock-up specifically addressed the development of a construction system using reused prefabricated concrete elements, this time a wider range of materials representing the composite buildings of Listefabrikken was included. The focus has been on the reuse of the large glulam arches that are characteristic of several of Listefabrikken’s industrial halls, but here the building system is supplemented by, among other things, reused bricks, old SF (concrete) paving stones, loose timber, and fiber cement corrugated roof sheets.
The purpose of the mock-up models from both iterations has been to examine practical challenges and aesthetic possibilities or ‘gifts’ from the design proposals of the architecture firms, supported by hands-on experience with the specific materials, and ultimately to offer suggestions for tectonic systems and technical solutions.
Fig. 1: Sammensætning af ideer fra designsprinten i udformningen af en mockup-prototype / Combining ideas from the design sprint for the creation of a mock-up prototype

Listefabrikken og designsprinten i anden iteration
Designsprinten med Listefabrikken som case havde mange overlap med Ringparken, men adskilte sig også på flere punkter.
Listefabrikken består af en samling bygninger opført over flere årtier og med forskellige byggesystemer. Alle bygningerne har hulmurede facader i rød tegl. Nogle af bygningerne er rumlige, åbne lagerhaller med store limtræsbuer, mens andre er lavere med mere traditionelle trækonstruktioner med stolper, rem, skråbånd og gitterspær.
Hvor designforslagne fra første designproces tog udgangspunkt i de mange ens bygningskomponenter der kunne danne grundlag for et forholdsvist homogent, skalerbart byggesystem, var det ved Listefabrikken i højere grad nødvendigt at inddrage og sammensætte (begrænsede mængder) af forskellige materialer og udforske hybride byggesystemer.
I alle fem designforslag i anden iteration blev limtræsbuerne grundlaget for den bærende konstruktion, enten i deres oprindelige form og placering (Karen Emilie Mølgaard Rasmussen og Haidy Mousa) på højkant (Mathilde Strandberg Hallin) eller skåret op og sat sammen på nye måder (Karen Helen Brobakken og Sara Bengtson). I alle tilfælde fik buernes dimensioner og geometri stor betydning for forslagenes rumlige udformning. Et andet gennemgående tema var etagedæk med bjælker sammensat af mindre fraktioner af træ og tømmer, for at give dem tilstrækkelige spænd og dimensioner, da der kun fandtes en begrænset mængde store bjælker på matriklen. Udfordringen med materialeknaphed dannede desuden grundlag for at udvikle sammensatte byggesystemer, hvor forskellige materialer måtte supplere hinanden i bygningernes konstruktioner for at opnå tilstrækkelig højde og rumlighed.
Listefabrikken and the second iteration design sprint
The design sprint with Listefabrikken as a case study had many overlaps with Ringparken, but also differed in several respects.
Listefabrikken consists of a collection of buildings constructed over several decades and using different building systems. All the buildings have cavity walls with red brick facades. Some of the buildings are spacious, open warehouses with large glulam arches, while others are lower with more traditional wooden structures such as posts, straps, diagonal braces, and trusses.
Whereas the design proposals from the first design process were based on the many identical building components that could form the basis for a relatively homogeneous, scalable building system, at Listefabrikken it was necessary to incorporate and combine (limited quantities) of different materials and explore hybrid building systems.
In all five design proposals in the second iteration, the glulam arches formed the basis for the load-bearing structure, either in their original form and location (Karen Emilie Mølgaard Rasmussen and Haidy Mousa), turned upright (Mathilde Strandberg Hallin), or cut up and reassembled in new ways (Karen Helen Brobakken and Sara Bengtson). In all cases, the dimensions and geometry of the arches were of great importance to the spatial design of the proposals. Another recurring theme was floor slabs with beams composed of smaller fractions of wood and timber to give them sufficient span and dimensions, as there were only a limited number of large beams available on the site. The challenge of material scarcity also formed the basis for developing composite building systems, where different materials had to complement each other in the construction of the buildings in order to achieve sufficient height and spaciousness.

Fig. 2: Designskitse til mockuppen med udgangspunkt i limtræsbuernes udformning / Design sketch for the mock-up using the curved glulam profile as a starting point.
Sammensætning af ideer fra designsprinten
Resultatet af designsprinten er et stort idekatalog af mere eller mindre uortodokse koncepter og løsninger. Med henblik på mockuppen har vi taget udgangspunkt i nogle udvalgte knudepunkter, der skilte sig ud, og som blev tilbagevendende omdrejningspunkter under forløbet.
Limtræsbuerne som skelet var et gennemgående tema, sammen med spørgsmålet om hvorvidt de kunne eksponeres helt eller delvist for vind og vejr, eller helst skulle pakkes grundigt ind bag en klimaskærm. Konceptet med alternativ bindingsværkskonstruktion af limtræsbuer og genbrugstegl blev desuden genstand for spørgsmål om bl.a. fugtproblemer. Derudover frembragte designsprinten forskellige tilgange til konfigurering og samlinger af elementerne, som kunne testes i mockuppen.

Fig. 3: Eksploderet isometrisk tegning af mockuppens bygningsdele / Exploded isometric drawing of the mock-up components
Compilation of ideas from the design sprint
The result of the design sprint is a large catalog of ideas containing more or less unorthodox concepts and solutions. Proceeding with the mock-up, the starting point was a number of selected key points that stood out and had become recurring focal points during the design sprint.
The glulam arches as a skeletal structure was a recurring theme, along with the question of whether they could be exposed completely or partially to wind and weather, or whether they should be thoroughly enclosed behind a climate screen. The concept of an alternative half-timbered construction of glulam arches and reused bricks also raised questions about problems with moisture. Additionally, the design sprint produced different approaches to the configuration and assembly of the elements,


Sammenspillet mellem et limtræsskelet og en tungere mur gik også igen med muligheden for at løfte konstruktionen op på en tung base af enten SF-sten, tegl eller ’kyklopiske’ betonklodser.
Etagedæk præsenterede nogle udfordringer både i forhold til at sammensætte mindre rester af træ og tømmer til længere bjælker for at opnå tilstrækkelig store spænd og styrke. Samtidig blev det diskuteret, hvordan man kunne give etagedækkene nok masse og tyngde (med f.eks. tunge affaldsrester af sand, jord, asfalt og murbrokker) for at forbedre deres egenskaber ift. brand og akustik.
De fremhævede koncepter – bærende skelet af limtræsbuer, trækonstruktion hævet på tung base, alternativ genbrugsbindingsværkskonstruktion og etagedæk af konstruerede bjælker tunge affaldsrester – udgør tilsammen grundlaget for mockuppen.
Designforslag til mockup-modellen
Ligesom i første iteration var det ikke muligt at bygge mockup-modellen med de egentlige materialer fra den aktuelle case, da Listefabrikkens bygninger ligesom Ringparkens endnu ikke var revet ned endnu. I første iteration blev det løst ved at substitueret med materialer Gellerupparken, der på mange måder var en sammenlignelig case, og hvor flere bygninger blev revet ned lige omkring tidspunktet for arbejdet med mockuppen. I anden iteration var det ikke på samme måde muligt at finde en tilsvarende case, og det var i stedet nødvendigt at finde materialer svarende til Listefabrikkens fra forskellige ophav. Mockuppens design er derfor resultatet af en række designiterationer, som er udarbejdet i takt med opdrivelsen af passende materialer fra forskellige nedbrydervirksomheder og genbrugsmaterialegensælgere.
which could be tested in the mock-up. The interplay between a glulam skeletal frame and a heavier wall was also a recurring motif with the possibility of lifting the structure onto a heavy base of either SF stone, brick, or ‘cyclopean’ concrete blocks.
Floor slabs presented some challenges in terms of combining smaller pieces of wood and timber into longer beams to achieve sufficient span and strength. At the same time, there was discussion about how to give the floor slabs enough mass and weight (e.g., with heavy waste residues of sand, soil, asphalt, and rubble) to improve their fire safety and acoustic properties.
The highlighted concepts - a load-bearing skeleton frame of glued laminated timber arches, a wooden structure raised on a heavy base, an alternative reused timber frame construction, and floor decks made of engineered beams and heavy waste residues - together form the basis for the mock-up.
Design proposal for the mock-up
As in the first iteration, it was not possible to build the mock-up model using the actual materials from the current case because the Listefabrikken buildings, like those of Ringparken, had not yet been demolished. In the first iteration, this was solved by substituting materials from Gellerupparken, which was in many ways a comparable case, and where several buildings were demolished around the time of the work on the mock-up. In the second iteration, it was not possible to find a similar case, and it was instead necessary to find materials corresponding to those used in Listefabrikken from various sources. The design of the mock-up is therefore the result of a series of design iterations, which were developed in parallel with the sourcing of suitable materials from various demolition companies and sales platforms for reused materials.
Fig. 4: Limtræsbuer fra P. Olesen Genbrug / Glulam beams from P. Olesen Genbrug
Fig. 5: Tilskæring og rekonfigurering af limtræsbuerne / Cutting and reconfiguring the glulam profiles



Både SF-sten og genbrugte tegl er ret nemt at komme i besiddelse af. Brugte betonbelægningssten findes i stort antal fra mindre, private anlægsprojekter og kan ofte fås gratis eller meget billigt, og for genbrugte mursten findes der, allerede en etableret genbrugsbranche og oparbejdningsprocesser. De røde mursten til projektet kunne vi overtage gratis fra et tidligere projekt på arkitektskolen, men de ville ikke have været svære eller dyre at skaffe udefra.
Tagpladerne er Cembrit B9 bølgeplader og stammer fra nedbrydningsvirksomheden Kingo i forbindelse med deres fortløbende arbejde med nedrivning af minkfarme efter nedlukningen af minkerhvervet i 2021. Fibercementpladerne minder om tagpladerne fra Listefabrikken, men er af nyere fabrikation og asbestfri. Det lykkedes desuden at fremskaffe limtræselementer med buede profiler som Listefabrikkens, om end en anelse mindre. Limtræsbuerne her er leveret af P. Olesen Genbrug og er af ældre dato. Oprindelsen kendes ikke.
Der var på forhånd gjort plads til den anden mockup på betonplatformen fra første iteration, ved siden af den eksisterende model. Derved var både placering, størrelse og dimensioner afgrænset fra starten.
Both SF stones and reused bricks are fairly easy to obtain. Used concrete paving stones are available in large quantities from small, private construction projects and can often be obtained free of charge or very cheaply. For reused bricks, an established circular industry and processing methods already exist. We were able to obtain the red bricks for the project for free from a previous project at the Aarhus School of Architecture, but they would not have been difficult or expensive to obtain from other sources either.
The roof panels are Cembrit B9 corrugated sheets and originate from the demolition company Kingo in connection with their ongoing demolition work of mink farms following the closure of the mink industry in 2021. The fiber cement sheets are similar to the roof sheets from Listefabrikken, but are newer and asbestos-free. It was also possible to obtain glulam elements with curved profiles similar to those from Listefabrikken, albeit slightly smaller. The glulam arches were supplied by P. Olesen Genbrug and are of an older date. Their origin is unknown.
Space had been made in advance for the second mock-up on the concrete platform from the first iteration, next to the existing model. This meant that the location, size, and dimensions of the second model were defined from the start.
Fig. 7:Bearbejdningsproces / Material processing
Fig. 6: Detalje af limtræsrammernes slidsesamlinger / Detail of the slot joints of the glulam frames

7:Bearbejdningsproces / Material processing
Som i tegnestuernes designforslag er kernen i mockuppens udformning bestemt af limtræsbuernes form, der danner grundlag for designets usædvanlige profil og taghældning. For at give hele konstruktionen mere højde, er limtræsskelettet hævet op på en base af opmurede SF-sten, og i skellet mellem ligger etagedækket. Modellen illustrerer kun et udsnit, men man kan forestille sig, at den opmurede base f.eks. kan udgøre hele stueetagen (som i Mathilde Hallins designforslag). Limtræsbuerne er skåret op og sat sammen på ny i rammer (der går én limtræsbue til hver ramme), og mellem rammerne mures facader op med genbrugstegl, der i konstruktionen samtidig fungerer som afstivende skiver. Limtræsrammerne står i mockuppen ret tæt, for at vise byggesystemet i kondenseret form på begrænset plads. I et realiseret byggesystem ville de sandsynligvis placeres med større afstand, så materialeforbruget begrænses. Tagkonstruktionen holdes forholdsvis enkel, så udtrykket af limtræsbuens krumme form bevares i taghældningen. Et centralt spørgsmål for designet omhandlede hvordan de forskellige komponenter skulle samles, særligt i overgangen mellem forskellige konstruktionssystemer som den opmurede base og limtræsskelettet. Her fandtes en løsning med de forborede indvendige gevindankre i betonplatformen, hvorfra gevindstænger kan føres op gennem den hulmurede SF-stenmur og forankre en overliggende bundrem, hvorpå limtræsrammerne er fastgjort med vinkelbeslag.

9: Opmuring med SF-sten på fundamentsplatformen / Masonry with concrete pavement stones (SF stones)
As in the design proposals from the architecture firms, the core of the mock-up’s design is determined by the shape of the glulam arches, which form the basis for the design’s unusual profile and roof shape. To add height to the entire structure, the glulam skeleton frame is raised onto an SF stone masonry base. The floor slab is placed in this divide. The model only illustrates a section of a larger building system, but one can imagine that the heavy base could, for example, constitute the entire ground floor (as in Mathilde Hallin’s design proposal). The glulam arches are cut up and reassembled into frames (one glulam arch per frame), and between the frames, facades are built up with reused bricks, which also function as stabilizing planes in the construction. The glulam frames are placed quite close together in the mock-up to show the building system in condensed form in a limited space. In a real building system, they would probably be placed further apart to limit material consumption. The roof construction is kept relatively simple so that the curved shape of the glulam arch is preserved in the roof. A key question for the design was how the various components should be assembled, especially in the transition between different construction systems such as the concrete stone base and the glulam skeleton frame. A solution was found with pre-drilled internal threaded anchors in the concrete platform, from which threaded rods can be inserted through the hollow SF brick wall and anchor an overhead bottom strap, to which the glulam frames are attached with angle brackets.
Fig.
Fig.

Byggeprocessen
Mockuppens udformning danner grundlag for refleksioner om, hvordan byggeprocessen kan systematiseres og skaleres.
Byggeprocessen indledtes med manuel opmåling og udskæringen af limtræsbuerne, hvilket allerede gav anledning til spørgsmål om præcision og tolerancer. Med en prototype i denne skala gav mere manuelle processer mening, men ved større byggeprojekter med mange flere limtræsrammer kunne man med fordel gøre brug af digital opmåling og registrering med f.eks. 3D-scanning og efterfølgende CNC-udskæring for lang større præcision og mere sofistikerede samlinger.
Undervejs i designprocessen blev forskellige samlingstyper diskuteret. Valget faldt – på foranledning af Peter Vejrum (Søren Jensen Rådgivende Ingeniører), til sidst på momentstive hjørnesamlinger med indslidsede birkefinerplader. Slidserne i de opskårne limtræsbuer udfræsedes manuelt, finerpladerne isattes og rammerne hamredes sammen, hvorefter skruer indførtes i samlingerne på skift fra begge sider og skjultes med træpropper.
The
construction process
The design of the mock-up provides a basis for reflections on how the construction process can be systematized and scaled.
The construction process began with manual measurement and cutting of the glulam arches, which already raised questions about precision and tolerances. With a prototype at this scale, more manual processes made sense, but for larger construction projects with many more glulam frames, it would be advantageous to use digital measuring and registration, using e.g., 3D scanning and subsequent CNC cutting, for greater precision and more sophisticated joints.
During the design process, various types of joints were discussed. By suggestion of Peter Vejrum (Søren Jensen Consulting Engineers), the choice ultimately fell on skewing-resistant corner joints with slotted birch veneer boards. The slots in the cut glulam arches were milled manually, the veneer boards were inserted, and the frames were hammered together, after which screws were inserted into the joints alternately from both sides and concealed with wooden plugs.

Fig. 10-11: Limtræsrammerne løftes på plads / The glulam frames are lifted into place
Sideløbende opmuredes basen af SF-sten på platformen med hjælp fra arkitekt og murer Lasse Buus. Allerede under designsprinten havde Mathilde Hallin og Niels Eli Kjær Thomsen (SLETH) eksperimenteret med mindre SF-stenmockups og hvordan stenene kan lægges i forskellige forbandter, der ændrer murens mønster og skyggespil. Mockuppens to mure er opbygget med hvert deres forbandt, inspireret af disse indledende forsøg og er begge opmuret med hulrum med plads til gevindstængerne. Det bør indskydes, at de anskaffede SF-sten var store og temmelig tunge (knap 5 kg per sten) og derfor mere fysisk krævende at arbejde med en almindelige mursten, hvilket kan få betydning, hvis man skal forestille sig at bruge stenene i større projekter. Derudover er stenene ikke helt ensartede, og da de kun blev muret op med et helt tyndt lag mørtel, gav det nogle ujævnheder, der kun ville forstørres jo højere der muredes op.
At the same time, the base of SF stones was built on the platform with the help of architect and bricklayer Lasse Buus. Already during the design sprint, Mathilde Hallin and Niels Eli Kjær Thomsen (SLETH) had experimented with smaller SF stone mock-ups and how the stones could be laid in different bonds that change the pattern and effect of shadows of the wall. The mock-up’s two base walls are built with different course patterns, inspired by these initial experiments, and both are built with cavities to accommodate the threaded rods. It should be noted that the SF stones purchased were large and quite heavy (almost 5 kg per stone) and therefore were more physically demanding to work with than ordinary bricks, which may be significant if one imagines using the stones in larger projects. In addition, the stones are not entirely uniform, and as they were only laid with a very thin layer of mortar, this resulted in some unevenness, which would only increase the higher the wall was built.
Som afslutning på SF-muren og overgang til limtræsrammerne indlagdes en bundrem (der i dette tilfælde var fra ny/virgint materiale). Bundremmen fungerer både som bund og anker for trærammerne og facademure (limtræsbindingsværk) og som leveleret afslutning på SF-muren. For højdeudligning mellem SF-muren og bundremmen vil man enten kunne indkile træstykker eller lægge en mørtelpude på murens top.
De fire for-samlede limtræsrammer blev løftet på plads, forankret til bundremmen med vinkelbeslag og midlertidigt afstivet, mens facaderne imellem rammerne opmuredes (igen med hjælp fra Lasse Buus). Facaden af regulære, røde genbrugsmursten er muret med kalkmørtel, som er diffusionsåben, og derved formentlig kan afhjælpe fugtproblemer ved limtræsrammerne. Desuden er kalkmørtel relativt elastisk og kan tilpasse sig små bevægelser i konstruktionen hvormed sprækker undgås.
Mockuppen afsluttedes med påmontering af taglægter og tagplader der, med lettere forarbejdning med bl.a. nye gennemboringer, er tilpasset den buede taghældning.
Erfaringer, udfordringer og videre udvikling
Erfaringerne fra byggeprocessen med den anden mockup leder til en række spørgsmål og overvejelser om, hvordan et lignende konstruktivt system kan indgå i et større byggeprojekt, hvordan byggeriet da skulle organiseres og hvordan yderligere lag som isolering, indvendige overflader og finishes, bygningsåbninger (vinduer og døre), skillevægge, etagedæk kunne løses. Allerede nu har prototypen givet anledning til ideer om alternative løsninger og mulig effektivisering af visse processer.
Opmålingen og udskæringen af træelementer som limtræsbuerne vil som nævnt i nogen grad kunne systematiseres med digital opmåling med brug af f.eks. 3D-scanning og fræsning og tilskæring med CNC. Ved Listefabrikken ligner de mange limtræsbuer hinanden, men er ikke fuldstændig ens i de forskellige bygninger, der er opført over en årrække. Desuden kan der være opstået mindre deformationer på nogle af elementerne gennem bygningernes levetid. Man kan med andre ord ikke regne med samme præcision og uniformitet som ved nyfabrikerede elementer, og det kan være nødvendigt at registrere og opmåle hvert enkelt element, men med digitale fabrikationsredskaber behøver det ikke at blive en omfattende proces. Desuden vil man med CNC-fræsning kunne udforme sofistikerede og præcise udskæringer og samlinger, der ved manuel bearbejdning ellers ville blive meget arbejdskrævende, og derved højne designets arkitektoniske detaljegrad og kvalitet. Den geometriske registrering kan med fordel kombineres med ikke-destruktive tests, hvorved en samlet datapakke kan tilknyttes hvert individuelt element.

Fig. 12: Arkitekt og murer Lasse Buus arbejdede med opmuring med genbrugte mursten mellem limtræsrammerne / Architect and bricklayer Lasse Buus working on the infill masonry using reused bricks
To finish off the SF wall and transition to the glulam frames, a bottom wall plate (in this case made from new/virgin wood) was installed. The bottom wall plate serves both as a base and anchor for the wooden frames and facade walls (glulam) and as a level finish to the SF wall. To compensate for the difference in height between the SF wall and the bottom wall plate, either pieces of wood can be wedged in or a mortar cushion can be placed on top of the wall.
The four pre-assembled glulam frames were lifted into place, anchored to the bottom wall plate with angle brackets, and temporarily braced while the brick facades between the frames were laid (again with the help of Lasse Buus). The facade of regular red reused bricks was laid with lime mortar, which is diffusion-open and can therefore probably alleviate moisture problems in the glulam frames. In addition, lime mortar is relatively elastic and can adapt to small movements in the structure, thus preventing cracks.

The mock-up was completed with the installation of roof battens and roof sheets, which have been adapted to the curved roof pitch with only minor modifications including new drill holes.
Experiences, challenges, and further development
The experiences from the construction process with the second mock-up raise a number of questions and considerations about how a similar construction system could be incorporated into a larger construction project, how the construction would then be organized, and how additional layers such as insulation, interior surfaces and finishes, building openings (windows and doors), partition walls, and floor decks could be addressed. The prototype has already given rise to ideas for alternative solutions and possible streamlining of certain processes.
As mentioned, the measuring and cutting of wooden elements such as glulam arches could, to some extent, be systematized using digital tools such as 3D scanning and CNC milling and cutting. At Listefabrikken, the many glulam arches are similar but not completely identical in the various buildings that have been constructed over a span of decades. In addition, minor deformations may have occurred in some of the elements over the lifetime of the buildings. In other words, the precision and uniformity of newly manufactured elements cannot be expected, and it may be necessary to register and measure each individual element, but with digital manufacturing tools, this does not have to be a comprehensive process. Furthermore, CNC milling allows for sophisticated and precise cuts and joints that would otherwise be very labor-intensive to achieve, thereby enhancing the architectural quality and level of detail of the design. Geometric registration can be combined with non-destructive testing, whereby a complete data package can be linked to each individual element.
Der kan dog være udfordringer ved en automatiseret bearbejdningsproces af genbrugselementer. CNC-fræsning vil være mindre følsomt over for materialernes heterogenitet, og eventuelle ujævnheder eller fremmedlegemer som skjulte søm eller lignende kan give problemer. Her vil grundige indledende registreringer og ikke-destruktive tests være afgørende.
Murværket af SF-sten kan måske fremstå som et særegent påfund, men i sin grundform har designforslaget et skaleringspotentiale. Der er i projektet ikke foretaget en markedsanalyse, men alene at dømme ud fra udbuddet og prisen på genbrugte betonbelægningssten på diverse gensalgsplatforme, må mængden antages at være temmelig stor. En del af den beton vil i dag sandsynligvis blive downcyklet via nedknusning til grus. Potentialet for genbrug af betonbelægningssten fra samme matrikel er muligvis begrænset og meget forskellig fra case til case. I mange tilfælde vil belægningen desuden skulle erstattes, hvormed materiale- og CO2-besparrelsen vil være minimal. På den anden side behøver et byggesystem for murværk med betonbelægningssten ikke at være begrænset til SF-sten,
However, there may be challenges related to automatic processing of reused elements. CNC milling will be less sensitive to the heterogeneity of the materials, and any irregularities or foreign objects such as hidden nails or similar may cause problems. Here, thorough initial registrations and non-destructive tests will be crucial.
SF stone masonry may seem like a peculiar idea, but in its basic form, the design proposal has scaling potential. No market analysis has been carried out in the project but judging solely by the supply and price of old concrete paving stones on various resale platforms, the quantity available is assumed to be quite large. Much of that concrete will likely only be downcycled today by crushing it into gravel. The potential for reusing concrete paving stones from the same site may be limited and may vary greatly from case to case. In many cases, the paving will also need to be replaced, which means that the material and CO2 savings will be minimal. On the other hand, a building system for masonry with concrete paving stones does not need to be limited to SF stones,
Fig. 13: Limtræsrammernes samling / Joints of the glulam frames

men kan bestå af skiftende forbandter af forskellige typer belægningssten, både hele og ituslåede, og andre betonrester og -brokker, så længe ”stenene” har to parallelle, flade sider og nogenlunde samme tykkelse i hvert forbandt. Byggesystemet har altså en vis fleksibilitet, der vil gøre det nemt at fremskaffe byggematerialer. Desuden tyder projekter som Slaatto Morsbøls1 betonfragmentprototype fra Realdania og CEBRAs MiniCO2 Etagehus BETON (begge i samarbejde med Nord-Sten ApS),2,3 på stigende interesse for opmuring med genbrugsbeton og en potentiel oparbejdningsindustri.
I mockuppen er SF-stenmuren muret med limmørtel, da der var usikkerhed om betonstenenes evne til at hæfte med andre mørteltyper. Limmørtlen har dog nogle betydelige ulemper. Dens stærke hæfteevne gør fremtidig adskillelse og genanvendelse af betonstenene meget besværlig (hvis overhovedet mulig). Desuden påføres mørtlen i så tynde fuger, at betonstenenes ujævnheder og små højdevariationer ikke for alvor udjævnes. Yderligere forsøg og prototyper med bl.a. forskellige mørteltyper kan forhåbentlig føre til bedre løsninger og resultater. Undervejs i projektet diskuteredes det desuden, om muren kunne bygges helt uden mørtel, som efterspændt tør konstruktion holdt sammen i spænd med gevindstængerne og bundremmen, men det er endnu ikke afprøvet.
Fig. 14: Møde mellem forskellige materialer og konstruktive systemer / Connection (transition) between different materials and construction systems
but can consist of alternating bonds of different types of paving stones, both whole and broken, and other concrete residues and fragments, as long as the “stones” have two parallel, flat sides and roughly the same thickness in each bond. The building system therefore has a certain flexibility that will make it easy to obtain building materials. Furthermore, projects such as Slaatto Morsbøl’s1 concrete fragment prototype from Realdania and CEBRAs MiniCO2 Etagehus BETON (both in collaboration with Nord-Sten ApS),2,3 indicate a growing interest in masonry with reused concrete and a potential circular industry.
In the mock-up, the SF stone wall is built with adhesive mortar, as there was some uncertainty about the concrete stones’ ability to bind with other types of mortar. However, adhesive mortar has some significant disadvantages. Its strong adhesive properties make future separation and reuse of the concrete stones very difficult (if not impossible). In addition, the mortar is applied in such thin layers that the unevenness and small height variations of the concrete stones are not really smoothed out. Further experiments and prototypes with different types of mortar, among other things, will hopefully lead to better solutions and results. During the project, there was also discussion about whether the wall could be built entirely without mortar, as a post-tensioned dry construction held together by the threaded rods and bottom strap, but this has not yet been tested.

I alle tilfælde er bundremmen i toppen af betonstenmuren afgørende som overgang fra det ene byggesystem til det andet, der både fungerer som bindeled mellem de to systemer og som afretningslag, der udjævner ujævnheder og tillader større tolerancer inden for de enkelte konstruktioner.
Limtræsrammekonstruktionen er i facaden fyldt ud med murværk af genbrugte tegl, der fungerer som skiver og afstiver konstruktionen. Materialesammensætningen giver associationer til traditionelt byggeri og er undervejs i anden iteration blevet omtalt som ”moderne bindingsværk”. Murværket mellem rammerne kunne også variere eller give plads til vindues- og døråbninger. Den bindingsværkslignende konstruktion har nogle udfordringer især ift. fugt, der ikke kommer særligt til udtryk i mockuppen, men bør undersøges i den videre udvikling af konceptet. At den bærende limtræskonstruktion er eksponeret i facaden, kræver særligt fokus på træbeskyttelse, herunder konstruktiv træbeskyttelse med f.eks. store tagudhæng. Desuden bør der ved isolering af konstruktionen stilles store krav til åndbarhed og ventilation for så vidt muligt at undgå kondensering på facadens bagside.

In any case, the bottom strap at the top of the concrete block wall is crucial as a transition from one building system to another, functioning both as a link between the two systems and as a leveling layer that evens out and allows for greater tolerances within the individual structures.
The façade of the glulam frame construction is filled in with masonry made of reused bricks, which act as planes and brace the construction. The material composition is reminiscent of traditional construction and during the design sprint has been referred to as ‘modern half-timber’. The masonry walls between the frames could also vary or make room for windows and door openings. The half-timber-like construction presents some challenges, especially with regard to moisture, which is not particularly evident in the mock-up but should be investigated during the further development of the concept. The fact that the load-bearing glulam construction is exposed in the façade requires special focus on wood protection, including structural wood protection with, for example, large roof overhangs. In addition, when insulating the construction, particular emphasis must be made on breathability and ventilation to avoid condensation on the back of the façade as much as possible.
Fig. 15-16: Den færdige mockup-model / The finished mock-up
Tagplader er i princippet ligetil at genbruge direkte så længe tagkonstruktionen og -hældningen på den nye bygning ligner donorbygningens. Er den nye tagudformning mere særegen, som det er tilfældet med mockuppen, bliver det mere kompliceret. Det diskuteredes i mockuppens designproces, om man skulle tilføje nogle rette spær over limtræsrammernes buede overligger for at skabe en enkel, ret taghældning på ca. 30°. Det blev dog opgivet ud fra et ønske om at fastholde rammernes karakteristiske buede profil. Med den krumme tagprofil fraviges der betydeligt fra tagproducentens montagevejledning, hvilket ved realiseringen af et større byggeri med denne udformning vil lede til nogle konsekvenser ift. garanti og ansvar. Uheldigvis vil det i dag sandsynligvis kræves, at der skulle bygges et fast/tungt undertag med tagpap og dermed medføre et utilsigtet ekstra materialeforbrug.
De genbrugte tagplader er minimalt forarbejdede inden monteringen, og der er som eneste væsentlige tilpasning boret ekstra skruehuller. Afrensning og særligt højtryksrensning kan formentlig beskadige pladernes overflade og forkorte deres resterende levetid. Mockuppens tag er derfor urenset og fremstår med støv, mos og alger som levn for dets tidligere anvendelse.
Der var for mockuppen udtænkt et forslag til et eksperimentelt etagedæk. Etagedækket er dog i første omgang ikke inkluderet i den endelige mockup-model. Etagedækket var tænkt som en test med brug af mur- og betonbrokker, asfalt, jord, sand og lignende tunge affaldsfraktioner, der ellers ikke er genbrugsegnede indlagt i etagedækkets hulrum for at give dækket ekstra tyngde og forbedre dets akustiske egenskaber. Ideen til etagedækket er dels inspireret af traditionelle etagedæk med træbjælkelag og lerindskud, dels af udvalgte løsninger fra projektet Fremtidens biobaserede etagedæk.4
Ideally, roof sheets can be reused directly as long as the roof structure and pitch of the new building are similar to those of the donor building. If the new roof design is more distinctive, as is the case with the mock-up, it becomes more complicated. During the mock-up design process, there was discussion about whether to add some straight rafters above the curved lintels of the glulam frames to create a simple, straight roof pitch of approximately 30°. However, this was abandoned in order to retain the characteristic curved profile of the frames. The curved roof profile deviates significantly from the roof manufacturer’s installation instructions, which, in the case of a larger construction project using this design, will have some consequences in terms of warranty and liability. Currently, it is unfortunately likely that an extra rigid roof underlayment with bitumen will be required for this sort of roof, resulting in unintended additional material use.
The reused roof panels are minimally processed before installation, and the only significant adjustment is the drilling of additional screw holes. Cleaning and especially high-pressure cleaning could damage the surface of the sheets and shorten their remaining service life. The mock-up’s roof is therefore uncleaned and appears with dust, moss, and algae as remnants of its previous use.
A proposal for an experimental floor slab was devised for the mock-up. However, the floor slab was not initially included in the final mock-up model. The floor slab was intended as a test using masonry and concrete rubble, asphalt, soil, sand, and similar heavy waste fractions that are otherwise not suitable for reuse, placed in the floor slab’s cavities to give the slab extra weight and improve its acoustic properties. The idea for the floor slab was inspired partly by traditional floor slabs with wooden joists and clay infill, and partly by selected solutions from the “Fremtidens biobaserede etagedæk” project (Future Bio-based Floor Slabs).4
Foruden idekataloget med designforslag ledte designsprinten til overvejelser om logistikken for nedtagning, forarbejdning og konstruktion på matriklen, og selvom de aspekter ikke er undersøgt direkte med mockuppen, danner den alligevel grundlag for spekulationer om byggeprocessen. Ved mockuppen blev limtræsrammerne samlet på forhånd og derefter løftet på plads. På samme måde kan man forestille sig at andre af det nye byggeris komponenter kan præfabrikeres på matriklen med et midlertidigt værksteds-og bearbejdnings-setup, der både kan effektivisere byggeprocessen og give bedre arbejdsforhold for håndværkere. Afhængigt af byggeriets skala kan større sektioner af bygningen muligvis også præfabrikeres på matriklen. Det samme gælder den opmurede betonstensbaser der, især hvis de efterspændes som beskrevet tidligere, kunne konstrueres i mindre segmenter og løftes på plads. Ved Listefabrikken kan de af lagerhallerne, som ikke rives ned, gøres til midlertidige opbevarings- og fabrikationsenheder i processen.
Mockup-prototypen i anden iteration illustrerer hvordan forskellige konstruktionstyper og systemer spiller sammen og supplerer hinanden og maksimerer udnyttelsen af mindre, afgrænsede mængder af genbrugte materialer og komponenter for at opnå tilstrækkeligt rummelige bygninger.
Her bliver det væsentligste at designe byggesystemer der på den ene side er fleksible nok og med plads til tilstrækkeligt store tolerancer, så også materialer med variationer og ujævnheder kan bruges. På den anden side skal disse systemer afgrænses af en ramme der muliggør afretning og tilpasning i overgangen mellem forskellige bygningsdele og -komponenter.
Noter
1 Slaatto Morsbøl. Fra Betonfragment til Byggesten. https://www.slaattomorsboel.dk/projekter/ fra-beton-til-byggesten
2 CEBRA. Mini CO2 CONCRETE. https://cebraarchitecture.dk/project/ mini-co2-etagehus-beton/
3 Realdania. MiniCO2 Etagehus BETON. https://realdania. dk/projekter/minico2-etagehus-beton
4 Buhl, J., Christensen, J., Maagaard, S. (2023) Fremtidens biobaserede etagedæk: Akustiske tests af 23 biobaserede etagedæk, suppleret med analyser af CO2-aftrykket, økonomi og brandkrav. Artelia. https:// realdania.dk/publikationer/faglige-publikationer/ fremtidens-biobaserede-etagedaek
In addition to the catalog of design proposals, the design sprint led to considerations about the logistics of dismantling, processing, and on-site reconstruction, and although these aspects have not been directly investigated with the mock-up, it nevertheless forms the basis for speculation about the construction process. In the mock-up, the glulam frames were assembled in advance and then lifted into place. Similarly, it is conceivable that other components of the new building could be prefabricated on site with a temporary workshop and processing setup, which could both streamline the construction process and provide better working conditions for construction workers. Depending on the scale of the construction, larger sections of the building may also be prefabricated on site. The same applies to the masonry concrete bases, which could be constructed in smaller segments and lifted into place, especially if they are post-tensioned as described earlier. At Listefabrikken, the warehouses that are not being demolished can be converted into temporary storage and manufacturing units during this process.
The mock-up prototype in the second iteration illustrates how different construction types and systems interact with and complement each other, maximizing the use of small, limited quantities of reused materials and components to achieve sufficiently spacious buildings.
Here, the most important thing is to design building systems that are flexible enough and allow for sufficiently large tolerances so that materials with variations and irregularities can also be used. On the other hand, these systems must be delimited by a framework that allows for adjustment and adaptation in the transition between different building parts and components.



3 - ØKONOMI OG BÆREDYGTIGHED
August Sørensen
Lotte Bjerregaard Jensen
Frank Jensen, Samuel Mydland
Søren Malund Thomsen
Marie Pilegaard
Jens Møller Boeriis
Eva Aaby
3 - ECONOMY AND SUSTAINABILITY
Er
genbrug af
betonelementer
bæredygtigt? - en konsekvens-LCA-betragtning
August Sørensen, Ekolab/Arkitektskolen i Aarhus
Introduktion
Lovgivningsmæssige initiativer de seneste årtier har understøttet overgangen til cirkulær økonomi i både EU og Danmark. 1. januar 2024 kom vejledningen til det danske bygningsreglement hvoraf det fremgår, at Klimapåvirkningen af genbrugte byggematerialer er 0 kg CO2-ækvivalenter for modulerne A1-A3, B4, C3-C4 og D når de anvendes som direkte genbrug fra tidligere brug. Den bagvedliggende tankegang er, at i en attributionel LCA er der allerede ’afregnet’ for miljøpåvirkningen én gang. I en cirkulær økonomi-kontekst er vurderingen af genbrugets miljøpåvirkning central og foretages som regel ud fra to tilgange. Der kan dels etableres en oversigt over materialer, som fjernes og nye materialer som tilføjes, eksempelvis i en delvis nedrivning koblet med transformation (som i Ringparken) hvorved miljøpåvirkningen demonstreres i en såkaldt Material Flow Analysis. Data om byggeaffaldets miljømæssige påvirkning af økosystemerne er fortsat meget begrænset. Mere gængs er det at sammenligne miljøpåvirkningen fra et renoverings- eller transformationsprojekt med et tilsvarende nybyggeri og dermed få en indikation af den undladte CO2-udledning. Hvordan estimeres miljøpåvirkningen fra en nedrevet bygning, hvis materialer ‘høstes’ og genanvendes på matriklen? Hvilken miljøpåvirkning er der fra byggeaffald, som ikke finder anvendelse igen? og hvilken påvirkning fra entreprenørmaskiner, transport, lager etc.?
Metodeudvikling
I Genbrug på Matriklen var målet at alle forslag fra de to designsprints (arbejdspakke 3), skulle honorere et mål om at have en klimapåvirkning, der ligger under 2,5 kg CO2-eq. pr. m2 pr. år.
Den metode, som blev udviklet, var baseret på designsprinten fra 1. iteration i foråret 2024, og involverede, at et af CEBRAs forslag til et rækkehus blev ’tegnet færdigt’ af Vilius Thorsgaard Frølunde-Vizgaudis i et omfang, så der kunne udføres en klassisk LCA, dog begrænset til bærende konstruktioner.
Tabellen i figur 2 viser forudsætninger for udførelsen af LCA.
Is reuse of concrete elements sustainable? – A Consequential LCA consideration
Introduction
Legislative initiatives in recent decades have supported the transition to a circular economy in both the EU and Denmark. On January 1, 2024, guidelines for the Danish building regulations were issued, stating that the climate impact of reused building materials is 0 kg CO2 equivalents for modules A1-A3, B4, C3-C4, and D when used as direct reuse from previous use. The underlying idea is that in an attributional LCA, the environmental impact has already been ‘accounted for’ once. In a circular economy context, the assessment of the environmental impact of reuse is central and is usually based on two approaches. Firstly, an overview can be established of materials that are removed and new materials that are added, for example in a partial demolition linked to transformation, as in Ringparken, whereby the environmental impact is demonstrated in a so-called Material Flow Analysis. Data on the environmental impact of construction waste on ecosystems remains very limited. It is more common to compare the environmental impact of a renovation or transformation project with a similar new construction project, thereby obtaining an indication of the CO2 emissions that have been avoided. But how can the environmental impact of a demolished building be estimated if the materials are ‘harvested’ and mostly reused on the site? What is the environmental impact of construction waste that could not be reused, and what is the impact of construction machinery, transport, storage, cleaning etc.?
Method development
In Reuse on Site, the goal was that all proposals from the two design sprints (work package 3) should meet a target of having a climate impact of less than 2.5 kg CO2 -eq. per m2 per year.
The method developed was based on the design sprint from the first iteration in the spring of 2024 and involved one of CEBRAs proposals for a terraced house being ‘drawn up’ by Vilius Thorsgaard Frølunde-Vizgaudis to such an extent that a classic LCA could be carried out, albeit limited to load-bearing structures.
The table in figure 2 shows the assumptions for performing the LCA.

1: Byggesystem i den udvalgte case / Construction system of the chosen case
Fig
Scenarier Beskrivelse
Mock-up
Beregning af mockup, som vist med alle dele
Huset, nyt Beregning af CEBRAs hus, som den viste geometri, men som nye materialer.
Måske ikke det mest sandsynlige scenarie, da man normal ikke vil gå med pladefundament og betonelementvægge i rækkehuse.
Beregnede moduler: A1-A4, B4, C3-C4 & D.
Huset, genbrugt, BR18
Huset, genbrugt, faktisk
Forudsætninger
Beregning af CEBRAs hus med genbrug iht. BR18. Samlinger er vurderet væsentlige, og er derfor medtaget jf. §297 stk. 2, bilag 2, tabel 6, forenklinger. Genbrugte elementer er regnet med som 0.
Beregnede moduler: A1-A4, B4, C3-C4 & D.
Beregning af CEBRAs hus med genbrug iht. BR18. Samlinger er vurderet væsentlige og er derfor medtaget jf. §297 stk. 2, bilag 2, tabel 6, forenklinger. Genbrugte elementer er modelleret i Simapro, som repræsenterer den faktiske proces. Datasæt for dette justeres nærmere i sammenhæng med Structural Reuse. Fraskær vurderes som affald i modul A1-A3.
Beregnede moduler: A1-A4, B4, C3-C4 & D.
Beregningerne tager udgangspunkt i BR18. Herunder er der medtaget materialer svarende til §297 stk. 2, bilag 2, tabel 6. Levetider følger BUILD levetidstabel – Version 2021. For genbrugte materialer er der antaget samme levetid, som for nye materialer.
Modul A4 er yderligere medregnet, da det vurderes at kunne have stor indflydelse mellem scenarierne. Indledningsvis er det antaget, at alt flyttes med samme transportform, men dette vil kunne differentieres fremadrettet. En differentiering mellem transportformer vurderes dog kun at have lille indflydelse.
Datagrundlaget baseres på generisk data fra BR18 samt branchedata via EPD Danmark. Dertil er der modelleret data for genbrug jf. EN15804. Da det udvalgte data i BR18 samt branchedata er baseret på EN15804+A1, er det genbrugte data også beregnet med metoden i EN15804+A1. Alt data i beregningen er således baseret på EN15804+A1.
Der er udelukkende regnet på GWP.
Fig. 2: Tabeloversigt med forudsætninger for udførelsen af LCA
Scenarios Description
Mock-up
The house, new
The house, reused, BR18
Calculation of the mock-up, as shown with all parts
Calculation of CEBRAs house, as shown in the geometry, but with new materials.
Perhaps not the most likely scenario, as slab foundations and concrete element walls are not normally used in terraced houses.
Calculated modules: A1-A4, B4, C3-C4, & D.
Calculation of CEBRAs house with reuse in accordance with BR18. Joints are considered significant and are therefore included in accordance with §297(2), Appendix 2, Table 6, simplifications. Reused elements are calculated as 0.
Calculated modules: A1-A4, B4, C3-C4, & D.
Calculation of CEBRAs house with reuse in accordance with BR18. Assemblies are considered significant and are therefore included in accordance with §297(2), Appendix 2, Table 6, simplifications. Reused elements are modeled in Simapro, which represents the actual process. The dataset for this is adjusted in more detail in connection with Structural Reuse. Offcuts are assessed as waste in modules A1-A3.
The house, reused, actual
Calculated modules: A1-A4, B4, C3-C4, & D.
Assumptions
The calculations are based on BR18. Materials corresponding to §297 section 2, appendix 2, table 6 are included below. Lifespans follow the BUILD lifespan table – Version 2021. For reused materials, the same lifespan as for new materials is assumed.
Module A4 has also been included, as it is considered to have a significant impact on the scenarios. Initially, it is assumed that everything will be transported using the same mode of transport, but this may be differentiated in the future. However, differentiation between modes of transport is considered to have only a minor impact.
The data basis is based on generic data from BR18 and industry data via EPD Denmark. In addition, data for reuse has been modeled in accordance with EN15804. As the selected data in BR18 and industry data is based on EN15804+A1, the reused data has also been calculated using the method in EN15804+A1. All data in the calculation is therefore based on EN15804+A1.
Only GWP has been calculated.
Table overview with assumptions for performing the LCA
Fordeling i emissioner
Resultat Ved beregning af modulerne A1-A4, B4, C3-C4 og D ses et væsentligt lavere emissionsniveau for genbrug end ved nybyg. Dog ses en væsentlig forskel mellem den faktiske udledning og den udledning, som regnes i bygningsreglementet. I alt ses en forskel fra den faktiske udledning til bygningsreglementets beregning på over 150%. En fordeling af emissionerne kan ses i figur 3: 16.000,00
kg CO 2eq.
Huset, nyt Huset, genbrugt, BR18 Huset, genbrugt, faktisk
4.000,00
2.000,00
Fundament Vægge Huldæk Søjler og bjælker
Afretning, støbt Samlinger, støbt Samlinger, stål Fraskær
Huset, nyt Huset, genbrugt, BR18 Huset, genbrugt, faktisk
3: Fordeling i emissioner – bygningsdele
Fundament Vægge Huldæk Søjler og bjælker
Afretning, støbt Samlinger, støbt Samlinger, stål Fraskær
Det fremgår, at mens samlinger fylder noget, så er genbrugsprocessen også langt fra irrelevant. Specielt for fundamenter og vægge er der en stor andel. Ser man på modulerne, så ses en stor variation i fordelingen (figur 4):
Fig 3: Fordeling i emissioner – bygningsdele
Fordeling i emissioner
Det fremgår, at mens samlinger fylder noget, så er genbrugsprocessen også langt fra irrelevant. Specielt for fundamenter og vægge er der en stor andel. Ser man på modulerne, så ses en stor variation i fordelingen (figur 4):
Huset, genbrugt, faktisk
Huset, genbrugt, BR18
Fordeling i emissioner
When calculating modules A1-A4, B4, C3-C4, and D, a significantly lower emission level is seen for reuse than for new construction. However, there is a significant difference between the actual emissions and the emissions calculated in the building regulations. In total, there is a difference of more than 150% between the actual emissions and the calculation in the building regulations. A breakdown of the emissions can be seen in figure 3:
House, new House, reused, BR18
House, new House, reused, BR18 The house, reused, actual
Fig. 3: Distribution in emissions – building components
It appears that while joints take up some space, the reuse process is also far from irrelevant. Foundations and walls in particular account for a large proportion. Looking at the modules, there is a large variation in the distribution (figure 4): Distribution of emissions
It appears that while joints take up some space, the reuse process is also far from irrelevant. Foundations and walls in particular account for a large proportion. Looking at the modules, there is a large variation in the distribution (figure 4):
Distribution of emissions
House,
Huset, nyt
Huset, genbrugt, faktisk
Huset, genbrugt, BR18
Huset, nyt
Fig 4: Fordeling i emissioner – livscyklusmoduler
Fig 4: Fordeling i emissioner – livscyklusmoduler
2-eq. A1-A3 A4 C3 C4
Det ses, at der for den faktiske genbrug er en mere jævn fordeling blandt modulerne, mens de to andre scenarier har en markant andel i A1-A4, altså up front.
Det ses, at der for den faktiske genbrug er en mere jævn fordeling blandt modulerne, mens de to andre scenarier har en markant andel i A1-A4, altså up front.
House, reused, actual House, reused, BR18 House, new
Fig 4: Distribution in emissions – life-cycle modules
It can be seen that actual reuse is more evenly distributed among the modules, while the other
Resultat
Ved beregning af modulerne A1-A4, B4, C3-C4 og D ses et væsentligt lavere emissionsniveau for genbrug end ved nybyg. Dog ses en væsentlig forskel mellem den faktiske udledning og den udledning, som regnes i bygningsreglementet. I alt ses en forskel fra den faktiske udledning til bygningsreglementets beregning på over 150%. En fordeling af emissionerne kan ses i figur 3.
Det fremgår, at mens samlinger fylder noget, så er genbrugsprocessen også langt fra irrelevant. Specielt for fundamenter og vægge er der en stor andel. Ser man på modulerne, så ses en stor variation i fordelingen (figur 4).
Det ses, at der for den faktiske genbrug er en mere jævn fordeling blandt modulerne, mens de to andre scenarier har en markant andel i A1-A4, altså up front.
Result
When calculating modules A1-A4, B4, C3-C4, and D, a significantly lower emission level is seen for reuse than for new construction. However, there is a significant difference between the actual emissions and the emissions calculated in the building regulations. In total, there is a difference of more than 150% between the actual emissions and the calculation in the building regulations. A breakdown of the emissions can be seen in figure 3.
It appears that while joints take up some space, the reuse process is also far from irrelevant. Foundations and walls in particular account for a large proportion. Looking at the modules, there is a large variation in the distribution (figure 4).
It can be seen that actual reuse is more evenly distributed among the modules, while the other two scenarios have a significant share in A1-A4, i.e., up front.
Fig.
Fig. 3: Distribution in emissions – building components
Fig. 3: Fordeling i emissioner – bygningsdele
Fig. 4: Fordeling
Data Genbrugt betonvæg, 150 mm Reused concrete wall, 150 mm
GWP, A1-A3
GWP, C3
GWP, C4
4,53E+00 kg CO2-eq. / m2
9,66E-01 kg CO2-eq. / m2
7,01E-01 kg CO2-eq. / m2
GWP, D -7,88E-01 kg CO2-eq. / m2
Fig. 5: Tabel med klimadata for genbrugte betonelementer, modelleret af Arkitektskolen Aarhus iht. EN15804+A1. Datasættene er anvendt i beregningen af løsninger i figur 13 og figur 14.2
Genbrugt huldæk, 150 mm Reused concrete wall, 150 mm
4,54E+00 kg CO2-eq. / m2
1,03E+00 kg CO2-eq. / m2
7,55E-01 kg CO2-eq. / m2
-7,01E-01 kg CO2-eq. / m2
Table with climate data for reused concrete elements, modeled by Aarhus School of Architecture in accordance with EN15804+A1. The data sets have been used in the calculation of solutions in Figure 13 and Figure 14.2
Behov for yderligere metodeudvikling i forhold til konsekvens-LCA
Hvad der heller ikke er omfattet af projektbeskrivelsen, men af vigtighed for at estimere den korrekte miljøpåvirkning af genbrug, er at se processen i et konsekvens-LCA-perspektiv (ovenfor er anvendt et attributionelt LCA-perspektiv). Fra et konsekvensmæssigt LCA-perspektiv, ser man på hvad der sker, når man udfører en handling, fx når man beder om et genbrugt betonelement. Her ses på markedskræfterne, og hvem der responderer, med udgangspunkt i marginalerne.
Via den konsekvensbaserede tilgang ser man længere end blot sig selv, og ser i stedet på systemet som helhed, og man kan vurdere den reelle påvirkning man har på miljøet.
Need for further methodological development in relation to consequential LCA
What is also not covered by the project description, but is important for estimating the correct environmental impact of reuse, is to view the process from a consequential LCA perspective (above, an attributional LCA perspective has been used). From a consequential LCA perspective, one looks at what happens when one performs an action, e.g., when one requests a reused concrete element. Here, one looks at market forces and who responds, based on the margins.
The consequence-based approach allows us to look beyond ourselves and instead look at the system as a whole, enabling us to assess our real impact on the environment.

Fig. 6: En diagrammatisk konsekvensbaseret opstilling for genbrugte betonelementer.
A diagrammatic consequence-based setup for reused concrete elements.
Genbrugsmaterialer
Genbrugs materialer har et stort potentiale for miljøet. I attributionsmodellering tildeles genbrug af materialer ofte 0 emissioner, dvs. ingen belastning, men i konsekvensbaseret LCA kan visse scenarier for genbrug føre til reaktioner på markedet. De tilbageholdte materialer kan følge en anden vej end konventionelt genbrug og genanvendelse, da vi ikke køber materialer, men »producerer« dem selv. For at evaluere dette er der behov for en klar ramme for at sikre konsistente resultater. Følgende trin tages for at evaluere eksisterende materialer:
Reused materials
Reused materials have great potential for the environment. In attribution modeling, the reuse of materials is often assigned 0 emissions, i.e., no impact, but in consequence-based LCA, certain reuse scenarios can lead to market reactions. The retained materials may follow a different path than conventional reuse and recycling, as we do not purchase materials but “produce” them ourselves. To evaluate this, a clear framework is needed to ensure consistent results. The following steps are taken to evaluate existing materials:
Eksempel: Genbrug af eksisterende beton
Overvej et projekt, hvor strukturelle betonelementer bevares under en større ombygning af en bygning, i stedet for at nedrive hele bygningen og købe nye præfabrikerede betonelementer. I henhold til den konsekvens-LCA-tilgang, tildeles dette genbrug ikke automatisk en »byrdefri« profil. I stedet vurderes de miljømæssige konsekvenser af denne handling ved at sammenligne det faktiske scenarie (genbrug) med et kontrafaktisk scenario, dvs. hvad der ville være sket med betonelementerne, hvis de ikke var blevet genbrugt.
Identificer eksisterende involverede materialer: De bevarede betonelementer i god strukturel stand er egnede til genbrug med minimal bearbejdning.
Bestem det kontrafaktiske scenario for hvert materiale:
Hvis genbrug ikke havde fundet sted, ville betonelementerne være blevet knust til genanvendt tilslag til vejunderlag eller lavkvalitetsbeton, hvilket er almindeligt i Danmark.
Vurder, om genbrug fører til undgået produktion:
Produktionen af nye præfabrikerede betonelementer undgås, hvilket er en fordel, men produktionen af genanvendt tilslag undgås også, hvilket betyder, at nyt tilslag i stedet vil blive brugt andetsteds, hvilket er en belastning.
Bestem markedets reaktion:
Efterspørgslen efter ny beton reduceres, og efterspørgslen efter nyt tilslag øges. Disse ændringer skal vurderes i sammenhæng med udbudselasticitet, markedsmætning og markedssensitivitet.
Modeller de eksisterende materialer i overensstemmelse hermed:
Kreditér undgået produktion, belast den undgåede affaldsbehandling via øget produktion af jomfruelige tilslag og modeller yderligere påvirkninger som følge af bevaringsprocessen, f.eks. forarbejdning, tilpasning, skæring osv.
Den samlede miljøpåvirkning er derfor ikke blot »nul emissioner«, men snarere balancen mellem undgået produktion af nye materialer og det potentielle tab af forsyningen af genanvendte materialer, som er formet af markedsdynamikken.
Example: Reuse existing concrete
Consider a project where structural concrete elements are retained during a major renovation of a building, rather than demolishing the entire building and purchasing new prefabricated concrete elements. According to the consequential LCA approach, this reuse is not automatically assigned a “burden-free” profile. Instead, the environmental impact of this action is assessed by comparing the actual scenario (reuse) with a counterfactual scenario, i.e., what would have happened to the concrete elements if they had not been reused.
Identify existing materials involved:
The preserved concrete elements in good structural condition are suitable for reuse with minimal processing.
Determine the counterfactual scenario for each material:
If reuse had not taken place, the concrete elements would have been crushed into reused aggregate for road base or low-quality concrete, which is common practice in Denmark.
Assess whether reuse leads to avoided production: The production of new prefabricated concrete elements is avoided, which is an advantage, but the production of reused aggregate is also avoided, which means that new aggregate will instead be used elsewhere, which is a burden.
Determine the market response:
Demand for new concrete is reduced and demand for new aggregate is increased. These changes must be assessed in the context of supply elasticity, market saturation, and market sensitivity.
Model the existing materials accordingly:
Credit avoided production, charge for avoided waste treatment via increased production of virgin aggregates, and model additional impacts resulting from the conservation process, e.g., processing, adaptation, cutting, etc.
The overall environmental impact is therefore not simply ‘zero emissions,’ but rather the balance between avoided production of new materials and the potential loss of supply of reused materials, which is shaped by market dynamics.
Perspektivering
Til trods for at det lykkedes at estimere en miljøpåvirkning af CEBRAs genbrugsmaterialerækkehus, som er mere nuanceret end blot ‘nul’ påvirkning, er det nødvendigt at konstatere, at der er behov for mere data.
Data til estimering af miljøpåvirkning fra Genbrug på Matriklen Inspireret af Genbrug på Matriklen vil der i de kommende måneder sammen med partnere P. Olesen og Kingo (nedtagere)
tilvejebringes mere information om miljøpåvirkning fra nedtagning og ’oparbejdning’. Det sker også i samarbejde med DTU Sustain, i forhold til den reelle miljøpåvirkning, både ved selve den selektive nedtagning (primært entreprenørmaskiner, transport og opbevaring), men også miljøpåvirkning fra byggeaffald, hvis det ikke genbruges og noget går til spilde. Hvis det genbrugte materiale skal oparbejdes, f.eks. ved diamant skæring, hvad er miljøpåvirkningen herfra? En skemalagt proces og dataindsamling fremgår nedenfor:
C1 Nedtagning

Beskrivelse af hvad der er blevet nedtaget?
Hvad er nedtaget?
Dimensioner
C2/A2 Transport

Beskrivelse af hvad der er blevet transporteret
C3/A3 Klargøring til genbrug

Eventuelt klargøring eller tilføjet ændringer for at elementet kan genbruges
Km transport efter Opbevaring
Materialer nedtagning
- Vægt
Hvilket maskiner/værktøj er Vægt af de transporteret.
Andet maskinelt håndtering anvendt i nedtagning? (Hvis der er forskellige ved opbevaring eller transportafstande skal klargøring vægten angives for hver)
Hvor lang tid blev maskinerne/værktøjet anvendt?
Hvilket spild er der i nedtagningen
Skulle der fjernes andre bygningsdele for at få adgang?
Mængde og type af eventuel indpakning eller afstivning
Indpakning type og mængde
Andet maskinelt håndtering på nedtagningsstedet
Hvilke transportformer?
Fig. 7: Tabel med dataindsamlingsskema udført i samarbejde mellem Arkitektskolen i Aarhus, Structural Reuse og DTU (adjunkt Rune Andersen). Dataindsamlingen danner grundlag for modellering af genbrugselementer.
Perspective
Despite successfully estimating an environmental impact of CEBRA’ reused material terraced house that is more nuanced than simply ‘zero’ impact, it is necessary to note that more data is needed.
Data for estimating the environmental impact of Reuse on Site
Inspired by Genbrug på Matriklen, more information about the environmental impact of demolition and ‘reuse’ will be provided
Demolition

Description of what has been dismantled
What has been dismantled?
Dimensions
Materials
- Weight
What machines/tools are
Transport
in the coming months in collaboration with partners P. Olesen and Kingo (demolition contractors). This will also be done in collaboration with DTU Sustain, in relation to the actual environmental impact, both from the selective demolition itself (primarily construction machinery, transport, and storage), but also the environmental impact of construction waste if it is not reused and some of it goes to waste. If the reused material is to be reprocessed, e.g. by diamond cutting, what is the environmental impact of this? A scheduled process and data collection are shown below:
Preparation for reuse


Description of what has been transported Any preparation or changes made to enable reuse of the item
Transport distance Storage
Dismantling
Weight of the transported items. Other mechanical handling used in dismantling? (If there are different storage or transport distances, preparation weight must be specified for each)
How long were the machines/tools used?
What waste is involved in dismantling?
Were other building parts removed to gain access?
Quantity and type of any packaging or bracing
Packaging type and quantity
Other mechanical handling at the demolition site
What modes of transport?
Table with a data collection form developed in collaboration between Aarhus School of Architecture, Structural Reuse, and DTU (Assistant Professor Rune Andersen). The data collection forms the basis for modeling reuse elements.
C1
C2/A2
C3/A3
Andre perspektiver ved genbrug Når genbrug vurderes i en livscyklusvurdering, er det vigtigt at se ud over klimaaftrykket målt i CO2-eq. Genbrug påvirker en lang række andre miljøparametre, som bør vurderes på lige fod med klimapåvirkningen for at give et retvisende billede af de samlede konsekvenser. Det gælder især ressourceforbrug, både råstoffer og energi som ressource, samt påvirkninger af miljø og økosystemer fra udvinding, forarbejdning og transport. Eksisterende materialer kan desuden indeholde problematiske eller farlige stoffer, der udfordrer sundhed og recirkulering. Samtidig kan genbrugsmaterialer have vanskeligt ved at opfylde de tekniske og lovgivningsmæssige krav, der gælder for nye materialer, hvilket kan kræve yderligere behandling og dermed øget miljøpåvirkning. En helhedsorienteret vurdering skal derfor inddrage alle disse aspekter og vægte dem ligeligt med klimapåvirkningen for at vurdere, om genbrug reelt fører til en samlet miljømæssig gevinst frem for blot en forskydning af belastninger mellem miljøkategorier.
En konsekvensbaseret LCA kan bidrage til at belyse mange af de udfordringer, der knytter sig til genbrug. I stedet for at betragte miljøpåvirkninger som et statisk regnskab, undersøger den, hvordan ændringer i materialestrømme, teknologi og markedsdynamikker påvirker det samlede system. Dermed kan den tydeliggøre de indirekte effekter af genbrug, såsom hvordan øget anvendelse af genbrugsmaterialer påvirker efterspørgslen efter jomfruelige ressourcer, energiforbrug og affaldsstrømme. En konsekvensbaseret tilgang kan derfor give et mere retvisende billede af de samlede miljøkonsekvenser og bidrage til at vurdere, om genbrug reelt fører til en samlet reduktion i miljøbelastningen.
Other perspectives on reuse
When assessing reuse in a life cycle assessment, it is important to look beyond the climate footprint measured in CO2 -eq. Reuse affects a wide range of other environmental parameters, which should be assessed on an equal footing with the climate impact in order to provide an accurate picture of the overall consequences. This applies in particular to resource consumption, both raw materials and energy as a resource, as well as the impact on the environment and ecosystems from extraction, processing, and transport. Existing materials may also contain problematic or hazardous substances that pose challenges to health and reuse. At the same time, reused materials may have difficulty meeting the technical and regulatory requirements that apply to new materials, which may require additional processing and thus increase the environmental impact. A holistic assessment must therefore take all these aspects into account and weigh them equally with the climate impact in order to assess whether reuse actually leads to an overall environmental gain rather than simply a shift of burdens between environmental categories.
A consequence-based LCA can help shed light on many of the challenges associated with reuse. Rather than viewing environmental impacts as a static account, it examines how changes in material flows, technology, and market dynamics affect the overall system. In this way, it can clarify the indirect effects of reuse, such as how increased use of reused materials affects demand for virgin resources, energy consumption, and waste streams. A consequence-based approach can therefore provide a more accurate picture of the overall environmental consequences and help assess whether reuse actually leads to an overall reduction in environmental impact.
Estimering af energiforbrug i nyopførte bygninger med genbrugsmaterialer.
I forhold til byggelovgivning, skal et nyopført byggeri af genbrug leve op til gældende krav for nybyggeri. Det er imidlertid krævende at estimere u-værdi etc. fra nyopførsel af genbrugsbyggevarer. Der mangler et estimat af energiforbruget i det design fra CEBRA (1. iteration design sprint), som ligger til grund for LCA, derfor er B6 udeladt.
Det er et interessant spørgsmål, om genbrug som en selvfølge kan bringes til et energiforbrug, som krævet i bygningsreglementet (et spørgsmål om membraner og isoleringstykkelse), eller om de nye typer af samlinger, ældre vinduestyper etc. vil give en større luftinfiltration og varmetab, ændret u-værdi mv. Projektet ’Klimadata for Renovering’ åbner et perspektiv, hvor energiforbruget til drift vil have mindre betydning i fremtiden pga. ændrede ’energifremtider’.1 Hvis B6 skal beregnes er der brug for at estimere en u-værdi og en tæthedsgrad, fordi der ikke er tale om standardsamlinger. Det kan muligvis ske via værktøjet UBAKUS, men pga. den unikke karakter af genbrugsdele er det en beregningsmæssig udfordring.
Skulle en nyopført bygning af genbrugsmaterialer, i stedet have et energiforbrug, der som minimum var det samme, som den eksisterende bygning (før nedrivning)? Det ville kunne håndteres mere intuitivt.
Estimating energy consumption in newly constructed buildings using reused materials.
In relation to building regulations, a newly constructed building made from reused materials must meet the applicable requirements for new construction. However, it is challenging to estimate the U-value, etc., from new construction using reused building materials. There is no estimate of energy consumption in the design from CEBRA (1st iteration design sprint), which forms the basis for the LCA, so B6 has been omitted.
It is an interesting question whether reused materials can naturally be brought to the energy consumption required by building regulations (a question of membranes and insulation thickness), or whether the new types of joints, older window types, etc., will result in greater air infiltration and heat loss, changed U-values, etc. The ‘Climate Data for Renovation’ project opens up a perspective in which the energy consumption for operation will be less important in the future due to changed ‘energy futures’.1 If B6 is to be calculated, it is necessary to estimate a U-value and a degree of tightness, because these are not standard joints. This may be possible using the UBAKUS tool, but due to the unique nature of reused parts, it is a computational challenge. Should a newly constructed building made of reused materials instead have an energy consumption that is at least the same as the existing building (before demolition)?
Should a newly constructed building made of reused materials instead have an energy consumption that was at least the same as the existing building (before demolition)? This could be handled more intuitively.
Noter
1 Realdania, 2024, Klimadata for renovering -Et udviklingsprojekt om livscyklusanalyser, klimabelastning, økonomi og arkitektoniske perspektiver ved renovering. ISBN978-87-93360-52-5
2 Jensen, L. B., Kruse Aagaard, A., Larsen, N. M., Frølunde-Vizgaudis , V. T., Sørensen, A., Karatosun, S., & Tolman, T. (2024). Statusrapport 1 - Genbrug på Matriklen: Statusrapport 1 - Genbrug på Matriklen. I Statusrapport 1 - Genbrug på Matriklen: Statusrapport 1 - Genbrug på Matriklen
Det økonomiske perspektiv
Introduktion
Det følgende er uddrag fra en samtale om de økonomiske, forretningsmæssige og systemiske barrierer der i dag står i vejen for udbredelsen af genbrug i byggebranchen i 2025, og hvilke muligheder der også er til stede. Samtalen involverede repræsentanter fra forskellige faglige baggrunde og aktører i branchen, heriblandt nedtagningsfirmaer, bygherrer/ udviklere, entreprenører og arkitekt- og ingeniørrådgivere.
Samtalen var organiseret af Lotte Bjerregaard Jensen og gennemførtes med deltagelse af Frank Jensen (Søren Jensen Rådgivende Ingeniører), Samuel Mydland (JDH-Byg), Søren Malund Thomsen (Kingo), Marie Pilegaard (P. Olesen), Jens Møller Boeriis (Domis) og Eva Aaby (Arkitema).
The financial perspective
Introduction
The following is an excerpt from a conversation about the economic, business, and systemic barriers that stand in the way of the widespread adoption of reuse in the construction industry in 2025, and what opportunities are also available. The conversation involved representatives from various professional backgrounds and industry players, including demolition companies, builders/developers, contractors, and architectural and engineering consultants.
The discussion was organized by Lotte Bjerregaard Jensen and attended by Frank Jensen (Søren Jensen Consulting Engineers), Samuel Mydland (JDH-Byg), Søren Malund Thomsen (Kingo), Marie Pilegaard (P. Olesen), Jens Møller Boeriis (Domis), and Eva Aaby (Arkitema).
Interview
Lotte Bjerregaard Jensen: Hvis vi ser på hvordan der det sidste årti har der været politisk velvilje for cirkulær økonomi i byggeriet, både hvad angår strategier og lovgivning. Senest regnes genbrug som havende ’nul’ miljømæssig påvirkning. Man kan spørge sig selv hvorfor der stadig er et efterslæb? Lad os tage udgangspunkt i et konkret eksempel, de to lag genbrugs-huldæk fra Gellerupparken som fungerer som et ’nyt’ fundament, ... både Greendozer og Søren Jensen Rådgivende Ingeniører også har arbejdet med. Hvad er de reelle økonomiske muligheder for sådan en ide?
Samuel Mydland: Hele kriteriet fra projektet om mest muligt genbrug gjorde at vi overvejede det. Vi nåede bare aldrig helt så langt, at vi fik ”prisprøvet” konceptet eller tanken for alvor, fordi bygherre af andre årsager lige i den periode havde økonomiske udfordringer
Frank Jensen: Ja, var hverken var en samarbejdsmæssig, økonomisk eller teknisk udfordring.
Søren Malund Thomsen: Jeg spørger fordi vi har et projekt, hvor der er samme idé, og hvor vi nu er kommet dertil, hvor der er begyndt at blive sat økonomi på. Vi ligger et par hundrede kroner dyrere pr. m2, end hvis man laver et traditionelt fundament.
Lotte Bjerregaard Jensen: Findes der eksempler på, at der også er noget økonomisk fordelagtigt i dét at genbruge?
Samuel Mydland: Det eneste sted som jeg har set at vi har kunnet bruge genbrug som en økonomisk løftestang, forstået på den måde at det er nemmere realiserbart med genbrugsmaterialer, er med Troldtekt-lofter. Så længe at de skal have samme anvendelse og er på lager, blevet screenet og pakket klar til afsendelse, er der ikke så stor forskel på at ringe til trælasthandlen for at bestille nye, fremfor genbrugte plader hos Thomas fra Kingo eller P. Olesen. Så kan vi godt få økonomien til at hænge sammen med udgangspunkt i samme regnestykke, som var det nye Troldtektplader. I nogle tilfælde lidt billigere...
Lotte Bjerregaard Jensen: Og der skal ikke foregå nogen som helst form for oparbejdning eller afrensning? Har det også noget med det at gøre?
Samuel Mydland: Ja, helt sikkert.
Søren Malund Thomsen: Der er lidt forskel på hvordan vi anskuer økonomien i de her projekter. Når vi pinpointer enkelte materialer og sammenholder dem med nye, så er det
Interview
Lotte Bjerregaard Jensen: There has been significant political goodwill for the circular economy in construction over the last decade, both in terms of strategies and legislation. Most recently, reuse is considered to have ‘zero’ environmental impact. One might ask why it is still not mainstream. Let’s take a concrete example: the two layers of reused hollow core slabs from Gellerup Parken that serve as a ‘new’ foundation, which both Greendozer and Søren Jensen Consulting Engineers have also worked with. What are the real economic opportunities for such an idea?
Samuel Mydland: The whole criterion of the project to reuse as much as possible made us consider using reused materials for a foundation. We just never got far enough to really ‘price test’ the concept or the idea because the client was facing financial challenges at that particular time for other reasons.
Frank Jensen: It was neither a collaborative, financial, nor technical challenge.
Søren Malund Thomsen: We have a project based on the same idea, and we have now reached the stage where we are starting to look at the financial aspects. We are a couple of hundred DKK more expensive per square meter than if we were to build a traditional foundation.
Lotte Bjerregaard Jensen: Are there any examples of economic benefits of reuse?
Samuel Mydland: The only place I have seen where we have been able to use ‘reuse’ as an economic lever, in the sense that it is easy withreused materials, is Troldtekt ceilings. As long as they are to be used for the same purpose and are in stock, screened, and packed ready for shipment, there is not much difference between calling the lumberyard to order new panels and ordering reused panels from Thomas at Kingo or P. Olesen. Then we can make the economics work based on the same calculation as for new Troldtekt panels. In some cases, it is even a little cheaper...
Lotte Bjerregaard Jensen: And there is no need for any kind of refurbishment or cleaning? Does that also have something to do with it?
Samuel Mydland: Yes, definitely.
Søren Malund Thomsen: There is a slight difference in how we view the economics of these projects. When we pinpoint individual materials and compare them with new ones,
begrænset, hvor mange vi ser, der har krydset denne her økonomiske kurve. Eksemplet med Troldtekt er helt sikkert et af de få. Vi begynder også at se nogle andre pladetyper hvor det begynder at være interessant. Jeg tror også, vi kan begynde at kigge ind i nogle betonelementer, men det hører i den grad til de få eksempler. Til gengæld synes jeg at der begynder at dukke nogle eksempler op med, at når man ser total økonomisk på et byggeprojekt med noget der er blevet pillet ned, og noget der er blevet sat op igen, så begynder der at tegne sig nogle historier, som rent faktisk kan lykkes med at holde økonomien hjemme. Der er et i gang med Ny administrationsbygning til Vesthimmerlands Forsyning i øjeblikket, hvor man flytter en bygning. Vi har også været i gang med at pille en skole ned for et par år siden i Varde, hvilket også blev en fin totaløkonomisk case for kommunen. Men man skal kigge efter de der historier. Det er ikke dem, der er flest af.
Frank Jensen: Når vi siger ”økonomisk fordelagtigt”, er vi nødt til at se på det i forhold til hvem. Jeg tror der er mange aktører, der stadigvæk går lidt på kompromis med dækningsbidrag, osv. Troldtekt forudsætter, at der er nogen, som leverer de brugte plader gratis, så der ikke er nogen økonomi i nedtagningen. Der er stadigvæk nogle steder, hvor der skal lidt velgørenhed til eller i hvert fald en økonomisk satsning. Det skal nok komme, i takt med at man skalerer op og kører afsted med fyldte lastbiler i stedet for kvarte, men der mangler lidt endnu.
Lotte Bjerregaard Jensen: Kan det også have noget at gøre med med at de nye regler for affaldshåndterings ikke bliver håndhævet? For det burde egentligt være dyrt at komme af med affald på den rigtige måde. Det skulle gerne være en driver og policy-mæssigt en af de ting, der er lavet for at implementere cirkulær økonomi.
Søren Malund Thomsen: Det er ikke dyrt at komme af med affald. Det er dyrt at komme af med forurenet affald, og det er også derfor vi ser at nedrivningsbranchen igennem de sidste årtier har dygtiggjort sig i at kunne recirkulere affald. Problemet er bare at det bliver knust og at det er meget lavt nede i værdihierarkiet. Men det grunder i at køre ting på deponi er for dyrt, så det bliver en driver i den forstand. Men det er ikke på den samme måde i forhold til beton eller træ, der knuses.
Lotte Bjerregaard Jensen: Er det også fordi der er en etableret industri omkring genanvendelse, mens det samme ikke gør sig gældende for direkte genbrug?
Søren Malund Thomsen: Det er der slet ingen tvivl om og Franks pointe omkring skala er nøglen i det hele. Vi er oppe imod en byggeindustri som har brugt årtier og generationer på at raffinere sin produktion og forsyningskæder. Så
there are only a limited number that we see crossing this economic curve. The example of Troldtekt is certainly one of the few. We are also beginning to see some other types of panels where it is starting to get interesting. I also think we can start looking at some concrete elements, but these are very few examples. On the other hand, I think we are starting to see some examples where, when you look at the overall economics of a construction project involving something that has been demolished and something that has been rebuilt, some stories are beginning to emerge that can actually succeed in keeping the economics in check. There is one underway at the moment with the new administration building for Vesthimmerlands Forsyning, where a building is being moved. We also demolished a school a couple of years ago in Varde, which also turned out to be a good overall economic case for the municipality. But you have to look for those stories. They are not the majority.
Frank Jensen: When we say “economically advantageous,” we have to look at it in relation to whom. I think there are many players who still compromise a little on contribution margins, etc. Troldtekt assumes that someone will supply the used panels for free, so there is no financial gain in dismantling them. There are still some places where a little charity or at least a financial investment is needed. This will come in time, as we scale up and run with full trucks instead of quarter-full ones, but there is still a little way to go.
Lotte Bjerregaard Jensen: Could it also have something to do with the fact that the new waste management regulations are not being enforced? Because it should actually be expensive to dispose of waste in the right way. It should be a driver and, in terms of policy, one of the things that has been done to implement the circular economy.
Søren Malund Thomsen: It is not expensive to dispose of waste. It is expensive to dispose of contaminated waste, which is why we have seen the demolition industry become skilled at waste reuse over the last few decades. The problem is that it gets crushed and is very low down in the value hierarchy. But this is because sending things to landfill is too expensive, so it becomes a driver in that sense. However, it is not the same for concrete or wood that is crushed.
Lotte Bjerregaard Jensen: Is it also because there is an established industry around reuse, while the same is not true for direct reuse?
Søren Malund Thomsen: There is no doubt about that, and Frank’s point about scale is key to the whole thing. We are up against a construction industry that has spent decades and generations refining its production and supply chains. Then people like Marie and I come into the picture and have
kommer sådan nogle som Marie og jeg ind i billedet, og skal begynde at tage nogle ting ned som Samuel skal bygge med og Frank skal regne på. Hverken Marie eller jeg har maskinerne eller arbejdsrutinerne til at tage det her effektivt ned endnu. Der er noget af det vi bliver lidt dygtigere til, men vi har kun kradset i overfladen. Sammenligningen er helt fair, for det er sådan at markedskræfterne fungerer, men der er en årsag til at differencen stadigvæk er der.
Frank Jensen: Skala er både i volumen, maskiner, lagerbindinger, osv. Der står jomfruelige materialer på lager i milliardklassen, mens det kun er i millionklassen for genbrugsmaterialer, så der er heller ikke meget at tage ned fra hylderne. Så hvem er det, der skal lave lagerbindinger? Der er masser af økonomiske drivere, der ikke er på plads endnu. Prispunktet har vi langt fra ramt endnu, men det skal nok komme. Om det tager et, ti eller hundrede år, er det spændende.
Lotte Bjerregaard Jensen: Jeg har også snart arbejdet med de her projekter i 20 år, og man har hele tiden diskuteret hvornår det cirkulære ’ville ske’ og vi gør det stadigvæk, på trods stor opbakning fra lovgivningens side...
Frank Jensen: Man konkurrerer mod en lineær branche, der også forbedrer sig med 1-3% om året, så du skal løbe hurtigere end det. Lovgivningen har aldrig fordret at en lineær proces skal kunne følge med, så der sørger de for at lægge den på et niveau, så den eksisterende branche drives i stedet for at smadres. Det er en hårfin grænse, så det handler om at finde nogle forretningsmodeller, hvor genbrug kan betale sig. Det er ikke så meget de tekniske løsninger, men dét at gennemskue, hvor det økonomisk fordelagtige ligger. Om det så er to lag huldæk som fundamenter eller genbrugstoiletter, osv. eller hvad vi som rådgivere kan finde på. Det handler om at finde de cases, hvor der kan være penge at tjene for alle, for ellers så skalerer det ikke.
Lotte Bjerregaard Jensen: Fra en arkitekts synspunkt drejer det sig om designprocessen og at der ligesom I også har arbejdet med i Greendozer, skal være ét ’point of entry’, hvor det genbrugte materiale skal kunne findes online. Samtidig skal det også være koblet sammen med øvrige forhandlere, hvor man kan købe nye materialer, hvis der mangler en rest.
Det er i hvert fald noget af det, som vi har fået rigtig god feedback på fra tegnestuerne. Men i forhold til design processen: Hvis du vil købe og bruge genbrugsmateriale som arkitekt i dag, så skal du selv tegne det op fra bunden i din digitale model. Så forskellige måder, hvor det som digitalt objekt også indeholdte miljøscreeningsdata og ikke destruktive test-data, osv. der faciliterede designprocessen mere, kunne være en mulighed... Er der noget man kunne gøre i forhold til designprocessen og økonomi?
to start taking things down that Samuel has to build with and Frank has to calculate. Neither Marie nor I have the machines or work routines to dismantle this efficiently yet. We are getting a little better at some things, but we have only scratched the surface. The comparison is entirely fair, because that is how market forces work, but there is a reason why the difference still exists.
Frank Jensen: Scale is in terms of volume, machinery, inventory commitments, etc. There are billions worth of virgin materials in stock, while there are only millions worth of reuse materials, so there isn’t much to take off the shelves. So, who is going to make the inventory commitments? There are lots of economic drivers that are not yet in place. We are still a long way from reaching the price point, but it will come. Whether it takes one, ten, or a hundred years is exciting.
Lotte Bjerregaard Jensen: I have also been working on these projects for almost 20 years, and there has been constant discussion about when the circular economy ‘will happen’, and we are still doing so, despite strong support from legislation...
Frank Jensen: You are competing against a linear industry that is also improving by 1-3% per year, so you have to run faster than that. Legislation has never required a linear process to keep up, so they make sure to set it at a level that allows the existing industry to operate rather than be destroyed. It’s a fine line, so it’s about finding business models where reuse pays off. It’s not so much about the technical solutions, but about figuring out where the economic benefits lie. Whether it’s two layers of hollow decks as foundations or reuse toilets, etc., or whatever else we as consultants can come up with. It’s about finding cases where there is money to be made for everyone, because otherwise it won’t scale.
Lotte Bjerregaard Jensen: From an architect’s point of view, it’s all about the design process and, just like you’ve done at Greendozer, there needs to be a single point of entry where reuse materials can be found online. At the same time, it also needs to be linked to other retailers where you can buy new materials if you’re missing something. In any case, this is something we have received very good feedback on from the design studios. But in relation to the design process: if you want to buy and use reuse materials as an architect today, you have to draw it up yourself from scratch in your digital model. So different ways in which the digital object also contained environmental screening data and non-destructive test data, etc., which facilitated the design process more, could be a possibility... Is there anything that could be done in relation to the design process and economics?
Samuel Mydland: Vi har prøvet nogle forskellige løsninger igennem tiden, som skulle fremme genbrug. Det har været i meget lille skala, men vi har vi lige designet et enfamilieshus. Det er stadig et lille projekt, men vi startede med at lave et skitseoplæg, som definerede rumstørrelser, krav og geometri på bygningen. Ud af det blev en hel række bygningskomponenter defineret, som var som minimum nødvendige for at kunne realisere byggeriet. Efter skitseforslaget lagde vi projektet på hylden i et halvt år og overleverede det til bygherren, og bad dem høste alle de genbrugsmaterialer som de overhovedet kunne komme til fra ’listen’. På den måde udførte de ’gratis’, det hårde logistikarbejde med at høste, finde og lagre komponenter. Herefter begyndte vi at lokalisere vinduer, døre og fodlister, osv., og køre det til lageret. Da vi så havde det komplette overblik over genbrugsmaterialer til projektet, lavede vi det endelige projektforslag og en energirammeberegning ud fra vinduernes u-værdier, osv., og projekterede det færdigt med udgangspunkt i genbrugselementerne. Og så bestilte vi ellers løbende elementer fra det ’reserverede’ lager af genbrugsmaterialer til byggepladsen. Sidst vi var derude, stod der vinduer og døre, der var pakket ind som genbrug. Her bliver det faktisk også en god forretning for bygherren, fordi der spares penge for hver arbejdstime og materialeindkøb.
Lotte Bjerregaard Jensen: Det er ligesom Frank nævnte, at man regner med noget ”gratis” ’velgørenhed’ i processen...
Samuel Mydland: Bygherrer er pensionister, så de har god tid til at gøre det.
Lotte Bjerregaard Jensen: Det er den omvendte designproces i en nøddeskal. Jan har den anekdote, at en tegnestue spurgte om han havde tyve sidehængte døre i et specifikt format med særlig farvekode, osv. Det ville aldrig kunne lade sig gøre at finde. Det interessante er at I har skitseret på projektet ud fra nogle løsere, lidt uspecifikke krav ...
Samuel Mydland: Ja, men det kræver også noget fleksibilitet. Vinduestørrelserne er f.eks ret afgørende, men de er selvfølgelig også medbestemmende. På den måde, er det en ret interessant proces, hvor bygherren bliver samskabende i arkitekturen, så de får også et meget større ejerskab over de designvalg, der er truffet. På den måde har det også en positiv sideeffekt.
Lotte Bjerregaard Jensen: Enfamiliehuse er ofte ret ens, ’så der kan der være en online-skabelon, cirka hvor meget af de forskellige byggevarer man skulle høste og lagre som bygherre...
Samuel Mydland: We have tried a number of different solutions over time to promote reuse. These have been on a very small scale, but we have just designed a single-family house. It is still a small project, but we started by making a preliminary sketch that defined the room sizes, requirements, and geometry of the building. From this, we defined a whole range of building components that were the minimum necessary to realize the construction. After the preliminary design, we put the project on hold for six months and handed it over to the client, asking them to harvest all the reuse materials they could find from the ‘list’. In this way, they did the hard logistical work of harvesting, finding, and storing components ‘for free’.We then began to locate windows, doors, baseboards, etc., and transport them to the warehouse. Once we had a complete overview of the reuse materials for the project, we drew up the final project proposal and an energy framework calculation based on the U-values of the windows, etc., and completed the design based on the reused elements. And then we ordered ongoing elements from the ‘reserved’ warehouse of reuse materials for the construction site. The last time we were out there, there were windows and doors packed up as reuse materials. This is actually also good business for the client, because it saves money on every hour of labor and material purchases.
Lotte Bjerregaard Jensen: It’s like Frank said, that you expect some “free”, “charity” in the process...
Samuel Mydland: The builders are retirees, so they have plenty of time to do it.
Lotte Bjerregaard Jensen: It’s the reverse design process in a nutshell. Jan has an anecdote about an architect asking him if he had twenty side-hinged doors in a specific format with a special color code, etc. It would never be possible to find them. The interesting thing is that you have sketched out the project based on some loose, somewhat unspecific requirements...
Samuel Mydland: Yes, but it also requires some flexibility. Something like window sizes, for example, is quite crucial, but of course they also have a say in the matter. In that way, it’s a rather interesting process where the client becomes a co-creator in the architecture, so they also gain much greater ownership of the design choices that have been made. In that way, it also has a positive side effect.
Lotte Bjerregaard Jensen: Single-family homes are often quite similar, so there is an online template showing approximately how much of the various building materials you need to harvest and store as a builder...
Samuel Mydland: Ja og det er nogle overskuelige størrelser. 60m2 gulvoverflader af en speciel type. Det er lidt noget andet når vi skal have nok genbrugsmateriale til en daginstitution på 1000m2 og bygherren gerne vil have de samme lofter overalt. Så får vi nogle skalamæssige benspænd. Men så må man tappe ind i de store materialestrømme på affaldskæden lige nu, som vi f.eks. har gjort med Kingo til Rønde Børnehus, hvor der bliver pillet en masse bølgeeternitplader ned på minkfarmene lige nu, der har skabt et tilstrækkeligt lager af samme type og kvalitet til en daginstitution.
Lotte Bjerregaard Jensen: Hvor meget lykkedes det så at indarbejde direkte genbrug?
Samuel Mydland: Det ved vi ikke, da vi ikke er begyndt at bygge endnu.
Lotte Bjerregaard Jensen: Men I samler et lager til den specifikke institution?
Samuel Mydland: Ja, det havde vi faktisk gjort i Domis’ haller ude i Åbyhøj, men kommunen havde ikke fået købt grunden helt, da vi skulle til at bygge, så det har stået stille i et lille stykke tid.
Lotte Bjerregaard Jensen : Hvor lang tid har det cirka taget jer at samle materialet til børneinstituttionen?
Samuel Mydland: Det er et godt spørgsmål. Det ved jeg faktisk ikke.
Lotte Bjerregaard Jensen: Det har også noget med økonomien at gøre, hvis man f.eks. kunne give et tids- og lager estimat pr. 1000m2
Samuel Mydland: Ja, på lagerbinding og omkostninger.
Lotte Bjerregaard Jensen: Er det muligt at have en ambition om offentligt byggeri med 100% genbrug. Er det overhovedet muligt at lave sådan et udbud?
Frank Jensen: Det er der ikke noget i vejen for.
Samuel Mydland: Så længe man har lavet en god risikoanalyse og plan for projektet, så tænker jeg at det er okay. Man kan også støde hovedet imod muren nogle steder, fordi der endnu ikke findes normer og certificeringer for genbrug. Noget så simpelt som at der ikke findes en norm for CE-mærkning af genbrugt tømmer, kan være lidt en hastighedsbegrænser i sådan et projekt. Det er mere det lovgivningsmæssige og administrative system bagved, som ikke er gearet til at tage imod sådanne projekter og bygherrer med høje ambitioner for genbrug.
Samuel Mydland: Yes, and these are manageable sizes. 60m² of special flooring. It’s a little different when we need enough reused material for a 1,000m² daycare center and the developer wants the same ceilings everywhere. Then we run into some scalability issues. But then you have to tap into the large material flows in the waste chain right now, as we have done, for example, with Kingo for Rønde Børnehus, where a lot of corrugated asbestos sheets are being removed from mink farms right now, which has created a sufficient stock of the same type and quality for a daycare center.
Lotte Bjerregaard Jensen: How much did you manage to incorporate direct reuse?
Samuel Mydland: We don’t know, as we haven’t started building yet.
Lotte Bjerregaard Jensen: But you are gathering a stockpile for that specific institution?
Samuel Mydland: Yes, we had actually done that in Domis’ warehouses in Åbyhøj, but the municipality had not managed to purchase the land completely when we were about to start building, so it has been on hold for a little while.
Lotte Bjerregaard Jensen: How long did it take you to gather the materials for the children’s institution?
Samuel Mydland: That’s a good question. I don’t actually know.
Lotte Bjerregaard Jensen: It also has something to do with the finances, if you could give a time and storage estimate per 1000m2, for example.
Samuel Mydland: Yes, in terms of storage and costs.
Lotte Bjerregaard Jensen: Is it possible to have an ambition for public construction with 100% reuse? Is it possible to make such an offer?
Frank Jensen: There is nothing against that…
Samuel Mydland: As long as you have done a good risk analysis and plan for the project, I think it’s okay. You may also hit a brick wall in some areas, because there are no standards or certifications for reuse yet. Something as simple as the lack of a standard for CE marking of reused timber can be a bit of a speed bump in such a project. It is more the legislative and administrative system behind it that is not geared towards accepting such projects and builders with high ambitions for reuse.
Lotte Bjerregaard Jensen: I forhold til den bærende konstruktion med genbrugs-tømmer, er der taget hul på det i form af ikke destruktive test, Danske standards og tekniske specifikationer for det...
Frank Jensen: Der er ingen tvivl om, at der hele tiden forsvinder barrierer. De bliver stille og roligt pillet ned én efter én. Men det væsentligste i vores erfaring, er det økonomiske, fordi man normalt vil kunne komme uden om de andre på den ene eller anden måde. Det er et spørgsmål om knofedt og vedholdenhed. Jeg synes det er den der økonomiske model, vi alle sammen burde lede efter og spørge, hvordan vi får det til at hænge sammen i vores forretninger. Ellers forbliver det et lidt kunstnerisk projekt der er interessedrevet mere end finansielt drevet.
Lotte Bjerregaard Jensen: Så er der spørgsmålet om ansvar. Kommunen ville kunne sætte en pris på en genbrugsdaginstitution og se, om folk ville tage det ansvar indenfor den prisramme?
Søren Malund Thomsen: Der er ikke nogen i den sammenhæng, der kommer til at tage et ansvar udover byggeherren. Det kommer ikke til at ske.
Lotte Bjerregaard Jensen: Vi har f.eks. lige interviewet Material ’Cultures. De har afprøvet nogle nye kontrakttyper, hvor ansvaret er delt ligeligt mellem dem der leverer genbrugsmaterialer, bygherre og rådgivere etc.. Har I også prøvet sådan noget eller andre kontrakttyper?
Frank Jensen: Vi har i hvert fald prøvet dem der var værre, hvor vi skulle tage hele ansvaret.
Samuel Mydland: Så har det været i meget lille skala... det tager mere tid at forklare bygherren, hvad risikoforholdet er i en entrepriseaftale, end det tager at tage risikoen og håbe på at det går. Altså et lille skur eller en tilbygning, hvor det ikke er jordens undergang, hvis der er problemer.
Lotte Bjerregaard Jensen: Greendozer og Søren Jensen rådgivende ingeniør har fundet et engelsk forsikringsselskab, som vil forsikre F.eks. genbrugsgulve...
Frank Jensen: Det kan man bestemt, men det er også ud fra, hvad det er, som vi hver især er gode til. Jeg er ikke sikker på at hverken vi eller de firmaer vi repræsenterer, er specialister i at håndtere risici, ansvar, osv. Vi er ikke forsikringsselskaber, vi giver det bare videre. Det gjorde det engelske selskab også, så de er også genforsikret. Det handler om puljer og igen skala så hvis der f.eks. er et vandrør der springer, er det ét ud mange tusinde kilometer vandrør, der er forsikret hos genforsikringsselskabet øverst i pyramiden.
Lotte Bjerregaard Jensen: In relation to load-bearing structures made from reused timber, progress has been made in the form of non-destructive testing, Danish standards, and technical specifications for it...
Frank Jensen: There is no doubt that barriers are constantly disappearing. They are quietly being dismantled one by one. But the most important thing in our experience is the economic aspect, because you can usually get around the others in one way or another. It’s a question of elbow grease and perseverance. I think it’s the economic model we should all be looking for and asking how we can make it work in our businesses. Otherwise, it remains a somewhat artistic project that is driven more by interest than by financial considerations.
Lotte Bjerregaard Jensen: Then there is the question of responsibility. Could the municipality set a price for reuse daycare facilities and see if people would take responsibility within that price range?
Søren Malund Thomsen: In this context, no one other than the developer is going to take responsibility. That’s not going to happen.
Lotte Bjerregaard Jensen: We have just interviewed Material Cultures, for example. They have tested some new types of contracts where responsibility is shared equally between those who supply reused materials, the developer, consultants, etc. Have you also tried something like this or other types of contracts?
Frank Jensen: We have certainly tried the ones that were worse, where we had to take full responsibility.
Samuel Mydland: So, it has been on a very small scale... it takes more time to explain to the client what the risk ratio is in a construction contract than it takes to take the risk and hope for the best. In other words, a small shed or an extension, where it is not the end of the world if there are problems.
Lotte Bjerregaard Jensen: Greendozer and Søren Jensen, consulting engineer, have found an English insurance company that will insure, for example, reused flooring...
Frank Jensen: You certainly can, but it also depends on what each of us is good at. I’m not sure that either we or the companies we represent are specialists in managing risks, liability, etc. We are not insurance companies; we just pass it on. The English company did the same, so they are also reinsured. It’s about pools and scale, so if, for example, a water pipe bursts, it’s one of many thousands of kilometers
Så det handler om at få professionelle til at håndtere tingene og ikke bede små startupvirksomheder eller sågar store virksomheder, der ikke er vant til opgaven om at varetage det. Vi er ikke forsikringsselskaber, så hvorfor er det os man beder om at tage ansvaret? Jeg tænker, at man i mange af de her henseender, helst skulle prøve at finde enten en produktansvarsforsikring, der kan der kan dække det hele, eller en projektansvarsforsikring, som forsikringsselskaberne i øjeblikket ikke er super vilde med.
Lotte Bjerregaard Jensen: Vil du fortælle lidt om de genbrugs- projekter I har? F.eks. dét hvor I skulle renovere et kontorbyggeri med genbrugsmaterialer, og det andet angående almennyttigt boligbyggeri, hvor I genbruger i samarbejde med viceværterne.
Frank Jensen: Det ene kalder vi Turnkey Circular Partnership, hvor vi forsøger at belyse, hvad der skal til for at løfte en totalentreprisekontrakt fra bygherrens side med genbrugsmaterialer, hvor der så er en entreprenør, som går med til ikke at stå for koordineringen af nye og gamle materialer og heller ikke dækningsbidraget på materialefortjenesten. Den skubber man så nedad i fødekæden, mens vi rådgiver ved f.eks. at der kun anvendes Ø201 og en Ø400 ventilationskanal. Så går det ret hurtigt at projektere, hvis der ikke er for mange variationer. Til gengæld, skal vi så designe for disassembly. Det nye er at det hedder en totalmaterialeleverandør, hvor vedkommende skal levere alle materialerne og har koordineringsforpligtelse mellem materialerne, som ikke ligger oppe på entreprenørniveau, men som skubbes nedad i fødekæden, for at skabe en kritisk masse. Så hvis der f.eks. er 20% genbrug så er der 80% nye materialer, som køres ind igennem, så man kan få sit dækningsbidrag på, osv. Så det handler om at flytte den sum penge, der er i et projekt, hen til dem, der skal lave noget nyt og gøre det anderledes end før. Det er én måde at lave denne her forretningsmodelinnovation på, og jeg tror der er tyve andre løsninger på samme problem, hvor der flyttes rundt på de penge, der er i projektet, med henblik på at få dem flyttet derhen, hvor det giver bedst mening at tingene bliver løst. Det er lidt det samme med det andet projekt, i forhold til almennyttige boliger. Der handler det om dét, der hedder Cirkulær Istandsættelse af Boliger. De har 5000 boliger, men her handler det om de mange små ting. Her er det viceværterne, som bringes i spil. Det er typisk toiletkummer, skabslåger, hængsler, osv. som de skifter hver gang der kommer en ny lejer ind. Kunne man så f.eks. tage bare 5 eller 10 af de varenumre, som bliver hyppigst brugt, og gøre til genbrug, så man får noget skala i det. Alt det andet må man så købe nyt, men det handler om at gå fra 0% genbrug til noget der er større end det. Procentdelen er lidt underordnet fordi det handler om at gentagelsen kommer og at du får et flow igennem, så f.eks. nedrivningsfirmaer kan begynde at
of water pipes that are insured by the reinsurance company at the top of the pyramid. So, it’s about getting professionals to handle things and not asking small startups or even large companies that are not used to the task to take care of it. We are not insurance companies, so why are we being asked to take responsibility? I think that in many of these respects, it would be best to try to find either a product liability insurance that can cover everything or a project liability insurance, which insurance companies are not particularly keen on at the moment.
Lotte Bjerregaard Jensen: Could you tell us a little about the reuse projects you have? For example, the one where you had to renovate an office building with reused materials, and the other one concerning non-profit housing construction, where you reuse in collaboration with the caretakers.
Frank Jensen: One is called Turnkey Circular Partnership, where we try to highlight what it takes for a client to award a turnkey contract using reused materials, with a contractor who agrees not to be responsible for coordinating new and old materials or for the contribution margin on material profits. This is then pushed down the food chain, while we advise, for example, that only Ø201 and Ø400 ventilation ducts should be used. Then it is quite quick to design if there are not too many variations. In return, we then have to design for disassembly. What is new is that it is called a total material supplier, where the supplier must deliver all the materials and has a coordination obligation between the materials, which is not imposed at the contractor level, but is pushed down the food chain to create a critical mass. So, for example, if there is 20% reuse, there is 80% new materials that are brought in so that you can get your contribution margin, etc. So, it’s about moving the sum of money that is in a project to those who are going to do something new and do it differently than before. This is one way of implementing this business model innovation, and I believe there are twenty other solutions to the same problem, where the money in the project is moved around in order to get it to where it makes the most sense to solve the issues. It is somewhat similar with the other project, in relation to public housing. It’s about what’s called Circular Housing Renovation. They have 5,000 homes, but here it’s about the many small things. Here, it’s the caretakers who are brought into play. Typically, these are toilet bowls, cabinet doors, hinges, etc., which they replace every time a new tenant moves in. Could you, for example, take just 5 or 10 of the most frequently used item numbers and make them reusable, so you get some scale in it? Everything else would have to be bought new, but the point is to go from 0% reuse to something greater than that. The percentage is somewhat secondary because it’s about repetition and getting a flow going, so that demolition companies, for example, can
lægge noget til side og håndtere det anderledes. Der skal skabes en alternativ ’tragt’ for genbrug i stedet for at det bare bliver genanvendt. Så det handler først og fremmest om volumen på nogle få varenumre, så kan man altid tage flere med senere.
Lotte Bjerregaard Jensen: helt generelt - Hvad er den største barriere og hvad kunne være det største potentiale, hvis man skulle genbruge mere direkte i byggeriet?
Frank Jensen: Altså det vi oplever som den største barriere, er at alle cvr-numre forsvarer hver sin markedsandel. Vi giver ikke rigtig plads til dem, der gerne vil prøve noget af, så selvom vi kun er lidt øvede i at beregne på genbrugsmaterialer eller andre alternative løsninger, bliver der ikke gjort plads til det. Hvis der så er en der er bedre, hvordan får vi så alle sammen flyttet os? Firkantede forretningsmodeller skal til at være runde, og de runde skal til at være trekantede. De trekantede skal til at være firkantede, så hvordan giver vi plads til de her nye ting? Det kræver at vi ikke er så ekspansive i vores mindset og giver plads til at andre kan ændre deres forretningsmodel for at vi får det hele til at gå i hak. Der er en kulturel barriere hos alle vi forretningsudviklere.
Lotte Bjerregaard Jensen: Er det dét, der er den kulturelle barriere?
Frank Jensen: I de enkelte ting med genbrugsmaterialer, er det så lille en opgave, at hvis ikke man skaber plads til, at man også kan lave andet end det, er det så lille en ydelse, at du ikke driver forretning på det. Så vi skal give plads til at sådan en virksomhed kan få lidt mere, for ellers så kan den ikke drives. Den skal ind på nogle af de markeder, som vi andre sidder på i forvejen, for det er der fortjenesten skal ligge, mens virksomheden opskaleres.
Lotte Bjerregaard Jensen: Du tænker måske f.eks. at dem der tager Troldtektplader ned også har et sted hvor de renser PCB af parketgulvet og sådan noget?
Frank Jensen: Det kan godt være, men evt. også at de skal tage noget af nedbrydningsdelen eller noget mere rådgivning, som vi andre skal give plads til, eller at det ultimativt er dem, der selv opfører et hus og så lejer det ud.
Lotte Bjerregaard Jensen: eller f.eks. et arkitektfirma som Arkitema ville man så selv skulle have en lagerhal et sted og have nogle ansatte med nogle gaffeltrucks og sådan noget.
start setting things aside and handling them differently. An alternative ‘funnel’ for reuse must be created instead of just recycling. So, it’s primarily about volume on a few item numbers, and then you can always add more later.
Lotte Bjerregaard Jensen: In general terms, what is the biggest barrier and what could be the greatest potential if we were to reuse more directly in construction?
Frank Jensen: Well, what we see as the biggest barrier is that all CVR numbers defend their own market share. We don’t really make room for those who want to try something new, so even though we are only slightly experienced in calculating reused materials or other alternative solutions, there is no room for it. If someone else is better, how do we all move forward? Square business models need to become round, and round ones need to become triangular. The triangular ones need to become square, so how do we make room for these new things? This requires us to be less expansive in our mindset and make room for others to change their business models so that we can make it all work. There is a cultural barrier among all of us business developers.
Lotte Bjerregaard Jensen: Is that what the cultural barrier is?
Frank Jensen: When it comes to individual items made from reused materials, it is such a small task that if you don’t make room for doing other things as well, it is such a small service that you cannot run a business on it. So, we have to make room for such a business to get a little more, otherwise it cannot be run. It needs to enter some of the markets that the rest of us are already in, because that is where the profits will be while the company scales up.
Lotte Bjerregaard Jensen: You might think, for example, that those who remove Troldtekt panels also have a place where they clean PCBs from parquet floors and such?
Frank Jensen: That may be true, but it could also be that they need to take on some of the demolition work or provide more advice, which the rest of us will have to make room for, or that ultimately it is they who build a house themselves and then rent it out.
Lotte Bjerregaard Jensen: Or, for example, an architectural firm like Arkitema would then have to have a warehouse somewhere and employ people with forklifts and such.
Frank Jensen: Ja, eller acceptere at der er nogle andre, der måske er bedre til at designe med genbrugsmaterialer og så give plads til dem i projekterne som underrådgivere, eller hvad det nu kunne være. Det vigtigste er nok at markeringslinjerne mellem virksomhederne ikke kan blive, hvor de har været, for det har ikke virket. Vi er nødt til at flytte rundt på tingene.
Jens Møller Boeriis: Jeg er meget enig i det Frank siger. Vi sidder som bygherre hele tiden og kigger med. Vi er selv startet op med Hal 11 og det har vi gjort af flere årsager. Vi havde hallen stående tom og vi skal til at bygge derude, og så ville vi gerne være med på rejsen, som vi allesammen skal på i forhold til genbrug og biogene materialer - langt mere end vi har gjort tidligere. Så vi har stillet hallen til rådighed af samme årsag og vi går selv lidt og fifler med nogle af de her ting. Jeg har været hos Olav de Linde i 10 år, inden jeg startede i min nuværende stilling og har i den forbindelse haft fornøjelsen af at arbejde med genbrug hos ham, og har haft vores eget genbrugs-materiale lager dengang også, hvor vi brugte byggevarerne i kontorbyggerier. Så for mig er det ikke helt nyt, men jeg kan se at der virkelig er kommet fart på processen. Det største problem for mange er økonomien og tilgængeligheden, hvis man er bygherre. Det er svært at regne noget hjem. Lige nu sidder jeg selv med en lille ombygning i Risskov, hvor vi har en kontorejendom, som vi bygger om med mest muligt genbrug. Her har jeg en arkitekt med på sidelinjen. Jeg kan bare se at timerne til arkitekten løber, når jeg skal have hjælpe med alle mulige ting i denne her proces, og det gør bare, at det ikke hænger sammen økonomisk, når vi går ned ad denne her vej. Selvom vi prøver at genbruge tæpperne, og bruger den eksisterende beton som gulve og genbruger de samme lofter. Det vi piller ned, bruger vi som første lag gips i lejemålet. Vi bruger genbrugstæpper fra Ege Tæpper. Vi prøver egentlig hele vejen rundt, men kan også godt se, at det rent økonomisk ikke bliver nogen vindersag. Lovgivning, statik, brand, osv. er alle ting, som også bliver en udfordring, når vi prøver at genbruge i en helt simpel kontorrenovering på 250m2, som jeg gerne vil skalere op til større lejemål i vores renoveringer.
Frank Jensen: Det synes jeg er et rigtig godt eksempel på hvordan man forsøger at skabe skala ved at tage mest muligt. Vi er så småt ved at finde ud af det her, men hvis man skal skabe skala, så skal man have et enkeltvarenummer og så gentage tingene i stedet for, at det er mange varenumre. Vi forsøger at løse det hele ud over en bred front, men det har vist sig at være meget omkostningstungt for alle.
Lotte Bjerregaard Jensen: ...så finder man en løsning på eet varenummer af gangen, vi har tjek på troldtektpladen, nu tager vi branddøren...
Frank Jensen: Yes, or accept that there are others who may be better at designing with reused materials and then make room for them in the projects as sub-consultants, or whatever it may be. The most important thing is probably that the dividing lines between companies cannot remain where they have been, because that has not worked. We need to move things around.
Jens Møller Boeriis: I very much agree with what Frank says. As builders, we are constantly watching and observing. We started with Hall 11 ourselves, and we did so for several reasons. We had the hall standing empty and we are about to start building out there, so we wanted to be part of the journey we are all embarking on in relation to reuse and biogenic materials – much more so than we have done in the past. So, we have made the hall available for the same reason, and we are tinkering with some of these things ourselves. I worked for Olav de Linde for 10 years before starting in my current position, and in that connection I had the pleasure of working with reuse at his company, and we also had our own reuse material warehouse at the time, where we used the building materials in office construction projects. So, for me, it’s not entirely new, but I can see that the process has really gained momentum. The biggest problem for many is the economy and availability if you are a builder. It is difficult to calculate anything. Right now, I am working on a small renovation in Risskov, where we have an office property that we are renovating with as much reuse as possible. I have an architect on the sidelines here. I can see that the architect’s hours are adding up as I need help with all sorts of things in this process, and that just means that it doesn’t make financial sense to go down this route. Even though we are trying to reuse the carpets, use the existing concrete as flooring, and reuse the same ceilings. What we tear down, we use as the first layer of plaster in the rental property. We use reused carpets from Ege Carpets. We are trying everything we can, but we can also see that financially, it will not be a winning proposition. Legislation, statics, fire safety, etc. are all things that also become a challenge when we try to reuse materials in a simple 250 m² office renovation, which I would like to scale up to larger rental properties in our renovations.
Frank Jensen: I think that’s a really good example of how to try to create scale by taking as much as possible. We are slowly figuring this out, but if you want to create scale, you need to have a single item number and then repeat things instead of having many item numbers. We are trying to solve everything across a broad front, but this has proven to be very costly for everyone.
Lotte Bjerregaard Jensen: ...so you find a solution for one item number at a time. We have checked the Troldtekt panels, now we are moving on to the fire doors...
Marie Pilegaard: Lige angående branddøre så spurter vi rundt og laver ressourcekortlægninger på alle større bygninger nu. Jeg har lige kortlagt et rådhus i Gilleleje, hvor der var 100 helt nye branddøre. Det er et kæmpestort problem, at vi ikke har nogen steder at afsætte dem. Vi har et kæmpe overblik over en hel masse materialer, som bliver frigivet i løbet af en måned. Det betyder også, at der ret hurtigt skal være nogle aftagere, som står klar til at tage imod. Vi kan slet ikke på nogen måde køre det på lager. Det er slet ikke realistisk. Vi vil rigtig gerne dele de her ressourcekortlægninger med nogle potentielle aftagere, istedet for at de kun tilgår en lille intern gruppe i projekterne....
Eva Aaby: Vores problem er primært at der går rigtig lang tid fra idé, til vi står og skal finde hvad for noget materiale, der skal bygges i. Der er selvfølgelig noget planlægning, hvor vi skal være bedre til at indarbejde en elastik i den. Hvis vi kunne stole på, at der nok kommer nogle materialer inden for een bestemt kategori, ville det være okay at vi ikke ved hvordan f.eks. vinduerne ser ud, hvilken farve dørene har, osv. Det kan vi finde ud af i processen. I øjeblikket kan man dog ikke regne med, at der er de materialer tilgængelige, når man så står og skal bruge dem. Så dét at få opbygget et lager, hvor man kunne forestille sig, at der nok skal være noget at bruge, når vi når frem dertil, ville gøre en kæmpe forskel. Men hvem skal have det opbevaret?
Lotte Bjerregaard Jensen: Kunne man forestille sig at man ikke måtte nedrive en bygning før materialerne var afsat? Så det ikke var et fysisk, men digitalt lager. Sådan noget lovgivning kunne man efterspørge i Genbrug På Matriklen som et af de konkluderende kapitler. Hvad siger I til det?
Samuel Mydland: Det lyder mega fedt, hvis det kunne lade sig gøre.
Søren Malund Thomsen: Ja, nu har der været meget snak undervejs i interviewet med hensyn til de her lagre og det er et nødvendigt onde i øjeblikket. Det samme er webshops. Vi er rigtig mange, der synes det var en skam at Greendozer ikke lykkedes med at samle branchen, som vi var mange, der havde håbet på. Nu står vi så lidt ligesom med vores streamingtjenester, hvor alle der har en form for indhold, har også deres egen tjeneste, og så sidder man som forbruger og skal zappe rundt imellem dem. Det er nøjagtig den samme udfordring, som alle, der skal bygge noget med genbrugsmaterialer står i. En meget simpel løsning er, at vi skal have producenterne på banen. Det er dog mere kompliceret end som så, fordi det naturligvis er et stort væld af forskellige virksomheder, men det er nødt til at ske. Det vil løse stort set alle vores problemer. Vi taler i øjeblikket om to ting. Økonomi og ansvar, og ansvaret kan kobles tilbage til økonomi
Marie Pilegaard: Regarding fire doors, we are currently rushing around and mapping resources in all larger buildings. I have just mapped a town hall in Gilleleje, where there were 100 brand new fire doors. It is a huge problem that we have nowhere to sell them. We have a huge overview of a whole lot of materials that will be released within a month. This also means that we need to find buyers who are ready to take delivery fairly quickly. We can’t possibly store it all. It’s not realistic.We would really like to share these resource mappings with some potential buyers, instead of them only being available to a small internal group in the projects....
Eva Aaby: Our main problem is that it takes a very long time from the initial idea to finding the right materials to build with. Of course, there is some planning involved, and we need to be better at incorporating flexibility into that. If we could be sure that certain materials in a specific category would be available, it would be okay if we didn’t know what the windows would look like, what color the doors would be, etc. We can figure that out during the process. At the moment, however, you can’t count on the materials being available when you need them. So, building up a stockpile where you could imagine that there would be something to use when we got there would make a huge difference. But who should store it?
Lotte Bjerregaard Jensen: Could you imagine not being allowed to demolish a building until the materials have been sold? So, it would not be a physical warehouse, but a digital one.Such legislation could be requested in Reuse on the Land Registry as one of the concluding chapters. What do you think about that?
Samuel Mydland: That sounds really cool, if it were possible.
Søren Malund Thomsen: Yes, there has been a lot of talk during the interview about these warehouses, and they are a necessary evil at the moment. The same goes for web shops. Many of us think it’s a shame that Greendozer didn’t succeed in bringing the industry together, as many of us had hoped. Now we’re in a similar situation with our streaming services, where everyone who has some kind of content also has their own service, and then you sit there as a consumer and have to zap between them. This is exactly the same challenge faced by anyone who wants to build something with reused materials. A very simple solution is to get the manufacturers on board. However, it is more complicated than that, because there are, of course, a huge number of different companies, but it has to happen. It will solve pretty much all our problems. We are currently talking about two things. Economics and responsibility, and responsibility can be linked back to economics before we know it. Troldtekt, for example, is stepping in and taking
inden vi får set os om. Troldtekt f.eks., træder ind på banen og tager ansvar for at alt recirkuleres. Så kan nedrivningsfirmaerne gå ind og lave nogle volumenaftaler. Så bliver det en konkurrence om hvem der er dygtigst til at tage det billigst ned og pakke det ordentligt og levere en råvare på lige vilkår med dem der leverer træ til Troldtekt i dag. Det vil gøre at de til hver en tid har et flow. Deres salgsorganisationer har styr på, hvor meget de kan projektere med. De ’bor’ det rigtige sted i byggeriets værdikæde. Tilsvarende kan Troldtekt tage de plader, som vi har pillet ned, og de kan lave den kvalitetssikring, der skal til. De kan coate pladerne, så de opnår de nye certificeringer og hvad ellers der er af krav. Så der ligger i den grad en pointe dér og så når vi hen til det, som jeg synes har været den absolut mest værdifulde kommentar i den her snak: Franks pointe omkring få varenumre i stor skala. For så er det vi kan begynde at øve os, og så snart vi begynder at øve os, sker opskaleringen også. Vi øver os i øjeblikket sammen med JDH Byg over for Realdania med at levere tømmer i en skala der hidtil ikke er set i dansk genbrug. Vi er gået fra at have med produkter at gøre, der ligger et sted mellem 2-3 gange nyprisen, til at vi nu er nede på 1,5. Det er bare et enkelt projekt, og kommer af at vi dygtiggør os i nogle enkelte dimensioner. Vi finder ud af, hvordan vi arbejder sammen om de her dele. I det øjeblik producenterne træder ind på banen, har vi noget at arbejde med. Marie har simpelthen ikke tid til at finde løsningen på de der branddøre. Bygningen er revet ned, inden vi overhovedet har haft første møde. De der værdikæder er man nødt til at have på plads sideløbende, og det kræver at producenterne skal have en lidt anden snak omkring deres cradle-to-cradle certificeringer. Vi har brug for en anden cradle, end den man regner med for nuværende.
Lotte Bjerregaard Jensen: Så man skal finde en branddørsproducent som er villig til at tage imod?
Søren Malund Thomsen: Den har vi allerede, og vi er i stand til at recertificere branddøre. Så sent som i sidste uge, lagde jeg en video op med, hvordan man kan få omfinéret sådan nogle boligforeningsdøre. De løsninger fungerer, og så er vi tilbage til Maries pointe om efterspørgslen. I det øjeblik der er massiv efterspørgsel på et givent produkt, så bliver de her producenters salgsafdelinger mere rolige. Jeg taler med en del af dem, og det er samme historie overalt. Deres produktionsafdelinger står med korslagte arme og deres salgsafdelinger er nervøse for, om de kan afsætte det. Når salgsafdelingerne sænker skuldrene lidt og finder ud af det godt kunne være vi skulle til at komme i gang, så skal deres produktioner nok finde ud af det er nogle lidt andre materialer, end de starter med som udgangspunkt.
responsibility for ensuring that everything is reused. Then demolition companies can step in and make some volume agreements. Then it becomes a competition to see who is best at dismantling it cheaply, packing it properly, and delivering a raw material on equal terms with those who supply wood to Troldtekt today. This will ensure that they have a steady flow at all times. Their sales organizations know how much they can project with. They ‘live’ in the right place in the construction value chain. Similarly, Troldtekt can take the panels we have dismantled and carry out the necessary quality assurance. They can coat the panels so that they obtain the new certifications and meet any other requirements. So, there is definitely a point there, and that brings us to what I think has been the most valuable comment in this discussion: Frank’s point about obtaining large quantities of product numbers. Because then we can start practicing, and as soon as we start practicing, the upscaling will also happen. We are currently practicing together with JDH Byg opposite Realdania to deliver timber on a scale not previously seen in Danish reuse. We have gone from dealing with products that are somewhere between 2-3 times the new price to now being down to 1.5. This is just a single project, and it comes from us improving our skills in a few specific areas. We are figuring out how to work together on these parts. The moment the manufacturers step in, we have something to work with. Marie simply does not have time to find a solution for those fire doors. The building will be demolished before we even have our first meeting. These value chains need to be in place at the same time, and that requires the manufacturers to have a slightly different conversation about their cradle-to-cradle certifications. We need a different cradle than the one currently envisaged.
Lotte Bjerregaard Jensen: So, we need to find a fire door manufacturer who is willing to take us on?
Søren Malund Thomsen: We already have that, and we are able to recertify fire doors. Just last week, I posted a video showing how to refinish these types of housing association doors. These solutions work, and that brings us back to Marie’s point about demand. When there is massive demand for a given product, the sales departments of these manufacturers become more relaxed. I talk to some of them, and it’s the same story everywhere. Their production departments are sitting on their hands, and their sales departments are nervous about whether they can sell it. When the sales departments relax a little and realize that we might need to get started, their production departments will probably figure out that they need to use slightly different materials than they started with.
Lotte Bjerregaard Jensen: Så det er i virkeligheden arkitektfirmaerne, Arkitema, der bare skal stole på at der vil være branddøre nok, som er klargjort og certificeret?
Søren Malund Thomsen: I det øjeblikder begynder at komme udbud, hvor det er et krav, at man skal benytte 1000 branddøre, så er der lige pludselig kommet noget økonomi i det. Ikke nok til at man kan omlægge hele sin produktionslinje, men nok til at man måske tør dyppe tæerne. Det er der, hvor vi ser ting flytter sig. Når der kommer krav ind i udbudsmaterialet om at genbrug skal være med. Jeg er nok lidt modsat mange andre, for når jeg hører at noget skal laves med 100% genbrug, så synes jeg faktisk ikke det er fedt. Det er slet ikke dér hvor slaget skal slås. Den der daginstitution bliver et showcaseprojekt, som hele tiden vil være med den caveat, der hedder; at økonomien ikke hængte sammen. Dét der til gengæld kan hænge sammen, er at man tager nogle enkelte ting, hvor man siger dét her, det vil vi sgu lykkedes med. .. Tag Stablen i Horsens1,2 som var vanvittigt ambitiøst for 10-12 år siden da det startede. De ville have 65% genbrug, hvilket var fuldstændig uhørt. Projektet kuldsejlede, fordi de ikke kunne få noget til at hænge sammen i virkeligheden – desværre til ingens overraskelse. Så synes jeg det er 100 gange mere ambitiøst at satse på, at få en vis mængde indført i alt.
Lotte Bjerregaard Jensen: Er det mængde af et specifikt produkt, eller er det stadigvæk en procentdel du taler om?
Søren Malund Thomsen: Specifikke produkter er klart at foretrække, men hvis du har en procentdel, så kobl den op på noget i din bygning, der er vigtigere end andet. Du har selv nævnt Structural Reuse ad flere omgange. Der ligger altså noget volumen i de mursten og i den beton. Det samme gør der i glas og stål. Hvis vi starter der, så kan vi alle sammen godt holde en lille pause med sluk lyset kampagnerne i mødelokalerne. Det rykker altså noget det der.
Lotte Bjerregaard Jensen: I forhold til transparens, sagde Marie noget om at lægge ressourcekortlægning op eet sted. Kan det gøre at f.eks. Arkitema kan være tryg og have den fornødne viden om hvad der er ’på markedet’?
Marie Pilegaard: Vi arbejder på en løsning. Jeg talte med Horsens Kommune og spurgte, om de ikke kunne dykke ned i alle de ressourcekortlægninger der er, når de mangler materialer, men det må de ikke pga. GDPR-regler. Det føles som om vi laver en hel masse arbejde til ingen nytte....ressourcekortlægningerne kunne være et digitalt lager, hvis arkitekterne kunne se dem eet sted. Det er stadig meget nyt, men vi skal til at finde ud af, hvordan vi skal bruge de
Lotte Bjerregaard Jensen: So, in reality, it is the architectural firms, Arkitema, that just have to trust that there will be enough fire doors that are ready and certified?
Søren Malund Thomsen: The moment tenders start coming in that require the use of 1,000 fire doors, suddenly there is an economic incentive. Not enough to completely reorganize your entire production line, but enough to perhaps dip your toes in the water.That’s where we see things changing. When requirements are included in the tender documentation that reuse must be included. I’m probably a bit different from many others, because when I hear that something has to be made with 100% reused materials, I don’t actually think it’s cool. That’s not where the battle should be fought. That daycare center will be a showcase project that will always come with the caveat that the economics didn’t add up. What can add up, on the other hand, is taking a few individual things and saying, “We’re going to make this work.” ... Take Stablen in Horsens1, which was incredibly ambitious when it started 10-12 years ago. They wanted 65% reuse, which was completely unheard of. The project failed because they couldn’t make it work in reality – unfortunately, to no one’s surprise. So, I think it’s 100 times more ambitious to aim for a certain amount to be introduced in total.
Lotte Bjerregaard Jensen: Are you talking about the quantity of a specific product, or is it still a percentage?
Søren Malund Thomsen: Specific products are clearly preferable, but if you have a percentage, link it to something in your building that is more important than anything else. You yourself have mentioned Structural Reuse on several occasions. So, there is some volume in those bricks and in that concrete. The same goes for glass and steel. If we start there, we can all take a little break from the turn-off-thelights campaigns in the meeting rooms. That really makes a difference.
Lotte Bjerregaard Jensen: In terms of transparency, Marie said something about posting resource mapping in one place. Could that mean that Arkitema, for example, can feel secure and have the necessary knowledge about what is ‘on the market’?
Marie Pilegaard: We are working on a solution. I spoke with Horsens Municipality and asked if they could dive into all the resource mapping that exists when they need materials, but they are not allowed to do so due to GDPR rules. It feels like we are doing a lot of work for no use...the resource mapping could be a digital repository if architects could see it in one place.It’s still very new, but we need to figure out how to use
her ressourcekortlægninger. Ellers så er det kæmpe spild af tid at gå og registrere genbrugsmaterialer, som aldrig nogensinde får en chance.
Samuel Mydland: EU er gode til at lave langtrækkende strategier og lovforslag, som på et eller andet tidspunkt implementeres i national kontekst i Europa. Det ville være fantastisk, hvis EU på et tidspunkt besluttede sig for at ”take back” skulle være lovpligtigt. Så tror jeg også der vil være nogle producenter, som løfter deres ansvar. Altså man sætter ganske enkelt ikke produkter på markedet, som ikke er designet til adskillelse. Man sætter heller ikke produkter på markedet, som potentielt set er en miljøkatastrofe, så man om 50 år ikke står med et affaldsprodukt, men et genbrugsegnet produkt. Det er også en del af vores udfordring i dag i affaldshierarkiet. Vi har nogle produkter, kompositter, osv., som er totalt umulige at genanvende eller genbruge pga. kemi. Hvis man dog var forpligtet til at tage sit produkt tilbage, ligesom der f.eks. har været varslet i emballageindustrien, så bliver man nødt til kun at sætte noget i verdenen, som kan genbruges.
Søren Malund Thomsen: Det skulle måske bare lige være at Circue-platformen2,3 er undervejs med et værktøj, hvor man med et enkelt adresseopslag vil kunne få et ret præcist bud på, hvilke materialer en bygning består af. Så skal der måske ikke så meget til at man kan lave reverse engineering på de ting, der så er er blevet udbudt. Jeg tror heller ikke at det er offentligt tilgængeligt endnu, men udfordringen med det, er bare at det hverken bliver Marie eller jeg, som kommer til at lægge de her ressourcekortlægninger ud, så alle har glæde af dem, simpelthen fordi det ville kræve ressourcer på projekter, vi endnu ikke har vundet. Så skulle der være nogle som finansierede gildet. Men det kommer man rundt om, hvis du har en platform, der i forvejen har alle informationerne.
these resource inventories. Otherwise, it’s a huge waste of time to go around registering reused materials that will never get a chance.
Samuel Mydland: The EU is good at creating long-term strategies and legislative proposals that are eventually implemented in a national context across Europe. It would be fantastic if the EU decided at some point that “take back” should be mandatory. I think that some manufacturers would then take responsibility. In other words, you simply do not put products on the market that are not designed for separation. Nor do you put products on the market that are potentially an environmental disaster, so that in 50 years’ time you are not left with a waste product, but a reusable product. This is also part of our challenge today in the waste hierarchy. We have some products, composites, etc., that are totally impossible to recycle or reuse due to their chemical composition. However, if you were obliged to take your product back, as has been announced in the packaging industry, for example, you would have to only put something out there that could be reused.
Søren Malund Thomsen: The Circue platform2 is in the process of developing a tool where, with a single address lookup, you can get a fairly accurate estimate of what materials a building is made of. Then it might not take much to ‘reverse engineer’ the things that have been put up for sale. I don’t think the platform is publicly available yet. The challenge with the idea of ‘publishing’ resource mappings instead of a Circue platform is that neither Marie nor I will be the ones to publish these resource maps for everyone to enjoy, simply because it would require resources for projects we haven’t won yet. So, someone would have to finance this. But you can get around that if you have a platform that already has all the information.
1 https://vaerdibyg.dk/stablen-i-horsens-erfaringer-med-cirkulaert-byggeri/
2 Circue - Circular Construction Connected | Connect and explore latest solutions



Biografier
Arkitekter ved deltagende tegnestuer:
Anna Mette Exner: Arkitekt, projektansvarlig og indehaver af tegnestuen Anna Mette Exner Arkitektur. Hun har et stort portfolio inden for restaurerings- og renoveringsprojekter og deltager i forskning og udvikling med fokus på transformationsprojekter.
David Ploug: Partner og ansvarlig for Bolig – Renovering hos JJW Arkitekter. Han har mere end 20 års erfaring inden for projektering af boliger, studie-, erhvervs-, kultur- og laboratoriebyggeri.
Esben Dannemand: Arkitekt og tegnestueleder hos Anna Mette Exner Arkitektur. Han har tidligere haft egen tegnestue, har været hos Anna Mette Exner siden 2021 og har mange års erfaring med transformation af eksisterende byggeri til nye formål.
Eva Aaby: Skitserende arkitekt hos Arkitema, hvor hun arbejder med projekter inden for lejlighedsbebyggelser, lokalplansudvikling og byrumsrenoveringer. Derudover er hun projekterende arkitekt på transformationsprojekter inden for bolig- og kontorbyggeri.
Kasper Ax: Arkitekt og projektleder hos EFFEKT. Han har tidligere været medstifter af AJGA samt Associate Architect hos LASSA Architects.
Martin Oddershede: Bæredygtighedschef og associeret partner hos JJW Arkitekter med speciale i bæredygtigt byggeri, herunder LCA, energiberegning og dagslysoptimering.
Mikkel Hallundbæk Schlesinger: Arkitekt og partner hos CEBRA. Med over 20 års erfaring har han arbejdet med projekter som Nye, Reduction Roadmap, Villa 1, Store Ravnsbjerg og Mini CO2 Etagehus Beton.
Niels Eli Kjær Thomsen: Arkitekt, projekt– og bæredygtighedsleder hos SLETH. Han er uddannet arkitekt fra Arkitektskolen Aarhus og AA School of Architecture
Pi Aasbjerg Hansen: Partner og Strategi- og udviklingsdirektør/CVO hos SLETH.
Stina Rask Jensen: Seniorarkitekt Ph.d. og Head of Transformation and Conservation hos CEBRA. Hun har en baggrund som både praktiserende arkitekt og forsker med fokus på samspillet mellem arkitektur, ingeniørkunst og antropologi.
Biographies
Architects at participating architectural offices:
Anna Mette Exner: Architect and owner of Anna Mette Exner Arkitektur. She has an extensive portfolio of restoration and renovation projects and participates in research and development with a focus on architectural transformation.
David Ploug: Partner and head of Housing – Renovation at JJW Arkitekter. He has more than 20 years of experience in the design of residential, student, commercial, cultural, and laboratory buildings.
Esben Dannemand: Architect and studio manager at Anna Mette Exner Arkitektur. He has previously had his own practice, has been with Anna Mette Exner since 2021, and has many years of experience in transforming existing buildings for new purposes.
Eva Aaby: Architect at Arkitema, where she works on projects involving apartment buildings, local planning development, and urban space renovations. Additionally, she is a project architect on transformation projects within residential and office construction.
Kasper Ax: Architect at EFFEKT, previously co-founder of AJGA and Associate Architect at LASSA Architects.
Martin Oddershede: Sustainability Manager and Associate Partner at JJW Arkitekter, specializing in sustainable construction, including LCA, energy calculation, and daylight optimization.
Mikkel Hallundbæk Schlesinger: Architect and partner at CEBRA. With more than 20 years of experience, he has worked on projects such as Nye, Reduction Roadmap, Villa 1, Store Ravnsbjerg, and Mini CO2 Etagehus Beton.
Niels Eli Kjær Thomsen: Architect, project and sustainability manager at SLETH. He holds a degree in architecture from the Aarhus School of Architecture and the AA School of Architecture.
Pi Aasbjerg Hansen: Partner and strategy and development director/CVO at SLETH.
Stina Rask Jensen: Senior architect Ph.D. and Head of Transformation and Conservation at CEBRA. She has a background both as a practicing architect and as researcher focusing on the interplay between architecture, engineering, and anthropology.
Thomas Fænø Mondrup: MSc i Architectural Engineering, Ph.d. og Sustainability Director (Buildings & Industry) ved COWI og Arkitema.
Praktikanter og studenteransatte i samarbejde med tegnestuerne:
2024: 1. iteration designsprint (arbejdspakke
3)
Anna Hemdorff: Deltog i Genbrug på Matriklen som studentermedarbejder ved Anna Mette Exner Arkitektur. Hun har en bachelorgrad i arkitektur fra Arkitektskolen Aarhus.
Julie Møller Pedersen: Deltog i Genbrug på Matriklen som praktikant hos JJW. Hun har en bachelorgrad i arkitektur fra Arkitektskolen Aarhus.
Katrin Lilian Olesen: Deltog i Genbrug på Matriklen som praktikant hos CEBRA. Hun har en bachelorgrad i arkitektur fra Arkitektskolen Aarhus.
Lovisa Andersson: Deltog i Genbrug på Matriklen som praktikant hos EFFEKT. Hun har en bachelorgrad i arkitektur fra Chalmers tekniske højskole i Göteborg.
Marco Kromann Bøgehøj Nielsen: Deltog i Genbrug på Matriklen som praktikant hos Arkitema. Han har en bachelorgrad i arkitektur fra Arkitektskolen Aarhus.
2025: 2. iteration designsprint (arbejdspakke 3)
Haidy Mousa: Deltog i Genbrug på Matriklen som Junior Innovation Designer hos EFFEKT. Hun har en bachelorgrad i arkitektur fra Kairo Universitet i Egypten og studerer på kandidatuddannelsen ved Politecnico di Milano i Italien.
Karen Emilie Mølgaard Rasmussen: Deltog i Genbrug på Matriklen som studentermedarbejder hos Anna Mette Exner Arkitektur. Hun har en bachelorgrad i arkitektur fra Arkitektskolen Aarhus.
Karen Helen Brobakken: Deltog i Genbrug på Matriklen som praktikant hos Arkitema. Hun har en bachelorgrad i arkitektur fra Arkitektskolen Aarhus.
Mathilde Strandberg Hallin: Deltog i Genbrug på Matriklen som praktikant hos SLETH. Hun har en bachelorgrad i arkitektur fra Arkitektskolen Aarhus.
Sara Bengtson: Deltog i Genbrug på Matriklen som praktikant hos CEBRA. Hun har en bachelorgrad i arkitektur fra Arkitektskolen Aarhus.
Thomas Fænø Mondrup: MSc in Architectural Engineering, PhD, and Sustainability Director (Buildings & Industry) at COWI and Arkitema.
Interns and student assistants in collaboration with architectural offices:
2024: 1st iteration design sprint (work package 3)
Anna Hemdorff: Participated in Reuse on Site as assistant at Anna Mette Exner Arkitektur. She has a bachelor’s degree in architecture from Aarhus School of Architecture.
Julie Møller Pedersen: Participated in Reuse on Site as intern at JJW. She holds a bachelor’s degree in architecture from Aarhus School of Architecture.
Katrin Lilian Olesen: Participated in Reuse on Site as intern at CEBRA. She has a bachelor’s degree in architecture from Aarhus School of Architecture.
Lovisa Andersson: Participated in Reuse on Site as intern at EFFEKT. She holds a bachelor’s degree in architecture from Chalmers University of Technology in Gothenburg
Marco Kromann Bøgehøj Nielsen: Participated in Reuse on Site as intern at Arkitema. He holds a bachelor’s degree in architecture from Aarhus School of Architecture.
2025: 2nd iteration design sprint (work package 3)
Haidy Mousa: Participated in Reuse on Site as a Junior Innovation Designer at EFFEKT. She holds a bachelor’s degree in architecture from Cairo University in Egypt and is a master’s student at Politecnico di Milano in Italy.
Karen Emilie Mølgaard Rasmussen: Participated in Reuse on Site as student assistant at Anna Mette Exner Arkitektur. She holds a bachelor’s degree in architecture from Aarhus School of Architecture.
Karen Helen Brobakken: Participated in Reuse on Site as intern at Arkitema. She holds a bachelor’s degree in architecture from Aarhus School of Architecture.
Mathilde Strandberg Hallin: Participated in Reuse on Site as intern at SLETH. She holds a bachelor’s degree in architecture from Aarhus School of Architecture.
Sara Bengtson: Participated in Reuse on Site as intern at CEBRA. She holds a bachelor’s degree in architecture from Aarhus School of Architecture.
Deltagere, miljørådgivning:
Tim Tolman: Seniorrådgiver & forretningsudvikler ved Milva samt civilingeniør i bæredygtigt design, specialiseret i udarbejdelse af ressourcekortlægninger, kvalificering af materialer, cirkuleringspotentiale, cirkulært produktansvar, udbudsprocesser, selektiv nedrivning samt ledelse og facilitering af platforme til cirkulært samarbejde.
Tue Holdensen: CEO og seniorrådgiver i Milva og udvikler af Milvas digitale platform.
Deltagere, ikke-destruktiv testning:
Frederikke Paulin Petersen: Kandidatstuderende og forskningsassistent ved DTU, hvor hun bl.a. har medvirket i forskning om ikke-destruktiv testning af træ.
Jesper Stærke Clausen: Civilingeniør og NDT-specialist, tidligere ved COWI og nu som fagleder for NDT/NED af beton ved Teknologisk Institut.
Lisbeth M. Ottosen: Professor of leder af Section for Materials and Durability ved Department of Environmental and Resource Engineering på DTU, hvor hun leder DTUs indsats for ‘Circularity in Civil Engineering’ ved Institut for Miljø- og Ressourceteknologi.
Serkan Karatosun: Civilingeniør og postdoc ved DTU SUSTAIN Department of Environmental and Resource Engineering på DTU, med speciale i ikke-destruktiv materialekarakterisering som grundlag for cirkulært byggeri. Han har omfattende erfaring med laboratorie- og feltundersøgelser af beton- og trækonstruktioner.
Deltagere, nedtagning og gensalg af byggevarer:
Jan Rohde: Stifter og direktør i GreenDozer, og har mange års erfaring med gensalg af byggematerialer. Han har samarbejdet tæt med nedrivere og udvikler forretningsmodeller sammen med forsikringsselskaber, der muliggør garantiordninger ved anvendelse af genbrug i byggeindustrien.
Marie Pilegaard: Arkitekt og projektkoordinator ved P. Olesen.
Søren Malund Thomsen: Head of Business Development, Marketing & PR ved Kingo. Han er kommerciel forretningsudvikler med 17 års erfaring. Han arbejder i krydsfeltet mellem forskning og forretning.
Participants, environmental consulting:
Tim Tolman: Senior advisor and business developer at Milva and a civil engineer in sustainable design. He specializes in resource mapping, material qualification, circular economy, tendering processes, selective demolition, and management and facilitation of platforms for circularity.
Tue Holdensen: CEO and senior advisor at Milva and involved in the development of Milva’s digital platform.
Participants,
non-destructive testing:
Frederikke Paulin Petersen: Master’s student and former research assistant at DTU, where she has been involved in research on non-destructive testing of wood.
Jesper Stærke Clausen: Civil engineer and NDT specialist, formerly at COWI and now head of NDT/NED for concrete at the Danish Technological Institute.
Lisbeth M. Ottosen: Professor and head of the Section for Materials and Durability at the Department of Environmental and Resource Engineering at DTU, where she leads DTU’s efforts in ‘Circularity in Civil Engineering’.
Serkan Karatosun: Civil engineer and postdoc at DTU SUSTAIN Department of Environmental and Resource Engineering at DTU, specializing in non-destructive material characterization as a basis for circular construction. He has extensive experience with laboratory and field studies of concrete and wood structures.
Participants, dismantling, and resale of building materials:
Jan Rohde: Founder and director of GreenDozer with experience in the resale of building materials. He has worked closely with demolition contractors and developed business models together with insurance companies that enable warranty schemes for the use of reused materials in the construction industry.
Marie Pilegaard: Architect and project coordinator at P. Olesen.
Søren Malund Thomsen: Head of Business Development, Marketing & PR at Kingo. He is a commercial business developer with 17 years of experience. He works at the intersection of research and business.
Deltagere, ingeniørrådgivning:
DTU-studerende ved kandidatuddannelsen i Architectural Engineering involveret i 1. designiteration/Ringparken: Niclas Brandt, Janin Brandt, Rasmus Toft Sandgaard, Ida-Marie Solveig Højbak Hansen, Helene Frey, Lucca Alberte Klyver, Lærke Rode Nielsen.
Frank Jensen: Konstruktionsingeniør, PhD, ejer og bestyrelsesformand for Søren Jensen Rådgivende Ingeniørerfirma. Han sidder i bestyrelsen for flere danske og internationale virksomheder.
Niels Christian Jakobsen: B.Eng. og hjælpelærer ved DTU. Han er desuden studentermedhjælper ved Holst Engineering.
Peter Vejrum: Konstruktionsingeniør ved Søren Jensen Rådgivende Ingeniørfirma. Han er uddannet MSc i Architectural Engineering og er specialist i computional design.
Rasmus Kristian Holst: Indehaver af Holst Engineering. Han er uddannet MSc Architectural Engineering, og underviser desuden som ekstern lektor ved DTU.
Deltagere fra entreprenørvirksomhed:
Jørgen Dalgas Hedeager: Entreprenør, tømrermester og grundlægger af JDH-BYG. Han har specialiseret sig i at arbejde med biobaserede materialer, og har bl.a. stået for en række EcoCocon-byggerier.
Samuel Mydland: Arkitekt og ejerleder ved JDH-BYG
Deltagere, bygherrer:
Jens Møller Boeriis: Projektdirektør hos ejendomsselskabet DOMIS.
John Skovbjerg: Projektdirektør hos ejendomsselskabet DOMIS.
Participants, engineering consultancy:
DTU students in the master’s program in Architectural Engineering involved in the first design iteration/Ringparken: Niclas Brandt, Janin Brandt, Rasmus Toft Sandgaard, Ida-Marie Solveig Højbak Hansen, Helene Frey, Lucca Alberte Klyver, Lærke Rode Nielsen.
Frank Jensen: Structural engineer, Ph.D., owner and chairman of the board at Søren Jensen Consulting Engineers. He sits on the boards of several Danish and international companies.
Niels Christian Jakobsen: B.Eng. and teaching assistant at DTU. He is also a student assistant at Holst Engineering.
Peter Vejrum: Structural engineer at Søren Jensen Consulting Engineers. He has a MSc in Architectural Engineering and is a specialist in computational design.
Rasmus Kristian Holst: Owner of Holst Engineering. He holds an MSc in Architectural Engineering and teaches as a external lecturer at DTU.
Participants, construction companies/ contractors:
Jørgen Dalgas Hedeager: Contractor, master carpenter, and founder of JDH-BYG. He specializes in working with bio-based materials and has been responsible for a number of EcoCocon projects.
Samuel Mydland: Architect and owner-manager at JDH-BYG.
Participants, property developers:
John Skovbjerg: Project director at the real estate developer DOMIS.
Jens Møller Boeriis: Project director at the real estate developer DOMIS.
Deltagere fra Arkitektskolen Aarhus
Anders Kruse Aagaard: Cand.arch., Ph.d. og lektor ved Arkitektskolen Aarhus og forsker med fokus på materialebearbejdning og digital fabrikation i relation til arkitektonisk design. I Genbrug på Matriklen har han fungeret som forsker og co-projektleder.
August Sørensen: Bæredygtighedsspecialist, B.eng. fra Aarhus Universitet. Han er LCA-ekspert og ingeniørrådgiver ved Ekolab. Desuden er han tilknyttet Arkitektskolen Aarhus som ekstern lektor.
Emma Holm Kjær: Kandidatstuderende og studentermedhjælper ved Arkitektskolen Aarhus.
Frederik Reese: Cand.arch. og forskningsassistent, medvirkende i flere forskningsprojekter ved Arkitektskolen Aarhus, herunder Genbrug på Matriklen
Johan Hvidtfeldt Rahbek: Kandidatstuderende og studentermedhjælper ved Arkitektskolen Aarhus.
Jon Andersen: Cand.arch. og lektor ved Arkitektskolen Aarhus.
Lotte M. Bjerregaard Jensen: Forsker og projektleder for Genbrug på Matriklen. Hun er professor MSO i bæredygtig arkitektur og Cand.arch. og ph.d. fra Arkitektskolen Aarhus. Hun er desuden Arkitektskolens lead i Aarhus Center for Regenerativt Byggeri. Hun har tidligere været lektor ved DTU Sustain.
Matīss Groskaufmanis: Undervisningslektor ved the Arkitektskolen Aarhus og ph.d.-stipendiat ved TU Delft’s Design, Data, and Society Group.
Niels Martin Larsen: Cand.arch., Ph.d. og lektor ved Arkitektskolen Aarhus og forsker med fokus på computational design og digital fremstilling. Gennem sin ph.d. har han udviklet et vokabular af algoritmiske teknikker, som han siden har kombineret med fabrikationsteknologi med et stigende fokus på træ og andre biomaterialer som byggematerialer. I Genbrug på Matriklen har han fungeret som forsker og co-projektleder.
Oskar Holst Kurzweil: Cand.arch. og studieadjunkt ved Arkitektskolen Aarhus. Han har været tilknyttet Genbrug på Matriklen som forsker, særligt med ansvar for ’arkitektoniske mellemregninger’ i projektets arbejdspakke 2.
Peer Tue Näthke: Forskningsassistent og projektkoordinator for anden iteration af Genbrug på Matriklen (2025), herunder anden iterations mockup. Cand.arch. fra Arkitektskolen Aarhus.
Participants from Aarhus School
of Architecture
Anders Kruse Aagaard: Cand.arch., PhD and associate professor at Aarhus School of Architecture. His research focuses on material processing and digital fabrication in relation to architectural design. He is involved in Reuse on Site as researcher and co-PI.
August Sørensen: Sustainability specialist, B.eng. from Aarhus University. He is an LCA expert and works as an engineering consultant at Ekolab. He is also affiliated with Aarhus School of Architecture as external associate professor.
Emma Holm Kjær: Architecture student at the master’s program and student assistant at Aarhus School of Architecture.
Frederik Reese: Cand.arch. and research assistant involved in various projects at Aarhus School of Architecture, including Reuse on Site.
Johan Hvidtfeldt Rahbek: Architecture student at the master’s program and student assistant at Aarhus School of Architecture.
Jon Andersen: Cand.arch. and associate professor at Aarhus School of Architecture.
Lotte M. Bjerregaard Jensen: Researcher and project leader of Reuse on Site. She is professor MSO of sustainable architecture and holds a Cand.arch. and PhD from Aarhus School of Architecture. She is the School of Architecture in Aarhus’ lead in Aarhus Center for Regenerative Building. She was previously an associate professor at DTU Sustain.
Matīss Groskaufmanis: Teaching associate professor at Aarhus School of Architecture and a PhD. fellow at TU Delft’s Design, Data, and Society Group.
Niels Martin Larsen: Cand. arch., PhD and associate professor at Aarhus School of Architecture. His research deals with computational design and digital manufacturing. Through his PhD, he has developed a vocabulary of algorithmic techniques, which he has since combined with fabrication technology, increasingly focusing on wood and other biogenic building materials. He is involved in Reuse on Site as researcher and co-PI.
Oskar Holst Kurzweil: Cand.arch. and teaching assistant professor at Aarhus School of Architecture. He has been involved in Reuse on Site as a researcher with responsibility for ‘architectural interim processing of information’ in the project’s Work Package two.
Peer Tue Näthke: Research assistant and project coordinator in the second iteration of Reuse on Site (2025), including the second iteration mockup. Cand.arch from Aarhus School of Architecture.
Tuomo Joensuu: Ph.d.-stipendiat ved Tampere University. Han var Gæsteforsker på Arkitektskolen Aarhus og i foråret 2024 og har bidraget til Genbrug på Matriklens første iteration.
Vilius Thorsgaard Frølunde-Vizgaudis: Arkitekt og design lead ved Lendager og tidligere forskningsassistent ved Arkitektskolen Aarhus og projektkoordinator for første iteration af Genbrug på Matriklen (2024), herunder første iterations mockup. Han har baggrund som bygningskonstruktør og har en bachelorgrad i arkitektur fra Arkitektskolen Aarhus og en kandidatgrad fra The Bartlett School of Architecture i London.
Studerende ved Unit 2/3F på Arkitektskolen Aarhus i forårssemestret 2025.
Følgegruppe:
Damir Hatic: Lektor ved VIA University College og har en master i Bæredygtig Omstilling. Han har en baggrund som bygningskonstruktør med erfaring fra tegnestuer og entreprenørvirksomheder samt freelancearbejde.
Kasper Lynge Jensen: Institutleder på Institut for Byggeri, By og Miljø ved Aalborg Universitet og deltog i 1. iteration som ingeniør ved Søren Jensen Rådgivende Ingeniørfirma.
Olga Truelsen: Fagleder hos Søren Jensen Rådgivende Ingeniørfirma og bygningskonstruktør med fokus for kvalitet og holdbarhed. Hun har erfaring med renovering og nedrivning, især inden for miljø, ressourcekortlægning og risikovurdering.
Steffen Petersen: Professor ved Institut for Byggeri og Bygningsdesign (Building Science) ved Aarhus Universitet. Med baggrund som rådgivende ingeniør forsker og underviser han i bygningsvidenskab med fokus på ressourceeffektivt design og drift af bygninger.
Thomas Kingo Hede Karlsen: Ejer og direktør af Kingo Karlsen Holding ApS. Gennem flere årtier har han spillet en aktiv rolle i at fremme cirkulær økonomi som en opskalerbar praksis i byggeriet.
Thomas Waras Brogren: Projektchef for Realdanias filantropiske arbejde inden for emnet ’Bygningskultur og udvikling af steder’.
Torben Hede Hansen: Bæredygtighedskonsulent, var tidligere hos Milva, men er nu tilknyttet Teknologisk Institut.
Tuomo Joensuu: PhD fellow at Tampere University. He was a visiting researcher at Aarhus School of Architecture in the spring of 2024 and contributed to the first iteration of Reuse on Site.
Vilius Thorsgaard Frølunde-Vizgaudis: Architect and design lead at Lendager and was previously a research assistant at Aarhus School of Architecture and project coordinator in the first iteration of Reuse on Site (2024), including the first iteration mockup. He holds a bachelor’s degree in architecture from Aarhus School of Architecture, and a master’s degree from The Bartlett School of Architecture in London.
Students in Unit 2/3F at Aarhus School of Architecture in the spring semester of 2025.
Advisory Group:
Damir Hatic: Associate professor at VIA University College and holds a master’s degree in Sustainable Transition. He has a background as a structural engineer with experience from architectural firms, construction companies, and freelance work.
Kasper Lynge Jensen: Head of the Department of Civil Engineering, Urban and Environmental Engineering at Aalborg University and participated in the first iteration as an engineer at Søren Jensen Consulting Engineers.
Olga Truelsen: Project manager, architectural technologist, Ma. Transformation at Søren Jensen Consulting Engineers focusing on quality and durability. She has experience in renovation and demolition, particularly in the areas of the environment, resource mapping, and risk assessment.
Steffen Petersen: Professor, PhD. at the Department of Building Science at Aarhus University. With a background as a consulting engineer, he researches and teaches building science with a focus on resource-efficient design and operation of buildings.
Thomas Kingo Hede Karlsen: Owner and director of Kingo Karlsen Holding ApS. For several decades, he has played an active role in promoting circular economy as a scalable practice in construction.
Thomas Waras Brogren: Project manager for Realdania’s philanthropic work within the topic of ‘Building Culture and Place Development’.
Torben Hede Hansen: Sustainability consultant, previously with Milva, and now works at the Danish Technological Institute.
GENBRUG PÅ MATRIKLEN / REUSE ON SITE
Editing and English (US) proofreading: Mary Kathrin Thompson
Graphic Design: Hedda Bank
ISBN: 97887-91051-23-4
Bjerregaard Jensen, L., Kruse Aagaard, A., Näthke P.T., Larsen N.M., Sørensen A., Holst Kurtzweil O., Andersen J., Karatosun S., Frølunde-Vizgaudis V.T., Brandt N., Exner A.M., Ploug D., Schlesinger M.H., Ax K., Fænø Mondrup T., Pedersen J., Bøgehøj M., Olesen K., Andersson L., Hemdorff A., Groskaufmanis M., Aaby E., Kjær Thomsen N.E., Rask Jensen S., Dannemand E., Brobakken K.H., Bengtson S., Mousa H., Strandberg Hallin M. (2025). Genbrug på Matriklen- Reuse on Site. Arkitektskolens Forlag, Aarhus.
Tak til Realdania og Thomas Waras Brogren for at muliggøre, at vi kunne udvikle og øve ’den omvendte designproces’, hvor vi designer med genbrug af byggematerialer, der allerede er på matriklen.
Tak til tegnestuerne: CEBRA, Anna Mette Exner Arkitektur, JJW, EFFEKT, SLETH og Arkitema. Til rådgivere og udøvere: JDH byg, Greendozer, MILVA; Søren Jensen Rådgivende Ingeniører, Kingo Karlsen A/S, P. Olesen A/S, Holst Engineering. Tak til DTU Sustain og de mange involverede praktikanter, teknikere og forskere fra Arkitektskolen i Aarhus. Tak til Hedda Bank Design for professionalisme og fleksibilitet.
Anders Kruse Aagard
Anna Hemdorff
Anna Mette Exner
August Sørensen
Damir Hatic
David Ploug
Emma Holm Kjær
Esben Dannemand
Eva Aaby
Lisbeth M. Ottosen
Frank Jensen
Frederik Reese
Frederikke Paulin Petersen
Haidy Mousa
Hanne Foged Gjelstrup
Hedda Bank
Helene Frey
Ida-Marie Solveig Højbak Hansen
Jan Rohde
Janin Brandt
Jens Møller Boeriis
Jesper Stærke Clausen
Johan Hvidtfeldt Rahbek
John Skovbjerg
Jon Andersen
Julie Møller Pedersen
Jørgen Dalgas Hedeager
Karen Emilie Mølgaard Rasmussen
Karen Helen Brobakken
Kasper Ax
Kasper Kronstrand
Kasper Lynge Jensen
Katrin Lilian Olesen
Lisbeth Ottosen
Lovisa Andersson
Lucca Alberte Klyver
Lærke Rode Nielsen
Marco Kromann Bøgehøj
Marie Pilegaard
Martin Oddershede
Mary Kathrin Thompson
Mathilde Strandberg Hallin
Matīss Groskaufmanis
Mikkel Hallundbæk Schlesinger
Niclas Brandt
Niels Christian Jakobsen
Niels Eli Kjær Thomsen
Niels Martin Larsen
Olga Truelsen
Oskar Holst Kurtzweil
Peer Tue Näthke
Peter Vejrum
Pi Aasbjerg Hansen
Rasmus Kristian Holst
Rasmus Toft Sandgaard
Samuel Mydland
Sara Bengtson
Serkan Karatosun
Steffen Petersen
Stina Rask Jensen
Søren Malund Thomsen
Thomas Fænø Mondrup
Thomas Kingo Hede Karlsen
Thomas Waras Brogren
Tim Tolman
Torben Hede Hansen
Tue Holdensen
Tuomo Joensuu
Vilius Thorsgaard
Frølunde-Vizgaudis
Studerende ved Unit 2/3F på Arkitektskolen Aarhus i forårssemestret 2025.