2 - DEN OMVENDTE
DESIGNPROCES I PRAKSIS
– IDÉKATALOG
2 - THE REVERSE DESIGN PROCESS IN PRACTICE – IDEACATALOGUE
![]()
2 - THE REVERSE DESIGN PROCESS IN PRACTICE – IDEACATALOGUE
Om designsprinten
Genbrug på matriklen handler om at forske i ’den omvendte’ design proces, hvor man designer med hvad der er i ’banken’, på matriklen. I hver af projektets to iterationer har fem tegnestuer sammen med entreprenører, nedtager og miljørådgivere samt forskere, ’slow motion’ performet designprocessen.
De to designsprints er gennemført med kontinuerlig dokumentation af arbejdsprocesser på Miro-boards og daglige samtaler om udfordringer og diskussioner af spørgsmål og ideer i samarbejde med forskellige fageksperter.
Formålet var med andre ord ikke at producere et produkt, et byggeprojekt – men at undersøge design processen ved at øve den på konkrete case.
Ringparken
Omdrejningspunktet for den første iterations designsprint er Ringparken i Slagelse (ejet af Slagelse almennyttige Boligselskab og FOB) hvor JJW er tilknyttet som totalrådgiver. I Ringparken skal der nedrives en række blokke, og tegnestuen ønsker at genbruge det nedrevne til de planlagte nyopførelser. Det blev besluttet at arbejde med Ringparken i Slagelse, fordi der er et skaleringspotentiale og mulighed for at tilføje nye lag til ’Ressource Blokken’ -projektet hvad angår til designprocesser.
Ringparken ligger i den nordlige del af Slagelse og bestod af over 800 boliger fordelt på 24 boligblokke i fire etager. Bygningerne er opført over en periode fra 1963-1969 og er typisk for perioden opført som montagebyggeri af standardiserede, præfabrikerede betonelementer. Desuden er boligområdet undergået omfattende renoveringer i slutningen af 1990’erne.
Reuse on the Plot involves researching the ‘reverse’ design process, where you design using what is available on the property. In each of the project’s two iterations, five architecture offices, together with contractors, demolition contractors, environmental consultants, and researchers, performed the design process in ‘slow motion’.
The two design sprints were carried out with continuous documentation of work processes on Miro boards and daily conversations about challenges and discussions of questions and ideas in collaboration with various experts.
In other words, the purpose was not to produce a product, a construction project, but to explore the design process by practicing it on specific case studies.
The focal point for the first iteration of the design sprint is Ringparken in Slagelse (owned by Slagelse almennyttige Boligselskab and FOB), where JJW is affiliated as a lead contractor. Several of the building blocks in Ringparken are to be demolished, and the architectural firm wants to reuse the demolished material for the planned new buildings.
It was decided to work with Ringparken in Slagelse because of the potential for scaling and the opportunity to add new layers to the ‘Ressource Blokken’ project in terms of design processes. Ringparken is located in the northern part of Slagelse and consisted of over 800 homes spread across 24 four-story apartment blocks.
The buildings were constructed between 1963 and 1969 and are typical of the period, built using standardized, prefabricated concrete elements. Additionally, the residential area underwent extensive renovations in the late 1990s.
Effekt: Kasper Ax, LovisaAndersson
Anna Mette Exner Arkitektur: Anna Mette Exner, Anna Hemdorff
Arkitema: Thomas Fænø Mondrup, Marco Kromann Bøgehøj Nielsen
JJW: David Ploug, Julie Møller Pedersen
Cebra: Mikkel Schlesinger, Katrin Lilian Olesen
Designsprinten i første iteration
Designsprintens ’brief’ var i al sin enkelthed at etablere så mange gode boliger som muligt, af materiale ’høstet’ fra den udvalgte boligblok, placeret inden for matriklen i Ringparken. I denne iteration var der særligt fokus på udviklingen af byggesystemer for genbrug af præfabrikerede betonelementer bærende konstruktioner.
Den første designsprint udfoldede sig over fire uger i april 2024, og indledtes med en workshops om oparbejdning, om ”gaver” ved genbrug, en introworkshop til det digitale statik-værktøj udviklet af studerende fra DTU i samarbejde med Rasmus Kristian Holst, og introduktion til den digitale model udarbejdet af Jon Andersen og Oskar Holst Kurtzweil.
I løbet af de fire uger afholdtes daglige møder med tegnestuerne med drøftelse af usikkerheder og spørgsmål. I den sammenhæng organiseredes løbende ’ekspertmøder’ med relevante fageksperter til hjælp med specifikke problemstillinger, herunder ugentlige møder med de studerende fra DTU om spørgsmål vedrørende statik. Tegnestuernes dokumenterede og samlede undervejs refleksioner, procesmateriale og designiterationer i et samlet Miro-board
Foruden Anna Hemdorff, Marco Kromann Bøgehøj Nielsen, Katrin Lilian Olesen, Lovisa Andersson, og Julie Møller Pedersen, var de fem deltagende tegnestuer repræsenteret af hhv. Anna Mette Exner (Anna Mette Exner Arkitektur), Thomas Fanø Mondrup (Arkitema), Mikkel Schlesinger (CEBRA), Kasper Ax (EFFEKT) og David Ploug (JJW).
Designsprinten er desuden gennemført med bidrag, hjælp og input fra Vilius Thorsgaard Frølunde-Vizgaudis, Jon Andersen og Oskar Holst Kurtzweil (Arkitektskolen Aarhus), August Sørensen (Ekolab), Rasmus Kristian Holst (Holst Engineering), Tuomo Joensuu (Tampere University), samt Rasmus Toft Sandgaard, Ida-Marie Solveig Højbak Hansen, Helene Frey, Lucca Alberte Klyver, Lærke Rode Nielsen, Niclas Brandt og Janin Brandt (DTU).
Det følgende afsnit er en opsamling af resultater og processer fra første designsprint udvalgt og kommenteret af tegnestuerne selv.
The design sprint brief was simply to establish as many good homes as possible, using materials harvested from the selected apartment block located within the Ringparken site. This iteration focused particularly on the development of building systems for the reuse of prefabricated concrete elements in load-bearing structures.
The first design sprint took place over four weeks in April 2024 and began with workshops on processing and the ‘gifts’ of reuse, an introductory workshop on the digital statics tool developed by students from DTU in collaboration with Rasmus Kristian Holst, and an introduction to the digital model developed by Jon Andersen and Oskar Holst Kurtzweil.
During the four weeks, daily meetings were held with the architecture offices to discuss uncertainties and questions. Ongoing ‘expert meetings’ were organized with relevant experts to help out with specific issues, including weekly meetings with the students from DTU on questions concerning statics. The architectural offices documented and collected reflections, process material, and design iterations in a comprehensive Miro board.
In addition to Anna Hemdorff, Marco Kromann Bøgehøj Nielsen, Katrin Lilian Olesen, Lovisa Andersson, and Julie Møller Pedersen, the five participating design studios were represented by Anna Mette Exner (Anna Mette Exner Arkitektur), Thomas Fanø Mondrup (Arkitema), Mikkel Schlesinger (CEBRA), Kasper Ax (EFFEKT), and David Ploug (JJW).
The design sprint was carried out with contributions, help, and input from Vilius Thorsgaard Frølunde-Vizgaudis, Jon Andersen, and Oskar Holst Kurtzweil (Aarhus School of Architecture), August Sørensen (Ekolab), Rasmus Kristian Holst (Holst Engineering), Tuomo Joensuu (Tampere University), and Rasmus
Toft Sandgaard, Ida-Marie Solveig Højbak Hansen, Helene Frey, Lucca Alberte Klyver, Lærke Rode Nielsen, Niclas Brandt, and Janin Brandt (DTU).
The following section is a summary of the results and processes from the second design sprint, curated and commented on by the individual design studios.

Screenshot fra Miro-board for 1. Iteration designsprint
Screenshot from the Miro-board for the 1st iteration design sprint

Screenshot fra Miro-board for 1. Iteration designsprint Screenshot fra Miro-board for 1. Iteration designsprint

Udsnit fra Johs F. Munch-Petersen ’Dæk- og Vægelementer’.
3. reviderede udgave. Den polytekniske Læreanstalt, Danmarks tekniske Højskole Lyngby 1982

Section from fra Johs F. Munch-Petersen ’Dæk- og Vægelementer’.

Skitser fra den indledende workshop til designsprinten i første iteration. Af Julie Møller Pedersen (JJW)
Sketches from the introduction workshop for the 1st iteration desitn sprint. By Julie Møller






Instead of demolishing the existing buildings, we propose to preserve them to create new qualities within the existing. This increases quality of life for the current residents.

... we maintain the buildings and their material integrities as high as possible, instead focusing on maximizing the value of the existing building stock.




Instead of the initial question being how, we are asking why. Proceeding from a perspective of performance, the technical lifespan of the buildings has not yet exceeded. Therefore, the most profitable measure for sustainable area development is to aim for maintenance of the materials’ integrity to keep it as high as possible by minimal processing. Through necessary renovations and instead focusing on developing the green spaces, the area can become more desirable while enabling affordable housing. Means are measured against the ends to ensure the effort justifies the impact.


Minimizing the interventions through direct reuse. This leads to significant ecological and economic savings.
Increasing potential for savings (materials, labour, energy, emissions)
Materials that otherwise would end up as waste, acquire new value and function. The resident gets increased ownership and identity, when involved in the design process.
We identified 5 design strategies to develop the existing building stock and area.



The enclosed gables create barriers toward the street and pedestrian paths placed lengthwise of the buildings. This creates a clear direction of the building emphasizing the front and back. By opening the building in all directions on the entrance floor as well as in the apartments, the building gets a more open and welcoming impression.



Creating an open corner or ground floor. Changing the materiality, window size or height on the ground floor indicates urbanity and public space. The visual connection increases the sense of safety.


By creating a protected path toward the street the building becomes more approachable and encourages pedestrians to get closer and engage with the building.



Removing the whole ground floor to raise the building on pillars. There is flow underneath and connects courtyards both physically and visually. Under the buildings there are possibilities for activities and activation.

Removing a chunk of the building to divide it into two blocks with a gap in-between. The removed part can be reused in its existing condition or split into smaller pieces and used as common buildings on the courtyard. There are two possible splits - one big and one small:



Rooms through the apartment
When possible, the common rooms in the apartment should be connected to achieve the perception of bigger space and increased daylight.


Removing the walls enclosing the corridors to achieve better orientation and a more open space.
By altering the mass through different strategies, the monotonous building blocks receive identity and characteristics helping with wayfinding, in the range of different urban rooms created different functions can be placed to activate the area. The removed material can be directly reused to enable common buildings on the courtyards.
The apartments need renovation. The interventions should focus on creating healthy and livable environments. Majority of the toxins can be found in the surfaces (paint etc.) of the concrete walls. By decontaminating the walls, leaving the surfaces honest and raw and adding other necessary interventions in natural, biobased or reused materials the apartments can become both healthy and inviting.






The placement of bicycle storage, vegetation and paved areas creates a boundary at the courtyard between the front of one building and the back of the other. The grass becomes a nomans-land without use. The courtyard only becomes a means of transportation and does not encourage activity.
Through a more fluid planning with greenery as the foundation, the space in-between the buildings can be activated. The cut grass is exchanged for a variety of species and connections through the area established to encourage movement through instead of around.

The fences, vegetation and artificial hills for sound protection in the area make the area appear enclosed. The whole area turns inwards, where majority of the space is occupied by roads and parking that further separates the area within.
The straight roads create an issue with speeding in the area. It appears as an isolated island that you don´t enter or pass through if your destination isn´t within the area. These characteristics are reinforced through the problematic placement of parking and greenery. Strong thresholds between public and private, where the public parts doesn´t invite into the area.
Taken from a suggestion for the area. A problematic solution with a block structure common in more urban neighborhoods with a straight connection through the area. The car is above humans and nature in the urban hierarchy, creating stronger borders than before. Parking occupies a significant amount of space and is situated on the side of the roads and in front of the entrances.

People and nature are prioritized in the urban rooms where bike and pedestrian flows are going through the area, with the possibility to drive through in case of emergency, moving or for accessibility purposes. Fluid movements that encourage to stroll both into and within the area.

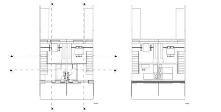
Axonometri, Blok13 (og 14)
Subtraktion af duplexer fra blokken
Heraf bliver materialer til direkte genbrug til evt. kvarterhus, rækkehustypologi, pavilloner etc. i gårdrummet foran blok13. Fokus er lagt på transformation efter stillingtagen til “hvorfor overhovedet rive ned?”
Designmodel: “Albert Ipsensvej 18_blok 13_ afdeling 26_ Ringparken_ rød_grøn_gul_Milva_rhino6”
Modellen duplikeres for at genskabe den fulde blok13. Herefter fjernes duplexer, som synes at være problemet for formen.

Axonometry, Block 13 (and 14).
Subtraction of duplexes from the block.
These materials will be directly reused for possible neighborhood houses, terraced houses, pavilions, etc. in the courtyard in front of Block 13.
The focus is on transformation although it has been questioned: “Why demolish at all?”
Design model: “Albert Ipsensvej 18_block 13_ section 26_ Ringparken_ red_green_yellow_Milva_rhino6”
The model is duplicated to recreate the entire block 13. Duplexes, which appear to be the problem for the form, are then removed.





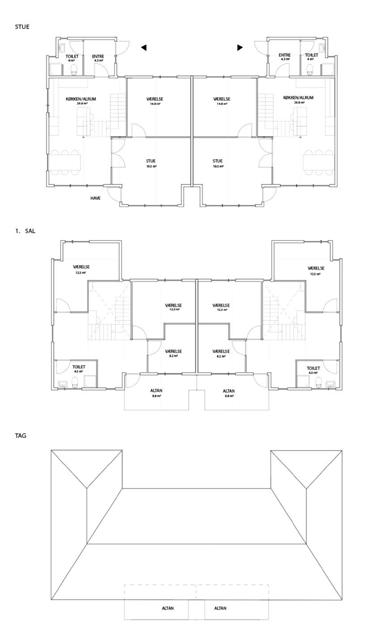
Processkitser
Øverst: vision for nedtrapning af blokken. Her af fastlægges også de forskellige typologier blokken
Stue: Fælleskøkkener og familieboliger. Direkte adgang til terræn
1. sal: Studios/studieboliger. Cirkulation på svalegang
2. sal: sammenlægges med 3. sal. Boliger 2 plan og dobbelthøje rum (Se snit) Tagterasse udstyres med “betonlandskab”/paviloner fra materialebanken, til ophold.
Nederst skitser ud fra den bærende konstruktion blokken.
1., 2., 3. sal ses cirkulation på svalegangen og gennemgående lejligheder. samt tagterasse.
Processkitser
Øverst: Vision for nedtrapning af blokken. Her af fastlægges også de forskellige typologier i blokken
Stue: Fælleskøkkener og familieboliger. Direkte adgang til terræn.
1. sal: Studios/studieboliger. Cirkulation på svalegang 2. sal: Sammenlægges med 3. sal. Boliger i 2 plan og dobbelthøje rum (Se snit).
Tagterrasse udstyres med “betonlandskab”/pavilloner fra materialebanken, til ophold.
Nederst: Skitser ud fra den bærende konstruktion i blokken. På 1., 2. og 3. sal ses cirkulation på svalegangen og gennemgående lejligheder, samt tagterrasse.
Process sketches
Top: Vision for a staircase motif of the block. The various typologies in the block are also determined here.
Ground floor: Communal kitchens and family housing. Direct access to the grounds.
1st floor: Studios/student housing. Circulation on the walkway. 2nd floor: Merged with the 3rd floor. Two-story homes and double-height rooms (see section).
The roof terrace is equipped with “concrete landscaping”/pavilions from the material bank for recreation.
Bottom: Sketches based on the load-bearing structure in the block. 1st, 2nd, and 3rd floors show circulation on the walkway and through apartments, as well as on the roof terrace.
Processkitser
Øverst: vision for nedtrapning af blokken. Her af fastlægges også de forskellige typologier blokken
Stue: Fælleskøkkener og familieboliger. Direkte adgang til terræn
1. sal: Studios/studieboliger. Cirkulation på svalegang
2. sal: sammenlægges med 3. sal. Boliger i 2 plan og dobbelthøje rum



Forslag til ændring af dækkenes placering:
En rammekonstruktion skal erstatte dækkets oprindelige spænd.
Den nye placering af det genbrugte betondæk skal bæres af en konsolløsning.
Den monotone rytme i modernismens modulbyg¬geri forsøges brudt, når rumhøjden øges, det plane niveau splittes og dækkenes placering ændres.
Proposal for changing the location of the floor slabs:
A frame structure must replace the original span of the slab. The new location of the recycled concrete slab must be supported by a console solution.

The monotonous rhythm of modernist modular construction is broken by increasing the height of the rooms, splitting the flat level, and changing the location of the floor slabs.
Ændring af dækkenes placering Forslag herpå:
En ramme konstruktion skal erstatte dækkets oprindelige spænding. Den nye placering af det genbrugte betondæk skal bæres af en konsolløsning.
Den monotone rytme modernismens modulbyg geri forsøges at blive brudt, når rumhøjden øges, det plane niveau splittes og dækkenes placering ændres.

LCA-beregninger
Ændring af dækkenes placering Forslag herpå:
Der foretages LCA beregninger individuelt på bygningens dæk.
1. Nyt betondæk: 40.000 kg CO2
En ramme konstruktion skal erstatte dækkets oprindelige spænding.
2. Genbrugt (direkte) betondæk: 1000 kg CO2
Den nye placering af det genbrugte betondæk skal bæres af en konsolløsning.
3. Nyt trædæk: 6000 kg CO2
Den monotone rytme i modernismens modulbyggeri forsøges at blive brudt, når rumhøjden øges, det plane niveau splittes og dækkenes placering ændres.
LCA calculations
LCA calculations are performed individually on the building’s floor slabs.
1. New concrete slabs: 40,000 kg CO2
2. Recycled (direct) concrete slabs: 1,000 kg CO2
3. New timber floor slabs: 6,000 kg CO2




Det kan virke ’unaturligt’ for mange, at trækonstruktioner, bærer betonkonstruktioner, men der er en lang række muligheder ved at introducere limtræskonstruktioner i transformationen af boligblokken i Ringparken.
Selve træ-materialet introducerer en anden materialitet, der arkitektonisk fjerner noget af den negative stigma ved betonelement blokken.
Limtræs- konstruktionerne er også vigtige i forhold til at bære og afstive den eksisterende bloks konstruktioner, fordi dens eksisterende huldæk og vægge tilskæres for at give plads til dobbelthøje rum og ændrede størrelse lejligheder.
Når betonelementer ’knækkes’ fri, mistes en kant, som kan gøre det vanskeligt at opnå en passende rumhøjde, efter nutidens standarder, når betonelementet genbruges. Derfor er en ’konsol’/’gesims’ af limtræ, som bærer genbrugs betonelementer, et element der kan etablere den tolerance, der er behov for.


It may seem ‘unnatural’ to many that wooden structures support concrete structures, but there are a wide range of possibilities in introducing glulam structures in the transformation of the apartment block in Ringparken.
The wood material itself introduces a different materiality that architecturally removes some of the negative stigma associated with the concrete housing block.
The glulam structures are also important in terms of supporting and bracing the existing block’s structures, because its existing hollow decks and walls are cut to make room for double-height spaces and apartments of different sizes.
When concrete elements are ‘broken’ free, an edge is lost, which can make it difficult to achieve a suitable room height according to today’s standards when the concrete element is reused. Therefore, a ‘console’/’cornice’ of glulam, which supports the reused concrete elements, is an element that can establish the tolerance that is needed.





Hvert element – i dette tilfælde, facadeelementer, vinduer, køkkener og gulvelementer – Det føles næsten som en form for arkæologi, hvor man graver frem i bygningslagene, ikke for at dokumentere fortiden, men for at sikre fremtidens ressourcer.
20m2 bolig til så mange studerende som muligt af materialer høstet på matriklen.
En lejlighedsbygning rummer altid spor af liv – døre, der er blevet åbnet og smækket tusindvis af gange, gulve der har knirket under beboeres leven, og vindueskarme, der har holdt planter og lysestager gennem årtier. Når maskiner og håndværkere træder ind, er det derfor ikke bare mursten og beton, der skal nedtages; det er lag på lag af historier, som samtidig danner grundlag for noget nyt. Oplevelsen bliver ikke kun fysisk hård, men også mentalt tankevækkende: Hvordan kan man nedbryde noget, uden at alt går tabt og kan man bevare historien og nostalgien ved samtidigt at give det et nyt liv?
English20m2 of living space for as many students as possible, using materials harvested on the property.
An apartment building always bears traces of life - doors that have been opened and slammed thousands of times, floors that have creaked under the footsteps of residents, and window sills that have held plants and candlesticks for decades. When machines and craftsmen step in, it is therefore not just bricks and concrete that need to be demolished; it is layers upon layers of stories that also form the basis for something new. The experience is not only physically demanding, but also mentally thought-provoking: How can you break something down without losing everything, and can you preserve history and nostalgia while giving it a new life?
Selve nedrivningen rummer en paradoksal skønhed. Hver gang en komponent reddes fremfor at blive smadret, opstår en følelse af sejr: endnu et stykke, der kan transformeres, endnu en byggesten til fremtidige designprojekter. Det er en proces, hvor destruktion og konstruktion smelter sammen til én bevægelse.
Når materialerne sorteres, bliver potentialet mere synligt. Gamle vinduesrammer kan blive til lette skillevægge Selv stumper af beton kan findeles og indgå i nye kompositmaterialer. Oplevelsen af at se affaldet skifte status til ressource ændrer måden, man kan og burde se på hele byggebranchen. Hvor der før var en lineær tankegang – opfør, brug, nedriv, kassér – åbner der sig nu en cirkulær horisont.
Som designer/arkitekt burde det føles næsten som at stå i et værksted fyldt med uventede råmaterialer. Hvert genbrugt element bærer unikke dimensioner, farver og teksturer, der ikke kan findes i fabriksnye materialer. Det giver både udfordringer og muligheder: Hvordan indpasser man et vindue fra 1960’erne i en moderne konstruktion? Hvordan får man træ med ridser
Each element—in this case, facade elements, windows, kitchens, and floor elements—feels almost like a form of archaeology, where you dig into the layers of the building, not to document the past, but to secure the resources of the future.
The demolition itself has a paradoxical beauty. Every time a component is saved rather than destroyed, there is a sense of victory: another piece that can be transformed, another building block for future design projects. It is a process where destruction and construction merge into one movement.
When the materials are sorted, their potential becomes more visible. Old window frames can be turned into lightweight partitions. Even pieces of concrete can be crushed and incorporated into new composite materials. The experience of seeing waste change status to become a resource changes the way we can and should view the entire construction industry. Where there used to be a linear way of thinking—build, use, demolish, discard—a circular horizon is now opening up.
As a designer/architect, it should feel almost like standing in a workshop filled with unexpected raw materials. Each recycled element has unique dimensions, colors, and textures that cannot be found in brand-new materials. This presents both challenges and opportunities: How do you fit a window from the



og skrammer til at indgå æstetisk i et design? Disse spørgsmål skaber kreativitet, fordi de tvinger en til at tænke fleksibelt og se skønheden i det uperfekte.
Det mest markante ved oplevelsen er dog erkendelsen af ansvar. At rive en bygning ned uden at tage hensyn til materialerne føles som at ignorere den energi, det arbejde og de ressourcer, der allerede er investeret, samt respekt for fremtiden og kloden vi alle lever på. Når man i stedet vælger at redde og genbruge, mærker man, at man er en del af en større bevægelse – et opgør med spildkulturen. Denne oplevelse bliver en påmindelse om, at byggeri ikke kun handler om funktion og æstetik, men også om etik og bæredygtighed.
Hvordan er designprocessen arkitektonisk, hvad er effekten på CO2 og økonomi, og hvad er forskellen på at genopbygge og transformere?
Hvad er muligt med disse ’byggeklodser’ vi havde fået virtuelt (se billede 1.)?
Da der er mange ens elementerne, vil det være muligt at bygge ét eksemplar og gentage det, men først skal man opbygge ’eksemplaret’ (Se billede 2-4), og hvordan kunne det gentages?
1960s into a modern construction? How do you make wood with scratches and dents fit aesthetically into a design? These questions spark creativity because they force you to think flexibly and see the beauty in imperfection.
However, the most striking thing about the experience is the realization of responsibility. Demolishing a building without considering the materials feels like ignoring the energy, labor, and resources that have already been invested, as well as disrespecting the future and the planet we all live on. When you choose to salvage and reuse instead, you feel like you are part of a larger movement - a split with the culture of waste. This experience serves as a reminder that construction is not only about function and aesthetics, but also about ethics and sustainability.
How is the design process, architecturally; what is the effect on CO2 and the economy; and what is the difference between rebuilding and transforming?
What is possible with these ‘building blocks’ we had been given virtually (see image 1)?
As there are many identical elements, it will be possible to build one copy and repeat it, but first you have to build the ‘copy’ (see images 2-4), and how could it be repeated?
The virtually cut concrete elements already dictated sizes and areas.
After constructing various floor plans, it was time to give them form, function, and a hierarchy (see image 5).
Image 5 shows that it is clearly possible to create a community with student housing, and thus the first successful experience with the design aspect was complete.
Could a given floor plan be solved vertically instead of horizontally? This raised a number of questions. How much load could the existing concrete elements withstand (see image 6)? What was the load-bearing capacity of the walls if they were

Allerede virtuelt-udskårne betonelementer dikterede størrelser og areal.
Efter at have konstrueret forskellige planløsninger var det på tide at give dem form, funktion og et hierarki (se billede 5).
Billede 5 viser at det tydeligt er muligt at lave et fællesskab med studieboliger og derfor var den første succesoplevelse med det designmæssige aspekt fuldført.
Kan en given planløsning i stedet for at blive udviklet horisontalt, kunne løses vertikalt? Med dette udviklede sig nogle spørgsmål: Hvor stort en last kunne de eksisterende betonelementer holde til (se billede 6)? Hvilke bæreevne havde væggene, hvis de kobledes i 2 og 3 dobbelte lag? Ville det overhovedet betyde noget for et højhus statiske system?
Da vi i fremtiden løber tør for plads, må vi bygge vertikalt, hvilket betyder en masse materiale både over og under jorden, men kan vi derfor bruge eksisterende bygninger enten som fundament eller konstruktioner i højden?
Ofte nedriver man bygninger, for at kunne bygge flere nye kvadratmeter. Kan vi koble de slanke elementer til mere bastante, som i fællesskab kan bære vægten af et højhus og samtidigt efterlade plads til at kunne fortætte?
Den sidste tid blev brugt på at undersøge om de eksisterende elementer kunne bruges til at tilpasse sig et design der ikke var formet efter de eksisterende elementer (se billede 7-8).
Hvis man skulle gøre noget anderledes, ville det være en fordel at sidde mere tid til bords med konstruktører og ingeniører hele vejen igennem processen.


connected in 2 and 3 double layers? Would it even matter for the static system of a high-rise building?
As we run out of space in the future, we will have to build vertically, which means a lot of material both above and below ground, but can we therefore use existing buildings either as foundations or structures in height?
Buildings are often demolished to make way for new square meters. Can we connect the slender elements to more solid ones, which together can bear the weight of a high-rise building while leaving room for densification?
The last part of the project was spent investigating whether the existing elements could be used to adapt to a design that was not shaped according to the existing elements (see images 7-8).
If we were to do something different, it would help to spend more time at the table with structural engineers throughout the entire process.
















Iteration 1: Villa
For at kunne bruge ”fodboldbanemetoden” skal man have meget plads til opbevaring. Selvom der måske er plads nok på stedet til opbevaring, skal man også have plads til at opføre den nye bygning. Derfor kan det være nødvendigt at transportere materialerne til et andet lager/et andet sted, hvilket vil være dyrt og tidskrævende (leje af plads og transportomkostninger). Derfor vil jeg hellere forsøge at høste direkte fra bygningen på stedet. Først de øverste etager og derefter nedad mod de nederste etager.
















4: Snit, plan og opstalt / Section, plan and elevation
Iteration 1: Villa
To use the “football field method,” you would need a lot of space for storage. Although there might be enough space on site to store it, you would also need room to build the new construction. Therefore, it might require transport to another storage facility/space, which would be expensive and time-consuming (e.g. due to the renting of space and transport costs). Therefore, I would rather try to harvest directly from the building on the site, starting from the top floors, then moving downward to the lower floors.
Ved at bruge materialet fra blok 13 kan denne iteration ganges 12 gange og stadig efterlade 1. etage inklusive kælderen i den oprindelige blok 13 intakt. 12 er det maksimale antal, så i tilfælde af at det ikke lykkes at høste alt materialet, kan det erstattes af en af de »ekstra« lejligheder.
For at finde ud af, hvor mange materialer der faktisk er nødvendige for at samle villaen, gik jeg ind i Revit-/Rhino-modellen, som er adskilt og viser alle materialer og lag. Jeg samlede modellen igen som vist til højre og kan nu høste materialerne til det sted, hvor villaen skal bygges.
Using the material from Block 13, this iteration can be multiplied 12 times and still leaves the 1st floor including the basement of the original block 13 intact. 12 is the max, so in the case that not all material can be successfully harvested, it can be substituted by materials from one of the “extra” apartments.
In order to know how many materials are actually required to assemble the villa typology, I went into the Revit/Rhino model, which is disassembled showing all the materials and layers. I reassembled the model as seen on the right and will now be able to harvest the materials onto the site where the villa will be built.

Iteration 2: Transformation
For at forsøge at bruge så meget af ydervæggene/vinduerne som muligt og åbne kælderen har jeg brug for endnu en etage, i modsætning til mit første forsøg, hvor jeg brugte 3 øverste etager til at skabe de 12 villaer. Jeg tager et skridt tilbage og bygger udefra og ind.
Jeg tog et par skridt tilbage og begyndte at arbejde på den oprindelige model af blok 13 igen. Jeg fjernede to etager med taget, som skulle bruges til villaerne (i alt 8, hvis materialerne til de to etager er intakte).
Jeg isolerede den resterende toetagers bygning inklusive kælderen (3) for at se på de tilgængelige materialer, både udvendigt og indvendigt (undtagen indgangens glasbokse).
Derefter fjernede jeg alle vægge og materialer fra indersiden, selv de bærende vægge, så der grundlæggende kun var en tom skal tilbage, bortset fra trapperne.
Ved det sidste forsøg på at omdanne kælderen indså jeg hurtigt, at det var svært at give rummet både lys, mere åbenhed og udgang til det udvendige. Det var ikke nok kun at åbne op
Iteration 2: Transformation


Iteration 2: Transformation
To try using as much of the exterior walls/windows as possible and opening the basement, I will need another floor. This is unlike in my first attempt where I used 3 upper floors to create the 12 villas. I am taking a step back and building from the outside inward.
I took a few steps back and started working on the original model of block 13 again. I removed two stories with the roof, to be used for the villas (8 in total if the two-story materials are intact).
I isolated the remaining two-story building including the basement (3), to look at the available materials, both outside and inside (excluding the entrance glass boxes).
I thereafter removed all walls and materials from the inside, even the bearing walls, leaving what is essentially an empty shell, save for the staircases.
Upon the last attempt at transforming the basement I quickly realized that it was hard to give the space light, more openness, and an exit to the outside. Opening up only at the facade wasn’t




mod facaden, men måske ville det hjælpe at åbne op mellem de forskellige enheder.
For at bevare bygningens stabilitet under omdannelsen og efter færdiggørelsen ville en »bro« i form af en altan binde enhederne sammen og give bygningen styrke. Spørgsmålet er: Er det muligt at beholde det oprindelige betondæk, eller skal den erstattes af en ny for at sikre stabilitet?
Hvordan kan det udvendige og indvendige transformeres/forbedres ved hjælp af nye/brugte materialer?
Nu hvor den grundlæggende udvendige struktur er fastlagt, har jeg tilladt mig selv at gå mere i detaljer for at finde ud af, hvordan visse problemer kan løses. I dette tilfælde skal trappen bevares, men der er flere huller og stabilitetsproblemer, der opstår, når nogle af de gamle elementer og vægge, der var i vejen, fjernes. For at opretholde stabiliteten har jeg valgt at eksperimentere med nye træelementer integreret med betonen. Træet kan selvfølgelig være genbrugstræ fra DBA eller andre hjemmesider, men jeg har ikke begrænset mig til målene, da jeg ønskede, at trappen skulle være et centralt element i de enkelte lejlighedsbygninger og have en æstetisk løsning.
enough, but maybe opening up between the different units would do the trick.
In order to maintain the stability of the building while transforming it, as well as after completing it, a “bridge” in the form of a balcony would tie the units together and provide strength to the building. The question is: Is it possible to leave the original concrete slab, or does it have to be added in a new way for it to truly be stable?
How can the exterior and interior be transformed/improved using new/used materials? Now that the basic exterior structure has been decided, I have allowed myself to go into more detail to figure out how to solve certain problems. In this case, the staircase is to remain, but there are several gaps and stability issues that arise when removing some of the old elements and walls that were in the way. To uphold the stability, I have chosen to experiment with new wood elements integrated with the concrete. The wood can of course be reused wood, from DBA or other websites, however I did not limit myself to measurements since I wanted the stairs to be a centerpiece to the individual apartment buildings and have an aesthetic solution.





Blokken er høstet ’oppefra’ , i en nøje planlagt koreografi, der involverer oparbejdning og opførsel af nye rækkehuse med materiale fra donor-blokken. Når Blokken er høstet står ’stubben’ stadig tilbage – et fundament, en insitu-støbt cykel-kælder af beton, som repræsenterer meget indlejret energi, er af god kvalitet og vil være dyrt at fjerne.
Ved at etablere dobbelthøje rum fra kælderniveau og forsænkede gårdhaver, udnyttes de nederste etager i en transformation af ’stubben’ til rækkehuse med nye rumlige kvaliteter og direkte udgang til gårdhave.
The block has been harvested ‘from above’ in a carefully planned choreography involving the processing and construction of new terraced houses ’next door’ reusing materials from the donor block. When the block has been harvested, the ‘stump’ remains – a foundation, an in-situ cast concrete bicycle cellar and the ground floor apartment, which combined represent a great deal of embodied energy, are of good quality and would be expensive to remove.
By establishing double-height rooms from basement level and establishing ’sunken courtyards’, the lower floors are utilized in a transformation of the ‘stump’ into terraced houses with new spatial qualities and direct access to the courtyard.


Fig. 2: Er der plads til en materialebank? / Is there room for a material bank?
Designprocessen
Vi begyndte med en opstart-workshop, hvor materialebanken blev placeret på matriklen. Her blev det tydeligt, at logistik og plads var en central udfordring.
Spørgsmålet var, hvorvidt der var tilstrækkelig plads til både en byggeplads og opbevaring af materialerne, hvordan materialerne skulle stables, om de skulle overdækkes, og en udfoldelse af projektets omfang og rammer.
Her blev det tydeligt at logistik og pladsforhold er en stor faktor når man gerne vil minimere transporten af elementer. I takt med nedrivningsprocessen rejste der sig yderligere overvejelser:
The design process
We began with a kick-off workshop, where the material bank was placed on the site. Here, it became clear that logistics and space were key challenges. The questions were whether there was enough space for both a construction site and storage of the materials, how the materials should be stacked, whether they should be covered, and an explanation of the scope and framework of the project.
It became clear that logistics and space are major factors when you want to minimize the transport of elements. As the demolition process progressed, further considerations arose. Could the temporary material bank be established on the so-called
Kunne den midlertidige materialebank etableres på den såkaldte “fodboldbane”? Hvordan kunne opbevaring af nedrivningsmaterialer, adgang for nedrivningskøretøjer og plads til opbygning af nybyggeri med genbrugsmaterialer tænkes sammen i én samlet logistik? Disse praktiske og rumlige spørgsmål blev startskuddet for den videre udvikling af projektet.
Eksperimenter med vægforhøjelser I forbindelse med udskæringen af betonelementerne blev det tydeligt, at der uundgåeligt ville gå nogle centimeter tabt af den eksisterende rumhøjde. Samtidig er standarderne for opholdsrum blevet hævet siden Ringparken oprindeligt blev opført,
“football field”? How could the storage of demolition materials, access for demolition vehicles, and space for the construction of new buildings with recycled materials be combined into a single logistics solution? These practical and spatial questions were the starting point for the further development of the project.
Experiments with wall height increases When cutting the concrete elements, it became clear that a few centimeters of the existing room height would inevitably be lost. At the same time, standards for living spaces have been raised since Ringparken was originally built, which meant that


kan det lade sig gøre at forhøje bygningen??
hvordan vil samlingerne se ud??
både mellem ens elementer og forskellige?
kan det bære til et overlæggende etagedæk??
trappe højder ved flere etager efter forhøjning??
Forhøjelse med murstens
Arbejde med rumhøjder, detalje og facade udtryk??

Fig. 3: Forsøg med forhøjelse med beton / Experiments increasing hight with concrete

Fig. 4: Forsøg med forhøjelse med mursten / Experiments increasing hight with bricks

Forhøjelsse med mursten i toppen skaber et tungt bælte, men leger med højderne af beton elemeneterne.




hvilket betød, at genbrug af elementerne i nybyggeri ville kræve en forhøjelse for at kunne leve op til nutidens krav til komfort og proportioner.
Denne erkendelse førte til en række eksperimenter med mulige metoder til at forhøje bygninger gennem genbrugsmaterialer. Jeg udforskede blandt andet, hvordan de eksisterende betonelementer kunne kombineres med nye tilføjelser, og hvilke udfordringer der opstod i samlingerne mellem gammelt og nyt. Kunne facadeelementerne genanvendes til at bære en ekstra etage? Kunne en flippet væg med sin oprindelige vandrette bæreevne fungere som bærende lodret element, eller måtte den reduceres til en let skillevæg?
Jeg afprøvede flere scenarier med forskellige materiale kombination, forhøjelse med beton og beton, forhøjelse med beton og mursten. Murstenene viste sig særligt interessante i deres udtryk, som et tungt bælte øverst i facaden, eller som sokkel under betonelementerne, eller som fyld i de skårne partier. I disse kombinationer opstod en ny arkitektonisk fortælling, hvor materialerne ikke blot lappede hinandens mangler, men også fremhævede deres respektive egenskaber og historiske spor.
reusing the elements in new construction would require an increase in height in order to meet today’s requirements for comfort and proportions.
This realization led to a series of experiments with possible methods of raising buildings using recycled materials. Among other things, I explored how the existing concrete elements could be combined with new additions and what challenges arose in the joints between the old and new. Could the facade elements be reused to support an extra floor? Could a flipped wall with its original horizontal load-bearing capacity function as a load-bearing vertical element, or would it have to be reduced to a light partition wall?
I tested several scenarios with different material combinations, elevation with concrete and concrete, and elevation with concrete and brick. The bricks proved particularly interesting in their expression, as a heavy belt at the top of the facade, or as a plinth under the concrete elements, or as filler in the cut sections. In these combinations, a new architectural narrative emerged, where the materials not only patched each other’s shortcomings, but also highlighted their respective properties and historical traces.

løsninger, der kunne tilgodese både studerende, erhvervsaktive og familier, som ville give en blandede beboelsesform.
De seks udskårne dæk blev på den måde en slags byggesæt, hvor vi afprøvede forskellige kombinationer for at se, hvilke rumlige muligheder de kunne skabe, og hvordan de kunne tilpasses konteksten. Her opstod spørgsmål om adgang, overgang og fællesskab: hvordan kunne man skabe boliger med direkte forbindelse til den fælles gårdhave, samtidig med at der var en glidende overgang mellem private og offentlige zoner? Vi arbejdede med idéen om fælles indgangssider og fælles bagsider, et system uden traditionel forside og bagside, men hvor indgang vendte mod indgang og ophold mod ophold.
Ligesom reduktionen af væghøjden, gik der også kvadratmeter tabt i dækudskæringerne, som gav dækkene nye dimensioner,
Forhøjelse med mursten under beton elementerne, skaber et lettere udtryk og løber som en sokkel eller en fod til beton elementet, men betonen højder kommer tiludtryk med bund med evt dør åbninger.
Connection between slab sizes and typologies Working with the cut slab elements raised questions not only about construction, but also about how the home as a whole could be designed. Should the original functions of the rooms be retained or rearranged? Could the existing room layouts be reused in the new building, or was it necessary to develop entirely new typologies? Discussions revolved around which types of housing would be most relevant today: small units targeted at students, or larger homes that could accommodate families. The desire for social diversity meant that we sought solutions that could accommodate students, working people, and families, resulting in a mixed residential form.
The six carved slabs thus became a kind of construction set, where we tested different combinations to see what spatial possibilities they could create and how they could be adapted to the context. This raised questions about access, transition, and community: How could we create homes with direct access to the shared courtyard, while also ensuring a smooth transition between private and public zones? We worked with the idea of shared entrance sides and shared rear sides, a system without a traditional front and back, but where the entrance faced the entrance and the living area faced the living area.
Just like the reduction in wall height, square meters were also lost in the slab cutouts, which gave the slabs new dimensions

7: Sammensætning af dæk / Composition of the slabs
der blev afsættet for rummets udfoldelse, hvor de nye dimensioner ikke kun blev den teknisk udfordring, men også et afsæt for nye arkitektoniske muligheder og en undersøgelse af boligens rumlige organisering i sin helhed. De reducerede mål åbnede for alternative måder at placere og sammenkoble elementerne på, hvilket skabte et eksperimenterende rum for at udvikle nye boligtypologier. Seks udskårne dæk dannede grundlag for en række scenarier: dobbelthuse, vinkelhuse og kvadratiske enheder, hvor de oprindelige rektangulære formater blev sat i spil nye sammenhænge. Herfra voksede forskellige boligkoncepter frem, enkeltlejligheder to etager med fuldt udnyttede dæk, dobbeltlejligheder hvor enhederne spejlede hinanden, og familieboliger organiseret omkring et køkken/alrum, stue og fire værelser fordelt på to etager.
Diskussionerne bevægede sig dog hurtigt ud over det rent typologiske. Det handlede også om social diversitet. Skulle vi satse på små studieboliger, eller skabe større enheder for familier?
Målet var at undgå ensidighed og i stedet åbne for et blandet beboermiljø, hvor forskellige livsformer kunne mødes. Vi arbejdede indgående med, hvordan elementerne kunne samles lodret og vandret, og hvordan mursten kunne indgå som samlende element og ikke kun som forhøjelse. Også spørgsmålet om vinduer blev centralt: Skulle vi acceptere de oprindelige udskæringer som givne rammer og dermed lade materialernes
Placering af forskellige dæk






Fig. 8: Placering af dæk og rumlig komposition / Placement of slabs and spatial composition
Mulige placeringer og sammensætninger af dækelementer på grunden.
hvordan skaber volumenerne mest rumlighed og hvilke kombinationer skaber bedst flow.
hvilken form er sjovest at arbejde med? hvilken form skaber sjovest rumlighed indenfor og udenfor?
hvordan er der rumligforskel på placeringerne mellem blokkene, hvordan udnytter man gårdsrummet bedst?
hvordan placer og sammensætter man boligerne så alle får lige tilgang til gårdrummet?

grøn tilgang - samiprivat have med blid overgang til fælles gård.

that became the starting point for the unfolding of the space, where the new dimensions became not only a technical challenge, but also a springboard for new architectural possibilities and an investigation of the spatial organization of the dwelling as a whole. The reduced dimensions opened up alternative ways of placing and connecting the elements, creating an experimental space for developing new housing typologies. Six carved slabs formed the basis for a number of scenarios: double houses, angular houses, and square units, where the original rectangular formats were put into play in new contexts. From this, various housing concepts emerged: single apartments on two floors with fully utilized slabs, double apartments where the units mirrored each other, and family homes organized around a kitchen/family room, living room, and four bedrooms spread over two floors.
However, the discussions quickly moved beyond just typology. It was also about social diversity. Should we focus on small studio apartments or create larger units for families?
The goal was to avoid uniformity and instead create a diverse residential environment where different lifestyles could coexist. We worked extensively on how the elements could be assembled vertically and horizontally, and how bricks could be used as a unifying element rather than just for elevation. The question of windows also became central: Should we accept
placering: adgang til fælles gårdhave, både fra bolig og for forbipasserende. en blød overgang mellem privat og offentlig havetilgang. fælles indgangs sider og fælles bagside - ingen forside mod bagside, men kun indgang mod indgang og bagside mod bagside
historie definere udtrykket, eller skulle vi skære nye åbninger for at forbedre dagslyset? Overvejelserne pegede på en grundlæggende balance i projektet mellem at respektere materialernes oprindelige logik og samtidig tilpasse dem til nutidens krav og ønsker.
Refleksion
Projektet tog afsæt i en eksperimenterende og stedsspecifik tilgang til genbrug, ikke blot som et teknisk eller bæredygtigt greb, men som en metodisk strategi for at udvikle nye arkitektoniske potentialer gennem det eksisterende.
Materialernes begrænsninger tvang os til at tænke kreativt, ved at arbejde med materialer udvundet direkte fra matriklen og gjorde designprocessen forankret en konkret virkelighed, hvor materialernes fysiske egenskaber, slidspor og historie aktivt blev integreret som en del af det arkitektoniske narrativ.
Arbejdet med de udskårne betonelementer og dæk satte særligt fokus på dimensionstab og transformation, et centralt vilkår ved materialegenbrug. Disse fysiske ændringer affødte ikke kun tekniske udfordringer, men fungerede også som katalysator for nye mulige boligtypologier og rumlige sammenhænge. De reducerede mål blev afsæt for at udvikle modulære, fleksible og kontekstnære boligformer, hvor skiftet mellem private og fælles zoner blev nøje orkestreret.
the original cutouts as given frames and thus let the history of the materials define the expression, or should we cut new openings to improve daylight? The considerations pointed to a fundamental balance in the project between respecting the original logic of the materials and at the same time adapting them to today’s requirements and wishes.
The project was based on an experimental and site-specific approach to recycling, not just as a technical or sustainable measure, but as a methodical strategy for developing new architectural potential through the existing.
The limitations of the materials forced us to think creatively, working with materials extracted directly from the site and anchoring the design process in a concrete reality, where the physical properties, wear marks, and history of the materials were actively integrated as part of the architectural narrative.
The work with the cut concrete elements and slabs placed particular focus on dimensional loss and transformation, a key condition for material reuse. These physical changes not only gave rise to technical challenges, but also served as a catalyst for new possible housing typologies and spatial contexts. The reduced dimensions became the starting point for developing modular, flexible, and context-specific housing forms, where

udnyttelse af dækflader, tilpasning af dæk for at skabe kvardratisk udtryk
Enkelt lejlighed, med to etager og udnytte fulde sammensat dæk

Dobbeltlejlighed, med to etager spejlvendt af hinanden. afskåret dæk for at skabe rektangulære lejligheder sammensat til kvadratiske enheder.
Logistikken omkring nedrivning, opbevaring og genanvendelse understregede projektets kompleksitet og pegede på, at den arkitektoniske værdi af genbrugsmaterialer i høj grad også afhænger af, hvordan de tænkes ind i hele byggeprocessens infrastruktur. Spørgsmål om adgangsforhold, midlertidige materialebanker og byggepladsens rumlige organisering blev derfor ikke blot praktiske forudsætninger, men integrerede designparametre.
I arbejdet med elementdimensioner, samlinger og typologier blev det tydeligt, at grænserne mellem gammelt og nyt ikke er entydige. Tværtimod opstod de mest interessante arkitektoniske løsninger i netop de steder, hvor det eksisterende måtte forhandles, bearbejdes og overskrides. Projektet demonstrerede, hvordan genbrug kan være en form for arkitektonisk forhandling, mellem fortid og nutid, mellem materialelogik og nye behov, mellem stedets historie og dets fremtidige potentiale.

Fig. 11: Elementer brugt i den bærende konstruktion af facaden / Elements used in the load-bearing structure and facade
the transition between private and communal zones was carefully orchestrated.
The logistics of demolition, storage, and reuse underscored the complexity of the project and pointed to the fact that the architectural value of recycled materials also depends to a large extent on how they are incorporated into the infrastructure of the entire construction process. Issues of access, temporary material banks, and the spatial organization of the construction site therefore became not just practical prerequisites, but integrated design parameters.
In working with element dimensions, joints, and typologies, it became clear that the boundaries between old and new are not clear-cut. On the contrary, the most interesting architectural solutions arose precisely in those places where the existing had to be negotiated, reworked, and transcended. The project demonstrated how reuse can be a form of architectural negotiation between the past and present, between material logic and new needs, and between the history of the site and its future potential.

familie bolig, med køkken/alrum, stue og 4 værelser fordelt på to etager med en centeret trappe opgang.

tobelt bolig, med en lejlighed på hver etage, med køkken/ alrum og tre værelser.
Fig. 12: Rumlighed med udnyttelse af sammensatte dæk / Spaciousness with the use of combined slabs
hvordan kan boligen indrettes??
skal man omdiagere rummenes tidligere funktioner?
kan rum funktionerne genbruges i nybyg?
Er der plads til en materialebank?
Placering af materiale bank
Er der plads til både materialer og byggeplads?
Det kræver mere plads, end jeg regnede med!
Skal nogle af delene være overdækket, eller skal det hele være overdækket??
Kan det stables og hvor tæt må det stå?
Skal der være underlag under elementerne, eller må de stå på fri jord?
Forhøjelse med stål-facadeelementer
Arbejde med rumhøjder, laster oven på forhøjet vægge og deres nye bæreevne??
Kan facadeelementer genbruges til forhøjelse af væg?
Kan de bære lasten?
Har den flippede væg samme bæreevne på højkant som dens oprindelig vandret bæreevne?
hvilken typologi er mest efterspurgt?
Rumlighed med udnyttelse af sammensatte dæk
skal det være studieboliger, når man gerne vil have en befolknings diversitet, med både studerende, profileret erhvervs mennesker og familier.
skal det være større boliger end små studie enheder? skal man bo sammen?

familie bolig, med køkken/alrum, stue og 4 værelser fordelt på to etager med en centeret trappe opgang.

Kan det flippede væg kun bruges som let skillevæg, eller kan den gå som en bærende væg? placed?
tobelt bolig, med en lejlighed på hver etage, med køkken/ alrum og tre værelser.
Should there be a base under the elements, or can they stand directly on the ground?
Increasing wall height with steel facade elements
Working with room heights, loads on top of heightened walls, and their new load-bearing capacity.Can facade elements be reused to increase the height of the walls?
Can they bear the load?
Does the flipped wall have the same load-bearing capacity on its side as its original horizontal load-bearing capacity?
Can the flipped wall only be used as a light partition wall, or can it serve as a load-bearing wall?
hvordan samles de ved den lodrette samling, bliver det synligt?
mursten samle beton elementerne og ikke som et forhøjelses element?


kavdratmeter vindue brugt i en bolig
Fig. 13: Detaljeskitser af samlinger / Detail sketches of joints Fig. 14: Antal kvadratmeter vinduer brugt i en bolig /
Number of square meters of windows used in a single unit
Forhøjelse med mursten
Arbejde med rumhøjder, detalje og facade udtryk?
Få elementerne til at fortælle dens historie ved at kombinere materialerne og udfylde hinandens huller
Mursten som forhøjende element
- sokkel - overlægger
Mursten som fyld mellem element
- sokkel - overlægger
Mursten som fyld i skåret element
- sokkel – overlægger
Udtryk af forhøjelsen
Forhøjelse med mursten i toppen skaber et tungt bælte, men leger med højderne af betonelementerne.
Forhøjelse med mursten under betonelementerne skaber et lettere udtryk og løber som en sokkel eller en fod til betonelementet, men betonens højder kommer til udtryk med bund ved eventuelle døråbninger.
Sammensætning af dæk
Dæk opskåret efter Milva, sammensat på forskellig vis for at udnytte det, der bliver givet. Hvilke rum kan de seks udskårne dækelementer skabe? Hvordan passer de ind i konteksten?
Increasing wall height with bricks
Working with room heights, details, and facade expression.Let the elements tell their story by combining materials and filling in each other’s gaps.
Bricks as a height increaser
- plinth - lintel
Bricks as a filler between elements
- plinth - lintel
Bricks as a filler in cut elements
- plinth – lintel
Appearance of height increase
Increasing height with bricks at the top creates a heavy belt but plays with the heights of the concrete elements. Increasing height with bricks under the concrete elements creates a lighter expression. and runs like a plinth or a foot for the concrete element, but the heights of the concrete are expressed at the bottom of any door openings.
Composition of slabs
Slabs cut according to Milva, composed in different ways to make the most of what is given. What spaces can the six cut slab elements create? How do they fit into the context?
Beton samlinger

Ringparkens Placering
Placering af forskellige dæk
Placering
Mulige placeringer og sammensætninger af dækelementer på grunden.
Hvordan skaber volumenerne mest rumlighed og hvilke kombinationer skaber bedst flow.
Hvilken form er sjovest at arbejde med? Hvilken form skaber sjovest rumlighed indenfor og udenfor?
Hvordan er der rumlig forskel på placeringerne mellem blokkene, og hvordan udnytter man gårdsrummet bedst?
Hvordan placer og sammensætter man boligerne så alle får lige tilgang til gårdrummet?
Rumlighed
Vinkelhus - to etager
Rektangel hus - dobbelthus
Udnyttelse af dækflader, og tilpasning af dæk for at skabe kvadratisk udtryk
Enkelt lejlighed med to etager og udnyttelse af fulde, sammensatte dæk
Dobbeltlejlighed, med to etager, spejlvendt af hinanden.
Afskåret dæk for at skabe rektangulære lejligheder sammensat til kvadratiske enheder.
Ringparken Location
Placement of different slabs
Placement
detalje?
hvordan skal elementerne samles??
hvordan samles de ved den lodrette samling, bliver det synligt?
kan mursten samle beton elementerne og ikke kun som et forhøjelses element?

Possible placements and compositions of slab elements on the site.
How do the volumes create the most room, and which combinations create the best flow?
Which shape is the most fun to work with? Which shape creates the most fun spatiality inside and outside?
How do the locations between the blocks differ spatially, and how can the courtyard space be best utilized?
How do you place and compose the units so that everyone has equal access to the courtyard space?
Spatiality
Angled house - two stories
Rectangular house - double house
Utilization of slabs surfaces and adaptation of slabs to create a square appearance.
Single apartment with two stories and utilization of full, composite slabs.
Double apartment with two stories, mirrored off each other. Cut-off slabs to create rectangular apartments combined into square units.

udskæringer og på den måde lade dem "bestemme" udtrykke af vindues placeringer.

Rumlighed med udnyttelse af sammensatte dæk Hvordan kan boligen indrettes?
Skal man omdirigere rummenes tidligere funktioner?
Kan rumfunktionerne genbruges i nybyg?
Hvilken typologi er mest efterspurgt?
Skal det være studieboliger, når man gerne vil have en befolkningsdiversitet med både studerende, profilerede erhvervsmennesker og familier?
Skal det være større boliger end små studieenheder? Skal man bo sammen?
Familiebolig, med køkkenalrum, stue og 4 værelser fordelt på to etager med en centeret trappeopgang.
Todelt bolig med en lejlighed på hver etage med køkkenalrum og tre værelser.
Detaljer
Hvordan skal elementerne samles??
Hvordan samles de ved den lodrette samling, og bliver det synligt?
Kan mursten samle betonelementerne og ikke kun bruges som et forhøjelseselement?
eller vil man kunne skære yderligere i beton elementerne og sætter vinduer i for for at ude lys indfald ?





Spaciousness with the use of composite slabs
How can the home be furnished?
Should the rooms’ previous functions be redirected?
Can the room functions be reused in new buildings?
Which typology is in most demand?
Can bricks be used to assemble the concrete elements and not just to increase the height? skal




Should it be student housing, when the aim is to achieve a diverse population with students, high-profile business people, and families?
Should the homes be larger than small student units? Should people live together?
Family home with kitchen-dining area, living room, and four bedrooms spread over two floors with a central staircase. Two-part home with one apartment on each floor with kitchen-dining area and three bedrooms.
Details
How should the elements be assembled?
How are they assembled at the vertical joint, and will this be visible?
Betonsamlinger
Elementer der er brugt i den bærende konstruktion samt facade
Antal kvadratmeter vinduer brugt i en bolig
Vinduer
Skal man beholde betonelementerne oprindelig vindues udskæringer og på den måde lade dem ”bestemme” udtrykket af vindues placeringer, eller vil man kunne skære yderligere i betonelementerne og sætter vinduer i for at øge lysindfald?
Det genbrugt betondæk vil have et GWP på 8073 kg CO2-eq, mens et nyt trædæk vil have et GWP på 1160 kg CO2-eq
Concrete joints
Elements used in the load-bearing structure and facade
Number of square meters of windows used in a dwelling
Windows
Should the concrete elements’ original window cutouts be retained, thereby allowing them to “determine” the appearance of the window placements, or is it possible to cut further into the concrete elements and install windows to increase the amount of light entering the room?
The recycled concrete slabs will have a GWP of 8073 kg CO2eq, while a new timber slab will have a GWP of 1160 kg CO2-eq.