Mockup - Ringparken i Slagelse
Forfatter:
Vilius Thorsgaard Frølunde-Vizgaudis
1:1 Mockup-modellen som refleksion: Arkitektur i en verden af begrænsninger
Danmark har længe været kendt for sin arkitektoniske klarhed – en kultur, hvor lys, taktilitet og præcision flettes sammen med en stille moralsk ansvarlighed. Men takt med at klimakrisen accelererer, står denne tradition ved en skillevej. Hvad der engang var en historie om materialemestring, er nu et spørgsmål om materialers efterliv.
Den danske regerings strategi for cirkulær økonomi (2018) markerede et vendepunkt og foreslog en økonomisk model, der prioriterer genbrug og minimal udvinding. Inden for denne ramme stiller projektet Genbrug på Matriklen spørgsmålet: Hvad sker der, når arkitekturen ikke starter med et blankt papir, men med resterne af sin egen skabelse?
Dette er ikke genanvendelse, som vi kender det – ikke en handling, der består i at knuse og smelte, men i at læse, fortolke og komponere med det, der allerede findes. Projektet undersøger, hvordan direkte genbrug eller cirkularitet på stedet kan danne grundlaget for en ny designkultur, hvor arkitekten fungerer som både arkæolog og komponist ved at udgrave det byggede miljø, afkode dets strukturelle logik og omskrive dets rumlige potentiale.
Opmærksomhedens økonomi
Den moderne byggebranche opstod i en tid med overflod – en periode, hvor materialer var billige, udvinding var usynlig og hvor hastighed blev hyldet som effektivitet. Som følge heraf gled designkulturen væk fra sit tætte forhold til opfindsomhed. Ideen om en cirkulær arkitektur virkede næsten unødvendig. Men på bare et århundrede har menneskeheden produceret mere bygget masse end i hele sin tidligere historie tilsammen. Der er nu – helt bogstaveligt – flere bygninger end der er biologi.1 I denne nye planetære situation skifter arkitektens opgave fra at producere til at kuratere: Fra overflod til opmærksomhed. Cirkulær arkitektur handler ikke om at vende tilbage til knaphed, men om at lære at se det eksisterende som et sted med latent rigdom –materiel, kulturel og rumlig. Den omdanner affald til potentiale og begrænsninger til form.
Design med begrænsninger
For at teste denne hypotese blev fem danske arkitektfirmaer –Anna Mette Exner, Arkitema, CEBRA, EFFEKT og JJW – i april 2024 inviteret til at deltage i et designeksperiment baseret på en enkelt regel: Form følger tilgængelighed. Deres udfordring var at designe nye boliger kun ved brug af det, der allerede var til stede på en given matrikel, med hjælp fra moderne digitale værktøjer.
Author: Vilius Thorsgaard Frølunde-Vizgaudis
The 1:1 Mock-up as reflection: Architecture in a World of Limits
Denmark has long been celebrated for its architectural clarity — a culture where light, tactility, and precision intertwine with a quiet moral responsibility. Yet as the climate crisis accelerates, this tradition finds itself at a crossroads. What was once a story of material mastery is now a question of material afterlife.
The Danish Government’s Strategy for Circular Economy (2018) marked an inflection point, proposing an economic model that prioritises reuse and minimal extraction. Within this framework, the project Genbrug på Matriklen asks: What happens when architecture begins not with a blank page, but with the debris of its own making?
This is not recycling as we know it — not an act of crushing and melting, but of reading, interpreting, and composing with what already exists. The project explores how direct reuse, or on-site circularity, can form the foundation for a new design culture in which the architect acts as both archaeologist and composer: excavating the built environment, decoding its structural logic, and rewriting its spatial potential.
The Economy of Attention
The modern building industry was born in an age of excess — a period when materials were cheap, extraction invisible, and speed celebrated as efficiency. As a result, design culture drifted from its intimate relationship with resourcefulness. The idea of a circular architecture seemed almost unnecessary. Yet, in a single century, humanity has produced more built mass than in all of its previous history combined. There is now — quite literally — more building than biology.1 In this new planetary condition, the task of the architect shifts from producing to curating: from abundance to attentiveness. Circular architecture is not about returning to scarcity, but about learning to see the existing as a site of latent wealth — material, cultural, and spatial. It transforms waste into potential and constraint into form.
Designing within Limits
To test this hypothesis, In April 2024, five Danish architecture studios — Anna Mette Exner, Arkitema, CEBRA, EFFEKT, and JJW — were invited to participate in a design experiment built
Fig. 1: Designprocessen i første iterations designsprint og de forskellige designforslags overordnede retning. / The first iteration design process and the overall trajectory of the different design proposals.
1 Elhacham, E., Ben-Uri, L., Grozovski, J., Bar-On, Y.M. & Milo, R. 2020. Global human-made mass exceeds all living biomass. Nature 588:442-444
Den udvalgte case var Ringparken i Slagelse, et efterkrigsboligkvarter, hvor flere blokke stod til at blive revet ned. En bygning – Blok 13 – blev projektets laboratorium. Gennem 3D-scanning, ikke-destruktiv testning og miljøscreening blev bygningen digitalt dekonstrueret og omdannet til et katalog over komponenter – en slags materialeindeks over plader, vægge og facader.
Denne database blev visuelt lagt ud på en imaginær fodboldbane – et stort digitalt landskab af bygningsfragmenter, farvekodet efter tilstand og forurening. Arkitekter kunne bogstaveligt talt »plukke« komponenter til genbrug, ligesom på et bondemarked for arkitektoniske materialer. Processen afslørede både potentialet og vanskeligheden ved at designe med en begrænset mængde ressourcer: Når lageret er opbrugt, må designet tilpasses.
on a single rule: Form follows availability. Their challenge was to design new dwellings using only what was already present on a given site, aided by the tools of contemporary digital practice.
The chosen case was Ringparken in Slagelse, a post-war housing district where several blocks faced demolition. One building — Blok 13 — became the project’s laboratory. Through 3D scanning, non-destructive testing, and environmental screening, the building was digitally deconstructed and transformed into a catalogue of components — a kind of material index of slabs, walls, and façades.
This database was laid out visually on an imaginary football field — a vast digital landscape of building fragments, colour-coded by condition and contamination. Architects could literally “pick”



Fem tilgange til nye begyndelser
Hvert af arkitektfirmaerne udforskede en særskilt indgangsvinkel til cirkularitet:
• Anna Mette Exner Arkitektur fulgte subtraktion som designmetode: At fjerne gulve og hæfte dem sammen i nye højder for at åbne rum med dobbelt volumen. Stål- og trækonsoller dannede bro over hullerne – dels af strukturel nødvendighed, dels som arkitektonisk ornament.
• JJW Arkitekter behandlede genbrug som en hybridisering, hvor genvundet beton blev kombineret med genbrugt murværk for at skabe nye hustyper på samme sted.
• CEBRA tilgik den cirkulære økonomi som en urban koreografi: at transformere eksisterende strukturer og samtidig opføre nye rækkehuse af det høstede materiale, hvilket gjorde stedet mere tætbefolket uden ny udvinding.
• Arkitema afprøvede vertikal stabling – og undersøgte, hvordan eksisterende elementer kunne samles på ny til nye typer, endda højhusformer, gennem fordobling, lagdeling og kompositsamlinger.
• EFFEKT arbejdede på tværs af landskab og arkitektur og skar, foldede og hæftede blokkene sammen på ny for at skabe nye gårdhave og sociale tærskler – og demonstrerede dermed, hvordan genbrug også kan omorganisere det urbane felt.
components for reuse, much like a farmer’s market of architectural matter. The process revealed both the promise and the difficulty of designing with abundance that is finite: once the stock runs out, design must adapt.
Five Ways of Beginning Again
Each studio explored a distinct entry point into the circular condition:
• Anna Mette Exner Arkitektur pursued subtraction as design method: removing floors and re-stitching them at new heights to open double-volume rooms. Steel and timber consoles bridged the gaps — part structural necessity, part architectural ornament.
• JJW Arkitekter treated reuse as an act of hybridisation, combining recovered concrete with reused brickwork to craft new house typologies within the same site.
• CEBRA approached the circular economy as urban choreography: transforming existing structures while simultaneously erecting new rowhouses from the harvested material, densifying the site without new extraction.
• Arkitema tested vertical stacking — exploring how existing elements might be re-assembled into new typologies, even high-rise forms, through doubling, layering, and composite assemblies.
Sammen tegnede disse eksperimenter et billede af genbrug som designintelligens. Hver begrænsning blev en generator for opfindelser. Arkitekterne opdagede, at begrænsninger – hvad enten det drejer sig om geometri, dimensioner eller mængde – kan skabe uventet rumlig generøsitet. Når man fjerner noget, kan der opstå nye former for overflod.
Den arkitektoniske gave Ud af disse øvelser voksede begrebet ’den arkitektoniske gave’ – de uforudsete rumlige og æstetiske kvaliteter, der kommer til syne, når man arbejder med det, der allerede eksisterer.
Når plader fjernes, kommer lys og volumen til syne; når elementer ikke passer sammen, mødes teksturer i en overraskende dialog. De uheld der opstår ved genbrug – flossede kanter, forkert justerede samlinger, spor fra tidligere liv – afslører en ukurateret poesi, der ikke findes i nybyggeri. Disse øjeblikke udfordrer den industrielle besættelse af glathed og præcision og anviser en ny form for skønhed, der er rodfæstet i ufuldkommenhed, minder og tid.
Cirkulær arkitektur er altså ikke kun et spørgsmål om, hvordan vi bygger, men også om, hvilken form for skønhed vi vælger at værdsætte.
• EFFEKT worked across landscape and architecture, cutting, folding, and re-stitching the blocks to create new courtyards and social thresholds — demonstrating how reuse can also reorganise the urban field.
Together, these experiments painted a portrait of reuse as design intelligence. Each constraint became a generator of invention. The architects discovered that limits — whether of geometry, dimension, or quantity — can produce unexpected spatial generosity. In the act of taking away, new forms of abundance emerge.
The Architectural Gift
From these exercises grew the concept of the architectural gift — the unforeseen spatial and aesthetic qualities that surface when one works with what already exists.
When slabs are removed, light and volume appear; when elements are mismatched, textures meet in surprising dialogue. The accidents of reuse — chipped edges, misaligned joints, traces of earlier lives — reveal an uncurated poetry absent from new construction. These moments challenge the industrial obsession with smoothness and precision, proposing a new kind of beauty rooted in imperfection, memory, and time.

Fig. 4: Skitsering af betonplatform/pladefundament af genbrugte huldæk. / Sketches of the concrete platform/slab foundation made from reused hollow core slabs.
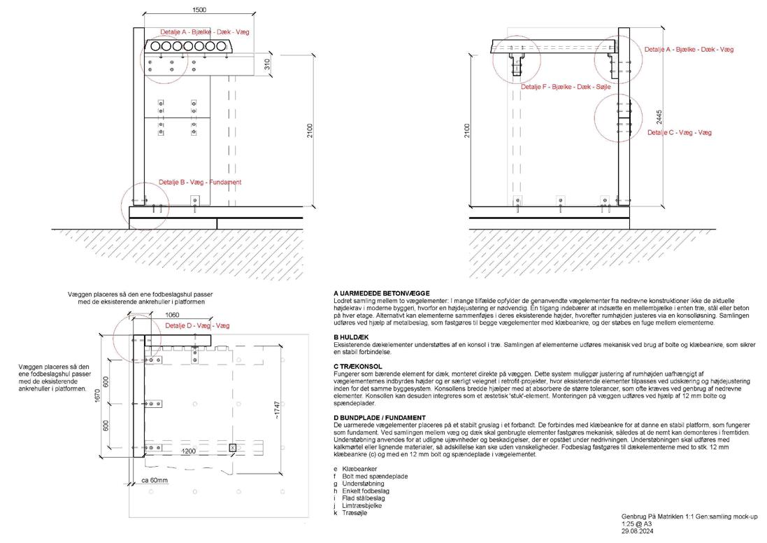
Fra digitalt til tektonisk: Opbygning af mock-up Erfaringerne fra designsprinten blev videreført til fysiske tests i skala 1:1, udført i samarbejde med Kingo Karlsen, der leverede betondæk og vægge fra et lokalt projekt i Gellerup, Aarhus. Her blev det digitale katalog over komponenter til håndgribelig arkitektur: Genbrugte huldæk stablet som pladefundament; vægpaneler forbundet med synlige stålbeslag; trækonsoller indsat mellem forskudte niveauer for at absorbere tolerancer og skabe nye tektoniske rytmer.
Tidlige modeller havde antydet, at betonvæggene og dækkene fra Blok 13 kunne stables på ny i nye konfigurationer – en slags arkitektonisk LEGO genopbygget af sine egne ruiner. Men mock-up’en afslørede en uventet sandhed: Udover at de originale vægelementer aldrig var høje nok til at opfylde nutidens minimumskrav til loftshøjde. Selv i perfekt stand ville de mangle
Circular architecture, then, is not only a question of how we build, but what kind of beauty we choose to value.
From Digital to Tectonic: Building the Mock-Up
The lessons of the design sprint were taken forward into physical testing at 1:1 scale, carried out with partners Kingo Karlsen who supplied concrete slabs and walls harvested from a local project in Gellerup, Aarhus. Here, the digital catalogue of components became tangible architecture: reused hollow-core slabs stacked as a plate foundation; wall panels joined with exposed steel brackets; timber consoles inserted between misaligned levels to absorb tolerances and create new tectonic rhythms.
Early modelling had suggested that the concrete walls and decks from Blok 13 could be re-stacked into new configurations — a kind of architectural LEGO rebuilt from its own ruin. But the

Fig.5: Plan og opstalter af mockuppen. / Plan and elevations of the mock-up model.
10-20 centimeter, hvilket kun blev forværret af de små brud og uregelmæssigheder, der opstod under demonteringen.
Denne tilsyneladende mindre uoverensstemmelse viste sig at være transformativ. Det oprindelige konstruktionssystem, hvor hver etagedæk hvilede direkte oven på en væg med standardhøjde, kunne ikke længere fungere. Den påkrævede rumhøjde nødvendiggjorde en fuldstændig adskillelse mellem væg og gulv, hvilket brød den faste rytme i efterkrigstidens elementlogik.
For at løse dette problem introducerede reseach-grupppen et nyt konsolsystem i træ – et mellemliggende bånd, der absorberede både det dimensionelle underskud og de fysiske skader på den genbrugte beton, meget lig det, der blev brugt af Anna Mette Exners kontor i deres transformationsforslag. Konsollen udførte flere funktioner samtidigt:
mock-up revealed an unexpected truth: apart from that the original wall elements were never tall enough to meet today’s minimum head-height requirements. Even in perfect condition, they would fall short by 10–20 centimetres, a gap only exacerbated by the small fractures and irregularities caused during dismantling.
This seemingly minor discrepancy proved transformative. The original construction system, where each floor slab rested directly atop a wall of standard height, could no longer function. The required spatial height forced a complete decoupling between wall and floor, breaking the fixed rhythm of the post-war element logic.
To resolve this, the research team introduced a new timber console system — an intermediary band that absorbed both



• Den kompenserede for den manglende højde og genoprettede den påkrævede afstand mellem gulv og loft;
• den dannede bro mellem de ujævne betonkanter, der var tilbage efter udvindingen, og undgik dermed behovet for kostbar diamantskæringspræcision;
• og den skabte en fleksibel grænseflade, der gjorde det muligt at montere etagedækkene i variable niveauer uafhængigt af vægfugerne.
På den måde frigjorde konsollen planen. Det oprindelige modulopbyggede systems stive skillevægslogik gav plads til en tilpasningsdygtig tektonisk ramme – en ramme, der kunne rumme uregelmæssige komponenter og skiftende dimensioner. Træbjælken, der før var en teknisk løsning, blev et arkitektonisk instrument: En forhandlingslinje mellem gammelt og nyt, mellem struktur og rum.
Som materiale tilbød træ den nødvendige fleksibilitet, som beton aldrig kunne tilbyde – det kunne skæres, justeres og var taktilt. På sitet kunne tømrerne trimme, kile eller justere hvert stykke, så det passede til de genbrugte elementers ufuldkommenheder. Resultatet var ikke en ligefrem genopbygning, men en ny form for ærlighed: Synlige bolte, blottede samlinger og strukturerede overgange, der fremhævede samlingen frem for at skjule den.
the dimensional deficit and the physical damage of the reused concrete, much like the one used by Anna Mette Exner office in their transformation proposal. The console performed several roles simultaneously:
• it compensated for the missing height, re-establishing the legal floor-to-ceiling clearance;
• it bridged the uneven concrete edges left by extraction, avoiding the need for costly diamond-cut precision;
• and it created a flexible interface, allowing the floor slabs to be mounted at variable levels independent of the wall joints.
In doing so, the console liberated the plan. The rigid partition logic of the original modular system gave way to an adaptable tectonic framework — one that could accommodate irregular components and shifting dimensions. The timber beam, once a technical fix, became an architectural instrument: a line of negotiation between old and new, structure and space.
As a material, wood offered the necessary forgiveness that concrete never could — cuttable, adjustable, and tactile. On site, the carpenters could trim, wedge, or realign each piece to suit the imperfections of the reused elements. The result was not a seamless reinstatement but a new form of honesty: visible bolts, exposed joints, and textured transitions that celebrated assembly rather than concealment.
Når gravemaskinen river en bygning ned, mister betonen sin helstøbthed – den kan ikke længere støbes »usynligt« sammen. Med Mockuppen accepteredes dette som en æstetisk forudsætning. I stedet for at skjule skaderne foreslog den en slags »Arts & Crafts of reuse«, hvor håndværket ikke ligger i perfektion, men i forsoning. Det rå møde mellem beton og træ, gammelt og nyt, blev en principiel erklæring: Ufuldkommenhed som præcision, skader som design. En slags Kintsugi af den moderne industrielle arkitektur.
Økonomien dette arbejde kræver også opmærksomhed. Mens æstetikken i genbrug kan inspirere fremtidige projekter, afhænger deres gennemførlighed i sidste ende af realiteterne med hensyn til omkostninger og tid. Gennem dialog med betonmontageentreprenøren stødte teamet på det skjulte arbejde, der er forbundet med at arbejde med genbrugsmaterialer – den langsommere boring, den manuelle tilpasning, de uregelmæssige overflader, der modstår automatisering. Hvert genbrugt vægelement krævede ekstra timer på byggepladsen, hvor nye elementer blot ville være blevet løftet med kran og støbt på plads. Dækkene, der er relativt ensartede, kunne fungere næsten på lige fod med nyproduktion, men vægkonstruktionerne – brudte, ujævne og uforudsigelige – medførte højere arbejdsomkostninger. Denne ekstra tid skal i sidste ende udlignes; enten ved en lavere pris på »udvundne« materialer forhold til nyproducerede, eller ved at ofre noget andet projektets økonomi – finish, hastighed eller omfang.
When the excavator tears a building apart, concrete loses its seamlessness — it can no longer be poured “invisibly.” The mockup accepted this as an aesthetic premise. Instead of disguising the damage, it proposed a kind of “Arts & Crafts of reuse,” where the craft lies not in perfection but in reconciliation. The rough meeting of concrete and timber, old and new, became a statement of principle: imperfection as precision, damage as design. A sort of Kintsugi of the modern industrial architecture.
The economy of this work also demands attention. While the aesthetics of reuse can inspire future projects, their feasibility ultimately depends on the realities of cost and time. Through dialogue with the concrete mounting contractor, the team encountered the hidden labour of working with reclaimed materials — the slower drilling, the manual fitting, the irregular surfaces that resist automation. Each reused wall element required extra hours on site, where new elements would have simply been craned and cast into place.
The slabs, being relatively uniform, could perform almost oneto-one with new production. But the wall assemblies — fractured, uneven, and unpredictable — carried a higher labour cost. This additional time must eventually be offset: either by a lower price of “mined” materials compared to newly manufactured ones, or by sacrificing something else in the project’s economy — finish, speed, or scope.





and exposed brackets and stichings.
Men dette offer er ikke uden betydning. Da størstedelen af en bygnings CO2-aftryk ligger i dens bærende konstruktion, repræsenterer hvert genbrugt element en konkret økologisk besparelse. I dette lys bliver den langsommere byggeproces og de ekstra arbejdstimer en investering i en anden form for værdi – en økonomi, der ikke handler om hastighed, men om forvaltning.
I sidste ende stod mock-up’en både som teknisk prototype og filosofisk model – et manifest i snit. Den beviste, at genbrug kan generere sin egen strukturelle logik og æstetiske sprog, et sprog, der er fleksibelt, reversibelt og åbent for tidens og materialets tilfældigheder. Væggene, der engang dikterede et fast system, understøttede nu en mere tilpasningsdygtig arkitektur – en arkitektur, der lærer, snarere end at insistere.
Refleksioner: Mod en arkitektur baseret på tilgængelighed
1:1-mockuppen satte fokus på det, som hele Genbrug på Matriklen-projektet havde drejet sig om; at cirkulær arkitektur ikke blot er et spørgsmål om materialelogistik, men om at
Yet this sacrifice is not without meaning. Since the majority of a building’s carbon footprint lies embedded in its structure, every reused element represents a tangible ecological saving. In this light, the slower assembly and additional man-hours become an investment in a different kind of value — an economy not of speed, but of stewardship.
Ultimately, the mock-up stood as both technical prototype and philosophical model — a manifesto in section. It proved that reuse can generate its own structural logic and aesthetic language, one that is flexible, reversible, and open to the contingencies of time and material. The walls that once dictated a fixed system now supported a more adaptive architecture — an architecture that learns, rather than insists.
Reflections: Towards an Architecture of Availability
The 1:1 mock-up brought into focus what the entire Genbrug på Matriklen project had been orbiting: that circular architecture is not simply a question of material logistics, but of reframing the discipline’s operating system. The task is no longer to
omformulere disciplinens modus operandi. Opgaven er ikke længere at komponere ideelle former, men at koreografere det eksisterende – at arbejde inden for det ujævne, det ufuldstændige, det allerede skabte.
Opdagelserne fra prototypen kondenserede måneders spekulationer til ét klart princip: Genbrug er ikke replikation. Når bygningskomponenter samles igen, vender de ikke tilbage til det, de engang var; de danner en helt ny typologi – en typologi, der er defineret af huller, forskydninger og improvisation. Det, der kan synes at være teknisk improvisation, bliver på en anden skala en ny arkitektonisk syntaks.
Trækonsollen i mockuppen blev for eksempel udtænkt som en pragmatisk løsning – en måde at genvinde loftshøjden og absorbere skaderne på. Men gennem sin nødvendighed udtrykte den en dybere æstetisk og etisk holdning. Den genindførte håndværket i den industrialiserede verden af præfabrikeret beton og lod genbrugets ufuldkommenheder komme til syne som en del af det arkitektoniske sprog. Samlingen – engang et svagt punkt – blev et meningsfuldt punkt.
compose ideal forms, but to choreograph the existing — to work within the uneven, the incomplete, the already-made.
The discoveries from the prototype condensed months of speculation into one clear principle: reuse is not replication. When building components are reassembled, they do not return to what they once were; they form a new typology altogether — one defined by gaps, shifts, and improvisation. What might appear as technical improvisation becomes, at another scale, a new architectural syntax.
The timber console in the mock-up, for instance, was conceived as a pragmatic fix — a way to regain ceiling height and absorb damage. Yet, through its very necessity, it articulated a deeper aesthetic and ethical stance. It reintroduced craftsmanship into the industrialised world of precast concrete, allowing the imperfections of reuse to surface as part of the architectural language. The joint — once a point of weakness — became a point of meaning.

Fig 13: mockup-prototypen fra første iteration circa et år efter den blev bygget. / The mock-up prototype from first iteration about one year after its construction.
Dette eksperiment rejste også nye spørgsmål for praksis og pædagogik. Hvordan kan digitale værktøjer udvikle sig til at arbejde med unøjagtighed i stedet for at slette den? Hvordan kan modelleringssoftware repræsentere tolerance, skader eller usikkerhed, ikke som fejl, men som information? Den 3D-model af en fodboldbane med sit farvekodede katalog over elementer antydede allerede dette – et digitalt miljø ikke med uendelige muligheder, men med begrænsede, håndgribelige valg.
Implikationerne rækker ud over det tekniske. Ved at samle Blok 13 igen begyndte projektet også at samle arkitektens rolle igen. I stedet for at være mesterbygger af ’nyt’ bliver arkitekten en forhandler mellem historier; mellem det sociale og det materielle, mellem regulering og improvisation, mellem det, der er tilbage, og det, der stadig kan være.
Kulturelle og æstetiske forandringer
Cirkulær arkitektur kræver en ny æstetisk forståelse – en forståelse, der kan se værdien i det, som tidligere generationer betragtede som affald. Dette er måske den største kulturelle
This experiment also opened new questions for practice and pedagogy. How might digital tools evolve to work with imprecision rather than erase it? How can modelling software represent tolerance, damage, or uncertainty not as errors, but as information? The 3D “football field” model, with its colour-coded catalogue of elements, already hinted at this — a digital environment not of infinite possibility, but of finite, tangible choices.
The implications stretch beyond the technical. In reassembling Blok 13, the project also began to reassemble the role of the architect. Instead of the master-builder of newness, the architect becomes a negotiator between histories: between the social and the material, between regulation and improvisation, between what remains and what might still be.
Cultural and Aesthetic Shifts
Circular architecture demands a new aesthetic literacy — one that can read value in what previous generations called waste. This is perhaps its greatest cultural challenge. The reuse of concrete panels, brick fragments, or window frames inevitably

Fig. 14: Mockuppens konstruktive system som udgangspunkt for udvikling af replikerbart genbrugsbyggesystem / The structural system of the mock-up as starting point for developing a replicable system of construction with reuse.
Fig. 15-16: Mockuppens konstruktive system implementeret designforslag til rækkehuskoncept (CEBRA). / The Construction system of the mock-up implemented in the design proposal for a terraced house concept (CEBRA).

udfordring. Genbrug af betonpaneler, murstensfragmenter eller vinduesrammer medfører uundgåeligt uregelmæssigheder, farveforskelle og patina, men i stedet for at betragte disse som urenheder foreslår Genbrug på Matriklen at behandle dem som spor af tiden – spor, der giver den nye bygning en følelse af kontinuitet, ja endda af arv.
I denne forstand argumenterer projektet for en langsom arkitektur – en arkitektur, der bygger mindre, observerer mere og griber ind med omhu. Konceptet ’Form Follows Availability’ (form følger tilgængelighed) sammenfatter denne forandring. Det er ikke en tilbagevenden til funktionalisme, men et skridt i retning af situeret intelligens: Form som et resultat af dialog med materiale, kontekst og begrænsninger. Tilgængelighedens æstetik ligger et sted mellem reparation og nyopfindelse. Den værdsætter tilpasning frem for tilføjelse, komposition frem for forbrug. I praksis opfordrer den arkitekter til at tænke som arkæologer eller improviserende jazzmusikere – at give mening til eksisterende hovedtemaer og fragmenter, at give plads til tilfældigheder og at designe med det, der er til rådighed.
Fremtidsudsigter: Et levende laboratorium
De igangværende iterationer af Genbrug på Matriklen (WP4 og WP5) fortsætter med at forfine denne metodologi – ved at teste samlinger, udvikle digitale værktøjer og dokumentere miljøpåvirkningerne gennem livscyklusvurderinger (LCA). Hvert eksperiment, hvad enten det er fysisk eller digitalt, bidrager til en bredere forståelse af, hvad en virkelig cirkulær designproces indebærer: ikke en enkelt bæredygtig gestus, men en kontinuerlig feedback-loop mellem analyse, design og fremstilling.
Ambitionen er, at disse indsigter ikke forbliver begrænset til akademisk forskning, men vil finde vej ind i praksis – og påvirke, hvordan kommuner, entreprenører og arkitekter tilgår nedrivning og genopbygning. Mockuppen på Arkitektskolen Aarhus bliver således mere end bare en model; den er et pædagogisk værktøj og en symbolsk prototype på en fremtidig bygningskultur, hvor cirkularitet ikke er en undtagelse, men reglen.
introduces irregularity, colour shifts, and patina. But instead of viewing these as impurities, Genbrug på Matriklen proposes to treat them as records of time — traces that lend the new building a sense of continuity, even ancestry.
In this sense, the project argues for a slow architecture — one that builds less, observes more, and intervenes with care. The concept of Form Follows Availability encapsulates this shift. It is not a return to functionalism, but a move towards situated intelligence: form as an outcome of dialogue with material, context, and limitation.
The aesthetic of availability stands somewhere between repair and invention. It values adaptation over addition, composition over consumption. In practice, it invites architects to think like archaeologists or improvising jazz players — to make sense of existing main themes, fragments, to allow accidents, to design with what is at hand.
Outlook: A Living Laboratory
The ongoing iterations of Genbrug på Matriklen (WP4 and WP5) continue to refine this methodology — testing assemblies, developing digital tools, and documenting the environmental impacts through life-cycle assessments (LCA). Each experiment, whether physical or digital, contributes to a broader understanding of what a truly circular design process entails: not a single sustainable gesture, but a continuous feedback loop between analysis, design, and making.
The ambition is that these insights will not remain confined to academic research, but will filter into practice — influencing how municipalities, contractors, and architects approach demolition and reconstruction. The mock-up at Arkitektskolen Aarhus thus becomes more than a model: it is a pedagogical tool and a symbolic prototype of a future building culture where circularity is not an exception, but the rule.

I denne vision forsvinder Danmarks arkitektoniske arv af præ cision, kvalitet og omhu ikke; den udvikler sig. Cirkulært design bliver dens moderne fortsættelse – mindre om kontrol, mere om dialog. Et håndværk bestående af koordination snarere end komposition.
At begynde på ny
At arbejde med det, der allerede eksisterer, er at arbejde med tiden selv. Den genbrugte mur bærer mindet om sin første opførelse; trækonsollen bærer intelligensen fra sin justering. Sammen antyder de en ny form for skønhed – en skønhed, der ikke søger at slette historien, men at indgå i dialog med den.
Genbrug på Matriklen er således ikke kun en teknisk udforskning, men også en invitation til at forestille sig arkitektur som en levende organisme, der er i stand til at forny sig indefra. I denne verden af begrænsninger genopdager vi overflod – ikke i mængde, men i opfindsomhed.
In this vision, Denmark’s architectural legacy of precision, quality, and care does not vanish; it evolves. Circular design becomes its contemporary continuation — less about control, more about dialogue. A craft of coordination rather than composition.
Beginning Again
To work with what already exists is to work with time itself. The reused wall carries the memory of its first construction; the timber console carries the intelligence of its adjustment. Together they suggest a new kind of beauty — one that does not seek to erase history, but to converse with it.
Genbrug på Matriklen thus stands not only as a technical exploration but as an invitation: to imagine architecture as a living organism, capable of renewal from within. In this world of limits, we rediscover abundance — not in quantity, but in imagination.