UNSW BE Luminocity Catalogue 2025 DIGITAL COPY

Page 1


LUMINOCITY

UNSW BUILT ENVIRONMENT

UNDERGRADUATE STUDENT EXHIBITION

2025

Acknowledgement of Country

Dharug Ngalawadyingun Bediagal Dharug Ngurrawa

Wingaradyingun Bediagal Dharug Ngurrawa

Ngalu ngurrabirang.

Bimal wayangagu

Burra biyangagu

Badugu

Bayangun budyari Dharug warunggad yiyuragu baranyiin yagu baribugu.

Bayangun budyari Aboriginal and Torres Strait Islander yiyuragu Ngurra bimalgu

Yanma muday Ngurrawa.

Courtesy of:

English

We stand here on Bediagal Dharug Country. We learn on Bediagal Dharug Country.

We belong to Country, To Mother Earth, To Father Sky, To the waters.

We speak well of Dharug Elders yesterday, today and tomorrow.

We speak well of all Aboriginal and Torres Strait Islander Peoples and their homelands.

Walk softly on Country

Anissa Jones, Indigenous Academic Specialist, UNSW Arts Design and Architecture

Associate Prof. Bernadette Hardy, UNSW Built Environment

Prof. Gillian Barlow, UNSW Built Environment

Welcome to Luminocity 2025

Luminocity is UNSW Built Environment’s annual exhibition that celebrates student projects and achievements across our seven undergraduate degrees:

• Bachelor of Architectural Studies

• Bachelor of City Planning (Honours)

• Bachelor of Construction Management and Property

• Bachelor of Design (Computational Design)

• Bachelor of Design (Industrial Design)

• Bachelor of Interior Architecture (Honours)

• Bachelor of Landscape Architecture (Honours)

Across these degrees we work with our students and award-winning industry professionals to explore how we can make buildings, cities and design better – for both people and planet. We explore how we can plan and design more inclusive cities, buildings and landscapes, and how creativity and cuttingedge digital skills can reimagine everyday products, places and spaces.

We also have a commitment to ensuring all our graduates are equipped to take meaningful climate action in their future careers, be it through designing biodiverse landscapes, reusing waste materials in innovative ways or designing buildings that use sustainable materials and work in tune with their local climate and environment.

As you take a tour around the exhibition, and this accompanying catalogue, you will see the breadth of our students’ work – their creativity, empathy and passion. You’ll see completed projects, communicated through physical models, drawings, renders and even virtual reality. We’ve included profiles of our recent alumni, so you can also see how we’re educating future leaders who go on to have impactful careers in their chosen industry.

You will see how Sydney is our laboratory – the city we call home, and where we put our ideas to the test. But you’ll also see our students’ global outreach through courses we run around the world, in Austria, Cambodia, China, India, Italy, Japan and many more. These opportunities provide life-changing experiences for our students and help them establish careers not only in Australia, but also around the globe.

I hope you enjoy Luminocity 2025, and I look forward to welcoming you back to UNSW Sydney in the future.

Luminocity 2025 Exhibition Modules

LUMINOCITY DESIGN AND FABRICATION

Luminocity 2025 Design Methodology

The 2025 delivery of Luminocity looks to continue the success of the now established 'kit-of-parts' system developed by UNSW Architecture alumnus James Hargrave over the past few editions of the exhibition.

The evolution of the system has been as much part of the exhibition as the student work on display and this year the focus hones in on the refinment of the delivery and identifying further opportunities to consider the environmental impacts of the material life cycle and embodied energy involved.

At the start of the exhibition this year we asked ourselves "How can we create even greater efficiencies and tangible transfer of custody of the material at the end of the exhibition?"

The School of Built Environment is a unique ecosystem meaning the cardboard materials used in this exhibition can easily be reused, for example, as infrastructure for the end of year BE Grad Ex exhibition, and also becoming core model making materials for countless other courses and studios.

It's great to see the impact this exhibition design is having on the way our students think about design, materials and the circular economy.

Further to this the material itself is evolving with greater structural integrity being achieved in thinner sheets of cardboard and this evolution will surely inform key developments of the system moving forward.

We will continue to improve these exhibitions in the years to come through ongoing design refinement and the pursuit of environmentally conscious practices.

Luis

Gito

James Hargrave Founder, Abstract8 www.abstract8.com.au

LIFE IN THE BUILT ENVIRONMENT

Using the Robots at the DFL
Students in Venice
Construction Students in the 360 Cinema
Landscape Architecture Students at the Cooks River
Construction Students Site Visit with John Holland Group
Urban Design Studio

BE GRAD EX

BE GRADEX 2024 Exhibition Opening Night Photos

BE GRAD EX

BE GRAD EX

In addition to Luminocity, each year UNSW Built Environment celebrates our graduates’ final year projects and designs with a public exhibition and graduate showcase.

Partnering with White Bay Power Station, the 2024 exhibition was held in the industrial setting of the power station’s Boiler House, one of the most remarkable cultural spaces in Australia. The exhibition was designed, organised and run by 61 UNSW Built Environment students, under the careful leadership of Dr. Kate Dunn. To prepare them for such an undertaking, students sat a dedicated elective course on exhibition design and curation as part of their degrees.

Across the three days the exhibition was open, 2,500 members of the community, employers, students, families and friends joined us to view the work and celebrate our graduating students’ many achievements.

In 2025, our graduation showcase will again be at White Bay Power Station.

Do join us from November 28th to the 30th to view our students’ work.

BACHELOR OF ARCHITECTURAL STUDIES

The UNSW Bachelor of Architectural Studies is a three-year degree where you’ll learn how to design buildings and places to meet the needs of people and the environment.

Through industry-aligned coursework and design studios, you’ll engage with the creative, practical and ethical aspects of architecture. Hands-on projects will help you gain the vital skills to lead the way in a rapidly changing profession. You’ll learn how architectural design shapes the sustainability, inclusivity and connectivity of our buildings and cities and impacts our culture and economy.

Stimulating design studios and lectures will see you explore everything from architectural design to communications and digital fabrication, history of architecture, architectural science, environmental design and materials and construction.

The Bachelor of Architectural Studies is a powerful stepping stone on the road to becoming a registered architect. Most undergraduate architecture students go on to complete UNSW’s Master of Architecture, which has professional accreditation from the NSW Architects Registration Board and Architects Accreditation Council of Australia (AACA).

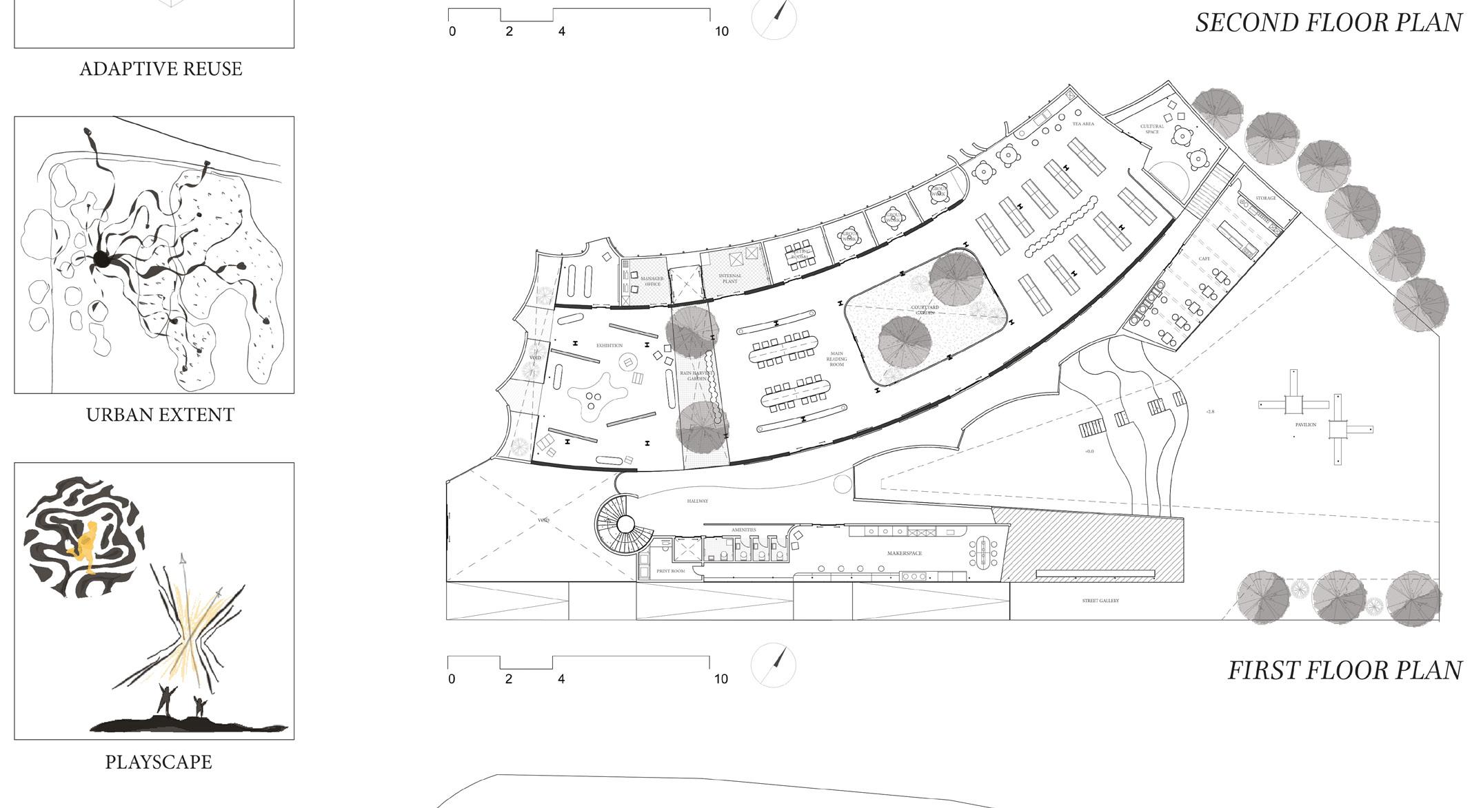
Sitting upon disturbed terrain, the project investigates a rehabilitation of Parramatta River’s geological landscape, heavily contaminated by industrial activities of colonisation, whilst addressing the accelerating and transitional nature of its urban context that urge the revitalisation of public spaces. The library becomes an incubator of new habitats, where the re-introduction of microorganisms through revegetation inform the creation of microarchitectures embedded within the typology of the wall.

INHABITED WALLS

The wall manifests an expression for newly generated rituals – a staging of paraphernalia – toward the outside world. A thickened wall defines the structure of the building’s perimeter, where varied and omnidirectional carvings shape various habitats. From the permeable colonnade on the ground floor, to a series of intimate passageways that heighten perception and reflection within the library, these layered conditions foster diverse forms of exchange and interaction, cultivating rituals of searching, reading, and contemplation. In turn, they generate a shared desire for communality, catalysing a new realm of intimacy within public space.

Interior Perspective

JESSICA

DIVERSE FORMS

OF EXCHANGE AND INTERACTION, CULTIVATING RITUALS OF SEARCHING.

ROSEHILL, NSW

Ground Plan

ROSEHILL LIBRARY

The contemporary library can be a vehicle for social and cultural exchange. The design acts as a catalyst for conversation of varying scales, from quiet dialogue to bold expressions of public voice. The amphitheatre on the river’s edge encourages circulation towards the natural landscape, allowing for moments of refuge from everyday urban life. It is a place to sit, listen, speak and reflect. A gentle invitation to step outside, and pause in nature. Sightlines to exhibitions invite you upwards, acting as both a platform for truth and a means of self expression. Weaving together spaces of both quietude and assembly, knowledge can be shared not only through books, but through gathering.

KNOWLEDGE CAN BE SHARED NOT ONLY THROUGH BOOKS, BUT THROUGH GATHERING.

ROSEHILL, NSW

Plans

ABSTRACTING THE RIVER

EDUCATION AS A LIVING ECOLOGY. MAITLAND, NSW

Abstracting the river positions education not as a fixed institution but as a living ecology, branching, converging, and regenerating. Across cultures, rivers have been revered as more than watercourses; they are cultural infrastructures that shape settlement, memory, and exchange. Translating this logic, the project redefines architecture as a living system: adaptive, cyclical, and continuously renewed. Central to this vision is preservation: the existing library structure is not demolished but reinterpreted, its foundations serving as a substrate for new growth.

Sectional Perspective

The building becomes an active spatial pedagogy, teaching through its operations: renewal (adaptive reuse), erosion ( reuse of brick as material memory), and branching (speculative re-imaginings of how people gather, learn, and create). Abstracting River, therefore, reframes the role of the library, expanding education beyond curriculum into a civic ecology, where learning moves like water, shaping both people and the city in perpetual motion.

YEN NHI
Concept Diagrams
Ground Plan
Long Section

The proposed design replaces the existing Maitland City Library with a new installation that honours the site’s heritage while meeting contemporary needs. Brick from the old library is repurposed into a pathway linking the urban fabric to the river, referencing local history and the intent of the new Riverlink. Positioned between town and river, the library establishes a continuous route that draws people from the city to the riverwalk. Its main entrance faces the river, where pedestrian activity is strongest, inviting public use.

THE REEDLINE

Inside, an open-plan layout places the reading room at the heart of the design, with exhibition space centrally located to reinforce the library’s cultural role. Three structures define the building: two long linear forms inspired by Maitland’s farming history, flanking a central permeable volume where the brick path continues inside. Instead of a library, it acts as a civic plaza that fosters cultural connection and environmental resonance.

Long Section
Ground Plan

A CIVIC PLAZA THAT FOSTERS CULTURAL CONNECTIONS AND ENVIRONMENTAL RESONANCE. MAITLAND, NSW

Model Photo
Model Photo
Elevation
Exterior Perspective Interior Perspective

DEGREE:

Bachelor of Architectural Studies (class of 2016)

CURRENT ROLE:

Senior Associate, Stewart Architecture, Sydney

SASHA LESIUK

CAN YOU TELL US WHAT IT WAS LIKE TO STUDY ARCHITECTURE AT UNSW?

Architecture is a profession where you wear many hats. You jump from being a designer, to a salesperson, to discussing technical details with engineers within a matter of minutes. Studying architecture at UNSW set me up with the skills to confidently wear those hats by encouraging us to engage in a wide variety of subjects. The course also exposed me to people within the industry who were not only valuable tutors but also became mentors who helped guide me through the course and into the working environment.

CAN YOU TELL US ABOUT YOUR CAREER SINCE YOU GRADUATED FROM UNSW?

Since graduating I have worked at a number of practices both locally and internationally. Through UNSW I was awarded a scholarship to work in Italy at the Renzo Piano Building Workshop where I worked on large scale projects such as One Sydney Harbour in Barangaroo and the Istanbul Modern Museum in Turkey. My experience in Italy was very formative and helped to shape how I think about the role of architecture at a larger, more urban scale.

WHAT’S YOUR CURRENT ROLE LIKE, AND WHAT DOES A TYPICAL DAY AT WORK LOOK LIKE FOR YOU?

As a Senior Associate at Stewart Architecture I am heavily involved in the day to day running of the studio from administration tasks to client management, as well as leading teams within the office to deliver projects. My day typically involves internal design meetings where we workshop and problem solve elements of a project. I also spend time liaising with consultants to ensure that our design intent will be realised through the documentation and construction process. Often a project involves a large team of varying disciplines and as the architect I see our role as bringing all the information together in a way that is functional, practical, financially viable and also beautiful (it is a fun balancing act!).

WHAT UNEXPECTED SKILLS DID YOU GAIN FROM YOUR DEGREE THAT YOU HAVE TAKEN INTO YOUR CURRENT ROLE AND WHY HAS IT BEEN SO VALUABLE?

I think one of the biggest skills I gained from my time at uni was the ability to communicate a design concept verbally and visually –whether that be to an individual or a large

audience. The ability to communicate clearly is a valuable skill that will often enable you to achieve an outcome on a project without compromising the design. Spending time presenting to design juries at uni also made me better at thinking on my toes and answering questions with confidence.

WHAT ADVICE DO YOU HAVE FOR SOMEONE INTERESTED IN STUDYING ARCHITECTURE?

The key piece of advice that I would give to someone interested in studying architecture is to keep an open mind, be curious and never stop asking questions. It’s also important to remember that once you leave uni you aren’t expected to know everything in five minutes flat. It takes a lifetime to build the knowledge and experience to be a ‘good architect’ - it’s a process that is challenging but also full of a lot of joy and creativity.

Internship at Renzo Piano Building Workshop, Genoa, Italy

BACHELOR OF CITY PLANNING (HONOURS)

The UNSW Bachelor of City Planning (Honours) is a four-year, full-time degree that shows you how to shape the future of built environments to benefit residents, businesses and communities alike. Because cities and regions need to be more than efficient and convenient – they need to foster a sense of connection, create new ways of living, and make sure we can grow sustainably.

Learn to thrive at the intersection of land use, development and urban design. At the same time, gain the knowledge and skills to turn your creativity and critical thinking into solutions. From protecting our natural and heritage-built environments to working with communities in cultivating fair, equitable and inclusive neighbourhoods – you can make real change. You’ll also benefit from our strong ties to industry when you complete our highly regarded and world-leading ‘Practice Year’ in your third year of study.

This planning degree gets to the heart of what makes great places tick. Shape the future of our cities and regions and make your mark on what urban and regional planning will be capable of for years to come.

This study outlines the history, existing planning controls and policy of Marrickville. The regional and local context of the precinct were analysed to develop an urban design framework identifying opportunities and design principles of the precinct. A precinct plan was then developed from the framework, outlining two possible options for upgrade, which resulted in a final urban design masterplan for the subject site. This includes an illustrative masterplan divided into building types, height, solar analysis models, 3D views and cross-sections. Ultimately, a planning proposal was included to demonstrate the proposed changes to land zoning, height of buildings, figure ground, floor space ratio, setbacks and deep soil.

MARRICKVILLE URBAN SITE ANALYSIS

Illustrative Masterplan

PLANNING WITH AN EMPHASIS ON INCREASING DENSITY AT THE HEART OF THE STUDY AREA. MARRICKVILLE, NSW

Context Mapping - Walkability

Precinct Plan

HOMEBUSH STATION

A FUTURE FOR HOMEBUSH THAT IMPROVES AMENITY, LIVEABILITY AND CONNECTIONS. HOMEBUSH, NSW

The final project for PLAN4002 Plan Making Studio required us to create an urban design planning proposal for a Transit Oriented Development Precinct. Focusing on Homebush Station, my project envisioned a well-connected and vibrant community that built upon the existing amenity and character of the neighbourhood. Forming a precinct centralised to the existing Homebush Library, the final design sought to strengthen connections between surrounding schools to establish an educational and cultural precinct at the centre of the study area.

Falling within an existing Heritage Conservation area, the final proposed design aimed to create a Homebush that embraced its history and sense of community throughout its densification and urban renewal. The proposed public domain structure offered new pedestrian connections and open spaces surrounded by new higher density housing, offering a future for Homebush that improved amenity, liveability and connections to the suburb’s unique character for existing and future residents alike.

Principles

Illustrative Masterplan
Diagrams - Planning
Street Section

RE-IMAGINING LINDFIELD

LINDFIELD, NSW

This urban design proposal presents a transformative vision for the Lindfield area, delivering a compact, vibrant, and well-connected neighbourhood centred around the intersection of Middle Harbour Road and Trafalgar Avenue. A key feature is the pedestrian-prioritised retail corridor along Middle Harbour Road, designed to enhance local amenity and create an activated, community-focused streetscape. This is supported by 7922 sqm of non-residential floorspace and 1387 new dwellings, encompassing a diverse mix of housing typologies including apartments, terraces, and terraces with secondary studio dwellings. Community infrastructure is significantly improved through the co-location of a new library, aquatic centre, and community hall, delivered via adaptive reuse of a heritage building, fostering local engagement and preserving Lindfield's character.

The proposal achieves 30.7% street network coverage, supporting strong north - south and east - west connections that promote walkability and passive surveillance. Public open space has been strategically distributed throughout both streets and development blocks, comprising 2.2% of the precinct. Tree canopy coverage is projected at 31.2%, with minimal vegetation loss (only 2.9% tree removal), exceeding previous benchmarks. Integrated cycling infrastructure enhances active transport options while supporting public transport connectivity. Overall, the proposal prioritises sustainability, accessibility, and liveability, while ensuring long-term community resilience and cohesion.

Laneway Morphology

Mapping - Solar Access

Mapping - Built Form

Mapping - Topography and Flooding

This project proposes a strategic urban renewal of Marrickville centred around the future Metro station. Responding to pressures of growth, climate change, and infrastructure upgrade, the design focuses on connectivity, resilience, and place-based identity. Key moves include the naturalisation of the existing stormwater canal into a green spine, the introduction of three new linear parks, and a fine-grain network of laneways to enhance permeability and walkability. A series of site-specific interventions deliver 24,490m² of new open space, a 42% increase in tree canopy coverage and ensure 99% of lots are within 200 metres of an intersection The preferred masterplan retains key heritage structures, supports adaptive reuse, and avoids strata and displacement, ensuring respectful integration with the existing neighbourhood.

REIMAGINING MARRICKVILLE: URBAN DESIGN FRAMEWORK

Built form is scaled to align with walkability, flood risk, and solar access, with a mix of townhouses, mid-rise apartments, and active mixed-use edges near the station. The result is a transit-oriented, community-led framework that balances growth with landscape, history, and urban ecology. The proposal delivers 1,649 new dwellings across a mix of terraces, garage-top studios, and mid- to high-rise apartments. It contributes 21% toward Inner West Council’s 2029 housing target, while enhancing public amenity through improved open space access, finergrain walkability, and a more legible and inclusive urban form.

Streetscape Visualisation

A

COMMUNITY LED FRAMEWORK BALANCING GROWTH WITH LANDSCAPE, HISTORY AND URBAN ECOLOGY.

MARRICKVILLE, NSW

Diagrams - Planning Principles

Diagrams - Design Principles

Mapping - Opportunities

DEGREE:

Bachelor of City Planning (Honours) (class of 2018)

CURRENT ROLE:

Policy Manager, Committee for Sydney

ESTELLE GRECH

CAN YOU TELL US WHAT IT WAS LIKE TO STUDY CITY PLANNING AT UNSW?

Studying City Planning at UNSW was the best! I really enjoyed the diversity of subjects from sociology or urban design through to economics and law. You get a taste of so many different fields which means it’s always interesting and there’s something for everyone. I also loved the interdisciplinary subjects where you get to learn with students across the School, one of which was an architecture housing studio in Vienna that was life changing. The other thing that’s unique about studying City Planning at UNSW is that you’re with the same cohort of people throughout the whole four-year degree. This means you get to know your class really well, and generally you’ll keep bumping into them across your career. Some of my best friends today are people I met in my very first planning class.

CAN YOU TELL US ABOUT YOUR CAREER SINCE YOU GRADUATED FROM UNSW?

The UNSW City Planning degree gave me a head start with its embedded practice year. My first job as a strategic planner at Fairfield City Council sparked my passion for people and place. I then joined a social planning consultancy, focusing on community

engagement and open space strategies. During COVID, my UNSW lecturer Michael Bishop recommended me for a role in Minister Rob Stokes’ office, where I advised on public spaces and urban design. It was a privilege to work with Rob, the Ministerial team and the public service at a time when there was a huge focus on public spaces and Active Transport. After that, I travelled to the US and Europe on a Churchill Fellowship to research how to design better cities for women and girls, a topic I explored in my final Honours year. Now, I work at the Committee for Sydney, an urban policy think tank, tackling key issues like planning, housing, and equity policy through research and advocacy.

WHAT’S YOUR CURRENT ROLE LIKE, AND WHAT DOES A TYPICAL DAY AT WORK LOOK LIKE FOR YOU?

At the Committee for Sydney, no day is the same, but it always starts with me scanning the papers for any new policy announcements and then riding my bike to the office. Typically, my day includes a lot of meetings with industry or the public service to give advice, collaborate on projects, or understand their perspective on policy issues. When I’m at my desk I’m researching and analysing data, writing

submissions or reports that seek to advocate for positive urban change. Other days I might be helping to curate events or facilitating panel discussions with a wide range of experts. Sometimes I may need to provide quotes on an issue for the newspaper or even a radio interview!

WHAT UNEXPECTED SKILLS DID YOU GAIN FROM YOUR DEGREE THAT YOU HAVE TAKEN INTO YOUR CURRENT ROLE AND WHY HAS IT BEEN SO VALUABLE?

The planning degree is so great because it equips you with such a broad range of hard and soft skills, from GIS and ABS table builder to report writing or Adobe InDesign and Illustrator—all of which I use daily. But the most unexpected skill I’ve gained is negotiation. As a planner you’re taught to listen to the community, understand their needs, and find solutions that balance tradeoffs like building height versus privacy or live music versus residential complaints. Both in the degree and the practice year, you

learn to navigate these challenges and think creatively to negotiate good outcomes for the community or your client—or ideally, both. This was also a skill that definitely came in handy when I found myself negotiating legislative amendments with the opposition or crossbench in NSW Parliament!

WHAT ADVICE DO YOU HAVE FOR SOMEONE INTERESTED IN STUDYING CITY PLANNING?

Do it! If you’re curious about cities and a creative thinker, you won’t regret studying planning, it’s a bit of a hidden gem of a degree and career. It’s a specific field of study, yet at the same time gives you so many career paths to follow. Some of my friends are working in development assessment, data analytics, others in transport planning or policy roles like me. Regardless of whether you love numbers and maps, or research, writing and engaging with the community, there’s something for you.

How do we get more people cycling in Sydney? - Committee for Sydney

BACHELOR OF CONSTRUCTION MANAGEMENT & PROPERTY

The UNSW Bachelor of Construction Management and Property is a three-year degree when studied full time. Equipping you with the skills and connections to turn your passions into a tangible and meaningful career, this degree is one of Australia’s most respected in its field.

Throughout the world, our most iconic buildings and structures wouldn’t exist without inspired construction planning and execution. Complex construction projects need leaders who can meet the demands of a constantly evolving industry. During your study, you’ll develop the skills and knowledge needed for the management of property development, construction sites, projects, and quantity surveying. We place a strong emphasis on construction and property economics and management skills, including cost, time, human resources, organisational behaviour, risk management and information technology.

For those who want to deepen their knowledge of construction management and property further, and enhance their careers, we also offer an optional one-year Bachelor of Construction Management and Property (Honours) degree, available after completing the three year program.

PREFAB VS CONVENTIONAL

THE CHALLENGES IN CONSUMERS’ PREFERENCES WHILE SELECTING BETWEEN PREFABRICATED AND CONVENTIONAL HOUSES IN THE HOMEBUILDER MARKET IN NEW SOUTH WALES, AUSTRALIA.

Background statement:

Prefabricated buildings have been implemented in many places such as Sweden, Singapore and other developed countries. Approximately 84% of buildings in Sweden are manufactured off-site. Starting from 2014, the Singapore government had mandated the inclusion of prefabricated bathrooms in all residential buildings owned by the government. According to Australian Bureau of Statistics (ABS), 163,836 new homes commenced construction in 2023, however, there are only 3-4% of new buildings each year constructed using prefabricated building systems.

In November 2023, the NSW government released a statement that it will put aside $10m in 2024 to explore modular housing. It is evident that the authorities are keen to roll out prefabricated buildings to resolve the current housing crisis. Many literatures have outlined the benefits of prefabricated houses such as time saving, better quality, cost benefits, etc. compared with conventional houses.

Problem statement:

Most renowned home builders such as Metricon Homes, McDonald Jones Homes, Rawson Homes are not offering prefabricated building solutions to their customers. Only a small group of homebuilders are promoting prefabricated construction technologies. Conventional on-site building systems seem still to be working well in NSW, even though they may involve the risk of delays and escalating costs in materials and labour. The reasons that prevent major home builders from adopting prefabricated construction systems are worth thinking about. Merely outlining the advantages of prefabricated buildings without adequate explanations for market acceptability is not prudent. There is a lack of studies investigating the market acceptance towards prefabricated dwellings in Australia.

Research purpose:

The purpose of this study is to identify the obstacles in consumer preference while selecting prefabricated houses over conventional houses. Furthermore, this study will determine the specific demographic or group of buyers who are most likely to purchase prefabricated houses and suggest promotional techniques in the homebuilder market.

Proposed research methods:

There are two research methods adopted in this thesis. Surveys in the form of questionnaires will be sent out to the general public via Survey Monkey and real estate agent channels. The key data generated from this method will be analysed via quantitative methods to identify the significant variables or obstacles in relation to consumers’ decisionmaking. The respondents will be grouped into four categories: first home buyer, investor, down-sizer, and family owner.

Interviews with major homebuilders’ sales representatives and real estate agents will be conducted while collecting the survey data. Sales representatives from the major homebuilders and real estate agents are the key parties involved in providing recommendations and suggestions to potential buyers. Interview questions will be prepared based on a list of questions that consist of technical knowledge and potential feedback. The interview data gathered will be analysed using Nvivo Pro 12 with coding.

Student Factory Visit

ENVIRONMENTAL PERFORMANCE

ENVIRONMENTAL PERFORMANCE COMPARISON OF CLT AND STEEL IN MID-RISE SUPERSTRUCTURES.

Background and Problem Statement:

In the past two decades, there has been a growing awareness around the impact of global warming, especially the detrimental role the construction industry plays. It has become increasingly apparent to recognise the importance of environmental sustainability in building design and construction. Stakeholders now have a growing interest in understanding the environmental performance of what were previously known as unconventional building materials and to now implement these as they strive to minimise the ecological impact of superstructures. This research will compare the environmental performance of Cross Laminated Timber (CLT) with steel in mid-rise superstructures.

Moreover, embodied carbon plays a significant role in buildings constructed with various different materials. Embodied carbon refers to the total amount of carbon emissions in relation to the construciton of a building. Through comparing CLT and steel in midrise superstructures, this research will aim to shed light on the environmental implications of material selection and emphasise the

potential of either CLT or steel as a sustainable construction method.

Research Purpose:

This research study aims to compare the environmental performance of CLT and steel in mid-rise superstructures, specifically analysing these two materials. The decision to focus on CLT and steel stems from the observation that the comparison of steel/concrete and CLT/ concrete is commonly addressed, whilst the contrast of CLT to steel has received relatively less attention over the past two decades. This comes from researching and reading many theses and research papers about the sustainability of different building products in a superstructure. Through undertaking this research, this thesis aims to provide valuable insights into the sustainability implications of choosing CLT and steel to help fill the knowledge gap for stakeholders. This study will analyse the parameters around these superstructure materials by assessing the performance of their carbon footprint, energy efficiency, thermal performance, and life cycle analysis, thus enabling informed decision-making for sustainable

mid-rise superstructures. As a result, this thesis has significant implications for all built environment stakeholders, including construction professionals, consultants, and developers.

Proposed Research Method:

The research method proposed for this thesis study will employ a mixed methods approach; this is a combination of both qualitative and quantitative and will adopt a case study research strategy. The case study will allow for a thorough analysis and in-depth exploration of the environmental performance of CLT in contrast to steel in mid-rise superstructures within their real-life contexts. It will involve collecting and analysing data from multiple forms of qualitative and quantitative sources, allowing a comprehensive insight into the sustainability implications of CLT and steel in mid-rise superstructures.

The qualitative methods will involve interviews with various mid-rise construction industry stakeholders, such as architects, engineers, and sustainability managers. These interviews will provide this thesis with subjective perspectives, allowing the research to explore their experiences, attitudes, and perceptions related to CLT and steel. More qualitative data will be obtained through previous theses, research papers, industry reports, and case studies as they will offer additional information on the sustainability aspects of CLT and steel in mid-rise superstructures. Moreover, quantitative research will include

surveys of the aforementioned individuals; this will be distributed to collect data on the specific aspects of environmental performance, such as carbon emissions, energy consumption, and thermal performance. The quantitative data will be analysed using SPSS or Excel to generate objective measurements and comparisons between CLT and steel.

In terms of this thesis’ research philosophy, this study will align with pragmatism, which acknowledges the value of subjective experiences and objective measurements. Pragmatism will recognise the differences in methods and approaches that can be useful in understanding complex phenomena. By using qualitative methods to capture the subjective perspectives of all stakeholders and quantitative methods to illustrate the measurable parameters, this study will provide a holistic understanding of the environmental performance of CLT and steel in mid-rise superstructures. Thus, through the mixed methods case study approach and pragmatic research philosophy, this thesis will seek to engender informed decision-making whilst generating practical knowledge for sustainable mid-rise superstructures.

Construction Site Simulation
Site Coordination

DEGREE:

Bachelor of Construction Management and Property (class of 2014)

CURRENT ROLE:

Operations Manager, Marr Contracting, Sydney

ERIN DOYLE

CAN YOU TELL US WHAT IT WAS LIKE TO STUDY CONSTRUCTION AT UNSW?

The construction degree at UNSW is designed to ensure that you get as much industry exposure as possible, with the content we learnt being directly applicable to a future role in the industry. It was great to have lecturers that were current or ex-industry professionals, who could use real life stories and examples to demonstrate how knowledge could be applied. The content was also varied, ensuring that we could choose a section of the industry we liked, and UNSW really encouraged us to gain as much work experience as possible while still studying.

CAN YOU TELL US ABOUT YOUR CAREER SINCE YOU GRADUATED FROM UNSW?

I have been very lucky since graduating (and even before graduating) to have worked on some amazing projects around Sydney. While I was still at UNSW, I got a Cadetship with Mirvac, where I remained for 12 years. I progressed through the ranks from Cadet to Site Engineer, Project Engineer, Senior Project Engineer and Project Manager, working across Infrastructure, Apartments and Commercial projects. More recently, I’ve accepted a role with Marr Contracting as Operations

Manager – taking the opportunity to expand my business skillset, along with experiencing new areas of the industry, including both local and international energy, mining and major infrastructure projects.

WHAT’S YOUR CURRENT ROLE LIKE, AND WHAT DOES A TYPICAL DAY AT WORK LOOK LIKE FOR YOU?

My current role is great – it’s very varied, and I get to interact with a whole range of people across the business. In saying that, I don’t have a ‘typical’ day – some days might be client meetings on project sites, some days could be in the office working on improving systems and processes, and other days may be project planning or project reviews. What every day does involve though is an amazing project, challenges to overcome, and various interactions with all sorts of roles in the industry – it’s certainly never boring.

WHAT UNEXPECTED SKILLS DID YOU GAIN FROM YOUR DEGREE THAT YOU HAVE TAKEN INTO YOUR CURRENT ROLE AND WHY HAS IT BEEN SO VALUABLE?

An understanding of how broad the construction industry can be. An appreciation for different specialisations and roles that are needed and relied upon. A lot of people assume that construction is just so you can be a “Project Manager”, but that’s a misconception I don’t like – there are valuers, quantity surveyors, contracts managers, site managers and a whole host of other roles that are equally rewarding. UNSW taught me to have that respect for people who are experts in their craft, and I wouldn’t be successful now if I wasn’t able to identify those people and ensure that the right person is on my team.

WHAT ADVICE DO YOU HAVE FOR SOMEONE INTERESTED IN STUDYING CONSTRUCTION?

To anyone that has an interest in construction, remember that the industry is so varied – no matter what your strengths, likes or dislikes are, the construction industry will be able to provide a very rewarding career. UNSW is the launchpad for that – use it to experience the people, the potential careers, the different facets of the industry and find something you love.

Marr Contracting

BACHELOR OF DESIGN (COMPUTATIONAL DESIGN)

Computational Design uses digital technologies to enhance and optimise design processes. Through algorithms and cutting-edge technologies computational designers develop creative, technical and aesthetic solutions to solve the challenges of the 21st century. This specialisation is offered in our UNSW Bachelor of Design degree.

When you study computational design at UNSW, you’ll learn to approach challenges differently through design-thinking. You’ll gain hands-on experience with cutting-edge technologies, including 3D modelling, digital geometry and parametric design, responsive environments, AR and VR, and robotic and digital fabrication using 3D printers and laser cutters.

Through design thinking and computational design theory, you’ll hone critical-thinking and communication skills to create inclusive designs for diverse contexts. As part of our supportive Arts, Design & Architecture community, you’ll be encouraged to collaborate across disciplines, gain professional experience, and take advantage of programs that support entrepreneurship and innovation. You’ll have the opportunity to work on real-life projects set by UNSW’s partners in the built environment, architecture and design industries such as Cox, Arup, Hassell, BVN, Bates Smart, PTW Architects, Grimshaw, Mott McDonald, and Aurecon.

Working at the intersection of design and technology, computational designers are in-demand. Your skills and ways of thinking will set you up for exciting career paths that engage with future digital built environments.

Urban precinct projects now demand visuals that update at the pace of iterative design decisions. Yet traditional path traced rendering requires days of manual optimisation and overnight computing. To reduce production time but maintain quality, this project proposes a three stage workflow.

First, a parametric Grasshopper script to convert lot parcels into zoning compliant building massings. Then, Blender to procedurally generate facades, add context assets and output a base render. Finally, an image-to-image AI diffusion model adds details and enhances the realism of the base render, resulting in realistic precinct visuals generated in a fraction of traditional production time.

PRECINCT VISUALISATION PIPELINE

Process and Methodology

WILLIAM BOGE

HOW AND AT WHICH STAGE OF AN URBAN-PRECINCT VISUALISATION AND RENDERING WORKFLOW CAN DIFFUSION-BASED AI BE INTEGRATED TO SHORTEN PRODUCTION TIME, WHILE STILL YIELDING PHOTOREALISTIC, GEOMETRICALLY FAITHFUL VISUALS THAT MEET DELIVERY STANDARDS?

AI Output

COMFORT CANVAS

A LIGHTWEIGHT BROWSER BASED TOOL THAT BRINGS ERGONOMIC CLEARANCES INTO EARLY FLOOR-PLAN WORK.

Comfort Canvas is a lightweight, browser-based tool that brings ergonomic clearances into early floor-plan work. Aimed at designers, it reads DXF drawings, classifies layers into walls, doors, windows and fixtures, and renders an editable 2D canvas with an optional 3D view. Users place furniture from a small GLB library or upload their own GLB/OBJ models. As items move, the app runs instant checks against evidence-based rules aligned to Neufert: per-side zones such as chair pull-out, bedside access and sofa reach are evaluated in millimetres.

Zones turn green or red, and the interface reports measured-versus-required distances, intruders and margins. Group and overlap logic allow realistic sets, for example dining chairs around a table. An analysis panel summarises counts, per-item issues and simple occupancy heuristics, with an AI summary.

Exports provide portable evidence: JSON for full rule and geometry details, CSV for a tabular summary, and DXF that merges the original plan with a furniture layer for CAD review.

By shifting comfort checks from handbooks to live, explainable feedback, Comfort Canvas helps teams catch narrow passes, blocked swings and tight zones early, reducing rework and improving day-to-day usability.

BEADS ON A STRING

NON CONTINUOUS PATHS FOR MULTIPART SIMULTANEOUS PRINTING.

Large-format additive manufacturing (LFAM) in architecture, engineering, construction and industrial design has traditionally relied on Single Continuous Toolpath (SCT) printing to ensure structural integrity, visual quality, and process reliability. However, this method imposes limitations on both geometric complexity and scalability. This project proposes the development of a digital toolset for implementing Non-Continuous Path Printing (NCPP) on a 6-axis robotic arm equipped with a screw-driven pellet extruder. The core concept is to leverage multiple segmented paths, separated by parts of the robot movements that do not extrude any material to enable simultaneous multi-part printing and the fabrication of complex geometries that are impractical with SCT methods.

The resulting toolpath algorithms will include preconfigured extrusion pauses and dynamic flow adjustments to accommodate multi-part switching and cross-gap movement without material drooling. This will be supported by real-time robotic path planning and simulation to ensure accuracy and repeatability. By using these digital tools, users will gain the ability to fabricate stronger, lighter, and more geometrically complex components while improving throughput and machine utility.

JAYDEN TRAN
Final Test Outcome

Test 3 - Success

Test 3 - Methodology

Test 5 - Methodology

KINETIC FACADE

A PARAMETRIC WORKFLOW THAT INTEGRATES ALGORITHMIC APPROACHES AND ENVIRONMENTAL SIMULATION.

This research project explores how computational design methodologies can enhance the design feasibility of kinetic facades systems compared to traditional static facades. This process involves the use of parametric modeling in Grasshopper and environmental simulation in Ladybug tools. As urbanisation and climate change intensively demand energy efficient buildings, kinetic facade architecture presents a more compelling solution through dynamic environmental responsiveness.

The project builds upon existing research in responsive architecture and computational design, specifically following a parametric workflow that integrates algorithmic approaches and environmental simulation. One of the triangular facade modules, inspired by the precedent of the Al Bahar Tower’s adaptive shading system, was developed with adjustable components that repsond to solar exposure. Comparative analyses using Ladybug Tools assesses the solar shadingreduction and thermal performance against a static facade baseline, evaluating how computational tools can streamline early-stage design decision to reduce reliance on costly physical prototypes.

Building Script

TRISTAN LUONG

Workflow Diagram

Solar Analysis - Winter

Solar Analysis - Summer

Facade Module Application

DEGREE:

Bachelor of Computational Design (class of 2020)

CURRENT ROLE:

Computational Designer, Cox Architecture, Sydney

DANIELLE BISAZZA

CAN YOU TELL US WHAT IT WAS LIKE TO STUDY COMPUTATIONAL DESIGN AT UNSW?

Studying Computational Design at UNSW was an enriching experience surrounded by talented peers and teaching staff. The curriculum covered a variety of topics from data analytics to digital fabrication. I was also provided with opportunities to collaborate with other organisations, expanding my experience and network during my studies.

CAN YOU TELL US ABOUT YOUR CAREER SINCE YOU GRADUATED FROM UNSW?

Since graduating from UNSW, I’ve used my studies as a foundation to become valuable within my company – Cox Architecture in Sydney. My career began in signage and wayfinding and has since expanded into lots of different sectors, including residential, transport and planning. Additionally, I’ve had the opportunity to give back by tutoring at universities, sharing my knowledge and experience with others.

WHAT’S YOUR CURRENT ROLE LIKE, AND WHAT DOES A TYPICAL DAY AT WORK LOOK LIKE FOR YOU?

As a computational designer I model and analyse building data to develop meaningful processes that solve complex design problems. A typical day involves collaborating with my colleagues, addressing any problems they have and coming up with solutions together (with plenty of coffee included). Due to the nature of this work, every day is unique, presenting new challenges and continuous learning opportunities.

WHAT UNEXPECTED SKILLS DID YOU GAIN FROM YOUR DEGREE THAT YOU HAVE TAKEN INTO YOUR CURRENT ROLE AND WHY HAS IT BEEN SO VALUABLE?

One unexpected skill I gained from my degree that has been invaluable in my current role is the ability to apply logical thinking to architectural design problems. This skill allows me to approach challenges from a different perspective, leading to innovative and efficient solutions. Additionally, building connections with others during my studies has proven immensely beneficial. These relationships have provided ongoing support, collaboration opportunities, and access to a wealth of

knowledge and expertise that continues to enhance my professional growth to this day.

WHAT ADVICE DO YOU HAVE FOR SOMEONE INTERESTED IN STUDYING COMPUTATIONAL DESIGN?

If you’re interested in studying Computational Design, my advice is to go for it! This degree not only provides a strong foundation in computational techniques but also complements other skills you already possess. The interdisciplinary nature of the program allows you to integrate your existing knowledge with new, cutting-edge tools and thinking, enhancing your overall capabilities.

Sydney Metro Gadigal Integrated Station Development and Over Station Development.

BACHELOR OF DESIGN (INDUSTRIAL DESIGN)

Industrial Design is the professional practice of designing the products we use every day. Also known as product designers, industrial designers explore solutions to ensure products meet marketing, manufacturing, and functional requirements. This specialisation is offered in our UNSW Bachelor of Design degree.

Industrial design combines design thinking, materials knowledge, production technologies, human factors, and sustainability to create products that lead to a better quality of life. When you study Industrial Design at UNSW, you’ll be inspired and challenged to use insightful and strategic product design for the good of people and the planet.

Through practical studio classes and theoretical courses, you’ll develop design skills in drawing, ideation, making, prototyping, and digital visualisation as you learn about manufacturing processes, user interaction, environmental and social responsibility, and more.

As part of our creative Arts, Design & Architecture community, you’ll be encouraged to collaborate across disciplines, and take advantage of programs that support entrepreneurship and innovation. Through our strong industry links, you’ll be able to gain real-world professional experience and connect with design leaders. As a graduate of Industrial Design, you’ll also be eligible for membership with the Design Institute of Australia (DIA).

Industrial design sets you up for careers that combine innovation and creativity, with technology and business. Your experience across the breadth of the design process will set you up for a successful and diverse career.

This project reimagines healthcare waste as a resource for inclusive design. Using recycled polypropylene from hospital gowns, it introduces a modular wheelchair mounted system with interchangeable attachments for hydration, IV support, and mobile device access. At its core is a universal clamp engineered to adapt across frame geometries, round, square, and rectangular, removing the need for custom solutions. Originally developed to address hydration, the system evolved into a multipurpose assistive tool that enhances user independence and comfort. By embedding circular design principles into functional healthcare accessories, the project closes a material loop while opening access to more dignified, user focused care.

SYSTEMA EXBRACCHIA

Prototyping Phase

A UNIVERSAL CLAMP ENGINEERED TO ADAPT ACROSS FRAME GEOMETRIES.

Product Identity

THE GESTALT

DESIGNED TO AGE GRACEFULLY, BECOMING MORE PERSONAL WITH EVERY USE.

The Gestalt is a tactile reimagining of the smart home device, designed to preserve presence, identity, and emotional connection to technology. In a market dominated by invisible, touchless interfaces, Gestalt uses physical dials, buttons, and switches to control all the functions of a modern home, inviting deliberate and satisfying interaction. Designed with enduring materials that develop a rich patina over time, it’s a device designed to age gracefully, becoming more personal with every use. Not a voice assistant or a faceless app, the Gestalt is a tool, rooted in restraint, honesty, and tactility, that transforms everyday control into a meaningful, hands-on experience.

Prototyping Phase

Prototyping Phase

Exploded Detail Axonometric

Concept Render

Concept Render

AMIKO

EVERY DETAIL IS SHAPED BY REAL USER NEEDS.

AMIKO is a companion robot designed to support older adults living with early-stage dementia. Combining emotional AI, intuitive interaction, and a modular care system, AMIKO addresses both the functional and emotional needs of ageing in place. Grounded in empathy-led research, the project explores how dignity, independence, and emotional reassurance can be embedded into everyday moments. AMIKO uses facial recognition and behavioural sensors to respond to users’ emotional states, offering feedback through lighting, motion, and connection to caregivers. Its soft form, warm lighting, and quiet interactions are intentionally crafted to foster calm, companionship, and safety - without being intrusive. The project also includes a family of modular wall-mounted companions that extend coverage throughout the home, creating a distributed care network.

Designed to integrate with healthcare services, AMIKO supports both users and their caregivers by reducing anxiety, maintaining routine, and promoting peace of mind. From CMF choices to interaction scripting, every detail is shaped by real user needs and emotional feedback. AMIKO reframes assistive technology as a gentle, dignified presence - designed to be there, even when others can’t be.

User Experience
Prototyping Phase

Development Sketches

3D Mock-up
3D Mock-up
3D Mock-up
Design Concept
3D Mock-up

NEUROEASE

NeuroEase directly addresses a significant real-world need: the management of migraines, which affect over 1.1 billion people globally and often go under-treated or mismanaged. Current treatments are heavily reliant on pharmaceuticals, which can have unwanted side effects, limited accessibility, and contribute to long-term environmental waste. NeuroEase provides a drug-free, non-invasive alternative using vagus nerve stimulation (nVNS), empowering users to manage pain discreetly and effectively in diverse environments, for example, at work, in public, or while traveling.

This design has the potential for broad societal impact by reducing the stigma of invisible illnesses, supporting users’ independence, and restoring quality of life through a product that blends medical function with empathetic design. Environmentally, it reduces dependence on disposable pharmaceutical packaging and medication waste. The reusable gel and tissue system is refillable, extending product lifespan and minimising single-use waste. Economically, it opens opportunities in the growing wellness tech and wearable health sectors, filling a major gap in the migraine treatment market with a product that is approachable, personal, and scalable.

NeuroEase is not just a device, it reimagines how chronic conditions can be treated, helping individuals reclaim their daily lives while creating a more sustainable and inclusive model for care.

EMPOWERING USERS TO MANAGE PAIN DISCREETLY AND EFFECTIVELY IN DIVERSE ENVIRONMENTS.

3D Mock-up
3D Mock-up
3D Mock-up

DEGREE:

Bachelor of Industrial Design (class of 2015)

CURRENT ROLE:

Industrial Designer, Apple Inc., California USA

MARCUS LEE

CAN YOU TELL US WHAT IT WAS LIKE TO STUDY INDUSTRIAL DESIGN AT UNSW?

Studying Industrial Design at UNSW was such a stimulating and exciting time for me. Each semester I was being exposed to new areas and concepts that really fed my curiosity. I also fondly remember learning from and creating such great relationships with many of my lecturers. Relationships which eventually led me to fantastic professional opportunities. The UNSW campus also has a special place in my heart. I grew up and lived very close by and as a child, attending UNSW was a dream of mine. It has and always will be a very special place for me.

CAN YOU TELL US ABOUT YOUR CAREER SINCE YOU GRADUATED FROM UNSW?

My first job came about from a little design competition that was being held within one of our classes. I was fortunate enough to win that competition which was being sponsored and judged by an external company ‘Watermark Products’ who specialised in products for the aviation industry. This led to an internship, then a part-time role, eventually cumulating into fulltime role straight after graduation.

It wasn’t too long until an opportunity came

along at an Australian design consultancy I adored – Nielsen Design. Under the wing of legendary designer Adam Laws, I spent 3 wonderful years learning from and working with the talented team there. Then in 2019, the opportunity to join Apple in California came up and it was simply something I had to pursue. It has been 5 years at Apple now and it has been an absolute dream. I often think back about Australia and how much I’ve grown and learnt since graduating, it’s quite surreal and I’m always grateful for where I am today.

WHAT UNEXPECTED SKILLS DID YOU GAIN FROM YOUR DEGREE THAT YOU HAVE TAKEN INTO YOUR CURRENT ROLE AND WHY HAS IT BEEN SO VALUABLE?

A big part of Industrial Design is knowing a little bit about a lot of things and having such a wide range of exposure during my studies has helped a lot. For instance, working with engineers on our solar car project gave me valuable insights, enhancing my collaboration skills with different disciplines. Classes on marketing taught me how the products that I’m designing fit into an actual real-world business strategy, while even the statistics class in my first semester provided a solid foundation for interpreting and relying on data that informs

design decisions. Everything feeds back into who I am, and eventually what I do every day in my job.

WHAT ADVICE DO YOU HAVE FOR SOMEONE INTERESTED IN STUDYING INDUSTRIAL DESIGN?

If you have a curiosity for how things work, the passion to make things better and the desire to connect the dots of the world in creative ways then Industrial Design is for you. I’ll admit, I wasn’t immediately confident in my choice of degree; it took about a year into the program before I truly felt that Industrial Design was right for me. However, today I can’t imagine how foolish I would have been to pursue anything else, and I can’t believe how lucky I am to do this for a living.

Industrial design studio work by Marcus Lee

BACHELOR OF INTERIOR ARCHITECTURE (HONOURS)

The Bachelor of Interior Architecture (Honours) at UNSW is a four-year full-time degree, where you’ll learn how to improve the interior environments in which we live, work and play.

Through a combination of creative thinking and making, you’ll study and work within a design community that collectively reimagines and reshapes the interior environments within our homes, workspaces and cities.

From the manipulation of the spatial, material and structural elements of a space to exploring interior architecture through theory and practice, you’ll graduate with the confidence and work experience you need to take the next step in your interior architecture journey.

The projects presented here are developed in a course co-led by Associate Professor Bernadette (B) Hardy (Dharug Gamilaraay) with guidance by Uncle Tim Bishop (Murrawarri), and Country as teacher (Dharug, Bidgigal, Gadigal, Wangal). Students explored ‘Creative Communities: Caring for Country’ and cultural knowledge is embedded in all of their work. In respect of ICIP law and Cultural Law/Lore, please refrain from sharing imagery. Please scan the QR code to find out more about ICIP Law and Cultural Law/Lore.

A project layered with memory, resilience, and care, The Foundry honours Wangal and Gadigal Country. This project explores the adaptive reuse of White Bay Power Station through a language of cuts, insertions, and crafted contrasts - revealing new spatial experiences within an industrial shell.

The design draws on material layering, form carving, and crafted detailing to generate a dialogue between heavy infrastructure and refined humanscale occupation.

THE FOUNDRY

Interior Detail
Interior Perspective
Concept Diagram

SPATIAL EXPERIENCES WITH A FOCUS ON MEMORY, RESILIENCE AND CARE. WHITE BAY POWER STATION, ROZELLE, NSW

Interior Perspective
Rooftop Perspective Short Section

BEATING HEART

CONNECTING THE YOUTH OF TODAY WITH THE ROOTS OF COUNTRY, A CONSTANT PULSE BEATING TO THE RHYTHM OF SYDNEY'S FUTURE. WHITE BAY POWER STATION, ROZELLE, NSW

The loss of creative clusters in Sydney has stripped the city of innovation and cross-pollination of ideas. At the same time, we’ve watched our landscapes vanish - 90% of low-lying wetlands across NSW and 85% of Sydney’s urban wetlands already gone. The Nature Conservation Council warns that within the next 100 years, half of our threatened species will be lost forever. Culture and ecology are both bleeding out. Young people feel cut out of the art communityespecially in music and film - left without spaces to tell their stories or shape their own futures.

The Beating Heart is our answer: a site that revitalises the area back to Country, grounding it in the old while giving youth the foundation to write a new story. Spaces for storytelling, expression and creation are webbed together like their own living city - an interconnected root system for creative industries to grow, collide and transform. Open 24 hours, this becomes not just a venue, but a pulse - crosspollinating culture, bridging the West and East, and holding the rhythm for Sydney’s future.

Exterior Perspective

At White Bay Power Station, water is both ghost and cure, it's steam having once destroyed the machines, yet now offering the possibility of healing. My project returns to this site with care, not to erase the past but to restore relationships with memory, Country, and self, transforming it into a healing journey for young people who feel adrift, wounded, or unheard.

Across five key spaces, water shifts from a threat to a connector, teacher, and guide, creating places to listen, gather, reflect, grow, and come home between the shores.

BETWEEN THE SHORES

By repurposing materials from damaged places — sandstone from tunnels, discarded concrete, and silenced stories — I give back to a site marked by ecological and cultural trauma, honouring country as a living being capable of memory, emotion, and regeneration. Through soft forms, sensory experiences, and inclusive gestures, I centre unrooted youth, allowing water — once my greatest fear — to connect every surface and strategy with care, making this more than a building; it is a promise to heal.

Interior Perspective
Exterior Perspective
Material Pallete

FOR THE YOUTH WHO WANDER, AND COUNTRY THAT LISTENS. WHITE BAY POWER STATION ROZELLE, NSW

Interior Perspective
Perspective
Interior Perspective

THREADWORKS

INTENTIONAL AND PRESENT STORYTELLING THREADING TOGETHER THE CREATION OF MANY HANDS. WHITE BAY POWER STATION, ROZELLE, NSW

Threadworks is a creative sanctuary that invites young people to return to hands-on, tactile forms of making in response to an increasingly digital world. Rooted in craft, memory, and Country, the project embraces slowness, care, and shared creativity to foster connection, healing, and self-expression. In spaces that celebrate process over perfection, every act of making becomes a gesture of belonging and reciprocity.

This project is about more than craft, it’s about presence, about slowing down and remembering that we all hold stories in our hands. Threadworks is my way of stitching together people, place, and memory, so that every hand that creates here adds another thread to the larger story.

Interior Perspective

Concept Diagram

Interior Perspective

Sectional Perspective

Long Section

DEGREE:

Bachelor of Interior Architecture (Honours) (class of 2019)

CURRENT ROLE:

Associate – Interior Designer, 3XN Architects, Sydney

DIANA ESPIRITU

CAN YOU TELL US WHAT IT WAS LIKE TO STUDY INTERIOR ARCHITECTURE AT UNSW?

Emotional and challenging – design involving the body and mind. Rewarding – it was fulfilling to create tangible objects and projects. Supporting and social – my best friends have come out of this degree.

CAN YOU TELL US ABOUT YOUR CAREER SINCE YOU GRADUATED FROM UNSW?

My career officially began as a student working for Bates Smart where I worked on a mix of typologies such as commercial workplace and multi-residential. I then worked for Woods Bagot where I focused on the education sector, including public schools and universities. I recently moved to 3XN (Sydney) where I will be working on a range of projects across the Asia-Pacific region, including a few projects surfacing in Japan. I am most excited to pursue evidence-based design by collaborating with 3XN’s research studio GXN who are based in Copenhagen.

WHAT’S YOUR CURRENT ROLE LIKE, AND WHAT DOES A TYPICAL DAY AT WORK LOOK LIKE FOR YOU?

I typically work on larger interior architecture projects across all project stages. Tasks during the front-end design phase consist of client and stakeholder workshops, internal design reviews, 3D modelling and presentation work. Back-end phases consist of BIM (Building Information Modelling), compiling variations, services coordination, and site visits (the exciting part!).

WHAT UNEXPECTED SKILLS DID YOU GAIN FROM YOUR DEGREE THAT YOU HAVE TAKEN INTO YOUR CURRENT ROLE AND WHY HAS IT BEEN SO VALUABLE?

Personal branding and storytelling skills. Personal branding is a way of showing people what you stand for. By creating a brand around my values, I have been able to expand my network to people that share similar aspirations, including peers, collaborators, and potential clients.

WHAT ADVICE DO YOU HAVE FOR SOMEONE INTERESTED IN STUDYING INTERIOR ARCHITECTURE?

Be ready for life-long learning and understand that the knowledge and skills you pick up are transferable across different disciplines, industries, and roles.

Workplace design in Fukuoka, 3XN Architects

BACHELOR OF LANDSCAPE ARCHITECTURE (HONOURS)

Are you ready to shape tomorrow’s landscapes?

Do you imagine a future where urban and regional landscapes are designed to be sustainable, adaptive and resilient to climate change?

Landscape Architects design and plan public spaces to ensure the ecological and social health of the environments that we all live, work and play in.

UNSW’s Bachelor of Landscape Architecture is a four-year, full-time degree, professionally accredited by the Australian Institute of Landscape Architects.

The UNSW Landscape Architecture Program will inspire and equip you with the knowledge and skills to design socially and environmentally responsive environments for a multi-species world.

Through design you will explore the local landscapes and landscape systems of the Sydney Region and experiment with novel solutions that emphasise a socially and environmentally just world. As you work together in our design studios you will build a community of like-minded peers and experience a wide range of approaches to landscape architecture with our award-winning educators, researchers and industry professionals as they partner with you on your journey.

SIGN OF THE TIDES

TIDES ARE A CONTINGENT, ABIDING EVENT - PUSHED AND PULLED BY THE MOON (YANADA IN DHARUG). CANTERBURY, NSW

On matriarchal Dharug land, the Goolay'yari (Cooks River) is the most polluted urban river in Australia. With the heavy urbanisation of the river, its natural ecosystem services are almost lost, but there are signs of the river fighting back.

This project will give the land back to the river with deep consideration of what was and what will become. Tides are a contingent, abiding event – pushed and pulled by the moon (yanada in Dharug).

These ebb and flow cycles of science, spirituality and celebration have been deeply considered. Sign of the Tides has created spaces that encourage the ecological and social fluctuations that occur with water and lunar cycles.

ELLA SHORT
Concept Diagram - Moonlight Visitors
Perspective

SYMBIOSIS AND COLIVING: RESPONDING TO VULNERABILITY FROM ISOLATION TO INTEGRATION

The Cooks River, with its rich history of Indigenous mullet fishing activities, has been facing challenges since middle of 20th century with conflicts between engineered concrete embankments for flood mitigation and its natural swampy lands as the key habitats for mullet.

“Symbiosis and co-living” seeks to establish a series of adaptive methods as nature-based solutions to give back fish habitats in its original status through supporting mullets’ life cycles consisting feeding and migration stages whilst enhancing Cooks River riparian corridor’s resilience to future seasonal flooding events under the context of sea-level rise. By leveraging river dynamics principles, the project will be set up in three phases: reconfiguring Cooks River, re-establishing habitats, and reconnecting to floodplain, which incorporates reusing the site's concrete blocks as the river edge, introducing side channels and side bars to respond to net positive climate action for protecting mullet while engaging with communities.

Concept Diagram
Concept Diagram

A RICH HISTORY OF INDIGENOUS MULLET FISHING ACTIVITIES.

COOKS RIVER, NSW

ELIZA FAGAN

FLOW

A RESTORING FORWARD REVEGETATION PROJECT. CANTERBURY, NSW

The potential development of Canterbury Park Racecourse presents a unique opportunity in Sydney given its size, flat profile, CBD proximity and enviable riverfront position. FLOW is a large “restoring forward” revegetation project, which considers the past, present and future of the site in its design. At the forefront, extensive contour naturalisation and varied river edge treatments aid biofiltration capabilities via a terraced three-pond wetland system featuring respectful human habitat interaction.

Set on “Australia’s most altered and polluted river” (Tyrrell, 2018), FLOW reconciles the complex Gooaly’yari (Cooks River) history, the community’s needs and desires and flood risks. Blue-green infrastructure tackles issues of urbanisation, declining mental health and Sydney’s changing housing mix to accommodate more families residing in apartments. Large scale revegetation restores corridors for both humans and non-human user groups across this previously fenced-off site to see water, people, flora and fauna reconnected to the river and to each other in new ways. With the vision to create a Sense of Place profoundly influencing physical and spiritual wellbeing to connect with site and Country, FLOW prioritises attachment in all its visitors – people to place and people to people - and interweaves the voices of people and nature to provide restoration for the entire system and its residents.

Physical Model
Physical Model - Detail

White Bay Park was once a thriving Grey Mangrove forest, but the land was reshaped by reclamation and concrete, disrupting natural systems and biodiversity. This design proposes to restore the site’s ecology by reintroducing native species, particularly Grey Mangroves, to revitalize the intertidal zone. Native plants are strategically integrated to provide habitats, support pollination, and stabilize the soil and shoreline. The design also reshapes the landform of White Bay Park to create dynamic level changes, encouraging visitors to engage with the site through movement, exploration, and immersion.

WHITE BAY PARK

The terraced topography offers a range of experiences, from shaded retreats to elevated lookouts, blending ecological restoration with human interaction. By seamlessly combining innovative landform design with ecological renewal, this approach celebrates the harmony between human activity and natural resilience, creating a vibrant sanctuary for both community and wildlife.

CELEBRATING THE HARMONY BETWEEN HUMAN ACTIVITY AND NATURAL RESILIENCE. WHITE BAY, NSW

Site Section
Site Section

DEGREE:

Bachelor of Landscape Architecture (Honours) (class of 2006)

CURRENT ROLE:

Director, Global Quality Assurance Leader McGregor Coxall, Sydney

ANN DENG

CAN YOU TELL US WHAT IT WAS LIKE TO STUDY LANDSCAPE ARCHITECTURE AT UNSW?

It was a golden period in my life when I began the journey of building a career that I will love for a lifetime. As an international student (and I believe I can speak on behalf of many), I struggled to understand what I was learning in my first year due to the language barrier. Although I was a good illustrator, I initially found it difficult to express my ideas verbally. I soon learned that in landscape architecture, the story and principles of good design begin with knowing how to convince your audience. Fortunately, I received endless support from my tutors and peers, who helped me bounce ideas and refine my designs. I had a million questions every day, but they were always answered in the end. It was remarkable to be able to grow and learn as a blank page while having fun at the same time.

CAN YOU TELL US ABOUT YOUR CAREER SINCE YOU GRADUATED FROM UNSW?

In the first few years, I was exposed to all kinds of projects at different stages. I began by supporting my project managers with technical production, learning by updating their markups, and observing and learning through client meetings. During this period, I gained

a deeper understanding of my own strengths and weaknesses, which was key to shaping my career direction.

After 2-3 years of gaining experience with the full cycle of deliverables, I was entrusted with small projects to manage. Gradually, I took on larger and more complex projects. By about the fifth year of my career, I began mentoring the younger team members around me, passing on my knowledge. I managed the team on a weekly basis, overseeing resourcing, finances, and training. I accomplished all this with continuous support from my key mentors—directors and other senior roles— ensuring that I was on the right track.

The highlight of my career was seeing the projects come to life on site! I think it was around year 5 I saw the first built project when I was the project manager.

I’ve recently started working part-time while leading Global Quality Assurance, collaborating with leaders to ensure all processes are in place. At this point, our company had grown to over 150 employees, making it a challenging role, as not everyone likes to be told they haven’t done something correctly—but that is the key to this role.

WHAT’S YOUR CURRENT ROLE LIKE, AND WHAT DOES A TYPICAL DAY AT WORK LOOK LIKE FOR YOU?

For the past nine months, I have been involved in strategic decisions for the company as a director. I have a dual role of being the Quality Assurance Lead as well as Director. I continue to work with all leaders on operations, company structure, design quality. There is always something of the company processes and systems needing to be refined. My day involves lots of meetings when I assess, listen, engage, action and monitor.

WHAT UNEXPECTED SKILLS DID YOU GAIN FROM YOUR DEGREE THAT YOU HAVE TAKEN INTO YOUR CURRENT ROLE AND WHY HAS IT BEEN SO VALUABLE?

Communication and negotiation are key. I have worked on some of the most political and complex projects, some involving over 200 designers (architects, engineers, planners, government stakeholders, etc.) within a single project, each believing their approach is the best. It is essential to know when to move forward and when to step back, as well as when to leverage other expertise to

get your ideas endorsed. Communication and negotiation are forms of design. I have developed my own “style” of communicating my design ideas to gain the support of clients and consultants. Working closely with contractors to ensure a high-quality built outcome is also a learning process in itself.

WHAT ADVICE DO YOU HAVE FOR SOMEONE INTERESTED IN STUDYING LANDSCAPE ARCHITECTURE?

Be a sponge and absorb as much knowledge as you can from your tutors and peers. Asking questions doesn’t make you stupid; it makes you brave. Starting work experience as soon as possible really helps in finding your career direction within the industry (and it also helps you find a job more quickly after you graduate). Work well with your team and support each other—it’s a small industry, so try to make some good friends. When tough times come, remind yourself of the passion you had on day one. Most importantly, have fun!

Aerial view of the Art Gallery of New South Wales’ new SANAA-designed building, 2022, photo © Iwan Baan

INTERNATIONAL COURSES & EXPERIENCES

At UNSW Built Environment, we offer all our students exciting and impactful learning opportunities in cities around the world. Students can take a term, or even a whole year, on exchange at our many partner institutions, or take a summer intensive course abroad for a few weeks.

In our international courses students learn to analyse, document and interpret the local urban condition and design novel responses that address social, cultural and environmental factors. Site and construction visits allow interaction first-hand with technologies, culture, methods, techniques and practices within a local context.

During these courses students have the opportunity to work collaboratively with their peers from international universities, and with local architects, designers, builders, planners and communities to tackle global challenges, and make a positive impact on cities around the world.

Students in Venice
Students in Hong Kong
International Site Visit In China
Street Life Studies Course in Cambodia
Students in Kyoto
Visit to Shibuya, Tokyo
Street Life Studies Course In Cambodia
Street Life Studies Course in Cambodia
Students on the Train to Busan, Korea
Students at the Anganwadi Project in India

DESIGN FUTURES LAB

Design Futures Lab (DFL) is a teaching and research lab and a very hands-on environment. Making is integral to all the disciplines of the Built Environment through the creation of physical artefacts that support the analysis, understanding and design of our cities and buildings.

UNSW is creating the largest network of connected makerspaces and workshops in Australia. A network of genuine collaboration and shared values. These values are centered on the principle of barrier free access to tools and tech for all Students, Staff and External Partners.

The UNSW Makerspace Network supports the University’s strategic goal of cross faculty collaboration, project-based learning, course integration of student led projects, industry engagement and building as an entrepreneurial ecosystem.

Large-scale Robotic 3D Printing
Timber Site Model
Design Futures Lab Staff
Students at the DFL
Using the robots at the DFL
Metal Workshop Hand Forming Fuel Tank
Clay 3D Printing Robotics
Metal Workshop

Environmental Statement

At UNSW Built Environment we have a commitment to ensuring all our students gain the knowledge, skills and empathy to tackle the climate crisis in their chosen careers.

We also recognise that our actions as an institution have an impact on the environment. Knowing this, steps have been taken to reduce the environmental impact of the Luminocity exhibition. These include:

1. Luminocity plinths and panels are designed as a ‘kit-of-parts’. This means they can be dismantled, stored and reassembled for future exhibitions, minimising waste.

2. All the exhibition components are mechanically fixed together with cardboard, requiring no adhesives or tape.

3. Printing is directly onto the cardboard, minimising the use of plastics, paper and vinyl.

4. All the cardboard is Australian made, 100% recycled, and sourced locally.

5. At the end of the cardboard’s life, it will either be used to make student models in our studios or sent to a local facility, pulped, and turned into new sheets of cardboard by the manufacturer.

6. UNSW sources all electricity used on campus from the Sunraysia Solar farm (located in Balranald, south-west NSW) using photovoltaics technology developed here at UNSW.

CREDITS

Exhibition Design and Development: James Hargrave, ABSTRACT8 www.abstract8.com.au

Exhibition Delivery and Curation: Luis Zaldy Gito BE Sessional Staff

UNSW School of Built Environment

Student Work Collection and Curation: Dr Cristina Ramos Jaime Lecturer, Computational Design

UNSW School of Built Environment

Branding and Graphic Design: Tom Douglas, Tom Douglas Design Suppliers

LiteCorp: Cardboard Supply

Photomart Printing and Framing: Material cutting and Printing

Carbon8: Catalogue Printing

Thank you to all the students who were selected and contributed their work to this year’s Luminocity exhibition and to all the staff and industry partners who supported our students in 2025.

Turn static files into dynamic content formats.

Create a flipbook
Issuu converts static files into: digital portfolios, online yearbooks, online catalogs, digital photo albums and more. Sign up and create your flipbook.