PORTAFOLIO DE ESTRUCTURAS III

Page 1

PORTAFOLIO RETAMOZOCHALÉN,MARIAMLUCIA COD:201820001 ESTRUCTURASIII ÁREA:TECNOLOGÍADELACONSTRUCCIÓNARQ.PALACIOSUBILLÚZ,JORGEEDUARDOING.BENDEZÚROMERO,LENINMIGUEL

1 2 SISTEMADEPÓRTICOS SISTEMADE CONFINADAALBAÑILERÍA 1 2 ÍNDICE

ESTRUCTURACIÓNENBASEAMUROSDEPÓRTICOSUNIDAD I

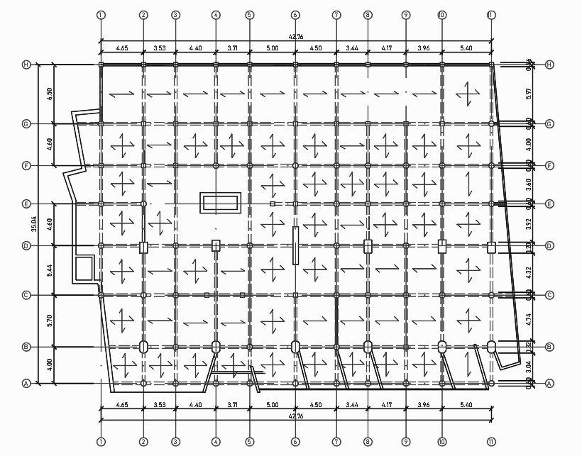
FICHATÉCNICA NOMBREACTUAL:HOTELSAVOY PROPIETARIO:PERSONANATURAL DIRECCIÓN:CALLECAYLLOMA224 DISTRITO:CERCADODELIMA CIUDAD:LIMA ÁREADELTERRENO:1389M2 ÁREACONSTRUIDA:10772M2 ARQUITECTO(S):BIANCOMARIO AÑO(S):1954-1957 FILIACIÓNCULTURAL:MODERNO USOACTUAL:OFICINAS-COMERCIO ESTADODECONSERVACIÓN:MALO INTERVENCIONES:MODIFICACIONES/ MANTENIMIENTO SISTEMAESTRUCTURAL:PÓRTICOS PARAMETROSSISMICOS:COSTA/ ZONA4/FACTORDEZONA0.45 HOTEL SAVOY DATOSGENERALES NOMBREACTUAL:HOTELSAVOY DIRECCIÓN:CALLECAILLOMA224 DISTRITO:CERCADODELIMA CIUDAD:LIMA ÁREADELTERRENO:1389M2 ÁREACONSTRUIDA:10772M2 FILIACIÓNCULTURAL:MODERNO USOACTUAL:OFICINAS-COMERCIO SISTEMAESTRUCTURAL:PÓRTICOS N°PISOS:12PISOS UBICACIÓN 02 ESTRUCTURACIÓNENBASEAMUROSDEPÓRTICOSUNIDAD I

DISEÑOARQUITECTÓNICO PISOPISO0102PISO03 PISOPISOPISO111111 A A’ B’ B’ CORTEA-A´ CORTEB-B´ 03 ESTRUCTURACIÓNENBASEAMUROSDEPÓRTICOSUNIDAD I

CONFIGURACIÓNDELHOTELSAVOY ALTURA: 37.70 m ANCHO: 35.04 m LARGO: 50.12 m EJE X: 50.12 EJE Y: 35.04 EJE Z: 70.30 PROPORCIONES: 50.12 37.7 = 10 7.5 50.12 435.0 = 10 7 37.70 35.04 = 7.5 7SMETRO SMETRO SMETRO SIMETRÍA: EsASIMÉTRICOvistoenlaforma,yaque.algunaspartedelvolumenno tienencontrapartes EnelEjeY:Nosimétrico PRESENTAROBUSTEZBAJA, DEBIDOAQUESUECUACIÓN DEROBUSTEZSEACERCA MUCHOAL“1” 50.12 37.70 = 1.33 > 1.00 04 ESTRUCTURACIÓNENBASEAMUROSDEPÓRTICOSUNIDAD I

La estructura del edificio es discontinua,yaque discontinuidadpresenta en 4toentreexistelosdiscontinuidadYlosdiafragmas.tambiénpresentaenpórticosporquedesfaseel3eroyelpiso. 3do1erPLANTADELPISOALPISO PLANTADEL4to PISOAL12moPISO COLUMNAS: ConcretoArmado F´C=280KG/CM2 VIGAS: ConcretoArmado F´C=210KG/CM2 LOSAALIGERADA: ConcretoArmado F´C=210KG/CM2 PLACAS: ConcretoArmado F´C=280KG/CM2 MATERIALIDAD 05 ESTRUCTURACIÓNENBASEAMUROSDEPÓRTICOSUNIDAD I

LOSA:6.50/.25=.26m----> .30 TIPOmDELOSA: Lm/Ln=6.50/4.65=1.40 ≥1.25 LOSA BIDIRECCIONALLOSAUNIDIRECCIONALALIGERADAALIGERADA ❏ ESPESOR Y PESO DE LOSA Cuadro obtenido del R.N.E. Norma E.020 ESPESORDELOSA: L/.25=6.50/.25 =0.26 0.30 m LOSA:4.65/.28=.18m ------>.17m TIPODELOSA: Lm/Ln=4.65/4.20=1.10≤1.25 BIDIRECCIONAL LOSA:5.40/.25=.21---> TIPO.25mDELOSA: Lm/Ln=5.40/4.20 =1.29≥1.25 UNIDIRECCIONAL LOSAALIGERADA 06 ESTRUCTURACIÓNENBASEAMUROSDEPÓRTICOSUNIDAD I PREDIMENSIONAMIENTO

LOSA LOSAUNIDIRECCIONALALIGERADAALIGERADABIDIRECCIONAL ESPESORDELOSA: L/.25=6.50/.25 =0.26 0.30 m ❏ ESPESOR Y PESO DE LOSA Cuadro obtenido del R.N.E. Norma E.020 LOSA:6.50/.25=.26m----> .30 TIPOmDELOSA: Lm/Ln=6.50/4.40=1.47≥1.25 UNIDIRECCIONAL LOSA:5.44/.28=.21m------> .20 TIPOmDELOSA: Lm/Ln=5.44/4.65=1.16≤1.25 BIDIRECCIONAL LOSA:5.70/.25=.22--->.25m TIPODELOSA: Lm/Ln=5.70/5.40=1.05≤1.25 BIDIRECCIONAL LOSAALIGERADA 07 ESTRUCTURACIÓNENBASEAMUROSDEPÓRTICOSUNIDAD I PREDIMENSIONAMIENTO

PLANTA

VIGAPRINCIPAL Altura:6.50/10=0.65m Base:0.65*0.5=0.35m h=0.65m b=0.35m VIGASECUNDARIA Altura:5.40/12=0.45m Base:0.45*0.5=0.25m h=0.45m b=0.25m 08

PLANTADEL 1erPISOAL3erPISO DEL 4to PISOAL12vo PISO

VIGA PRINCIPAL Altura:6.50/10= 0.65 m Base:0.65*0.5= 0.35 m h = 0.65 m b = 0.35 m VIGA SECUNDARIA Altura:5.40/12= 0.45 m Base:0.45*0.5= 0.25 m h = 0.45 m b = 0.25 m

ESTRUCTURACIÓNENBASEAMUROSDEPÓRTICOSUNIDAD I PREDIMENSIONAMIENTO

PLANTADEL 1erPISOAL3erPISO PLANTADEL4to PISOAL10mo PISO COLUMNASDERECONOCIMIENTO INFLUENCIADEÁREAS PLANTADEL 1erPISOAL3erPISO PLACAS PLANTADEL 1erPISOAL3erPISO 09 ESTRUCTURACIÓNENBASEAMUROSDEPÓRTICOSUNIDAD I PREDIMENSIONAMIENTO

TIPODE (EXTREMOS)COLUMNA ÁreaTributaria=4.75*4.85=23.1m2 #pisos= Predimensionamiento13 A-C4(1000*13*AT)/(0.45*280)==4064.66cm2

TIPODECOLUMNA(ESQUINERA) b=70 cm h=65 cm b=65 cm h=60 cm

AsumimosColumnas70cmx65cm= 4550cm2 10

AsumimosColumnas60cmx65cm =3900cm2

TIPODE (MEDIO)COLUMNA ÁreaTributaria=4.75*5.57= Predimensionamiento#pisos26.478m2=13 A-C3(1000*13*AT)/(0.35*280)==3639.656cm2

b=60 cm h=60 cm ÁreaTributaria=4.08*4.85=19.78m2 #pisos= Predimensionamiento13=(1000*13*AT)/(0.35*280) A-C3=3500cm2 AsumimosColumnas60cmx60cm=3600cm2

CONFIGURACIÓN DE EJES Y NIVELES MODELOINICIARNUEVO INTERNACIONALSISTEMADE MEDIDA,RESPECTO AMETROS,CM.RESPECTONORMAAL ACERO CODIGODEL ACEROCÓDIGO RESPECTONORMALO CONCRETOAL INGRESAR EL NÚMERODE ENGRILLASDIRECCIÓN(X)y(Y). SELECCIONARPARA ESTABLECERLASMEDIDAS ENTREEJES,CUANDOESTAS NOSONIGUALES. CONFIGURACIÓN DE EJES Y NIVELES DEFINICIÓNCONCRETODEL DEFINICIÓNDEL ACERO SMATERIALEDEDEFINICIÓN CONFIGURACIÓN DE MATERIALES PLANOINDICAQUESEGÚNGRILLASLASDEMEDIDASLASCOLOCARLOEL 11 ESTRUCTURACIÓNENBASEAMUROSDEPÓRTICOSUNIDAD I DESARROLLODELETABS

CONFIGURACIÓNDEEJESYNIVELES-RESULTADOFINAL PLANTA3D CONFIGURACIÓNDECOLUMNAS SELECCIÓNDE FRAME COLUMNAFORMASELECCIÓNSECTIONSDEDE SELECCIÓNDE ADD PROPERTYNEW 12 ESTRUCTURACIÓNENBASEAMUROSDEPÓRTICOSUNIDAD I

CONFIGURACIÓNDECOLUMNAS CONFIGURACIÓNDEVIGAS: SELECCIÓNDE FRAME FORMASELECCIÓNSECTIONSDEDEVIGAS SELECCIÓNDE ADD PROPERTYNEW 13 ESTRUCTURACIÓNENBASEAMUROSDEPÓRTICOSUNIDAD I

CONFIGURACIÓNDELOSAS: SELECCIÓNDESLAB SECTIONS SELECCIÓNDEADD NEWPROPERTY DIBUJODECOLUMNAS,VIGASYLOSAS: 14 ESTRUCTURACIÓNENBASEAMUROSDEPÓRTICOSUNIDAD I

15 ESTRUCTURACIÓNENBASEAMUROSDEPÓRTICOSUNIDAD I

ASIGNACIÓNDECARGASENEJEXYY: AGREGAMOS LOS PARAMETROS SISMICOS TANTO EN ELEJE X COMO EN COEFICIENTESY DE CORTANTE BASAL USADOS ASIGNACIÓNDECARGAS/VIVASYMUERTAS: CARGASMUERTAS CARGASVIVAS 16 ESTRUCTURACIÓNENBASEAMUROSDEPÓRTICOSUNIDAD I

ACELERACIÓN

Carga

INFORMACIÓNACONSIDERAR: - AMPLIFICACIÓN

Formula

17 ESTRUCTURACIÓNENBASEAMUROSDEPÓRTICOSUNIDAD I

Para establecer las cargas sísmicas primero debemos hallar el coeficiente de la cortante basal. Sísmica: para hallar el coeficiente de la cortante basal DE (Z) de la ubicación del edificio SÍSMICA (C)

ASIGNACIÓNDECARGAS

FACTOR

Identificación

PERFIL DE SUELO (S) FACTOR DE REDUCCIÓN SÍSMICA (R) ZUCS x g R Sa = Z: C:0.75R:S:U:g:0.459.8m/s21.01.055.40 Para R : R= Ro x Ia X Ip donde : Ip:Ia:Ro:80.750.90 R=8 x 0.75 x 0.90 = 5.40 Sa= 0.45 x 1.0 x 0.75 x 1.05 X 9.8 = 0.6 5.40 PARÁMETROSÍSMICO 18 ESTRUCTURACIÓNENBASEAMUROSDEPÓRTICOSUNIDAD I

ASIGNACIONESDECARGAS/PARAMETROSSISMICOS: EJE X - EJE Y GENERACIÓNDERECURSOSDEMASA: ESPECTRO RESPUESTA:DE GENERAMOS NUESTRAS TABLAS DE EXCEL, DONDE ESTARÁN ESPECTROSNUESTROSNORMATIVOS EN X YY 19 ESTRUCTURACIÓNENBASEAMUROSDEPÓRTICOSUNIDAD I

CASOSDECARGA: ESPECTRODERESPUESTA: EN X EN Y 20 ESTRUCTURACIÓNENBASEAMUROSDEPÓRTICOSUNIDAD I

COMBINACIONESDECARGA: Secrean7Combinaciones: SECORREELANÁLISIS: 21 ESTRUCTURACIÓNENBASEAMUROSDEPÓRTICOSUNIDAD I

STORYDRIFTS: SECORREELANÁLISIS 22 ESTRUCTURACIÓNENBASEAMUROSDEPORTICOSUNIDAD I

STORYDRIFTS: SEAUMENTÓELÁREADELASCOLUMNASPARACONTROLARLOSALTOSDRIFT SECORREELANÁLISIS 23 ESTRUCTURACIÓNENBASEAMUROSDEPORTICOSUNIDAD I

CONCLUSIONES

● EledificioSavoyubicadoeneldistritodeCercadode Lima,conunparámetrosísmicode0.6, manifiestauna estabilidaddesdeelprimerpisohastaeltercerpiso.

24

ESTRUCTURACIÓNENBASEAMUROSDEPORTICOS

● Seaumentóeláreadelascolumnasparacontrolarlos altosdrift.

RECOMENDACIONES

UNIDAD I

● APartirdelcuartoaldoceavopisomanifiesta inestabilidad.

● Serecomiendaaumentarlacantidaddecolumnas,o bienseinsertaríadosplacasenloslateralesdeledificio paralograrmayor estabilidad.

● Ademásesnecesarioaumentarelcuerpodelas columnasparaestabilizarlosdriftsypoderrigidizarmás laedificación.

UNIDAD II

ESTRUCTURACIÓNENBASEAMUROSDEALBAÑILERÍA

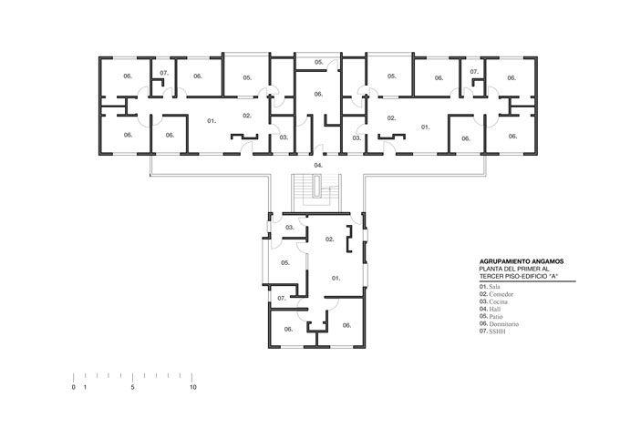
ARQ.SANTIAGOAGURTOCALVO NOMBREACTUAL:AGRUPACIÓNANGAMOS PROPIETARIO:PERSONANATURAL DIRECCIÓN:JESÚSMARÍA15072,PERÚ DISTRITO:JESÚSMARÍA CIUDAD:LIMA ÁREADELTERRENO:10,762.00m2 ÁREACONSTRUIDA:3,874.32m2 ÁREATECHADA:11.622.96m2 ARQUITECTO(S):SANTIAGOAGURTOCALVO AÑO(S):1848-1950 FILIACIÓNCULTURAL:CONTEMPORÁNEA/ MODERNA USOACTUAL:VIVIENDAS ESTADODECONSERVACIÓN:REGULAR,INCURIA CÓDIGODEMONUMENTO:4963 SISTEMAESTRUCTURAL:AlbañileriaConfinada PARAMETROSSISMICOS:COSTA/ZONA4/ FACTORDEZONA0.45 FICHATÉCNICA LATITUD: NOMBRE:LONGITUD:-12.0799-77.0454AGRUPAMIENTOANGAMOS DISTRITO: LOCALIDAD:LIMAJESÚSMARÍA DIRECCIÓN:JESÚSMARÍA15072,PERÚ 26 ESTRUCTURACIÓNENBASEAMUROSDEALBAÑILERÍAUNIDAD II

CONFIGURACIÓN 27 ESTRUCTURACIÓNENBASEAMUROSDEALBAÑILERÍAUNIDAD II

HORIZONTALX:ASIMÉTRICO VERTICALY:SIMÉTRICO REGULARIDAD: ELEDIFICIOESIRREGULARDEBIDOQUEFORMANOSE PIERDEALPASARDELOSPISOS. CONTINUIDAD: PRESENTACONTINUIDAD,YAQUEPRESENTA CONTINUIDADENLOSDIAFRAGMAS. ROBUSTEZ: SEPRESENTAESTAPARTECONLASIGUIENTE ECUACIÓN: 13.7025.99 =1.89 >1.00 CONLAECUACIÓNHEMOSPODIDOCOMPROBARQUEPRESENTAUNA ROBUSTEZALTADEBIDOAQUEELRESULTADOESMAYORQUE“1”. CONCRETOCICLÓPEO SOBRECIMIENTO:CONCRETOCICLÓPEO MURO:LADRILLOYCEMENTO COLUMNA:CONCRETO TECHO:CONCRETOARMADO PISOINFERIOR:LOSETA PISOEXTERIOR:CEMENTOYARENA ENTREPISO:CONCRETOARMADO COBERTURA:LADRILLO ESCALERA:CONCRETOARMADO BARANDAL:MADERA ZÓCALO:CEMENTOYARENA ACABADOMUROINTERNO:CEMENTOYARENA ACABADOMUROEXTERNO:CEMENTOYARENA MADERA CONCRETO LADRILLOARENA CEMENTOY CICLÓPEOCONCRETO

MATERIALES:

PLACASPORTANTESMUROSMUROSNOPORTANTESMUROSDECORTE MUROSESTRUCTURALES MEDIDAS ALFEIZAR:DE1.00m PARAPETOALFEIZARTABIQUES MUROS NOESTRUCTURALES PORTANTESMUROS MUROS PORTANTESNO PLACAS MUROS DE CORTE SENTIDODELALOSA 28 ESTRUCTURACIÓNENBASEAMUROSDEALBAÑILERÍAUNIDAD II

1 2 3 4 5 6 7 8 9 1 0 1 1 1 2 A B C D A B C D22211 202 3 19 4 5 6 18 7 8 9 10 11 17 16 15 14 12 13 32 42 52 DIAFRAGMAS 29 ESTRUCTURACIÓNENBASEAMUROSDEALBAÑILERÍAUNIDAD II

1 2 3 4 5 6 7 8 9 01 4151617181 91 02 12 3222 42 52 62 2 4351 ❏ CARACTERÍSTICAS DEL EDIFICIO La figura corresponde a la planta típica de un edificio de 5 pisos. ❏ Paso 1:Espesor mínimo de muros T=espesor efectivo mínimo T ≥ H/20 para las zonas 3 y 4 T ≥ H/25 para zonas 1 y 2 H = altura de muro zona (mínimoMuromínimoh=2.50mConsiderando42.5/20=0.125espesordeSoga0.13) ÁREATRIBUTARIA ESPESORDEMUROS 30 ESTRUCTURACIÓNENBASEAMUROSDEALBAÑILERÍAUNIDAD II

❏ Paso 4: Esfuerzo axial máximo ❏ Considerando muro de soga Peso Muro (Pm): EM(.13m) x L x H(2.50m) x P.Específ x n° de pisos Peso Viga Solera: 0.15(base) x 0.30(altura) x L x 2400 kg/m3 x n° de pisos ● Utilizando una hoja de cálculo se realiza el cálculo del esfuerzo axial para cada muro y cada dirección. ● Para esto es necesario determinar las áreas tributarias L : Longitud del muro fm: Pilas 31 ESTRUCTURACIÓNENBASEAMUROSDEALBAÑILERÍAUNIDAD II PREDIMENSIONAMIENTODEMUROS

32 ESTRUCTURACIÓN

PREDIMENSIONAMIENTODEMUROS

ALBAÑILERÍAUNIDAD II

Al desarrollar el análisis con los cambios realizados vemos que se ha disminuido la inconformidad y ahora la gran concordanciamayoríadelosmurospresentanconlanormaE. ENBASEAMUROSDE

DENSIDADDEMUROSENX DENSIDADDEMUROSENY 33 ESTRUCTURACIÓNENBASEAMUROSDEALBAÑILERÍAUNIDAD II PREDIMENSIONAMIENTODEMUROS

DESARROLLODELETABS

● Se comienza a colocar los datos de la albañilería Peso específico del muro :1900 Módulokg/m3 elasticidad:500*f’m(85)de kg/cm2 y el programa realiza la conversión.

CONFIGURACIÓNDEEJESYNIVELES

● Se comienza a colocar los datos del acero Fy =4200 kg/cm2 Peso específico por elasticidad:2.1x10*6Módulodefectode

CONFIGURACIÓNDEMATERIALES

ALBAÑILERÍADEFINICIÓNDEL

DEFINICIÓNDELACERO

se colocan las medidas de los ejes de acuerdo a los datos de plano. Se modifica las altura de los pisos en este caso de 2.50 m

NOPLAELCAINDIQUELOÚNSEGLASGRILLASDEDASMEDILASROCACOL

34 ESTRUCTURACIÓNENBASEAMUROSDEALBAÑILERÍAUNIDAD II

NTAPLA3D

● Se comienza a colocar los datos del concreto F’c =210 kg/cm2 Peso kg/cm2elasticidad:15100√f’cMódulokg/m3específico:2400de

DEFINICIÓNDELCONCRETO

COLUMNA VIGA PLACA MURODESOGA LOSAS Secolocanlosdatosdelas columnasenestecasode: 0.13mx0.13m Secolocanlosdatosdelas vigasde: 0.30mx0.13m Secolocanlosdatosdelas placasde0.20m Enestecasosecolocan losdatosdelmurode sogade0.13m. Secolocanlosdatosdelas losas unidireccionalesaligeradasybidireccionales. CONFIGURACIÓNDECOLUMNAS,VIGAS,LOSAS,MUROSY PLACAS 35 ESTRUCTURACIÓNENBASEAMUROSDEALBAÑILERÍAUNIDAD II

Una vez terminada la configuración de los materiales y datos correspondientes ,se comienza a dibujar las columnas ,placas y muros. .Se selecciona todos los puntos bases. .Por medio del menú “Assign/joint/Restraints” asignamos el tipo de soporte que se desea. .En el cuadro “joint Assignment Restraints “ y seleccionamos el empotrado apply y ok. 3D DE

APLICACIÓN

RESTRICCIONES 36 ESTRUCTURACIÓNENBASEAMUROSDEALBAÑILERÍAUNIDAD II

DIBUJODEELEMENTOSENPLANTAY

ESTRUCTURACIÓNENBASEAMUROSDEALBAÑILERÍAUNIDAD II 37

El paso siguiente es la creación de los tipos de carga que actuarán en el edifico que se define mediante patrones de carga,para esto seguimos usando comando Define

AGREGAMOS LOS PARAMETROS SISMICOS TANTO EN EL EJE X COMO ENY

ASIGNACIÓNDEDIAFRAGMAS

.

Asignamos diagramas rígidos a los puntos del entrepiso o a las losas. La asignación de diafragmas rígidos se realiza por piso,nos cercioramos de que se encuentre en one story. Seleccionamos las losas del modelo e ingresamos por el menú “Assigns/Shell/Diaphragms”

.

USADOSBASALCORTANTETESCOEFICIENDE

.

ASIGNACIÓNDECARGASENXEY

MUERTASCARGAS VIVASCARGAS ASIGNACIÓNDECARGASVIVASYMUERTAS

MASS

ESPECTRODEDISEÑO

● Para el consideramosmodeloel 100% del propio(¨dead¨).peso 100% de las cargas muertas y el 25% de las cargas vivas. ● En esta opción solo hacer clic en ¨specified load patterns¨ si hacen click en las demás opciones el programa estará duplicando la masa de la estructura. En norma0.25colocamosbuscamosloadLIVEYenmultiplier(seríael25%)segúnE.030ydamosOK. DEMASA( SOURCE)

● Laincorporacióndelespectrodediseñoobedeceestrictamentealaaplicacióndelartículo29.2.1elcualdepende devariosfactores,talcomoseindicaenlafórmula: ● AsignacióndeDatadelatablaexcel(espectrodeaceleracionesdelaformaperuanaE030-2018)

ALBAÑILERÍAUNIDAD II 38

CALCULO

ESTRUCTURACIÓNENBASEAMUROSDE

EN X EN Y En la ventana que se abre,donde dice ASCE 7-10 se desplegará y se busca la opcion que dice “ From File”,para tener la opción de poder importar el espectro desde el archivo guardado anteriormente .Luego Seleccionamos Add new Function. 0 0.2625 0.1 0.2625 0.2 0.2625 0.3 0.2625 0.4 0.2625 0.5 0.2625 0.6 0.2625 0.7 0.225 0.8 0.196875 0.9 0.175 1 0.1575 1.1 0.143181818 1.2 0.13125 1.3 0.121153846 1.4 0.1125 1.5 0.105 1.6 0.0984375 1.7 0.092647059 1.8 0.0875 1.9 0.082894737 2 0.07875 2.1 0.071428571 2.2 0.065082645 2.3 0.059546314 2.4 0.0546875 2.5 0.0504 ESPECTRO NORX Colocamos el nuestroespectroseleccionamosespectronombreyperiodovsValue.LuegoparaimportarnuestroseleccionamosBrowse.Buscamosarchivoydamosok. 2.6 0.046597633 2.7 0.043209877 2.8 0.040178571 2.9 0.03745541 3 0.035 3.1 0.032778356 3.2 0.030761719 3.3 0.02892562 3.4 0.027249135 3.5 0.025714286 3.6 0.024305556 3.7 0.023009496 3.8 0.021814404 3.9 0.020710059 4 0.0196875 4.1 0.018738846 4.2 0.017857143 4.3 0.017036236 4.4 0.016270661 4.5 0.015555556 4.6 0.014886578 4.7 0.014259846 4.8 0.013671875 4.9 0.013119534 5 0.0126 0 0.2625 0.1 0.2625 0.2 0.2625 0.3 0.2625 0.4 0.2625 0.5 0.2625 0.6 0.2625 0.7 0.225 0.8 0.196875 0.9 0.175 1 0.1575 1.1 0.143181818 1.2 0.13125 1.3 0.121153846 1.4 0.1125 1.5 0.105 1.6 0.0984375 1.7 0.092647059 1.8 0.0875 1.9 0.082894737 2 0.07875 2.1 0.071428571 2.2 0.065082645 2.3 0.059546314 2.4 0.0546875 2.5 0.0504 2.6 0.046597633 2.7 0.043209877 2.8 0.040178571 2.9 0.03745541 3 0.035 3.1 0.032778356 3.2 0.030761719 3.3 0.02892562 3.4 0.027249135 3.5 0.025714286 3.6 0.024305556 3.7 0.023009496 3.8 0.021814404 3.9 0.020710059 4 0.0196875 ESPECTRO NORY ● Definición de cortante Define/loaddinámico: case/add new case. generamos los casos para: SISMOS NORMATIVOS XX y SISMOS NORMATIVOS YY. ESPECTRODEDISEÑO DEFINICIÓNDECORTANTEDINÁMICO Se crean 7 Combinaciones: ● Para la combinación de cargas vamos a ¨Define Load Combinations¨ seleccionamos ¨add new combo¨, en combinación type será linear add. excepto para la combinacion sismo y envolvente que será del tipo envelope. en scale factor colocaremos su factor correspondiente. COMBINACIÓNDECARGAS 39 ESTRUCTURACIÓNENBASEAMUROSDEALBAÑILERÍAUNIDAD II

SECORREELANÁLISIS 40 ESTRUCTURACIÓNENBASEAMUROSDEALBAÑILERÍAUNIDAD II

3. SE IMPLEMENTÓ UNAPLACAMÁS PARALELAALEJE X EN LAZONADE LA ESCALERA ALINSERTARLOSCAMBIOSLASDERIVASSEREGULARIZANYSE RIGIDIZALAESTRUCTURA.DEESTAMANERATODASLASDERIVAS MÁXIMASCUMPLENCONLOREGIDOENLANORMA(DRIFTS<0.005O DRIFTS>0.0065COMOMÁX.) ESTRUCTURACIÓNENBASEAMUROSDEALBAÑILERÍAUNIDAD II 41

GRÁFICODELASDERIVAS

● Enelprimernivelmanifiestainestabilidad.

UNIDAD II

● LaAgrupaciónAngamosseencuentraubicadoeneldistritodeJesusMaría,con unparámetrosísmicode0.6,manifiestaestabilidadencasitodoslosniveles.

42 ESTRUCTURACIÓN

CONCLUSIONES

● Seinsertóunaplacaenlazonadelaescalerayseaumentaron2tiposde columnasdemayoresáreasparapoderestabilizarlosdrifts. ENBASEAMUROSDEALBAÑILERÍA

● Seaumentóeláreadelasvigaparacontrolarlosaltosdrift.

Turn static files into dynamic content formats.

Create a flipbook
Issuu converts static files into: digital portfolios, online yearbooks, online catalogs, digital photo albums and more. Sign up and create your flipbook.