PORTAFOLIO ACONDICIONAMIENTO AMBIENTAL II

Page 1

PORTAFOLIO RETAMOZOCHALÉN,MARIAMLUCIA COD:201820001

“Para ser arquitecto, tienes que ser dos cosas, optimista y curioso” Van der Rohe

Mies

ÍNDICE ELMEDIO,ELSERHUMANOYLAARQUITECTURA ANÁLISISDELAVIVIENDA CONSIDERACIONESTÉRMICASENELDISEÑO ANÁLISISDELACIUDADDEPUNO(CLIMAYLUGAR) CONSIDERACIONESLUMÍNICASYACÚSTICASENELDISEÑO PROTOTIPODEVIVIENDASOCIALENLACIUDADDEPUNO. 01 02 03

ANÁLISIS DEVIVIENDA 01 01.CLASIFICACIÓNCLIMÁTICA 02.PROYECTODEESTUDIO LOGRODEAPRENDIZAJE:Alfinalizarlaunidaddeaprendizaje, adecuadashábitatherramientasurbanomovimientolaselestudiantesoncapacesdeestablecerlasrelacionesentrevariablesclimáticas,lascondicionesdeconfort,yeldelsol,asociándoseadecuadamentealdiseñoyarquitectónico.Analizandoyutilizandolasbioclimáticasnecesarias,lasvariablesdelnaturalpararealizarlasrecomendacionesdediseñoaunarealidadconcreta. ELMEDIO,ELSER HUMANOY ARQUITECTURALA

Zona de clima semi cálido, desértico, con deficiencia de lluvia en todas las estaciones, con humedad relativa calificada como primavera y otoño amanece nublado hasta el mediodía, por otra parte en ese momento del día las nubes desaparecen gradualmente y se ve mayor

Debidopresenciaderayossolares.alacercaníaal mar presenta un climamuyhúmedo(2.20KM) PERÚ - LIMASANTIAGO DE ENERO FEBRERO MARZO ABRIL MAYO JUNIO JULIO 6 7 7 7 6 4 4 AGOSTO SEPTIEMBRE OCTUBRE NOVIEMBRE DICIEMBRE 4 4 5 5 6 OSCILACIÓNTÉRMICA MAPACLASIFICACIÓNCLIMÁTICA CARACTERÍSTICASCLIMÁTICAS Longitud:77°0'24''Oeste Latitud:-12°8'47''Sur Altitud:152msnm PRECIPITACIÓNEFECTIVA E=Desierto TEMPERATURAEFICIENTE b´1=Semicálido DISTRIBUCIÓNDEPRECIPITACIÓNA TRAVÉSDELAÑO d=Deficienciadeprecipitaciónen todaslasestacionesdelaño HUMEDADRELATIVA H3=Húmedo E(d) b'1 h3 CLASIFICACIÓNCLIMÁTICA01.01 01

Enhúmedo.lastemporadas de

V: Zona de control posible con ventilación.

horasdepormaneramesesSegúnlagrafíasepuedeapreciarqueenlosdeinviernoseproyectaelsoldeunadiscontinuadebidoalanubosidadyestamismadisminuyeenlaestaciónveranoporendeenestetiempohaymásdesol

ZONA CONFORTDE

Presenta predominancia de vientos en dirección suroeste, con una intensidad entre0,50y2.10m/s ysur,entre0.50y 3.60m/s.

IV: Zona de control posible con inercia en verano. INI: Zona de control posible con inercia en invierno/ sistemas de climatización pasivos. ED: Zona de control posible con evaporación directa.

AZIMUT

ALTURADURACIÓNDELDÍA

SOLSTICIO DE INVIERNO (21 JUN) -12 pm 3.99° 54.49° 11.25 h

SOLSTICIO DE VERANO (21 dic) - 12 pm 170° 78.48° 12.5 h

EQUINOCCIOPRIMAVERADE (21 SEPTIEMBRE) -12 pm 0.90° 77.38° 12 h

EI: Zona de control posible con refrigeración indirecta. ZONASYESTRATEGIASSUGERIDAS

EQUINOCCIO DE OTOÑO(21 marzo) - 12 pm 16.78° 76.74° 12 h

CLASIFICACIÓNCLIMÁTICA01.01 02

GRÁFICODERADIACIÓNANUAL UHORAS DE GRÁFICOSOL.OMBROTÉRMICO

ZONA DE CONFORT

DICIEMBRENOVIEMBREOCTUBRESEPTIEMBREAGOSTOJULIOJUNIOMAYOABRILMARZOFEBREROENERO

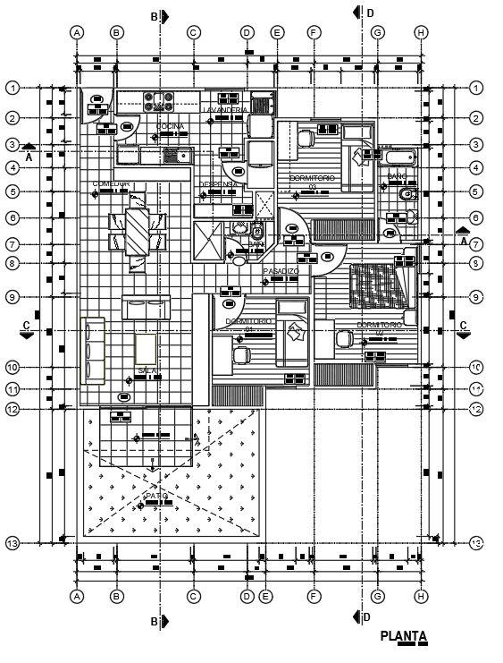
SOBREELPROYECTO: ELPROYECTOAESTUDIARSE ENCUENTRA EN UN CONDOMINIO DE 7 PISOS , EN EL PRIMER PISO SEGUNDO BLOQUE UBICACIÓN SURCO terrazasAv.laMerced1015,CondominioLasSantiagodeSurco ELEVACIÓN SUR ESEELEVACIÓN SUR SUROESTE 01.02 CORTESARQUITECTÓNICOSPLANTAYELEVACIONES ANÁLISISDELPROYECTODEESTUDIO 03

Por medio del patio se maneja una acción dinámica del viento , existe una buena Seventilacióndelpatioalasalaobservaunabuena ventilación del vienendormitoriosecundario02puestoquelosvientosconmayorfuerzaenesadirección.

➔ COCINA ➔ DORMITORIO ➔ BAÑO ➔ CIRCULACIÓN ➔ SALA ➔ COMEDOR ➔ PATIOS LEYENDA 01.02 ZONIFICACIÓN ANÁLISISDELPROYECTODEESTUDIO 04

La vivienda muestra presencia de más corriente de viento por la parte de los dormitorios principales y secundarios además no presenta problemas con captarlosingresosdelosvientosprovenientesdel oso queentraranporelpatiotraserodelapartamento. S

N

VENTILACIÓN

PROPORCIÓNDEVANOS MUROS 37.35% 95% VANOS VENTANAS- 2.10% 5% TOTAL 39.45 100% ELEVACIÓN SUR ESE ELEVACIÓN SUR SUROESTE 09:00 am 12:00 pm 16:00 pm 09:00 am 12:00 pm 16:00 pm 09:00 am 12:00 pm 16:00 pm SOLSTICIOINVIERNO VANODEVENTANAS VANODEPUERTA SOLSTICIO EQUINOCCIOVERANO ANÁLISISDELPROYECTODEESTUDIO01.02 05

VANO 01 obstrucciónPresenta todos los meses a partir delas10am obstrucciónPresenta todos los meses a partir de las11am. VANO 02 GananciaMenorGananciaRegularMayorGanancia cabezaMurosde corteMurosde SOBREELPROYECTO: El porcentaje de muros patioytienenLosviviendapredominanespesorLasesdeElaproximadamente.delacasaesdeun30%sistemaconstructivolaviviendaestudiadadeplacasplacastienenunde15cm,entodalamurosdecabezaunespesorde20estánubicadosenelDebidoaquecuentaconunsistemaconstructivodeplacas,setieneunabajagananciainternaencontrasteconlasedificacionesdealbañileríaconfinadaSeobservamenorgananciaenelpatiotrasero. ANÁLISISDELPROYECTODEESTUDIO01.02 OBSTRUCCIONES GANANCIATÉRMICA 06

09:00 am 12:00 pm44°ALTURASOLAR:ALTURASOLAR:79° 09:00 am 12:00 pm 32°ALTURASOLAR:ALTURASOLAR:55° PATIO JARDÍNCON DORMITORIO 2 RECIBE ILUMINACIÓN Y VENTILACIÓN NATURAL DORMITORIO 1 RECIBE ILUMINACIÓN Y VENTILACIÓN NATURAL SALA COMEDOR RECIBE ILUMINACIÓN Y VENTILACIÓN A TRAVÉS DE LA MAMPARADORMITORIO 3 RECIBE ILUMINACIÓN Y VENTILACIÓN NATURAL COCINA VENTILACIÓNILUMINACIÓNRECIBEYNATURAL Presentaunabuena iluminaciónnatural en los verano,correctamenteLalasala,losprincipales,ambientescomodormitorios,laelcomedorycocina.viviendaseenfríaeneldebidoasu ventilaciónnatural DORMITORIO2 RECIBEVIENTOELIMPACTODELDORMITORIO 1 DELRECIBEELIMPACTOVIENTO PASADIZO Y SH CARECEN DE ILUMINACIÓN Y VENTILACIÓN Presenta una iluminacióndeficiente en ambientes, como el enpresenciacalorseDuranteartificial.elcualeselcuartobaño,ladespensa,eldelavado,nipasadizo,paralosesnecesariousodeiluminaciónelinvierno,danpérdidasdedebidoaladevanosdirecciónalviento. ASPECTOS NEGATIVOS ASPECTOS POSITIVOS SOLST.VERANO SOLST.INVIERNO ANÁLISISDELPROYECTODEESTUDIO01.02 07

1. LACONDUCTIVIDADTÉRMICAES: 2. 3.4.01NºCUESTIONARIO 08

ANÁLISIS DELACIUDADDE PUNO(CLIMAYLUGAR) 02 01.ANÁLISISFÍSICO-NATURAL 02.ANÁLISISDELCLIMA 03.ANÁLISISARQUITECTÓNICO LOGRODEAPRENDIZAJE: Alfinalizarlaunidaddeaprendizaje el estudiante es capaz de manejar los conocimientos necesarios para la climatización térmica de los espacios arquitectónicos con criterio, conocimiento físico-térmico de los materiales, dominio correcto de herramientas y creatividad, con la realización de cálculos las ganancias y pérdidas que se producen según materiales y lugar de dentronatural(estudio.Soncapacesdeaplicarlossistemasdeclimatizaciónpasivos)paradeterminarlamejorsoluciónallugardeloscriteriosdelasostenibilidad.

DISEÑOTÉRMICASCONSIDERACIONESENEL

B(o,i)C'h3 Longitud:70°1'12''OESTE Latitud:15°50'31''SUR Altitud:3827msnm PRECIPITACIÓNEFECTIVA B=LLuvioso TEMPERATURAEFICIENTE C´=Frío DISTRIBUCIÓN PRECIPITACIÓNDEATRAVÉSDEL AÑO i=Coninviernoseco o=Conotoñoseco HUMEDADRELATIVA H3=Húmedo CARACTERÍSTICASCLIMÁTICAS PERÚ - PUNO UBICACIÓN Clima de tipo lluvioso, frío y con sólidaspuededepresiónMientrasAndeselBolivia,estáEnotoñoeinviernoseco.elverano,eltiempodeestaáreadeterminadoporlaAltadeelflujodehumedaddeleste,JetdeBajosNivelesalEstedelosyporfactoreslocales.que,eninvierno,unaaisladaennivelesaltosgenerarprecipitacionescomolanieve. TOPOGRAFÍA 4855msnm3750msnm 3000msnm 2250msnm 1500750msnmmsnm0msnm km50km100km150km200km250m300km350kkm400km450km500km553 3827msnm3822msnm 3820msnm 3818msnm 3815msnm km0.5 1km 1.5km 2km km2.5 3km km3.5 4km km4.5 CiudaddePuno Altitud:3827msnm Lagotiticaca Altitud:3810msnm. 10 ANÁLISISFÍSICO-NATURAL02.01 MAPACLASIFICACIÓNCLIMÁTICA

encuentra

altaoscilaciónunatérmica

promedio

humedad

debajodel80% 11 ANÁLISISDELCLIMA02.02 FENÓMENOSNATURALES TEMPERATURA/HUMEDAD

49%

Presenta-1C°,bajasmínimatemperaturaspresentandedurantededebidoasualtitud3827msnm,losmesesJunioyJuliomediasmásentre-0.9a

anual debido

Poseeunclimafrío

humedad

año

ENERO FEBRERO MARZO ABRIL MAYO JUNIO JULIO 9.5 9.2 9.2 11 12.8 14.2 14 AGOSTO SEPTIEMBRE OCTUBRE NOVIEMBRE DICIEMBRE 13.7 12.5 12.3 11.9 10.4 Presenta

En el año 2020, se produjo la temporada de heladas entre los meses de Mayo a llegandoSeptiembre, a mínimastemperaturasenJunio y Julio, de -0.3 a calor.manteniendoprotegenlluviasendeenLasrespectivamente.-1.3,heladassedanelperiodosecolaciudadyaque,temporadadelasnubesnosel

,

Juniocorrespondientemesesde14enlosmásfríosayJulio. un de relativa media de durante todo el dentro de la zonadeconfort. Tiene un seco a que su una media se por

clima

HORAS DE SOL 8 7 6 5 4 3 2 1 0

GRÁFICA

Eldiamascorto: 20 DE JUNIO : 00das: 11 hrs: 4mins :2s Eldiamaslargo: 21 DE DICIEMBRE 00das:13hrs :4mins :8s

RADIACIÓN DIRECTARADIACIÓN DIFUSA

Kwh/m2 9 8 7 6 5 4 3 2 1 0 GRÁFICA RADIACIÓNSOLAR(Kwh/m2) RADIACIÓNDIRECTA MÁSMÁX:AGOSTO(9.2Kwh/M2)PROPENSOANEBLINA RADIACIÓNDIFUSA MIN:ENERO (6.2Kwh/M2) MENOS PROPENSOANEBLINA

SALIDADE TEMPRANASOL:NOVIEMBRE 5:01AM TARDÍA: JULIO 6:09AM PUESTADE TEMPRANASOL:JUNIO 15:18PM TARDÍA: ENERO 18:20PM cantidadpromediodehoras delsolenPunoesde13HRS.

RADIACIÓN TOTAL Se dedujo que la presencia de radiación solar directa es prácticamente constante., la mayor inclinación del sol del invierno frente a la mayor nubosidad durante el verano, siendofinalmentelaradiaciónglobalmuyestablealolargo detodoelaño;marcandolasvariablesclimáticas

El80%demesesdelaño,enfebrero,abrila diciembre presentavientospredominantes endirecciónesteduranteeldía.Sin embargoenEneroymarzosepresenta similarcantidaddevientosduranteeldíay lanoche. La incidencia de rayos solares se observa 7 meses en el cuadrantenortey5mesesenelcuadrantesur.

JUL AGO SET OCT NOV DIC E E E E E E 5 5 6 6 6 6 ENE FEB MAR ABRIL MAY JUN DIRECCIÓN S E S E E E AFRECUENCI 5 5 4 4 5 5 12 ANÁLISISDELCLIMA02.02 VIENTOS GRÁFICO OMBROTÉRMICO JUN JUL/ MAYAGO/ABR IL MARZ/SE T OCT/ FEB DIC NOV/EN EMESES5MESES7 GRÁFICO SOLAR

Se encuentra alejado de la zona deconfort. Se recomienda un posiblecontrolcon inercia en invierno , pasivos.deproponerAsimismosistemasclimatización

ZONA DE CONFORT

IV: Zona de control posible con inercia en verano.

INI: Zona de control posible con inercia en invierno/ sistemas de climatización pasivos.

TEMPERATURA PRECIPITACIONES HUMEDADRELATIVA VIENTO

EI: Zona de control posible con refrigeración indirecta.

13 ANÁLISISDELCLIMA02.02 GRÁFICO DEGIVONI

MESES ALTA MEDIA BAJA TEMPORADADELLUVIA TEMPORADASECA ALTA MEDIA BAJA FUERTE DÉBIL

V: Zona de control posible con ventilación.

FACTORFAVORABLE BAJAOSCILACIÓN CUADRODECONFORT GANARCALOR GANANCIAOENFRIAMIENTO INDICADORES BAJAMEDIAALTA CLASIFICACIÓN

DICIEMBRENOVIEMBREOCTUBRESEPTIEMBREAGOSTOJULIOJUNIOMAYOABRILMARZOFEBREROENERO

TIPODECLIMA: FRÍOSECO OSCILACIONES:16º FACTORDESFAVORABLE: BAJATEMPERATURA. CLIMÁTICA

FENÓMENOS NATURALES:HELADAS CARACTERÍSTICASPRINCIPALESDELCLIMA

NOVIEMBRESETIEMBREAGOSTOFEBREROENEROMARZOABRILMAYOJUNIOJULIOOCTUBREDICIEMBRE

ED: Zona de control posible con evaporación directa.

● SECO.USANROPAPESADA:1.5CLODEBIDOALCLIMAFRÍO ● NOCHE:AUSENCIADEPERSONASENLASCALLES ● USAN SOMBREROS PARA PROTEGERSE LA CABEZA DELFRÍOINTENSO. ● MANGALARGAENINVIERNOYVERANO. Trigo Papa Tarwi ● Dieta alta en carbohidratos que consta del consumo de sopas y el aprovechamiento de cereales cereales de altura (quinua , cañahua ) y papa, paraelaumentodelaenergíafrentealfríohostil. ● Se da ganancia del calor mediante las comidas o sopas además de la hidrataciónpormediodelalimentodebidoalclimaseco ● células,Seconsumedichosalimentosporlaaltacantidaddeproteínas,pararepararlasy aumentarlamasamuscular. MATERIALESDE CONVENCIONALESCONSTRUCCIÓN Hormigónarmado Ladrillo Cemento Calamina Concreto MATERIALESDE NATURALESCONSTRUCCIÓN Adobe PiedraoSillar Madera Estera Paja Quincha 14 ANÁLISISSOCIAL02.03 IDIOSINCRACIA ALIMENTACIÓNYMATERIALESDECONSTRUCCIÓN

CARACTERÍSTICAS: LIGEREZA: por ende el módulo de vivienda del sísmicos.Putuco,esmásligero,resistiendomovimientos

Elputucotienelapropiedaddemantenerelcalory protegerdelfrío. Estabiliza el comportamiento de la temperatura interna, gana temperatura en las horas de mediodía y tarde, conservandola cuando la temperaturabajadurantelanocheymadrugada A. ASENTAMIENTO:MAYOR ASENTAMIENTO B. ADOSAMIENTO:MAYOR ADOSAMIENTO C. PESO:MAYORPESO D. PERFORACIÓN:MENOR PERFORACIÓN E. TRANSPARENCIA:MENOR TRANSPARENCIA F. AISLAMIENTO:MAYOR AISLAMIENTO G. TEXTURA: ALISAMIENTOMENOR H. COLOR:OSCURO I. VERSATILIDAD:MENOR VERSATILIDAD A. COMPACIDAD:MAYOR COMPACIDAD B. POROSIDAD:SINPOROSIDAD C. ESBELTEZ:MENORESBELTEZ

VENTILACIÓN ORIENTACIÓN:Porestasrazonesnoexsitelaposibilidaddeacumulacionde FORMAairefrioenlapartebajaespecialmenteenlasnoches:

PLASTICIDAD:tieneun39%deflexibilidad. DURABILIDAD: los Pitucos tienen un rango de 50 a 60 años de durabilidad, debido a que la champa,puedeenfrentarseaclimasextremos sinquesumorfologíaseveaafectada.

CARACTERÍSTICASDELEMPLAZAMIENTO ALTURARELATIVA ● PENDIENTE Seencuentraenlas llanurasaltasdel ubicadaTiticacaaunaaltitud mediade3800msnm Supendientenoestan marcada

impide la acumilacion de aire frio en la parte inferior ya que al ser muro inclinado el viento fluye con más eficiencia , reduciendo su permanenciaenlabase.

ILUMINACIÓN ORIENTACIÓNYFORMA: Impacto solar sobre ellos con tendencia perpendicular a diferentes horas deldíayalolargodelaño,estopermitequelaedificaciónsecalientemas adiferenciadeunelementoortogonaldelasmismasproporciones

15 ANÁLISISARQUITECTÓNICO02.04

ARQUITECTURAVERNACULAR:LOSPUTUCOS MATERIAL-LACHAMPATOPOGRAFÍA

bibliotecaimplementóevaporandofuncionaSeLagoLabibliotecaseencuentraa700metrosdelTiticacaencuentraa100mdelbosque,quecomoreguladordetemperatura,lalluviaquerecibe.Ademássevegetacióndentrodelaparaqueproduzcanhumedad.

del 16 ANÁLISISARQUITECTÓNICO02.04 ARQUITECTURAMODERNA :LAUNAP

OesteLafachadaprincipalestáubicadafrenteal

ORIENTACIÓN

MAYOR AISLAMIENTO G. TEXTURA:MENORALISAMIENTO H. COLOR:OSCURO I. VERSATILIDAD:MENOR VERSATILIDAD A. VOLUMEN:GEOMETRÍA MENORVOLUMEN FORMA: MÁSCOMPACTO PROPORCIÓN: MENORALARGAMIENTO DESNIVELES: MENORDESNIVEL COMPARTICIÓN:GEOMETRÍA MAYORCOMPARTICIÓN INTERIORDELEDIFICIO N Estos

A. COMPACIDAD:MAYOR COMPACIDAD B. POROSIDAD:SIN POROSIDAD C. ESBELTEZ:MENORESBELTEZ FORMADELEDIFICIO

Lo

solar se

interno,

incidencia solar

la

la

No

PIELDELEDIFICIO A. ASENTAMIENTO:MAYOR ASENTAMIENTO B. ADOSAMIENTO:MAYOR ADOSAMIENTO C. PESO:MAYORPESO D. PERFORACIÓN:MENOR PERFORACIÓN E. TRANSPARENCIA:MENOR TRANSPARENCIA F. AISLAMIENTO: mismos vanos captan el calor solar así ganando calor pero a la existe directa es por ello que no existen Tipologías de vanos son de gran escala y estos favorecen los espacios cual da lugar a tener edificios confortables que por dentro a través de captación pueda generar posibilidad

ventanas Oeste y Las

Tiene forma irregular o de plato roto que carece de organización, que se caracteriza por el crecimiento espontáneo. RELACIÓNCONELAGUA RELACIÓNCONLAVEGETACIÓN

FORMAURBANA

SALIDADE TEMPRANA:SOL NOVIEMBRE 5:01AM JTARDÍA: ULIO 6:09AM PUESTADE TEMPRANASOL: JUNIO 15:18PM TARDÍA: ENERO 18:20PM

ALTA MEDIA BAJA TEMPORADADELLUVIA

ALUMNOS

TEMPORADASECA ALTA MEDIA BAJA FUERTE DEBÍL TEMPERATURA PRECIPITACIÓN HUMEDADRELATIVA VIENTO

TECHOS: Materiales que otorguen el calor térmico. Sistema captador directo. PISOS: Materiales que atrapanelcalor. Menor cantidad de perforacionesovanos. (2%a 5%de abertura) INVERNADERO: Sistema semidirecto.captador VIDRIO+ VERDESELEMENTOS+AGUA=HUMEDAD

Volúmenescompactos. Sistemas pasivos de climatización. Volúmenes y muros conmenorporosidad.

PUNODECIUDADBIOCLIMÁTICAFICHAURBANISMOYARQUITECTURADEFACULTAD LÁMINA 01 CLASIFICACIÓNCLIMÁTICASEGÚNSENAMHI CÓDIGO B(o;I) C´H3 LEYENDA ZONACLIMÁTICA-DNC MESOANDINAZONA4PUNO LATITUD:15º50´31´´S LONGITUD:70º1´12´´O ALTITUD:3827msnm B: C´:LluviosoFríoi=Coninviernoo=Conotoñoseco H3:Húmedo GRÁFICOOMBROTÉRMICO GRÁFICODECONFORT RECOMENDACIONESDEDISEÑO GRÁFICODETEMPERATURA GRÁFICODEHRANUALES GRÁFICODEHORASDESOL PRINCIPALESCARACTERÍSTICASDELCLIMA

BAJAMEDIAALTA

PALMARICARDOUNIVERSIDAD IIAMBIENTALACONDICIONAMIENTO : Herrera-Retamozo-Talledo-Mamani-Lizonde GómezArq.DOCENTE:

TIPODECLIMA: FRÍOSECO OSCILACIONES:16º FACTORDESFAVORABLE: BAJATEMPERATURA. FACTORFAVORABLE BAJAOSCILACIÓN CUADRODECONFORT GANARCALOR GANANCIAOENFRIAMIENTO INDICADORES

FENÓMENOS NATURALES

ENERO FEBRERO MARZO ABRIL MAYO JUNIO JULIO AGOSTO SETIEMBRE OCTUBRE NOVIEMBRE DICIEMBRE

GRÁFICADECONFORTDECLIMAFRÍO:1. ELVALORDEUES: LACAPTACIÓNSEMIDIRECTAES: LAVENTILACIÓNDEEFECTOSIFÓNSEBASAEN : CUALDELOSINVERNADEROSESMÁSEFICIENTE PARAUNCLIMAFRÍODECAJAMARCA: 2. 3. 4. 5.02NºCUESTIONARIO 18

acústico)mediantepropuestasacústicaselelestudianteescapazdeidentificarlasconsideracionesparacorrectoplanteamientodesolucioneslumínicasydelosproyectosencargados.Puederealizarbrindandoelconfortintegral(térmico-lumínico-elusodetécnicas.

03 ENLUMÍNICASCONSIDERACIONESYACÚSTICASELDISEÑO PROTOTIPODEVIVIENDA SOCIALENPUNO 01.CLASIFICACIÓNCLIMÁTICA 02.PROYECTODEESTUDIO LOGRODEAPRENDIZAJE: Alfinalizarlaunidaddeaprendizaje

0m 2.5m 5m 7.5m 10m 12.5m 15m 17.5m 3828m 0.0m A ´A ´B B CORTE B-B´ 3828m 0.0m 6m 10m 15m 20m 25m 30m0m CORTE A-A´ ● Elloteseubicaenla Av.UrosChulluni191 ● Seencuentraal Noroestedelcentro delaCiudadde Puno Seubicaa 140mdelLago Titicaca LATITUD:15º50´31´´S LONGITUD:70º1´12´´O ALTITUD:3827msnm FACTOR CARACTERÍSTICA SOLUCIONES HUMEDAD Bajaanual Sobrecimiento (piedra) RADIACIÓN Alta Captaciónsolar PRECIPITACIÓN Moderado InclinaciónenTechos VIENTOS Bajaoscilación Morfologíaquedireccionelos vientosconjuntoala correctaorientación TEMPERATURA Frío Formacompacta,Alturasbajas Murosgruesos Poseeunamorfología inéditaalasquesepresentan enellugar.Asímismoseadaptaallugar,con estrategiassostenibles. Emplea elplásticocomopartedesu composición paraotorgarelconfort. ¿PorquéesunPROTOTIPO? LOCALIZACIÓN,UBICACIÓNYCONCEPTUALIZACIÓN LOCALIZACIÓNYUBICACIÓN CONCEPTUALIZACIÓN 03.01 20

MUROS (inerciaGRUESOtérmica) PATIOCENTRAL,QUE FUNCIONACOMO CAPTADORSOLAR PRIMERA PLANTA ESC 1/100 FORMACOMPACTAPOR EL CLIMA(FRÍO-SECO) SOLAR,COMOPATIOCENTRALCAPTADOR POR RADIACIÓNALTA CENITAL MUROSMEDIANTEINERCIATÉRMICALOSDEADOBE MUÑA: medicinal.PlantaSu tallo desderamificadoeslabasey posee pequeñas.hojas HIERBALUISA: Esuna seperenneplantayquecaracteriza. 8 m ADOBE: Materialqueretiene elcalor, emplearonseen muros. PIEDRA: Ensobrecimientos TEJAANDINA Seemplearonen techos. BOTELLASDE PLÁSTICO Enlostechos. MADERA Enpisos MATERIALES PLANEAMIENTOARQUITECTÓNICO03.02 21

SISTEMASDECLIMATIZACIÓN03.03 22

SALA / COMEDOR PATIO CENTRAL DORM O2PASADIZ O PASADIZO SALA / COMEDOR PATIO CENTRAL DORM O2PASADIZ O PASADIZO MARZO: JUNIO: DICIEMBRE: CORTE A-A´ Mediantelasventanascenitalesselograaprovecharlaluz Lacenital.mayorcantidaddeincidenciasolarseobtienealas9am favoreciendoal dormitorio02. PASADI ZO SALA COMEDOR/ PASADI ZO SALA COMEDOR/ PASADI ZO SALA COMEDOR/ MARZO JUNIO: DICIEMBRE: CORTE B-B´

912AMPM

16PM Enlossolsticiosdeveranoeinvierno,asícomoenelequinoccioelpatrio(8, 5mdediámetro),tieneincidenciasolarentrelas9hastalas16horas.

De 9 a 12 es donde obtiene mayor incidencia solar, sobretodo en marzo y diciembre.

MARZO JUNIO DICIEMBRE

SALA / COMEDOR PATIO CENTRAL DORM O2PASADIZO PASADIZO

Esto permitirá que el patio central funcione como un captador solar , liberando el calor acumulado en la noche, ayudando a generar un confort interior. 9 1612AMPMPM

MORTERO ( 2cm)ADOBE RECUBRIMIENTO YESO (2 cm DECÁMARA)AIRE SISTEMADEINERCIA: medianteel murodeadobe. VENTILACIÓNEILUMINACIÓN: ventanasycontraventanas esecualidadesElusodelacámaradeaire,mejoralastérmicasdelasparedeshechasconmaterial. protección.EltérmicasElusodelacámaradeaire,mejoralascualidadesdelasparedeshechasconesematerial.usodecontraventanassirvendeaislamientoy PERFILESDEPVC(2cámaras): U=2.2W/m2KMURODEADOBE: U=2.3W/m2K SISTEMADECLIMATIZACIÓNENPISO longitudinalmenteLosdurmientessecolocancada50cmy65cmtransversalmente. Rse=0.09 RPiedracantorodado=0.04 Rdurmientedemaderatornillo=0.62 Rentabladodemaderamachihembrado=0.21 Rsi=0.09 Rtotal=1.29 PISOENTABLONADODEMADERA :U=0.78 RAMADERAPIED LISTONES DE MADERA AIRE ESPESORDE 0.4cm ARTEFACTO POTENCIA w HORAS DEL DÍA UNIDADES TOTAL (kW / h ) Licuadora 500 0.5 1 0.25 Refrigerador 350 24 1 8.4 Plancha 25 0.5 1 0.0125 Televisor 200 5 2 2 Lavadora 150 1 1 0.15 ahorradorFoco 30 6 13 2.34 Radio 130 2 2 0.52 13.67 kW/h MODELO:Panelessolares500W BluesunPolicristalino DIMENSIONES:1.95x1.3x0.04 COSTO: S/. 1,173.00 POTENCIAGENERADAPORDÍA:2.0 KW/h CONSUMOKwh/día=13.67 POTENCIAGENERADAPORPANELES 13.67=2.0/2.0=6.8=7paneles ORIENTACIÓN=NORTE INCLINACIÓN=25º PANELESFOTOVOLTAICOS Produccióndeelectricidadenformadecorrientecontinua. INDICADORESDESOSTENIBILIDAD03.03 23

ESPESOR:0.29 PRECIO:1Kg(aproximado30botellas)=S/.8.00 Lasbotellasde plásticoseunen mediante liberamañana/acumulaestancadocámaragenerandorafia,unadeairelacualcalorenlastardeylaenlasnoches. LISTONES BOTELLAS DE PLÁSTICO TEJA ANDINA VIGA COLLAR Elmayoraportesedade 1a4amcon2.5ºC. Aireestanco:Rt=0.18 Paja: R=0.2 Tejaandina:R=0.3 Plástico:R=0.006 TECHOCONSISTEMADECLIMATIZACIÓN:U=1.46 FILTRADO ALMACENAJE REUTILIZACIÓN DEAGUA PARA REUTILIZACIÓNSANITARIOSSERVICIOSPARAAGUA DERIEGO INDICADORESDESOSTENIBILIDAD03.03 TECHOCONPANELESDEBOTELLAS 24

69.6 0.339 194.882.101.681.440.962.672.674.74.7 25.684.30.542.5 320 12121212121212 4.6 23,841.954.1462,073.82,326.681.2267.2853.831212 1188.61.5 1 10455.3 3 0.542.52.3 32025.684.3 TIPO TIPOTIPO112 3.53.5 0.961.44 2.672.67 1.682.10 224224TIPO TIPO12 14.97.5 575 12 2.3 768 2.2 127.59.59.5 10.961.44 350 350 200 375 EADOBPIEDRA 82326.64407682574.747.8831.9242.0535.63234.6215 10,541.43 38273827 Existeundesbalancede86.1W. Hayunpocomásdegananciadecalor quepérdida. SALA / DORMITORIOCOMEDOR02 INDICADORESDESOSTENIBILIDAD03.03 25

.

Turn static files into dynamic content formats.

Create a flipbook
Issuu converts static files into: digital portfolios, online yearbooks, online catalogs, digital photo albums and more. Sign up and create your flipbook.