Yuqi Duan Portfolio 2026

Page 1


YUQI DUAN

Syracuse University

Bachelor

24th Feb 2024

New York City. US

To whom it may concern,

This is a brief note to tell you about Yuqi (Kelvin) Duan, an undergraduate student at Syracuse University School of Architecture who aspires to gain an internship with your practice. Having had the pleasure of mentoring Kelvin during his time in my third-year design studio, I can conÞdently attest to his outstanding skills, dedication, and potential in the Þeld.

Kelvin possesses notable strengths that are integral to a successful internship. His exceptional conceptual abilities set him apart, particularly in his adeptness at grasping and interrogating the historical and environmental nuances of a site during the initial stages of ideation. Furthermore, his proÞcient sketching and form-handling skills enable him to effortlessly translate ideas from analog to digital mediums, culminating in meticulously crafted drawings and models.

More importantly, Kelvin is a self-motivated and idea-driven designer who consistently incorporates his ongoing design projects into daily contemplations, demonstrating a proactive approach to work. During the design process of our Housing Manhattanies prompt, every crit session with Kelvin was a delightful surprise, brimming with creative ingenuity conveyed through hand sketches, massing models, and drawings.

In addition to professional attributes, Kelvin is an eager scholar, constantly seeking knowledge across various disciplines and readily adapting to new methodologies. His exemplary leadership abilities shine through his active involvement in design competitions, where he often takes on roles as chair or key decision-maker.

Considering all these qualities, I wholeheartedly endorse Kelvin as an exceptional student deserving of every opportunity. I am conÞdent that he will bring valuable contributions to your practice, and I sincerely hope you grant him your utmost consideration.

Sincerely,

Co-founder & Principal, Balsa Crosetto Piazzi

Adjunct Professor, Syracuse University

+1 (646)-961-5762

rcrosett@syr.edu

https://balsacrosettopiazzi.com/

yduan15@syr.edu

+1 (646)-527-5519

www.linkedin.com/in/yuqiduan01 Syracuse, NY 13210

Yuqi (Kelvin) Duan

Yuqi is a Syracuse University student pursuing a Bachelor of Architecture (B.Arch'27). He has led a nationally award-winning design team and completed internships in Switzerland and China, including positions at Herzog & de Meuron in Basel and OPEN Architecture in Beijing.

He has contributed to conceptual design development, preliminary research, and BIM workflows. His interests focus on localized design strategies, material tectonics, and an intellectual dialogue with site context.

EXPERIENCE

Herzog & de Meuron Ltd. Arkitektur Praktikant, Basel, Switzerland

2022 NOMA Student National Competition, Nashville, TN

- Honorable Mention

2023 NOMA Student National Competition, Portland, OR

- Participant

2025 CityLab UCLA "Small Lot, Big Impact" Design Competition, Los Angeles, CA

- Student Honorable Mention

[Competitions] [Education]

B.Arch'27, Syracuse University SoA ׀ GPA 3.7

- Dean's List 2021-2025 - Outstanding Portfolio Scholarship

Class of 2021, Cambridge School of Weston, Boston, MA

[Exhibition]

"Laboratory of the Future" 2023 Venice Biennale

Conceptual design for a temporary mycelium pavilion situated in front of the American Pavilion, developed as part of the Syracuse Architecture Abroad summer program.

Facilitated conceptual design of POSCO Phase II in collaboration with architects. Developed visualizations for client meetings and drafted comprehensive client reports. Contributed to BIM workflow focusing on masterplan, sections, and building enclosures. Produced physical models and mock-ups at various scales.

OPEN Architecture Architectural Intern, Beijing, China

Contributed to the 75% Schematic Design phase of a residential project in Nanshan, Shenzhen. Supported conceptual design for a temporary installation at Powerhouse Parramatta Musuem, Sydney, Australia.

Syracuse University SoA NOMAS Chapter Design Team Chair/E-board member, Syracuse, NY

Led a design team of 5–10 students in the Barbara G. Laurie Design Competitions. Participated in monthly e-board meetings and organized seasonal events to promote the organization.

Acplus Institute of Shanghai Architectural Design & Research Co., Ltd. Architectural Intern, Shanghai, China

Collaborated with structural consultants on a pedestrian bridge design connecting a historical industrial plant to a TOD commercial center in Jingdezhen.

"Between the Land and Memory"
"Vertical Bungalow"

VERTICAL BUNGALOW

"Small Lots, Big Impact" Design Competition

Type: medium-size apartment Year: 3rd-year summer

Collaborator(s): Qilingli Rannia Zhang Site: Los Angeles, CA, US

Student Honorable Mention

FLIPPER? FLIPPED SHOW

Subverting the hierarchy between viewer and subjects

Type: cultural, infrastructure Year: 4th-year studio

Collaborator(s): Qilingli Rannia Zhang Site: Miami, FL, US

THE DRIFTER

Flood-resilient food co-op

Type: retail market Year: 2nd-year studio

Collaborator(s): Individual Site: New Orleans, LA, US

URBAN NEXUS

Co-housing Manhattanies

Type: residential, commercial Year: 3rd-year studio

Collaborator(s): Individual Site: Manhattan, NY, US

OTHER WORKS

Professional Work & Competition

Internship WorkOpen Architecture, Beijing, China

Honorable Mention2023 NOMAS Barbara G. Laurie Design Competition

FLIPPER? FLIPPED SHOW

An attempt for subversion a manifesto a dance

This site was once a theater for a borrowed wildness, where the celebrated intelligence of dolphins was framed as entertainment beneath a towering citadel of bleachers. That structure was a manifesto in wood and concrete: a vertical order declaring humans as detached spectators, life as scheduled spectacle, and the complex estuary as mere backdrop. It was an architecture of separation, elevating the gaze to a position of dominion while obscuring the authentic, interwoven rhythms of the brackish ponds and the open sea. This was not a dialogue with place, but a monologue imposed upon it.

We propose an inversion of that historical hierarchy . The new architecture relinquishes its podium, descending to meet the water at its own level. It becomes a porous framework:a series of passages, platforms, and thresholds designed for subtle mediation. The rigid stage is dissolved into a wandering path that traces the land’s forgotten gradient to the mangrove.

Type: cultural, infrastructure

Year: 4th-year studio

Instructor: Pablo Sequero

Collaborator(s): Qilingli Rannia Zhang

Site: 4400, Rickenbacker Cswy, Miami, FL

Our intervention, thus, begins with a question of atonement and realignment. How can architecture not occupy, but open? How can it foster encounter instead of exhibition ?

In this way, we seek to repair the fundamental disconnect . The new structure is a careful incision, stitching the torn edges of land and sea back together. It is an instrument for listening, built to amplify the enduring pulse of the site itself—a pulse that long precedes the spectacle and will patiently outlast it. This is an architecture of humility, facilitating a renewed and reciprocal relationship with the living world.

TECTONIC STUDIES

[An Obsolete Platform]

A stilted path cast far into the sea. Fulcrum firm-fastened on the reef.

A lattice, a frame— muscular, precise, yielding only to salt's slow rust.

And yet, how laughable: the gentlest current mocks its strength.

Each wave resounds through its bones like cymbals struck in furious unison.

It is hurled high, joints clattering like brittle bones in a spineless body.

Then the tide withdraws. And the dock, magically, rediscovers its balance on a chance corner of the reef—

a miracle for no eyes.

Our preliminary studies began by reading the site's adjacent shoreline terrain not merely as landscapes, but as the basis for an imaginary archipelago —a speculative field condition of rock and tidal memory. This conceptual ground became the foundation for exploring how waterresilient structures might interact with such a condition.

We asked how architecture could engage as a peer within this dynamic system. Rather than resisting the sea as an adversary, we envisioned structures that acknowledge and incorporate tidal rhythms , letting water flow through permeable frames, allowing platforms to float or settle with the swell, and creating spaces that frame the dialogue between solid rock and liquid motion.

TEMPORAL TECTONIC STUDY MODEL

[Existing Flipper Show Site]

Bisected by a skeletal, temporary floating bridge, the old dolphin pool exists as a poignant tableau of dual confinement. This narrow causeway does not guide; it severs, its path ending in abrupt and deliberate futility against the solid mass of the bleacher and the dense, tangled wall of the mangroves. The intended pilgrimage to the sea is cut short, physically trapping visitors within a manufactured landscape, caught between the gaze of the empty stands and the impenetrable, living forest.

This architectural intervention is a direct, and damning, conversation with the site’s past. The bridge’s false promise of passage mirrors the pool’s original, tragic purpose: the incarceration of dolphins. Here, the memory of those captive animals is made palpable. The water, once a prison for marine life, now becomes a stage for a shared, symbolic entrapment. The human spectator is made complicit, transformed from a free-willed observer into a participant in a constrained environment. The circularity of this experience is inescapable; the very water that held the dolphins now reflects a new form of captivity. In this transformed space, the distinction between jailer and jailed blurs, leaving both human and the ghost of the animal, symbolically, with no way out.

CURRENT SITE CONDITION

INTERVENTION + STRATEGIES

"The

Green Core"

The bleachers are no longer objects for spectacle but are enveloped with native vegetation, dissolving their hard edges back into the landscape. Within this re-greened landform, we have inserted four submerged sauna rooms, using the existing staircases for access to create intimate, sensory experiences focused on the natural environment.

They frame the serenity of mangrove oasis, the lunar pull on the waterline, the resilient push of cordgrass through stone. The visitor is repositioned from spectator to witness, and perhaps, to participant.

Concept Massing Model 1'=1/32"

"The Axis"

A central bridge, reclaimed from, structurally reinforced over, and extended from the former temporary buoyant bridge at the center of the dolphin pond, serves as the primary axis of the project. It guides movement from the entrance toward the ocean and ultimately connects to a slide that descends into a mobile sea pool. Because swimming in the existing ponds is prohibited, a new sea pool is introduced and enclosed by a ring of retaining stones to accommodate diving activities.

"The Skin"

We operate on the principle that “the site is the quarry,” treating the existing infrastructure as both material and foundation. Rather than erasing or completely transforming it, we propose a new “skin” or veil that overlays and reinterprets what is already there. This approach resists the imposition of a single, universal geometry across the site; instead, it develops a series of nuanced, context-specific strategies for each functional structure.

Schematic figure-ground diagram

Human-nature & spectator-object relationship in the past

Schematic figure-ground diagram

& spectator-object relationship now

BLEACHERS ADAPTATION

"The Billboard"

On the southern bleacher, oriented toward the ocean, we reconceived the structure as a billboard that actively communicates with the waterfront. It performs a dual role—a viewing platform high above ground and a projected façade toward the sea . Its stepped geometry and elevated profile were deliberately emphasized to capture the attention of those approaching by boat , transforming it into a recognizable marker along the shoreline.

From a distance, the bleacher reads as a horizontal sign of arrival, signaling the site’s identity before one even reaches the shore . This gesture reinforces the project’s dialogue between land and water, establishing a visual and spatial connection that situates the building within its broader maritime landscape.

Sauna Bleacher Chunk Model 1'=1/16"
Ship View from the Sea
Long Section A - A towards the sea-facing "billboard" bleacher

BLEACHERS ADAPTATION

Seaside Bleacher Contractable Canopy Attachment

"The Tuxedo"

At the heart of the intervention, a tide responsive kinetic structure creates a direct dialogue between architecture and ocean. A cable and pulley system connects a floating sea pool to a tensile textile canopy on the roof. As tides move the pool, the motion is transmitted, causing the fabric canopy to rise and fall in a slow, continuous rhythm.

Beneath it, the sheltered gray space breathes in response, "inhaling" and "exhaling" with the lunar pulse. Light filters through the shifting membrane, animating the ground with moving patterns.

This inversion of the site’s history makes the ocean the principal actor and the architecture a sensitive participant. The structure translates the immense, invisible force of the tides into an intimate, somatic experience, replacing a stage for spectacle with a space for sensory connection to the enduring rhythms of the natural world. and mechanical poetry.

BLEACHERS ADAPTATION

[Low Tide - 10 a.m. & 5 p.m. Daily]

[Low Tide - 7 a.m. & 8 p.m. Daily]

A Dynamic Sea Pool - Canopy System

The diurnal tidal pattern of Biscayne Bay exhibits a winter range exceeding 3ft, with high tides occurring near 10 a.m. and 5 p.m., and corresponding lows around 7 a.m. and 8 p.m. These two daily cycles produce pronounced temporal variations in the tension of the canopy's suspension cables. As the cables systematically tighten and slacken in response, the attached mobile sea pool translates precisely along the axis of the bridge, traversing a horizontal distance of 100 ft. Its farthest reach coincides with the lowest tide in the afternoon, positioning the pool adjacent to the waterslide platform at the bridge's terminal. The pool’s journey becomes a direct reflection of lunar and hydraulic forces, making the passage of time and the pulse of the estuary legible in the movement of the structure itself.

BLEACHERS ADAPTATION

"The Recluse"

The two inland bleachers facing the biogenic pond have been repurposed as hubs for wellness, recreation, and professional gatherings . Four individual timber sauna units are integrated into the existing concrete structure using a dedicated frame & tensile system. To create ample space for leisure activities, three of the original five concrete post-and-beam sections were carefully removed prior to installation. The salvaged material from these components are repurposed, broken down into gables and packed within a linear foundation that supports the new floating central bridge.

View of the sauna structures from the rear of the pond-side bleacher

BLEACHERS ADAPTATION

View of the "green slope" from the front of the pond-side bleacher

BLEACHERS ADAPTATION

"The Green Shed"

A new roof system replaces the former steel sheathing, employing a durable ETFE membrane stretched across an inverted bowstring truss structure. Strategically tilted 30 degrees toward the pond , this configuration manages runoff to protect the programmatic space at the bleacher's rear while functioning as a rainwater harvesting system for irrigation. In a sustainable reintegration of materials, the existing steps have been converted into planters for endemic vegetation . This intervention creates the visual effect of a seamless, vegetated landform cascading from the bleachers into the aquatic landscape. Accessed exclusively from the rear, the sauna units offer users an uninterrupted vista of the "green core." The decking within each saona repurposes the original concrete stepping, creating an extended platform for reclining and contemplative engagement with the landscape.

BLEACHERS ADAPTATION

Spatial Potential

The existing bleacher structure utilizes a simply supported concrete beam system, capped by a steel foil roof slanted toward the rear for drainage. This configuration overlooks the spatial potential beneath the seating area, which remains underutilized and disconnected from user activity concentrated at the stage front. A comprehensive makeover is required to holistically integrate this vacant volume, transforming it into functional space while incorporating a functionally sustainable system for an ecologically responsive facility.

Optimized Climate

The adapted bleacher structure organizes distinct programs through corresponding material strategies. Sauna units extending from the concrete stage are set upon a brick hearth. This masonry mass, together with the existing concrete, serves as an effective thermal body to maintain a hot interior micro-climate. The hearth is shaped as a barrel vault, which isolates heat from the resting area below to keep it cool. To serve new programmatic needs at the rear, the ETFE roofing now slopes in the opposite direction for water drainage. Below the saunas, segmented drywalls built in 15ft modules contain auxiliary leisure spaces, with circular cutouts to allow for through ventilation

"The Causeway"

The floating bridge is reimagined as a linear causeway that extends into the ocean, linking several programmatic zones within the masterplan. Its elongated form creates a continuous promenade that culminates in a far terminal, housing a sightseeing platform and a slide descending into a mobile swimming pool suspended from the "Tuxedo" system. This structure transforms walking into a deliberate, almost spiritual journey: a passage where movement feels both inevitable and measured, shaped by the rhythmic expanse of the sea and sky. In this setting, the act of traversal becomes an exercise in perception, framing views and sequencing encounters in a narrative of approach and arrival.

Bridge - Beach Section

Bridge - Pond Section

Changing Room & Indoor Swimming

Bridge - Stair Stepping
"Tuxedo' Canopy

[Changing Room & Indoor Swimming Pool]

Section Bridge - Single Decker]

"Cradle to Cradle"

Beneath the waterline, the bridge’s structural footing incorporates gables repurposed from the removed concrete beams of the original bleachers. These submerged elements function as artificial reef substrates, encouraging colonization by oysters and coral worms. This biodeposition not only fosters marine habitat but also biologically reinforces the foundation through natural calcification.

Above the surface, the bridge transitions from a single-level to a double-level configuration as it extends seaward. This elevated pathway allows visitors to ascend gradually along one side, culminating at the terminal platform featuring the waterslide. Upon re-entering the bridge from the swimming pool, the return journey follows the lower level, creating a continuous, intuitive loop that separates arrival and departure flows while framing distinct visual and experiential relationships with the surrounding seascape.

[Beach
[Ocean Section Stair Stepping - Double Decker]
[Pond Section Bridge - Single Decker]
Indoor Swimming Pool
Recycled Concrete Aggragates

Design the Demise

The conception of the "Flipper? Flipped Show" project embraced a complete life cycle, from its purposeful design inception to its orchestrated dissolution. Recognizing the inherent vulnerability of its lightweight, economical frame structures to Florida's frequent storms and hurricanes, the installation was conceived as intentionally temporary. This transience is not viewed as a shortcoming but as a source of metaphysical and aesthetic value, where gradual decay and disassembly become integral chapters of the architectural narrative.

We envision a specific, resonant sequence of demise. The tensile "Tuxedo" canopy is projected to reach its structural limit during an extreme tidal surge or flood event, eventually shearing away. What remains is its stark, skeletal frame: a grandiose, tacit billboard standing as a monumental relic that silently narrates the site's climatic history and former use. This process of subtraction reveals a new form and a new meaning.

The endpoint of this designed decay is a grand ecological integration. Given current sea-level rise projections, the entire site will eventually succumb to permanent inundation, merging all its water elements into a continuous lagoon Stripped of their lighter auxiliary structures and sauna houses, the robust concrete bleachers will endure as a submerged armature. These ruins are destined to become a foundation for new life, actively fostering coral colonization and evolving into a vital component of a nascent lagoon ecosystem. Thus, the project completes its cycle, transitioning from a temporary venue for human gathering to a permanent substrate for marine regeneration.

"ASHES TO ASHES, DUST TO DUST"

VERTICAL BUNGALOW

"Small Lots, Big Impact" Design Competiton

Type: Medium Size Residential

Year: 4th-year Summer

Instructor: Independent Work

Collaborator(s): Qilingli Rannia Zhang

Site: East Hollywood, Los Angeles

Award: Student Honorable Mention

The "Small Lots, Big Impacts" initiative, led by cityLAB UCLA in collaboration with the City of Los Angeles, confronts the city's intertwined housing affordability crisis and climate vulnerabilities, particularly in the wake of devastating wildfires . It challenges architects, designers, and students to reimagine the future of urban living by creating innovative, resilient, and community oriented housing models for small, underutilized public lots

The design competition is structured around two distinct site categories, "Gentle Density" for infill lots and "Shared Future" for missing middle housing , each presenting unique opportunities for sustainable densification. Winning proposals will be judged on key objectives including staying power, livability, performance, resilience, and adaptability.

The goal is to generate replicable, cost effective prototypes that demonstrate how Los Angeles can gently densify its residential fabric, expand homeownership, and foster connected neighborhoods. This initiative aims to translate visionary design into built reality, ultimately creating a blueprint for addressing housing shortages and enhancing community resilience on thousands of similar parcels across the city and beyond.

Short Section through Ground-floor Communal Cafe

SMALL LOTS BIG IMPACT

Excessive Lots

Thousands of small, underutilized lots, both publicly and privately owned, exist across Los Angeles, representing a vast opportunity for new housing development. By offering a selection of its own parcels, the City of Los Angeles is strategically piloting innovative housing models intended for replication on private lots throughout the region. The Small Lots, Big Impacts initiative aims to demonstrate how to achieve beautiful, efficient, and contextually sensitive construction to gently densify the city's characteristic low rise neighborhoods.

View of Ground Floor Communal Space

Vertical Street"

The defining communal spine is a zigzagging corridor that weaves vertically around skylights on alternating floors, drawing daylight deep into the plan and creating a rhythm of illuminated spaces. With two access points per level, this path enhances orientation and accessibility. Its dynamic geometry naturally slows movement, forming informal gathering pockets that foster unplanned encounters. Functioning as a social condenser, it acts as a vertical street that encourages connection and dialogue among residents.

Shared Future Site C is a narrow lot in West Hollywood, oriented along a northwestsoutheast axis. Its immediate adjacency to two prominent urban passageways calls for a responsive and engaging architectural solution. This can be achieved through deliberate massing and thoughtful articulation of the façade to create an inviting presence within its dynamic context.

The façades addressing the commercial corridor and the southern edge are deliberately tapered at their base. This sculptural gesture opens the building visually and spatially toward the pedestrian realm, creating an engaged and inviting streetscape presence. The design responds directly to the unique conditions of the alleycorner site, mediating between the active corridor and the more intimate scale of the adjacent lane. Through this considered formal strategy, the architecture frames a transitional experience, employing material and massing to foster connection while thoughtfully navigating the site’s specific urban constraints.

The design carefully scales the building to harmonize with its surrounding context. It comprises a mix of modular unit types— including studios, two-story one-bedroom units, and three-story two-bedroom units—for a total of ten residences. This variety supports diverse living needs while maintaining a coherent architectural volume. At ground level, the program expands to include a community library and café These amenities activate the street edge, fostering social interaction and providing shared resources that integrate the building into the daily life of the neighborhood.

A 45-degree rotation introduces dynamism to the modular massing, activating its relationship to the street and fostering a more engaging urban dialogue. This formal move is complemented by a spatial strategy of stacked and interwoven public and private volumes. This layered arrangement reflects the communal ethos of Southern California’s bungalow courts, translating the traditional shared courtyard and collective living model into a contemporary, vertical expression.

Living, Dining, Cooking
Showering, Sleeping
Reading, Social, Cafe

"Earthen Refuge"

The primary structural system consists of a steel frame, complemented by shear walls constructed from recycled oriented strand board (OSB) panels, promoting both strength and sustainability. Rammed earth bricks, prefabricated using locally sourced clay, are installed between the joists. These bricks serve as thermal mass, offering excellent heat retention and contributing to passive heating and cooling throughout the year, thereby enhancing the building’s energy efficiency and environmental performance.

The facade uses easily affordable corrugated steel sheets to reflect solar radiation during mid-summer. Besides aesthetics, this material choice directly responds to the region’s escalating wildfire risks by providing a non-combustible exterior layer that enhances the building’s resilience.

First Floor Single Unit: Living, Cooking, Dining, Public
[First Floor Plan]

SMALL LOTS BIG IMPACT

The private bedroom is conceived as a warm, flexible retreat defined by natural materials and soft light Exposed timber framing, textured fiber panels, and a gently arched ceiling emphasize material honesty and craftsmanship while creating a sense of enclosure.

Full-height glazed doors open to a small balcony, allowing daylight and fresh air to permeate the space. Translucent curtains and textured glass provide privacy while maintaining a calm, ambient atmosphere. Lightweight partitions, open shelving, and low-profile furniture loosely define areas for sleeping, working, and storage, supporting adaptability and everyday comfort.

Second Floor Single Unit: Sleeping, Studying, Showering, Private
"Enfolded Corner"
[Second Floor Plan]

URBAN CONFLUENCE

Housing Manhattanies: Lower East Side Co-housing Design

Type: Residential, Commercial

Year: 3rd-year studio

Instructor: Rocio Crosetto Brizzio

Collaborator(s): Individual

Site: 129 Delancey Street, Manhattan, NY

Situated in Manhattan’s Lower East Side (LES), this cohousing project draws direct inspiration from the area’s longstanding immigrant history, which has defined its vibrant, layered character over generations. Fostering an inclusive community is central to the design, which organizes three distinct residential volumes around a series of shared courtyards to accommodate diverse household sizes. These residential units, facing Essex Street, are intentionally oriented inward to promote resident interaction and a shared sense of place, supported by dedicated coliving spaces that strengthen social interconnectedness.

Further encouraging engagement with the urban fabric, units along Rivington Street provide residents with panoramic views, inviting them to connect visually and experientially with the neighborhood’s dynamic energy. Elevated above street level, the project’s transparent glass volume on the ground level embodies a principle of architectural and social transparency, while offering a thoughtful response to urban pressures such as gentrification. This elevated structure houses flexible commercial and communal spaces, serving as both a bridge and a beacon that physically and symbolically connects residents to their surroundings.

By thoughtfully integrating historical legacy with contemporary design, the project demonstrates a dual commitment to honoring the neighborhood’s cultural identity and thoughtfully embracing its ongoing evolution. In essence, this Lower East Side cohousing initiative stands as a physical manifestation of diversity, community, and intentional inclusivity, reflecting the area’s rich past while contributing to its continuing urban narrative.

PRECEDENT

Name: 149 Rue des Suisse Apartment Buildings

Architect: Herzog & de Meuron

Year of Completion: 1997

Plan v.s. Facade

The housing project in Paris's 14th arrondissement is defined by two distinct urban conditions: the street-facing blocks along the Rue des Suisses and the Rue Jonquoy, and the interior courtyard space bounded by high fire walls at the rear, known as the îlot.

The two apartment buildings located on the Rue des Suisses and the Rue Jonquoy are integrated into the continuous street frontage, a typology characteristic of housing blocks throughout Parisian arrondissements. The relatively homogeneous façades of the adjacent buildings are organized by a strong vertical rhythm. As is common in many 19th-century Parisian quarters, this repetition along the street conveys a sense of ordered elegance, even when individual structures are not remarkable.

"Urban Hub"

The masterplan's layout is designed to channel pedestrian movement from several adjacent streets, guiding this flow toward a central point of convergence. This intentional orchestration of circulation creates a dynamic central courtyard, establishing it as a vital urban hub for gathering and social exchange.

Furthermore, the interstitial zones situated between the building's primary outer envelope and the private residential units enhance both the architectural character and the practical utility of the complex. These grey spaces serve a dual purpose: they articulate the façade with depth and texture, while also providing functional buffers that improve privacy, mediate environmental conditions, and offer residents valuable semi-private outdoor areas.

Shading Mechanism

The central rowhouses draw conceptual inspiration from the narrow, intimate alleyways characteristic of historic Paris. This architectural homage is complemented by functional innovation: partially open balconies are enclosed with rollable sun shades, transforming these transitional spaces into sheltered, communal leisure areas within the building's fabric.

Moreover, the project actively contributes to urban ecology through the integration of green roofs and cultivated courtyard vegetation. These features not only increase the city's green coverage ratio but also promote environmental sustainability by mitigating heat island effect, managing stormwater, and enhancing biodiversity.

[Axonometic plan rendering showing facade shading scheme]

PRECEDENT STUDY

The project promotes social and demographic inclusivity through a varied composition of residential units, encompassing spacious three-bedroom family apartments alongside more compact one-bedroom configurations. This range accommodates diverse household sizes, needs, and lifestyles, ensuring broader accessibility within the urban fabric.

Architecturally, the design engages directly with its Parisian context. The deliberate arrangement of fenestrations establishes a strong vertical rhythm, drawing from the traditional proportions of local streetscapes to achieve visual coherence and harmony within the built environment.

This formal consideration is augmented by a dynamic functional layer: adjustable steel screens clad the street-facing facades. These screens serve a dual purpose.

Aesthetically, they introduce a textured, mutable quality, allowing the building's frontality to evolve continuously in response to occupant use and the shifting daylight. Functionally, they provide adaptable mediation between interior and exterior, enhancing occupant control over privacy, shading, and views, thereby embedding a capacity for change within the fixed architectural structure.

116 Delancey Street, Manhattan, New York City

[PLAN - SECOND FLOOR]

[PLAN - THIRD FLOOR]

[MULTIFAMILY APARTMENTS]

[SINGLE RENTAL UNITS]

[SHORT SECTION - MULTIFAMILY APARTMENTS]

SCHEMATIC DESIGN

Differentiated Program

The ground floor is designated for a business incubator, featuring a glass storefront design that delineates the boundary between street activity and the three adjacent public courtyards. Simultaneously, this transparent storefront design enhances visibility between the two parallel spaces, fostering a sense of connection and openness throughout the site.

The vegetated, accessible roofs are designed as a series of setbacks sloping toward the southwest side of the site, strategically oriented to maximize sun exposure during the winter months.

The rental single units are positioned on the northern side of the plot, facing Rivington St. They boast vertically interlocked, double-height living rooms, appealing to young renters in search of a novel residential experience.

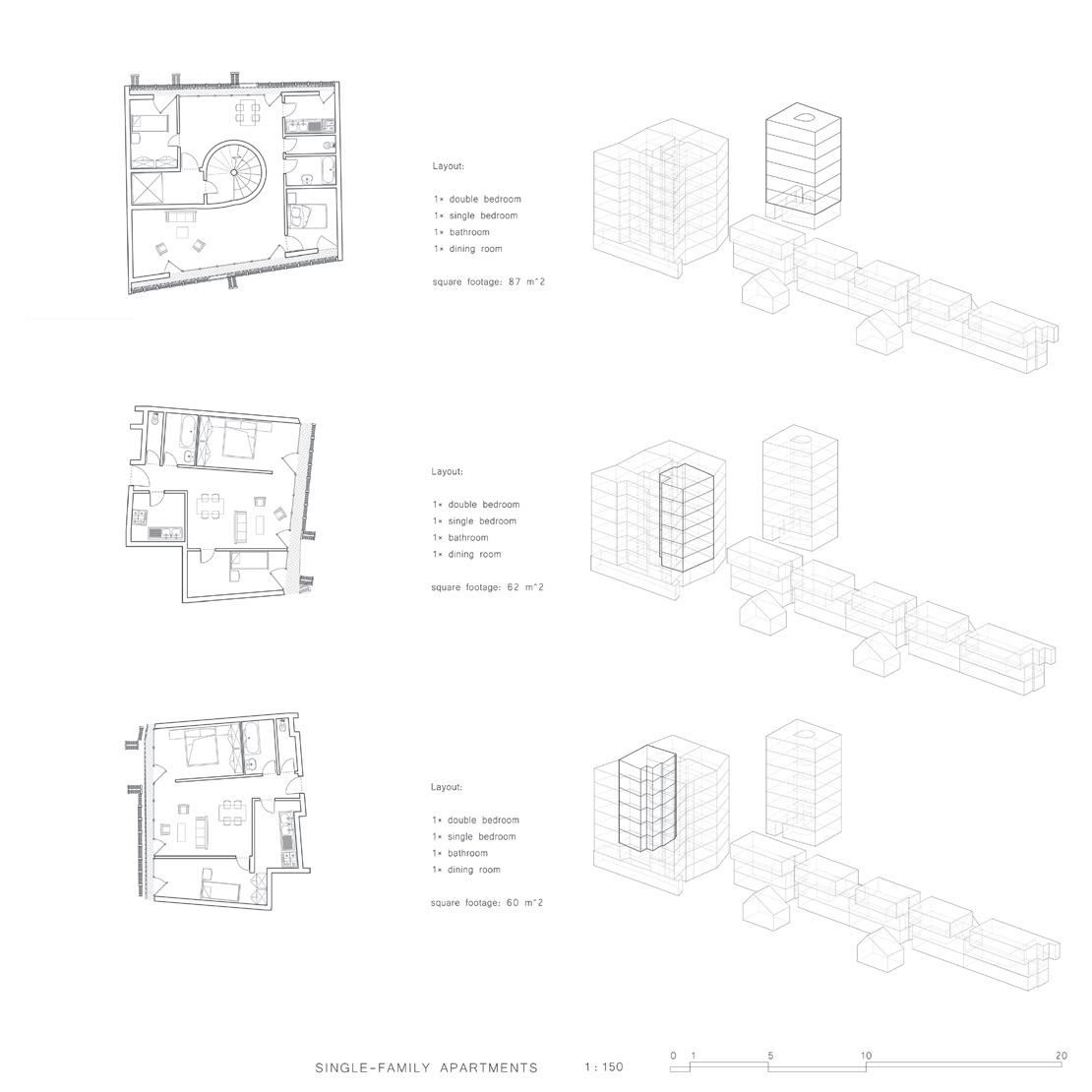
The three backside courtyards are divided by stacks of split-level co-op apartments, featuring shared living rooms and two queen-size bedrooms connected by staircases. *For a more in-depth view of these units, refer to the project's introduction page, where a detailed illustration is provided.

SCHEMATIC DESIGN

Scale:

[SITE MASSING MODEL]

[SINGLE RENTAL UNIT - STREET-FACING]

[SINGLE RENTAL UNIT - STREET-PERSPECTIVE]

[SINGLE RENTAL UNIT - REAR SIDE CIRCULATION]

Turn static files into dynamic content formats.

Create a flipbook
Issuu converts static files into: digital portfolios, online yearbooks, online catalogs, digital photo albums and more. Sign up and create your flipbook.
Yuqi Duan Portfolio 2026 by Yuqi_Duan - Issuu