595 Westchester Circle Marietta, Ga 30064

Page 1

595 Westchester Circle Marietta, Ga 30064 W E L C O M E TownRG.com | 770-280-4560

Be the most trusted and well-respected solution-based Real Estate Group in our Market Area

OUR MISSION: OUR VISION:

To build lifelong relationships with our clients and be the go-to company when it comes to building and preserving wealth through real estate for our clients and deliver certainty as they maneuver through changes in their lives

OUR PROMISE:

Our promise to you is to deliver the best service imaginable. We promise to focus on your needs in order to ensure the best possible outcome. We promise to be proactive against any challenges along the way. We will put all of our focus on making this a five star experience that exceeds all your expectations.

C O N T E N T S

ONE | THE PICTURES

TWO | THE PAPERWORK

THREE | THE COMMUNITY

ABOUT THE HOME

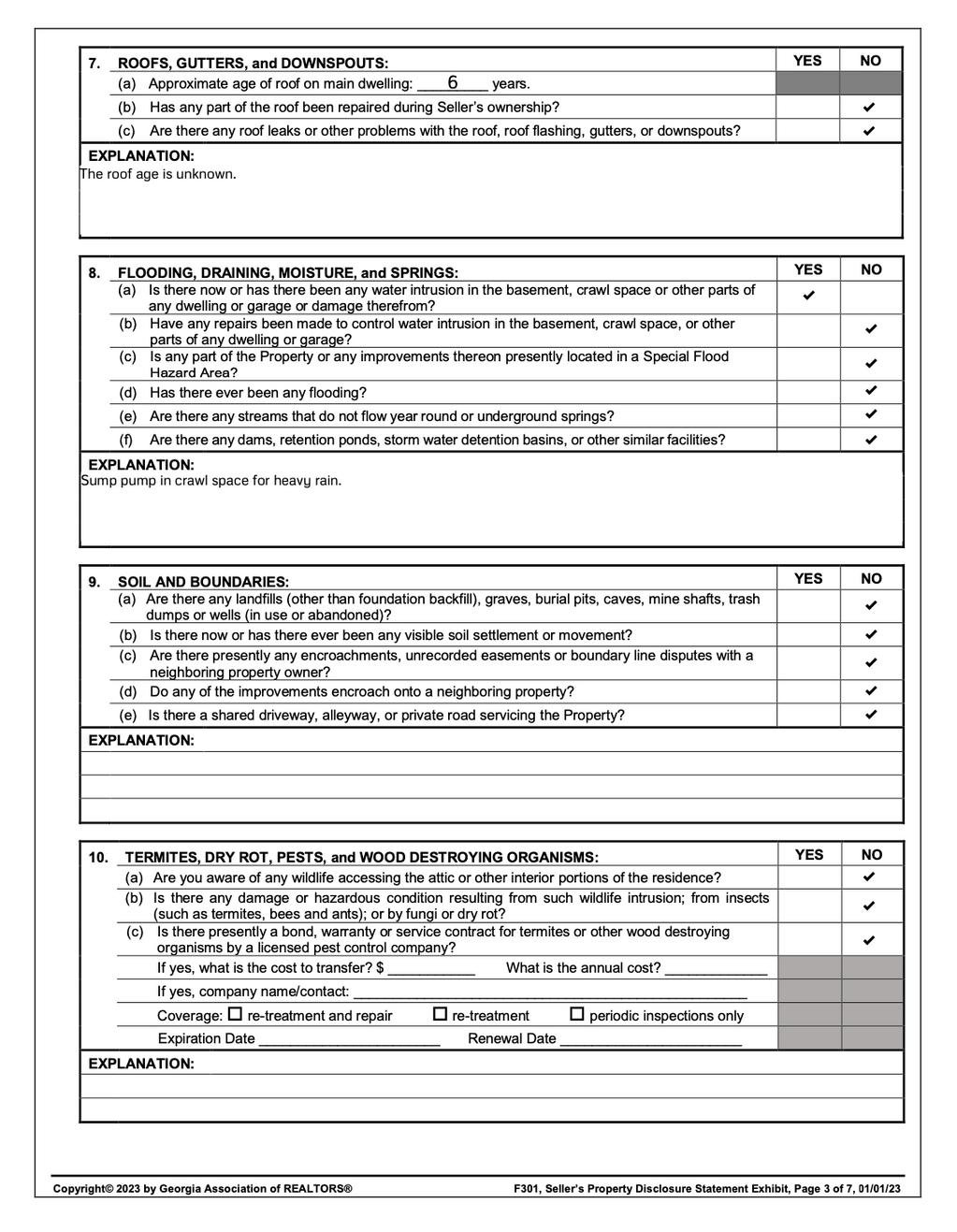
Discover the appeal of a tastefully renovated residence located conveniently near the historic Marietta Square. As you step through the front door, you are welcomed by the polished hardwood floors that extend throughout the home. The well-lit living room, complemented by a large window, connects smoothly to the dining space of the upgraded kitchen. This functional kitchen offers plentiful storage and counter space. Its quartz countertops, subway tile backsplash, and stainless steel appliances enhance its modern appeal. The dining area provides easy access to a screened porch, perfect for spending relaxed summer afternoons. The lower level hosts a versatile family room or bonus space, complete with an extensive wall of bookcases. It provides ample room for both leisure and work-from-home activities. On the upper floor, you'll find the comfortable master bedroom. A sliding barn door introduces the master bathroom, which includes quartz countertops and a tiled shower. Two additional bedrooms and a bathroom are also located upstairs. Outdoors, a flat fenced backyard presents a suitable area for both play and entertainment. The home's windows have been newly replaced, and a new HVAC system has been installed. Situated close to Marietta Square, shopping amenities, and a park, the location of this home is advantageous. It's waiting for your visit today.

TOWNSEND REALTY GROUP, KELLER WILLIAMS REALTY, Inc
TOWNSEND REALTY GROUP, KELLER WILLIAMS REALTY, Inc
TOWNSEND REALTY GROUP, KELLER WILLIAMS REALTY, Inc
TOWNSEND REALTY GROUP, KELLER WILLIAMS REALTY, Inc
TOWNSEND REALTY GROUP, KELLER WILLIAMS REALTY, Inc
TOWNSEND REALTY GROUP, KELLER WILLIAMS REALTY, Inc
TOWNSEND REALTY GROUP, KELLER WILLIAMS REALTY, Inc.
TOWNSEND REALTY GROUP, KELLER WILLIAMS REALTY, Inc.
TOWNSEND REALTY GROUP, KELLER WILLIAMS REALTY, Inc.
595 Westchester Circle Marietta, Ga 30064 3 BD | 2 BA | 1,536 sq. ft
THANKS FOR VIEWING OUR PROPERTY FOLLOW ALONG TownRG.com | Sales@TownRG.com

Turn static files into dynamic content formats.

Create a flipbook
Issuu converts static files into: digital portfolios, online yearbooks, online catalogs, digital photo albums and more. Sign up and create your flipbook.
595 Westchester Circle Marietta, Ga 30064 by Townsend Realty Group - Issuu