205 Kobuk Court Canton, Ga 30114

Page 1

205 Kobuk Court Canton, Ga 30114 W E L C O M E TownRG.com | 770-280-4560

Be the most trusted and well-respected solution-based Real Estate Group in our Market Area

OUR MISSION: OUR VISION:

To build lifelong relationships with our clients and be the go-to company when it comes to building and preserving wealth through real estate for our clients and deliver certainty as they maneuver through changes in their lives

OUR PROMISE:

Our promise to you is to deliver the best service imaginable. We promise to focus on your needs in order to ensure the best possible outcome. We promise to be proactive against any challenges along the way. We will put all of our focus on making this a five star experience that exceeds all your expectations.

C O N T E N T S

ONE | THE PICTURES

TWO | THE PAPERWORK

THREE | THE COMMUNITY

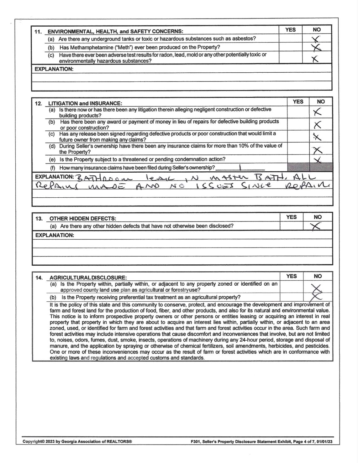
ABOUT THE HOME

Nestled in the beautiful River Green Subdivision of Canton, Georgia, sits a stunning 4 bedroom, 3.5 bathroom home. The spacious open floor plan provides an ideal space for family gatherings or entertaining guests. Upstairs features all 4 bedrooms including the master suite. The master suite not only has a private bathroom and ample closet space but also a sitting area for you to enjoy. The house sits on a full unfinished basement and is a blank canvas ready for customization to meet your specific needs. The owners have taken meticulous care of this home with many systems and features being recently updated. The property is in the heart of River Green, close to many shops and restaurants, and most importantly in an amazing school district. With its exceptional location, this property is truly a dream come true.

TOWNSEND REALTY GROUP, KELLER WILLIAMS REALTY, Inc
TOWNSEND REALTY GROUP, KELLER WILLIAMS REALTY, Inc
TOWNSEND REALTY GROUP, KELLER WILLIAMS REALTY, Inc
TOWNSEND REALTY GROUP, KELLER WILLIAMS REALTY, Inc
TOWNSEND REALTY GROUP, KELLER WILLIAMS REALTY, Inc
TOWNSEND REALTY GROUP, KELLER WILLIAMS REALTY, Inc
TOWNSEND REALTY GROUP, KELLER WILLIAMS REALTY, Inc.
205 Kobuk Court Canton, Ga 30114 4 BD | 3.5 BA | 3,526 sq.ft
THANKS FOR VIEWING OUR PROPERTY FOLLOW ALONG TownRG.com | Sales@TownRG.com

Turn static files into dynamic content formats.

Create a flipbook
Issuu converts static files into: digital portfolios, online yearbooks, online catalogs, digital photo albums and more. Sign up and create your flipbook.
205 Kobuk Court Canton, Ga 30114 by Townsend Realty Group - Issuu