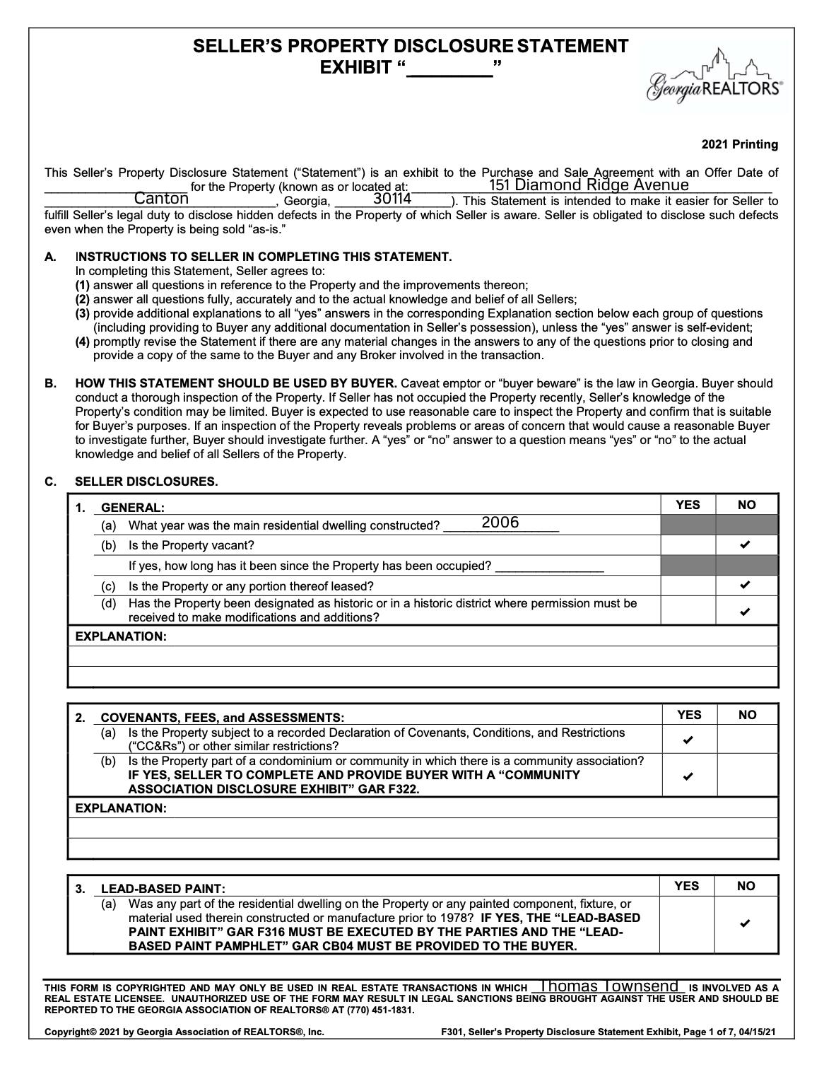
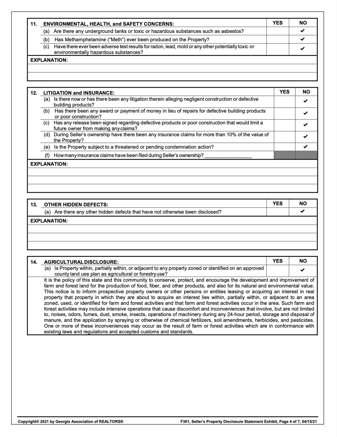
151 Diamond Ave. Canton, Ga 30114

Page 1

151 Diamond Ridge Ave Canton, Ga 30114 W E L C O M E TownRG.com | 770-280-4560

OUR MISSION:

Be the most trusted and well respected solution-based Real Estate Group in our Market Area

OUR VISION:

To build lifelong relationships with our clients and be the go-to company when it comes to building and preserving wealth through real estate for our clients and deliver certainty as they maneuver through changes in their lives

OUR PROMISE:

Our promise to you is to deliver the best service imaginable. We promise to focus on your needs in order to ensure the best possible outcome. We promise to be proactive against any challenges along the way. We will put all of our focus on making this a five star experience that exceeds all your expectations.

O N T E N T S

ONE | THE PICTURES TWO | THE PAPERWORK THREE | THE COMMUNITY

C

ABOUT THE HOME

Fantastic opportunity with this move in ready home conveniently located close to shopping, dining, parks, and more! The open concept layout connects the living room, dining room, kitchen, and family room. Laminate flooring throughout the main level and second floor hallway. A large kitchen with bar style island boasts granite countertops, woods stained cabinets and plenty of storage. All appliances stay so you will be cooking on day one. Upstairs features 4 bedrooms (3 have walk in closets), 2 full baths, and a laundry room. The primary suite is oversized and offers a huge double closet that can be used as a nursery or office. The primary bathroom has dual vanity, a tub, and a tiled shower. The backyard is fenced and has a drainage system. This home is priced to sell!

TOWNSEND REALTY GROUP, KELLER WILLIAMS REALTY, Inc
TOWNSEND REALTY GROUP, KELLER WILLIAMS REALTY, Inc
TOWNSEND REALTY GROUP, KELLER WILLIAMS REALTY, Inc
TOWNSEND REALTY GROUP, KELLER WILLIAMS REALTY, Inc
TOWNSEND REALTY GROUP, KELLER WILLIAMS REALTY, Inc
Inc
TOWNSEND REALTY GROUP, KELLER WILLIAMS REALTY,
TOWNSEND REALTY GROUP, KELLER WILLIAMS REALTY, Inc.
TOWNSEND REALTY GROUP, KELLER WILLIAMS REALTY, Inc.
TOWNSEND REALTY GROUP, KELLER WILLIAMS REALTY, Inc.
TOWNSEND REALTY GROUP, KELLER WILLIAMS REALTY, Inc.
151 Diamond Ridge Ave Canton, Ga 30114 4 BD | 3 BA | 2,505 sq.ft.
THANKS FOR VIEWING OUR PROPERTY FOLLOW ALONG TownRG.com | Sales@TownRG.com

Turn static files into dynamic content formats.

Create a flipbook
Issuu converts static files into: digital portfolios, online yearbooks, online catalogs, digital photo albums and more. Sign up and create your flipbook.