115 Chestnut Drive Canton, Ga 30114

Page 1

115 Chestnut Drive Canton, Ga 30114 W E L C O M E TownRG.com | 770-280-4560

Be the most trusted and well-respected solution-based Real Estate Group in our Market Area

OUR MISSION: OUR VISION:

To build lifelong relationships with our clients and be the go-to company when it comes to building and preserving wealth through real estate for our clients and deliver certainty as they maneuver through changes in their lives

OUR PROMISE:

Our promise to you is to deliver the best service imaginable. We promise to focus on your needs in order to ensure the best possible outcome. We promise to be proactive against any challenges along the way. We will put all of our focus on making this a five star experience that exceeds all your expectations.

C O N T E N T S

ONE | THE PICTURES

TWO | THE PAPERWORK

THREE | THE COMMUNITY

ABOUT THE HOME

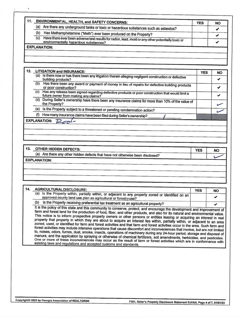
Welcome to 115 Chestnut Drive, Canton, GA 30114 - a stunning master-on-the-main ranch that combines exquisite architecture with tasteful finishes. This immaculate property boasts an open floor plan and vaulted ceilings, creating an atmosphere of spaciousness and elegance that permeates the entire home. Upon entering, you'll be greeted by a wealth of natural light illuminating rich, beautiful hardwood floors that extend across the main level. The architectural majesty of the vaulted great room is amplified by a charming gas log fireplace and built-in bookcases, offering an ideal space for relaxation or entertaining guests. Adjacent to this, you'll find an equally impressive vaulted living room/office that caters perfectly to today's work-from-home lifestyle. The heart of the home, the kitchen, does not disappoint. It's a gourmet delight, showcasing beautiful newly painted cabinets complemented by rich granite countertops. A custom tile backsplash adds a dash of individuality to the design, while the overall atmosphere is one of warmth and sophistication. The home's tranquil master suite is situated on the main level for ease and convenience. The elegance continues on the lower level, revealing a finished terrace suite You'll find 10ft ceilings, a spacious living/rec room, two additional bedrooms, and a full bath here. An unfinished media/bonus room awaits your personal touch and creativity, promising endless possibilities for customization. This home's outdoor features are equally impressive, with an extra-large deck and patio that promise countless days of outdoor enjoyment. The home backs up to a private wooded area for your privacy and relaxation. Protected by an underdeck waterproofing system, these spaces are ready for entertaining, rain, or shine. The property also offers a cozy screened porch, perfect for those quieter moments of contemplation amidst the beauty of your private backyard. This home has a newer roof. Experience the best of Canton, GA with 115 Chestnut Drive - where every detail is meticulously designed and every feature thoughtfully curated, ensuring you an exceptional living experience

TOWNSEND REALTY GROUP, KELLER WILLIAMS REALTY, Inc
TOWNSEND REALTY GROUP, KELLER WILLIAMS REALTY, Inc
TOWNSEND REALTY GROUP, KELLER WILLIAMS REALTY, Inc
TOWNSEND REALTY GROUP, KELLER WILLIAMS REALTY, Inc
TOWNSEND REALTY GROUP, KELLER WILLIAMS REALTY, Inc
TOWNSEND REALTY GROUP, KELLER WILLIAMS REALTY, Inc
TOWNSEND REALTY GROUP, KELLER WILLIAMS REALTY, Inc.
TOWNSEND REALTY GROUP, KELLER WILLIAMS REALTY, Inc.
TOWNSEND REALTY GROUP, KELLER WILLIAMS REALTY, Inc.
TOWNSEND REALTY GROUP, KELLER WILLIAMS REALTY, Inc.
115 Chestnut Dr. Canton, Ga 30114 3 BD | 3.5 BA | 3,724 sq. ft
THANKS FOR VIEWING OUR PROPERTY FOLLOW ALONG TownRG.com | Sales@TownRG.com

Turn static files into dynamic content formats.

Create a flipbook
Issuu converts static files into: digital portfolios, online yearbooks, online catalogs, digital photo albums and more. Sign up and create your flipbook.