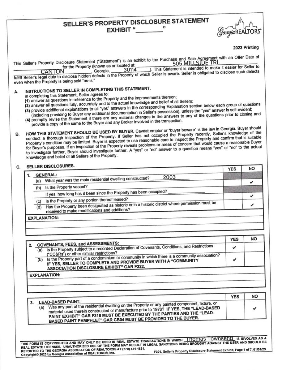
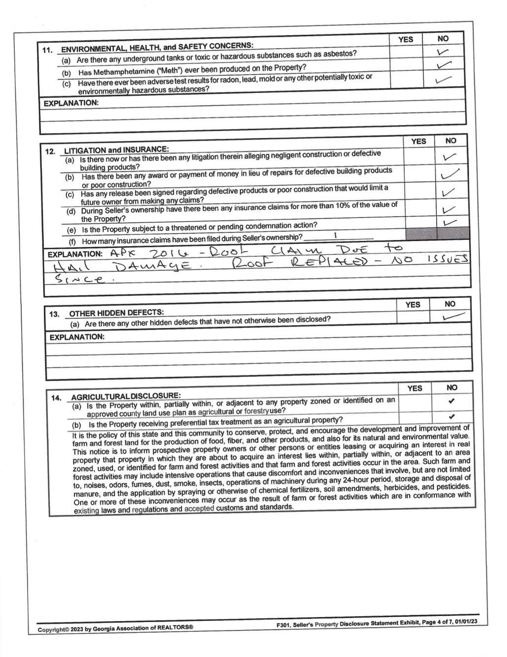
505 Millside Trail Canton, Ga 30114

Page 1

505 Millside Trail Canton, Ga 30114 W E L C O M E TownRG.com | 770-280-4560

Be the most trusted and well-respected solution-based Real Estate Group in our Market Area

OUR MISSION: OUR VISION:

To build lifelong relationships with our clients and be the go-to company when it comes to building and preserving wealth through real estate for our clients and deliver certainty as they maneuver through changes in their lives

OUR PROMISE:

Our promise to you is to deliver the best service imaginable. We promise to focus on your needs in order to ensure the best possible outcome. We promise to be proactive against any challenges along the way. We will put all of our focus on making this a five star experience that exceeds all your expectations.

C O N T E N T S

ONE | THE PICTURES

TWO | THE PAPERWORK

THREE | THE COMMUNITY

ABOUT THE HOME

A truly exceptional home is on the market in the coveted Bridgemill swim/tennis community with a private lot! This single-owner home is well-maintained and cared for. The open concept is perfect for family gatherings or entertainment. The kitchen overlooks the oversized eating area, living room, and private backyard. Stepping outside onto your oversized patio, you will enjoy beautiful private views and enjoy the level lot. The living room includes new carpeting and a gas fireplace. From the living room, enjoy the stunning Georgia landscape as the property is set above many of the neighboring homes. All bedrooms on the second floor are spacious and in excellent condition. The master bedroom has a trey ceiling and plenty of closet space. The master bath features dual sinks, a garden tub, a separate shower, and a walk-in closet. There is extra storage space over the garage which is accessed through one of the bedrooms and could be converted into extra living space! The home features a flat drive and yard, somewhat of a rarity in this area. The home is located on a cul-de-sac street with minimal traffic. You will enjoy, easy access to the main entrance, I-575, Hwy 20, shopping, schools, recreational facilities, and the school bus stop located at the corner. Exceptional schools at every level. Don't miss out... come see this home today!

TOWNSEND REALTY GROUP, KELLER WILLIAMS REALTY, Inc
TOWNSEND REALTY GROUP, KELLER WILLIAMS REALTY, Inc
TOWNSEND REALTY GROUP, KELLER WILLIAMS REALTY, Inc
TOWNSEND REALTY GROUP, KELLER WILLIAMS REALTY, Inc
TOWNSEND REALTY GROUP, KELLER WILLIAMS REALTY, Inc
TOWNSEND REALTY GROUP, KELLER WILLIAMS REALTY, Inc
TOWNSEND REALTY GROUP, KELLER WILLIAMS REALTY, Inc.
TOWNSEND REALTY GROUP, KELLER WILLIAMS REALTY, Inc.
TOWNSEND REALTY GROUP, KELLER WILLIAMS REALTY, Inc.
TOWNSEND REALTY GROUP, KELLER WILLIAMS REALTY, Inc.
505 Millside Trail Canton, Ga 30114 4 BD | 3 BA | 2,204 sq.ft
THANKS FOR VIEWING OUR PROPERTY FOLLOW ALONG TownRG.com | Sales@TownRG.com

Turn static files into dynamic content formats.

Create a flipbook
Issuu converts static files into: digital portfolios, online yearbooks, online catalogs, digital photo albums and more. Sign up and create your flipbook.