IoArch 121 Jan/Feb 2026

Page 1


ioArch

Anno 21 | 2026

Gennaio | Febbraio euro 12,00

ISSN 2531-9779

ELEMENTS MATERIAL MATTERS

NUOVA COLLEZIONE PIETRA EDITION

LE PIETRE ICONICHE DEL MEDITERRANEO DECODIFICATE DA DEKTON

Meaningful Design to Inspire People’s Lives

RIVESTIMENTO
E4000 study bench
Project: ESCP Business School | Turin Campus Turin, Italy
Architectural project: TRA_Toussaint Robiglio Architects Lucci e Orlandini

LAMM Srl Headquarters / Showroom Via Verdi 19/21 San Secondo P.se (PR) +39 0521 877511 | info@lamm.it lamm.it

Courtesy: BNL BNP Paribas, thanks to ESCP Business School, Ph. Fabio Oggero

SOMMARIO ioArch

121

DESIGNCAFÈ

12 Viaggio nell’arte di 4 continenti | FONDAZIONE GOLINELLI. BOLOGNA

14 Leggere architetture #8 | MATTEO PERICOLI

16 Ignazio Gardella. 17 modi di progettare la città | ALESSANDRIA

18 Vico Magistretti. 60 sedie in 60 anni | MILANO

20 Archisatire | TEATRO DELL’ARCHITETTURA. USI MENDRISIO

22 Viaggio attraverso la Mongolia | MUSEO RIETBERG. ZURIGO

24 Fabio Mauri. De Oppressione | TRIENNALE. MILANO

26 Adalberto Libera | LE STORIE DI LPP

28 Caterina Frisone. La percezione dello spazio

162 Mona Hatoum. Over, under and in between | FONDAZIONE PRADA. MILANO

72 | 152 Libri

REPORT di Aldo Norsa

30 Il restauro nella valorizzazione dell’esistente | ALVISI KIRIMOTO, PAOLO ASTI, STUDIO BERLUCCHI, OPEN PROJECT, ABDR, CINO ZUCCHI

WORK IN PROGRESS

42 Milano | BIG. CITYWAVE

44 San Pellegrino Terme | L22. RISTRUTTURAZIONE GRAND HOTEL

46 Voghera | STEFANO BOERI. RIQUALIFICAZIONE CASERMA

48 Londra | SPPARC. CAMDEN FILM QUARTER

FOCUS

50 Un’impresa di costruzioni sensibile al territorio | BARBERIS

52 Relais Chiarene tra borghi, arte e vini delle Langhe | NARDI

54 Universo cromatico | KERAKOLL

56 La bespoke illumina il Desert Rock Resort | LINEA LIGHT

58 Dekton per una metamorfosi architettonica | COSENTINO

60 L’illuminazione del Castello di Lombardia a Enna | PLATEK

LPP ARCHITETTI ITALIANI

I Profili di Luigi Prestinenza Puglisi

62 Politecnica

NETWORK SOCIETY di Carlo Ezechieli

73 Nuova qualità formale

74 Shannon Mattern. Il cloud non è una nuvola

76 LLLab. Da data center a architettura pubblica

78 Baas Arquitectura. Un computer nel parco

82 In-Site. Intacture

SOMMARIO io Arch

ARCHITETTURE PER L’ARTE

84 Prix Versailles. i 7 musei più belli del mondo | UNESCO. PARIGI

86 Kunstsilo | BAX, MENDOZA PARTIDA, MESTRES WÅGE

90 Gallerie d’Italia. Il museo underground | AMDL CIRCLE

96 Zayed Museum. 5 vele nel deserto arabo | FOSTER+PARTNERS

102 Grand Egyptian Museum | HENEGHAN PENG

108 Le pagode di Big | BJARKE INGELS

112 Sun Tower | OPEN ARCHITECTURE

116 La nuova sede Sotheby’s a New York | HERZOG & DE MEURON

Direttore editoriale

Antonio Morlacchi

Direttore responsabile

Sonia Politi

Advisor

Giulia Floriani

Contributi

In copertina Rosfer & Shaokun Ruggero Rosfer. Face-Off, 2010. Stampa digitale da fotocolor inciso e dipinto. Collezione Privata. Bologna.

Virginia Bodini, Luisa Castiglioni

Caterina Frisone, Carlo Ezechieli

Roberto Malfatti, Aldo Norsa

Matteo Pericoli, Mario Pisani

Luigi Prestinenza Puglisi

Elena Riolo

Grafica e impaginazione

Alice Ceccherini

ARCHIWORKS

118 Rooftop Torre Fondazione Prada | FEDERICO POMPIGNOLI

122 Tripolis Park | MVRDV

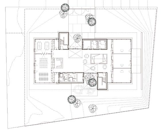
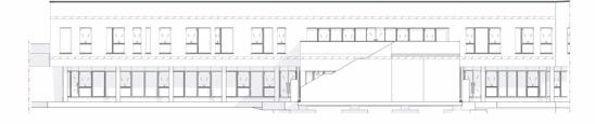
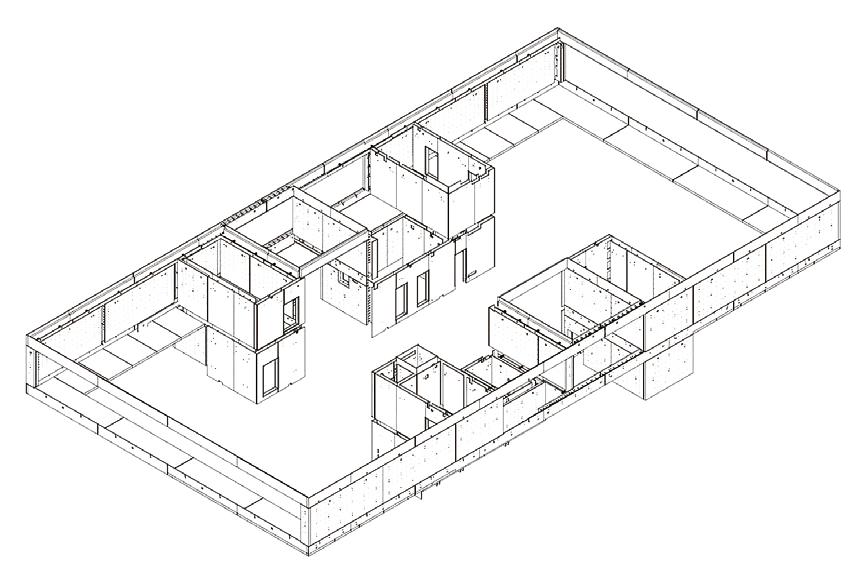
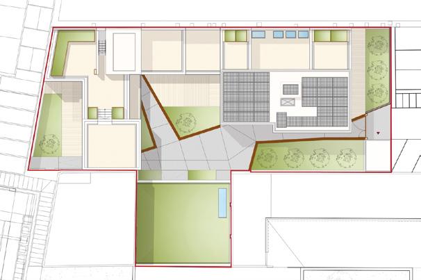
130 Scuola di Puos d’Alpago | FACCHINELLI. DA BOIT. SAVIANE

136 Omnia Technologies HQ | LOMBARDINI22

140 Restyling per il dining Dav Cantalupa | JOSEPH DI PASQUALE

144 Punto luce di Save the Children | AOUMM

148 Rigenerazione urbana e qualità dell’abitare | GIUSEPPE TORTATO

ELEMENTS a cura di Elena Riolo

153 Material Matters

Marketing e Pubblicità Elena Riolo elenariolo@ioarch.it

Editore Font Srl Via Siusi 20/a 20132 Milano T. 02 2847274 redazione@ioarch.it www.ioarch.it

Fotolito e stampa Errestampa

Prezzo di copertina euro 12,00 arretrati euro 18,00

Abbonamenti (6 numeri) Italia euro 72,00 - Europa euro 112,00 Resto del mondo euro 180,00 abbonamenti@ioarch.it

Reg. Tribunale di Milano n. 822 del 23/12/2004

Pagamento online su www.ioarch.it o bonifico a Font Srl - Unicredit Banca IBAN IT 68H02 008 01642 00000 4685386

Periodico iscritto al ROC Registro Operatori della Comunicazione n. 34540

Spedizione in abbonamento postale 45% D.L. 353/2003 (convertito in legge 27.02.2004 n.46) art. 1 comma 1 - DCB Milano ISSN 2531-9779

In-Outdoor fabrics

HORIZON BENCH

Il bench Horizon si distingue per il suo design audace e innovativo, che rompe gli schemi delle scrivanie tradizionali. Il sostegno laterale in vetro, posizionato strategicamente, crea un’illusione ottica: la scrivania uttua leggermente, conferendo allo spazio un’eleganza senza pari. Le gambe tradizionali sono eliminate, sostituite da lastre di vetro trasparente, che contribuiscono ulteriormente a questa sensazione di leggerezza e modernità. Questo approccio unico al design rende il bench Horizon un vero e proprio pezzo d’arte funzionale, perfetto per ambienti contemporanei.

Rosfer & Shaokun

I (ed. 1/8). 2010.

FONDAZIONE GOLINELLI

VIAGGIO NELL’ARTE DI QUATTRO CONTINENTI

La Fondazione Golinelli presenta la mostra I preferiti di Marino. Capitolo II – Opus Mundi, una selezione di oltre 50 opere di arte contemporanea provenienti dalla collezione privata di Marino Golinelli (1920-2022).

Proseguendo il percorso all’interno del corpus di 850 opere raccolte dall’imprenditore, questo secondo capitolo accompagna i visitatori in un viaggio in quattro tappe attraverso altrettanti continenti.

I PREFERITI DI MARINO

CAPITOLO II - OPUS MUNDI

Fondazione Golinelli. Bologna 6 febbraio | 28 giugno 2026

I lavori di 43 artisti di fama internazionale restituiscono uno sguardo sulle trasformazioni del presente, aprendo al contempo una riflessione sul futuro dell’umanità e sul rapporto tra arte, scienza e tecnologia. Ogni sezione si articola attraverso linguaggi espressivi differenti e riflette il punto di vista di artisti provenienti dai quattro vertici del globo.

Il percorso espositivo è arricchito da Reborn - The Moment of Awareness, un’esperienza in realtà virtuale che consente al visitatore di ‘entrare’ in alcune opere della collezione e attraversare ambienti digitali a esse ispirati. Il progetto esplora i processi di percezione e interpretazione della realtà attraverso scenari

generati virtualmente.

Con questa mostra la Fondazione invita pubblici di tutte le età a lasciarsi guidare dallo sguardo visionario di Marino Golinelli, stimolando dialogo e riflessione sulla costruzione del nostro futuro ■

Dall’alto. Arcangelo Sassolino Pressione continua. 2023. Collezione Privata Bologna. Foto Pamela Randon. Gonçalo Mabunda

The Histography Man. 2016. Armi in ferro riciclate dalla guerra civile in Mozambico.

Face-Off

Leggere architetture

Architetto, autore, disegnatore e insegnante, Matteo Pericoli vive a Torino dove nel 2010 ha fondato il Laboratorio di architettura letteraria, uno strumento in forma di workshop che utilizza il potenziale narrativo dell’architettura per esplorare la struttura delle storie. I risultati sono raccolti nel suo libro Il grande museo vivente dell’immaginazione (Il Saggiatore, 2022). www.lablitarch.com

#8

Mattatoio n.5

di Kurt Vonnegut

Come è fatta l’architettura di un romanzo? Come fanno a stare in piedi le storie? La lettura è un atto creativo e siamo noi, con la nostra sensibilità e la nostra esperienza, a creare quelle strutture che ci permettono di esplorare e abitare liberamente le storie. Ogni struttura quindi non è che una tra le infinite possibili. In questa puntata, un’interpretazione architettonica del romanzo di Vonnegut.

Come raccontare, sembra domandarsi Kurt Vonnegut all’inizio di Mattatoio n. 5, un evento – il bombardamento di Dresda da parte delle forze alleate – talmente mostruoso da sembrare inimmaginabile? Nel capitolo introduttivo, Vonnegut ci racconta della consapevolezza del suo ‘fallimento’, del non riuscire cioè a scrivere un tradizionale libro di guerra. «Non c’è niente di intelligente da dire su un massacro».

Il fallimento ha un peso: le oltre cinquemila pagine prodotte fino a quel punto abbandonate come un blocco di pietra. Ma nell’istante in cui abbandona l’idea della ricostruzione fedele, Vonnegut si libera del grande peso e riesce a sganciarsi e decollare. L’architettura dello slancio narrativo e immaginifico si posa quindi su

(e si eleva da) l’orrido peso dell’inenarrabile evento. E nell’elevarsi ricerca i punti di contatto tra la storia irreale e quella sommersa. Il basamento di pietra è impenetrabile e pesa sul paesaggio quanto sono pesati gli anni di ricerca, di ricordi e di tentativi di capire le radici di tale crudeltà. La storia di Billy Pilgrim è invece una nuvola di vetro e acciaio, sospesa ma ben ancorata a setti murari fatti dello stesso materiale del basamento. All’interno della nuvola notiamo che esiste però un ordine. Lo spazio nella struttura sospesa, come il tempo di Billy, non è lineare. Vagando alla ricerca di un ordine e di un significato, ci accorgiamo che ogni intersezione e ogni momento spaziale racchiudono il tutto, il sempre.

ELEMENT

Rovere Plaster | Tavola woodco.it

Sopra. Chiesa del Sanatorio Vittorio Emanuele III (1929-1934), Alessandria.

Disegno Archivio Storico Gardella, foto Marco Introini.

A destra. Casa per impiegati Borsalino (1948-1952), Alessandria

Archivio Storico Gardella.

Sotto. Ignazio Gardella Courtesy Archivio Storico Gardella.

IGNAZIO GARDELLA 17 MODI DI PROGETTARE LA CITTÀ

In occasione dei 120 anni dalla nascita di Ignazio Gardella, Alessandria rende omaggio a uno dei protagonisti assoluti dell’architettura italiana del Novecento con la mostra Ignazio Gardella. Progettare la città, aperta fino al 15 marzo 2026 presso le Sale d’Arte della biblioteca civica. Curata da Emanuele Piccardo, critico e storico dell’architettura, l’esposizione nasce dalla collaborazione tra Comune di Alessandria, Asm Costruire Insieme, Archivio Storico Gardella e l’associazione plug_in, con

il coinvolgimento di istituzioni e realtà professionali che testimoniano il profondo legame tra Gardella e il territorio alessandrino. Figura centrale del razionalismo italiano, Gardella avvia la propria attività ad Alessandria nel 1928, ereditando lo studio fondato dal padre Arnaldo, specializzato in architetture sanitarie. Ingegnere e architetto, formatosi tra il Politecnico di Milano e l’Università Iuav di Venezia, Gardella incarna una sintesi esemplare tra rigore tecnico e sensibilità progettuale.

La sua carriera, segnata anche dall’incontro con Alvar Aalto, viene riconosciuta nel 1955 con il Premio Olivetti per l’Architettura, che ne sottolinea l’essenzialità costruttiva, l’uso autentico dei materiali e il valore etico del progetto.

La mostra presenta diciassette progetti realizzati tra Alessandria, Milano, Genova e Venezia, attraverso disegni, schizzi, documenti originali e fotografie storiche, affiancati da una nuova campagna fotografica realizza-

A sinistra. Casa Cicogna (1953-1958), Venezia. Courtesy Archivio Storico Gardella Sotto. Dispensario Antitubercolare (1933-1938), Alessandria. Foto Gabriele Basilico.

ta appositamente da Emanuele Piccardo e da Marco Introini. Il filo conduttore della mostra è la capacità di Gardella di ‘progettare la città’, concependo ogni architettura come un frammento urbano capace di dialogare con il contesto esistente.

Il percorso espositivo si articola in tre sezioni. La prima è dedicata alle opere alessandrine, considerate un autentico laboratorio progettuale: dal Dispensario Antitubercolare alla Casa per Impiegati Borsalino, fino ai numerosi

edifici sanitari e scolastici che hanno segnato in modo decisivo l’evoluzione del suo linguaggio. La seconda sezione mostra come la ‘lezione di Alessandria’ venga rielaborata in altri contesti urbani italiani, dando vita a progetti residenziali, religiosi e urbanistici di grande rilievo. La terza sezione presenta infine gli esiti di un progetto didattico dedicato alla valorizzazione dell’area prospiciente la Facoltà di Architettura dell’Università di Genova, progettata da Gardella.

Accompagnano la mostra un importante volume e un articolato programma di iniziative collaterali, tra cui visite guidate ad opere realizzate in città, che offrono nuove chiavi di lettura sull’opera di uno dei principali protagonisti del Movimento Moderno italiano ■

Ignazio Gardella PROGETTARE LA CITTÀ Alessandria | Sale d’Arte. Via Machiavelli 13 fino al 15 Marzo 2026 (gio-dom dalle 15 alle 19)

Dall’alto in senso orario.

Vico Magistretti al lavoro sulla sedia Vico, anni ’90

Courtesy Fritz Hansen.

Disegni di Piccy

Ditta Fumagalli

1946 - Campeggi

2011 Archivio

Studio Magistretti

Fondazione Vico Magistretti.

Sedia Marghe, Flou

1993. Courtesy Flou

Sedia 03 03

Gebrüder Thonet

Vienna, 2003

Archivio Studio Magistretti, Fondazione Vico Magistretti.

VICO MAGISTRETTI SUPPERGIÙ 60 SEDIE IN 60 ANNI

In onore della passione dichiarata di Vico Magistretti per la sedia come complemento d’arredo, presso la Fondazione a lui dedicata è aperta fino al 26 febbraio la mostra Suppergiù 60 sedie in 60 anni. Il titolo richiama una mostra del 1980 dello stesso Magistretti, in cui il designer presentò Vent’anni in venti sedie, trasformata l’anno successivo a Londra in Twenty-one years, twenty-one chairs durante il Designers’ Saturday

Dall’archivio dello Studio Magistretti provengono le 66 sedute originali, corredate da studi, disegni e scritti autografi. La mostra si articola in due percorsi: una timeline di disegni originali e riproduzioni fotografiche e una dozzina

di sedie da provare e utilizzare, accompagnate da taccuini che raccolgono appunti e riflessioni dell’architetto e designer. L’esposizione diventa così, letteralmente, un invito a sedersi e leggere, per comprendere attraverso l’esperienza diretta cosa ogni sedia racconta e seguire il pensiero progettuale di uno dei protagonisti del design italiano e internazionale ■

Vico Magistretti

SUPPERGIÙ 60 SEDIE IN 60 ANNI

Fondazione Vico Magistretti

Via Bellini, 1. Milano

Fino al 26 febbraio 2026

Sotto.

A destra. Sedia Carimate Cassina 1960. De Padova 2001. Fritz Hansen 2020. Fondazione Vico Magistretti.
Allestimento della mostra. Foto
Sebastiano Maielli.

ARCHISATIRE

UNA CONTROSTORIA DELL’ARCHITETTURA

«È possibile guardare alla solennità dell’architettura attraverso la leggerezza di una risata?» Una mostra di Gabriele Neri al Teatro dell’Architettura di Mendrisio gioca proprio su questa provocazione e propone quella che viene definita una controstoria dell’architettura: un percorso nell’evoluzione dell’arte del costruire attraverso immagini satiriche e umoristiche che mostrano i grandi progetti attraverso lo sguardo popolare.

dal Rinascimento in avanti, hanno costruito un’immagine del professionista parallela a quella ufficiale dei ritratti celebrativi.

Non mancano inoltre schizzi degli stessi architetti, che nei propri taccuini hanno utilizzato cartoons e caricature come strumenti di comunicazione immediata e come rifugio dalla vita di cantiere.

Dall’alto in senso orario.

Federico Babina, Archicards. Le Corbusier, 2016.

Saul Steinberg, Chest of Drawers Cityscape, 1950. Morgan Library & Museum New York.

Ugo La Pietra, Facciamo pulizia, 1976.

Caricature, vignette, cartoons, fotomontaggi e meme hanno accompagnato nel tempo il lavoro dell’architetto, portando alla luce, in modo velato ma incisivo, questioni e interrogativi spesso elusi dalla storiografia tradizionale. La mostra affianca documenti ufficiali a queste interpretazioni irriverenti, creando un contrasto tra gravità e leggerezza che restituisce la distanza tra la percezione collettiva dell’architettura e quella codificata nei manuali.

I temi affrontati sono numerosi e affondano le radici nei grandi eventi storici che hanno plasmato la disciplina. L’architetto non è esente da caricature, ma ne è spesso il primo protagonista, accompagnato da stereotipi e cliché che,

Il quadro complessivo della raccolta fa emergere la complessità di una disciplina sospesa tra la tensione verso forme ideali di organizzazione dello spazio e le richieste imposte dalle condizioni del presente. Attraverso questo punto di vista inaspettato, il visitatore – architetto o meno – è invitato a riflettere sul ruolo pubblico e sociale di una professione straordinaria. Tutti i materiali esposti provengono da collezioni private e dalla Biblioteca dell’Accademia di architettura di Mendrisio ■

ARCHISATIRE. UNA CONTROSTORIA DELL’ARCHITETTURA

Teatro dell’Architettura Mendrisio. USI Fino al 29 Marzo 2026

OS2 porte e finestre Secco - The Venice Venice Hotel seccosistemi.com

A Venezia, direttamente sul Canal Grande, l’antico palazzo Ca’ da Mosto diventa The Venice Venice, un hotel cinque stelle che, attraverso un restauro colto e misurato, reinterpreta la storica vocazione all’ospitalità della città in chiave “post-veneziana”. Un luogo di incontro tra arte, artigianato e design, nato dalla stratificazione del passato e pensato come bene prezioso da preservare. Gli infissi OS2 in ottone satinato di Secco Sistemi accompagnano questo dialogo tra passato e presente, trasformando la materia in un’eleganza senza tempo.

credit: Alessandra Chemollo

A destra. Dalmatica paramento liturgico dalla chiesa di San Nicola a Stralsund. Grande Impero Mongolo, Asia Centrale o Cina Settentrionale cucita in Germania settentrionale nella prima metà del XIV secolo, Museo di Stralsund.

UN VIAGGIO ATTRAVERSO LA MONGOLIA NEL TEMPO E NELLO SPAZIO

Attraverso una selezione di oltre 200 oggetti, una mostra al Museo Rietberg di Zurigo ripercorre la storia della Mongolia attraversando i luoghi chiave dello Stato moderno e delle fasi che lo hanno preceduto.

In un percorso a ritroso, il visitatore entra nella metropoli di Ulaanbaatar per poi spingersi fino al regno di Gengis Khan e agli insediamenti delle origini. Oggi capitale della Mongolia, Ulaanbaatar ospita circa metà della popolazione del Paese, sebbene una parte significativa resti legata alle tradizioni nomadi. Opere di artisti contemporanei racconta-

no i contrasti della società attuale, accentuati dall’apertura al mondo occidentale negli anni Novanta.

La seconda tappa compie un salto temporale fino al XIII secolo, quando Karakorum era la capitale del più vasto impero della storia. Reperti della vita quotidiana dell’epoca permettono di comprenderne l’organizzazione. Il percorso all’indietro prosegue nel VII secolo con l’impero uiguro e la capitale Karabalgasun, per concludersi con la civiltà degli Xiongnu e il loro universo mitologico popolato da creature fantastiche ■

In alto. Mongolia Foto Pascal Gertsch.

Sopra. Gengis Khan Sh. Sainzul 2022. Museo Nazionale Chinggis Khaan.

MONGOLIA UN VIAGGIO ATTRAVERSO IL TEMPO

Museo Rietberg, Zurigo, Svizzera Fino al 22 febbraio 2026

Il sole è la nostra fonte d’ispirazione quotidiana. Pionieri da oltre 140 anni nel creare il miglior equilibrio fra sole e ombra. Sviluppiamo soluzioni di schermatura solare sostenibili per la salute dell’uomo e per l’ambiente, creando soluzioni confortevoli e durature, dotate di design unico. Inspired by the Sun.

www.griesser.it

Europa bombardata, 1978. Performance Fabio Mauri. Foto Elisabetta Catalano. Courtesy the Estate of Fabio Mauri and Hauser & Wirth.

L’OPPRESSIONE SECONDO FABIO MAURI

Fino al 15 febbraio la Triennale di Milano ospita una mostra sul tema dell’oppressione nell’opera di Fabio Mauri (1926-2009), uno dei protagonisti dell’avanguardia italiana del secondo dopoguerra.

Pienamente inserito nelle contraddizioni del ‘secolo breve’, Mauri ha osservato i grandi eventi storici del Novecento interpretandoli in opere di diverso genere, capaci di trasmettere all’osservatore la tensione costante tra individuo e collettività, simbolo e documento, etica e determinismo storico, così presente negli anni del Secondo dopoguerra.

I suoi lavori, databili fin dagli anni Cinquanta, hanno la capacità di richiamare diret-

tamente la situazione attuale, indagando e manipolando il concetto di ‘schermo’ come soglia e filtro. Esito di una società che all’epoca si stava gradualmente trasformando in una ‘società dello spettacolo’, queste opere parlano oggi all’uomo contemporaneo, che vi riconosce un’interpretazione ante litteram della moderna ‘società dello screen’. L’attualità dell’artista risiede tuttavia nella collezione di opere realizzate a partire dalla fine degli anni Sessanta e legate a una riflessione sul tema dell’oppressione che ha impegnato Mauri per oltre trent’anni. Attraverso declinazioni legate a cultura, identità e ideologia, l’artista ha indagato come questi tre

Dall’alto. Rebibbia, 2006 (dettaglio). Foto Sandro Mele. Allestimento della mostra. Foto Stefano Tacchinardi.

Amore mio, 1970. Galleria Hauser & Wirth, Zurigo, 2023. Foto Stefan Altenburger. Courtesy the

concetti siano divenuti, nel corso della storia, strumenti di sopraffazione.

La mostra ospita opere inedite, come Amore mio (1970), mai più esposta dopo la presentazione nell’anno della realizzazione, e diverse iniziative collaterali, tra cui workshop, visite guidate e incontri educativi co-patrocinati con l’associazione Genesi, attentamente modulati per offrire una piena esperienza a visitatori di ogni età ■

Fabio Mauri DE OPPRESSIONE

Triennale Milano 3 dicembre 2025 | 15 febbraio 2026

Fabio Mauri.
Foto Claudio Martinez.
Estate of Fabio Mauri and Hauser & Wirth.

Adalberto Libera la poetica personale di un fascista di sinistra

di

1938. Curzio Malaparte, scrittore affermato e uomo vicino al fascismo, acquista per dodicimila lire un costone roccioso a picco sul mare, a Punta Massullo. Un luogo spettacolare, ma teoricamente non edificabile. A favorirlo, però, c’è l’amicizia con Galeazzo Ciano, marito di Edda Mussolini e figura potentissima nell’Italia dell’epoca. Per superare gli ostacoli burocratici occorre presentare un progetto firmato da un giovane architetto in vista: la scelta cade su Adalberto Libera, nato nel 1903 e già noto per l’allestimento della Mostra della Rivoluzione Fascista, la grande celebrazione propagandistica del regime.

Libera comprende che si tratta di un incarico pro-forma. Disegna dunque una casa semplice: due livelli sovrapposti, il primo rivestito in pietra e destinato agli ambienti di servizio, il secondo intonacato con un grande soggiorno affacciato su una terrazza. Una scala murata, pesante e poco elegante, separa i due spazi: un dettaglio che rivela quanto l’architetto non si sia impegnato davvero, consapevole che quel progetto non sarebbe mai stato realizzato.

E infatti, ottenuta l’autorizzazione (la licenza edilizia per l’intera casa è rilasciata dal Podestà il 12 settembre, tenuto conto dell’approvazione della Sopraintendenza all’Arte Medievale e Moderna della Campania), Malaparte accantona i disegni e avvia la costruzione di una villa completamente diversa: articolata,

talvolta grossolana, ma dotata di intuizioni sorprendenti – la scalinata a trapezio, le grandi aperture del soggiorno, il camino che incornicia il paesaggio. È un miscuglio di ingenuità e ispirazione che finirà per produrre un’architettura irripetibile. Libera, sapendo bene di non averne alcun merito, non la includerà nelle sue opere.

Proveniente da una famiglia benestante (la madre apparteneva ai Pallavicino di Parma), Libera conosce perfettamente le dinamiche sociali e professionali del suo tempo. Riesce a evitare il servizio militare, entra prestissimo nel Gruppo 7 – nucleo iniziale del razionalismo italiano – che viene invitato da Mies van der Rohe a esporre al Weissenhofsiedlung di Stoccarda.

La sua mossa più brillante arriva con la creazione del Miar, il Movimento Italiano per l’Architettura Razionale, fondato dopo I’Esposizione italiana di architettura razionale organizzata a Roma nel 1928 da lui e Gaetano Minnucci. Nel Miar confluiscono i nomi più promettenti della nuova architettura: dai membri del Gruppo 7 a Alberto Sartoris, Mario Ridolfi, Gino Levi-Montalcini, Pietro Aschieri, Mario Labò. Nel 1931, quando Pietro Maria Bardi allestisce nella sua galleria romana la seconda mostra del razionalismo, il Miar presenta il polemico Tavolo degli orrori, un attacco diretto a Brasini, Bazzani, Giovannoni e Piacentini. L’inaugurazione, con un Mussolini apparentemente benevolo, scatena però la reazione dell’acca-

demia: con il sostegno del Sindacato fascista architetti nasce il Rami, contrapposto al Miar. A questo punto Libera opta per una scelta pragmatica: scioglie il movimento. La rinuncia allo scontro gli procura immediatamente vantaggi. Ottiene, insieme a Mario De Renzi, l’incarico dell’allestimento della Mostra della Rivoluzione Fascista. De Renzi – vicino al Rami – diventerà suo socio, e con lui firmerà progetti come le Poste di viale Aventino.

A seguito delle leggi del 1938 e 1939, Libera, che siede nel direttorio del Sindacato Fascista Architetti del Lazio, non esita a firmare la cancellazione dal sindacato stesso degli architetti ebrei.

Tuttavia la sua affermazione non si deve solo alla capacità di muoversi con opportunismo e abilità. Libera possiede una poetica personale forte: le sue architetture sono oggetti conclusi, autonomi, lontani dalla trasparenza atmosferica cara a Persico o dalla scomposizione volumetrica perseguita da Terragni.

Paolo Melis individua quattro elementi cardine del suo modo di progettare: distacco dal contesto, chiusura organica dell’edificio, unicità dell’opera e forte valore simbolico. A questi si aggiunge un crescente ruolo della struttura, sempre più decisivo con il passare degli anni. Bruno Zevi, pur severissimo nei confronti degli architetti compromessi con il fascismo, fa un’eccezione per Libera, che definisce un «fascista di sinistra». Nell’accoppiata Libera-De Renzi riconosce un equilibrio di temperamenti: la severità del trentino e la morbidezza del romano.

Libera, comunque, non è uomo da alleanze durature. Per l’E42 elabora un primo progetto per il Palazzo dei Ricevimenti e dei Congressi – un volume circolare preceduto da un avancorpo trasparente – e immagina un enorme arco simbolico che non verrà mai realizzato e che ricomparirà, trasformato, nel Gateway Arch di Saarinen. Per vedere costruito l’edificio, accetta poi di modificarlo pesantemente, scatenando la protesta di Giuseppe Terragni, secondo classificato al concorso. E si adegua anche alla richiesta di Marcello Piacentini di aggiungere colonne monumentali, in linea con una visione dell’Eur più tradizionale della sua. Abile nel muoversi tra politica e mestiere, riesce a evitare il servizio militare durante la guerra. La sua vena visionaria si affievolisce, lasciando spazio alla ricerca della precisione costruttiva e della funzionalità impeccabile. Nel dopoguerra Arnaldo Foschini lo chiama a dirigere l’Ufficio progetti di Ina-Casa, incarico che porta avanti con efficacia contribuendo al

più ambizioso programma residenziale italiano dell’epoca. Nel 1954 diventa professore straordinario di composizione architettonica presso l’Università di Firenze, per poi trasferirsi nel 1962 a Roma, dove morirà nel marzo 1963, pochi mesi dopo l’arrivo.

Insegnante serio ma distante, è bersaglio delle proteste studentesche del ’62–’63, che apriranno la strada a figure come Zevi e Quaroni. Tra il 1950 e il 1954 Libera realizza uno dei migliori interventi residenziali del dopoguerra, l’Unità d’abitazione orizzontale al Tuscolano, che dimostra come sia possibile fare architettura poetica lavorando su funzione e tipologia. E nel Palazzo della Regione a Trento (19581964) inaugura un diverso modo di intendere la struttura: l’edificio sembra sospeso, sorretto da due forme iperboliche calcolate dal geniale Sergio Musmeci.

È una carriera di primo piano, che tuttavia continua a essere oscurata – ironia della sorte – da una casa che non è sua ■

Sotto. Palazzo dei Ricevimenti e dei Congressi è esito di rielaborazioni che hanno snaturato il progetto iniziale.

A destra. Casa Malaparte, a picco sul mare di Capri, è in realtà lavoro del committente Curzio Malaparte.

LA PERCEZIONE DELLO SPAZIO

NELLA PEDAGOGIA DELL’ARCHITETTURA

di Caterina Frisone

Oggi, in alcune discipline, il ruolo del corpo nella percezione dello spazio è tornato in primo piano, a seguito di un profondo interesse per lo studio del cervello (ad esempio nelle neuroscienze e nello sviluppo dell’intelligenza artificiale) e ha portato ad affermare che la percezione va oltre i cinque sensi aristotelici e che il corpo stesso è considerato un unico grande senso. In architettura, questo aspetto è diventato noto grazie alla ricerca di alcuni architetti e artisti contemporanei come Steven Holl, Olafur Eliasson o le Grafton Architects che, trasformando lo spazio in ambienti immersivi, hanno saputo “avvolgere il corpo come un indumento” (Vischer, 1873) comunicando una sensazione di benessere.

Un breve retroterra ci aiuta a spiegare la percezione dello spazio visto dalla parte del corpo nella sua interezza.

Pedagogia e Movimento 1910-1960

Con l’obiettivo di esplorare la relazione tra la progettazione dell’ambiente costruito e il benessere umano, dalle mie ricerche è emerso che il segreto è il movimento che l’architettura può generare nel corpo.

Fin dall’antica Grecia, il movimento della danza – considerata un dono degli Dei – aveva un potere terapeutico sia sul corpo che sulla mente, allontanando dolori e preoccupazioni (Raso, 2004).

Considerata la riscoperta di “uno dei segreti dell’educazione greca” (Sadler, 1913), tra il 1910 e 1913, presso l’Accademia di Hellerau (che aprì la strada al Bauhaus), l’Euritmica di Dalcroze – tecnica per insegnare la musica attraverso il movimento ritmico del corpo – fu considerata particolarmente rivoluzionaria. La ginnastica ritmica, detta anche euritmica, enfatizzava il corpo e i suoi movimenti attraverso l’ascolto del proprio ritmo biologico. Per aiutare gli studenti a essere più felici e creativi, Dalcroze utilizzava musica e danza che lui diceva essere “coordinamento tra la mente che concepisce, il cervello che ordina, il nervo che trasmette e il muscolo che esegue” (JaquesDalcroze, 1913). In questo processo olistico, la chiave è fare riferimento al ritmo naturale del corpo. Grazie a Dalcroze e al suo programma artistico, oggi possiamo apprezzare il ruolo che i movimenti del corpo svolgono nel generare emozioni e benessere.

Nel primo Bauhaus di Weimar (1919-23), il curriculum iniziava con un corso preliminare, il Vorkurs, invenzione didattica di Johannes Itten che mirava a liberare la creatività degli studenti attraverso il ‘lavoro interiore’ e l’’imparare facendo’, integrando diverse materie e argomenti e adottando un approccio basato sull’intuizione.

Le sue lezioni iniziavano con esercizi di ginnastica e respirazione, prima di passare a discussioni elementari sulla natura dei materiali e su aspetti della teoria del colore, per introdurre a una nuova percezione dell’arte e degli oggetti. In questo fare, gli studenti non si sedevano ad ascoltare le lezioni, ma si muovevano e interagivano con gli spazi e le persone. Influenzate dalla psicologia della Gestalt, anche altre discipline venivano basate sul ‘movimento’, come la fotografia, la scenografia e la danza (Hochman, 1997).

A cominciare dal 1910, nelle sue scuole fondate in Germania, Rudolf von Laban (1879-1958), ballerino e coreografo ungherese nonché teorico della danza moderna, sviluppò un sistema di notazione del movimento noto come Notazione Laban

A sinistra. Olafur Eliasson The weather project 2003. Tate Modern. Londra. Foto Olafur Eliasson courtesy of the artist neugerriemschneider Berlin. Tanya Bonakdar Gallery New York. ©2003 Olafur Eliasson.

Sotto. Diorama sviluppato nell’ambito del programma di Architettura d’Interni dell’Università di Oxford Brookes per esplorare la dimensione empirica dello spazio.

Certo di dover dare continuità all’arte coreutica, con questo sistema Laban ha posto le basi per uno sviluppo della danza libero dai condizionamenti del balletto classico, valorizzando invece, attraverso il movimento libero, la creatività di ogni individuo. Secondo Laban il corpo è, infatti, architettura vivente, creata dal movimento umano che sviluppa una sequenza di tracce, le ‘forme spaziali’, che sono quelle forme che vengono lasciate nello spazio dal movimento stesso. Ogni movimento crea una ‘forma-traccia’, e ogni forma è creata dalla separazione artificiale dello spazio generata dal movimento (Laban, 1966). Partendo da questo principio, lo spazio non è mai spazio vuoto, ma è ciò che mette in risalto il movimento creato e modificato attraverso un corpo in movimento. Tuttavia, lo spazio può essere compreso solo se, nel movimento, l’esperienza è sempre sequenziale (Sala, 2017).

Percezione e Pedagogia 2016-2020 Nell’ambito del programma di Architettura d’Interni dell’Università di Oxford Brookes, per insegnare agli studenti del terzo anno a migliorare l’esperienza sensoriale e corporea all’interno dei loro progetti, abbiamo adottato la tecnica del ‘diorama’, un modello 3D, non reale ma distorto appositamente per forzare il movimento e, quindi, la percezione, che aiuta gli studenti a esplorare la dimensione empirica

dello spazio. In particolare, nel 2018, il tema è stato quello dei Maggie’s Centre, luoghi di supporto psicologico per malati oncologici, molto noti nel Regno Unito, basato sulla convinzione che il design sia una forma di guarigione. Utilizzando il diorama, gli studenti hanno compreso che non solo il movimento è alla base della percezione, ma anche che l’architettura ha un potere che gli architetti di Maggie’s hanno usato facendo provare agli utenti una sensazione di benessere che li porta all’accettazione della realtà della malattia.

Mentre nei modelli architettonici convenzionali viene mantenuta la corrispondenza ortografica ma le qualità spaziali (luce, materialità, viste) sono approssimative, il diorama fornisce rappresentazioni pittoriche tridimensionali che catturano un’impressione più realistica di un dato spazio (e dei suoi mutevoli effetti atmosferici) attraverso una struttura visiva deliberatamente distorta che tiene conto delle condizioni soggettive di visione.

Nei diorami degli studenti, lo spazio immaginario è diventato uno spazio emozionale, confermando la tesi di Giuliana Bruno secondo cui spazio architettonico e spettacolo cinematografico sono interconnessi. Esempi di diorami costruiti come efficaci rappresentazioni dello spazio ‘variabile’ sono stati recentemente utilizzati in una serie di lavori sperimentali, dal weather project di Olafur Eliasson, alla

C’è un terribile equivoco sull’architettura, ovvero che sia un’arte visiva. Sì, si possono vedere edifici, fotografarli e filmarli, ma gran parte dell’esperienza ha a che fare con le sue qualità spaziali. L’architettura non funziona con un solo senso, ma con ibridi sinestetici

Moore, 2014

Tate Modern di Londra (2003) alle installazioni Sensing Spaces alla Royal Academy ((2014), volte a costruire ambienti emozionali da percepire con tutto il corpo e non con i singoli sensi. L’architettura non funziona con un solo senso, ma con ibridi sinestetici. Sensing Spaces è un progetto eroico che mette queste sottili qualità al centro dell’attenzione (Moore, 2014).

Conclusioni

Gli architetti oggi non sono sempre consapevoli di questo potenziale e, non conoscendo la biologia umana – che spiega come cervello e corpo percepiscano insieme il mondo attraverso i sensi e i loro recettori e agiscano su di esso attraverso il movimento e la parola – non possono prevedere come le persone reagiranno all’ambiente che stanno progettando. Solo inserendo questa disciplina (per es. la lettura cognitiva dello spazio), fin da subito negli studi universitari di architettura sarà possibile avere architetti in grado di progettare spazi che ‘avvolgono’ e creano benessere. Non c’è dubbio che la scoperta del sistema dei neuroni specchio abbia alimentato un rinnovato interesse per le questioni relative al rapporto empatico tra uomo e architettura tipico di teorie insegnate all’inizio dello scorso secolo. Confermate da tecniche di neuroimaging e da recenti esperimenti condotti nei laboratori di Neuroestetica, molte delle tecniche pedagogiche maturate in Europa nel XIX secolo ci hanno portato a conoscere la teoria dell’Einfühlung (sentire dentro) che ci permette di relazionarci con gli altri riconoscendo il nostro corpo vivente come analogo ad altri corpi che si muovono nello spazio. Possiamo concludere quindi che l’architettura gioca un ruolo cruciale nel generare benessere, ma solo se è in grado di spingere il corpo verso un movimento che favorisca la percezione dello spazio. Questa ricerca ambisce a reintegrare la posizione del corpo in movimento nel discorso sulla percezione dello spazio e negli studi universitari di architettura ■

Il restauro come tema di progetto e responsabilità culturale nella valorizzazione dell’esistente

Le città europee, e in particolare quelle italiane, sono organismi complessi e stratificati, nei quali costruire ex-novo è ormai solo un aspetto dell’attività progettuale. In questo senso il restauro non è un ambito specialistico separato ma una condizione del progetto contemporaneo che richiede di operare all’interno di un patrimonio ricco di memorie, significati e valori: significa assumersi una responsabilità culturale. Il progetto di restauro dei beni sottoposti a vincolo monumentale deve valorizzare i ruoli tecnici delle soprintendenze (obiettivo notoriamente difficile); evidenziare da subito i problemi che nascono da errori di valutazione nelle scelte di destinazioni d’uso o di budget; valorizzare la fase di diagnosi preventiva. Occorre in altre parole dare un contenuto autentico alla C (conservatori) della sigla Cnappc che dal 2001 si è aggiunta a Cna, anche impegnando le università a proporre corsi sempre più mirati e professionalizzanti. Sul piano legislativo, è urgente risolvere i nodi procedurali della normativa che impediscono al nostro Paese di essere primo al mondo, oltre che nell’eredità dal passato (con ben 61 siti Unesco) anche nella sua manutenzione e recupero.

progettazione esecutiva alle imprese con la formula dell’appalto integrato. Lo abbiamo visto in troppi casi recenti, per la fretta di far partire lavori finanziati dal Pnrr che poi rischiano di non rispettare le scadenze ed essere definanziati. Se questo è grave nel restauro dell’antico, anche per la carenza di manodopera qualificata, non lo è da meno nel restauro del moderno, dove spesso si sottovalutano le inevitabili problematiche che sorgono in corso d’opera: se nel caso del moderno le tecniche costruttive non sono del tutto cambiate, sono però diventati più stringenti i criteri ambientali da rispettare per un adeguato riuso delle opere.

Aldo Norsa

Con una lunga carriera di docenza universitaria in Italia e all’estero dal 2010 il professor Aldo Norsa, direttore scientifico dell’Istituto di ricerca Guamari, cura il Report on the Italian Architecture Engineering and Construction Industry, il Rapporto Classifiche Le prime 70 imprese dell’edilizia privata e organizza la conferenza annuale Tall Buildings. Dal 2023 è membro della giuria dei Premi Oice e dal 2025 è nell’advisory board della Jrp Costruzioni del Politecnico di Milano. www.guamari.it

Dopo il decreto legislativo n. 50 del 2016 – il cosiddetto ‘Codice dei contratti pubblici’ – nel 2017 venne approvato il decreto ministeriale n. 154 contenente un regolamento del Mibact che norma i requisiti delle imprese esecutrici, dà la possibilità ai restauratori (nel frattempo inseriti in un albo professionale riconosciuto) di progettare interventi per le superfici e i beni mobili e ipotizza che la direzione dei lavori possa essere assicurata da personale interno ma con la presenza di un restauratore iscritto all’albo. Purtroppo si ripropone l’annoso problema dei tempi di realizzazione e delle varianti, non risolto negli anni né con la validazione dei progetti (spesso un mero esercizio burocratico) né con il tentativo di aggirare il problema affidando la

Se il restauro dell’antico è sufficientemente codificato, quello del moderno è più problematico perché molti edifici mostrano una fragilità strutturale e un’inadeguatezza energetica che ne mette in discussione la convenienza e la sopravvivenza. E poiché il riconoscimento del loro valore culturale non è sempre condiviso, il restauro del moderno deve interrogarsi sul valore dell’opera e la capacità di continuare a essere utilmente fruita. Affrontiamo il tema intervistando sei società di progettazione, tra cui Studio Berlucchi, 120esimo nella classifica Guamari e il solo che si occupa esclusivamente di restauro.

3 DOMANDE a 6 architetti

1 Come cambia il vostro approccio nel caso di interventi di restauro e recupero?

2 Quali a vostro avviso le differenze tra il restauro dell’antico e quello del moderno?

3 Qual è l’esperienza di restauro più significativa della vostra società?

Massimo Alvisi e Junko Kirimoto

Alvisi Kirimoto + Partners

1 _ L’attenzione al restauro nasce dalla consapevolezza che il progetto di architettura si confronta sempre più con l’esistente. Il nostro approccio si fonda su un lavoro di conoscenza approfondita: studio storico-critico, analisi delle trasformazioni, comprensione della logica costruttiva e del sistema spaziale. Solo così è possibile individuare le parti da preservare e quelle da trasformare evitando interventi mimetici o conservativi. Allo stesso tempo dare nuova vita agli edifici significa restituire loro una funzione attuale, riconoscibile e capace di rispondere alle esigenze della società contemporanea. Il progetto deve accettare l’idea della trasformabilità: gli usi cambiano, le modalità di fruizione evolvono e l’architettura deve essere in grado di accogliere le mutazioni.

2 _ La differenza tra il restauro dell’antico e quello del moderno non è semplicemente una

questione cronologica ma riguarda il modo in cui l’architettura si relaziona al tempo, all’uso e alla tecnologia. Nel restauro dell’antico ci si confronta con edifici che hanno attraversato secoli di trasformazioni adattandosi a funzioni diverse, in cui la stratificazione è parte integrante del valore dell’opera: il progetto deve porre particolare attenzione alla conservazione della materia e alla leggibilità delle fasi storiche. Il restauro del moderno pone questioni diverse e più complesse: l’architettura del ‘900 è spesso ispirata a funzioni e tecnologie specifiche e a una visione ideologica dell’abitare e della città.

3 _ L’intervento di ristrutturazione e rifunzionalizzazione del Palazzo dei Congressi dell’Eur è emblematico del nostro approccio: coniugare tutela e trasformazione, rispetto filologico e innovazione, memoria e contemporaneità. Edifi-

cio di grande valore architettonico e simbolico, progettato da Adalberto Libera per l’Esposizione Universale del 1942, insieme alla Nuvola costituisce il polo congressuale di Roma. Questo primo intervento organico si articola da un lato nel recupero e restauro degli elementi architettonici e artistici e dall’altro nell’adeguamento funzionale con l’inserimento di nuovi dispositivi per migliorare i flussi, la flessibilità degli spazi e le dotazioni tecniche. Consapevoli che Libera avesse già immaginato l’evoluzione dell’edificio, abbiamo seguito un percorso che amplia e perfeziona dispositivi già presenti con tecnologie contemporanee senza introdurre elementi estranei al linguaggio architettonico. Particolare rilevanza assume la valorizzazione del fregio di Gino Severini e delle fontane decorative esterne.

Render del Palazzo dei Congressi all’Eur. Lo studio ne sta curando la rifunzionalizzazione.
Foto Ilaria Magliocchetti Lombi

3 DOMANDE a 6 architetti

1 Come cambia il vostro approccio nel caso di interventi di restauro e recupero?

2 Quali a vostro avviso le differenze tra il restauro dell’antico e quello del moderno?

3 Qual è l’esperienza di restauro più significativa della vostra società?

1 _ Il mio studio non ha mai fatto nessuna differenziazione tra progettazione ex-novo e restauro, anche perché storicamente ci siamo specializzati nel far convivere entrambi gli aspetti all’interno dello stesso oggetto. Tendenzialmente, i palazzi esistenti sui quali interveniamo hanno delle componenti che vengono mantenute, molte volte restaurate in modo conservativo, mentre altre parti degli stessi le progettiamo completamente nuove, volutamente in stacco, anche linguistico, rispetto alla preesistenza, ma nel tentativo di determinare quelle caratteristiche di rapporti e di tipologia degli elementi componenti dell’architettura che ne permettono la convivenza.

2 _ Il nostro approccio al restauro è quello di mettere in evidenza le caratteristiche dello spirito originario della progettazione che ne è sottesa. Nel caso del restauro dell’antico, peraltro, è più una questione di recuperare il dettaglio, la matericità, mentre nel restauro del moderno il dettaglio è meno specificato, mentre è molto più importante cogliere lo spirito del progettista e anche del costruttore, a livello compositivo. Intendo il restauro del moderno più come il recupero di un concetto dell’abitare o del costruire, mentre il restauro dell’antico è più come un recupero del manufatto in quanto tale.

3 _ L’esperienza della riqualificazione della Torre Velasca è stata sicuramente pregnante per la mia carriera, sia in termini di restauro ma anche di recupero del manufatto originale, cercando di comprendere le caratteristiche costruttive di disegno, di dettaglio, per poi poterle riproporre, ripulite da tutte le vicende che possono essersi sovrapposte nei decenni. È stato un intervento significativo perché – legandoci anche alla domanda precedente – è stato un tentativo di cogliere l’espressione di un oggetto moderno, di catturare l’essenza che i Bbpr hanno voluto dare alla Torre in termini di organizzazione degli spazi, di fluidità del movimento delle persone all’interno. Dunque, siamo andati ben al di là del restauro conservativo, passando dal restauro materico al cosiddetto ‘restauro tipologico’: ovvero andare a recuperare quegli elementi tipologici dell’impianto, soprattutto dal punto di vista distributivo, impiantistico e costruttivo, che in qualche maniera erano espressione del palazzo. Elementi che non abbiamo riproposto identici a come erano, ma interpretando l’impostazione progettuale che vi era sottesa.

La Torre Velasca dopo il restauro operato da Asti Architetti. Foto Giacomo Albo.
Foto Andrea Cherchi

3 DOMANDE a 6 architetti

1 Come cambia il vostro approccio nel caso di interventi di restauro e recupero?

2 Quali a vostro avviso le differenze tra il restauro dell’antico e quello del moderno?

3 Qual è l’esperienza di restauro più significativa della vostra società?

Nicola Berlucchi

Studio Berlucchi

1 _ Lo Studio Berlucchi è stato fondato nel 1920 da mio nonno Antonio, ingegnere idraulico. I due figli si aprono all’architettura con mio padre Roberto che si dedica a ristrutturazioni di alta qualità. Il passaggio al restauro monumentale avviene dopo la mia specializzazione universitaria in questa disciplina e poi con 15 anni di direzione di uno dei principali laboratori di diagnostica monumentale. Con 350 indagini diagnostiche alle spalle ero pronto per intervenire su una categoria di edifici unica per l’approccio e la delicatezza delle scelte architettoniche, strutturali e impiantistiche. Dopo 35 anni di esperienza e 380 progetti su edifici vincolati direi che la scelta è vincente.

2 _ Si tratta di due professioni specialistiche, accomunate dal termine ‘restauro’ ma con differenze sia pratiche sia metodologiche. Il restauro dell’antico si basa ancora sull’esperienza del singolo, sulla sua sensibilità e capacità di utilizzare la calce come principale legante e integrare i decori sottotono per non alterare l’aspetto originale, che in genere è frutto di secoli di stratificazioni. Al contrario, l’edificio moderno ha un autore ben definito e un chiaro momento ideativo a cui può essere riportato: nel suo restauro i materiali devono essere compatibili con il cemento, certificati nella du-

rata e nelle prestazioni e assolvere, oltre alla funzione estetica anche la statica. È una scienza che necessita di prodotti spesso additivati con resine e certificati nella durata.

3 _ Sono centinaia i monumenti che hanno lasciato il segno nella nostra esperienza, dai mosaici romani alle basiliche bizantine, dai templi greci ai primi edifici in cemento armato. Non necessariamente famosi: una chiesa che nasconde tracce del ‘900 o un teatro che mostra i decori pensati da Giuseppe Valadier ricoperti da innumerevoli strati di tinta: ogni monumento è una scoperta e un’emozione differente. Potrei citare l’ultimo completato: la ricostruzione della Basilica di San Benedetto a Norcia (costruita sulla dimora dove nacque nel 480, semidistrutta dal terremoto del 2016). Nessun progetto nasce da una persona, la complessità del restauro esige il coordinamento con tanti specialisti e la Basilica ne è l’esempio per la particolarità di progettare un nuovo soffitto interno e garantire la valorizzazione delle fasi costruttive sopravvissute. Non esiste una fase antica a cui riferirsi bensì un palinsesto lungo più di mille anni, perché il restauro cólto non cancella i segni del tempo ma li valorizza rendendoli comprensibili e apprezzabili.

Fotomontaggio del progetto di restauro della Basilica di Norcia.

Francesco Conserva Open Project

1 _ Valorizzare l’identità del patrimonio edilizio storico con la consapevolezza della necessità di trasmetterne alle generazioni future la bellezza è il fondamento dell’approccio di Open Project al restauro. Intervenire su un bene storico non è mai un gesto puramente tecnico ma un atto culturale che implica responsabilità, conoscenza e rispetto per la materia costruita e per la storia. Il restauro è inteso come pratica di conservazione del palinsesto storico-mate -

3 DOMANDE a 6 architetti

1 Come cambia il vostro approccio nel caso di interventi di restauro e recupero?

2 Quali a vostro avviso le differenze tra il restauro dell’antico e quello del moderno?

3 Qual è l’esperienza di restauro più significativa della vostra società?

rico, uno strumento per svelarne le stratificazioni, interpretarne le vicende e consolidarne le vulnerabilità affinché l’opera sia salvaguardata, fruita e compresa nella sua complessità. Questo processo si fonda su un approccio critico, nel quale ogni intervento contemporaneo deve dichiarare la sua presenza inserendosi in un intreccio cronologico.

2 _ Il nostro progetto di restauro nasce da questa consapevolezza e si sviluppa attraverso un metodo che privilegia cautela, rigore e senso critico. L’obiettivo è la ricerca di una terza via tra la conservazione a priori, integralista e intransigente, e la riproposizione della bellezza di un passato irripetibile, evitando tanto la mummificazione quanto la ricostruzione mimetica. La bellezza, in questa prospettiva, non è un fatto istintivo ma il risultato di un processo culturale e conoscitivo. Se i cardini teorici del restauro sono condivisi, ciò che muta tra l’intervento sull’antico e quello sul moderno è la conoscenza dei materiali introdotti nei primi decenni del ‘900, spesso concepiti con l’illu-

sione di essere eterni. La consapevolezza della loro vulnerabilità si trova nel restauro di opere di Attilio Muggia (ex-Banco di Napoli a Bologna), di Ildebrando Tabarroni (colonie La Bolognese a Rimini) e di Pier Luigi Nervi (le ‘ballette’ dell’ex-Manifattura Tabacchi a Bologna).

3 _ Tra le esperienze più significative vi è il restauro della Pinacoteca Civica del Guercino a Cento (Ferrara) e del Monastero della Visitazione a Bologna, futura sede della Fondazione Sant’Orsola. Sempre a Bologna l’intervento sull’ex-Banco di Napoli, oggi sede di PwC, nel quale l’eclettismo dell’autore e l’uso pionieristico del calcestruzzo armato sono valorizzati reinterpretando elementi originari in dialogo con altri di natura contemporanea: tutto basato sullo studio di fonti d’archivio, sulla tutela del passato e sull’apertura al futuro e ai princìpi di sostenibilità. La corte al piano terra, simbolo del genius loci dell’edificio, acquista nuovo valore mantenendo la sua identità e tornando a essere luogo di connessione e condivisione con la città.

L’ex-Banco di Napoli di Attilio Muggia a Bologna oggi sede di PwC.

DEDICHIAMO AI PROGETTI L’ECCELLENZA CHE MERITANO.

Ogni visita al Museo Nazionale Scienza e Tecnologia Leonardo da Vinci è un’esperienza immersiva e confortevole. I sistemi Mitsubishi Electric per il riscaldamento e il raffrescamento dell’aria mantengono condizioni ottimali negli spazi espositivi, proteggendo le opere e garantendo ai visitatori un clima sempre ideale.

Museo Nazionale Scienza e Tecnologia Leonardo da Vinci (Milano)

LA SOLUZIONE ADOTTATA

• Impianto di climatizzazione con sistema HVRF

• Sistema in pompa di calore tipo VRF ad alta efficienza

• Comfort elevato degli spazi espositivi e tutela delle opere

Ogni progetto richiede eccellenza. Mitsubishi Electric risponde con soluzioni innovative e versatili, capaci di adattarsi a contesti diversi e alle esigenze di chi li vive. Dalla progettazione alla realizzazione, offriamo sempre la soluzione migliore per garantire il massimo comfort, trasformando ogni ambiente in un’esperienza ideale di benessere.

Mitsubishi Electric, il piacere del clima ideale.

del restauro

3 DOMANDE a 6 architetti

1 Come cambia il vostro approccio nel caso di interventi di restauro e recupero?

2 Quali a vostro avviso le differenze tra il restauro dell’antico e quello del moderno?

3 Qual è l’esperienza di restauro più signifi cativa della vostra società?

ABDR Architetti Associati

1 _ Abdr ha partecipato a molte gare di appalti integrati/accordi quadro con finanziamenti Pnrr: alcune per interventi di trasformazione e/o restauro di edifici vincolati, sempre evitando quelle che prevedevano solo restauro monumentale e privilegiando l’attività di progettazione sovrapposta al restauro specialistico. Tra i progetti di trasformazione di edifici storico-monumentali ricordo a Roma la ex-Serra Piacentini al Palazzo delle Esposizioni e a Reggio Calabria il Museo della Magna Grecia. Tuttavia nelle recenti gare Pnrr ci siamo trovati a dover affrontare temi di grande delicatezza e specialismo connessi al restauro sia dell’antico (come il Real Albergo dei Poveri a Napoli) sia del moderno (come la biblioteca civica di Torino all’interno del Salone B dell’Auto di Pierluigi Nervi). In tutti questi casi la filosofia di Abdr per progetti complessi ha guidato le scelte fondamentali: tecnica e creatività finalizzate a risolvere i problemi e non ad aumentarne la portata.

2 _ Il nostro approccio strategico non cambia tra restauro dell’antico e del moderno, pur restando distinte le tecniche specialistiche specifiche. Nel caso dell’antico operiamo nel rispetto della manualistica del restauro, ancorché sempre applicato a manufatti in buono

stato di conservazione. Devo dire che il rapporto con le Soprintendenze è sempre stato caratterizzato da eccellente dialogo istituzionale che ha reso possibile nella stragrande maggioranza dei casi il rispetto di tempi sempre terribilmente ridotti.

3 _ Certamente l’occasione di maggior rilevanza è stata il restauro, riuso e parziale ricostruzione del Real Albergo dei Poveri a Napoli. Si tratta, come noto, del terzo edificio storico più grande d’Europa che occupa 100mila metri quadrati. Il progetto è stato sviluppato con l’intento di conservare le funzioni sociali originarie e perciò si è scelto di riaprirlo alla città. Nel rispetto del principio insediativo formulato da Ferdinando Fuga il progetto conserva gli accessi esistenti dando continuità tra le vie cittadine e i percorsi interni, caratterizzati da grandi corridoi che svolgono il doppio ruolo di parte costitutiva e necessaria dell’impianto tipologico e distributivo e di strade di penetrazione nel gigantesco complesso architettonico. Questa connessione è garantita dai due accessi al piano terra del corpo centrale e dallo scalone che conduce all’ingresso principale, oltre il quale gli spazi al piano terra della corte centrale, nell’ala su piazza Carlo III, sono pubblici e accessibili direttamente dall’interno della corte.

Render
del Real Albergo dei Poveri a Napoli (©Abdr).

3 DOMANDE a 6 architetti

1 Come cambia il vostro approccio nel caso di interventi di restauro e recupero?

2 Quali a vostro avviso le differenze tra il restauro dell’antico e quello del moderno?

3 Qual è l’esperienza di restauro più significativa della vostra società?

La nuova ‘piazzetta del Bagolaro’ è parte integrante del progetto di rifunzionalizzazione della Cavallerizza Reale di Torino (render ©CZA).

Cino Zucchi

CZA Cino Zucchi Architetti

1 _ Il metodo progettuale è sostanzialmente lo stesso: una forte volontà di contestualizzazione. Lavorando sull’esistente adottiamo un approccio di ‘agopuntura urbana’ fondato sulla conoscenza approfondita della storia, dello stato di fatto degli edifici e degli spazi aperti, per comprendere come manufatti di epoche diverse possano accogliere – integrando saperi antichi e tecniche contemporanee – stili di vita e valori in evoluzione. Il progetto si sviluppa attraverso interventi mirati, addizioni e innesti discreti ma riconoscibili per rifunzionalizzare gli spazi e introdurre un grado misurato di contemporaneità senza snaturare il carattere originario. Si affiancano adeguamenti tecnologici e uso di materiali ecologici e impianti efficienti. Inclusività, accessibilità e mix funzionale sono fondamentali per restituire all’edificio un ruolo attivo nella vita collettiva.

2 _ In entrambi i casi si lavora con la memoria e con caratteri consolidati che non dipendono solo dall’età dell’edificio. Un manufatto antico non ha automaticamente un valore superiore: conta la storia ma anche le qualità spaziali e tipologiche dovute all’uso e alle trasformazioni dell’edificio nel tempo. Il progetto di restauro si fonda su tre princìpi: conoscenza dello stato di fatto, interpretazione dell’esistente alla luce

delle esigenze contemporanee e possibilità di inserire nuovi elementi coniugando l’intensità dell’esperienza urbana con la responsabilità nei confronti dell’ambiente.

3 _ L’esperienza più significativa è la rifunzionalizzazione della Cavallerizza Reale di Torino: un’occasione per confrontarsi con un sistema architettonico di grande complessità e stratificazione storica e tipologica. L’area, parte della ‘zona di comando’ della Reggia Sabauda, comprende edifici di epoche e autori diversi, a cominciare dal Teatro Regio riprogettato da Carlo Mollino, che testimoniano addizioni successive, ripensamenti e fratture non ancora sanate. Il progetto è individuato nello spazio aperto tra l’Ala del Mosca, le Pagliere e i Giardini Reali come attivatore di nuove relazioni urbane, capace di mettere in connessione i percorsi pubblici provenienti da sud con il sistema del verde a nord. La nuova ‘Piazzetta del Bagolaro’ diventa un luogo di mediazione tra architettura e paesaggio, un vestibolo urbano dei Giardini Reali. Parallelamente il lavoro sugli edifici, con criteri di conservazione e ripristino in costante confronto con le istituzioni, ricerca un equilibrio tra tutela e trasformazione affinché la Cavallerizza torni a essere uno spazio accessibile e significativo per la città.

Anche nel Contract.

Incontrare la bellezza. Scoprire il benessere. Scegliere la sostenibilità.

Scopra il Contract Service di Finstral. Ci contatti all’indirizzo contract-service@finstral.com finstral.com

MILANO

PLANIMETRIA

BIG per il cantiere di CityWave

Proseguono i lavori di costruzione di CityWave, il progetto di Bjarke Ingels Group che completerà lo sviluppo del quartiere di CityLife. A prevalente destinazione uffici, i due edifici di CityWave, alti rispettivamente 105 e 55 metri, sono collegati tra loro da una grande pensilina sospesa di 4.500 metri quadrati che darà vita a una nuova piazza coperta e – insieme alle coperture dei due volumi – in sommità accoglierà un parco fotovoltaico di 12.900 mq.

Al progetto strutturale, di notevole complessità per dimensioni e configurazione, ha lavorato HB-Holzner & Bertagnolli Engineering, che ha sviluppato soluzioni innovative come l’impiego, per la grande vela curva asimmetrica della

pensilina sospesa, di grandi pannelli di legno massiccio Clt a 5 strati incrociati retti da un sistema di cavi a trefoli ancorati ai due edifici con la stessa tecnologia dei ponti strallati. Il sistema è stato sperimentato presso l’Università di Trento anche con prototipi di impalcato in scala reale, mentre un modello del complesso è stato sottoposto a test in tre diverse gallerie del vento, tra cui quella del Politecnico di Milano. Il telaio strutturale principale è in travi e pilastri in cemento armato su una maglia di 9 metri, con controventature orizzontali e solai in cemento armato (uno dei due edifici è controventato in carpenteria metallica), l’involucro è prevalentemente formato da un curtain wall di cellule vetrate lungo le

quali, così come nelle esili colonne della pensilina, prive di funzione strutturale, corrono i sistemi di drenaggio dell’acqua piovana. Soluzioni ad hoc sono state adottate nella formulazione della miscela e nel getto di calcestruzzo delle coperture, che presentano pendenze variabili tra 25 e 55 gradi ■

Progetto architettonico Bjarke Ingels Group

Local architect Atelier Verticale

Progetto facciate Faces

Progettazione strutturale Hb-Holzner&Bertagnolli

General contractor Ati tra Cmb e Colombo Costruzioni

Slp 100.000 mq

Superficie canopy 4.500 mq

VIALEDUILIO

SAN PELLEGRINO TERME

Lombardini22 progetta

la

ristrutturazione del Grand Hotel

Icona dell’ospitalità risalente alla Belle époque, il Grand Hotel San Pellegrino ha accolto nelle sue sale personalità di spicco fin dalla sua inaugurazione nel 1904. La chiusura definitiva avvenne nel 1978. Nel 2000 la struttura fu acquisita dal comune di San Pellegrino Terme, che ne curò il restauro parziale per riportare alla luce i decori liberty originali mascherati dalle modifiche successive.

Dopo oltre quarant’anni di inattività, nel 2024 il complesso è stato acquisito da Ekn Development che, con l’affiancamento di Lombardini22, sta sviluppando un progetto per la riapertura al pubblico. Al momento della sua inaugurazione, l’hotel si distingueva per i comfort d’avanguardia dell’epoca, dall’ascensore alla luce elettrica, e per l’eleganza del disegno firmato da Romolo Squadrelli e Luigi Mazzocchi.

L’edificio, con due corpi laterali di cinque

piani fuori terra e un corpo centrale alto 43 metri, sviluppa una lunghezza complessiva di 128 metri.

Il nuovo progetto prevede la realizzazione di 120 camere e la riqualificazione delle aree comuni, oltre alla realizzazione di una spa, un impianto di piscine esterne e spazi dedicati alla ristorazione.

L’obiettivo è restituire vita a un simbolo dell’ospitalità italiana, creando una struttura contemporanea ma rispettosa dell’anima liberty del Novecento. La sfida consiste nel coniugare tecnologie impiantistiche di ultima generazione e tutela dei vincoli storici e architettonici imposti dalla Soprintendenza, per dare nuova vita a questo luogo speciale nel cuore della Valle Brembana ■

Un dettaglio liberty della facciata del Grand Hotel

VOGHERA

Da caserma a polo intergenerazionale il masterplan di Stefano Boeri Interiors

Il masterplan sviluppato da Stefano Boeri Interiors su incarico del Comune di Voghera trasforma l’area di 45.000 metri quadrati dell’ex-caserma di cavalleria Vittorio Emanuele II – progettata dall’ingegnere Paolo Cornaro e costruita tra il 1857 e il 1864 – in un ‘edificio-città’, come lo ha definito Giorgio Donà, partner e direttore dello studio di progettazione, «un luogo aperto e accogliente in cui anche la componente paesaggistica diventa funzionale al benessere collettivo di una comunità intergenerazionale».

L’intervento prevede la manutenzione e ristrutturazione degli edifici che già

accolgono funzioni pubbliche (uffici comunali, Biblioteca civica Ricottiana, Museo di Scienze Naturali, Museo Storico, Archivio Comunale, Scuola Media Giovanni Pascoli) e il rafforzamento dei servizi alla persona, con spazi di incontro per famiglie, associazioni e mondi giovanili. Il progetto prevede l’introduzione di due nuove residenzialità, dedicate rispettivamente al senior living e agli studenti (Stefano Boeri ha presentato anche lo studio preliminare per un campus universitario urbano).

La rigenerazione coinvolge anche l’impianto paesaggistico del complesso con il sistema interconnesso di cortili e giardini ‘Le Corti

di Voghera’. In particolare, il cortile nord di 16.000 mq, trattato a prato e piantumato con alberature e arbusti, è stato concepito come auditorium all’aperto per spettacoli e concerti, con un ampio palcoscenico e gradinate scavate nel prato. Il parcheggio oggi presente verrà parzialmente sostituito da un nuovo parcheggio interrato collocato nel cortile sud, al di sotto di uno spazio polifunzionale dedicato a attività culturali, sportive e ricreative all’aria aperta ■

Cruna

The elegance of water, the design of experience

Carimali Concept Showroom

20121 Milano (MI), Italy

Via San Marco, 24

Carimali HQ

28891 Nonio (VB), Italia

Zona Industriale, 5/bis

Designed by Arch. Chiara Caberlon & Marco Forbicioni

LONDRA

Il progetto di Spparc per il Camden

Film Quarter

Mentre il settore manifatturiero è in ritirata, avanza invece la produzione dell’industria creativa. Hollywood non ha più il monopolio dello storytelling e le risorse digitali hanno modificato la creazione di contenuti, per lo streaming oltre che per la televisione e le sale. La possibilità, negata all’industria pesante e dell’energia, di insediarsi in aree di pregio nei centri urbani, insieme al crescente ruolo della finanza negli sviluppi immobiliari, danno vita a casi come il masterplan del Camden Film Quarter disegnato da Spparc nel centro di Londra: uno sviluppo da un miliardo di sterline che nasce dalla riconversione dell’area industriale di Kentish Town, dove un tempo si producevano mattoni e pianoforti. L’edificio centrale dei nuovi studi cinetelevisivi – che saranno gestiti da Oxygen

Studios – ne rievoca la tradizione vittoriana con articolati rilevi in mattoni inseriti in una forma geometrica moderna con forti variazioni in profondità, ritmo e texture. Come i Wildflowers Studios di Robert De Niro a Queens – architettura di Big-Bjarke Ingels Group – anche il Camden Film Quarter prevede la costruzione di undici studi cinematografici e televisivi e due scuole di cinema, oltre a spazi per aziende attive nel campo della comunicazione digitale e soprattutto uno sviluppo residenziale con 500 nuove abitazioni (la metà delle quali a canone calmierato, gestite dallo sviluppatore ‘sociale’ Places for People) e un insieme di spazi pubblici che daranno vita a un nuovo genere di quartiere, vivace e attivo 24 ore su 24, dove professionisti della creatività potranno

vivere, lavorare e imparare fianco a fianco. Il progetto, ora sottoposto alla valutazione della municipalità di Camden, è promosso da Yoo Capital, che ne detiene la proprietà fondiaria, e coinvolge la National Film & Television School e la London Screen Academy ■

Sotto. Cantina Renato Ratti a La Morra, architetto Marco Sitia, 2002.
A destra. La quarta generazione della famiglia alla guida dell’impresa: da sinistra Luca, Elena e Paolo Barberis.

BARBERIS UN’IMPRESA DI COSTRUZIONI

SENSIBILE AL TERRITORIO E ALL’AMBIENTE

Tra le rare imprese di costruzioni italiane con lo status giuridico di Società Benefit, Barberis Spa, con sede ad Alba, è anche una delle più antiche. Fondata nel 1894 da Giovan Battista Barberis e guidata dalla quarta generazione della stessa famiglia, con 55 dipendenti diretti Barberis Spa opera – esclusivamente nel settore edile – in tutto il nord-ovest del Paese: come impresa; come general contractor affidatario di appalti; e in qualità di sviluppatore immobiliare, avviando operazioni di trasformazione e rigenerazione. Dal 2016 le Società Benefit in Italia sono definite a livello legislativo come quelle organizzazioni che «nell’esercizio di un’attività economica, oltre allo scopo di dividerne gli utili, perseguono una o più finalità di beneficio comune e operano in modo responsabile, sostenibile e trasparente nei confronti di persone, comunità, territori e ambiente, beni e attività culturali e sociali,

enti e associazioni e altri portatori di interesse». Se questa definizione – che nel caso di Barberis è testimoniata, oltre che dalle certificazioni Uni En Iso 9001, 14001 e 45001, anche dalla Certificazione Etica di Responsabilità Sociale SA8000 e dalla certificazione Uni/Pdr 125:2022 sulla parità di genere – si applica ad ogni realtà aziendale, quando si tratta di edilizia comporta un’ulteriore responsabilità che riguarda la produzione stessa dell’impresa. Nel suo operato, Barberis privilegia lo sviluppo di progetti di riqualificazione immobiliare che contribuiscono a ridurre le emissioni di CO2, prevedono il coinvolgimento di appaltatori responsabili e l’impiego di materiali conformi a rigorosi standard di qualità.

La sensibilità verso l’ambiente e il paesaggio nasce anche dal radicamento dell’impresa in uno dei territori più belli d’Italia, quello delle Langhe, con le ondulazioni disegnate da

vigneti pregiati e punteggiate da noccioleti e faggeti, e dalla volontà di preservarne i caratteri storici e produttivi. Qui l’impresa ha realizzato cantine vinicole e affrontato impegnativi interventi di restauro come il recupero di alcune parti del cinquecentesco castello di Roddi.

Numerose anche le realizzazioni sviluppate in collaborazione con nomi importanti dell’architettura come Archea Associati e Gonçalo Byrne Arquitectos: con quest’ultimo Barberis sta conducendo un importante sviluppo residenziale che sorgerà ad Albenga sull’area dell’ex-mercato dei produttori ortofrutticoli della città ligure.

Tra i lavori in corso, anche una grande operazione di riqualificazione finanziata con fondi Pnrr che coinvolge 49 scuole di vario ordine e grado nell’area nord-ovest di Torino.

www.barberisgroup.it

La sede di Barberis Spa Società Benefit ad Alba in Corso Barolo. 2001 Arch. Valerio Demaria (1934-2016).

Nardi per il Relais Chiarene tra borghi, arte e vini delle Langhe

Tra le colline e i vigneti delle Langhe c’è un piccolo borgo che conserva il fascino e le tradizioni di un tempo. Novello alterna oggi castelli e residenze nobiliari con secoli di storia a nuovi edifici circondati dal verde, in un’atmosfera di pace e relax. Poco fuori dal paesino arroccato si trova il Relais Chiarene, un’antica dimora di famiglia recentemente ristrutturata per donare agli ospiti un’esperienza di relax tra le viti e le cantine. Gli esterni sono parte fondamentale del progetto e sono pensati per invitare alla contemplazione del contesto. Una grande piscina completa la cornice disegnata dalla cascina originale. Per gli arredi degli spazi esterni di questa bella dimora di famiglia è stata scelta la gamma Nardi. La piscina è servita dai lettini prendisole Atlantico, eleganti ed estremamente funzionali grazie alla bassissima manutenzione che richiedono.

Nel lounge esterno sono stati inseriti i divani, i parasole e i tavolini da appoggio

della linea Komodo, disegnata da Raffaello Galiotto. Le sedute presentano una struttura in resina fiberglass e imbottiti facilmente personalizzabili in modo da adattarsi ai gusti e alle esigenze. Per il progetto di Novello sono state scelte le colorazioni agave per la struttura e grigio per l’imbottito, così da inserirsi nell’ambiente naturale in modo armonioso senza disturbare. L’ombreggiatura è fissata direttamente alla seduta grazie al sistema scenografico di Komodo Ombra, caratterizzato da una struttura filiforme in resina fiberglass che sostiene un tessuto morbido mosso dal vento.

Un secondo cortile più riparato, pensato per pause e incontri, ha richiesto complementi capaci di adattarsi a questa diversa destinazione d’uso. In particolare, i tavolini tondi Spritz popolano l’area accompagnati dalle sedute Doga Bistrot. Scelte nella versione senza braccioli, sempre in una colorazione sui toni del verde, queste sedute riportano nella propria silhouette

la forma della doga – da cui prendono il nome – rivisitata in chiave moderna in resina fiberglass. Sullo sfondo, il divisorio modulare Sipario delimita l’area regalando un tocco di verde.

www.nardioutdoor.com

CREDITI

Località Novello (CN)

Progetto architettonico Bongio Studio Design

Arredo esterno Nardi

Le sedute Komodo abbinate ai parasole Komodo Ombra si inseriscono nel contesto naturale in modo elegante senza disturbare il contesto.

Sopra. Purple Chart 8/8 punto d’incontro tra due forze opposte: il calore del rosso e la quiete del blu. Foto Daniel Farò, set design Greta Cevenini.

Sopra. Brown Chart 4/8. Si ispira alle essenze calde e terrose delle venature del legno, dei tessuti naturali e dei metalli ossidati.

A destra. Yellow Chart 5/8. Parte dall’osservazione della luce naturale e dei paesaggi assolati.

Blue Chart 2/8. Evoca le suggestioni del cielo dell’orizzonte marino e delle ceramiche mediterranee.

L’universo cromatico di Kerakoll Colors un sistema integrato di soluzioni progettuali

Avviato più di vent’anni fa con la Warm Collection di Piero Lissoni, il percorso nel colore di Kerakoll arriva oggi alle 1.500 tonalità di Kerakoll Colors, per offrire ai professionisti della progettazione un sistema coerente di soluzioni tecniche e decorative. In questo modo l’universo Kerakoll Colors si compone ora di quattro gamme di prodotto: accanto a Color Collection, resine tecniche e decorative, microfilm e parquet, e Color Fill, stucchi e sigillanti decorativi, già presenti in catalogo, entrano a far parte del sistema le due nuove famiglie Color Interior e Color Exterior, per la decorazione di interni ed esterni.

La prima, che condivide l’intera palette di

1.500 colori, offre soluzioni per tutti i tipi di ambiente, da quelli residenziali a quelli commerciali o contract, e si compone di soluzioni suddivise per tipologia di prodotto: rivestimenti, pitture, pitture texturizzate, prodotti speciali, smalti e microfilm.

Color Exterior (1.000 colori sui 1.500 di Kerakoll Colors, tali da garantire continuità estetica tra interni e facciate) abbraccia l’intera gamma di prodotti e soluzioni per proteggere e decorare le facciate.

Le 1.500 tonalità di Kerakoll Colors, selezionate in base ai trend attuali, sono organizzate in otto Color Chart – Neutral, Blue, Green, Brown, Yellow, Terracotta, Magenta e Purple – e articolate in quattro

scale di tonalità: Light, Mid, Deep e Bright. E sono proprio i toni Bright a rappresentare l’esclusiva novità di Kerakoll Colors: cromie brillanti, vivaci e capaci di osare con accenti decisi.

La modalità di lettura della Color Chart, già introdotta e codificata da Kerakoll nel 2021 con Color Collection, è stata mantenuta: in verticale è possibile ottenere abbinamenti tono su tono, per dare vita ad ambienti in continuità cromatica; in orizzontale si hanno toni di uguale intensità e saturazione, per un uso armonico del colore senza contrasti netti.

www.kerakoll.com

Le lanterne bespoke illuminano in modo sicuro e non invasivo le scale e i camminamenti esaltando i materiali senza disturbare. L’intensità e la modalità sono personalizzabili adattandosi perfettamente ad ogni posizionamento.

Località Hijaz. Arabia Saudita

Progetto Oppenheim Architecture

Le lampade riproducono fedelmente una lanterna con candela donando all’ambiente il calore della luce della fiamma.

Lighting design Delta Lighting Design

Luci Linea Light Group

Cliente Red Sea Global

Data 2025

Foto Alex Jefferies

CREDITI

Una lanterna bespoke illumina il Desert Rock Resort

Nel cuore delle montagne dell’Hijaz, nel deserto saudita, il Desert Rock Resort si distingue per un’architettura che riesce a trovare un dialogo tra uomo e natura. Opera di Oppenheim Architecture su commissione di Red Sea Global, il progetto utilizza un linguaggio architettonico capace di fondersi con la roccia e con il paesaggio unico in cui è inserito.

Qui la luce gioca un ruolo fondamentale di esaltazione delle forme. Di giorno la luce naturale colpisce i materiali, attentamente scelti per adattarsi al contesto, mentre dopo il tramonto il complesso rivela una nuova dimensione luminosa.

L’illuminazione artificiale doveva riuscire a integrarsi nel paesaggio senza disturbare. Linea Light Group ha sviluppato, su progetto di Delta Lighting Design, una lanterna bespoke, capace di interpretare l’essenza

del luogo attraverso un linguaggio luminoso misurato e poetico.

La lanterna adotta una doppia distribuzione luminosa a led interamente gestibile tramite protocollo Dali che garantisce massima libertà di controllo e personalizzazione degli scenari. Grazie a questa caratteristica ogni ambiente del Resort può ricevere l’illuminazione più adatta alle proprie caratteristiche.

La prima sorgente luminosa risiede nella candela centrale, elemento ricostruito attentamente per riprodurre l’aspetto della fiamma. Nella parte superiore trova posto un secondo elemento illuminante, sviluppato per indirizzare il fascio verso il basso e creare un effetto path marker. La lanterna trova posto anche lungo camminamenti, scale e terrazze inserendosi con discrezione e coerenza estetica.

Le due unità luminose che compongono il

prodotto possono essere gestite in modo indipendente, permettendo di modulare al meglio l’atmosfera.

Dal punto di vista costruttivo presenta un corpo esile ma robusto, progettato appositamente per resistere agli agenti esterni e mantenere le proprie qualità nel tempo.

La finitura è personalizzata per il progetto del Desert Rock Resort in modo da fondersi perfettamente con la materia architettonica e i cromatismi del paesaggio roccioso.

www.linealight.com

MGAlab

Siciliano di nascita e milanese d’adozione, nel 2000

Giovanni Musica fonda lo studio-laboratorio MGAlab dove nella progettazione di spazi pubblici e privati convivono rigore e creatività, concretezza e poesia. Insieme ai disegni e ai materiali, Musica considera elemento fondante di ogni progetto le persone che abiteranno gli spazi, immaginati per costruire esperienze e benessere nel rispetto dell’identità dei luoghi. www.mgalab.com

Sopra, l’area wellness rivestita in Dekton Somnia

A destra Dekton Laurent per la cucina.

Nella pagina accanto la facciata rivestita in lastre di Dekton nelle versioni Kreta e Keranium

CREDITI

Località Milano

Progetto architettonico MGAlab, Giovanni Musica

Rivestimento di facciata Dekton by Cosentino, versioni Kreta e Keranium, spessore 12 mm

Rivestimenti interni Dekton by Cosentino, colori Somnia e Laurent, spessori 4 e 8 mm

Completamento 2024

Foto David Zanardi

Dentro e fuori, Dekton by Cosentino metamorfosi architettonica di una palazzina milanese

Con un progetto di restyling integrale che ha comportato anche interventi di rinforzo strutturale, lo studio MGAlab dell’architetto Giovanni Musica ha trasformato un anonimo edificio di due piani più seminterrato a destinazione mista (uffici e abitazione) in una sorta di ‘villa urbana’, con una diversa distribuzione degli spazi e soprattutto con un progetto di facciata che conferisce personalità alla costruzione, inserita in una cortina stradale continua tra un edificio degli anni Trenta e un laboratorio industriale. Ripensata la geometria delle finestre per migliorare l’ingresso di luce naturale e la relazione visiva con l’esterno, la facciata è stata rivestita con una nuova pelle di lastre di

Dekton applicate al rivestimento in travertino esistente: al colore grigio neutro di Dekton Kreta di sfondo è sovrapposto un volume rivestito in lastre color ruggine Dekton Keranium, in un gioco di pieni e vuoti che genera profondità e dinamismo. Pensata secondo la logica ‘verticale’ della residenza indipendente anziché quella orizzontale dell’appartamento di città, la distribuzione degli spazi interni segue una precisa sequenza funzionale, cui conferisce coerenza espressiva l’impiego di Dekton come materiale principale dei rivestimenti: dall’area wellness con piscina al piano seminterrato, pavimentata e rivestita nella texture scura di Dekton Somnia, superando

il livello su strada destinato a uffici e la zona notte al primo piano si raggiunge la zona giorno, dove il living e la cucina sono collegati con una scala interna a un ampio terrazzo panoramico.

L’isola e i piani di lavoro della cucina sono rivestiti in Dekton Laurent, una tonalità marrone scuro attraversata da venature dorate, utilizzato anche per pareti, piatto doccia, top e un lavello integrato su misura del bagno.

www.cosentino.com

Il progetto di riqualificazione del Castello di Lombardia di Enna

è stato affidato a Andrea Caporali Studio Omphalos

Dall’alto.

Platek per l’illuminazione del Castello di Lombardia a Enna

Il Comune di Enna ha recentemente promosso un intervento di valorizzazione del Castello di Lombardia, simbolo identitario della città. L’intervento ha compreso anche la rigenerazione urbana di Viale Nino Savarese e di Piazza delle Rimembranze, il contesto all’interno del quale sorge la fortezza di epoca medievale.

Medio e Mini da incasso per pavimento.

Segnapasso Spy e Tikal

Proiettore Sun e palo Tris

Il progetto illuminotecnico è stato affi dato a Platek, che ha fornito diversi modelli del proprio catalogo.

La scala che collega viale Nino Savarese al Museo del Mito ospita il nuovo modello Tikal, un segnapasso compatto pensato per un’integrazione discreta in pareti e montanti. Nel progetto è fi ssato direttamente alla ringhiera in corten, offrendo una luce funzionale e perfettamente orientata al piano

di calpestio. Le pareti murarie del Castello sono illuminate dai proiettori su palo Sun (design Lundbergdesign), scelti per la loro capacità di garantire una luce potente ma calibrata. Le diverse tipologie hanno consentito di ottenere differenti ottiche per i camminamenti e per le mura, valorizzando ogni superfi cie senza rinunciare al comfort visivo. Il costolone roccioso ai piedi della fortezza, di forte impatto visivo, è stato messo in risalto dai corpi da incasso Medio, che generano un effetto di luce radente, morbida e suggestiva.

Il modello Mini è stato invece scelto per Piazza delle Rimembranze, dove esalta il Monumento ai Caduti, restituendone la piena percezione volumetrica.

Le superfi ci pavimentate e le aree d’incontro

Nelle foto. Percorsi di salita alla fortezza e verso la Rocca. Il costolone roccioso è illuminato dai corpi da incasso Medio Vista aerea del castello e della piazza illuminate dai pali Tris. Per la scala che porta al Museo del Mito è stato scelto il modello Tikal. Tutto Platek.

sono illuminate dai pali Tris, caratterizzati da una luce morbida, uniforme e non invasiva. Infine, il percorso pedonale che conduce alla Rocca di Cerere ospita i segnapasso Spy in vetro bianco, integrati nei muretti esistenti. La loro luce delicata accompagna il cammino senza interferire con la percezione dell’ambiente, garantendo sicurezza e comfort visivo.

In generale, gli interventi erano orientati al significativo miglioramento dell’accessibilità, prevedendo percorsi senza barriere architettoniche, rampe a pendenza ridotta, arredi ergonomici e nuovi spazi verdi con alberature ombreggianti a servizio della collettività. Gli spazi sono stati pensati anche per accogliere eventi pubblici, in un’ottica di riuso adattivo e attivazione civica. Il progetto

integra finalità ambientali, sociali e culturali, rispondendo al tema della prevenzione del dissesto idrogeologico attraverso la gestione naturale delle acque e il rafforzamento dei suoli. Si tratta di un intervento che unisce innovazione e rispetto del contesto, capace di generare un impatto positivo sul territorio e sui suoi abitanti, contribuendo in modo concreto al superamento dei divari urbani e sociali.

L’intervento al Castello di Lombardia rappresenta un esempio tangibile di come l’illuminazione architettonica possa contribuire alla rigenerazione urbana in chiave sostenibile, valorizzando i luoghi senza alterarne l’identità.

www.platek.eu

Per lo showroom

SHOWROOM FENDI SEZIONE LONGITUDINALE

Fendi, Politecnica ha mantenuto a vista la struttura dell’edifcio preesistente valorizzandolo nei suoi elementi strutturali.

POLITECNICA

di Luigi Prestinenza Puglisi

Nata nel 1972, quando la progettazione integrata sembrava un’aspirazione più che una pratica, Politecnica si presenta come una struttura complessa e articolata da competenze molteplici. Una cooperativa di professionisti – architetti, ingegneri, urbanisti – che ha fatto della collaborazione un metodo.

Ha puntato sull’adozione del Bim, sulle certificazioni, sull’ambiente e la sicurezza, sull’impegno verso la sostenibilità. Ma soprattutto sulla qualità del lavoro, sulla collaborazione e sull’attenzione alla parità di genere. Obiettivo: mettere ordine ai processi, coordinare il lavoro, verificare e misurare ciò che si produce ma all’interno di un ambiente condiviso e partecipato. Per crescere e arrivare alla soglia delle 300 persone. Tra i diversi progetti prodotti in questi ultimi anni, ne abbiamo selezionati quattro. Il primo è il Centro direzionale di via Beverara 21 & 23 (Crif) di Bologna. L’edificio è quello che forse meglio racconta la filosofia

progettuale di Politecnica. In un’epoca in cui case e uffici spesso cercano di travestirsi in boschi sospesi, dune, nuvole, Beverara sceglie la strada opposta: essere un edificio. Linee nette, volumi chiari, facciate scandite da pilastrini di cemento che danno ritmo e misura. Niente metafore naturalistiche, niente artifici mimetici. E tuttavia nessuna chiusura verso il contesto: la corte aperta verso il parco di Villa Angeletti crea un rapporto calibrato tra costruito e natura, un attraversamento visivo che restituisce respiro e profondità.

La sostenibilità non passa per effetti scenografici, ma per strategie verificabili: certificazione Leed Platinum, impianti ottimizzati, uso del Bim per controllare processi e futuro mantenimento. Gli spazi interni sperimentano un’alternativa ai modelli tradizionali: né stanzette né open space illimitati, ma una struttura flessibile basata su un modulo di 120 centimetri, per generare ambienti diversificati e adattabili.

Francesca Federzoni www.politecnica.it

Il secondo è il progetto di ampliamento dello stabilimento Kerakoll a Sassuolo. Un progetto che cerca di mostrare come l’architettura industriale possa diventare occasione di rigenerazione. Il raddoppio della capacità produttiva è accompagnato dalla creazione di nuovi spazi per i dipendenti e dal ridisegno delle aree esterne, con una dorsale verde che collega gli edifici e un grande investimento nel paesaggio: 140 nuove alberature, 27.000 mq di superfici permeabili, percorsi e spazi ombreggiati. Insomma: un’idea di fabbrica come luogo di vita e non solo di produzione.

Sul fronte energetico, l’impianto fotovoltaico da 1,6 MW e i sistemi di recupero calore riducono i consumi.

Terzo progetto: a Milano, nel distretto Tortona, Fendi inaugura un nuovo spazio all’interno dello storico complesso Riva&Calzoni, poi studio di Arnaldo Pomodoro. Politecnica preserva la memoria industriale trasformandola in un dispositivo

scenografico: una scatola bianca pensata per adattarsi agli eventi. L’edificio, articolato in due grandi volumi, è riorganizzato in tre blocchi indipendenti – backstage, area sfilate, uffici – collegati da una passerella sopraelevata. Cuore dell’intervento è la Torre Backstage, struttura metallica multipiano che ospita catwalk, showroom, atelier e spazi per la lineup, rendendo l’intero complesso un hub performativo flessibile e altamente tecnico.

Quarto progetto. In Danimarca, a centinaia di chilometri di distanza, il nuovo Zealand University Hospital ridisegna il futuro dell’assistenza sanitaria. L’ampliamento porta la struttura a 185.000 mq e 789 posti letto, centralizzando reparti, emergenze e ricerca in un unico campus ad alta tecnologia. Stanze singole, reparti specialistici, 16 sale operatorie, 22 sale di diagnostica e cinque bunker per radioterapia compongono un sistema ospedaliero concepito per gestire flussi complessi in modo intuitivo grazie a un attento wayfinding. Integrato nel paesaggio naturale, l’ospedale diventa un landmark che unisce cura, efficienza e sostenibilità, dimostrando come la grande scala possa dialogare con l’ambiente e migliorare la qualità della vita.

Quattro progetti, quattro scale diverse e un filo costante: l’idea che progettare significhi comporre sistemi complessi, mettere in relazione tecnologie, persone, luoghi. Non inseguire immagini seducenti, ma costruire senso. Il futuro non si annuncia con grandi gesti, ma con continuità, responsabilità e capacità di leggere il presente. E, soprattutto, con una convinzione semplice e insieme radicale: l’innovazione non è un lampo, è un percorso condiviso ■

Lo showroom

Fendi ridisegna l’edificio industriale unendo soluzioni innovative adeguate alle richieste della maison al passato storico della struttura.

PERSPECTIVE SECTION

1. Backstage tower entrance

FUNCTIONAL LAYOUT

Showroom Fendi

Località Milano

Committente Fendi

Progetto architettonico Politecnica

Arredo Quinti, Fendi Casa

Foto Delfino Sisto Legnani

Nel distretto della moda e del design Tortona a Milano, dalla trasformazione dell’ex studio dell’artista Arnaldo Pomodoro nasce il nuovo spazio Fendi. Per la ristrutturazione è stata scelta Politecnica, che è riuscita a coniugare l’anima della maison con la storia dell’edificio. Originariamente il complesso, risalente al XIX secolo, era lo stabilimento Riva&Calzoni dedicato alla produzione di turbine elettriche. Quando nel 1999 Pomodoro lo acquistò, lo trasformò nel proprio spazio espositivo, collocando qui il celebre Labirinto e diverse opere-costume per il teatro, lavori presenti ancor oggi. L’intervento di Politecnica ha unito i due corpi distinti creando ambienti capaci di rispondere alle esigenze di showroom. Il progetto prevede la suddivisione degli interni in tre blocchi indipen-

denti: backstage e atelier, spazio per le sfilate e uffici permanenti, collegati da una passerella panoramica sopraelevata. L’elemento centrale è la Torre Backstage, una struttura moderna che si sviluppa su più livelli e permette la migliore gestione degli spazi strategici. Le soluzioni costruttive cercano un dialogo tra la preesistenza e le nuove addizioni, scegliendo per queste ultime elementi in carpenteria metallica a vista che richiamano il passato industriale del complesso. Le soluzioni progettuali e i materiali adottati sono stati inoltre impiegati con la finalità di ridurre l’impiego di risorse vergini e favorire una dismissione responsabile a fine vita.

Milano

La struttura

mette al centro la sostenibilità sia all’interno, grazie a un attento utilizzo delle risorse, sia all’esterno, con un grande giardino e diverse soluzioni bioclimatiche.

Località Bologna

Committente Crif

Progetto architettonico Politecnica

Interior design Paola Gabrielli

Consulente geologia Studio Mattioli

Consulente per il verde Studio Silva

Arredo Intertecnica

Foto Daniele Domenicali

Il nuovo centro direzionale Crif21

Nella zona Lame di Bologna è sorto nel 2023, grazie al lavoro di Politecnica, il nuovo centro direzionale di Crif, azienda specializzata in sistemi di informazioni finanziarie e per l’open banking, riportando in vita un’area precedentemente abbandonata. Lo spazio moderno e sostenibile privilegia la massimizzazione dell’efficienza energetica ed ha ottenuto la certificazione energetica Leed Platinum e la classe energetica A4. Strutturato su sei piani fuori terra e due interrati, l’edificio, la cui superficie complessiva supera i 10mila metri quadrati, è utilizzato per finalità di-

rezionali e integra energie rinnovabili e sistemi di Building Automation che permettono di controllare al meglio le performance della struttura ed evitare sprechi.

L’articolazione volumetrica, ottenuta dalla scomposizione di un cubo, ricerca un rapporto diretto con il contesto paesaggistico nel disegno dei prospetti, realizzati con un involucro performante e aperti verso l’esterno. L’efficientamento energetico è stato raggiunto anche grazie a un attento orientamento del complesso e a una studiata combinazione tra involucro e concept degli impianti.

La luce naturale, sfruttata al meglio, crea un ambiente di lavoro gradevole e riduce la domanda di illuminazione artificiale, oltre a migliorare l’efficienza termica grazie all’irraggiamento solare.

Il disegno degli esterni privilegia anch’esso la sostenibilità. Una corte centrale verde di oltre 2.000 metri quadrati presenta diverse soluzioni bioclimatiche, rendendo anche questa area uno spazio positivo per l’ambiente.

In ultimo, la gestione del ciclo dell’acqua e delle acque grigie punta a una riduzione del consumo di acqua potabile.

Bologna

Il polo produttivo ricerca un dialogo con la natura e migliora la percezione dell’ambiente da parte del lavoratore e del passante. L’edificio si inserisce in modo coerente nel comparto produttivo preesistente

con un aspetto più naturale, circondandosi di verde dove possibile ed utilizzando pavimentazioni permeabili, donando respiro a un ambiente per molto tempo coperto dal cemento. Render ©Emmeworks.

SPACCATO

SEZIONE AMBIENTALE

Polo Produttivo Kerakoll

Nel 2023 Politecnica ha firmato il progetto per il nuovo polo produttivo di Kerakoll a Sassuolo–Fiorano Modenese, ampliando le strutture esistenti e introducendo diversi servizi per i lavoratori e per la mitigazione dell’impatto ambientale.

L’intervento si compone di quattro punti principali: la realizzazione di un nuovo polo produttivo collegato al preesistente tramite una dorsale verde attrezzata; un’area servizi polifunzionale per i dipendenti; un grande magazzino di stoccaggio; il riassetto dell’intera area cortiliva e delle aree di parcheggio in chiave green, con più di 20 nuovi alberi piantumati e un significativo aumento dll’area verde.

La sostenibilità rappresenta un fil rouge che collega ogni aspetto dell’intervento. Il comparto produttivo copre ora una superficie permeabile di circa 26.000 mq, che con l’area scoperta raggiunge gli 80.000 mq.

Il complesso richiama le forme del contesto industriale in cui si inserisce, ma le rielabora potenziandole e ricercando una sinergia con la natura, presente nelle pareti verdi e in un patio interno collocato al centro dell’ingresso.

Il programma green non si limita alla depavimentazione e alla piantumazione, ma si estende alla produzione di energia pulita per il complesso industriale, raggiungendo una potenza di 1,6 me-

gawatt ricavati dall’impianto fotovoltaico e includendo un sistema di recupero del calore a servizio della produzione di aria compressa, studiato su misura in base alle caratteristiche del processo produttivo dell’azienda.

Località Sassuolo

Committente Kerakoll

Progetto architettonico Politecnica

Infrastrutture e sistema idraulico Federico Gasperini

Francesco Frassineti

Strutture Marco Cesaroni, Alessandro Franchini

Fornitori Kerakoll, Knauf, Schüco Italia

Sassuolo

Il nuovo complesso si inserisce con una grande circonferenza nel contesto urbano migliorando l’elemento naturale. Le dimensioni imponenti dovute alla molteplicità di spazi e funzioni richieste da un grande ospedale sono mitigate da un attento progetto di paesaggio.

Køge, Danimarca

Zealand University Hospital

Politecnica è alla guida di un gruppo di progettazione internazionale per la realizzazione dell’ampliamento del polo universitario e ospedaliero di Køge, in Danimarca. Il complesso, situato a sud di Copenaghen, è oggi il più grande ospedale della regione e tra i maggiori del Nord Europa.

La superficie iniziale di circa 64.000 metri quadrati con 296 posti letto è stata ampliata fino a 185.000 metri quadrati e 789 posti letto. L’intervento ha consentito di concentrare tutti i pazienti in un’unica struttura, oggi conosciuta come Zealand University Hospital.

Una grande circonferenza verde e blu racchiude gli edifici, sviluppati come strutture articolate che si ripetono e si intersecano. Il rapporto con l’elemento naturale e la sostenibilità costituiscono il fulcro dell’idea progettuale.

Sulla base dell’esperienza accumulata nel settore ospedaliero, Politecnica ha potuto avanzare proposte metodologiche evolute, determinanti per

l’affidamento dell’appalto internazionale. Oltre che per le dimensioni, il complesso si distingue anche per le tecnologie mediche avanzate che integra, imponendosi come polo all’avanguardia nella ricerca biomedica.

Con questo progetto lo studio dimostra una notevole flessibilità progettuale e un valore architettonico capace di superare i confini nazionali, affermandosi a livello europeo.

Località Køge, Danimarca

Committente Autorità Regionale Danese Region Zealand

Progetto architettonico Politecnica, Ekj Consulting Engineers

Imprese di Costruzione Itinera (Gruppo Gavio) leader e Cmb Carpi

Con Studio Alchimia Alessandro Mendini ha rinnovato il design italiano, intrecciando cultura e espressività, mostrando una particolare sensibilità ignota ai teorici del funzionalismo. Ha diretto riviste; fondato la Domus Academy e ricevuto un Compasso d’Oro. Tra le sue architetture occorre ricordare la Torre dell’Orologio a Gibellina, il Groninger Museum, la Torre del Paradiso a Hiroshima, il Museo della Ceramica a Incheon, le tre stazioni della metropolitana di Napoli. Gli oggetti che ha progettato sono stati realizzati da aziende come Alessi, Venini, Bisazza, Cartier, Louis Vuitton. Per i mobili va citata la regale poltrona Proust e la collezione Museum Market. Isabella Giola, dottoranda al Politecnico di Milano, con la prefazione di Alessandro Guerriero, sodale di vecchia data, centra la sua riflessione sullo sviluppo dello spazio domestico, a partire dal secondo Novecento, analizzando la produzione degli interni. Evidenzia il nuovo atteggiamento verso il progetto dell’abitare sottolineandone la dimensione emozionale. Il testo, con ricerche d’archivio e interviste, segnala le proposte che come Interno di un interno, Milano 1991 o Shama, Arezzo 1992, superano l’architettura radicale, il postmoderno e le tematiche del design industriale per proporre spazi poetici, narrativi e critici, sperimentando contaminazioni che superano la fase concettuale per diventare spazi consapevoli. Il percorso giunge a un intervento autonomo del 2016 per la Triennale: Le mie prigioni, che esemplifica, “con un Alcatraz romantico e privilegiato”, uno specifico modo di intervento sull’abitare contemporaneo.

Mario Pisani

I MISTERI DI VILLA DALL’AVA

L’architettura non era ancora diventata lo spunto per un giallo. Lo fa ora – in un formato tascabile che ricorda i Gialli Mondadori che si acquistavano in stazione – Park Books con una nuova collana il cui primo titolo è dedicato a Villa dall’Ava, progettata sulle alture di Saint-Cloud da Rem Koolhaas con lo studio OMA nel 1984. Commissionata da Dominique e Lydie Boudet (nata dall’Ava), a sentire Koolhaas sembrerebbe solo il logico risultato dei limiti imposti dal sito – un lotto in pendenza verso la Senna – e dal programma (due abitazioni distinte, per i genitori e la figlia, una ‘promenade’ interna per godere della luce e una piscina sul tetto). Ma allora come mai ha suscitato tanto interesse? Sicuramente per gli ovvi e quasi scontati confronti con Ville Savoye, ma anche perché – nota l’autrice Françoise Fromonot, apprezzata critica francese dell’architettura – è uno strumento di comunicazione. Cronologicamente collocata tra Delirious New York e S, M, L, XL, questa architettura XS è un pezzo del racconto che Koolhaas fa del proprio lavoro e anzi della sua filosofia, che alle

TRE LOCALI PIÙ SERVIZI

rigide regole di Corbu oppone il ruolo degli incontri casuali che conducono il progetto verso direzioni impreviste. Così ogni dettaglio diventa un indizio per scoprire cosa effettivamente vi si nasconde dietro. Intelligente e scritto in forma avvincente.

The House of Dr Koolhaas Françoise Fromonot Park Books, Zurigo, 2025 224 pp, En, 166 ill. b/n, 19 Chf ISBN 978-3-03860-407-5

Comportamenti, delle Sensazioni e degli Attributi spaziali per (ri)pensare i luoghi della casa. Numerosi gli esercizi suggeriti, che presentano le migliori proposte (anche quando non ebbero successo perché troppo evolute rispetto ai tempi) immaginate sia dal Movimento Moderno sia in tempi più vicini ai nostri. In appendice, un breve capitolo sulla condivisione di spazi comuni integrativi agli spazi privati lascia sperare in un secondo testo che ne approfondisca prospettive e potenzialità.

Mendini+Alchimia

Allestire l’abitare

Isabella Giola

LetteraVentidue, Siracusa, 2025 128 pp, imm. 18 euro - ISBN 979-12-56441-19-8

Oggi la casa comune – scrivono gli autori nelle conclusioni di questo istruttivo testo, il cui intento non è tanto di proporre soluzioni quanto di aprire una discussione sul progetto degli spazi – non è più solo il rifugio “dove tornare dopo avere vissuto altrove, ma è un’infrastruttura di accesso al mondo, un terreno di scambio tra l’interno e l’esterno”. Eppure la tipologia dell’abitazione rimane ancorata a un unico schema, quello della ‘zona giorno’ e della ‘zona notte’, con soluzioni acriticamente imposte a priori dal mercato a chi progetta (come, citiamo, l’idea che il bagno della camera matrimoniale debba essere collegato alla stessa: niente di più scomodo). Del resto, “l’attività dell’architetto giace oggi nell’ombra di due ambiti distinti della disciplina che negli anni si sono sempre più separati: il progetto dell’edificio e quello degli interni. In questa incertezza – proseguono gli autori – il tema della tipologia dell’abitazione è stato quasi totalmente demandato alle regole della presunta appetibilità del prodotto casa” nelle intenzioni degli operatori immobiliari. Contano poi le resistenze culturali e l’obsoleto apparato normativo. La proposta di Casa Rebus è quella di provare a incrociare le tre dimensioni dei

Casa Rebus

Giordana Ferri, Alessandro Scandurra LetteraVentidue, Siracusa, 2023

116 pp, 12 euro ISBN 978-88-62428-29-3

NUOVA QUALITÀ

FORMALE

a cura di Carlo Ezechieli

Cloud e IA non sono immateriali. Sono fatti di edifici, energia e infrastrutture che occupano spazio e trasformano il territorio. Un sistema tecnico invisibile che oggi pone nuove questioni architettoniche e urbane

Spark 761, Pechino, progetto di LLLab. Dettaglio dei condotti esterni. Foto Arch-Exist Photography.

L’architettura invisibile della rete

Viviamo sempre più immersi nella rete. Si stima che restiamo connessi oltre dieci ore al giorno. Questa continuità ha contribuito a costruire un’immagine della rete come entità immateriale, ben rappresentata dalla metafora del cloud: qualcosa di diffuso, intangibile, apparentemente privo di localizzazione fisica. In realtà, dietro questa smaterializzazione si nasconde una dimensione profondamente concreta. Come ogni infrastruttura, anche quella digitale necessita di una base fisica: edifici, reti elettriche, sistemi di raffreddamento, server e cavi che occupano spazio, consumano energia e modificano il territorio. La rete non vive nel vuoto, ma si appoggia a una costellazione di architetture spesso ignorate, relegate ai margini della città o del paesaggio.

Oggi queste infrastrutture si manifestano prevalentemente come grandi capannoni anonimi: scatole chiuse, prive di qualità spaziale e di riconoscibilità architettonica, nonostante il loro ruolo sempre più centrale nell’economia e nella vita quotidiana. È un paradosso evidente: più cresce l’importanza delle infrastrutture digitali, più la loro forma appare povera e indifferente. Eppure, come ogni tipologia edilizia, anche questi edifici possono diventare progetto. La crescente diffusione di data center e nodi tecnologici rende inevitabile una riflessione sul loro ruolo urbano e paesaggistico. Non si tratta di rivestire di estetica una macchina tecnica, ma di riconoscere che queste architetture sono ormai parte integrante dei paesaggi contemporanei e ne orientano le trasformazioni. La sfida consiste nel trasformare questi poli infrastrutturali, o almeno le loro interfacce, in temi di architettura: luoghi capaci di esprimere una nuova qualità formale, rendere visibile ciò che oggi è nascosto e instaurare un rapporto con il contesto e la collettività. Un territorio progettuale ancora in definizione, ma carico di potenzialità.

Shannon Mattern

S tudiosa di fama internazionale nei campi dei media studies, dell’antropologia e della storia dell’arte, Mattern è nota soprattutto per il libro A City Is Not a Computer, testo di riferimento che smonta criticamente il mito delle smart cities e dell’urbanistica guidata dagli algoritmi. Docente e ricercatrice tra università e istituzioni culturali, il suo lavoro intreccia città, infrastrutture, biblioteche, media e pratiche di cura, unendo rigore teorico, sensibilità critica e attenzione ai beni pubblici e al sapere condiviso.

Il cloud

non è

una nuvola

e le infrastrutture digitali diventano spazio costruito e tema di progetto

La materialità, il potere e i paesaggi nascosti delle infrastrutture digitali sono al centro di questa intervista a Shannon Mattern, studiosa di riferimento delle infrastrutture, dei media e delle loro implicazioni spaziali, culturali ed ecologiche. Parliamo quotidianamente di cloud, intelligenza artificiale e reti come se fossero entità eteree, prive di peso e di luogo. Eppure, dietro questa retorica dell’immaterialità si estende un sistema globale di infrastrutture profondamente fisiche: data center energivori, catene di approvvigionamento, lavoro umano invisibile e territori trasformati. Shannon Mattern smonta il mito del digitale ‘senza corpo’ e ci invita a leggere le infrastrutture dell’informazione come oggetti culturali, ecologici e politici, ponendo una questione cruciale: come rendere visibile, comprensibile e responsabile ciò che oggi sostiene silenziosamente la vita connessa.

Parliamo di cloud e di infrastrutture digitali come fossero immateriali. Dal tuo punto di vista, quali sono le contraddizioni di questa retorica dell’immaterialità rispetto alle realtà

profondamente materiali dei data center e delle infrastrutture dell’informazione?

Cloud e intelligenza artificiale sono termini eterei che contraddicono profondamente la fisicità di server e switch, l’estrazione e gli scarti, il lavoro umano e i flussi energetici che sono parte integrante della costruzione e del funzionamento delle infrastrutture digitali. Se siamo davvero impegnati a rendere visibile questo assemblaggio globale di dispositivi, corpi, elementi e ambienti, dovremmo riconoscere la rete di studiosi che da decenni mappano questi sistemi. Mél Hogan osserva da tempo i costi ambientali dei data center; Nicole Starosielski e Ingrid Burrington hanno tracciato i cavi transoceanici e le antenne che trasportano i bit da un luogo all’altro; Brian Merchant ha analizzato le catene di approvvigionamento che forniscono i componenti dei nostri smartphone e Sarah Roberts ha richiamato l’attenzione sul lavoro umano mentalmente e fisiologicamente gravoso che rende possibili i nostri agenti ‘artificiali’. Da tempo lanciano avvertimenti che oggi dobbiamo finalmente ascoltare.

In che modo, secondo te, queste infrastrutture nascoste o semi-invisibili modellano i nostri ambienti e territori quotidiani, anche quando non le vediamo direttamente?

Intravediamo il cloud nelle nostre case attraverso i router Internet, i dispositivi smart e persino attraverso le prese elettriche che ci permettono di collegarci periodicamente alla rete elettrica. Il cloud si manifesta nei nostri quartieri sotto forma di torri per la telefonia mobile, tombini dei servizi, sensori e apparati di sorveglianza. Ne percepiamo la presenza e l’assenza attraverso le variazioni della potenza del segnale del cellulare e tramite lo sguardo e l’orecchio dei sistemi di sorveglianza video e audio. Più di dieci anni fa ho pubblicato un articolo su ciò che possiamo imparare cercando attivamente, visitando e sperimentando in modo multisensoriale questi diversi indici della presenza del cloud, su come possiamo trarre beneficio dal turismo infrastrutturale e dalla coltivazione di una alfabetizzazione infrastrutturale.

Nel tuo lavoro hai spesso evidenziato le dimensioni culturali e simboliche delle infrastrutture. Pensi che le infrastrutture digitali contemporanee stiano producendo una sorta di ‘nuova qualità formale’, non necessariamente in termini di architettura iconica, ma rispetto alle condizioni spaziali, estetiche ed esperienziali che generano?

I nuovi mega data center estendono ed elaborano le qualità formali di tipologie precedenti come i magazzini, che esistono da secoli. Sono inoltre informati dalla logistica di lunga data dei nodi di trasporto e, come ha mostrato lo storico dell’arte Jason Weems, dei mercati del bestiame e dei macelli. Come queste forme precedenti, le zone infrastrutturali digitali contemporanee si collocano alla confluenza di diversi flussi – energia, acqua, materie prime, rifiuti – e richiedono la regolazione di condizioni ambientali come la temperatura (o, nel caso dell’agricoltura industrializzata, l’odore).

Se è vero che le nuove forme spaziali guidate dai dati sono uniche perché rese percepibili e intelligibili agli agenti computazionali, è altrettanto importante collocare questa ‘nuova qualità formale’ all’interno delle sue genealogie infrastrutturali, per ricordarci che anche i sistemi più eterei hanno fondamenta materiali ed ecologiche profonde ed estese.

Considerando la loro impronta fisica, il fabbisogno energetico e le implicazioni sociali, fino a che punto dovremmo considerare i data center e le infrastrutture correlate come una questione di progettazione architettonica e urbana, piut-

tosto che lasciarle a logiche puramente tecniche o aziendali?

La domanda di nuovi data center e l’esaurimento dei loro siti tradizionali fanno sì che nuove strutture emergano in territori inusuali, dove talvolta si scontrano con comunità non abituate a enormi volumi utilitaristici senza finestre. In questi contesti è necessaria una maggiore attenzione all’estetica. Stiamo inoltre assistendo a una crescente consapevolezza pubblica e a forme di organizzazione comunitaria attorno agli impatti dei data center sulle infrastrutture locali, sui valori immobiliari e sugli ecosistemi più ampi. Molte delle comunità individuate per lo sviluppo dei data center considerano già questi interventi (o, forse, dovremmo dire intrusioni) come questioni architettoniche, urbane, ambientali, sociali e politico-economiche. È importante che anche architetti e urbanisti le riconoscano come tali e che affrontino questi progetti con la stessa sensibilità politica che riserverebbero alla progettazione di un impianto di lavorazione delle carni, di una prigione, di una crypto-farm, di un inceneritore di rifiuti o di una centrale nucleare, e di altre tipologie sensibili. I progettisti devono puntare a minimizzare i danni ambientali e sociali, sia immediati sia a lungo termi-

ne. Questo potrebbe significare rinunciare a determinate commissioni o evitare del tutto il settore.

Infine, se volessimo rendere queste infrastrutture più visibili, quali storie, immagini o strategie progettuali potrebbero aiutarci a relazionarci ad esse in modo più informato e responsabile? Il servizio pubblico può iniziare già nelle fasi di selezione del sito e di sviluppo del progetto. I dirigenti delle grandi aziende tecnologiche e i loro team di marketing sono ansiosi di presentare i data center come strumenti di salvezza locale. Urbanisti e progettisti possono collaborare con attivisti, studiosi e leader locali da tempo attenti a questi temi per aiutare le comunità a comprendere meglio il ruolo dei data center all’interno delle loro specifiche ecologie socio-spaziali. E se un data center dovesse effettivamente arrivare in una città, progettisti e pianificatori possono spingere i loro clienti a sviluppare hardware di calcolo più efficiente. Questo assicurando al contempo che l’edificio che ospita tale hardware utilizzi i materiali e i sistemi impiantistici più sostenibili possibile e che offra occasioni capaci di promuovere alfabetizzazione infrastrutturale ed ecologica e un coinvolgimento attivo ■

La facciata dello Spark 761 di LLLab. a Pechino illuminato dalla luce naturale durante il giorno.

Studio di progettazione fondato a Stoccarda, con sedi a Shanghai e Porto attivo nei campi dell’architettura, del design, dell’arte e della ricerca. Fondato da Hanxiao Liu, Luís Ricardo, David Correa e Taichi Kuma, lo studio sviluppa progetti sperimentali e site-specific che integrano infrastrutture, spazio pubblico e innovazione culturale. https://www.lllab.net

Il data center Spark761 è concepito come infrastruttura urbana: la griglia strutturale rende visibili i sistemi tecnici e trasforma l’edificio in un’interfaccia tra potenza di calcolo e città.

Il progetto Spark761 a Pechino ribalta il paradigma del data center come infrastruttura chiusa trasformando la potenza di calcolo in materia architettonica e spazio pubblico accessibile alla città

Dalla scatola di un data center a una vera e propria architettura pubblica

761 SPARK

Località Beiguang Tech-Industrial Campus, Pechino

Committente Beijing Electronic Digital & Intelligence

(beD&I)

Progetto architettonico LLLab.

Superficie del lotto 17.223,07m2

Superficie costruita 35.765,81m2

Cronologia Agosto 2022 – Aprile 2025

Foto Fernando Guerra | FG+SG

Come mettere in discussione uno dei paradigmi più consolidati dell’architettura contemporanea, quello del data center come infrastruttura chiusa, opaca e segregata dal contesto urban? Il Beijing Digital Economy Aidc dello studio LLLab. propone invece una nuova tipologia, in cui la potenza di calcolo diventa materia progettuale e occasione di spazio pubblico. Inserito nel tessuto centrale della città, l’edificio integra sale di calcolo, sistemi energetici e impiantistici, con funzioni aperte alla collettività, trasformando un’infrastruttura strategica in un organismo urbano accessibile. La struttura a griglia rende leggibili i dispositivi tecnici che ne garantiscono il funzionamento: condutture, flussi d’aria e sistemi di raffredda-

mento emergono in facciata come un apparato fisiologico, conferendo all’architettura una dimensione quasi biologica.

La doppia natura dell’edificio si manifesta nel passaggio dal giorno alla notte. Alla luce naturale, la materia costruita espone il proprio funzionamento; dopo il tramonto, la fisicità si attenua e lascia spazio a una dimensione immateriale, in cui luce e informazione definiscono una nuova percezione dello spazio. La facciata diventa così interfaccia tra infrastruttura e città, capace di visualizzare processi normalmente invisibili.

All’interno, il progetto è organizzato attorno alla relazione tra black box e glass box: la prima accoglie il Computing Power Theater, spa-

LLLab.

Sopra. Vista notturna della facciata: la griglia architettonica si smaterializza in una superficie luminosa che visualizza l’attività

del data center trasformando l’edificio in un’interfaccia informativa tra infrastruttura digitale e spazio pubblico.

zio introspettivo dedicato alla riflessione sui rapporti tra tecnologia e società; la seconda rende accessibili e osservabili i sistemi tecnologici, ribaltando la logica dell’inaccessibilità tipica dei data center. I piani terra ospitano funzioni pubbliche, spazi espositivi e ambienti di lavoro flessibili, mentre i livelli superiori sono dedicati all’ecosistema operativo dell’intelligenza artificiale.

Spark7611 si configura così non solo come centro di calcolo, ma come infrastruttura culturale e urbana, capace di rendere percepibile l’energia invisibile dell’era digitale e di restituirla alla città sotto forma di architettura condivisa ■

Sotto. Spaccato funzionale del complesso: la sovrapposizione tra spazi pubblici, ambienti di lavoro e infrastrutture di calcolo evidenzia

l’integrazione tra Computing Art Theater laboratori, uffici e data center, configurando l’edificio come parco tecnologico e culturale.

Baas Arquitectura

Studio di architettura e design fondato a Barcellona nel 1993 da Jordi Badia. Riconosciuto a livello internazionale per la qualità dei suoi progetti, il lavoro di Baas si distingue per un’architettura sobria e rigorosa attenta al contesto, alla tradizione e alla sostenibilità, capace di coniugare semplicità formale, precisione tecnica e valore emotivo. Jordi Badia affianca all’attività professionale l’insegnamento e la collaborazione con numerose università internazionali. www.baas.cat

Un computer nel parco La nuova sede del Barcelona Supercomputing Centre

La nuova sede del Barcelona Supercomputing Centre (Bsc), progettata da Baas arquitectura, si colloca nel cuore dei giardini di Torre Girona, all’interno del Campus Nord dell’Upc a Barcellona. Più che un edificio, si tratta di un dispositivo tecnologico celato nel paesaggio: un ‘computer nel mezzo di un giardino’, come definito dagli stessi autori. Il progetto si presenta come una scatola astratta, un volume puro che ricorda un pezzo di design industriale posato nel parco.

L’immagine architettonica è definita da un involucro di vetro serigrafato con codice binario e protetto da ampie lamelle verticali in alluminio lucido, che conferiscono al complesso una

presenza limpida, omogenea, quasi levitante. Questa pelle tecnologica evoca la natura del supercomputer: un dissipatore, ovvero un contenitore che protegge la tecnologia e ne permette l’aggiornamento continuo. L’architettura si mette così al servizio della macchina, assumendo un linguaggio rigoroso, efficiente, privo di compiacimenti formali. Il concept prende forma attraverso un blocco longitudinale unico, collocato parallelamente a un muro esistente e organizzato per rispettarne i limiti. Da Plaza Eusebi Güell viene ricavato un nuovo accesso, che prolunga lo spazio pubblico e definisce l’ingresso principale dell’edificio.

Model. Jesus Arenas.

Una pelle tecnologica in vetro e lamelle metalliche richiama il funzionamento del supercomputer come dissipatore e contenitore modulare.

La struttura accoglie tre grandi nuclei funzionali: sopra quota, i dipartimenti di ricerca, operazioni e gestione, con funzioni comuni al piano terra; parzialmente interrato, lo spazio dedicato al supercomputer; nel seminterrato, parcheggi e impianti tecnici.

Un quarto blocco ospita la hall principale e sale per formazione e conferenze, fungendo da snodo fra le diverse funzioni. L’accesso principale si manifesta come un vuoto che perfora l’edificio, trasformandolo in un belvedere verso la cappella di Torre Girona, dove attualmente si trova il supercomputer Mare Nostrum Il progetto fa dell’inquadratura un gesto urbano, cristallizzando in una vista la relazione simbo -

LONGITUDINAL SECTION

lica e fisica con la preesistenza. Internamente, un percorso pubblico permette di raggiungere il nuovo supercomputer e di connettersi con la cappella, integrando architetture e funzioni storicamente distinte. Il progetto si configura come una macchina funzionale, dove ogni decisione progettuale è guidata dall’efficienza: operativa, spaziale ed energetica. L’architettura rinuncia deliberatamente a primeggiare e arretra rispetto alla tecnologia, diventando contenitore performante, aggiornabile, preciso. La purezza luminosa delle lamelle bianche riflettenti suggerisce leggerezza e neutralità, rafforzando l’idea di un dispositivo sospeso, essenziale, quasi anonimo. Un’estetica che fa della discrezione la propria forza ■

BARCELONA SUPERCOMPUTING CENTRE

Località Barcellona

Committente Cns-Bsc

Autori Baas arquitectura

Responsabile dello studio Jordi Badía

Responsabile del progetto Alex Clarà

Anno di completamento 2020

Superficie costruita 12.597 m²

Fotografie Adrià Goula

C.E.

Sopra. L’architettura è rigorosa, efficiente e discreta, pensata per servire la macchina più che per imporsi formalmente.

Sotto. L’organizzazione interna è chiara e funzionale. L’ingresso e i percorsi pubblici stabiliscono una relazione

simbolica e visiva con la cappella storica di Torre Girona, integrando tecnologia, paesaggio e preesistenza storica.

In-Site

Società di architettura e ingegneria integrata fondata a Milano nel 2006 da Pietro Matteo Foglio (nella foto) con Giovanni Santambrogio e Roberta Stoppa. Specializzata nella progettazione di infrastrutture complesse e data center, In-Site opera all’incrocio tra architettura, ingegneria e tecnologia, sviluppando soluzioni su misura che coniugano performance tecnica, qualità spaziale e attenzione alla relazione uomoambiente. Con oltre 150mila mq di data center progettati e una forte esperienza nel controllo dei processi realizzativi, affronta le sfide della transizione digitale con un approccio sistemico, flessibile e multidisciplinare. https://in-site.it /

Sopra. Gli spazi ipogei nelle gallerie minerarie. L’infrastruttura sfrutta le qualità ambientali della roccia: sicurezza raffrescamento naturale e minimo impatto sul paesaggio. Foto In-Site. Accanto. Assonometria che evidenzia l’organizzazione delle gallerie, la distribuzione dei flussi impiantistici e il collegamento verticale con la superficie, in una logica integrata tra infrastruttura digitale, geologia e ingegneria.

Intacture. Un data center come paesaggio, infrastruttura civile e modello territoriale

La Val di Non, nelle Dolomiti Trentine, è nota soprattutto per le mele; tuttavia, nell’era dei data center, rivela un inedito adattamento dell’aspra morfologia del territorio montano. Se finora le celle ipogee ricavate da ex cave o miniere, in ambienti controllati artificialmente, venivano utilizzate per conservare le mele, oggi gli stessi spazi sotterranei — caratterizzati da temperatura stabile, bassa dispersione termica e costi energetici ridotti — risultano ideali per ospitare infrastrutture digitali altamente performative. Meglio ancora se questi

labirinti sotterranei diventano un nuovo tipo edilizio e architettonico. Nel caso del progetto Intacture, invece di un box energivoro e architettonicamente anonimo, troviamo un organismo complesso, articolato quasi interamente all’interno di una miniera attiva che sprofonda fino a 100 metri, sfruttando la protezione naturale della montagna. Il sistema si compone di due parti: un campus in superficie, destinato anche ad attività culturali e divulgative, e un data center ipogeo. Il cuore operativo è nel sottosuolo: ampi spazi tecnici con raffresca-

Sopra. Fase di realizzazione delle strutture ipogee. Il cantiere integra scavo in roccia, contenimento strutturale e logiche impiantistiche trasformando un ambiente estrattivo in un’infrastruttura digitale ad alta complessità con minimo consumo di suolo.

A sinistra. Vista zenitale del fornello di collegamento tra superficie e ipogeo. Il vuoto verticale concentra flussi di ventilazione energia e dati configurandosi come elemento strutturale e infrastrutturale chiave del sistema.

mento naturale, protetti da 90 milioni di metri cubi di roccia. Le sale server sono configurate per garantire sicurezza fisica, elettromagnetica e idrogeologica, con ridondanza e continuità operativa. Un fornello verticale di 40 metri convoglia energia, dati e ventilazione tra interno ed esterno, mentre il sistema energetico è interamente alimentato da fonti rinnovabili, con impianto fotovoltaico integrato. L’efficienza è monitorata con un Power Usage Effectiveness inferiore a 1,25, valore significativamente più basso della media europea.

Accanto a progetti come il Lefdal Mine Data Center in Norvegia, ricavato da una miniera dismessa, i data center di Iron Mountain negli Usa e l’iconico Pionen White Mountain di Stoccolma, insediato in un ex bunker della guerra fredda scavato sotto 30 metri di granito, il caso trentino rappresenta uno dei primi data center in miniera attiva e un esempio particolarmente interessante di integrazione fra infrastruttura digitale e paesaggio montano ■ C.E.

INTACTURE

Località Val di Non. Trentino Alto Adige

Committente Trentino Data Mine. Società pubblicoprivata guidata dall’Università di Trento

Progettista Pietro Matteo Foglio

Superfici

Lotto 27.850 m²

Spazi ipogei 8.000 m² (espandibili fino a 13.250)

Building Data Center (superficie) 670 m²

Fornello 550 m² (esterni) – 910 m² (ipogeo)

Edificio Gruppo Elettrogeno 400 m²

Edificio Polifunzionale 315 m²

Edificio Vecchia Miniera 90 m²

Potenza utile 1,5 MW (espandibile fino a 5 MW)

Investimento € 50,2 milioni (18,4 da Pnrr; 31,8 da privati)

Prix Versailles 2025 segnala i sette musei più belli del mondo

Il 5 dicembre a Parigi, presso la sede dell’Unesco, si è svolta la cerimonia di premiazione dei progetti di architettura selezionati come i World’s Most Beautiful dalla giuria del Prix Versailles 2025. Istituito nel 2015, il premio, a cadenza annuale, si articola in otto categorie, una delle quali è dedicata ai musei.

Vincitore assoluto di quest’ultima categoria, il Kunstsilo a Kristiansand, in Norvegia, che raccontiamo nelle pagine seguenti. Qui gli altri sei musei scelti dalla giuria presieduta da Irina Bokova, già direttore generale dell’Unesco, che ha voluto ricordare che «l’architettura è inseparabile dalla cultura perché porta con sé la memoria dei luoghi, promuove l’identità e costruisce ponti tra gli uomini». Gli altri membri della giuria quest’anno erano gli architetti Ma Yansong e Thom Mayne, il pianista Lang Lang, le attrici Emma Watson e Maria de Medeiros, la fashion designer olandese Iris van Herpen e Leandro Erlich, artista concettuale argentino.

Audeum. Seoul È una promenade dei cinque sensi il museo degli strumenti per la riproduzione del suono disegnato da Kengo Kuma. È avvolto in un involucro di tubi di alluminio attraversati dalla brezza che riflettono la luce del giorno e delle stagioni mentre i sette piani interni sono rivestiti in legno di cipresso di cui si avverte il profumo.

Grand Palais. Parigi Con un restauro filologico guidato da Chatillon Architectes che ha aggiunto anche nuovi spazi espositivi, il Grand Palais è tornato a risplendere sotto la gabbia di vetro di 17.500 mq progettata da Charles Girault per l’Esposizione Universale del 1900 e nel verde pallido della struttura di ferro che la sostengono.

Museo di Storia

Naturale. Cleveland

Ispirato ai ghiacciai che hanno formato i Grandi Laghi nordamericani, il progetto di DLR Group si presenta come una forma continua di carattere alluvionale che avvolge le parti nuove e quelle esistenti.

Joslyn Art Museum Omaha

Tre padiglioni e tre diversi stili: il capolavoro Art Deco di John e Alan McDonald (1931), il primo lavoro di Norman Foster in Usa (1994) e il Rhonda & Howard Hawks Pavilion di Snøhetta (2024).

Saka Museum. Bali (sopra a sinistra) Un tetto triangolare su pareti vetrate aperte sulla foresta tropicale nel museo progettato da Mitsubishi Jisho Design e aperto nel 2024 nel complesso alberghiero Ayana Bali.

Diriyah Art Futures

Progettato da Schiattarella Associati il primo centro per le arti digitali del Medio Oriente e del Nord Africa reinterpreta in chiave attuale i caratteri dell’architettura tradizionale saudita. È formato da volumi distinti che si sviluppano orizzontalmente sul costone di un wadi.

Premiato con il Prix Versailles 2025, il progetto degli studi catalani Mestres Wåge, Bax e Mendoza Partida trasforma in museo gli ex magazzini del grano del porto di Kristiansand

KRISTIANSAND, NORVEGIA

KUNSTSILO una cattedrale dell’arte moderna scandinava

Dalla Danimarca il traghetto impiega 3 ore e 15 minuti per raggiungere Kristiansand, vivace centro sulla costa norvegese sudoccidentale che abbiamo imparato a conoscere nel 2014 per la Kilden Opera House, primo progetto dello studio finlandese Ala Architects (ai quali si deve anche la Biblioteca centrale di Helsinki ‘Oodi’) con lo studio locale Sms Arkitekter. Dieci anni dopo, accanto alla monumentale facciata in legno della sala concerti è stato inaugurato il Kunstsilo, che accoglie la più grande collezione privata al mondo di arte moderna scandinava.

Non lontano dal turistico mercato del pesce con le tipiche casette di legno dipinte di rosso, il progetto di Maria Mestres, Magnus

Wåge, Boris Bezan, Hector Mendoza e Mara Partida trasforma in spazi espositivi un ex magazzino portuale costruito nel 1935 sul molo della penisola di Odderøya. Ai 15 silos del grano originari nel tempo se ne erano aggiunti altri 15 e, nel 1956, il magazzino era stato ampliato, questa volta in calcestruzzo al posto del telaio e involucro in legno degli anni Quaranta.

Destinato alle attività portuali e mercantili il complesso, progettato da Korsmo e Aarsland Architects, era un’ottima espressione del movimento funzionalista norvegese, ora conservato e valorizzato nella sua nuova destinazione.

Il gesto più significativo del progetto consiste nella scelta di ‘tagliare’ all’interno,

NORTH FACADE
EAST FACADE
WEST FACADE
SOUTH FACADE

LONGITUDINAL SECTION

CROSS SECTION

Il Kunstsilo ridà forma agli ex silos per il grano sulla penisola di Odderøya. La forma rimane riconoscibile ma viene rielaborata diventando elemento distintivo del museo. Foto Alan Williams.

Il team di progettazione

Sono di Barcellona gli architetti che insieme, nel 2016, vinsero il concorso internazionale di progettazione del Kunstsilo: Boris Bežan (Bax Studio), Mara Partida e Hector Mendoza (Mendoza Partida Studio) e Maria Mestres e Magnus Wåge (Mestres Wåge Architects). Con background e esperienze internazionali differenti, i cinque avevano già collaborato su altri progetti, come la Scuola di musica Knuden sempre a Kristiansand, il Museo Serlachius a Mantta in Finlandia, il Centro culturale Garcia Lorca di Granada, la Facoltà di studi nautici di Barcellona, il Museo dei bambini di Iztapalapa a Città del Messico e un business center a Lubiana. www.baxstudio.com www.mendozapartida.com www.mestreswage.com

La forma cilindrica del silo esprime tutta la propria plasticità negli interni, dove un disegno animato dalle ombre riveste i soffitti.

fino al quarto piano di altezza, i silos per dare luogo a un monumentale foyer (la Silosalen) intorno al quale si sviluppa, negli spazi in precedenza assegnati al magazzino, un auditorium, gli ambienti pubblici e di servizio (biglietteria, bookshop) e le sale delle esposizioni temporanee.

Le oltre 8mila opere delle collezioni permanenti sono esposte nelle sale superiori, che dal primo al quarto piano si affacciano sul foyer con balaustre e grandi vetrate. La distribuzione verticale e orizzontale avviene, oltre che tramite ascensori, tramite

una grande scala a spirale che raggiunge i corridoi sospesi dei diversi piani. Al quinto piano invece, una terrazza delle sculture all’aperto offre viste panoramiche sul fiordo, al pari del coronamento superiore, vetrato e trasparente, utilizzato anche come spazio per eventi.

La pavimentazione in vetro della copertura di alcuni silos conduce la luce naturale fino al foyer, accrescendo, all’ingresso, la sensazione di trovarsi all’interno della navata di una cattedrale ■

CREDITI

Località Kristiansand, Norvegia Committente Sørlandets Kunstmuseum

Progetto architettonico Bax, Mendoza Partida, Mestres Wåge

Team Boris Bezan, Hector Mendoza, Mara Partida, Maria Mestres, Magnus Wåge

Superficie 3.300 mq

Cronologia 2016 (concorso di progettazione) – 2024 (completamento)

Foto Pedro Pegenaute, Alan Williams

Sotto. Il foyer con grandi altezze ricavato dal ‘taglio’ dei silos di calcestruzzo. Vi si affacciano tutte le sale espositive come quella della foto a destra ricavata negli ambienti del deposito.

Occus eicid essinvelibus dolorae quae na et fugia veria quiatia et fugia veria quiatia m et fugia veria quiatia doluptati quiaspe mo eaque.

L’apertura di un lucernario circolare nel cortile amplifica ulteriormente il dialogo tra luce interna ed esterna.

Si accede al museo da una gradinata monumentale, ritagliata nel cortile interno, che accompagna nelle sale ipogee.

TORINO

Gallerie d’Italia un museo underground a Palazzo Turinetti

Il progetto di Amdl Circle esalta la possibilità di recupero degli spazi ipogei e dimostra la loro capacità di diventare poli culturali senza intaccare la ricchezza dei piani nobili

Per gli spazi museali delle Gallerie d’Italia a Torino, AMDL Circle firma un intervento che trasforma gli spazi ipogei di Palazzo Turinetti da luoghi funzionali alla banca – archivi, caveau e parcheggi – in un articolato polo culturale dedicato alla fotografia e alla video-art. Un progetto che valorizza il potenziale nascosto degli ambienti sotterranei, senza intaccare la ricchezza storica dei piani nobili, e che fa dell’architettura ipogea un dispositivo di riflessione, introspezione e racconto visivo. La discesa al museo avviene attraverso una scenografica gradinata monumentale ricavata nella corte interna, pensata non solo come accesso ma come spazio di incontro e socialità. La luce naturale filtra dall’alto,

amplificata da un lucernario circolare, e accompagna i visitatori verso la hall al piano -2, animata da un’installazione in acciaio che richiama simbolicamente il pixel fotografico. Qui si trovano anche l’Arena per l’accoglienza di gruppi e scuole e le informazioni sulle altre sedi di Gallerie d’Italia.

Il percorso espositivo si sviluppa tra spazi essenziali e materici, dove microcemento, intonaci e superfici lasciate a vista raccontano la stratificazione storica del palazzo. Al piano -2 si trovano la Sala dei Trecento, dedicata alle mostre temporanee, e la Galleria voltata; al piano -3 il cuore multimediale del museo, con l’Archivio Publifoto – oltre sette milioni di immagini

del fotogiornalismo italiano – consultabile attraverso installazioni digitali, una grande sala immersiva con 17 proiettori e ulteriori ambienti espositivi.

L’ipogeo offre anche vantaggi concreti per la conservazione delle opere, garantendo condizioni climatiche stabili con un minore impatto energetico. In superficie, invece, il restauro del piano nobile valorizza le sale storiche e le collezioni dal XVI al XIX

La hall d’ingresso al piano -2 è animata dai riflessi di frange in acciaio che avvolgono le pareti e evocano rarefatto il pixel delle fotografie.

Ormai da diversi anni Michele De Lucchi, forte della sua straordinaria carriera di architetto e designer, ha riconfigurato lo studio in una struttura orizzontale, capace di aprirsi al contributo dei figli e di tanti giovani professionisti con i quali condivide il lavoro, l’esperienza e la volontà di innovazione e cambiamento. Nella foto, con Angelo Micheli e Davide Angeli. www.amdlcircle.com

Loreprov itaquam resciis es ut estrundi dolore dollis eos aruptassum velique earchilique cus expli.Pio nortern iriurbit? Quam iam consupicis hum inatus arbit.

Nihinterit, sent,Unt ullores plignime exerae

secolo, con particolare attenzione alla Sala dei Capolavori dedicata al ciclo pittorico su San Paolo. Il museo si apre infine alla città: la corte interna diventa una nuova piazza pubblica, collegamento tra via XX Settembre e piazza San Carlo, animata da ristorante, bookshop, Digital Lab e servizi. Un colonnato in legno, segno contemporaneo di AMDL Circle, dialoga con il porticato storico in pietra, dichiarando un approccio progettuale che intreccia identità, rispetto dell’esistente e scoperta della meraviglia già inscritta nei luoghi ■

I serramenti di Secco Sistemi contribuiscono in modo determinante alla qualità architettonica del progetto. In particolare, il sistema OS2 75 in acciaio zincato verniciato è stato utilizzato sia per le grandi aperture a tutta altezza dell’ingresso sia per le finestre ad arco dei piani nobili, garantendo continuità visiva e coerenza cromatica. I profili sottili dialogano con la pietra e gli altri materiali, disegnando ampie bucature che massimizzano l’apporto di luce naturale. Il colore scuro e le linee essenziali

richiamano i serramenti storici in ferro, mentre l’elevata precisione costruttiva e l’innovazione tecnologica collocano l’involucro architettonico nella contemporaneità. Capostipite della famiglia OS2 a taglio termico e vincitore del Compasso d’Oro 2018, il sistema offre grande flessibilità progettuale grazie a un’ampia gamma di profili, tipologie di apertura e accessori coordinati, coniugando efficienza, eleganza e cura artigianale del dettaglio. www.seccosistemi.com

SECCO SISTEMI
AMDL Circle

Design

Progetto illuminotecnico

Team

Interior Design Simona Agabio, Federica Cevasco Leonie

Sistemi di illuminazione Erco

Pareti mobili Estfeller

Colonnato di legno Eurofiere

Pavimentazioni Fratelli Moncini

Verde Paesaggistica Toscana

Serramenti Secco Sistemi

Rivestimenti murari Sikkens

Arredi interni Giordano allestimenti

Schermo multimediale Black Engineering

Foto Marco Tacchini e Luca Rotondo

Località Torino
Progetto Amdl Circle. Michele De Lucchi
di progetto Angelo Micheli, Alberto Bianchi, Sara Casartelli, Giacomo Nava, Guido Tarantola, Michele Vanetti, Matteo Di Ciommo (modellista)
Kutschale, Francesco Orcioni, Banafsheh Razavi
Graphic
Filippo Nicolini, Antonio Mazzei
Ferrara Palladino Lightscape
CREDITI
Gallerie d’Italia

Nella pagina accanto. Al piano -2 la Sala voltata. Gli spazi sono curati nel dettaglio ma neutri, con pavimentazione in micro cemento e intonaco. A destra e sotto. La scala che porta al piano -3 dove si trova la Sala Multimediale e lo spazio che accoglie più di 7 milioni di fotografie dell’Archivio Publifoto. ARCHITETTURE

Le vele in acciaio sono l’elemento distintivo del prospetto. Ingegnosa soluzione tecnica che unisce estetica e efficienza energetica.

SOUTH EAST ELEVATION

Zayed Museum cinque vele spiegate nel deserto arabo

Foster + Partners firma il nuovo museo dedicato alla storia degli Emirati Arabi. Le forme moderne dalla tecnologia avanzata si fondono con il paesaggio arido del deserto

Il 3 dicembre 2025 ha ufficialmente aperto le porte al pubblico il nuovo Zayed National Museum, il museo dedicato alla storia degli Emirati Arabi Uniti firmato da Foster + Partners. La struttura si trova al centro del Saadiyat Cultural District, nella città di Abu Dhabi, e richiama il Paese a cui è dedicata già dalla sua forma esterna, emblema delle difficoltà dell’insediamento umano nel complesso ambiente desertico. L’esposizione permanente ripercorre la storia degli Emirati dalle prime testimonianze di vita fino allo sviluppo delle tradizioni che hanno modellato l’identità dei cittadini contemporanei, includendo un’ampia sezione dedicata allo sceicco Zayed bin Sultan Al Nahyan, padre fondatore dello Stato.

Le vele in acciaio ultraleggero che lo caratterizzano non sono solo un nuovo landmark della città, ma costituiscono un ingegnoso sistema di ventilazione naturale. Canali di aerazione collocati al vertice delle torri sfruttano la differenza di pressione tra interno ed esterno per espellere l’aria calda dall’atrio, mentre l’aria esterna, convogliata attraverso condotti sotterranei per raffrescarla, fluisce verso gli ambienti interni. Le vele, che nella forma richiamano la pratica, qui tradizionale, della falconeria, favoriscono inoltre l’illuminazione naturale grazie a superfici smaltate che riflettono i raggi solari verso il luminoso atrio chiamato Al Liwan, che svolge la duplice funzione di luogo d’incontro e palcoscenico per

rappresentazioni di danza tradizionale e poesia.

I percorsi espositivi sono inseriti in un terrapieno che isola gli spazi interni dal calore del deserto e richiama la topografia del territorio arabo. Delle sei gallerie permanenti, quattro presentano una forma a guscio e sono collocate sopra l’atrio. Questa particolare conformazione consente la creazione di un microclima controllato, adatto alla conservazione di manufatti particolarmente sensibili al deterioramento. Ogni galleria è progettata per sviluppare un tema specifico, mentre gli spazi di connessione integrano contenuti che mettono in relazione i diversi argomenti. Il percorso è libero e può essere costruito

Foster + Partners

Studio di architettura, design e progettazione integrata fondato a Londra nel 1967 da Norman Foster. Noto per l’approccio che combina tecnologia, sostenibilità e attenzione all’esperienza umana lo studio, che oggi conta più di 1.700 dipendenti, opera su scala globale. Tra i progetti più famosi, oltre a numerosi aeroporti, il building Hsbc a Hong Kong, il Reichstag di Berlino, la torre al 30 di St Mary Axe a Londra, l’Apple Park e gli Apple Store nel mondo. Nella sua carriera Lord Norman Foster, 90 anni compiuti lo scorso giugno e nessuna intenzione di ritirarsi, ha vinto tutti i più importanti premi di architettura, incluso, nel 1999, il Premio Pritzker. www.fosterandpartners.com

WING EDGE

dal visitatore in base ai propri interessi. Al piano terra, due ulteriori gallerie permanenti affiancano l’ingresso insieme a uno spazio per esposizioni temporanee e a funzioni complementari come ristorante e caffè. Gli spazi esterni richiamano ancora una volta la figura del fondatore attraverso il giardino Al Masar, simbolo dell’amore dello sceicco per la natura. In una sintesi tra paesaggio e memoria storica, l’area verde si configura come luogo di incontro e socializzazione per la comunità. Un percorso ombreggiato invita alla passeggiata e culmina in una piattaforma panoramica sulla sommità del terrapieno. Il giardino ospita oltre 900 specie arboree autoctone e utilizza un sistema di irrigazione tradizionale falaj, basato sul flusso gravitazionale dell’acqua senza ricorso

a energia artificiale, una tecnica praticata ovunque da millenni.

L’attenzione alla sostenibilità rappresenta uno dei cardini del progetto. La riduzione dei consumi e delle dispersioni, ottenuta attraverso scelte architettoniche integrate, è affiancata da una selezione consapevole dei materiali, provenienti dai territori dei sette Emirati.

Il colore della struttura richiama infine le variazioni cromatiche della sabbia nelle diverse aree del Paese, rafforzando il legame simbolico e fisico con il contesto e trasformando il museo in un autentico manifesto identitario contemporaneo ■

Il luminoso atrio centrale è il cuore del progetto. Su di esso si innestano quattro delle sei sale espositive in strutture a guscio.

CREDITI

Località Abu Dhabi

In alto, lucernari con tripli vetri stratificati limitano l’ingresso di luce diretta nelle torri. Sotto, le sale interne sono dedicate a diversi elementi tipici del territorio e della cultura degli Emirati.

Committente Dipartimento della cultura e del turismo degli

Emirati Arabi

Progetto architettonico Foster + Partners

Progetto strutturale Akt II, Wsp

Progetto illuminotecnico Lerch Bates

Consulente paesaggistico Atelier Dreiseitl

Appalto principale Arabtec, Six Construct-Trojan JV

Appalto sottostruttura Al Habtoor Murray Roberts

Ingegneria civile Philip Habib + Associates

Consulente costi Rlb

Ingegneria ambientale Transsolar

Superficie 56.687mq

Cronologia 2007-2025

Foto Nigel Young / Foster + Partners

GROUND FLOOR
GALLERY FLOOR
L’atrio è luogo di incontro e spazio dedicato alla rappresentazione di balli tradizionali e divulgazione della cultura araba.
ROOF PLAN
La sala centrale presenta grandi altezze e dettagli sagomati sulla geometria del triangolo riprendendo la forma
delle piramidi, elemento che ha reso famosa la civiltà egizia nel mondo. Foto Georges e Samuel Monsen.

GIZA

Faraonico come le piramidi il museo della civiltà egizia

Vent’anni e un miliardo di dollari per il Grand Egyptian Museum. Il progetto di Heneghan Peng Architects che raccoglie 5mila anni di storia e 100mila oggetti della civiltà egizia

È il museo archeologico più vasto del mondo quello inaugurato lo scorso 4 novembre a Giza, dopo più di vent’anni d’attesa (più di trenta se si considera l’annuncio che ne diede nel 1992 l’allora presidente egiziano Hosni Mubarak) e un investimento di un miliardo di dollari.

Il Grand Egyptian Museum sorge su un’area di 50 ettari in prossimità delle piramidi di Giza, che si possono traguardare al culmine della maestosa scalinata che attraversa i sei livelli dell’edificio e che anzi sembrano esse stesse parte dei 100mila manufatti esposti nelle imponenti sale.

Il progetto è di Heneghan Peng Architects, che all’epoca del concorso di progettazione era uno studio sconosciuto composto solo dai

soci fondatori Róisín Heneghan e Shih-Fu Peng. Il loro progetto, sviluppato con Arup e Buro Happold, ebbe la meglio su 1.556 partecipanti provenienti da 82 Paesi. Chiaramente ispirata alle vicine piramidi, che non supera però in altezza, la forma dell’edificio è ascendente. Quella del triangolo è la geometria dominante nell’inclinazione dei muri, nell’involucro formato da pannelli triangolari di vetro, alabastro e pietra arenaria locale, nel disegno degli esterni e nella scansione degli spazi, creando un legame diretto tra l’architettura antica e quella contemporanea. Il complesso si inserisce nel paesaggio desertico generando contrasti e al tempo stesso relazioni, suggerendo una continuità

simbolica con la grande civiltà che ha reso l’Egitto celebre nel mondo. Dal maestoso piazzale di ingresso, più minerale che a giardino, i visitatori – accolti dall’obelisco di Tutankhamon alto 16 metri – accedono al museo attraverso un portico di ingresso vetrato che sei colonne in ferro sollevano dal terreno come una gonna al vento.

Dal maestoso atrio centrale si diparte la grande scalinata, affiancata da statue monumentali di faraoni e divinità, che raggiunge i sei piani delle sale espositive e che in sommità conduce alla vista delle piramidi di Giza.

Due gallerie sono interamente dedicate a Tutankhamon, i cui celebri reperti, rinvenuti nella tomba scoperta nel 1922, sono qui

Lo studio si occupa di architettura, landscape design e disegno urbano. Fondato nel 1999 a New York da Róisín Heneghan e Shih-Fu Peng, nel 2001 si è trasferito a Dublino e nel 2011 ha aperto un distaccamento a Berlino. Hparc utilizza un approccio multidisciplinare nella realizzazione dei progetti con la collaborazione di architetti e ingegneri di spicco in un vasto numero di interventi anche di carattere infrastrutturale. Tra i progetti realizzati, la Kaiser Wilhelm Gedächtnis Kirche, la biblioteca centrale e gli edifici della facoltà di architettura dell’Università di Greenwich e la sede europea di Airbnb a Dublino.

www.hparc.com

All’esterno la visita prosegue nei giardini disegnati con attenzione e pensati per ospitare i reperti di dimensioni maggiori.

La monumentalità è ricercata in ogni ambiente e ottenuta grazie a colossali dettagli che specchiano la silhouette e i materiali delle piramidi.

esposti in maniera permanente. Il visitatore ha inoltre la possibilità di ammirare la monumentale statua di Ramesses II, risalente a oltre 3.200 anni fa e la nave funeraria di Khufu, presenza eccezionale per valore storico e dimensioni.

La luce rappresenta uno dei punti di forza del progetto. Diversamente da quanto accade nei musei tradizionali, dove l’illuminazione naturale è ridotta al minimo per ragioni conservative, qui è possibile sfruttare ampie vetrate grazie alla natura litica dei reperti, che non risentono dell’esposizione solare. L’uso massiccio del calcestruzzo

garantisce una buona massa termica, riducendo la necessità di un eccessivo ricorso alla climatizzazione artificiale, aspetto fondamentale nel clima caldo e arido del Nord Africa. Dal punto di vista ambientale il museo stabilisce anzi un altro primato in quanto primo museo in Africa a ottenere la certificazione Ifc Edge Advanced Green Building : le strategie progettuali – secondo Ifc – portano a un risparmio del 60 per cento sui costi dell’energia e del 34 per cento nel consumo di acqua rispetto a un edificio convenzionale di analoghe dimensioni. L’offerta culturale è completata da un museo

per bambini, un centro conferenze e un auditorium. Il Grand Egyptian è anche uno dei più grandi centri di conservazione al mondo, con 17 laboratori, collegati all’edificio principale da un tunnel, dedicati allo studio, alla conservazione e al restauro di reperti di diversa natura e fragilità. Per l’inaugurazione ufficiale, la direttrice del museo Lina Mowafy ha organizzato un’esposizione temporanea che ha coinvolto più di cento artisti egiziani per sottolineare la continuità tra il patrimonio storico e la produzione artistica contemporanea del Paese ■

Heneghan Peng Architects

Grand

L’idea era di offrire al visitatore durante l’ascesa della scalinata, una prospettiva sulla storia dell’antico Egitto fino a raggiungere l’apice con la grande vista finale sulle piramidi che da lassù sembrano esse stesse parte del museo. Il percorso ascensionale e il panorama sono l’occasione per riflettere sull’incredibile vastità di questa storia e di quello che ha prodotto

Róisín Heneghan

Luci e ombre sono modulate per adattarsi al meglio ad ogni ambiente. Il massiccio impiego del calcestruzzo crea una massa termica che limita le esigenze di climatizzazione.

Località Giza, Egitto

Cliente Ministero della Cultura Egiziano

Progetto architettonico Heneghan Peng Architects

Raafat Miller Consulting (local architect)

Exhibition design Atelier Brückner

Progetto strutturale Arup, Ace

Landscape design West 8

Facciate Arup

Servizi costruttivi, sicurezza, acustica Buro Happold

Illuminotecnica Bartenbach Lichlabor

Superficie 129.000 mq

Cronologia 2003 - 2025

Le gallerie, di cui due interamente dedicate a Tutankhamon presentano un layout specifico per il periodo e le opere conservate.

La scalinata centrale richiama la maestosità dei templi egizi. Trovano qui posto reperti di grandi dimensioni, inseriti anche con cromie dei materiali attentamente studiate. La salita copre un’altezza di sei piani e conduce alle diverse sale espositive. In cima, una grande finestra introduce la luce naturale a apre la vista sulle piramidi.

I tetti del museo hanno una forma dinamica e riconoscibile, studiata per essere osservata dall’alto della vicina ruota panoramica. Fondamentale nel progetto la relazione con l’acqua e gli elementi del regno vegetale e minerale.

Le pagode di BIG un labirinto di giardini e padiglioni come in un tradizionale villaggio cinese

Bjarke Ingels www.big.dk

L’inaugurazione ufficiale del nuovo museo di arte contemporanea di Suzhou avverrà quest’anno con la mostra Materialism, curata da Big che ha progettato il nuovo museo in collaborazione con la società di progettazione integrata Arts e con Front per l’ingegnerizzazione delle facciate. Radicato nella tradizione dei giardini cinesi che nei secoli hanno definito l’identità urbana della città, il museo si presenta come un villaggio, con dieci differenti padiglioni (altri due saranno prossimamente costruiti sull’acqua) collegati tra loro da gallerie vetrate e da portici all’aperto, protetti, come le coperture dei padiglioni, da gronde che richiamano la forma a pagoda dei tradizionali tetti cinesi di tegole ma sono

realizzati in acciaio inox.

L’architettura del nuovo museo, che sorge presso le sponde del lago Jinji, il più piccolo dei laghi di Suzhou, è stata pensata per essere compresa e apprezzata dall’alto della vicina ruota panoramica, sia nella sua topografia sia per le coperture, concepite come una quinta facciata. Il progetto del paesaggio gioca un ruolo determinante nel racconto e nell’esperienza di visita: l’intreccio di spazi coperti ma aperti su corti e giardini fa sì che le opere si pongano in stretto dialogo con il paesaggio, mentre, man mano che ci si avvicina al lago, i giardini si arricchiscono di vegetazione e di piante acquatiche, sottolineando il passaggio dalla terra all’acqua.

Quattro i padiglioni destinati alle esposizioni, con la luce naturale che filtrando attreverso lucernari e cleristori anima le gallerie con accenti e giochi di ombre. I padiglioni restanti sono destinati invece al grande atrio di ingresso, di fronte alla piazza, a una sala multifunzionale e per esposizioni temporanee, a un teatro e al ristorante del museo.

Strategie passive (ombreggiatura, ventilazione naturale) e impiego di materiali di provenienza locale dovrebbero consentire al nuovo museo di ottenere la certificazione 2-Stars della Gbel (la Green Building Evaluation Label del Ministero della casa della Repubblica Popolare Cinese) ■

SUZHOU

In uno dei dieci padiglioni che compongono il museo trova spazio la mostra temporanea Materialism curata da Big.

Committente Suzhou Harmony Development Group

Progetto architettonico Bjarke Ingels Group. Partners-incharge Bjarke Ingels, Catherine Huang; project manager Molly Hsiao Rou Huang; project architects Tyrone Cobcroft, Kekoa Charlot, Tseng-Hsuan Wei; design lead Matteo Pavanello

Collaboratori Arts Group Co; Front Inc; Shanghai Shuishi

Landscape Design Co.; Rdesign International Lighting

Superficie totale 60.000 mq

Completamento 2026

Località Suzhou, Jiangsu, Cina
Foto StudioSZ Photo / Justin Szeremeta, Ye Jianyuan
CREDITI

Il percorso solare è un elemento fondamentale del progetto. Negli equinozi e nei solstizi i raggi del sole incontrano specifici punti della struttura, realizzando giochi di luce che danno vita all’edificio e creano un’esperienza immersiva.

Sun Tower un centro culturale modellato dalla luce del sole

Open Architecture disegna il nuovo centro culturale di Yantai. Un progetto in armonia con la natura che nasce dall’osservazione del percorso solare

Ricerche archeologiche hanno mostrato come la città di Yantai, sulla costa cinese settentrionale con affaccio sulla Corea del Sud, sia stata tra i primi luoghi in cui è comparso il culto del Sole. Non sorprende quindi che Open Architecture abbia voluto rendere omaggio al passato di questi luoghi nel nuovo centro culturale pubblico nella zona di Yeda. Il nome stesso, Sun Tower, incorpora la caratteristica unica di questo progetto: non un edificio ma un ‘faro culturale’ dove gli antichi insegnamenti sul rispetto della natura incontrano il moderno stile di vita urbano.

Sun Tower cerca di catturare e celebrare i fenomeni naturali riconnettendo l’uomo allo spirito della natura e con un

programma di servizi per la comunità di Yantai, tra i quali un teatro all’aperto, spazi per mostre digitali, una biblioteca e punti di ristoro.

La particolare geometria a cono irregolare dell’edificio è modellata dall’osservazione del movimento del sole sul sito. L’angolo più a nord è parallelo alla luce di mezzogiorno agli equinozi, mentre l’ingresso è allineato con il tramonto del solstizio d’inverno. Il solstizio d’estate porta ulteriori giochi di luce: gli assi del teatro all’aperto all’alba puntano verso l’Isola Zhifu e il contorno circolare del tetto è posto perpendicolare alla luce di mezzogiorno.

Gli interni sono in molti casi non riscaldati. Questa scelta non è da considerarsi

una carenza progettuale, ma deriva da un attento design che sfrutta strategie passive di comfort termico, riducendo i consumi. Un esempio è l’effetto camino per l’espulsione dell’aria calda in estate e l’inserimento di canali di raffrescamento che utilizzano la massa termica per limitare le fluttuazioni di temperatura. La struttura presenta un guscio a doppio strato in cemento per il corpo principale,

Il concavo interno ospita un teatro all’aperto con affaccio sul mare. I suoni delle onde sono amplificati dall’incavo della forma.

Open Architecture

Fondato nel 2006 a New York da Li Hu (a destra nella foto) e Huang Wenjing e con una sede anche a Pechino, Open Architecture lavora a tutte le scale, dall’architettura all’urbanistica, dal paesaggio al progetto di interni. Indipendentemente dalle convenzioni stilistiche e dalle mode e nella consapevolezza delle sfide attuali, l’intento è quello di intervenire sull’ambiente costruito promuovendo modi di vivere e di abitare più umani, sani e sostenibili. www.openarch.com

SECTION

La biblioteca presenta una grande vetrata sull’oceano donando un’esperienza di lettura unica e totalizzante.

connesso a solai e scale. La facciata verso l’oceano, sviluppata come sezione di un corpo più grande, accoglie al centro un guscio concavo in cui è inserito il teatro. Questa rientranza cattura e amplifica i suoni delle onde e delle maree, immergendo il visitatore nell’ambiente naturale.

L’intercapedine tra i due gusci ospita la biblioteca e il Phenomena Space, uno spazio semiaperto con ampia vetrata panoramica. Il tetto presenta al centro un oculo che lascia entrare la pioggia, raccolta in una vasca sottostante. Turbinii d’acqua della durata di nove minuti ogni ora funzionano come uno speciale orologio.

L’edificio è inserito in una piazza a forma di conchiglia con una fontana centrale sincronizzata con le onde marine. Dal centro si irradiano anelli ellittici simili a orbite planetarie. Un canale d’acqua, tangente alla torre e scavato nella piazza in pietra, segna il passare del tempo durante gli equinozi: l’ombra del bordo settentrionale si muove lungo il canale, intersecando ogni anello allo scoccare dell’ora. In un segmento dell’anello esterno sono incastonate fontane che celebrano i 24 termini solari del calendario lunare tradizionale ■

CREDITI

Località Yantai, Cina

Cliente Yeda City Develpment Group

Disegno architettonico Open Architecture

Progetto strutturale Arup

Consulente curatoriale Aric Chen

Consulente illuminotecnico Ning Field Lighting Design

Superficie 4.960 mq

Cronologia 2019-2024

I due gusci che compongono la struttura sono uniti da percorsi e passerelle con al termine terrazzi sulla costa. Il visitatore percepisce e ascolta i suoni del mare. in tutto il suo percorso che unisce arte e natura.

CREDITI

Località New York, 945 Madison Avenue

Progetto di riqualificazione architettonica e degli interni

Herzog & de Meuron (partner-in-charge Wim Walschap), Pbdw Architects (project lead Brigitte Cook)

Conservazione e architetti esecutivi

Platt Byard Dovell White Architects

Project manager per Sotheby’s Gardiner & Theobald Inc

Progetto strutturale Silman Structural Solutions/TYLin

Progetto impianti Ama Group Usa

Lighting design Tillotson Design Associates

General contractor J.T. Magen

Impronta a terra 1.200 mq

Slp 7.300 mq

Giardino delle sculture 208 mq

Completamento novembre 2025

Sopra, il Marcel Breuer Building è la nuova sede di Sotheby’s New York. A destra, la grande finestra al quarto piano affacciata su Madison Avenue e la galleria al piano terra, con opere della collezione di Dorothy and Roy Lichtenstein. Foto Stefan Ruiz e Max Touhey courtesy Sotheby’s.

Arte all’incanto il capolavoro di Breuer diventa la nuova sede di Sotheby’s

Progettato da Marcel Breuer per il Whitney Museum of American Art e per alcuni anni sede del Met Breuer, dal 1966 l’edificio al 945 di Madison Avenue a Manhattan è un landmark culturale del secondo Novecento non solo per la funzione che ha svolto ma soprattutto per la sua architettura, un capolavoro del Moderno che la Bauhaus aveva trasportato negli Stati Uniti. Acquistato da Sotheby’s dopo il trasferimento del Met, con un attento progetto di restauro e rifunzionalizzazione, lo studio di Basilea Herzog & de Meuron (in collaborazione con Pbdw Architects) ne ha fatto la sede centrale della casa d’aste fondata nel 1744.

«Paradossalmente, il nostro contributo architettonico più significativo a questo edificio – ha dichiarato Jacques Herzog all’inaugurazione – è stato quello di rimanere quasi invisibili, come se tutto fosse sempre esistito. La bellezza e la chiarezza dell’opera originaria di Breuer continuano

a manifestarsi e ne assicurano la rilevanza per le generazioni future». Conservata l’architettura nella sua peculiare forma a gradoni progressivamente sporgenti verso l’alto e ripulito il granito delle facciate, valorizzate da una nuova illuminazione, gli interventi hanno riguardato gli interni, a cominciare dal piano terra che ora funziona come una galleria aperta sulla città, con opere murali e sculture di grande formato visibili dalla strada.

La hall include un salone retail privato e una galleria dedicata. Tutti preservati i materiali originali, come i pavimenti in basaltina, le pareti in cemento trattato a martellatura e i caratteristici elementi di illuminazione a cupola. Nuovi pavimenti in rovere invece al secondo piano. Rimossi gli uffici del Met, la pianta è tornata alla sua configurazione originale, con un enfilade di gallerie e un significativo aumento della superficie espositiva complessiva.

Al terzo piano, i pavimenti in bluestone

e i soffitti in calcestruzzo a cassettoni preservano la materialità distintiva dell’edificio. Qui, come al piano inferiore, i corridoi terminano di fronte ad alcune delle celebri finestre a trapezio che si protendono dalle facciate.

Al quarto piano la celebre galleria di Breuer, con soffitti alti 5,2 metri e la grande finestra affacciata su Madison Avenue, funge da sala principale per le aste e da spazio espositivo flessibile con pareti mobili. In configurazione d’asta può ospitare circa 220 persone, mentre gallerie più piccole sostituiscono gli ex uffici e ampliano lo spazio aperto al pubblico.

Più contenute e luminose infine, con pavimenti in legno chiaro, le gallerie del piano superiore, che ampiano lo spazio espositivo complessivo.

L’ex sala del consiglio, con il tavolo in marmo originale progettato da Breuer, diventa una sala per presentazioni e meeting, dotata di un sistema di proiezione evoluto ■

Jacques Herzog e Pierre de Meuron www.herzogdemeuron.com/
La terrazza si affaccia sullo skyline milanese e si adatta a qualsiasi evento con un’ambientazione d’impatto.

MILANO

È OPTICAL LA TERRAZZA A COMPLETAMENTO DELLA FONDAZIONE PRADA

CON UNA GRAFICA

POP, CURVE E DISEGNI

CONTRASTANTI A CERCHI

CONCENTRICI, LA TERRAZZA

SUPERIORE DELLA TORRE

DELLA FONDAZIONE PRADA

È L’ELEMENTO FINALE A COMPLETAMENTO DEL COMPLESSO

L’apertura ufficiale del rooftop della Torre ha segnato il completamento della sede di Milano della Fondazione Prada, celebre complesso firmato da Rem Koolhaas e Oma nel 2015. La copertura della torre è pensata per essere uno spazio flessibile e adattabile per diverse funzioni. In continuità con la grande varietà di eventi ospitati dalla Fondazione e in città, questo spazio può adattarsi facilmente a incontri legati all’attività museale, ma anche a club all’aperto con area bar e postazione dj. La terrazza presenta una grafica d’impatto e dai colori contrastanti tipici della Fondazione. La pavimentazione ipnotica a cerchi concentrici in bianco e nero contrasta con forme curve color porpora in un insieme pop che contraddistingue

l’edificio già dalla vista aerea. L’elemento d’arredo principale sono le sedute LS24-Lounge System, disegnate da Federico Pompignoli, Pmp Architecture. La produzione degli arredi è stata affidata all’azienda marchigiana Maila’s, che ha utilizzato carbonio, cromature e silicone pigmentato per dare forma all’idea del designer. Le forme curve creano insenature e dividono lo spazio. L’idea è stata quella di generare due spazi contemporaneamente: uno esterno al perimetro con un sistema di sedute a sgabello, più informali e temporanee, e uno interno, con ‘salotti’ concavi e avvolgenti. Dischi color porpora, pensati come poggiapiedi, generano due quote diverse e quindi due differenti

Federico Pompignoli

La carriera di Federico Pompignoli inizia nel 2004, quando si laurea al Politecnico di Milano. Tra 2010 e 2019 ha lavorato in OMA a stretto contatto con Rem Koolhaas. Durante quegli anni è stato il project leader per Fondazione Prada Milano per cui ha prodotto il masterplan dai 9 edifici nuovi e rinnovati che vediamo oggi. Nei suoi anni in OMA ha collaborato anche a progetti come il Garage Museum a Mosca e il Fondaco dei Tedeschi a Venezia. Dopo aver lasciato lo studio di Koolhaas, Pompignoli ha fondato PMP Architecture, con sede a Milano, con cui ha realizzato progetti come il Tretyakov Museum a Mosca e una casa privata a Zell am See in Austria www.pmparchitecture.com

Il profilo cromato delle sedute riflette il disegno della pavimentazione portando ulteriore dinamicità all’insieme.

tipologie di fruizione. La sezione della seduta ricorda il profilo di una trave, ripreso anche dall’effetto metallico del materiale che riflette il disegno del pavimento.

CREDITI

Località Milano, Fondazione Prada

Committente Prada

Design sedute Federico Pompignoli, Pmp Architecture

Arredi Maila’s Materials Innovation

Pavimenti Lea Ceramiche

Foto Gabriele Croppi

Al momento della realizzazione la richiesta del progettista era di prodotti dal peso bilanciato, in modo da garantire un facile spostamento per adattarsi alle diverse configurazioni dello spazio. Dopo uno studio attento delle caratteristiche dei materiali si è optato per un core in Pet riciclato con un rivestimento in fibra di carbonio. Le superfici sono state poi trattate per raggiungere un effetto cromato che rende più dinamica la forma finale. Scelta interessante è stata quella di

utilizzare cuscini in polimero siliconico pigmentato e traslucido che permette la retroilluminazione della forma tramite un sistema a Led. L’effetto scenografico è ottenuto in questo modo non solo con l’illuminazione giornaliera, ma anche dopo il tramonto, con una luce soffusa avvolgente proveniente dal basso.

Il completamento della Torre chiude al meglio uno dei progetti che negli ultimi anni si è distinto per innovazione e creatività a Milano, inserendosi coerentemente con le altre aree già aperte al pubblico, ma mantenendo la singolarità che ogni settore della Fondazione possiede ■

L’aspetto pop della terrazza caratterizza la torre già dalla vista aerea, rendendo riconoscibile il complesso tra i palazzi del capoluogo lombardo.

Il rooftop si basa su un gioco di contrasti. Il pavimento a cerchi concentrici bianco e nero si scontra con le sinuose sedute color porpora, chiuse dai poggiapiedi circolari. Il disegno non cerca solo l’attenzione e lo stupore del visitatore ma richiama lo stile presente in ogni piano della torre.

Le sedute color porpora sono l’elemento distintivo del progetto e arricchiscono l’area proprio grazie al loro carattere pop.

Sopra e accanto nell’assonometria il grattacielo orizzontale di Mvrdv che si collega agli edifici storici del Tripoli Park proteggendoli dal rumore delle vicine infrastrutture stradali e ferroviarie. Nella pagina accanto, un’ampia vetrata funziona come una finestra fuori scala consentendo ai viaggiatori di traguardare il complesso. Foto Ossip van Duivenbode.

GLI EDIFICI DEL TRIPOLIS

PARK DI VAN EYCK

SONO RIMASTI A LUNGO INUTILIZZATI. TRAMITE

UNA NUOVA COSTRUZIONE

E UN INTERVENTO DI RIQUALIFICAZIONE MVRDV

HA RIPORTATO IN VITA IL COMPLESSO SIMBOLO

DELLO STILE DEL MAESTRO

DELLO STRUTTURALISMO

Uno degli ultimi progetti di Aldo van Eyck ha ritrovato il suo splendore grazie a un importante intervento di riqualificazione firmato da Mvrdv. Il Tripolis Park, situato nel quartiere di Zuidas ad Amsterdam, era composto da tre edifici per uffici dalle forme articolate realizzati nel 1994.

Il complesso si lega in modo indissolubile a un altro capolavoro del maestro olandese: il celebre Orfanotrofio di Amsterdam, considerato una delle opere chiave del movimento strutturalista. La sopravvivenza stessa dell’Or-

fanotrofio fu resa possibile proprio grazie alla realizzazione del Tripolis. Negli anni Ottanta, circa vent’anni dopo il completamento, il complesso rischiò infatti una demolizione quasi certa. Un accordo tra il Comune di Amsterdam e il progettista portò a una soluzione alternativa: il terreno adiacente venne offerto a un investitore privato a condizione che il nuovo complesso per uffici fosse progettato da Aldo van Eyck e da sua moglie Hannie. In questo modo, il Tripolis nacque non solo come intervento funzionale, ma come vero e

proprio atto di salvaguardia culturale. Tuttavia, per lungo tempo il suo valore rimase quasi esclusivamente legato alla sua “missione di salvataggio” dell’Orfanotrofio, senza mai riuscire a esprimere pienamente la propria funzione. L’ampliamento dell’autostrada A10, infatti, aumentò in modo significativo l’inquinamento acustico e atmosferico dell’area, compromettendo il comfort e l’attrattività dell’intero complesso.

È all’interno di questo scenario che si inserisce l’intervento di Mvrdv, guidato da un approccio

MVRDV

Lo studio di architettura olandese è stato fondato a Rotterdam nel 1993: il nome è l’acronimo dei soci fondatori

Winy Maas (nella foto), Jacob van Rijs e Nathalie de Vries. La sperimentazione costante è il comune denominatore tra i moltissimi progetti realizzati in 65 Paesi che hanno portato lo studio all’ottenimento di diversi premi. L’approccio orientato alla ricerca è esemplificato da The Why Factory, think tank indipendente e istituto di ricerca di architettura e urbanistica gestito dallo studio insieme alla Delft University of Technology, per immaginare la città del futuro.

www.mvrdv.nl

rispettoso ma al tempo stesso contemporaneo. La riqualificazione ha interessato inizialmente due dei tre edifici originali –200 e 300 – mentre è in programma la conversione del Tripolis 100 in un edificio a destinazione residenziale. Attraverso un attento lavoro di ricerca d’archivio e una stretta collaborazione con gli eredi, gli architetti hanno potuto studiare i disegni originali delle facciate e portare a compimento la visione di van Eyck. Oggi gli edifici presentano un rivestimento continuo in legno, in sostituzione della precedente combinazione tra granito e legno imposta dal committente negli anni Novanta.

Gli interni sono stati reinterpretati in chiave contemporanea, combinando le scale monumentali e i pavimenti in pietra originali con moderni spazi di lavoro flessibili e luminosi,

adatti alle esigenze dell’ufficio contemporaneo. La sostenibilità ambientale ha rappresentato uno dei cardini fondamentali del progetto di Mvrdv: tetti verdi intensivi e pannelli fotovoltaici hanno permesso al Tripolis Park di ottenere la certificazione Breeam Outstanding. A proteggere gli edifici ristrutturati dall’impatto dell’autostrada è stato realizzato un grattacielo orizzontale di dodici piani, l’Het Venster. Questo nuovo edificio funge da vera e propria barriera acustica e visiva, mitigando la presenza dell’infrastruttura e restituendo silenzio e qualità allo spazio interno del complesso. Il volume si interrompe in corrispondenza delle strutture originali del Tripolis, mantenendo una distanza rispettosa, e si collega ad esse tramite ponti sospesi. Sul lato sud, un’ampia vetrata offre una vista

privilegiata sul complesso storico, stabilendo un dialogo visivo tra passato e presente. In ultimo, il progetto dello spazio esterno è stato curato da Deltavormgroep, che ha proposto una sistema di percorsi pedonali e ciclabili in collegamento tra le diverse zone di Zuidas e la stazione metropolitana.

L’intervento di Mvrdv mostra un approccio coraggioso e originale alla tutela del patrimonio architettonico: un metodo che conserva migliorando e operando per trovare soluzioni a problemi che avevano compromesso il successo di un’opera. Un progetto di grande valore ma con evidenti difficoltà al momento della sua realizzazione viene in questo modo valorizzato e pienamente apprezzato ■

3. THE PROGRAMMED SOUNDSCREEN
2. THE SOUNDSCREEN
4. THE NEW ENSEMBLE
1. THE MONUMENTAL ENSEMBLE
ELEVATION - NORTH FACADE

Il nuovo edificio protegge il Tripolis senza nasconderlo. Una grande finestra lascia trasparire le forme del complesso mantenendo la protezione che promette.

Il collegamento tra il nuovo e il moderno avviene a rispettosa distanza e con ponti sospesi per trovare una relazione tra il passato e il presente. Foto Ossip van Duivenbode.

I ponti e le scale sospese creano un collegamento rispettoso tra il nuovo ‘grattacielo orizzontale’ e gli edifici del Tripolis Park. La

direttamente i disegni originali di van

facciata in legno riprende
Eyck.

Gli interni presentano un design moderno e accurato. Un nuovo auditorium fornisce un’eccellente acustica e materiali attentamente studiati per la sostenibilità. Foto Ossip van Duivenbode. Località Amsterdam

Committente privato

Progetto architettonico Mvrdv

Interior design Hollandse Nieuwe Architecture & Interior design

Poltrone e banchi studio Lamm (local dealer SV Collections)

CREDITI

Grazie alla propria esperienza come azienda leader nel settore dell’interior design, Lamm ha curato la fornitura degli arredi per il nuovo auditorium del Tripolis Park. Ogni scelta progettuale è stata guidata dalla volontà di ridurre l’impatto ambientale, privilegiando l’utilizzo di materiali sostenibili e interamente riciclabili. Per questo intervento sono state selezionate le poltrone Genya, design di Dante Bonuccelli: sedute eleganti dal profilo pulito e minimalista, disposte su file dritte e su gradoni con un interasse di 50 cm. Le poltrone sono proposte nella versione con rivestimento in

tessuto riciclabile 100% poliestere, in una raffinata tonalità di nero. In abbinamento alle sedute trovano posto i banchi studio, anch’essi nel catalogo Lamm. Si tratta del modello E5000 di Orlandini Design, caratterizzato da un piano fisso profondo 25 cm, realizzato in laminato Abet di colore nero. La predisposizione per l’integrazione dei cavi di elettrificazione consente un utilizzo pratico e funzionale, permettendo l’installazione di microfoni in corrispondenza di ogni postazione. www.lamm.it

LAMM

MASTERPLAN

La forte orizzontalità dell’edificio esprime il concetto di soglia tra l’abitato e il paesaggio rurale.

SEZIONE LABORATORI
SEZIONE ATRIO

CON QUESTO PROGETTO

GIANLUCA FACCHINELLI

CELESTE DA BOIT E

GIADA SAVIANE HANNO VINTO

IL PREMIO GIOVANE TALENTO

DELL’ARCHITETTURA

ITALIANA 2025

Per contrastare il progressivo spopolamento il Comune di Alpago, nelle Prealpi Venete, ha avviato un percorso di riorganizzazione del comparto scolastico culminato nel 2018 con un concorso di progettazione Awn. Il progetto, che si sviluppa su un’area di oltre 20.000 metri quadrati posta a margine tra la realtà urbana consolidata del centro del paese e il paesaggio rurale circostante, si inserisce

ALPAGO, BELLUNO

UNA SCUOLA SECONDARIA

COME ELEMENTO DI CONNESSIONE DEI TERRITORI INTERNI

nella stratificazione del paesaggio montano come un nuovo layer antropico collocato tra i campi e la cintura di colline e montagne e definisce il limite, anche figurativo, del territorio antropizzato.

La scuola ha anche l’obiettivo di funzionare come centro civico al di fuori degli orari della didattica, idea che risulta particolarmente incisiva nelle piccole comunità, dove i servizi e le risorse sono per loro natura ridotte. L’architettura dell’edificio riesce a narrare con forza, anche dal punto di vista formale, tale funzione estesa.

La scuola si sviluppa attorno al tema della piazza coperta, seguendo un’idea di insedia-

mento quasi primitiva: un volume sospeso su quattro nuclei di sostegno definisce uno spazio coperto in diretta continuità tra interno ed esterno.

I quattro nuclei in calcestruzzo colorato, che racchiudono gli spazi di servizio, definiscono il perimetro dell’agorà, dove le funzioni si contaminano in un laboratorio diffuso, animato da due ‘scatole’ in legno di rovere che contengono la sala lettura e l’accoglienza. Il parco alberato attraversa l’edificio, inserendosi negli svuotamenti perimetrali e portando il verde fino al centro della scuola. Le corti, oltre a ospitare le giovani piantumazioni, illuminano gli ambienti ad uso collettivo.

Biblioteca e alberature si collocano al centro

Dalla relazione progettuale
La trama triangolare dei frangisole in calcestruzzo riprende i motivi in mattoni dei fienili della zona.

della nuova scuola, facendosi carico di un ruolo simbolico oltre che pratico. Aule e laboratori si alternano sui due piani attorno alla piazza, con la quale sono in costante contatto visivo e fisico, grazie a finestrature e pareti scorrevoli.

La caratteristica principale di questo luogo è la permeabilità tra i diversi ambienti, che permette di traguardare l’intero fabbricato, scoprendo continui scorci sul paesaggio oltre che tra i diversi ambienti interni. In questo modo si è cercato di superare il tipico isolamento delle aule tradizionali, destinate alla didattica frontale, conferendo la sensazione continua di far parte di una comunità.

L’edificio è dotato di una serie di elementi architettonici che hanno lo scopo di disegnare

atmosfere sempre diverse durante l’anno scolastico, seguendo il naturale scorrere del tempo. In particolare, lo spazio centrale è caratterizzato dalla presenza delle gelosie: frangisole formati da pannelli prefabbricati in calcestruzzo con una trama a fori triangolari che riprendono, su scala maggiore, i motivi reticolari in mattone tipici dei fienili della Valbelluna. Questi dispositivi segnalano il percorso del sole, bagnando con triangoli di luce l’atrio in inverno. Una serie di lucernari in copertura porta luce diretta d’estate e indiretta d’inverno nell’agorà centrale e nei laboratori; le differenti inclinazioni degli svasi troncoconici fanno sì che i singoli lucernari si illuminino in alternanza durante la giornata.

Le alberature introducono al centro dell’edi-

ficio l’elemento naturale, che cambia forma e cromia secondo le stagioni.

Il progetto ricerca la coincidenza di forma, struttura e materia. Lo fa attraverso un guscio di calcestruzzo faccia-vista realizzato con una tecnologia in prefabbricazione avanzata, composta da elementi a doppia lastra con getto integrativo in opera che, oltre a non richiedere ulteriori strati di finitura, contengono già al loro interno la coibentazione e le predisposizioni impiantistiche.

A corredo del progetto sono stati definiti una serie di dettagli che occultano il vero spessore delle lastre (circa 5 cm) attraverso imbotti e velette in calcestruzzo, conferendo ai singoli elementi un carattere fortemente massivo ■

PIANTA PIANO TERRA
PIANTA PIANO PRIMO

Facchinelli Da Boit Saviane

Laureati presso lo Iuav, Gianluca Facchinelli (Trento 1989), Celeste Da Boit (Belluno 1989) e Giada Saviane (Belluno 1989) nel 2019 fondano l’omonimo studio di architettura la cui attività si concentra sullo studio e la sperimentazione nell’architettura contemporanea alpina. www.facchinellidaboitsaviane.com

A sinistra. La piazza coperta che contiene alberature.

Sopra. Le ‘scatole’ in rovere dell’accoglienza e dell’area lettura.

Al ruolo fondamentale che la luce naturale e la relazione con l’esterno svolgono nel progetto della nuova scuola di Puos d’Alpago ha contribuito Metra Building con la soluzione a montanti e traversi Poliedra Sky Tech 50 Cv, impiegata per l’ingresso e il sistema a battente NC 75 HES WS per le finestre delle aule. Dotato di tecnologia High Energy Saving, il sistema migliora il comfort abitativo grazie alle

eccellenti performance di isolamento termico e acustico, con soglie elevate di risparmio energetico. Con profondità telaio fisso di 75 mm, NC 75 HES WS permette di alloggiare vetrazioni di maggiori dimensioni rispetto alla serie NC 65 HES WS, mantenendo le stesse numerose tipologie di apertura interna ma con performance di efficienza più elevate. www.metrabuilding.com

METRA BUILDING

Aule e laboratori si alternano sui due piani attorno alla piazza con la quale sono

L’elemento per facciate Green Code Thermowand Plus® è un pannello sandwich composto da due lastre di cemento armato liscio (6 cm e 5 cm) unite tra loro. Al suo interno, l’armatura e uno strato coibente.

PROGRESS

Edilizia sostenibile con elementi prefabbricati in calcestruzzo

Funzionano per progressivo assemblaggio e secondo una precisa successione oltre 1.600 mq di elementi prefabbricati in calcestruzzo di Progress impiegati nella costruzione della nuova scuola di Alpago.

«Questa tecnologia – spiega Gianluca Facchinelli – sposta in avanti il paradigma della prefabbricazione, fondato sull’iterazione del singolo elemento sempre uguale. Nel nostro caso – prosegue l’architetto – cercavamo una stretta corrispondenza tra forma, struttura e materia. Avevamo bisogno di una tecnologia capace di realizzare un guscio monomaterico in calcestruzzo faccia a vista, sia all’interno che all’esterno. La prefabbricazione ci ha per-

in costante contatto visivo e fisico, grazie a vetrate e pareti scorrevoli.

messo di ottenere un elevato controllo qualitativo delle superfici e una precisione nel disegno dei pannelli, che scandiscono lo spazio e conferiscono identità all’edificio»

La prefabbricazione richiede una pianificazione precisa ma offre anche libertà formale e un ampio margine di manovra nella realizzazione delle superfici. Integrando più componenti in un unico elemento, gli innovativi elementi prefabbricati in calcestruzzo di Progress assicurano un’acustica ambientale ottimale, isolamento termico e migliore qualità dell’aria. Grazie all’attivazione superficiale è possibile riscaldare e raffrescare gli ambienti in modo efficiente, con un risparmio energetico fino al

CREDITI

Località Puos d’Alpago (Belluno)

Committente Comune di Alpago

Progetto architettonico e direzione lavori

facchinelli daboit saviane

Team Gianluca Facchinelli, Celeste Da Boit, Giada Saviane

Collaboratori per le strutture Chiara Barattin

Coordinamento sicurezza e direzione lavori generale

Studio Tre Associati, ing. Sergio Zandonella

Progetto strutture Rodolfo Senoner

Progetto impianti meccanici Pietro Canton

Progetto impianti elettrici e antincendio Studio Bortot & C

Acustica Maurizio Cason

Indagini geologiche Luca Salti

Impresa di costruzioni Dalla Libera Costruzioni

Prefabbricati in calcestruzzo Progress Spa

Serramenti Metra Building (serramentista Poza Srl)

Vetri serramenti Saint-Gobain Glass Planitherm Infinity

Gelosie prefabbricate in calcestruzzo Pellizzari Building

Velature calcestruzzi Keim

Rivestimenti ceramici Casalgrande Padana

Controsoffitti Gyproc Rigitone 8/18 Edge

Lastre per interni Gyproc Wallboard, Hydro, DuraGyp

Pareti manovrabili Anaunia

Isolante Isover PAR 4+

Superficie lotto 22.500 mq

Impronta al suolo 1.185 mq

Slp 2.040 mq

Importo dei lavori 3.085.000 euro

Cronologia 2018 - 2024

Foto Gustav Willeit

Sopra, lo schema costruttivo della scuola di Alpago.

20 per cento.

La prefabbricazione in stabilimento, comprensiva dei componenti incorporati, e il rapido montaggio in cantiere consentono di ridurre i tempi di costruzione fino al 40 per cento e il fabbisogno di personale in cantiere fino al 60 per cento.

I pannelli impiegati nella scuola di Alpago sono i Green Code Thermowand Plus ®, caratterizzati da superfici esterne omogenee, adatti per l’impiego faccia-vista.

www.progress.cc

Una finestra nascosta dai frangisole in calcestruzzo della facciata.

Alessandro Adamo, partner di Lombardini22 alla guida della business unit Degw. www.lombardini22.com

PROSPETTO SUD-EST

In

e

La forma dinamica dei nuovi uffici.
facciata, montanti
traversi FWS 50 e finestre apribili AWS 114 in alluminio di Schüco.

PROSPETTO NORD-OVEST

SIGNORESSA, TREVISO

UN INTERVENTO CHE INTEGRA

E VALORIZZA IL CAPITALE UMANO

Leader nelle tecnologie di automazione e imbottigliamento nei settori beverage e farmaceutico e cresciuta anche attraverso acquisizioni mirate, Omnia Technologies è una multinazionale con più di 2.500 dipendenti nel mondo, 400 dei quali sono ingegneri. La forte crescita degli ultimi anni ha reso necessario l’ampliamento della sede di Signoressa, in provincia di Treviso.

Omnia ha affidato il progetto a Lombardini22, che sulla base di una workplace analysis condotta dalla business unit Degw ha rilevato l’esigenza di ulteriori 3.000 metri quadrati di superficie utile. Il volume esistente è stato quindi ampliato anche con l’aggiunta di un nuovo corpo architettonico che si sovrappone al volume originario, intersecandolo. Ruotato

seguendo la morfologia del lotto, con il nuovo volume l’edificio ora intercetta con una più ampia porzione di facciata la visuale dalla Pedemontana Veneta che corre a nord dell’insediamento.

Il rivestimento superiore di facciata enfatizza l’immagine dinamica dell’edificio: composto di lastre Hpl che si alternano in tre dimensioni diverse, il rivestimento reagisce cromaticamente alla luce del giorno e conferisce all’involucro un tono metallizzato che evoca il mondo industriale. Per contrasto, il volume esistente è rivestito con una coibentazione a cappotto e un metal screen metallico trattato nero, per distinguerlo dal nuovo edificio e assegnare ai due corpi valenze temporali diverse. Nel volume originario, al piano terra sono

Il verde interno che nell’atrio a doppia altezza riceve luce naturale dal lucernario in sommità.

collocati la reception, un’area ‘Experience’ per i clienti, un auditorium riconfigurabile, un ristorante aziendale al servizio di tutte le persone del gruppo qui basate, diversi spazi di coworking e varie aree di lavoro in open space. Il nuovo volume sovrapposto – progettato su un modulo dimensionale ideale per un’efficiente pianificazione degli spazi ufficio – include al livello superiore la parte più significativa di postazioni di lavoro, distribuite tra uffici chiusi e open space, oltre a sale riunioni formali e informali, break area, uffici in sharing, una boardroom e l’ufficio dell’amministratore delegato.

All’esterno, un’area sportiva e una zona mensa outdoor arricchiscono lo spazio per favorire la socialità e il benessere dei dipendenti.

Completa il progetto uno studio accurato della comunicazione interna che si declina in interventi di physical branding e nel progetto di wayfinding.

Secondo Alessandro Adamo, i nuovi Hq di Omnia si configurano come un «punto di convergenza tra diverse dimensioni del lavoro: quella di un moderno ed efficiente organismo direzionale per un gruppo dinamico e in

Vista del primo piano. L’intero fit-out degli uffici è stato realizzato da Estel che ha fornito e installato partizioni vetrate interne, arredi su misura e, per le postazioni, il sistema operativo Asterisco APP e sedie Time

espansione, anche espressa dalla forma saettante dell’edificio; quella del lavoro di fabbrica presente nell’attigua area produttiva, con cui condivide servizi e facilities dedicati ai dipendenti; e quella del rapporto con il paesaggio esterno, cui il complesso si rivolge con un’immagine incisiva ma anche discreta che dà al gruppo una concreta identità nell’ambiente circostante » ■

CREDITI

Località Signoressa (Treviso)

Committente Omnia Technologies

Progetto architettonico e degli interni, physical branding e wayfinding Lombardini22

Progetto illuminotecnico Light + Arch Consultancy

Facciate Hpl Trespa

Facciate vetrate Schüco

con Premium Partner Ialc Serramenti

Fit-out, partizioni interne e arredi Estel

Verde Hw Style

Pannelli fonoassorbenti Fonolab

Pavimentazioni Tarkett

Arredi esterni Fermob

Foto Luca Rotondo

L’Agorà, uno spazio polifunzionale per favorire l’interazione con zone break. Tavoli Collaborative esagonali su misura e booth. Tutto Estel.

Estel ha curato l’intero fit-out dei nuovi uffici. L’intervento ha riguardato tutte le aree operative e di rappresentanza integrando arredi, sistemi di partizione, componenti tecnici e materiali assicurando qualità ed elevata coerenza esecutiva.

Elemento chiave per il comfort acustico degli uffici chiusi e delle sale riunioni il sistema di pareti vetrate Parete 6, soluzione a doppia lastra

che garantisce un’insonorizzazione fino a 44 dB. Le postazioni operative sono state realizzate con il sistema Asterisco APP, soluzione modulare che permette configurazioni flessibili grazie alla struttura a traversi metallici. La sedia Time, con schienale in plastica bianca, assicura ergonomia e leggerezza visiva.

Attenzione particolare è stata riservata alle aree comuni: l’Auditorium è caratterizzato dalle sedie

Profilo Cristallo nere, in elegante contrasto con la boiserie. Nell’area mensa sedie e sgabelli Shell contribuiscono a definire un ambiente informale e accogliente. Infine, tavoli esagonali su misura Collaborative e booth per incontri riservati popolano la piazza polifunzionale dell’Agorà, fulcro intorno al quale ruotano tutti gli spazi. www.estel.com

ESTEL

Sopra, con grandi vetrate di Secco Sistemi, il DaV Cantalupa si affaccia sulla piscina della tenuta di Brusaporto. La pavimentazione esterna in SibEco Terrazzo di Concrete Solution si pone in continuità con l’interno. A destra, l’ingresso e il bar. Foto Stefano Butturini courtesy Jdp.

Tutte

BRUSAPORTO, BERGAMO

RESTYLING TOTALE PER IL CASUAL DINING DAV CANTALUPA

Conosciuta fin dagli anni Sessanta per la straordinaria cucina del ristorante Da Vittorio di Bergamo, nel 2005 la famiglia Cerea ha inaugurato il resort La Cantalupa, in una tenuta di dieci ettari alle porte della città.

In questa campagna curata, punteggiata di laghetti naturali, oltre al ristorante tre stelle Michelin sorge il Da Vittorio Relais & Chateux e il DaV Cantalupa, ristorante casual dining progettato da Joseph Di Pasquale: un innesto architettonico che si armonizza con il disegno del giardino della proprietà. L’idea di utilizzare gli spazi esterni, sotto il pergolato fronte piscina, era nata nel 2020, in tempo di Covid-19, quando tutti i ristoratori si interrogavano su quale formula adottare per garantire agli ospiti di godere in sicurezza della bellezza della convivialità nel rispetto delle limitazioni sanitarie.

Dall’esterno il DaV Cantalupa si caratterizza per una pensilina tonda, le cui forme si integrano con i basamenti in pietra del parco. Le curve della copertura che proteggono l’ingresso diventano un elemento fortemente riconoscibile, che funge da segno identitario e da filtro tra architettura e natura.

L’interno è pensato in relazione con il verde della tenuta, con ampie vetrate che creano affacci dinamici e inquadrature mutevoli sui diversi elementi del paesaggio. La pavimentazione continua, che copre tutti i 324 metri quadrati della sala interna, è un seminato alla veneziana a basso spessore di Concrete Solution posato in opera senza giunti, che ben si abbina alla simil-palladiana in spaccato di marmo dell’area bagni e alla pavimentazione continua esterna che corre attorno alla piscina.

Vista d’insieme e dettaglio della parete a onde che domina la scena nella sala principale.
le sedute sono Pedrali. Pavimentazione a terrazzo di Concrete Solution.

Joseph Di Pasquale

www.jdparchitects.com

Nell’area bagno circondati dal verde i rivestimenti in acciaio ondulato specchiante di Steel Group.

Elemento focale della sala centrale è una grande parete organica ‘viva’ che prende forma da nastri dorati scolpiti nel legno di rovere e organizza lo spazio. La sua funzione supera l’aspetto decorativo perché integra il banco grill e il forno, fondamentali per il menù di carne e pesce alla griglia e pizza proposti dal ristorante. Tutte di Pedrali le sedute per gli ospiti: le sedie imbottite Stiel (che in tedesco significa ‘stelo’, a sottolineare l’esile leggerezza del telaio in acciaio, del diametro di 20 mm) di Sebastian Herkner convivono con le avvolgenti poltroncine Héra Soft, disegnate da Patrick Jouin e qui in massello di noce americano con imbottitura in schiumato poliuretanico. All’illuminazione tecnica, nella sala più ap-

La forma curva della pianta abbraccia il disegno della piscina. All’estremità, lo spazio circolare dell’ingresso con il bar.

CREDITI

partata del ristorante si aggiunge un chandelier ‘Pòta’ realizzato su misura da Catellani & Smith che con una luce calda e dorata aggiunge eleganza all’insieme. “Ogni progetto ha una sua storia, una sua identità e una sua verità. In questo nuovo polo del gusto intendevamo disegnare qualcosa che potesse durare nel tempo”, afferma Joseph di Pasquale commentando il lavoro.

Le scelte progettuali restituiscono un’immagine contemporanea ma dal fascino senza tempo, capace di accompagnare l’evoluzione del ristorante e di rafforzarne il legame con il paesaggio e con la lunga tradizione gastronomica della famiglia Cerea ■

Località Brusaporto

Progetto architettonico Joseph di Pasquale

Team coordinator Paolo Labbafini

Food design expert Amos Pravettoni Prada

Michela Dell’Orto

Slp 650 mq

Posti a sedere 100 posti interni, 36 posti esterni

Progetto illuminotecnico Luca Turrini

Profili vetrate Secco Sistemi

Pavimentazioni Concrete Solution

Rivestimenti Lea, Marazzi, Steel Group

Cucine Marchesini Cooking

Sedute Pedrali

Luci Catellani & Smith

PIANTA

Le sedute Pedrali completano l’allestimento di DaV Cantalupa. La collezione Stiel, disegnata da Sebastian Herkner, presenta forme morbide e un telaio leggero, e si compone di sedia, poltrona, lounge e sgabelli in due altezze. I rivestimenti e le finiture disponibili permettono a Stiel di adattarsi ad ogni ambito, sia residenziale che, come in questo caso, pubblico. Accanto si colloca Héra Soft (nella foto a sinistra), una seduta disegnata da Patrick Jouin come ampliamento della collezione Héra originale. Realizzata in frassino o noce americano, si caratterizza per uno schienale imbottito in schiumato poliuretanico, elegante ed ergonomico. Le gambe in legno massello hanno una sezione ovale che richiama lo schienale curvo. www.pedrali.com

L’ampia sala principale affaccia sulla piscina. Sul fondo, l’ingresso e il bar. Sopra, la sala più piccola dove all’illuminazione tecnica si aggiunge un chandelier Pòta realizzato su misura da Catellani & Smith. Tutte le sedute sono di Pedrali. Pavimentazione continua in terrazzo alla veneziana a basso spessore di Concrete Solution. Foto Stefano Butturini courtesy Jdp.

Per la pavimentazione della sala del rinnovato DaV Cantalupa lo studio Jdp ha scelto SibExtreme Style, un terrazzo alla veneziana a basso spessore che unisce elevate performance tecniche e un’estetica e di grande impatto. Si tratta di una composizione di aggregati selezionati e cementi speciali che permette di realizzare ampie superfici continue e uniformi, rispondendo così all’esigenza del progettista di creare una continuità fisica e ideale tra diversi ambienti. SibExtreme Style è adatto per contesti

residenziali, commerciali e pubblici, offrendo pavimentazioni continue e senza giunti in un’ampia personalizzazione per colori di base e inerti. Per questa realizzazione il laboratorio di Concrete Solution ha sviluppato 15 campioni esclusivi differenti per colori e materiali. Dal concept alla realizzazione, Concrete Solution ha tradotto la visione dell’architetto in una superficie elegante, resistente e senza tempo. www.concretesolution.it

PEDRALI

La sostenibilità è parte integrante del progetto di questo centro di Save the Children.

La struttura e le facciate sono in legno lamellare di Legnolandia. Tetto verde Daku. Lucernari Velux. Foto Giacomo Bianco.

UN PUNTO LUCE DI SAVE THE CHILDREN CONTRO LA POVERTÀ EDUCATIVA

CON UN APPROCCIO POETICO E

CIRCOLARE E UN PERCORSO DI PROGETTAZIONE PARTECIPATA

AOUMM DISEGNA UNO SPAZIO

AD ALTA DENSITÀ EDUCATIVA

NEL QUARTIERE MILANESE DEL GALLARATESE

“Lo spazio è il terzo educatore” scriveva il pedagogista Loris Malaguzzi, ispiratore dell’esperienza di Reggio Children, e questo principio informa il progetto che lo studio Aoumm ha sviluppato per Save the Children nel quartiere milanese del Gallaratese.

Se, in linea con lo scopo della Ong, la funzione del centro è quella di combattere la povertà educativa, la costruzione è un regalo per il

quartiere perché sostituisce un precedente prefabbricato degradato e in disuso da quasi vent’anni: dai vicini palazzi residenziali ora lo sguardo può correre sullo spazio aperto della corte-giardino e sul tetto verde, pensato come una quinta facciata, che copre il volume architettonico di forma circolare del nuovo centro socio-educativo per ragazze e ragazzi tra i 6 e i 17 anni. Il percorso progettuale del resto ha coinvolto sin dall’inizio, oltre a Save the Children, agli insegnanti e ai giovani, l’intera comunità del quartiere.

Privo di gerarchie rigide, lo spazio interno, di 900 mq, è fluido e vi convergono simultaneamente molteplici attività. In questo modo i ragazzi possono osservare, incuriosirsi e lasciarsi ispirare dalle esperienze degli altri, passando spontaneamente da un laboratorio di musica a uno di teatro, da uno spazio di lettura a un fablab, incontrando altri giovani di età e inte-

ressi differenti. Anche in questo senso il cortile centrale e il giardino circostante funzionano come estensione degli ambienti interni, dando vita un ambiente protetto.

Il progetto di paesaggio è stato concepito su una sequenza di soglie che definiscono differenti momenti: il cortile centrale, pavimentato e arricchito da alberature leggere, che funge da spazio protetto per attività collettive e laboratori a cielo aperto; le aree ludiche periferiche, con un disegno vegetale più diversificato; l’orto didattico, collocato in prossimità dell’area a sud, dove i ragazzi possono sviluppare un senso di responsabilità e cura per l’ambiente. Le alberature perimetrali e la quota rialzata rispetto alla strada proteggono e schermano parzialmente il lotto (di 3.000 mq), senza interrompere la permeabilità visiva complessiva. La scelta delle specie vegetali è ispirata al contesto fitoclimatico locale, con essenze au-

Aoumm

Lo studio è stato fondato nel 2012 a Milano da Luca Astorri, Riccardo Maria Balzarotti, Rossella Locatelli e Matteo Poli.

Aoumm opera nei campi dell’architettura, dell’urbanistica, del paesaggio, dell’interior design e dell’allestimento, a livello nazionale e internazionale. Tra i progetti più significativi, il terzo premio per il concorso internazionale del nuovo velodromo Vigorelli a Milano (2012), il padiglione di Save the Children all’Expo di Milano (2015), la prima fattoria permacolturale in Azerbaijan (2014), e diversi allestimenti presso la Galleria d’Arte Moderna di Milano e per il Guggenheim Museum di New York. www.aoumm.com

SEZIONE VERTICALE

CREDITI

Località Milano

Committente Save ther Children

Progetto architettonico e di paesaggio, direzione lavori

Aoumm

Team Luca Astorri, Chiara Torregrossa, Riccardo Balzarotti, Matteo Poli, Simone Ottaviana, Lara Zentilomo, Zofia Kasinska, Fabio Nicolò, Emily Shiga

General contractor Gruppo Imm

Strutture e involucro in legno Legnolandia

Tetto verde Daku

Finestre Schüco

Facciate vetrate Thema

Sanitari, rubinetterie Duravit

Illuminazione iGuzzini

Lucernari Velux

Pavimento pvc Gerflor

Porte Scrigno

Porte a soffietto Dooor

Sistemi vari e materiali costruttivi Rothoblaas

Sistemi isolanti Rockwool

Superficie lotto 3.027 mq

Superficie costruita 911 mq

Cronologia 2022-2025

SEZIONE ORIZZONTALE

INQUADRAMENTO

toctone e facilmente gestibili, anche mediante attività di manutenzione partecipata da parte dei ragazzi che frequentano il centro.

La pianta libera dell’edificio è stata ottenuta disponendo radialmente portali in legno lamellare e chiudendo la struttura con pareti prefabbricate a pannelli sandwich. Oltre a consentire un notevole risparmio sui tempi (la fase costruttiva è durata circa 12 mesi) la scelta della prefabbricazione in legno, più leggera di un sistema convenzionale, ha consentito anche di impigare le fondazioni del precedente edificio,

PIANO TERRA

evitando interventi estesi di scavo, demolizione e ricostruzione.

La geometria irregolare della copertura è stata studiata per fornire ombra alla facciata sud, così da ridurre il guadagno solare – e il relativo fabbisogno energetico – nei mesi estivi. Ulteriori strategie passive includono l’isolamento a strati dei pannelli sandwich, lucernari che portano all’interno luce zenitale naturale e sensori che li aprono automaticamente in funzione dei livelli di temperatura, umidità e CO₂ rilevati, favorendo la ventilazione naturale ■

PIANTA
Foto Carlos Gasparotto

Sono state utilizzate diverse tipologie di legno non trattato come l’abete per pilastri e struttura portante l’okoumé e il larice per il rivestimento esterno. Foto Giovanna Silva.

L’illuminazione si adegua alla fluidità dello spazio attraverso il sistema di gestione, che permette di avere la luce quando e dove occorre.

Oltre a iN60 MMO e Space, sono stati inseriti Tecnica Evo Twilight Copenhagen Palco Inout, Master Pro Evo Knx+ sensore di presenza. Tutto iGuzzini.

Foto Giacomo Bianco

UN PROGETTO RESIDENZIALE DI GIUSEPPE TORTATO CHE RIVELA LA SENSIBILITÀ DELL’ARCHITETTO VERSO IL CARATTERE AUTENTICO DI MILANO, SPECIE NELLE PARTI UN TEMPO PERIFERICHE COME IL QUARTIERE DI CERTOSA E IN QUESTO CASO L’AREA DI SAN CRISTOFORO, AL MARGINE SUD-OVEST DELLA CITTÀ

RIGENERAZIONE URBANA E QUALITÀ DELL’ABITARE

Malgrado la tumultuosa crescita urbana del secondo dopoguerra e le trasformazioni avvenute, dell’area milanese di San Cristoforo, oggi servita anche dalla linea 4 della metropolitana, è ancora possibile leggere la storia, sia nella toponomastica, che celebra capitani d’industria e gli inventori dell’elettricità – la grande innovazione dell’Ottocento – sia soprattutto nel tessuto urbano, che alla densità di abitazioni e laboratori produttivi sorti intorno ai grandi stabilimenti industriali di un tempo alterna vasti isolati poi lottizzati e rifunzionalizzati e –

solo due chilometri più a sud – terreni agricoli ancor oggi destinati a risaie. Densità e varietà di funzioni che attenti interventi di trasformazione e riqualificazione stanno conservando, con un approccio pragmatico che da un lato guarda al mercato ma dall’altro non trascura lo specifico carattere, urbano e architettonico, che questa storia ha generato. Il risultato sono strati di modernità che modificano progressivamente, aggiungendosi all’esistente, il tessuto urbano mantenendolo attivo e vivibile (chi pensando a Milano

Le residenze di via Watt si sviluppano in un cortile interno. Le facciate chiare sono caratterizzate da aperture schermate con persiane metalliche motorizzateche aperte si impacchettano e una volta chiuse lasciano filtrare la luce assicurando totale privacy. Foto Carola Merello.

parla di ‘consumo di suolo’ non sa quello che dice).

Un architetto protagonista di questi interventi, condotti anche alla piccola scala della residenza semi-individuale, è Giuseppe Tortato, che su aree un tempo periferiche della città opera da decenni.

Quello di via Watt 22/24 è uno dei suoi progetti più recenti. L’intervento, che si sviluppa su un lotto interno non visibile dalla strada e sostituisce precedenti costruzioni con funzioni produttive, si articola in due corpi di fabbri-

MILANO

Giuseppe Tortato Architetti

Lo studio, fondato a Milano nel 2012, opera in Italia e all’estero nei settori terziario, residenziale, ospitalità e interior design, con progetti ‘su misura’ e spesso con interventi di rigenerazione urbana sviluppati a partire da un’analisi critica del contesto, come nel caso del complesso La Forgiatura a Milano. Il talento di Tortato, scriveva Cesare Maria Casati, è quello di saper coniugare una fertile creatività con la domanda del mercato e con le attese –anche quelle inespresse – dei clienti. www.giuseppetortato.it

ca di tre piani ciascuno, orientati in maniera da garantire a ogni abitazione luce, privacy e comfort. Le facciate, nei toni sabbia naturali, sono scandite da persiane metalliche motorizzate e impacchettabili: chiuse, la luce filtra comunque all’interno mentre i fronti esterni assumono un carattere silenzioso.

L’area esterna, alternando superfici pavimentate e aree verdi con specie vegetali autoctone, richiama alla mente i tradizionali cortili milanesi, dove ogni angolo apre una nuova prospettiva, e talvolta una scoperta, sull’edificato.

Che qui però, al contrario delle abitazioni di ringhiera, appare lineare e pulito. Soprattutto, ciascuna delle quindici abitazioni gode di ampi spazi esterni privati: piccoli giardini al piano terra o terrazzi abitabili quelle ai piani superiori.

Gli interni, progettati e realizzati dallo studio in collaborazione con Roda For You, realtà specializzata in arredi su misura e soluzioni FF&E, traducono la stessa coerenza progettuale in spazi abitativi accoglienti e funzionali. Il progetto di lighting design è firmato da

Linea Light Group, realtà trevigiana tra le prime in Europa a specializzarsi nella tecnologia Led, con produzione interna e un avanzato reparto R&D. La luce diventa strumento progettuale capace di valorizzare volumi, materiali e atmosfere.

Materiali naturali, dettagli curati e un’atmosfera essenziale ma calda completano un insieme pensato per un abitare contemporaneo, elegante e sostenibile ■

Foto ©Marco Tortato
PLANIMETRIA

Molto luminose le abitazioni rispondono ai migliori criteri dell’abitare contemporaneo e dispongono di ampie terrazze. Foto Carola Merello.

CREDITI

Località Milano

Committente Finsao Srl

Progetto architettonico Giuseppe Tortato Architetti

Team di progetto Giuseppe Tortato, Federico Carabelli, Giorgia Celli, Daniele Nicoletti, Selen Pasinli

Interior design Giuseppe Tortato Architetti

Progetto di paesaggio Eleonora Manzoni (Hortensia Srl)

Realizzazione arredi Roda For You

Servizi costruttivi Fornari Costruzioni Srl

Serramenti Ital Serramenti

Persiane in metallo Ital Jolly

Rivestimenti ceramici Ceramiche Ragno

Luci Linea Light Group

Sanitari e rubinetterie Ideal Standard Italia

Superficie costruita 1.600 mq

Dopo i saggi su Kahn e Tange, la ricerca di Marco Falsetti sui maestri dell’architettura del Novecento prosegue con questa raccolta di scritti e interviste di Paul Rudolph (1918-1977), il più celebrato architetto statunitense fino alla fine degli anni Sessanta, quando divenne bersaglio della contestazione perché considerato esponente dell’establishment. Bizzarro destino per colui che aveva contestato il cosiddetto ‘bauhaus harvardiano’ e l’idea – dominante in un’accademia allora guidata da architetti tedeschi – della forma che segue la funzione. “Ma la forma deve davvero seguire, non essere ignorata”, scriveva ricordando il suo percorso di formazione ad Harvard. Altro punto di critica verso Gropius e il successivo International Style, l’incapacità di costruire città: “Corbu voleva abbattere il centro di Parigi, Wright voleva abbandonare la città e dare un ettaro a ogni uomo, e Mies sembrava pensasse che ettari di cortina muraria potessero fare una città”. Gran parte della teoria rudolphiana, ricorda Falsetti nell’introduzione, non assume un’aura pedagogica e divulgativa (quando non ideologica) ma rimane diffusamente aleatoria. Delle sue sei determinanti, che potrebbero condurre a una maggiore espressività della forma architettonica, la principale è forse lo spirito dei tempi, che nella civiltà dell’automobile coinvolge le grandi infrastrutture e pone nuove questioni di scala: “il veicolo in corsa –afferma in una conversazione del 1996 – ha modificato le potenzialità della scala come strumento architettonico in grado di aiutarci a ricordare la nostra dimensione umana … gli edifici si percepiscono in modo diverso da lontano, da vicino o mentre si è in movimento”. Un formalista impenitente, come lo stroncò Venturi, o un genio?

PER UN’URBANISTICA DEL

BENESSERE

L’architetto e urbanista Matteo Gatto dà vita alla collana Urban Code, disponibile su Amazon. Due per ora i titoli disponibili, Il giorno in cui le città hanno cominciato a pensare, saggio narrativo sui modi in cui IA e analisi dei dati stanno trasformando le città in sistemi intelligenti, e Otium+, che prende spunto da Roma per proporre un nuovo paradigma urbano nel quale sostenibilità, inclusione e innovazione si fondono per ripensare gli spazi pubblici e migliorare la qualità della vita. Ispirandosi al concetto romano di otium – il tempo dedicato alla creatività, alla riflessione e alla socialità – il saggio immagina Roma come prima città-laboratorio del benessere integrato, un modello replicabile a livello globale. Attraverso un’analisi teorica approfondita e casi di studio pratici (come il modello ‘Perma’ dello psicologo Martin Seligman e la ‘Wellness Valley’ promossa da Nerio Alessandri in Romagna) il volume esplora soluzioni alle sfide urbane contemporanee: dalla rigenerazione di aree dismesse alla promozione della mobilità sostenibile, dall’urbanistica

LE QUALITÀ

DELLA SEMPLICITÀ

adattiva a nuovi modelli di socialità. Con una prefazione di Lorenzo Fioramonti, Otium+ si inserisce nel dibattito sull’economia del benessere offrendo strumenti concreti per urbanisti, architetti, policy maker e cittadini che vogliono costruire città più vivibili, connesse e a misura d’uomo.

Otium+

Ripensare Roma, città del benessere

Matteo Gatto Amazon, 2025 240 pp, 16,64 euro

ISBN 979-83-1386-597-3

singole o accorpate, cantine vinicole, edifici agricoli, scuole, chiese, centri civici e piani di recupero urbanistico –documentate nel libro, e 12 i progetti della società tra architetti e ingegneri continiarchitettura in corso, riassunti nelle schede finali.

Falsetti

Editore, Roma, 2025 362 pp, 30 euro - ISBN 979-12-80956-90-3

Subito dopo la laurea in architettura a Venezia, Marco Contini lavora presso Gregotti Associati e in seguito collabora a Parma con Guido Canali, da cui “riceverà importanti insegnamenti – scrive Giovanni Vragnaz nell’introduzione a questa monografia – come l’attenzione necessaria al rapporto fra le diverse scale dell’architettura e alle preesistenze”. Vive e lavora a Torrechiara, piccolo centro dell’Appennino parmense, luogo-laboratorio dove lo studio ha realizzato la maggior parte delle opere pubblicate nel volume. “Vivere e operare in un territorio in cui la stratificazione storica del paesaggio è percepibile ovunque aiuta – scrive nelle prime pagine Contini – se si è attenti e disponibili ad agire alla ricerca della ‘giusta misura’, con la consapevolezza che la costruzione è, contemporaneamente, un segno all’interno di questo paesaggio e un luogo di osservazione del paesaggio stesso così come è venuto a formarsi”. 23 le costruzioni realizzate – abitazioni

Marco Contini

La giusta misura

Edicom Edizioni, Monfalcone, 2025 196 pp, ill. 20 euro ISBN 979-12-81229-22-8

Paul Marvin Rudolph Dreams do not easily disappear
Matteo
Campisano

elements

Material Matters

Nelle pagine che seguono, una selezione di prodotti e soluzioni in cui la materia è intesa come progetto. Plastica riciclata, tessuti, vetro, metallo, sughero e superfici composite diventano strumenti espressivi culturali ed etici. Oggetti e sistemi rendono così visibili processi produttivi, provenienza dei componenti e scelte di responsabilità ambientale trasformando il materiale in linguaggio progettuale a cura di Elena Riolo

ARPER

CATIFA CARTA. Disegnata da Lievore Altherr Molina, la collezione rappresenta la prima sedia realizzata con scocca in PaperShell, materiale derivato dagli scarti del legno capace di sequestrare CO2. Nel 2025 la sedia si è arricchita di cover removibili con imbottitura interna in Breathair, materiale elastico, traspirante, particolarmente durevole e interamente riciclabile.

www.arper.com

CHROMAOBJECTS

DUE SICILIE. Lo studio Debonademeo ha firmato vasi e tavolini realizzati attraverso il processo Mersus, sviluppato da Chroma, che fonde frammenti eterogenei e materiali di recupero in una materia compatta e strutturale. Le superfici lasciano emergere inclusioni, discontinuità e stratificazioni, rendendo il residuo una presenza materica densa, dove colore e composizione derivano direttamente dal processo di rigenerazione. www.chromacomposites.it

iGUZZINI

RIBEIRA. David Chipperfield ha progettato un apparecchio per esterni compatto ed essenziale, realizzato in alluminio pressofuso riciclato e completamente smontabile. L’assenza di colle e siliconi facilita riparazione e riciclo a fine vita, mentre l’ottica miniaturizzata integrata nella corona garantisce una luce uniforme e controllata, con diverse configurazioni di installazione e distribuzione luminosa per ambiti urbani, hospitality e residenziali. www.iguzzini.com

Foto Michele Stanzione

GEES RECYCLING

Da un processo meccanico brevettato, l’azienda sviluppa pannelli ottenuti dal riciclo di plastiche fibro-rinforzate postconsumo, tramutando rifiuti industriali in superfici strutturali e resistenti. I materiali, lavorati senza additivi inquinanti, mantengono in evidenza i frammenti che compongono il materiale e ne rendono riconoscibile l’origine e trovano applicazione in arredi, componenti e allestimenti di negozi e locali, come, nell’immagine, il ristorante Herbarium per cui Gees ha realizzato tavoli e panche.

www.geesrecycling.com

BENE

NOOVO. La sedia pensata per spazi collettivi e ibridi, progettata da Form Us With Love, è basata su una struttura in polipropilene 100% riciclato post-consumo, priva di fibra di vetro per garantire un monomateriale riciclabile. La seduta prevede superfici intercambiabili in legno, rattan, imbottito, rete o polipropilene, permettendo configurazioni diverse e prolungando la vita utile del prodotto, per uso indoor e outdoor.

www.bene.com

PEDRALI

FRANK. Robin Rizzini ha progettato un tavolo ispirato a forme architettoniche e materiali industriali, giocando sulla variazione percettiva delle basi in pressofusione di alluminio. Viste frontalmente richiamano una vela, mentre lateralmente restituiscono un volume pieno. Le basi, collegate da una trave in acciaio, sostengono un piano rettangolare con angoli raggiati, disponibile in mdf laccato, stratificato o Fenix, per ambienti living e spazi di lavoro.

www.pedrali.com

MAGIS

IN-SIDE. La poltrona è formata da una struttura in polietilene contenente materiale riciclato post-consumo, integrando scaglie multicolori ottenute da scarti industriali. Il colore è incorporato nella massa e non applicato in superficie, rendendo ogni pezzo diverso dall’altro. Il progetto di Thomas Heatherwick lavora su questa casualità controllata, mantenendo robustezza e idoneità all’uso outdoor. www.magisdesign.com

EVOLUZIONE SENTIMENTALE DEL VERDE

URBANO D’AUTUNNO. Pezzo unico della collezione Linea Contemporanea, porta negli interni una lettura poetica della natura urbana con il tappeto in moquette ricamato a mano con lane provenienti dalla Sardegna ottenute con filatura e cardatura manuali e tinte con erbe, frutta e fiori, lavorate a punto erba. Dimensioni: 245x220 centimetri. www.giuliocaponi.com

FAST

FOREST LIMITED EDITION. Robby Cantarutti & Partners hanno reinterpretato una propria seduta del 2007 – uno dei best seller dell’azienda – in una serie numerata da 1.000 pezzi con finitura rame metallizzato ottenuta tramite verniciatura artigianale in quattro passaggi. La struttura, ispirata al disegno dei rami, lascia filtrare la luce e mette in evidenza la profondità del metallo. La superficie restituisce variazioni cromatiche e segni manuali che rendono ogni poltroncina diversa dall’altra. www.fastspa.com

Foto Mattia Toselli

LAPIEGA

RISVOLTO G UPGRADED. La famiglia di tavolini progettati da Enrico Girotti esplora la finitura artigianale Terrallo arricchita dal nuovo materiale g_upgraded recycled graphite, polvere di grafite derivante da un processo di recupero e di valorizzazione sviluppato da Alisea Società Benefit. Ogni tavolo è quindi un pezzo unico, realizzato a mano con un’impronta fortemente personale e sostenibile, ottenuto piegando singolarmente sottili lamiere di metallo. www.lapiega.com

NARDI

MAXIMO. Raffaello Galiotto ha progettato una poltrona outdoor in resina post-consumo e tessuti ad alta percentuale riciclata, lavorando su comfort e durata. Le dimensioni generose e le texture materiche dei rivestimenti valorizzano la plastica rigenerata in un elemento compositivo per esterni, disponibile in toni naturali come gesso, basalto, cactus e terra, abbinati a tessuti Sunbrella coordinati.

www.nardioutdoor.com

MOLO

SOFTSEATING. La seduta pieghevole, progettata da Stephanie Forsythe e Todd MacAllen, è realizzata in carta strutturale con geometria interna a nido d’ape, che consente al materiale di comprimersi come un libro e aprirsi in sgabello, panca o piano basso. La struttura assicura flessibilità e resistenza mentre la superficie superiore si ammorbidisce con l’uso, sviluppando una patina naturale che non incide sulle prestazioni. www.molodesign.com

FANTIN

HUG. La collezione di arredi e accessori firmata da Giulio Iacchetti utilizza una struttura in metallo basata sull’incrocio tra tubolari verticali e telaio orizzontale, risolto in una giunzione che svolge funzione portante. Tavoli, sgabelli e appendiabiti sono realizzati in lamiera e tubo d’acciaio. Alcuni elementi, come gli sgabelli e i tavoli tondi, sono disponibili anche con trattamento di cataforesi per uso outdoor. www.fantin.com

ORGANOID

VIOLETTE. La superficie naturale è realizzata dall’azienda austriaca specializzata in superfici naturali integrando fiori veri su un supporto in fibra di lino. Gli elementi vegetali vengono essiccati e fissati senza colorazioni artificiali, mantenendo variazioni cromatiche e irregolarità proprie della materia organica. Il risultato è un rivestimento decorativo, utilizzabile come carta da parati o pannello applicato ad arredi.

www.organoids.com

PLASTICIET

KARLITE. Karlite è un materiale a superficie solida sviluppato da Plasticiet a partire da fanali d’auto dismessi provenienti da Belgio, Paesi Bassi e Lussemburgo. Lo spessore di 19 mm consente l’uso come elemento autoportante, senza supporti o adesivi, rendendolo adatto a oggetti e applicazioni architettoniche.

Completamente riciclabile, è prodotto artigianalmente nel laboratorio di Rotterdam, con una palette di colori calibrata per l’uso singolo o in composizione. www.plasticiet.com

Foto Pim Top

MUSHLUME LIGHTING

DISC SCONCE. L’applique è realizzata dall’azienda statunitense specializzata in illuminazione a partire da materiali coltivati, utilizzando un composto a base di micelio – la parte radicale dei funghi – e fibra di canapa, fatto crescere in stampi fino a ottenere un corpo solido e stabile. La superficie porosa diffonde la luce in modo morbido e contribuisce all’assorbimento acustico. Il corpo illuminante è completamente biodegradabile e deriva da un processo di crescita a basso consumo di acqua ed energia. www.mushlumelighting.com

G.T.DESIGN

HIMALAYAN SKIN. Il tappeto è annodato a mano secondo la tecnica Sumak, caratterizzata da un intreccio continuo che genera una superficie compatta e resistente. La collezione in fibre vegetali è proposta in due versioni: Himalayan Skin Nettle, nell’immagine, realizzato in fibra di ortica himalayana non trattata, e Himalayan Skin Jute, in juta di alta qualità. I motivi, derivati dalla tradizione nomade, sono rielaborati in chiave contemporanea. www.gtdesign.it

PARÀ

TWIST. Il tessuto è sviluppato utilizzando in ordito e trama lo stesso filato, composto da cotone riciclato post-consumer (70%), pet riciclato (25%) e altre fibre riciclate (5%). La struttura presenta un’armatura irregolare e volutamente grossolana, che restituisce una superficie materica e compatta. Certificabile secondo lo standard Grs, è pensato per l’arredamento indoor ed è disponibile in una gamma cromatica di tonalità piene e naturali. www.para.it

MIRIADE. La maglia diventa struttura portante e trasforma il tessile in elemento costruttivo nella poltrona progettata da Estúdio Campana. Forme imbottite di dimensioni diverse, rivestite singolarmente in maglia rasata, compongono un insieme ogni volta differente, sostenuto da un telaio essenziale in acciaio verniciato. L’imbottitura è in fibra di poliestere riciclata e biodegradabile; la lavorazione manuale introduce variazioni che rendono unico ogni pezzo. www.paolalenti.it

RAAWII

STRINGER CORK BENCH. La panca è disegnata da Nicholai Wiig-Hansen componendo tre elementi in sughero accoppiati a due inserti interni in multistrato, che ne garantiscono resistenza e stabilità strutturale. Il progetto lavora su volumi pieni, angoli arrotondati e gambe spesse, valorizzando le qualità naturali del sughero in una forma essenziale. Il risultato è un arredo solido e versatile, adatto a diversi contesti d’uso, in cui il materiale rimane protagonista.

www.raawii.com

PET LAMP

GURUNSI. Sviluppata a Bolgatanga, in Ghana, con gli artigiani Frafra del collettivo Baba Tree, la lampada progettata dal designer spagnolo Álvaro Catalán de Ocón traduce l’architettura locale tradizionale dei compound familiari in una grande superficie luminosa sospesa. Moduli circolari intrecciati in erba elefante, bottiglie Pet recuperate e una struttura metallica compongono una struttura tessile che crea una sorta di micro-architettura. www.petlamp.org

Foto Sergio Chimenti

REHUB

REVÉRO. Il materiale monomaterico, sviluppato a partire da scarti di vetro non riciclabili, provenienti in gran parte dalla filiera di Murano, è ottenuto dalla macinazione del vetro e dalla sua miscelazione con acqua e leganti naturali. Privo di resine e plastiche, presenta una struttura compatta con finiture che possono ricordare il terrazzo, la pietra o superfici più omogenee ed è personalizzabile in colore, texture e spessore per applicazioni in arredo e architettura. www.rehub.glass

S CAB

HUG. Parte della collezione Go Green, la poltrona progettata da Meneghello Paolelli è realizzata in plastica rigenerata certificata ottenuta da scarti post-consumo e materiali a fine vita. La scocca monoblocco risponde ai requisiti di resistenza e stabilità per l’uso indoor e outdoor, traducendo il tema del comfort in una forma continua e avvolgente. Il materiale, prodotto con energia da fonti rinnovabili, consente il riciclo a fine ciclo. www.s-cab.it

WARLI

BARONA. La lampada da tavolo progettata da Paolo Zani è realizzata interamente in alluminio riciclato, ottenuto da lattine, componenti di biciclette e moto e scarti provenienti dalla dismissione nautica. La superficie, lasciata volutamente industriale e protetta da una verniciatura trasparente, restituisce una materia riflettente. Il sistema di accensione prevede due modalità di emissione luminosa, diretta e indiretta. www.warli.it

Foto Simona Pesarini
MONA

HATOUM IN FONDAZIONE PRADA

CON OVER, UNDER AND IN BETWEEN

Dal 29 gennaio è aperto al pubblico alla Fondazione Prada il progetto site-specific di Mona Hatoum Over, under and in between. Attraverso un percorso articolato in tre parti, l’artista presenta alcuni elementi chiave del proprio vocabolario visivo: la ragnatela, la mappa e la griglia.

Le installazioni dialogano direttamente con lo spazio architettonico dell’edificio Cisterna, ricercando un coinvolgimento fisico e percettivo del visitatore. Nella sala d’ingresso trova spazio un’ampia costellazione di sfere di vetro collegate da fili, che richiama la ragnatela e ne restituisce l’ambiguità, sospesa tra fascinazione e repulsione.

Il pavimento in cemento della sala centrale ospita la seconda installazione: una mappa dei continenti composta da sfere di vetro rosso

L’opera All of a quiver esprime la sensazione di precarietà con una struttura minimalista.

traslucido, volutamente non fissate, concepite come entità separate e mobili. L’artista descrive questa configurazione come “un territorio aperto e indefinito”.

L’ultima installazione occupa verticalmente l’intera altezza della terza sala della Cisterna. All of a quiver si compone di una struttura metallica a nove livelli che, attraverso un sistema motorizzato, oscilla lentamente, evocando una sensazione di precarietà e sospensione. La mostra è accompagnata da una pubblicazione illustrata con testi critici dedicati al lavoro dell’artista ■

Mona Hatoum OVER, UNDER AND IN BETWEEN Fondazione Prada 29 gennaio | 9 novembre 2026

Mona Hatoum. Foto Miguel Lorenzo.
L’architettura è un cristallo
Gio Ponti
QB
Atelier
Ferrara
Foto ©Valentina Sommariva

Turn static files into dynamic content formats.

Create a flipbook
Issuu converts static files into: digital portfolios, online yearbooks, online catalogs, digital photo albums and more. Sign up and create your flipbook.