IAD IV E-Portfolio Mardiana Affendi 0354276

Page 1


INTERIOR ARCHITECTURE DESIGN IV

TABLE OF CONTENT

Project 01: Concept Design

Project 2A: Schematics + Site

Project 2B: The MUSEUM

REFLECTION

Earlier in the semester, each group was assigned a unique theme, and our group ’ s topic was “combine.” This meant that as individuals, we had the freedom to select two categories to focus on. I chose to combine cultural and contemporary, as I was particularly interested in exploring the relationship between people and cuisine. Initially, I considered focusing on food and festival celebrations. However, I soon realized that this topic was too broad and lacked a clear direction. To refine my concept, I delved deeper into researching Kopitiam those traditional, local coffee shops that are an integral part of Malaysian culture. I began to envision how I could expand this idea into the concept of a museum, where visitors could experience the rich history and cultural significance of Kopitiams.

I shifted my focus to consider not just the static aspects of Kopitiams, but how the museum could create an interactive, engaging experience. What kind of activities could be included that would both educate and entertain visitors? How could the space reflect the fusion of heritage and modernity? My goal was to design a space that captured the essence of Kopitiam culture, while providing a memorable, immersive experience for both locals and tourists.

In my narrative poster, I aimed to capture the essence of a kopitiam at first glance. To do this, I included a coffee cup, the backdrop of Kuala Lumpur, and in the smoke rising from the cup, I depicted elderly people and families sharing meals together with friends and loved ones. This visual representation reflects the warmth and communal spirit of a kopitiam.

LOCATION

2, Medan Pasar 50050 Kuala Lumpur

Federal Territory of Kuala Lumpur

CulturalAmbience

Redesigninterior spaces

ThemedEvents Technology Enhancement

Sustainability risksComfort and climate issues

Waterproofin gsystem

Strategiclocation Iconiclandmark Cultural significance Easeofpublic transport

FunctionalLayout Easynavigation CommunityFeel Outdated Facilities Space Constraints Inconsistent Branding Maintenance Challenges No easy access for wheelchairusers Tourism development Communityevents Nighttime economy development

Soundpollution Safetyissues Inadequate marketing Lackofpublic seating

MedanPasarocatednthecenerofKuaaLumpur sahstorcaysgnfcangeogaphcaaeaha hasgrownnoabusngbusnessandousthub Thsareaotownsdstngushedbyaunquebend ofcuuralheiageandmodernurbandeveopmen

2MedanPasa50050KualaLumpur

FedealTertoryoKuaaLumpur

MasdJamek

OustehefomerSinSengNamOdCoonaResaurant hawasconsructedn1906boastshghcengsexpansve wndowsandeaboraedecoaivedetashaarea eatuescommontocoonaarchtecturesextensveuse ofbckandmbeenhancestsvsuaatractvenessand heaçaderequentyhasradonamosandeaborae modingsthatemphaszetshstorcavaue

Rusngwngsuters andbrdcasceatea

Getngohestesasmpe taskhereae 3ransopsaLRTMasd Jamek bussopghousdethe ste Grabdopofsheeases tousewhenravengna pivaevehceastheeare ewparkngspacesopen nheaea

Warm and humd throughouttheyea Mnmavaraonsn weahe Temperaues usualyrangngrom24C to32CHumdyOten hghethan80%makng teeevenwarmerDue tohghpecptaonthe regon eceveshgh rainfaannuay

TheRveofemaksKuaaumpusoundngatthe confuenceotheKangandGombakvers ncoonameswasheheatotadenthecy Todaythasbeenevtazedasascencwaterront bendngthecysheragewhmodenubandesgn Thsransomatonhghghtstscuturampotanceas bohahstorcaandmarkandacontemporary gatheingspaceforocasandouss MORNNG(7AM)

NOON(2AM)EVENNG(4PM Rsesromheeastsesinthewest

BreezetavengromEast-Wes andNorth-SouthOccasonay Norh-Wes Cooewndunderheshaded teesandvegeaton(Found aongJaanBentengStee)

Foodvendosconbutewhhe

Theycanfndfeshood optonsbushoudcheckcosingtmeso sasOveatcanbeaveyexperencebu theheamghbeuncomorabe

Howdoestheweatherafecthe shoppngandfoodexperences?

Weathesgncantympacsshoppngandood expeencesatMedanPasaHotandhumdcondions candeershopperswhiepeasanweaheatacs moevsosRainmayreduceattendancebucanaso changeheypesofoodavaabeOveratafecshow peopeenoyhemakeandthereshnessoavaabe producs WHATIFs?

Whafcomeonweekdays?

Rchheragedesgnthareects hehtoyandcuurearactng vtos Dstnctspacesovaou actvtesenhancngcusomer experence We-desgnedpahwayand ayouthatacaeeasy navgaonorvsos Awecomngamosphereha encouagessocaneaconand ocaengagement

Poenaforenovatonsto modernzehespaceaddsaey andaccessbtyeatuethat canatacnewvsors Utzngthenerorocuuao communyevenscanboos ooacandengagement ncopoangdga echnoogessgnageo neactvedspaytompove vstosexpeence

nodesgnedomantaned welhempovemensmade canaectheoveacomor and cmae condons Poenaooddamagewhch seydueosooeve bengowerthanthesee eve Odernrastucuemayreque enovaonsomeemodern sandads Lmedaeacaneado overcowdngdungpeakmes mpacngcomfot Lackocohesvedesgneemens canduteheoverabrand denty Hghupkeepcostfomantan heaesthecandunothe neo scentayaccessbeby pubcansporandcoseo otheataconThecock owesarecognzedsymbo atacngbothocasand

SnSengNamResaurant
CockTowe
SutanAbdu SamadBudng
OfceBuldngs
Shophouses

REFLECTION

For our second project, we were tasked with creating two A0 boards to present the site analysis of Medan Pasar, specifically focusing on the former Sin Seng Nam Old Colonial Restaurant, which dates back to 1906. This historic building is a prime example of colonial architecture, characterized by its high ceilings, expansive windows, and intricate decorative details. The use of brick and timber throughout the structure adds to its visual appeal, while the façade often features traditional motifs and elaborate moldings, further highlighting the building’s historical significance.

This project was a valuable lesson in the importance of effective communication and strong teamwork. With a group of 11 members, the workload should have been manageable, but we encountered challenges due to varying work ethics and the tendency for some members to rely heavily on others. Even though tasks were clearly assigned, it was difficult to ensure that everyone was on track. However, despite these challenges, a few members stepped up, pushing through the struggles, and contributed excellent insights and detailed information about the site. This experience reinforced the importance of accountability and collaboration in achieving a successful project outcome.

This project gave me a deeper understanding of the site, especially in terms of how to access it using public transportation. I learned which buses would take me to the area and how to navigate the surrounding circulation. I realized that the site is situated in a bustling location with limited parking, but its proximity to other nearby monuments makes it an excellent spot for tourists to visit.

SKETCH DEVELOPMENT

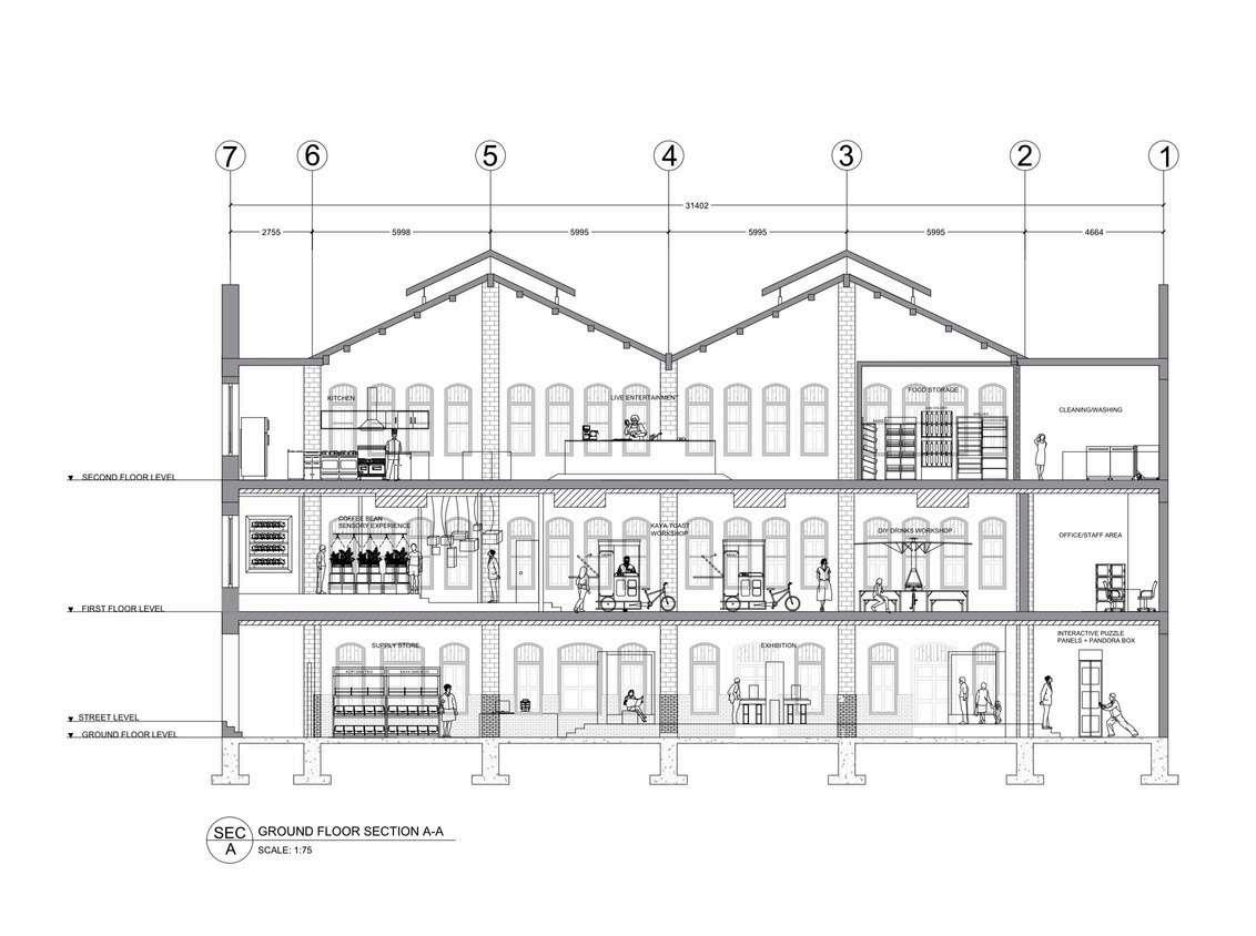
TheKopitiamMuseumisanimmersivecultural spacededicatedtocelebratingtheheritageof Malaysia’siconiccoffeeshops.Blendingnostalgia withmoderninteractivity,themuseumbringstolife thetraditions,flavors,andstoriesthatdefine kopitiamculture.Visitorscanexploreexhibits showcasingthehistoryofkopitiams,learnabout classicdisheslikekayatoastandtehtarik,and participateinhands-onactivitiessuchasmaking theirowntraditionaldrinks.

RASA KOPITIAM

TargetUsers

aimstoconnectyounglocaladultsandtouristswithMalaysia’srichculturalheritageinbridging thegapbetweentraditionandcontemporaryexperienceswhoarecuriousaboutthepast.

Whatwouldthey‘say’?

“I’veneverseenthisbefore.””Ifeellikei’minadifferentera.”

“Thisissomethingnew.”“Itsmellsamazing.”

“IcanalmosthearmydadorderingkopiOkurangmanisandthesoundof thekopiuncleexpertlypullingtehtarik.”

“It’sincredibletothinkabouthowsomethingassimpleasacupofcoffee canholdsomuchmeaning.”

“HaveIsteppedintoatimemachine?”

Whatwouldthey‘do’?

Takephotographs

Shareonsocialmedia

Sketchdigitally

Whatwouldthey‘think’?

“Ineverreallythoughtabouthowkopitiamsweremorethanjustfoodand drinks.”

“Iwonder,dopeoplemyageunderstandthis?”

“Howdoesthisthingwork?”“Thisissofun,maybeIshouldtrythisagain.”

“Ineedtobringmylittlesisterherenexttime.”

Howdothey‘feel’?

Bittersweetfromthinkingabouthowmodernlifehasshiftedawayfrom thesecommunalspaces.

Designedtoengageallgenerations,themuseum offersaspecialfocusonreconnectingyounger audienceswithfamilytraditions,highlightingthe roleofkopitiamsascommunityhubsthatunite peopleoverfood,drink,andconversation.

Mesmerisedfromwitnessingthecraftsmanshipandcarethatwentinto makingeverydayitemslikekayatoastorkopimightsparkappreciation fortraditionsandthepeoplewhopreservedthem.

Reconnectedtooldergenerations,understandinghowthesespaces shapedcommunitylife.

Featurestorytellingpanels,detailingthehistoryofkopitiams,theirevolution ascommunityhubs,andthepersonalstoriesoffamilieswhooperatedthem. Visitorsmightseecollectionsofoldnewspapers,magazines,andpersonal memorabiliathatwerestaplesofthekopitiamexperience.

Aricharrayofartifactsandrecreatedscenesthattransportvisitorsbacktothe goldendaysofMalaysia’siconiccoffeeshops.Exhibitsmightincludevintage kopitiamfurniture,suchasmarble-toppedtablesandwoodenstools,alongwith classictincoffeefilters,enamelcups,andcharcoalstovesusedforbrewingdrinks. Authenticdecor,likeoldsignboards,chalkmenus,andretroadvertisements,would setthescene,whileglassdisplaycasescouldshowcasetraditionalsnackslikekaya toastandkuihkapit.

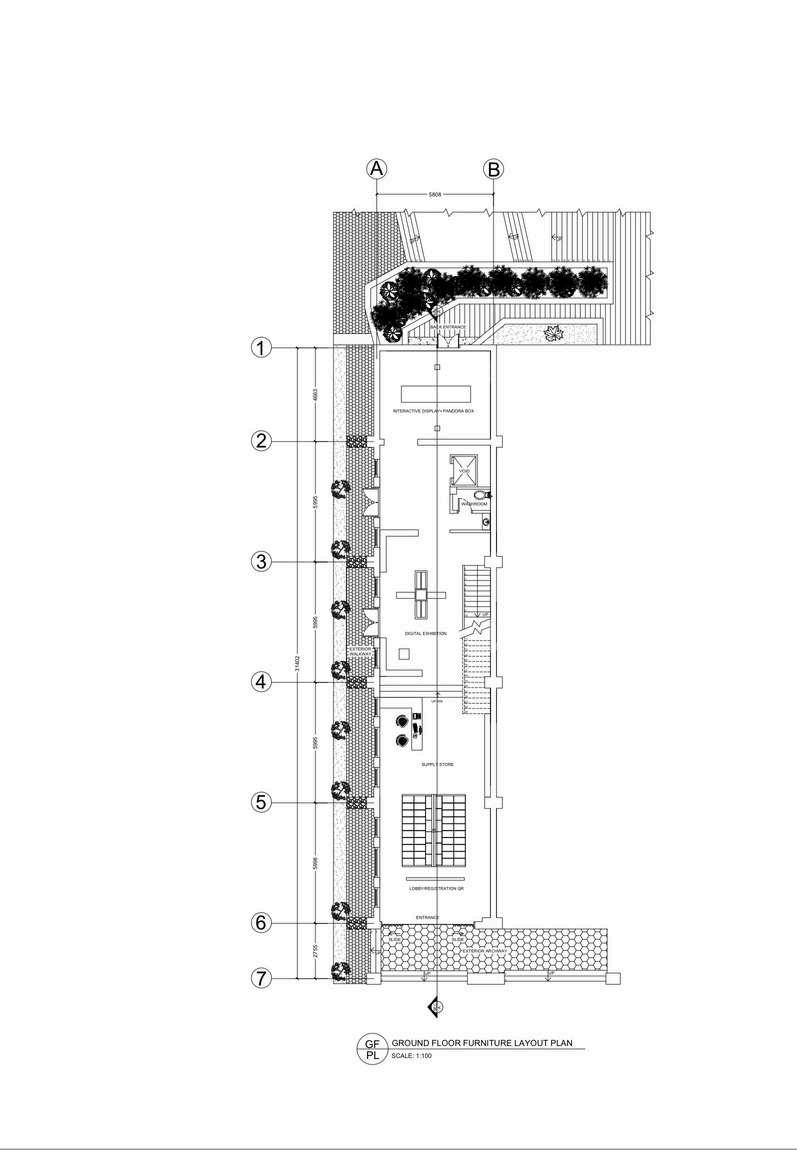
SupplyStore

Offersacuratedselectionoftraditionalcoffeeblends,nostalgicserveware,local snacks,andlifestyleitemsthatcelebratethecharmandheritageofMalaysia’siconic kopitiamculturesuchastincoffeefilter,ceramicbowls,

UNIQUESELLINGPOINTS

KayaWorkshop

Ahands-onactivity whereparticipants cantoastbreadover charcoalstoves, spreadkaya(coconut jam),andaddbutter slices.Includea storytellingsession abouttheoriginsof thisdish.

CoffeeBeanSensoryExperience

Asensoryboothwherevisitorscantouch,smell,andtastevariousbeansandlearn howkopitiamscreatetheiruniquecoffeeblends Includeblindfoldtaste-testing gamesforaddedfun.

PhotoBooth

Photospotsstyled likeclassickopitiams withvintagedecor— woodenstools, marbletables,tin coffeecups,and metalfoodcovers

DIYKopitiamDrinks

Station

Stepbehindthecounter andmakeiconicdrinkslike tehtarik,kopiO,orMilo dinosaur.Aninteractive guidesoraprofessional baristademonstratingthe artofpullingtehtarikor frothingcoffee traditionally.

DIY

KopitiamDrinksStation

JOURNEYMAP

COMMMONISSUESFOUNDINMUSEUMS

ISSUE1 ISSUE2

Exhibitsfailtoofferinteractive,dynamic,orrelatableexperiences, leadingtoalossofinterestandreducedoverallsatisfaction.

Exhibitsthatdon’tconnectwiththepersonalexperiencesorcultural contextsofvisitorsmayseemirrelevantoruninteresting.Forinstance, youngergenerationsmightstruggletoresonatewithhistoricalcontentif it'spresentedinanoutdatedoroverlyacademicmanner.Moreover,a lackofhands-onorparticipatoryactivitiescanmakethemuseumfeel lessaccessible,preventingvisitorsfromformingemotionalconnections withtheexhibits.

Fewerrepeatvisits,andnegativeword-of-mouth,affectingboththe museum 'sreputationandrevenue.Addressingthischallengerequires innovativeapproachestoexhibitdesign,storytelling,andvisitor interaction.

DifficultyNavigating:Poorsignageorconfusinglayoutscanfrustrate visitorsandleadtoadisjointedexperience.

Visitorsstruggletofindtheirwayaroundamuseumduetounclear signageorapoorlydesignedlayout,itcansignificantlydiminishtheir enjoymentandengagement.Withoutcleardirections,theymaymiss keyexhibits,feeloverwhelmed,orwastetimeretracingtheirsteps.A confusinglayout,suchasexhibitsarrangedwithoutalogicalflowor inadequatemarkersforstartingandendingpoints,candisruptthe storytellingexperience,leavingvisitorsfrustratedordisengaged.

Forinternationalormultilingualvisitors,alackoflanguageoptionsin signagecanaddanotherlayerofconfusion.Similarly,ifinteractive features,restrooms,orexitsarenotclearlymarked,itcancreate accessibilitychallenges,especiallyforfamilies,elderlyvisitors,orpeople withdisabilities.

Iwouldliketosolveitby:

Ccreating Instagram-worthy spots and encourage visitors to share their experiences online with dedicated hashtags or photo challenges.

Designing exhibits that are visually dynamic, with multimedia components like videos, animations, or soundscapes, can capture and hold attention. Relatability can be enhanced by connecting exhibits to modern themes, personal stories, or cultural identities thatresonatewithdiverseaudiences.

Offering opportunities for visitors to actively participate, such as through workshops, DIY stations, or gamified experiences, fosters asenseofinvolvementandemotionalconnection.

Regularly update displays, rotating themes, or introducing temporary exhibits ensure that the museum remains fresh and encouragesrepeatvisits

Iwouldliketosolveitby:

Implementingclear,multilingualsignagewithdirectionalarrows, exhibitnames,anddistancemarkerstoguidevisitorseffectively.

Designingthelayouttofollowalogicalflowensuresaseamless progressionthroughexhibits,reducingconfusion.

Incorporatinginteractivedigitalmaps,availableviamobileappsor touchscreenkiosks,canfurtherassistvisitorsinfindingtheirway.

Havingstafforvolunteerspositionedatkeylocationscanofferrealtimeguidance,whilevisualcueslikecolor-codedpathwaysorfloor markingscanhelpvisitorsidentifyzonesorthemeseasily.

Providingdetailedmapsandsuggestedroutesonlineorinbrochures allowsvisitorstoplantheirjourneyinadvance,creatingamore accessibleandenjoyableexperienceforeveryone.

SOLUTION1
SOLUTION2

Bespoke Detail

PEDAL POUR

The design integrates a bicycle structure with a small cabinet, drawers, and foldable tables and chairs, creating a mobile, compact drink station. This innovative piece reflects the spirit of kopitiams, where food and drinks are shared in communal spaces, and everything is built for practicality and accessibility. Designed to facilitate an engaging, hands-on experience that serves as a drink-making station where guests, both tourists and local families, can learn to prepare famous kopitiam drinks like kopi, teh, or milo. The foldable tables and chairs create an inviting space for visitors to sit, enjoy, and appreciate the cultural significance of kopitiams as social spaces. Its versatility also allows it to be used in various interactive exhibits, reflecting the flexibility and communal nature of kopitiams in Malaysia

Mosaic Tales

Cabinet of Curiosities + Pandora Box

Interactive display featuring a 3x3 cube setup, each side adorned with photos capturing iconic moments of kopitiam culture. Visitors twist and align the cubes to complete fragmented images, turning the experience into a hands on puzzle. As they solve the display, they uncover vibrant stories of the timeless kopitiam and its people, cuisine and traditions, allowing for both a fun challenge and a nostalgic journey through Malaysian heritage.

Interior Perspectives

Interior Perspectives

Interior Perspectives

Tangible Artifacts Tangible Artifacts

Interior Perspectives

Interior Perspectives

Coffee Bean Sensory Experience

Coffee Bean Sensory Experience

Coffee and Kaya Toast Worlshops

Coffee and Kaya Toast Worlshops

Interior Perspectives

Interior Perspectives

Kitchen Kitchen

Interior Perspectives

Interior Perspectives

REFLECTION

I was inspired to explore the topic of food and culture after noticing how Malaysia’s diverse public holidays celebrate the traditions of all races a beautiful aspect of our nation that often goes unnoticed. These celebrations are about more than just dressing up and taking photos; they are about truly seeing and appreciating one another. Growing up, we often take our elders for granted because they are such a constant presence in our lives. It’s only when they are no longer with us that we realize the value of their wisdom and the incredible skills they bring to cooking traditional dishes. Beyond that, food itself has a unique way of bringing people together, sparking conversations, sharing stories, and even a little gossip, all while strengthening the bonds between us.

The final project journey was nothing short of a roller coaster. At times, it felt like I was back at square one, while other moments felt almost surreal as I found myself truly content with the progress I had made. Even the smallest breakthroughs in areas I once felt completely clueless about were incredibly rewarding, reminding me of how far I’ve come.

Although staying authentic to my bespoke designs felt challenging at times, exploring idea after idea brought me both hope and excitement especially when I discovered the perfect materials to bring my vision to life. For instance, using pedal pour on wood and experimenting with green tiles helped me better understand how to connect materials with the design essence of a kopitiam. Kopitiams often feature plain ceramic tiles, so I incorporated them into the dining area and the walls of the workshop space. For certain flooring sections, I used patterned tiles to add character and enhance the overall ambiance. In the coffee bean glasshouse, I introduced blue tiles paired with wooden elements, which served as both partitions and seating areas, creating a cohesive and inviting design.

Despite the limited time I had to work on 3D modeling, I thoroughly enjoyed the process, as it was incredibly rewarding to see my ideas come to life in the end. I would really like to enhance on my rendering skills as I believe it plays a huge role on voicing out what my design ideas are in my head.

Turn static files into dynamic content formats.

Create a flipbook
Issuu converts static files into: digital portfolios, online yearbooks, online catalogs, digital photo albums and more. Sign up and create your flipbook.
IAD IV E-Portfolio Mardiana Affendi 0354276 by Mardiana Affendi - Issuu