
Port Royal w 3163 Gin Lane
Port Royal w 3163 Gin Lane
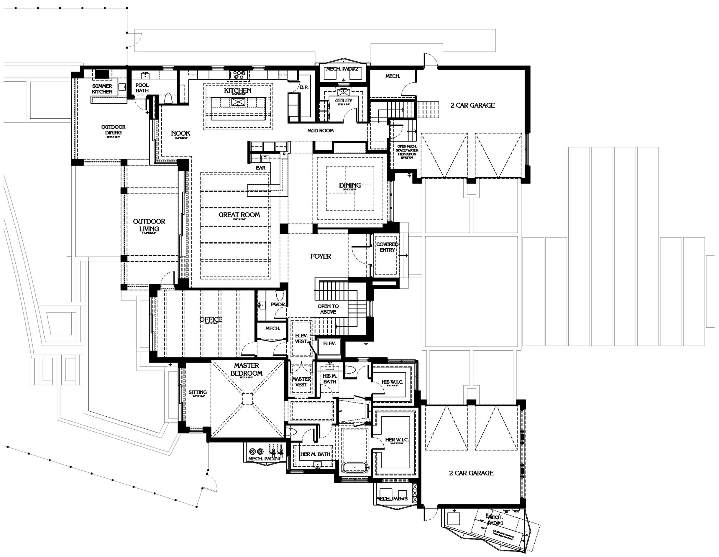
Incredible opportunity to purchase this custom residence fashioned by a team with impeccable credentials. Drawn by Stofft Cooney Architects, crafted by A. Vernon Allen Builders, Inc. and finely appointed by Lisa Kahn Designs, this property offers a forwardthinking lifestyle with great water views. 5 bedrooms, a true Guest Casita for a total of 6 bedrooms, 7 full baths, 2 half baths, 4-car garage and a spectacular outdoor covered living area. Very well thought through pool and deck spaces with an integrated spa that leads down to the waterway. A little more contemporary on the style and finish while maintaining warmth and a connection to the coast this home will not disappoint. Immediate Port Royal membership eligibility.
w Single Family Residence
w Year Built: 2024
w Lot Size: 143 x 160 x 110 x 204
w Living Area: 7,595 sq. ft.
w Total Area: 10,266 sq. ft.
w Bedrooms: 6
w Full Bath: 7
w Half Baths: 2
w Pool: Yes
w Spa: Yes
w Garage: 4-Car, Attached



































