Solihull, West Midlands

Page 1

Lane | Solihull | West Midlands | B91 2EB

38
Dovehouse Dovehouse

38 DOVEHOUSE

A refined collection of six luxury apartments, offering both two and threebedroom designs. Experience modern elegance in every detail, set in the most fantastic location.

KEY FEATURES

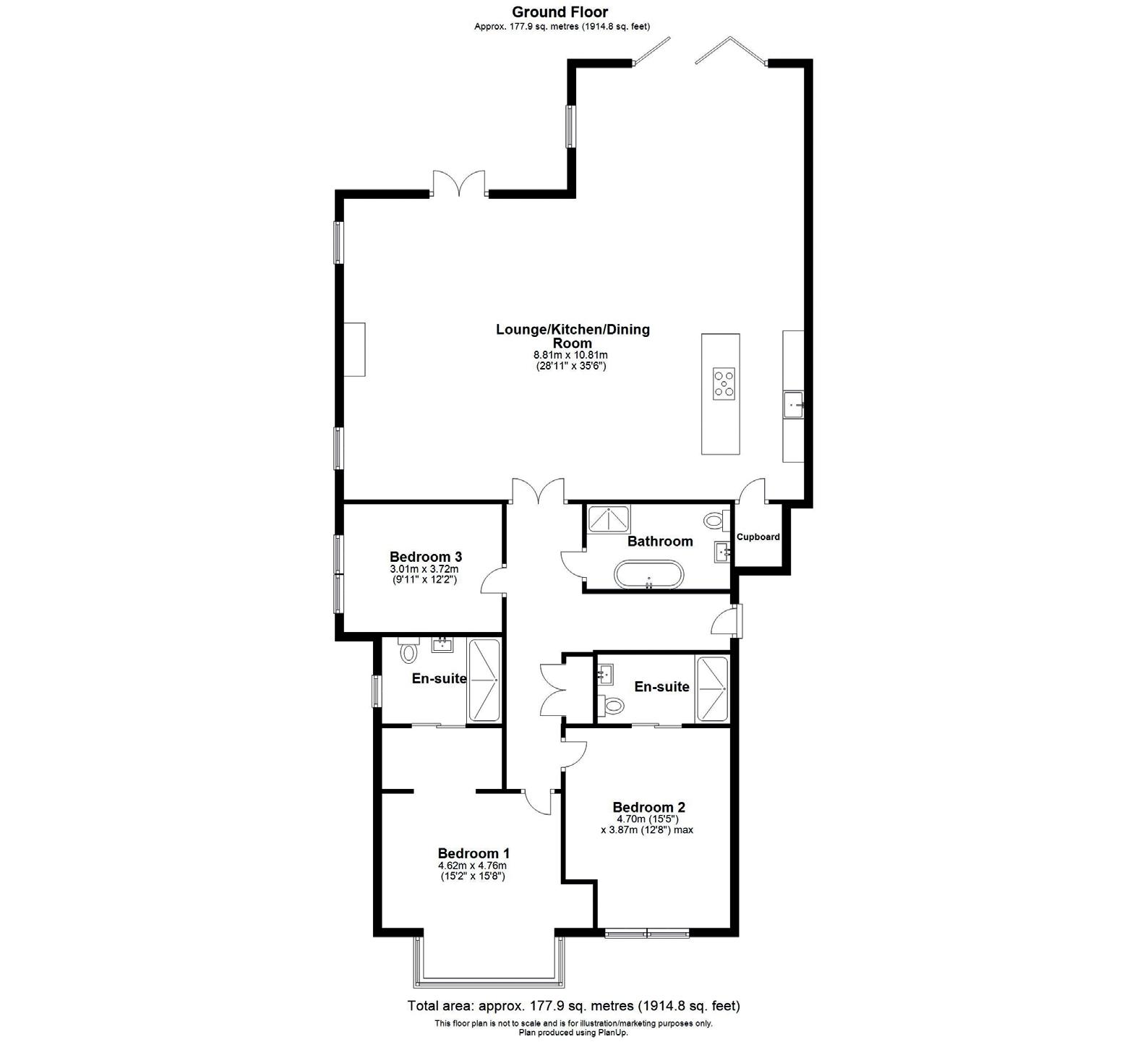
38 Dovehouse is a newly developed, upscale enclave comprising six luxury apartments nestled in a highly coveted locale. These residences offer a blend of two and three-bedroom layouts, meticulously crafted to epitomise contemporary living while fostering cosy, inviting atmospheres. Expansive open-plan kitchens seamlessly merge with dining and living areas, providing an ideal setting for both entertainment and relaxation. Flooded with natural light, each apartment boasts airy windows and doors, with the three-bedroom units featuring striking feature fireplaces.

Throughout this exceptional development, luxury abounds in every detail. Dekton surface worktops with waterfall edges, Neff integrated appliances, and wine coolers grace the stateof-the-art kitchens, where dedicated task stations, stylish workhorse sinks, and cutting-edge organisation solutions cater to every culinary need. Elegant brushed stainless steel light switches, sockets, and door ironmongery add a refined touch to each room, while underfloor heating enhances the entire premises.

For added convenience, a lift services the upper floors, and the hallway features a bespoke illuminated veneered feature wall, adding to the aesthetic appeal. Each apartment also includes two designated parking spaces with an electrical charge point. The secure building also features a bike storage facility. The ground floor apartments have their own private gardens, whilst the entire development benefits from the use of the private communal gardens.

Dovehouse Lane

Dovehouse Lane resides in the affluent area of Solihull, approximately eight miles from the centre of Birmingham, and is one of Solihull’s most prestigious streets. Situated within walking distance of Dovehouse Parade, residents will have convenient access to a plethora of amenities, including restaurants, shops, a pharmacy, post office, and the renowned Wedges bakery!

Stonehouse Developments

Established in 2004, Stonehouse has built a reputation for quality, ensuring that every design is executed to the highest standards. Whether it’s a new build development or a historic conversion, meticulous attention is paid to every detail from inception to completion, ensuring that their homes endure the test of time. Each residential project receives special attention to detail, with a focus on quality craftsmanship that defines their bespoke designs, emphasising exceptional quality and striking features. When restoring historical properties, Stonehouse takes great care to revive them to their former glory as residential dwellings, proudly upholding a tradition of quality and excellence in every endeavour.

APARTMENT ONE

APARTMENT TWO

APARTMENT THREE

APARTMENT FOUR

APARTMENT FIVE

APARTMENT SIX

SOLIHULL

Solihull, located about nine miles south of Birmingham, stands out as one of t he most affluent areas in the West Midlands. Residents enjoy outstanding schools and access to excellent recreational facilities including Tudor Grange swimming pool, parks, athletics tracks, private golf courses, and an ice rink. The town boasts a vibrant social scene with various amenities, bars, restaurants, and a 9-screen cinema complex. Solihull’s transport links are exceptional, with its ow n train stations, easy access to Birmingham International Railway Station and A irport, as well as major motorways like the M40, M1, M42, M5, and M6, facilitating travel to London and other regions. Additionally, the newly opened Resorts World Birmingham offers a plethora of shopping, dining, entertainment, and leisure options, making Solihull an attractive place to live and visit.

Viewings by appointment.

Mains Electric and Gas Supply

Water supplied by Severn Trent

High-speed Broadband available; We suggest contacting your provider.

4G and some 5G Mobile coverage available; We suggest contacting your provider.

Parking spaces: 2 Electric Vehicle Charger: 1

Annual service charge applies; Please enquire with agent.

Offers over £525,000 – £650,000

Reg No. 09929046 VAT Reg No. 232999961
copyright
INFORMATION
Registered in England and Wales. Company
Head Office Address: 5 Regent Street, Rugby, Warwickshire, CV21 2PE
© 2024 Fine & Country Ltd.

Agents notes: All measurements are approximate and for general guidance only and whilst every attempt has been made to ensure accuracy, they must not be relied on. The fixtures, fittings and appliances referred to have not been tested and therefore no guarantee can be given that they are in working order. Internal photographs are reproduced for general information and it must not be inferred that any item shown is included with the property. For a free valuation, contact the numbers listed on the brochure. Printed 04.05.2024

FINE & COUNTRY

Fine & Country is a global network of estate agencies specialising in the marketing, sale and rental of luxury residential property. With offices in over 300 locations, spanning Europe, Australia, Africa and Asia, we combine widespread exposure of the international marketplace with the local expertise and knowledge of carefully selected independent property professionals.

Fine & Country appreciates the most exclusive properties require a more compelling, sophisticated and intelligent presentation –leading to a common, yet uniquely exercised and successful strategy emphasising the lifestyle qualities of the property.

This unique approach to luxury homes marketing delivers high quality, intelligent and creative concepts for property promotion combined with the latest technology and marketing techniques.

We understand moving home is one of the most important decisions you make; your home is both a financial and emotional investment. With Fine & Country you benefit from the local knowledge, experience, expertise and contacts of a well trained, educated and courteous team of professionals, working to make the sale or purchase of your property as stress free as possible.

MATTHEW LOWE

PARTNER AGENT

Fine & Country Solihull 07709 998 555

email: matthew.lowe@fineandcountry.com

Having spent over 25 years deeply involved in the luxury property market worldwide, I made the decision to return to my hometown of Lapworth in order to provide stability for my children’s education. Joining forces with Fine & Country, I offer a distinctive perspective that extends beyond mere property transactions. My approach is informed by insights gleaned from catering to high net worth clients across the globe.

With my extensive knowledge of the West Midlands and its surroundings, along with an understanding of the local lifestyle, I am able to enhance the value of each transaction significantly. Guiding home buyers through the process, my aim is to ensure they transition seamlessly into their new homes.

I firmly believe in the effectiveness of a proactive approach to distinguish oneself. As a marketing specialist in the luxury market, my presence on social media platforms, in conjunction with the reach of Fine and Country’s global network, enables me to showcase your property with precision, emphasising exposure, presentation, and attentive service.

The production of these particulars has generated a £10 donation to the Fine & Country Foundation, charity no. 1160989, striving to relieve homelessness.

Visit fineandcountry.com/uk/foundation THE FINE
FOUNDATION
& COUNTRY

follow Fine & Country on Fine & Country

Zenith House, Highlands Road, Solihull B90 4PD 0121 746 6400 | solihull@fineandcountry.com

Turn static files into dynamic content formats.

Create a flipbook
Issuu converts static files into: digital portfolios, online yearbooks, online catalogs, digital photo albums and more. Sign up and create your flipbook.