
Knights Rest
20 Queens Road | Shanklin | Isle of Wight | PO37 6AW

![]()

Knights Rest
20 Queens Road | Shanklin | Isle of Wight | PO37 6AW

We have owned this business since 2016 and over the years have seen it thrive, consistently scoring very highly across multiple travel review websites and seeing returning guests year upon year.
Shanklin is a huge draw for tourists with its golden beaches, the scenic Red Squirrel coastal path, Rylstone Gardens, the beautiful natural landmark Shanklin Chine and the picturesque Shanklin Old Village. The guesthouse is also favoured by locals, who visit Shanklin for the theatre or live music and decide to make a weekend of it.*

* These comments are the personal views of the current owner and are included as an insight into life at the property. They have not been independently verified, should not be relied on without verification and do not necessarily reflect the views of the agent.





Introducing this impressive guesthouse, ideally situated in the hugely popular tourist destination of Shanklin, just 400 metres from Hope beach, a golden sandy beach that’s known for its traditional holiday entertainments and a variety of bars and restaurants overlooking the sea. Despite being built in the early 1800’s, the grey, ashlar construction and unique design features give this property a medieval air to it. There are seven guestrooms, all of which boast ensuite facilities and soundproofed walls – a major advantage for any holiday accommodation. There’s a further ensuite bedroom that’s currently occupied by the owner which would easily work as an eighth guest bedroom.
Additionally, there’s the owner’s accommodation consisting of an integrated, three bedroom annexe with its own external entrance and a kitchen and living area which, if it wasn’t required by the owner, would be ideal for families wishing to stay together for a self-catering holiday. Extremely rare for this area, it comes with a dedicated car park on site affording guests the convenience and advantage of free parking for the duration of their stay. Outside at the rear is a delightful garden, mostly laid to lawn with several seating areas, which is very popular amongst guests, as well as a pretty conservatory offering a quiet place to relax and enjoy the garden all year round.
The gorgeous, stone built, gable roof porch makes for an impressive entrance, immediately followed by the lovely lounge, with its stunning feature fireplace with wood burning stove and its full height, bay windows. The spacious dining room, with its lovely, exposed brick chimney and dual aspect windows is a delightful setting for guests to start their day in. Just across the hallway is a catering grade kitchen, more than capable of creating at least thirteen covers in high season. There are three guestrooms on the ground floor and five on the first floor, each with ensuite shower rooms and all tastefully designed in neutral tones.
The self-contained annexe is situated towards the rear of the property and is arranged over two floors. It has its own entrance and hallway leading to an open plan kitchen living room. The modern fitted kitchen includes all the necessary accoutrements, including electric oven with integrated hob and dishwasher. To the first floor are three good sized bedrooms and a contemporary shower room.
This remarkable property is already an incredibly successful business and offers enormous flexibility to maintain, adapt or grow into whatever its new owner’s desire.








Travel Information
10.3 miles from Fishbourne to Portsmouth Ferry Terminal
8.5 miles from Ryde High Speed Catamaran & Hover Travel
12.2 miles from East Cowes to Southampton Ferry Terminal
Southern Vectis Buses routes provide regular services through the area, connecting you to all the areas of the island. For ticket prices visit www. islandbuses.info
Leisure Clubs & Facilities
Yaverland Sailing & Boat Club, Yaverland 3.4 miles
Sandown & Shanklin Golf Club, Sandown 2.5 miles
Shanklin Rowing Club, Shanklin 0.6 miles
1Leisure The Heights, Sandown 1.9 miles
Healthcare Doctors Surgeries
The Bay Medical Centre, Sandown 01983 409292
The Bay Medical Centre, Shanklin 01983 862000 Ventnor Medical Centre, Ventnor 01983 857288
General Hospitals
St Mary’s Hospital, Parkhurst Road, Newport 9.8 miles (01983 822099)
Education
Primary Schools
St Blasius C of E Primary School, Shanklin 01983 862444
Gatten & Lake Primary School, Shanklin 01983 869910
The Bay CE Primary School, Sandown 01983 403284
Broadlea Primary School, Sandown 01983 402403
Newchurch Primary School, Newchurch 01983 865210
Secondary Schools/Colleges
The Bay CE School, Sandown 01983 403284
Carisbrooke College, Newport 01983 524651
Christ The King Upper College, Newport 01983 537 070
Medina College, Newport 01983 861 222
Ryde School with Upper Chine School, Ryde 01983 562229
The Island VI Form Campus, Newport 01983 522886
Isle of Wight College, Newport 01982 526631
Learning Assisted Schools:
Medina House, School Lane, Newport 01983 522 917
St. Georges, Watergate Road, Newport 01983 524 634
St. Catherine’s, Grove Road, Ventnor 01983 852722
Entertainment
Restaurants / Bars
Pendletons, Shanklin Old Village
The Crab, Shanklin Old Village
The Village Inn, Shanklin Old Village
Pavarottis, Shanklin Old Village
The Steamer Inn, Shanklin Esplanade
Fisherman’s Cottage, Shanklin Esplanade
The Waterfront Inn, Shanklin Esplanade
The Hideaway, Shanklin Cliff Path
The Fighting Cocks, Hale Common
These bars and restaurants are available within a 10-minute radius of this home
Local Attractions / Landmarks
Shanklin Chine - Shanklin Old Village
Rylstone Gardens - Shanklin
The Wildheart Animal Sanctuary - Sandown
Sandown Pier - Sandown
Bembridge Fort – Culver Down
Amazon World Zoo – Newchurch
Adgestone Vineyard - Adgestone
Carisbrooke Castle – Carisbrooke
Monkey Haven Primate Rescue Centre – Newport
Quarr Abbey - Binstead



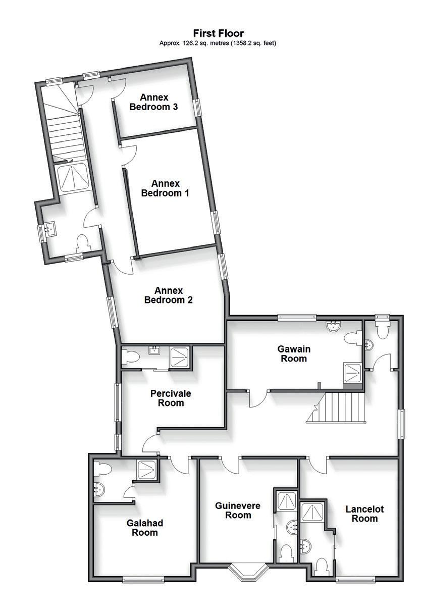
FIRST FLOOR
Landing
Lancelot Room + En-Suite Shower Room 13’4 x 11’4
Guinevere Room + En-Suite Shower Room 11’6 x 8’1
Galahad Room + En-Suite Shower Room 13’2 x 11’2
Gawain Room + En-Suite Shower Room 15’7 including en-suite x 7’5
Percivale Room + En-Suite Shower Room 11’7 x 6’6
Guest Cloakroom
Annex Landing
Annex Bedroom 1 13’ x 9’3
Annex Bedroom 2 11’8 x 10’9
Annex Bedroom 3 8’3 x 6’11
Annex Shower Room
OUTSIDE
Off Road Parking
Rear Garden
Council Tax Band: A Tenure: Freehold


