Bridgecastle, West Lothian

Page 1

Oakbank House

Bridgecastle | West Lothian | EH48 3DL

OAKBANK HOUSE

KEY FEATURES

Live without limits

With luxurious accommodation over three levels, Oakbank House is not a typical modern build. It’s a stunning bespoke-designed home nestled in the countryside in a central Scotland location, and characterised by bountiful natural light and space.

It’s a home where you feel you can live in harmony with nature and enjoy all the benefits of a fantastic contemporary design.

Beautiful nature and woodland walks are accessible from your front door, and the towns of Linlithgow, Bathgate and Livingston are close by with thriving social, leisure and retail facilities. Both the M8 and M9 are within easy reach for quick access to the cities, airports and further afield. Edinburgh and Glasgow can be reached by road or rail in 30 minutes.

Larch cladding on all sides of the home is not only very attractive and sympathetic to the countryside location, it offers excellent insulation performance. This is complemented by the eco-friendly and efficient air source heat pump heating system. The generous use of glazing throughout brings the outdoors in and a lively promise that here, you can truly live without limits.

A lot more than just good looks

Oakbank House looks stunning as you approach, and it is all that it promises to be and more. Both practically and aesthetically it over-delivers – in the luxury home cinema, the green credentials, and the attention to detail in the décor such as the artful texturing on the walls, to name a few. And all the finishing touches that you won’t need to think about are in place, including a SONOS sound system with speakers in all public rooms and exterior speakers on the decks; wifi boosters, and the comprehensive security system.

Key features:

• Architect-designed, substantial modern home

• Luxury home cinema with lounge and bar

• Large open plan kitchen and family room

• Master bedroom with dressing room and en-suite

• Four further bedrooms

• Secluded garden with outdoors dining areas

• Eco-efficient heating system (air source heat pump)

• Underfloor heating throughout ground floor and basement level

• Separate garage with approved plans to create ancillary accommodation

• Central Scotland location

• Linlithgow Academy school catchment

• Hand built wall with gated entrance

Where everyone wants to be

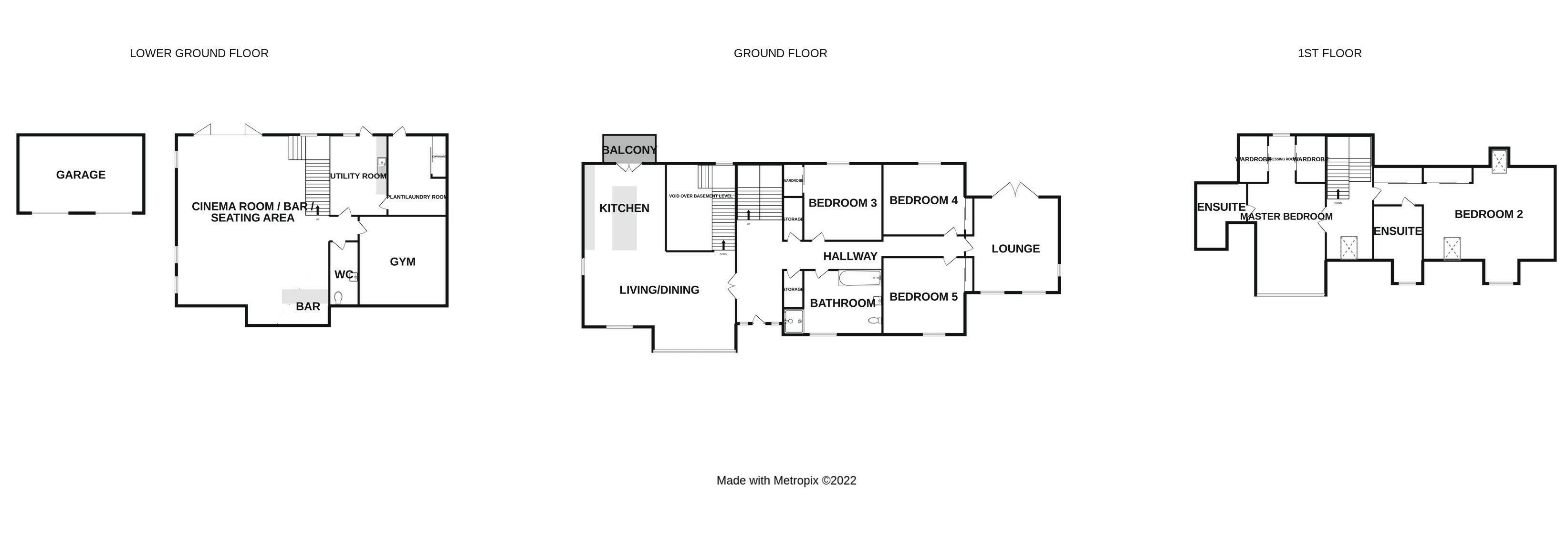
The nucleus of Oakbank House is without doubt the stunning, light-drenched open plan family living and kitchen area. Whilst the size of the home offers the luxury of different spaces to retreat to when privacy and quiet is needed, here in the centre of the home is where everyone wants to be. This is where family and friends hang out, cook, get help with homework, share time and put the world to rights over a hot chocolate. Beautifully designed, it is an absolute delight to spend time in, even before you add your favourite people.

Large sections of the walls are fully glazed, bringing the outdoors in so you feel truly embraced by the natural environment around. Facing west to open fields, the sunsets you witness whilst relaxing and dining at the end of the day here are spectacular.

The kitchen area itself blends into the rest of the room. With granite worktops and gloss white floor to ceiling units punctuated only by the integrated appliances –including a coffee machine – it’s seamlessly part of the room as a whole. The work space is a gloss white island with sink, spotlighting and integrated induction hob. Patio doors open onto a small balcony, which catches the morning sun and is the perfect spot for a coffee al fresco listening to the birdsong before the day kicks off.

Part of the floor in this large area opens up to the basement level, with an open tread timber stair leading down to the home cinema and bar. Lit with windows spanning the height of both floors, and stunning hanging light fittings, it maintains an openness and beautifully links these two social areas.

The luxuriously large cinema room has ample space for sofas facing the screen, as well as a bar with a stunning copper-effect wall and industrial-vibe feature lighting. There is a wood burning stove for extra cosiness, and one wall is all glazed with patio doors leading to the deck outside.

This room is much more than a cinema, it’s an excellent all-round entertainment space with huge capacity and flexibility; the luxury flooring makes a great dance floor. There is a tiled bathroom adjacent, fitted with a wall hung toilet and décor that shows the care given to even the smallest rooms in this home.

Oakbank House is decorated throughout in contemporary, elegant grey tones on the various surfaces – floor tiles, wall tiles, carpets, window coverings and engineered wood boards. With the focus of this home on its large windows, the grey décor scheme provides a wonderful framing for the lush greens of nature visible from almost every window. It also allows for any accent colours to be effortlessly added with furniture and soft furnishings.

Practical details

Besides the cinema, there is a further room on the basement level that is carpeted and currently being used as a gym. There is also a practical utility room with gloss white units and a separate laundry/plant room with lots of storage space, which leads out to the back garden.

Elsewhere on the ground floor, the separate lounge with its unique feature wall is a perfect place to retreat for a dram next to the wood burning stove here. As with every other room, it is flooded with light, and opens to the rear garden via patio doors. There is a handy wood store near the door.

There is a family bathroom and three bedrooms on the ground floor too, both with built-in wardrobes.

A room with a view

A matching open tread timber stairway leads from the centre of the home to all the upstairs accommodation. This floor feels separate with a more private mood compared to the social spaces downstairs, whilst still benefiting from natural light and beautiful views.

The master bedroom enjoys the most stunning outlook through its gable-shaped window wall, softly framed with curtains. Wake up every morning greeted by the view of the field which frequently has sheep, horses and even wild deer peacefully grazing. You can’t help but feel refreshed. There is a dressing room with large built-in wardrobes, and a bathroom with bathtub, double basins and a rain shower.

Peaceful haven

Each of the stones that make up the front wall of the property was individually dressed by hand, just one example of the love and care that went into creating this beautiful, peaceful haven.

The property is accessed via electric entrance gates and makes masterful use of the slope of the land, with decks on different levels for outdoors dining. The lower deck in particular is a sheltered sun-trap, perfect for evening outdoors dining.

The gardens are a generous size and currently designed to be very low maintenance. There is scope though to create flower beds, a rockery, a vegetable patch – it’s equally a canvas to create your dream garden.

The double garage has electric doors and room for three vehicles. Planning permission has been granted to create ancillary accommodation above it.

Whatever you need for luxury family living, the details have been attended to here. Oakbank House is the perfect home for a family looking for a peaceful, nurturing countryside location within easy reach of the cities; a home where they can live without limits.

INFORMATION

Location and Amenities

• Linlithgow, Bathgate and Livingston offer shopping, social, sport and leisure facilities

• Close proximity to the M8 and M9 motorway networks giving easy access to Edinburgh (26 miles), Glasgow (30 miles) and Stirling (22 miles)

• Mainline rail connections to Edinburgh and Glasgow from Bathgate or Linlithgow

• National and international flights from Edinburgh Airport – just 19 miles away

• The Kelpies, Beecraigs, Polkemmet and Muiravonside country parks are a short drive away

Registered in Scotland. Company No. SC552717. Registered Office Address: 6 St. Colme Street, Edinburgh, EH3 6AD
copyright © 2023 Fine & Country Ltd.

Tenure: Freehold

Council Tax Band: G

Agents notes: All measurements are approximate and for general guidance only and whilst every attempt has been made to ensure accuracy, they must not be relied on. The fixtures, fittings and appliances referred to have not been tested and therefore no guarantee can be given that they are in working order. Internal photographs are reproduced for general information and it must not be inferred that any item shown is included with the property. For a free valuation, contact the numbers listed on the brochure. Printed 10.08.2023

FINE & COUNTRY

Fine & Country is a global network of estate agencies specialising in the marketing, sale and rental of luxury residential property. With offices across four continents, we combine the widespread exposure of the international marketplace with the local expertise and knowledge of carefully selected independent property professionals.

Fine & Country appreciates that the most exclusive properties require a more compelling, sophisticated and intelligent presentationleading to a successful strategy, emphasising the lifestyle qualities of the property.

This unique approach to luxury homes marketing delivers high quality, intelligent and creative concepts for property promotion combined with the latest technology and marketing techniques.

We understand moving home is one of the most important decisions you make; your home is both a financial and emotional investment. With Fine & Country you benefit from the local knowledge, experience and expertise of a well-trained, educated and courteous team of professionals, working to make the sale or purchase of your property as seamless as possible.

The production of these particulars has generated a £10 donation to the Fine & Country Foundation, charity no. 1160989, striving to relieve homelessness.

Visit fineandcountry.com/uk/foundation

THE FINE & COUNTRY FOUNDATION
follow Fine & Country Edinburgh on Fine & Country Edinburgh 5 South Charlotte Street, Edinburgh, Edinburgh, EH2 4AN 0131 564 1077 | edinburgh@fineandcountry.com

Turn static files into dynamic content formats.

Create a flipbook
Issuu converts static files into: digital portfolios, online yearbooks, online catalogs, digital photo albums and more. Sign up and create your flipbook.