

![]()


As you turn into the long and undulating driveway, flanked by sweeping lawns interspersed with impressive mature trees and shrubs, you have your first glimpse of this delightful Victorian residence. It nestles in 2.6 acres of stunning grounds and woodland that includes a double garage, stables, other useful outbuildings and also has potential development opportunities.
With its cream exterior, high chimneystacks and welcoming pitched roof porch this beautifully presented property has a charming exterior, while internal period features including high coved ceilings, panelled doors and fireplaces give it such a special character. There is a spacious hall with the original staircase to the first and second floors, access to a cloakroom and the flexible ground floor accommodation. This includes a well-proportioned, dual aspect dining area with an impressive marble surround fireplace and a multi-fuel burner, ideal for those more formal occasions and family Sunday lunch parties. It leads through an open archway to a light and bright dual aspect sitting area or playroom with a lovely bay window.
There is an elegant drawing room that also has a charming bay window with garden views as well as an original marble surround fireplace with a brick inset and a slate hearth. However the ‘heart of the house’ is the superb country style kitchen/breakfast room with an informal dining area and is where the family love to congregate. There is an inset range cooker and attractive units with granite worktops housing an integrated full height fridge and dishwasher, a large central island breakfast bar, steps down to the light and bright dual aspect dining area and an adjacent utility room. This also has fitted units with granite worktops, an integrated full height freezer and laundry facilities. A door leads to a rear lobby/boot and coat room and side access to the drive and outbuildings.
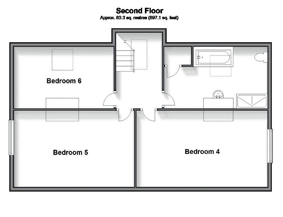
Off the half landing there is a separate toilet and a smart family bathroom with a bath and shower. While leading from the landing on the first floor you will find a study and three very spacious double bedrooms with seating areas and wonderful views including the superb main suite. This has a vast en suite bathroom with a trendy bath under a large window with panoramic views, as well as a separate shower and a walk-in wardrobe/dressing area. The second floor galleried landing has access to the vast boarded loft, and another attractive family bathroom with a bath and separate shower. This serves the three double bedrooms with amazing panoramic views over the garden and the surrounding countryside including two with good sized seating areas, partially vaulted ceilings and Velux windows.
Gravel surrounds the property creating pathways and a front terrace where you can enjoy looking out over the extensive garden and providing outdoor entertaining for friends and family. In addition to the double garage there is plenty of off road parking for numerous vehicles as well as a stable block that includes an original Victorian stable, storage facilities and two additional stables as well as a covered wood store. There is also a separate building with lighting, electrics and flooring that is easily accessible from the rear lobby and is currently designed as a gym but could be converted to an office for anyone working from home but needing space away from the house.







We moved here about 16 years ago as we loved the character of the property, the location and the availably of good schools in the vicinity. At the time the property needed a complete upgrade and we virtually gutted the inside, with new plumbing and electrics, replastered, redecorated and installed the contemporary kitchen and bathrooms. We have thoroughly enjoyed the results of our efforts and it has been a great place to bring up our family. However they have all flown the nest and we feel it is time for us to downsize.
We also love the grounds and the local wildlife including rabbits, squirrels, kestrels and woodpeckers, which is why we created a wildlife area in what was previously a two acre paddock. However, the paddock could easily be reinstated should new owners have equestrian interests or want to keep chickens, goats, sheep or alpacas. Alternative opportunities include the possibility of property development as some of our neighbours have built additional properties in their large gardens so new owners may be able to do the same, subject to the appropriate planning
The countryside location is wonderful as it is very quiet and peaceful with friendly neighbours, yet it is only a short drive to Thanet Parkway station where the high speed train can whisk you to London in 70 minutes. We are not far from Minster village with its historic Abbey and Church, originally founded in 670AD. It also includes a mainline station, shops, pubs and restaurants as well as hair and beauty salons, a surgery, a veterinary practice and a dog groomer. There is a good primary school, an amateur dramatic society, bowls group and regular events in the village hall as well as a large playing field with a multi-use games area and an all-weather sports pitch. With regard to education, as well as the local primary school, there are excellent primary, secondary, grammar and private schools in Thanet, a well-respected grammar school in Sandwich and a plethora of Outstanding grammar and top class private schools in Canterbury.
The Thanet Way for access to London and Canterbury and the Sandwich Road for Dover and Folkestone are nearby and it is only a short distance to the Westwood Cross shopping centre with its range of high street stores, restaurants, a casino and the Vue cinema complex.
For golfing aficionados the opportunities are endless, from practising your swing at the Manston Golf Centre to playing a round at the prestigious Royal Cinque Ports in Deal or the St George’s championship course in Sandwich, and there are also many other local clubs. If you enjoy a walk with the dog or a bit of bird watching and seal spotting the Pegwell Bay Nature Reserve is only a short drive and there are plenty of places around for cycling and riding with the Manston Riding Centre not far away. While the surrounding 26 miles of Thanet beaches offer a wonderful playground for the children and sailing enthusiasts can moor their boat at the Ramsgate Marina and join the Royal Temple Yacht club.
* These comments are the personal views of the current owner and are included as an insight into life at the property. They have not been independently verified, should not be relied on without verification and do not necessarily reflect the views of the agent.




Leisure Clubs & Facilities
Royal St George’s Golf Club
01304 613090
Princes Golf Club 01304 611118
St Augustine Golf Club 01843 590333
Bannatynes Health Club 01843 600606
Stonelees Golf Centre 01843 823133
Manston Golf Centre 01843 590005
Ramsgate Croquet Club 01843 588878
Thanet Bowls Club, Ramsgate 01843 594804
Royal Temple Yacht Club 01843 591766
Manston Riding Centre 01843 832622
Healthcare
Minster Surgery 01843 821333
Dr Adam Akyd & Partners 01843 595951
Dr M D Cardwell 0300 0427007
Summerhill Surgery 01843 591758
QEQM Hospital, Margate 01843 225544
Education
Primary Schools:
Minster Primary 01843 821384
Newington Community Primary 01843 593412
Chilton Primary 01843 597695
Wellesley 01843 862991
St. Lawrence Junior 01843 587666
Secondary Schools:
Charles Dickens Broadstairs
01843 862988
Chatham and Clarendon Grammar, Ramsgate 01843 591075
Dane Park, Grammar, Broadstairs 01843 864941
Sir Roger Manwood Sandwich 01304 610200
St. Lawrence College (Senior) 01843 587666
Entertainment
Vue Cinema Complex and Casino
01843 579999
Sarah Thorne Theatre, Broadstairs 01843 863701
Granville Theatre, Ramsgate 01843 591750
The New Inn 01843 826142
The Bell Inn 01843 825707
The Sands Hotel, Margate
01843 228228
Yarrow Hotel, Broadstairs 01843 460100
Local Attractions / Landmarks
Dreamland Amusement Park 01843 295887
Quex Park Museum, Birchington 01843 842168
Turner Contemporary Gallery, Margate 01843 233000
Shell Grotto, Margate 01843 220008
Spitfire and Hurricane Memorial Museum 01843 821940
Hornby Visitor Centre, Westwood 01843 233524
Dickens House Museum, Broadstairs 01843 863453
Westwood Cross Shopping Centre
Pegwell Nature Reserve










