
New House Widegates | Looe | Cornwall | PL13 1PZ
![]()

New House Widegates | Looe | Cornwall | PL13 1PZ



New House Widegates is located perfectly between stunning Cornish countryside and ease of access to the A38. Along with direct access to London from Newquay Airport (43 minutes) and 30 minutes to London by train from Gatwick. Plymouth Train Station is 35 minutes and trains run a minimum hourly service to London.
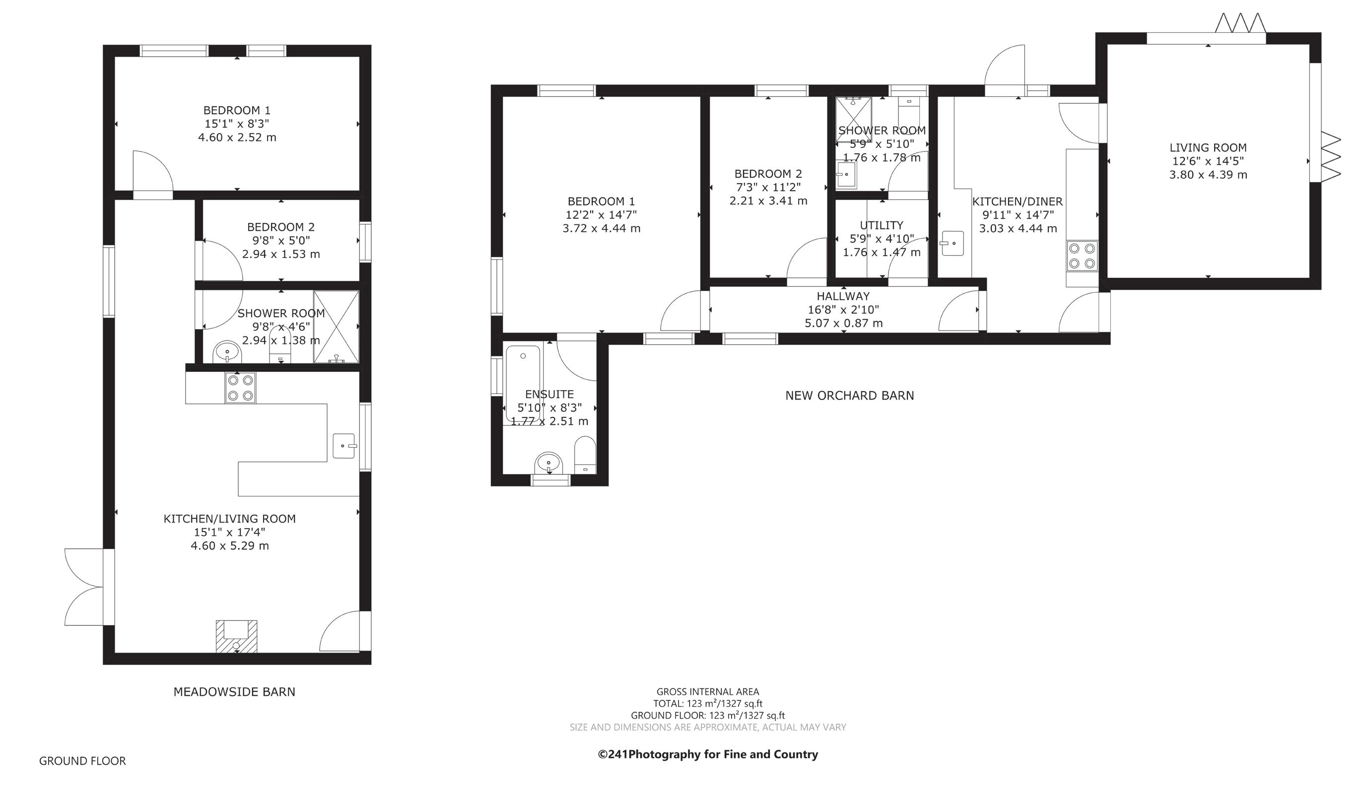
Settled within three acres. The estate features a main house spanning 2,500 sq ft with a one-bedroom annex. There are also two cottages. Meadowside cottage and New Orchard barn. Maintained and landscaped grounds include a paddock with stables and tack room, a vegetable garden with a Polytunnel, and approved planning permission for ground-mounted solar panels.
New House grants the new custodians comfort, character, and versatility, this property presents an opportunity to buy a large, private, and well-placed rural home. The kitchen breakfast room provides a well-appointed space ideal for modern family living and enough space to cook for the largest of gatherings. Teamed with stunning views over the estate.
Adjoining the kitchen are two main reception rooms and a utility/boot room finished with plumbing for all appliances required. A well-positioned modern shower room adds to the convenience. The lounge has a fireplace with a wood burner, which only adds to the comfort and style of Newhouse.
The second reception room, ideal for social gatherings, opens to the annex, perfect for extra overflow accommodation, — a studio apartment setup with an en-suite shower room. New House with four double bedrooms and contemporary family bathroom, offers space for even the largest of families.
Additional features include double glazing and oil-fired heating.



















The estate presents with circa 3 acres (approx.), affording the new custodians privacy and space set amongst maintained hedges and lawns. New House shares the estate with Meadowside Cottage and New Orchard Cottage. Please see the floor plans.
Widegates Village hosts the award-winning Tredinnick Farm Shop and Tea Room, offering premium quality and affordable local produce. Looe (10-minute drive) prides itself on its fresh fish, and its award-winning fish and chips near the river, or Michelin guide restaurants overlooking the harbour.
An approved planning application for ground-mounted solar panels is available with details on the Cornwall Council planning register (ref - PA22/10347).
Planning Permission No. PA24/03417 Use of Former Barn as an Unrestricted Dwelling Tregastick Lane Widegates.
Services - Private heating (oil).
Tenure: Freehold.
Council Tax Band: F.
Postcode for SatNav: PL13 1PZ.
Fibre (FTTC)




Tax Band: F

£1,400,000




Agents notes: All measurements are approximate and for general guidance only and whilst every attempt has been made to ensure accuracy, they must not be relied on. The fixtures, fittings and appliances referred to have not been tested and therefore no guarantee can be given that they are in working order. Internal photographs are reproduced for general information and it must not be inferred that any item shown is included with the property. For a free valuation, contact the numbers listed on the brochure. Printed 29.07.2024

Fine & Country is a global network of estate agencies specialising in the marketing, sale and rental of luxury residential property. With offices in over 300 locations, spanning Europe, Australia, Africa and Asia, we combine widespread exposure of the international marketplace with the local expertise and knowledge of carefully selected independent property professionals.
Fine & Country appreciates the most exclusive properties require a more compelling, sophisticated and intelligent presentation –leading to a common, yet uniquely exercised and successful strategy emphasising the lifestyle qualities of the property.
This unique approach to luxury homes marketing delivers high quality, intelligent and creative concepts for property promotion combined with the latest technology and marketing techniques.
We understand moving home is one of the most important decisions you make; your home is both a financial and emotional investment. With Fine & Country you benefit from the local knowledge, experience, expertise and contacts of a well trained, educated and courteous team of professionals, working to make the sale or purchase of your property as stress free as possible.