
72 Wigton Lane | Leeds | West Yorkshire | LS17 8SJ
![]()

72 Wigton Lane | Leeds | West Yorkshire | LS17 8SJ
Situated on one of North Leeds’ most sought-after lanes, Fine and Country are delighted to bring to the market a most imposing and substantial detached residence which is set in approximately half an acre. This impressive home has a southerly aspect to the rear and will be finished to the highest specification. It will also offer spacious accommodation throughout ideal for a growing family.
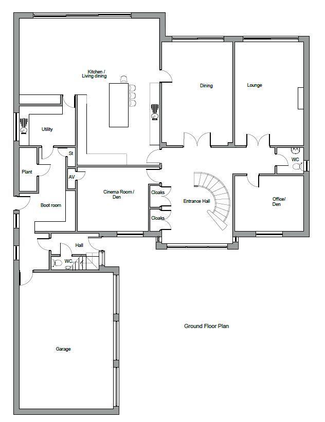
This is a rare opportunity to acquire an individually designed home with the greatest attention to detail. The generously proportioned accommodation, which extends to around 6760 sq ft, includes security and audio-visual systems, together with CCTV.
One of the most impressive features is a grand reception hall with porcelain tiled flooring and a bespoke sweeping staircase with a decorative Helical balustrade leading to a galleried landing. To the ground floor is a fully tiled, guest cloakroom with a wash basin, wall hung w.c. and a heated towel rail. To the rear of this wonderful home is a formal lounge with bi folding doors leading to the rear patio and garden, a separate generous dining room with high quality porcelain tiled flooring, bi folding doors with access to the rear garden and a single Crittall door leading to the kitchen. A further office/study and cinema room can be found to the ground floor. There is the most impressive family dining kitchen with an adjoining utility room with fitted wall and base units with tiled flooring throughout, built in washing machine, built in condenser tumble dryer and a door leading to a boot room with panelled walls, tiled flooring and built in storage cupboard with seating. Furthermore a door leads to an inner hallway with a second guest w.c. with tiled flooring, wash basin, wall hung w.c. and a heated towel rail.
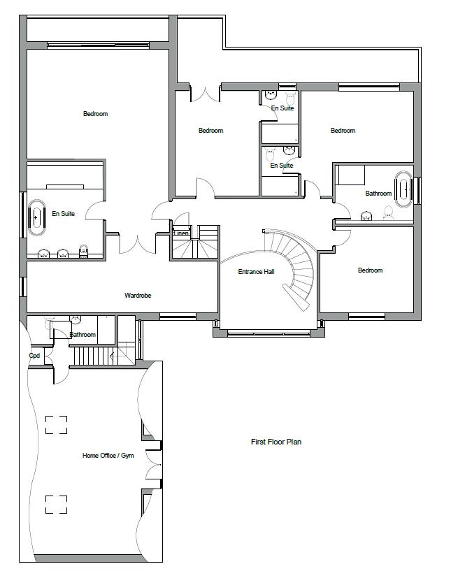
From the inner hallway a staircase leads to the first floor above the garage which would make an ideal home office/gym/annex with double doors to a Juliet balcony and fully tiled bathroom with under floor heating, w.c., wash basin, shower and a heated towel rail.
The stunning dining kitchen has a bespoke contemporary fitted German kitchen, Tobacco Knotty Oak, dark units, lavish worktops and a central island in Antique Calacatta Ceramic, with a dining table. There are also integrated appliances which include; an American style fridge freezer, Liebherr wine cooler, Bora Classic 2 Zone Hob and teppan plate with integrated extractor, combi microwave with pulse steamer, oven with active clean, two warming drawers and a coffee machine.
The stunning, sweeping staircase leads to an imposing galleried landing where four impressive bedrooms can be found. The principal bedroom suite comprises a generous bedroom with bi folding doors leading to a private south facing balcony and a luxurious, fully tiled en suite bathroom with a walk in extra large shower, a free standing bath, double wall hung wash basin with drawers, wall hung w.c. and a heated towel rail. The dressing room has fitted open wardrobes, a central island with drawers, a dressing table, feature display cabinets and a full-length mirror. Two additional bedrooms have doors leading to a shared balcony overlooking the rear south facing garden. Both theses bedrooms have fully tiled en suites with under floor heating, w.c., wall hung wash basin with drawers, walk in shower and a heated towel rail. There is an additional bedroom overlooking the front garden with an en suite/ house bathroom with a wall hung w.c. and wash basin, walk in shower, free standing bath, heated towel rail and under floor heating.
An additional staircase leads to the second floor which has two further bedrooms. One of these bedrooms has space for a walk in wardrobe and bi folding doors leading to a private balcony looking over the generous south facing garden. A fully tiled en suite bathroom with under floor heating, a free standing bath, walk in shower, wall hung wash basin with drawers, w.c. and a heated towel rail. The second bedroom to this floor has space for a walk in wardrobe and a large window looking over the rear garden. This bedroom also has the advantage of a fully tiled en suite bathroom with under floor heating, walk in shower, wall hung wash basin with drawers, wall hung w.c. and a heated towel rail.







This magnificent home can be approached via double electronically controlled gates leading onto a spacious driveway which provides ample parking for numerous vehicles. This in turn leads to the triple garage with remotely controlled electric doors. To the rear of the property is a south facing garden with a generous patio area which runs the full width of the property and provides a fabulous space for al fresco dining and outdoor entertaining.
This incredible family home is ideally situated for local amenities including a Marks & Spencer food hall and Sainsburys. For sport lovers the David Lloyd centre is a short drive away and there are numerous championship golf courses within the area. There are a number of excellent preparatory and senior schools nearby. Yorkshires leading independent school, the Grammar School at Leeds (ages 3 to 18), is within walking distance.








Agents notes: All measurements are approximate and for general guidance only and whilst every attempt has been made to ensure accuracy, they must not be relied on. The fixtures, fittings and appliances referred to have not been tested and therefore no guarantee can be given that they are in working order. Internal photographs are reproduced for general information and it must not be inferred that any item shown is included with the property. For a free valuation, contact the numbers listed on the brochure. Copyright © 2024
Fine & Country Leeds
2 Shadwell Lane, Moortown, Leeds LS17 6DR
0113 203 4939 | leeds@fineandcountry.com