Islington, London

Page 1

57a
Colebrooke Row
London | N1 8AF

Step inside

57a Colebrooke Row

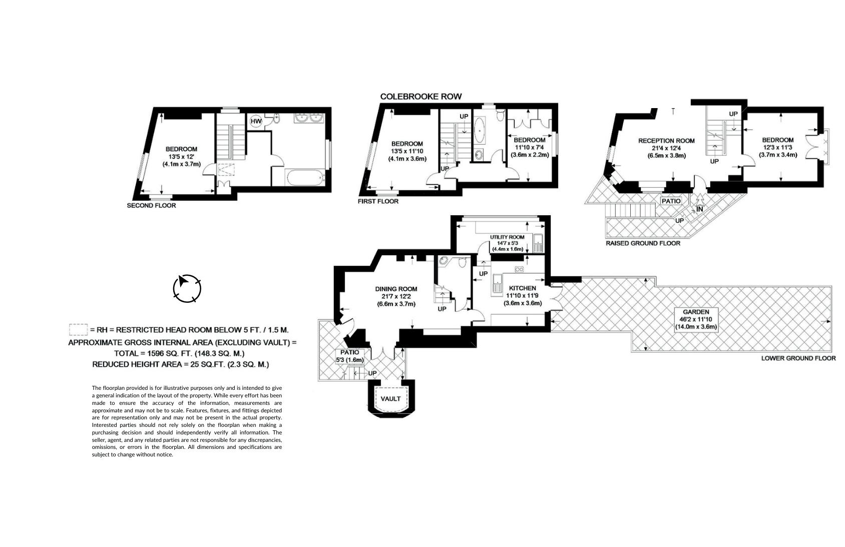
Set on the iconic Colebrook Row is this four bedroom, double reception Period house offering over 1,500 sq ft of beautifully presented living space, tucked away in a corner of this historic row, only a stones throw from the Regents Canal.

Accessed from the street, via a raised ground floor, the property opens onto a dual aspect 21 foot reception room with plenty of natural light, neutral colours and an exposed brick and marble feature fireplace. And to the right is a good sized bedroom with grand views, overlooking the property’s garden. Leading downstairs to the lower ground floor is a sizeable dining room again with dual aspect giving plenty of natural light, and with French doors allowing access to the front garden which via a wrought iron staircase gives access up to street level. To the left of this level is a well equipped and modern kitchen, also with French doors giving access to a quite charming and relaxing rear garden. There is also a sizeable utility room off the kitchen. The lower ground floor also benefits from a guest cloakroom.

To the upper two floors are three further bedrooms. The first floor with two bedrooms (one with dual aspect) and a family bathroom and to the second floor is the master bedroom (dual aspect) and master bathroom and various fitted cupboards for storage.

With neutral decor throughout this is a fine family home whose position in Colebrook Row must be visited to be appreciated.

Properties rarely come up for sale in the Colebrook and Duncan Terrace conservation area and this is a uniquely located family home affording easy access to the ever popular Upper Street with its array of boutique stores, bakeries, coffee shops and restaurants. Angel Islington underground station is a short stroll whilst City Road allows a swift bicycle route into the City of London.

Agents notes: All measurements are approximate and for general guidance only and whilst every attempt has been made to ensure accuracy, they must not be relied on. The fixtures, fittings and appliances referred to have not been tested and therefore no guarantee can be given that they are in working order. Internal photographs are reproduced for general information and it must not be inferred that any item shown is included with the property. For a free valuation, contact the numbers listed on the brochure. Copyright © 2024 Fine & Country Ltd. Registered in England and Wales. Business Registered Name: Claremonts Fine and Country LTD Registered Address: 30 Penton Street, Islington, London, N1 9PS. Place of Registration: England and Wales. Company Registration Number: 12173247. Printed 19.06.2024 OIEO £2,200,000
Council Tax Band: G Tenure:
Freehold
Fine & Country Islington Tel: +44 20 7278 1710 islington@fineandcountry.com 30 Penton Street, Islington, London N1 9PS

Turn static files into dynamic content formats.

Create a flipbook
Issuu converts static files into: digital portfolios, online yearbooks, online catalogs, digital photo albums and more. Sign up and create your flipbook.