
Farm
Silver Street | Stevington | Bedford | Bedfordshire | MK43 7QW
![]()

Farm
Silver Street | Stevington | Bedford | Bedfordshire | MK43 7QW

Welcome to Ashmi Farm, an impressive equestrian estate that seamlessly blends luxury living with commercial potential.

Set on over 10 acres, this property features a 5-bedroom main house with a ground floor annex, 10 stables, and a 60m by 40m arena. Extensive commercial outbuildings and a thriving livery business offer significant rental income. With 16 solar panels, an EPC B rating, and no chain, this rare gem presents an exceptional investment opportunity for the discerning buyer seeking a countryside retreat with lucrative prospects.
Step into a luxurious ground floor adorned with high spec porcelain tiles throughout, ensuring a seamless and elegant aesthetic. The spacious entrance hall is bathed in natural light, highlighting the expansive interiors of this property, which is equipped with a full alarm system for added security. The kitchen features exquisite wooden work surfaces and patio doors that open to a serene decking area. This triple aspect kitchen also includes a hot tap and filter, perfect for modern living. The open plan lounge and dining room boasts a log burner, two sets of patio doors, and triple aspect views, creating a cozy yet spacious ambiance. Additionally, there is a utility room designed for white goods, a convenient lavatory, and a study with built-in wardrobes. The ground floor annex/bedroom suite is ideal for multigenerational living, Airbnb, or guest accommodations, offering a double bed, double aspect, patio doors leading outside, a separate lounge, and a shower room.











Indulge in the luxurious master suite, a true sanctuary bathed in natural light from five Velux windows, complete with a private ensuite bathroom. Privacy and comfort extend to the second double bedroom, boasting its own ensuite shower room. Two additional well-appointed bedrooms feature built-in wardrobes, sharing an exquisite Jack and Jill bathroom. This spa-like oasis is adorned with Velux windows, a rejuvenating shower, and a sumptuous spa bath, all enhanced by the comfort of underfloor heating. Every detail in these sleeping quarters has been thoughtfully designed to offer the perfect blend of functionality, luxury, and relaxation.








Nestled within a sprawling 10.31-acre estate, this property offers a world of possibilities for outdoor enthusiasts and entertainers alike. Security and privacy are ensured by elegant electric gates, welcoming you into a realm of luxury and convenience. Ample parking is thoughtfully arranged, with space for nine vehicles near the main residence and additional bays adjacent to the commercial units. Step out from the kitchen onto a stunning decked area, perfect for al fresco dining and soaking in the picturesque surroundings. For the ultimate in relaxation, retreat to the dedicated slab-paved space featuring a luxurious hot tub – an ideal spot for unwinding under the stars. The exterior’s practicality matches its beauty, with conveniently placed hot and cold water taps and multiple electrical outlets, ensuring you’re well-equipped for any outdoor pursuit or gathering.
The property also boasts significant equestrian facilities with a full livery income potential of a minimum of £4000 per month. It includes up to 10 stables, with eight currently in use, equipped with mains water and electricity. Five of the stables are oversized, with the remainder being standard size. Extensive storage facilities, a hot water shower, and a 20m by 60m arena cater to all equestrian needs, complemented by a variety of winter and summer paddocks.
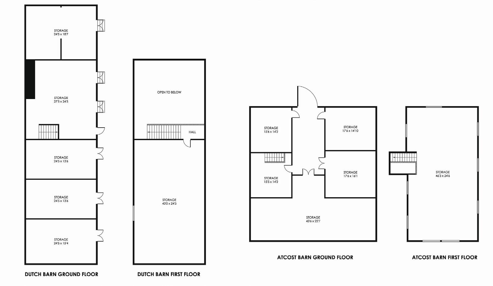
This estate also includes extensive commercial buildings and land, currently tenanted and generating a significant rental income of ~£7000 per month. Among these are several barns; the main barn measuring 40m by 20m and features a kitchenette, lavatory, and shower. Additionally, there is a refurbished and converted open Dutch barn with a mezzanine floor, plus a third barn, with both barns split into various units, providing versatile commercial opportunities.
Nestled in the charming village of Stevington along the picturesque River Great Ouse, this property enjoys direct access to numerous bridleways. Stevington is approximately 6 miles northwest of Bedford, home to the independent Harpur Trust Schools and rail services to St. Pancras International, with a swift 41-minute journey time. The village is part of the Lincroft Middle School, Lincroft Academy, and Sharnbrook Academy catchment area. Milton Keynes is a convenient half-hour drive away, and Cambridge is reachable within an hour. Stevington’s medieval church and numerous listed buildings add to the village’s historic charm.






Services, Utilities & Property Information
Utilities – Oil Central Heating, Mains Electricity & 16 Solar Panels with FIT, Mains Water, Septic Tank
Mobile Phone Coverage - 4G and 5G mobile signal is available in the area we advise you to check with your provider
Broadband Availability - Superfast Broadband Speed is available in the area, with predicted highest available download speed 32 Mbps and highest available upload speed 6 Mbps.
Tenure – Freehold
Directions – MK43 7QW
Local Authority: Bedford
Council Tax Band: F
Special Note
Equestrian occupancy condition. Commercial mortgage may be required and discount on Stamp Duty may be available.
Viewing Arrangements
Strictly via the vendors sole agents Fine & Country on Tel Number 01234 607999
Opening Hours:
Monday to Friday - 9.00 am - 5.30 pm
Saturday - 9.00 am - 4.30 pm
Sunday - By appointment only
Offers over £1,250,000








Agents notes: All measurements are approximate and for general guidance only and whilst every attempt has been made to ensure accuracy, they must not be relied on. The fixtures, fittings and appliances referred to have not been tested and therefore no guarantee can be given that they are in working order. Internal photographs are reproduced for general information and it must not be inferred that any item shown is included with the property. For a free valuation, contact the numbers listed on the brochure. Printed 25.07.2024

Fine & Country is a global network of estate agencies specialising in the marketing, sale and rental of luxury residential property. With offices in over 300 locations, spanning Europe, Australia, Africa and Asia, we combine widespread exposure of the international marketplace with the local expertise and knowledge of carefully selected independent property professionals.
Fine & Country appreciates the most exclusive properties require a more compelling, sophisticated and intelligent presentation – leading to a com mon, yet uniquely exercised and successful strategy emphasising the lifestyle qualities of the property.
This unique approach to luxury homes marketing delivers high quality, intelligent and creative concepts for property promotion combined with the latest technology and marketing techniques.
We understand moving home is one of the most important decisions you make; your home is both a financial and emotional investment. With Fine & Country you benefit from the local knowledge, experience, expertise and contacts of a well trained, educated and courteous team of professionals, working to make the sale or purchase of your property as stress free as possible.

Fine & Country Bedford 07810 805133
ben.perkins@fineandcountry.com
For over a decade, I’ve thoroughly enjoyed working in the property sector and have a wealth of knowledge in the Bedfordshire and London areas. I strive to maximise sale prices in the desired time frames, whilst keeping the process smooth and stress free. I achieve this by creating positive rapports, based on trust and care, and combined with my attention to detail, I am confident in producing exceptional results. Each house has special characteristics and its own story, so by instructing me, I would offer a world class bespoke marketing service, tailored to your unique property. At Fine & Country, we utilise all the latest technologies including only working with the best photographers and videographers. With access to a network of over 300 F&C locations across the UK and worldwide, this allows me to maximise the exposure of your property, creating strong buyer competition in order to drive the sale price up to its peak. I live in Bedford and have grown up in the Bedfordshire area. When I am not working, I love spending time with my family and dogs, walking at many great locations, my favourite being Rowney Warren Woods.
THE FINE & COUNTRY FOUNDATION
The production of these particulars has generated a £10 donation to the Fine & Country Foundation, charity no. 1160989, striving to relieve homelessness.
Visit fineandcountry.com/uk/foundation


