Ramsgate, Kent

Page 1

Walters Hall Farmhouse

47 Monkton Street | Monkton | Ramsgate | Kent | CT12 4JF

Step inside Walters Hall Farmhouse

The previous owners apparently took nine years to lovingly and sensitively renovate this outstanding Grade II Listed residence that dates back to the 16th century, creating a beautiful home set in 0.3781 of an acre. It includes stunning period features such as exposed ceiling and wall beams, inglenook fireplaces, oak flooring, latch doors and a bespoke oak staircase internally, while externally the historic brickwork, Dutch end gable, Kent peg tile roof, chimneystacks and multi-pane sash windows provide immediate appeal. At the same time the property has also been updated to incorporate everything needed for modern day living including high end fixtures and fittings such as lovely oak doors.

The property is partially hidden from the road and approached via solid wood gates and a gravel driveway flanked by large lawns and tree borders. It leads to the garage and a large forecourt where you can park a number of vehicles as well as to the front porch. The old inner front door is stunning and opens straight into a large and fabulous dual aspect open plan lounge/diner that has a plethora of exposed beams, oak parquet flooring, the oak staircase, an inglenook fireplace with a large log burner at the seating end and another fireplace with a Bressummer beam in the dining area as well as a storage cupboard.

There are doors each side of the inglenook with one opening into a cloakroom and the other leading to a well-designed bar/snug with a fitted brick and granite bar and another inglenook fireplace as well as French doors to the rear terrace. Stable doors access the contemporary kitchen that has flat fronted units with granite work tops housing two built in ovens, a griddle, fridge freezer and microwave as well as a peninsular with a five ring gas hob and extractor and a back door to the garden. The bespoke staircase carries on down to a reduced height basement that provides an excellent utility room with laundry facilities, storage and a large boiler room as well as an external door and steps up to the garden.

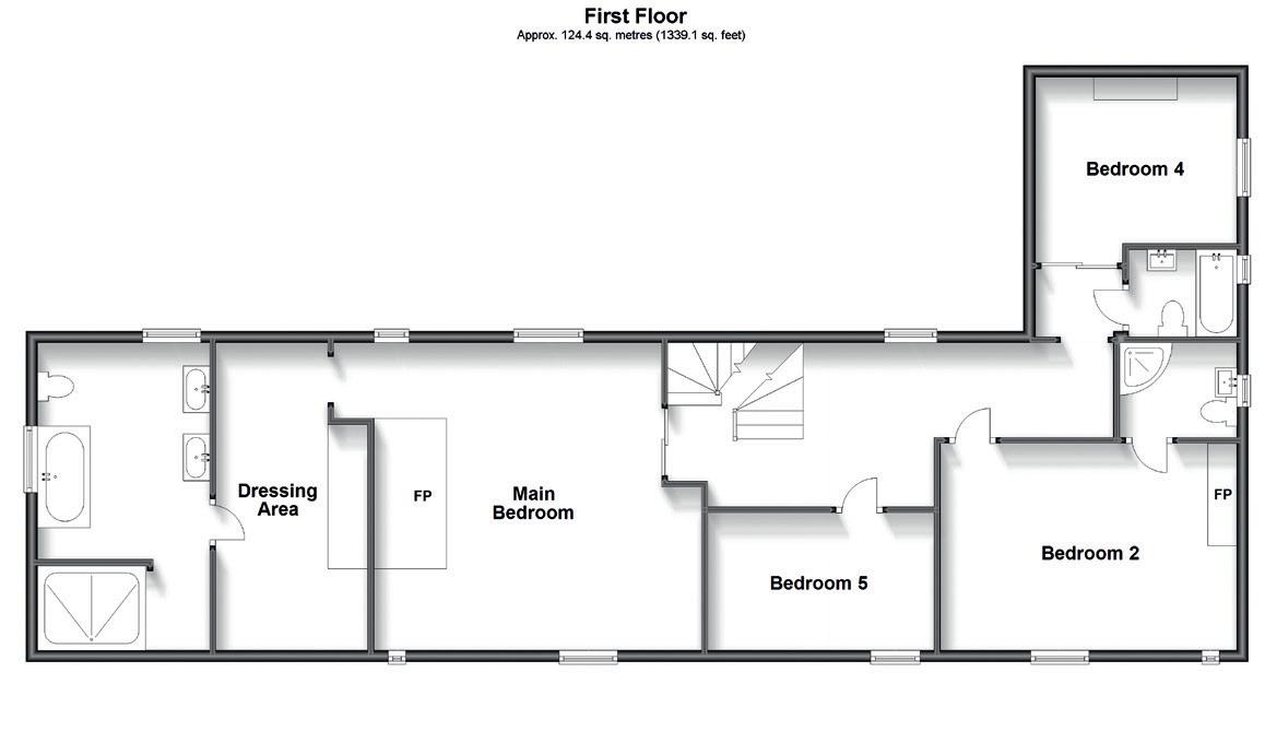
Upstairs there are four bedrooms on the first floor including one adjacent to the family bathroom, a guest double with an en suite shower, a single that makes an excellent nursery or study and the impressive main bedroom. This includes a fireplace, central beam and steps up to the dressing area and fabulous en suite bathroom with a Jacuzzi bath, wet room style shower and twin vanity basins. Carrying on up to the second floor you will find a vaulted ceiling double bedroom with exposed beams and an en suite bathroom as well as a vaulted ceiling loft room that also has exposed beams.

The rear garden is easy to look after and is mainly lawn with a large terrace and a hot tub for outdoor entertaining as well as a children’s play area and a large summerhouse with an additional patio. There is also a garden shed, log store, built in barbecue and greenhouse.

Seller Insight

We fell in love with the house as soon as we saw it and walked into the living room with its warm and friendly atmosphere. It is very quiet and peaceful yet it is only a minute’s walk to the White Stag pub if you want a drink or a meal out but don’t want to drive. We shall be sad to leave but we are relocating to be near our family.

Monkton (originally known as Monocstune or Monks town) is a delightful village with its old church and primary school within very easy walking distance. We are just a short stroll from the Monkton Nature Reserve, which is a 16 acre wildlife oasis providing a home for endangered flora and fauna in a reclaimed former chalk quarry and is an ideal spot to take the children as it has a wide variety of activities available.

Nearby Minster is a historic place with its Abbey and Church that was originally founded in 670AD and gives the village a wonderful, historic atmosphere. As well as a mainline station Minster has a range of shops, pubs and restaurants. There are also hair and beauty salons as well a veterinary practice, a dog groomer and doctor’s surgery. There is a great community spirit in the village that includes an amateur dramatic society, bowls group, Morris dancers and regular events in the village hall as well as a large playing field and recreation ground that hosts the annual Minster Show.

At the same time we are only a minute’s drive to the Thanet Way for access to London and Canterbury and the Sandwich Road for Dover and Folkestone are nearby, while the high speed train from nearby Minster will get you to Central London in under an hour and a quarter and this will be reduced even further with the arrival of the new Ramsgate Parkway station. It is only a short distance to the Westwood Cross shopping centre for a little retail therapy and for golfing enthusiasts there is the St Augustine’s Golf Club, Stonelees and the Manston Golf Centre as well as the renowned Championship courses at Sandwich.”*

* These comments are the personal views of the current owner and are included as an insight into life at the property. They have not been independently verified, should not be relied on without verification and do not necessarily reflect the views of the agent.

Travel Information By Road Minster Station 1.7 miles Ramsgate Station 6.9 miles Dover Docks 21.7 miles Channel Tunnel 29.7 miles Canterbury 10.9 miles Gatwick Airport 77.4 miles Charing Cross 72.1 miles By Train from Minster High Speed St Pancras 1hr 14mins Ashford International 34 mins London Charing Cross 1 hr 52 mins London Victoria 1hr 40mins Leisure Clubs & Facilities St Augustine Golf Club 01843 590333 Bannatynes Health Club 01843 600606 Stonelees Golf Centre 01843 823133 Manston Golf Centre 01843 590005 Ramsgate Croquet Club 01843 588878 Thanet Bowls Club, Ramsgate 01843 594804 Royal Temple Yacht Club 01843 591766 Healthcare Minster Surgery 01843 821333 Dr Adam Akyd & Partners 01843 595951 Dr M D Cardwell 0300 0427007 Summerhill Surgery 01843 591758 QEQM Hospital, Margate 01843 225544 Education Primary Schools: Monkton Primary 01843 821394 Minster Primary 01843 821384 Chilton Primary 01843 597695 Wellesley 01843 862991 St. Lawrence Junior 01843 587666 Secondary Schools: Chatham and Clarendon Grammar, Ramsgate 01843 591075 Dane Park, Grammar, Broadstairs 01843 864941 St. Lawrence College (Senior) 01843 587666 Entertainment Vue Cinema Complex and Casino 01843 579999 Theatre Royal, Margate 01843 293397 Sarah Thorne Theatre, Broadstairs 01843 863701 The New Inn 01843 826142 The Sands Hotel, Margate 01843 228228 Yarrow Hotel, Broadstairs 01843 460100 Local Attractions/Landmarks Monkton Nature Reserve 01843 822666 Dreamland Amusement Park 01843 295887 Quex Park Museum, Birchington 01843 842168 Turner Contemporary Gallery, Margate 01843 233000 Shell Grotto, Margate 01843 220008 Spitfire and Hurricane Memorial Museum 01843 821940 Hornby Visitor Centre, Westwood 01843 233524 Dickens House Museum, Broadstairs 01843 863453 Westwood Cross Shopping Centre Pegwell Nature Reserve

GROUND FLOOR Porch Lounge/Diner

£1,200,000

Council Tax Band: G Tenure: Freehold

Agents notes: All measurements are approximate and for general guidance only and whilst every attempt has been made to ensure accuracy, they must not be relied on. The fixtures, fittings and appliances referred to have not been tested and therefore no guarantee can be given that they are in working order. Internal photographs are reproduced for general information and it must not be inferred that any item shown is included with the property. For a free valuation, contact the numbers listed on the brochure. Copyright © 2023 Fine & Country Ltd. Registered in England and Wales. Company Reg. No. 2597969. Registered office address: St Leonard’s House, North Street, Horsham, West Sussex. RH12 1RJ. Printed 14.06.2023

LOWER

SECOND FLOOR

OUTSIDE

OUTBUILDING

46’1 x 16’3 (14.06m
4.96m)
22’0 x 16’3 (6.71m x 4.96m)
14’8 x 11’10 (4.47m x 3.61m)
x
Bar/Snug
Kitchen
Cloakroom
GROUND FLOOR Utility Room 17’6 x 14’10 (5.34m x 4.52m)
Room
Boiler
Landing Main Bedroom 18’6 x 16’3 (5.64m x 4.96m)
Area En Suite Bath/Shower Room
2 15’6 x 11’8 (4.73m x 3.56m)
Suite Shower Room
4 11’10 x 11’3 (3.61m x 3.43m)
Bedroom 5 12’10 x 7’9 (3.91m x 2.36m)
FIRST FLOOR
Dressing
Bedroom
En
Bedroom
Bathroom
Landing Bedroom 3 15’8 x 11’0 (4.78m x 3.36m)
Suite Bathroom Loft Room 24’3 x 16’3 (7.40m x 4.96m)
En
Rear Garden Side Garden Front Garden
Driveway
Gated
Garage 22’6 x 10’2 (6.86m x 3.10m)
Fine & Country Tel: 01227 479 317 canterbury@fineandcountry.com 23 Watling Street, Canterbury, Kent CT1 2UA

Turn static files into dynamic content formats.

Create a flipbook
Issuu converts static files into: digital portfolios, online yearbooks, online catalogs, digital photo albums and more. Sign up and create your flipbook.
Ramsgate, Kent by Fine & Country - Issuu