
18 Queens Drive
Whitley Bay | Tyne and Wear | NE26 2JU
![]()

18 Queens Drive
Whitley Bay | Tyne and Wear | NE26 2JU

18 Queens Drive is situated in the charming coastal town of Whitley Bay, a place known for its relaxed atmosphere, stunning sandy beaches, and scenic promenade. Whether you’re enjoying a stroll by the sea or visiting the iconic Spanish City, Whitley Bay offers the perfect blend of tranquillity and activity for families and young professionals alike. With excellent transport links to Newcastle City Centre by car or metro, it’s an ideal escape from the hustle and bustle while still keeping you connected.
The property is located on a beautiful tree-lined road, just steps from the vibrant and award winning Park View high street, home to an excellent variety of cafes, restaurants, independent shops and boutiques. And of course, the beach is just a short ten minute walk away.
If you’re looking for a wonderful family home which still retains beautiful period features, in a prime location, just a short stroll away from the high street, and the beach, 18 Queens Drive might just be your dream home.
Accommodation in brief:
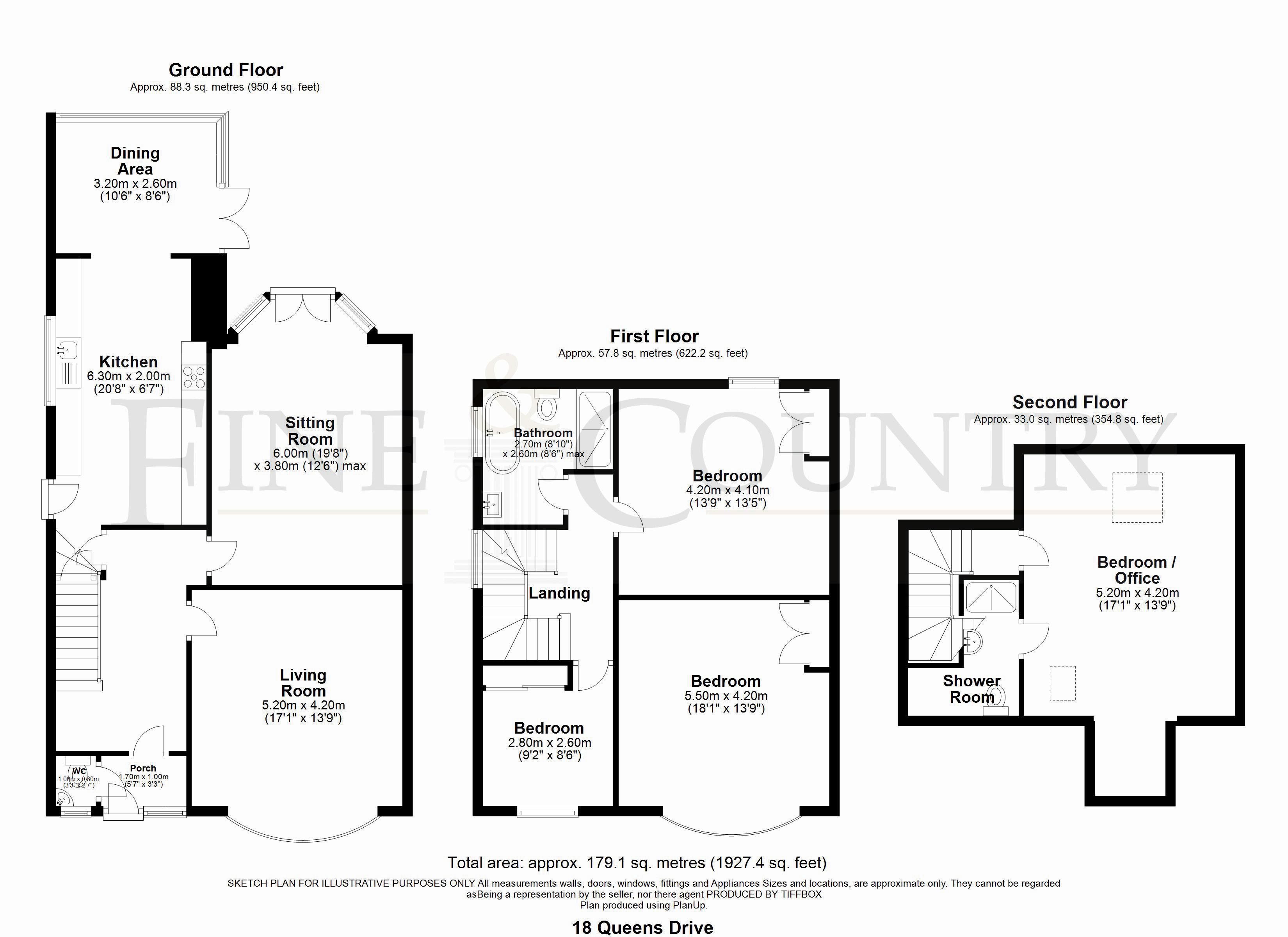
Ground Floor:
Porch | Entrance Hall | Living Room | Sitting Room | Kitchen/Dining Room | WC
First Floor:
Two Double Bedrooms | Single Bedroom | Family Bathroom
Second Floor: Fourth Bedroom with En-Suite Shower Room
Outside: Rear Garden

Accommodation:
Ground Floor:
Step through the stunning stained glass front door into a welcoming porch, complete with a convenient WC. The spacious entrance hall impresses with its period features and generous proportions. The bright and airy living room boasts a charming bay window adorned with stained glass and an original fireplace. The sitting room, with its garden views and woodburning stove, offers the perfect retreat. The kitchen/ dining room, filled with natural light provides ample space for family meals. The kitchen features cream fitted cabinetry, an American-style fridge/freezer, and a range cooker. The dining area opens out to the lovely rear garden, ideal for both family living and entertaining.
First Floor:
As you ascend the staircase, you’ll notice a stunning stained glass window that floods the landing with natural light. The principal bedroom, located at the front of the property, boasts a large bay window and an original fireplace, adding to its charm. Overlooking the garden, the second double bedroom is equally delightful, also featuring an original fireplace. A single bedroom and a recently renovated family bathroom, boasting a freestanding roll-top bath and separate shower, complete the first floor accommodation.
Second Floor:
A further double bedroom with an en-suite shower room is located on this floor, currently being used as a home office and gym. Additionally, there is convenient eaves storage.




















External:
The charming rear garden is primarily laid to lawn, with a patio area ideal for alfresco dining during the summer months. It can be accessed through the kitchen/dining room or via a convenient side path from the front of the property. The garden also includes a shed for additional storage.
Location:
Situated in a prime location near the high street and the beach, Queens Drive is a peaceful, tree-lined street ideal for family living. The area boasts excellent schools, shops, and restaurants, making this property a must-see. Whitley Bay is just 25 minutes from Newcastle City Centre and 30 minutes from Newcastle Airport, making it a highly desirable spot for both families and young professionals seeking a balance of coastal living with city access.
Distances: Newcastle City Centre – 11 miles
Nearest Stations: Monkseaton Metro Station – 0.3 miles | Newcastle Central Station - 11 miles
Nearest Airport: Newcastle International Airport – 14 miles




Sarah Tuer Limited T/A Fine & Country Newcastle and Northumberland. Registered in England and Wales.
Company Registration No: 13845010 Registered Office: Eva Lett House, 1 South Crescent, Ripon, HG4 1SN
copyright © 2024 Fine & Country Ltd.
Services:
Mains Water Supply | Mains Electricity | Mains Drainage | Gas Central Heating
These services have not been tested and no warranty is given by the agents.
Tenure: Freehold
Local Authority: North Tyneside Council - D
EPC Rating: E
Phone Provider: Virgin Media
Mobile signal: all major networks
Broadband provider: Virgin Media Volt 264 Mbps download speed available. Currently 27.9 upload speed and 275 Mbps download
Viewing Arrangements:
Via the vendors’ agent: Sophie Luhr - Fine & Country Newcastle and Northumberland
The Estate Office, Rock, Alnwick, NE66 3SB
Tel: 01665 200080
Email: newcastle@fineandcountry.com
Agents Notes to Purchaser:
Although we endeavour to furnish precise information, it is strongly recommended that buyers undertake their own thorough due diligence. The onus for verifying critical details, including but not limited to floods, easements, covenants, and other property-related aspects, lies with the buyer. Our listing information is presented to the best of our knowledge and should not be the sole basis for making purchasing decisions. None of the services, systems, or appliances listed in the details have been tested by us, and we do not assure their operating ability or efficiency. Buyers are encouraged to independently assess and verify all relevant information before making any commitments.



Agents notes: All measurements are approximate and for general guidance only and whilst every attempt has been made to ensure accuracy, they must not be relied on. The fixtures, fittings and appliances referred to have not been tested and therefore no guarantee can be given that they are in working order. Internal photographs are reproduced for general information and it must not be inferred that any item shown is included with the property. For a free valuation, contact the numbers listed on the brochure. Printed 18.09.2024


Fine & Country is a global network of estate agencies specialising in the marketing, sale and rental of luxury residential property. With offices in over 300 locations, spanning Europe, Australia, Africa and Asia, we combine widespread exposure of the international marketplace with the local expertise and knowledge of carefully selected independent property professionals.
Fine & Country appreciates the most exclusive properties require a more compelling, sophisticated and intelligent presentation –leading to a common, yet uniquely exercised and successful strategy emphasising the lifestyle qualities of the property.
This unique approach to luxury homes marketing delivers high quality, intelligent and creative concepts for property promotion combined with the latest technology and marketing techniques.
We understand moving home is one of the most important decisions you make; your home is both a financial and emotional investment. With Fine & Country you benefit from the local knowledge, experience, expertise and contacts of a well trained, educated and courteous team of professionals, working to make the sale or purchase of your property as stress free as possible.