RIOJA ARQUITECTOS FRAGMENTOS Nº13 2025

Page 1


Octubre 2025
Revista del Colegio Oficial de Arquitectos de la Rioja

Edita: Colegio Oficial de Arquitectos de La Rioja

Barriocepo 40, 26001 Logroño, La Rioja www.coar.es

941 22 01 08 cultura@coar.es

© COAR 2025

© de los textos: sus respectivos autores

© de las imágenes: sus respectivos autores

Imagen de portada: Emoji cebra

Coordinación y Edición: Javier Peña

Diseño y maquetación: Estudio Casao–Terrazas

Depósito legal: LR 411-2021

Imprime:

Editorial MIC

902 271 902 www.editorialmic.com

Reservados todos los derechos. La reproducción total o parcial de esta publicación, su transmisión en cualquier forma o por cualquier medio o procedimiento, ya sea electrónico o mecánico, incluidas las fotocopias, la grabación o la incorporación a un sistema informático de almacenamiento y recuperación, y la distribución de ejemplares del mismo mediante alquiler o préstamos públicos no están permitidos sin la autorización previa del Colegio de Arquitectos de La Rioja (COAR).

TEXTUAL

Derecho al espacio

LAS JOYAS DE NUESTRO ARCHIVO HISTÓRICO

Tratado completo, teórico y práctico, de arquitectura y construcción moderna 4

ARQUITECTURA INDUSTRIAL Y SUS DETALLES — CAPÍTULO II ...y se hizo la luz

REPORTAJE

Siempre que visito el Templo de Santiago Apóstol en La Unión... (en recuerdo a Gerardo Cuadra)

OPINIÓN

Bloque Cebra, y la fracturación de la práctica de la arquitectura en España

8

EDIFICIO INVITADO

Edificio 60 viviendas / Plan parcial El Cubo / Calle Blanco Lac 4 – 8 / Logroño

REPORTAJE

Reflexiones en torno al documental «ELLAS EN LA CIUDAD»

12

ENTREVISTA

Al artista y comisario Jon Gorospe

18

OPINIÓN

Construcción: vida / Destrucción: (?)

Derecho al espacio

A veces suceden esas coincidencias extrañas en las que un pensamiento al que se le da vueltas durante un tiempo se cruza con las palabras de un autor que se lee por casualidad, y algo de sentido parece alumbrar aquel pensamiento que gira entre tantos otros.

Podríamos decir que el bien más escaso de esta época es el espacio. Para personas de treinta y tantos, con salarios promedio y vidas promedio, acceder a una vivienda es difícil, pero eventualmente uno consigue encontrar un sitio mínimamente digno para llevar el día a día. Lo que es más difícil —si no imposible— es acceder a un sitio que mida más de cincuenta metros cuadrados.

Es decir: por más nueva que sea la construcción, por más bonita que se vea, por mejor ubicada que esté, casi nunca dispone de más de una o dos habitaciones. Ni hablemos de las terrazas minúsculas y la cocina americana donde apenas cabe un pequeño hornillo.

Casi sin darnos cuenta, las tiendas que se ocupan de equipar nuestras casas producen cada vez más objetos plegables, desmontables, dos en uno, etc. Esto no quiere decir que sean objetos poco apetecibles. Por el contrario, muchos de ellos provienen de un diseño cuidado y pensado especialmente. A través de esta suplencia del espacio por los objetos, muchas veces nos contentamos con aceptar un sitio pequeño, pero bien surtido —lo que resulta preocupante.

Claro que hay alternativas, como compartir piso —aunque en el fondo no quieras hacerlo—, ir a vivir a los alrededores de las grandes ciudades o quedarte con tus padres, si es que esa es una posibilidad. Pero, realmente, estas soluciones son parches provisionales para una crisis que nos toca desde muchos ángulos: la escasez de espacio —dentro y fuera de casa—, que alguna vez fue gratuito y estuvo disponible para todos.

Leyendo una reedición de La sociedad de consumo que ha publicado Siglo XXI Editores, encontramos este mismo cuestionamiento, por supuesto mejor elaborado y enormemente fundamentado. Dentro del apartado Las nuevas segregaciones, Jean Baudrillard explica:

«Hoy, los objetos tienen menos importancia que el espacio y que la marcación social de los espacios. Posiblemente el hábitat constituya así una función inversa de los demás objetos de consumo. Función homogeneizante de unos, función discriminante del otro, bajo las relaciones de espacio y de localización.»

Y unas líneas más adelante agrega:

«[...] sólo hay derecho al espacio a partir del momento en que ya no hay espacio para todos y a partir del momento en que el espacio y el silencio son privilegio de algunos a expensas de los otros. Del mismo modo en que sólo hubo «derecho a la propiedad» a partir del momento en que ya no hubo tierras para todos, no hubo derecho al trabajo hasta que el trabajo llegó a ser, en el marco de la división del trabajo, una mercancía intercam-

Textual pretende ser un espacio colectivo dedicado a la reflexión en torno a la arquitectura. Es un proyecto gestado en Barcelona en el año 2020 y que, actualmente, está integrado por María Beni Ezquerro, Candela Botta, Agustina Coulleri y Paco Fernández. Arquitectos de profesión, comparten el entendimiento de la disciplina como compendio de prácticas heterogéneas que basculan entre la investigación, la crítica y la construcción. Haciendo uso de plataformas donde normalmente prevalece el contenido visual, Textual publica semanalmente textos sobre temas tangentes a la ciudad, al paisaje, a la arquitectura y a todo aquello que, puntualmente, se le parece. Podríamos decir que nace como una tentativa de resistencia

biable, es decir, cuando dejó de pertenecerle propiamente a los individuos.

La aparición de estos nuevos derechos sociales, agitados como eslóganes, como exhibición democrática de la sociedad de la abundancia es pues sintomática del paso de los elementos en cuestión al rango de signos distintivos y de privilegios de clase (o de casta). El «derecho al aire puro» significa la pérdida del aire puro como bien natural, implica su paso a la condición de mercancía y su desigual distribución social.»

Lo que resulta más inquietante —sobre todo después de coincidir con la cita de Baudrillard— es que hablamos del «derecho al espacio» justo cuando ese espacio ya no está disponible para todos. Como si nombrarlo bastara para compensar su ausencia. Pero no solo escasea el espacio: también se nos vuelve ajeno el tiempo libre, la posibilidad de decidir a dónde ir o cuándo descansar, el tiempo para detenernos y pensar. Nos acostumbramos a movernos en unos pocos metros, a ajustar los muebles y a vivir con el tiempo y el espacio justos. Y, probablemente, también terminemos por aceptar que no tenemos margen para elegir mucho más. Tal vez por eso no solo vivimos en menos metros cuadrados, sino también en vidas cada vez más estrechas.

que propicie un pensamiento textual, y pausado, frente al contexto visual, y superficial, en el que vivimos inmersos.

Textual es un proyecto plural y su objetivo es el de construir una colección a partir de la acumulación coherente de lo producido. Cada integrante asume el rol de autor, pero también el de editor de otros autores invitados. Pretendemos aunar miradas, tonos y personalidades distintas en un mismo espacio, propiciando la discusión sobre ciertos argumentos no predefinidos. En este nuevo ciclo de la revista Fragmentos, compartiremos algunas reflexiones vinculadas a la vivienda, al espacio doméstico y a todo aquello que podamos relacionar con la casa.

Creemos firmemente que una casa es una actividad, no un lugar, una perspectiva que va más allá de la concepción física de la casa como construcción y que abarca también el afecto, la experimentación a través de las acciones y las relaciones de sus habitantes. En momentos de incertidumbre e injusticia habitacional, resulta oportuno reflexionar acerca de esos espacios tan extraordinariamente ordinarios en lo que vivimos. La casa, además, es un tema sobre el que todos tenemos una opinión y un debate del que necesariamente todos podemos y debemos participar.

Protesta por el derecho a la vivienda en Lisboa (Portugal), dentro de las marchas de la plataforma Casa Para Viver.
Foto: Tomas Silva, para El Observador

Tratado completo, teórico y práctico, de arquitectura y modernaconstrucción

No es la primera vez que, en «Fragmentos», compartimos información sobre los diferentes tipos de documentación que se albergan en el Archivo Histórico del COAR, en el que predominan planos y memorias, originales o copias, que formaban parte de los proyectos redactados por quienes nos preceden. En su día, ya hicimos mención de las revistas especializadas,

«esas publicaciones que servían a los profesionales riojanos de la arquitectura, incluso hace más de un siglo, para abrir una ventana al mundo y conocer cómo evolucionaba el oficio en otros países, especialmente europeos y americanos», que forman parte del legado de Fermín Álamo.

Hoy haremos referencia a otro tipo de publicación, presumiblemente con el mismo origen; concretamente, un compendio de información: el Tratado completo teórico y práctico de arquitectura y construcción modernas, elaborado por el arquitecto Domingo Sugrañes Gras (1878-1938), editado en el año 1916 por Marcelino Bordoy en Barcelona y Buenos Aires. Aunque lamentablemente no disponemos de dicho tratado en su configuración original, es decir, organizado en tres volúmenes encuadernados en holandesa, (con lomeras de piel, gofrados en el lomo, estampados dorados y portadas independientes en tela, tal y como se encuentran en la Biblioteca Nacional), sí que conservamos, seguramente tal y como llegó en su día al COAR, su contenido total, pero agrupado en un único volumen sin tapas, que muestra un interesante texto técnico y descriptivo, acompañado de numerosas láminas, en blanco y negro y también en color, divididas en tres grupos, con notas e índices previos.

Tal y como se promocionaba en la época, hace más de cien años, se trata de una «Obra dedicada exclusivamente a cuantos en las obras intervienen y con preferencia a los arquitectos, contratistas, constructores, capataces, albañiles, etc., etc. Altamente práctica y compuesta en vista de las mejores publicaciones, tanto nacionales como extranjeras» . En ese sentido, el primer volumen es el dedicado al texto, dividido a su vez en tres partes, que comprende construcción, arquitectura, proyectos y concretamente fachadas. Los otros dos volúmenes se corresponden con las láminas que ilustran cada una de estas tres partes, 153 láminas que representando edificios residenciales, planos de planta de distribución, fachadas, estructuras, así como técnicas de albañilería, elementos y materiales de construcción, con indicación de resistencias, industrias auxiliares para su producción, etc

En este artículo que nos ocupa, destacamos precisamente una lámina dedicada a un posible modelo de

chalet, lámina que muestra una delicada volumetría en color, acompañada de una pequeña planta de referencia a escala, así como otra lámina con varios detalles en alzado y perspectiva de la fachada de un edificio residencial, resuelta también en color, donde se aprecian las cuidadosas soluciones constructivas de las carpinterías de madera, las cornisas, barandillas de forja, balaustradas, vuelos moldurados, ménsulas... un hermoso ejemplo del paso de la teoría a la práctica dado por alguien que conocía perfectamente el oficio, en este caso, efectivamente, un arquitecto, que sabía de lo que hablaba y dibujaba, con exactitud, lo que conocía.

Domingo Sugrañes, nació en Reus y tituló como arquitecto en Barcelona. Para pagarse los estudios, trabajó como ayudante de diversos profesionales ya consolidados entonces, como el también arquitecto Bautista Pons quien, cosas del destino, diseñó y construyó en 1907 el edificio de la Editorial Marcelino Bordoy, de estilo modernista, precisamente el inmue-

ble en donde años más tarde, se publicaría su tratado de arquitectura. Además de su actividad como proyectista y director de obra, Sugrañes fue también profesor, y allá por el año 1914, se convirtió en la mano derecha de Antonio Gaudí, también reusense, colaborando en las casas Batlló y Milá, de modo que, al fallecer su maestro en 1926, se hizo cargo de las obras de la Sagrada Familia, donde terminó la fachada del Nacimiento, hasta que estalló la Guerra Civil española. También fue varios años arquitecto municipal de Mollet del Vallés, y el conjunto de su trayectoria profesional fue claro reflejo del modernismo y el novecentismo, reconocible en numerosos edificios de vivienda proyectados y construidos en Barcelona, así como en varios chalets en Salou y Cambrils; A propósito, chalet, o chalé, es una palabra que proviene de la Suiza francoparlante, donde significaba en realidad «lugar protegido» o «cabaña de pastor», concepto que, obviamente, se ha transformado profundamente con el tiempo.

En definitiva, hablamos hoy de un tratado de arquitectura de principios del siglo XX, escrito y dibujado por un arquitecto desde el conocimiento profundo del oficio, que conservamos y custodiamos como especial compromiso. Tal y como Antonio Bonet Correa (1925-2020), historiador del arte de referencia en España, pronunció en una Conferencia impartida con motivo de las Jornadas ABBA (Bibliotecas y Bibliotecarios de Arquitectura, Construcción y Urbanismo) organizadas por la Biblioteca del COAM en octubre de 2002, somos conscientes de que :

«Ese repertorio de formas es como un muestrario, una varia, y ese lado yo creo que es el que domina, a pesar de todo, la construcción, el arte de edificar, la práctica. Después de la Enciclopedia francesa, el propio Novalis escribe unas notas que fueron publicadas. Novalis, que es un poeta romántico, prerromántico mejor, en esas notas para la Enciclopedia se hace una pregunta, un interrogante al hablar de la arquitectura, y dice: «¿Las definiciones técnicas y las formas de construcción son recetas?» Porque una de las cosas que tienen los tratados es que eran recetas. Y nada menos que un prerromántico, cuando ya la arquitectura es verdaderamente expresión, cuando apa-

recen el historicismo y el eclecticismo, se pregunta si son recetas. Lo que sí podemos decir es que los tratados constituyen todo un mundo, un mundo apasionante del que he intentado dar una visión somera, apasionante para muchas personas que aman esos libros y que se apasionan por ellos. Y pido que todas las personas que están aquí cuiden de las bibliotecas con tanto amor como lo hicieron los tratadistas, para transmitir un saber que viene desde la antigüedad y que todavía tiene una vigencia y un interés para todos nosotros».

Bloque Cebra, y la fracturación de la práctica de laenarquitectura España

OPINIÓN

Desde hace varios años, las ciudades de España se han llenado de edificios de franjas negras y blancas que han definido la estética de nuestro entorno. Un fenómeno transversal, ajeno a cualquier contexto geográfico y social. Hay cebras en Bilbao, y hay cebras en Almería, en las Islas Canarias y en el Pirineo. Poco a poco, estos edificios han ido estableciendo el imaginario colectivo de la sociedad española sobre la vivienda, definiendo las aspiraciones domésticas, y suplantando la calidad arquitectónica por valores puramente de mercado.

Durante todos estos años, cabe preguntarse ¿dónde hemos estado los arquitectos? La profesión de la arquitectura en España se ha fragmentado en dos; por un lado, los arquitectos que han mantenido una visión más humanista de la profesión se han enclaustrado en su propio nicho; el de la arquitectura presentada para arquitectos. Por otro lado, otros despachos de arquitectura —muchas veces los más grandes de sus provincias— con una visión más empresarial, se han encargado de dar respuesta a las demandas mercantilistas de la promoción inmobiliaria, adecuándose a sus estándares y tramitando bloques by default. Lo que hemos denominado, desde nuestro nicho, una arquitectura más comercial.

La brecha es hoy tan grande que ambos sectores de la profesión se ignoran y coexisten de una forma independiente como si el otro no existiera. Casi entendidas como dos disciplinas distintas, muchos de los valores arquitectónicos han dejado de formar parte del discurso de la promoción privada, fundamentos irrelevantes a la hora de tramitar estos bloques de viviendas, y percibidos como caprichos e incordios dentro de su exitosa fórmula financiera. A su vez, los arquitectos «nicho» hemos abandonado nuestra responsabilidad y posición como agentes sociales en el discurso popular de la arquitectura. A día de hoy, la cebra, pese a ser la manifestación arquitectónica que más ha definido nuestra identidad urbana contemporánea, sigue sin formar parte del discurso de la arquitectura y la ciudad.

Entre los diferentes objetivos que persigue el colectivo de arquitectos @bloque cebra, cuya cuenta de Instagram ha atraído en los últimos meses el interés de diversos medios de comunicación, despachos de arquitectura y ciudadanos en general, destaca la intención de recuperar la figura del arquitecto como agente social en España. Mediante un activismo visual, accesible y satírico, la cuenta busca generar por un lado una conciencia ciudadana que potencialmente se traduzca en una demanda

distinta hacia estos tipos de construcciones. Y por otro, funcionar como herramienta de presión sobre los agentes responsables en el manejo y planificación de nuestro entorno construido. De una manera gráfica y directa, exponemos la disfuncionalidad del sistema actual.

Existe en psicología un fenómeno denominado el síndrome de la rana hervida lentamente, que establece cómo los cambios que van introduciéndose poco a poco no son fáciles de percibir por el ciudadano o, en este caso, incluso por los propios arquitectos, que somos capaces de ir normalizando estos daños con gran rapidez. Esta inconsciencia sobre el impacto territorial que la propagación de los bloques cebra está teniendo en España, ha generado que no haya habido reacciones en contra que puedan revertir este fenómeno. Que los arquitectos «comerciales» se acomoden en un sistema instrumentalizado donde la promotora establece en la mayoría de los casos los parámetros arquitectónicos del proyecto. Y que los arquitectos «de nicho» busquen otros espacios de mercado donde es posible ejercer la profesión, como la rehabilitación, las reformas o los concursos de obra pública, donde la intención conceptual o una mínima ambición por parte del cliente hacen que se genere arquitectura de calidad. Es precisamente en estos escenarios donde la práctica española es capaz de destacar en el panorama internacional.

Sin embargo, el impacto real que estas intervenciones tienen en la definición de nuestras ciudades es escaso, sobre todo si lo comparamos con el de la promoción inmobiliaria privada, que paulatinamente ha ido desplazando las identidades particulares de cada lugar, generando barrios completamente disfuncionales. Y lo que resulta aún más preocupante: la sociedad vive conforme a estos estándares impuestos, en los que son las promotoras quienes han definido los valores a partir de los cuales se juzga la calidad arquitectónica de una vivienda. Así, bajo un paraguas de medias verdades, se priorizan certificaciones energéticas, sistemas de instalaciones más o menos complejos, materiales plásticos fáciles de limpiar y que aparentan ser lo que no son, disponer de una piscina comunitaria, una pista de pádel y varias plazas de aparcamiento; elementos fácilmente reconocibles que se asocian de manera engañosa con la modernidad y el estatus.

El término comercial, sin embargo, que muchas veces utilizamos de forma peyorativa para referirnos a este tipo de arquitectura, no tiene por qué ser negativo. Todo lo contrario: ser comercial implica también ser capaces de conectar con la sociedad, y esa es una labor fundamental que muchos hemos olvidado. En nuestro propio nicho profesional, a menudo percibido desde fuera como casi endogámico, solemos recurrir a lenguajes y canales para comunicar ideas que resultan inaccesibles para la mayoría de la sociedad, y comprensibles únicamente por otros colegas de profesión. Lo mismo sucede con nuestras publicaciones, premios y reconocimientos.

A través de la recopilación de un archivo visual y un lenguaje accesible, @bloque cebra busca recuperar esa conciencia —romper este síndrome ya endémico en nuestro país— mostrando, en conjunto y de golpe, el efecto que la promoción inmobiliaria materializada en el bloque cebra ha tenido y tiene en el conjunto del territorio. Nos gustaría remarcar entre nuestros compañeros de profesión la importancia de recuperar la labor divulgativa del arquitecto, y encontrar nuevos canales para llegar a la sociedad. Romper esa brecha, entre la arquitectura de mercado y la arquitectura para arquitectos. Una labor en la cual, los colegios de arquitectos tienen un papel fundamental.

Todo empieza dando nombre a este fenómeno arquitectónico; el bloque cebra. Simplemente así, podemos comenzar a identificar un sistema que define las ciudades que transitamos todos los días, pero que quizá, por no prestarle la suficiente atención, ha pasado desapercibido a nuestra mirada.

¿Puede este debate extrapolarse e intervenir en las instituciones de gobernanza urbana? Nosotros pensamos que sí, y qué ha llegado la hora de cuestionar los sistemas actuales de planeamiento y desarrollo urbano, así como el funcionamiento de las instituciones locales en su labor y responsabilidad de garantizar un entorno digno y de calidad. También nuestra labor como profesionales: no solo de establecer estándares que cumplan con lo que la sociedad merece, sino también saber cómo comunicarlo, de modo que la sensibilidad hacia la arquitectura y el entorno construido no sea solo una cuestión de arquitectos, sino que pueda extrapolarse a toda la sociedad y entenderse como un bien de interés público.

Que no te vendan la moto, esto no es vanguardia, esto son cebras.

REPORTAJE: REYES GALLEGOS

Reflexiones en torno al documental «ELLAS EN LA CIUDAD»

Iba a comenzar este artículo escribiendo sobre la investigación que comencé a realizar hace ahora cinco años sobre «Ciudad, clase y género», que finalmente me llevó a dirigir el documental «Ellas en la ciudad» Iba a comenzar describiendo el papel tan primordial que ha tenido la mujer en la construcción del espacio: desde

gestionar un organismo habitacional como es su propio cuerpo, a los ámbitos de la vida cotidiana. Porque la ciudad no es sólo la que se construye físicamente, sino, y sobre todo, la que se sostiene, se usa, se transforma, se cuida y se mantiene viva.

Cartel del documental: Ellas en la ciudad.
Diseño de la empresa: María la cartelera

Sin embargo, con la organización productiva y androcéntrica del trabajo en pleno desarrollismo, y la creación masiva de barrios periféricos, la ciudad creció completamente de espaldas a la mujer. Junto a las miles de viviendas se construyeron grandes carreteras para que el hombre llegara en coche cuanto antes a las fábricas. Con ello vinieron las largas distancias y la zonificación de las ciudades. Las funciones vitales —los cuidados, la cultura o la socialización—, y el resto de las personas que vivían en los barrios —menores, ancianos y mujeres— quedaron completamente olvidadas en esa planificación.

A partir de aquí pensé que resultaría más interesante escribir sobre cómo este trabajo de investigación sobre los barrios construidos en los años 70 en la periferia de mi ciudad, concretamente en los barrios de La Oliva, San Pablo, San Diego o Alcosa, y el trabajo de campo que decidí hacer a diario y presencialmente en ellos —yo provengo del ámbito profesional del urbanismo y la participación ciudadana—, me llevó a fotografiar y conocer personalmente a toda esa generación de mujeres que los pobló, que estrenaron los pisos con la ilusión de vivir en una ciudad moderna, y que se sintieron muy pronto decepcionadas. Primero, porque no existían los espacios públicos y equipamientos que prometían las maquetas publicitarias. Segundo, por la sensación de desarraigo, desubicación y aislamiento en bloques y pisos idénticos sin conexiones de ningún tipo, que nada tenían que ver con la arquitectura y los modos de vida de donde venían. Las mujeres tenían que atravesar kilómetros a pie —cargando con niños pequeños y atravesando descampados, carreteras o vías del tren— para ir a un mercado de abastos o al médico. Dejaron de tener autonomía no sólo de movilidad (sin carnet de conducir ni transporte público), sino también económica, ya que en el momento en el que tenían hijos, la gran mayoría tenía que abandonar sus trabajos, bien porque a los maridos no les dejaban o a las empresas no les interesaba que lo compatibilizaran con la maternidad. Las pocas que lo intentaron, aún recayendo en ellas todo el trabajo de los cuidados, no lograban hacer compatibles los horarios con las distancias y los tiempos que para ellas eran mucho mayores. «Me sentí devaluada, como que ya valía menos». «Era incapaz de pedirle dinero a mi marido». Me contaba una de ellas.

Finalmente decidí centrarme en el descubrimiento que tuve: y es que ante la necesidad, y con la ayuda de los centros de adultos, se empezaron a organizar para llevar a cabo unas movilizaciones por los servicios tan básicos como agua potable, Farmacia, colegio, autobús, mercado o centro de Salud. Lo que más me sorprendió fue que la misma historia me la contaban todos los grupos de mujeres, en todos los barrios que visitaba. Historias paralelas de mujeres de la misma generación y barrios diferentes cuya existencia desconocían unas de las otras, y a las que ni ellas mismas —ni su entorno— le habían dado importancia que tienen.

Desde ese hallazgo, han devenido muchas decisiones: la posibilidad de darle formato audiovisual y dirigir un largometraje documental, comenzar un proceso de documentación y búsqueda de archivo, pensar en el planteamiento de un posible rodaje, presupuestarlo, buscar financiación, pensar en un equipo solvente que se adaptara a los recursos, concretar localizaciones, entrevistar y seleccionar protagonistas... muchas dificultades encontradas para una directora novel como yo, que superaban (como arquitecta, urbanista, docente y madre), además de por la necesidad de mejorar la comunicación de la disciplina urbanística, con estas dos motivaciones principales:

Imagen del archivo de Alberto Vargas, Arquitecto. Sevilla.

1. Una, es la de contar un relato de la ciudad que injustamente no se ha contado y que no sólo afecta a las mujeres de la periferia de mi ciudad, sino que conforme me iba documentando, afectaba a todas las mujeres de esta generación que (en estos años de una transición que a ellas no les llegó) se fueron ido a vivir a los miles y miles de viviendas en todas las periferias de TODA ESPAÑA. Desde el estreno del documental hace seis meses, ellas han vivido momentos y emociones muy importantes. Para mí es emocionante verlo con ellas, ver como les aplauden en los cines, en festivales, en los centros cívicos de sus barrios, e incluso presenciar cómo sus maridos y nietos le reconocen la labor que para algunos de sus

familiares más jóvenes les era desconocida. De alguna manera es situarlas en el mapa. Pero no sólo a ellas. Sino a todas las mujeres y familiares que se sienten identificadas y me escriben desde barrios de todo el país.

2. Una segunda es la de contar un relato útil para el futuro. Y es que a todas nos interpela:

No solamente porque las ciudades heredadas de aquel urbanismo siguen siendo hostiles e inseguras (más para las mujeres, y más para las mujeres de la periferia), sino que nos preocupan las dinámicas urbanas contemporáneas (la especulación de la vivienda, la gentrificación, la proliferación de «bloques cebras»...) que nos imponen las grandes corporaciones y los políticos. Sin embargo, en momentos de vulnerabilidad (como en una pandemia o en un apagón) comprobamos que lo importante y revolucionario está en lo más cotidiano y sencillo, y que podríamos influir mucho más de lo que lo hacemos en el diseño de la ciudad en mayor medida de lo que imaginamos.

Pienso que es urgente reconectar con la gente joven y evitar comportamientos cada vez más individualistas, que llevan a repetir patrones de idealización en los modos de vida y decepciones futuras (nuevos desarrollos en áreas donde no hay ninguna relación de vínculo o afecto, hipotecas descomunales, desplazamientos a diario en coche...). La vocación última del documental es precisamente ésa, la de hacer un ejercicio sobre la memoria de las ciudades para interpelar a las nuevas generaciones y preguntarles/nos hacia donde queremos ir. Urge generar esas nuevas cartografías colectivas: dibujar, a partir de encuentros generacionales, un intercambio de historias, vivencias y experiencias que nos permita desvelar lo que no conocemos de la historia de la ciudad, y lo que nos puede

ayudar a la hora de imaginar el futuro. Creo muy necesario provocar este diálogo para «que no se pierda la memoria», como solicita Toñi, una de las protagonistas en el propio documental Ellas en la ciudad. O como dice Lisa Migarri en su documental Més Veïnes, provocar «una cadena de transmisión de saberes que trascienden los límites del barrio y nos interpela a todas».

Imagen del making-off Foto: (@beahohen)
Premiere en los Cines Cervantes (Sevilla).

Entrevista al artista y comisario Jon Gorospe

Jon Gorospe (Vitoria-Gasteiz, 1986), artista y comisario afincado en Oslo, se dedica, entre otras cosas, a recorrer la ciudad con una mirada atenta enfocada sobre aquello que, muchas veces, nos pasa desapercibido. En esta parte de su trabajo, su deriva artística desemboca en una sugerente colección de escenas «callejeras» que abordan ámbitos que van desde la bien llamada arquitectura hostil hasta los asentamientos efímeros de las personas sin hogar.

De la misma manera, parte de su trabajo se detiene también en aquellas arquitecturas que, quizás sin darnos cuenta, se erigen como formas de control y de vigilancia a través de texturas y de composiciones formales repetitivas. De alguna manera, Jon es capaz de alumbrar una narrativa coherente que hilvana

tanto las obras de los arquitectos estrella —muchas veces descontextualizadas y fuera de escala— con aquellas deshumanizadas y repetitivas de la ciudad genérica.

Por todo ello, es un placer entrevistar a Jon Gorospe en el contexto de la revista Fragmentos, cuya pretensión es siempre la de acumular lecturas diversas —y no únicamente disciplinarias— sobre las ciudades y los espacios en los que habitamos.

La visión de Jon destaca por tratarse de una lectura urbana puramente visual —pero no menos reflexiva—, que se detiene en lo cotidiano para volver a mirarlo como si fuese novedoso, pero sin una pizca de ingenuidad.

Página anterior Fotografía de la serie Peripatetic Studies: The Hostile

Página izquierda

Fotografías de la serie Peripatetic Studies: Bivouac

Jon, te confieso que he tenido ciertas dificultades durante la preparación de esta entrevista a la hora de presentarte o de situarte en una disciplina artística o en otra. Usas la fotografía, el vídeo o la escultura —entre otras técnicas—, con aparente comodidad, lo que hace muy difícil clasificarte. Pienso que lo mejor es que te presentes tú. ¿Cómo te gusta definirte, si es que te gusta?

MB: De todas maneras, si te he propuesto esta entrevista en el marco de la revista Fragmentos es porque, a pesar de no ser arquitecto de profesión, tu práctica artística discurre de manera tangente a la disciplina. ¿Qué es lo que te atrae de la arquitectura?

MB: Aunque de algunas de tus obras también se desprende cierta crítica más o menos directa a la disciplina, por lo que quizás cabría reformular la primera pregunta, o hacerla de otra manera; ¿Qué es lo que te disgusta de la arquitectura?

MB: En la entrevista anterior, con la ilustradora Clara Nubiola, hablamos mucho sobre el caminar como práctica artística. Sobre esto parece pertinente hablar de tres de tus series fotográficas que enmarcas bajo el título Estudios peripatéticos y defines así: «La dinámica del proceso creativo es el paseo y su núcleo es la búsqueda, registro y organización de esos patrones que las calles repiten a modo de tic, de manía o —a veces— de fobia.» ¿Cómo realizas este paseo? ¿Lo preparas con anterioridad? ¿Te marcas algún objetivo y sales bajo cierta sospecha? ¿O trabajas más bien desde una especie de acecho crítico de la ciudad?

Jon Gorospe.

Jon Gorospe.

Soy un artista plástico al que le interesan las imágenes. A partir de ahí, uso cualquier medio que vaya a darme el resultado que me interesa. Hoy en día casi cualquier artista contemporáneo mezcla técnicas y materiales, supongo que yo estoy enmarcado en el tiempo que me toca vivir.

Pero quizás lo que más me define no es con qué trabajo, sino sobre qué trabajo. Y ahí es cuando entra la ciudad, la arquitectura o el urbanismo.

JG: Disfruto de la arquitectura desde un punto de vista estético y utilitario. Aprecio el balance que la arquitectura sostiene entre las bellas artes y la ingeniería.

Pero podríamos decir que lo que más me atrae de la arquitectura es lo que pasa a su alrededor; y que paradójicamente es, a la vez, lo que más me disgusta de la arquitectura. Cómo ésta tiene la capacidad de transformar la vida de las personas que la habitan. Es decir, disfruto del escenario que nos plantea para la vida, pero sin perder de vista que esta disciplina no es inocua.

JG: De la arquitectura me gusta lo que pasa gracias a ella y también lo que pasa por su culpa. Con mis propuestas intento señalar parte de estas problemáticas y abrir el debate sobre los temas que trabajo. Si tuviera que ser más específico, por ejemplo, diría que lo que me molesta de gran parte de la arquitectura es que es tremendamente excluyente. Pero no porque lo diga yo, sólo hace falta ver las propuestas y los renders de cualquier concurso y ver la sociedad que se representa en esas imágenes. Por lo general son arcadias utópicas para un tipo de persona muy concreta y que poco se parecen a las personas que veo en las calles que yo piso. Cuando estos proyectos son levantados, prístinos, imponentes, con la cara bien lavada, obligan, de alguna manera, a que los que transitan estos espacios deban estar a su altura. Pero ¿qué hacemos con los que no lo están?, ¿siguen siendo bienvenidos a pesar de no estar a tono con lo que les rodea?

JG: La serie Peripatetic Studies es el corazón de mi trabajo. Y, después de más de una década, he empezado a publicarlo en libritos que forman parte de una misma colección. Como dices, y como se desprende del título, todo empieza con el paseo y de una forma muy intuitiva. Empiezo tomando fotos en mis paseos diarios —casi siempre a la deriva y sin marcar rutas preestablecidas— sobre cosas que me llaman la atención en la ciudad. Con el tiempo, empiezo a revisar el archivo que he ido acumulando y así empiezo a identificar patrones que se repiten en las imágenes que he tomado. Después las junto y empiezo a pensar sobre lo fotografiado: a qué responden las imágenes, qué tienen en común; para luego empezar a leer y documentarme sobre estas escenas. Con el tiempo, y una vez he identificado los temas a tratar, puedo tomar fotografías más concretas. De alguna manera, este ejercicio me permite iluminar el subconsciente de mis intereses al mismo tiempo que ilumino el subconsciente de la ciudad.

Fotografías de la serie Peripatetic Studies:Bivouac Jon

Gorospe.

Fotografías de la serie Peripatetic Studies: The Hostile Jon Gorospe.

MB: Dentro de estas series fotográficas quizás las que más llaman la atención sobre la arquitectura de la ciudad son The Hostile y Bivouac. La primera pone el foco en aquellas arquitecturas hostiles que impiden ocupar algunos espacios residuales de las ciudades. La segunda documenta algunas sofisticadas arquitecturas efímeras construidas por las personas sin hogar en el espacio público. ¿Puedes darnos una pincelada sobre qué es lo que estás explorando en estas dos series?

JG: Ambas series tratan los usos y los desusos de la ciudad, señalando a las arquitecturas realizadas por no arquitectos.

En el caso de The Hostile me interesaba registrar elementos de la arquitectura defensiva contemporánea. Normalmente, lo primero que nos viene a la cabeza bajo este título es la arquitectura anti-vagabundos, pero esto va más allá, porque gran parte de estas arquitecturas defensivas lo que destierran del centro de nuestras ciudades son la pausa y el descanso, creando ciudades que, cada vez más, son convertidas en lugares exclusivamente de tránsito.

Por otro lado, la serie Bivouac documenta cómo las personas sin hogar ocupan y hacen suyos espacios intersticiales de las calles, construyendo arquitecturas de carácter efímero y, por lo general, con materiales pobres. Algunos refugios son muy elaborados y están muy bien adaptados al espacio que parasitan. Otros apenas son un mínimo gesto constructivo: un lecho hecho de cartón, una manta o un cojín. En estos casos, apenas se intuye lo constructivo salvo como el signo mínimo de la pernoctación y la supervivencia. Las imágenes de este trabajo invitan a ser miradas con detenimiento. La pregunta interesante que me planteaba aquí era: ¿No miramos de frente estos hogares por el mismo pudor por el que no miramos el interior de la casa de otros? ¿O no lo miramos por el miedo y la vergüenza a vernos reflejados como colectivo?

MB: Es interesante, de estas series peripatéticas, cómo el usuario es el protagonista, pero nunca está presente. No vemos a nadie intentando utilizar esos espacios hostiles, ni siquiera lo vemos construyendo o habitando las construcciones de Bivouac y, sin embargo, no pueden estar más presentes en ambas obras. ¿Esta omisión es intencionada? ¿Es parte de esta crítica a la hostilidad de la ciudad el hecho de que los usuarios o los transeúntes no aparezcan?

JG: Me interesa registrar el gesto constructivo y el rastro que queda de ello.

En el caso de The Hostile quería crear imágenes duras, que produjesen cierta claustrofobia, de ahí que no haya presencia humana. Además, todas ellas carecen de horizontes, de reflejos o de fugas que te puedan llevar a otro sitio. Son imágenes muy opacas y cerradas en sí mismas.

En el caso de Bivouac, omito a los usuarios porque suelen pertenecer a colectivos en riesgo de exclusión grave. No quiero ahondar en problemas de personas concretas sino más bien hablar de un fenómeno. Y, sin embargo, para hacer de estas imágenes algo que incluya al usuario, fotografío siempre a la altura del paseante; a la altura de los ojos, para que se entienda la cercanía que tenemos con estos lugares y se interpreten como transitables o habitables.

MB: En contraposición, en tu trabajo Metrópolis, donde haces capturas de pantalla de imágenes de Street View de grandes ciudades, las personas parecen ser precisamente el objeto de estudio. ¿Es así? ¿Cómo explicas este cambio de interés? ¿Crees que se podría hacer una analogía con la percepción de una calle vacía y la misma calle en uso?

MB: ¿Qué conclusiones sacas de la forma en que estamos delimitando y fragmentando el espacio público los urbanistas y arquitectos hoy en día? ¿Crees que sucede por igual en todas las ciudades? ¿También en el norte de Europa, donde resides?

JG: En efecto, el punto de vista es crucial en ambos trabajos. En el caso de Metropolis la idea de vigilancia y registro está muy presente, de ahí que a las personas las fotografíe por encima del hombro, como mínimo.

De la misma manera, como trabajaba sobre las metrópolis que han sido ultra-documentadas por compañías como Google Maps, quería hacer el paralelismo entre la ingente densidad de flujo urbano y de flujo de imágenes online. De ahí que el paisaje humano tenga tanta importancia.

JG: Como seguidor del antropólogo Manuel Delgado, aquí me toca decir que el espacio público no existe —risas—.

Como bien apuntas, los arquitectos y los urbanistas se encargan de diseñar e intervenir el espacio. Por lo tanto, y como mucho, el resto nos limitaríamos a poder usar este espacio, y dudo mucho que éste esté diseñado para todos los públicos ya que, cuando se interviene, se tiene muy en mente el perfil concreto del usuario predilecto, dejando a unos fuera y a otros dentro.

Cualquier país desarrollado se rige por las mismas problemáticas y soluciones. Aunque mi área de acción es generalmente europea, todo me hace pensar en ello como un fenómeno global.

MB: Por otro lado, de la misma manera en que pones el foco o criticas los usos del espacio público a través de tus fotografías, tampoco te da ningún reparo abordar temas más disciplinares o formales, como haces en Polished Cities o «Ciudades pulidas». Tú mismo enmarcas las obras de este proyecto como una suerte de arquitecturas defensivas contemporáneas, donde lo pulido y lo transparente son sinónimo de seguridad y de control. Todos los obstáculos que te encontrabas en las calles durante tus paseos parecen desintegrarse cuando alzas la mirada y te detienes a observar los edificios, donde para ti destacan lo claro, lo terso y lo pulido. ¿Qué crees que significa esta dualidad entre lo que pasa en tu trabajo a pie de calle, y lo que pasa en aquellas obras que retratan las fachadas que enmarcan esas mismas calles?

JG: En Polished Cities aplico una mirada más abstracta. En este caso me interesan las arquitecturas que son concebidas para el poder, ya sea éste de carácter público-institucional o ejercido por empresas multinacionales.

A mi parecer, sus arquitecturas comparten esta idea de ser espacios diseñados para el tránsito, pero no para ser habitados.

La idea que atraviesa todas las imágenes —cómo lo pulido en las superficies se utiliza para que éstas no ejerzan ninguna resistencia ni a la mirada ni al tacto— era algo muy poderoso y que afecta directamente en la manera en que se utilizan estos espacios. A través de las fotografías de esta serie desvelo cómo una decisión aparentemente estética esconde tras de sí tanto una intención de control y de vigilancia como cierta intencionalidad sobre la manera en la que un espacio se debe utilizar.

Página izquierda
Fotografía de la serie Metropolis Tokyo Jon Gorospe.
Fotografía de la serie Metropolis. Jakarta Jon Gorospe.
Fotografía de la serie Metropolis. Moscow Jon Gorospe.

MB: Analizando las obras que componen Polished Cities nos hemos acordado de la estética de las backrooms1, tan popular en internet en los últimos años. ¿Hay algo de eso en tu forma de retratar lo reiterativo de estas arquitecturas anónimas —quizás por cómo acotas tus fotografías— en los que nunca se entiende el edificio por completo? ¿Podrían ser los interiores de los edificios que retratas igual de inquietantes y perturbadores?

JG: Totalmente cierto. Espacios estándar como una habitación de hotel, esa es la idea. Algo que agrade al mayor número de gente posible o, mejor dicho, que no desagrade. Al final se acaba con espacios urbanos que tienen el mismo interés que una mesita Lack de Ikea.

En este sentido, las lecturas de Byung-Chul Han fueron determinantes para este proyecto. Cómo las superficies que no ejercen resistencia, ni a la mirada ni al tacto, se han convertido en la estética predominante del siglo XXI. De esta manera acabamos obteniendo lugares fáciles de transitar —como ciudades de teflón— por las que podemos pasar sin dejar rastro. Pasamos también por ellas sin la posibilidad de una mínima fricción con el entorno o con otros viandantes. Lo que permanece es esta idea de que la paz en las formas se traslada a la paz en las conductas. Al final, parece que nuestra respuesta emocional al entorno está, de alguna manera, a la altura de éste. Es decir, no tenemos un mínimo roce con la ciudad, pero la ciudad tampoco deja una impronta en nosotros.

Inevitablemente, esta característica del espacio me llevó también a reflexionar sobre la idea de ciudad genérica (usando las palabras de Rem Koolhaas) y cómo, a base de fotografiar sus fragmentos, los edificios se acaban completando en la mente del espectador. Utilizo la imagen incompleta para que ésta sea un desencadenante del pensamiento. Cada espectador participa en completarlas componiendo así la fotografía total. A veces el simple hecho de plantear ideas, aunque se haga de forma sutil, puede hacer que un trabajo sea interactivo, aunque sea desde el subconsciente.

MB: Continuando con el tema de la repetición, parece que en tu forma de trabajar tiene cierta relevancia el concepto de archivo. ¿Tiene que ver con tu metodología de trabajo? ¿Fotografías y creas de manera acumulativa y luego descartas? ¿Necesitas tener todo el material delante para entender qué es lo que estás intentando decir?

JG: Todo empieza —como comentaba antes— con el paseo, con la ciudad empírica. Después, a través de la creación del archivo, se empiezan a vislumbrar las ideas que luego acompaño de lecturas, conferencias, discusiones, etc. Pero, desde luego, es un proceso poco lineal; necesito trabajar para saber lo que quiero decir. La fotografía, tal y como yo la practico, tiene algo muy valioso y que te pone a menudo en tu sitio. Aunque pienses que tienes una idea y sepas cómo ejecutarla, luego sales a la calle con la cámara y la vida siempre tiene algo mucho más interesante que mostrarte. Por esto mismo intento ser permeable, sensible a lo que la calle me quiere decir; e intento no imponer demasiado mi raciocinio. Se trata de salir a descubrir algo, no de salir a trabajar con lo que ya sé. A mi práctica le pido que sea transformadora, aunque lo sea sólo para mí.

MB: ¿Consideras que el archivo puede ser en sí mismo una obra artística, algo así como un atlas mnemosyne2 de Jon Gorospe?

JG: Es, sin lugar a duda, la obra artística. En el archivo está lo que eres, por mucho que te pongas a rascar y quieras sacar otra cosa de ti, no lo vas a lograr. El archivo nunca miente. Puede leerse bajo otros códigos, bajo otra moral, o en otro tiempo histórico; pero el archivo tiene una verdad que es imposible de encontrar en una exposición, en un libro o en cualquier otro «producto final».

1 La estética backroom es un estilo visual popular en internet que evoca espacios liminales, impersonales e inquietantes, tales como oficinas vacías, pasillos interminables, almacenes o edificios antiguos mal iluminados.

2 El Atlas Mnemosyne es una obra del historiador de arte alemán Aby Warburg (1866-1929). Propone una red de relaciones, nunca definitivas, que reflexionan acerca de la imagen. Así se opone este sentido de atlas al de catálogo, el cual propone una sistematización ordenada, un sistema cerrado a partir de criterios fijos previamente establecidos.

MB: Recientemente has expuesto en la sala Amós Salvador de Logroño participando en una muestra colectiva titulada Perpetuum Mobile con varias obras tuyas de la serie The Spot. ¿Qué retos afrontas o cómo modificas tu obra cuando te enfrentas a una muestra colectiva frente a una individual, o cómo lo abordas cuando ejerces de comisario? ¿Qué podemos aprender de esa forma colectiva de trabajar con un objetivo común? ¿Es pertinente la analogía con la arquitectura de la ciudad?

MB: En tu trabajo queda demostrado que el arte es extremadamente útil a la hora de revelar problemáticas urbanas y generar cierta conciencia crítica al respecto. Pero, para terminar, en el marco de esta serie de entrevistas, quería hacerte la misma pregunta que le hicimos en su día al abogado y ensayista Carlos Romero Rey. ¿Crees que el arte puede operar también como método reparador, no solo analítico, de ciertas deficiencias urbanas o arquitectónicas?

JG: Podríamos decir que hay dos grandes tipos de muestra colectiva: la que colectiviza a unos autores (por cuestión geográfica, generacional, etc.) y la de tesis, la que aúna trabajos o autores sobre una misma temática.

En el caso de la arquitectura, me imagino que es una mezcla de ambas, ¿no? En cualquier caso, a mí me interesa más el arquitecto que construye teniendo en cuenta el contexto y da soluciones particulares a problemáticas concretas que el otro tipo: «el arquitecto paracaidista», que aterriza en una ciudad, construye su cosa y se va sin mayor interacción y sin entender el contexto. No hace falta dar ejemplos, pero todos conocemos puentes con suelo de cristal en ciudades con alta humedad, ¿verdad?

JG: Lo bonito es que hay artistas con una sensibilidad muy refinada, capaces de detectar el dolor en algunos ámbitos y de señalarlo para que no pase desapercibido. Otros tienen la capacidad de transformar espacios y sociedades a través de sus acciones.

En cualquier caso, y aprovechando para cerrar por todo lo alto, diría que lo ideal es que más artistas, más arquitectos y más urbanistas colaboren para poder desarrollar nuevas propuestas que mejoren nuestra vida. En fin, eso sería algo bueno, estaría bien.

Fotografía perteneciente a la serie Polished Cities.
Jon Gorospe.

Jon nos despide dejándonos la miel en los labios y con ganas de que nos deje bucear en su archivo. Nos quedamos con ganas de rebuscar y de mezclar sus imágenes, de estudiarlas, de pensarlas y de volver a combinarlas, con la necesidad última de comprobar si nuestro ojo es tan fino como el suyo a la hora de detectar aquello extraordinario —por bueno o por malo, por poderoso o por repetitivo—, en el espacio extraordinariamente ordinario que es la ciudad.

Fotografías de la serie Polished Cities. Jon Gorospe.
City Scape.
Jon Gorospe.
bIoGrAfíA :

Jon Gorospe es graduado en ID.Arte (España) y en la Facultad de Artes de Vilnius (Lituania). Durante su trayectoria ha sido reconocido por varias instituciones públicas y privadas tales como el Guggenheim Museum (EE.UU. y España), el Sasakawa Foundation (Escandinavia y Japón), el Futures Photography (Programa Europeo de Cultura), la Fundación Ankaria y VEGAP (España).

Su trabajo ha sido expuesto en numerosos países y centros de arte, como el Kunstnernes Hus y Fotogalleriet en Noruega, el Museo Guggenheim de Bilbao, el Círculo de Bellas Artes o el Centro de Conde Duque de Madrid, el Museo Nogueira da Silva de Braga, el MUHNAC y la SNBA de Lisboa, el Museo Mattatoio de Roma, el centro Le Centquatre de París, el Kiel Kunsthalle de Kiel, la Fundación Michael Horbach en Colonia, el festival OFF Bratislava, el Festival de Sochi en Rusia y el SIPF de Singapur.

Su obra se centra en la representación del paisaje antropizado, desarrollando varios cuerpos de trabajo como Skyline (2024-en proceso), The Grid (2023-2024), The Spot (2018-2022), Polished Cities (2018-2023), Noraezean (2020), City Drifters (2019), Metrópolis (2018-2019) y Environments (2014-2016), entre otros. En los últimos años trabaja, paralelamente, en instalaciones de obra pública como su última intervención, The Many Skies, encargada por el Ayuntamiento de Asker (Noruega).

Gorospe combina su trabajo como artista con el estudio y la comprensión de la imagen desde un punto de vista teórico, ejerciendo de comisario para varios proyectos artísticos y dirigiendo festivales de fotografía.

ARQUITECTURA INDUSTRIAL Y SUS DETALLES CAPÍTULO II

...y se hizo la luz

REPORTAJE: ISABEL MUÑOZ

(...) Decía John Wesley que La electricidad es el alma del Universo (...)

La luz es el principio de todo. La aparición de la electricidad es uno de los aspectos que más ha influido en la historia de la Humanidad.

Tal y como describía en el Capítulo I de Arquitectura industrial y sus detalles: de ruedas y molinos, desde la antigüedad los ríos han sido un eje de transformación socio-económico. Se ha utilizado la fuerza del agua para diversos usos entre ellos: la molienda.

Cuando la reciente industrialización comenzó a desarrollarse el carbón no cubría las necesidades energéticas demandadas por lo que fue suplido por la hidroelectricidad.

Página izquierda
Antiguo molino harinero reconvertido en la desaparecida central hidroeléctrica del Sotillo. Logroño.
Foto: Periódico La Rioja
Al fondo la fábrica de harinas La Modelo en 1935. Logroño.
Foto: Colección de Taquio Uzqueda.
«Podemos afirmar que las centrales hidroeléctricas son el

resultado de la evolución de los tradicionales molinos

harineros»

De molino a fábrica de luz o fábrica de harinas.

Entre finales del siglo XIX y principios del XX surgen empresas productoras de esta energía. Fueron adquiriendo los molinos aprovechando sus concesiones hidráulicas. Los transformaron utilizando su infraestructura de canales, presas, saltos de agua y los propios edificios donde colocaron las turbinas productoras de la electricidad. La fuerza del agua en movimiento se transforma en energía mecánica por la turbina y luego en electricidad gracias a un generador. Realizado el proceso, el agua se devuelve al rio o se canaliza para el riego. Siendo una energía renovable a partir de una fuente limpia. Así nacieron las fábricas de luz, podemos afirmar que las centrales hidroeléctricas son el resultado de la evolución de los tradicionales molinos harineros. Otros se transformaron en fábricas de harina, de textiles, de chocolates, papeleras y un largo etcétera.

El alumbrado es aquello que no vemos pero que nos permite ver.

El molino harinero del Sotillo sobre el ramal del Ebro Chiquito se convirtió en fábrica de luz gracias a la instalación de tres turbinas hidroeléctricas a finales del siglo XIX para dar servicio al alumbrado doméstico. En estos momentos es cuando se encendieron las primeras bombillas dentro de las viviendas siendo la electricidad la protagonista de finales de siglo. Por aquel entonces, en Logroño, el alumbrado de uso público era producido mediante el gas de hulla originado en la fábrica de la Florida.

Antigua fábrica de harinas La Gloria. San Millán de la Cogolla.
Foto: web

Agua, harina y luz

A los molinos harineros se les incorporaban turbinas para generar electricidad y mantener su producción. Estas fábricas marcaron un cambio significativo, por tanto, de los tradicionales molinos se evolucionó a la industrialización del proceso. Contaban con complejos sistemas de máquinas para la molienda, clasificación y almacenamiento de la harina. Además, fueron de los primeros edificios de carácter industrial que se construyeron en el medio rural lo que conllevó al abandono paulatino de primigenias construcciones. Según fueron pasando los años, las fábricas de harinas dejaron de depender de los cauces de los ríos lo que hizo que se trasladasen cerca de la vía del ferrocarril. Una fábrica con mecanización hidráulica y central hidroeléctrica para su propio uso es la fábrica de harinas La Modelo. Se creó a partir de un pequeño molino conocido como La Isla situado en el margen derecho del rio Ebro a su paso por Logroño. Adquirido en 1905 por Juan Esteban Muñoz y Guillerma Ubis (Viuda de Arza). En él montaron la fábrica de harinas. Poco después, compraron el molino de Las Norias situado en la orilla izquierda y lo transformaron en la fábrica de luz Nueva Electra para producir la energía necesaria para la elaboración del producto y también para comercializar la luz.

Un arquetipo de divulgación y recuperación del Patrimonio Industrial que engloba los recursos hidráulicos de nuestra provincia es la fábrica de harinas La Gloria en San Millán de la Cogolla. Su origen fue un molino de una rueda perteneciente a los monjes benedictinos del Monasterio de Yuso.

Pasó de ser molino de piedra a fábrica de harinas en 1902 por Santos Vázquez Puelles, comenzándose a utilizar en 1925 tras veintitrés años de construcción. Fue diseñada según un método patentado en 1850 que consistía en el aprovechamiento de la gravedad para el movimiento de la materia prima, por ello el proceso productivo está diseñado en vertical. La turbina situada en planta baja data del año 1925 proveniente de la empresa Fritz Neumeyer de Múnich. Afortunadamente se mantiene en pleno uso siendo el corazón latiente del inmueble. En el exterior subsiste un motor mono cilíndrico con volante de inercia de más de dos toneladas que se utilizaba para poner en funcionamiento la factoría cuando no había caudal suficiente en el rio Cárdenas. Igualmente, contaba con un sistema que almacenaba en un calderín los gases de escape y los utilizaba como fuerza para arrancar el motor en el siguiente arranque.

Gracias a Raúl, actual propietario y descendiente de su fundador, se está rehabilitando y ha creado un centro de interpretación del proceso harinero, además de, un restaurante para deleite del paladar. En el interior de lo que fue la fábrica destacan las máquinas con rodillos, los tamices y los conductos de madera. Es una creación artesanal construida con mano de obra francesa. Conserva el pavimento hidráulico, las tolvas de madera, el saber hacer y el espíritu emprendedor de otra época.

Detalle del interior.
Antigua fábrica de harinas La Gloria. San Millán de la Cogolla.
Foto: web

Central hidroeléctrica El Salto del Cortijo.

La energía que surge del agua

Se construyeron expresamente centrales hidroeléctricas aprovechando cauces continuos de agua, desniveles y la necesidad de utilización de la electricidad. Fueron fundamentales para el crecimiento industrial. Para ponerlas en marcha hicieron falta inmensas obras de ingeniería que se realizaban de forma manual puesto que se carecía de maquinaria.

Diseñadas como elementos aislados autosuficientes. Con los recursos necesarios para que los trabajadores pudiesen vivir con sus familias. Disponían de viviendas, lavaderos, establos para animales, huertos y árboles frutales entre otros. Configuradas con planta rectangular, estaban formadas por una sala de máquinas, rodete de turbinas, generadores, transformadores y líneas de transmisión. Además de aliviaderos, llaves de paso y rejillas para gestionar el caudal.

Se mantiene en el tiempo y en funcionamiento la central hidroeléctrica El Salto del Cortijo inaugurada en 1918 en un momento de importante demanda en el consumo eléctrico. Supuso un logro tecnológico en su época. La central hidroeléctrica de Electra Recajo en Anguiano continua en marcha. Fue construida en 1921. Se accede a ella a través de un puente. Está compuesta por dos edificios; uno destinado a viviendas de trabajadores dispuesto de forma perpendicular al rio y otro de mayores dimensiones donde se alberga la maquinaria. Arquitectónicamente responde a la tipología industrial formalizada a través del ritmo compositivo de los vanos. Su composición recurre a elementos decorativos como el enmarcado de huecos, el uso del arco de medio punto y las cenefas.

Foto: Isabel Muñoz
Antigua central hidroeléctrica en el Valle del Iregua.
Foto: Isabel Muñoz
Central hidroeléctrica en el Valle del Ebro.
Foto: Isabel Muñoz

En conclusión, estas fábricas y centrales representan un legado de innovación, adaptación y sostenibilidad. Son una parte valiosa de la historia de la energía y de las infraestructuras. La energía hidroeléctrica continúa siendo la más renovable y la más utilizada.

Lamentablemente, como en otros elementos de la arquitectura industrial, su testimonio se está apagando. El Patrimonio representa el

reflejo de la historia de una comunidad, plasma sus valores y sus experiencias.

La pérdida es irreparable dado que supone una fractura con el pasado que ha generado nuestro presente.

Central hidroeléctrica Electra Recajo. Anguiano.
Foto: Isabel Muñoz
Detalle del interior de una antigua central hidroeléctrica en el Valle del Oja.
Foto: Isabel Muñoz
Antigua central hidroeléctrica en el Valle del Najerilla.
Foto: Isabel Muñoz

REPORTAJE: JOSÉ MIGUEL LEÓN

Siempre que visito el Templo de Santiago Apóstol en La Unión

(en

recuerdo a Gerardo Cuadra)

Ángulo de las fachadas sur y este del Templo de Santiago Apóstol.
Foto: J. M. León

Siempre que visito el Templo de Santiago Apóstol en La Unión me pregunto qué motivaría la construcción de tan magnífico edificio en un lugar como este, a mediados de los años 60.

Quizás pudo ser el deseo de potenciar un pequeño núcleo rural como residencia para los vecinos que bajaban de Clavijo a La Unión, al tener sus campos de labranza más cercanos.

La localidad de La Unión (Uñón en tiempos anteriores) no era en ese momento más que un conjunto desordenado de pequeñas construcciones agrícolas y ganaderas, tipo almacenes, corrales, pajares, etc. y alguna vivienda, como se aprecia en la foto aérea de 1977.

La esencia del proyecto, responde tanto a las reflexiones y conclusiones del Concilio Vaticano II, sobre la construcción de nuevas iglesias, que Gerardo había seguido de cerca, como a su interés por la nueva arquitectura que se estaba haciendo en Europa.

Y así encontraremos el eco en el proyecto de Gerardo del racionalismo franco-alemán, con sus nítidas y expresivas formas de hormigón visto, y sobre todo del organicismo nórdico, más próximo al uso de materiales tradicionales y a las geometrías de la naturaleza, con los arquitectos Le Corbusier y Alvar Aalto como referentes respectivamente.

El edificio se nos ofrece como una gran casa de pueblo y para el pueblo, sobresaliendo del humilde caserío, y del que toma prestados elementos característicos de la arquitectura popular, muros de mampostería y de ladrillo y cubiertas inclinadas de teja cerámica, que combina con el hormigón armado visto, material por el que sentía gran interés.

Su ubicación sobre el terreno, seguramente unas antiguas eras, se separa lateralmente de la carretera y se abre a la amplia finca, tratando de crear, a falta de plaza, un espacio previo de encuentro y esparcimiento. Ello supone que Gerardo da más importancia, en la disposición del templo, a su relación con el lugar de ingreso orientado al sur y con la cabecera al norte, que a seguir los cánones tradicionales que lo hacían en sentido este-oeste.

Doce años antes, en 1965, el arquitecto, y también sacerdote, Gerardo Cuadra había entregado a la Diócesis el «proyecto de templo parroquial en la localidad de la unión», utilizando su habitual tipografía con letras minúsculas.

Ante un lugar que casi no era lugar, el proyecto plantea la «construcción de un Lugar», tanto en sentido material como espiritual.

Vista aérea de La Unión. Vuelo aéreo 1977.

(Instituto Geográfico Nacional)

La entrada se produce desde la fachada principal a través de un porche, pavimentado con finos cantos de río, con el acceso frontal al templo y lateral al baptisterio, que comunica directamente con la nave, configurando formalmente la transición a través del bautismo. Para ello construye un pequeño y silencioso recinto de ladrillo, en el que a través de un lucernario se ilumina la pila bautismal, ambos de singular diseño.

La planta está delimitada por unos potentes muros que convergen hacia el presbiterio, subdividiendo, en sentido longitudinal, el espacio del sagrario respecto al de la nave propiamente dicha. Para ello dispone una gran viga apoyada sobre un fino pilar, ambos de hormigón visto, en la línea de separación y prolonga la cabecera hacia el norte.

A la derecha se añade otro cuerpo más pequeño, en planta y altura, destinado a sacristía-sala parroquial, comunicado con la nave y con entrada independiente desde el exterior. En primer término, y a la derecha de la edificación, se significa la presencia de una esbelta y exenta torre campanario.

A través del porche, con su escala humana, se accede al interior del templo, en el que sorprende la expansión del espacio con un vibrante techo ascendente, construido con un sistema de cerchas metálicas con su perfil inferior curvo recrecido con unos nervios de hormigón, que sirven de apoyo a las bóvedas de rasilla de doble generatriz.

El citado techo se encuentra con un gran faldón de hormigón visto que desciende, a modo de dosel, sobre el presbiterio y es atravesado por un rotundo cilindro, también de hormigón, que inunda de luz el lugar del celebrante, sugiriendo un diálogo entre «la luz» y «la iluminación».

Este espacio tan sugerente, que se ha convertido con las fachadas en una de las imágenes icónicas del templo, no fue concebido inicialmente así. Curiosamente existe un proyecto anterior, sellado con la misma fecha, marzo de 1965, que apenas se diferencia en planta, pero sí lo hace, y sustancialmente, en sección con la estructura de cubierta, y por lo tanto con un espacio interior bien diferente, que aquella hubiese generado.

Inicialmente se contemplaba la ejecución de unas potentes vigas de hormigón visto, dispuestas ortogonalmente al eje longitudinal del templo, que ascendían escalonadamente siguiendo la pendiente de la cubierta. Esta solución, que se podría entender como acorde con los planteamientos más funcionalistas y que expresaría literalmente su construcción, debió ser cuestionada muy rápidamente por el arquitecto, ya que la fecha de los planos de la nueva solución coincide con la de los anteriores.

Esta aparente contradicción arquitectónica se justifica en la comprensión de cómo se habían resuelto las cubiertas de los templos desde tiempos lejanos, con un sistema en el que se diferenciaba «el intradós» del «extradós».

La construcción del primero tenía como objetivo crear un techo artístico para el interior, como se hacía con las bóvedas de crucería con sus terceletes, etc., mientras al segundo se le adjudicaba la función de hacer impermeable la cubierta con otra estructura, generalmente con cerchas de madera que apoyaban sobre los muros, independiente de la construcción del intradós.

Y por ello Gerardo, sin renunciar a sus planteamientos, introduce un grado de complejidad más en la aparente sencillez de su obra.

El presbiterio, donde ya no aparece el tradicional retablo, tiene sus paramentos y techo de hormigón, y en él se sitúan los diferentes elementos litúrgicos de acuerdo con las pautas del Concilio. El altar, de cara a los fieles, el ambón delante, para ofrecer la palabra directamente a aquellos, la sede, colocada al fondo presidiendo desde la distancia, y el porta cirio, todos de hormigón visto, forman una familia de «muebles inmóviles», que con el contrapunto del estilizado Cristo, parecen flotar en el luminoso espacio.

En más de una ocasión comenté a Gerardo el contraste un tanto escenográfico entre el lugar del celebrante y el más atenuado espacio de los fieles, a lo que me respondía, un poco irónicamente, sobre lo difícil que era ser arquitecto y sacerdote a la vez.

Como se ha comentado, a la izquierda del presbiterio se dispone la capilla del Sagrario, que su menor altura, tamaño e iluminación le confiere un mayor espíritu

Sección longitudinal. 1a solución.
Gerardo Cuadra. Archivo COAR.
Planta de distribución.
Gerardo Cuadra. Archivo COAR.

de recogimiento. Nuevamente los elementos litúrgicos, caja del sagrario, repisa y soporte para la lámpara, se construyen en hormigón visto, teniendo como fondo un muro de ladrillo caravista con un aparejo a la española (tendeles con juntas rehundidas), que semeja un vibrante tapiz cerámico, que destaca de la más sobria pared lateral, también de ladillo con aparejo tipo flamenco y junta enrasada.

Mención aparte merece la torre campanario, que se erige como protagonista y referente visual, como seña de identidad del lugar. De planta absolutamente orgánica, su juego de entrantes y salientes curvilíneos, que parecen recortarse de una matriz redondeada, refuerza su verticalidad con el juego de sombras que produce la incidencia solar. Si su diseño es absolutamente espléndido, no lo es menos la calidad de su ejecución.

Y su silueta aparece rediseñada, fruto de un interesante juego de escalas, en los pilares situados en el porche y en la separación entre la nave y la capilla del sagrario, en la pila bautismal y en la pila de agua bendita, todos ellos de hormigón visto, y en la lámpara metálica colocada en el techo del porche.

A tan singulares elementos, junto a los del presbiterio y del espacio del sagrario, se suma la presencia del arte contemporáneo. El Cristo del presbiterio de hierro y madera, el panel de fachada, de hormigón texturado, dedicado a Santiago Apóstol y la puerta del Sagrario, realiza-

da en aluminio fundido, son obras de A. Rubio Dalmati y A. Narvaiza Rubio, mientras las coloristas vidrieras dispuestas en las paredes laterales fueron diseñadas por Julián Gil. En resumen, Gerardo Cuadra nos ofrece no sólo una obra de arquitectura, también y sobre todo un espacio para el espíritu, más allá de su función estrictamente religiosa, en el que se reconocen citas y guiños a otras arquitecturas, y construido con piedra, ladrillo y hormigón, pero también con otros materiales más sutiles, como lo son la atención al lugar, la geometría, el espacio y los detalles, pero sobre todo la luz, porque tal como decía decía Louis I. Kahn «El silencio tiende a expresar algo, la LUZ lo crea».

Quisiera terminar con la imagen, una de las pocas que se han conservado, de la construcción del edifico, como reconocimiento a Gerardo Cuadra, pero también y especialmente a quienes lo hicieron posible con sus conocimientos y esfuerzos. A los trabajadores de la empresa constructora Zangróniz, especialmente a Ignacio Zangróniz, y a los de otras subcontratas, a los vecinos que trabajaron «a vereda» acarreando piedra, y a los que como el párroco Jesús Martínez Cañas y vecinos de La Unión están atentos a su mantenimiento y difusión.

Sección longitudinal. 2a y definitiva solución.
Gerardo Cuadra. Archivo COAR.Vista del Templo en obras. En primer término la torre campanario encofrada.
Archivo COAR.
Interior de la nave con la capilla del sagrario a la izquierda.
Foto: J. M. León
Detalle de los pavimentos del acceso y del porche, con arranque del pilar.
Foto: J. M. León.
Detalle de la pila bautismal. Foto: J. M. León.
Vista de una de las vidrieras de la pared Este, obra de Julián Gil.
Foto: J. M. León
Vista del pilar interior en la separación entre la capilla del Sagrario y la nave.
Foto: I. Fdez. Garijo Detalle del techo de la nave, hecho de bóvedas de rasilla sobre nervios de hormigón.
Vista de la pila de agua bendita. Foto: J. M. León.
Foto: J. M. León.
Vista del frente de la capilla delSagrario.
Foto: I. Fdez. Garijo.Vista del Baptisterio. Foto: I. Fdez. Garijo.
Vista de la torre campanario de hormigón visto. Foto: A. Narvaiza.
Archivo COAR.
Vista de la lámpara en el techo del porche.
Foto: J. M. León.

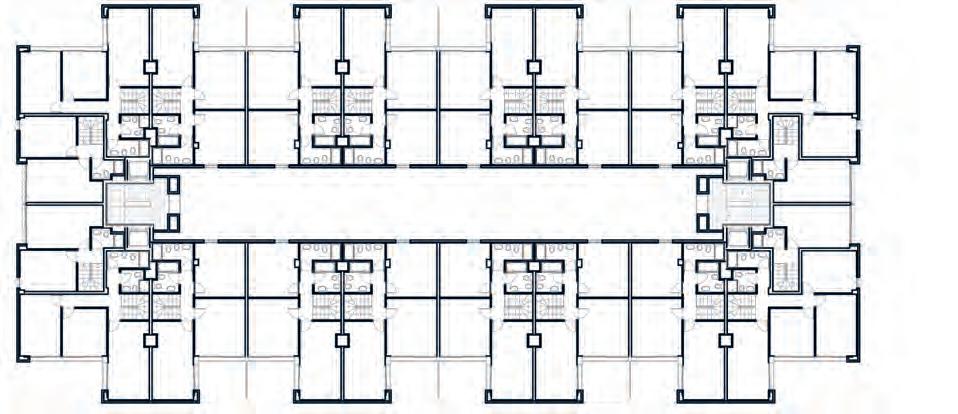
EDIFICIO INVITADO

Edificio 60 viviendas / Plan parcial El Cubo / Calle Blanco Lac 4 – 8 / Logroño

Obra: Edificio de 60 viviendas y anexos de protección municipal

Arq. Técnico: Rafael Lázaro Lázaro

Emplazamiento: C/ Blanco Lac 4-8

Parcela P1 – P.P.

El cubo / Logroño (La Rioja)

Promotores: Ayuntamiento de Logroño (Plan municipal de vivienda)

Construcciones José Martín S.A.

Arquitectos: Francisco Javier Martínez Soto José María Peláez González

Constructor: Construcciones José Martín S.A.

Programa y condicionantes

Edificio de 60 viviendas, 84 plazas de garaje, 78 trasteros y locales comerciales en planta baja, con calificación de Protección Municipal (parámetros económicos = V.P.O.). Situado en el borde oeste del Parque Fluvial del río Ebro en Logroño. Nacido de la iniciativa del Ayuntamiento de Logroño de edificar nuevas propuestas de edificios de vivienda colectiva con interés arquitectónico y urbano en parcelas de propiedad municipal, ajustadas a la misma normativa vigente del Plan General y Plan Parcial.

Sección transversal

Conceptos — Descripción

Viviendas

La vivienda es el fundamento generador del edificio. Se proyecta una tipología modular de viviendas de 1, 2, 3 y 4 dormitorios. De las 60 viviendas 40 son dúplex: el nivel inferior con los espacios de día y el superior con las Dormitorios y Baños.

Todas las viviendas se desarrollan en torno a un espacio privado, terraza – patio exterior, que provee a las habitaciones interiores de unas óptimas condiciones de soleamiento, iluminación, ventilación y vistas al privilegiado entorno en que se encuentra ubicado el edificio, e interrelaciona las distintas estancias de la vivienda.

Idea construída

• Unidad de habitación – inmueble villa

• Tipología modular de viviendaspatio jardín: 40 duplex 2, 3, 4d + 20 apartamentos 1, 2d

• Interrelación familiar de espacios –agrupación niveles-usos

• Agrupación de módulos –contenedor compacto

• Claridad, adecuación estructura–forma

• Caja de emociones – continente con contenido

• Creación y valoración de espacios comunes – recorrido arquitectónico

• Espacios intermedios – filtros –continuidad espacial

• Texturas – color

• Vegetación – control climático, acústico y visual

• Integración entorno verde – escala urbana

Volumetría exterior

El edificio presenta al exterior una clara y rotunda expresión volumétrica, reflejo de su estructura espacial interior, configurándose como un gran volumen suspendido del suelo y horadado por grandes huecos en sus dos fachadas longitudinales que se corresponden con los patios-terraza de las diversas viviendas y otro vertical en sus dos testeros como prolongación del patio interior. Genera de este modo un edificio de escala aparente de tres grandes pisos o niveles, pero con una gran riqueza de matices por medio de su ajardinamiento exterior y sus áreas acristaladas interiores, compuestas por puertas acristaladas correderas de suelo a techo y celosías de lamas de aluminio elevables y orientables.

Sección longitudinal

Patio y galería interior

Se disponen solamente dos accesos mediante portales situados en los dos extremos del edificio en planta baja. Cada portal dispone de un núcleo de comunicaciones verticales de ascensores y escaleras.

El acceso a las viviendas, distribuidas en cinco plantas, se realiza desde el interior del edificio, a través de un amplio espacio – patio, ajardinado en la planta primera, rodeado por corredores o galerías en las plantas tercera y quinta, y abierto al exterior en su parte superior. Es, análogamente a las terrazas de las viviendas, el corazón del edificio.

La base del patio, situada en planta primera, dispone de un espacio plaza de uso común para relación y recreo de los vecinos. En el mismo se disponen dos grandes jardineras en las que se define la plantación de especies arbóreas (abedules y bambúes) y plantas tapizantes.

Ejecución / Fábrica de ladrillo caravista

El ladrillo se configura en material único envolvente de la obra: volumen masivo excavado por grandes vacíos o huecos. Se pretende lograr la mayor fuerza, vibración y expresividad del material, por medio de la destonificación y textura de los ladrillos y su colocación mediante junta rehundida de mortero coloreado. Se trabajan las fábricas de manera rigurosa, modulándose todos los paños y evitándose la rotura de piezas.

Dado el gran tamaño de los paños y la estructura de hormigón que los sustenta (luces de 7 metros), la fábrica se arma y refuerza con armaduras metálicas y llaves de atado; produciendo juntas de dilatación verticales (trabadas con llaves metálicas deslizantes), independizando de este modo los movimientos de la fábrica de los de la estructura sustentante.

Planta primera y tercera
Planta segunda y cuarta
Planta quinta

OPINIÓN: J. MARINO PASCUAL

Construcción: vida/ Destrucción: (?)

Soy Arquitecto. Mi marco de vida profesional es proyectar y construir espacios habitables, seguros, higiénicos y confortables para el desarrollo vital de los seres humanos; fundamentalmente edificios residenciales en los que buscamos posibilitar el desarrollo de una vida plena y feliz para sus moradores. Se los grandes esfuerzos que conlleva la realización de una construcción de esta naturaleza: desde su concepción en un proyecto «sentido y con alma», interminable de planos, cálculos, cifras y

datos presupuestarios, hasta el duro y arduo proceso de construcción con la aportación de un sinfín de medios humanos, materiales, equipamiento técnico y mucha inversión económica y organizativa, para alcanzar ese día en el que culminan tantos desvelos y sus propietarios acceden por primera vez a su espacio vital, su lugar en el mundo, el seguro reducto de su intimidad y vida familiar. Pero también, como vemos, de manera tan explícita, lo fácil que es su brutal destrucción.

Las imágenes que vemos diariamente en TV nos muestran la aterradora aniquilación de tantas edificaciones, de tantos barrios y pueblos. Se nos hace imposible comprender tan miserable desprecio por la vida. Y, todo ello, al parecer para algunos, siguiendo un «mandato divino» y situándose moralmente por encima de quien les acusa de su barbaridad genocida. Tras la II Guerra Mundial y el final de la Alemania nazi, consumadas las sentencias del Juicio de Nuremberg y Tokio, mi generación, nacida inmediatamente después, ha vivido en una frágil burbuja, pero convencidos que la Carta de las Naciones Unidas de 1945 y el Derecho Internacional Humanitario de los posteriores convenios de Ginebra (1949), nos garantizaba un mundo más equilibrado y estable, capaz de imponer la razón sobre la fuerza y la barbarie.

Pero nos hemos formado en la vieja tradición de la cultura europea forjada por los grandes pensadores de la Filosofía Griega y Romana, del cristianismo y la distinción entre «el bien» y «el mal», el hermanamiento, la solidaridad y el bien común, como desarrollo personal

y de la sociedad en su conjunto. Creíamos que las Instituciones Nacionales con sus avanzadas legislaciones estaban reguladas con bases más o menos comunes y bajo el control de sus órganos judiciales y sancionadores.

De igual manera, en el contexto internacional, tras la creación en 1998 del Tribunal Penal Internacional, con sede en la Haya, para juzgar guerras de agresión, crímenes de guerra y de lesa humanidad, podíamos creer que estábamos en un mundo más avanzado y seguro, sin posibilidad de volver a producirse un genocidio. Pero estamos viendo que no, ante el horror y destrucción que diariamente observamos, mientras que aquellos que ejercen la agresión y el crimen se presentan ante nosotros sin despeinarse, con toda su impunidad y arrogancia, como salvadores y protectores ante el mal que nos acecha. Son estos, a pesar de su experiencia, precisamente los que no reconocen al Tribunal Penal Internacional: Netanyahu y sus cómplices, Trump, Putin, ... necesitan ausencia de control ante sus previsibles desmanes. ¡Impunidad!

Estamos en una fase de la humanidad en la que el retroceso es claramente evidente: la fuerza se impone a la razón. ¿Cuánto tiempo la Comunidad Internacional puede aguantar así, ante tanto abuso y horror? ¡El Mundo, como suma de personas que habita la tierra, ha enfermado! Vivimos el privilegio que nos ofrece el marco de esta ciudad, de este país y, aun con nuestras dificultades tenemos a nuestro alcance un sinfín de distracciones; vibramos con los éxitos deportivos, y nos tomamos unos pinchos con los amigos por la calle Laurel, ¿ante la intrascendencia del horror? ¡No! Hemos de levantar la voz y decir que no están en la verdad, que no pueden usar el nombre de Dios en vano. Si piensan así, su intelecto es pura materia, no hay en ellos nada Superior. Su corazón no puede albergar el calor y reflejo de la Divinidad de la que todo ser humano, por su naturaleza puede alcanzar.

Como decía Hannah Arendt, tras el juicio de Nuremberg, y ante lo que vemos a diario, estamos y convivimos con la «banalidad del mal». ¿Hasta cuándo seremos capaces de soportar tanta destrucción y tanto sinsentido y soportar a lideres tan deshumanizados?

Estamos ausentes de lideres que levanten la voz, que pongan la razón por encima de la fuerza, que miren al «ser humano», a la humanidad por encima de las riquezas. Que sean capaces de hacer entender y apreciar, como decía Heidegger, que, en cada uno de esos seres aniquilados, bajo los escombros o niños muertos por el hambre, vivía «una divinidad».

Edificios destruidos en Gaza. Enero de 2025.
Foto: Jaber Jehad Badwan
Vía: Wikimedia Commons

Turn static files into dynamic content formats.

Create a flipbook
Issuu converts static files into: digital portfolios, online yearbooks, online catalogs, digital photo albums and more. Sign up and create your flipbook.