Portafolio Mariangela Valenzuela

Page 1

1

TALLER IV EDIFICIO HÍBRIDO VIVIENDA

6 8

TALLER DE ALBAÑILERÍA EDIFICIO VIVIENDA COMERCIO

TALLER VI CENTRO CULTURAL PINAMAR

2
4
3 12
20
22
TALLER DE MADERA WALK IN CLOSET DE MELAMINE
DISEÑO DE INTERIORES SALA COMEDOR
FOTORREALISMO CASA EN LOS ÁRBOLES LUCIANO KRUK

TIV

EDIFICIO HÍBRIDO CULTURAL CERRO SAN CRISTÓBAL

4
5

TALLER CONSTRUCCIÓN

TALLER CONSTRUCCIÓN

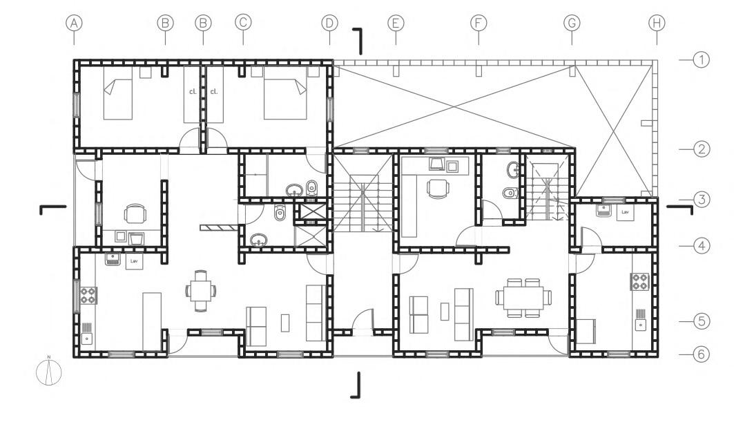
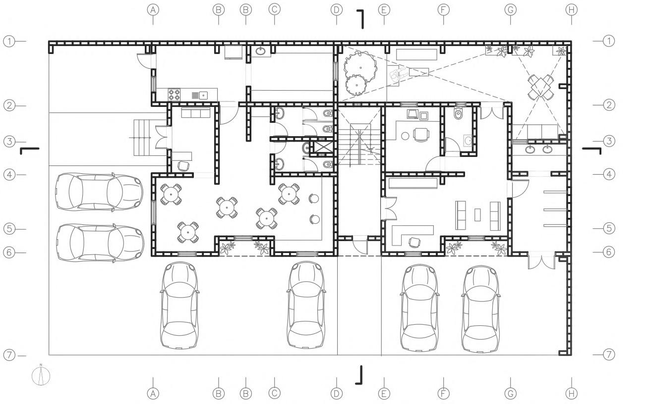
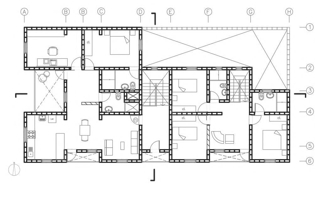
EDIFICIO VIVIENDA COMERCIO SURCO

EDIFICIO VIVIENDA COMERCIO SURCO

PRIMERA PLANTA SEGUNDA PLANTA TERCERA PLANTA

ESQUEMA FUNCIONAL

Local comercial

Recepción de viviendas Circulación

Vivienda 2 dorm Vivienda duplex Circulación

Vivienda 1 dorm Vivienda duplex Circulación

86

DETALLE CONSTRUCTIVO

97 22
EXPLOTADA
ISOMETRÍA
8

TVI

CENTRO CULTURAL PINAMAR ARGENTINA

9
10
11

CENTRO DE SALUD CATEGORIA I-4

12 TVII
13

EDIFICIO BIBLIOTECA - VIVIENDA MAGDALENA DEL MAR

14 TVIII
15

TALLER DE MADERA

WALK IN CLOSET DE MELAMINE

FACULTAD DE ARQUITECTURA SAN MIGUEL CURSO: ACABADOS Y TECNOLOGÍA EN MADERA: AS 7B SECCIÓN: FECHA: 05 - 10 - 2021

16
DORMITORIO PRINCIPAL S.H. PRINCIPAL
A - 02 UPC UNIVERSIDAD PERUANA DE CIENCIAS APLICADAS
+2.80
SAN CURSO: ACABADOS EN SECCIÓN: PROFESORES: PROYECTO: MUJER EJECUTIVA
P7
A
PROFESORES: PROYECTO: MUJER DE 40 AÑOS EJECUTIVA DEPORTE NATACIÓN WALK IN CLOSET PLANO: ARQ. FRANCIS RIVERA ARQ. JOSE MIGUEL RIOS GRUPO: 3 INTEGRANTES: 1- FLORES, SOFÍA #U201815322 2-MAMANI, KAREN #U201815425 3-PACHAS, ALEJANDRA #U201815548 4-RAMIREZ, LEILA #U201717462 5-VALENZUELA, MARIANGELA #U201720963 LÁMINA
SEDE: PLANTA PROPUESTA NPT.
NPT. +2.95
DEPORTE WALK PLANO: GRUPO: INTEGRANTES: 12-MAMANI, 3-PACHAS, 4-RAMIREZ, 5-VALENZUELA, LÁMINA PLANTA P7
#94 #96 #17 #26 #28 #23 #31 #48 #4 #46 #37 #44 #45 #38 #19 #20 #29 #24 #108 #107 #74 #78 #77 #72 FECHA: PLANTA FACULTAD ARQUITECTURA SAN MIGUEL CURSO: ACABADOS EN MADERA: SECCIÓN: PROFESORES: PROYECTO: MUJER EJECUTIVA DEPORTE WALK IN PLANO: ARQ. FRANCIS ARQ. JOSE GRUPO: INTEGRANTES: 1- FLORES, SOFÍA 2-MAMANI, KAREN 3-PACHAS, ALEJANDRA 4-RAMIREZ, 5-VALENZUELA, LÁMINA
UNIVERSIDAD CIENCIAS PLANTA P7 P7 #94 #96 #17 #26 #28 #23 #31 #48 #4 #46 #37 #44 #45 #38 #19 #20 #29 #24 #108 #107 #74 #78 #77 #72 FECHA: P7 P7

FACULTAD DE ARQUITECTURA

SAN MIGUEL CURSO: ACABADOS Y TECNOLOGÍA EN MADERA: SECCIÓN:

PROFESORES:

17
1 2 8 3 4 6 7 5 9
1-
2-MAMANI,
3-PACHAS,
4-RAMIREZ,
5-VALENZUELA,
LÁMINA A - 20 UPC UNIVERSIDAD PERUANA DE CIENCIAS APLICADAS AS7B ELEVACIÓN
A A
B D 1 2 3 B B
8
7 5 9 C ELEVACIÓN
PROYECTO: MUJER DE 40 AÑOS EJECUTIVA DEPORTE NATACIÓN WALK IN CLOSET PLANO: ARQ. FRANCIS RIVERA ARQ. JOSE MIGUEL RIOS GRUPO: 3 INTEGRANTES:
FLORES, SOFÍA #U201815322
KAREN #U201815425
ALEJANDRA #U201815548
LEILA #U201717462
MARIANGELA #U201720963
A
FECHA: 05 - 10 - 2021
1 2
3 4 6

FACULTAD DE ARQUITECTURA

SAN MIGUEL

TECNOLOGÍA

AÑOS

18
A - 72 UPC
AS7B CORTES
VALENZUELA,
VALENZUELA, MARIANGELA Tapa canto e=
Tornillo autorroscante Tarrajeo 1.5 cm Melamina base e= 18mm Melamina e= 18mm Melamina e= 18mm Corredera Telescópica Corredera Telescópica Tornillo enrroscante Tapa para tornillo a presión Tapacanto e= 1 mm DETALLE 109 ESC 1 / 25 DETALLE 110 ESC 1 / 2.5 Tapacanto e= 1 mm Tirafón 7.5 cm 8 21,12 8 8 21,12 8 2,81 2,81 Tornillo autorroscante Melamina e= 18mm MÓDULOS Tapa canto e= 0.50mm Tornillo autorroscante Tarrajeo 1.5 cm Melamina e= 18mm Melamina e= Corredera DETALLE ESC 1 DETALLE 110 ESC 1 / 2.5 Tirafón 7.5 cm 8 21,12 8 2,81 Tornillo autorroscante Melamina e= 18mm FACULTAD DE ARQUITECTURA SAN MIGUEL CURSO: ACABADOS Y TECNOLOGÍA PROFESORES: EJECUTIVA PLANO: 72 UNIVERSIDAD PERUANA DE CIENCIAS APLICADAS D 109 D 110 Tapa canto e= 0.50mm Tornillo autorroscante Tarrajeo 1.5 cm Melamina e= 18mm DETALLE 110 ESC 1 / 2.5 Tirafón 7.5 cm 8 21,12 8 2,81 Tornillo autorroscante Melamina e= 18mm
CURSO: ACABADOS Y
EN MADERA: SECCIÓN: FECHA: 05 - 10 - 2021 PROFESORES: PROYECTO: MUJER DE 40
EJECUTIVA DEPORTE NATACIÓN WALK IN CLOSET PLANO: ARQ. FRANCIS RIVERA ARQ. JOSE MIGUEL RIOS GRUPO: 3 INTEGRANTES: 1- FLORES, SOFÍA #U201815322 2-MAMANI, KAREN #U201815425 3-PACHAS, ALEJANDRA #U201815548 4-RAMIREZ, LEILA #U201717462 5-VALENZUELA, MARIANGELA #U201720963 LÁMINA
UNIVERSIDAD PERUANA DE CIENCIAS APLICADAS
CONSTRUCTOR
MARIANGELA
0.50mm
20
21
22
23
24
25
26

Turn static files into dynamic content formats.

Create a flipbook
Issuu converts static files into: digital portfolios, online yearbooks, online catalogs, digital photo albums and more. Sign up and create your flipbook.