LEVANTAMIENTO DEL PERFIL URBANO - JAUJA 2022

Page 1

TRABAJO DE VERIFICACIÓN Y LEVANTAMIENTO DE PERFIL URBANO CULTURAL PATRIMONY – 2022

CUADRA 4 y 5 DEL JIRÓN SALAVERRY - JAUJA

ASTO AZURZA, JUAN NICOLAS

ESTUDIANTE DE ARQUITECTURA

TRABAJO DE VERIFICACIÓN Y LEVANTAMIENTO DE PERFIL URBANO

CUADRA 4 y 5 DEL JIRÓN SALAVERRY - JAUJA

AUTORES:

Alcalde Huerta, Julio Renán

Asto Asurza, Juan Nicolas

Escobedo Montoya, María Fernanda

Taype Mamani, Raquel Milagros

ASESOR: Dr. Arq. Esteves Saldaña, Teddy

Lima – Perú

2022

VERIFICACIÓN DE PERFIL URBANO

CUADRA 4 DEL JR. SALAVERRY

JAUJA - JUNÍN

• PLANO 01

• FICHAS 1-2-3-4

ANEXO I

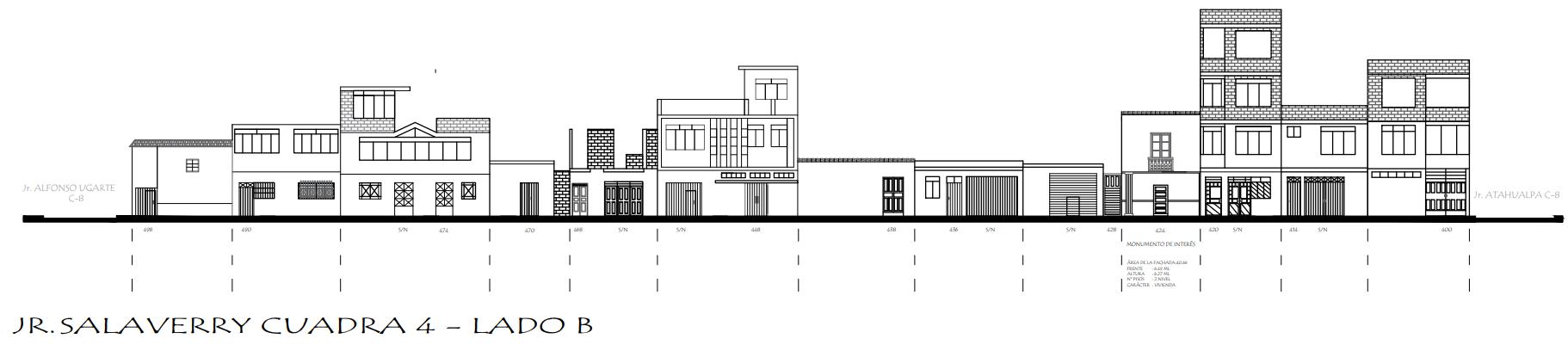
JR.SALAVERRYCUADRA4-LADOB

ARQUITECTÓNICODEJAUJA

SEOBSERVAUNMONUMENTODEINTERES

MUNICIPALIDADPROVINCIALDEJAUJA

DE INTERESMONUMENTO DECLARATORIALEGAL Nº DE ORDEN INMUEBLEEVALUADO USOACTUALDELINMUEBLE ESTADODECONSERVACIÓN Nº DE FICHA VIVIENDACOMERCIOEDUCACIONRELIGIOSOAD.PUBLICAUSO MIXTO USOSESPECIFICOS OTROS USOS RESTAURADO BUENO REGULAR DIAGNÓSTICO PRELIMINAR OBSERVACIONES GENERALES JR.SALAVERRYCUADRA4-LADO"A" 427 VIVIENDA EVALUACIÓNYDIAGNÓSTICODELPATRIMONIOURBANO ARQUITECTÓNICODEJAUJA 401 421 JR.SALAVERRYCUADRAB-LADO"B" 4 2 5 4 3 2 1 VIVIENDA 3 S/N 441 445 449 457 VIVIENDA 459 S/N VIVIENDA VIVIENDA 5 VIVIENDA VIVIENDA VIVIENDA VIVIENDA VIVIENDA VIVIENDA VIVIENDA VIVIENDA-COMERCIO 401 421 427 S/N 445 457 S/N S/N S/N 495 JR.SALAVERRYCUADRA4-LADOA 6 8 6 11 VIVIENDA VIVIENDA VIVIENDA VIVIENDA VIVIENDA VIVIENDA Jr.ALFONSOUGARTE C-8 PLANODEUBICACIÓN ESC.1/500 UNIVERSIDAD CÉSARVALLEJO LIMA-ESTE VERIFICACIONDEPERFILESURBANOS EQUIPODETRABAJO: ASESOR: ARQ.TEDDYIVANESTEVESSALDAÑA FECHA: NOVIEMBRE2022 LÁMINA: PLANOS: EVALUACIÓNYDIAGNÓSTICODELPATRIMONIOURBANOARQUITECTÓNICODEJAUJA PROYECTO: CÓDIGO ESCALA: INDICADA CENTROHISTÓRICODEJAUJA-JUNÍN(PERÚ) LUGAR: UCV UNIVERSIDAD CÉSAR VALLEJO VERIFICACIÓNDEJR.SALAVERRYCUADRA4LADOA-B DIBUJO:
EST.ARQ.TAYPEMAMANIRAQUEL ALCALDEHUERTA,JULIORENAN ASTOASURZA,JUANNICOLAS ESCOBEDOMONTOYA.MARIAFERNANDA TAYPEMAMANI,RAQUELMILAGROS EDPA-J CIUDADDEJAUJA ÁREADELAFACHADA:44.75 7.53ML ALTURA 5.24ML NºPISOS NIVEL CARÁCTER VIVIENDA MONUMENTODEINTERÉS Jr.ATAHUALPA C-8 S/N 441 449 469 475 VIVIENDAHABITADA VIVIENDAHABITADA DESCASCARAMIENTO VIVIENDAHABITADA DESCASCARAMIENTO VIVIENDAHABITADA SUCIEDAD VIVIENDAHABITADA S/N VIVIENDA 469 VIVIENDA DESCASCARAMIENTO VIVIENDAHABITADA 475 S/N VIVIENDA VIVIENDA VIVIENDAHABITADA VIVIENDAHABITADA S/N 495 VIVIENDA VIVIENDAHABITADA VIVIENDA HUMEDAD VIVIENDAHABITADA 9 10 32 LADOA LADOB 7 8 10 VIVIENDA VIVIENDA VIVIENDA VIVIENDA VIVIENDA VIVIENDA VIVIENDA VIVIENDA VIVIENDA MALO PLANODELOCALIZACIÓN ESC.1/7500 CIUDADDEJAUJA 13 32 27 37 A 14 N N 01 459 7 N°. PISOS 2 2 2 DESCASCARAMIENTO DESCASCARAMIENTO, HUMEDAD,SUCIEDAD SALITRE,EROSION HUMEDAD SALITRE VIVIENDAHABITADA VIVIENDAHABITADA VIVIENDAHABITADA VIVIENDAHABITADA VIVIENDAHABITADA VIVIENDANOHABITADA EVALUACIÓNYDIAGNÓSTICODELPATRIMONIOURBANO
10 OBSERVACIONES: TOTAL USOMIXTO TALLERES OFICINA AD.PUBLICA RELIGIOSO CULTURAL SALUD EDUCACION COMERCIO VIVIENDA NOMONUMENTOS UNIDADES MONUMENTOS UNIDADES USOACTUAL UDS. 0BSERVACIONES: MALO REGULAR BUENO RESTAURACIÓN PARCIAL RESTAURACIÓN TOTAL METROS OBSERVACIONES: PROMEDIO DOMINANTE NO MONUMENTOS MONUMENTOS OBSERVACIONES: TOTAL: MIXTO: NOTRADICIONAL % UNIDAD TRADICIONAL(BARRO, PIEDRA,MADERA,CAÑA) USOACTUALDELA EDIFICACIÓN ESTADODECONSERVACIÓN DELINMUEBLE ALTURAPREDOMINANTE DEFACHADA MATERIALESDECONSTRUCCION INMUEBLESDECLARADOS MONUMENTOS NOVIEMBRE2022 NºDEINMUEBLES(LOTES): FRENTE:A CUADRA:04 JIRON:SALAVERRY NºDE INM. 11 10 9 7.50 13.10 13 OBSERVACIONES: TOTAL USOMIXTO TALLERES OFICINA AD.PUBLICA RELIGIOSO CULTURAL SALUD EDUCACION COMERCIO VIVIENDA NOMONUMENTOS UNIDADES MONUMENTOS UNIDADES USOACTUAL UDS. 0BSERVACIONES: DEMOLIDO MALO REGULAR BUENO METROS OBSERVACIONES: PROMEDIO DOMINANTE MONUMENTOS MONUMENTOS OBSERVACIONES: TOTAL: MIXTO: NOTRADICIONAL % UNIDAD TRADICIONAL(BARRO, PIEDRA,MADERA,CAÑA) USOACTUALDELA EDIFICACIÓN ESTADODECONSERVACIÓN DELINMUEBLE ALTURAPREDOMINANTE DEFACHADA MATERIALESDECONSTRUCCION INMUEBLESDECLARADOS MONUMENTOS DICIEMBRE2018 NºDEINMUEBLES(LOTES): FRENTE:B CUADRA:04 JIRON:SALAVERRY2 100% 6.60RESTAURACIÓN PARCIAL RESTAURACIÓN TOTAL 20% 11 80% 427 401 421 4 2 1 3 SN 441 445 449 457 459 SN 5 6 7 SN 469 475 SN 8 SN 495 9 10 468 SN SN 474 498 490 SN 470 448 414 5 4 2 6 11 438 436 SN 7 SN 428 8 424 420 SN 9 OBSERVACIONES RESOLUCION NºDEFINCA
ENELJR.SALAVERRYCUADRA4. OBSERVACIONES RESOLUCION NºDEFINCA NºDE INM. 12 498 490 474 470 468 S/N 436 424 420 ÁREADELAFACHADA:40.66 FRENTE 6.49ML ALTURA 6.27ML NºPISOS NIVEL CARÁCTER VIVIENDA MONUMENTODEINTERÉS Jr.ATAHUALPAC-8 Jr.ALFONSOUGARTE C-8 S/N S/N 438 S/N S/N 428 S/N 414 448 S/N 400
498 490 S/N 474 470 468 S/N S/N 448 438 436 S/N S/N 428 9 424 420 S/N 414 S/N 12 400 13 2 3 2 3 2 4 2 3 VIVIENDA VIVIENDA HUMEDAD COLAPSO,EROSIÓN HUMEDAD,FISURAS HUMEDAD,EROSIÓN SUCIEDAD DESCASCARAMIENTO VIVIENDAHABITADA VIVIENDAHABITADA VIVIENDAHABITADA VIVIENDAHABITADA VIVIENDAHABITADA VIVIENDAHABITADA VIVIENDAHABITADA VIVIENDAHABITADA VIVIENDAHABITADA VIVIENDAHABITADA VIVIENDAHABITADA VIVIENDAHABITADA VIVIENDAHABITADA VIVIENDAHABITADA VIVIENDAHABITADA VIVIENDAHABITADA VIVIENDAHABITADA VIVIENDAHABITADA VIVIENDAHABITADA VIVIENDAHABITADA (CEMENTO,FIERRO, VIDRIO) 4 60% 40% 6.00 3.50 5.5022 1 1 SEOBSERVAUNMONUMENTODEINTERES ENELJR.SALAVERRYCUADRA4. 10 SN 400 12 13 (CEMENTO,FIERRO, VIDRIO) 10 100% NO

ELLADOADELACUADRA4DELJIRÓNSALAVERRY,NOSE ENCUENTRANMONUMENTOSYSEENCUENTRA1INMUEBLEDE INTERÉS,ELUSOPREDOMINANTEYTOTALDELOSLOTESDEL LADO"A"ESVIVIENDAINCLUIDOELINMUEBLEDEINTERÉS.

ELLADOADELACUADRA4DELJIRÓNSALAVERRRY,EL60%DE LAS VIVIENDAS ESTÁN CONSTRUIDAS CON MATERIAL TRADICIONAL,REALIZADASCONADOBE,QUINCHA,MADERA, PIEDRA,TEJA.SINENEMBARGOEL40%DEVIVIENDASSONDE MATERIAL NO TRADICIONAL, REALIZADAS EL 20% DE CONCRETO,ACEROYVIDRIOYEL20%DECONCRETO,MADERAY VIDRIO.

LAALTURAPROMEDIODOMINANTEQUESEPRESENTANENELSECTORES 4.16m,CALCULANDOLASUMATORIADETODOSLOSLOTESENTRELA CANTIDADDEESTOS.SINEMBARGOHAYEXISTENCIADE7LOTESDE1PISOY 3LOTESDE2PISOS,PERODEDIFERENTEALTURA.

MUNICIPALIDAD PROVINCIALDEJAUJA UCV UNIVERSIDAD CÉSAR VALLEJO PATRIMONIOCULTURAL FACULTADDEARQUITECTURA ESTADÍSTICADEVERIFICACIÓNDELPERFILURBANODELAPROVINCIADEJAUJA FECHA: CODIGO: N°DE FICHA: NOVIEMBRE2022
MONUMENTOS CANTIDAD PORCENTAJE MONUMENTOS NOMONUMENTOS MONUMENTOS INTERPRETACIÓN: TOTAL 10 100% 0% 90% 1 9 0 10% NOMONUMENTOS INMUEBLESDEINTERÉS INMUEBLEDEINTERÉS MATERIALES CANTIDAD PORCENTAJE TRADICIONAL TRADICIONAL TOTAL 10 100% 6 NOTRADICIOINAL NOTRADICIONAL INTERPRETACIÓN: 20% 60% ALTURAPREDOMINANTE PROMEDIO PORCENTAJE CUADRA4LADOA (METROS) INTERPRETACIÓN: EDPA-J 90% concreto-acero-vidrio concreto-madera-vidrio 4 20% 40% 40.0% 60.0% N°DELOTES:10 01 401 S/N 495 JR.SALAVERRYCUADRA4-LADOA Jr.ALFONSOUGARTE C-8 ÁREADELAFACHADA:44.75 NºPISOS NIVEL CARÁCTER MONUMENTODEINTERÉS Jr.ATAHUALPA C-8 JR.SALAVERRYCUADRA4-LADOA Jr.ALFONSOUGARTE
JR.SALAVERRYCUADRA04-LADOA
4.16m 10%

VERIFICACIONDELEVANTAMIENTODELPERFILURBANO

INTERPRETACIÓN:

ELLADOADELACUADRA4DELJIRÓNSALAVERRY,EL100%DELASVIVIENDASQUESONDIEZUNIDADES,PRESENTANELUSODE RESIDENCIALODEVIVIENDA.

INTERPRETACIÓN:

ELESTADODECONSERVACIÓNDELASVIVIENDASENLACUADRA4DELJIRÓNSALAVERRYLADO"A",CORRESPONDEA:2

VIVIENDASENESTADODERESTAURACIÓN,2VIVIENDASENESTADOREGULARY6VIVIENDASENESTADOMALO.

MUNICIPALIDAD
UCV UNIVERSIDAD CÉSAR VALLEJO PATRIMONIOCULTURAL
PROVINCIALDEJAUJA
FACULTADDEARQUITECTURA
N°DE
USOACTUAL CANTIDAD PORCENTAJE VIVIENDA 0% 100% 10 SALUD COMERCIO(VIVIENDA-COMERCIO) EDUCACIÓN CULTURAL RELIGIOSO ADM.PÚBLICA OFICINAS TALLERES 0% 0% 0% 0% 0% 0% 0% USOVIVIENDA USOACTUAL 100%
FECHA: CODIGO:
FICHA: EDPA-J
ESTADODECONSERVACIÓN CANTIDAD PORCENTAJE BUENO 2 20%MALO DEMOLIDO REGULAR TOTAL 6 60%ESTADODECONSERVACIÓN
100% 10% 30% 60% RESTAURADO REGULAR MALO 02 NOVIEMBRE2022 RESTAURADO 2 20%

JR.SALAVERRYCUADRA04-LADOB

ELLADOBDELACUADRA4DELJIRÓNSALAVERRY,NOSE ENCUENTRANMONUMENTOSYSEENCUENTRA1INMUEBLEDE INTERÉS,ELUSOPREDOMINANTEYTOTALDELOSLOTESDEL LADO"B"ESVIVIENDAYVIVIENDACOMERCIOINCLUIDOEL INMUEBLEDEINTERÉS.

ELLADOBDELACUADRA4DELJIRÓNSALAVERRRY,EL20%DE LAS VIVIENDAS ESTÁN CONSTRUIDAS CON MATERIAL TRADICIONAL,REALIZADASCONADOBE,QUINCHA,MADERA, PIEDRA,TEJA.SINENEMBARGOEL80%DEVIVIENDASSONDE MATERIALNOTRADICIONAL,REALIZADASDECONCRETO, ACEROYVIDRIO.

LAALTURAPROMEDIODOMINANTEQUESEPRESENTANENELSECTORES 6.59m,CALCULANDOLASUMATORIADETODOSLOSLOTESENTRELA CANTIDADDEESTOS.SINEMBARGOHAYEXISTENCIADE5LOTESDE1PISO,4 LOTESDE2PISOS,3LOTESDE3PISOSY1LOTEDE4PISOS, PERODE DIFERENTEALTURA.

MUNICIPALIDAD PROVINCIALDEJAUJA UCV UNIVERSIDAD CÉSAR VALLEJO PATRIMONIOCULTURAL FACULTADDEARQUITECTURA ESTADÍSTICADEVERIFICACIÓNDELPERFILURBANODELAPROVINCIADEJAUJA
N°DE FICHA:
FECHA: CODIGO: NOVIEMBRE2022
MONUMENTOS CANTIDAD PORCENTAJE MONUMENTOS NOMONUMENTOS MONUMENTOS INTERPRETACIÓN: TOTAL 13 100% 0% 90% 1 12 0 10% NOMONUMENTOS INMUEBLESDEINTERÉS INMUEBLEDEINTERÉS MATERIALES CANTIDAD PORCENTAJE TRADICIONAL TRADICIONAL TOTAL 13 100% 2 NOTRADICIOINAL NOTRADICIONAL INTERPRETACIÓN: 80% 20% ALTURAPREDOMINANTE PROMEDIO PORCENTAJE CUADRA4LADOA (METROS) INTERPRETACIÓN: EDPA-J 90% concreto-acero-vidrio concreto-madera-vidrio 11 0% 80% 20.0% 80.0% N°DELOTES:13 03
6.59m 474 470 MONUMENTODEINTERÉS Jr.ATAHUALPAC-8 Jr.ALFONSOUGARTE C-8 S/N S/N S/N S/N S/N
10%
JR.SALAVERRYCUADRA4-LADOB
Jr.ALFONSOUGARTE JR.SALAVERRYCUADRA4-LADOB

INTERPRETACIÓN:

ELLADOBDELACUADRA4DELJIRÓNSALAVERRY,EL90%DELASVIVIENDASQUESONDOCEUNIDADES,PRESENTANELUSODE RESIDENCIALODEVIVIENDAYEL10%DELASVIVENDASQUEESUNAUNIDADPRESENTAUNUSODEVIVIENDACOMERCIO.

INTERPRETACIÓN:

ELESTADODECONSERVACIÓNDELASVIVIENDASENLACUADRA4DELJIRÓNSALAVERRYLADO"B",CORRESPONDEA:9

VIVIENDASENESTADOBUENO,3VIVIENDASENESTADOREGULARY1VIVIENDAENESTADOMALO.

MUNICIPALIDAD PROVINCIALDEJAUJA UCV UNIVERSIDAD CÉSAR VALLEJO PATRIMONIOCULTURAL FACULTADDEARQUITECTURA
VERIFICACIONDELEVANTAMIENTODELPERFILURBANO
N°DE FICHA:
USOACTUAL CANTIDAD PORCENTAJE VIVIENDA 0% 90% 12 SALUD COMERCIO(VIVIENDA-COMERCIO) EDUCACIÓN CULTURAL RELIGIOSO ADM.PÚBLICA OFICINAS TALLERES 0% 10% 0% 0% 0% 0% 0% USOVIVIENDA USOACTUAL 90%
FECHA: CODIGO:
EDPA-J
ESTADODECONSERVACIÓN CANTIDAD PORCENTAJE BUENO 3 30% 60% 9 MALO DEMOLIDO REGULAR TOTAL 1 10%ESTADODECONSERVACIÓN
100% 10% 30% 60% BUENO REGULAR MALO 04 NOVIEMBRE2022 RESTAURADO -1 10%
COMERCIO
USOVIVIENDA-

VERIFICACIÓN DE PERFIL URBANO

CUADRA 5 DEL JR. SALAVERRY

JAUJA - JUNÍN

• PLANO 02

• FICHAS 5-6-7-8

2
ANEXO

EVALUACIÓNYDIAGNÓSTICODELPATRIMONIOURBANO ARQUITECTÓNICODEJAUJA

DE INTERESMONUMENTO DECLARATORIALEGAL Nº DE ORDEN INMUEBLEEVALUADO USOACTUALDELINMUEBLE ESTADODECONSERVACIÓN Nº DE FICHA VIVIENDACOMERCIOEDUCACIONRELIGIOSOAD.PUBLICAUSO MIXTO USOSESPECIFICOS OTROS USOS RESTAURADO BUENO REGULAR DIAGNÓSTICO PRELIMINAR OBSERVACIONES GENERALES JR.SALAVERRYCUADRA5LADO"A"
ARQUITECTÓNICODEJAUJA
EVALUACIÓNYDIAGNÓSTICODELPATRIMONIOURBANO
11 7100 60% 11 6 OBSERVACIONES: TOTAL USOMIXTO TALLERES OFICINA AD.PUBLICA RELIGIOSO CULTURAL SALUD EDUCACION COMERCIO VIVIENDA NOMONUMENTOS UNIDADES MONUMENTOS UNIDADES METROSUSOACTUAL 0BSERVACIONES: DEMOLIDO MALO REGULAR BUENO RESTAURACIÓN PARCIAL RESTAURACIÓN TOTAL METROS OBSERVACIONES: PROMEDIO DOMINANTE NO MONUMENTOS MONUMENTOS OBSERVACIONES: TOTAL: MIXTO: NOTRADICIONAL (CEMENTO,FIERRO,VIDRIO) % UNIDAD TRADICIONAL(BARRO, PIEDRA,MADERA,CAÑA) USOACTUALDELA EDIFICACIÓN ESTADODECONSERVACIÓN DELINMUEBLE ALTURAPREDOMINANTE DEFACHADA MATERIALESDECONSTRUCCION INMUEBLESDECLARADOS MONUMENTOS NOVIEMBRE2022 NºDEINMUEBLES(LOTES): FRENTE:A CUADRA:05 JIRON:SALAVERRY 2 2 11
40% PLANODEUBICACIÓN ESC.1/500 CIUDADDEJAUJA 32 LADOA LADOB MALONOSEOBSERVAMONUMENTOSDEINTERES ENELJR.SALAVERRYCUADRA5. 11PLANODELOCALIZACIÓN ESC.1/7500 CIUDADDEJAUJA 13 32 27 37 A 14 OBSERVACIONES RESOLUCION NºDEFINCA NºDE INM. N N N° PISOS 514 VIVIENDA 500 510 4 2 526 SN 534 538 VIVIENDA SN 544 VIVIENDA VIVIENDA 5 VIVIENDA 7 VIVIENDA VIVIENDA VIVIENDAHABITADA VIVIENDAHABITADA SUCIEDAD 516 VIVIENDA SN VIVIENDAHABITADA 590 592 8 VIVIENDA VIVIENDA SUCIEDAD VIVIENDAHABITADA SUCIEDAD VIVIENDAHABITADA VIVIENDA SUCIEDAD VIVIENDAHABITADA 10 3 560 11 SN 1 3 2 2 2 2 DESCASCARAMIENTO DESCASCARAMIENTO VIVIENDAHABITADA VIVIENDAHABITADA SUCIEDAD SUCIEDAD VIVIENDAHABITADA VIVIENDAHABITADA VIVIENDAHABITADA SUCIEDAD SUCIEDAD SUCIEDAD 514 500 510 4 1 2 526 SN 534 538 SN 544 5 6 7 516 SN 590 592 8 9 10 3 560 11 SNYAQUEENSUTOTALIDADDELASEDIFICACIONES SONDEMATERIALNOTRADICIONAL. JR.SALAVERRYCUADRA5-LADOA 4.89 2.14 4.89 2.14 Jr.MANCOCAPAC C-7 Jr.ALFONSO UGARTEC-4 S/N .90 0.90 4.89 2.14 0.90 4.89 2.14 .90 Jr.MANCOCAPAC C-7 Jr.ALFONSOUGARTE C-4 UNIVERSIDAD CÉSARVALLEJO LIMA-ESTE LEVANTAMIENTODEPERFILESURBANOS EQUIPODETRABAJO: ASESOR: ARQ.TEDDYIVANESTEVESSALDAÑA FECHA: NOVIEMBRE2022 LÁMINA: PLANOS: EVALUACIÓNYDIAGNÓSTICODELPATRIMONIOURBANOARQUITECTÓNICODEJAUJA PROYECTO: CÓDIGO ESCALA: INDICADA CENTROHISTÓRICODEJAUJA-JUNÍN(PERÚ) LUGAR: UCV UNIVERSIDAD CÉSAR VALLEJO VERIFICACIÓNDEJR.SALAVERRYCUADRA4LADOA-B DIBUJO: MUNICIPALIDADPROVINCIALDEJAUJA EST.ARQ.TAYPEMAMANIRAQUEL ALCALDEHUERTA,JULIORENAN ASTOASURZA,JUANNICOLAS ESCOBEDOMONTOYA.MARIAFERNANDA TAYPEMAMANI,RAQUELMILAGROS EDPA-J 02
JR.SALAVERRYCUADRA5-LADOB

ELLADOADELACUADRA5DELJIRÓNSALAVERRY,NOSE ENCUENTRANMONUMENTOSDEINTERÉS,ELUSODEUNSOLO LOTEESTADESTINADOALUSORECREATIVO.

ELLADOADELACUADRA5DELJIRÓNSALAVERRRY,EL100% DELLOTEESTÁCONSTRUIDOCONMATERIALTRADICIONAL,YLO CONSTITUYEUNMUROPERIMÉTRICO.

LAALTURAPROMEDIODOMINANTEESPORELMUROPERIMÉTRICOQUE PRESENTANELSECTORSIENDODE2.50m.

JR.SALAVERRYCUADRA05-LADOA MONUMENTOS CANTIDAD PORCENTAJE MONUMENTOS NOMONUMENTOS MONUMENTOS INTERPRETACIÓN: TOTAL NOMONUMENTOS INMUEBLESDEINTERÉS INMUEBLEDEINTERÉS MATERIALES CANTIDAD PORCENTAJE TRADICIONAL TRADICIONAL TOTAL NOTRADICIOINAL NOTRADICIONAL INTERPRETACIÓN: ALTURAPREDOMINANTE PROMEDIO PORCENTAJE CUADRA5LADOA (METROS) INTERPRETACIÓN: concreto-acero-vidrio concreto-madera-vidrio N°DELOTES:01 JR.SALAVERRYCUADRA5-LADOA 4.89 2.14 4.89 2.14 Jr.MANCOCAPAC C-7 Jr.ATAHUALPAC-4 S/N .90 0.90 2.50m MUNICIPALIDAD PROVINCIALDEJAUJA UCV UNIVERSIDAD CÉSAR VALLEJO PATRIMONIOCULTURAL FACULTADDEARQUITECTURA VERIFICACIONDELEVANTAMIENTODELPERFILURBANO FECHA: CODIGO: N°DE FICHA: EDPA-J 05 NOVIEMBRE2022 0 0% 0% 0% 0 0 0 0% 1 100% 0 0% 1 100% 100.0%

VERIFICACIONDELEVANTAMIENTODELPERFILURBANO

ELLADOADELACUADRA5DELJIRÓNSALAVERRY,EL100%DELLOTEESTADESTINADOALESPARCIMIENTOYELDEPORTE.

ELESTADODECONSERVACIÓNDELMUROPERIMÉTRICOENLACUADRA5DELJIRÓNSALAVERRYLADO"A",ESDEESTADO REGULAR.

MUNICIPALIDAD PROVINCIALDEJAUJA UCV UNIVERSIDAD
PATRIMONIOCULTURAL FACULTADDEARQUITECTURA
CÉSAR VALLEJO
N°DE FICHA:
USOACTUAL CANTIDAD PORCENTAJE DEPORTIVO SALUD COMERCIO(VIVIENDA-COMERCIO) EDUCACIÓN CULTURAL RELIGIOSO ADM.PÚBLICA OFICINAS TALLERES DEPORTIVO USOACTUAL INTERPRETACIÓN:
FECHA: CODIGO:
EDPA-J
ESTADODECONSERVACIÓN CANTIDAD PORCENTAJE BUENO MALO DEMOLIDO REGULAR TOTAL ESTADODECONSERVACIÓN INTERPRETACIÓN: RESTAURADO REGULAR MALO 06 NOVIEMBRE2022 RESTAURADO 1 100% 100.0% 1 100%

ELLADOBDELACUADRA5DELJIRÓNSALAVERRY,NOSE ENCUENTRANMONUMENTOSYSEENCUENTRA3INMUEBLEDE INTERÉS,ELUSOPREDOMINANTEYTOTALDELOSLOTESDEL LADO"B"ESVIVIENDA,INCLUIDOELINMUEBLEDEINTERÉS.

ELLADOBDELACUADRA5DELJIRÓNSALAVERRRY,EL30%DE LAS VIVIENDAS ESTÁN CONSTRUIDAS CON MATERIAL TRADICIONAL,REALIZADASCONADOBE,QUINCHA,MADERA, PIEDRA,TEJA.SINENEMBARGOEL70%DEVIVIENDASSONDE MATERIALNOTRADICIONAL,REALIZADASDECONCRETO, ACEROYVIDRIO.

LAALTURAPROMEDIODOMINANTEQUESEPRESENTANENELSECTORES 8.10m,CALCULANDOLASUMATORIADETODOSLOSLOTESENTRELA CANTIDADDEESTOS.SINEMBARGOHAYEXISTENCIADE5LOTESDE1PISO,5 LOTESDE2PISOS,1LOTEDE3PISOSY1LOTEQUESOLOESTACERCADOPOR MUROSDECONCRETOCONUNPORTONENTODALAFACHADA.

MUNICIPALIDAD PROVINCIALDEJAUJA UCV UNIVERSIDAD CÉSAR VALLEJO PATRIMONIOCULTURAL FACULTADDEARQUITECTURA ESTADÍSTICADEVERIFICACIÓNDELPERFILURBANODELAPROVINCIADEJAUJA
N°DE FICHA:
FECHA: CODIGO: NOVIEMBRE2022
MONUMENTOS CANTIDAD PORCENTAJE MONUMENTOS NOMONUMENTOS MONUMENTOS INTERPRETACIÓN: TOTAL 11 100% 0% 70% 2 09 0 30% NOMONUMENTOS INMUEBLESDEINTERÉS INMUEBLEDEINTERÉS MATERIALES CANTIDAD PORCENTAJE TRADICIONAL TRADICIONAL TOTAL 11 100% 3 NOTRADICIOINAL NOTRADICIONAL INTERPRETACIÓN: 70% 30% ALTURAPREDOMINANTE PROMEDIO PORCENTAJE CUADRA5LADOB (METROS) INTERPRETACIÓN: EDPA-J 70% concreto-acero-vidrio concreto-madera-vidrio 08 0% 70% 30.0% 70.0% N°DELOTES:12 07
JR.SALAVERRYCUADRA05-LADOB
30%
JR.SALAVERRYCUADRA5-LADOB
4.89 2.14 0.90 4.89 2.14 .90 Jr.MANCOCAPAC Jr.ALFONSO UGARTEC-4 8.00m
JR.SALAVERRYCUADRA4-LADOB

INTERPRETACIÓN:

ELLADOBDELACUADRA5DELJIRÓNSALAVERRY,EL90%DELASVIVIENDASQUESONDOCEUNIDADES,PRESENTANELUSODE RESIDENCIALODEVIVIENDAYNOSEOBSERVAELUSODEVIVIENDACOMERCIO.

INTERPRETACIÓN:

ELESTADODECONSERVACIÓNDELASVIVIENDASENLACUADRA5DELJIRÓNSALAVERRYLADO"B",CORRESPONDEA:1

VIVIENDASENESTADOBUENO,7VIVIENDASENESTADOREGULARY3VIVIENDAENESTADOMALO.

MUNICIPALIDAD PROVINCIALDEJAUJA UCV UNIVERSIDAD CÉSAR VALLEJO PATRIMONIOCULTURAL FACULTADDEARQUITECTURA VERIFICACIONDELEVANTAMIENTODELPERFILURBANO
N°DE FICHA:
USOACTUAL CANTIDAD PORCENTAJE VIVIENDA 0% 100% 11 SALUD COMERCIO(VIVIENDA-COMERCIO) EDUCACIÓN CULTURAL RELIGIOSO ADM.PÚBLICA OFICINAS TALLERES 0% 0% 0% 0% 0% 0% 0% USOVIVIENDA USOACTUAL 100%
FECHA: CODIGO:
EDPA-J
ESTADODECONSERVACIÓN CANTIDAD PORCENTAJE BUENO 7 60% 16% 1 MALO DEMOLIDO REGULAR TOTAL 3 24%ESTADODECONSERVACIÓN
100% 16% 24% 60% BUENO REGULAR MALO 08 NOVIEMBRE2022 RESTAURADO -0 USOVIVIENDACOMERCIO

Turn static files into dynamic content formats.

Create a flipbook
Issuu converts static files into: digital portfolios, online yearbooks, online catalogs, digital photo albums and more. Sign up and create your flipbook.