HABILITACIÓN URBANA

Page 1

CÁTEDRA:

HABILITACIÓN URBANA SIMULTANEA

Arq.-Cabanillas Cárdenas, Liz Veronica

ALUMNOS:

Asto Asurza,Juan Monzon Gutierrez,Rocio

CAÑETE

ubicacion de cañete en el ambito regional provincial distrital ,y las medidas de area a intervenir

A B I L I T A C I O N U R B A N A S I M U L T A N E A U B I C A C I O N , L I M I T E S , M E D I D A S D E L T E R R E N O , P L A N O S
H
PLANOS

UBICACIÓN

PERU -LIMA

LIMACAÑETE

4.-medida del terreno

CAÑETE -

SAN VICENTE DE CAÑETE

Perímetro: 621,4 m

Área: 23,768.94

3. - limites del terreno de estudio

Norte: urb San Isidro

Sur: rio cañete

Este: Urb San Juan

Oeste:Urb Santa Rosa

ESTADO FISICO ACTUAL

Docente : Integrantes :

C U R S O : H A B I L I T A C I O N U R B A N A T E M A : D O C E N T E : E S T U D I A N T E S : C I C L O : J U A N A S T O A S U R Z A R O C I O M O N Z O N G U T I E R R E Z V I A L I D A D E SE S T A D O F I S I C O L Á M I N A : A R Q . L I Z V E R O N I C A C A B A N I L L A S C A R D E N A S V
SAN VICENTE DE CAÑETE MEDIO FISICO ARTIFICIAL V I A L I D A D E S

SECCION A-A

PROLONGACION JOSE GALVEZ

SECCION B-B

CALLE RIZO PATRON

TIPO DE LOTES:

RDM: 90 A 250 M2

PLANO BASE

ESCALA 1/500

SECCION C-C

CALLE LATERAL IZQUIERDA Y DERECHA CORTE

B B A A A A C C C C
DE VIAS ESCALA 1/200 C U R S O : H A B I L I T A C I O N U R B A N A T E M A : D O C E N T E : E S T U D I A N T E S : C I C L O : J U A N A S T O A S U R Z A R O C I O M O N Z O N G U T I E R R E Z P L A N O B A S E L Á M I N A : A R Q . L I Z V E R O N I C A C A B A N I L L A S C A R D E N A S V
SECCIONES VIALES
C U R S O : H A B I L I T A C I O N U R B A N A T E M A : D O C E N T E : E S T U D I A N T E S : C I C L O : J U A N A S T O A S U R Z A R O C I O M O N Z O N G U T I E R R E Z A P O R T E S V I A L M E T R O P O L I T A N O L Á M I N A : A R Q . L I Z V E R O N I C A C A B A N I L L A S C A R D E N A S V LEYENDA: PROLONGACION AVENIDA CALLE CALLE PLANO DE VIA ESCALA 1/500 Calle B Calle A Terreno
C I C L O : R R E Z M I N A : V
DE APORTES VIALES ESCALA 1/500
VICENTE
PLANO DE AREA ESCALA 1/500 PLANO
SAN
DE CAÑETE

PLANO DE MANZANEO

APORTE DE NORMATIVAS OBLIGATORIOS

Docente : Integrantes :

H A B I L I T A C I O N U R B A N A T E M A : C I C L O : J U A N A S T O A S U R Z A R O C I O M O N Z O N G U T I E R R E Z
C U R S O : D O C E N T E : E S T U D I A N T E S : P L A N O D E L M A N Z A N E O L Á M I N A : A R Q . L I Z V E R O N I C A C A B A N I L L A S C A R D E N A S V UCV SEDE SJL 2022-1 SAN VICENTE DE CAÑETE
pasaje Liz Camones
pasaje Juan Asto pasaje Integracion
pasaje Alexandra Ccahuana
ESCALA 1/500 NOMBRE AREA M2 1 Manzana A 1 505.38 m2 2 Manzana B 3 961.61 m2 3 Manzana C 2 343.45 m2 4 Manzana D 1 492.15 m2 5 Manzana E 1 860.65 m2 6 Manzana F 1 195.05 m2 7 Usos especiales 2 152.18 m2 8 Educacion 319.88 m2 9 Areas Recreativas 761.63 m2
H A B I L I T A C I O N U R B A N A T E M A : C I C L O : J U A N A S T O A S U R Z A R O C I O M O N Z O N G U T I E R R E Z L O T I Z A C I O N L Á M I N A : A R Q . L I Z V E R O N I C A C A B A N I L L A S C A R D E N A S V AREA M2 1 505.38 m2 3 961.61 m2 2 343.45 m2 1 492.15 m2 1 860.65 m2 1 195.05 m2 2 152.18 m2 319.88 m2 761.63 m2

PLANO BASE

ESCALA 1/500

C U R S O : H A B I L I T A C I O N U R B A N A T E M A : D O C E N T E : E S T U D I A N T E S : C I C L O : J U A N A S T O A S U R Z A R O C I O M O N Z O N G U T I E R R E Z Z O N I F I C A C I O N D E L C O N J U N T O G E N E R A L L Á M I N A : A R Q . L I Z V E R O N I C A C A B A N I L L A S C A R D E N A S V
SAN VICENTE DE CAÑETE

zonificación d

plot plan

ZONA RESIDENCIAL

ZONA RESIDENCIAL

PLANO

ESCALA 1/500

LEYENDA:

SISTEMA VIAL

LEYENDA:

Zona Recreativa

Vía principal

Vía secundaria

Vía transporte publico Rutas de ciclovía

Vía peatonal

ZONA RESIDENCIAL

Docente :

H A B I L I T A C I O N U R B A N A T E M A : C I C L O : J U A N A S T O A S U R Z A R O C I O M O N Z O N G U T I E R R E Z C U R S O : D O C E N T E : E S T U D I A N T E S : P L O T P L A N L Á M I N A : A R Q . L I Z V E R O N I C A C A B A N I L L A S C A R D E N A S V
H A B I L I T A C I O N U R B A N A T E M A : C I C L O : J U A N A S T O A S U R Z A R O C I O M O N Z O N G U T I E R R E Z C U R S O : D O C E N T E : E S T U D I A N T E S : M A S T E R P L A N D E L C O N J U N T O R E S I D E N C I A L L Á M I N A : A R Q . L I Z V E R O N I C A C A B A N I L L A S C A R D E N A S V Docente :
MASTER PLAN ESCALA 1/500
MAQUETA

1.-medida del terreno Perímetro: 341m Área:7400

A B C D

H A B I L I T A C I O N U R B A N A T E M A : C I C L O : J U A N A S T O A S U R Z A R O C I O M O N Z O N G U T I E R R E Z C U R S O : D O C E N T E : E S T U D I A N T E S : M A S T E R P L A N D E L C O N J U N T O R E S I D E N C I A L L Á M I N A : A R Q . L I Z V E R O N I C A C A B A N I L L A S C A R D E N A S V PROYECTO LAS 4 TORRES ESCALA 1/500

PLANO DE AGUA

LEYENDA:

Tubería principal de agua

Ramales de tubería de agua

Válvulas de compuerta

.
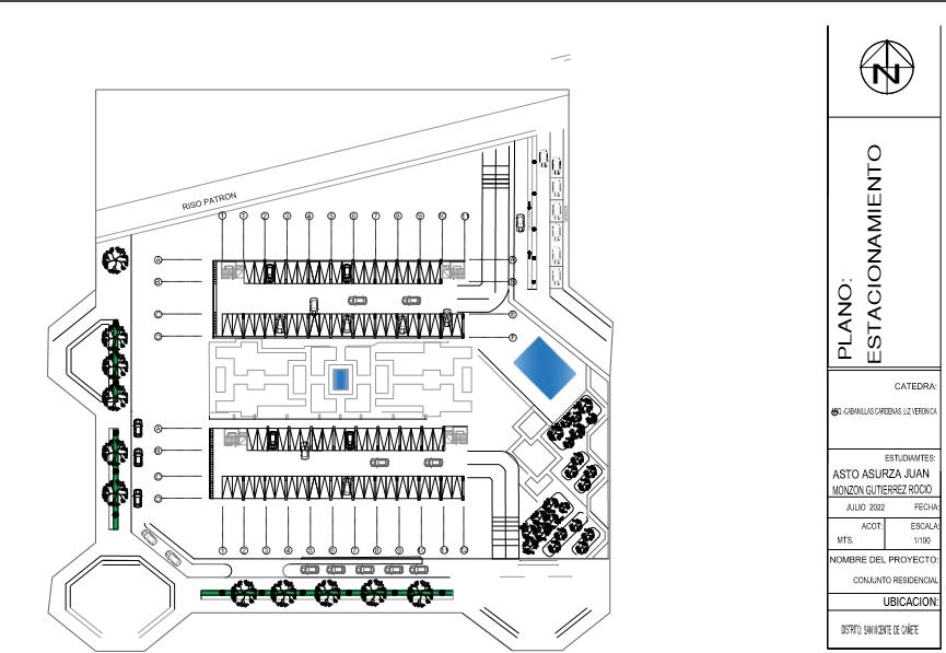
H A B I L I T A C I O N U R B A N A T E M A : C I C L O : J U A N A S T O A S U R Z A R O C I O M O N Z O N G U T I E R R E Z C U R S O : D O C E N T E : E S T U D I A N T E S : E S T A C I O N A M I E N T O L Á M I N A : A R Q . L I Z V E R O N I C A C A B A N I L L A S C A R D E N A S V Docente : SAN VICENTE DE CAÑETE B A A B PLANTA GENERAL ESCALA 1/100
H A B I L I T A C I O N U R B A N A T E M A : C I C L O : J U A N A S T O A S U R Z A R O C I O M O N Z O N G U T I E R R E Z C U R S O : D O C E N T E : E S T U D I A N T E S : N U E V A P O L I G O N A L A R E A N E T A L Á M I N A : A R Q . L I Z V E R O N I C A C A B A N I L L A S C A R D E N A S V
:
Docente
SAN VICENTE DE CAÑETE
PLANTA GENERAL ESCALA 1/100 PLANTA GENERAL ESCALA 1/100
Torre A TorreB
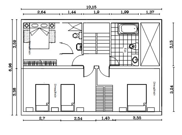
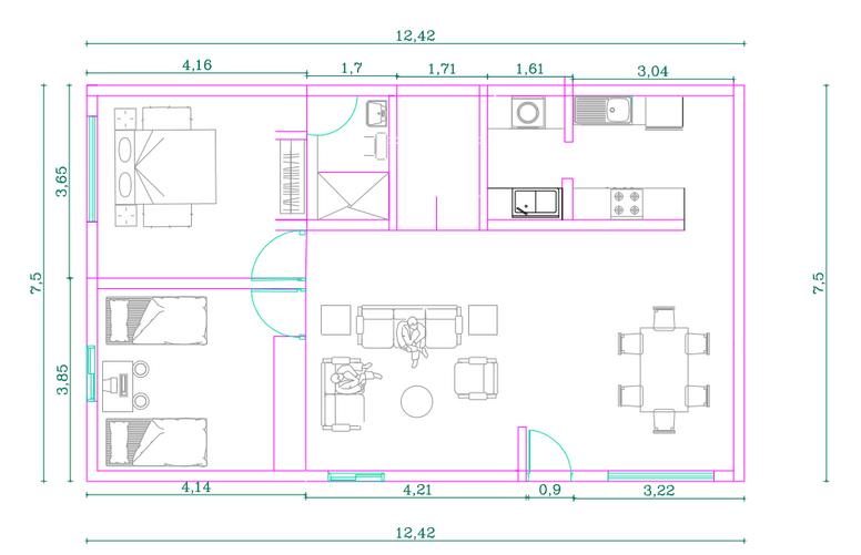
H A B I L I T A C I O N U R B A N A T E M A : C I C L O : J U A N A S T O A S U R Z A R O C I O M O N Z O N G U T I E R R E Z C U R S O : D O C E N T E : E S T U D I A N T E S : F L A T D E 3 D O R M I T O R I O S L Á M I N A : A R Q . L I Z V E R O N I C A C A B A N I L L A S C A R D E N A S V 01 Docente : SAN VICENTE DE CAÑETE PLANTA FLAT DE 3 DORMITORIOS ESCALA 1/50
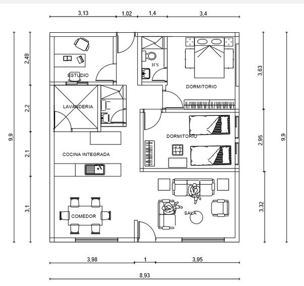
DE 2 DORMITORIOS ESCALA 1/50
FLAT
H A B I L I T A C I O N U R B A N A T E M A : C I C L O : J U A N A S T O A S U R Z A R O C I O M O N Z O N G U T I E R R E Z C U R S O : D O C E N T E : E S T U D I A N T E S : E L E V A C I O N E S Q U E M A L Á M I N A : A R Q . L I Z V E R O N I C A C A B A N I L L A S C A R D E N A S V Docente :
H A B I L I T A C I O N U R B A N A T E M A : C I C L O : J U A N A S T O A S U R Z A R O C I O M O N Z O N G U T I E R R E Z C U R S O : D O C E N T E : E S T U D I A N T E S : N U E V A P O L I G O N A L A R E A N E T A L Á M I N A : A R Q . L I Z V E R O N I C A C A B A N I L L A S C A R D E N A S V Docente : SAN VICENTE DE CAÑETE
H A B I L I T A C I O N U R B A N A T E M A : C I C L O : J U A N A S T O A S U R Z A R O C I O M O N Z O N G U T I E R R E Z C U R S O : D O C E N T E : E S T U D I A N T E S : M a q u e t a L Á M I N A : A R Q . L I Z V E R O N I C A C A B A N I L L A S C A R D E N A S V Docente :
N U E V A P O L I G O N A L A R E A N E T A V
H A B I L I T A C I O N U R B A N A T E M A : C I C L O : J U A N A S T O A S U R Z A R O C I O M O N Z O N G U T I E R R E Z C U R S O : D O C E N T E : E S T U D I A N T E S : N U E V A P O L I G O N A L A R E A N E T A L Á M I N A : A R Q . L I Z V E R O N I C A C A B A N I L L A S C A R D E N A S V
H A B I L I T T E M A : C I C L O : R O C I O M O N Z O N G U T I E R R E Z C U R S O N U E V A P O L I G O N A L A R E A N E T A C A B A N I L L A S C A R D E N A S V
C I C L O : D O C E N T E : A R E A N E T A L Á M I N A : A R Q . L I Z V E R O N I C A C A B A N I L L A S C A R D E N A S V
H A B I L I T A C I O N U R B A N A T E M A : C I C L O : J U A N A S T O A S U R Z A R O C I O M O N Z O N G U T I E R R E Z C U R S O : D O C E N T E : E S T U D I A N T E S : N U E V A P O L I G O N A L A R E A N E T A L Á M I N A : A R Q . L I Z V E R O N I C A C A B A N I L L A S C A R D E N A S V Docente :
H A B I L I T A C I O N U R B A N A T E M A : C I C L O : J U A N A S T O A S U R Z A R O C I O M O N Z O N G U T I E R R E Z C U R S O : D O C E N T E : E S T U D I A N T E S : N U E V A P O L I G O N A L A R E A N E T A L Á M I N A : A R Q . L I Z V E R O N I C A C A B A N I L L A S C A R D E N A S V Docente :
C U R S O : H A B I L I T A C I O N U R B A N A T E M A : D O C E N T E : E S T U D I A N T E S : C I C L O : J U A N A S T O A S U R Z A R O C I O M O N Z O N G U T I E R R E Z A P O R T E S D E C A L L E S L Á M I N A : A R Q . L I Z V E R O N I C A C A B A N I L L A S C A R D E N A S V UCV SEDE SJL 2022-1 A R E A A G R I C O L A AREA INTERVENCION PROLONGACION JOSE GALVEZ PLANO DE VIA ESCALA 1/500 S E C C I O N A - A P R O L O N G A C I O N J O S E G A L V E Z 1 9 . 4 m l C O R T E D E V I A E S C A L A 1 / 2 0 0
C U R S O : H A B I L I T A C I O N U R B A N A T E M A : D O C E N T E : E S T U D I A N T E S : C I C L O : J U A N A S T O A S U R Z A R O C I O M O N Z O N G U T I E R R E Z UBICACIÓN 1. M A S T E R P L A N L Á M I N A : A R Q . L I Z V E R O N I C A C A B A N I L L A S C A R D E N A S V A B C D T o r r e s 4 U A T R O

1.-medida del terreno

Perímetro: 341m

Área:7400

C U R S O : H A B I L I T A C I O N U R B A N A T E M A : D O C E N T E : E S T U D I A N T E S : C I C L O : J U A N A S T O A S U R Z A R O C I O M O N Z O N G U T I E R R E Z
M A S T E R P L A N L Á M I N A : A R Q . L I Z V E R O N I C A C A B A N I L L A S C A R D E N A S V

Plano general

C U R S O : H A B I L I T A C I O N U R B A N A T E M A : D O C E N T E : E S T U D I A N T E S : C I C L O : J U A N A S T O A S U R Z A R O C I O M O N Z O N G U T I E R R E Z 2.-PLANTA GENERAL M A S T E R P L A N L Á M I N A : A R Q . L I Z V E R O N I C A C A B A N I L L A S C A R D E N A S V T o r r e s Q U A T R O
C U R S O : H A B I L I T A C I O N U R B A N A T E M A : D O C E N T E : E S T U D I A N T E S : C I C L O : J U A N A S T O A S U R Z A R O C I O M O N Z O N G U T I E R R E Z PLANTA GENERAL PRIMER PISO R E S I D E N C I A 4 U A T R O T O R R E S L Á M I N A : A R Q . L I Z V E R O N I C A C A B A N I L L A S C A R D E N A S V T o r r e s Q U A T R O PLANO GENERAL

RESIDENCIAL - SAN VICENTE DE CAÑETE

UBICACIÓN

PERU -LIMA

LIMACAÑETE

4.-medida del terreno

CAÑETE -

SAN VICENTE DE CAÑETE

Perímetro: 621,4 m

Área: 23,768.94

3. - limites del terreno de estudio

Norte: urb San Isidro

Sur: rio cañete

Este: Urb San Juan

Oeste:Urb Santa Rosa

IDENTIFICACION DE USO DE SUELO

Aplicar la zonificación urbana y la reglamentación respectiva del presente Plan como instrumento de promoción, regulación y concertación para la ocupación, uso y renta del suelo.

Estimular al sector privado, individual y organizado, en todas sus formas asociativas, para la ocupación concertada y programada del suelo urbano urbanizable.

Promover la densificación de áreas en zonas seguras y la ocupación de aquellas otras que se encuentren vacantes.

Promover la incorporación de nuevas áreas de expansión urbana, según los requerimientos efectivos del mismo en concordancia con el crecimiento de la población de Cañete en el corto, mediano y largo plazo.

Promover la participación del sector privado en el surgimiento y consolidación de zonas comerciales, productivas y eco-turístico-recreativas de la ciudad.

VIENTOS

La parte más ventosa del año dura 7.1 meses, del 26 de mayo al 29 de diciembre, con velocidades promedio del viento de más de 12.9 kilómetros por hora. El mes más ventoso del año en San Vicente de Cañete es Setiembre, con vientos a una velocidad promedio de 14.2 kilómetros por hora

Las coordenadas geográficas de San Vicente de Cañete son latitud: -13.076°, longitud: -76.385°, y elevación: 45 m.

Eláreaenunradiode3kilómetrosde SanVicentedeCañeteestácuberta detierradecultivo(28%) árboles(22 %),pradera(19%)yarbustos(19%), enunradiode16kiómetrosdeagua (31%)ytierrarasa(18%)yenun radiode80kilómetrosdeagua(49%)

yvegetaciónescasa(15%)

La topografía en un radio de 3 kilómetros de San Vicente de Cañete tiene variaciones grandes de altitud, con un cambio máximo de altitud de 175 metros y una altitud promedio sobre el nivel del mar de 48 metros En un radio de 16 kilómetros contiene variaciones grandes de altitud (872 metros) En un radio de 80 kilómetros contiene variaciones enormes de altitud (4,962 metros).

T O P O G R A F I A

RECOPILACION DE INFORMACION

MEDIO FISICO NATURAL

Temperatura promedio en San Vicente de Cañete

La temporada templada dura 3.1 meses, del 4 de enero al 8 de abril, y la temperatura máxima promedio diaria es más de 26 °C. El mes más cálido del año en San Vicente de Cañete es Febrero, con una temperatura máxima promedio de 27 °C y mínima de 22 °C.

La temporada fresca dura 4.0 meses, del 12 de junio al 13 de octubre, y la temperatura máxima promedio diaria es menos de 23 °C. El mes más frío del año en San Vicente de Cañete es Agosto, con una temperatura mínima promedio de 17 °C y máxima de 21 °C.

V I A L I D A D E S ESTADO FISICO ACTUAL MEDIO FISICO ARTIFICIAL

ZONA DE EXPANCION

EQUIPAMIENTO

Se encuentra un mayor % de viviendas el el uso de suelo

mayor ubicacion de comercio se encuentra al contorno de la plaza de armas como bodegas ,tiendas, farmacias ,restaurantes y principalmente. Junto a ese comercio ademas se encuentran las instituciones financieras, ya sean públicas ,municipales,privadas

La señalización de transporte y vías principales nos responden a la cantidad de comercio que alberga toda la zona central del distrito. Algunas calles internas

https://docplayer.es/
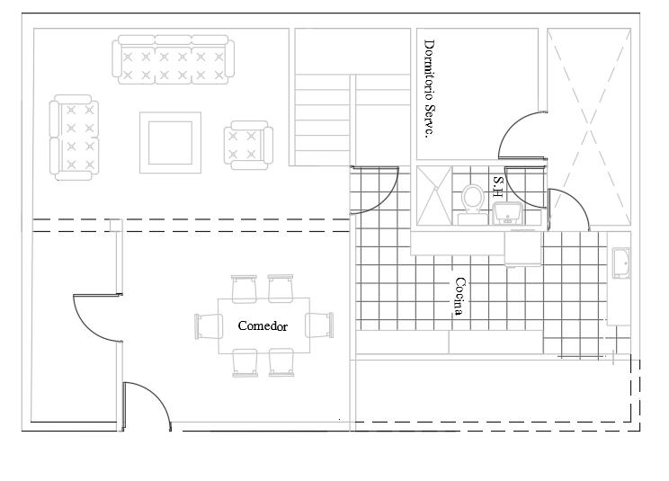
C U R S O : H A B I L I T A C I O N U R B A N A T E M A : D O C E N T E : E S T U D I A N T E S : C I C L O : J U A N A S T O A S U R Z A R O C I O M O N Z O N G U T I E R R E Z PLAnta general PRIMER PISO L Á M I N A : A R Q . L I Z V E R O N I C A C A B A N I L L A S C A R D E N A S V T o r r e s Q U A T R O PLANO GENERAL R E S I D E N C I A 4 U A T R O T O R R E S PLAnta general SEGUNDO PISO

COMERCIO Y FLAT DE DOS DORMITORIOS

FLAT de tres dormitorios

FLAT de dos dormitorios

C U R S O : H A B I L I T A C I O N U R B A N A T E M A : D O C E N T E : E S T U D I A N T E S : C I C L O : J U A N A S T O A S U R Z A R O C I O M O N Z O N G U T I E R R E Z TIPOLOGIAS - PLANO L Á M I N A : A R Q . L I Z V E R O N I C A C A B A N I L L A S C A R D E N A S V T o r r e s Q U A T R O R E S I D E N C I A 4 U A T R O T O R R E S

PLANTA GENERAL

C U R S O : H A B I L I T A C I O N U R B A N A T E M A : D O C E N T E : E S T U D I A N T E S : C I C L O : J U A N A S T O A S U R Z A R O C I O M O N Z O N G U T I E R R E Z TIPOLOGIAS - PLANO M A S T E R P L A N L Á M I N A : A R Q . L I Z V E R O N I C A C A B A N I L L A S C A R D E N A S V T o r r e s Q U A T R O
comercio

FLAT 2 DORMITORIOS

FLAT 2 DORMITORIOS

C U R S O : H A B I L I T A C I O N U R B A N A T E M A : D O C E N T E : E S T U D I A N T E S : C I C L O : J U A N A S T O A S U R Z A R O C I O M O N Z O N G U T I E R R E Z 4.-TIPOLOGIAS - PLANO M A S T E R P L A N L Á M I N A : A R Q . L I Z V E R O N I C A C A B A N I L L A S C A R D E N A S V T o r r e s Q U A T R O

FLAT 2 DORMITORIOS

FLAT 3 DORMITORIOS

C U R S O : H A B I L I T A C I O N U R B A N A T E M A : D O C E N T E : E S T U D I A N T E S : C I C L O : J U A N A S T O A S U R Z A R O C I O M O N Z O N G U T I E R R E Z 4.-TIPOLOGIAS - PLANO R E S I D E N C I A S L Á M I N A : A R Q . L I Z V E R O N I C A C A B A N I L L A S C A R D E N A S V T o r r e s Q U A T R O

DUPLEX PRIMER PISO

DUPLEX SEGUNDO PISO

C U R S O : H A B I L I T A C I O N U R B A N A T E M A : D O C E N T E : E S T U D I A N T E S : C I C L O : J U A N A S T O A S U R Z A R O C I O M O N Z O N G U T I E R R E Z 3.-TIPOLOGIAS - PLANO L Á M I N A : A R Q . L I Z V E R O N I C A C A B A N I L L A S C A R D E N A S V T o r r e s Q U A T R O
PLANO GENERAL
R E S I D E N C I A 4 U A T R O T O R R E S
C U R S O : H A B I L I T A C I O N U R B A N A T E M A : D O C E N T E : E S T U D I A N T E S : C I C L O : J U A N A S T O A S U R Z A R O C I O M O N Z O N G U T I E R R E Z ESTACIONAMIENTO 1. R E S I D E N C I A S L Á M I N A : A R Q . L I Z V E R O N I C A C A B A N I L L A S C A R D E N A S V T o r r e s Q U A T R O
escalera
Plano general
C U R S O : H A B I L I T A C I O N U R B A N A T E M A : D O C E N T E : E S T U D I A N T E S : C I C L O : J U A N A S T O A S U R Z A R O C I O M O N Z O N G U T I E R R E Z ESTACIONAMIENTO 1. M A S T E R P L A N L Á M I N A : A R Q . L I Z V E R O N I C A C A B A N I L L A S C A R D E N A S V T o r r e s Q U A T R O Plano
general

Turn static files into dynamic content formats.

Create a flipbook
Issuu converts static files into: digital portfolios, online yearbooks, online catalogs, digital photo albums and more. Sign up and create your flipbook.