
南坪选辑
商业建筑改造更新设计
杨哲熠 2019151470060 YANG ZHEYI
四川大学
指导教师 冯田 严祥 吴潇
2024川渝建筑大类专业联合毕业设计
02/12
![]()

南坪选辑
商业建筑改造更新设计
杨哲熠 2019151470060 YANG ZHEYI
四川大学
指导教师 冯田 严祥 吴潇
2024川渝建筑大类专业联合毕业设计
02/12
COMMERCIAL BUILDING RENEWAL DESIGN
南坪选辑
建筑一班 杨哲熠
Anthology, a collection of artistic works that have a similar form or subject, often those considered to be the best.
Connivence by commons, fluxion of matters, myraids for deeds.
Nanping Anthology is situated in the Nanping Commercial District of Nan’an district,Chongqing, designated for the renovation of the existing Yuneng Auto Parts City. Faced with challenges such as aging infrastructure, outdated spatial layouts, and nearby commercial competition, nanping anthology takes innovative design concepts as its guide, aiming to strengthen commercial vitality, enhance community cohesion, and revitalize local culture.
Leveraging its diverse living formats, rich local culture, active civic engagement, and excellent transportation conditions, Nanping Anthology seamlessly integrates people, objects, and events to create a fusion of civic living spaces and dynamic commercial areas. Through multi-perspective considerations of people, objects, and events, as well as the multi-pathway construction of architectural spaces, commercial operations, and human-place interactions, Nanping Anthology employs diverse designs of characteristic spaces, local culture, and foundational spaces, creating a place where myriad lives, objects, and scenes converge.
Preserving the original concrete framework and introducing new steel structures and glass curtain walls, Nanping Anthology revitalizes the commercial environment through infrastructure and architectural facelifts, as well as the restructuring of spatial layouts and user flow to cultivating a pleasant commercial haven.
Nanping Anthology is committed to reviving civic life’s tapestry, with the preservation of the essence of city life as its goal. Embracing the vibrant essence of Chongqing’s urban life, it perpetuates the local market culture, creating a diverse array of life options in its selection of all things, enveloping a wide range of people in its selection of all beings, and providing inclusive spaces for lingering in its selection of all scenes, thereby establishing interconnections between space, behavior, and people.
Translating the mountainous terrain of the city into architectural elements, Nanping Anthology crafts a distinctive creative public space. Bridges, terrains, stairs, and tunnels are reinterpreted as impressionscape components, convenient transportation systems, and vibrant public spaces. Through the selection of components, such as reproducing, resonating, and suggesting components, linking components for communication, linkage, and spanning spaces, and manuscript components for creating pavilions, creations, and altars, it interprets the city’s topography and height differences to depict the impression of Chongqing.
Though silent, the anthology beckons, inviting one to pause and listen.
选辑,诸艺术之作集合,形式或主题相类,多属上乘之作。
众生交织,万物流通,群像融汇。
南坪选辑 选址重庆市南岸区南坪商业区,为既有建筑渝能汽配城更新改造 设计。面对基础设施老化、空间格局陈旧以及邻近商业竞争等挑战,南坪 选辑以创新的设计概念为引领,将强化商业活力、提高社区凝聚力并焕活 地域文化作为设计目标。
利用其丰富生活业态、浓厚市井文化、活跃市民活动以及优越交通条件, 南坪选辑 将人、物、事交织融合,创造一个市民生活空间和活力商业空间 的集合体。通过人、物、事的多视角关注,以及建筑空间、商业运营以及 人与场所的多途径营建, 南坪选辑 以特色空间、市井文化、基础空间的多 元设计,营造出一个融合众生、万物与群像的场所。 南坪选辑 保留原有混凝土框架,并引入新建钢结构框架与玻璃幕墙,通过 基础设施与建筑形象更新,空间格局和用户流线的重组,营建宜人商业环 境。
南坪选辑 致力于复兴市民生活场所,以市井文化存续为目标,利用重庆生 活烟火气息,延续南坪市井文化氛围,创造多元生活业种的万物选辑,包 络广泛人群的众生选辑,与包容逗留空间的群像选辑,让空间、行为和人 群相互关联。
南坪选辑 将山城地形转译为建筑元素,打造出独具特色的创意公共空间。 桥架、地形、阶梯与隧道被转译,为印象空间构件、便捷交通体系和活力 公共空间。组件选辑再现共振、提示构件,链接选辑沟通链接、跨越空间, 手稿选辑创设亭阁、造物和圣坛,将地形和高差演绎重庆印象。 选辑无声,足音而倾耳而听之。


Connivence by Commons, Fluxion of Matters, Myraids for Deeds.
03/12
COMMERCIAL BUILDING
RENEWAL DESIGN
南坪选辑
建筑一班 杨哲熠
选址:渝能汽配城 Selection
特征 Features
Yuneng Auto Parts City (Existing Building) faces the challenges of aging infrastructure, outdated spatial pattern, outdated flow design, and competition from neighboring businesses, but it also has its own unique strengths in terms of existing buildings with a rich variety of businesses, a strong market culture, active civic activities, and excellent transportation conditions.
渝能汽配城(既有建筑)面临基础设施的老化、空间格 局的陈旧、流线设计的过时以及邻近商业竞争的挑战, 但也有其独特的优势所在,既有建筑现存有丰富的业 态、浓厚的市井文化、市民活动的活跃度以及优越的交 通条件。
概念
目标 Goal
主体 Subject
Anthology, a collection of artistic works that have a similar form or subject, often those considered to be the best.
Nanping Anthology is meant to gather people, things and objects here, intertwine and integrate them to create a conglomerate of civic living space and vibrant commercial space, creating a place that blends all beings, all things and all scenes.
选辑,诸艺术之作集合,形式或主题相类,多属上乘之作。 南坪选辑,意为集合南坪人、事、物,创造一个市民生 活空间和活力商业空间的集合体,营造出一个融合众生、 万物与群像的场所。






Connivence by Commons

04/12
COMMERCIAL BUILDING RENEWAL DESIGN NANPING ANTHOLOGY
南坪选辑
建筑一班 杨哲熠

策略
基础更新: 营建宜人商业环境 Foundational Renewal Cultivating a Pleasant Commercial Haven I.
更新原则 Guiding Principles


既有混凝土结构 Existing Concrete Structure 新建钢结构框架 New Steel Structure
保留 Retain
新增 Build
保留既有大部分钢筋混凝土结构框架,新建部分采用钢结构框架, 并以材质和颜色的形式强化结构的存在感。
Renewal Contents
更新内容
基础设施与建筑形象更新 Infrastructure and Architectural Image
内外立面 Internal and External Facades 平面设施 Spatial Facilities
空间格局与用户流线重组 Reorganizing Spatial Patterns and Circulation
出入口及地铁接驳 Entrances and Metro
用户流线梳理重组 Rearranged Circulation
into a cohesive one.
并将原有发散型的流线重组为内聚型。
策略焕新: 复兴市民生活场所 Strategic Reinvention Reviving Civic Life's Tapestry II.
EVERYONE IN ANTHOLOGY
众生选辑: 包络广泛人群 Embracing a Wide Spectrum of Users

EVERYWHERE IN ANTHOLOGY
Fostering Inviting Spaces for Lingering
群像选辑: 包容逗留空间


EVERYTHING IN ANTHOLOGY
万物选辑: 多元生活业种 A Tapestry of Diverse Lifestyles
亮点植入: 打造活力创意空间 Highlight Implantation Crafting a Creative Haven for All III.
活力空间植入: 山城地形转译 Infusing Vibrant Spaces: Translating Terrains
选辑:组件 Anthology: The Component IMPRESSIONSCAPE COMPONENTS: REMEMBRANCE, RESONANCE, ALUUSIONS 印象空间构件:再现、共振、提示 选辑:链接 Anthology: The Linkage CONVENIENT TRANSPORTATION SYSTEM: COMMUNICATION, LINKAGE, TRANSCENDENCE 便捷交通体系:沟通、链接、跨越








05/12

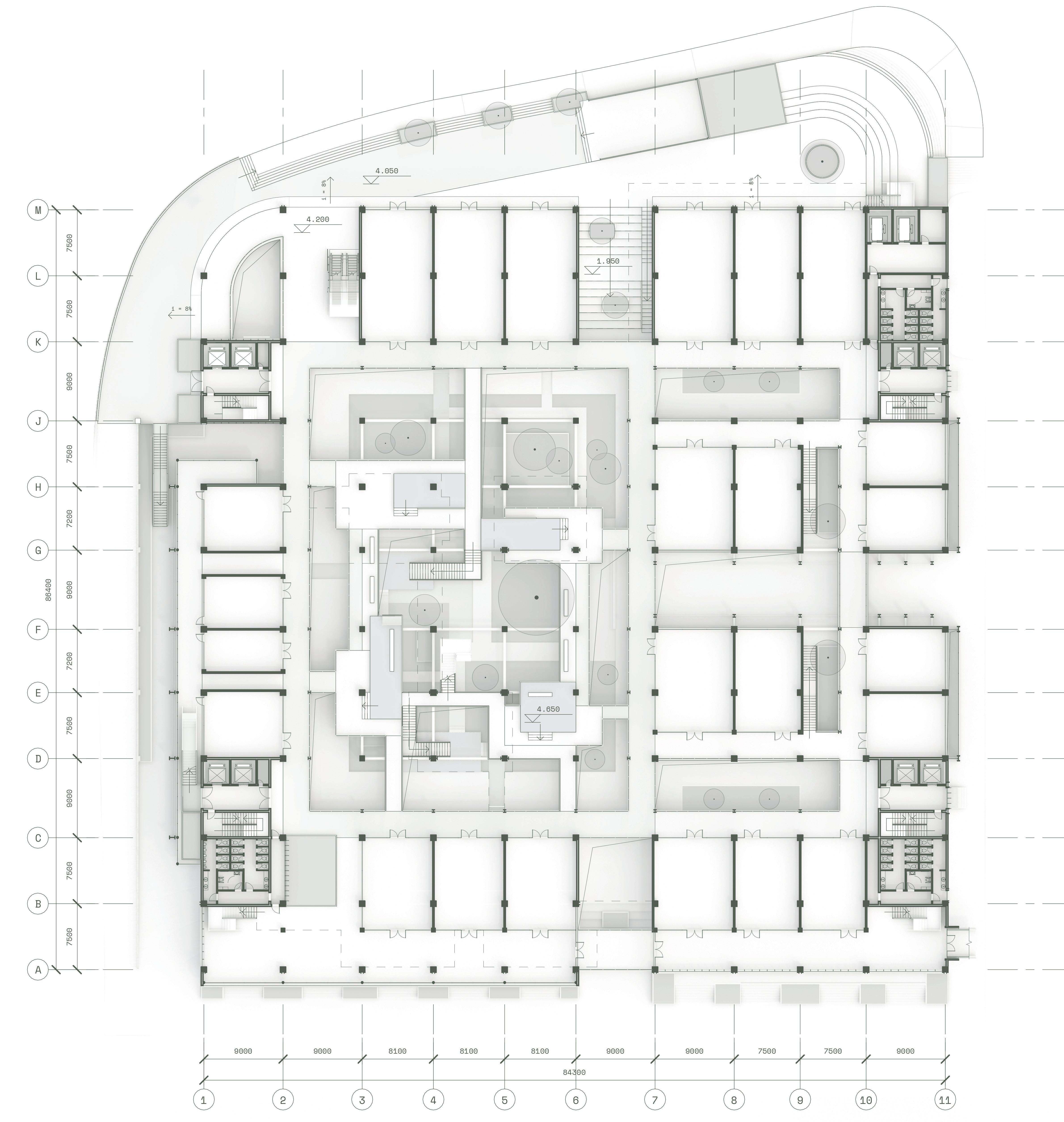
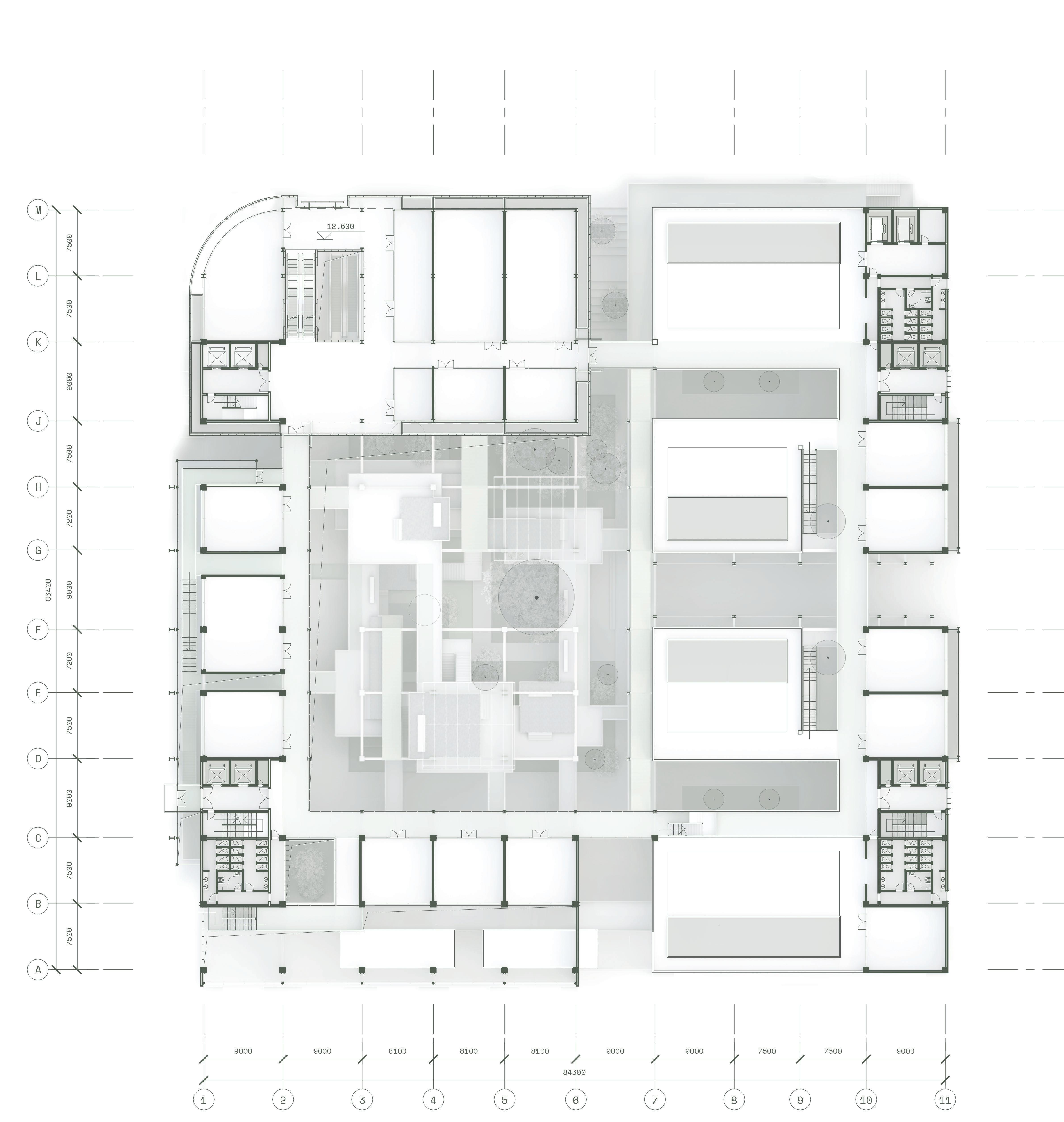
总平面图
1:500
南坪选辑
建筑一班









NANPING ANTHOLOGY
COMMERCIAL BUILDING
RENEWAL DESIGN
南坪选辑
建筑一班 杨哲熠


剖面1-1
Section I 1:300
预兆 The Prophency Department.WI
原稿 The Manuscript Department.CI
机械三 The Machine III Department.EIII
剖面 2-2 Section II 1:300

仪礼 The Ceremonial Department.NI
预兆 The Prophency Department.WI
南坪选辑
建筑一班 杨哲熠
剖透视3-3 Section III 1:200




西立面
南立面


by Commons,

