Portfolio_Sirinthip Boonsawat

Page 1

Sirinthip
(Dream) Social Media Sirinthip Boonsawat zilintip Contact 094-796-1207 sirinthipboonsawat@gmail.com Languages Thai - Native Speaker English - Intermediate CEFR Level : B1
Boonsawat

Personal Information

Name : Sirinthip Boonsawat

Nickname : Dream

Birthday : 09.12.2000

Address : 95/141 Thongsatit Villa 6, Saimai 78, Saimai Road, Bangkok 10220

Education

2019 - 2024 Faculty of Architecture, Kasetsart University

2013 - 2018 Rittiyawannalai School

Experience

Interned at Foyer Architects

Joined the competition with KU x AP Inclusive Living

Work in pairs

1st runner up award in KU Innovation contest 2021-2022

Work in groups

Skills

Drawing and 3d modeling

Rendering

Graphic

Interests

3D Sculpture

Character Design

Podcast

Intermediate Intermediate Intermediate basic basic
basicbasic
01
02
04
03
05
07
06
Contents
Doctor’s House Urban Leisure Sport Center RCA Rejuvenation Phanom-Surin Shipwreck Museum Lifecation Riverview Condominium Child and Adolescent Activity Center to Promote (Mental) Health Mahachai Urban Courtyard
Site Brife User Accessibility MRT MRT Site 982 sq.m. พื้นที่ขยายในอนาคต 1,049 sq.m. Noise MRT MRT Sun-path & Wind MRT MRT Eyesight from MRT MRT MRT Doctor’s House 2nd Floor Plan Sub User Main User 1st Floor Plan MRT สถานีทาพระ บานคุณหมอที่อาศัยอยูกับครอบครัว ที่ตองการหลีกหนีจากความวุนวายในเมืองและ พักผอนจากความเหนื่อยลาจากการทำงาน แต มีขอจำกัดที่ที่ตั้งอยูบริเวณแยกถนนใจกลางเมือง เนื่องจากยังตองการความสะดวกในการใชชีวิต เชน การเดินทางไปทำงาน ซึ่งมีมลภาวะทาง อากาศและทางเสียงเปนอยางมาก จึงออกแบบ บานที่อยูรวมกับขอจำกัดดังกลาว โดยจะตอง ปองกันมลภาวะและการถูกรบกวนจากภายนอก

Mass Development

“Sense
Concept Doctor’s House Entrance and divide clinic space and house space Block the eyes of outsiders Add green space and open void for natural ventilation Clinic at the house isometoutdoor area clinic Clinic 1st Floor Interior 2nd Floor Interior เชื่อมความสัมพันธ์ของคนใน บ้าน โดยการเชื่อมต่อพื้นที่ในแต่ละโซน ให้เชื่อมถึงกันและบิดอาคารเพื่อให้มอง เห็นกันได้เหมือนกับการอยู่พื้นที่ เดียวกัน แต่แยกกันทำกิจกรรมต่างๆตาม ช่วงอายุและอาชีพที่ต่างกันของคนใน บ้าน และยังสามารถปิดกั้นการมองเห็น จากคนภายนอกเพื่อให้เกิดความเป็นส่วน ตัวของผู้พักอาศัยและช่วยลดเสียงรบกวน จากการจราจรได้อีกด้วย
Interior
of Space”
Clinic
Entrance
Kids Bedroom Living Room
Dining
Area

Urban Leisure Sport Center

พื้นที่พักผอนและสงเสริมการออกกำลังกายสำหรับ คนเมือง ซึ่งมีกีฬาหลากหลายรูปแบบเพื่อรองรับผูใชงานทุก เพศทุกวัย โดยวางโซนใหมีลักษณะสลับกันไปมาแสดงใหเห็น ถึง movement การเคลื่อนไหวในการเลนกีฬา และรวม พื้นที่ใหเกิดเปน loop ภายในอาคาร เพื่อสรางการรับรูในการ เขาถึงพื้นที่ไดงาย อีกทั้งยังมีกิจกรรมทั้งในพื้นที่ indoor และ outdoor ที่มีพื้นที่สีเขียวแทรกภายในพื้นที่เปนระยะๆ จนถึงดานหลังอาคารที่เปนสวนสำหรับพักผอนหลังการเลน กีฬา และยังมี courtyard ตรงกลางที่มีตนไม พื้นที่สีเขียว และพื้นที่ทำกิจกรรม เพื่อสรางบรรยากาศความผอนคลาย จากธรรมชาติใหคนที่เลนกีฬาอยูภายในอาคารไดอีกดวย Site Zoning Mass Development Section 1st Floor Plan
User Teenager Parent Office Worker Disabled Section A-A Section B-B Divide area Access to building Add green space
Urban Leisure Sport Center Detail

Phanom-Surin Shipwreck Museum

Site จุดขุดพบเรือพนมสุรินทร ขุดพบในนากุง ต.พันทายนรสิงห อ.เมือง Basement Floor Plan 1st Floor Plan 2nd Floor Plan
Activities Main Area Mass Development Build a building to surround the ship’s excavation site Divide area for mangrove forest in the east to conserve and learning Create visual frame between building to open view from outside เรือพนมสุรินทรถูกคนพบในจังหวัดสมุทรสาคร ซึ่งเปนแหลงขุดพบเรือที่มีอายุุเกาแกที่สุดเทาที่เคยมีการ คนพบแหลงเรือจมในประเทศไทยและในภูมิภาคเอเชีย ตะวันออกเฉียงใต พบวาเรือมีอายุราว 1,200 ป และยัง พบโบราณวัตถุและมีวิธีตอเรือที่เกาแก จึงเกิดโครงการ พิพิธภัณฑเรือพนมสุรินทรที่ตองการอนุรักษเรือและจัด แสดงวัตถุโบราณ เปนสถานที่ใหความรู แหลงทองเที่ยว แกนักทองเที่ยวและชาวบาน สงเสริมสินคาจากชาวบาน และการสรางอาชีพใหมีรายได รวมถึงการอนุรักษปาชาย เลนจากการปลูกตนโกงกางภายในโครงการอีกดวย

Section Concept

Phanom-Surin Shipwreck Museum
Focus on point view Slope to point view Create visual frame การสรางอาคารที่มีลักษณะลอมรอบบริเวณ พื้นที่ขุดพบเรือ จากการเอียงอาคารและมีการกั้นอาคาร ดวยทางเดินหรือทางปนจักรยานของนักทองเที่ยว อีกทั้ง ยังเปนชองมุมมองเพื่อดึงดูดความสนใจใหคนภายนอก สามารถมองเห็นกิจกรรมที่เกิดขึ้นภายในไดบางสวนดวย

Avanue ของ

Connecting

Site
เพิ่มพื้นที่สีเขียวบริเวณที่เปนจุดเชื่อมตอกับ อาคารดานขาง และเชื่อมตอพื้นที่ระหวางภายในโดยใช แสงในการนําสายตาหรือกําหนดเสนทางในการสัญจร จึง เกิดเปนพื้นที่ทางเดินเอียงขนานไปกับชองแสงดานบน
เกิดประสบการณใหมๆแตยังคงความเปน
ตึก RCA เดิม และ
ยังหมายถึงการสราง ปฏิสัมพันธระหวางคนในครอบครัวตนเองรวมถึงการ สรางพื้นที่ทํากิจกรรมใหกับคนในเมือง ไดพาครอบครัว มาพักผอน เกิดการเรียนรูกับครอบครัวอื่นๆอีกดวย “Connecting” Concept Basement Floor Plan 1st Floor Plan Sun & Wind Open Space Noise Views Space Typologies Site Analysis Building C : Family Mall
RCA Rejuvenation
เพื่อเปลี่ยนพื้นที่เดิมที่เปนทางเดินแบบตรงไปตรงมาให
RCA Rejuvenation 4th Floor Plan 3rd Floor Plan 2nd Floor Plan Structure Event Hall Outdoor Playground Co-working Space Indoor Playground Brick Aluminium Insulated Glass

Lifecation Riverview Condominium

User
คอนโดใจกลางเมืองติดริมนํ้าเจาพระยา ภายใน ใตการออกแบบ Inclusive Living รองรับผูพิการและกลุม คนวัยทํางานที่มีไลฟสไตลการทํางานที่แตกตางกันจึึงนํา แนวคิด work life harmony ที่มีพื้นที่ใหสามารถ work from home ไดอยางเต็มที่ทั้งในพื้นที่สวนตัวที่มีโซน ทํางานในหองทุกๆแบบและพื้นที่สวนกลางที่แตละโซนจะ มีบรรรยากาศที่แตกตางกันใหผูใชสามารถเลือกใชพื้นที่ได ซึ่งรองรับรูปแบบการทํางานที่เปลี่ยนไปหลังการเกิดโรค ระบาดโควิด 19 และยังมีพื้นที่ผอนคลายโดยนําองค ประกอบและวัสดุธรรมชาติเขามาใชในการออกแบบ อีก ทั้งยังใหความสําคัญกับมุมมองการมองเห็นริมนํ้าและวิว เมืองจากการออกแบบหองและพื้นที่สวนกลางดวย “Work Life Harmony” Concept 1st Floor Plan 2nd Floor Plan 3rd-5th Floor Plan Gen X 41-56 years old Gen Z 26-40 years old Disabled People Mass Development Facilities Zone Target Group Type of User Workcation Relaxation Entertainment Meeting Health Care 1 2 Hospital Building Type Office Commercial Education Green Space Condominium Site B
Lifecation Riverview Condominium
Room
6th Floor Plan Facilities Zone Residential Zone 21th Floor Plan 22th Floor Plan Rooftop Floor Plan Section A-A Section B-B River View Co-Living & Lounge Entrance Hall Sky Lounge Swimming Pool Theater Room 7th-15th Floor Plan 16th-20th Floor Plan 21th-30th Floor Plan 31th-36th Floor Plan Type Type A 50 sq.m. 60 sq.m. 100 sq.m. A B C B C
Perspective
Type
การปรับปรุงพื้นที่ตลาดสดเทศบาลนคร สมุทรสาครเดิมใหกลายเปนพื้นที่สาธารณะสำหรับคนเมือง เพื่อใหเกิดการเขาใชงานในพื้นที่มากขึ้น และเพิ่มมูลคาใหกับ พื้นที่ โดยสรางพื้นที่สีเขียวใหอยูภายในพื้นที่อาคารเดิมของ ตลาดสด ซึ่งนอกจากจะทำใหมีพื้นที่สีเขียวเพิ่มขึ้นทามกลาง ตึกแถวชวยลดความหนาแนนของอาคารแลว ยังชวยสราง มูลคาใหกับพื้นที่และอาคารตึกแถวบริเวณใกลเคียง เพราะ ทำหนาที่เปนเหมือนกับสวนหลังบาน โดยจะแบงพื้นที่เปน 3 สวน คือ พื้นที่จอดรถ พื้นที่สวน และพื้นที่รานคาที่มี ฟงกชันการใชงานที่รองรับกิจกรรมจากกลุมนักเรียนและ ขาราชการที่เปนกลุมผูใชงานใกลเคียงในพื้นที่อีกดวย Site Site Problems Objective Anuban Samut Sakhon SchoolSamutsakhonburana School activities connection transportation connection Samutsakhon city municipality market Samut Sakhon Municipality Park Market Rehabilitation Space - Public Space - Activity Space - Food Center Small Entrance No Directional Signs Without Natural Lights Existing Building Programming 2 3 4 5 6 7 A A B B C Urban Park Food & Commercial Space Student Activities Space 1st Floor Plan
Mahachai Urban Courtyard
Mahachai Urban Courtyard Concept 1 4 5 6 A A B B C C 2nd Floor Plan User Target The existing building acts as barier wall Add public parking spaces & Improve the waiting area Increase green area & Serves as a backyard Create area to support student group Section A-A Section B-B Section C-C Meeting Zone Playground Zone Relax Zone

Child and Adolescent Activity Center

to promote (mental) health

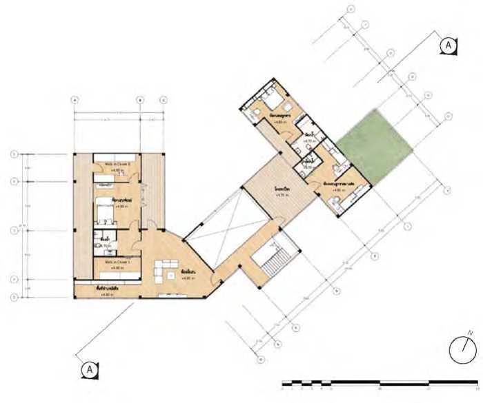
โครงการศูนยกิจกรรมสงเสริมสุขภาวะเด็กและ วัยรุน มีวัตถุประสงคเพื่อปรับปรุงภาพจำหรือทัศนคติที่ มีตอสถานบำบัดหรือสถานพยาบาลดานจิตเวชที่ถูกมองใน แงลบใหสามารถเขาถึงไดมากขึ้นสำหรับทุกคน โดยเนน กลุมเปาหมายเด็กและวัยรุนที่ปวยดานจิตเวชในระดับตน เด็กที่มีความเสี่ยง และเด็กทั่วไป เพื่อเขารับคำปรึกษา และปองกันผานการจัดกิจกรรมตาง ๆ อันจะนำไปสูการ สรางสุขภาวะที่ดีทั้งทางสุขภาพกายและสุขภาพจิต ที่ตั้ง โครงการอยูในบริบทเมือง ยานสุขุมวิท รองรับกลุมผูใช งานหลักทั้งเด็กไทยและตางชาติ พื้นที่ใชงานภายใน โครงการประกอบไปดวย พื้นที่สำหรับรักษา ที่พักผอน เยียวยาจิตใจ พื้นที่ทำกิจกรรมบำบัด และพื้นที่สาธารณะ Site Analysis Objective Basement Floor Plan 1st Floor Plan Mass Development คอนโด อพาร์ทเมนต์ สำนักงาน Accessibility Hospital Links Surrounding Functions User
Site
2nd Floor Plan 2nd Floor Plan 3rd Floor Plan 4th Floor Plan 1st Floor Plan Basement Floor Plan Section A-A Diagram Therapy Zone
Teenager Zone
Kids Zone Section B-B Section C-C
Child and Adolescent Activity Center
Concept

Thank you Tel. 094-796-1207 | sirinthipboonsawat@gmail.com

Turn static files into dynamic content formats.

Create a flipbook
Issuu converts static files into: digital portfolios, online yearbooks, online catalogs, digital photo albums and more. Sign up and create your flipbook.
Portfolio_Sirinthip Boonsawat by Sirinthip Boonsawat - Issuu