
Selected Works from [20172024]

PATH









![]()

Selected Works from [20172024]

PATH









SOUL
Perkins Eastman Office Work
Role: Assisting Overall Architecture Design, including site analysis, medical planning, programs, landscape, etc., responsible for animation storyboard
Wish for converence - a world class facility is about PEOPLE, the dedicated medical teams providing world class care with state of the art TECHNOLOGY, underpinned by cutting edge RESEARCH in a unique and special PLACE infused with views to and being able to access NATURE. Shenzhen Fuwai Hospital of Chinese Academy of Medical Sciences will continue the branding image of a cardiovascular specialized hospital, further advancing its specialization and medical resource sharing, and strive to build an international and iconic national cardiovascular medicine center which is based in Shenzhen, serving the Guangdong-Hongkong-Marco great bay area, and radiating Southeast Asia.
“Windows to the soul” as the design concept of Shenzhen Fuwai Hospital of Chinese Academy of Medical Sciences phase III project, is to create a comfortable hospital visit and medical inspection experience for patients, accompanied families and hospital staff. Ultimately to open a window of hope for recovery for patients carry cardiovascular disease. The only way to calm the spirit is to keep the soul clean from dust, thus vision becomes clear, and mood turns delightful.


SITE ACCESS PLANNING CONCEPT


BUILDING ACCESS PHASE CONNECTION

RAMP LOCATION

FIRE RESCUE

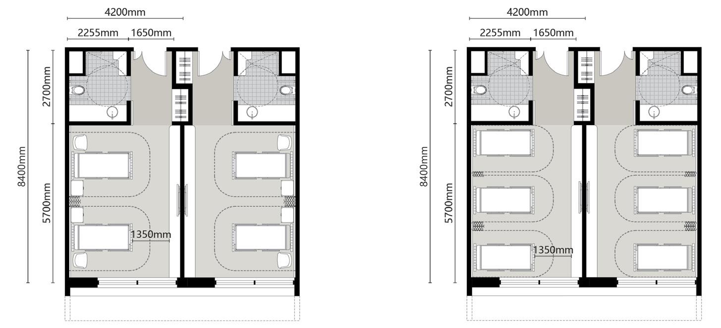
TYPICAL TOWER INPATIENT FLOOR
The core of the tower is set up to separate the visitor and the patient elevator, so there are two doctor elevators, two clean/food elevators, and one soiled/fire elevator are installed. The medical support area is set in the middle to facilitate quick access to each patient room. It contains its own internal corridor for regular internal activities. There is a clear and open vision to the outside at the end of each corridor and it ensures the guidance and lighting of the passage way. The patient rooms have two different sizes. The double- size room can accommodate three beds for flexibility in the future, while the single room has a family rest area to improve the quality of the space. The design of the toilet meets accessibility needs and the shower area has a downturn seat to improve safety and comfort.

PODIUM/TOWER VISITOR ELEVATOR
PATIENT ELEVATOR

CLEAN ELEVATOR
SOILED/FIRE ELEVATOR

DOCTOR ELEVATOR

TYPICAL PATIENT UNIT













































