
Columbia University GSAPP
Selectedworks 2022-2026
Tel: +1 9294659880 | Email: yc4495@columbia.edu

78 UNITS FOR COLLECTIVE LIVING AND MAKING
Columbia GSAPP Core III Studio
New York, USA/Group Work/Fall, 2025
Partner: Wei Li
Instructor: Hilary Sample
Situated in New York’s East Village, this project rethinks housing as a space where artistic life, domestic routines, and public engagement intersect . Responding to the presence of home studios and marginalized artists in the neighborhood, the project addresses the need for a living environment that supports making, teaching, and cultural labor while remaining adaptable to everyday life.
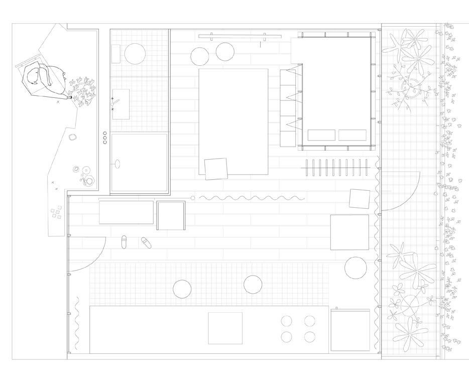
78 Units for Collective Living and Making proposes a house museum in which artists’ living spaces are treated as potential exhibits rather than fixed displays. Each unit is developed from modular furniture systems, translating everyday artistic practices into spatial configurations that scale from furniture to unit and ultimately to the collective building. Circulation becomes a gallery that is selectively open to visitors, allowing moments of exhibition, workshops, and lectures to unfold alongside private life. A layered façade—composed of glass, curtains, mesh, and vegetation—enables residents to control visibility and privacy, shifting between openness and retreat. Through its flexible programs and spatial layers, the building operates as housing for artists while offering cultural support to the surrounding community.

1 East Village Art View
Julia Justo
2 Slip House
Anne Hayden Stevens
3 Art on the Ave NYC's East Village Open Studio Series
hundreds of artists
4 Bullet Space
hundreds of artists
5 Izhar Patkin's East Village studio/home Izhar Patkin
The site is located in East Village, surrounded by a dense presence of marginalized artists with multiple roles who live and work in small home studios. This concentration of hybrid house–studio environments defines the immediate context as an active cluster of everyday artistic production.
6 Cuchifritos Gallery+Project Space
hundreds of artists
7 The Clemente Soto Vélez Cultural & Educational Center
hundreds of artists
8 Bullet Space
hundreds of artists
9 East Village home + art studio
Jay Rosenblum
10 Judd Foundation
Donald Judd


A house museum where domestic space becomes a field of exhibition. Modular furniture elements operate as small artifacts, assembling into studios that function as livedin displays. Each unit forms a curated environment shaped by everyday artistic practice, imagining artists inhabiting spaces where living, making, and exhibiting continuously overlap.





Residential units are organized around a continuous gallery corridor that connects private studios with collective spaces. Each unit operates as a compact living exhibit, while shared areas expand into zones for gathering, making, and informal display. The plan balances individual privacy with collective interaction, framing everyday artistic life within a spatial sequence that moves fluidly between domestic and public realms.




AS GALLERY The corridor acts as a gallery within the house museum, turning circulation into an active space for creation and exchange. It supports a range of activities, from workshops to smaller moments of making, learning, and everyday artistic practice, where exhibition and production coexist.
1 Section model 1/8" = 1'
2 View from exterior look through corridor
3 View from exterior look through the end of corridor
4 View from the corrdior



A layered envelope mediates between private studios and collective circulation, forming a porous boundary where residents can regulate visibility and privacy. Structural floors, glass, curtains, mesh, and vegetation work together as nested thresholds—opening and closing in response to daily life. A continuous green system rises from the ground, climbs the façade, and reaches the rooftop winter garden, wrapping the building in a living cover that connects domestic space to shared ecological zones. Within this vertical assembly, individual units link to collective galleries, allowing making, learning, and exhibition to coexist.






3

Academic Studio Design Ningbo, China/Individual Work/Spring, 2023 Instructor: Yat Ming LOO
As a characteristic culture in Ningbo, China, wood carving has been woven into the fabric of people's daily lives since the Tang Dynasty. However, in the 1940s, propelled by the swift progress of science and technology, wood carving gradually receded from daily existence, relegated to lifeless artifacts displayed in museums. Nevertheless, given its status as a cultural treasure of Ningbo, wood carving should not be treated in this manner.
Hence, this project introduces a novel exhibition paradigm distinct from traditional museums. It moves beyond the simple act of displaying exhibits behind glass windows. Instead, it crafts a spatial narrative through a fixed flow, recounting the story of wood carving — its past, present, and future. This innovative approach aims to immerse people in the rich narrative and significance of wood carving, fostering a high level of participation. The aim of the project extends beyond problem-solving; it is a platform for unveiling truths, prompting individuals to contemplate the future of wood carving.
CHAPTER 1
Reviewing the past





5000SBC
People in Hemudu, Ningbo, have crafted the earliest known wood carving fish object in China
AD600s
With the development of timber construction, decorative wood carving started being used in architecture
AD1300s
Ningbo wood carving is widely applied in daily life , including furnishings, Buddha carvings, and furniture decoration
AD1940s
Ningbo wood carving declined , leading to the gradual closure of the Ningbo Arts and Crafts wood carving factory
AD2000s
Ningbo wood carving is now a national intangible cultural heritage , often showcased in museums
Showing the beauty of traditional wood carving, let visitors feel the charm of it

CHAPTER 2
Experiencing the present


How to integrate wood carving into public life?

Directly involve visitors in the art of wood carving through engaging activities, such as public workshops.
TRADITIONAL MUSEUM
The wood carving artworks will be classified based on either their historical period or functionality and displayed in different galleries.





CHAPTER 3
Looking to the future
WOOD PREPARATION
DESIGN AND DRAWING CNC ENGRAVING
HAND FINISHING
COLOR AND PAINT

QUALITY CONTROL AND INSPECTION

PACKING AND SHIPPING
Researchers are invited to explore the future of wood carving, and the research outcomes will be displayed

CHAPTER 4
Making contribution

How to make the woodcarving industry self-sufficient?


By selling wood carving products, the museum aims for self-sufficiency and hopes to contribute funds to the wood carving industry.
Through architectural storytelling, the design narrates the past, present, and future of wood carving, prompting visitors' contemplation on the art of wood carving. NEW PARADIGM
HOW ARE THE FOUR BOXES FORMED
Present the stories of the four chapters sequentially in wooden boxes: Begin in Box 1, where visitors can explore the past glory of wood carving through the exhibition. Move to Box 2 for a tour of a wood carving worker's studio, explore contemporary artworks, and participate in wood carving workshops for a deeper understanding. Progress to Box 3 to witness current and future digital trends in wood carving, experiencing the collision between tradition and technology. Conclude the journey in Box 4, reflecting on wood carving's development. Contribute to the wood carving industry by enjoying a cafe and making purchases in the shop.













1. ROOF CONSTRUCTION
- EPDM roofing membrane
- Thermal Insulation, 120mm
- Waterproofing Layer
- LIGNATUR surface element (LFE 200) with fill 50 kg/m², 200mm
- Plywood, 31.5 mm
- Acoustic Insulation, 55mm
- Plywood, 31.5 mm
- Plywood, 13 mm
- Waterproofing membrane
- Rigid insulation, 50mm
- Wind protection
- Thermal insulation, 120mm
- Plywood, 13mm*2
- Parquet flooring, 15mm
- Sement screed, 50mm
- Sound insulation, 40mm
- LIGNATUR surface element (LFE 200) with fill 50 kg/m², 200mm

- Parquet flooring, 15mm
- Screed, 50mm
- Polythene separating layer
- Thermal insulation, 100mm
- Bitumen coating
- Reinforced concrete ground slab, 250mm
To resonate with the wood carving theme, the four boxes incorporate Timber Frame Construction. Timber columns and beams, functioning as both structure and ornamentation, are prominently featured on the external facade and throughout the building's interior. This intentional design fosters a seamless connection between the interior and exterior. The overarching goal for the building is not only to serve as a vessel for wood carving artworks but also transform itself into a large-scale wooden sculpture on the site, acting as a distinctive landmark within the art square.


JUXTAPOSITION HOUSE
SIGNGLE FAMILY HOUSE
Personal Project
California, US/Individual Work/Fall, 2023
Instructor: Ray XU/LEED AP BD +C, AIA
This project originated from an exploration of the intricate relationship between served space and servant space. Research reveals that in past residential spaces, there was a clear hierarchy between served space and servant space. However, in ancient religious architecture, served space and servant space were often juxtaposed This project applies the spatial characteristics of ancient religious architecture to modern residences, categorizing the modern functional spaces into service and served spaces, juxtaposing them, and connecting them through a captivating transitional space at the end. To provide residents with an intuitive understanding of this juxtaposition, the project not only reflects it in internal functionalities but also incorporates it into the design of the building's roof and façade . Whether inside or outside the building, users can experience the intriguing circulation and spatial sensations brought about by the juxtaposition



There used to be transitional spaces between served and servant spaces in past noble residences, for concealing servant spaces, maintaining the dignity and privacy of the served space.


In some ancient palaces and temples, it was common to juxtapose served spaces with servant space, especially during rituals or special ceremonies.

The juxtaposition of served space and servant space in this house perfectly presents Kahn's interpretation and contemplation of these two types of space.
CLIENT: A JEWELRY DESIGNER
"I live alone in this house, and besides the essential living space, I'd like a dedicated studio for crafting jewelry. Additionally, I also need a designated area for photographing my creations. Exhibition space is also crucial for





- Metal sheet, 20mm
- Rough wood planking, 25mm
- Ventilated air gap, 20mm
- Exterior insulation, 35mm
- Breathable membrane
- Thermal insulation / Rafter, 115mm
- Vapor barrier
- Thermal insulation, 90mm
- Plywood, 13mm
- Gypsum board, 13mm
- Subfloor, 22mm
- Insulation, 44mm
- Anchor beam, 22mm
- Interior ceiling covering, 9mm
- Wood Cladding, 75mm
- Air gap, 34mm
- Exterior insulation, 45mm
- Wind protection
- Thermal insulation, 145mm
- Thermal insulation, 45mm
- Vapor barrier
- Plywood, 13mm
- Gypsum board, 13mm
- Concrete slab, 290mm
- Rigid insulation, 150mm
- Drainage Layer, 95mm


A clear spatial arrangement is evident, with the served space on the right (light gray) and the servant space on the left (dark gray), consistently placed side by side in the front half of the house. However, towards the end of the house, these spaces converge, forming an elliptical transitional space (deep blue). It can be observed that the shape of the house's roof corresponds to the internal space. The juxtaposed served space and servant space correspond to two identical triangular roofs. These triangular roofs connect at the end of the house, creating a conical roof when viewed from the inside, corresponding to the transitional space.


Wood Light Frame Construction is the preferred method for constructing single-family homes in North America, offering benefits in design flexibility, efficiency, cost savings, strength, and sustainability. This construction method utilizes dimensional lumber and engineered wood, fastened together to create floor, wall, stair, and roof assemblies, forming the building's structure like a skeleton.





BETWEEN PERFORMANCE
Academic Studio Design
Ningbo, China/Group Work (Team leader)/Fall, 2022
Other Group Members: Yixin LI, Yi-Ching WANG, Ge GE, Yu HU
Instructor: Yat Ming LOO, Giaime Botti, Yimeng WANG
*All the material presented in this chapter is produced by myself
This project is situated on a vast 110,000-square-meter site in the old town area of Ningbo. Once the largest old market in the heart of Ningbo, this site held cherished memories of the vibrant daily life of nearby residents for nearly a century. However, due to its negative impact on the city's appearance, the government demolished the entire area in 2021, turning it into ruins. It seemed as though the stories of local life were buried beneath this wasteland, losing their stage for performance. Therefore, the project aspires to pick up the ruins and recreate the vibrant and lively atmosphere of bygone days.
The project introduces the concept of performance , considering all the common daily activities around the site, such as playing chess in the garage, drinking tea in the pavilion, fishing near the river, etc., as performance activities and spaces that reflect Ningbo culture. Extracting these elements and combining them with typography, they are transformed into unique performance nodes that belong to this site.
This project is set to become a hub for narrating Ningbo's life stories . It provides visitors with an opportunity to experience the local cultural charm, while offering nearby residents a sense of belonging in this space.

New Neighbourhoods
Old Neighbourhoods


The old market occupies a pivotal urban location that is significant for both local residents and visitors. For locals, the old market serves as a vital public space, surrounded by both old and new residential areas, preserving the memories of local community life. For visitors, its proximity to Ningbo Station and adjacency to renowned attractions make it an excellent venue to showcase Ningbo's culture. Therefore, the demolition of the market is a significant loss for both locals and visitors in Ningbo.














Position the meticulously designed performance nodes along the cultural spine, intricately integrated with the adjacent functional zones. The aim is to elevate this axis beyond a mere informal public space linking internal functional zones; it is envisioned as a pivotal cultural performance corridor, exerting influence across the entire urban region.

FLOWING GARDEN 05 GARDEN
Columbia GSAPP Core I Studio New York, USA/Group Work/Fall, 2024
Partner: Wei Li
Instructor: Mireia Luzárraga
Flowing Garden addresses New York City’s Combined Sewer Overflow (CSO) crisis by combining water filtration, public engagement, and ecological design. This movable artifact travels along mapped CSO outfalls and community spaces, filtering sewage overflow on-site and transforming it into usable water for public showers
Using a five-step natural-meets-technological filtration system—moss, algae, aquatic plants, activated carbon, and UV light —the project creates a closed-loop cycle. More than just infrastructure, Flowing Garden reimagines the city as a site of mutual care, where humans and urban biodiversity interact through naturepositive design and collective celebration.
a.Grey water (Showering)
b.Fountain water
a.Grey water (Showering)
c.Grey water (Washing)
b.Fountain water
d.River water
c.Grey water (Washing)
d.River water
1.Moss Primary Filtration
1.Moss Primary Filtration
2.Algae Filtration
2.Algae Filtration
3.Aquatic Plant Deep Purification
3.Aquatic Plant Deep Purification
4.Activated Carbon Filtration
4.Activated Carbon Filtration
5.Ultraviolet Disinfection
5.Ultraviolet Disinfection
6.Mist Spraying
6.Mist Spraying
A Parade Against CSO Pollution – Purifying Water and Encouraging Public Engagement

A Parade Against CSO Pollution -Purifying Water and Encouraging Public Engagement
As part of a lively block party, the installation offers a public shower, inviting people to experience purified water while learning about sustainable water practices. The project promotes mutualistic relationships between humans and urban biodiversity, showcasing how nature-positive design can improve both ecological health and city
By encouragingpublic participation, Flowing Garden fosters a deeper connection between communities and their environment.


DRIFTING ECOTOPIA
Columbia GSAPP Architecture Studio II New York, USA/Individual Work/Spring, 2025
Instructor: Maria Rius Ruiz
Drifting Ecotopia: a Social-Ecological Park by Yuyuan Chen (2025) is a speculative public system designed in response to the ongoing environmental crisis in Venice— particularly sea level rise, over-tourism, and ecological disruption . Instead of resisting change, the project embraces a future where architecture is adaptive, mobile, and symbiotic with water.
The system consists of floating islands, adaptive roads, and inflatable bubbles. The islands, varying in size and mobility, support cafés, theaters, and gardens while integrating vegetation to ease ecological pressure. Adaptive roads rise and float, connecting rooftops and floating structures, offering new circulation as ground levels submerge. Bubbles rest on rooftops, water, or grow from façades, creating soft, light-filled spaces for rest or extension.
More than architecture, Drifting Ecotopia is a spatial ecosystem —one that redefines public space as both social and ecological . It imagines a future where coexistence, flexibility, and fluidity become the foundations for survival, not just for humans, but for the many life forms that shape the urban environment.


2025 years
3000 years
A speculative timeline of Venice unfolds from its present condition toward two divergent long-term futures. At the center, Drifting Ecotopia proposes an adaptive network of floating infrastructures that redirects the city’s trajectory, allowing architecture to evolve with rising waters and support new forms of social and ecological life. This intervention imagines a city that grows in dialogue with water rather than resisting it. Without such adaptation, the surrounding scenario projects a distant future of gradual submergence and ecological collapse, where the urban fabric is ultimately overtaken by the forces it fails to accommodate.





DRIFTING ECOTOPIA
Floating islands, adaptive roads, and inflatable bubbles weave a dispersed public system through Venice’s existing fabric. Together they introduce new spaces for gathering, movement, and temporary inhabitation, reimagining the city as a fluid landscape that adapts to water.
Floating Islands
Inflatable Bubbles
Adaptive Roads


SOCIAL CLOUDFIT 07
WOMEN'S FITNESS CENTER
Personal Project Ningbo, China/Individual Work/Spring, 2022
The fitness process has the potential to empower women, enabling them to comprehend, maintain, and utilize their bodies correctly, thus furnishing the energy to explore and potentially transform their circumstances. However, women often face obstacles such as safety concerns and Male Gaze during the fitness process. Hence, a women-exclusive fitness center is necessary.
This project stands out from traditional fitness centers not only for being exclusive to women but also for its unique functional aspects. It incorporates a substantial amount of social space that complements the fundamental fitness features. For women, the significance of fitness extends beyond the physical aspects, encompassing relaxation and joy derived from communication and social interaction during the fitness process.
The project aims to serve as the "fitness backyard" for local women, providing a convenient, safe, and pressurefree space for fitness and socializing, seamlessly integrating into their daily lives
Body Shaming Women Disease
Weak and Helpless




Understand your body and cultivate confidence Prevent osteoporosis and cardiovascular disease Make new friends and enjoy life give women strength and sense of security
















Surroundings
"Exercising near a residential area makes me feel comfortable, just like at home."
WHAT ARE WOMEN LOOKING FOR IN SPORTS SPACES?
"I need to stay safe on my way to the gym! I'm really afraid of walking through some dark paths..."

"Actually, I enjoy chatting with people around me more than engaging in sports."











The interconnecting openings between the floors foster dynamic social interactions across different levels, creating opportunities for communication between each functional space. The distribution of the load-bearing structure along the perimeter of the building ensures expansive spaces within, catering to fitness and social activities.
COEXISTENCE OASIS NODE

Columbia GSAPP Architecture Studio I New York, USA/Individual Work/Fall, 2024
Instructor: Mireia Luzárraga
New York City is located along the North Atlantic Flyway, serving as a critical stopover for over 300 migratory bird species. However, due to urbanization and the loss of wetlands (with over 50% of wetlands lost nationwide), migratory birds face a shortage of suitable habitats. This environmental pressure has led to a decline in bird populations, further disrupting the balance of ecosystems. The city urgently needs to establish alternative ecological nodes to restore stopover sites and promote interaction among bird species and other wildlife.
Starting with the design of an Oasis Node, its function is not limited to providing a habitat for birds. Instead, it aims to establish a safe stopover point for migratory birds as a starting point to reconnect relationships among multiple species and build a system that supports both biodiversity and human coexistence



