

PORTFOLIO
Selected Works from 2025 -2026
Xinran Yu
Applying for University College London Programme Programme: Architectural Design MArch
Spring in Iron

In a steel-forged city, this project searches for what endures: care, routine, and shared ground. Housing, healthcare, landscape, and daily amenities are woven into a neighborhood with a steady pulse—private life protected, public life gently invited. A sequence of thresholds, social pockets, green corridors, and support points makes care visible and dignified, not isolated.

This project refuses the false choice between firework bans and festival tradition. Shenyang’s cooling tower is transformed into a civic ritual space—an industrial monument given new public life. With restrained cuts and a “firework core,” it choreographs gathering, viewing and safety, while smoke capture and treatment make responsibility part of the design.

Starting from children’s daily lives, this project reads poverty as a chain of conditions—broken schooling, normalized labor, nearby violence, and earlylimited futures. It responds with modest but precise support: safe places to study, reliable food and water, protected play, and access to learning resources. Through four lenses— system, life, family, learning.

This project reads the shoreline as time in motion— tides, rain, erosion, and seasons redrawing the edge. Instead of a hard boundary, it creates a sequence of thresholds: rising and dipping paths, platforms, and rooms that open and close like breath. Movement becomes a story of arrival, meeting, and retreat, while materials weather and record change, over time.

Instead of spectacle, this project shapes the city through quiet gestures—the curve of a path, the depth of an edge, the spacing of trees, the pause before crossing. I
n infrastructure of public life: shade, waiting, detours, conversations, places to sit. Urban form becomes handwriting—continuous
i
e w h i l e leaving room to improvise.

01 Spring in Iron
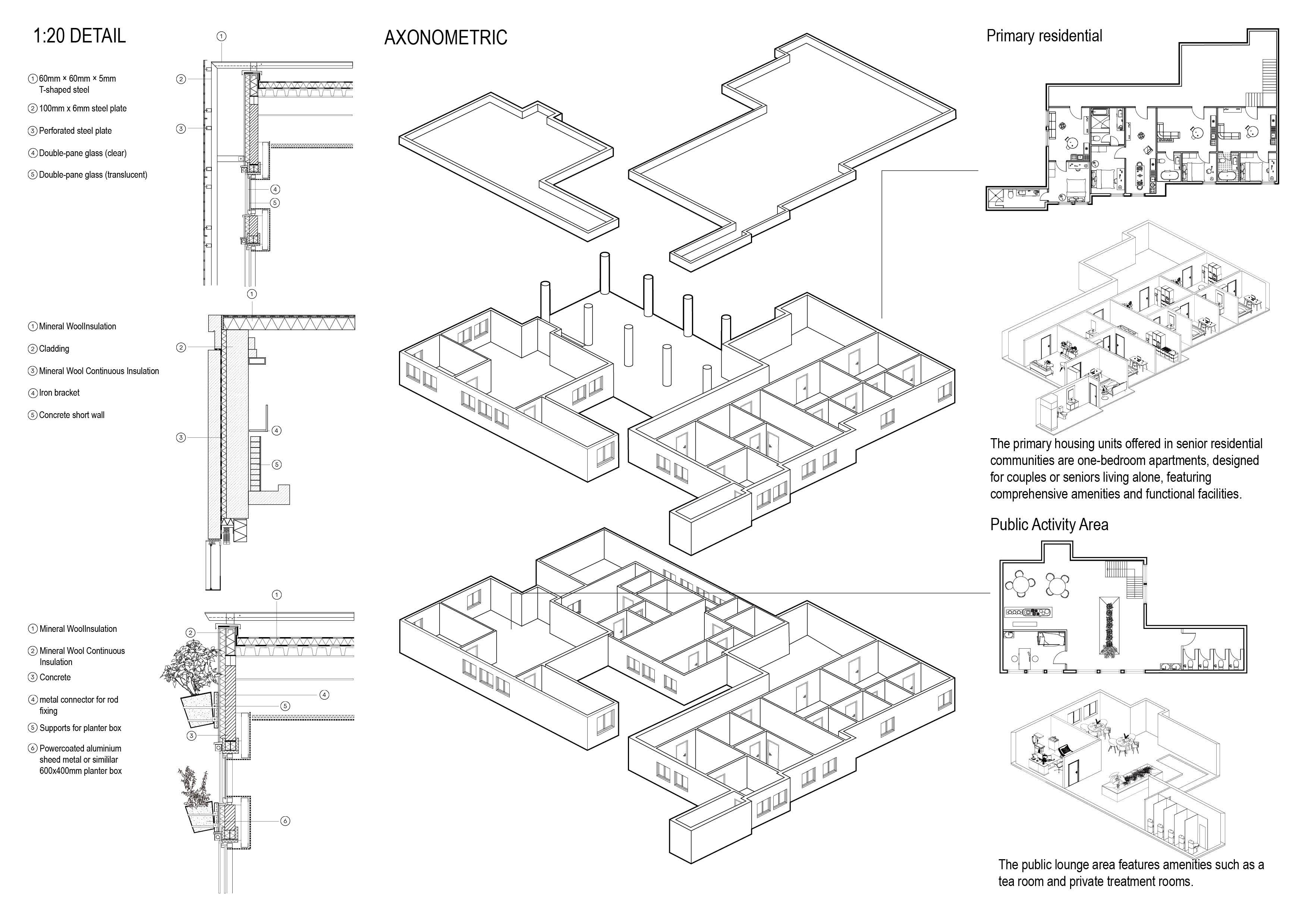
In a city forged by steel, this project looks for the softer things that can last: care, routine, and shared ground. Housing, healthcare, landscape, and everyday amenities are stitched together so the neighborhood works like a steady pulse— private life protected, public life gently invited. Spaces expand and contract in sequence: a sheltered threshold, a social pocket, a green corridor, a clinic-like support point. Rather than isolating older residents, the plan lets support appear as part of ordinary life—seen, accessible, and dignified. The result is a community that doesn’t “solve” aging, but makes room for it— like spring arriving slowly in iron.
Population Age Distribution vs. UK Population Age Distribution

Sheffield is located in central England, a historic city in South Yorkshire. Renowned for its steel industry, it was once dubbed the “City of Steel,” with its forged iron used in constructing world-famous buildings. Today, Sheffield has successfully transformed into a vibrant modern city while preserving its industrial heritage. Specifically situated near Neepsend, it boasts riverside access, abundant resources, and excellent transportation links.




ISSUE COLLAGE

DESIGN

















The building's layout integrates technology, residential spaces, and greenery. These three elements interweave throughout the structure, while varying spatial densities characterize different zones. For instance, some areas function as fully public spaces, while others serve as semi-public spaces.


FACADE RENDERING
INTERIOR RENDERING

The interior rendering primarily showcases the appearance of the health and medical center, which is the most crucial component of this senior living community. Functioning simultaneously as a hospital and a place of healing, the interior incorporates extensive woodwork to create a warm and inviting environment.

From different angles, the building reveals overlapping variations in floor heights, demonstrating that it is not merely stacked but offers numerous fresh perspectives. It strives to create a vibrant, modern community. Many stories unfold on rooftops too, where resting spots and flower beds abound, creating diverse activities for the elderly.

The building's facade combines three materials: concrete, steel panels, and green curtain walls. These elements interweave across the exterior surface, mirroring the internal structures of the three distinct building sections. This facade design infuses the architecture with renewed vitality, dispelling the conventional heaviness associated with senior living communities and delivering a refreshing transformation.

02 Where Light is Kept
This work takes a hard urban argument—firework bans versus festival tradition—and refuses to choose only one side. By transforming Shenyang’s cooling tower into a public ceremonial device, it preserves an industrial monument while giving it a new civic purpose. The intervention edits the tower with restraint, carving space for gathering and inserting a “firework core” that organizes viewing, movement, and safety. Smoke capture and treatment become part of the architecture’s logic, so celebration is paired with responsibility. What used to be an isolated machine becomes a shared ritual container: a place where light can rise, be watched together, and fall without leaving the city wounded.
TRADITIONAL FESTIVAL CUSTOM AND FIREWORKS

For Chinese people, the most important festival of the year is the Spring Festival.



During the Spring Festival, usually, every household will light fireworks and firecrackers at the New Year time. Fireworks, as a traditional New Year activity, often bring people together to watch, creating a strong sense of reunion.Due to the large amount of smoke and chemicals produced by fireworks, many cities now prohibit their use to protect the environment and air quality.
FIREWORK PROHIBITED AREA IN SHENYANG
THE HARM OF FIREWORKS FOR URBEN ENVIRONMENT






To reduce this pollution, we have designed a centralized fireworks display site that effectively collects and treats the smoke, while also bringing back the festive New Year spirit for everyone.



Before prohibiting the use of fireworks
SITE ANALYSIS:A Thermal Power Plant
Beijing

Shanghai

The changes in pollution levels during the Spring Festival in Shanghai from 2013 to 2017 after the ban on fireworks policy.
The areas within the third ring road of Shenyang City, Liaoning Province, as well as several surrounding areas, are prohibited from setting off fireworks and firecrackers.
The area is surrounded by various residential areas. These residential communities vary in terms of size and class hierarchy.However, the common point is that this area can be called a high-density urban area.In the center of the densely populated residential area is a factory.
Shenyang Huachun Thermal Power Co., Ltd. is located at No. 352, Zhulin Road, Da Dong District, Shenyang City. The factory area covers an area of 37 hectares and the total installed capacity is 600,000 kilowatts. The company was formerly known as Shenhai Thermal Power Plant and was established in April 1988. It was a key national energy project during the "Seventeen-Year Plan" period.
Inside the factory, there are various types of workshops and cooling towers for different purposes.
To the northeast of the factory is a city park that was transformed from another historical textile factory and Dongmao Warehouse in Shenyang.
This is the cooling tower we have selected. It will serve as our target for renovation, carrying out our ideas and themes for architectural design.

FIREWORKS ANALYSIS
Fireworks are mainly composed of the following core components:
Firing powder: Utilizing the principle of black powder to propel the fireworks to a high altitude, chemical reactions generate thrust.
Ignition cord: Using the heat generated by the burning of gunpowder to ignite the main powder layer, controlling the sequence of ignition.
Luminous beads : Containing metal salt compounds (such as strontium chloride, barium chloride, etc.), burning produces flames of different colors.
The areas within the third ring road of Shenyang City, Liaoning Province, as well as several surrounding areas, are prohibited from setting off fireworks and firecrackers.

BURSTING CHARGE
Ignites and releases stars in the correct sequence
TIME DELAY FUSE
Ignites the bursting charges once the shell is aloft
LIFTING CHARGE
Propels the shell upwards once the powder is ignited
SMOKE TREATMENT PROCESS

SMOKE TREATMENT PROCESS


















We conducted numerous cutting experiments, experimenting with different ways to carve out spaces and architectural facades from the original condenser tower. Both the integration and division of forms create distinct spatial atmospheres and experiences.



were employed to segment and group the structure. Consequently, the three main buildings are divided into distinct functional zones.
The original cooling tower
Prevent Internal Fireworks Tower
Remove a section of the cooling tower
Place the inner liner inside the fireworks tower Post-cutting morphology Add floor slab
Join the Fireworks Tower
Adjacent auxiliary buildings
Cut the existing building using cylindrical language



This rendering depicts the internal structure of the fireworks display area, designed to mimic the blooming form of fireworks. Reflective materials are used so that when the fireworks burst, they create a kaleidoscopelike effect projected onto the surrounding walls.

This interior rendering depicts the reading room/ activity space situated on the middle floor of the building. The overall lighting creates a warm and inviting atmosphere, while the ceiling design effectively maximizes natural light within the structure. The surrounding glass curtain walls provide excellent views from inside the reading room.

03 Small Lights, Long Nights
Beginning with the lives of children, the project treats poverty not as an image, but as a chain of conditions—school interrupted, labor normalized, violence near at hand, and futures narrowed early. It answers with small, specific forms of support: spaces to study without being chased away, dependable food and water, protected play, and access to learning resources. The architecture is deliberately modest— because the most meaningful change often arrives quietly. By working through four intertwined lenses (system, life, family, learning), the design becomes a set of “light points” distributed through daily routines. They do not erase hardship, but they shorten the night—one safe corner, one steady meal, one page at a time.
Colombia’s wealth gap is extreme, with over 16 million in poverty and a Gini coefficient of 54.8. The structural divide is anchored by a large informal workforce (around 60%) and deep opportunity inequality, where birthplace heavily dictates one's prospects.


Due to war and gang activity, many children cannot attend school safely.

Due to unstable household income and persistent poverty, many children lack sufficient funds.

Insufficient teaching resources and facilities, linked to funding deficits and low incomes, hinder
TIMELINE OF DIFFERENT AGE KIDS













INCOME & EXPENDITURES




Children are forced to work as child laborers to support their families, which consequently affects their























The analysis centers on four children aged 9 to 12, who despite being students bear various responsibilities. Examining their daily lives reveals the plight of Colombian children. Most are the eldest children in their households, indirectly assuming parental responsibilities—caring for younger siblings or managing household chores. This precisely reflects the reality of children in Colombia's slums, who must shoulder family burdens at an age when they should be learning and growing.



The analysis highlights four essential components required for children in Colombia's slums: dedicated learning spaces, abundant educational resources, nutritious and timely meals, and a safe play area. These four elements effectively form the vision for schools specifically designed for slum communities, while also providing children with effective protection.


Slum imagery
Nearby Facilities Normal Superior School Educational Institution Medellin
affluent neighborhood
Me osalud Hospital Cent Educ Picolino
Violence
Poverty
Child labor
Lack of learning resources
The analysis identifies four core modules addressing the current challenges in Colombia's slums: “system,” “life,” “family,” and “study.” Starting from the most fundamental modules, solutions gradually evolve and intersect to form the final model and composition. These four issues are tightly interconnected, with a chain reaction effect present. The design also incorporates practical considerations specific to Colombia's local climate. For instance, walls of varying lengths are employed horizontally to facilitate ventilation in response to the country's hot climate. Additionally, the elevated space between the first and second floors allows for varying degrees of airflow, thereby reducing indoor

Protected building
Short wall
Classroom size
Pillars and Outdoor space created
Space
Join the corridor
Allocate space
Combining columns and walls
Pillars create open areas
Creating Public Spaces
Space Utilization
Offset Wall


04 Where Water Pauses
ABOUT US: First vear Architecture students fromUniversity of Sheffield
BRlEF: Working at a 1:1 scale to understand theconsequences of spatial and physical interven-tions in an urban context
PROJECT DESCRIPTION: Constructing a sandastle and beach tent structure, which which protect the sandcastle in the event of a suddersquall or torrential downpour
PROJECT GOALS: HOW LONG WE THERE, WHAT WE'RE BUILDING and sandcastle.3.00pm Construction finish and exhibitiorand recycled, leaving the site as we found it.
10:15am Arrive at Cleethorpes and beain site selection, tide observation and construction of structures 3.45pm Tents are taken down and reloaded onto the van. All materials and equipment to be removed and recycled, leaving the site as we found it.
CONCEPT


Exploring the history of Cleethorpesspecifically the marine fortsDuring wW1, two fortifications were planned in the Humber Estuary in Northern England, to protect theentrance to the Humber Estuary. The con200 soldiers, taking more than four years to build, finishing in December 1919.During wW2 the forts were moderised and reactivated. They were abandoned in 1956 and Bull SanoFort was given a Grade ll Listed Building status istruction started in May 1915 and provided accommodation fo
PROCESS



The entire structure utilizes triangular wooden frames assembled together, enhancing overall stability. Since the temporary structure is built in water, stability is a critical factor. We conducted experiments on scaled-down models to ensure the feasibility of the design.



MODELLING FINAL TENT DESIGN

FABRIC CONSTRUCTION






We used ripstop fabric ancevelets them it and attachto tent structure. We used timber lathes and wingnuts for the structure.
FINAL PYSICAL BUILD UP



Here are some pictures from the day which show the final beachtent and sandcastle design. The images on the left show our sandcastle design intercating with the water as the tide came in, creating the pier like effect that we had invisioned in our design process. We used buckets of water and string to help tie down the beach tent from the strong winds, which was successful as it stayed up well throughout the day.
