YouBuild Gennaio 2023

Page 1

YouBuild YB ISSN 2532 - 5345 L’isolamentosumisura èamicodeiprogettisti BI FIRE Latop100 delleimprese dicostruzione CLASSIFICHE Larigenerazione siècoloratadiverde VI CONVEGNO YOUBUILD Comesarà l’ediliziadel2023 MERCATO TENDENZE E ATTUALITÀ DAL MONDO DELLE COSTRUZIONI Poste Italiane SpASped. in a.p. D.L. 353/2003 conv. in L. 46/2004, art. 1, c.1 DCB Trento. Virginia Gambino Editore SrlViale Monte Ceneri 6020155 MilanoContiene I.R. e I.P. Alfredo Varini N° 26 - DICEMBRE/GENNAIO 2023 YouBuild YB TENDENZE E ATTUALITÀ DAL MONDO DELLE COSTRUZIONI Morphosis Architects + Nemesi Architects Andrea Borri Architetti Lca Architects Vacuum Atelier Okam Studio PINNA VIARDO ARCHITETTI Carlana Mezzalira Pentimalli BIG + CRA EMILIO AMBASZ ASSOCIATES Gisele Borges Arquitetura Tchoban Voss Architekten FREDIANI-GASSER ARCHITETTURA Taller Capital Amaa I PROTAGONISTI DI QUESTO NUMERO Poste Italiane SpASped. in a.p. D.L. 353/2003 conv. in L. 46/2004, art. 1, c.1 DCB Trento. Virginia Gambino Editore SrlViale Monte Ceneri 6020155 MilanoContiene I.R. e I.P. N° 26 - DICEMBRE/GENNAIO 2023
YouBuild - DICEMBRE / GENNAIO 2023 02
YouBuild YB ISSN 2532 - 5345 L’isolamentosumisura èamicodeiprogettisti BI FIRE Latop100 delleimprese dicostruzione CLASSIFICHE Larigenerazione siècoloratadiverde VI CONVEGNO YOUBUILD Comesarà l’ediliziadel2023 MERCATO TENDENZE E ATTUALITÀ DAL MONDO DELLE COSTRUZIONI Poste Italiane SpASped. in a.p. D.L. 353/2003 conv. in L. 46/2004, art. 1, c.1 DCB Trento. Virginia Gambino Editore SrlViale Monte Ceneri 6020155 MilanoContiene I.R. e I.P. Alfredo Varini N° 26 - DICEMBRE/GENNAIO 2023
DICEMBRE / GENNAIO
ENERAL è un sistema di elementi in estruso di alluminio opportunamente realizzato per garantire l’ottimale applicazione di impianti fotovoltaici sui sistemi di copertura Alubel sia piani che curvi. Per informazioni visita il nostro sito o chiamaci allo 0522 957511.
ideale
energia www.alubel.com
Il supporto
per la tua

YouBuild YB

TENDENZE E ATTUALITÀ DAL MONDO DELLE COSTRUZIONI

ANNO 8 - NUMERO 26 - DICEMBRE / GENNAIO 2023

Direzione, Redazione, Abbonamenti, Amministrazione e Pubblicità Head office, Editorial office, Subscription, Administration and Advertising

Virginia Gambino Editore S.r.l.

Viale Monte Ceneri, 60 - 20155 Milano - Italy

Tel. +039 02 47761275 - info@vgambinoeditore.it

ISSN 2532 - 5345

Direttore responsabile / Publisher VIRGINIA GAMBINO virginia@vgambinoeditore.it

Direttore Editoriale / Editorial Director LUCA MARIA FRANCESCO FABRIS

Coordinatore editoriale / Editorial coordinator VERONICA MONACO

Comitato scientifico / Scientific Committee

ROBERTO BOLICI (Politecnico di Milano), GIAN LUCA BRUNETTI (Politecnico di Milano), EMILIA CORRADI (Politecnico di Milano),

ANNA FRANGIPANE (Università di Udine), FAN FU (Beijing University of Civil Engineering and Architecture), MATTEO GAMBARO (Politecnico di Milano), FRANCESCO GASTALDI (Università IUAV di Venezia), WENJUN MA (Shanghai Jiao Tong University), GARRY MILEY (South East Technological University), LJUBOMIR MIŠČEVIĆ (University of Zagreb), EMANUELE NABONI (Università di Parma), MATTEO UMBERTO POLI (Politecnico di Milano), ALESSANDRO ROGORA (Politecnico di Milano), ALBERTO SDEGNO (Università di Udine), VASO TROVA (University of Thessaly), ILARIA VALENTE (Politecnico di Milano)

Collaboratori / Contributors

VALENTINA ANGHINONI, RICCARDO MARIA BALZAROTTI, ILARIA BIZZO, PAOLO CALIARI, FEDERICO CAMERIN, ANDREA CATTO, STEFANO CORNACCHINI, FEDERICO DELLA PUPPA, SILVIA DI MAURO, ERNESTO FAVA, FRANCESCO GASTALDI, SARA GIUSTI, VALENTINA LABRIOLA, ROSSELLA LOCATELLI, SELENE MAESTRI (FOTOGRAFA), VERONICA MONACO, ANDREA OLDANI, MARIELLA ANDREINA ROBERTO, ALESSANDRO ROGORA, KEVIN SANTUS, FRANCO SARO , ALBERTO SDEGNO, GERARDO SEMPREBON, PIETRO VALLE

Impaginazione e grafica / Layout and graphics RAFFAELLA SESIA

Ufficio commerciale - Vendita Spazi pubblicitari/ Commercial department - Sale of advertising Spaces

Viale Monte Ceneri 60 - Milano / Tel. +039 02 47761275 - cell. 340 1761951 / info@vgambinoeditore.it

Come abbonarsi / How to subscribe Italia annuo € 32,00 - Copia singola € 7,50. Per abbonarsi è possibile sottoscrivere l’abbonamento online al link www.virginiagambinoeditore.it/shop/abbonamenti oppure, fare richiesta via mail ad abbonamenti@vgambinoeditore.it o telefonando al numero 02 47761275 Stampa / Printing ALCIONE Lavis - Trento

Responsabilità / Responsability : la riproduzione delle illustrazioni e articoli pubblicati dalla rivista, nonché la loro riproduzione, è riservata e non può avvenire senza espressa autorizzazione della Casa Editrice. I manoscritti e le illustrazioni inviati alla redazione non saranno restituiti, anche se non pubblicati, e la Casa Editrice non si assume responsabilità per il caso che si tratti di esemplari unici. La Casa Editrice non si assume responsabilità per i casi di eventuali errori contenuti negli articoli pubblicati o di errori in cui fosse incorsa nella loro riproduzione sulla rivista. Periodicità / Frequency of publication: trimestrale - 4 numeri/anno. Poste Italiane Spa - Sped. In

Trento. Registrazione / Registration: N. 343 del 04-12-2015 del Tribunale Civile e Penale di Milano. Ai sensi del D. Lgs. 196/2003, informiamo che i dati personali vengono utilizzati esclusivamente per l’invio delle pubblicazioni edite da Virginia Gambino Editore Srl. Telefonando o scrivendo alla redazione è possibile esercitare tutti i diritti previsti dall’articolo 7 del D. Lgs. 196/2003.

c. 1
a.p. - D.L. 353/2003 conv. in L. 46/2004, art. 1,
- DCB

RIDUZIONE

CLODIA ha un ciclo vita sostenibile a partire dall’approvvigionamento delle materie prime, acquistate nei pressi dello stabilimento produttivo per limitare i trasporti e le conseguenti emissioni di CO2. La produzione avviene utilizzando un ridotto consumo di acqua e a temperatura ambiente (non sono richiesti forni che riscaldano l’ambiente o che producono CO2). La posa in opera avviene “a secco”, quindi senza l’utilizzo di malte, collanti o composti chimici che potrebbero alterare il pH del terreno o contaminare l’ambiente, e senza la necessità di mezzi meccanici inquinanti.

RIUTILIZZO

CLODIA è una pavimentazione che richiede la minima manutenzione e, qualora fosse necessario, è possibile sostituirla o integrarla facilmente. A fine vita del cantiere o in caso di riconversioni, CLODIA può essere riutilizzata altrove, senza particolari costi di smontaggio e non necessita di demolizioni.

RICICLO RECUPERO

Il pavimento CLODIA può essere recuperato e riutilizzato anche dopo molti anni di utilizzo, o può essere macinato e convertito in sostanze inerti e non inquinanti che rientrano nel ciclo produttivo.

L’eventuale scarto derivante dalla produzione di CLODIA può essere valorizzato sotto il profilo economico e diventare materia seconda, ossia la nuova materia prima per un nuovo ciclo produttivo.

OLTRE LE 4R: 100% PERMEABILE E CERTIFICATO SRI

CLODIA è disponibile anche nella finitura DRENOPAV che garantisce il 100% di permeabilità alle superfici, permettendo alle acque di infiltrarsi naturalmente nel sottosuolo, mantenendo la falda acquifera, prevenendo gli allagamenti, migliorando il microclima ed evitando la formazione di pozzanghere.

Le particolari colorazioni e finiture di CLODIA sono testate e certificate SRI (Indice di Riflettanza Solare) rispondendo alle richieste dei protocolli ambientali quali LEED, ITACA, BEEAM e C.A.M.. Tale caratteristica garantisce che le superfici sottoposte a forte irraggiamento solare limitino il proprio surriscaldamento, migliorando il microclima e garantendo il comfort per persone, animali e piante. CLODIA è un pavimento ideale per aree come bordi piscina, arenili, complessi sportivi e ovunque vi sia una percorribilità “a piedi nudi”.

Tel. +39 035 556 055 | customer@recordbagattini.com recordbagattini.com CLODIA È UN MULTIFORMATO DI 4 ELEMENTI CON FINITURA GRANITI E NUANCES SOFISTICATE ED ELEGANTI.
PIETRA DI LUNA TUNDRA MIX GRANITO MIX GRIGIO MIX ROSSO
4R

BRESSANONE La

INTERNI

CONTEST

VI CONVEGNO YOUBUILD

INTERVENTI

EDILIZIA

SOSTENIBILITÀ

IMPRESE

SEGGIOLE

L'ARCHITETTO SOSTENIBILE

N°26 - DICEMBRE / GENNAIO 2023
EDITORIALE Ritorno al futuro 11 CONTENT ABSTRACTS 12
ITALIA IL MERCATO Edilizia a passo di marcia 14 ECONOMIA GREEN Transizione a rischio Pmi 22 I NUOVI CAM Che cosa cambia per chi progetta 26 MILANO Eni fa il pieno di sostenibilità 28 MILANO - 2 L'ex fabbrica si fa circolare 34 MILANO - 3 Più sostenibile con la paglia 40 BERGAMO Dispositivo domestico 44
d'acciaio 48
SOMMARIO
ATTUALITÀ
BERGAMO - 2 Rigenerazione
futurismo 54
GENOVA Quel recupero è
cultura
fa in tre 58
si
ceramica
Le nuove facce della
68
BigMat premia l'architettura 70
L'EVENTO
Il lungo cammino della sostenibilità 74
LA NUOVA EDILIZIA
La biocasa che rigenera 82
Quattro modi di rigenerare 84
VERDE La casa giusta è come un fiore 90
Progettare verde attraverso i dati 94
Le tante vie della transizione 98
& POLTRONE 102
28
Quella sottile differenza 104

CON YTONG È UN’ALTRA STORIA

L’assorbimento dell’anidride carbonica è una caratteristica intrinseca dei BLOCCHI YTONG IN CALCESTRUZZO AERATO AUTOCLAVATO e permane inalterata per l’intero ciclo di utilizzo del materiale, apportando un grande beneficio all’intero pianeta.

YTONG

Blocchi e tramezze in calcestruzzo aerato autoclavato

DURATA ASSORBIMENTO CO2: INFINITA
www.xella-italia.it
DURATA ASSORBIMENTO CO2: UNA VITA

COME

SOMMARIO N°26 - DICEMBRE / GENNAIO 2023
DI COSTRUZIONE Tanto lavoro, pochi utili 108
SINGAPORE
grattacielo a messo radici 118 USA Il tetto verde compie 100 anni 126 BRASILE Una lama taglia Belo Horizonte 132
Cemento e legno, coppia perfetta 138 AUSTRIA L'ebanista va in banca 144 WORLD WIDE BUILD 150 TERRITORIO & SOCIETÀ Città su misura per i senior 158
DOSSIER IMPRESE
MONDO
Il
GERMANIA
COPERTINA BIFIRE Quella sottile idea amica dei progettisti 160 INTERMEZZO Nel momento sbagliato. Forse 168
CAMBIAMENTO CLIMATICO EDILIZIA
costruire con il meteo pazzo 174
ITALIA La sostenibilità quattro stagioni 180 XELLA
sistema completo che tutela il clima 184
DIGITALE Progettare? È un cinema 186
STORIA DI
SPECIALE
Come
TERREAL
Il
L'ARCHITETTO
GRUPPO WÜRTH Il lamellare fissato da record 190
SENINI Più biomassa, meno anidride 194 START-UP Domotica da riciclo 196 INTORNO MESSICO Carramba, il parco è uno spartitraffico 198 UNDER 40 TREVISO Cura radicale per la farmacia 204 OVERVIEW 210 EVENTI E NOTIZIE 212 ARCHILEGGERE 214 PROFESSIONE ARCHITETTO 216 118
SI FA
COSTRUIRE

solai alleggeriti, platee di fondazione

vespai aerati, intercapedini tecniche

vespai aerati, intercapedini tecniche, vasche di accumulo e dispersione acque meteoriche

giardini pensili, tetti verdi
DALIFORM GROUP srl - Via Postumia Centro 49 - 31040 Gorgo al Monticano (TV) – Italy - Tel. +39 0422 2083 - info@daliform.com SCOPRI TUTTE LE SOLUZIONI COSTRUTTIVE E SCARICA LE LIBRERIE BIM DEI NOSTRI PRODOTTI www.daliform.com
IL
prati carrabili
PRODOTTI EVOLUTI PER
MONDO DELLE COSTRUZIONI

Ritorno al futuro

Care lettrici, cari lettori, eccoci qui pronti per affrontare un nuovo anno insieme a voi. Siccome, al solito, preferisco essere positivo e mi piace guardare il futuro con simpatia e ottimismo, non vi sto qui a tediare con il fatto che a una crisi economica e sociale dovuta alla pandemia sanitaria si è aggiunta quella dovuta alla crisi ucraina, che si è evoluta in una crisi energetica che sta comportando scelte accelerate verso soluzioni auspicate da tempo, ma che solo la situazione contingente ha saputo mettere in moto. C’era proprio bisogno di una guerra e di una crisi mondiale che ha messo in discussione tante, se non tutte le cose che davamo per certe? Forse abbiamo un po’ dormito, forse avremmo dovuto aspettarcelo. Di certo è che del senno di poi, si sa, sono piene le fosse, solo che le fosse per il momento sono asciutte, siccome (altra crisi) il cambiamento climatico che per molti non era che un disturbante «al lupo, al lupo!» s’è fatto scrupolo di palesarsi in modo concreto e preciso. Sì, va bene, proprio grazie al clima e ai suoi nuovi parametri in quest’inverno che già sappiamo anomalo, potremo risparmiare sulla spesa del gas, ma resta il fatto che l’anno passato ci ha messo davanti a un baratro di cui vediamo bene l’abisso che dovremo superare, tutti insieme. Perché sicuramente un’altra cosa che abbiamo appreso in questi anni è che decisamente abbiamo un solo pianeta e che effettivamente siamo globalizzati, anche quando tendiamo all’autarchia, utopia ora sempre più difficile da realizzare. E improbabile da sostenere. Perché, sempre nell’anno passato, l’Italia produttiva ha retto il colpo e ha saputo crescere, quando altre realtà economiche importanti si sono trovate in stallo o sono collassate, mutandosi e sviluppandosi e rivelandosi, di nuovo, un Paese che fa ricerca e crea innovazione, molto apprezzata all’estero. Che cos’ha di speciale il nostro Paese? Beh, direi che prima di tutto ha gli italiani, che non predicano la resilienza, sono resilienti da sempre, da prima che questo termine, di per sé «nuovo», ma oramai già abusato, fosse inteso nel senso attuale in cui resilienza è «la velocità con cui una comunità (o un sistema ecologico) ritorna al suo stato iniziale, dopo essere stata sottoposta a una perturbazione che l’ha allontanata da quello stato» (Treccani). Ecco, per me, gli italiani sanno tornare allo stato iniziale T0 più 1. Insomma, anche se non ho nulla di analitico per dimostrarlo, direi che impariamo e ritorniamo allo stato di partenza con più memoria e, quindi, più idee e un po’ cambiati. Per questo sono certo che anche quest’anno sarà buono e ci vedrà protagonisti. In questo numero trovate in sottofondo un leitmotiv che percorre tutti gli articoli: rigenerazione e circolarità che, in fin dei conti sono anche due anime portanti del Pnrr nazionale che nei prossimi mesi dovrà entrare a massimo regime. Quindi, vi diamo notizie aggiornate sul mercato dell’edilizia, che continua ad espandersi nonostante tutto, e vi diamo il polso delle Pmi, che dovranno ottimizzarsi in un’ottica sempre più green, e parliamo dei nuovi Criteri ambientali minimi. Inoltre, per chi se lo fosse perso, ripercorriamo i temi trattati dal VI Convegno YouBuild tenutosi a novembre scorso e conclusosi con l’assegnazione degli YouBuild Awards. Inoltre, il nostro bravo Kevin Santus, con tre articoli dedicati ad altrettanti progetti recenti realizzati nella provincia italiana, ci fa toccare con mano la circolarità in architettura. E poi Morphosis e Nemesi con la nuova sede Eni a San Donato, monumento alla sostenibilità, Andrea Borri con una riqualificazione a Milano, la Torre Fara recuperata a Chiavari da Pinna Viardo, la nuova biblioteca a Bressanone di Carlana Mezzalira Pentimalli, un centro polifunzionale in Veneto di Amaa e quindi, si va all’estero, con Big e Cra per la Torre Capitaspring a Singapore, un edificio residenziale unico a Belo Horizonte di Gisele Borges, la sede in cemento e legno di Vattenfall a Berlino di Tchoban Voss, e la banca austriaca, sempre in legno, di Frediani-Gasser e, per finire, un interessante parco lineare di Taller Capital in Messico. Al solito non mancano tutte le rubriche e le notizie che aiutano a fare il quadro e prepararci a quello che ci aspetta, in questo nuovo anno che deve essere vibrante e deve prevedere, fra le varie cose, anche un ritorno a quel futuro pare che in qualche modo abbiamo perso, ma che sta a noi dover ritrovare e implementare nel bene e nel meglio. [scritto ascoltando il ritorno dei giapponesi Capsule, che festeggiano 25 anni con il notevole メトロパルス ovvero Metro Pulse (2022), davvero un ritorno al futuro].

11 YouBuild - DICEMBRE / GENNAIO 2023
YouBuild YB TENDENZE E ATTUALITÀ DAL MONDO DELLE COSTRUZIONI EDITORIALE
di Luca MF Fabris

Green companies live longer

Those companies which won’t adopt any measure to reduce the physical threats connected to the climate changes are going to increase their bankrupt probability of 25% and their risk of investment of 44% by 2050. Moreover, for the high physical risk enterprises (more than 8%), there will be an increment of the insurance premium up to the 3% of turnover and a huge amount of yearly costs, equal to the 1,6% of the net profit. These are part of the data provided by the 2022 Cerved Pmi Report, drawn up by the society that recollects and analyses the companies’ balance sheets.

pag 22

YouBuild - DICEMBRE / GENNAIO 2023 12
CONTENT ABSTRACTS

AN HEADQUARTERS OF TOWERS FOCUSING ON GREEN RESOURCES

The new Eni Headquarters in San Donato, Milan, aims to narrate the innovation, the values and regard for the environment of an industry leader. The extraction from the soil of raw materials that can be processed until they become energy inspires the architectural morphology. The resulting composition is a loop, a flow of dynamic energy rising in the form of three high, independent towers.

pag 28

FROM THERMAL POWER STATION TO MEETING PLACE

The Daste Bistrò design develops from the re-activation and reuse of spaces inside an old thermal power station in a peripheral area in Bergamo city. In this context, the urban regeneration transformed an introverted construction into a new public space, by generating opportunities for dialogue, intellectual production, cultural contamination and sharing of ideas. Here, the architectural re-use, strictly connected to the open space, has produced a new synergy between institutions, associations and citizen which actively co-operated in the regeneration of the area.

pag 48

THE TOP 100 CONSTRUCTION ENTERPRISES

The top 100 building industries in Italy increased their turnover

by 12,9% in 2021 and if we consider the production levels, which means the core business of an enterprise, the values ranged from the +10,1% of the top 100 to the +10,6% of the average overall sector. But nevertheless, even if the incomes are rising, the profits are running low.

pag 108

SKYSCRAPER IN SINGAPORE

The new skyscraper designed by Bjarke Ingels Group (Big) and Carlo Ratti Associati (Cra) gathers technology, vegetation and workplaces above the sky in Singapore. In the words of Ingels, the construction manifests itself as a “vertical exploration of the tropical urbanism”. And it’s in his verticality that the building unravels by mixing functions, technical solutions and experiences in the use of space with pragmatism, rebel attitude and vision.

pag 118

HOW TO BUILD WITH CLIMATE CHANGE

Residential buildings constitute the main C02 production source but, if we add also the other sectors connected to the building industry, we can easily pass the 50% of emissions. The construction sector can, in any case, actively contribute, starting from the design phase of a building, to the resolution of several difficulties generated by climate change. First among all, the drought issue and the series of actions required to reduce its impact. Therefore, we need to rethink the design process.

pag 174

Grazie a uno studio, frutto di una convenzione tra OFFICINE RASERA srl e Consorzio Futuro in Ricerca, condotto presso i laboratori dell’Università di Ferrara, si è potuto constatare come il “SISTEMA ARIA” di Officine Rasera offra le migliori condizioni in fatto di risparmio energetico con un minimo del 24% garantito sulla bolletta Lo studio ha messo in evidenza l’alta capacità ventilante in ingresso e soprattutto in falda, grazie al listello universale “UNO”, e in uscita con il nuovo “COLMOWINGS”.

Il “SISTEMA ARIA” dispone di una vasta gamma di accessori per la posa a secco e l’ancoraggio di coppi e tegole

YouBuild - DICEMBRE / GENNAIO 2023 13
OFFICINE RASERA srl - Via Degli Artigiani, 35 - CROCETTA del MONTELLO - TV tel +39.0423.639823 - info@rasera.com - www.accessorirasera.com OTTO CERTEZZE PER RISPARMIARE IL 24% SULLA BOLLETTA alcubodesign.com 1) VENTILAZIONE PIÙ EFFICIENTE 2) BENEFICI IN OGNI STAGIONE 3) MINOR COSTO COMPLESSIVO 4) TETTO ASCIUTTO E SANO 5) SISTEMA DI POSA A SECCO 6) STABILITÀ DEGLI ELEMENTI 7) POSA SEMPLICE E RAPIDA 8) FACILE MANUTENZIONE

Edilizia avanti A PASSO DI MARCIA

Dopo due anni di boom il mercato rallenta. Ma non si ferma, anche se sui superbonus è già ricominciata la nota danza delle modifiche. In compenso, il settore immobiliare va a dispetto del caro prezzi

YouBuild - DICEMBRE / GENNAIO 2023 14 ATTUALITÀ ITALIA
IL MERCATO a cura del Centro Studi YouTrade
SOLOPERABBONATI

ABBONATI

YouBuild - DICEMBRE / GENNAIO 2023 15

SOLOPERABBONATI

YouBuild - DICEMBRE / GENNAIO 2023 16 IL MERCATO

SOLOPERABBONATI

YouBuild - DICEMBRE / GENNAIO 2023 17

SOLOPERABBONATI

YouBuild - DICEMBRE / GENNAIO 2023 18 IL MERCATO

ABBONATI

SCEGLI IL RISPARMIO ENERGETICO

Restructura

La linea di cassonetti per interni a vista dalle prestazioni termoacustiche certificate.

Disponibile in versione verniciabile o rifinita da abbinare a serramenti in legno, PVC e alluminio.

YouBuild - DICEMBRE / GENNAIO 2023 19
www.roverplastik.it

SOLOPERABBONATI

YouBuild - DICEMBRE / GENNAIO 2023 20 IL MERCATO

SOLOPERABBONATI

YouBuild - DICEMBRE / GENNAIO 2023 21

Transizione A RISCHIO PMI

Un’analisi del Cerved mette a confronto tre scenari: le imprese che ritardano a investire in sostenibilità avranno maggiori probabilità di fallire nei prossimi anni

YouBuild - DICEMBRE / GENNAIO 2023 22 ATTUALITÀ ITALIA
ECONOMIA GREEN
SOLOPER

PERABBONATI

YouBuild - DICEMBRE / GENNAIO 2023 23

SOLOPERABBONATI

YouBuild - DICEMBRE / GENNAIO 2023 24 ECONOMIA GREEN

Migliora il comfort della tua casa

ABBONATI

Le porte d’ingresso Hörmann, grazie alle componenti ad alta efficienza energetica, garantiscono elevati coefficienti di isolamento termico.

Le migliori performance antieffrazione incontrano un design contemporaneo.

Visita il nostro sito e scopri la serie completa.

www.hormann.it

info@hormann.it

YouBuild - DICEMBRE / GENNAIO 2023 25
ECOBONUS * in base alla grandezza della porta, valori indicati per MET 1250 × 2200 mm
Valore U D fino a
W/(m² K)* 0,47

Che cosa cambia PER CHI PROGETTA

I rinnovati Criteri ambientali minimi, in vigore da dicembre, introducono diverse novità per gli studi di ingegneria, architettura e per le stazioni appaltanti

ATTUALITÀ ITALIA
I NUOVI CAM
SOLOPERABBONATI
di Paolo Caliari

ABBONATI

YouBuild - DICEMBRE / GENNAIO 2023 27
INTEGRALE
QUI IL TESTO

Eni fa il pieno DI SOSTENIBILITÀ

Il grande gruppo dell’energia riqualifica il suo headquarters a San Donato e riprogetta anche le dinamiche dello spazio. Attraverso tre nuove torri

ATTUALITÀ ITALIA
MILANO -1
Prospetto in fase di completamento nel febbraio 2021. A destra, prospetto della costruzione quasi completa SOLOPER
di Valentina Labriola, Politecnico di Torino

PERABBONATI

YouBuild - DICEMBRE / GENNAIO 2023 29 Stato costruzione nel febbraio 2021

SOLOPER

YouBuild - DICEMBRE / GENNAIO 2023 30 MILANO - 1
Inserimento passaggioponte nella torre. Sotto, primo piano sulla Landmark Tower con passaggio-ponte in secondo piano

PERABBONATI

YouBuild - DICEMBRE / GENNAIO 2023 31
Sezione bioclimatica. Sopra, sezione tecnologica

SOLOPERABBONATI

Dettaglio del passaggio-ponte in fase di montaggio. A sinistra, dettaglio incastro passaggio-ponte Montaggio involucro. A sinistra, dettaglio struttura in relazione con Torre V

ABBONATI

LA SCHEDA

Progetto: VI Palazzo Eni

Cliente: Eniservizi

Luogo: San Donato Milanese (Milano)

Architettura: Morphosis Architects (leader architect) e Nemesi Architects

srl (partner architect)

Paesaggio: Pasodoble

Strutture: Setec Batiment, SCE Project

Impianti: Setec TPI, Manens-Tifs

Sostenibilità (LEED): Setec Batiment

Costruzione: Webuild (General contractor)

Facciate: Bodino / Gruppo Simeon (ingegnerizzazione e realizzazione delle facciate vetrate); Bodino/ Cantori (ingegnerizzazione e realizzazione delle facciate metalliche)

Superficie lorda intervento: 65.000 mq

Spazi uffici: 45.000 mq;

Aree comuni: 12.000 mq;

Lobby: 2.800 mq;

Postazioni lavoro: 4.600;

Icon Tower: altezza 45 m, 11 piani fuori terra, 10 livelli direzionali, 21.000 mq, 1.100 postazioni;

Landmark Tower: altezza 31 m, 9 piani fuori terra, 7 livelli direzionali, 20.000 mq, 2.000 postazioni;

Foto di: Ferdinando Crespi e Alessandra Dosselli

YouBuild - DICEMBRE / GENNAIO 2023 33
Sezione tecnologica passaggi-ponte. Sotto, dettaglio tecnico facciata

L’ex fabbrica SI FA CIRCOLARE

Locanda Officina Monumentale, un vecchio edificio industriale in mattoni, ormai dismesso, è tornato a svolgere una funzione sociale dopo il progetto di riqualificazione green

YouBuild - DICEMBRE / GENNAIO 2023 34 ATTUALITÀ ITALIA
MILANO - 2
SOLOPER
di Silvia Di Mauro Politecnico di Milano

PERABBONATI

YouBuild - DICEMBRE / GENNAIO 2023 35
Vista esterna del dry garden. Courtesy of Andrea Borri Architetti, foto di Nicolò Panser. Nella pagina a fianco, vista esterna del prospetto di ingresso. Courtesy of Andrea Borri Architetti, foto di Marco Manta

SOLOPER

MILANO - 2
Vista notturna del prospetto su strada. Courtesy of Andrea Borri Architetti, foto di Marco Manta Sotto, Prospetto Sud Ovest su strada. Courtesy of Andrea Borri Architetti, disegno di Andrea Borri Architetti

PERABBONATI

YouBuild - DICEMBRE / GENNAIO 2023 37
Vista interna della sequenza di spazi. Courtesy of Andrea Borri Architetti, foto di Nicolò Panseri
YouBuild - DICEMBRE / GENNAIO 2023 38 MILANO - 2
Vista interna del dopolavoro. Courtesy of Andrea Borri Architetti, foto di Alice Camilla Mariani. Sopra, vista della terrazza in copertura. Courtesy of Andrea Borri Architetti, foto di Nicolò Panseri
SOLOPER

PERABBONATI

LA SCHEDA

Cliente: privato

Località: Via Galileo Ferraris, Milano

Progettazione architettonica e coordinamento: Andrea Borri Architetti

Direzione Lavori: Andrea Borri Architetti

Progettazione Interni: Andrea Borri Architetti (parti pubbliche)

Progettazione Interni Bar Dopolavoro: Tomo Architects, Federico Peri, Francesco Faccin, Alessandra Salaris

Progettazione del verde: Hortensia – Vittorio Peretto

Strutture: Studio Cavadini

Progettazione Illuminotecnica: Hilite

Impresa generale: Fregonese Restauri

Superficie: 1200 mq + 1000 mq spazi aperti

Progetto e costruzione: 2021 Info: www.abarchitetti.com

YouBuild - DICEMBRE / GENNAIO 2023 39
Vista interna del dopolavoro. Sotto, vista interna della scala a piano primo. Courtesy of Andrea Borri Architetti, foto di Nicolò Panseri

Più sostenibile CON LA PAGLIA

Non lontano dal capoluogo lombardo Lca architects ha progettato una casa unifamiliare ai margini di un bosco con materiali naturali, senza rinunciare alla funzionalità

YouBuild - DICEMBRE / GENNAIO 2023 40 ATTUALITÀ ITALIA
MILANO - 3
di Kevin Santus, Politecnico di Milano
SOLOPER
Vista esterna di Casa Quattro, courtesy of Lca architects, foto di Simone Bossi

PERABBONATI

Sopra, le pareti opache della casa, ricoperte in pannelli in sughero, diventano elemento distintivo ed estetico dell’architettura, courtesy of Lca architects, foto di Simone Bossi

YouBuild - DICEMBRE / GENNAIO 2023 41

Sezione longitudinale dell’intervento, courtesy of Lca architects. Sopra, vista esterna di Casa Quattro, courtesy of Lca architects, foto di Simone Bossi

Vista interna al soggiorno, courtesy of Lca architects, foto di Simone Bossi

SOLOPER

YouBuild - DICEMBRE / GENNAIO 2023 42 MILANO - 3

PERABBONATI

LA SCHEDA

Progetto: Casa Quattro

Cliente: Privato

Luogo: Buscate (Milano)

Progettista: Lca architects

Anno di realizzazione: 2020

Info: www.lcarchitetti.com

YouBuild - DICEMBRE / GENNAIO 2023 43
Pianta del piano terra, courtesy of Lca architects

Dispositivo DOMESTICO

Efficientare l’involucro, ma senza produrre spazi privi di carattere e qualità architettonica. Così lo studio

Vacuum Atelier ha ristrutturato con l’idea di una Super Domus

ATTUALITÀ ITALIA
BERGAMO - 1
SOLOPER
di Kevin Santus, Politecnico di Milano

Esploso del progetto “Dispositivo domestico”. Courtesy of Vacuum Atelier. A sinistra, zona giorno: i materiali si accostano e rivelano, legando superfici lisce e ruvide, strutture grezze e finiture. Courtesy of Vacuum Atelier, foto di Marcello Mariana Fotografia

PERABBONATI

“Super Domus”: sei modelli per sei interventi di progetto. Courtesy of Vacuum Atelier, foto di Sara Aresu Photography

YouBuild - DICEMBRE / GENNAIO 2023 45

Gli spazi di servizio nella casa si distinguono dal resto dell’abitazione definendo una gerarchia interna al progetto. Courtesy of Vacuum Atelier, foto di Marcello Mariana Fotografia

Pianta dell’intervento “Dispositivo domestico”. Courtesy of Vacuum Atelier

SOLOPER

YouBuild - DICEMBRE / GENNAIO 2023 46

PERABBONATI

Qui sopra tre dettagli della costruzione, da sinistra, il sistema di gronda, una finestra, l’attacco a terra dell’edificio. Seguendo la sua filosofia, Vacuum Atelier non rilascia ‘foto d’insieme’, ma solo viste parziali o dettagli delle proprie architetture

LA SCHEDA

Progetto: Dispositivo domestico

Cliente: Privato

Luogo: Solza (Bergamo)

Progettista: Vacuum Atelier

Anno di realizzazione: 2020-2022

Info: www.vacuumproject.com

YouBuild - DICEMBRE / GENNAIO 2023 47

Rigenerazione D’ACCIAIO

ATTUALITÀ ITALIA
BERGAMO - 2
SOLOPER
In questa pagina e a destra, vista dello spazio interno del progetto di riuso del Daste Bistrò. Courtesy of Okam studio, foto Luca Argenton

Daste Bistrò è nato dalla riattivazione dello spazio occupato da una centrale termoelettrica grazie al progetto di Okam Studio, con elementi d’arredo che diventano oggetti architettonici

PERABBONATI

YouBuild - DICEMBRE / GENNAIO 2023 49
di Kevin Santus, Politecnico di Milano

Vista esterna del progetto: il corpo dell’ex-centrale si inserisce in un nuovo sistema pubblico esterno. Sotto, vista dello spazio interno del progetto di riuso del Daste Bistrò, Courtesy of Okam studio, foto Luca Argenton

SOLOPERABBONATI

YouBuild - DICEMBRE / GENNAIO 2023 50 BERGAMO - 2

ABBONATI

YouBuild - DICEMBRE / GENNAIO 2023 51
Vista dello spazio interno del progetto di riuso del Daste Bistrò. Courtesy of Okam studio, foto Luca Argenton. Sotto, sezione del progetto “Daste Bistrò”. Courtesy of Okam studio
YouBuild - DICEMBRE / GENNAIO 2023 52 BERGAMO - 2
Vista dello spazio interno del progetto di riuso del Daste Bistrò. Courtesy of Okam studio, foto Luca Argenton
SOLOPER

PERABBONATI

LA SCHEDA

Opera: Daste Bistrò

Luogo: Bergamo

Progetto: Okam Studio, con Daniele Fazio Studio

Anno di realizzazione: 2021

Info: www.okamstudio.it

Fotografie di: Luca Argenton

YouBuild - DICEMBRE / GENNAIO 2023 53
Pianta dell’intervento “Daste Bistrò”. Courtesy of Okam studio

Quel recupero È FUTURISMO

A Chiavari la Torre Fara, ex-colonia marina costruita negli anni Trenta, è stata riqualificata con un progetto che ha coinvolto un’ampia zona del litorale

di Francesco Gastaldi, Università Iuav di Venezia e Federico Camerin, Universidad de Valladolid

ATTUALITÀ ITALIA
GENOVA
SOLOPER

PERABBONATI

YouBuild - DICEMBRE / GENNAIO 2023 55
Un dettaglio dell’accesso alla struttura. A sinistra, una vista panoramica della Torre Fara riqualificata dal lungomare

SOLOPERABBONATI

YouBuild - DICEMBRE / GENNAIO 2023 56 GENOVA
La Torre Fara vista dall’entroterra

ABBONATI

LA SCHEDA

Luogo: Chiavari (Genova)

Cliente: Fara srl

Progetto originale: Camillo Nardi Greco e Lorenzo Castello (1935-1936)

Coordinamento intervento di recupero: Enrico Pinna, Sonia Serventi, Cristina Pastor (Soprintendenza ai Beni Architettonici)

Progetto architettonico: Pinna Viardo Architetti (principal architect Enrico Pinna con Carla Coccia, Chantal Cattaneo, Enrico Marchetti, Jan Smekal, Katerina Krkoskova, Angelo Del Vecchio, Giulia Parodi) e Studio Tecnico Associato

Geoide

Strutture esterne: Giordano Tironi, Cristiana Serra Zanetti

Strutture: Massimo Ratto, Stefano Podestà

Impianti: Andrea Damonte, Massimo Pinna

Impresa: Edilido

Periodo di intervento: 2015-2019

Info: www.pinnaviardoarchitetti.com e www. torrefara.com

Foto: Jacopo Baccani

YouBuild - DICEMBRE / GENNAIO 2023 57
Due immagini della scalinata che conduce all’accesso principale

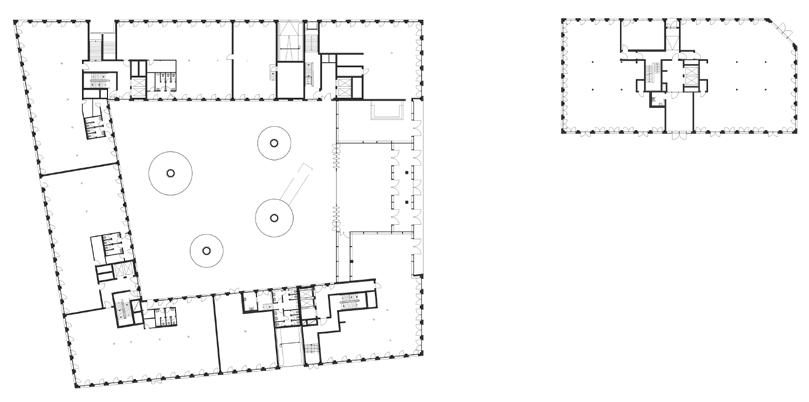
La cultura SI FA IN TRE

L’edificio dell’ex Finanza, dell’ex Tribunale e dell’ex carcere, raccordati da un nuovo volume nel progetto per la biblioteca dello studio

Carlana Mezzalira Pentimalli

ATTUALITÀ ITALIA
BRESSANONE
SOLOPER
di Gerardo Semprebon, Politecnico di Milano

PERABBONATI

Vista ravvicinata dell’accesso secondario da via Bruno. A sinistra, vista del giardino della lettura: un tempo giardino privato del Vescovo, diviene oggi luogo pubblico restituito alla comunità brissinese

Il nuovo intervento nel contesto urbano del centro antico

SOLOPERABBONATI

YouBuild - DICEMBRE / GENNAIO 2023 60 BRESSANONE
Modello del progetto finale. Sopra, modello concettuale

Il

ABBONATI

YouBuild - DICEMBRE / GENNAIO 2023 61
cavedio a quadrupla altezza con i vari affacci dai relativi piani

SOLOPERABBONATI

BRESSANONE
Il foyer principale della nuova biblioteca

PERABBONATI

Il foyer principale della nuova biblioteca guardando verso nord, con il contatto tra nuovo edificio, ex Tribunale ed ex Finanza ©Marco Cappelletti. Sotto, l’area narrativa del piano primo

YouBuild - DICEMBRE / GENNAIO 2023 63

SOLOPERABBONATI

20 20 20 20
Dall'alto, sezione sul cavedio a quadrupla altezza, sezione sull’erker est, sezione sull’erker ovest e sezione sulla scala secondaria Scorcio dell’affaccio interno tra il nuovo edificio e l’ex sede della Guardia di Finanza

ABBONATI

Il sottotetto dell’ultimo piano del nuovo edificio è inteso come un luogo dal molteplice uso, a disposizione delle diverse pratiche culturali della città Sopra, la sala affreschi del primo piano dell’Ex Tribunale. La zona relax, con sullo sfondo la zona bambini, è caratterizzata da un antico affresco, enfatizzato da un particolare mobile ligneo a baldacchino

Dall'alto, sezione sul cavedio a quadrupla altezza, prospetto est, prospetto ovest e prospetto Sud

YouBuild - DICEMBRE / GENNAIO 2023 65 20 10 20 20 20

SOLOPERABBONATI

Vista della scala principale con sullo sfondo l’erker ovest del secondo piano.

Lo spazio a tripla altezza dell’erker est, vero e proprio salotto domestico della biblioteca.

La zona bambini al primo piano dell’Ex Tribunale

LA SCHEDA

Cliente: Comune di Bressanone (Bolzano)

Progetto: Carlana Mezzalira Pentimalli (Michel Carlana, Luca Mezzalira, Curzio Pentimalli e Marco Carraro, Alessio Oliviero)

Concorso: 2010, 1° premio

Progetto: 2017 — 2018

Completamento: 2022

Strutture: Bergmeister

Impianto elettrico: Leitner Electro

Impianti meccanici: Ranzato Impianti

Illuminotecnica: Von Lutz Studio Associato

Acustica: NiRa Consulting (fase di progetto), Studio Architetto Eleonora Strada (fase di costruzione)

Impresa: Unionbau

Foto di: Marco Cappelletti

66
YouBuild - DICEMBRE / GENNAIO 2023 67

Le nuove facce DELLA CERAMICA

Da una casa neobarocca nel Sussex ai colori vulcanici del progetto ExCinere, fino ai contrasti in una casa di campagna catalana: la piastrella può ancora sorprendere

Progetto: Arquitectura-G, Restauro di una casa di campagna, Empordà, Spagna, 2019. Gli spazi della cucina e del patio interno.

Foto: © Josè Hevia

di Rossella Locatelli, Politecnico di Milano

YouBuild - DICEMBRE / GENNAIO 2023 68 ATTUALITÀ ITALIA
INTERNI
SOLOPER

PERABBONATI

Progetto: Formafantasma per Dzek, ExCinere, 2019

Foto: Delfino Sisto Legnani e Marco Cappelletti @ dsl_studio

Progetto: BURR studio, Appartamento MG08, Madrid, 2020

Foto: © Josè Hevia

YouBuild - DICEMBRE / GENNAIO 2023 69

CONTEST

BigMat premia L’ARCHITETTURA

Si chiudono il 27 aprile le iscrizioni all’International Architecture Award 2023, premio biennale che promuove l’eccellenza architettonica su grande e piccola scala

Il BigMat International Architecture Award 2023 è il premio biennale ideato e promosso dal Gruppo BigMat, che mira a promuovere l’eccellenza architettonica non solo delle grandi opere e degli interventi più prestigiosi, ma anche dei progetti di piccola scala. Quest’anno le iscrizioni per partecipare al contest sono aperte fino al 27 aprile. Al concorso possono partecipare tutti gli architetti il cui domicilio professionale si trovi in uno dei sette Paesi dove è presente il marchio BigMat: Belgio, Francia, Italia, Portogallo, Repubblica Ceca, Slovacchia e Spagna.

CHI È AMMESSO

Sono ammesse opere realizzate tra il primo gennaio 2019

e il primo gennaio 2023 nei Paesi citati. Le proposte saranno valutate da una giuria internazionale formata da figure di spicco del panorama architettonico. Alla guida dei giurati ci sono il presidente Jesús Aparicio, dell’Università Politecnica di Madrid e il segretario Jesús Donaire, architetto e professore associato dell’Università Politecnica di Madrid. Inoltre, fanno parte della giuria Enrico Molteni (Italia, Università degli Studi di Genova), David Van Severen (Belgio, Office Kersten Geers David Van Severen), Petr Janda (Repubblica Ceca e Slovacchia, Brainwork), Gilles Delalex (Francia, Muoto Architecture Studio), Nuno Brandão Costa (Portogallo), Ángela García de Paredes (Spagna, Paredes Pedrosa Arquitectos).

COME PARTECIPARE

Il Premio Internazionale di Architettura BigMat 2023 prevede la consegna di due Gran Premi di Architettura, ognuno dal valore di 30 mila euro, per le categorie Grandi opere di Architettura e Architettura residenziale su piccola scala, che comprende abitazioni unifamiliari nuove, ampliate, ristrutturate e/o riabilitate o progetti residenziali fino a un massimo di 12 unità residenziali e/o un massimo di 1.200 metri quadrati costruiti. Saranno poi assegnati altri sei Premi Nazionali per le rispettive categorie, del valore di 1.500 euro, e una menzione speciale per giovani architetti under 40. La cerimonia di premiazione si terrà a novembre 2023 in concomitanza con l’annuale Congresso internazionale del Gruppo BigMat. Le candidature al BigMat International Architecture Award ’23 si richiedono attraverso il sito www.architectureaward.bigmat.com.

YouBuild - DICEMBRE / GENNAIO 2023 70 ATTUALITÀ ITALIA
di Sara Giusti I vincitori del BigMat International Architecture Award 2021
YouBuild - DICEMBRE / GENNAIO 2023 71
YouBuild - DICEMBRE / GENNAIO 2023 72 XXX
Il telaio visto da una nuova prospettiva

LA NUOVA EDILIZIA SOSTENIBILE E RIGENERATIVA

Parlare, scambiarsi idee, aggiungere dati, esperienze e immagini è sempre una buona idea. Ma nel caso della sostenibilità applicata alla progettazione, all'edilizia non più energivora, alla costruzione prima di tutto di nuovi parametri, quella è una necessità. Ed è quanto è avvenuto nell'evento organizzato dalla nostra rivista. Come potete leggere nelle pagine che seguono

VI CONVEGNO YOUBUILD 2022
IL PROSSIMO CONVEGNO YOUBUILD SI TERRÀ A MILANO IL 22 E 23 NOVEMBRE 2023, SEGNATELO SULL'AGENDA

Il lungo cammino DELLA SOSTENIBILITÀ

Buona partecipazione, relazioni sorprendenti. E il primo concorso per l’assegnazione degli YouBuild Awards. Così la progettazione cammina sulla strada del green

Una partecipazione attenta, convinta e, per alcuni aspetti, sorpresa. Perché il VI Convegno YouBuild, che si è tenuto a Villa Quaranta (Ospedaletto di Pescantina, Verona) ha segnato uno spartiacque non solo teorico tra il vecchio e il nuovo modello di costruire. O, più precisamente, è servito a interpretare un modo di vivere e abitare più sostenibile. Impresa non facile, proprio mentre a Sharm el-Sheikh si teneva la Climate Change Conference, la Cop 27, che si è scontrata con una situazione economica aggravata dalla guerra scatenata dalla Russia in Ucraina. Quindi, un ulteriore gradino da superare per arrivare a un’edilizia green. Ma è un ostacolo che, convinti o scettici, tutti i Paesi prima o poi dovranno superare.

YouBuild - DICEMBRE / GENNAIO 2023 74 ATTUALITÀ ITALIA VI CONVEGNO YB L’EVENTO

LE TAPPE

In Europa, d’altra parte, il cammino verso la transizione è già fissato con date precise. Ma, è emerso durante gli interventi dei relatori, come arrivare al traguardo? La formula magica non c’è, e banaliz -

PROFESSIONISTI IN CAMPO

Vittorio Bertami Consigliere Ordine Ingegneri Verona

«È da quando sono stati stabiliti i 17 obiettivi dell’accordo di Parigi del 2015 che si parla di sostenibilità, ma finora a livello di macroscenari si è visto poco. La sostenibilità, che è un concetto molto ampio che coinvolge l’economia, l’ambiente e la società, necessita di un grande cambiamento culturale. Credo che l’unico modo di fare la differenza sia lavorare a livello di comunità locale: solo partendo dal basso, modificando i singoli atteggiamenti e comportamenti professionali, è possibile fare veramente la differenza. Ciò significa aprirsi anche a competenze che vengono da altri settori, perché la sostenibilità è un concetto trasversale. Dobbiamo fare uno sforzo come professionisti e cittadini per cambiare il nostro approccio e soddisfare il più possibile i criteri di sostenibilità. L’Ordine degli Ingegneri di Verona è in prima fila in questo e vuole continuare a veicolare questi concetti, facendo cultura, divulgazione e attività di approfondimento con i professionisti».

YouBuild - DICEMBRE / GENNAIO 2023 75

MIGLIOR FATTURATO: LE IMPRESE E GLI STUDI PREMIATI

BEST REVENUE PERFORMANCE (MIGLIOR FATTURATO) IMPRESE DI COSTRUZIONE

1° classificato – WEBUILD SPA

Webuild, Gruppo nato nel 2020 da Salini Impregilo, è uno dei maggiori global player nella realizzazione di grandi infrastrutture complesse per la mobilità sostenibile, l’energia idroelettrica, l’acqua ed edifici green (civili e industriali, aeroporti, stadi e ospedali). Tra i progetti iconici realizzati o in corso, lo stadio Al Bayt che ha ospitato i Mondiali 2022 in Qatar, il nuovo Ponte Genova San Giorgio in Italia, il progetto di espansione del Canale di Panama, la Linea 4 della Metro di Milano, l’impianto idroelettrico Snowy 2.0 in Australia, il Cityringen di Copenhagen e molti altri. Alla fine del 2021 il Gruppo ha registrato un portafoglio ordini totale di 45,4 miliardi di euro, con il 92% del backlog construction relativo a progetti legati all’avanzamento degli obiettivi di sviluppo sostenibile (SDG) delle Nazioni Unite.

2° classificato – IMPRESA PIZZAROTTI & C. SPA

Fondata a Parma nel 1910 da Gino Pizzarotti, l’Impresa Pizzarotti & C. Spa, oggi alla quarta generazione, è uno dei principali general contractor italiani. L’azienda ha sempre mirato a un costante sviluppo nella realizzazione di opere complesse: infrastrutture stradali e autostradali anche in concessione, lavori in galleria, aeroporti, dighe, infrastrutture industriali, costruzioni ferroviarie e interventi di edilizia sanitaria e residenziale. Il Gruppo Pizzarotti

è oggi presente in quasi tutte le aree geografiche del mondo, dove opera con circa 3.500 dipendenti. Nell’ottica del miglioramento continuo, l’azienda ha definito un Piano di Sostenibilit à 20212025, sviluppato tenendo in considerazione oltre al Piano Industriale aziendale anche i Sustainable Development Goals dell’Onu.

3° classificato – ITINERA SPA

Fondata nel 1938, Itinera fa parte del Gruppo ASTM, il secondo operatore al mondo nella gestione di autostrade a pedaggio. La società opera da oltre 80 anni, in Italia e nel mondo, nella realizzazione di grandi progetti infrastrutturali e di edilizia civile.

Nel 2021 il portafoglio ordini consolidato è stato di 4,1 miliardi di euro. Tra i progetti più importanti completati di recente il nuovo polo chirurgico dell’Ospedale San Raffaele di Milano e il cantiere per la messa in sicurezza del Torrente Bisagno (Genova),

mentre sono in corso i lavori per il nuovo terminal passeggeri dell’aeroporto Catullo di Verona, il nuovo polo biomedico dell’Ospedale Universitario della Regione Zealand in Danimarca e del ponte Størstrom Bridge in Danimarca. Itinera ha intrapreso nelle proprie attività una politica di sviluppo sostenibile con l’adozione di sistemi di gestione della sicurezza, dell’ambiente e della qualità, certificati e riconosciuti in ambito internazionale.

BEST REVENUE PERFORMANCE (MIGLIOR FATTURATO) STUDI DI ARCHITETTURA

1° classificato – LOMBARDINI 22 SPA

Lombardini22 nasce a Milano nel 2007 grazie all’iniziativa di sei professionisti appartenenti a background differenti e oggi è uno dei gruppi leader nello scenario italiano dell’architettura e dell’ingegneria. L22 è il brand del Gruppo Lombardini22 dedicato alla progettazione architettonica e ingegneristica di edifici direzionali, commerciali, spazi urbani, alberghi e residenze.

2° classificato – ATIPROJECT SRL

ATI Project è una realtà internazionale specializzata in progettazione integrata nel campo dell’architettura e dell’ingegneria, che impiega nativamente la metodologia BIM, ed è impegnata nello sviluppo di un’edilizia sostenibile e a ridotto impatto ambientale. Lo studio nasce nel 2011 a opera di Branko Zrnic e Luca Serri, fondatori dediti alla ricerca nell’ambito dell’architettura bioclimatica e delle energie rinnovabili, e oggi occupa oltre 300 collaboratori in sette sedi internazionali.

3° classificato – ACPV ARCHITECTS SRL

Fondata nel 2000 da Antonio Citterio e Patricia Viel, la società di progettazione multidisciplinare per l’architettura e l’interior design condivide il desiderio di stimolare un nuovo e diverso modo di vivere lo spazio, oltre la struttura. Lo studio opera a livello internazionale su programmi progettuali complessi: piani urbanistici, complessi residenziali, commerciali e industriali, ristrutturazioni conservative di edifici pubblici, spazi per il lavoro, showroom e alberghi. Lo studio è inoltre attivo nel settore della comunicazione aziendale e realizza progetti di immagine coordinata e allestimenti. Nel 2015 è stata aperta una sede a New York: oggi le due sedi contano su uno staff di oltre 80 persone.

zare l’argomento con la proposta di formule facili è velleitario e, anzi, controproducente. I relatori (Emanuele Naboni, Climate, Professore Royal Danish Academy e Università di Parma; Carlo Battisti, Presidente Living Future Europe; Matteo Arietti, Head of Research presso Park Associati; Giambattista Brizzi, esperto di Sostenibilità presso Deerns Italia) hanno invece percorso i diversi sentieri che conducono a un progressivo miglioramento del clima e della salute: una strada accidentata, ma che alla fine conduce alla vetta. Non solo teoria, però: il VI Convegno YouBuild organizzato da Virginia Gambino Editore è stato anche l’occasione di un

confronto con tre protagonisti del mondo delle imprese, di quelle impegnate a rendere la sostenibilità un fattore decisivo nella propria attività. Il talk finale ha coinvolto Gianni Nerobutto di Calchèra San Giorgio, Tiziano Mazzetto di Agc Glass Europe e Franco Gianturco di 2G Nanotech. E le imprese sono state protagoniste anche della cerimonia di premiazione della prima edizione degli YouBuild Awards, concorso per le aziende più green della filiera delle costruzioni. Infine, sono stati premiati i primi tre studi di architettura e le prime tre imprese italiane di costruzione che hanno registrato i migliori ricavi (vedi box sopra).

YouBuild - DICEMBRE / GENNAIO 2023 76 L’EVENTO

Toninelli YouBuild YB I PREMIATI DEL CONCORSO

ripristino del capitale dell’ecosistema viene premiato con attenzione a soluzioni basate sulla recupero ecologico di aree, la promozione della biodiversità e la qualità dell’aria, del suolo e dell’acqua.

Motivazione della giuria: «È un prodotto in legno naturale, certificato FSC, quindi sequestra carbonio e con la massima attenzione alla gestione foreste. La documentazione è esaustiva e rispondente ai criteri al massimo livello. La certificazione LPC (oltre a Declare – Red List free) pone Mafi nella fascia più alta della sostenibilità, sia come prodotto che come gestione aziendale. Ottimo ovviamente sul piano della decarbonizzazione, il cui contributo è addirittura negativo. Da premiare soprattutto la perseveranza, lunga mezzo secolo e la gestione attenta della componente del guadagno ecologico».

Il

Con il carbonio che agisce come una metrica universalmente accettata, sono premiatii processi e le soluzioni che riducono al minimo le emissioni di gas serra e che sono mirati a soluzioni carbon-positive.

YouBuild YB AWARDS 2022

E ENERGIA Natural Wood Floor di Mafi

PREMIO DECARBONIZZAZIONEMENZIONE SPECIALE DECARBONIZZAZIONE E ENERGIA gamma eco.build di Italcementi Ha ritirato il premio Giovanni Pinto,

YouBuild - DICEMBRE / GENNAIO 2023 77
PREMIO GUADAGNO ECOLOGICO Pulsar di Bampi Ha ritirato il premio Paolo
AWARDS 2022 responsabile Marketing
Motivazione della giuria: «Può sembrare un prodotto banale, ma la scarsità di acqua diventerà il problema numero uno, per cui questa è una soluzione semplice ma che, moltiplicata per il numero di utilizzi, può dare un grande risparmio ecologico. Molto interessante per il risparmio d’acqua per tutte le cassette ancora a scarico unico. Effettivamente, oltre ai risparmi idrici, si può riflettere su un impatto a più ampio raggio. Infatti, la soluzione di ragionare sulla sostituzione di sistemi esistenti con soluzioni più efficienti all’interno di cassette in ceramica, comporta una longevità maggiore di queste, una riduzione delle opere murarie, una riduzione dei costi di intervento. In definitiva un ottimo messaggio di upgrade intelligente di sistemi esisitenti. La certificazione di un brevetto è un ottimo traguardo».
Quality Engineer
Motivazione della giuria: «Considerando che le strutture possono contribuire al 50-60% dell’embodied carbon, è lodevole l’intenzione di migliorare per quanto possibile l’impatto di carbonio di una tecnologia costruttiva che fa parte del saper costruire italiano, come il calcestruzzo. Le componenti di riciclato, l’uso della loppa d’alto forno contribuiscono a migliorare un componente edilizio quale la struttura, che fa la parte del leone nell’edilizia italiana. È vero che ci sono dei limiti strutturali e più di tanto non si può ridurre il carbonio nel calcestruzzo, ma migliorarlo è importante dato che è l’elemento ancora più utilizzato nel mercato».

rafforza l’eco-efficienza dei processi e l’uso del carbonio riciclato per ridurre l’uso di carbonio fossile aggiuntivo. In aggiunta la bioeconomia sostituisce parte del carbonio fossile con il carbonio biologico. Si tratta di approcci diversi, entrambi validi e premiati dal concorso.

Motivazione della giuria: «Molto interessante la provenienza naturale dei componenti – che viceversa andrebbero persi – ma senz’altro pertinente sia per il contenuto di riciclato che per la possibile riciclabilità. Interessante per la componente di contatto con gli scarti agroalimentari».

PREMIO

Ha ritirato il premio Gianni Nerobutto responsabile Calchèra San Giorgio

YouBuild YB

Motivazione della giuria: «La documentazione di prova è molto esaustiva. Il prodotto è basato su riciclo di materie prime e c’è attenzione anche a ridurre l’impronta CO2 dell’EPS utilizzato. Hanno certificazione ANAB. C’è un logo FSC nella documentazione, esprimendo l’intenzione di certificarsi anche su questo per l’origine vegetale delle materie prime. Il prodotto più rappresentativo è l’isolante Isotex Total Green che ha buone prestazioni su diversi fronti e garantisce il 100% del riciclato. Molta documentazione fornita attesta l’impegno e l’attenzione nella verifica dei propri prodotti».

AWARDS 2022

PREMIO

Ha ritirato il premio Righetti Vittorio referente di zona per la provincia di Verona

YouBuild - DICEMBRE / GENNAIO 2023 78
RICICLO, CIRCOLARITÀ E CICLI BIOBASED Calce di Campo Intonaco di Calchera San Giorgio
AWARDS 2022 YouBuild YB I PREMIATI
RICICLO, CIRCOLARITÀ E CICLI BIOBASED Blocco cassero Isotex Total Green di Isotex
L’economia circolare

Motivazione della giuria: «Il prodotto riceve la menzione per l’utilizzo di materie prime alternative a fonti fossili e l’ottimizzazione della catena di approvvigionamento delle materie prime: salvaguardia del suolo, recupero di materia prima senza opere di deforestazione, diminuzione delle emissioni nocive, riduzione di CO2 e di consumi di energie non rinnovabili».

YouBuild YB

PREMIO RICICLO, CIRCOLARITÀ E CICLI BIOBASED

Isolmant Green Generation di Isolmant

Ha ritirato il premio Giacomo Caminati ufficio Ricerca e Sviluppo Isolmant

Menziona l’azienda più trasparente e innovative nel presentare il prodotto agli utenti facendo presente non solo gli ingredienti, da dove viene il prodotto, cosa succede a fine prima vita, emissioni CO2 correlate, ma anche il percorso industriale che c’è dietro questa evoluzione.

AWARDS 2022

Motivazione della giuria: «Hanno etichettato tutto il loro catalogo isolanti fibra di vetro, Red List free Considerando la dimensione aziendale, il percorso che hanno fatto negli ultimi anni è abbastanza impressionante, hanno eliminato la formaldeide dagli isolanti in fibra di vetro e ora tutto il loro catalogo è etichettato Declare Red List free.

MENZIONE SPECIALE DECLARE, RISERVATO AI PRODOTTI CHE POSSEGGONO UN’ETICHETTA DECLARE

Knauf Insulation by Knauf

Ha ritirato il premio Ettore Amatista ufficio tecnico Knauf Insulation

YouBuild - DICEMBRE / GENNAIO 2023 79
AWARDS 2022 YouBuild YB

YouBuild YB I PREMIATI

AWARDS 2022

Salutogenesi significa “generazione della salute”. Processi e Prodotti Salubri sono valutati adottando la definizione di salute dell’Organizzazione Mondiale della Sanità come stato di completo benessere fisico, psichico e sociale (e non solo di assenza dalla malattia) che viene promosso attraverso soluzioni edilizie.

Motivazione della giuria: «l rumore è un problema sottovalutato per la salute. Il prodotto usa PET riciclato e tessuti Oekotex. La presenza di formaldeide e VOC è comunque in misura inferiore ai massimi standard europei. Il certificato Eurofins è al massimo livello. Interessante anche sul fronte della qualità estetica, anche per il campo di applicazione in ambito finiture interne».

PREMIO SALUTE E SALUTOGENESI

Skin di Skin for Spaces

Ha ritirato il premio Marta Casiraghi responsabile marketing

MENZIONE

Active Surfaces di Iris Group

YouBuild YB

Motivazione della giuria: «Nell’ambito di un approccio salutogenico è fondamentale lo sviluppo di materiali che assorbono e neutralizzano sostanze nocive gravose; in interno a carico dell’uomo e in esterno, dove l’integrità di altri layers ecologici è impattata da emissioni di attività antropogeniche. In questo scenario la superficie ceramica brevettata Active Surfaces® di Iris Ceramica Group è caratterizzata da un’azione antiinquinamento e antibatterica in interno ed esterno (attivabile sia con luce naturale sia artificiale). Dalle comprovate certificazioni e test sia in interno che in esterno, si propone come materiale con prestazioni rigenerative della qualità dell’aria».

AWARDS 2022

YouBuild - DICEMBRE / GENNAIO 2023 80
SPECIALE SALUTE E SALUTOGENESI

Ilpremio si riferisce a prodotti e processi/politiche aziendali che in modo innovativo e originale raggiungono più obiettivi rigenerativi secondo le categorie sopra menzionate.

PREMIO RIGENERAZIONE

YouBuild YB

Knauf Insulation

Motivazione della giuria: «Il gruppo ha una visione ampia, avendo certificato Declare un’intera gamma e non solo un prodotto. Inoltre i prodotti hanno basso embodied carbon, riducono l’operational carbon degli edifici trattandosi di isolamento e quindi riducendo il fabbisogno energetico dell’edificio; danno il loro contributo per garantire salute e benessere; infine hanno un approccio circolare per quanto riguarda la possibilità del 100% di riuso a fine vita».

Commitment, “what gets measured gets managed” ovvero possiamo gestire solo ciò che viene misurato. Il concorso premia caratteristiche di sostenibilità misurate per rendere trasparente il modo in cui i processi e i prodotti superano le migliori prassi locali (“business as usual”).

Motivazione della giuria: «Hanno certificazione LPC che è il massimo per la circolarità dei processi produttivi e l’approccio rigenerativo»

AWARDS 2022

Motivazione della giuria: «Mapei prosegue nel percorso di condivisione dei risultati raggiunti in termini di sostenibilità, comunicando in modo trasparente ai propri stakeholder le attività messe in atto per il monitoraggio e la riduzione degli impatti ambientali di processo e di prodotto, per la valorizzazione delle proprie persone, per il sostegno alla propria comunità e per il raggiungimento di una soddisfacente performance economica, con la pubblicazione del Bilancio di Sostenibilità a livello Europa. Inoltre promuove la compensazione totale della CO2 emessa durante il ciclo di vita dei prodotti tramite l’acquisto di crediti ambientali certificati per favorire la realizzazione di progetti di energia rinnovabile. Mapei calcola gli impatti ambientali dei prodotti con il metodo standardizzato LCA (Life Cycle Assessment), il cui risultato finale è una Dichiarazione Ambientale di Prodotto (EPD – Environmental Product Declaration)».

PREMIO COMMITMENT

Natural Wood Floor

MENZIONE COMMITMENT

Keraflex di Mapei

Ha ritirato il premio

Corporate Environmental Sustainability

YouBuild - DICEMBRE / GENNAIO 2023 81
2022 YouBuild YB
AWARDS

La biocasa CHE RIGENERA

Trasformare un edificio energivoro in uno più sostenibile non è facile, ma si può fare. Compiere il passo successivo per far diventare un edificio anche un produttore di energia capace di migliorare l’ambiente è meno scontato. E ancora meno lo è se l’edificio produttore di energia deve essere costruito anche con materiali ecosostenibili all’interno di un design rigenerativo. Il paradiso dell’edilizia, insomma, non è lì a due passi. Eppure non è un miraggio, sostiene Emanuele Naboni, architetto, docente alla Royal Denish Academy e all’Università di Parma, che ha avuto il compito di introdurre il tema conduttore del VI Convegno

YouBuild - DICEMBRE / GENNAIO 2023 82
Emanuele Naboni spinge al limite il concetto di progettazione sostenibile: non solo non deve fare danni, ma può contribuire a migliorare l’ambiente
LA NUOVA EDILIZIA
VI CONVEGNO YB

YouBuild, focalizzato sulla nuova edilizia sostenibile e rigenerativa. Il convegno, centrato sulla rigenerazione e sul nuovo modo di concepire il design, ha visto una folta partecipazione a Villa Quaranta (Verona), dove è stato organizzato da Virginia Gambino Editore. Naboni ha puntato il dito sul riscaldamento globale. Le città senza verde sono più calde, più energivore, meno adatte alla vita e nocive per la salute. Un esempio? Il centro storico di Sassuolo, messo sotto la lente da uno studio che il docente ha condotto in collaborazione con Mario Cucinella. La città capitale della ceramica nel 2050 nel periodo estivo avrà una temperatura percepita intorno ai 50 gradi. Eppure basterebbe una barriera di alberi per far scendere la sensazione di calore intorno ai 39 gradi. Sarebbe già un passo in avanti, insomma. L’esempio di Sassuolo può essere esteso ad altre città, ma non solo: uno degli effetti più allarmanti del cambiamento climatico, secondo il docente, è la forte diminuzione dei flussi d’acqua, per esempio per l’agricoltura, oltre a un decadimento sostanziale della qualità dei corsi d’acqua.

TERMODINAMICA

Il paradosso, secondo Naboni, è che anche in uno scenario di elettrificazione dei trasporti e delle fonti di climatizzazione, il forte aumento della concentrazione di Pmd 10 per le reazioni termodinamiche dovute all’innalzamento della temperatura creerà un fattore di moltiplicazione tale per cui avremo più inquinamento nonostante una minore emissione di Co2. Uno status che comporta anche un impoverimento del «capitale ecologico», a partire dalla quantità di polline nell’aria, infatti gli insetti impollinatori sono già in pericolo ora. L’aspetto più critico è forse quello che riguarda la salute umana, in questi anni le curve di mortalità e di mobilità sono aumentate e questo succede in tutte le città europee, è un fenomeno anche globale. I forti aumenti di mortalità si rilevano in coincidenza con forti aumenti di ondate di calore e, più in generale, è rilevata un peggioramento della salute e della qualità di vita all’interno della città. Ci sono più morti per problemi di tipo respiratorio e il fenomeno del climate change modifica la composizione dell’atmosfera e aumenta le radiazioni, dall’ultravioletto all’infrarosso: si tratta di un fenomeno già registrato dalle Asl locali di tutta Italia e provoca tumori alla pelle in fortissima ascesa.

LA SVOLTA

Per Naboni, la progettazione oggi si trova oggi tra due poli: conventional design e sustainable design. Non solo. Passiamo dal concetto di sostenibilità, che sostanzialmente dice di creare meno danni, a quello di regenerative design, che suggerisce di creare un

miglioramento netto dal punto di vista naturale. E, quindi, di creare valore invece di limitare solo l’impatto sull’ecosistema. Questo cambiamento vuol dire, per esempio, non porsi più obiettivi di limitare gli impatti o l’uso di energia o il degrado della salute delle persone, ma spostarsi su soluzioni che capiscono i princìpi della natura e cercano una relazione significativa per creare ovviamente energia senza impatti, ma creare valore naturale. Diventa, quindi, una «rinaturalizzazione», creazione o arricchimento della biodiversità e la creazione di salute.

SALUTE E IGIENE

Insomma, si parla non solo di limitare i danni sulla salute delle persone, ma di soluzioni di salute e igiene in grado di creare benessere. Il settore edilizio in questa fase cerca di limitare l’impatto e gestire il danno già creato dal cambiamento climatico, ma secondo Naboni dobbiamo capire questo fenomeno e usarlo come una risorsa, invece di un limite. Che cosa significa nella scelta dei materiali? Si tratta di capire come si relazionano con la citata creazione di capitale naturale, in che modo si raggiunge una decarbonizzazione nella produzione del prodotto o c’è una relazione con la gestione della materia in funzione di un ricircolo della stessa. Vuol dire anche un cambio di vocabolario, nel senso che non si parla più di ridurre l’impatto sul capitale naturale, ma bensì della creazione di capitale. Si tratta non solo, insomma, di proteggere le biodiversità, ma di creare le condizioni per cui altre specie siano favorite da interventi di tipo edilizio, partendo dal fatto che bisogna produrre più energia di quella che si utilizza, così come di assorbire parte del danno già fatto invece di crearne altro.

YouBuild - DICEMBRE / GENNAIO 2023 83

Quattro modi DI RIGENERARE

Atestimoniare i traguardi raggiunti dall’architettura sostenibile e rigenerativa è intervenuto al VI Convegno YouBuild Matteo Arietti, responsabile della ricerca presso Park Associati, studio milanese che si occupa di progettazione architettonica, urbanistica, interior design e product design. Fondato nel 2000 da Michele Rossi e Filippo Pagliani, oggi lo studio conta circa 85 collaboratori e «di fatto fonda il proprio operato su tre parole chiave: ascolto, intuizione e sperimentazione», ha raccontato il progettista. «Per ascolto intendiamo l’approccio il più possibile aperto agli stimoli esterni e a tutte le nuove soluzioni per creare un’architettura più responsabile e innovativa. Essere in grado di recepire questi stimoli non è sufficiente: le informazioni vanno messe insieme tramite un processo intuitivo che consenta di svincolarsi dal passato e permetta di raggiungere obiettivi nuovi, non soltanto in termini progettuali e architettonici, ma soprattutto in termini di sostenibilità e di responsabilità ambientale. L’intuizione fa parte del nostro processo analitico di approccio al progetto e ci permette di declinare la complessità dei contesti in cui spesso ci troviamo a lavorare in maniera più originale». Ed è qualcosa che Park Associati porta avanti anche tramite la sperimentazione. «Ci occupiamo anche di fare ricerca proprio perché l’architettura è una disciplina che permette contaminazioni, abbracciando tanti tipi di soluzioni e idee che puntano proprio all’implementazione continua di una costruzione», non solo dal punto di vista architettonico, tipologico e formale, ma anche in termini di cooperazione con altre discipline. «La ricerca ci ha aiutato a diventare più maturi e investigare nuove tecnologie, nuove tipologie di costruzione, nuovi materiali che ci hanno consentito di fare un importante salto in avanti ed essere in grado di proporre alla comunità progetti al passo coi tempi. Ci concentriamo molto sui materiali, in un dialogo continuo con le imprese che li propongono, e sperimentiamo molto anche a livello di sviluppo di prototipi e modelli», ha

YouBuild - DICEMBRE / GENNAIO 2023 84
Matteo Arietti, responsabile della ricerca in Park Associati, rivela il percorso di rinascita per quattro progetti realizzati o in corso di realizzazione nella città lombarda
INTERVENTI
VI CONVEGNO YB
di Veronica Monaco Matteo Arietti

aggiunto Arietti, con la descrizione di quattro progetti realizzati, o in corso di realizzazione a Milano, che si concentrano su altrettanti temi legati alla sostenibilità: riattivazione, riuso e architettura rigenerativa, sia dal punto di vista dell’edificio sia dal punto di vista della rigenerazione urbana.

BRISA 3-5 RETROFIT DI UN EDIFICIO STORICO

In Via Brisa, nel cuore del centro storico di Milano, Park Associati ha portato a termine nel 2020 la riqualificazione di un complesso di due edifici, rispettivamente di tre e cinque piani, progettati a distanza di quasi vent’anni l’uno dall’altro dallo storico architetto Pietro Portaluppi, e destinati a uso uffici. «La sfida è stata molto complessa. Abbiamo avuto il difficile compito di approcciare una preesistenza di enorme valore storico-architettonico, cercando di soddisfare al meglio le esigenze del cliente. Questo progetto è interessante non perché sia un edificio a impatto zero o perché siano state implementate strategie particolarmente innovative, ma perché recupera buona parte dei metri quadri di un edificio storico in disuso, con un’architettura convincente ma allo stesso tempo

YouBuild - DICEMBRE / GENNAIO 2023 85
L’headquarters Salewa con sede a Bolzano - Foto ©Andrea Martiradonna Sopra, la Digital Factory di LuxotticaFoto ©Lorenzo Zandri

rispettosa del passato», spiega Arietti. Negli edifici di Via Brisa, è stato recuperato il piano interrato nella corte interna esistente e si è ottenuta una corte ipogea, mentre al piano terra sono stati ricavati spazi amenities dalla costruzione che ospitava i garage. Il piano aggiunto sulla palazzina più bassa si distacca per stile da entrambi gli edifici, sottolineandone la più recente epoca di costruzione.

LUXOTTICA DIGITAL FACTORY

Grazie all’intervento di retrofitting di Park Associati, con la collaborazione di storagemilano, Milano si è arricchita in via Tortona di un nuovo intervento di recupero architettonico industriale per accogliere la Digital Factory di Luxottica. «L’edificio era un’ex fabbrica in disuso in cui la General Electric produceva turbine, e che presentava caratteristiche post-industriali molto interessanti. Siamo riusciti a salvare l’edificio dalla demolizione, risparmiando molto sulla costruzione di strutture nuove, senza assolutamente inficiare la qualità dello spazio proposto alla fine dell’intervento. Di fatto, è un manufatto nuovo che si esprime più che altro in facciata, poiché all’interno delle navate principali si è recuperato tutto», ha spiegato

YouBuild - DICEMBRE / GENNAIO 2023 86 INTERVENTI
La riqualificazione di via Brisa a Milano, che ha coinvolto entrambi i blocchi di un edificio di Pietro Portaluppi. Sotto, Priceless, un modulo abitativo pensato per potersi spostare e sovrapporre ad edifici preesistenti in situazioni di elevata visibilità.
Foto ©Andrea Martiradonna
YouBuild - DICEMBRE / GENNAIO 2023 87
La scala dello Store Concept del marchio Brioni a Francoforte: rompendo la linearità geometrica dello spazio, si sviluppa piegandosi ad angolo acuto tra le due rampe. Foto ©Andrea Martiradonna

l’architetto di Park Associati. L’involucro è frutto di una ricerca tecnologica e strutturale che conferisce all’edificio la massima trasparenza e luminosità interna. «Soltanto alcune delle strutture sono state costruite da zero, principalmente per motivi di sicurezza e di protezione antincendio, ma l’architettura generale dell’edificio esistente è stata completamente salvata». Quello di Luxottica Digital Factory è «un progetto che condensa molto bene lo spirito che si dovrebbe possedere nel momento in cui ci si approccia a una pre-esistenza che, soprattutto in caso di edifici industriali, garantisce una libertà di utilizzo e di evoluzione dell’edificio davvero notevole».

MIC, RIGENERAZIONE ARCHITETTONICA

Responsabilità ambientale e rigenerazione urbana sono al centro del progetto Mic, che punta a dare nuova vita all’ex Hotel Michelangelo di Milano e ridisegnare il landmark della Stazione Centrale e della adiacente Piazza Luigi di Savoia, con un nuovo edificio composto prevalentemente da due torri, tra percorsi alberati e giardini urbani. «Rilevato a fine 2020 per essere demolito e ricostruito, l’ex Hotel Michelangelo è stato una grande occasione di sperimentazione, sia strutturale che formale», ha raccontato Arietti. «Abbiamo cercato di essere più sostenibili possibili, proponendo un approccio di urban mining per recuperare il calcestruzzo esistente nella percentuale massima concessa dalla normativa», che verrà riutilizzato in parte nel nuovo edificio e in parte nel disegno dello spazio pubblico. Un’impresa sfidante, non solo dal punto di vista tecnico. «A oggi è molto complicato riuscire a muoversi all’interno di una normativa che, per motivi assolutamente comprensibili e per la maggior parte legati alla sicurezza, in qualche modo limita produttori, imprese e architetti al riuso del calcestruzzo esistente», ha sottolineato il progettista. «Inizialmente avevamo deciso di decostruire la torre in loco e riutilizzare il materiale, ovviamente trattato, all’interno del calcestruzzo nuovo per realizzare strutture di fondazione, strutture verticali e orizzontali. Purtroppo, questo non è stato possibile perché certificare un calcestruzzo proveniente da materia prima seconda è molto lungo e complesso». Come superare l’impasse?

«Lavorando a stretto contatto con i demolitori, andremo a montare un castello di decostruzione sulla cima della torre che permetterà di agire contemporaneamente su tre piani dell’esistente, decostruendo pezzo per pezzo l’edificio. Non agiremo con i metodi di demolizione classica ma con delle piccole pinze idrauliche a piano, in cui andremo a tagliare puntualmente pilastri e solette trasportandole poi al piano terra. Qui saranno stoccate su camion e trasportate in stabilimento per essere processate dal produttore che ci venderà calcestruzzo già certificato proveniente da materiale di riuso». Un

YouBuild - DICEMBRE / GENNAIO 2023 88 INTERVENTI
Render del nuovo grattacielo MIC in costruzione in Piazza Luigi di Savoia a Milano ©Tecma Solutions

processo virtuoso che costituisce un unicum in Italia e permette di sensibilizzare sulle opportunità dei materiali provenienti da materia prima seconda a partire dall’ambiente costruito, mitigando gli effetti delle emissioni di gas serra. «Un progetto di effettivo urban mining è invece il riutilizzo in loco del klinker presente in facciata, formato da tessere di circa 25x5 centimetri, che verranno smontate una per una e verranno riutilizzate come rivestimento degli interni nelle zone comuni, nel locale ristorante e in alcune sale meeting della torre». Un lavoro certosino affidato a una squadra di professionisti specializzati. Per la nuova facciata, i progettisti di Park Associati hanno invece pensato a una curtain wall in vetro, in cui la componente trasparente è limitata al 70% grazie a elementi a cuspide, parzialmente opachi e parzialmente trasparenti, che mutano la propria inclinazione a mano a mano che acquistano verticalità, catturando o schermando i raggi solari. «La torre è stata progettata interamente con il software di modellazione algoritmica Grasshopper e il plugin di progettazione generativa Octopus, che ci ha permesso di analizzare una mole enorme di dati e calcoli e portare avanti un’impresa assolutamente impossibile senza l’ausilio degli strumenti digitali».

MOLECOLA, RIGENERAZIONE URBANA

MoLeCoLa, acronimo di Mobility Learning Community Lab, è il progetto ideato da Park Associati nell’ambito del concorso internazionale promosso da

C40 Reinventing Cities che promuove la riqualificazione del quartiere di Bovisa di Milano. Il masterplan si estende su un’area di oltre 90 mila metri quadrati e comprende residenze, studentato, attività commerciali, coworking, l’headquarters di Ferrovie Nord, aree verdi attrezzate, in un paesaggio armonizzato che risponde all’obiettivo di zero emissioni di CO2 al 2050. «I bandi C40 sono molto complessi e prevedono uno studio Lca molto maturo. È stato un progetto interessante, che ha messo insieme più di venti consulenti, e ha richiesto uno sforzo di team davvero notevole. Il lavoro svolto ci ha permesso di immaginare in maniera nuova e originale un pezzo di città, che speriamo di vedere costruito entro il 2050», ha commentato il relatore. Tutti gli edifici saranno costruiti in legno, anche l’edificio più alto rappresentato dall’headquarters di Ferrovie Nord. «Grazie alla partnership con lo studio di ingegneria tedesco Bollinger+Grohmann, abbiamo imparato molto sulle costruzioni in legno e sulle costruzioni ibride in calcestruzzo-legno, che esprimono uno degli approcci più interessanti per l’architettura del futuro». MoLeCoLa è un progetto che fa dello spazio pubblico una delle sue caratteristiche principali, ponendo grande attenzione anche al tema del lanscape, «per rendere più vivibili i territori all’interno delle città, non solo con interventi legati alla gestione del calore, ma anche a quello dell’acqua», coniugando esigenze presenti e prefigurando un futuro costruito sul valore della sostenibilità ambientale e sociale.

YouBuild - DICEMBRE / GENNAIO 2023 89
Render MoLeCoLa per la riqualificazione del quartiere Bovisa a Milano ©Park Associati

La casa giusta È COME UN FIORE

Promotore di un modello di edilizia che mira ad andare oltre il concetto di sostenibilità, puntando a un modello rigenerativo è l’International Living Future Institute (Ilfi), con base a Seattle. È anche l’ente ideatore del Living Building Challenge (Lbc), «il più ambizioso protocollo internazionale che misura la sostenibilità dell’ambiente costruito». A supportare le attività dell’organizzazione nel Vecchio Continente è Living Future Europe: dalla sede del Noi Techpark di Bolzano, l’associazione si occupa di promuovere, senza scopo di lucro, diversi progetti e programmi per diffondere la cultura della sostenibilità rigenerativa. Il presidente, Carlo Battisti, è intervenuto nell’ambito del VI Convegno YouBuild per approfondire il tema in ottica di prodotto e di organizzazione aziendale. «Ormai tre anni fa la presidente della Commissione europea, Ursula Von Der Leyen, ha lanciato il pacchetto Fit for 55 per far diventare l’Europa il primo continente a zero emissioni e carbon neutral entro il 2050. Un progetto veramente impegnativo e molto ambizioso, perché significa che entro il 2030, cioè in sette anni da ora, dobbiamo ridurre del 55% le emissioni di carbonio rispetto ai valori del 1990. Sostanzialmente in meno di dieci anni dobbiamo riuscire a conseguire ciò che abbiamo compiuto nei 30 anni precedenti», ha sottolineato Battisti.

APPROCCIO OLISTICO

Un traguardo coraggioso che, però, inizia a mostrare una serie di complicazioni sempre più evidenti. «È vero che

YouBuild - DICEMBRE / GENNAIO 2023 90
Dare all’ambiente invece di togliere. Si può, a partire dall’etichetta Declare per i prodotti utilizzati in edilizia, spiega Carlo Battisti, presidente di Living Future Europe
EDILIZIA VERDE
VI CONVEGNO YB
di Veronica Monaco

l’impatto del settore delle costruzioni pesa per il 40% dal punto di vista delle emissione di CO2, quindi è chiaro che dobbiamo fare qualcosa. Ma ci stiamo focalizzando troppo sulla questione della riduzione delle emissioni di gas serra e di anidride carbonica. Questo è solo un angolo di una prospettiva più generale che riguarda la sostenibilità. Ci sono tanti aspetti che dobbiamo considerare, in un approccio più olistico che tenga conto contemporaneamente di molteplici fattori», ha spiegato il presidente di Living Future Europe. Anche perché ci sono aree dove effettivamente non esiste più alcun margine di recupero. «Come diceva Richard Buckminster Fuller (inventore, architetto, designer e filosofo americano, ndr), è inutile continuare a contrastare quello che sta succedendo, mantenendo le stesse regole del gioco. Dobbiamo creare nuovi paradigmi che facciano diventare obsoleto il modello economico e sociale precedente. Quindi, quando si parla di sostenibilità non basta ridurre, ma è necessario

restituire risorse all’ambiente, pareggiando gli impatti negativi con quelli positivi, anche per quanto riguarda gli edifici». Ma in che modo una costruzione può fare del bene all’ambiente? «Il protocollo Living Building Challenge si basa sulla metafora del fiore. Un fiore o un albero vive al meglio nel luogo in cui è radicato, utilizzando l’energia dal sole, l’acqua dalla pioggia, riciclando i propri residui, perfettamente integrato con l’ecosistema che lo circonda», ha chiarito Battisti. «Questo obiettivo è davvero sfidante dal punto di vista tecnico e tecnologico e può essere un campo dove mettere insieme diverse competenze. Ma in questa sfida entrano in gioco anche i materiali e come l’azienda li realizza».

IMPATTO POSITIVO

È possibile immaginare prodotti rigenerativi? Progettati e realizzati tramite processi industriali a impatto positivo? In aziende che possono fare

YouBuild - DICEMBRE / GENNAIO 2023 91
A sinistra, Carlo Battisti, presidente Living Future Europe. Sotto, Richard Buckminster Fuller

del bene alla società, al settore delle costruzioni, all'ambiente? È questa la visione dietro il protocollo Living Product Challenge (Lpc) programma ideato da Ilfi che rappresenta la misura più avanzata di sostenibilità per i prodotti da costruzione e arredi. Invece di accontentarsi di avere un impatto un po’ meno negativo, il programma ispira prodotti che abbiano un impatto positivo misurabile, e che siano salubri e liberi da sostanze tossiche; socialmente responsabili e nel rispetto dei diritti dei lavoratori. Con un impatto nullo o ancora meglio positivo sulle persone e l’ambiente. All’interno del programma si inserisce anche il marchio di trasparenza Declare, un’etichetta di ingredienti per prodotti da costruzione abbinata a un database online di materiali salubri idonei per i capitolati dei progetti, protagonista anche di una menzione speciale nell’ambito dei premi del Concorso YouBuild Awards assegnata a Knauf Insulation. «La chimica sta elaborando tutta una serie di nuovi materiali, vogliamo sapere cosa c’è in questi prodotti. Viviamo ormai più del 90% del nostro tempo all’interno di spazi chiusi e la salubrità dei prodotti da costruzione è un fattore davvero imprescindibile. Nell’etichetta Declare sono riportati tutti gli ingredienti chimici presenti all’interno dei prodotti fino a 100 parti per milione in peso,

ovvero lo 0,01%, il che garantisce un’analisi davvero approfondita. Basti considerare che il regolamento Reach dell’Unione Europea arriva a mille parti per milione», spiega Battisti. Inoltre, nell’etichetta sono mostrati in colore rosso eventuali ingredienti inclusi nella cosiddetta Red List, gestita da Ilfi, che rappresenta il massimo livello di valutazione e informazione sugli ingredienti dannosi all’interno dei prodotti da costruzione. «Grazie alla collaborazione tra Living Future Europe e Ilfi, è disponibile anche una versione europea dell’etichetta, dove i produttori possono verificare anche se ci siano ingredienti inseriti nell’elenco Sin-Substitute It Now! (un database sviluppato dal Segretariato chimico internazionale delle sostanze chimiche i cui usi potrebbero diventare legalmente limitati ai sensi del regolamento Reach dell’Ue, ndr) e la conformità delle sostanze chimiche problematiche secondo i cosiddetti Chemicals of Concern dell’Unione Europea».

COMPOSIZIONE CHIMICA

Tutte queste informazioni forniscono in un sola etichetta un utile strumento di valutazione sia alle aziende manifatturiere che ai progettisti e utenti. Al momento ci sono già un migliaio di prodotti da costruzione e arredi etichettati Declare nel mondo, di cui circa 180 realizzati in Europa. Tuttavia, l’aspetto della composizione chimica dei prodotti da costruzione non esaurisce il tema della sostenibilità. Oltre a criteri di trasparenza delle informazioni sugli ingredienti dei prodotti e sul processo produttivo, è possibile introdurre un nuovo approccio anche nella valutazione dell’impatto delle aziende sull’ambiente e sulla società. «Per quanti sforzi facciamo per rendere una fabbrica efficiente, non sarà mai possibile raggiungere un’impronta zero. Introduciamo allora il concetto di impronta positiva, di positive handprinting ed estendiamo il perimetro della valutazione del ciclo di vita del prodotto al di là della sola carbon footprint. In questo modo l’orizzonte cambia radicalmente e l’impronta complessiva di un’azienda può risultare addirittura positiva», propone il presidente di Living Future Europe. Produzione di energia da fonti rinnovabili, recupero dell’acqua, rapporto con la comunità, rapporto con gli stakeholder, attività benefiche, innovazione di prodotto, la formazione, sono tutti ingredienti che possono andare a riequilibrare il peso sulla bilancia. «Il Living Product Challenge è un programma davvero impegnativo, ma assolutamente completo. Attualmente abbiamo una cinquantina di prodotti già certificati Lpc, su un totale di 90 registrati. C’è addirittura chi, come l’azienda Humanscale, leader negli arredi per ufficio, ha certificato Lpc tutto il proprio catalogo prodotti». Un esempio virtuoso da emulare che dimostra che un nuovo scenario non solo è necessario, ma è possibile.

YouBuild - DICEMBRE / GENNAIO 2023 92 EDILIZIA VERDE
Il marchio di trasparenza Declare riporta tutti gli ingredienti chimici presenti all’interno dei prodotti da costruzione
YouBuild - DICEMBRE / GENNAIO 2023 93

Progettare verde ATTRAVERSO I DATI

Giambattista Brizzi, Senior Building Physics Specialist di Deerns Italia, spiega come

digitale

In un’epoca in cui il progresso tecnologico avanza in maniera inesorabile, anche nel mondo della progettazione si fanno sempre più strada concetti come «data driven design» e «data enabled design» per delineare un nuovo approccio basato sull’utilizzo di diverse tipologie di dati a supporto dell’attività di ingeneri e architetti. A dimostrare come questo si traduca nella pratica quotidiana è intervenuto al VI Convegno YouBuild Giambattista Brizzi, Senior Building Physics Specialist di Deerns Italia, società di consulenza internazionale in grado di fornire servizi di ingegneria per realizzare ambienti costruiti sostenibili, salutari e confortevoli. Con uffici sparsi in tutto il mondo e un organico di oltre 500 professionisti, Deerns fornisce servizi di consulenza per la progettazione di sistemi impiantistici meccanici, elettrici, idrico-sanitari, e negli ambiti di sostenibilità, energia, acustica, building physics, logistica, vertical transportation, health & safety, facility management, cost control e security. «N ello specifico il Building Performance Group di cui faccio parte si occupa di proporre strategie energetiche e di sostenibilità per la progettazione di edifici confortevoli , sani e a basso consumo energetico», racconta Brizzi. Un approccio che non è solo una questione di impianti all’avanguardia e ben

YouBuild - DICEMBRE / GENNAIO 2023 94
la tecnologia
è una chiave necessaria per ideare e gestire edifici green
SOSTENIBILITÀ VI CONVEGNO YB
di Veronica Monaco Giambattista Brizzi

integrati, ma di scelte che già in fase di pre-progettazione prendano in considerazione simulazioni scientifiche avanzate che comprendono modellazioni energetiche, simulazioni della luce naturale, simulazioni del comfort termo-igrometrico, analisi dei sistemi di facciata, acustica e illuminotecnica, basate sempre più su dati reali.

EVOLUZIONE

«In questi anni c’è stata un’evoluzione sempre più sfidante in termini di sostenibilità», afferma l’esperto. Da The Edge, l’edificio completato nel 2015 ad Amsterdam da P lp Architecture con la consulenza tecnica di Deerns, che utilizza una innovativa tecnologia intelligente in grado di raccogliere dati sul proprio funzionamento interno e sull’ambiente esterno per autocalibrare consumi, illuminazione, uso degli spazi, ventilazione, pulizia, si sono nel tempo accumulati tutta una serie di progetti che vanno verso una decarbonizzazione sempre più spinta, sostenuta anche dalle nuove normative che esortano a progettare edifici a energia zero. «The Edge è stato il primo e l’inizio di un concetto di smart building che fa capire l’importanza dei dati e di sistemi per immagazzinarli. Oggi lo spettro si è ampliato rispetto al semplice concetto di energia e si comincia a parlare anche di sistemi in grado di promuovere il benessere e la salute all’interno degli edifici, arrivando al concetto di circolarità dei materiali», commenta Brizzi. «Parlare di energia veramente zero è impossibile, i fabbisogni ci saranno sempre, ma bisogna cercare di ridurre i consumi, incorporando quante più fonti rinnovabili possibili all’interno degli edifici. La sfida più importante al momento è iniziare a ragionare sull’embodied carbon (l’emissione di anidride carbonica associata ai materiali e ai processi di costruzione durante l’intero ciclo di vita di un edificio, ndr) promuovendo sempre di più il recupero del partimonio esistente attraverso azioni sia di restauro sia di ristrutturazione più importanti. La costruzione di un edificio nuovo ci garantirebbe molto più facilmente l’ottenimento di traguardi nZeb, perché si eviterebbero tutta una serie di difficoltà che inevitabilmente il patrimonio esistente si porta dietro, ma si tratta di un cambio di prospettiva davvero importante».

QUALE FUTURO?

«Il futuro sono i criteri E sg  (Environmental, Social and Governance)», spiega Brizzi. La sostenibilità diventa un concetto molto ampio che abbraccia l’ambiente, la società e la gestione stessa delle attività. «Il livello di priorità delle certificazioni

YouBuild - DICEMBRE / GENNAIO 2023 95
L’evoluzione dei progetti Deerns, da The Edge ad oggi. Sotto i trend ESG per gli investimenti real estate in Europa

ambientali e degli elementi legati alla parte environmental aggiungono complessità all’attività di progettazione e i dati diventano un elemento prioritario. Senza dati non possiamo più lavorare». Una sfida anche per il mondo della produzione chiamata a fornire tutte queste informazioni. «Tutti gli edifici pubblici in Italia oggi richiedono di rispettare una serie di criteri ambientali minimi che coinvolgono anche l’utilizzo di determinati materiali, selezionati in base alla loro percentuale di riciclato o alla prossimità tra luogo di produzione e cantiere. Il discrimine tra scegliere un materiale a volte passa solo dalla competenza e responsabilità delle aziende di garantire ai progettisti prodotti dotati di certificazioni e informazioni rispetto a tutto il loro processo produttivo».

TASSONOMIA UE

Non basta però produrre dati: vanno anche raccolti e analizzati. «Non progettiamo più solo tramite simulazioni, ma raccogliamo i dati sui vari edifici, li collezioniamo e andiamo a progettare soluzioni su dati reali per evitare quel performance gap che si crea tra la simulazione e l’utilizzo quotidiano di un edificio», sottolinea l’architetto. «Riuscire a raccogliere molti dati ci permette di fornire traiettorie credibili per garantire una decarbonizzazione basata su parametri veramente significativi, non soltanto per i nuovi edifici ma anche per il patrimonio costruito. Chiaramente abbiamo bisogno di target, che oggi sono allineati a sistemi di rating system come il Leed, il Well o il Breeam. Questi protocolli continuano a evolversi alzando molto l’asticella degli interventi. Cerchiamo dunque di allontanarci da una visione monoculare sulle sole emissioni di carbonio per rispondere anche alla tassonomia Ue delle attività eco-compatibili». Le attività sono selezionate in base alla possibilità di contribuire a sei obiettivi ambientali identificati dalla Commissione Europea e comprendono mitigazione del cambiamento climatico, adattamento al cambiamento, uso sostenibile e protezione delle risorse idriche e marine, transizione verso l’economia circolare, con riferimento anche a riduzione e riciclo dei rifiuti, prevenzione e controllo dell’inquinamento, protezione della biodiversità e della salute degli eco-sistemi. La tassonomia è un importante strumento finanziario che implica l’elargizione o meno di finanziamenti o fondi europei, come quelli del Pnrr. «Per concorrere all’ottenimento e al soddisfacimento dei criteri di tassonomia siamo costretti a fornire numeri sui nostri edifici che vadano a considerare tutto il loro life cycle impact. L’applicazione dei protocolli energetico-ambientali sia a livello di edificio che di masterplan consente di utilizzare in modo più consapevole i dati a disposizione».

YouBuild - DICEMBRE / GENNAIO 2023 96 SOSTENIBILITÀ
L’utilizzo di dati reali sarà sempre più importante nella progettazione e nel monitoraggio degli edifici
YouBuild - DICEMBRE / GENNAIO 2023 97 DOPPIA CERTIFICAZIONE NETFIX CRM 490 NETFIX CRM 980 NETFIX CRM ANGULAR 490 NETFIX CRM CONNECTOR BCR 400 V PLUS Via Garfagnana, 17 / Zona Industriale Padule 06024 Gubbio (PG) / Italy Tel. 075 92974 / www.cvr-italy.com SISTEMI NETFIX CRM PER LA REALIZZAZIONE DI INTERVENTI DI CONSOLIDAMENTO E RINFORZO STRUTTURALE DI ELEMENTI IN MURATURA Scopri il sistema 22/0424 ETA

Le tante vie DELLA TRANSIZIONE

Si parla di sostenibilità, ma le aziende come implementano questo concetto nella realtà di tutti i giorni? A testimoniare i traguardi raggiunti in materia di edilizia green sono intervenuti al VI Convegno YouBuild tre realtà molto diverse per organizzazione e struttura, ma unite da un impegno comune nella sfida della decarbonizzazione e nello sviluppo di prodotti sostenibili. Ad aprire il dibattito è stato Tiziano Mazzetto, project advisor di Agc Flat Glass, multinazionale specializzata nella produzione di vetro piano con headquarters in Giappone, che ha messo in campo una sfida per rendere i propri stabilimenti più ver-

YouBuild - DICEMBRE / GENNAIO 2023 98
Un produttore di vetri di alta gamma, un’azienda di intonaci di calce pozzolanica, una start-up che applica le nanotecnologie all’edilizia: la sostenibilità ha tante facce
LE IMPRESE
VI CONVEGNO YB

di. «Siamo un’azienda assolutamente energivora. I nostri altiforni, che funzionano esclusivamente a gas, ci condizionano fortemente, soprattutto alla luce della situazione che stiamo vivendo. Sono già dieci anni che lavoriamo per diminuire le emissioni di Co2 dei nostri impianti, seguendo il programma del Green Deal europeo, proprio per proporre vetro low carbon che ha i medesimi aspetti tecnici e prestazionali del vetro attualmente in commercio, ma con una riduzione delle emissioni del 40%», ha spiegato Mazzetto.

IL CAMMINO DI AGC FLAT GLASS

In che modo? «Lavorando su più fronti, interni ed esterni. Per quanto riguarda gli impianti, per esempio, stiamo per modificare l’alimentazione della fucina di estrusione, implementando i bruciatori con delle resistenze, e installando impianti fotovoltaici a tetto e impianti eolici per alimentare i forni stessi con energia derivante da fonti rinnovabili, diminuendo in questo modo il consumo del gas. In più, il nostro impegno è rivolto anche all’esterno, nella scelta di fornitori che ci garantiscano un minor impatto nell’approvvigionamento della materia prima e prediligendo la movimentazione dei materiali su treno e non su gomma, riducendo ulteriormente le emissioni».

GLI INVESTIMENTI DI CALCHERA SAN GIORGIO

Ma la sostenibilità comporta investimenti economici significativi, non coinvolge solo le multinazionali. A testimoniare che essere attenti all’ambiente è una forma mentis e non solo un’occasione di business è Calchera San Giorgio, azienda familiare di Grigno Valsugana (Trento) che ha fatto della ricerca e formulazione di materiali specifici per il restauro, il risanamento e l’edilizia sostenibile il suo punto di forza. «Proporre materiali sostenibili ci differenzia dai competitor. Oltre che essere sostenibili, le nostre soluzioni sono anche esteticamente apprezzabili poiché lavoriamo molto sul design del prodotto e della finitura, utilizzando materie naturali. Questo dà modo di interloquire con diverse tipologie di professionisti, dal tecnico che progetta un edificio al designer che studia una decorazione fino all’applicatore, offrendo assistenza continua e consulenza», spiega Gianni Nerobutto, direttore tecnico dell’azienda. «Per entrare sempre più nella logica dell’economia circolare, negli ultimi anni abbiamo iniziato un progetto di ricerca per sviluppare prodotti che utilizzano materia prima derivante dagli scarti di altre lavorazioni, con caratteristiche chimico-fisiche compatibili con i materiali utilizzati storicamente», ha spiegato il manager.

YouBuild - DICEMBRE / GENNAIO 2023 99
Da sinistra, Tiziano Mazzetto, Gianni Nerobutto e Franco Gianturco

IL FOTOCATALITICO DI 2G NANOTECH

Dallo studio di materiali antichi e biocompatibili alle tecnologie più innovative, il mercato dei materiali green per le costruzioni si arricchisce sempre di nuove soluzioni, come quelle proposte da 2G Nanotech, azienda nata nel 2020 che propone in Italia la nanotecnologia del gruppo Advanced Materials-JTJ. «Con la nostra tecnologia produciamo rivestimenti funzionali fotocatalitici che consentono agli edifici di diventare purificatori d’aria, andando a eliminare dal 30 al 50% degli inquinanti, in particolare ossidi di azoto, ozono e composti volatili. La nostra è una grande sfida perché, purtroppo, fino a oggi la fotocatalisi non ha avuto molta diffusione come tecnologia per ridurre l’inquinamento esistente. Vogliamo supportare le amministrazioni comunali e le istituzioni dimostrando che gli strumenti per fare qualcosa di utile, ci sono con risultati dimostrati», spiega il titolare, Franco Gianturco.

QUALE RUOLO PER I BONUS?

Qual è, in tutto questo, il ruolo degli incentivi fiscali sulla transizione green? Bonus casa e superbonus funzionano, o no, in chiave di sostenibilità? «Dal punto di vista strettamente commerciale i numeri parlano a nostro favore», afferma Mazzetto. «Gli incentivi sicuramente sono stati un grandissimo volano specialmente nel settore residenziale, tuttavia questa rincorsa ai tempi non è stata certo foriera di maggiore attenzione dal punto di vista della qualità dei prodotti utilizzati nei cantieri, né tantomeno nella ricerca di sostenibilità. Purtroppo, si è sprecata l’opportunità di utilizzare questi incentivi mettendo la sostenibilità come primo punto cardine nella scelta dei materiali e si vedono i risultati: i bonus hanno creato business, ma non hanno aumentato la qualità finale dei manufatti e dei materiali utilizzati». Dello stesso avviso anche Gianturco: «La nostra è un’azienda giovane e il superbonus non ha toccato molto il business, ma ritengo che l’incentivo debba essere rivalutato anche in funzione della sostenibilità. Per ora ci si è limitati a un discorso di vantaggio economico». «Abbiamo lavorato molto con il bonus facciate, dove c’erano meno vincoli anche dal punto di vista tecnico», ha aggiunto Nerobutto. «La finestra temporale molto stretta non ha dato la possibilità di scegliere la qualità, ma ha innescato una corsa nella realizzazione dei lavori, che ha anche messo in difficoltà anche le produzioni, soprattutto in aziende mediopiccole come la nostra. Il superbonus ha sicuramente portato un po’ di ottimismo nel mercato con effetti positivi; andava però ponderato in maniera diversa, con più tempi più lunghi e percentuali più basse, per estenderne i benefici a tutti».

YouBuild - DICEMBRE / GENNAIO 2023 100 LE IMPRESE
Tiziano Mazzetto Gianni Nerobutto Franco Gianturco

Bolzano

Fiera per il risanamento e l’efficienza in edilizia

Temi focus

Legno Energia

Edilizia sociale

Innovazione

Costruire bene. Vivere bene.

Legno, energia, social housing e innovazione: 4 sfide per un grande evento –Klimahouse 2023. 4 trend che stanno già cambiando profondamente il settore edile. Il legno, utilizzato come elemento strutturale, il risparmio energetico, il social housing di qualità e i prodotti capaci di cambiare tecniche e approccio alle costruzioni.

Il primo premio nazionale per l'architettura in legno.

www.klimahouse.it 0

seggiole & poltrone

Dimitri Mei nuovo ad di Ceramica Cielo Ceramica Cielo (gruppo Italian Bathroom Design) chiama come amministratore delegato Dimitri Mei (già al vertice di Ibd e di Ceramica Galassia). Mei guiderà Ceramica Cielo in virtù degli eccellenti risultati ottenuti da Galassia dopo l’acquisizione da parte di Ibd. Il manager vanta oltre 40 anni di esperienza nel settore. «Essere alla guida di Cielo è un’opportunità unica per valorizzare una realtà così importante con l’obiettivo di migliorarne la qualità e l’efficienza dei prodotti e dei servizi, puntando a una nuova importante fase di crescita», è il commento di Mei. L’azienda, 35 milioni di fatturato nel 2021, prevede un’espansione dell’area produttiva, che passerà il prossimo anno da una superficie di 16.700 metri quadrati a 25 mila, garantendo un aumento della produzione pari al 35%

I professionisti sulla Caravella

A Firenze parte il progetto del parco sportivo della Caravella con i fondi del Pnrr. Sono già stati incaricati i professionisti che si dovranno occupare di ridisegnare lo spazio. L’architetto Michele Bengasi Fiorini è stato nominato Responsabile unico del procedimento, mentre

l’architetto paesaggista Simona Paladini si occuperà dello studio preliminare di tipo ambientale e l’agronoma Elena Lanzi dello studio preliminare agronomico del parco. L’architetto Paolo Camaiore si occuperà di fare la relazione storica e la

predisposizione di istanza di autorizzazione paesaggistica del progetto di ampliamento della zona dedicata scherma, affiancato dall’ingegnere Alessandro Sassi per la parte relativa alla redazione di elaborati strutturali per il progetto di ampliamento dell’edificio della scherma.

Marco Casini

all’Autorithy per il territorio Marco Casini, docente del Dipartimento di pianificazione, design, tecnologia dell’architettura alla Sapienza di Roma, è stato nominato segretario generale dell’Autorità di bacino distrettuale dell’Appennino centrale. Le Autorità di bacino distrettuali rivestono un ruolo di importanza centrale per promuovere la difesa e la valorizzazione del suolo e una efficiente ed efficace gestione delle risorse idriche del territorio. Casini è un ingegnere ambientale, con un ambito di ricerca che riguarda tra le altre cose l’architettura sostenibile, i materiali e le strategie innovative per edifici e città smart.

Alessandra Quarto al Poldi Pezzoli

Alessandra Quarto, architetto, attualmente direttrice della Soprintendenza Archeologia, belle arti e paesaggio per la città metropolitana di Bologna e le province di Modena, Reggio Emilia e Ferrara, è stata nominata nuovo direttore

del Museo Poldi Pezzoli di Milano. Lo ha deciso il Comitato di Gestione dello spazio espositivo. Quarto, ha già diretto la Sopraintendenza per le province di Biella, Novara, Verbano Cusio Ossola e Vercelli. Dal 2016 al 2021 è stata vicedirettore della Pinacoteca di Brera di cui ha progettato e coordinato l’intero riallestimento museale e dove è anche stata responsabile dell’attività di ricerca fondi per la Pinacoteca di Brera e la Biblioteca Nazionale Braidense.

Nuovi docenti per la Supsi

Il consiglio della Scuola universitaria professionale della Svizzera italiana (Supsi) ha nominato 13 nuovi docenti. Per il Dipartimento ambiente costruzione e design Nicola Baserga, professore aggiunto in Progettazione architettonica. Stefano Bernasconi è nominato professore aggiunto in Strutture metalliche, Remo Derungs, professore aggiunto in Progettazione degli interni, Cristian Scapozza, professore in Geomorfologia applicata, Andrea Pedroli, professore aggiunto in Diritto tributario.

YouBuild - DICEMBRE / GENNAIO 2023 102

Massime prestazioni nel minimo spessore

Porta anticondensa

Telaio in PVC con anima in acciaio

Trasmittanza termica di serie 1,3 w/m2k extra fino a 0,6 w/m2k

Abbattimento acustico di serie 46 dB

Anche in versione elettronica Hibry e Next Elettra

Anche in versione fiancoluce e sopraluce

YouBuild - DICEMBRE / GENNAIO 2023 103

L’architetto sostenibile

ALESSANDRO ROGORA, POLITECNICO DI MILANO

YouBuild - DICEMBRE / GENNAIO 2023 104
DI

Quella sottile differenza

Anche nei momenti di recessione e difficoltà ci sono spese che siamo disposti a sostenere: sono quelle relative alla salute nostra e dei nostri cari. Se i tempi di attesa della sanità pubblica risultano troppo dilatati, accettiamo obtorto collo di rivolgerci alla sanità privata con costi maggiori, ma tempi certi e decisamente più brevi. I soldi sborsati per la salute sono considerati ben spesi e sono forse fra i pochi esborsi di cui tendiamo a non pentirci.

Sempre più di frequente viene poi ricordato che «siamo quello che mangiamo». Non è un caso che negli ultimi dieci anni la superficie italiana destinata alle coltivazioni biologiche sia raddoppiata portando al 17% la quota coltivata con questo metido, contro una media europea del 9% e, di conseguenza, i prodotti alimentari certificati biologici sono sempre più diffusamente presenti nei supermercati e nei negozi specializzati. Chi non preferisce, se può permetterselo, carne, pollo, pesci e verdure cresciuti in ambienti sani, senza uso di ormoni e antibiotici?

Edilizia e sospetti

Nell’edilizia la situazione non sembra invece seguire questa tendenza: il prodotto naturale è visto con un certo sospetto perché considerato più deperibile, poco sicuro e troppo costoso rispetto all’alternativa industriale classica e il nostro immaginario fatica ad accettare certe innovazioni. Muri in paglia, isolanti in lana di pecora, intonaci a base di argilla e vernici alla caseina sono considerati soluzioni di nicchia e di tendenza per qualche blogger che si occupa di sostenibilità, ma certo non rappresentano che una misera frazione del mercato edilizio. Passiamo la maggior parte del nostro tempo all’interno di ambienti confinati e, sia che si tratti della nostra abitazione, di uffici, scuole, negozi o musei, non siamo in grado di valutare la qualità di questi ambienti nei quali spesso (molto spesso) si rischia di avere livelli di inquinamento maggiore rispetto all’ambiente esterno. I motivi vanno dalla scarsa ventilazione al rilascio di componenti volatili contenuti in vernici, colle, materiali e finiture che, quando inseriti in contenitori dal green packaging, non appaiono così aggressivi come realmente possono essere. Giusto per fare un esempio: il mix chimico a cui associamo il profumo di pulito nelle nostre case è generalmente ben poco sano quando viene inalato e contribuisce fortemente a inquinare l’aria nelle nostre abitazioni.

Non solo consumi

Negli edifici sono stati fatti molti passi in avanti per quanto riguarda il contenimento dei consumi energetici e ormai tutti abbiamo ben chiaro come la classificazione energetica descriva in maniera abbastanza precisa il comportamento dell’edificio rispetto ai consumi. Riusciamo a orientarci nel mercato potendo scegliere tra edifici con prestazioni diverse, e quindi edifici con localizzazione più centrale e classificazione inferiore, ristrutturati di recente con consumi previsti molto ridotti. La classificazione energetica permette di muoverci in maniera più consapevole in un mercato in cui queste informazioni erano fino a pochi anni fa nascoste, se non del tutto sconosciute e comunque poco

significative nella definizione del valore degli immobili. Per quanto riguarda la salubrità degli ambienti in cui passiamo la maggior parte della nostra vita rimaniamo invece completamente all’oscuro, non abbiamo alcuna informazione e quel poco che ci viene raccontato rischia di essere fuorviante.

La stessa definizione di edificio ecologico, generalmente usata con grande leggerezza e spesso poca cognizione di causa, contiene una serie di valori e informazioni generiche e contrastanti che aiutano assai poco il fruitore. Un edificio è definito ecologico perché dotato di pompa di calore, ma sappiamo che è un impianto e ha poco a spartire con l’edificio, piuttosto che ecologico perché costruito in legno, indipendentemente se realizzato nelle Alpi o nelle brulle e sassose isole del Sud e indipendentemente dal trattamento del materiale o, ancora, perché di classe energetica elevata anche se il contenuto di energia grigia e il calcolo dell’Lca potrebbero dimostrare questa scelta come poco sensata dal punto di vista ambientale.

Naturale o ecologico?

Anche la semplice indicazione di edificio ecologico perché realizzato con materiali naturali (e quindi erroneamente inteso come sano) aiuta poco. L’amianto, il piombo, il mercurio, il tufo e perfino l’arsenico sono materiali naturali, ma per certi usi non sono adatti, tanto da essere considerati potenzialmente molto pericolosi. Ma ancor di più sono sotto accusa i trattamenti che portano il materiale grezzo ad essere utilizzabile in edilizia. Questo perché gran parte dei trattamenti proviene da preparazioni sviluppate per altri usi, ma che sono così efficienti da essere poi utilizzate in ambiti diversi con fette di mercato crescenti. Senza che vi siano troppe preoccupazioni rispetto alle emissioni inquinanti dopo il periodo di applicazione del materiale. Abbiamo notizia di importanti problemi ambientali causati nel passato da produzioni industriali o artigianali come la cromatura dei metalli, che permettono di realizzare manufatti durevoli in cui è limitato lo sviluppo batterico. Le superfici trattate con rivestimenti galvanici sono superfici igieniche perché resistono tenacemente alla colonizzazione di batteri, si puliscono e disinfettano facilmente e restano pulite a lungo. Prodotti che presentano buone proprietà igieniche (e di presunta salubrità) che hanno un processo industriale non propriamente ecologico che richiede complesse tecnologie per limitare gli impatti sull’ambiente (chi non ricorda il film Erin Brockovich - Forte come la verità in cui si racconta un caso di inquinamento da cromo esavalente?).

L’equazione sano = ecologico, piuttosto che ecologico = sano rimane quindi tutta da dimostrare ed è assolutamente possibile che il risultato sia ben diverso dalle aspettative. Fino a oggi gli interessi e le attenzioni di costruttori e committenti si sono orientate prevalentemente al ritorno economico (bassi consumi e quindi bassi costi di gestione), c’è da sperare che nel prossimo futuro il progetto degli edifici cominci a considerare anche la qualità ecologica degli edifici perché la casa (in senso lato) torni ad essere un ambiente sicuro ed accogliente e un po’ meno insostenibile.

YouBuild - DICEMBRE / GENNAIO 2023 105

LA MASSIMA FACILITÀ DI POSA:

PROGETTARE IN TEMPO REALE

Il Cappotto prefabbricato con finitura in mattone faccia a vista

Il sistema Terracoat® assicura una elevata performance termica dell’edificio, oltre a migliorare l’aspetto estetico, grazie ai listelli in terracotta faccia a vista a pasta molle nelle varietà di finiture e colori della gamma SanMarco e Pica.

YouBuild DOSSIER

IMPRESE DI COSTRUZIONE

Lavorare tanto, guadagnare poco. O, perlomeno, non in proporzione a quanto si incassa.

Il Centro Studi YouTrade ha passato ai raggi X i bilanci delle maggiori aziende nel settore delle costruzioni. E ha scoperto tanti aspetti positivi, ma anche altri meno esaltanti

Tanto lavoro POCHI UTILI

100 – IMPRESE DI COSTRUZIONI DOSSIER
TOP
SOLOPER

PERABBONATI

Fatturati in grande crescita per il settore, con le imprese di minori dimensioni che hanno saputo sfruttare il momento positivo legato ai superbonus. Eppure i profitti restano limitati a cura del Centro Studi YouTrade

TOP 100 – IMPRESE DI COSTRUZIONI

CONFRONTO TRA INDICATORI DI PERFORMANCE DELLA TOP 100 DELLE IMPRESE DI COSTRUZIONE PER CLASSI DIMENSIONALI DI FATTURATO

Oltre 500 milioni Da 250 a 500 milioni Da 100 a 250 milioni Da 50 a 100 milioni

Fino a 50 milioni Media Top 100 Media generale di settore

SOLOPERABBONATI

YouBuild - DICEMBRE / GENNAIO 2023 110
Fonte: elaborazione Centro Studi YouTrade su dati camerali

È TUTTA QUESTIONE DI FIDUCIA

Credere che sia possibile, e renderlo possibile. Questa è fiducia.

Operiamo nell’industria del calcestruzzo gettato in opera, offrendo soluzioni integrate e servizi relativi alla tecnologia di casseforme e ponteggi. Il nostro Core business è principalmente basato sul noleggio e sulla vendita dei prodotti

YouBuild - DICEMBRE / GENNAIO 2023 111 marketing@ulmaconstruction.it T. +39 045 723 79 00 www.ulmaconstruction.it | linkedin.com/company/ulma-cye | youtube/constructionulma
CANTIERE WALTHERPARK BOLZANO

SOLOPERABBONATI

CLASSIFICA DELLE PRIME 100 IMPRESE DI COSTRUZIONE EUROPEE (VALORI IN MILIARDI DI EURO) Posizione Ragione sociale FATTURATO MOL 2021 2020 var. % 2021 in % su fatt.

SOLOPERABBONATI

YouBuild - DICEMBRE / GENNAIO 2023 113 UTILE NETTO 2021 in % su fatt.

SOLOPERABBONATI

Posizione Ragione sociale FATTURATO MOL 2021 2020 var. % 2021 in % su fatt.
Fonte: elaborazione Centro Studi YouTrade su dati camerali

SOLOPERABBONATI

YouBuild - DICEMBRE / GENNAIO 2023 115 UTILE NETTO 2021 in % su fatt.

TOP 100 – IMPRESE DI COSTRUZIONI

VARIAZIONI % DEL FATTURATO PER CLASSI DIMENSIONALI DELLE TOP 100 DELLE IMPRESE DI COSTRUZIONE. ANNO 2021 SU 2020

Fonte: elaborazione Centro Studi YouTrade su dati camerali

FATTURATO, MARGINI E UTILI DELLA TOP 100 DELLE IMPRESE DI COSTRUZIONE IN ITALIA PER CLASSI DIMENSIONALI DI FATTURATO (VALORI IN MIGLIAIA DI EURO)

Fonte: elaborazione Centro Studi YouTrade su dati camerali

SOLOPERABBONATI

YouBuild - DICEMBRE / GENNAIO 2023 116
Classe dimensionale di fatturato Numero di imprese Fatturato Mol Utile netto 2021 2020 var% 2021 in % su fatt. 2021 in % su fatt.

NOVITÀ 2023

Granulati Zandobbio presenta i nuovi cataloghi 2023 con tante straordinarie novità per creare degli ambienti esterni unici, estremamente belli e funzionali.

Scarica il catalogo 2023

Scarica il catalogo 2023

YouBuild - DICEMBRE / GENNAIO 2023 117
29,
info@granulati.it www.granulati.it
Granulati Zandobbio
S.p.A. Via Selva
24060 Zandobbio (BG) -

Il grattacielo HA MESSO RADICI

Bjarke Ingels Group e Carlo Ratti

Associati hanno progettato il Capitaspring, un alto edificio che ospita 80 mila piante, un mercato, uffici e zone coltivate a verdura e frutta

MONDO
SINGAPORE SOLOPER

di Gerardo Semprebon Politecnico di Milano

PERABBONATI

Lo sviluppo verticale dei montanti crea delle aperture in facciata da cui si intravvede la vegetazione

SOLOPERABBONATI

Il giardino verticale della Green Oasis visto dalla strada

Il grattacielo riflette il contesto urbano e i colori del cielo. A sinistra, vista a volo d’uccello del grattacielo

ABBONATI

YouBuild - DICEMBRE / GENNAIO 2023 121

SOLOPERABBONATI

YouBuild - DICEMBRE / GENNAIO 2023 122

ABBONATI

In corrispondenza delle Green Oasis, i montanti di facciata si comprimono e dilatano esibendo il giardino verticale

La grande piazza coperta di ingresso. Sopra, l’attacco a terra dell’edificio è definito dal gioco di dilatazioni e compressioni generate dai profili verticali

YouBuild - DICEMBRE / GENNAIO 2023 123

SOLOPER

YouBuild - DICEMBRE / GENNAIO 2023 124 SINGAPORE
Vista interna sui percorsi ricreativi della Green Oasis, dove si trova una sistemazione lussureggiante a verde che include molte essenze locali

PERABBONATI

Vista interna sui percorsi ricreativi della Green Oasis, dove si trova una sistemazione lussureggiante a verde che include molte essenze locali. Sopra, il rooftop garden ospita un orto urbano

LA SCHEDA

Luogo: Singapore

Cliente: CapitaLand Development, CapitaLand Integrated Commercial Trust and Mitsubishi Estate Co.

Progetto: BIG and CRA-Carlo Ratti Associati.

Area: 93.000 metri quadrati

Foto di: Finbarr Fallon

YouBuild - DICEMBRE / GENNAIO 2023 125

Il tetto verde COMPIE 40 ANNI

Il Lucille Halsell Conservatory di San Antonio, in Texas, progettato dall’architetto argentino Emilio Ambasz, resta un esempio di integrazione green

di Pietro Valle, Politecnico di Milano

MONDO
USA
SOLOPERABBONATI

In queste pagine, due suggestive immagini serali del complesso ideato da Emilio Ambasz in Texas. Fotografie di Greg Hursley, courtesy of Emilio Ambasz and Associates

ABBONATI

YouBuild - DICEMBRE / GENNAIO 2023 127

SOLOPERABBONATI

YouBuild - DICEMBRE / GENNAIO 2023 128
Una vista sulla corte interna con laghetto. Fotografie di Greg Hursley, courtesy of Emilio Ambasz and Associates

PERABBONATI

YouBuild - DICEMBRE / GENNAIO 2023 129
Una pianta del sistema di serre che compongono la Lucille Hansell Conservatory. A sinistra, una panoramica dall’alto. Fotografie di Greg Hursley, courtesy of Emilio Ambasz and Associates

Il sistema di volumi geometrici che caratterizzano quest’opera di Ambasz, poggiano su basamenti in cemento armato, che fungono, sotto, anche da porticato e luogo di meditazione.

SOLOPERABBONATI

YouBuild - DICEMBRE / GENNAIO 2023 130 USA
Fotografie di Greg Hursley, courtesy of Emilio Ambasz and Associates

ABBONATI

La cupola troncoconica maggiore vista dalla corte al centro del sistema di spazi botanici. Fotografie di Greg Hursley, courtesy of Emilio Ambasz and Associates

YouBuild - DICEMBRE / GENNAIO 2023 131

Una lama taglia BELO HORIZONTE

L’edificio residenziale Casamirador

Savassi dello studio Gisele Borges

Arquitetura forma una sezione

troncopiramidale che si sviluppa per 60 metri di lunghezza

MONDO
BRASILE
SOLOPER
di Gerardo Semprebon, Politecnico di Milano

PERABBONATI

YouBuild - DICEMBRE / GENNAIO 2023 133
Vista sul lato di ingresso dall’alto. A sinistra, le lamiere di alluminio traforate creano una doppia pelle

Inserimento dell’edificio nel contesto urbano

YouBuild - DICEMBRE / GENNAIO 2023 134 BRASILE
SOLOPER

Assonometria con inserimento nel contesto. Sotto, vista complessiva dell’intervento

PERABBONATI

YouBuild - DICEMBRE / GENNAIO 2023 135

CORTEAA02.5510

Dettaglio sulla pelle esterna in lamiera traforata di alluminio. Sopra, sezione longitudinale

YouBuild - DICEMBRE / GENNAIO 2023 136
SOLOPER

Nell’intercapedine tra tamponamento e rivestimento vengono alloggiati i terminali impiantistici. Sotto, il rivestimento metallico genera giochi di luce e ombra negli ambienti interni

PERABBONATI

LA SCHEDA

Luogo: Belo Horizonte, Brasile

Cliente: Casamirador Incorporações

Progettista: Gisele Borges Arquitetura

Project Manager: Ulisses Mikhail Itokawa

Collaboratori: Helena Hostalácio, Iara Pimenta, Mariana Correa, Manuela Fratezzi, Luiza Menicucci, Gabriela Jacobina e Victor Lamounier.

Strutture: Bedê Consultoria e Projetos

Impianti: Protherm

Acustica: Opus

Serramenti e facciata: Aludesign

Data di completamento: 2021

Info: giseleborges.arq.br

Foto di: Pablo Gomide, Leon Myssior e Juliana Berzoini

YouBuild - DICEMBRE / GENNAIO 2023 137

Cemento e legno COPPIA PERFETTA

YouBuild - DICEMBRE / GENNAIO 2023 138 MONDO
GERMANIA SOLOPER

PERABBONATI

di Riccardo Maria Balzarotti, Politecnico di Milano

Uno schizzo dell’atrio dell’architetto Sergei Tchoban. courtesy ©TchobanVossArchitekten. A sinistra, vista di insieme dell’atrio del Carré, con le scenografiche rampe di scale sospese e la struttura a losanga della copertura in EFTE

YouBuild - DICEMBRE / GENNAIO 2023 139
A Berlino lo studio Tchoban Voss ha realizzato un grande complesso di uffici per il gruppo Vattenfall che ha ottenuto il massimo rating in fatto di sostenibilità

La facciata principale dell’edificio denominato Solitaire, la cui rigida maglia compositiva è rivestita da pannelli in cemento fibrorinforzato di colore chiaro

SOLOPER

Vista notturna dell’edificio denominato Carré che mette in risalto le numerose trasparenze dalle quali, durante il giorno, entra luce naturale in abbondanza

YouBuild - DICEMBRE / GENNAIO 2023 140

Una sezione trasversale, la pianta del piano terra e, in basso a destra, la planimetria dell’intervento

PERABBONATI

YouBuild - DICEMBRE / GENNAIO 2023 141

SOLOPERABBONATI

L’atrio del Carré, con spazi comuni e sedute informali che si snodano attorno ai grandi pilastri arboriformi in legno lamellare

A sinistra, una vista interna di uno degli uffici, dove i dettagli a vista della struttura ibrida e le finestre terra-cielo restituiscono un’immagine decisamente confortevole per uno spazio di lavoro e, a destra, un dettaglio del giunto tra la struttura in legno lamellare di copertura e facciata continua in vetro nella terrazza all’ultimo piano del Carré

ABBONATI

LA SCHEDA

Cliente: SXB / EDGE

Luogo: Suedkreuz, Berlino, Germania

Anno: 2022

Progetto: Tchoban Voss Architekten

Architetto: Sergei Tchoban

Paesaggista: service stages 1-4, hochC

Landschaftsarchitektur, Berlin; service stage 5, granz + zecher architekten GmbH, Berlin

Strutture: Buro Happold GmbH, Berlin; BIT

Buero fuer integrale Tragwerksplanung GmbH, Berlin

Building technology: Buro Happold GmbH, Berlin

Fotografie: © HG ESCH

YouBuild - DICEMBRE / GENNAIO 2023 143
Un dettaglio del sistema di copertura del grande atrio

L’ebanista VA IN BANCA

In Carinzia la sede locale di un istituto di credito valorizza il legno, materiale principe della regione, nel progetto dello Studio

Frediani-Gasser

di Ilaria Bizzo e Stefano Cornacchini

YouBuild - DICEMBRE / GENNAIO 2023 144 MONDO
AUSTRIA
SOLOPER

PERABBONATI

L’angolo svuotato dell’atrio della banca. A sinistra, il portico passante

YouBuild - DICEMBRE / GENNAIO 2023 145

Il portico passante. Sopra, visione d’insieme del lato sud, sullo sfondo la chiesa parrocchiale ed il castello

SOLOPERABBONATI

YouBuild - DICEMBRE / GENNAIO 2023 146 AUSTRIA

ABBONATI

La corte aperta su un lato verso la visione della chiesa e del castello. Sopra, il portico passante che mette in comunicazione gli spazi verdi a sud con quelli a nord

La corte vista dall’interno. A destra, il lungo spazio distributivo posto fra i due corpi paralleli. Sotto, pianta scala 1:200

SOLOPER

YouBuild - DICEMBRE / GENNAIO 2023 148 erdgeschoß m200

PERABBONATI

LA SCHEDA

Cliente: KSPK Karinzia Sparkasse

Progetto: frediani-gasser architettura (Barbara Gasser principal architect, con la consulenza artistica di Gianluca Frediani, con Kerstin Werginz e Oleksii Kysilenko, Sarah Schurian)

Realizzazione: 2021-22

Info: www.frediani.at

Foto: Ferdinand Neumüller

YouBuild - DICEMBRE / GENNAIO 2023 149
ostansicht m200 südansicht m200 nordansicht m200 westansicht m200 Prospetti scala 1:200

L’atelier nel bosco

Immersa tra aceri e abeti nella regione canadese del Quebec, la casa studio di una coppia di creativi accosta spazi abitativi e laboratori in un ambiente non convenzionale

Lei è una scrittrice, lui fotografo e musicista. Dal connubio di queste due menti creative è nato il progetto di Atelier C, una casa-studio nei boschi canadesi che accoglie le tradizionali funzioni dell’abitare a laboratori perfettamente integrati nello spazio. Immerso tra aceri e abeti del Quebec, l’edificio è stato progettato da Nicholas Francoeur assecondando la volontà dei proprietari di avere un tetto a un’unica falda che definisse un volume lineare, semplice, idealmente parte della natura circostante,

all’interno del quale fossero limitate le separazioni nette. Il progettista ha così associato al segno diagonale e geometrico della copertura l’idea di una casa passiva non convenzionale, con dettagli unici. «Dai soffitti a varie altezze ai laboratori di musica e scrittura pensati come spazi aperti, quasi di passaggio, e non come stanze chiuse. Dai continui contrasti di colore e di materiale, alla stanza da bagno con luci teatrali e un’atmosfera cavernosa, come fosse un antro del benessere: tutto in questa casa è pensato per stimolare la creatività, ma anche per dare l’impressione a chi la abita di essere al contempo da solo e in compagnia. C’è un’atmosfera unica», ha commentato Francoeur.

Involucro essenziale

Atelier C presenta una planimetria a «L» e un involucro essenziale: la copertura, ventilata, è rivestita in lamiera grecata mentre la parte sottostante è in pioppo sbiancato. Le facciate sono realizzate in listelli di legno di cedro carbonizzato che avvolgono il volume, ritmato sul fronte nord da strette aperture verticali vetrate che sembrano creare un colonnato contemporaneo e rigoroso. Sul fronte sud, invece, le finestre sono più ampie per consentire l’apporto di luce naturale agli spazi di lavoro. Gli interni, al contrario, sono strutturati in modo fluido e si presentano chiari e luminosi, con la sola eccezione dello spazio cucina, che richiama la cromia dell’involucro.

ARCHITETTURE NEL MONDO
a cura di Veronica Monaco
YouBuild - DICEMBRE / GENNAIO 2023 150
World wide build
LE FACCIATE REALIZZATE IN LISTELLI DI LEGNO DI CEDRO CARBONIZZATO

Cucina

La cucina costituisce il cuore della casa: è progettata come un ampio locale dove sono organizzate basi e colonne, su tre lati, con un’isola centrale dedicata alla preparazione del cibo e alla convivialità.

I pannelli frontali sono in legno laccato scuro, mentre il piano delle diverse aree è realizzato interamente in Lapitec,

nella nuance Nero Antracite finitura Vesuvio e spessore di 12 mm. In questa cucina, firmata Hauteur d’Homme, la pietra sinterizzata è stata lavorata e fresata per collocare il lavabo e grazie alla sua composizione a tutta massa mostra sul bordo la medesima colorazione della superficie, priva di stampe digitali e non porosa.

Progetto: Atelier C

Luogo: Quebec, Canada

Progettista: Nicholas Francoeur

Photocredits: Raphael Thibodeau

GLI INTERNI SI PRESENTANO CHIARI E LUMINOSI, CON LA SOLA ECCEZIONE DELLO SPAZIO CUCINA, CHE RICHIAMA LA CROMIA DELL’INVOLUCRO

Un parigino a New York

Stile industrial-chic ed eleganza per un loft di design nel cuore del quartiere di SoHo, casa-studio di un giovane architetto francese

Gianfranco Ferré Home disegna un ambiente dallo stile industrial-chic nel cuore nell’affascinante quartiere di SoHo, a New York, eletto a residenza da un giovane professionista di Parigi profondamente innamorato della Grande Mela. Elementi tipici di una fabbrica in disuso diventano funzionali al nuovo utilizzo abitativo: lo spazio, caratterizzato dalla quasi totale assenza di divisori, da altezze importanti, da muri di mattoni e grandi vetrate, diventa un ambiente fluido in cui alternare aree pensate per ospitare cocktail party informali, luoghi di riflessione e concentrazione dove focalizzarsi sul lavoro e altri studiati per il massimo relax.

ARCHITETTURE NEL MONDO World
build YouBuild - DICEMBRE / GENNAIO 2023 152
wide
LO SCULTOREO TAVOLO ROCKEFELLER E LE SEDIE HARLEM SCELTE PER LA ZONA PRANZO

Zona giorno

Nell’ambiente luminoso, l’atmosfera industriale è riscaldata dalla palette cromatica composta da tonalità neutre e delicate, nelle sfumature del beige e del marrone. L’accostamento di materiali diversi, i mobili dal design audace, i pezzi vintage creano un mix unico che racconta la personalità del padrone di

casa. Nell’area giorno, valorizzata dal giardino d’inverno fruibile dalle vetrate, campeggiano arredi importanti, dallo stile diversificato, come il divano modulare Seattle posto al centro della scena e le poltrone Kalamaja, in tipico stile Midcentury, a cui si aggiunge la presenza discreta dei tavolini modulari Times Square e della composizione laterale Lowery. La consolle Doppler reinventa stile e funzione di un elemento d’arredo tradizionale ponendosi come elemento divisorio tra il living e il dining, al centro del quale si trova uno scultoreo tavolo da pranzo Rockefeller e delle sedie Harlem dalle linee più leggere e dinamiche. Completa l’area una libreria Fitzroy, in marmo travertino, ottone e vetro fumé.

Zona notte

Una dormeuse dà il benvenuto nella zona notte, dominata dalla presenza del letto Clapton. Il pouf King’s Cross con lavorazione capitonné, posizionato all’estremità del letto, aggiunge un elemento elegante, mentre il lampadario Douglas con sfere in vetro e struttura in ottone bronzato conferisce una nota retrò all’ambiente. A collegare e rendere armoniose le varie aree del loft, intervengono diversi angoli di tranquillità e quiete ricreati grazie all’uso di sedute confortevoli come il daybed della linea Phoenix.

Progetto: loft

Luogo: SoHo, New York

Arredi: Gianfranco Ferré Home (ONIRO Group)

YouBuild - DICEMBRE / GENNAIO 2023 153
L’AMBIENTE LUMINOSO È VALORIZZATO DA UNO SPETTACOLARE GIARDINO D’INVERNO FRUIBILE DA DIVERSE PARTI DELL’APPARTAMENTO

Rurale contemporaneo

Tradizione e modernità si incontrano in una bucolica villa suburbana nel cuore dei Paesi Bassi

conferire all’abitazione un’immagine contemporanea. Molto caratteristico il ripido tetto a falde rivestite da canne palustri, che ha consentito di sfruttare al meglio l’elevata altezza interna del sottotetto.

Piano terra

Un giardino fiorito precede l’ingresso, che si apre a levante, al centro della candida facciata. Il fronte opposto, rivolto verso i campi, si distingue invece per una pregevole muratura in laterizi. Al pian terreno gli

Siamo a Persingen, uno fra i più piccoli villaggi dell’entroterra olandese. Qui, tra boschetti e specchi d’acqua, un’antica fattoria è stata trasformata in una sontuosa residenza in stile rurale, circondata da basse costruzioni in mattoni e legno e una lussureggiante campagna, racchiusa da un’ansa del fiume Waal. I proprietari desideravano un luogo per evadere dalla città, dove trascorrere giornate all’aria aperta e a stretto contatto con la natura. Così è nata questa villa con dependance in cui sono state rielaborate tecniche costruttive tradizionali per

YouBuild - DICEMBRE / GENNAIO 2023 154
ARCHITETTURE NEL MONDO World wide build
IL RIPIDO TETTO A FALDE, RIVESTITO DA CANNE PALUSTRI, HA PERMESSO DI SFRUTTARE AL MEGLIO L’ALTEZZA INTERNA DEL SOTTOTETTO

ambienti sono organizzati per aprirsi verso il paesaggio. Un generoso basamento in pietra grigia distacca l’edificio rispetto al giardino circostante, creando un camminamento perimetrale che culmina nella zona relax all’aperto, posta in diretta relazione con il living grazie ad ampie vetrate a tutta altezza. Per garantire il massimo apporto di luce naturale sono state scelte le finestre verticali Innoview di Fakro, la cui notevole ampiezza permette di rendere invisibile il confine tra esterno e interno, aumentando così la percezione dello spazio. L’accoppiamento fra il telaio in legno e il rivestimento in alluminio e la possibilità di inserire ante scorrevoli conferisce a queste finestre linee pulite capaci di valorizzare l’architettura d’interni e di adattarsi a diversi stili di arredo.

Secondo piano

Anche al piano superiore le camere e il locale polifunzionale sono inondati dalla luce del giorno, che esalta la presenza delle strutture in legno a vista. L’illuminazione del sottotetto è garantita dalle finestre FdyV/U Duet proSky Fakro, che presentano un particolare disegno a doppia anta: il battente inferiore è fisso, mentre quello superiore dispone di un’apertura a bilico (rotazione 160°) con asse di rotazione decentrato, in modo da facilitare l’avvicinamento alla finestra. Questi serramenti offrono anche interessanti prestazioni sia termiche (UW pari a 1,3 W/m2k) che acustiche, il continuo ricambio dell’aria anche con anta chiusa, e la possibilità di installare tende

ombreggianti e oscuranti. Nel caso della villa di Persingen sono stati equipaggiate tende plissettate APF che, grazie al tessuto con struttura a nido d’ape e rivestimento interno in alluminio, creano un piacevole ombreggiamento e contribuiscono a garantire l’isolamento termico della stanza.

Progetto: villa residenziale

Luogo: Persingen, Paesi Bassi

Finestre: Innoview e FDY-V/U Duet proSky, Fakro

YouBuild - DICEMBRE / GENNAIO 2023 155
LA NOTEVOLE AMPIEZZA DELLE FINESTRE PERMETTE DI RENDERE INVISIBILE IL CONFINE TRA ESTERNO E INTERNO

World wide build

Nuova casa per Munch

A Oslo ha aperto il nuovo museo dedicato alle opere dell’artista norvegese: una torre di 60 metri inclinata di 20 gradi verso il lungomare della baia di Bjørvika

Ha 1.100 dipinti, 4.500 disegni e acquerelli, 18 mila grafiche, 6 mila libri, ma anche lettere e altri documenti: questi i numeri del nuovo Munchmuseet,

il Museo Munch, aperto da meno di un anno a Oslo, diventato ormai un punto di riferimento architettonico nello skyline della capitale norvegese. Progettato dallo studio spagnolo di architettura Estudio Herreros, in collaborazione con lo studio norvegese Lpo Arkitekter, il museo è uno dei più grandi al mondo dedicati a un singolo artista e si sviluppa su un totale di 26.300 metri quadrati di superficie distribuiti su 13 piani.

Elegante riverenza

La monumentale struttura si affaccia sul fiordo di Oslo e si presenta come un’alta torre di 60 metri d’altezza inclinata di venti gradi verso il lungomare della baia di Bjørvika: quasi un inchino al meraviglioso scenario naturale che la circonda e alla città che ha accolto il lascito del pittore

YouBuild - DICEMBRE / GENNAIO 2023 156

espressionista noto per l’iconico quadro intitolato L’Urlo. L’edificio è rivestito da pannelli ondulati di alluminio riciclato forato che offrono vari gradi di trasparenza e creano una percezione quasi eterea dell’edificio che reagisce al mutare del clima e delle diverse condizioni di luce. La facciata è stata invece pensata per schermare e riflettere i raggi solari al fine di mantenere una temperatura stabile all’interno delle sale.

Sostenibilità

La sostenibilità ambientale ed energetica ha determinato molte scelte architettoniche. Grazie a una attenta progettazione dell’isolamento termico e di sistemi di recupero del calore e controllo della luce solare è stato possibile evitare grandi sbalzi di temperatura e

usufruire di un fabbisogno energetico ridotto, dimezzando le emissioni di gas serra. Sono state introdotte anche misure per ridurre l’impatto climatico: il nuovo museo è collegato a un sistema di teleriscaldamento e a un sistema di raffreddamento ad acqua di mare, nonché a un sistema di gestione che ottimizza l’uso dell’energia nell’edificio. Inoltre, per incentivare la mobilità sostenibile, non sono stati previsti parcheggi per le auto ma solo stalli per biciclette. La vicinanza a uno dei più grandi snodi del trasporto cittadino rende comoda la visita anche utilizzando i mezzi pubblici. Parte integrante nello sviluppo del concetto di sostenibilità è stato il concept illuminotecnico, curato dalla società di consulenza Multiconsult che ha scelto gli apparecchi L&L Luce&Light per illuminare parte dell’edificio all’interno e all’esterno.

Gli interni

L’ingresso alla torre è anticipato da un corpo basso che accoglie i visitatori e li accompagna in un percorso ascendente,

che passa dallo spazio pubblico coperto e dalla lobby che ospita ristoranti e bar, sale per usi ricreativi, commerciali e culturali alle sale espositive, fino alle terrazze del tetto, offrendo parallelamente la scoperta dell’eredità artistica di Edvard Munch e una visuale con gli strati storici della città di Oslo. Gli ambienti interni sono stati suddivisi in due zone: una parte statica con una struttura in cemento armato studiata per accogliere le opere d’arte con specifiche caratteristiche di luce e umidità, e una zona dinamica nella quale i visitatori si spostano per salire da un piano al successivo e possono godere della vista sulla baia grazie all’ampia facciata vetrata.

Progetto: Munchmuseet (Museo Munch)

Luogo: Oslo

Progettisti: Estudio Herreros, LPO

Arkitekter

Illuminotecnica: Multiconsult

Photocredits Tomasz Majewski, Dag Sandven

YouBuild - DICEMBRE / GENNAIO 2023 157
IL MUSEO MUNCH DI OSLO È IL NUOVO PROTAGONISTA DELLO SKYLINE DELLA CAPITALE NORVEGESE

TERRITORIO & SOCIETÀ Città su misura per i senior

YouBuild - DICEMBRE / GENNAIO 2023 158
Francesco Gastaldi, Università IUAV di Venezia

Le nostre città e gli anziani, un tema forse poco dibattuto rispetto alla valenza che ha o può avere. La progressiva crescita dell’incidenza degli over 65 (23,8% degli italiani) a causa dell’aumento della vita media e la riduzione delle nascite pone questioni di non poco rilievo per gli attori di politiche pubbliche in generale e di questioni urbane in particolare. Il motivo è molto semplice: tutto è stato pensato per una popolazione mediamente più giovane di quella attuale, dal tema della manutenzione e della riqualificazione urbana a interventi più complessi, non si intravvedono segnali di inversione di tendenza in termini di progressivo invecchiamento e il tema dell’adeguamento delle nostre città sarà sempre più pregnante. Non si tratta solo di barriere architettoniche, certo ci sono anche quelle, si tratta di problematiche più eterogenee e allo stesso tempo più complesse che riguardano la fruizione e l’uso di spazi e edifici pubblici (con funzioni e accessi visibili e inequivocabili), mobilità, riconoscibilità di percorsi: segnaletica chiara ed essenziale, materiali, stili, forme e colori delle pavimentazioni e di riferimenti simbolici. Gli edifici storici, come chiese e altre strutture storiche e monumentali, sono di grande importanza e riferimenti simbolici.

Spazi urbani

A livello micro-urbano le città dovrebbero divenire più affidabili rispetto a una popolazione che con il passare degli anni diventa sempre più anziana e si ritrova a vivere in luoghi in cui sono presenti vere e proprie trappole (tombini messi male, verde poco curato, discese ripide, assenza di appoggi, ringhiere e sedute, mattonelle della pavimentazione staccate o rotte o assenti). Le città sono state spesso pensate e concepite per giovani sani adulti e invece dovrebbero essere sempre più adatte per un’utenza ampliata e non ristretta destinata a crescere. Per il momento, nonostante varie iniziative age friendly, non esiste ancora una città totalmente a misura dell’utenza anziana. Bisognerebbe formalizzare indicazioni progettuali per

quanto concerne la segnaletica, le sedute stradali, i bagni pubblici, gli attraversamenti pedonali, la distanza adeguata dei servizi primari e secondari dalle residenze, i marciapiedi, le rampe e le scalinate. La progettazione degli spazi e dei percorsi può influire sulla qualità della vita, i luoghi aperti in cui viviamo e che frequentiamo incidono sulla nostra salute sia fisica e mentale, per favorire l’invecchiamento attivo i luoghi urbani devono adattarsi e cambiare, guardando a piani mirati ad individuare fragilità e carenze esistenti. L’obiettivo che ci si deve porre è di realizzare interventi preventivi che possano ridurre i pericoli di soggetti a rischio, promuovendo orientamenti di vita attivi e agevolando, in parallelo, l’ingresso ai servizi e l’accessibilità del soggetto anziano per garantirne attività sociali.

Spazi inadeguati

Infine, in quali case vivono gli anziani? La risposta alla domanda è facile: in abitazioni che, in misura diversa, sono vecchie, insicure, inadeguate da vari punti di vista (in primis l’accessibilità). Molti senior italiani vivono in alloggi di proprietà che hanno acquisito nel corso della loro vita familiare e lavorativa, talvolta come riscatto di edilizia residenziale pubblica, ma si tratta per lo più di case vecchie (risalenti agli anni del boom edilizio degli anni Sessanta-Settanta o comunque al Novecento) che hanno spesso impianti non a norma in materia di sicurezza, presentano problemi di accessibilità e di manutenzione esterna e interna, elevate fonti di possibili incidenti domestici. Inoltre, ci troviamo spesso di fronte ad appartamenti pensati per la famiglia italiana del Dopoguerra, mentre oggi accolgono anziani che spesso vivono da soli (o assistiti da badanti più o meno stanziali nell’abitazione), le case sono rimaste statiche, ma il nucleo familiare è evoluto e si è modificato, così come gli stili di vita e i consumi (anche abitativi).

Riassumendo, fuori e dentro, negli spazi esterni e interni, ci sarebbe molto da fare. L’adattamento delle nostre città agli anziani è un tema poco discusso nelle sedi politiche e istituzionali rispetto alla sua rilevanza, prima o poi bisognerà recuperare il tempo perduto.

YouBuild - DICEMBRE / GENNAIO 2023 159

Quella sottile idea

Alfredo Varini, direttore tecnico commerciale Bifire. A destra, l’isolante a basso spessore Vacunanex

YouBuild - DICEMBRE / GENNAIO 2023 160 BIFIRE

AMICA DEI PROGETTISTI

Vacunanex è un materiale superisolante che, in 15 millimetri, può ottenere le stesse performance dei soliti pannelli tradizionali dieci volte più spessi. E funziona

Èrecente la notizia della proposta Ue sull’efficientamento energetico degli edifici che, se sarà approvata, prevede interventi di riqualificazione agli edifici più energivori. La direttiva Epbd, che dovrebbe essere varata entro il 13 marzo 2023, indica che entro il 2030 tutti gli edifici di nuova costruzione dovranno raggiungere almeno la classe energetica E e la classe D entro il 2033, per puntare infine fra il 2040 e il 2050 alle emissioni zero. «Abbiamo preso degli impegni di decarbonizzazione per una riduzione delle emissioni del 55% entro il 2030. Siamo

fermi al 24%, ci rimangono otto anni per ridurre le emissioni del restante 31%. È ora di accelerare il passo», afferma Alfredo Varini, direttore tecnico-commerciale di Bifire, azienda specializzata nell’isolamento a basso spessore di pareti e solai. «L’isolamento termico porta un importante beneficio di risparmio energetico che, se combinato con sistemi di riscaldamento efficienti, può arrivare a far risparmiare anche fino al 90% di gas. Oltre al vantaggio economico, se si considerano i costi attuali dell’energia, c’è anche un beneficio molto importante in termini di comfort abitativo», prosegue l’esperto, che YouBuild ha incontrato presso la sede di Desio, in provincia di Monza Brianza.

Domanda. Quali sono le proposte Bifire per l’isolamento termico?

Risposta. Bifire propone Vacunanex, un prodotto superisolante che, con bassi spessori, può ottenere le stesse performance dei materiali tradizionali. I nostri 15 millimetri di spessore equivalgono a 150 millimetri di Eps. Questo rappresenta un importante vantaggio per risolvere diverse situazioni. Per esempio, in un edificio grande parte delle superfici potrà essere isolata con un prodotto tradizionale perché lo spazio lo consente, ma in alcuni punti può essere necessario optare per soluzioni a basso spessore, come nei balconi o le spallette delle finestre. In questi casi un isolante a basso spessore consente di mantenere la vivibilità e la luminosità degli spazi in casa. Inoltre, può essere

Storia DI COPERTINA BIFIRE
Montaggio Supersil per resistenza al fuoco

anche curvato, un vantaggio importante soprattutto nei moderni progetti di architettura.

D. Un tempo gli isolanti a basso spessore erano poco competitivi rispetto ai prodotti tradizionali. Con l’aumento dei costi delle materie prime, questo gap si è assottigliato?

R. Leggermente, ma esiste comunque ancora un forte gap tra le due soluzioni. Il prodotto a basso spessore non può essere considerato economico: ecco perché si utilizza in applicazioni particolari.

D. Quali sono le specificità di Vacunanex rispetto ad altri materiali sul mercato?

R. Produciamo interamente in Italia. Per noi è motivo di vanto ed è il nostro punto di forza più importante. Oltretutto, possiamo realizzare il prodotto su misura per le specifiche necessità del cantiere. Un’altra caratteristica della nostra soluzione è che, essendo sottovuoto, il pannello non si può tagliare, pena una perdita di performance di isolamento, che passerebbe da 4 mW a 19 mW. Per questo va utilizzato su misura, evitando il taglio, in modo da mantenere l’efficienza e rendere l’applicazione molto rapida.

YouBuild - DICEMBRE / GENNAIO 2023 163
Alfredo Varini con il ceo Alberto Abbo (a destra).

D. Dunque, la vostra soluzione è veloce da utilizzare?

R. Assolutamente sì, anche perché a differenza dei sistemi tradizionali non prevede l’utilizzo dei tasselli. Eliminando questo passaggio, si recupera moltissimo tempo.

D. Di solito quanto occorre affinché il prodotto sia realizzato in azienda e poi portato in cantiere?

R. Circa 15 giorni.

D. Come si procede in cantiere?

R. Sul nostro sito internet e sul nostro canale YouTube sono caricate tutte le informazioni e video pratici inerenti la posa in cantiere. Tendenzialmente si comincia a posare il prodotto a partire dalle finestre, con i pannelli standard da 1000x600 millimetri, fino ad arrivare al primo ostacolo o angolo significativo dove è necessario fermarsi. A questo punto si prosegue installare i pezzi più piccoli in modo che il pezzo da tagliare sia molto ridotto, così da non compromettere le proprietà isolanti del materiale.

D. Quali sono le principali tipologie di lavori richiesti?

R. Normalmente l’isolamento dell’abitazione fronte strada, dove non si può andare oltre un certo spessore per evitare ingombri sul marciapiede pubblico. Ci sono, poi, gli interventi sugli edifici storici, dove l’isolamento con prodotti tradizionali potrebbe rappresentare un problema sotto l’aspetto architettonico. Infine, siamo interpellati molto di frequente per risolvere applicazioni di isolamento in quelle parti del fabbricato dove uno spessore elevato può creare difficoltà. C’è anche

YouBuild - DICEMBRE / GENNAIO 2023 164 Storia DI COPERTINA
BIFIRE
Strumentazione per verificare il livello di vuoto

chi ci contatta per realizzare il cappotto interno: in questo caso la questione del minimo ingombro diventa ancora più importante.

D. In percentuale, quanto contano i lavori di cappotto esterno e quanti in interno?

R. Il 95% degli interventi è per cappotti esterni. Anche la legge incentiva lavori non sul singolo appartamento, ma sull’intero edificio.

D. I pannelli possono essere utilizzati anche per le facciate ventilate?

R. Assolutamente sì, anzi è una delle nostre principali applicazioni, poiché in facciata ventilata Vacunanex offre grandissimi vantaggi soprattutto in estate.

D. I pannelli isolanti si possono integrare anche in una struttura metallica?

R. Sì certo. Il sistema applicativo prevede l’inserimento del materiale isolante tra montanti in metallo e una lastra cemento per avere la superficie rasabile, che nel nostro caso si chiama Aquafire.

D. In questo caso qual è lo spessore?

R. Dipende sempre dalle performance isolanti che si vogliono raggiungere. In una città come Milano bastano 15 millimetri di Vacunanex per garantire l’isolamento termico di legge.

D. Questo sistema lascia spazio alla creatività del progettista?

R. Sì, proprio grazie al suo basso spessore consente a progettisti e architetti di realizzare interventi molto innovativi.

D. C’è un lavoro che reputa particolarmente interessante?

R. Abbiamo riqualificato a livello energetico un importante edificio storico di Milano con Vacunanex.

Al di là della salvaguardia della parte architetturale, è stato molto interessante il lavoro tecnico svolto per realizzare il progetto. Dal progetto al lavoro finito ci sono voluti 15 mesi. Senza il nostro prodotto a basso spessore sarebbe stato praticamente impossibile portare a casa il risultato raggiunto.

D. In quali zone d’Italia operate?

R. Abbiamo più di 50 agenti su tutto il territorio italiano, quindi siamo in grado di rispondere in maniera molto rapida a qualsiasi richiesta.

D. Quali vantaggi comporta rivolgersi a Bifire, anche in termini di servizi?

R. Bifire è una azienda italiana sul mercato da anni. Produciamo Vacunanex da circa 15 anni: non siamo nati con il superbonus, ma questo prodotto supertecnologico per noi è storia e gode di un’ampia documentazione certificativa. Quindi, abbiamo tutte le carte in regola per garantire un lavoro di qualità. Inoltre, il nostro ufficio tecnico è a disposizione dei termotecnici per supportarli nell’utilizzare al meglio il nostro prodotto. Siamo in grado addirittura di redigere le certificazioni energetiche, quindi siamo attrezzati per offrire un servizio davvero a 360 gradi.

D. Quali sono i criteri per determinare la qualità del sistema a cappotto?

R. Oltre ad assicurarsi di installare prodotti in grado di offrire le giuste performance, bisogna stare molto attenti alla posa in opera. Sono i dettagli a fare la differenza, e purtroppo una mancanza di attenzione nell’applicazione dell’isolante determina spesso inefficienze e problematiche di muffa o ponti termici.

D. Gli studi di progettazione con cui avete rapporti sono preparati?

YouBuild - DICEMBRE / GENNAIO 2023 165
Supersil Sound

R. Ho trovato molta preparazione e curiosità tra i professionisti. Credo che in Italia si sia raggiunto un buon livello di conoscenza. È anche vero che, avendo un prodotto molto tecnologico, siamo contattati prevalentemente da tecnici già predisposti all’ascolto.

D. Che cosa deve fare il progettista per essere sicuro di rivolgersi a un’impresa che possa veramente realizzare un lavoro a regola d’arte?

R. Prima di tutto deve assicurarsi di mettere a capitolato prodotti certificati, con performance garantite da un ente terzo. Per esempio, il superbonus prevede conducibilità termiche certificate, parametri di ecologicità, una certificazione Ce secondo Eta: questi elementi garantiscono la buona qualità ed efficienza dei prodotti. L’altro elemento da tenere in considerazione è quello di affidarsi a posatori certificati. Ormai esistono numerosi corsi di formazione sugli isolanti che rilasciano anche delle certificazioni, in modo da garantire una installazione adeguata.

D. Che cosa bisogna controllare in cantiere per assicurarsi che il cappotto sia postato a regola d’arte?

R. La posa dell’isolante prima della rasatura. Lo spazio tra un pannello e l’altro deve essere inesistente o, meglio, a spessori sovrapposti. Molto importante è anche il controllo di quei punti particolari in cui le imprese per far prima riempiono con il rasante invece che con l’isolante.

D. Bifire però non si occupa solo di isolamento: quali sono le vostre altre proposte?

R. Abbiamo prodotti antincendio che possono risolvere molti problemi. Si tratta di lastre che proteg-

YouBuild - DICEMBRE / GENNAIO 2023 166 Storia DI COPERTINA BIFIRE
Il pannello Vacunanex a base di silice microporosa nanotecnologica

gono la soletta da eventuali incendi di autovetture. La riqualificazione con le nostre lastre, che hanno solo 12 millimetri di spessore, è molto veloce: basta tassellare la lastra alla soletta e poi rifinire tutto con una stuccatura e una imbiancatura. Questo sistema, molto rapido ed efficiente, porta la soletta fino a una resistenza al fuoco Rei 180.

D. Un altro aspetto riguarda il crescente interesse per l’isolamento acustico. Che cosa proponete per questo settore?

R. La gamma Supersil Sound, con soluzioni certificate per l’isolamento acustico. Questi prodotti sono certificati anche per la resistenza al fuoco, quindi hanno una funzione multipla.

D. Tra i vostri prodotti c’è anche una soluzione specifica per ambienti ad alta umidità. Di che cosa si tratta?

R. Parliamo della lastra Aquafire. Va utilizzata negli ambienti umidi esterni come una normale lastra di cartongesso, ma essendo a base cementizia è in grado di resistere all’acqua e all’umidità. Collegato all’umidità c’è il fenomeno della muffa: il nostro prodotto Bilife Sanus consente di risolvere anche questo problema in soli 12 millimetri di spessore. Dopo aver sanificato la parete interessata dalla muffa, basta incollare il pannello Bilife Sanus e rasare con un nostro rasante speciale, per eliminare definitivamente il problema.

D. L’azienda vanta una competenza molto forte. Come è stata raggiunta?

R. Con il tempo. Bifire è nata 15 anni fa come azienda di trasformazione, ma poi ha concentrato man mano la sua attività sulla produzione. Abbiamo cominciato a investire moltissimo nel laboratorio di ricerca e sviluppo e in strumentazioni per sviluppare le nostre idee, e abbiamo cominciato a produrre in autonomia.

Prima Micro Bifire, un prodotto isolante applicabile con temperature che vanno dai -10 a 1000 gradi, poi il Vacunanex, prodotto isolante sottovuoto per l’edilizia a bassissima conducibilità termica, per proseguire con la lastra Aquafire e Supersil Sound, fino ad arrivare alla nostra ultima novità del sistema a cappotto. Tutta la nostra competenza viene sempre trasferita all’interno dell’azienda alle nuove risorse, in modo da creare una catena di conoscenze permanente che ci permette di dare continuità a tutto il nostro know-how.

D. Quali sono le aspettative per il prossimo futuro?

R. Mi aspetto che il nuovo Governo faccia una legge sui bonus più strutturale e non congiunturale, in modo che le persone abbiano tutto il tempo per realizzare i lavori portando il nostro Paese a un buon livello di performance energetica. L’Europa non ha energia e attualmente la sta pagando a prezzi molto elevati: purtroppo non è una situazione transitoria e mina alla

base la nostra competitività. La Russia già da qualche tempo ha investito nei gasdotti verso la Cina, quindi sostanzialmente ha già cambiato clienti. Ci illudiamo di poter fare pressioni, ma siamo destinati ad avere un costo dell’energia superiore rispetto al passato. Per mantenerci competitivi dobbiamo dunque accelerare sul risparmio energetico, non solo nelle abitazioni, ma anche nelle fabbriche.

YouBuild - DICEMBRE / GENNAIO 2023 167
Le lastre in cemento alleggerito fibrorinforzato Aquafire

NEL MOMENTO SBAGLIATO. FORSE

Sarà perché l’attualità che abbiamo attorno ha già raggiunto, in questi ultimi anni, il limite dell’impossibile e dell’improbabile molte volte, il lavoro quasi manierista e senz’altro maniacale del fotografo e modellista tedesco Frank Kunert sembra ben presentare l’illogicità del presente. Un’assurdità, perché nei suoi scatti non c’è nulla di logico. O meglio, c’è il momento, quello iato insostenibile, che segue per netta conseguenza qualcosa che è andato storto. Qualcosa che è successo, qualcosa che ci ha toccato e ci ha sorpassato. Quando, come e perché non è dato di sapere.

Eppure, la completa normalità anzi il totale understatement che traspare dalle opere dell’artista tedesco ce le rendono prima familiari e poi probabili e solo successivamente inquietanti. Sono attimi sospesi in un divenire che ha creato una distopia che non sappiamo se definire tremenda o benevola. Manca la conclusione. Non si conoscono le premesse. Solo si capisce che qualcosa non è presente come dovrebbe. O più semplicemente è assente. O forse no. Prendete Tappeto Rosso. Chi non vorrebbe scivolare giù per quel tappeto che scende dal portone notabile al primo piano? Ma, aspettate, il tappeto rosso lo si stende per onorare chi arriva, non chi parte. E allora cosa è successo? Sono talmente felici che me ne vada o non mi hanno mai permesso di arrivare? È stata una promessa non mantenuta? Mi sono illuso, come spesso capita. O più semplicemente quel tappeto rosso non è per me. Forse non è per nessuno. È come una spada nella roccia che attende chi riuscirà nell’impresa? Sì, ma quale? Forse è solo un gioco, un gioco per bambini un po’ cresciuti. Quelli che si danno delle arie. Il tappeto li fa scivolare giù con facilità, ce ne libera con leggerezza. Con una bella risata, di quelle che possiamo fare aperte. Franche. Oppure Op Op Cavallino. Dov’è il bambino che dovrebbe usarlo, il piccolo cavaliere pronto per tante avventure? Sì, ma quali? L’arte ossessiva di Kunert è sempre rappresentativa del nostro mondo senza di noi. Proprio non ci siamo: scomparsi o mai esistiti. Ma se non siamo mai esistiti, perché le cose rappresentate in questi modelli accurati raccontano della nostra vita? Non è un non senso? Un’astrazione fatta attraverso il dettaglio quasi parossistico dell’indeterminazione. E poi questo cavallo a dondolo cos’è, davvero? Una macchina terribile che getta i bambini anzi forse li ha già gettati tutti giù, come dalla Rupe Tarpea? Oppure li ha spediti in volo fra le nuvole verso un altro futuro in un altro mondo sconosciuto? Poverini! Eppure, il cielo è azzurro e questo kindergarten non sembrava così male. Ma forse è un’interpretazione errata.

O ancora Letto Alto cosa rappresenta? Un luogo confortevole che mi sospende fuori dall’insulsa realtà di un’in-

sulsa mansarda? Un letto volante che mi sorprende felice e da cui sono caduto? Risvegliato oppure addormentato?

Anche qui non c’è nessuno. Se qualcuno c’è, su questo letto così esposto, non è dato sapere. Che poi, cosa c’è di più intimo del letto? Perché esporsi così tanto? C’è forse dell’esibizionismo oppure chi vive (viveva) qui è un perfetto innocente che non teme di mostrarsi a tutti?

Mamma mia!

Quante cose tutte vere e tutte false, tutte possibili e tutte improbabili si possono inventare e descrivere guardando queste immagini.

Penso che dipenda da come ci si sente interiormente darne una chiave di lettura. In questa ultima raccolta di opere di Kunert chi scrive ci vede, oltre alla grande ironia cui siamo abituati, una grossa dose di disperazione che sconfina con il dolore e probabilmente con l’incapacità di reagire. Tristezza infinita.

Di certo ci resta l’arte di questo tedesco di Francoforte, classe 1963, che costruisce modellini con elementi raccolti e riciclati, meticolosamente realizzati in scala 1:12 o 1:43 e poi fotografati. Scene perfette che raccontano fatti imperfetti o meglio difformemente perfetti, ora raccolti in un volume intitolato Carpe Diem . E questo dovrebbe farvi venire il sospetto che la storia presentata dai testi inseriti nel volume, forse, vi racconteranno qualcosa di diverso da quello che avete letto finora. D’altra parte, nel mondo di Kunert tutto è possibile e anche molto improbabile. Prendere ciò che viene. O no? (Luca MF Fabris)

Frank Kunert - Carpe Diem, testi di Peter Lindhorst ed Eva-Maria von Máriássy, progetto grafico di Marie Mick, Hatjie-Cantz, 2022. Pagine 80, illustrazioni 40, euro 20,00. ISBN 9783775752916

INTERMEZZOINTERMEZZO
YouBuild - DICEMBRE / GENNAIO 2023 168
YouBuild - GIUGNO 2022 169 YouBuild - DICEMBRE / GENNAIO 2023 169
‘Hoppe, Hoppe, Reiter’ (Op Op Cavallino, 2020) © Frank Kunert (courtesy of Hatje-Cantz Publishers)
YouBuild - DICEMBRE / GENNAIO 2023 170 YouBuild - DICEMBRE / GENNAIO 2023 170 INTERMEZZO
‘Hochbett’ (Letto Alto, 2019) © Frank Kunert (courtesy of Hatje-Cantz Publishers)
YouBuild - DICEMBRE / GENNAIO 2023 171 YouBuild - DICEMBRE / GENNAIO 2023 171
‘Der Rote Teppisch’ (Il Tappeto Rosso, 2021) © Frank Kunert (courtesy of Hatje-Cantz Publishers)

YouBuild GLI SPECIALI

Qualcuno ha ancora dei dubbi?

Be', in questo caso significa che non legge i giornali e neppure fa la fatica di scorrere le home page dei principali siti di informazione, YouBuild compreso. Chi si ostina a ignorare che le condizioni meteo sono uno dei fattori che condizionerà la vita sulla Terra non fa solo male all'ambiente, ma prima di tutto a sé stesso, specialmente se lavora nella filiera dell'edilizia. Perché progettare, costruire, riqualificare sono oggi strettamente legati al tema del cambiamento climatico

ARCHITETTURA E CAMBIAMENTO CLIMATICO 174

173
YouBuild - DICEMBRE / GENNAIO 2023

Costruire a prova DI METEO PAZZO

Il riscaldamento globale obbliga a un ripensamento del modo di progettare, oltre che dello stile di vita, a causa delle precipitazioni intense e temperature in aumento

YouBuild - DICEMBRE / GENNAIO 2023 174
EDILIZIA & CLIMA
SPECIALE CAMBIAMENTO CLIMATICO SOLOPERABBONATI
di Federico Della Puppa

PERABBONATI

YouBuild - DICEMBRE / GENNAIO 2023 175

Negli ultimi anni le espressioni per raccontare gli eventi atmosferici estremi, che con sempre maggior frequenza colpiscono il nostro Paese, hanno assunto terminologie che sono ormai entrate nel linguaggio comune, al punto tale che fanno sembrare quasi normali, appunto perché assunti nella quotidianità, fenomeni straordinari o comunque fuori dall’ordine normale delle cose. Si pensi al termine bombe d’acqua, che ha sostituito nell’immaginario collettivo la voce nubifragio. Il climatologo Giampiero Maracchi, in-

SOLOPERABBONATI

YouBuild - DICEMBRE / GENNAIO 2023 176 EDILIZIA & CLIMA

ABBONATI

YouBuild - DICEMBRE / GENNAIO 2023 177

SOLOPER

YouBuild - DICEMBRE / GENNAIO 2023 178 EDILIZIA & CLIMA

PERABBONATI

YouBuild - DICEMBRE / GENNAIO 2023 179

La sostenibilità QUATTRO STAGIONI

grado di coniugare comfort estateinverno e di far risparmiare energia

Negli ultimi mesi non si parla d’altro: la crisi energetica che ha colpito il nostro Paese, con un forte danno a imprese, industrie e famiglie. Questo scenario si riverbera anche nel settore delle costruzioni, dove si prospettano profondi cambiamenti che non solo coinvolgeranno il modo di progettare e costruire dei prossimi anni, ma che renderanno anche evidenti le qualità prestazionali dei materiali utilizzati per l’involucro edilizio per la riduzione dei consumi energetici in riscaldamento e raffrescamento.

YouBuild - DICEMBRE / GENNAIO 2023 180 SPECIALE
L’azienda punta sulla valorizzazione delle qualità prestazionali del laterizio utilizzato per l’involucro, in
IN COLLABORAZIONE CON TERREAL ITALIA
SPECIALE CAMBIAMENTO CLIMATICO

TERRACOTTA PER UN FUTURO GREEN

L’architettura contemporanea si è orientata verso l’utilizzo di materiali sottili, trasparenti, plastici, compositi, dotati di poca massa e, quindi, inadeguati a fermare o attenuare l’onda termica. A macchine energivore posizionate all’interno degli appartamenti è stato poi demandato il compito di raffrescare e riscaldare gli ambienti e creare comfort, ma i costi per farle funzionare non sono più sostenibili. Si rende quindi necessario costruire edifici che dialoghino con l’ambiente circostante, modulando la complessità e l’imprevedibilità del clima, soprattutto nei regimi estivi. Questo obiettivo è raggiungibile sia considerando le proprietà dinamiche dell’involucro edilizio, sia adottando materiali come il laterizio che, grazie alle sue caratteristiche intrinseche quali l’inerzia termica e la massa, si rivela una valida soluzione per le strategie di raffrescamento. Appare quindi evidente come la regolazione termica abbia sempre più importanti ripercussioni sui materiali e sui sistemi costruttivi: una progettazione energeticamente efficiente non può trascurare fattori come il ponte termico ai fini del comfort e benessere abitativo, oltre che del risparmio energetico. Il laterizio risponde a queste tematiche soprattutto per le sue

caratteristiche di permeabilità al vapore e di rapporto costi-benefici ambientali. Solo in questo modo si è in grado di garantire all’ambiente un comfort termo-igrometrico eccellente, che non dipende dagli impianti di climatizzazione ma dalle caratteristiche passive dei materiali.

INERZIA TERMICA

E RISPARMIO ENERGETICO

Edifici costituiti da strutture perimetrali con poca massa termica possono presentare nell’arco della giornata temperature con punte al di fuori della zona comfort, con necessità di riscaldamento nel periodo invernale o di raffrescamento nel periodo estivo. Viceversa, nel caso di edifici massivi la restituzione dell’energia accumulata porta a una maggiore efficienza. In ogni caso la massa inerziale del materiale non solo è una barriera all’ingresso del calore o del freddo ma, con lo sfasamento dell’onda termica, genera situazioni di comfort ambientali pregevoli. Una massa consistente permette di raggiungere valori idonei di trasmittanza, riducendo i consumi energetici per la climatizzazione degli ambienti interni, con il valore aggiunto del comfort termico abitativo. Proprio la massa volumica del laterizio consente,

nel rivestimento dell’involucro.

A sinistra, il borgo completamente passivo Novaplan a Jesolo, progettato dall’architetto Ruggero Baldasso (studio RBA): l’involucro iè realizzato con il sistema Cotto3 di Terreal Italia con mattoni della linea Classico colore Chiaro

YouBuild - DICEMBRE / GENNAIO 2023 181
Villa T a Peschiera del Garda, progettata da Ardielli Fornasa Associati: i mattoni Terreal Italia Classico Chiaro sono utilizzati in maniera continua

infatti, di svolgere la funzione di autentico regolatore delle oscillazioni di temperatura tra esterno e interno nell’arco della giornata. La capacità di trattenere il calore e rilasciarlo gradualmente nel tempo, l’inerzia termica appunto, presenta enormi vantaggi non solo legati al comfort interno, ma anche alla riduzione dei consumi energetici. Una ricerca del Best (Board of European Students of Technology) del Politecnico di Milano ha messo in evidenza come soluzioni di involucro di poca massa comportino consumi invernali ed estivi fino al 30% in più rispetto a soluzioni massive. Questo è il motivo per cui Terreal Italia ha messo a punto sistemi facciata innovativi, con una stratigrafia appositamente studiata per garantire prestazioni termiche altamente performanti.

ISOLAMENTO TERMICO IN INVERNO...

Una tendenza molto diffusa è quella di isolare sempre di più le case per trattenere il calore all’interno dell’abitazione durante l’inverno. Aumentando solo lo spessore dell’isolamento, tuttavia, si rischia di

costruire un involucro completamente slegato dal proprio contesto che non «respira» e nel quale i ricambi d’aria, necessari per evitare i problemi di muffe e di eccessivo accumulo di umidità, devono essere gestiti artificialmente con macchine energivore. Il benessere ambientale risulta quindi fortemente compromesso. Se, invece, si utilizzano pareti stratificate dove mattoni faccia a vista, intercapedine d’aria, isolante e accessori sono abbinati nella giusta misura, si raggiungono eccellenti valori di comfort ambientale e di risparmio energetico. La capacità di una parete di trattenere il calore può essere valutata attraverso due coefficienti: conduttività termica e trasmittanza termica stazionaria.

...E IN ESTATE

Il grafico rappresenta il flusso termico che attraversa una parete massiva in laterizio. La massa del materiale oltre ad attenuare l’ampiezza del flusso all’interno degli ambienti determina uno sfasamento d’onda per cui il calore raggiunge gli ambienti interni con un «ritardo», generando situazioni di comfort. Per esempio, alle ore 12 all’esterno si ha un picco di calore, mentre all’interno dell’ambiente la temperatura ha il picco più basso

Il tema dell’isolamento termico degli edifici viene oggi troppo spesso valutato limitatamente all’isolamento dal freddo e alla necessità di assicurare un riscaldamento adeguato degli ambienti della casa nella stagione invernale. Il cambiamento climatico in atto richiede, invece, di garantire un buon comportamento dell’edificio anche nella stagione estiva. Raffrescare gli edifici in estate, oltre ad essere notevolmente più costoso che riscaldarli in inverno, è spesso causa di blackout. Ecco perché è necessario considerare le caratteristiche dei materiali con i quali costruiamo le pareti. Una parete in laterizio protegge dal caldo e permette di migliorare il comfort abitativo contenendo i costi energetici. La massa del mattone, e di conseguenza la sua inerzia termica, attenua il flusso termico in entrata, in modo che il calore accumulato nelle ore più calde della giornata raggiunga l’interno dell’abitazione durante la sera, quando fa più fresco. Viceversa il fresco accumulato nella notte verrà restituito durante il giorno, quando la temperatura è più alta. Questo ritardo nella trasmissione del calore attraverso la parete si misura con il coefficiente di sfasamento, mentre altri parametri importanti sono il fattore di attenuazione e la trasmittanza termica periodica.

YouBuild - DICEMBRE / GENNAIO 2023 182
IN COLLABORAZIONE CON TERREAL ITALIA
Terreal Italia ha messo a punto sistemi facciata innovativi, con una stratigrafia appositamente studiata per garantire prestazioni termiche altamente performanti
YouBuild - DICEMBRE / GENNAIO 2023 183 La libertà architettonica, l’affidabilità progettuale Torre San Giorgio (CN) - Via Circonvallazione Giolitti, 92 Numero Verde 800 577385 - unimetal@unimetal.net PRODUZIONE & TECNOLOGIA 2 3 4 1 Industrializzazione del cantiere Complete di sanitari, rivestimenti e finiture di alta qualità Impiego in hotel strutture ricettive ospedali, condomini centri commerciali Progettazione e assemblaggio CELLULE
PREFABBRICATE
BAGNO

Il sistema completo CHE TUTELA IL CLIMA

Alla luce del dibattito scientifico sul comportamento dell’anidride carbonica come gas serra e sul bilanciamento dei flussi di materiale, è necessario rivalutare il rilascio e la fissazione della CO2 durante il ciclo di vita di tutti i prodotti per costruzione. Recentemente Xella, specializzata in soluzioni per l’industria dei materiali edili e isolanti, ha condotto e pubblicato una ricerca curata da Hartmut Walther, esperto di mineralogia, geochimica e geologia, oltre a essere responsabile del Centro di Ricerca e Sviluppo del Gruppo. Lo studio analizza e dimostra scientificamente il comportamento del calcestruzzo aerato autoclavato in relazione all’assorbimento dell’anidride carbonica in fase di utilizzo. E, dunque, la sua importanza per la tutela del clima.

IL TEST

Lo studio ha testato e dimostrato, mediante rilevazioni su sezioni di murature di edifici esistenti, che il processo di assorbimento di CO2 avviene in modo omogeneo sull’intero blocco in calcestruzzo aerato autoclavato e dunque in maniera uniforme in tutta la struttura. Inoltre, l’elevata porosità del materiale consente un processo continuo e, contrariamente al calcestruzzo, impedisce la formazione di fronti di carbonatazione che sono associati a una diminuzione dello spazio dei pori e una conseguente sigillatura della struttura. Pertanto, l’assorbimento di CO 2 da parte del calcestruzzo aerato autoclavato non è interrotto prematuramente, ma continua fino a quando l’ossido di calcio attivo non è completamente ri-carbonato, così il materiale non perde nel tempo le sue proprietà. A differenza del calcestruzzo, ciò si ottiene senza degrado della struttura. Il processo di ri-carbonatazione, che si attiva e resta costante durante la fase di utilizzo, riduce quindi l’impronta di carbonio (o Gwp, Global warming potential or power, cioè potenziale di riscaldamento globale) del calcestruzzo aerato autoclavato, con benefici misurabili per l’ambiente.

YouBuild - DICEMBRE / GENNAIO 2023 184
Uno studio scientifico ha dimostrato una esclusiva proprietà del calcestruzzo aerato autoclavato, che assorbe e imprigiona l’anidride carbonica, senza più rilasciarla
XELLA SPECIALE
CLIMATICO
CAMBIAMENTO
di Sara Giusti Il sistema costruttivo Ytong in calcestruzzo aerato autoclavato

PROTEZIONE DEL CLIMA

Il sistema da costruzione Ytong di Xella, costituito da calcestruzzo aerato autoclavato offre dunque un contributo attivo alla riduzione della CO2 presente nell’ambiente durante il corso del suo ciclo di vita in opera. Grazie alla sua natura cristallina, questo materiale è in grado di assorbire e imprigionare anidride carbonica nella sua struttura, fino a 70 chilogrammi per metro cubo, in maniera similare a quanto fa il legno, ma senza rilasciare tali molecole nemmeno a fine vita, dando un originale contributo per contrastare l’effetto serra. Questo meccanismo è originato dalla capacità del calcestruzzo aerato autoclavato di legare la CO2 e fissarla in modo permanente nella sua struttura. Durante il ciclo di vita come materiale da costruzione per edifici, che può durare anche cento anni, il materiale immagazzina grandi quantità di CO2 senza rilasciarla più, e diventa così un potente alleato per la protezione del clima.

STRUTTURA POROSA

Prodotto con materie prime naturali, come sabbia, calce, cemento e acqua, mescolate con un agente aerante, il cal-

Il calcestruzzo aerato autoclavato è un materiale da costruzione leggero realizzato con materie prime naturali, come sabbia, calce, cemento e acqua, mescolate con un agente aerante

DAI MURI AGLI ARCHITRAVI

Il sistema costruttivo Ytong è formato da un’ampia gamma di elementi, dai blocchi per murature portanti e di tamponamento, alle tramezze per le pareti divisorie, gli architravi, le tavelle, gli elementi a U e i pezzi speciali, che costituiscono un sistema completo e funzionale per rispondere a tutte le esigenze costruttive, in tutte le applicazioni.Ytong, altamente sostenibile, duraturo, leggero ed ecologico, contribuisce in maniera determinante alla sostenibilità e all’elevata efficienza energetica degli edifici in cui è utilizzato come componente costruttivo. Inoltre, i blocchi Ytong, impiegati per realizzare pareti perimetrali portanti o di tamponamento, permettono di realizzare edifici isolati, senza l’applicazione di isolamento a cappotto aggiuntivo.

cestruzzo aerato autoclavato è un materiale da costruzione leggero realizzato con inerti dalle dimensioni non superiori alla sabbia e caratterizzato da una struttura cellulare porosa, che si crea attraverso un processo di maturazione, realizzato in autoclave. Proprio questa struttura porosa che contiene aria (cioè calcestruzzo aerato), conferisce al materiale le sue proprietà nel campo dell’isolamento termico, dell’accumulo di calore, dell’insensibilità all’umidità e della resistenza al fuoco (Euroclasse A1, incombustibile).

YouBuild - DICEMBRE / GENNAIO 2023 185

L'ARCHITETTO DIGITALE

PROGETTARE?

UN CINEMA

Tra le novità tecnologiche che possono interessare chi si occupa di costruzione dell’architettura, paradossalmente vi è proprio lo sviluppo delle interfacce virtuali. Rappresentazione virtuale ed edificazione effettiva, infatti, sembrano essere strettamente correlate nel processo di progettazione e di realizzazione di un manufatto in cui svolgere funzioni umane, siano esse di vita domestica, di lavoro, di svago.

Tra le attività che un architetto può svolgere c’è anche quella di scenografo cinematografico, vale a dire di colui che progetta e costruisce set che serviranno come ambientazioni per film. In realtà, per la tipologia stessa di lavoro, la costruzione temporanea di allestimenti che verranno utilizzati per singole sequenze di lungometraggi, non verrebbe richiesta una laurea con relativa abilitazione alla professione. Si pensi a Dante Ferretti, vincitore di numerosi premi per le sue scenografie di produzioni filmiche con la regia di Federico Fellini, Pier Paolo Pasolini, Martin Scorsese, Brian De Palma, solo per citare alcuni dei registi con i quali ha lavorato, o Franco Zeffirelli che, oltre ad essere stato un regista di fama internazionale, ha curato scenografie sia per spettacoli teatrali che cinematografici.

Nuove tecnologie

Lo sviluppo delle tecnologie digitali oggi richiede che un set cinematografico sia progettato e realizzato anche in forma numerica, oltre che analogica. Spesso, infatti, di fianco alle scene reali, costruite sia all’interno di spazi urbani o dentro ambienti architettonici, vengono utilizzate ricostruzioni virtuali che hanno molteplici vantaggi: da un lato permettono un consistente risparmio di materiale e manodopera per la messa in opera del manufatto, che richiede di frequente la predisposizione di un vero e proprio cantiere, dall’altro permette la realizzazione di sequenze particolarmente problematiche che possono prevedere demolizioni e distruzioni di interi quartieri o città, per seguire il plot narrativo previsto dal regista.

Vero è che in passato si faceva largo uso di modelli in scala ridotta, si pensi a Metropolis di Fritz Lang del 1927, a 2001 Odissea nello spazio di Stanley Kubrick del 1968 o a Blade Runner di Ridley Scott del

YouBuild - DICEMBRE / GENNAIO 2023 186
È
Alberto Sdegno, Direttore del Master in Building Information Modeling presso l'Università di Udine

1982, in cui gran parte delle architetture o singoli oggetti presenti erano in cartone o legno che, ripresi con sofisticate telecamere con particolari obiettivi, potevano evitare del tutto la costruzione di costosissime scenografie.

Computer graphic

Film come Il Gladiatore del 2000, sempre di Ridley Scott, in cui il Colosseo romano è riproposto con una puntuale anastilosi digitale, o Avatar del 2009 di James Cameron, girato prevalentemente in una foresta virtualmente ricostruita al computer, ma riproposta nel film con la tecnologia green screen, vale a dire sovrapponendo personaggi in uno spazio reale di colore verde al quale è associata la scena. Gli effetti speciali, da sempre una tecnica ampiamente utilizzata per la produzione di film, si pensi alle prime esperienze di fine Ottocento condotte da Georges Méliès, inventore di stratagemmi filmici di grande impatto emozionale, possono oggi essere sviluppati con software e hardware specifico, rivolto alla elaborazione sofisticata di personaggi, scenografie, oggetti. Non a caso anche la Walt Disney Company ha deciso di orientare i film d’animazione nella direzione della modellazione 3D, mettendo da parte le tecniche tradizionali basate sul disegno di singoli fotogrammi da montare con strumenti da ripresa a passo uno per realizzare la sequenza finale. Con le acquisizioni delle due principali società di computergrafica del settore, Pixar e Lucasfilm, da parte della citata grande holding californiana, avvenute rispettivamente nel 2006 e nel 2012, i cartoon sono diventati di fatto uno dei più sofisticati prodotti del mondo digitale, finalizzati alla produzione di film di animazione. Non bisogna dimenticare che il primo lungometraggio di questo tipo è Toy Story, del 1995, diretto da John Lasseter e realizzato proprio dalla Pixar Animation Studios, in cui i giocattoli si muovevano in maniera così disinvolta e spontanea da sembrare umani.

Modellazione 3D

Viene da chiedersi, allora, come sarebbe avvenuta la costruzione di set tradizionali di grandi produzioni cinematografiche del passato se gli scenografi avessero avuto a disposizione le nuove tecnologie di cui oggi possiamo disporre.

Un utile esercizio formativo, pertanto, può essere quello di ricostruire per via numerica scene e oggetti reali facendo uso di procedure di modellazione che prevedono l’impiego di primitive grafiche avanzate per la realizzazione

virtuale di prototipi. Pensiamo per esempio a Blade Runner, del quale abbiamo già parlato, che in alcune scene prevede la presenza di avveniristiche automobili volanti, chiamati spinner nel film, che atterrano su grattacieli luminosi, dislocati in una Los Angeles del futuro. In questo caso l’attività non è soltanto legata al tema della realizzazione di un modello virtuale, ma anche alla simulazione degli aspetti cromatici e dei materiali dei singoli oggetti in cui avviene la sequenza. A ciò si aggiunge il dinamismo degli stessi nell’ambiente e il movimento della macchina da ripresa che registra l’intera scena. Se pensiamo che di frequente tutto avviene grazie all’impiego di un unico software di produzione digitale, solitamente un programma che consente a un tempo di gestire procedure di modellazione e animazione, ci rendiamo conto di come i costi generali di realizzazione cinematografica potrebbero essere notevolmente compressi rispetto al passato, salvo considerare che raramente un unico utente sia in grado di controllare nella sua interezza un intero prodotto, ma le competenze siano talmente diversificate da avere diversi attori: un esperto di modellazione, un operatore nella gestione del colore, un abile addetto alle luci, un tecnico nella gestione del movimento, oltre ad un cineoperatore, sebbene tutti declinati nella forma prevista dalle competenze digitali.

Simulazione digitale della scena con l’atterraggio dello spinner sulla torre-grattacielo di Blade Runner (elaborazione di Eleonora Gobbo)

Modello 3D della torre-grattacielo di Blade Runner (elaborazione di Eleonora Gobbo)

The Skin

SERVIZIO TECNICO

Ogni lavoro è unico e come tale necessita di una analisi ed una progettazione personalizzata.

MULTI METALLO

Scegli il metallo che più si adatta al tuo lavoro. Una selezione tra naturali e verniciati.

MULTI SISTEMI

The Skin offre diverse tipologie di rivestimenti in funzione alla resa estetica ricercata.

YouBuild - DICEMBRE / GENNAIO 2023 188 XXX
RIVESTIMENTI IN METALLO
www.theskin.systems
Alluminio preverniciato Vestis | Andrew Ramage Design and Drafting | Australia | Foto: Loren Mitchell

YB COME SI FA SOLUZIONI & PROGETTI

In questo numero: L'utilizzo originale del legno lamellare

190 GRUPPO WÜRTH

Il nuovo maxi impianto produttivo dell’azienda

Il

Il lamellare fissato da record

Fondata nel 1967 e parte del Gruppo Würth, Swg Schraubenwerk Gaisbach è uno dei maggiori produttori di viti in Europa, con circa 12 milioni di articoli al giorno. Da un paio d’anni l’azienda è dotata di un nuovo impianto produttivo, progettato dal team HK Architekten di Schwarzach (Austria), che ha studiato per il complesso la copertura a travi reticolari più grande del mondo, realizzata interamente in BauBuche, lamellare brevettato da Pollmeier e realizzato a partire dal legno di faggio attraverso un metodo ultra tecnologico.

LO STABILIMENTO

Con dimensioni di poco meno di 96,50 metri di larghezza e 114 metri di lunghezza, il nuovo capannone è alto circa 12 metri e occupa una superficie di 12.800 metri quadrati. L’area dedicata alla produzione e logistica occupa circa il 70% dello spazio. Un altro 20% ospita l’area per stoccaggio e produzione dei tool necessari alla produzione, il restante spazio è destinato allo stoccaggio delle materie prime e delle vergelle di acciaio. La scelta di realizzare elementi strutturali di grande luce è legata alle esigenze organizzative degli spazi interni. Gli spostamenti logistici e il posizionamento dei macchinari per la produzione delle viti devono godere di massima libertà e non essere vincolati dalla presenza di colonne o pilastri.

L’impianto strutturale è suddiviso in cinque campate di lunghezza pari a circa 18,5 metri. L’orditura della copertura in corrispondenza

di ogni campata presenta una variazione di quota di 5 metri, per favorire una corretta illuminazione e ventilazione naturale. La scelta del legno come materiale strutturale e dei rivestimenti metallici per la facciata rispecchia il campo di attività di Swg Production e gli ambiti di applicazione delle viti prodotte.

LEGNO MICROLAMELLARE

Con la scelta consapevole di costruire in legno si è voluto da un lato dare l’esempio, ma anche sottolineare l’effetto positivo di un materiale da costruzione naturale, ideale per il contrasto ai cambiamenti climatici attraverso l’immagazzinamento di CO2 . Per centrare questo obiettivo la scelta del materiale è ricaduta sul legno microlamellare di faggio BauBuche, che si distingue per la resistenza e consente la realizzazione di elementi strutturali snelli, ma anche estremamente resistenti. Sono stati utilizzati in totale circa 1.800 metri cubi di legname, di cui circa 420 metri cubi di legno BauBuche, con un risparmio di circa 3.600 tonnellate di CO2 rispetto a un metodo di costruzione convenzionale.

FISSAGGI IDONEI

La produzione di componenti strutturali in BauBuche richiede, tuttavia, un know-how avanzato che va al di là dei consueti metodi di costruzione. Due aspetti sono particolarmente importanti: l’impiego di viti da legno e sistemi di fissaggio con specifiche omologazioni. Per

La struttura del tetto è caratterizzata da cambi di quota corrispondenti alle cinque campate dello spazio produttivo, che strutturano visivamente la facciata lunga quasi 97 metri. Una passerella pedonale collega il capannone di produzione al padiglione dei visitatori e zona amministrative (Credit: ©HK Architects)

YouBuild - DICEMBRE / GENNAIO 2023 190 COME SI FA YB
nuovo maxi impianto produttivo dell’azienda, progettato dal team HK Architekten di Schwarzach, ha impiegato piastre metalliche e circa 250 mila viti strutturali per ottimizzare le dimensioni degli elementi

La sezione trasversale (in alto) e la sezione longitudinale (in basso) mostrano la struttura portante composta da diverse tipologie di tralicci. Le travi reticolari principali di luce 40 e 42 metri si estendono sopra lo spazio produttivo (sotto). Le travi reticolari di copertura sono lunghe 18,30 metri (Credit: ©HK Architects)

realizzare i nodi della struttura sono stati quindi scelti idonei fissaggi realizzati dalla stessa azienda Swg, ovvero le viti Würth Assy plus Vg con gambi completamente filettati. L’idoneità all’uso di queste viti in combinazione con BauBuche è garantita dai documenti Eta (Documenti di Valutazione Tecnica Europea). Le viti a tutto filetto Würth Assy per legno autoforanti sono realizzate in speciale acciaio al carbonio temprato o in acciaio inox con rivestimento lubrificante e protezione anticorrosione. Il diametro esterno della filettatura è compreso tra 3 e 14 millimetri, mentre la lunghezza totale delle viti è compresa tra 13 e 1.500 millimetri. Grazie alla loro variabilità dimensionale, hanno trovato larghissimo impiego nel progetto, soprattutto nell’assemblaggio delle travi reticolari principali.

APPOGGIO DA RECORD

Le travi reticolari in BauBuche rappresentano la struttura portante del tetto: travi reticolari principali lunghe 82 metri e alte 3,80 metri in direzione longitudinale con un solo sostegno intermedio e travi reticolari secondarie lunghe 18,30 metri che corrono trasversalmente (Credit: ©HK Architects)

Grazie a soluzioni costruttive non ordinarie e all’impiego di elementi costruttivi in legno ingegnerizzato di latifoglia i progettisti sono riusciti a realizzare travi reticolari con sviluppo di 82 metri con solamente un appoggio centrale ligneo, un record per le strutture in legno. Ulteriori elementi innovativi all’interno del progetto sono i sistemi di connessione: se da un lato il legno BauBuche consente un’organizzazione strutturale con elementi di dimensioni contenute, dall’altra tali componenti necessitano di connessioni altrettanto robuste e rigide. La combinazione di piastre metalliche e un totale di circa 250 mila viti strutturali Würth Assy ha permesso di ottimizzare le dimensioni degli elementi, realizzando giunti snelli, ma con elevate capacità di carico.

YouBuild - DICEMBRE / GENNAIO 2023 191
(Credit: ©HK Architects)

Nodo con connessione “a contatto” sulla trave reticolare principale in corrispondenza dell’unico supporto centrale. L’elemento centrale sagomato con dentellatura riesce a trasferire il carico direttamente dalle diagonali al pilastro (Disegni: SWG Engineering, Foto: SWG Schraubenwerk Gaisbach – Divisione Produzione)

L'utilizzo del BauBuche richiede l'impiego di viti da legno omologate per questo specifico materiale. (Foto: SWG Schraubenwerk Gaisbach – Divisione Produzione)

COLLEGAMENTO INNOVATIVO

Nodo di continuità del corrente inferiore nelle travi reticolari secondarie. L’impiego di viti Würth ASSY® a filetto interamente filettato e rondelle inclinate a 45° è possibile trasferire elevatissime forze di trazione. (Foto: Adolf Würth GmbH & Co. KG)

Un esempio di collegamento con carattere fortemente innovativo è quello tra le aste diagonali e il corrente inferiore della trave in corrispondenza dell’unico punto di appoggio centrale. Osservando le dimensioni delle sezioni trasversali in relazione alla forza che deve essere trasmessa la «sproporzione» risulta chiara: con un pilastro e con correnti superiore e inferiore di sezione pari a 28x32 centimetri e con aste diagonali con un’altezza/larghezza di 24x32 centimetri sembra impensabile che nel nodo concorrano forze di compressione che raggiungono anche valori di 2 Mn, ovvero circa 200 mila chilogrammi. Il pilastro centrale, anch’esso realizzato in BauBuche, è composto da due elementi di dimensioni di 32x28 centimetri e deve sopportare un carico corrispondente di 2,8 Mn (quasi 300 tonnellate). Affinché tali forze possano essere assorbite e trasmesse nel nodo della struttura, gli ingegneri di Swg Engineering hanno sviluppato un sistema di collegamento che sfrutta le sollecitazioni di contatto. Gli ingegneri hanno introdotto un elemento intermedio con funzione di trasmissione diretta delle forze al corrente inferiore grazie a una dentellatura finalizzata ad aumentare la superficie di contatto tra i due elementi.

EFFICIENZA E RICICLO

PROGETTO: nuovo impianto produzione Swg

Schraubenwerk Gaisbach

IMPRESA COSTRUTTRICE: Schlosser Holzbau GmbH, Jagstzell

LEGNO UTILIZZATO: 420 m3 BauBuche, 900 m3 X-Lam e 330 m3 legno lamellare incollato

PROVENIENZA LEGNO: Germania

MQ REALIZZATI: 12,800 m2 (96.50 m x 113.30 m x 12.00 m)

TEMPISTICHE DI REALIZZAZIONE: Ottobre 2018 –Maggio 2020

Per tutti i componenti e per l’intera struttura è stata attribuita grande importanza allo smantellamento e alla separabilità dei materiali in modo che potessero essere utilizzati e riciclati oltre la vita utile dell’edificio. Il concetto energetico alla base del funzionamento dell’impianto è legato al fatto che solo il calore residuo del processo di produzione delle viti dovrebbe essere utilizzato per generare calore per l’edificio. Ciò comporta l’utilizzo di sistemi all’avanguardia con scambiatori di calore ad alta efficienza. Lo spazio principale è raffreddato mediante free cooling a basse temperature (raffrescamento notturno). L’acqua piovana è raccolta in una cisterna e riutilizzata per l’acqua di servizio (acqua non potabile) nel processo produttivo e per i servizi igienici. L’illuminazione naturale ricevuta attraverso le aperture verticali nella particolare geometria della copertura, che allo stesso tempo evitano il riscaldamento solare, riduce il consumo energetico.

YouBuild - DICEMBRE / GENNAIO 2023 192 COME SI FA YB Würth -
Swg

Prenota la nuova edizione 2022

2.214 imprese dell’edilizia ai raggi X

I Bilanci delle Costruzioni edizione 2022, contiene i dati di circa 2.214 aziende. Comprende l’analisi delle imprese di costruzioni, ingegneria, produzione (acciaio e tondino, attrezzature, cemento e calcestruzzo, chimica, climatizzazione, drenaggio e trattamento delle acque, fissaggio, illuminotecnica, impiantistica, isolamento e impermeabilizzazione, laterizi, lattoneria, macchine, piastrelle e rivestimenti, pitture e vernici, prefabbricati, presagomatura, sanitari e arredobagno, serramenti e altre categorie) e della distribuzione di materiali edili, idrotermosanitari, elettrici, dei materiali per trattamento acque e drenaggio, ma anche della Gdo e della Gds del settore brico, ferramenta, materiali edili e per la casa e new entry come i servizi di gestione immobiliare, gli studi di architettura e i general contractor.

COPIA SINGOLA € 30,00

LA RIVISTA è disponibile su www.virginiagambinoeditore.it oppure per info chiama 02 47761275

YouBuild - DICEMBRE / GENNAIO 2023 193 ACQUISTA LA TUA COPIA ONLINE

Più biomassa MENO ANIDRIDE

Con oltre 11 mila metri cubi di prodotti biocompositi per

di CO2

di Veronica Monaco

Circa 850 tonnellate di CO2 sottratte dall’atmosfera, con oltre 11 mila metri cubi di prodotti biocompositi in canapa e calce negli ultimi tre anni. Per la prima volta nell’epoca moderna il settore delle costruzioni, da sempre considerato tra i più impattanti per l’elevato consumo di risorse ed energia, si trasforma in soluzione per le importanti sfide ambientali degli anni a venire. Questi i risultati messi in evidenza dalla Dichiarazione Ambientale di Prodotto (Epd) recentemente ottenuta da Senini, azienda leader nel settore dei pavimenti, blocchi e cordoli, sui prodotti

della linea Tecnocanapa, gamma completa di prodotti brevettati e soluzioni complete per l’involucro in canapa e calce.

CONTRIBUTO POSITIVO

Nel dettaglio sono rispettivamente 44, 104 e 105 i chilogrammi di CO2 catturati e sequestrati rispettivamente da Blocco Ambiente, Bio Beton Jet e Bio Beton Pronto al termine del loro ciclo di vita. Questi valori hanno permesso a Senini di calcolare il contributo positivo per l’ambiente della linea Tecnocanapa, semplicemente moltiplicando le quantità di materiali

194
l’edilizia da canapa e calce, l’azienda bresciana ha sottratto dall’atmosfera circa 850 tonnellate
SENINI COSTRUIRE
Blocco Ambiente della linea Tecnocanapa di Senini. La linea si compone anche di intonaci naturali altamente traspiranti per garantire salubrità agli ambienti

Confezioni di Legante Dolomitico Naturale. Sopra, isolamento a cappotto con Blocco Ambiente

venduti e posati per i rispettivi coefficienti. Realizzati con biocompositi di canapa e calce, i prodotti sono in grado di massimizzare salubrità, risparmio energetico e comfort abitativo e si utilizzano per costruire murature perimetrali isolanti, per isolare tetti, sottotetti e sottofondi, per isolare a cappotto le pareti oltre che per realizzare termointonaci e tramezzi divisori.

FOTOSINTESI

Fino a oggi la possibilità di costruire a livello industriale con materiali a impatto negativo di anidride carbonica era praticamente impossibile. In termini di prestazioni ambientali, invece, la canapa cresce velocemente: in soli quattro mesi un ettaro coltivato produce circa 10 tonnellate di biomassa, e le piante, attraverso il processo della fotosintesi, assorbono anidride carbonica rilasciando ossigeno e immagazzinando carbonio in quantità pari alla produzione di quattro anni di un bosco delle medesime dimensioni. La grande quantità

IL VERDE PER COSTUIRE

Blocco Ambiente. È un biomattone che combina proprietà di isolamento e massa termica. È composto da canapulo, legno di canapa certificata e legante dolomitico naturale, un legante di calce idrata dolomitica. Ha dimensione 20×50 centimetri ed è disponibile negli spessori da 8, 12, 20, 25, 30, 36, 40 centimetri.

Bio Beton 200 Jet. Si tratta di un materiale isolante massiccio che combina proprietà di isolamento e massa termica. È composto da canapulo (truciolato di canapa certificata CenC) e calce naturale, un legante di calce idrata dolomitica e microorganismi probiotici.

Bio Beton. Materiale isolante massiccio composto da canapulo grosso (legno di canapa certificata CenC), legante dolomitico naturale (legante di calce idrata dolomitica) e additivo probiotico (microorganismi simbiotici).

di CO2 atmosferica che la pianta di canapa fissa nel suo legno durante il processo annuale di crescita e sviluppo è in grado di sovracompensare tutte le emissioni delle fasi più energivore del ciclo di vita, con un bilancio a favore dell’ambiente.

YouBuild - DICEMBRE / GENNAIO 2023 195

Domotica da riciclo

I vecchi smartphone obsoleti dispositivi si trasformano in un hub per servizi di home automation e telemedicina.

E centrano gli obiettivi di rispetto per l’ambiente

Domethics

Dare una nuova destinazione d’uso agli smartphone e tablet inutilizzati, trasformandoli in dispositivi di domotica e telemedicina. Questa l’idea di Domethics, la start-up torinese che sviluppa prodotti e servizi innovativi per il mercato Internet of Things. Con un tributo a Olivetti, riconosciuto come uno dei padri della tecnologia e dell’informatica italiana: Adriano è il nome di una delle principali invenzioni dell’azienda torinese, che si inserisce nel filone della circolarità applicata alla smart home. In breve, consiste nel collegare i diversi dispositivi tech inutilizzati a un componente realizzato da Domethics, in grado di trasformarli in un hub a cui è possibile collegarsi anche in remoto per controllare gli

impianti domestici come le luci di casa, il riscaldamento, gli elettrodomestici e i videocitofoni, permettendo una gestione intelligente dei consumi energetici. Ma non solo: tra le possibili applicazioni di Adriano spicca la telemedicina, dunque la cura, da remoto, di persone che hanno bisogno di supporto e assistenza medico-sanitaria.

SOSTENIBILITÀ

Per Domethics, ciascuna attività intrapresa deve sempre avere un impatto positivo in termini di sostenibilità sociale, oltre che ambientale. Per questo Adriano incentiva il riutilizzo dei vecchi smartphone per trasformare la casa in una smart home: al risparmio ambientale in termini di efficientamento e controllo dei consumi energetici, si aggiunge quello prodotto dal riuso dei vecchi dispositivi. Secondo uno studio dell’Unione Europea, allungare la vita di un singolo dispositivo elettronico permette di abbattere significativamente la produzione di anidride carbonica. Oltre diminuire i costi per gli utenti, rendendo accessibile a questa tipologia di device. Infine, la struttura di Adriano è eco-friendly e realizzata in plastica riciclata.

INNOVAZIONE PREMIATA

L’iniziativa di Domethics risponde a sei dei 17 Obiettivi di Sviluppo Sostenibile delle Nazioni Unite (SDGs, Sustainable Developement Goals), in particolare l’obiettivo 7 (energia pulita e accessibile), 8 (lavoro dignitoso e crescita economica), 11 (città e comunità sostenibili), 12 (consumo e produzione responsabili), 13 (agire per il clima) e 15 (la vita sulla terra). Domethics è stata indicata come una delle aziende più innovative presenti all’edizione 2022 del Ces di Las Vegas, il più importante evento tech del mondo, ed è stata premiata con l’Innovation Award Honoree 2022 nella categoria Smart Home.

Start-up
A partire da sinistra: Mirko Bretto, Samuele Rocca e Maurizio Ferrero

Smartphone, computer e YouBuild. Il magazine edito da Virginia Gambino Editore è diventato in breve uno strumento apprezzato dai professionisti della filiera delle costruzioni: architetti, geometri, ingegneri, periti, imprenditori...YouBuild, infatti, non si propone solo di fare genericamente cultura del costruire e del progettare. La rivista, che ha cadenza trimestrale, pubblica informazioni utili, pratiche e aggiornate sul mondo dell’architettura contemporanea e della riqualificazione, ponendo particolare attenzione al risparmio energetico e alla sostenibilità ambientale, ai prodotti innovativi e ai processi produttivi e di cantiere, alla progettazione in dettaglio e all’ingegnerizzazione dell’architettura, all’innovazione e al cambiamento della professione. Sotto la direzione di Luca Maria Francesco Fabris, docente al Politecnico di Milano, un comitato scientifico internazionale è in grado di selezionare le tecnologie, case history e metodologie migliori. Ecco perché l’abbonamento a YouBuild è uno strumento per migliorare il vostro lavoro.

YouBuild - DICEMBRE / GENNAIO 2023 197
YouBuild YB TENDENZE ATTUALITÀDALMONDODELLECOSTRUZIONI 2532 5345N°17 SETTEMBRE2020 alRigenerazioneurbana centrodeilavori ITop100mondiali dellecostruzioni deiLagrandeoccasione superbonus MAPEI CONVEGNOYOUBUILD CLASSIFICHE DELLE CO TRUZIONI 17 ETT EMBRE È possibile sottoscrivere l’abbonamento online al link www.virginiagambinoeditore.it/riviste/ youbuild/ o telefonando al numero +39 02 47761275 1 ANNO 4 numeri € 32,00 anziché € 45,00 ABBONATI ORA CONVIENE! YouBuild YB TENDENZE ATTUALITÀ DELLECOSTRUZIONI N°18-DICEMBRE GENNAIO 2021 Progettiamo insieme con il superbonusISOTEC CONVEGNO YOUBUILD Gli studi top 100 di architettura e ingegneria Le case history sulla rigenerazione CLASSIFICHE Simone YouBuild www.xtinsulation.it Mondavio PesaroUrbino marche COVER-IV GENNAIO.indd YouBuild YB TENDENZE ATTUALITÀ MONDODELLECOSTRUZIONI Poste Italiane Sped. 46/2004, Monte Milano Contiene N°19 MARZO 2021 ilParapettiebalconi designètrasparente ALUVETRO diCostruireaprova terremoto SICUREZZA deiLatop100generalcontractor CLASSIFICHE EddyPescini TENDENZE ATTUALITÀ DAL MONDO DELLE COSTRUZIONI 19 MARZO 2021 29/03/21 12:13 YouBuild YB TENDENZE ATTUALITÀDALMONDO COSTRUZIONI ISSN Italiane 353/2003Monte Le scelte digitali per la nuova architettura SPECIALE BIM Le immagini e le storie della rassegna veneziana BIENNALE Così il superbonus si progetta meglioVIESSMANN 353/ Gambino Editore20 GIUGNO 2021 AL LAVORO CON YOUBUILD 1 anno 4 numeri € 48,00 anziché € 60,00 ABBONATI QUI

Carramba, il parco

È LO SPARTITRAFFICO

Nella cittadina di Los Héroes lo studio Taller Capital ha progettato un lunghissimo (2 chilometri e mezzo) spazio a gradoni tra le corsie per le auto

MESSICO INTORNO
SOLOPERABBONATI

Vista a volo d’uccello del parco lineare. In evidenza la successione di sezioni intervallata dalle ‘cellule programmatiche’ in cui si concentra il programma di funzioni pubbliche

ABBONATI

YouBuild - DICEMBRE / GENNAIO 2023 199
Nella pagina a fianco, vista a volo d’uccello di una sezione del parco lineare

Sezioni trasversali in corrispondenza di una area permeabile piantumata e di uno spazio ludico

SOLOPER

MESSICO

Funzioni e attività che si svolgono nelle diverse ‘cellule programmatiche’ che contraddistinguono il parco

PERABBONATI

Vista di una delle aree permeabili in rilevato rispetto alla sezione stradale caratterizzata da piantumazioni realizzate con specie endemiche e percorsi pedonali di sezione ridotta

YouBuild - DICEMBRE / GENNAIO 2023 201

All’interno dello svolgersi del parco, alcune aree specifiche si aprono a usi collettivi, come ad esempio questo campo da basket

SOLOPERABBONATI

YouBuild - DICEMBRE / GENNAIO 2023 202 MESSICO

PERABBONATI

LA SCHEDA

Progetto: Parque Lineal Héroes de Tecámac

Luogo: Los Heroes Tecamac - Estado de México

Committente: Secretaría de Desarrollo Agrario

Territorial y Urbano. SEDATU

Progetto paesaggio: Loreta Castro Reguera

Mancera, José Pablo Ambrosi Cortés con Lorena Chavez, Catalina Vega, Cesar Hernandez e Melanie Rodriguez

Area: 8.3 ha

Completamento: gennaio 2022

Investimento: 88 M pesos

Calcestruzzi: CEMEX

Costruzione: Inmobiliaria y constructora Gala

Fotografie: Rafael Gamo

YouBuild - DICEMBRE / GENNAIO 2023 203
Vista notturna del parco lineare Planimetria Generale del parco lineare

Cura radicale PER LA FARMACIA

Il progetto di Amaa per un centro polifunzionale a Breda di Piave punta a una architettura essenziale, senza filtri di abbellimento, ma efficace

Il compendio edilizio, in primo piano il fienile in secondo il padiglione

YouBuild - DICEMBRE / GENNAIO 2023 204 ITALIA UNDER 40
TREVISO
di Ilaria Bizzo e Stefano Cornacchini
SOLOPER

PERABBONATI

YouBuild - DICEMBRE / GENNAIO 2023 205
Modello d’insieme. A destra, schizzo di dettaglio della nuova pensilina. Sopra, la piazza elementare

SOLO

Planimetria d’insieme. Sopra, sezione tecnologica fienile/ farmacia e del sistema costruttivo del padiglione: solaio predalles e setti in calcestruzzo armato

YouBuild - DICEMBRE / GENNAIO 2023 206 TREVISO

SOLOPERABBONATI

YouBuild - DICEMBRE / GENNAIO 2023 207
Interno della farmacia

SOLOPER

YouBuild - DICEMBRE / GENNAIO 2023 208 TREVISO

PERABBONATI

LA SCHEDA

Cliente: Fabric 12 Farmacia Agostino

Bruscagnin & C., Breda di Piave (Treviso)

Progetto architettonico: Amaa (Alessandra

Rampazzo e Marcello Galiotto) con Serena

Bolzan eLucia Corti

Realizzazione: Progetto 2020 - Realizzazione 2021-22

Direzione lavori: Gian Luca Perissinotto e Francesco Toson

Strutture: Riccardo Marchetto

Impianti: Studio di Ingegneria Conte

Impresa edile: Edilnova Snc

Impiantista: R.B. Termoidraulica Srl

Info: www.amaa.studio

YouBuild - DICEMBRE / GENNAIO 2023 209
Divisori interni a secco rivestiti in multistrato di okumè

AVVIATO IN ITALIA IL PRIMO PROGETTO ENERGIESPRONG

È stato inaugurato a Corte Franca, in provincia di Brescia, il primo cantiere italiano realizzato con il l’innovativo metodo olandese Energiesprong per riqualificazioni profonde, antisismiche e a energia zero. L’intervento ha riguardato un edificio residenziale costituito da due piani e cinque alloggi, che in pochi giorni è stato trasformato in una performante palazzina nZeb. La maggior parte delle lavorazioni è stata effettuata off-site, preassemblando i vari elementi che solo in un secondo tempo sono stati posati in cantiere. I 18 pannelli prefabbricati che rivestono le facciate dell’edificio sono stati installati al ritmo di uno all’ora, con un tempo di installazione complessivo inferiore ad una settimana di lavoro. Per l’isolamento della parete a cappotto, Rockwool ha fornito il pannello in lana di roccia a doppia densità Frontrock Max Plus, di spessore 12 centimetri,

scelto per le sue qualità prestazionali, antincendio, di durabilità e sostenibilità. La soluzione presentata a Corte Franca è solo il primo risultato di un percorso di innovazione, coordinato da Edera, con la partecipazione di altre 21 imprese impegnate nella realizzazione di prodotti industrializzati per una riqualificazione sempre più produttiva, veloce ed efficiente e quindi più economica e meno dipendente dagli incentivi. energiesprong.it

ECOPIAZZE: COSÌ

GLI INERTI DIVENTANO

ARREDI URBANI

ORIGINI: LA NUOVA COLLEZIONE GESSI

Origini offre l’ispirazione e la libertà di disegnare il bagno secondo la personalità di chi lo vive. Gessi traduce i caratteri in colori e presenta cinque triadi associate ad altrettante personalità. Per esempio, Accent definisce il ritratto cromatico di chi è estroverso e anticonformista giocando sull’accostamento di ocra lucido, nero opaco e ottone spazzolato. L’originale forma dell’erogatore e l’arricchimento del colore portano un

nuovo linguaggio a bordo vasca e nei lavabi da due/tre fori da banco per offrire la massima libertà espressiva. E per un total look del bagno, il lavabo in Cristalplant dall’effetto soft touch riprende la forma archetipa circolare della collezione in un contesto minimal. Ad arricchire la collezione gli altri quattro colori iconici: rosa cipria, argilla greige, ocra, mattone coral e verde agave.

gessi.com

Ricoeso, la start up del riciclo che trasforma i rifiuti inerti in arredi di ecodesign, presenta EcoPiazze, progetti di arredo urbano modulari prodotti al 100% dal riciclo di rifiuti inerti provenienti dai cantieri edili e certificati CE. Studiati per paesi e città che intendono trasformare le proprie piazze in agorà sostenibili, i prodotti Ricoeso sono in grado di adattarsi alle differenti dimensioni dei singoli spazi (da 50 a 110 metri quadri e oltre). Nelle EcoPiazze trovano collocazione diverse tipologie di arredi: panchine, lampioni, fontanelle, portabici, staccionate, vasi, cestini, apparecchi di illuminazione per percorsi pedonali e giardini, pavimentazioni e marciapiedi, blocchi per la realizzazione di pareti armate. È prevista anche l’integrazione di altri arredi in grado di completare e rendere più funzionali e tecnologici gli spazi pubblici, come ad esempio colonnine per la ricarica elettrica, ecocompattatori, aree giochi per bambini con pavimentazioni in plastica riciclata e orti urbani. Con il supporto di Ricoeso e del suo team di ingegneri, architetti ed esperti progettisti di urbanistica ed edilizia privata, le amministrazioni comunali possono ridisegnare i propri centri di aggregazione in modo sicuro, green e intelligente, senza tralasciare stile e design. ricoeso.it

YouBuild - DICEMBRE / GENNAIO 2023 210
a cura di Veronica Monaco

WALLPEPPER/GROUP AL SERVIZIO DEL PROGETTISTA

WallPepper/Group offre un servizio esclusivo e personalizzato a tutti i professionisti che operano nel settore della decorazione d’interni: uno staff tecnico e grafico è costantemente a disposizione per supportare i progettisti in ogni fase del lavoro, dall’ideazione del progetto al suggerimento del materiale più adatto alla realizzazione, dalle ambientazioni digitali alle anteprime di taglio su misura, alla produzione, realizzata completamente all’interno dell’headquarter milanese. Oltre alle centinaia di grafiche presenti a catalogo, tutte personalizzabili nel colore, è possibile creare immagini interamente custom, per soddisfare le specifiche esigenze decorative di un progetto. Le carte da parati sono prodotte esclusivamente su misura, adattando ciascun soggetto alle dimensioni della parete da vestire

e possono essere stampate su vari materiali per applicazioni indoor e outdoor, per spazi soggetti a umidità, per ambienti che richiedono supporti decorativi con caratteristiche fonoisolanti e di fonoassorbenza o luoghi che necessitano di soluzioni antibatteriche.

wallpeppergroup.com

ELEMENTI D’ARREDO COME ARCHITETTURA CONTEMPORANEA

Il Sistema Wallover di Caccaro interpreta e arricchisce le pareti domestiche trasformandole in opere contenitive dal taglio architetturale. I suoi moduli, orizzontali e verticali, aperti e chiusi, si compongono liberamente per creare infinite interpretazioni dello spazio. Disponibili

a tutta altezza o su misura, i pilastri possono essere anche bifacciali e installabili a centro stanza. Le pareti attrezzate con televisori comprendono elementi di design che possono nascondere con eleganza gli impianti tecnologici. Tutti i pannelli in particelle di legno sono certificati Carb2 per il

minimo il contenuto di formaldeide e i cicli di verniciatura sono quasi esclusivamente ad acqua. caccaro.com

YouBuild - DICEMBRE / GENNAIO 2023 211

&eventi notizie

OPEN CALL PER LA Milano Arch Week 2023

Triennale Milano e Politecnico di Milano lanciano una open call per la Milano Arch Week 2023 volta a raccogliere proposte di iniziative e idee per mettere in rete le diverse realtà attive sul territorio, fino a toccare i quartieri più esterni o meno battuti, collaborando con istituzioni, associazioni e realtà locali, studi di progettazione, professionisti, cooperative, ricercatori, artisti, gruppi studenteschi e cittadini. Le riflessioni che si vogliono attivare nel corso dell’edizione 2023 di Milano Arch Week ruoteranno attorno a tre nuclei tematici: nuove

strategie per l’abitare, mappe e atlanti, infrastrutture sociali. Le proposte dovranno avere attinenza con i temi di Waiting for Peripheries e potranno essere presentate attraverso diverse forme: dibattiti, presentazioni di libri, progetti realizzati e non, laboratori e workshop, attività all’aperto, itinerari di visita, passeggiate, concerti, spettacoli. La scadenza per la presentazione delle proposte è il 31 gennaio 2023. Il bando di partecipazione è disponibile sul sito di Triennale Milano e sul sito di Milano Arch Week. triennale.org

UNO SPAZIO PER LA progettazione contract

Ha aperto, in via Cavallotti 15 a Milano, Contract Atelier, un innovativo spazio per il contract in partnership con AEG, Eco Contract, Gessi, Inda, Kaldewei, LG, Molteni&C, Nemo, Valli&Valli e Viva Porte. Progettato da Studio Klass il nuovo showroom si propone come un laboratorio di design in cui mostrare la complementarità dell’offerta tra i vari marchi nella realizzazione di un progetto personalizzato e chiavi in mano. Il prodotto è quasi assente in favore di ampie materioteche che espongono finiture, strumenti e dettagli di prodotto. I campionari o le soluzioni finite delle varie aziende rimangono celate dietro ampie librerie a scomparsa o eleganti cabine armadio. All’ingresso un maxischermo multimediale e interattivo, grazie alla tecnologia di realtà aumentata, permette di mostrare ambienti già realizzati o spazi in fase di realizzazione con accurata attendibilità

contractatelier.com

212 YouBuild - DICEMBRE / GENNAIO 2023

NUOVO SERVIZIO DI CROMOLOGY DI termografia a infrarossi

Cromology mette a disposizione un nuovo servizio di analisi termografica svolta da un tecnico interno che ha conseguito la certificazione di secondo Livello secondo la norma Uni En Iso 9712:2012. Oltre ad effettuare l’indagine termografica, l’operatore è anche qualificato a commentare i dati rilevati e firmare i report di analisi in conformità con la Uni En 16714:2016. Questo nuovo servizio va a completare le competenze

professionali del team di Assistenza Tecnica Prodotto che è in grado di offrire analisi tecniche sempre più accurate elaborando relazioni tecniche, analisi termografiche e relativi report secondo Uni En Iso 9712. A seguito di tutte le valutazioni preliminari, i tecnici di zona potranno quindi proporre soluzioni tecniche e cicli sempre più focalizzati sulle specifiche necessità di cantiere. settef.it

FLORIM VINCE IL CONCORSO La Fabbrica nel paesaggio

Florim ha vinto la tredicesima edizione de La Fabbrica nel paesaggio, il concorso internazionale di progettazione urbanistica e riqualificazione paesaggistica promosso dalla Federazione Italiana dei Club Unesco, grazie a una «fabbrica di ultima generazione che ha raccolto e vinto, in una difficile contingenza, la sfida della transizione ecologica, limitando fortemente l’impatto con il paesaggio, nel rispetto delle matrici ambientali, secondo i canoni dello sviluppo sostenibile». Nato nel 2010, il premio negli anni ha selezionato e valorizzato recuperi, interventi, restauri affini agli ideali di sostenibilità e tutela Unesco. Nel dettaglio è stata esaminata la

qualità dell’intervento rapportata al suo inserimento nel paesaggio naturale, storico e culturale, la qualità estetica dell’intervento, la valutazione delle tecnologie, la provenienza e la qualità dei materiali e l’impatto ambientale. «Crediamo che l’attenzione alle persone si esprima anche attraverso la cura dei luoghi di lavoro e l’impatto sul territorio. Dall’Italia agli Usa, passando per i flagship aperti nelle più importanti capitali mondiali, Florim pone sempre grande cura nella progettazione dei propri spazi, per renderli belli da vedere, da vivere e tenendo in grande considerazione l’impatto ambientale», afferma Claudio Lucchese, presidente Florim. florim.com

CORTEXA: NUOVO CORSO ONLINE sul cappotto di qualità

Per preparare progettisti, imprese e installatori ad affrontare un mercato che richiede sempre più attenzione all’efficacia ed efficienza degli interventi, Cortexa avvia un nuovo percorso formativo online on demand, a titolo completamente gratuito, dedicato alla progettazione, posa e manutenzione del sistema a cappotto di qualità. Il percorso si articola su quattro moduli: progettazione generale, progettazione dei dettagli, corretta posa e manutenzione del sistema a cappotto. Il corso affronterà anche esempi pratici e strumenti operativi utili agli operatori della filiera. cortexa.it

YouBuild - DICEMBRE / GENNAIO 2023 213

ARCHILEGGERE

TI MBER BUILDINGS S-M-L

Li ngua Inglese/Tedesco

Ed itore Edition Detail

An no 2022

Pa gine 354

ISBN 9783955535872

Pr ezzo di copertina 69,90 euro

Il legno è di grande successo in questi ultimi dieci anni, coniugando grazie alle migliorate o a nuove tecnologie che ne hanno reinventato e potenziato le modalità d’uso, pensiamo ai pannelli portanti in cross-lamitated timber (CLS), i sistemi trave-pilastro in legno lamellare (GLT), ai pannelli di finitura in OSB, le sue innegabili doti in fatto di sostenibilità (il suo ciclo di vita è davvero circolare) e di performance a livello di efficienza energetica. In questo volume curato da Sandra Hofmeister, il direttore di Detail, troviamo 30 progetti realizzati con tecnologie costruttive lignee dalla piccola alla grande scala. Per ciascuno un’analisi critica e descrittiva unita a illustrazioni e a disegni dettagliati in scala che permettono di leggere il progetto in tutte le sue componenti. Nella carrellata, che copre il periodo 2016-2022, sono presenti realizzazioni molto diverse fra loro, non solo per dimensione e destinazione d’uso, ma anche per forma e tipologia strutturale a dimostrazione che siamo di fronte ad una piccola rivoluzione che ha ancora molto da raccontare e sviluppare. La raccolta, che si avvale di un’appendice analitica con tutte le informazioni su ciascun progetto e con riferimenti utili ad approfondirne la conoscenza in rete, dimostra come l’architettura contemporanea in legno si stia facendo strada non solo nei paesi nordici o alpini, ma stia diventando un’abitudine anche in metropoli come Parigi o Berlino oppure in Cina come in Italia. Fra tutti i progetti presentati, dall’innegabile qualità funzionale ed estetica, sottolineiamo la casa in Carinzia di morpho-logic, un edificio multipiano residenziale a Oslo di Alliance Architecture Studio, gli edifici terziari Luisenblock di Sauberbruch Hutton a Berlino e quello a Ferrara di Mario Cucinella. Mentre gli austriaci Marte.Marte, noti per i loro interventi massivi in cemento, dimostrano come si possa rimanere fedeli alle proprie scelte linguistiche col Centro per il Riciclo di Feldkirch.

CARLO SCARPA

LA ARQUITECTURA DE LOS SENTIDOS; MATICES Y SIGNIFICADOS

Andrés Ros Campos

Li ngua Spagnolo

Ed itore Diseño Editorial

An no 2022

Pa gine 120

ISBN 9781643606644

Pr ezzo di copertina 14,50 euro

C’ è un’unica certezza. Carlo Scarpa è il progettista italiano più noto sull’orbe terraqueo. Provate a parlare con qualunque architetto, studente d’architettura o, più semplicemente, con un appassionato di architettura in qualunque luogo nel mondo e tutti ve lo citeranno. Il disegno di Scarpa è unico e, anche se incredibilmente tecnico e perfezionista, dialoga costantemente con l’estetica, la materia, il luogo: diventa arte e, forse proprio per questo, diventa facilmente leggibile e così riconoscibile da tutti senza però scendere mai a compromessi. È conosciuto, ma non popolare. È alto, ma non elitario. Andrés Ros Campos, docente presso l’Universidad Cardenal Herrera di Valencia, è uno studioso entusiasta di Scarpa, al quale ha dedicato la sua ricerca dottorale. Quello che propone in questo saggio è interessante in quanto presenta una lettura nuova ed efficace dell’architettura di Scarpa, che nasce, si manifesta e si comprende attraverso i sensi. Ros Campos, che ha avuto modo di accedere ai vari fondi che raccolgono i disegni di progetto di Scarpa, li legge e li interpreta attraverso alcune parole chiave (astrazione, frammentazione, dicotomia) e l’accostamento di queste a frasi dello stesso Scarpa e ad altre riprese da teorici e critici dell’architettura contemporanea italiani (Tafuri e Dal Co, tra gli altri) e spagnoli quali Moneo e Solà-Morales (e questo per il lettore italiano è molto interessante). L’interpretazione dei vari progetti di Scarpa, presentati da Ros Campos anche con ridisegni quasi astratti che ne sottolineano ritmicità e composizione, avviene con le lenti del post-liberty, del neoplasticismo, del razionalismo e del movimento moderno. Tutti elementi diversi che, come scrive Ros Campos convivono e mutano in Scarpa, perché erano movimenti del suo tempo, che il grande architetto ha integrato in un linguaggio proprio

214
Sandra Hofmeister (Ed.)

ELEMENTARISMO MODERNO

RA DICI E RISONANZE NELL’ARCHITETTURA

DI TAMASSOCIATI

Francesca Serrazanetti

Li ngua Italiano

Ed itore Electa

An no 2022

Pa gine 128

ISBN 9788892823129

Pr ezzo di copertina 20,00 euro

Intrigante non poco questa monografia scritta da Francesca Serrazanetti, docente al Politecnico di Milano di Caratteri Tipologici dell’Architettura e redattrice della rivista Casabella, per accompagnarci nel mondo architettonico di TAMassociati, ovvero lo studio veneziano fondato da Raul Pantaleo, Simone Sfriso, Massimo Lepore nel 1996 dopo la bella esperienza di Utopica (associazione e rivista d’ambito europeo, dal 1986). Noti per proporre un’architettura responsabile e intelligente (d’altra parte lo slogan dello studio è «taking care in architecture»), qui, attraverso il lavoro testuale dell’autrice, si raccontano molto apertamente tracciando un filo possente tra il loro modo di intendere la progettazione e una certa e bella storia dell’architettura italiana che parte dal lavoro fatto da Pagano nell’interpretare l’architettura rurale come concretizzazione del sapere elementare. Un sapere non semplice da reinterpretare. Serrazanetti propone un saggio suddiviso in due parti che, lo si capisce subito, sono indivisibili perché rappresentano due facce della stessa medaglia. Da una parte le radici culturali da cui lo spirito di TAMassociati ha attinto la forza e con cui ha delineato la rotta che, come suggerisce l’autrice, conduce ad un atlante, un susseguirsi di progetti che parlano di modernità e di sostenibilità attraverso lo sviluppo di una dimensione commisurata e responsabile che rivendica un’estetica contemporanea da cui traspare l’eco della storia, la storia spesso non scritta, ma che comunque ci appartiene. Il tutto viene descritto come fosse (probabilmente lo è) una nuova tendenza (come dice bene Serrazanetti, oggi non si può più parlare di teoria) definibile come Elementarismo. E quindi se da una parte abbiamo una serie di parole chiave, dall’altra abbiamo opere di impegno, partecipazione e sperimentazione.

Alpine Industrial Landscapes

Towards a New Approach for Brownfield Redevelopment in Mountain Regions

ALPINE INDUSTRIAL LA NDSCAPES

TOWARDS A NEW APPROACH FOR BROWNFIELD REDEVELOPMENT IN MOUNTAIN REGIONS

Marcello Modica

Li ngua Inglese

Ed itore Springer

An no 2022

Pa gine 420

ISBN 9783658376802

Pr ezzo di copertina Open Access

Sono decenni che parliamo di aree dismesse industriali, ma c’è ancora molto da dire. Perché mentre è facile identificare questi vuoti in un tessuto urbano consolidato, grande o piccolo che sia, e si sono messe in atto molte buone pratiche oramai consolidate, di solito ci sfugge la dimensione del problema quando investe realtà territoriali diverse dalle città. Marcello Modica, ricercatore dell’Università di Udine, ci sottopone il problema della dismissione nelle Alpi, dove è in corso una trasformazione strutturale importante e complessa. Modica, in questo testo che è una rielaborazione della sua tesi di dottorato presso la Technische Universität di Monaco di Baviera, propone di riconsiderare le aree dismesse alpine come infrastrutture territoriali da enfatizzare in quanto già fisicamente integrate all’interno di una vera e propria struttura paesaggistica, invece di concentrarsi esclusivamente sul problema legato alla loro disconnessione dal contesto. La trasformazione fisica e funzionale di queste aree rappresenta, per molte comunità montane, un’opportunità unica per migliorare le proprie condizioni socioeconomiche e ambientali sia a livello locale sia regionale. Modica suggerisce un approccio olistico al paesaggio, che integra strutturalismo e progettazione sistemica per la trasformazione delle aree dismesse, che da ipotesi si trasforma in modello operativo, testato su quattro casi studio altamente rappresentativi delle diverse tipologie di siti e contesti riscontrabili nella regione alpina e collocati in Austria, Francia, Italia e Svizzera. Una strategia che nasce da un intenso lavoro sul campo unito a mappatura e progettazione da remoto e che promuove un nuovo approccio paesaggistico grazie a una trasformazione inclusiva, incrementale e flessibile.

215
di Luca MF Fabris Politecnico di Milano
Marcello
Modica RaumFragen: Stadt – Region
Landschaft

Professione Architetto

La trappola del Codice contratti

Con la legge delega 78/2022 dello scorso maggio, il Parlamento ha indicato al Governo di varare il nuovo codice in materia di contratti pubblici entro sei mesi dalla sua pubblicazione e, quindi, entro la fine dell’anno. La commissione costituita ad hoc dal Governo presso il Consiglio di Stato ha rilasciato uno schema preliminare del documento lo scorso 20 ottobre, una bozza che ha destato lo sconcerto e le reazioni del mondo professionale.

Sebbene si tratti di una versione provvisoria, il nuovo testo, principalmente orientato al principio del risultato, come si temeva, conferma e fa proprie tutte le procedure di semplificazione in deroga al decreto legislativo 50/2016 che abbiamo visto susseguirsi per i progetti del Pnrr, guidati dall’impulso di spesa in termini quantitativi più che dalla ricerca della qualità dell’opera (citiamo a riguardo anche la recente esperienza del concorso Futura per la costruzione di 212 scuole innovative, che mostra tutte le criticità dovute ad una procedura con tempi troppo ristretti, unicamente pensati per rispondere alle scadenze, e criteri qualitativi non troppo ponderati).

Pare del tutto scomparso il principio di centralità del progetto che, anche grazie al contributo della Rete delle Professioni tecniche, ha trovato spazio nel Codice attuale e tale assenza viene sistematicamente perseguita attraverso la riduzione dei livelli di progettazione (Progetto di Fattibilità Tecnica ed Economica e Progetto Esecutivo) con la reintroduzione dell’appalto integrato, prima utilizzabile solo per specifici interventi, e ridimensionando lo strumento

del concorso di progettazione. Limitando quindi le competizioni a due gradi a casi eccezionali, in favore di quelle a unica fase, ma con un livello di approfondimento degli elaborati e delle indagini, che preclude di fatto un’ampia partecipazione, soprattutto di quei soggetti che hanno difficoltà ad investire risorse (economiche e di personale). Tale preoccupazione è confermata anche dal fatto che non sia più possibile rispondere ai requisiti economico-finanziari a valle dei concorsi, un’opzione che ha garantito ai giovani (e non solo) professionisti l’accesso ai lavori pubblici solo grazie al proprio proprio talento.

Va poi rilevato che la scelta del concorso a unica fase non determinerà automaticamente l’attesa riduzione dei tempi: il numero degli elaborati e la loro complessità (il concorso dovrebbe avere un approfondimento sufficiente alla richiesta dei pareri, ciò che oggi avviene nel progetto definitivo), comporterà maggiori difficoltà per le commissioni giudicatrici. È scomparso infine l’obbligo, per le stazioni appaltanti, di calcolare l’importo dei corrispettivi secondo il cosiddetto decreto parametri, fatto che, insieme alla nuova spinta agli incarichi fiduciari, non lascia ben sperare.

In sintesi, pur con il carattere provvisorio del testo, di cui non si conoscono neppure gli allegati (che renderanno lo strumento immediatamente attuativo), assistiamo alla rimozione di tutte quelle iniziative, introdotte quasi 30 anni fa con la Legge Merloni per porre rimedio ai fenomeni corruttivi di cui abbiamo ancora memoria, che nel tempo iniziavano a migliorare anche la qualità delle opere.

216 YouBuild - DICEMBRE / GENNAIO 2023
Pare del tutto scomparso il principio di centralità del progetto
Ordine degli architetti

IL SISTEMA CAPPOTTO FIRMATO KNAUF

Il sistema di isolamento Cappotto Termico Knauf è l’ideale sia per realizzare nuovi edifici a basso consumo energetico che per l’efficientamento di immobili già esistenti, garantendo vantaggi sotto vari punti di vista:

• RISPARMIO ENERGETICO FINO AL 30%;

• CLIMA PERFETTO IN OGNI STAGIONE;

• CRESCITA DEL VALORE DELL’IMMOBILE;

• PARTNER PERFETTO PER IL SUPERBONUS 110%.

POLIZZA ASSICURATIVA KNAUF

Le soluzioni Wall-Plus possono avvalersi, su esplicita richiesta preventiva, di una specifica polizza assicurativa Rimpiazzo Opere Postuma Decennale, che Knauf ha studiato e messo in atto in collaborazione con una primaria Compagnia di assicurazioni.

Scopri di più sul Cappotto termico visitando il sito: www.knauf.it

Sistemi Evoluti per l'Edilizia, Knauf.

PROTEZIONE RADICI MITIGAZIONE IDRAULICA ALTA CAPACITÁ DI CARICO

Con Rootbox Innovazione, Sostenibilità e Funzionalità trovano una perfetta sintesi.

Il sistema, in polipropilene rigenerato, è composto da due elementi a struttura troncopiramidale che, una volta assemblati, formano un vuoto tecnico da intasare con terreno vegetale vagliato, preziosa fonte di nutrimento per la pianta.

Con un rapporto vuoto/pieno pari al 94%, Rootbox garantisce la crescita ottimale dell’apparato radicale, agendo come bacino di raccolta e drenaggio delle acque meteoriche.

La sua struttura e le sue geometrie gli conferiscono una elevata capacità di carico.

dell’apparato
delle alberature in ambiente urbano ROOTBOX � MATERIALE RICICLATO � MODULARE � POSA RAPIDA ROOTBOX PER INFORMAZIONI CONTATTARE: Tel +39 049 9490289 - Fax +39 049 9494028 - info@geoplastglobal.com Per scaricare le schede tecniche aggiornate, il materiale di supporto, nuove immagini e nuovi casi studio, visitate il nostro sito:
Sistema per lo sviluppo
radicale

Turn static files into dynamic content formats.

Create a flipbook
Issuu converts static files into: digital portfolios, online yearbooks, online catalogs, digital photo albums and more. Sign up and create your flipbook.