

![]()







Ponti Termici All Round Muratura Armata High Performance Taglio Termico
Normablok® Più è il Sistema Costruttivo in laterizio completo adatto ad ogni esigenza progettuale e di cantiere. I blocchi sono realizzati in Poroton® e integrati con isolante Neopor® di Basf®: il risultato è un sistema costruttivo ad alta efficienza energetica, sicuro in tutte le zone sismiche. Normablok® Più è disponibile in diversi formati e adatto ad ogni specifica applicazione. Normablok® Più: più che un unico sistema, un sistema unico.

progettazione, edilizia, impianti

SAIE BARI: l'evento che cresce con te!
Nelle sue tre edizioni, SAIE Bari ha registrato una crescita costante: nell'ultima edizione + 37% di visitatori e +44% di espositori. Un punto di riferimento per il settore, in continua evoluzione
Saloni speciali dedicati a: Infrastrutture, Calcestruzzo, Pavimenti e Rivestimenti, Serramenti, Sismica, Macchine e Attrezzature, Sicurezza in Cantiere, Nuovi sistemi costruttivi, Finiture Tecniche e Colore
25.527
VISITATORI PROFESSIONALI
Dati ultima edizione
SAIE Bari 2023
407 ESPOSITORI
Inquadra il QRCODE per richiedere informazioni per esporre
75 ASSOCIAZIONI PARTNER

•
6 PANORAMA
• a cura della redazione
EDITORIALE

In copertina:
Lina Ghotmeh Architecture
Ateliers Hermès
Louviers, Francia
10
Moda, design e architettura
• Massimiliano Mandarini
PROGETTI
Lina Ghotmeh Architecture
12 Ateliers Hermès
Louviers, Francia
• Alberto Ferraresi
behet bondzio lin architekten
22 Sede associazione tessile
Münster, Germania
• Adolfo F. L. Baratta
TRU Architects
32 0914 Flagship Store
Seoul, Korea
• Roberto Gamba
Parisotto+Formenton Architetti
40 Eraldo Hub
Ceggia, Venezia
• Pasqualino Solomita


INTERVISTA
Leone Spita

48 Comunicare la moda con l’architettura
• Ernesto Maria Giuffrè
DESIGN
Duccio Grassi Architects
54
Brick identity: tre negozi
Reggio Emilia, Ravenna, Bangkok
• Antonio Acocella
Kengo Kuma & Associates
60 Camper Paseo de Gràcia
Barcellona, Spagna
• Chiara Testoni
STORIA E RESTAURO
64 Le fullonicae di Ostia antica, laboratori per il trattamento dei tessuti
• Silvia Cigognetti
TECNOLOGIA
72 Heritage e sostenibilità: eccellenza nella ricostruzione post sisma
• Andrea Valentini, Claudio Tombolini, Gianfranco Ruffini
NORMATIVA
80 Comportamento al fuoco delle facciate a montaggio meccanico e prefabbricate con rivestimento in laterizio
• Claudio Piferi, Valentina Spagnoli
CRONACHE
88 La devastazione di Los Angeles
• Carlo Dall’Oppio
DETTAGLI
Casper Mueller Kneer Associati
90 Un velo di mattoni
• Andrea Campioli
94 RECENSIONI
• a cura di Roberto Gamba


Premio Obel: il progetto 36x36 vince il premio 2024
La Fondazione Henrik Frode Obels di Copenaghen per l’edizione 2024, ha premiato 36x36, un’iniziativa che ha portato alla realizzazione di 36 opere pubbliche in Messico nell’arco di 36 mesi. Il progetto è firmato dal Collettivo C733, un gruppo meta-architettonico composto dagli studi degli architetti Gabriela Carrillo, Carlos Facio e José Amozurrutia, insieme a Eric Valdez e Israel Espin. La giuria ha premiato il Collettivo per la forte attinenza al tema “Architetture con”, che pone al centro la progettazione partecipata con le comunità. Attraverso un metodo collaborativo e un utilizzo sinergico delle risorse, il Collettivo C733 è riuscito a ridurre drasticamente i tempi di realizzazione, completando in pochi mesi opere che avrebbero richiesto anni. Questo approccio ha permesso di intervenire in contesti sociali, politici,
L’edilizia responsabile a Klimahouse 2025
Klimahouse, la fiera dell’efficienza energetica e dell’edilizia responsabile, si è tenuta a Bolzano dal 29 gennaio al 1° febbraio scorso. Tra i partner dell’evento fieristico, il Raggruppamento Laterizi di Confindustria Ceramica ha presentato soluzioni innovative e progetti certificati da protocolli energetico-ambientali (GBC Italia Home, Condomini, Quartieri, Historic Building e Leed). Un’occasione per mettere in luce le qualità ecologiche e prestazionali del laterizio attraverso realizzazionI concrete. Lo spazio espositivo ha offerto un’esperienza immersiva, dove i laterizi in mostra, attinenti ai progetti illustrati, erano abbinati a
ambientali e finanziari complessi, dimostrando la potenza del lavoro multidisciplinare. Ispirata alle teorie dell’ingegnere uruguaiano Eladio Dieste, l’architettura del Collettivo C733 si distingue per soluzioni modulari, flessibili ed economicamente sostenibili, capaci di adattarsi ai diversi contesti con un linguaggio architettonico coerente. I progetti 36x36, promossi dal Segretariato messicano per lo sviluppo agrario, territoriale e urbano, hanno avuto un impatto significativo nella riqualificazione di aree vulnerabili, sia urbane che rurali, grazie ad un modello inclusivo e partecipativo.
Mercato di Matamoros (2019), uno dei 36 interventi premiati

piantine grasse con caratteristichedi durabilità, versatilità, protezione, resilienza, adattabilità e unicitàindicate su etichette contrassegnate dal marchio LATERIZIO Italiano; un concept che ha evocando la stretta relazione tra il materiale e l’ambiente. Nel programma del Klimahouse stage, l’ingegner Alfonsina Di Fusco di Confindustria Ceramica ha tenuto un intervento sulla multidimensionalità
Edilizia sostenibile: sei incontri su normative, materiali e strategie
Nel corso del 2024, Firenze, Catania, Bologna, Torino, Verona e Cagliari hanno ospitato gli eventi promossi da Confindustria Ceramica e Federbeton, con focus principale su una progettazione attenta non solo all’impatto ambientale, ma anche agli aspetti economici e sociali legati al costruito.
Gli incontri, di natura interdisciplinare, hanno visto il coinvolgimento di esperti dai più autorevoli progettisti, a esponenti delle imprese di costruzione e dell’industria dei materiali. È stato

dello sviluppo sostenibile in edilizia, evidenziando la funzione strategica dell’edilizia nella transizione ecologica. A seguire, ulteriori approfondimenti sono dedicati anche alla circolarità dei prodotti, alle loro potenzialità e ai pilastri ESG, con una tavola rotonda che ha visto la partecipazione di rappresentanti di aziende associate a Confindustria Ceramica: Fornaci Laterizi Danesi, Industrie Cotto Possagno e wienerberger.

L’edizione 2025 di Klimahouse ha ribadito il ruolo chiave del laterizio nella costruzione di edifici sostenibili, capaci di coniugare performance tecniche, valore architettonico ed ambientale.
analizzato il percorso verso la neutralità climatica degli edifici al 2050, attraverso la trattazione delle più recenti normative europee come la Direttiva “Case Green” (EPBD) e il Regolamento sui prodotti da costruzione (CPR), dei CAM Edilizia per gli appalti pubblici e dell’LCA (Life Cycle Assessment) per la rendicontazione ambientale. Il tour ha registrato un significativo consenso con più di 500 partecipanti interessati agli stringenti obiettivi di decarbonizzazione, che il settore edile dovrà traguardare implementando un approccio olistico che metta al centro salubrità, benessere, accessibilità, sicurezza al fuoco e resilienza sismica.
I webinar formativi dell’OAR su murature, coperture e digitalizzazione
Negli ultimi mesi dello scorso anno, l’Ordine degli Architetti di Roma, in collaborazione con Confindustria Ceramica, ha organizzato un ciclo di tre seminari formativi online (formazione. architettiroma.it), coordinati dall’Arch. Giuseppe Parisio. Il primo seminario a ottobre, intitolato “Murature in laterizio di nuova generazione. Soluzioni tecnologiche”, ha messo a confronto le attuali tecniche costruttive, con particolare attenzione all’efficienza energetica, al comfort termico, alla sicurezza sismica e al fuoco, nonché alla sostenibilità dell’edificio.
Il secondo appuntamento a novembre, “Coperture con manti di finitura in laterizio. Aspetti tecnologici”, si è focalizzato sull’evoluzione normativa e tecnologica delle coperture discontinue, l’impiego di tegole traspiranti nei

sistemi ventilati, il comfort indoor, le prestazioni ambientali del tetto e il suo abbinamento con gli impianti fotovoltaici. Non sono mancati riferimenti ai linguaggi architettonici contemporanei. Il terzo e ultimo seminario a dicembre, “Tecniche automatizzate per costruzioni in laterizio. Dalla progettazione computazionale alle applicazioni per la posa dei laterizi”, ha offerto una panoramica sulle nuove frontiere della digitalizzazione in edilizia. Si è discusso della progettazione BIM, delle applicazioni di realtà aumentata e virtuale, della sperimentazione con la stampa 3D e dell’impiego della robotica per la posa dei laterizi.


NORMABLOK PIÙ di Fornaci Laterizi Danesi è il sistema costruttivo in laterizio brevettato e dalle prestazioni termiche migliorate, grazie all’integrazione con il polistirene additivato di grafite Neopor® di BASF, in grado di garantire la massima protezione in caso di incendio.
La sicurezza antincendio delle abitazioni è tema di grande rilevanza, soprattutto per gli edifici pluripiano. Quando gli incendi si sviluppano all’interno degli edifici il più delle volte si estendono alle facciate. Infatti, dopo aver provocato rottura e apertura delle superfici finestrate, le fiamme fuoriescono propagandosi ai locali superiori o adiacenti a causa dei flussi termici indotti.
Se sulle facciate sono presenti cavità verticali, come nel caso di facciate ventilate, quelle possono diventare vie preferenziali di propagazione degli incendi lungo tutta la facciata.
Diventa perciò fondamentale fin dalle fasi di progettazione esaminare l’incidenza e le caratteristiche tecniche e le certificazioni dei materiali da impiegare, soprattutto per i rivestimenti esterni, come ad esempio i cappotti termici.


NORMABLOK PIÙ è la soluzione più adatta per la realizzazione di pareti efficienti energeticamente e al contempo sicure anche in caso di incendio. Per testare il reale comportamento al fuoco in caso di incendio tutte le pareti NORMABLOK PIÙ sono state sotto-
NORMABLOK PIÙ è la soluzione più adatta per la realizzazione di pareti efficienti energeticamente e al contempo sicure anche in caso di incendio.
Per testare il reale comportamento al fuoco in caso di incendio tutte le pareti NORMABLOK PIÙ sono state sottoposte a particolari prove, presso il laboratorio CSI (Centro di Certificazione e Analisi comportamentale polivalente), al fine di determinarne la classe di reazione al fuoco.
di Certificazione e Analisi comportamentale polivalente), al fine di determinarne la classe di reazione al fuoco.
I blocchi NORMABLOK PIÙ hanno ottenuto la certificazione di reazione al fuoco in classe B-s1,d0 dimostrandosi quindi la soluzione ideale per le facciate di tutti gli edifici, anche nel caso di facciate ventilate.
I blocchi NORMABLOK PIÙ hanno ottenuto la certificazione di reazione al fuoco in classe B-s1,d0 dimostrandosi quindi la soluzione ideale per le facciate di tutti gli edifici, anche nel caso di facciate ventilate.
Le pareti NORMABLOK PIÙ sono idonee per ogni tipo di edificio (ville, condomini, edifici pluripiano, ospedali, case di cura, RSA …).
Le pareti NORMABLOK PIÙ sono idonee per ogni tipo di edificio (ville, condomini, edifici pluripiano, ospedali, case di cura, RSA …).




FORNACI LATERIZI DANESI
FORNACI LATERIZI DANESI
Contatto diretto info@danesilaterizi.it
Contatto diretto info@danesilaterizi.it
A cura della redazione

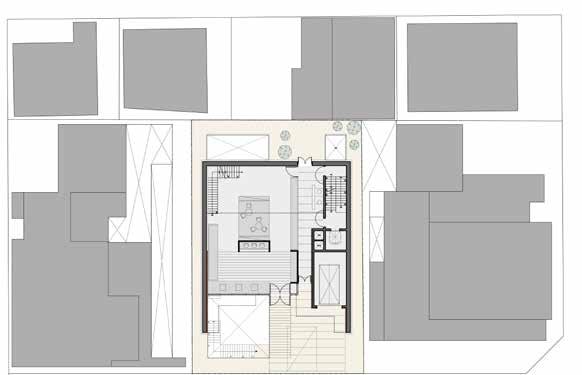
Questa abitazione nasce dal desiderio dell’architetto di edificare la propria casa di famiglia: un desiderio semplice, ma profondo, di celebrare amore e bellezza attraverso l’architettura.
Il progetto inizia dall’idea di valorizzare materia e volume in un contesto periferico della città diffusa, dove il paesaggio rurale è ormai andato in frantumi, su un piccolo terreno, in un contesto privo di elementi di valore: l’affaccio principale è ad ovest lungo la strada provinciale su cui si è sviluppato il paese.
Da un punto di vista compositivo si innesca così una relazione tra cemento armato, materia interprete della “contemporaneità”, e mattone di laterizio, prodotto utilizzando uno stampo antico dalla forma irregolare e spigoli arrotondati ad evocare la “memoria”, quella che parla della tecnica costruttiva del luogo.
I due elementi si fondono, valorizzando le pareti perimetrali e portandole a vivo verso gli interni.
Il dettaglio della muratura è stato studiato in modo tale da predisporre tutti gli impianti e garantire elevate prestazioni termiche senza compromettere la tecnica costruttiva del muro pieno.
Il volume è generato dalla composizione di pieni e
vuoti: la disposizione dei locali ruota attorno alla scelta di collocare al centro la scala che diventa il perno centrale dell’edificio e per questo è visibile anche dall’esterno.
Due ingressi, il principale a sud e quello di servizio ad est, organizzano lo spazio del piano terra sugli assi non sud / est-ovest in tre volumi che caratterizzano le attività lavorative della famiglia: il primo volume è il living con la cucina dove l’isola di vetro scuro è posta al centro dello spazio, il secondo è un piccolo studio, mentre il terzo raccoglie i locali accessori (bagno e garage).
Al piano primo, il vuoto che si viene a creare dalla promenade della scala divide in due zone gli ambienti: a sinistra troviamo la camera matrimoniale con seconda stanza adibita a cabina armadio mentre a destra le due stanze dei figli.
Il materiale che domina nella zona notte è il legno usato in essenza naturale: rovere nel pavimento, larice ad incorniciare le finestre ed infine abete naturale per il tetto.
È stata realizzata una copertura a due falde asimmetriche di leggera pendenza con una trave di colmo mi -
Oggetto Villa LV
Localizzazione Scorzè (VE)
Cronologia progetto 2020 - realizzazione 2022
Progetto architettonico, direzione lavori e coordinamento generale
Architetto Leonardo Michieletto
Materiale utilzzato mattone a pasta molle prodotto a stampo “all’antica maniera” da da SanMarco
nimal: una trave in acciaio lunga 14 metri che ha permesso di svincolare la pianta da elementi strutturali e far leggere il tetto come un grande cappello a chiusura degli ambienti che si articolano liberamente.
La scala si smaterializza man mano che si sale: il primo tratto è costituito dal basamento in cemento più un blocco di tre gradini in microtopping per riprendere il pavimento del piano terra realizzato in architop, a questo si relaziona la seconda parte costituita da una rampa leggera con elementi in legno di ro -


vere sospesi nel vuoto e parapetto in elementi piatti in acciaio verniciato a polvere tinta corten.
Lo stesso parapetto viene ripreso e contestualizzato all’esterno nella recinzione dove la ripetizione di questi elementi verticali alternati crea un ritmo che divide il giardino dalla strada.
Il legame tra interno-esterno è sottolineato anche dalla pavimentazione continua in cemento industriale. Protagonista del progetto è la luce: essa permette di plasmare l’ambiente, ammorbidendo o talvolta indurendo le superfici e i volumi oltre a far leggere i profili delle cose rendendoli ogni volta elementi sempre diversi.
In ambito architettonico grande rilevanza è data all’interazione sempre crescente tra luce e colore intesi come elementi in stretta relazione l’uno dall’altro, in grado di stimolare emozioni positive all’individuo garantendone così il benessere psicofisico. Infine, luce e materia come sintassi di un linguaggio del costruire per l’abitare: Casa LV vuole essere una “machine à habiter”, una macchina per abitare dove è possibile cogliere il ritmo del tempo che scorre.
Il tempo viene percepito nella mutazione della luce naturale, filtrata all’interno della casa attraverso finestre in legno-alluminio, con cornici minimali ed ampie vetrate, inteso nel singolo giorno ma anche nell’arco naturale dell’anno.
Lo studio della luce naturale permette così a chi vi risiede di cogliere lo scorrere del tempo grazie al continuo mutamento dell’atmosfera sensoriale degli spazi e la percezione degli ambienti interni, in un’interazione dinamica tra luce ed ombra.
Contatto diretto d.desiderio@terreal.it
Massimiliano Mandarini
Architetto, curatore, designer, consulente per la transizione ecologica e digitale, formatore ed esperto di human & biophilic design, Green Building, Smart Cities, ESG, CAM e tecnologie net zero e circolari. Ha vinto diversi premi internazionali e riconoscimenti per progetti e prodotti innovativi tra cui l'Adi Design Index, il GBC Italia Awards, il World Green Furniture Awards e il China Awards. È docente di Polidesign Politecnico di Milano e segretario del Chapter Lombardia di GBC Italia.
KEYWORDS
Arte
Tendenze
Creatività
Sostenibilità
Benessere
Art
Trends
Creativity
Sustainability
Wellbeing
Con il passare del tempo la relazione tra moda, design e architettura diventa sempre più coincidente: discipline creative che appartengono al mondo della progettazione e degli stili di vita si ispirano a vicenda creando così collezioni di idee, tendenze e produzioni contemporanee. Durante la rivoluzione industriale e dello sviluppo della produzione meccanica nasce il design: la città si evolve e cambia, la popolazione cresce e così anche la richiesta di beni di consumo. È così che il concetto di design inizia a prendere forma negli spazi collettivi e nelle case, influenzando e stimolano i comportamenti sociali delle persone nelle città, nei luoghi di vita e di lavoro. Le nuove esigenze della nostra società, fortemente sollecitata da ritmi di vita frenetici e dall’impatto delle tecnologie digitali e dell’economia interconnessa, orientano le tendenze e i bisogni verso ambienti e architetture in cui creatività e sostenibilità diventano i motori principali del cambiamento. Questa trasformazione sta ridefinendo le città, favorendo la fusione tra stile, architettura e design, in un dialogo continuo con altre forme d’arte, come la musica e la moda. La moda ha saputo fondersi con il design in un processo di innovazione continua, condizionandosi reciprocamente, superando i confini del convenzionale per dare vita a prodotti iconici, che poi rimangono nel tempo oggetto dei desideri. Negli ultimi anni, la moda sta accelerando significativamente il suo percorso verso la sostenibilità, spinta da tre fattori principali: le esigenze finanziarie (rating ESG1, Environmental, Social e Governance), le normative più stringenti2 e, soprattutto, la crescente domanda dei consumatori, in particolare delle nuove generazioni, che si mostrano molto sensibili alle tematiche ambientali e sociali nelle loro scelte d’acquisto.
L’architettura e il design, pur non essendo ancora pienamente allineati a questa rapida trasformazione, stanno evolvendo velocemente grazie all’adozione di sistemi di certificazione ambientale (come i protocolli Green Building Italia e Leed), all’ecodesign e ai processi di transizione verso l’economia circolare e la decarbonizzazione. Spinta dalle richieste del mercato e dalle normative 3 volte a ridurre l’impatto della crisi climatica, l’edilizia sta vivendo una sfida senza precedenti nell’ottica dello sviluppo sostenibile. Consumatori e investitori sono sempre più attratti da spazi, architetture, soluzioni costruttive e prodotti di design industriale che coniugano ecologia e qualità della vita, verso ambienti più sostenibili e umanizzanti, caratterizzati dall’integrazione della natura, dall’uso di materiali salubri, di origine naturale e riciclabili, nonché dall’adozione di tecnologie rinnovabili.
Fashion, design and architecture are increasingly interconnected: from the industrial revolution to the present, these disciplines have evolved hand in hand, influencing lifestyles and aesthetic trends. Today, sustainability is at the core of this transformation, and the clay brick, with its timeless appeal and adaptability, plays a key role in this process, bridging tradition and modernity in the world of fashion-driven architecture
I materiali dell’architettura e del design diventano un linguaggio espressivo, raccontando storie e sensibilità rivolte alle persone. Le nuove generazioni di creativi e progettisti abbracciano un approccio più sociale e responsabile, orientato verso stili eco-friendly in cui moda, design e architettura si fondono in un unico messaggio di amore per la vita. Questa visione dà forma a una bellezza ibrida, capace di unire il Genius Loci con la transizione digitale, creando un ponte culturale e sociale tra identità, tradizione e innovazione. In questo scenario, l’architettura europea dialoga e si connette con
suggestioni e valori provenienti anche da altri continenti, in una rete globale di scambio e contaminazione creativa. Si scoprono quindi progetti, realizzazioni e luoghi dove gli ambienti non sono solo funzioni e spazi fisici, ma storie, narrazioni, itinerari di pensiero e rappresentazioni di stile, room tematiche, ambienti indoor e outdoor, rappresentati come metafore di futuro attraverso materiali nobili e millenari, quali ad esempio la terracotta, nella polifonia e poliedricità d’uso che la contraddistingue, rigorosa e dinamica allo stesso tempo, “Materiali come Stili di Vita e di Tempo” dove la finitura, la decorazione, diventa linguaggio architettonico ed itinerario visivo ed espressivo per nuovi racconti creativi e sostenibili. Lo spazio architettonico si trasforma in una passerella di nuove collezioni, pezzi di arredo unici ed irresistibili, le tendenze della moda spesso anticipano quelle del design e dell’architettura, stabilendo palette di colori, tessuti, decorazioni, ambientazioni e materiali dinamici e multifunzionali che vedremo nelle nostre case, nei boutique hotel e nel retail. Le collaborazioni tra stilisti d’alta moda e produttori di elementi d’arredo stanno diventando sempre più comuni e di grande successo, così da rendere il design e la moda per tutti e universale. È interessante però notare come la moda guardi al design in termini di prodotto, con mobili e arredi da “vestire”, ma ancora poco allo spazio architettonico, e qui forse è il vero laboratorio d’innovazione e sviluppo da traguardare. In questo la nuova branca del biophilic design4 ci viene in aiuto, con un nuovo modello di progettazione degli spazi e dell’architettura ispirati e connessi alla natura, che dialogano con le stagioni come nella moda, che valorizzano tutti i sistemi viventi e della biodiversità (la fauna e la flora), riportando al centro la persona, il suo ciclo circadiano, la centralità della luce naturale per la salute psico-fisica. L’integrazione dell‘ecosistema negli spazi outdoor e indoor, e molti altri aspetti - tra cui la scelta di materiali di origine naturale, il corretto utilizzo dei colori, delle esposizioni, delle vedute e del paesaggio e di involucri salutari - raffigurano l’ideale rifugio di benessere individuale e di stimolo alla socialità e alla relazione tra le persone. L’urgenza di sostenibilità è dunque in grande crescita anche nell’ambito delle branche creative: architettura, design e moda. I consumatori oggi sono particolarmente attenti all’impatto ambientale dei loro acquisti; che sia un capo di abbigliamento, un arredo o una casa. La qualità del progetto, quindi, diventa centrale ed imprescindibile, portando alla nascita di collezioni e progetti eco-friendly, che utilizzano materiali sostenibili e promuovono pratiche di produzione etiche e responsabili. Nei progetti selezionati per questo numero della rivista, dedicato alle architetture per la moda, ritroviamo proprio questi approcci e visioni. Le opere, diverse per funzione e stile, sono unite dall’attenzione alla persona e all’ambiente, e narrano affinità tra il mondo della moda e l’uso del laterizio, che, come un tessuto pregiato, è senza tempo, versatile e capace di dare carattere ad ogni creazione architettonica. La sobrietà e la raffinatezza espressa dai componenti costruttivi realizzati in laterizio testimoniano le caratteristiche di essenzialità e classicità tipiche dell’evergreen: un materiale sempre di moda!
Note

Museo Yves Saint Laurent, Marrakech - Studio KO (pubblicato su CiL176 Musei).
1. I rating ESG forniscono un parere sul profilo di sostenibilità di un’impresa o di uno strumento finanziario. REGOLAMENTO DEL PARLAMENTO EUROPEO E DEL CONSIGLIO sulla trasparenza e sull’integrità delle attività di rating ambientale, sociale e di governance (ESG), che modifica il regolamento (UE) 2019/2088 e (UE) 2023/2859 https://data.consilium.europa.eu/doc/document/PE-43-2024-INIT/it/pdf
2. ESPR - Regolamento (UE) 2024/1781 del Parlamento Europeo e del Consiglio del 13 giugno 2024 che stabilisce il quadro per la definizione dei requisiti di progettazione ecocompatibile per prodotti sostenibili, modifica la direttiva (UE) 2020/1828 e il regolamento (UE) 2023/1542 e abroga la direttiva 2009/125/CE
3. EPBD IV - DIRETTIVA (UE) 2024/1275 DEL PARLAMENTO EUROPEO E DEL CONSIGLIO del 24 aprile 2024 sulla prestazione energetica nell’edilizia
4. Dal vocabolario Treccani: l’architettura e l’urbanistica biofiliche, opposte all’architettura e all’urbanistica patogene. Le reti, i flussi e la città integrata. […] La città deve tornare a essere luogo di relazioni viventi per gli esseri umani, e pertanto occorre interpretarla come sistema d’interazioni complesse, delle quali recuperare la coerenza. (gatteibattistel.it, 27 aprile 2015)


KEYWORDS
Carré Hermès
Pelletteria
Archi
Archeologia
Artigianalità
Carré Hermès
Leather Workshop
Arches
Archeology
Craftsmanship
Prendiamo la matita e immaginiamo di disegnare le evoluzioni di cavalli liberi di correre e saltare nella natura dei paesaggi collinari della Normandia. Riportiamo gli slanci e i galoppi sugli affacci di maschi murari laterizi, trasformandoli in archi danzanti di mattoni rossi d’argilla cotta. Interagiamo, attraversando questa cortina traforata, assieme agli alberi, ai dossi e ai colori di fiori e farfalle. Stiamo disegnando un carré di Hermès, oppure visitando la recente sede immaginata per la Maison da Lina Ghotmeh in Normandia, la cui pianta mantiene appunto le stesse proporzioni quadrate del noto foulard maggiorate di scala. Poco lontano dalla Domus del grande peristilio di Vieux-la-Romaine, proprio sulla strada romana di collegamento fra Rotomagus (Rouen), con Lutetia (Parigi), e da lì con Roma, si trova Louviers. La cittadina è storicamente dedita alla lavorazione artigianale dei pellami: come testimoniano gli scavi archeologici svolti nella zona, in cui sono stati rinvenuti elementi propri della lavorazione del cuoio. Fra le principali produzioni della nuova sede sono le selle per l’equitazione. Le pareti perimetrali dell’architettura richiamano agli occhi e alla mente le grandi strutture romane per gli acquedotti, fra le quali proprio in Francia, ma al sud, quella del Pont du Gard vicino a Nimes è tra le meglio conservate in Europa. In questo senso a maggior ragione è calzante l’espressione cara alla progettista, in riferimento alle proprie architetture, di “archeologie per il futuro”: le architetture fanno proprio il genius loci nel mix di natura, memoria e saperi, per costruire le ossature concrete di fabbriche, capaci di rilanciare al futuro il proprio passato rinnovandone i contenuti con conoscenza tecnica e consapevolezza.
Gli interventi indiani di Louis Kahn paiono essere esempi accostabili per approcci ed esiti formali.
In the last fifteen years Hermès has opened more than ten leather workshops in France, increasing the number of artisans employed in the sector to over 4.700. This recent architecture in Normandy with numerous iconic references to the well-known fashion brand is also a passive building with low carbon emissions
L’Oriente e l’internazionalità risuonano nella formazione della progettista, avviata in Libano nella terra d’origine, proseguita nelle collaborazioni con Jean Nouvel e Norman Foster, quindi approdata ad autonoma posizione in Francia. Sono sette le tipologie d’arco composte sulle murature esterne e interne, declinate rispetto alla dimensione delle aperture in archivolti ribassati a quattro ghiere e dunque sviluppi delle stesse fino a circa 100 cm, ovvero varianti a tre ghiere, due e una, a tutto sesto e proporzionalmente di luci inferiori.
Gl i sviluppi grafici esecutivi sono stati tradotti per il cantiere in centine lignee, dime dipinte e giunti pigmentati per dare continuità cromatica alla cortina muraria. Dal progetto alla costruzione il mattone incarna le filosofie corrispondenti della progettista e della committenza, proponendosi per naturalità e appartenenza al luogo, come pure quale tassello elementare per trame d’esecuzione artigianale vibranti alla luce e consistenti al tatto.
Perciò le istantanee del cantiere restituiscono atmosfere simili a quelle delle esposizioni itineranti “Hermès in the Making”, con tappa anche a Torino nel 2022, nelle quali l’azienda ha voluto comunicare le conoscenze artigiane d’eccellenza dei propri stabilimenti, nella compresenza delle persone e delle tecniche concorrenti alle produzioni della griffe.Le medesime atmosfere si percepiscono per l’appunto anche negli scatti delle attività lavorative di pelletteria svolte all’interno della nuova architettura. Non è un caso, allora, l’utilizzo reiterato del laterizio e del mattone, in particolare, in molti spazi di Hermès nel mondo: per negozi, showroom, stabilimenti, allestimenti per saloni fieristici e sfilate. Anche grazie all’utilizzo del laterizio come materiale principe, l’intervento di Louviers raggiunge inoltre gli elevati obiettivi ambientali prefissati: utilizza oltre 500.000 mattoni (durevoli e sostenibili) di fornaci locali, e messi in opera da capomastri del posto, si lascia permeare da illuminazione e ventilazione naturale, si scalda mediante geotermia e produce l’energia elettrica necessaria con pannelli fotovoltaici; il parco riusa il terreno di scavo e ospita numerose essenze sia preesistenti, sia di nuova pian-

tumazione. Secondo le classificazioni ambientali francesi l’opera è certificata E4C2: genera il massimo livello di bilancio energetico positivo (E4, poiché produce più energia di quanta ne consumi), e il minor grado di emissioni di anidride carbonica in atmosfera (C2, nel senso del nullo rilascio di carbonio).
Nell’ultimo decennio Lina Ghotmeh ha vinto il concorso e realizzato il Museo Nazionale dell’Estonia, un intervento fuoriuscente progressivamente dal terreno, con spazialità interne in reciproco scambio visuale con la natura esterna; ha quindi ideato numerose opere internazionali. Sta ora lavorando al padiglione del Bahrein per la prossima esposizione universale di Osaka, basato sull’artigianalità tipica, incarnata e sublimata dall’architettura per essere essa stessa strumento di racconto al mondo esteriore e di dialogo con le persone.
Oggetto Sede manifatturiera per la lavorazione dei pellami
Località Louviers, Normandia, Francia
Committente Hermès International
Progetto architettonico Lina Ghotmeh – Architecture
Progetto paesaggistico Erik Dhont Landscape Architects
Progetto strutturale EVP Ingénierie
Progetto impiantistico Frank Boutté Consultants
Progetto acustico Clarity
Progetto antincendio Systea - Namixis
Controllo costi AE75
Cronologia 2019 (progettazione), 2023 (costruzione)
Superficie area 3 ha, edificio 6.200 m2
Fotografie Iwan Baan (opera completata) / Takuji Shimmura (cantiere) | © Hermès








Le diverse tipologie di archi ribassati e a tutto sesto.








KEYWORDS
Uffici
Tessuto
Moda
Elementi speciali
Progettazione parametrica
Offices
Textile
Fashion
Special elements
Parametric design
Lo ddenheide è un’area industriale a sud-est di Münster, capoluogo non distante dal distretto industriale e minerario della regione della Ruhr. Utilizzata per scopi militari fino a metà degli anni Novanta, l’area è stata oggetto di un progetto di riconversione esemplare in termini di pianificazione urbana e sviluppo sostenibile. Il partenariato pubblico-privato che lo ha promosso, costituito tra gli altri dalla Municipalità di Münster, dalla Cassa di Risparmio di Münsterland est e dalla Banca Immobiliare della Germania Occidentale, ha perseguito due obiettivi: da un lato, la realizzazione di un ampio parco pubblico di 13 ettari e, dall’altro, la realizzazione di un parco per il commercio e la logistica che ha attirato numerosi investitori.
Tra questi l’Associazione dell’industria tessile e dell’abbigliamento della Germania nord-occidentale, rappresentante circa 260 aziende collocate nei Land Schleswig-Holstein e Westfalia, che ha incaricato lo Studio behet bondzio lin architekten, con sede a Münster e Lipsia e molto attivo a Taiwan, della realizzazione della propria sede.
Il risultato è un edificio stereometrico, dalla volumetria essenziale, che si apre a nord verso il pittoresco paesaggio del Parco della Pace con un’ampia facciata vetrata mentre a sud accogliere gli impiegati e i visitatori con un fronte chiuso, caratterizzato da una texture in mattoni di laterizio che richiama alla memoria la trama di un tessuto che viene spazzato dal vento. Mentre tre lati sono completamente opachi, grazie alla grande superficie vetrata orientata a nord, tutti gli uffici godono di un’illuminazione naturale e la facciata non necessita di protezione solare neanche in piena estate.
In an industrial area southeast of Münster, behet bondzio lin architekten was commissioned to design the headquarters of the Northwest German Textile and Apparel Industry Association. The result a stereometric building that features a large, glazed façade and three enclosed sources, characterized by a brick texture reminiscent of the texture of a textile being swept by the wind
L’edificio è composto da un volume principale in linea che, con lo sfalsamento di una campata, prosegue in uno più compatto: lo scarto crea un’area d’ingresso che accoglie l’unica apertura presente nei tre fronti rivestiti di laterizio.
A l piano terra, dall’ingresso è possibile accedere al volume più piccolo in cui è collocata un’ampia sala per eventi, che può essere anche affittata a soggetti esterni, e al volume più grande in cui si trovano uffici e servizi; al secondo piano sono ospitati altri uffici, una sala riunioni e servizi mentre al terzo piano si trovano degli ampi spazi disponibili a differenti articolazioni e utilizzi.
L a facciata in mattoni è senza dubbio l’elemento più interessante.
I progettisti hanno affermato di essersi ispirati a una statua dello scultore tedesco Max Klinger ospitata nel Museo dell’Immagine di Lipsia. L’espressione corrucciata di Ludwig van Beethoven, che troneggiava al centro di una delle sale della XIV esposizione della Secessione svoltasi a Vienna nel 1902, è accompagnata da un drappo disposto sulle sue ginocchia che fa apparire il solido alabastro come un panneggio leggero che potrebbe scivolar via con un soffio di brezza.
In linea con questa immagine, behet bondzio lin architekten ha realizzato un’ampia superficie verticale conferendo al massivo laterizio un aspetto leggero e dinamico. Per ottenere tale risultato sono stati utilizzati 74.000 mattoni suddivisi in 7 differenti modelli: infatti, al classico mattone faccia a vista, sono stati aggiunti 6 pezzi speciali che aumentano gradualmente l’angolazione di uno degli spigoli di 2,5°, così da passare dai 90° ai 105° gradi del mattone più ampio.
I mattoni sono posizionati in modo tale che la luce naturale vari la sua incidenza superficiale nel corso delle stagioni e delle ore della giornata simulando il movimento di un tessuto.
Per la progettazione è stato impiegato un processo di progettazione parametrica mentre per il posizionamento in opera i posatori hanno potuto avvalersi di elaborati in cui era segnalata la posizione di ogni singolo mattone.

Oggetto Edificio per uffici
Località Münster (DE)
Committente Associazione dell’Industria Tessile e dell’Abbigliamento della Germania nord-occidentale
Progetto architettonico behet bondzio lin architekten
Team di progettazione Stefanie Gaasch, Tim Kossel, Ines Schulte, Pavla Briksova, Anika Schneider, David Chen, Sebastian Gatz
Progetto strutturale Gantert + Wiemeler Ingenieurplanung
Progetto impiantistico Ingenieurbüro Nordhorn GmbH & Co. KG
Progetto paesaggistico Tamkus Landschaftsarchitektur
Cronologia 2014 (progetto); 2017 (costruzione)
Superficie 2.600 m2
Costo 8,2 milioni €
Fotografie Thomas Wrede, Figura a pag. 18 Reimund Braun

Planimetria generale.


behet bondzio lin architekten |Sede associazione tessile |Münster, Germania


I 7 modelli di mattoni utilizzati per la facciata.




KEYWORDS
Negozio
Incastonatura
Facciata
Cavità
Flagship store
Setting
Facade
Cavity
Simone è l’azienda coreana di artigianalità industrializzata (classificata OEM - original equipment manufacturing) di borse di lusso. Da trenta anni lavora per marchi di alta gamma come Burberry, Michael Kors, Coach. “0914” è il nome dei suoi più recenti e raffinati prodotti che ha lanciato sulla base della sua rinomata qualità di produzione e lo “0914” è il grande negozio realizzato nel centro di Seoul, nell’area commerciale e dell’alta moda, per comunicare l’identità del marchio, attraverso l’adozione di un preciso stile e di un design unico. L’edificio, uno spazio ad uso misto con negozio, bar, ristorante e galleria d’arte, si trova in un’elegante strada alberata, nel quartiere di Sinsa-dong, Gangnam, adiacente ad altri negozi e laboratori espositivi della moda internazionale.
È vicino al Dosan, il Parco rigoglioso creato in onore di An Changho, un attivista per l’indipendenza coreana (nome d’arte Dosan) e a cui è dedicata, all’interno del parco, la Sala commemorativa Dosan Ahn Chang-ho.
TRU Architects+Eho, lo studio di progettazione di Seul, guidato da Sungik Cho (professore di Architettura e Urbanistica all’Università Hongik) e da Ho Lee è stato invitato al concorso per la progettazione dell’edificio ed ha vinto il primo premio, proponendo una composizione urbana, che incorpora in una sorta di iconico villaggio verticale, cinque caratteristiche forme, incastonate all’interno di un edificio compatto, sulla facciata rivolta verso strada.
Vi sono allestiti spazi di oltre 2370 metri quadrati, con uffici per il lavoro in condivisione, con lo scopo di lanciare nuovi prodotti e oggetti, da parte di innovativi artigiani e artisti.
La struttura è costituita da più livelli di utilizzo,
The building, consisting of multiple levels of use, both above and below ground, with a shop, bar, restaurant and art gallery, has an expressive and recognisable street view due to the contrast created between the white cladding on the outside and the brick shapes of the small houses that make up what appears to be a mini-village nestled inside. The material and chromatic contrasts highlight the compositional forms
sia sopra che sottoterra, con aree distribuite su piani sfalsati, collegati da rampe di scale disposte sul limite posteriore.
Dall’ingresso, ove sul pavimento è raffigurata la storia trentennale della pelle prodotta dall’azienda, attraverso una scalinata, scavata all’esterno nel cortile e che funge anche da passerella per sfilate di moda, si giunge in una sorta di piazza sotterranea multilivello.
Due dei piani interrati fanno parte della piazza, con una caffetteria e uno spazio espositivo, mentre al di sotto altri due piani sono destinati ai servizi e a un parcheggio, accessibile con un ascensore per le auto.
Fuori terra, lo spoglio rivestimento bianco della facciata contrasta nettamente con quello che all’interno appare un mini-villaggio ove si racchiudono le forme in mattoni di laterizio delle piccole case che lo compongono. Gli involucri di queste perimetrano locali e ambienti, definiti da pareti pure in laterizio, perforate da strette finestre su strada e ampie superfici trasparenti a nastro, sugli affacci interni.
Il piano di copertura è arredato a giardino e protetto da alti parapetti, con una vasca d’acqua e un prato parzialmente lastricato. Il progetto propone pertanto vari elementi e temi dell’architettura: temi tipologici, relativi a piazza, cortile, andito e all’evocazione della forma iconica della casetta con tetto a falde; inoltre mette in risalto, con contrasti materici e cromatici, le forme compositive e dà espressività e riconoscibilità morfologica all’affaccio su strada.
Nello stesso tempo, l’articolazione con ampie superfici in cotto delle partizioni interne definisce con plurime variazioni distributive e funzionali ambienti modernamente concepiti, disvelando e evidenziando lo “spaccato” del nucleo costruttivo.
Sono questi obiettivi che i progettisti hanno manifestato con semplicità e competenza compositiva, utilizzando e esaltando prima di tutto il materiale laterizio, inquadrato in armonica maestosità scultorea all’interno del vasto incavo.
Sottolinea così quanto il mattone, per la sua

basilare semplicità, per la sua riconoscibilità (a tutti gli effetti internazionale), per la chiara ed elegante cromaticità sia il materiale più adatto a esprimere l’essenza della modellazione architettonica.
Inoltre, l’aver adottato uno specifico mattone di elevata sostenibilità, caratterizzato da una ridotta quantità di carbonio incorporato e da un formato più sottile del consueto (a cui corrisponde un sensibile risparmio in cottura , con conseguente riduzione di emissione dell’anidride carbonica in fase produttiva ), dimostra una scelta tecnologica d’avanguardia, rispettosa dei più alti standard previsti per lo sviluppo sostenibile e la tutela dell’ambiente.
Oggetto 0914 Flagship Store
Località 631-35 Sinsa-dong, Gangnam-gu, Seoul, South Korea
Committente Simone Ltd.
Progetto architettonico TRU Architects + Eho
Collaboratori Jeil Choi, Junho Park, Kyungok Yoon, Jaeyoung Joo, Kiwon Oh, Jungyoon Kim
Progetto strutturale e impiantistico Opus Pearl
Impresa di costruzione Kiro Construction
Cronologia 2017-2021
Superficie 2377 m²
Fotografie TRU Architects, Youngchae Park
Schema distributivo.








KEYWORDS
Mattoni
Recupero
Hub
Volumi
Serialità
Bricks
Restoration
Hub
Volumes
Seriality
Fondata nel 1947 su iniziativa di Eraldo Ferrante come merceria a Ceggia, in provincia di Venezia, l’attività avvia una lunga tradizione commerciale locale che nel tempo porta a trasformare lo spazio di vendita in un negozio di abbigliamento prima e successivamente in uno store. La continua crescita commerciale si consolida nel 2018 con la creazione dell’Eraldo Hub, concepito come spazio multiplo in cui far convergere le esigenze dell’espansione logistica con quella espositiva.
Ne l piccolo comune di Ceggia nell’ambito della città metropolitana di Venezia, con i suoi seimila abitanti, il nuovo complesso espositivo-logistico per la moda si inserisce come elemento di ricucitura in un tessuto urbano disomogeneo. Il contesto è quello di un’economia locale che ruota attorno ad alcune realtà industriali e commerciali come lo store Eraldo che sviluppa ed espande la vendita di prestigiose griffe internazionali e nuovi brand emergenti grazie ad una importante estensione verso il mercato dell’e-commerce, contribuendo al rilancio delle aree periferiche della città metropolitana di Venezia.
Lo studio Parisotto+Formenton degli architetti Aldo Parisotto e Massimo Formenton, attivo da oltre 25 anni e forte delle loro diverse esperienze in ambito architettonico con la realizzazione di spazi museali, commerciali, direzionali e residenziali, ma soprattutto grazie all’alta specializzazione maturata nel settore del retail con diverse collaborazioni per importanti aziende italiane e internazionali nel campo della moda e del lusso, ha progettato il nuovo Hub intorno ad un edificio preesistente caratterizzato da un volume semplice e austero, con tetto a capanna e manto di copertura in laterizio. Con un approccio coerente, rispettoso del contesto e attento al dettaglio, su un lotto a sviluppo irregolare l’innesto di quattro nuovi corpi di fab-
With a coherent approach, respectful of the context and attentive to detail, the Parisotto+Formenton studio designed the new exhibition-logistics complex for fashion around a pre-existing building, through the insertion of four new buildings repeated according to a serial logic
brica rievocano, secondo una logica di ripetizione seriale, l’impianto volumetrico del corpo di fabbrica esistente, che viene recuperato e valorizzato attraverso l’inserimento di questi nuovi volumi che come elementi netti giustapposti e slittati tra loro creano, in continuità con la preesistenza una volumetria articolata, che cerca una nuova specifica relazione con l’intorno. La nuova architettura dialoga da un lato con l’elemento naturale del fiume che scorre parallelo, in un rapporto ancestrale con l’acqua che ritorna sempre nella conformazione e nella storia del territorio veneto e veneziano in particolare, e dall’altro con l’elemento antropico del centro abitato, al di là del corso d’acqua.
L’impianto planivolumetrico del nuovo sito e il suo carattere estetico rimandano a due ambiti distinti: da un lato la tradizione vernacolare con la forma architettonica archetipica ridotta alla sua componente essenziale e l’uso del mattone faccia a vista e delle coperture a falda in cotto (per l’edificio principale) che rimandano alla tradizione dei magazzini veneziani come quelli del Sale o delle Tese dell’Arsenale; dall’altro lato il richiamo del carattere industriale con gli innesti in cemento a vista e tetto in lamiera scarnificati di ogni elemento decorativo.
E l a forma basamentale del piano terra che assume il valore di fil rouge che con sapienza è al contempo cortina muraria con la funzione di recinto che caratterizza e definisce gli spazi pertinenziali con corti e patii del lotto irregolare.
L’e sploso assonometrico ben delinea la semplice ed efficace strategia di progetto: il basamento articolato, i semplici volumi seriali e la copertura a due acque.
La contrapposizione tra la matericità del mattone faccia a vista con il rigore e l’austerità delle facciate lisce del cemento è interrotta nel prospetto principale da un’unica grande finestra quadrata in aggetto che traguarda il fiume e lascia percepire l’attività che si svolge all’interno dell’Hub.
La serialità dei volumi che si percepisce in alzato configura in realtà in pianta una suddivisione degli spazi alquanto austera, imperniata sul blocco dell’edificio esistente che funge da vera e propria cerniera. I nuovi

spazi riflettono il carattere industriale a doppia altezza con il rigore dei materiali che caratterizzano gli interni: pavimento industriale, soppalco in metallo verniciato nero e impianti a vista. A rompere questa austera connotazione la contrapposizione dello spazio a pianta libera posto in parallelo al fronte principale e rivolto verso il fiume: qui il muro faccia a vista in laterizio che caratterizza la parte basamentale degli esterni si ritrova anche nella parete interna, contribuendo a valorizzare gli usi specifici di questo ambito prettamente declinati alla parte espositiva. Pur trattandosi di un edificio privato per uso principalmente terziario, come spazio di lavoro, logistico ed espositivo, obiettivo comune della committenza e dei progettisti è l’impegno a lasciare un segno deciso, esteticamente composto e rispettoso del contesto, che possa valorizzare il territorio maltrattato in cui si inserisce: un approccio ambizioso che crede nell’architettura come valore pubblico.
Se condo i progettisti “L’edificio non è un og-
getto appartenente solo a chi lo commissiona o progetta, ma anche e soprattutto un bene per chi lo vive, lavorando al suo interno, o semplicemente lo vede, vivendo in prossimità; un valore che si manifesta nel tempo anche per tutta la comunità locale. Il vero ruolo sociale dell’architettura”.
Oggetto Hub logistico-espositivo
Località Ceggia, Venezia
Committente Eraldo
Progetto architettonico Parisotto+Formenton Architetti
Progetto strutturale MB engineering
Progetto impiantistico Studio Delta
Impresa di costruzione Imea snc di Mario Artico Cronologia 2016-2018
Superficie 3080 m2
Costo complessivo 1.600 €/ m2
Fotografie Paolo Utimpergher
Scorcio laterale con vista dell’edificio esistente e nuovi corpi di fabbrica
Esploso assonometrico.







Ernesto Maria Giuffrè, Architetto, PhD, libero professionista

KEYWORDS
Progetto
Moda
Ricerca
Spazi sensoriali
Tecnologia
Project
Fashion Research
Sensory spaces
Technology
Leone Spita
Architetto, dottore di ricerca in “Composizione Architettonica: Teorie dell’architettura”, professore associato presso la Facoltà di Architettura di Roma La Sapienza, docente di Composizione architettonica e urbana, autore di monografie, saggi ed articoli sull’architettura e la città contemporanea. Dal 2018 è a capo della ricerca interdisciplinare “Dentro la moda, intorno all’architettura: La sperimentazione architettonica negli interni per la Moda e lo spazio culturale del fashion realm”.
Nella sua ricerca, “Dentro la moda, intorno all’architettura” si affronta la cultura materiale ed identitaria del sistema moda insieme al suo stretto legame con il mondo dell’architettura e della sperimentazione tecnologica applicata alla città, così come all’interior design, alla produzione, alla vendita, al consumo ed all’esposizione della moda stessa. Cosa vuol dire costruire uno spazio dedicato alla moda e quali sono le richieste qualitative e prestazionali che vanno oltre la sua configurazione spaziale?
Le attività del fashion designer e dell’architetto propongono stili di carattere estetico, stili comportamentali e presuppongono una progettazione complessa. Si tratta di inter-
The activities of the fashion designer and architect presuppose complex planning which is not limited to the product but involves all the phases and tools of language, communication and the relationship with end users. Both architecture and design applied to fashion do not limit themselves to producing forms, but through these they aim to intervene on human activity and the behavior of individuals.
venti ragionati sulle forme, di desiderio di racchiudere lo spazio in armonie, di ricerca e di innovazione tecnologica che non si può limitare al prodotto, ma che deve coinvolgere tutte le fasi e gli strumenti del linguaggio, di comunicazione e di relazione con gli utenti finali. La cultura materiale e identitaria del cosiddetto “sistema moda” ha, da sempre, cercato stretti legami con il mondo dell’architettura e della sperimentazione tecnologica applicata agli interni per la produzione, la vendita e l’esposizione.
Sia la moda che l’architettura hanno lo scopo di definire, costruire l’ambiente sul quale operano, l’una il corpo umano e la persona, l’altra gli spazi e i luoghi. Quali analogie, affinità e differenze si possono riscontrare?
Ogni qualvolta mi si chieda una riflessione sul binomio Architettura-Moda, mi piace ricordare una frase di Walter Benjamin: “Architettura e Moda appartengono all’oscurità dell’attimo vissuto, alla coscienza onirica del collettivo”. La citazione è tratta dagli appunti per Über den Begriff der Geschichte, che avrebbero dovuto essere l’introduzione del Passagen-Werk , al quale il filosofo lavorò dal 1927 fino alla sua morte nel 1940, e rimasto, dunque, incompleto. Le parole di Benjamin ci fanno riflettere sul fatto che architettura e moda esprimono idee di identità sociale e culturale e riflettono gli interessi degli utenti e l’ambizione dell’età. Credo che sia la moda che l’architettura intercettino, attraverso il loro prodotto, anche il cambiamento delle città e lo esibiscano: l’una lo fa abitando corpi, l’altra vestendo i luoghi.

Così come l’architettura non si limita a produrre forme o a realizzare un programma funzionale ma orienta con le sue stereometrie l’attività umana, il design applicato alla moda non ha come fine l’oggetto (l’abito) ma attraverso l’abito mira ad intervenire sul comportamento dei singoli individui. La storica Giovanna Motta, che con me e Alessandra Capanna ha curato il volume “Strumenti. Architettura e moda, radici culturali, specificità tecniche” [1] , chiarisce con grande acutezza che la moda, lungi dall’essere “leggera”, riesce, così come fa l’architettura, a dare profondità ai contenuti culturali, a rappresentare le trasformazioni dei sistemi politici e le rivoluzioni sociali, a racchiudere in sé elementi della tradizione e dei cambiamenti, a confermare i dati del passaggio da un’epoca all’altra.
Esistono differenze nelle modalità di approccio alla progettazione di questi spazi tra le esperienze italiane e quelle internazionali?
Non si possono considerare i diversi approcci alla progettazione degli spazi dedicati al fashion realm, in Italia e nel resto del mondo, senza considerare i significativi cambiamenti avvenuti dagli anni Novanta del secolo scorso nelle strategie del citato sistema moda; si tratta del periodo nel quale le più importanti maison vengono acquistate dai due
grandi gruppi del lusso (Lvmh e Kering). I flagship stores acquisiscono un’importanza capitale nelle strategie di marketing. In questo scenario, l’architetto è chiamato a svolgere un ruolo chiave: tradurre in forme tangibili i valori sottesi dal marchio, fornendone un’immagine seducente e riconoscibile. Il progettista di fama internazionale conteneva in sé un elemento di richiamo per l’opinione pubblica e perciò le case di moda ne richiesero il lavoro creativo. Lo speciale connubio fra architetto e fashion designer ha portato nelle principali capitali del mondo al fiorire di flagship stores, che spesso costituiscono un terreno fertile di sperimentazione formale, funzionale e materiale dell’architettura.
Un caso emblematico è rappresentato dal Giappone, per me un inesauribile terreno di indagine. A Tokyo, nei quartieri alla moda come Ginza, Omotesando e Aoyama, si consuma dagli anni Duemila quella che ho più volte definito: “la guerra dell’esibizione del lusso”. Penso, solo per citarne alcuni, alle alte canne di bambù in metallo rivestito con un coating color oro della Ginza Tower di Armani progettata da Massimiliano Fuksas; la torre con struttura di vetro mattoni di Renzo Piano per la maison Hermés; il poliedro trasparente di Herzog & De Meuron per Prada; il prisma perforato da bucature irregolari disposte con apparente casualità di Toyo Ito per Mikimoto;, il diafano volume di SANAA
Giappone, Tokyo, quartiere Ginza, il quartiere dei grandi marchi del commercio e della moda.
per Dior; le vele di vetro curvato di Jun Aoki, per Louis Vuitton. E potrei continuare, in una sequenza di edifici iconici che si stringono l’uno acconto all’altro e che mi fanno sempre pensare alla Via Novissima, i venti, i portali scenografici che, come un nuovo spazio urbano, Paolo Portoghesi fece realizzare nell’architettura antica dell’Arsenale per la prima Biennale di Architettura (1980). Nel programma edilizio dei flagship stores, che punteggiano le strade alla moda nelle capitali del mondo, sono stati inseriti anche boutique hotel, ristoranti, caffetterie e bookshops. È la loro immagine che provoca un’esperienza nei clienti: i colori, i materiali e la forma della facciata riflettono l’ethos e i prodotti più iconici della casa di moda. Tuttavia, per riprendere la domanda, vorrei sottolineare che la differenza sostanziale tra la modalità di approccio alla progettazione di spazi per la moda in Italia e nel resto del mondo risiede nel fatto che, se pensiamo a Roma e Milano, i fashion retail non saturano un infill come nelle strade del lusso prima descritte ma, al contrario, si inseriscono quasi sempre in strutture esistenti, il più delle volte di grande valore storico-ar-

chitettonico. La progettazione è tutta contenuta all’interno del volume costruito. Per dirla con le parole di Adolf Loos, la facciata è muta, parla la vetrina e lo spazio interno.
Sia l’architettura che la moda comunicano attraverso il loro operare una idea di costruzione di una immagine, come si coniuga questa attività con la scelta e definizione di materiali, processi realizzativi e tecnologie?
Ad una latitudine opposta a quella giapponese, è emblematico il caso-studio del flagship store di Fendi a Roma, all’interno del Palazzo Boncompagni Ludovisi, un edificio costruito a cavallo tra il XVIII e il XIX secolo, in Largo Goldoni alla fine di via dei Condotti. A seguito dell’importante restauro e rifunzionalizzazione dell’intero edificio-isolato, l’architetto francese Gwenael Nicolas riesce nell’intenzione di preservare la tradizione italiana (e romana).
Roma Palazzo Fendi costituisce un esempio di come un progetto architettonico riesca a interpretare l’identità del brand, amplificandone il messaggio: lo fa attraverso colori, forme e materiali. Tutto il lavoro si sviluppa all’interno: le tonalità beige del palazzo richiamano l’iconica pelletteria in colori neutri del marchio; gli inserti di marmo, pietra calcarea e argento vengono percepiti come una citazione dell’opulenza dell’antica Roma; la colorazione irregolare, finanche il luccichio dei materiali ricordano la pelliccia, un capo ricorrente nelle collezioni di Fendi. Le forme mutevoli, verticali e rettangolari degli espositori rimandano alla rigorosa geometria del logo (la doppia lettera F) che si riflette anche nelle linee ortogonali del soffitto. Gli spazi di vendita sono organizzati su due piani, collegati da una monumentale scala in marmo di Lepanto. Nel foyer, la parete di travertino romano si fa convessa ed esibisce tracce della facciata dell’iconico Palazzo della Civiltà Italiana (1939-53) progettato da Guerrini, Lapadula e Romano e diventato nel 2013 il quartier generale del
gruppo Fendi. Un altro esempio italiano d’utilizzo di un edificio storico, laddove in altri parti del mondo un headquarter di una casa di moda avrebbe certamente occupato un edificio di nuova costruzione.
Guardando al rapporto tra architettura e moda, quali potrebbero essere gli scenari futuri?
Vorrei parlare di una ricerca sperimentale sulle trasformazioni delle morfologie dei futuri spazi di esibizione e vendita della moda, che dal 2018 sto conducendo con un nutrito gruppo di studiosi, provenienti non solo dalle discipline dell’architettura ma anche dalle scienze sociali. L’esperienza progettuale è preceduta dalla consapevolezza che il cambiamento degli spazi commerciali della moda è meno veloce di quanto si immagini: ancora oggi la maggior parte degli acquisti avviene dentro le mura di uno spazio fisico, realizzato, per così dire, in mattoni e malta. Il consumatore è ancora una creatura intrinsecamente sensoriale e tattile; tuttavia, l’assedio dell’e-commerce potrebbe portare alla stagnazione e l’autocompiacimento dello spazio di vendita tradizionale.
I nuovi sistemi di vendita e i potenti strumenti dello storytelling presenti all’interno del mondo della moda hanno guidato lo sviluppo di un nuovo tipo di interno-architettonico che riesce a veicolare in un luogo fisico una serie di pratiche che ancora non sono state decodificate.
Per la definizione del progetto, il gruppo di ricerca si è servito anche di alcuni sistemi di intelligenza artificiale che di recente si sono affiancati al mondo della progettazione architettonica e della scrittura di contenuti (Content Writing). Attraverso brevi testi, che in gergo informatico si chiamano prompt, abbiamo fornito all’AI ( Artificial Intelligence) un numero di indicazioni per la produzione di immagini che rappresentino alcune caratteristiche dei nuovi spazi di vendita. Le indicazioni riguardano non solo soluzioni spaziali, ma anche concetti filosofici, nuovi modelli di vendita, l’utilizzo di apparecchi tecnologici e di nuovi sistemi di comunicazione. La relativa imprevedibilità di
questo strumento consente di sviluppare soluzioni progettuali inaspettate, ma sempre controllate dal progettista. Nei tre metaprogetti è stato definito uno spazio neutro che viene acceso dallo storytelling che si attiva attraverso la realtà virtuale e che produce l’esperienza immersiva richiesta. Gli esiti finali sono contenuti nelle tavole che concludono il libro, Architecture Meets Fashion [3] in cui si è cercato di sottolineare non solo l’aspetto estetico-formale delle soluzioni progettuali proposte, ma anche di tradurre in semplici schemi la variazione del peso, in termini di metri quadri, delle funzioni all’interno dello spazio di vendita. Il tema principale è la forte diminuzione dello spazio espositivo a favore di quello esperienziale.
Pensando a scenari futuri, credo si debbano accogliere sempre di più tematiche compositive che forniscano una traduzione dell’essenza/ idea in evento/esperienza, aprirsi a sperimentazioni di linguaggi e tecniche, come territori di esplorazione condivisi dove ci siano interrogativi aperti. Si tratta di una progettazione complessa che presuppone interventi ragionati sul tessuto della città e sulle forme dell’architettura in rapporto a quelle del desiderio.

Restauro Villa Le Sentinelle, progetto studio Shiro, Leone Spita + Oretta Orlandini + Marco Sorrentino, la galleria ballatoio con pavimento in pianelle in cotto e copertura con struttura in legno ad unica falda con pianelle in cotto a vista. (foto di Stefano Ridolfi)

su CiL191 Headquarters).
Muratura in mattoni a vista degli originari magazzini ed officine.
Il laterizio, materiale antico ma ampiamente evoluto per le caratteristiche sia prestazionali che figurative, che ha attraversato la storia del costruire indenne dai capricci delle mode e da sterili forme di spettacolarizzazione. Che contributo o nuova chiave di lettura può dare all’ecosistema del fashion, che per sua natura è stagionalmente mutevole e spesso tendente al sensazionalismo?
Penso che questa deriva al sensazionalismo sia equamente distribuita sia nella moda che nell’architettura. Al pari dell’architettura, con la presenza del fenomeno delle archistar, nella moda non è più solo il pregio del materiale a determinare il lusso, ma l’aura del nome e della fama delle grandi case produttrici, il prestigio dell’etichetta: brand architecture e brand clothing che spesso inseguono il principio dell’escalation e dell’eccesso e danno luogo a sistemi di sfida iperrealistici ed emozionali, più che simbolici. Per rispondere a questa domanda dovremmo porci un altro interrogativo: l’architettura, che è una disciplina lenta, in che modo può interpretare per il sistema moda l’incessante ricominciare e ritentare un nuovo che sempre invecchia?
Nell’architettura per la moda occorre innovare, creare, spettacolarizzare, ringiovanire l’immagine. Ma è anche necessario dare spazio al tempo, perpetuare la memoria, creare un’aurea di atemporalità, e in questo senso le caratteristiche prestazionali e figurative del laterizio potrebbero essere utili a fornire allo spazio costruito, potremmo definirla, un’immagine di du-
rabilità, solidità, quasi di eternità. Penso all’interessante operazione di recupero archeologico industriale del Gucci hub (Piuarch, Milano 2016), dove i capannoni a shed in mattoni a faccia vista hanno riacquistato la loro dignità in un restauro che ha saputo esaltare il carattere industriale dei volumi costruiti negli anni ’20, operando necessarie demolizioni di volumi incoerenti senza il timore di inserire un nuovo edificio che si differenziasse per forme e materiali. Il nuovo parallelepipedo, fasciato da scuri frangisole metallici, esalta il mattone a faccia vista delle campate del complesso. Il laterizio, in questo caso, è materiale da costruzione che diventa “sostanza-mattone”. Per spiegarlo, prendo a prestito un concetto dell’architetto giapponese Kengo Kuma, al quale ho dedicato molti anni di studio e una monografia. Kuma ci insegna a non considerare il materiale come una finitura; ciò che egli definisce “la mappatura della texture applicata alla superficie” è solo una pelle di circa 20 mm, sovrapposta al calcestruzzo. È un metodo che ignora il materiale, la sua sostanza. Propone il concetto di “onestà del materiale” che, mentre rompe la distinzione tra struttura e finitura torna a diventare sostanza. Ogniqualvolta che, come progettista, ho avuto l’opportunità di lavorare in contesti storici, penso al restauro di una limonaia del XVII sec. nel complesso “Villa Le Sentinelle” a Firenze [4], ho sempre tenuto a mente che il mattone è una sostanza che ha un’anima.
Nel mito dell’“eterno presente” delle società, nelle quali si assiste alla smania per il rinnovamento e per l’obsolescenza accelerata dei prodotti e dei segni, è interessante scorgere, per compensare e riequilibrare, esigenze nuove di cose senza tempo, perenni, di beni che sfuggano alla fugacità dell’usa e getta.
[1] G. Motta, A. Capanna, L. Spita, Strumenti. Architettura e moda, radici culturali, specificità tecniche, Il Formichiere, Perugia, 2024
[2] https://www.elledecor.com/it/design/a60519496/ fuorisalone-2024-hermes-alla-pelota/
[3] L. Spita, Architecture Meets Fashion, Marsilio editori, Venezia, 2024
[4] http://www.shiroarchitetti.com/ complessovillalesentinelle.html

Antonio Acocella, Partner AFSa, Professore IED
KEYWORDS
Retail
fashion
terracotta
mattoni giulianei
ceramica verde
Retail
fashion
terracotta
mattoni giulianei
green ceramic
L'attività progettuale di Duccio Grassi Architects, dalla sua fondazione nei primi anni Ottanta, si è distinta per la firma di progetti di negozi, hotel e residenze realizzati in geografie molto distanti tra loro, ma legati dalla centralità attribuita alle persone, alle loro emozioni, e dalla curiosità per la ricerca e lo svelamento delle specificità legate a momento e luogo d’intervento.
All’interno del portfolio dello studio, emerge per costanza e consistenza la collaborazione con il brand Max Mara, di comuni origini reggiane, per cui Grassi ha disegnato numerosi showroom in tutto il mondo a partire dal 1983. La collaborazione continuativa (ma affatto esclusiva) con il marchio fondato da Achille Maramotti ha consentito allo studio di evolvere nel tempo un’idea di retail design che, pur nelle declinazioni mutevoli di ciascun momento storico, cerca sempre di rispondere agli obiettivi di comunicazione e vendita del brand e allo stesso tempo di restituire alla città in termini di valore qualificante delle sue interfacce con lo spazio pubblico.
Il nuovo negozio Max Mara a Reggio Emilia, completato nel 2019, è in questo senso emblematico. Affacciato sulla piazza del Duomo e del Municipo con un ampio e scenografico portico vetrato, occupa il piano terra del duecentesco Palazzo delle Notarie, già vivace fulcro della
Duccio Grassi Architects has evolved over time an idea of retail design that, although in the changing declinations of each historical moment, always seeks to respond to the communication and sales objectives of the brand and at the same time to give back to the city in terms of qualifying value of its interfaces with the public space.
vita cittadina come caffè del Novecento. Per la pavimentazione dell’ex-portico, in accordo con la Soprintendenza, si è optato per listelli di terracotta smaltata posati a spina di pesce, in analogia alla soluzione frequentemente adottata negli spazi pubblici urbani del centro-nord Italia; gli stessi elementi laterizi si ritrovano disposti in verticale, allineati su file regolari, a creare fondali materici per esporre le collezioni e celare le necessarie dotazioni impiantistiche. All’interno del negozio, gli stessi pattern sono replicati sulle superfici pavimentali e murarie, ma in una calda tonalità sabbia che sembra voler mediare tra i mattoni del pilastro romanico, affiorante dalla struttura e dal caratteristico capitello in cotto, i laterizi scialbati con leggero intonachino bianco delle possenti volte a crociera, e le altre cromie inserite nella palette materica del nuovo allestimento. Al centro, un divano scultura di Pierre Paulin per La Cividina nei toni del rosso, colore simbolo del brand, è utile ad alleggerire l’effetto del “tutto coordinato” e favorire una percezione più accogliente e domestica allo spazio di vendita.
A Ravenna, Max Mara trova spazio per il proprio store all’interno di un fondo precedentemente utilizzato come panificio, situato nel sedime di una chiesa paleocristiana del VI secolo. Il progetto di restauro restituisce la lettura del tipo originario, svelando la spazialità dell’abside nella sua nudità costruttiva affidata al mattone “giulianeo”, laterizio lungo e basso (circa 48x4cm) della tradizione ravennate, così denominato perchè tipico delle costruzioni promosse da Giuliano Argentario (IV secolo d.C). Il caldo minimalismo e la levigatezza delle ma-
Grassi Architects | Brick identity: tre negozi | Reggio Emilia, Ravenna, Bangkok

Le vetrine sulla piazza (Reggio Emilia)
terie selezionate per il disegno degli interni ottiene l’effetto di celebrare, per contrasto figurale, la ruvida robustezza muraria dell’abside, elemento focale della nuova immagine dello store. Lo svelamento dei mattoni, così come l’utilizzo del fondo oro per una parete espositiva, innescano affascinanti sincretismi tra l’identità visuale delle collezioni del brand e quella della tradizione architettonica e artistica di Ravenna. In un contesto molto differente dalla città storica italiana, nello specifico un mall di Bangkok, Duccio Grassi Architects ha risposto alla richiesta di rinnovamento identitario di Quinn, fashion brand femminile tailandese, attraverso lo sviluppo di un nuovo concept marcato dal protagonismo visivo di elementi ceramici verdi ispirati alla tradizione del Celadon, nato in Cina a
imitazione della giada e successivamente diffuosi ampiamente in tutto l’Estremo Oriente. L’allestimento ruota attorno alla combinazione dei listelli secondo trame e disegni geometrici astratti, capaci di conferire un’atmosfera rilassante e accogliente, dichiaratemente contemporanea ma radicata nella tradizione.
Oggetto Brick identity: tre negozi
Località Reggio Emilia, Ravenna, Bangkok
Committente Max Mara Fashion Group, Quinn
Progetto Architettonico Duccio Grassi Architects
Fotografie Giulio Boem (Reggio Emilia), Duccio Grassi Architects (Ravenna, Bangkok)



La sala con pavimenti in terracotta, pilastro romanico e volte in mattoni (Reggio Emilia). A sinistra, la continuità pavimentale a spina pesce (Reggio Emilia).
Dettaglio dei rivestimenti laterizi verticali (Reggio Emilia).
Grassi Architects | Brick identity: tre negozi | Reggio Emilia, Ravenna, Bangkok




Chiara Testoni, Architetto, PhD
KEYWORDS
Terracotta
Modularità
Matericità
Volta Catalana
Terracotta
Modularity
Texture
Catalan Vaulting
Passeggiando per la frizzante Plaza Catalunya, non è difficile imbattersi in un negozio che cattura l’attenzione per la sua insolita semplicità piuttosto che per gli “strilli” della vetrina. È il negozio in Paseo de Gràcia progettato da Kengo Kuma & Associates per Camper, la celebre azienda spagnola di scarpe da anni associata a uno stile informale che non rinuncia tuttavia a un design accattivante. Lo spazio al piano terra a pianta quadrata è deputato alla vendita mentre una scala rettilinea in fondo al locale conduce al soppalco in cui sono ricavati i servizi igienici e il deposito-magazzino. L’involucro di pareti, pavimenti e soffitto in resina dai toni immacolati dilata la percezione dello spazio che appare luminoso e più ampio del reale, e crea uno sfondo neutro su cui si staglia con vivido contrasto il sistema espositivo, vero (e unico) protagonista della composizione: una serie di elementi curvilinei in terracotta simili ai coppi per forma, cromia e finitura, che si ripetono senza soluzione di continuità su pareti, scaffali, bancone del personale, panca dei clienti, conferendo all’ambiente un’atmosfera materica, calda e avvolgente. Le singole unità in terracotta fungono da supporto alle scarpe consentendo agli articoli di essere esposti singolarmente, in modo da porre l’accento sull’attenzione del brand per i detta-
Kengo Kuma shapes the space of a Camper shop in Barcelona by recalling the technologies and traditional building elements of Catalonia and the Mediterranean (from the Catalan vault to the brick roof tiles), here reinterpreted in a contemporary key through the display system composed of modular terracotta elements giving the space a warm and cosy character.
gli. Nonostante la trama apparentemente articolata, la tecnica di realizzazione è semplice e intuitiva - come spesso accade nelle opere di Kengo Kuma - e basata su incastri a secco supportati da staffe metalliche.
La scelta materica e formale dei moduli in terracotta affonda le radici nella tradizione costruttiva catalana e più in generale del Mediterraneo, che il progetto recupera e rilegge in chiave contemporanea.
Prima fonte d’ispirazione è la tipica bóveda catalana (o volta catalana) che rivive nella sagoma curvilinea dei moduli in terracotta. La storica tecnologia consisteva in un sistema voltato utilizzato per la costruzione dei solai composto da mattoni in laterizio disposti di piatto, giuntati da malta o cemento. Tale tecnica, alternativa alla soluzione strutturale con travi in legno, si sviluppò nell’edilizia civile tra la Catalogna e Valencia intorno al XV secolo ed ebbe ampia diffusione soprattutto a partire dalla metà del XVIII secolo nelle case coloniche e negli edifici urbani popolari; a partire dal XIX secolo, venne estesa anche ad edifici industriali e nobiliari nelle zone di espansione di Barcellona regolate del plan Cerdá, per poi essere soppiantata nel XX secolo dalla diffusione massiva del cemento armato e dell’acciaio. Ancora oggi la volta catalana, presente in molti edifici storici, resta una vivida testimonianza di un sapere costruttivo affidabile ed efficiente: l’ampia popolarità della tecnica era dovuta alle caratteristiche di resistenza e durabilità del laterizio associate a bassi costi di realizzazione e notevole semplicità esecutiva per cui, se la superficie da coprire non era troppo ampia e le maestranze qualificate, era
possibile evitare l’utilizzo di casseforme.
Anche i tradizionali coppi laterizi, ampiamente diffusi nelle coperture dell’edilizia vernacolare mediterranea, sono stati uno stimolo progettuale: un riferimento culturale che ha consentito all’architetto di spaziare nella poetica figurativa di un elemento costruttivo ampiamente utilizzato, seppur diversamente, anche in Giappone. Come afferma infatti lo studio: “sia il Giappone sia la Spagna hanno una lunga tradizione nell’uso di questo elemento architettonico, impiegato però in modi molto diversi: i coppi in Giappone sono smaltati e lucidi mentre quelli nel Mediterraneo sono lasciati al grezzo, in modo che sia leggibile la consistenza del materiale. Questa differenza era di grande interesse per noi e questo progetto è stato una buona occasione per esplorarla”.
Un materiale antico ma sempre performante e dalle ricche potenzialità figurative, che si presta a configurare spazi contemporanei con garbo ed efficacia senza ricorrere all’enfasi della spettacolarizzazione. Nelle parole del progettista: “per noi è entusiasmante utilizzare un materiale tradizionale così antico e trovare nuovi modi per lavorarlo, modellarlo, combinare le sue unità creando elementi architettonici diversi che possano risolvere le esigenze della vita contemporanea”.
Oggetto Camper Paseo de Gràcia
Località Barcellona, Catalogna
Committente Camper
Progetto architettonico Kengo Kuma & Associates
Partners Kengo Kuma, Javier Villar Ruiz
Collaboratori Jaime Fernandez Calvache, Nicola Maniero, Ludovica Cirillo, Kimio Suzuki
Progetto illuminotecnico Viabizzuno
Impresa di costruzione Norden GSE, S.L.U.
Cronologia 2018
Superficie 80 m2
Fotografie

ImagenSubliminal (Miguel de Guzman + Rocio Romero)


Dettaglio degli espositori in terracotta. © ImagenSubliminal (Miguel

© ImagenSubliminal
Le fullonicae di Ostia antica svolgevano un ruolo centrale nel commercio tessile.
Gli scavi e i restauri condotti presso alcune di queste officine hanno permesso di approfondire l’organizzazione di tale industria fondamentale per l’economia locale
Silvia Cigognetti, Dottoranda, Dipartimento di Storia, Disegno e Restauro dell’Architettura, ‘Sapienza’ Università di Roma
KEYWORDS
Archeologia
Conservazione
Fullonica
Paramenti laterizi
Coperture
Archeologiche
Archaeology, Conservation
Fullonica
Brick facades
Archaeological
Shelters
I Romani non lavavano i vestiti in casa: preferivano portarli da professionisti, noti come ‘follatori’; questi ultimi trattavano principalmente la lana, anche se ci sono prove che nelle fullonicae venisse lavorata anche la seta e forse altri tessuti [1]. La procedura per lavare i vestiti era complessa e ingegnosa. Gli indumenti sporchi venivano inizialmente ‘follati’ o calpestati in vasche di legno o in muratura ( pilae fullonicae) riempite con acqua calda e un detergente da operai che saltavano su di essi ( saltus fullonicus). Questo processo poteva durare fino a tre giorni. È da questa fase di calpestio che i termini ‘foulon’, ‘fuller’, ‘tucker’ e ‘walker’ derivano il loro nome1. Il calpestio aiutava a sciogliere lo sporco e permetteva ai detergenti di penetrare nel tessuto (fig. 1).
I detergenti includevano nitrato, potassa, saponaria, urina2 e terra da follone (creta fullonica). Quest’ultima era un minerale con potenti
proprietà sgrassanti, disponibile in molte zone del Mediterraneo, in particolare in Sardegna, a Ponza, Melos e Kimolos [2]. Dopo il lavaggio intensivo, il tessuto veniva accuratamente risciacquato con acqua e battuto per stringere la trama. Successivamente, veniva appeso su travi spesso incassate in pilastri in muratura e lasciato asciugare all’aria (fig. 1). La legge romana garantiva ai follatori il diritto esclusivo di asciugare i vestiti lavati per strada3
Una volta asciutto, il tessuto veniva pettinato ( pectere/polire/carmare) con teste di cardo (carduus) o spine da follone (spinae fulloniae) per sollevare il pelo. Eventuali irregolarità venivano rifinite con cesoie da tosatura.
Dopo questa operazione, i tessuti venivano stesi su un telaio di vimini, curvo o quadrato (viminea cavea), sotto il quale si bruciava zolfo per sbiancarli ( sulfure suffire). Successivamente, i tessuti venivano strofinati con
Th e fullonicae of Ostia Antica represent one of the most significant examples of artisanal activities related to the washing and treatment of fabrics in the Roman world. Dating mostly to the 2nd and 3rd centuries AD, these facilities were used for the cleaning and finishing of textiles – particularly wool – through a process that included washing, fulling, and dyeing.
The fullonicae were equipped with basins where the fabrics were treated with a mixture of water, natural soda, urine (containing ammonia), and clay. Afterwards, the textiles were beaten, stretched out to dry on wooden rods set into brick walls, and, in some cases, dyed. Ostia, with its proximity to Rome’s port, played a crucial role in the textile trade, and the products of the fullonicae from
the provinces were frequently sent to Rome to meet the capital’s demand. T he restoration and conservation work carried out over the years on these structures, particularly on the large fullonica on Via degli Augustali, has aimed to enhance the understanding of the organization and functioning of an industry that was key to the economy of ancient Ostia.
argilla da follone (desquamare) per ravvivare il nitor dei colori sbiaditi dallo zolfo. Tipi diversi di argilla venivano utilizzati per ottenere effetti specifici su tessuti differenti. Le toghe dei candidati alle elezioni, ad esempio, venivano trattate con una creta particolare per renderle di un bianco splendente.
La fase finale della follatura, ovvero la rifinitura ( polire vestimenta), comprendeva un’ulteriore spazzolatura o lisciatura del pelo e la pressatura del tessuto pulito con un apposito torchio ( prelum o pressorium). Le pieghe ben evidenti nelle sculture e nei tessuti conservati testimoniano l’importanza delle mode dell’epoca, che privilegiavano pieghe nette e ordinate. Oltre alle pieghe, il processo di rifinitura conferiva al tessuto morbidezza e lucentezza4 [3]. Queste ricostruzioni astratte delle fasi antiche inerenti al trattamento dei tessuti sono state una caratteristica distintiva anche dell’archeologia delle fullonicae. Ciò che, dal punto di vista archeologico, viene considerato una fullonica, infatti, è solitamente legato alla presenza di elementi che potrebbero, plausibilmente, aver riprodotto alcune o tutte le funzioni descritte in precedenza [4-5].
Le grandi fullonicae di Ostia antica e gli interventi di
A Ostia antica sono state scoperte diverse fullonicae, alcune dalle dimensioni modestissime, altre comparabili con i grandi stabilimenti per il saltus fullonicus rinvenuti a Pompei [6]. Quattro di esse sono state pubblicate nel 1976 da A. Luigi Pietrogrande nell’ottavo volume degli Scavi di Ostia [7], mentre altre due sono state scavate successivamente [8]. Le fullonicae maggiori si trovano lungo via della Fullonica (Regio II, Insula XI, 1) e su via degli Augustali (Regio V, Insula VII, 3) e presentano alcune caratteristiche comuni. L’officina è divisa in due parti distinte: un ampio ambiente (salone o quadriportico) e uno spazio minore (stanza chiusa o cortiletto porticato), disposti lungo un unico asse e comunicanti tramite una porta posta in posizione defilata (fig. 2). Una serie di grandi vasche si trovano nella parte centrale dell’ambiente maggiore; dal fondo lievemente in pendenza per fa-


vorire il riempimento e lo svuotamento, venivano alimentate dallo stesso condotto di entrata e servite da un unico condotto di uscita. In entrambi i casi la sponda delle vasche venne rialzata in un secondo momento, tramite una fila di lastre di pietra, probabilmente per ottenere un piano più solido per battere e pressare le stoffe e le lane, una volta terminato il processo di lavaggio. Gli strumenti per il saltus fullonicus occupano un posto rilevante all’interno dell’ambiente maggiore: i pigiatoi non differiscono da quelli di Ercolano e Pompei e si compongono di un leggero rialzo alla base, degli appoggi laterali e, in alcuni casi, un muro posteriore con fun-
1. Travetti incassati nei pilastri laterizi per l’asciugatura delle vesti (disegno di G. Pascolini, da Pietrogrande 1976, p. 59 [7]).
2. Pianta della grande fullonica di via della Fullonica (da Pietrogrande 1976 [7]).
Risulta evidente la distinzione funzionale degli ambienti, in cui quello con vasche centrali rivestiva un ruolo privilegiato ed è stato quello maggiormente interessato dai restauri novecenteschi.

zione di spalliera. I recipienti fittili utilizzati per la pigiatura erano perlopiù conche dalla forma semiovoidale o dolii incassati nella base di muratura. Alcuni piccoli dolii e conche minori servivano verosimilmente per conservare terre fulloniche e liquidi detergenti.
La presenza delle vasche e degli elementi concavi posti a diverse quote incrementa notevolmente la vulnerabilità di queste architetture rispetto alla pioggia e ad altri fenomeni meteorologici. Per questo motivo, fin dal momento del loro scavo, le fullonicae ostiensi sono state protette con tettoie o coperture architettonicamente configurate, che hanno restituito esiti figurativi e conservativi molto diversi a seconda dei casi5
La grande fullonica di via della Fullonica (II, XI,1), di epoca adrianea, consiste in due sale, separate da un muro con una porta nella parte occidentale (fig. 2). In origine un ingresso tripartito conduceva all’edificio situato a ovest, ma venne successivamente tamponato.
La sala settentrionale è costituita da un cortile con un portico lungo i lati nord, est e sud. Nell’angolo sud-occidentale si trova una panca affiancata da bacini. Nell’angolo nord-occidentale è stato rinvenuto un santuario più antico, che venne conservato durante la costruzione della fullonica. Alcuni dei suoi resti includono un altare o una base in tufo e un mosaico bicromo. Il soffitto – probabilmente a capriate
lignee o a graticci su travicelli – era sostenuto da tre pilastri in laterizi. Nel pavimento della stanza meridionale si trovano tre bacini molto grandi. L’acqua dal bacino più a nord scorreva verso quello centrale e da lì fino al bacino più a sud, tramite tubature di piombo. I fianchi delle vasche sono costituiti da muretti rivestiti da un paramento di mattoni triangolari, mentre il loro fondo è in opus spicatum. Come già accennato, un piano lapideo venne successivamente sovrapposto alle sponde delle vasche.
A est dei bacini si trovano quattro stanze con follatoi di pressatura in terracotta (sei o sette pigiatoi per ciascuna stanza), disposti lungo i lati nord, est e sud. Su entrambi i lati dei bacini si trovano piccoli muri che servivano da poggia braccia per gli uomini che strizzavano i tessuti con i piedi. Altri sedici bacini con poggia braccia sono allineati lungo le pareti ovest e sud della sala. Nella parte nord-orientale del complesso sono state trovate le impronte di altri tre bacini. I vasi utilizzati come pigiatoi erano incassati fino all’orlo nel nucleo di conglomerato cementizio e si presentano alternativamente come conche o come dolii in terracotta.
La posizione della fullonica, nella parte nord-orientale di Ostia, suggerisce che i vestiti lavati in questo edificio appartenessero alle persone che lavoravano nel porto per il governo imperiale, inclusi i vigili del fuoco (Vigiles).
Nel 1912, una grande quantità di materiale

bianco fu trovata in uno dei bacini [9]. Questo materiale si dissolveva in acqua assumendo l’aspetto del sapone. Non conteneva sostanze organiche e probabilmente si trattava della cosiddetta creta fullonica o ‘terra da follone’. Nel corso degli anni Cinquanta, ulteriori scavi hanno messo in luce altri elementi del Caseggiato e chiarito i rapporti tra le parti dello stesso. A seguito di questi scavi sono state realizzate delle tettoie in eternit, molto diffuso in quegli anni, a copertura parziale degli ambienti con vasche6 Nel 1992, a distanza di oltre venti anni dalle precedenti operazioni di restauro, si è intervenuti per ripristinare tali strutture (poichè la norma aveva proibito la produzione dell’eternit, ritenuto cancerogeno, ma non obbligato a una repentina bonifica nelle preesistenze) e per restaurare l’edificio, che appariva fortemente degradato. È stata ricostruita una muratura in cortina con paramento di laterizi triangolari realizzati a mano e sabbiati, di colore giallognolo e rosso (3x12x28 cm). Per la malta di allettamento è stata utilizzata una malta di calce e pozzolana proveniente dalla cava di Valentano. La vecchia copertura in eternit grigio che presentava frequenti rotture è stata rimossa, così come le orditure portanti in legno, predisponendo nuove lastre dello stesso materiale, ma di colore rosso tegola; bisognerà attendere il 2004 per compiere lo smaltimento delle ultime tettoie in eternit degli anni '90 ancora presenti e
sostituirle con le attuali in materiale plastico o fibrocementizio senza amianto7 Il progetto di copertura dell’impianto ha riguardato solo i suoi ambienti perimetrali, in cui sono tuttora conservati dolii ed elementi fittili dalla forma concava. Le vasche centrali non sono state protette e, in passato, questo ha determinato il ristagno di acqua piovana che, in concomitanza con forti gelate, ha comportato il taglio a strati orizzontali del laterizio utilizzato per la pavimentazione in opus spicatum. A questo problema è stato posto rimedio ripulendo e ripristinando la funzionalità della vecchia fognatura per lo scarico delle acque piovane. Da un punto di vista figurativo, l’adozione di singole coperture sui diversi ambienti del complesso e la scelta di non proteggere il vano cen-
4. Vista degli ambienti della fullonica di via della Fullonica coperti con tettoie in fibrocemento più volte sostituite nel corso degli anni che lasciano scoperto il vano centrale dell’ambiente.

5. Vista degli ambienti della fullonica di via degli Augustali con una struttura unitaria che restituisce l’idea di un ambiente interamente coperto.
trale restituiscono l’idea di una struttura aperta centralmente, coerente con l’ipotesi avallata da alcuni studiosi [8]. È opportuno precisare che nel sito archeologico ostiense, le strutture sono state in genere rinvenute in uno stato di significativa frammentarietà, spogliate dei partiti decorativi e totalmente prive di coperture, contrariamente con quanto avvenuto, per esempio, a Pompei ed Ercolano. Questa condizione ha determinato la difficoltà di adottare sempre soluzioni di ripristino delle originarie coperture in cotto, secondo un progetto filologicamente fondato, come invece fatto nel corso del tempo nei siti campani, aprendo a scelte di volta in volta calibrate sul singolo caso per quanto riguarda il disegno architettonico e spesso realizzate con tecnologie coerenti con le prassi operative dell’epoca.
Purtroppo, ad oggi, solo il 5% delle coperture ostiensi, presenta un manto di copertura in coppi o tegole, nonostante questo tipo di protezione, oltre ad avere durabilità e sostenibilità maggiore rispetto alle strutture in resina o in materiale plastico, garantisca anche una migliore protezione dei resti archeologici (fig. 6).
La fullonica di via degli Augustali (V,VII,3) (fig. 3) fu scavata poco prima della Seconda Guerra Mondiale e successivamente tra il 1957 e il 1958 [10]. L’edificio originale risale all’epoca traianea o alla prima età adrianea (come si evince dalle murature in opus mixtum), mentre la fullonica fu installata durante il regno di Marco Aurelio (quando vennero realizzate le murature in opus latericium).
La parte settentrionale dell’officina consiste

in una grande sala o quadriportico, con quattro ampi bacini nel pavimento, profondi 0,90 metri e comunicanti tra loro. La sala era accessibile attraverso una porta situata nella parete orientale. Attorno ai bacini si trova un portico con pavimento in opus spicatum. Nei pilastri sul lato occidentale si trovano piccoli blocchi di travertino con fori quadrati o a forma di U, a un’altezza di circa 2,00 metri. In questi fori venivano inserite travi di legno, utilizzate per stendere i panni (fig. 1).
Erano presenti 35 bacini per la pressatura, con piccoli muri poggia braccia su entrambi i lati, distribuiti lungo le pareti occidentale, settentrionale e orientale, e vicino alle grandi vasche. Piccoli bacini si trovano sul pavimento vicino alla parete meridionale. L’approvvigionamento idrico e il drenaggio avvenivano tramite tubature in terracotta e piombo.
A sud della sala si trovano due piccole stanze, inizialmente accessibili dal vano centrale, ma successivamente solo da sud, attraverso una porta situata nella stanza occidentale. Nel pavimento della stanza a est si trovano due vasi di terracotta e un bacino.
I dispositivi per i lavaggi più importanti e per la sodatura e il complesso dei bacini distribuiti nel portico sud e nel vano contiguo venivano serviti da fogne separate e sembra che anche i condotti idrici fossero distinti.
Già nel corso degli scavi condotti poco prima della Seconda Guerra Mondiale emerse la necessità di ricostruire parzialmente gli elevati dell’intero complesso edilizio e di apprestare coperture permanenti nel sito. Gli interventi più onerosi erano costituiti dalle riprese e dal consolidamento delle strutture murarie, attraverso l’integrazione delle lacune o la protezione delle creste delle murature. In antitesi con quanto fatto nei decenni precedenti, ricorrendo al sottosquadro e marcando la distinguibilità tra architettura antica e nuovo intervento di restauro, le integrazioni realizzate durante questi anni furono di norma mimetiche. Sebbene in questo periodo siano documentati i primi rilevanti acquisti di mattoni moderni grazie all’entità dei finanziamenti disponibili, il loro utilizzo, sempre a filo con le cortine antiche, risulta di gran lunga
Il Thermopolium ostiense: storia e restauro di un wine-bar di età imperiale Le fullonicae di Ostia antica, laboratori per il trattamento dei tessuti
inferiore rispetto al predominante riutilizzo di laterizi antichi recuperati durante gli scavi8 La copertura attualmente visibile (fig. 5) –risalente alla fine del XX secolo – confina interamente il complesso e sfrutta i pilastri in laterizio del quadriportico (debitamente sopraelevati e restaurati) come sostegni per l’orditura lignea che sorregge il piano di tenuta all’acqua realizzato, come sopra descritto secondo tecnologie abusate in quegli anni, con lastre ondulate di fibrocemento dalla pigmentazione rosso mattone. In questo caso, diversamente da quanto fatto per la fullonica precedentemente descritta, il progetto per la struttura di protezione restituisce la spazialità di un ambiente interamente coperto, secondo quanto ipotizzato da altri studiosi [12]. La riconfigurazione spaziale dell’ambiente originario, tuttavia, non è stata accompagnata dalla riproposizione della tecnologia della copertura antica, costituita verosimilmente da un manto in coppi e tegole, che anche in questo caso poteva e rappresenta ancora la migliore soluzione in cui saldare le esigenze di natura architettonica con quelle conservative9, come nei siti campani (fig. 6).
Le fullonicae di Ostia Antica rappresentano un esempio straordinario di infrastrutture industriali dell’epoca romana, dove funzionalità e adattamento architettonico si combinano in modo efficace per rispondere alle esigenze di un’attività economica fondamentale. Dal punto di vista architettonico, le strutture si distinguono per una pianificazione accurata, che prevedeva ampi spazi organizzati per le diverse fasi della lavorazione dei tessuti. Le grandi vasche centrali, i sistemi di drenaggio e approvvigionamento idrico, i pigiatoi e le infrastrutture per l’asciugatura testimoniano una progettazione meticolosa e l’impiego di materiali e tecniche costruttive avanzate per l’epoca.
Le caratteristiche architettoniche delle fullonicae rivelano anche una continua evoluzione, con interventi di modifica come l’innalzamento delle sponde delle vasche per migliorarne la funzionalità.

Gli interventi di restauro illustrati negli esempi descritti in precedenza hanno contribuito in varia misura a porre l’accento su alcune importanti caratteristiche formali dei due complessi. Nel caso della fullonica di via della Fullonica, l’adozione di coperture dei singoli ambienti e gli interventi di consolidamento murario hanno permesso di proteggere le strutture più vulnerabili, lasciando però il vano centrale scoperto: una scelta coerente con l’idea di uno spazio originariamente aperto. Nel caso della fullonica di via degli Augustali, invece, la scelta di una copertura integrale ha restituito l’immagine di un ambiente interamente chiuso, rispecchiando una diversa interpretazione spaziale, certamente più in linea con le esigenze di conservazione dei resti archeologici. Entrambi gli interventi hanno comunque affrontato sfide comuni, come la tutela delle murature, il ristagno delle acque e l’usura delle pavimentazioni in opus spicatum, adottando soluzioni che bilanciassero esigenze di conservazione e fedeltà alle strutture originarie. Questi complessi architettonici, scavati e restaurati nel corso del XX secolo, offrono un contributo significativo alla comprensione della vita economica, sociale e culturale di Ostia antica, sottolineando l’importanza di un approccio integrato che unisca ricerca archeologica e conservazione.
6. Copertura fotovoltaica ibrida installata di recente sul portico meridionale della Villa dei Misteri a Pompei. Gli embrici costituiscono la cella fotovoltaica dalle varie tonalità della terracotta, mentre i coppi sono realizzati in laterizio[13].
[1] H. Granger-Taylor, The emperor’s clothes: the fold-lines, CMABull 74 (1987), pp. 114-123.
[2] R.H.S. Robertson, Fuller’s earth: A history of calcium montmorillonite, Volturna Press, Hythe, 1986.
[3] J. Wild, Textiles, in: D. Strong, D. Brown (Eds.), Roman crafts, Duckworth, London, 1976, pp. 167-178.
[4] M. Bradley, “It all comes out in the wash”: Looking harder at the Roman fullonica, Journal of Roman Archaeology 15 (2002), pp. 20-44.
[5] M. Flohr, The social world of Roman fullonicae, in: M. Driessen, S. Heeren, J. Hendriks, F. Kemmers, R. Visser (Eds.), TRAC 2008. Proceedings of the Eighteenth Annual Theoretical Roman Archaeology Conference, Oxbow Books, Oxford, 2009, pp. 173-186.
[6] W.O. Moeller, The wool trade of ancient Pompeii, Brill, Leiden, 1976.
[7] A.L. Pietrogrande, Le fulloniche, Scavi di Ostia 8, Istituto Poligrafico dello Stato, Roma, 1976.
[8] C. De Ruyt, Les Foulons, artisans des textiles et blanchisseurs, in: J.-P. Descoeudres (Eds.), Ostia port et porte de la Rome antique, Georg Editeur, Genève, 2001, pp. 186-191.
[9] D. Vaglieri, Ostia - Scavi nella necropoli. Scoperta di creta fullonica. Case di via delle Corporazioni. Scavo del teatro e nell’area innanzi ai quattro tempietti, Notizie degli scavi 10 (1913), pp. 71-81.
[10] R. Calza, E. Nash, Ostia, Sansoni, Firenze, 1959, p. 57.
[11] E. Rinaldi, Restauro e conservazione a Ostia nella prima metà del Novecento, Tesi di dottorato, Università degli Studi di Roma Tre, 2012, pp. 77-78.
[12] M. Flohr, The world of the fullo: work, economy, and society in Roman Italy, OUP, Oxford, 2013.
[13] A. Bruni, A.C. Grillo, La copertura fotovoltaica installata sul grande portico meridionale della Villa dei Misteri, in: G. Zuchtriegel, M. Rispoli (Eds.), Villa dei Misteri, artem, Napoli, 2024, pp. 65-74.
Note
1. Si tratta dei termini con i quali venivano indicati, almeno fino al Medioevo, i lavoratori della lana rispettivamente in francese, inglese e tedesco.
2. Le fullonicae erano note per il loro cattivo odore, causato dai detergenti. Ciò doveva avere effetti anche sulla salute dei lavoratori. L’immersione prolungata in acqua rendeva inevitabilmente i piedi e le gambe dei follatori particolarmente vulnerabili a infezioni batteriche, virali e fungine; l’esposizione ripetuta a urina e terra da follone (anche solo per un’ora al giorno) portava rapidamente a dermatiti irritative con pelle ispessita, secca e screpolata. I polmoni dei follatori, esposti quotidianamente allo zolfo bruciato, subivano presumibilmente gravi complicazioni respiratorie [4].
3. Nelle Digestae dell’imperatore Giustiniano tale principio è ulteriormente ribadito (Dig. 43.10.1.4. De via publica et si quid in ea factum esse dicatur).
4. Quella appena descritta è una ricostruzione idealizzata dell’intero processo, ipotizzabile mettendo insieme numerose, ma frammentarie fonti. Non esiste, infatti, un resoconto unico e dettagliato nei testi romani che descriva il processo di follatura. Tra gli autori latini che parlano di una o più fasi del processo possono essere ricordati Catone (De agri cultura), Marziale (Epigrammaton), Plinio il Vecchio (Naturalis Historia), Apuleio (Metamorphoseon), Seneca (De tranquillitate animi), etc.
5. Fino a pochi anni fa il tema della protezione delle aree archeologiche non trovava ampio spazio nella letteratura specialistica, tanto in campo architettonico quanto archeologico. Negli ultimi venticinque anni, grazie alla maggiore sensibilità per i problemi della conservazione dei siti archeologici, si è verificata un’inversione di tendenza: numerosi esperti, afferenti a diversi settori disciplinari, hanno iniziato ad approfondire le questioni relative alla conservazione/protezione del patrimonio archeologico. Il contributo di professionisti provenienti da diversi campi scientifici ha concorso ad ampliare le prospettive degli studi sul tema, che inizialmente erano concentrati principalmente sull’analisi degli aspetti figurativi e tecnologici delle strutture di protezione e consideravano in modo subordinato e sintetico il rapporto che le coperture instaurano con la preesistenza archeologica, la trasformazione delle modalità realizzative e, soprattutto, l’efficacia nel tempo delle soluzioni proposte. Tale tema è stato approfondito dalla scrivente, all’interno della tesi di dottorato in Storia, Disegno e Restauro dell’architettura di ‘Sapienza’ Università di Roma, dal titolo “Protezione e conservazione. Rapporto con la preesistenza, caratterizzazione costruttiva, invecchiamento ed efficacia delle coperture nell’area archeologica di Ostia antica”, tutor Prof.ssa Arch. Donatella Fiorani. 6. Eternit è il nome commerciale di un materiale brevettato nel 1901 dall’austriaco Ludwig Hatschek. Si tratta di una miscela di cemento e fibre di amianto, utilizzata principalmente per la produzione di lastre ondulate, tubazioni e pannelli. G’eternit ha conosciuto una diffusione capillare nel corso del XX secolo, soprattutto nell’edilizia civile e industriale. Tuttavia, a partire dagli anni ‘60, sono emersi gravi problemi legati alla salute. Le fibre di amianto, se inalate, possono causare patologie respiratorie estremamente gravi, tra cui asbestosi, mesotelioma pleurico e carcinoma polmonare. Questi effetti dannosi si manifestano spesso decenni dopo l’esposizione. Risale al 1992 la legge 257, che metteva al bando tutti i prodotti contenenti amianto, vietando l’estrazione, l’importazione, la commercializzazione e la produzione di amianto e di prodotti che lo contenessero e che, di conseguenza, avviava il progressivo processo di dismissione e smantellamento delle strutture realizzate in tale materiale, ma il problema della bonifica dei materiali contenenti amianto persiste ancora oggi, rappresentando una priorità ambientale e sanitaria.
7. Perizia 710/1992 (Archivio Corrente Soprintendenza Archeologica di Ostia antica). Come già accennato nella nota precedente, con la legge italiana del 1992 furono finalmente proibite l’estrazione, la lavorazione e la commercializzazione dell’amianto, ma non ha obbligato a una repentina bonifica. Fino all’esaurimento delle scorte, il materiale continuò a essere venduto e utilizzato anche nel corso del 1994. Anche le ultime lastre in eternit hanno manifestato da subito importanti fenomeni di degrado e sono state sostituite con lastre in materiale plastico e smaltite nel corso di diversi interventi, l’ultimo dei quali datato 2024.
8. Dall’analisi dei rendiconti delle aperture di credito ricevute e delle somme erogate, tra marzo 1938 e settembre 1942, si ricava che vennero acquistati circa 210.000 mattoni moderni di forme e caratteristiche diverse (Archivio di Stato di Roma, sede succursale, Fondo Soprintendenza Archeologica di Ostia-EUR, bb. 51-55) [11].
9. Come già accennato precedentemente, sono pochi i casi di coperture di questo tipo a Ostia antica, mentre numerosi sono gli esempi che possono essere individuati a Pompei; una delle ultime coperture realizzate nel sito campano a protezione del portico meridionale della Villa dei Misteri ha utilizzato una tecnologia mista con embrici fotovoltaici in polietilene o in metallo con le tonalità del cotto e coppi in terracotta inerte. Questa soluzione ha permesso di integrare perfettamente la copertura al contesto archeologico circostante e, al contempo, di renderla sostenibile da un punto di vista ambientale [13].






Vite truciolare con
Colmo ventilato
Scaglia in laterizio
Colmo
Finale
EMISSIONI DI CO2
ENERGIA DI RAFFRESCAMENTO
TEMPERATURA ARIA SOTTO-TEGOLA
Nell’ambito del progetto LIFE SUPERHERO è stata realizzata una nuova copertura ventilata e traspirante con le innovative tegole HEROTILE su due edi ci residenziali pubblici nel comune di Reggio Emilia. Gli edi ci, risalenti agli anni ‘80, sono stati selezionati in base alle scarse prestazioni energetiche e in quanto rappresentativi di una zona climatica tipicamente continentale con temperature rigide in inverno e caldo afose in estate. Il monitoraggio termico della nuova copertura e degli ambienti interni, previsto per l’estate 2025, fornirà un’ampia base dati per dimostrare il bene cio della tecnologia HBR.



Nel cuore dell’entroterra marchigiano colpito dal terremoto del 2016, il recupero
della Villa Gabrielli a Tolentino, edificio storico del primo Novecento simbolo della cultura manifatturiera della moda italiana, coniuga design, tradizione e vocazione all’innovazione nell’Interno Marche Design Experience Hotel
Andrea Valentini, Architetto, Valentini Architetture
KEYWORDS
GBC Historic Building
Patrimonio
storico-culturale
Sostenibilità
Design e moda
GBC Historic Building
Heritage
Sustainability
Design and fashion
IClaudio Tombolini, Ingegnere, ORAstudio
l progetto prevede un approccio olistico teso alla sostenibilità applicata, sin dalle prime fasi progettuali, adottando un modello di “ricostruzione sostenibile” nell’ottica di ripristino dell’edificio post sisma secondo il processo di recupero di uno degli spazi simbolici di Tolentino.
L’edificio Interno Marche Design Hotel è testimonianza della cultura italiana della progettazione divenendo un “presenza museale” della produzione industriale storica del Design del distretto industriale territoriale integrando storia e futuro. Un esempio virtuoso di “rinascita” del genius loci dei borghi della città storiche italiane che coglie il framework dei protocolli energetico ambientale nazionali e internazionali per renderlo un esempio di sostenibilità nella recupero edilizio e di replicazione applicabile non solo alla ricostruzione post sisma ma anche per l’intero patrimonio immobiliare storico, da “esportare” come best practice per i sistemi di rating internazionali
Gianfranco Ruffini, Ingegnere, libero professionista
esaltandone l’innovazione, la specificità e la rigorosità nell’implementazione.
Il progetto prende vita dalla visione di Franco Moschini, figura iconica del design italiano e già insignito del Compasso d’Oro alla carriera, che ha scelto di riportare alla luce Villa Gabrielli, uno splendido esempio di architettura Liberty del 1922, tutelato dalla Soprintendenza per i Beni Architettonici delle Marche.
Questo edificio, simbolo dello sviluppo economico, sociale e culturale di Tolentino nelle Marche, diventa il fulcro di un intervento che non è solo un’opera di restauro di grande valore culturale e architettonico, ma anche un racconto del passato di una comunità e di un territorio, che grazie a questo contenitore di storia e di narrazione si proietta verso un futuro di rinascita e innovazione.
Grazie all’impegno del mecenate Moschini, na-
The first project in the world with the application of a dual certification system GBC Historic Building (the first Platinum Level) and LEED v4 BD+C for Hospitality (the first
LEED Hospitality Platinum Level in Italy).
T he project includes a holistic approach aimed at applied sustainability, from the earliest design stages, adopting a model of
“sustainable reconstruction” with a view to restoring the building post earthquake (Sisma Centro Italia 2016), according to the recovery process of one of Tolentino’s symbolic spaces.
sce Interno Marche, un design experience hotel situato nell’ex opificio che per sessant’anni ha ospitato l’azienda Nazareno Gabrielli, divenuta poi sede di Poltrona Frau e che fu anche abitazione dello stesso Moschini.
Il progetto architettonico ha dato vita a un hotel contemporaneo e dal carattere distintivo, in cui ogni stanza è ispirata a grandi maestri dell’architettura che hanno collaborato con Moschini o con le sue aziende, con gli spazi comuni a fare da tratto di unione della narrazione spaziale ed emotiva.
Michele De Lucchi, Marc Newson, Gae Aulenti, Vico Magistretti, Giò Ponti e Achille Castiglioni sono solo alcuni dei designer rappresentati attraverso ambientazioni, linee, stampe e pezzi iconici. Ogni ambiente dell’hotel racconta, attraverso una rigorosa ricerca filologica, l’opera dei principali interpreti del design. La struttura si propone come una casa-museo in cui è possibile viaggiare tra stilemi e arredi che hanno fatto la storia dell’interior design.
Con oltre 400 pezzi tra opere originali e arredi custom, ogni ambiente dell’hotel è un tributo alla poetica di ciascun autore. Gli arredi iconici, accuratamente selezionati al fine di raccontare nel miglior modo possibile il lavoro dei diversi autori, sono stati riproposti nella versione e nella finitura originali; di fianco ad essi, il progetto degli interni ha previsto una corposa opera di disegno e realizzazione di relativi arredi, al fine di perfezionare le dotazioni funzionali che completano gli spazi comuni e le singole stanze.
L’ampio e ambizioso lavoro è stato caratterizzato da numerosi interventi (strutturali, architettonici, impiantistici, etc.) che hanno consentito il recupero e restauro conservativo del manufatto nel suo aspetto esteriore preservandone i caratteri in stile tardo liberty.
L’esterno è caratterizzato dalla partizione regolare delle facciate, con il laterizio faccia a vista utilizzato come elemento di disegno dei prospetti nelle lesene, nei marcapiani, nei cornicioni. Il progetto ha previsto in questo caso il restauro del laterizio esistente attraverso l’utilizzo di tecniche tradizionali (cuci-scuci, scarnitura, stuccatura dei giunti) unite alle operazioni di rinforzo strutturale che hanno interes-

Oggetto Interno Marche Design Experience Hotel
Località Tolentino
Committente Moschini Spa
Project manager Ing. Barbara Capecci, Chief Real Estate Assets Moschini Spa
Assistant project manager Giorgio De Mattia, Moschini Spa
Consulenza LEED – GBC HB Arch. Andrea Valentini LEED AP – GBC HB AP
Progetto architettonico Interior Design, ORA Studio
Progetto strutture Ing. Gianfranco Ruffini
Progetti impianti meccanici Ing. Michele Sparvoli
Progetto impianti elettrici Per. Ind. Fabrizio Mancini
Landscape designer Dott.ssa Luigina Giordani
Progettazione acustica: Ing. Antonio Iannotti
Impresa di costruzione ALMA di Mancini Srl
Opere landscape Manfrica Service Srl
Cronologia 2021 (progettazione), 2023 (realizzazione)
Superficie lorda 2680 m2
Fotografie Cosé Manuel Rossi + German Bourgeat
Dall'alto, inquadramento zenitale dell’Interno Marche Experience Design, con sede in Villa liberty Gabrielli. e vista dell’hotel da nord-est


sato l’intera struttura. L’intervento sulle facciate esterne è dunque stato caratterizzato dal recupero e dalla conservazione.
L’interno della struttura invece, ha visto un duplice approccio: da un lato conservativo, quando l’edificio presentava caratteri di pregio da preservare; si pensi ad esempio ai pilastri modanati della lobby centrale, ai solai realizzati con voltine in laterizio, agli spazi decorati della “torretta”. Dall’altro lato più contemporaneo ed incisivo, quando gli spazi sono stati rimodulati in modo da ospitare la nuova funzione alberghiera.
Esempio pratico della coesistenza di questo duplice approccio, oltre che cuore del progetto, è la grande Lobby centrale in cui trovano spazio il Desk di prima accoglienza e il Lounge Bar. Si tratta dell’ambiente più luminoso e affascinante della Villa, nel quale originariamente la-
voravano le “gabrielline”, abilissime lavoratrici della pelle che permisero alla Nazareno Gabrielli di affermarsi in ambito nazionale ed internazionale.
Il progetto conferma la spazialità esistente, già di per sé ricchissima, proponendo il restauro delle pilastrate modanate e dei toni di colore originari. L’unica modifica è la creazione dei due accessi speculari su viale Cesare Battisti, che permettono di collegare direttamente questo luogo al prospiciente Viale Cesare Battisti. Nei due accessi l’installazione che raffigura da un lato Efesto e dell’altro Afrodite, simboli e metafore dell’unione tra l’operosità e bellezza che caratterizzano questo luogo.
A fronte di un’impostazione conservativa dello spazio appena descritto, il centro dello spazio stesso è occupato da un segno dichiaratamente contemporaneo: si tratta del grande bancone centrale, un elemento iconico nel suo rivestimento metallico, che ingloba tutte le necessità funzionali, e che è sormontato da un frame dal carattere minimalista che verrà nel tempo occupato da installazioni site specific che, come avviene per gli artworks, sono curate dalla fondazione Design Terrae.
A partire dalla Lobby si sviluppa il sistema distributivo, rappresentato dal grande ascensore centrale e dai corridoi. Il primo, posizionato sul sedime del montacarichi originario, è costituito da un frame metallico che attualizza e reinterpreta profili e reti in ferro con cui era stato costruito il montacarichi originario. I corridoi diventano anch’essi occasioni di progetto e
parte integrante del Design Telling che pervade l’intero progetto, fino a condurre alle stanze, ognuna diversa dalle altre.
Il progetto dal recupero e dalla trasformazione degli spazi di Villa Gabrielli, il filo conduttore con il passato è sempre stato presente anche grazie alla riscoperta e all’attualizzazione di alcuni dei materiali utilizzati nell’epoca di costruzione originaria come la graniglia, il metallo e il laterizio. Il bistrot, al piano interrato, ne è l’emblema grazie alle grandi pareti in mattone faccia a vista e ai solai in voltine. Oltre all’impego dei laterizi, materiali inerti che per loro natura non rilasciano sostanze nocive, il progetto ha previsto una forte attenzione nell’utilizzo di materiali basso emissivi, quali ad esempio gli intonaci isolanti in calce e sughero, con ciclo di vita misurato da LCA (Life Cycle Analysis) e certificato con EPD (Environmental Product Declaration), e la predisposizione di impianti all’avanguardia in grado di garantire il corretto riciclo e qualità dell’aria, assicurando elevati livelli di comfort.
La ricostruzione sostenibile
Il progetto di ospitalità ha ottenuto due certificazioni di eccellenza per la sostenibilità, entrambe con il massimo del punteggio. Si tratta della certificazione LEED®V4 for Hospitality di livello Platino con ben 87 punti, che attesta Interno Marche come primo Hotel LEED Platinum in Italia nel settore alberghiero e terzo nel mondo. Inoltre, l’edifico è stato oggetto della certificazione GBC® Historic Building, protocollo per la conservazione, riqualificazione, recupero e integrazione di edifici storici che attesta Interno Marche Design Experience Hotel come il primo edificio certificato GBC HB livello Platino al mondo con ben 95 punti.
Aver scelto di intraprendere contemporaneamente il processo di certificazione GBC Historic Building® e contemporaneamente la certificazione LEED® V4 for Hospitality per la progettazione e realizzazione dei lavori di restauro del prestigioso edificio architettonico testimonia la volontà illuminata della committenza della Moschini spa di radicarsi ai saperi ed alle artigianalità storiche tipiche della nostra tradizione fortemente orientati alla sostenibilità fa-


cendoli conoscere alla comunità internazionale dei green buildings valorizzando ed internazionalizzando le culture del “ricostruire, riconsolidare” in un ambito territoriale fortemente colpito dagli eventi sismici.
La forza di tale innovazione ha mostrato i primi sintomi di “contagio virtuoso” alla comunità tanto che il Comune di Tolentino sta intraprendendo tale percorso nel restauro del suo edificio simbolo come il Palazzo Comunale di caratteristiche architettoniche storiche di rilievo situato nella piazza centrale decidendo di intraprendere il percorso di certificazione.
Nello specifico l’edificio è stato oggetto di conoscenze analitiche, proprio ai fini dell’applicazione del protocollo GBC HB, nella sua composizione storica, strutturale e materica con delle indagini diagnostiche approfondite sulla forma del degrado. Per lo studio della composizione
con integrazione dell'impianto fotovoltaico
Dettaglio della copertura in tegole di laterizio fotovoltaiche

delle malte sia di allettamento sia di intonaco ed anche dei laterizi sono state effettuate delle analisi allo stereo microscopio e Analisi al microscopio ottico a luce trasmessa (MS e MO).
Tali metodi di analisi stabiliscono se trattasi di malte originarie o legate ad interventi di restauro e che permettono di determinare, per le malte e intonaci, la composizione del legante, degli aggregati e del rapporto, in volume, legante/aggregato. Inoltre, per i laterizi è possibile determinare, secondo tali analisi, la tessitura dell’impasto e la distribuzione e composizione dello smagrante al fine di capire la tipologia di argilla utilizzata e la temperatura di cottura. È stata anche effettuata la Diffrattometria ai raggi X (XRD), tecnica che permette di individuare, in termini qualitativi e semi‐quantitativi, anche i minerali di dimensione inferiore ai 10 micron, non risolvibili con la sola analisi mineralogico‐petrografica.
Un credito del protocollo GBC HB applicato è stato quello di valutare il grado di reversibilità dell’intervento conservativo alfine di garantire la possibilità di eliminazione di inserimenti, sosti-
tuzioni o integrazioni apportate attraverso una progettazione tecnologica di dettaglio, perseguendo la conservazione, ricercando la minimizzazione dei segni di sutura (e quindi di alterazione) fra le strutture storiche e quelle nuove, garantendo il ripristino della condizione antecedente, senza pregiudicare l’integrità delle strutture storiche con valore testimoniale. Seguendo l’area della Valenza Storica del protocollo GBC HB sono state implementate delle tecniche ai fini del Cantiere di Restauro Sostenibile mediante la redazione di un Piano per l’uso di Tecniche di Restauro Sostenibili contenente delle misure atte a garantire il risparmio idrico, l’uso delle acque reflue, delle acque piovane e quelle di lavorazione degli inerti nel cantiere, da utilizzarsi nelle lavorazioni che non necessitano di acqua potabile prevedendo opportune reti di drenaggio, filtrazione e scarico delle acque; promuovendo un uso efficiente delle energie e l’integrazione delle fonti rinnovabili nel cantiere minimizzando le emissioni di gas climalteranti, con particolare riferimento all’uso di tecnologie a basso impatto am-

bientale e con delle misure idonee per ridurre l’impatto visivo del cantiere, anche attraverso schermature e sistemazione a verde.
Inoltre, di particolare interesse è stato l’utilizzo di tegole in laterizio in copertura ad alta riflettanza solare ai fini della riduzione degli effetti dell’isola di calore1 locale, con inserimento in un’apposita area anche di tegole fotovoltaiche tali da integrate architettonicamente e in maniera coerente con il valore storico architettonico dell’edifico oggetto dell’intervento di restauro.
Trattandosi di una struttura alberghiera particolare attenzione è stata rivolta alla gestione delle risorse idriche per l’uso sia interno sia esterno riuscendo ad ottenere rispetto a un edificio similare standard un risparmio di almeno il 45% per le apparecchiature idrosanitarie e rubinetterie. Ai fini irrigui si è installata una vasca di recupero delle acque meteoriche di 20 m3. Inoltre, è stata posta particolare alla scelta delle essenze arboree e arbustive a basso consumo idrico privilegiando le essenze native e autoctone. Ai fini della gestione delle acque meteoriche è stata effettuata una verifica
quali-quantitativa per evitare che la portata di picco e il volume di scarico dopo la riqualificazione del sito superino la portata e il volume antecedente all’intervento di riqualificazione, per un evento meteorico di 24h con tempo di ritorno di 1 e 2 anni. È stato adottato un “Piano di Gestione dei Rifiuti da Demolizione e Costruzione” (PGRC) applicandolo alla totalità delle operazioni eseguite presso il cantiere riuscendo ad inviare per il circa 98% il totale dei rifiuti al riciclo massimizzando il riciclo e il recupero dei rifiuti prodotti al fine di rendere minime le necessità di smaltimento presso discariche e inceneritori e adottando determinati accorgimenti tesi a limitare la produzione di rifiuti in seguito all’esecuzione delle attività di cantiere.
Nell’affrontare il tema del recupero strutturale di Villa Gabrielli ci si è posti una fondamentale domanda: “come coniugare la necessità di raggiugere determinati livelli di sicurezza strutturale con quella di salvaguardare le caratteristiche significative dell’edificio, attivando pro-

cessi di consolidamento e miglioramento sismico non invasivi e rispettosi delle tecniche costruttive dell’epoca?”.
Le strutture verticali furono realizzate in muratura portante di mattoni pieni, con la sola eccezione del grande salone centrale che vedeva la presenza di interessanti pilastrini in calcestruzzo armato, elegantemente sagomati con capitelli sommitali che richiamavano modelli neoclassici.
Quasi tutti i solai presenti erano del tipo a voltine con putrelle metalliche; da segnalare che le voltine erano realizzate in laterizio con una specifica percentuale di vuoti che le rendeva più leggere.
Tale accorgimento risultava all’avanguardia per quel periodo, come del resto lo erano i pilastri in calcestruzzo armato.
Alcuni solai risultavano realizzati in laterocemento gettati in opera, con pignatte all’uopo conformate per accogliere il getto del travetto e l’armatura metallica interna a esso; questi erano presenti nella porzione di edificio interessata da sopraelevazione, realizzata qualche anno dopo la prima edificazione, per accogliere gli appartamenti della famiglia Gabrielli – Brandi.
La struttura portante del tetto era in legno con travetti e tavelle in laterizio. Le prime indagini

effettuate sono state quelle di carattere geologico dalle quali è emerso che la villa era fondata su depositi alluvionali terrazzati composti da ghiaie sabbiose e sabbioso – limose con presenza di lenti limose – sabbiose – argillose, il tutto diffuso in maniera eterogenea. Ricevuti i risultati geologici, si sono prese in esame le fondazioni con specifiche valutazioni effettuate anche sulla base di un quadro fessurativo che permetteva di escludere cedimenti fondali.
In contemporanea sono state prodotte le indagini sulle strutture per individuarne le caratteristiche dimensionali e di resistenza, così da raggiungere un sufficiente livello di conoscenza.
La prima operazione effettuata è stata quella di modellare l’edificio con l’ausilio di software di calcolo strutturale, così da poter meglio comprendere la risposta del fabbricato esistente alle sollecitazioni statiche e sismiche, analizzando anche i vari meccanismi di collasso. È stata quindi svolta una modellazione di progetto, inserendo una struttura metallica composta da elementi verticali solidarizzati con le murature e travature orizzontali finalizzate a sostenere i carichi statici verticali. Di particolare rilevanza è una travatura reticolare che, per mezzo di tiranti, sostiene dall’alto il secondo solaio (piano primo) che in

origine poggiava sui pilastri in calcestruzzo. Affinando la modellazione di progetto è stato possibile definire dimensionalmente gli elementi strutturali metallici così da poter raggiungere livelli di sicurezza adeguati.
Sono state previste demolizioni e smontaggi funzionali ad alleggerire il più possibile le strutture portanti verticali e le fondazioni. A seguire sono stati realizzati i pali di fondazione della nuova struttura metallica collaborante, ritenuta opportuna per evitare cedimenti differenziali, che si sarebbero manifestati realizzando fondazioni dirette. Le fondazioni della struttura in muratura, invece, non sono state interessate da specifici interventi in quanto giudicate ancora efficaci.
Il consolidamento dei setti murari portanti in laterizio è stato effettuato con il metodo del scuci e cuci per salvaguardare e valorizzare la connotazione tipologica delle tecnologie costruttive preesistenti.
Terminata la struttura metallica sono stati realizzati i nuovi solai di piano con putrelle metalliche e tavolato o voltine in laterizio. Il consolidamento dei solai esistenti è stato realizzato con l’utilizzo di connettori e solettina in calcestruzzo armato.
I pregevoli pilastrini in calcestruzzo sono stati resi compatti con fasciature in fibra di carbonio.

Conclusioni
L’istituzione di GBC Historic Building ® , primo protocollo energetico-ambientale rating system pensato per far dialogare i criteri di sostenibilità dello standard LEED ® e il vasto patrimonio di conoscenze proprie del mondo del restauro, è avviato ad un progetto di internazionalizzazione valorizzando ed, esportando a livello globale le eccellenze italiane nel restauro, e fornendo uno strumento di certificazione di sostenibilità degli interventi di conservazione, riqualificazione, recupero e integrazione di edifici ad elevato valore storico testimoniale.
Nota
1. Differenze di gradiente termico fra aree urbanizzate aree verdi.
[1] Restauro e Sostenibilità - Heritage and Sustainability, luglio 2021. REC Magazine Recupero e Conservazione. ISSN 2283-7558
[2] Manuale GBC HISTORIC BUILDING® per il restauro e la riqualificazione sostenibile degli edifici storici. Edizione 2016 - revisione 2021
[3] Restauro e Sostenibilità: percorsi possibili, Alessandro Bozzetti, Maria Adelaide Ricciardi, Costruire in Laterizio 187 (2021) 54-61
[4] LEED Reference Guide for Building Design and Construction LEED BD+C: Hospitality. LEED v4 November 01, 2013. ISBN 978-1-932444-18-6
[5] IMPACT Report – L’impatto dell’edilizia sostenibile certificata in Italia, Green Building Council Italia, 2023
[6] Nelle Marche aprirà un hotel che racconta il design italiano, Caterina Angelucci (17/03/2024) Artribute
Il contributo, anche grazie a un excursus sulle recenti normative in ambito europeo e nazionale, si propone di fare il punto della situazione sulla progettazione antincendio dei sistemi avanzati di chiusura verticale
Claudio Piferi, Professore associato, Dipartimento di Architettura, Università degli Studi di Firenze
Valentina Spagnoli, PhD student, Dipartimento di Architettura, Università degli Studi di Firenze
KEYWORDS
Facciate ventilate
Rivestimenti in laterizio
Strati funzionali
Fuoco incendio
Ventilated facades
Brick cladding
Functional layers
Fire
Fire behavior
Negli ultimi anni la ricerca della qualità complessiva del sistema di chiusura verticale si è andata sviluppando cercando l’accrescimento progressivo delle prestazioni alle quali è chiamato a rispondere tale sistema tecnologico, indagando anche lo sviluppo della stratificazione a secco oltre a quella tradizionale a umido. Da tale presupposto si è imposto il sistema delle facciate a montaggio meccanico caratterizzato dall’introduzione dello strato di ventilazione e dalla capacità di rispondere in maniera esaustiva ai requisiti richiesti. Tali sistemi , infatti, rappresentano l’esito delle innovazioni portate dall’industrializzazione degli elementi costruttivi in forma di strati componibili; le esigenze di miglioramento
del comfort ambientale, di risparmio delle risorse energetiche, di controllo della qualità e dei costi del manufatto edilizio hanno generato un’evoluzione della struttura muraria, con un graduale processo di stratificazione funzionale dell’involucro, caratterizzato dalla specializzazione degli strati e dei materiali, determinando il distacco delle lastre del rivestimento dalla parete e la creazione di una intercapedine d’aria più o meno ventilata [1].
Questo ha fatto sì che anche la prevenzione incendio, a seguito dell’uso di tali soluzioni tecnologiche, si stia evolvendo rapidamente generando l’emanazione di normative e guide sempre più specifiche e di dettaglio [2].
Definire le regole per una corretta progetta-
In recent years, the search for the overall quality of the vertical closure system has been developing by seeking the progressive increase in the performance to which this technological system is called to respond, favouring the development of dry layering over traditional wet layering. This has meant that the fire safety of people
and property as a result of the use of such technological solutions is also evolving rapidly, generating the issuance of increasingly specific and detailed regulations and guides. Defining the rules for proper fire safety design of façades therefore appears to be particularly difficult as complex and multiple types of façades can be realized today, which are
characterized by specific performance even differing from each other in size or in the presence or absence of a few elements and components. The article, also thanks to an excursus on recent regulations in the European and national spheres, aims to take stock of the situation on the fire design of mechanically mounted vertical closure systems.
Comportamento al fuoco delle facciate a montaggio meccanico e prefabbricate con rivestimento in laterizio
zione antincendio delle facciate appare quindi particolarmente difficile in quanto complesse e molteplici sono oggi le tipologie di facciate realizzabili che si caratterizzano per specifiche prestazioni anche differenziandosi tra loro per dimensioni o per la presenza o meno di pochi elementi e componenti.
Oltre alle cosiddette “facciate semplici” nelle quali gli strati e gli elementi funzionali sono assemblati con continuità senza intercapedini d’aria, le tipologie di facciate a doppia pelle possono essere suddivise schematicamente in:
• facciate a doppia parete nelle quali gli strati e/o gli elementi funzionali sono separati da un’intercapedine d’aria non ventilata (simili alle prime in relazione alla sicurezza antincendio);
• facciate a doppia parete nelle quali gli strati e/o gli elementi funzionali sono separati da un’intercapedine d’aria ventilata. Quest’ultime, a loro volta, possono essere ulteriormente classificabili in relazione al requisito di ispezionabilità o meno della lama d’aria: siamo in presenza di facciate ventilate ispezionabili quando l’intercapedine assume spessori uguali o superiori ai 60 cm. Solitamente tali soluzioni sono adottate negli edifici molto alti (grattacieli ad esempio) che prevedono una doppia pelle (quella esterna generalmente vetrata), apribile o fissa, che grazie a corridoi di ventilazione che permettono la presa e l’estrazione controllata dell’aria contribuiscono, in maniera attiva e passiva, ai benefici termoigrometrici dell’edificio. Se l’intercapedine, invece, non è ispezionabile perché di dimensioni ridotte si parla genericamente di facciate ventilate (con spessore dell’intercapedine tra i 4 e 20 cm) o microventilate con spessori inferiori ai 4 cm. Le soluzioni prefabbricate che prevedono l’installazione del rivestimento in laterizio o ceramica precedentemente assemblato con lo strato isolante, possono prevedere una sottile lama d’aria non ispezionabile (in questo caso tra isolante e sottostruttura) oppure essere fissate direttamente al supporto murario non prevedendo alcuna ventilazione.
Il contributo, per brevità di trattazione, si concentra su quelle tipologie, solitamente identifi-

cate con il termine di facciate o pareti ventilate, sebbene tale terminologia possa risultare limitativa rispetto alle molteplici potenzialità dei rivestimenti di facciata a secco [3].
L’attenzione in termini di sicurezza antincendio va posta su tre livelli: il progetto del “sistema facciata”, i componenti e le caratteristiche dell’edificio, e le funzioni che al suo interno vengono svolte. Molto sinteticamente possiamo affermare che tale sistema è caratterizzato dalla presenza di uno schermo protettivo esterno ancorato meccanicamente ad una sottostruttura fissata al supporto murario, in modo da creare un’intercapedine, in parte occupata eventualmente da uno strato isolante e in parte vuota, in grado di generare una lama d’aria. Proprio la presenza di tali molteplici strati funzionali e materiali obbliga il progettista antincendio a porre particolare attenzione a ognuno dei singoli componenti. Questo perché da un lato la presenza dell’intercapedine d’aria può facilitare la diffusione verticale del fuoco e del fumo ai piani superiori dell’edificio, provocando significativi rischi non solo all’involucro ma all’intera struttura e alle persone, dall’altro perché la scelta dei materiali e la progettazione del rivestimento possono incidere fortemente sulla propagazione dell’incendio, sulla stabilità meccanica del rivestimento e sulla sicurezza complessiva.
1. L’incendio del Television Cultural Center (TVCC) di Pechino. Foto di David Gray/Reuters. Fonte: The New York Times (09/02/2009): https:// www.nytimes. com/2009/02/10/ world/asia/10beijing. html


2. Facciata ventilata.
La presenza di giunti aperti nella facciata ventilata può ridurre la propagazione dell’incendio all’interno dell’edificio (rielaborazione arch. Valentina Spagnoli).
L’obiettivo principale è comunque quello di limitare il più possibile la diffusione delle fiamme verso i piani superiori e/o i volumi adiacenti, cercando di evitare il distaccamento e la successiva caduta di porzioni di facciata. Nel primo caso l’“effetto camino” dell’intercapedine d’aria, meccanismo in grado di migliorare le prestazioni termo-igrometriche della facciata, in caso di propagazione di un incendio, può influire negativamente proprio perché la ventilazione accelera la velocità di combustione [4]. L’incendio che nel 2009 (fig. 1), in fase di costruzione, distrusse il grattacielo del Television Cultural Center (TVCC) di Pechino, progettato da OMA, si sviluppò rapidamente proprio per la presenza della facciata ventilata [5]. Tale evento fu così importante per il Paese asiatico che la normativa cinese “Fire-resistance tests – Elements of building construction – Part 1. General requirements”, emanata solo qualche mese prima (26 giugno 2008) e che non presentava specifiche indicazioni rispetto al comportamento al fuoco delle facciate ventilate, fu rapidamente modificata e implementata (marzo 2009): la normativa, così aggiornata, fu applicata sull’edificio che venne ricostruito nel 2012 [6].
Quadro normativo europeo e nazionale
Ai sensi dell’Allegato 1 del Regolamento (UE) n. 305/2011 del Parlamento Europeo del 9 marzo1, tra i requisiti di base delle opere di costruzione è riportato al punto 2, “La sicurezza in caso di incendio”. Nel dettaglio viene specificato che l’opera deve essere concepita e costruita in modo che in caso di incendio:
• la capacità portante dell’edificio possa essere garantita per un periodo di tempo determinato;
• la produzione e la propagazione del fuoco e del fumo all’interno delle opere siano limitate;
• la propagazione del fuoco alle opere vicine sia limitata;
• gli occupanti possano lasciare l’opera o essere soccorsi altrimenti;
• sia presa in considerazione la sicurezza delle squadre di soccorso.
La normativa vigente, europea e nazionale, in termini di progettazione antincendio è decisamente adeguata al raggiungimento di tali obiettivi ed è applicabile anche ai sistemi di facciata a montaggio meccanico.
La norma UNI EN 13501-1:2019, “Classificazione al fuoco dei prodotti e degli elementi da costruzione - Parte 1: Classificazione in base ai risultati delle prove di reazione al fuoco”, regolamenta la classificazione al fuoco dei materiali da costruzione identificando ad esempio con A1 un materiale incombustibile che non contribuisce all’incendio in grado di resistere a elevate temperature, con A2 un materiale con combustibilità limitata, con s1 un materiale che non sviluppa fumi (smoke) o gas tossici e con d0 un materiale che non forma gocce (drops) e particelle ardenti (tab. I)
La Regola Tecnica (RTV) V.13 “Chiusure d’ambito degli edifici civili”, in allegato al Decreto del Ministero dell’Interno del 30 marzo 2022, per la prima volta in Italia, introduce precisi requisiti di comportamento al fuoco per le facciate e le coperture degli edifici civili. Precedentemente, nel nostro Paese era in vigore il Decreto del Ministero degli Interni del 25 gennaio 2019 che rimanda alla Guida Tecnica riguardante i “Requisiti di sicurezza antincendio delle facciate degli edifici civili”, la cui applicazione è però volontaria. La Regola Tecnica introduce differenti tipologie di requisiti per la facciata, come le classi minime di reazione al fuoco dei relativi prodotti e componenti. Inoltre, per quelle ventilate, la RTV specifica che le stesse non devono essere obbligatoriamente dotate di fase di separazione ma devono rispettare differenti requisiti minimi in termini di resistenza al fuoco (tab. II).
Anche la recente normativa UNI 11018:2023 “Facciate ventilate – Parte 1: Caratteristiche prestazionali e terminologia” sembra voler percorrere questa strada, ovvero separare il “sistema facciata” dai materiali del rivestimento: le caratteristiche e le prestazioni richieste agli elementi di rivestimento in relazione allo specifico materiale verranno probabilmente trattate in una seconda parte della norma di prossima uscita che dovrebbe riguardare materiali lapidei, ceramici, cotto, ricomposti (pietra e resine)
Comportamento al fuoco delle facciate a montaggio meccanico e prefabbricate con rivestimento in laterizio
e similari [7]. Tra le principali caratteristiche prestazionali la Norma, al comma 3, articolo 5, riporta proprio la “Sicurezza in caso di incendio”, specificando che in caso di propagazione dell’incendio, la facciata ventilata non deve essere considerata come un unico elemento, ma come una somma di tutti i componenti, che sono direttamente coinvolti in questo evento critico, ovvero lo strato di supporto (considerato elemento portante) e i singoli componenti (isolante, intercapedine d’aria, sottostruttura e rivestimento, considerati elementi portati), specificando comunque che entrambi devono avere caratteristiche di resistenza al fuoco conformi alle disposizioni legislative nazionali (Allegato 1 del D.M. 03.08.2015 “Codice Prevenzione Incendi”) e/o locali in materia di prevenzione incendi per la specifica applicazione. Sempre l’articolo 5 della UNI 11018 definisce specifiche indicazioni rispetto alle caratteristiche che devono possedere l’intercapedine d’aria e lo strato di rivestimento della facciata ventilata (non entrando però nel dettaglio dei materiali). Al fine di limitare la propagazione dell’incen-
Euroclasse
A1
A2
dio nella lama d’aria, in corrispondenza di ogni piano e di eventuali compartimentazioni interne verticali e orizzontali presenti nell’edificio, devono essere progettati degli elementi o dei sistemi di interruzione della continuità della facciata che prevedano, eventualmente, la presenza di giunti aperti, così da condurre il fuoco e/o il fumo all’esterno dell’edificio in più punti (fig. 2). Anche in questo caso gli elementi o i sistemi appositamente progettati dovranno rispettare la normativa vigente nazionale e/o locale in materia di prevenzione incendi. Il comportamento dell’elemento di rivestimento diventa fondamentale sia quando l’incendio si propaga all’interno dell’edificio, sia quando si propaga dall’esterno verso l’interno. Non entrando nel merito delle caratteristiche prestazionali dei materiali utilizzabili, la UNI 11018, ad oggi, specifica che in tal caso il rivestimento dovrà essere protetto esternamente con elementi e sistemi aventi caratteristiche di reazioni e resistenza al fuoco e non fornisce indicazioni specifiche rispetto allo strato di isolamento e alla sottostruttura e ai sistemi di ancoraggio de-
Grado di combustibilità
Incombustibile - nessun contributo all’incendio
Combustibilità limitata - contributo molto limitato all’incendio
B Combustibile - contributo limitato all’incendio
C Combustibile - basso contributo all’incendio
D Combustibile - medio contributo all’incendio
E Combustibile - elevato contributo all’incendio
F Combustibile - altamente infiammabile
Euroclasse Produzione di fumo (s = smoke)
s1
s2
s3
Emissione di fumi molto limitata - bassa velocità
Emissione di fumi moderata - media velocità
Emissione di fumi elevata - alta velocità
Euroclasse Gocciolamento (d = drop)
d0 Assenza di gocciolamento
d1
d2
Produzione limitata di gocce e particelle ardenti
Produzione elevata di gocce e particelle ardenti
Tabella I - Normativa UNI EN 13501-1:2019. Catalogazione delle classi antincendio Reazione al fuoco in base alla combustibilità, alla produzione di fumo e al gocciolamento dei prodotti e degli elementi da costruzione (rielaborazione arch. Valentina Spagnoli)
Caratteristiche facciata
Non ispezionabile, con pelle esterna chiusa
Non ispezionabile, con pelle esterna aperta
Ispezionabile, con pelle esterna chiusa
Ispezionabile, con pelle esterna aperta
Ispezionabile, con pelle esterna aperta o chiusa
*Pelle: ciascuno degli strati, anche realizzati con più materiali, di cui si compone la facciata ventilata
In corrispondenza di ogni piano, l’intercapedine è interrotta da setti di compartimentazione E30, o E60 per chiusure d’ambito di tipo SC
Qualsiasi
In corrispondenza di ogni piano, l’intercapedine è interrotta da setti di compartimentazione E 30 o E 60 per chiusure d’ambito di tipo SC
Qualsiasi
In corrispondenza di ogni piano, l’intercapedine è interrotta da setti di compartimentazione E 30, o E 60 per chiusure d’ambito di tipo SC
Qualsiasi
Qualsiasi
L’intercapedine è provvista di sistema automatico di inibizione, controllo o estinzione dell’incendio esteso a tutta la facciata (capitolo S.6) e dotata di smaltimento di fumi e calore
Per la pelle interna devono essere applicate le stesse prescrizioni previste per le facciate semplici
Per l’intera altezza e per tutti i piani, la pelle interna deve essere EW 30, o EW 60 per chiusure d’ambito di tipo SC
Per la pelle interna devono essere applicate le stesse prescrizioni previste per le facciate semplici
Per l’intera altezza e per tutti i piani, la pelle interna deve essere EW 30, o EW 60 per chiusure d’ambito di tipo SC
Per la pelle interna devono essere applicate le stesse prescrizioni previste per le facciate semplici
Per l’intera altezza e per tutti i piani, la pelle interna deve essere EW 30 (i→o) o EW 60 (o→i) per chiusure d’ambito di tipo SC
Per la pelle interna ed esterna devono essere applicate le stesse prescrizioni previste per le facciate semplici
Tabella II - Requisiti specifici per le facciate ventilate, con riferimento alle prestazioni di resistenza al fuoco di tenuta E e di irraggiamento W (per SC: edifici con altezza h>24 m o che includono compartimenti dove si erogano cure mediche) Regola Tecnica V.13 (rielaborazione arch. Valentina Spagnoli)
mandando i requisiti da soddisfare alla Normativa UNI EN 13501-1:2019.
L’utilizzo di blocchi di laterizio di ultima generazione, quali ad esempio rettificati a setti sottili oppure a isolamento diffuso integrato [8] per realizzare murature massive monostrato ad elevate prestazioni termo-acustiche, può evitare l’uso del pannello isolante a diretto contatto con l’intercapedine d’aria, assicurando maggiori livelli di protezione passiva all'incendio e incrementando sensibilmente le capacità di resistenza al fuoco dell’intero involucro (fig. 3a).
Il disposto normativo, infine, si focalizza sull’integrazione degli impianti nelle facciate ventilate: la lama d’aria, infatti, viene spesso utilizzata come una sorta di cavedio dove far passare, cavi elettrici (fig. 4), oppure parte degli
impianti di adduzione di gas metano. Nel primo caso è opportuno che i cavi siano protetti da adeguati corrugati, nel secondo deve essere realizzato un apposito spazio di confinamento e il componente di rivestimento della facciata deve garantire una buona ventilazione nell’area di transito impiantistica, permettendo la facile ispezione da parte dei tecnici. Vengono affrontati anche i casi, sempre più frequenti, nei quali il rivestimento utilizzato è composto da pannelli fotovoltaici, pannelli solari termici e sistemi micro-eolici: in questi casi la presenza di cavi elettrici incrementa sensibilmente la possibilità di sviluppo di incendi. Questa tipologia di rivestimento, oltre a rispettare la normativa vigente, deve seguire ulteriori accorgimenti rispetto alla corretta progettazione degli stessi,
Comportamento al fuoco delle facciate a montaggio meccanico e prefabbricate con rivestimento in laterizio

del loro alloggiamento e della loro ispezionabilità. In particolare, i cablaggi devono essere raccolti e alloggiati in appositi canali in materiale metallico e i connettori devono essere facilmente ispezionabili.
Conclusioni
L’excursus normativo e la lettura attenta del recente aggiornamento della normativa UNI 11018:2003 avvenuto dopo circa 20 anni dalla sua prima pubblicazione [7] permettono alcune riflessioni che investono il comportamento al fuoco di tali soluzioni tecnologiche e che riguardano da un lato la sottostruttura, i sistemi di ancoraggio e l’isolante termico, e dall’altro il rivestimento. Nel primo caso, come detto, ci si attiene principalmente a norme di carattere generale: i materiali utilizzati sono prevalentemente leghe metalliche per i sistemi di ancoraggio e sottostruttura (il legno, per criticità dovute alla durabilità, alla scarsa precisione nel montaggio e alla difficile regolabilità è stato praticamente
3. Esempio di facciata a) ventilata a montaggio meccanico, installata su muratura massiva di blocchi in laterizio ad elevate prestazioni termiche; b) prefabbricata con pannelli costituiti da listelli in cotto incollati su strato isolante, applicati su muratura in laterizio.
LEGENDA
1. Muratura in blocchi di laterizio
2. Sottostruttura
3. Lama d’aria
4. Sistema di ancoraggio
5. Rivestimento in lastre estruse in laterizio
6. Strato isolante del pannello prefabbricato
7. Rivestimento del pannello prefabbricato in listelli di cotto
5. Schematizzazione di una facciata a montaggio meccanico con rivestimento in laterizio (rielaborazione arch. Massimo Mariani).
abbandonato e limitato all’impiego di rivestimenti nello stesso materiale) e lana di roccia, o lana di vetro, per il materiale isolante2
Per quanto riguarda i materiali di rivestimento, per i quali la casistica è decisamente più am-


6. Tipologie di elementi in laterizio utilizzati come rivestimenti di facciata a montaggio meccanico (rielaborazione arch. Massimo Mariani).
pia, è innegabile che ce ne siano alcuni in grado di fornire prestazioni superiori ad altri in caso di incendio e che non necessitano di ulteriori trattamenti e/o protezioni.
La prevista Parte 2 della norma UNI 11018:2023 dovrebbe fare ulteriore chiarezza sulle proprietà dei singoli prodotti di facciata ma è indubbio che l’uso dei materiali ceramici (laterizio e cotto) (fig. 5) come rivestimento di facciata a montaggio meccanico, oltre alle valenze di carattere estetico e formale e alla facile integrazione nei contesti storici, rappresenta una delle soluzioni materiche più adatte per queste soluzioni tecnologiche, anche in relazione al comportamento al fuoco: questo non solo perché, come noto, sono classificati nella migliore Euroclasse di reazione al fuoco ovvero A1, non essendo infiammabili e non contribuendo così alla propagazione del fuoco, ma anche perché gli spessori (fig. 6) solitamente superiori a quelli di altri materiali (sia che si usino elementi forati, sia piatti) e la bassa conducibilità termica degli elementi in laterizio, rallentano sensibilmente, anche in caso di incendio, la propagazione del calore dall’esterno all’interno [9].
Inoltre, la possibilità di plasmare il rivestimento secondo forme più complesse e l’irregolarità geometrica che spesso contraddistingue gli elementi di rivestimento in laterizio, possono facilitare la presenza di molteplici micro-giunti aperti che compromettono relativamente il funzionamento della ventilazione ma garantiscono una più rapida e facile fuoriuscita dei fumi e del fuoco e la creazione di barriere orizzontali integrate senza dover ricorrere ad altri componenti. È altrettanto ovvio che con sistemi di rivestimento generalmente più pesanti rispetto a quelli realizzati in altri materiali, occorre porre particolare attenzione alla tenuta al fuoco dei sistemi di ancoraggio e della sottostruttura per evitare il distacco e il successivo crollo.
Per quanto riguarda le soluzioni che prevedono un rivestimento in laterizio montato direttamente su uno strato isolante e successivamente ancorato alla parete, il comportamento al fuoco è garantito dall’uso
Comportamento al fuoco delle facciate a montaggio meccanico e prefabbricate con rivestimento in laterizio
del laterizio incombustibile, a protezione dei materiali isolanti. Infatti, il laterizio può avere un'importante funzione protettiva, in particolar modo, per gli isolanti in materiale polimerico, in quanto può assicurare una soluzione complessiva in classe di reazione al fuoco B-s1-d0, altrimenti non ottenibile con l'applicazione dei soli isolanti in facciata. Tali isolanti avranno quindi caratteristiche, per cui in presenza di fiamme, o di forte calore, reagiscono carbonizzando, interrompendo quindi il processo di bruciatura e riducendo il propagarsi dell’incendio e l’emanazione del fumo.
Il recente devastante incendio di Los Angeles ha ulteriormente dimostrato come il comportamento al fuoco di un edificio, soprattutto se l’incendio è di dimensioni vaste e duraturo nel tempo, vari sensibilmente in relazione ai materiali utilizzati per costruirlo e rivestirlo non solo in merito alla reazione e alla resistenza al fuoco, ma anche in considerazione dell'importante rilascio di sostanze pericolose tra cui di CO 2 in seguito ad un incendio.
Infine, un’ultima riflessione che meriterebbe opportuni approfondimenti riguarda la necessità di sviluppare ulteriormente, per questa tipologia di facciate, i principi dell’approccio esigenziale-prestazionale (Fire Safety Engineering) in grado di coniugare le diverse esigenze progettuali con la sicurezza antincendio non limitandosi all’uso di tabelle e so-
PRINCIPALE NORMATIVA DI RIFERIMENTO
luzioni preconfezionate basate su norme rigide e strumenti di calcolo eccessivamente semplici, ma affidandosi a strumenti dinamici in grado di adattarsi alle singole occasioni e di dialogare con le altre “complessità” che oggi caratterizzano un progetto architettonico anche di modesta entità.
Note
1. Pubblicato sulla Gazzetta ufficiale dell’Unione europea il Regolamento (UE) 2024/3110 del Parlamento europeo e del Consiglio del 27 novembre 2024 che fissa norme armonizzate per la commercializzazione dei prodotti da costruzione e abroga il regolamento (UE) n. 305/2011
2. Il materiale isolante che garantisce le migliori prestazioni antincendio appartiene all’Euroclasse A1, come nel caso della lana di roccia oppure A2, s1 e d0 come nel caso della lana di vetro.
[1] Torricelli M. C., Marzi L., Piferi C. (2006). Una ricerca sui sistemi costruttivi in laterizio per la riqualificazione e il recupero del patrimonio esistente. Costruire in Laterizio, n. 113, pp. 60-65.
[2] Mazziotti L. (2023). La progettazione antincendio delle facciate. Grafill s.r.l., Palermo
[3] Piferi C (2016). Il laterizio faccia a vista nei rivestimenti contemporanei. Manuale di progettazione, sperimentazione e buona pratica. Flaccovio editore, Palermo [4] Cascella P. (2019). Prevenzione incendi. In AA.VV. Facciate Ventilate. Elementi di Architettura, Brianza Plastica, Milano, pp. 81-82.
[5] Koolhaas R. (2013). China central television headquarters. The Plan webmagazine. Aviabe at: https://www.theplan.it/architettura/china-centraltelevision-headquarters
[6] Colic A., Pecur I. B. (2020). Influence of Horizontal and Vertical Barriers on Fire Development for Ventilated Façades. Fire Technology, n. 56, pp. 172-175.
[7] Stefanazzi A., Scrinzi G. (2024). I sistemi di rivestimento a parete ventilata e la nuova normativa italiana di settore. Costruire in Laterizio, n.194, pp. 72-79.
[8] Baratta A. F. L., Calcagnini L., Magarò A., Piferi C (2018). L’evoluzione dei prodotti in laterizio. I blocchi a isolamento diffuso per murature armate. Costruire in laterizio, n. 176, pp. 82-87.
[9] Baratta, A.F.L. (2006). Pareti leggere e stratificate in laterizio. Il progetto e la qualità delle pareti di divisione, separazione e tamponamento. Laterservice, Roma, pp. 107-108
• D.M. del 14.10.2022. Modifiche al decreto 26 giugno 1984, concernente «Classificazione di reazione al fuoco ed omologazione dei materiali ai fini della prevenzione incendi», al decreto del 10 marzo 2005, concernente «Classi di reazione al fuoco per i prodotti da costruzione da impiegarsi nelle opere per le quali è prescritto il requisito della sicurezza in caso d’incendio» e al decreto 3 agosto 2015 recante «Approvazione di norme tecniche di prevenzione incendi, ai sensi dell’articolo 15 del decreto legislativo 8 marzo 2006, n. 139».
• Norma UNI 11018-1:2023 “Facciate ventilate - Parte 1: Caratteristiche prestazionali e terminologia”
• Norma UNI EN 13501-1:2019 “Classificazione al fuoco dei prodotti e degli elementi da costruzione - Parte 1: Classificazione in base ai risultati delle prove di reazione al fuoco”
• Testo coordinato dell’Allegato I al D.M. 3 agosto 2015 “Codice di Prevenzione Incendi” - §M.1 “Metodologia per l’ingegneria della sicurezza antincendio” - §V.13 “Chiusure d’ambito degli edifici civili”
• Regolamento (UE) n. 305/2011 del Parlamento Europeo e del Consiglio del 9 marzo 2011. Allegato 1
• Chinese Normative GBT 9978.1-2008 “Fire-resistance tests - Elements of building construction – Part 1. General requirements”. Issued on 26/06/2008. Implemented on 01/03/2009.
• D.M. 25.10.2007. Modifiche al decreto 10 marzo 2005, concernente “Classi di reazione al fuoco per i prodotti da costruzione da impiegarsi nelle opere per le quali è prescritto il requisito della sicurezza in caso d’incendio”.
• D.M. 09.03.2007, “Prestazioni di resistenza al fuoco delle costruzioni nelle attività soggette al controllo del Corpo Nazionale dei Vigili del Fuoco”.
• D.M. 16 02.2007, “Classificazione di resistenza al fuoco di prodotti ed elementi costruttivi di opere da costruzione”.
• D.M. 15.03.2005, “Requisiti di reazione al fuoco dei prodotti da costruzione installati in attività disciplinate da specifiche disposizioni tecniche di prevenzione incendi in base al sistema di classificazione europeo”.
Carlo Dall'Oppio
Laurea e Master in Ingegneria, già Dirigente Generale del Ministero dell’Interno con incarico di Capo del Corpo Nazionale dei Vigili del Fuoco, dopo aver svolto svariate funzioni, tra le quali Direttore Regionale dell’Emilia-Romagna, Piemonte e Calabria, nonché Comandante Provinciale di diverse sedi, quali Milano, Bologna, Trieste, Modena, Forlì-Cesena, Vercelli, Ferrara e Ravenna. Consulente Tecnico d’Ufficio in procedimenti giudiziari presso diverse Procure della Repubblica
KEYWORDS
Incendi
Resistenza al fuoco
Materiali incombustibili
Protezione passiva
Emissioni di CO2
Wildfires
Fire resistance
Non-combustible materials
Passive Protection CO2 emissions
Lo scorso gennaio hanno destato molto scalpore i violenti incendi che hanno devastato la California, lo stato più popoloso degli Stati Uniti, con circa quaranta milioni di abitanti. In particolare, tali eventi, considerati tra i peggiori che abbiano mai colpito la regione, hanno maggiormente interessato la contea di Los Angeles.
Sono andati distrutti migliaia di ettari di aree boschive, infrastrutture, reti tecnologiche e svariate migliaia di abitazioni, con gli edifici di interi quartieri letteralmente rasi al suolo dalle fiamme (fig.1).
Nel pesante bilancio rientrano più di venti vittime, nonché oltre 100.000 abitanti evacuati e circa 200.000 edifici rimasti temporaneamente privi di energia elettrica.
Da quanto è stato possibile desumere dalle notizie pubblicate sui media si ricava che un disastro di tale portata è, probabilmente, imputabile al verificarsi di una concomitanza di più fattori, a prescindere da quali possano essere le cause di innesco dei roghi, sia di origine accidentale che colposa o dolosa, al momento non note.
Innanzitutto, la prolungata siccità che ha interessato le estese aree verdi della regione, rendendo il terreno arido e predisposto alla combustione e creando i presupposti per una facile propagazione delle fiamme. Alla suddetta condizione iniziale si è sommato l’insorgere di venti molto caldi, secchi e di forte intensità, originatisi nelle regioni desertiche interne.
Tali venti, con raffiche che hanno superato abbondantemente la velocità di 100 km/h, hanno creato i presupposti per una facile propagazione degli incendi, con la vegetazione arbustiva della contea divenuta un combustibile in grado di alimentare facilmente gli incendi boschivi con conseguenze, come avviene in tali situazioni, assimilabili a quelle prodotte dai liquidi infiammabili.
Velocità dei venti così sostenute, oltre a contribuire alla veloce propagazione dell’incendio, tramite il trasporto di tizzoni e parti incandescenti a decine di metri di distanza, hanno ostacolato le operazioni di spegnimento delle fiamme, in quanto hanno intralciato o impedito l’opera della componente aerea dei mezzi antincendio, fondamentale per contenere l’incendio e per avere una visione dall’alto delle fasi evolutive dello stesso.
In simili casi, con ampie zone antropizzate confinanti con estensioni boscate o a verde, occorrerebbe realizzare preventivamente delle cosiddette “linee taglia fuoco”, costituite da fasce di terreno dalle quali è stata rimossa la vegetazione, al fine di creare un’area il più possibile priva di materiali combustibili, impedente o limitante la diffusione delle fiamme e facilitante l’accesso alle squadre antincendio.
Tuttavia, l’efficacia di tali misure è fortemente influenzata dalla velocità del vento, in quanto forti raffiche possono comunque consentire a tizzoni accesi di oltrepassare la linea tagliafuoco, in genere della larghezza di alcune decine di metri. In tal caso sarebbe fondamentale che gli edifici confinanti fossero realizzati con strutture e materiali incombustibili.
The recent wildfires in California have been extremely destructive. It is useful to analyze the possible causes behind them and reflect on potential measures to prevent such largescale events from recurring or at least to mitigate their impact. Particular attention is given to the Italian context
Invece, come si è visto dalle immagini, nel caso californiano la quasi totalità degli edifici era costruita in materiali combustibili come il legno, a differenza dell’Italia dove tale tipologia costruttiva è scarsamente diffusa.
Negli Stati Uniti l’utilizzo del legname come materiale da costruzione e da finitura risulta la normalità, innanzitutto per motivi storici e culturali.
Tale modalità costruttiva risulta indubbiamente di veloce esecuzione o modifica, ha requisiti di efficienza energetica e di resistenza all’azione sismica, nonché indubbi risvolti economici, in quanto il materiale generalmente è approvvigionabile in loco. Purtroppo, tali edifici hanno caratteristiche di resistenza al fuoco modeste o nulle, con conseguente facilità di innesco, di ulteriore propagazione e di completa distruzione.


A riguardo, risultano emblematiche le immagini di interi quartieri con gli edifici completamente bruciati e distrutti, con le eccezioni dei pochi manufatti realizzati in muratura di mattoni, quali particolari architettonici, muretti di confine o caminetti domestici comprensivi di focolai e canna fumaria (fig.2). Anche da altre immagini è visibile una serie di edifici allineati sulla costa californiana dei quali è rimasto integro solo quello realizzato in muratura, mentre quelli realizzati in legno risultano completamente distrutti. Il disastro californiano sarebbe difficilmente replicabile in Italia considerato che il nostro patrimonio edilizio è storicamente costituito da edifici prevalentemente realizzati in muratura di laterizi, di per sé incombustibili.
Ma non solo, la muratura in laterizio possiede rilevanti caratteristiche di resistenza al fuoco, ad esempio la tipologia più comune, realizzata con la classica muratura a due teste di mattoni intonacati, pari ad uno spessore di circa 30 centimetri, resiste agli effetti dell’incendio per almeno due ore.
A nche l’ulteriore tipologia costruttiva diffusa in Italia, costituita dagli edifici realizzati con strutture in conglomerato cementizio armato, possiede elevate caratteristiche di resistenza al fuoco, con conseguente ottimale risposta agli effetti di un incendio.
A nalogamente, relativamente ai materiali di finitura, anche all’interno delle nostre abitazioni abbiamo un maggior utilizzo di materiali incombustibili, quali pareti intonacate e pavimentazioni di ceramica, mentre gli arredi risultano inevitabilmente combustibili.
Da quanto sopra descritto ne consegue che la propagazione dell’incendio da un edificio all’altro può avvenire solamente tramite le aperture dell’immobile, quali porte e finestre Inoltre, in tale situazione l’opera dei soccorritori risulta facilitata, in quanto devono effettuare un’azione di raffreddamento delle solo aperture dell’edificio, peraltro con una minore necessità di risorse idriche.
D al punto di vista ambientale si rileva che una limitazione alla propagazione e alla estensione degli incendi di tali dimensioni comporta anche il rilascio in atmosfera di un minor quantitativo di anidride carbonica (C O 2 ), in linea con quanto previsto dalle ultime strategie politiche europee1
Da ultimo, preme evidenziare come l’edilizia storicamente edificata nel nostro Paese risponda agli obiettivi posti da decenni dalle direttive europee, le quali prevedono che l’opera sia concepita e costruita in modo che in caso di incendio siano garantite, per un tempo predeterminato, la capacità portante dell’edificio, la limitazione della propagazione del fuoco e del fumo all’interno dello stesso e a quelli vicini, nonché la possibilità che gli occupanti possano uscire all’esterno e che sia presa in considerazione la sicurezza dei soccorritori.
Eventi come quelli californiani ci confermano la bontà delle misure di protezione passiva utilizzate in Italia e suggeriscono la necessità di proseguire su tale linea in maniera ancora più incisiva, potenziandole, ad esempio con un maggior utilizzo di materiali incombustibili anche per tutta la stratigrafia dell’involucro edilizio, compresi i rivestimenti esterni.
1. California, gennaio 2025: intero quartiere distrutto dalle fiamme. The Palisades Fire (Satellite image ©2025 Maxar Technologies)
2. California, gennaio 2025: abitazione ridotta in polvere e detriti, solo il manufatto in mattoni ha resistito all'incendio (U.S. January 8, 2025. REUTERSZaydee Sanchez)
Not a
1. Green Deal europeo, strategia di crescita dell’UE lanciata nel 2019, che consiste in un pacchetto di iniziative hanno avviato alla transizione ecologica, con l’obiettivo ultimo di raggiungere la neutralità climatica entro il 2050.
L’involucro dell’edificio che ospita la sede della casa di Moda Céline a Seoul è caratterizzato da innovativo rivestimento in laterizio messo a punto grazie alla collaborazione tra progettisti e produttori che ha consentito di raggiungere esiti originali dal punto di vista tecnico ed espressivo
KEYWORDS
Casper Mueller Kneer
Associati
Retail
Rivestimento in mattoni faccia a vista
Trasparenza
Casper Mueller Kneer
Associates
Retail
Facing bricks cladding
Transparency
Il progetto dell’edificio che ospita la sede della casa di Moda Céline a Seoul, sviluppato dallo studio Casper Mueller Kneer Associati1 tra il 2015 e il 2017, si caratterizza per la presenza di un rivestimento in laterizio che assume la duplice funzione di regolarizzare le differenze volumetriche dei diversi piani e di creare allo stesso tempo molteplici livelli di trasparenza in corrispondenza delle chiusure finestrate. L’edificio occupa l’angolo di un isolato del distretto Cheongdam-dong e si sviluppa su sette livelli. Il piano terra e il primo piano sono destinati alle funzioni espositive e di vendita della casa di moda, mentre i piani superiori, collegati a terra da una scala indipendente, hanno una destinazione mista. Al la complessa articolazione volumetrica dell’edificio i progettisti hanno opposto la semplicità di un rivestimento in mattoni che stabilisce un preciso rapporto dei fronti principali, con le strade su cui si affacciano. L’idea di un rivestimento appeso alla struttura sottostante, attraverso un particolare sistema a montanti e traversi metallici, e costituito dalla giustapposizione di elementi in laterizio di differenti dimensioni, ha consentito di gestire con grande libertà e secondo una elevata varietà di combinazioni il rapporto tra massivo e leggero, e tra opaco e trasparente nella
The envelope of Celine fashion house headquarters in Seoul is characterized by an innovative brick cladding developed thanks to the collaboration between designers and manufacturers that has allowed to achieve original results from a technical and expressive point of view
composizione dei fronti. In corrispondenza del piano terra il rivestimento si presenta compatto e si interrompe unicamente negli ingressi. In corrispondenza del primo piano la finestratura che si estende lungo i tre fronti principali è lasciata a vista: il rivestimento si sovrappone soltanto nella parte alta delle chiusure trasparenti presentando una tessitura con numerose aperture. Ai piani superiori, il rivestimento assume livelli di maggiore o minor trasparenza in relazione al posizionamento delle finestre. Salendo verso l’alto il livello di trasparenza cambia in relazione al differente rapporto che si stabilisce tra gli spazi interni e lo spazio urbano. La messa a punto del sistema costruttivo ha visto il coinvolgimento di produttori italiani per la fornitura sia dei laterizi sia delle malte, che hanno sperimentato soluzioni specifiche per questa applicazione. Infatti, la ricerca di diversi livelli di trasparenza e quindi di spaziature differenziate tra i mattoni ha reso necessaria la realizzazione di mattoni che, oltre a presentare colorazioni speciali, comprese tra il bianco e il grigio, avessero dimensioni in lunghezza molto superiori a quelli tradizionali. Allo stesso, modo la ricerca della monoliticità della muratura laddove essa si presenta con tessitura continua è stata ottenuta mediante la realizzazione di giunti a filo particolarmente spessi realizzati con malte appositamente confezionate nella colorazione, abbinata a quella dei mattoni, e nella granulometria.
Nota 1. Il team di progetto è composto da Marianne Mueller, Olaf Kneer, George Barer, Vicente Hernandez, Kyung Tae Jung, Sabrina Rothe

Sezione verticale, orizzontale e prospetto del fronte ovest
Il rivestimento in laterizio è fissato alla struttura attraverso una sistema di montanti e di correnti in acciaio. La giustapposizione di elementi in laterizio di differenti dimensioni consente di ottenere una tessitura muraria con trasparenza differenziata in relazione al tipo di tamponamento retrostante, caratterizzando al contempo i fronti dell’edificio.
1. finestra piani superiori
2. struttura portante
3. rivestimento in laterizio
4. montante in acciaio
5. tamponamento cieco
6. staffa fissaggio sottostruttura
7. corrente in acciaio
8. vetrata primo piano


Casper Mueller Kneer Associati, Céline Flagship Building, Seoul, 2017

Sezione verticale e prospetto del fronte nord
Nell’attacco a terra il rivestimento presenta una immagine massiva rimarcata dall’arretramento della porta di ingresso ad angolo rispetto al filo facciata.
1. staffa fissaggio sottostruttura
2. montante in acciaio
3. rivestimento in laterizio
4. vetrata primo piano
5. struttura portante
6. controparete interna
7. corrente in acciaio
8. porta di ingresso


HARQUITECTES , Cantina Clos Pachem, Gratallops, 2019

Sezione verticale e prospetto del fronte sud
Al primo piano, il rivestimento presenta un taglio orizzontale che si sviluppa lungo i tre fronti. Lungo i fronti nord e ovest il taglio permette la piena trasparenza della chiusura grazie a un’ampia finestratura, mentre lungo il fronte nord esse mette in vista un tamponamento cieco rivestito con elementi vetrati che determinano la continuità formale con la finestratura.
1. staffa fissaggio sottostruttura
2. montante in acciaio
3. rivestimento in laterizio
4. corrente in acciaio
5. rivestimento vetrato opaco
6. struttura portante
7. tamponamento opaco
8. controparete interna



Forme e linguaggi della moda
Il volume nasce da una ricerca svolta alla Sapienza di Roma (Ateneo a cui i curatori fanno o hanno fatto riferimento).
Riflette su contemporaneità, cambiamenti di costume, dinamiche socio-politiche ed economiche.
I contributi di vari dipartimenti romani e di altre Università italiane e straniere raccontano gli ambienti culturali riferiti al sistema Moda; progettazione e comunicazione; spazi per commercio, produzione, musealizzazione, spettacolarizzazione.
Immagini e progetti a corredo testimoniano l’evoluzione stilistica e il cambiamento epocale. La rievocazione storica parte dal XVI secolo e affronta il percorso della moda romana dall’Ottocento; Dandy e dandysmo in Europa e in Russia; semiotica del vestiario russo dalla fi nis imperii alla subcultura sovietica; Belle époque; Balenciaga; magia del plissé; archivi; progetto degli spazi; Piper, piperismi, progetti pop; effimero nel Cinquecento francese; antichi e nuovi restauri; luce nell’exhibit design; scenografia; sostenibilità; nuovi modelli di consumo.
Indaga la sperimentazione di forme e linguaggi, nell’architettura del commercio, il modo di interpretare spazi virtuali e fisici a percezione aumentata; poi il valore culturale e multidisciplinare di fashion realm, retail, allestimenti, eventi, interior design.
Strumenti. Architettura e moda, radici culturali, specificità tecniche
■ Giovanna Motta, Leone Spita, Alessandra Capanna Il Formichiere Editore (Foligno), 2024 Pp. 370, € 30

Il museo milanese di Palazzo Morando, al centro del quadrilatero della moda, ospita fino al 15 giugno una mostra organizzata dalla società Lorenzo Galtrucco, accompagnata da questo catalogo. Per le curatrici (la Coppa, architetto, giornalista e docente; Rosina e Morini, studiose e docenti di tessile e moda) protagonisti sono gli indimenticati tessuti Galtrucco, marchio storico italiano, nato nel 1885 a Robbio in Lomellina; le vetrine sfolgoranti e gli eleganti allestimenti interni dei suoi negozi di Novara, Torino, Milano, Roma, Trieste, Genova; salotti di vendita progettati da famosi architetti (Ulrich, Bega, Pinto), arricchiti da ceramiche di Melotti e dipinti di Brunetta. Nel 2001 l’azienda ha cessato l’attività commerciale, mantenendo l’archivio e il ramo immobiliare, con le sedi e il Salone dei Tessuti.
Il volume ne rievoca la storia, con foto degli interni, degli allestimenti, di vetrine, figurini, riproduzioni di tessuti, dépliant pubblicitari, disegni tecnici; con descrizioni anche a schede delle stoffe per abbigliamento e delle modalità di confezionamento degli abiti; con riferimenti alla conservazione nella sede milanese di via San Gregorio e di Grandate (presso Clerici Tessuto), di documenti, oggetti, campionari, carte prova e tirelle tessuti.
Galtrucco. Tessuti Moda
Architettura
■ a cura di Alessandra Coppa, Margherita Rosina con Enrica Morini
Moebius edizioni (Milano), 2024
Pp. 160, € 35,00

Il volume nasce da una ricerca dell'Università romana La Sapienza che studia la cultura materiale e identitaria del sistema moda e il suo legame con l'architettura e la sperimentazione tecnologica applicate alla città, all'interior design, ai processi di produzione, vendita, consumo ed esposizione dei prodotti. Attraverso saggi storici e analitici, interviste e progetti interdisciplinari, i due autori (docenti alla Sapienza, dove dirigono un Corso di specializzazione nella progettazione, comunicazione e gestione di spazi per la moda, per eventi e attività legate al mondo del fashion realm, spazi espositivi e allestimenti urbani), insieme ad Alessandra Muntoni e Antonella Greco, approfondiscono i modi in cui architettura e moda si intrecciano. Sia la moda che l'architettura rappresentano stili di vita e intercettano ed esibiscono il cambiamento delle città. L'analisi si completa con ulteriori due sezioni: Intermezzo presenta le cartografie delle principali città della moda contemporanea, con una mappatura dei luoghi più significativi; Progetti propone una sperimentazione condotta dal gruppo di lavoro con l'ausilio dell'intelligenza artificiale, che esplora gli spazi dedicati a esposizione, produzione e vendita della moda stessa.
Architecture Meets Fashion
■ Alessandra Capanna, Leone Spita
Marsilio Arte (Venezia), 2024 Pp. 176, € 29,00

Il volume, ricco di grafici, schemi, casi-studio, presenta progetti pionieristici e materiali innovativi per l’edilizia. Il curatore, direttore di Green Building Council GBC Italia, con più esperti del settore dell'edilizia, riflette sull’economia circolare, con obiettivi su clima e biodiversità. Si compone di quattro parti: la prima auspica norme, protocolli energetico-ambientali - Leed, Breeam, Level(s) - sistemi digitali, banche dati, strumenti finanziari, citando BAMB (Buildings As Material Banks), Globechain, Madaster e, per il ciclo di vita, Life Cycle Thinking (LCT), Life Cycle Assessment (LCA), Life Cycle Costing (LCC), Social-LCA. La seconda parte affronta le problematiche di cantiere: flussi di materiale, digitalizzazione; industrializzazione; recupero materiali; efficientamento energetico; stampa 3D. La terza riguarda i neomateriali edilizi, con un focus sui concetti di riutilizzo, durabilità, adattabilità e rigenerazione, declinati anche per i prodotti ceramici, che giocano un ruolo cruciale nella realizzazione di edifici sostenibili e a basso impatto.
Rispetto ai prodotti ceramici emerge l'efficienza in termini dell'uso delle risorse e la loro lunga durata; a fine vita possono essere recuperati e riutilizzati o riciclati come inerti. L’ultima parte riassume nuove materie e relative applicazioni.
Building. Neomateriali nell’economia circolare ■ a cura di Marco Caffi Edizioni Ambiente (Milano), 2024 Pp. 240, € 40,00
Direttore responsabile/Editor in Chief
Andrea Serri aserri@confindustriaceramica.it telefono 0536.818280
Direzione editoriale/Editorial Direction
Alfonsina Di Fusco adifusco@confindustriaceramica.it tel. +39 (0)644236926
Redazione/Editorial O ffice: Livia Randaccio (responsabile) Livia@vgambinoeditore.it tel. 02 47761275
Comitato di redazione/Editorial Board
Giovanni D’Anna, Adalgisa Donatelli, Elisa Di Giuseppe, Alberto Ferraresi, Roberto Gamba, Flavia Santia, Pasqualino Solomita, Chiara Testoni
Comitato scientifico/ Scientific Advisory Board
Alfonso Acocella (Università di Ferrara), Adolfo F. L. Baratta (Università Roma Tre), Andrea Campioli (Politecnico di Milano), Jean Luc Chevalier (CSTB Parigi), Marco D’Orazio (Università Politecnica delle Marche, Ancona), Manuel Garcìa Roig (ETSAM Madrid), Zheng Shilling (Tongji University Shanghai), M. Chiara Torricelli (Università di Firenze)
Comitato direttivo/Managing Board
Luigi Di Carlantonio, Vincenzo Briziarelli, Mario Cunial, Roberto Danesi
Coordinamento stampa, grafica e impaginazione/Printing Coordination, Graphic & Editing
Raffaella Sesia
Hanno collaborato a questo fascicolo/ Contributors to This Edition
Chiara Testoni (curatore Architettura), Antonio Acocella, Andrea Campioli, Silvia Cigognetti, Carlo Dall’Oppio, Adolfo F. L. Baratta, Alberto Ferraresi, Roberto Gamba, Ernesto Maria Giuffrè, Massimiliano Mandarini, Claudio Piferi, Gianfranco Ruffini, Pasqualino Solomita, Valentina Spagnoli, Claudio Tombolini, Andrea Valentini
Abbonamenti/Subscriptions
Edi.Cer. SpA Società Unipersonale, viale Monte Santo, 40 - 41049 Sassuolo (MO) tel. 0536 804585 - email info@edicer.it
Tariffe per l'Italia
cartaceo annuale € 34,00 (estero € 44,00 ); cartaceo biennale € 60,00; digitale annuale € 24,00.; copia singola € 15, 00.

Per abbonarsi a Costruire in Laterizio è sufficiente versare l’importo sul C/C postale n° 10505410 intestato a Edi.Cer. SpA Società Unipersonale, viale Monte Santo, 40 - 41049 Sassuolo (MO). Gli abbonamenti decorrono dal mese successivo al ricevimento del pagamento.
Ufficio commerciale
vendita spazi pubblicitari/ Commercial Department Sale of Advertising Spaces Pool Magazine di Mariarosa Morselli tel. 059 344455 -335391555 m.morselli@pool.mo.it
Virginia Gambino Editore Tel. +39 02 47761275 - cell. + 39 340 1761951 info@vgambinoeditore.it
Stampa/Printing
Pixartprinting S.p.A. stabilimento Lavis – Trento


Responsabilità/Responsibility
La riproduzione delle illustrazioni e articoli pubblicatidalla rivista, nonché la loro traduzione è riservata e non può avvenire senza espressa autorizzazione della Casa editrice. I manoscritti e le illustrazioni inviati alla redazione non saranno restituiti, anche se non pubblicati e la Casa editrice non si assume responsabilità nel caso di eventuali errori contenuti negli articoli pubblicati o di errori in cui fosse incorsa nella loro riproduzione sulla rivista.

Periodicità/Frequency of Publication: Quadrimestrale.
Diffusione cartacea 5.000
Diffusione digitale 50.000
Registrazione/Registration: n. 869 del 18/12/1987 - Tribunale di MilanoIscritta al ROC Registro degli Operatori di Comunicazione al numero 6524 (delibera 236/01/ Cons. del 30/6/01 dell’Autorità per le Garanzie nelle Comunicazioni).
Per comunicare con la nostra redazione: costruire@laterizio.it www.laterizio.it





Sì, desidero abbonarmi per un anno a 34,00 € (car ta + digitale)
Sì, desidero abbonarmi per un anno a 24,00 € (solo digitale)
Cognome Nome
E-mail*
Azienda
Indirizzo
CAP Città Prov Naz
Telefono Fax
Attività/Settore
Cod Fiscale P.IVA
C/C postale n° 10505410 intestato a Edi.Cer. SpA Società Unipersonale, viale Monte Santo, 40 - 41049 Sassuolo (MO)
IBAN EDI.CER. SPA: IT 54 N 05387 67010 0000 0000 7316 - Per info: tel. 0536 804585 - email info@edicer.it
*AT TENZIONE L’indirizzo e-mail è fondamentale per poterti inviare i dati d’accesso alla versione digitale della rivista. Modalità di pagamento
Informativa sulla privacy ai sensi del Regolamento Europeo sulla Protezione dei Dati
Agenzia esclusiva per la pubblicità
In conformità agli art. 13-14 del Regolamento Europeo 2016/679 (di seguito, anche “GDPR”) La informiamo che Edi. Cer. S.p.A., in qualità di Titolare, tratta i Suoi dati per l’erogazione del servizio di abbonamento annuale a CIL come descritto nel presente modulo. Il conferimento dei dati per tale finalità è facoltativo, ma si rende necessario per adempiere alla sua richiesta. I suoi dati personali saranno trattati con modalità elettroniche e/o telematiche, nel rispetto delle misure previste dagli artt. 6, 32 del GDPR e mediante l'adozione delle adeguate misure di sicurezza previste. I dati saranno trattati da personale debitamente autorizzato al trattamento dal Titolare per l'esecuzione delle attività necessarie ad una corretta gestione del servizio e - in caso di abbonamento cartaceo - comunicati ad un soggetto esterno che opera in qualità di Responsabile del trattamento, limitatamente alle attività di lavorazione e spedizione necessarie all'erogazione del servizio. È possibile richiedere informazioni sul Responsabile del trattamento scrivendo al Titolare. I Suoi dati non saranno diffusi. Le segnaliamo che, nel rispetto dei principi di liceità, limitazione delle finalità e minimizzazione dei dati, ai sensi dell’art. 5 del GDPR, i dati conferiti saranno conservati solo per il periodo strettamente necessario all'erogazione del servizio. Titolare: il Titolare del trattamento dei dati è Edi.Cer. S.p.A. - Viale Monte Santo 40 -41049 Sassuolo (MO). Lei ha diritto di ottenere dal Titolare l’informativa estesa ed esercitare i diritti generali previsti dagli artt. 15, 16, 17, 18, 19, 20, 21, 22 del Regolamento Europeo 2016/679 nonché la cancellazione (diritto all'oblio), la limitazione, l'aggiornamento, la rettificazione, la portabilità, l'opposizione al trattamento dei dati personali che La riguardano la possibilitàdi effettuare reclamo presso l’Autorità di controllo scrivendo a info@edicer.it.
Acconsento all’utilizzo dei dati per la finalità di registrazione e fruizione del servizio di abbonamento a CIL
Acconsento all’utilizzo dei dati per inviare aggiornamenti su attività collaterali (ceramica, laterizi e/o arredo bagno) del Titolare del trattamento [SI] [NO]
Per una copertura resistente al maltempo più ostile
Particolarmente adatti nelle zone ad elevate escursioni termiche, i prodotti ICP della Linea Winter non temono neve, ghiaccio, grandine ed altre avversità, superando brillantemente la sfida dei climi rigidi ed eventi climatici straordinari.







Certificazione Classe HIR 4 di resistenza alla grandine
_Chicco di grandine: 40 mm
_Velocità di impatto: 100 km/h

360o di competenza per un involucro edilizio che protegge, isola e respira
