
La Fiera delle Costruzioni
progettazione, edilizia, impianti
![]()

progettazione, edilizia, impianti

L'appuntamento di riferimento per il mercato e i professionisti delle costruzioni
Settori espositivi: Progettazione e Digitalizzazione, Edilizia, Impianti, Servizi
Saloni speciali dedicati a: Calcestruzzo, Infrastrutture, Serramenti, Finiture e Colore, Pavimenti e Rivestimenti, Macchine e Attrezzature, Offsite
SAIE È UN NUOVO SAIE: la fiera non dimentica il passato e guarda al futuro già oggi presente. L'occasione in cui la community delle costruzioni si incontra trovando ispirazione sulle più recenti novità proposte dalle aziende protagoniste del mercato. Richiedi
I numeri dell'ultima edizione di SAIE Bologna 2022
VISITATORI 430 ESPOSITORI
I motivi della visita
Seguici su In collaborazione con Progetto e direzione


I blocchi isolanti in laterizio NORMABLOK PIÙ sono la soluzione più moderna per realizzare pareti durature, termicamente isolate, sismicamente sicure e resistenti al fuoco. Realizzati in laterizio ed integrati con polistirene autoestinguente, i blocchi NORMABLOK PIÙ garantiscono un’elevata resistenza al fuoco, eliminando ogni possibilità di propagazione dell’incendio (Certificazione REI 240 e EI 240 e classe di reazione al fuoco B-s1-d0).
NORMABLOK PIÙ. I BLOCCHI CHE BLOCCANO ANCHE IL FUOCO.


•

In copertina:
Feilden Clegg Bradley Studios
Stephen Taylor Court
Cambridge - Regno Unito
• a cura della redazione
EDITORIALE
10 L'housing universitario e le sfide della città
• Nicola Martinelli
PROGETTI
Ignacio Prego Architectures
12 Residenze ENAP
Agen, Lot et Garonne - Francia
• Adolfo F. L. Baratta
Feilden Clegg Bradley Studios
20 Stephen Taylor Court
Cambridge - Regno Unito
• Antonio Acocella
Ignazio Lo Manto
28 Campus John Felice
Università Loyola Roma
• Roberto Gamba
AVA Studio SCP + JPAM SLU
36 Residence universitario al 22@ Barcellona - Spagna
• Alberto Ferraresi



C.F. Møller
44 Campus Hall. University of Southern Denmark
Odense - Danimarca
• Oscar Eugenio Bellini
INTERVISTA
Massimiliano Condotta

52 Le residenze di San Giobbe: una nuova “porta” per Venezia
• Rosaria Revellini
DESIGN
DAP studio/Elena Sacco, Paolo Danelli
58 Recupero per residenza studentesca Torino - Italia
• Chiara Testoni
STORIA E RESTAURO
62 Rivestimenti e decorazioni litoceramici: il caso della residenza dell’Università Bocconi di Giovanni Muzio
• Caterina Valiante
NORMATIVA
68 Politiche nazionali a supporto della residenzialità studentesca
• Claudio Piferi
• a cura di Roberto Gamba 58
76 Cambiamenti climatici e coperture. L’adeguamento della UNI 9460
• Marco D'Orazio
CANTIERE
84 Edificio bifamiliare in muratura portante
• Pasqualino Solomita
DETTAGLI Ipostudio
90 Il muro abitato
• Andrea Campioli
94 RECENSIONI

Nel maggio scorso si sono tenuti a Firenze e Catania i primi due incontri dei sei programmati (i prossimi: Bologna 11 Ottobre, Torino 24 Ottobre, Verona 7 Novembre, Cagliari 21 Novembre), promossi da Confindustria Ceramica e Federbeton, e patrocinati da ANCE Nazionale, Federcostruzioni e GBC Italia, per affrontare il tema delle strategie progettuali e della scelta dei materiali per raggiungere lo sviluppo sostenibile del patrimonio edilizio. Professionisti interdisciplinari relazionano sulle novità europee introdotte in sede di revisione della nuova Direttiva “Case green” (sulla prestazione energetica in edilizia, EPBD) e dall'aggiornamento del Regolamento sui prodotti da costruzione (CPR), che prevede l’obbligo di dichiarazione del requisito di sostenibilità per tutti i
Presso la Sala Carlo Scarpa al MAXXI di Roma, si è svolto nel maggio scorso il convegno di architettura, che ha preso spunto dalla mostra in corso “Aalto Aino Alvar Elissa Aalto La dimensione umana del progetto”.

prodotti da costruzione. A che punto siamo in Italia? Certamente i CAM Edilizia per gli appalti pubblici, in vigore dal 2022, hanno già tracciato una strada virtuosa verso gli obiettivi del Green Deal europeo, per ridurre al minimo l’impronta degli edifici attraverso il riconoscimento dell’LCA (Life Cycle Assessment) come strumento di rendicontazione ambientale. E’ ormai chiaro che le scelte strategiche nella progettazione di un edificio non possono più obbedire a vecchi preconcetti basati su indicazioni generiche verso l’utilizzo di materiali specifici ritenuti aprioristicamente sostenibili e che la soluzione progettuale migliore va trovata di volta in volta utilizzando un rigoroso metodo di analisi LCA. Sta agli operatori della filiera cambiare rotta e acquisire sempre maggiore consapevolezza in tal senso, così da adottare di volta in volta le soluzioni e le strategie progettuali
Il convegno ha voluto promuovere la conoscenza della materia laterizia, con un dibattito, condotto dall’architetto Pasqualino Solomita, che è partito dalle persistenze della storia, insegnamento ed eredità preziosa, fino al suo superamento negli slanci della contemporaneità e verso il futuro.
È stato un interrogarsi sulla qualità del fare architettura sia in rapporto alle risorse del territorio, sia in rapporto alle materie del costruire.
L’utilizzo dei laterizi, con la loro duttilità, durabilità e capacità di aderire ai requisiti prestazionali e formali oggi richiesti, garantisce isolamento termico e acustico, rinforzo e sicurezza strutturale, CAM, economia circolare, ciclo di vita, sostenibilità.
Garantisce inoltre vicinanza con i

ottimali.La direzione è tracciata: la sfida globale verso la decarbonizzazione e la sostenibilità è aperta e il settore edile deve fare la sua parte, mettendo in primo piano temi come la salubrità, il benessere, il bilancio costi benefici, il principio di neutralità tecnologica, la durabilità e l’approccio circolare dell’intero edificio e dei materiali che lo compongono.
linguaggi espressivi contemporanei, con le nuove forme, texture, superfici, colori, modalità di posa, aspetti tecnologici e costruttivi.
Con riferimento al contesto della mostra sugli Aalto, è stata dedicata attenzione al costruire massivo in laterizio, affrontando temi riguardanti forma e funzione dell’architettura e analizzando parole chiave come sostenibilità, durabilità e ciclo di vita.
In questo senso sono stati presentati una serie di progetti esemplari: la casa Domus 2020 ad alta efficienza, l’edificio per uffici 22 26 di Baumschlager Eberle a Lustenau, il Palazzo Almerici di Ilario Fioravanti, alcuni casi studio di residenze degli Harquitectes a Barcellona, un intervento di rigenerazione urbana a Faenza, opera di Alessandro Bucci.
In aprile, durante la settimana del Salone del mobile, nell’ambito di “Milano sostenibile”, si è svolto un incontro, patrocinato dal Green Building Council Italia e dal Rotary
della sostenibilità sociale, nonché le normative e gli incentivi per le pari opportunità e l’inclusione di genere. A tali temi contribuiscono associazioni, società civile, istituzioni, che mettono in campo strategie per la realizzazione della sostenibilità ESG, acronimo


DEGLI AMBIENTI DI VITA
IN/Arch-Istituto Nazionale di Architettura ha presentato nell’aprile scorso, in Roma, a Palazzo Giustiniani, sede della Presidenza del Senato, il Codice Europeo della progettazione, fatto per rimarcare i principi della cultura del progetto e del costruire a
misura d’uomo e d’ambiente. L’iniziativa segue la manifestazione “Seed - Design Action for the Future”, svoltasi nel 2023 a Perugia.
I contributi sono stati offerti da IN/Arch, ANCE Giovani, CNAPPC e CNI. Massimo Pica Ciamarra ha sintetizzato il Codice e

introdotto le tavole rotonde. Il Codice distingue i ruoli di Committente, Impresa e Progettista; riconosce l’importanza del “programma di progetto”, evita la riduzione di costo, sostiene ricerca e innovazione nel mondo produttivo.



NORMABLOK PIÙ di Fornaci Laterizi Danesi è il sistema costruttivo in laterizio brevettato e dalle prestazioni termiche migliorate, grazie all’integrazione con il polistirene additivato di grafite Neopor® di BASF, in grado di garantire la massima protezione in caso di incendio.
La sicurezza antincendio delle abitazioni è tema di grande rilevanza, soprattutto per gli edifici pluripiano. Quando gli incendi si sviluppano all’interno degli edifici il più delle volte si estendono alle facciate. Infatti, dopo aver provocato rottura e apertura delle superfici finestrate, le fiamme fuoriescono propagandosi ai locali superiori o adiacenti a causa dei flussi termici indotti.
Se sulle facciate sono presenti cavità verticali, come nel caso di facciate ventilate, quelle possono diventare vie preferenziali di propagazione degli incendi lungo tutta la facciata.
Diventa perciò fondamentale fin dalle fasi di progettazione esaminare l’incidenza e le caratteristiche tecniche e le certificazioni dei materiali da impiegare, soprattutto per i rivestimenti esterni, come ad esempio i cappotti termici.


NORMABLOK PIÙ è la soluzione più adatta per la realizzazione di pareti efficienti energeticamente e al contempo sicure anche in caso di incendio. Per testare il reale comportamento al fuoco in caso di incendio tutte le pareti NORMABLOK PIÙ sono state sottoposte a particolari prove, presso il laboratorio CSI (Centro di Certificazione e Analisi comportamentale polivalente), al fine di determinarne la classe di reazione al fuoco.
I blocchi NORMABLOK PIÙ hanno ottenuto la certificazione di reazione al fuoco in classe B-s1,d0 dimostrandosi quindi la soluzione ideale per le facciate di tutti gli edifici, anche nel caso di facciate ventilate.
Le pareti NORMABLOK PIÙ sono idonee per ogni tipo di edificio (ville, condomini, edifici pluripiano, ospedali, case di cura, RSA …).




FORNACI LATERIZI DANESI Contatto diretto info@danesilaterizi.it

Il progetto per Casa Es nasce già dal primo incontro con i committenti, Nathalie e Pierre Yves, con cui si stabilisce subito un’affinità che, nel tempo della sua realizzazione, diventa amichevole fiducia e prima risorsa messa a disposizione per la sua riuscita. I committenti si innamorano dei grandi spazi e della vista aperta sul Mediterraneo di una casa con giardino dei primi anni Sessanta, costruita nel quadro di una delle prime lottizzazioni edilizie del dopoguerra a Bordighera, in un contesto, conca d’Africa, il cui toponimo rende esplicita la natura e fortuna climatica del luogo.
Al primo progetto di ristrutturazione e riqualificazione energetica dell’edificio si aggiunge quello degli spazi esterni, con la piscina inserita in una fascia del giardino. Viene richiesto che questa non sia mostrata, per conservare le essenze secolari della macchia mediterranea presenti nella parte più esposta e panoramica.
Per la casa le scelte seguono lo spirito del rinnovamento rispettoso, conservando spazi semplici, che
non saranno riempiti di oggetti, usando materiali naturali, coerenti con il linguaggio modernista con cui si confrontano.
I mattoni pieni allungati, usati in facciata per il “basamento” al primo piano, risolvono efficacemente la necessità di trovare un rivestimento alternativo alla pietra grigia preesistente, che contribuisca attivamente alla nuova stratigrafia della parete.
Realizzati in una coloritura specifica per il progetto, si accompagnano al legno usato per il soffitto dell’aggetto e alla pietra malaga naturale scelta per le pavimentazioni.
Come elementi semplici e flessibili di ricucitura, ritroviamo i mattoni pieni sui percorsi esterni, nei nuovi brise soleil e sul deck in copertura, questi usati per il parallelepipedo della canna fumaria non nascosta, ma elemento compositivo, segnale e seduta panoramica, a sostegno del pergolato in legno.
La scelta di naturale sostenibilità si ritrova nella composizione dell’involucro, un sistema a cappotto in fibra di legno, materiale che si ritrova anche nell’iso -

Oggetto Casa Es
Localizzazione Bordighera (Imperia)
Cronologia 2024
Progettazione architettonica Pietra Alborno
Materiale utilzzato laterizio faccia vista Linea MAAX by SanMarco, prodotto da Terreal Italia
lamento del solaio di copertura, trasformato in deck panoramico; nei serramenti e negli spazi interni, finiti in argilla con una colorazione neutra usata in modo uniforme e avvolgente per tutti gli spazi.
C’è un filo rosso in questo progetto, la dimensione umana di un linguaggio semplice, che parla di terra e di mare e che parte dalla pianura per scoprire la luce del mediterraneo.
Contatto diretto d.desiderio@terreal.it

KEYWORDS
Università
Città
Housing universitario
Nuovi modelli abitativi
University
City
University Housing
New Housing Models
LNicola Martinelli
Professore Ordinario di Urbanistica al Politecnico di Bari, già Presidente di Urban@it- Centro Studi Nazionale per le politiche urbane (2021-2023), Membro del Consiglio Superiore per i Beni Culturali e Paesaggistici (MIC). Coordinatore del CdLM in Architettura presso il Dipartimento ArCoD del Politecnico di Bari. Ha insegnato presso Polis University Tirana, Università della Basilicata e Università di Bari, è nel Collegio del Dottorato Conoscenza e Innovazione del Progetto per il Patrimonio del Politecnico di Bari. Dal 2019 Co-editor in Chief dell’International Journal of Urban Planning and Smart Cities.
a letteratura internazionale ha teso negli ultimi anni a proporre l’Università come anchor institution, superando il concetto di enclave isolata da muri materiali o immateriali dallo spazio circostante [1]. La società della conoscenza cerca dunque di assumere un rapporto di reciprocità culturale, sociale, ed economica con le comunità d’appartenenza. Ne consegue da ciò che nella condizione attuale di grandi mutamenti dimensionali e sociali della città contemporanea, orientati verso le “grandi transizioni” (ecologica, digitale, ecc.), all’università si chieda sempre più spesso di svolgere un ruolo attivo nelle dinamiche del contesto urbano di appartenenza, operando come attore di riqualificazione territoriale, intervenendo in politiche di acquisizione immobiliare e successiva riconversione o essere anello di congiunzione tra le necessità della comunità studentesca e le politiche delle amministrazioni locali, con le quali è chiamata ad instaurare un dialogo. A partire da Cambridge, il motto Town and Gown ha rappresentato per secoli la distinzione tra gli abitanti della città e quelli dell’università [2], immagine evolutasi nel temo nel tempo sino a giungere alla Creative City di Florida, con la quale si identifica un ambiente urbano dinamico, caratterizzato da: Talenti, Tecnologia e Tolleranza [3]. Ecosistema che attrae una comunità creativa in grado, tanto di accrescere il potenziale competitivo della città, quanto di farsi strumento proattivo per innescare, a livello locale, comportamenti virtuosi di sostenibilità ambientale e sociale.
Pertanto, in tali processi, l’implementazione delle facilities e delle attrezzature collettive per gli spazi della formazione, imprescindibili per garantire un pieno diritto allo studio, diviene un importante strumento per favorire la costruzione di nuove relazioni, mettendo al centro del contesto urbano le strutture universitarie, quali nuove polarità del sistema pubblico della città. In quest’ottica lo student housing, quale componente essenziale del welfare studentesco non è più destinato alla sola funzione di ospitare gli studenti fuori sede, contribuendo ad ampliare il concetto di Diritto allo Studio inteso quale Diritto alla Città [4], ma ha la potenzialità di dispositivo spaziale che si apre anche a nuovi city users.
The university is currently seen as an “anchor institution”, overcoming the concept of an enclave isolated from the surrounding urban space. As a result of that, the university is increasingly being asked to play an active role in the transformations of the city to which it belongs. In view of this, student housing projects, oriented toward strong innovations in models of collective living, provide a relevant contribution to the broader issue of the relationship between the University and the City
Il rapporto, quindi, diviene triplice, tra: student housing, università e città e spesso polarizzato tra gli opposti dell’integrazione con il tessuto urbano e dell’isolamento. Il progetto della residenza universitaria, quindi, è un tema che, mentre si spinge a forti innovazioni dei modelli dell’abitare collettivo orientati anche a processi di sostenibilità ambientale, dall’altro si inserisce nella più ampia questione del rapporto tra università e città. Inoltre, il sistema universitario viene gradualmente individuato come uno dei principali protagonisti all’interno delle strategie di rigenerazione e innovazione urbana, delle aree centrali, delle periferie e dei comparti territoriali più isolati, da anni irrisolti [5]. Tra le facilities universitarie la residenza per studenti è intesa come ambito privilegiato di estensione del concetto di formazione anche al di fuori del
perimetro accademico; quindi, è quella che esprime le maggiori potenzialità per intercettare le dinamiche trasformative della città contemporanea sempre più knowledge oriented [6] fungendo da driver per lo sviluppo di Programmi di Rigenerazione, in grado di contribuire a rinsaldare il legame secolare tra spazi della conoscenza e spazi urbani.
Indispensabile per garantire un sistema formativo in grado di assicurare ai propri iscritti una permanenza confortevole e un processo di crescita personale non solo culturale, ma anche sociale, questa “speciale” forma dell’abitare è intesa sempre più spesso quale attrezzatura universitaria capace di valorizzare le interazioni con l’isolato, il quartiere e la città tutta [7] e di creare un rinnovamento sociale che porti alla maturazione di nuovi “studenti-cittadini”.
Non è un caso che la disponibilità di queste attrezzature consenta all’istituzione universitaria di accrescere il proprio livello di attrattività nazionale e internazionale, che si raggiunge non solo mediante l’aumento di posti alloggio, fortemente carente nel nostro paese, ma anche attraverso il miglioramento della qualità degli spazi collettivi, dei servizi comuni, della localizzazione anche rispetto ai principali servizi urbani. In tal senso opera meritoriamente dal 2000 la Legge 338 “Disposizioni in materia di alloggi e residenze per studenti universitari”, sancendo la “codificazione” della residenza universitaria, che fino ad allora era assimilata ad altre tipologie abitative. All’apparato normativo hanno fatto seguito 5 bandi attuativi, con i primi quattro che hanno portato al finanziamento di 323 interventi per un totale di 38.532 nuovi posti alloggi, mentre il quinto risale al febbraio 2022 unitamente alla sfida del PNRR, che propone di raggiungere una disponibilità di 120.000 posti alloggi entro il 2026, aprendo una nuova stagione per le sperimentazioni dello student housing nel nostro Paese [8].
Ma la residenza universitaria talvolta costituisce un modello periferico lontano, tanto dalle sedi didattiche, quanto dalle principali facilities urbane. Questa condizione urbana rende necessaria la presenza di un adeguato sistema di trasporto pubblico con il quale innervare le residenze per raggiungere facilmente la propria destinazione universitaria e le principali centralità urbane ed evitare che questa rappresenti una scelta sgradita agli studenti.
Tali considerazioni portano allora i migliori casi di student housing a farsi complesso, come dimostrano i progetti presentati in questo numero della rivista, perché offrono al proprio interno le dotazioni funzionali minime e il sistema degli spazi aperti necessarie per garantire ai propri utenti di “abitare l’Università” divenendo poli di riferimento per il quartiere. Ne consegue che la scelta di localizzare la residenza universitaria in periferia può essere giustificata anche da politiche urbane, che hanno l’obiettivo di riqualificare aree degradate attraverso l’inserimento di nuove popolazioni, e dunque, la presenza di un tessuto vivace e stimolante [9].
BIBLIOGRAFIA
[1] Perry D.C., Wiwel W., (2008), Global Universities and Urban Development: Case Studies and Analysis, M.E. Sharpe, Armonk, New York.
[2] Martinelli, N. (2012), Spazi della Conoscenza, Adda, Bari.
[3] Florida R. (2002), The Rise of Creative Class. Basic Books, New York.
[4] Lefebvre H. (1968). Il Diritto alla città, ed. 2014, Ombre Corte, Verona.
[5] Faroldi E. (2020). “Introduzione” in Bellini O. E., Gambaro M. (a cura di) Vivere e abitare l’Università, Maggioli Editore, Santarcangelo di Romagna.
[6] Bologna R. (2014), “Il progetto della residenza per studenti universitari” in Del Nord R. (a cura di), Il processo attuativo del piano nazionale di interventi per la realizzazione di residenze universitarie, Edifir, Firenze, pp. 107-160.
[7] Bellini O.E. (2019), Student Housing 2. Il progetto della residenza universitaria nella città contemporanea. Maggioli Editore, Santarcangelo di Romagna.
[8] Il PRIN 2022 Responsive University Student Housing (RUSH) a cura del Politecnico di Bari, Politenico di Milano e Università di Firenze si pone nel contesto della regolamentazione di settore richiesta dal PNRR (riforma 1.7. della Missione M4C1), approvata con il D.lgs. 6 novembre 2021 n. 152. Le finalità della ricerca sono coerenti con gli obiettivi delineati nel Swaf S-15-2016: Open Schooling and collaboration on science education contenuti nelle linee guida europee Responsible Research and Innovation (RRI) e con i progetti strategici della Regione Puglia e di molti atenei locali
[9] Baratta A.F.L. (2020), “La Legge n. 338/2000 come strumento di recupero del patrimonio e rigenerazione delle periferie” in Bellini O. E., Gambaro M. (a cura di) Vivere e abitare l’Università, Maggioli Editore, Santarcangelo di Romagna.


KEYWORDS
Residenze universitarie
Campus
Prefabbricazione
Mattoni faccia a vista
Student housing
Campus
Prefabrication
Fair-faced brick
L’É cole nationale d’administration pénitentiaire (ENAP) fornisce insegnamento e formazione professionale ai futuri funzionari dell’amministrazione penitenziaria francese: fondata nel 2000, l’istituzione pubblica si è insediata in un campus appositamente realizzato nel sud-ovest della Francia. Nell’insediamento urbano realizzato nel Dipartimento di Lot et Garonne l’ENAP ha deciso di realizzare, insieme agli edifici destinati alla didattica, un’importante offerta residenziale, così da soddisfare il fabbisogno della struttura formativa
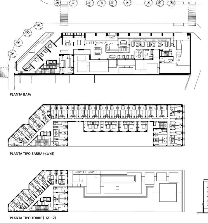
Lo Studio di Architettura Ignacio Prego, già responsabile del Campus digitale e relative residenze universitarie a Nanterre, ha dovuto quindi confrontarsi con un committente ambizioso che ha chiesto di realizzare in poco tempo e in un contesto suburbano frammentato e disorganizzato, un complesso residenziale ordinato e confortevole in grado di ospitare poco meno di 1.000 studenti.
L’obiettivo è stato centrato grazie alla standardizzazione spaziale e alla prefabbricazione pesante dell’intera struttura. Relativamente alla standardizzazione, l’unificazione degli ambienti derivanti dalla lavorazione in serie ha portato alla scelta di un modulo, ospitante la stanza doppia, replicato ben 471 volte nei 4 piani fuori terra. Nonostante una scelta vincolata che poteva generare un ambiente estraniante, il complesso riesce a mantenere un’armonia compositiva che sfugge a ogni forma di alienazione. La struttura presenta un corpo di fabbrica disposto lungo la strada, che al piano terra accoglie i servizi collettivi e, attraverso un camminamento coperto, si connette ai tre corpi di fabbrica in cui si collo -
In a fragmented and disorganized suburban context, a functional and harmonious residence was built in just 12 months. The decision to adopt spatially standardized and technologically prefabricated solutions resulted in an architecture that escapes all forms of compromise
cano le camere disposte secondo una tipologia ad albergo: la monotonia dei lunghi corridoi è interrotta dai collegamenti verticali che frammentano e compartimentano i corpi di fabbrica anche da un punto di vista della prevenzione incendi. L’ultimo piano, per effetto del profondo arretramento, presenta delle ampie terrazze che limitano la percezione dell’edificio da terra a soli 3 piani. La copertura è destinata ancora a servizi collettivi quali la palestra all’aperto. Altro aspetto da sottolineare è la presenza di un ampio parco di 15 ettari. Il modello della città giardino, ideato per risolvere la crisi abitativa dei lavoratori all’inizio del XX secolo, è stato reinterpretato con un impianto a pettine in cui gli edifici paralleli sono distanziati da un “viale” alberato di 9 m di larghezza; questo, concettualmente assimilabile a una radura, consente una transizione graduale tra l’introversa camera da letto e l’ampio paesaggio in cui è inserita la struttura. Sui viali interni gli ambienti residenziali si affacciano grazie ad aperture a tutta altezza, così da garantire un’adeguata ventilazione e illuminazione naturale.
Relativamente alla prefabbricazione, l’impiego di quella bidimensionale e tridimensionale, favorita da un impianto planimetrico razionale, ha consentito di rispettare il cronoprogramma iniziale e realizzare l’intera struttura in soli 12 mesi con un budget limitato: il costo parametrico finale è risultato inferiore a 30.000 € a posto alloggio ovvero 2.500 € al metro quadrato. Le scelte non hanno in nessun modo compromesso lo standard qualitativo e, di conseguenza, il comfort dei residenti.
La prefabbricazione bidimensionale ha interessato i pannelli di rivestimento verticale in laterizio faccia a vista e la serramentistica; la prefabbricazione tridimensionale ha interessato la struttura portante, le cellule dei servizi igienici, le condotte dei servizi impiantistici e la cellula della camera. Il processo di assemblaggio delle parti ha garantito la qualità complessiva grazie a prestazioni controllate, efficacia del pro -

cesso che è avvenuto con precisione industriale, prestazioni controllate, ottimizzazione di tempi e costi, prospettive di manutenzione programmata, senza dimenticare la mancata produzione di scarti e rifiuti in corso di esecuzione.
I pannelli composti da mattoni faccia a vista inseriti in cornici, palesemente dichiarate nella composizione del prospetto, richiama alla memoria una delle primissime esperienze francesi di Renzo Piano, gli Alloggi a Rue de Meaux a Parigi del 1987-1991, anche per la scelta di allineare i giunti verticali degli elementi in laterizi disponendoli a “sorelle”.
La cura del ritmo e della composizione delle facciate contribuisce a mitigare la sensazione di ripetizione derivante dalla consistenza del progetto. Pur essendo prefabbricate, sono stati adottati differenti tipi di finiture, evitando così un’immagine perva -
siva che avrebbe potuto generare una sensazione di iperdensità.
La residenza potrebbe costituire un modello virtuoso per le strutture che saranno finanziate con le risorse del PNRR e che, salvaguardando la qualità complessiva, dovranno essere completate entro il 2026.
Oggetto Residenze ENAP
Località Agen, Lot et Garonne (Francia)
Committente APIJ Agence Publique pour l’Immobilier de la Justice
Progetto architettonico Ignacio Prego Architectures
Partner François de la Serre
Cronologia 2019 (progetto); 2020-2021 (costruzione)
Superficie
Costo
9.700 m2
25.000.000 €
Fotografie Luc Boegly








KEYWORDS
Residenza universitaria
Energia quasi zero
Decarbonizzazione
Contestuale
Comunità
Student housing
Net zero energy
Decarbonization
Contextual
Community
L’intervento di Feilden Clegg Bradley risponde all’esigenza del King’s College, Cambridge di dotarsi di nuovi alloggi per laureati e borsisti della prestigiosa istituzione accademica. Il luogo deputato al nuovo nucleo residenziale, in posizione distaccata rispetto alla sede principale del College, è collocato all’interno di un contesto storicizzato e vincolato come conservation area, valorizzato dalla presenza di ville in caratteristico stile Arts and Crafts di fine Ottocento. La composizione planimetrica consiste di tre corpi principali – piegati a forma di crescent e disposti a formare una corte aperta –, una nuova villa affacciata su Barton Road, oltre all’esistente villa vittoriana restaurata e ampliata sul fronte sud. L’articolazione volumetrica del programma, oltre a risolvere le differenti tipologie abitative richieste, si traduce in un inserimento discreto dei nuovi volumi all’interno del contesto residenziale. Il trittico centrale garantisce ampiezza e profondità alla prospettiva dalla strada, offrendo alla vista un generoso spazio verdeggiante. I due corpi laterali, sviluppati su tre livelli, ospitano ventiquattro appartamenti da una o due camere da letto; il corpo centrale accoglie invece quarantotto alloggi per laureati, distribuiti tramite un corridoio centrale raggiunto da due corpi scala e completati da spazi comuni ricavati sulle testate. La villa singola su Barton Road conta dodici camere da letto con cucine e bagni in condivisione, un’esplicita richiesta degli studenti emersa nel corso di consultazioni partecipative e accolta in prospettiva di soluzioni abitative più economiche.
Le scelte costruttive e materiche, in linea con i principi dei progettisti inglesi, trovano un felice equilibrio tra le richieste espresse dal
The project responds to King’s College, Cambridge’s need for new accommodation for graduates and fellows. The construction and material choices find a successful balance between the requests expressed by King’s College, for a lasting architecture with a low carbon footprint, and the guidelines of the conservation area, for a contextual language that respects the pre-existing buildings.
King’s College, per un’architettura duratura a bassa impronta di carbonio, e gli indirizzi della conservation area, per un linguaggio contestuale e rispettoso delle preesistenze. La soluzione di involucro verticale scelta per i suoi vantaggi in termini di sostenibilità ed efficace nel risolvere la composizione scatolare e modulare delle residenze, è costituita da un rivestimento in mattoni, capaci di saldare il linguaggio contemporaneo delle nuove architetture ai volumi circostanti e garantirne durabilità nel tempo.
I tre volumi principali mostrano laterizi dalla colorazione gialla tenue, posati con una misurata espressività capace di enfatizzare le stratificazioni verticali, mediante ricorsi con posa di testa, e l’ampiezza del movimento fusiforme, attraverso nervature orizzontali utili a sottolineare le forze di tensione e compressione delle masse architettoniche. L’arretramento delle finestre, la presenza di abbaini emergenti dalle ampie falde e di bow windows sui fronti su strada contribuiscono a conferire una significativa plasticità alle forme, attraverso l’astrazione e la reinterpretazione di elementi vernacolari. Lo stesso principio è adottato nella risoluzione degli elementi architettonici di dettaglio, quali, tra gli altri, le cornici lignee delle finestre, funzionali a mediare e ingentilire la congiunzione tra paramento murario e specchiature vitree, o i pluviali metallici dal ricercato rilievo, utili a scandire verticalmente i fronti e riferimento esplicito alle architetture del King’s College. Per il manto di copertura, l’utilizzo di tegole piane in laterizio fatte a mano di forma rettangolare (circa 265x165mm) ha permesso la risoluzione delle falde curvate non solo in pianta ma anche in sezione, in corrispondenza delle linee di gronda. Sottili variazioni cromatiche degli elementi laterizi, nei toni del blu-grigio, restituiscono maggiore profondità alle superfici inclinate senza sottrarre al generale effetto di uniformità ricercato dagli architetti. La villa singola su Barton Road agisce da elemento di saldatura tra nuovo e preesistente; il linguaggio dei tre crescent, riproposto con l’intenzione di restituire un’immagine coesa

all’intervento, è variato nella scelta del mattone rosso, in grado di trovare maggiore armonia con l’edificio adiacente, a cui i progettisti scelgono di uniformarsi anche in altezza e larghezza per riflettere il ritmo delle ville accoppiate che caratterizzato il fronte stradale. Sotto il profilo della sostenibilità ambientale, la progettazione è stata orientata dai rigorosi standard Passivhaus, con un rapporto di emissioni nette stimate inferiori allo zero per i primi 10-15 anni di vita dell’edificio e potenzialmente perpetue se verranno integrate, come da previsioni di progetto, con energia rinnovabile fotovoltaica.
Oggetto Stephen Taylor Court
Località Cambridge, Regno Unito
Committente King’s College, Cambridge
Progetto architettonico Feilden Clegg Bradley Studios
Progetto strutturale Smith and Wallwork Ltd
Progetto impiantistico Max Fordham
Progetto paesaggistico Robert Myers Associates
Cronologia 2022 (realizzazione)
Superficie 4.300 m2
Fotografie James Newton


Feilden Clegg Bradley Studios | Stephen Taylor Court | Cambridge, Regno Unito







KEYWORDS
Università
Cappella
Mattone
Passerella sospesa
University
Chapel
Brick
Suspended walkway
L'Università Loyola è un’istituzione privata, fondata nel 1870, con il nome di Saint Ignatius College ed è l’università cattolica gesuitica più grande degli Stati Uniti, con sede a Chicago, nell’Illinois.
Ospita scuole per l’insegnamento di arti, scienze, economia, comunicazione, educazione, legge, medicina, il Saint Joseph College Seminary, l’Arrupe College e l’Institute of Environmental Sustainability.
Ha quattro campus: Lake Shore, Water Tower, Medical Center e in Italia il John Felice Rome Center.
Le scuole della Loyola hanno educato generazioni di imprenditori locali e leader civici e i corsi di studio in medicina, infermieristica e scienze della salute sono collegati al Loyola University Medical Center, istituzione riconosciuta negli Stati Uniti a livello nazionale. La struttura romana, fondata nel 1962, è ubicata in via Massimi, ai bordi del quattordicesimo quartiere Trionfale, sulla sommità del Colle della Balduina, nel settore nord-occidentale della città, oltre il Vaticano.
Dal 1978, prima dell’ampliamento qui presentato, recentemente realizzato, comprendeva un ordinato complesso di edifici progettati dall’ingegner Ignazio Fratadocchi, con il dormitorio, gli uffici, la biblioteca e la mensa.
L’intervento è consistito nella costruzione di un nuovo edificio residenziale a quattro livelli per gli universitari, un ambiente di ingresso, una cappella e la risistemazione degli spazi esterni, con un progetto concepito per integrarsi correttamente all’esistente, sia nei materiali che nelle forme.
L’innesto edilizio si adatta creando una continuità volumetrica lineare, ispirata geometricamente da una prima giunzione, che parte da due nuovi blocchi scala, a pianta rettan-
The construction of a new four-level student residential building, an entrance hall, a chapel and the reorganization of the outdoor spaces expands the campus of the American Jesuit University. The graft creates a linear volumetric continuity, which integrates correctly with the existing materials and shapes, with the brick cladding the predominant element of the intervention
golare, uniti da una passerella sospesa al corpo residenziale.
Il prolungamento si completa, agli estremi del nuovo progetto, con un ulteriore blocco scala vetrato, allungato e unito a un corpo disallineato e inclinato planimetricamente che diviene atrio di ingresso del complesso, aperto all’accoglienza.
Lo schema ripete pertanto una sorta di “connessione ferroviaria”, in cui blocchi scala e passerella simulano le parti di aggancio tra vagoni, con in testa l’immagine dinamica della motrice.
Ma lasciando da parte questa similitudine solo formale, risulta invece evidente che il volume irregolare della cappella, posto lateralmente alla struttura residenziale e il percorso che si sviluppa tra i due edifici danno forza a un disegno di villaggio articolato da più forme edilizie e a un’immagine di unitarietà e di comunità che coinvolge tutto il campus. Il progetto, opera dello studio, sede a Roma e Palermo, dell’architetto siciliano Ignazio Lo Manto (1987), ha ricevuto il Premio Nazionale Selinunte; una menzione d’onore al Architecture MasterPrize 2020 e è risultato tra i finalisti del The Plan Award 2020.
La semplicità formale dell’insieme si basa sull’utilizzo del mattone come elemento di finitura dei tamponamenti murari e sulla trasparenza delle bucature.
La luce che filtra da queste definisce la qualità ambientale degli spazi di raccordo e particolarmente quella della cappella, ove si riflette sulla superficie del pavimento in travertino e sulla facciata dell’altare e ove raggiunge la massima intensità con la luminosità che le procurano il lucernario trapezoidale sopra l’altare e i tagli stretti o a croce nelle pareti.
Il mattone, elemento predominante, è materiale, definito dal progettista, domestico e familiare: modula la luce, conferisce un rassicurante senso di massa e stabilisce un modello e un colore tangibili e coerenti all’insieme architettonico; si presta bene all’integrazione con i metalli e i vetri di finestrature e frangisole; inoltre, nel contrasto dei

chiaro–scuri, definisce la semplicità estetica e la comprensibilità volumetrica dell’impianto architettonico.
Il laterizio diviene in questo modo scelta di valore estetico che consente la riconoscibilità dell’architettura e della sua integrazione nel disegno e nell’immagine dell’esistente. Altresì, l’involucro in laterizio contribuisce al soddisfacimento dei criteri di sostenibilità che il committente ha inteso perseguire sia nel progetto e nella realizzazione del campus, sia nella sua operatività e funzionalità quotidiana.
Oggetto Campus John Felice Università Loyola
Località Roma
Committente Loyola University Chicago
Progetto Architettonico Ignazio Lo Manto
Collaboratori Alessandro Franchetti Pardo, Andrea Ricci, Enzo Venezia, Davide Curci
Cronologia 2019 - 2020
Superficie 2000 m2
Fotografie Moreno Maggi



Schema concettuale dell’ampliamento






Alberto Ferraresi, Architetto, libero professionista

KEYWORDS
Residenze universitarie
Poblenou
Inclusione
Emergenza climatica
Facciata ventilata
Student housing
Poblenou
Inclusion
Climate emergency
Ventilated facade
Il nuovo studentato Vita 22@ si sviluppa lungo carrer de Sancho de Avila per attestarsi verticalmente su Avinguda Meridiana con una visione profondamente urbana. All’interno del plan Cerdà che già per sua natura offre l’occasione di nuove piazze ad ogni incrocio, la vicina Placa de les Glories crea un’eccezione saturando la dimensione di più isolati con il suo vuoto pubblico. Nel 2013 gli stessi architetti di JPAM avevano già studiato le caratteristiche di Placa de les Glories per una proposta innovativa di riqualificazione che puntava a sovvertire le regole della piazza classica cinta dai fronti dell’edificato. Il progetto investiva nel ruolo di protagonista del vuoto pubblico che, circondato da emergenze non affacciate in cortina, si estendeva quanto più possibile oltre i limiti fisici dei volumi costruiti.
Con analoga visione di spazio aperto totalizzante, l’ampio quadrivio fra l’Avinguda Meridiana e il Carrer si impone al Vita 22@ erodendone il piano terra per realizzare spazi permeabili che consentono estensioni visuali fino a farne arretrare l’ingresso principale più all’interno.
Queste depressioni volumetriche diventano attrattive e stimolano a entrare in spazi percepiti dall’esterno attraverso le numerose vetrate del livello terreno che permettono di traguardare gli spazi interni, comunque pubblici, affacciati su cortili a cielo aperto in cui il verde è rigoglioso.
L’edificio si trova nel quartiere di Poblenou, in cui l’industria storica è stata soppiantata da nuovi usi, mantenendo parte delle fabbriche per memoria delle tecniche e delle comunità cittadine presenti a partire dal 1800. Il Distretto 22@ è frutto dell’iniziativa del Comune di Barcellona che nel 2000 ha fissato l’obiettivo di trasformare circa 200 ettari di terreno industriale del quartiere Po -
Ventilated views from which to observe the city, internal and external natural landscapes and visual landmarks make up the microcosm of this student residence, open to relationships among people and strongly connected with the urban fabric
blenou in un distretto produttivo a vocazione innovativa. In seguito, dal 2017, il Comune ha avviato il processo Rethinking 22@ al quale, con propri contributi, hanno partecipato figure provenienti da realtà diverse. Nel 2018 esse hanno sottoscritto un documento finalizzato a un 22@ più sostenibile e inclusivo, i cui principali obiettivi erano: garantire la diversità delle attività economiche, mitigare l’impatto dell’emergenza climatica e favorire alloggi a prezzi accessibili. Il Vita 22@ centra già per propria vocazione due di questi tre obiettivi.
Innanzitutto, introduce nuovi spazi per il soggiorno degli studenti universitari e cosmopoliti all’interno dell’area che nei secoli scorsi era frequentata solo da comunità locali fortemente radicate. Gli studenti invece da qui si dirigono alle varie sedi universitarie della città immergendosi nella rete dei collegamenti pubblici.
L’architettura dello studentato mostra in modo evidente la sua vocazione urbana; innalzandosi occhieggia sia alle architetture verticali collocate verso il centro cittadino, sia alle strutture più distese realizzate lungo il mare.
Le facciate in mattoni, con profondità sistematicamente differenti rispetto agli allineamenti esterni, in nessun modo riconducono al basso edificio per uffici e servizi funerari preesistente, ma citano le fabbriche industriali monumentali della zona.
Proprio sugli affacci si centra il terzo obiettivo di mitigazione dell’emergenza climatica. Il sistema di facciata in mattoni, infatti, che contrappone l’idea di massa alla dissimulazione e ampie vetrate del piano terra, è micro-ventilato internamente distaccandosi dalla stratigrafia d’involucro retrostante. I mattoni in laterizio utilizzati sono forati, consentendo in questo modo anche una maggior facilità di ancoraggio dei letti di malta in fase di posa. In essi vengono orizzontalmente disposti fissaggi speciali e tralicci metallici sottili al fine di assicurare la resistenza antiribaltamento del paramento in laterizio rispetto ad azioni sollecitanti fuori dal piano. Nei giunti verticali si vanno invece ad
Barcellona, Spagna

alternare alla malta elementi utili alla micro-ventilazione. Questi, distribuiti sull’intera estensione dell’affaccio, permettono in modo diffuso sia l’asciugatura delle condense interstiziali delle stratigrafie d’involucro, sia il raffrescamento estivo dell’intera epidermide dell’edificio, affacciato verso la città a sud-ovest, dunque, per le nostre latitudini, in piena esposizione rispetto al soleggiamento diretto. Il colore scuro del mattone, nonostante risulti meno riflettente rispetto alle radiazioni solari, attiva in modo particolarmente efficiente l’effetto camino interno alla facciata, che può attingere aria più fresca dalle superfici verdi e dalle rientranze ombreggiate del piano terra.
Oggetto VITA Residence - 22@ BCN
Località Barcellona, Spagna
Committente VITA
Progetto architettonico AVA Studio SCP + JPAM SLU
Collaboratori PGI (facilities), Rossell-Giner i Associats (architettura tecnica e direzione lavori), AELAND (landscape)
Progetto strutturale MASALA
Progetto impiantistico XMADE (consulente per l’involucro edilizio)
Impresa di costruzione COMSA
Cronologia 2020 (progettazione); 2023 (realizzazione)
Superficie 13.724 m2
Fotografie José Hevia


Pianta e prospetto muro. Dettaglio della
facciata




KEYWORDS
Residenze
universitarie
Torre
Facciata in mattoni
Sostenibilità
Biodiversità
Student Housing Tower
Clay bricks façade
Sustainability
Biodiversity
In un articolo sui cambiamenti e le trasformazioni del mondo Universitario, Peter Scott, professore emerito di Higher Education Studies all’University College di Londra, evidenziava come: “Once students went to university for education, now it’s an experience ” (The Gardian, 6 October 2015).
Un mutamento della dimensione esperienziale a cui concorrono molti fattori, non ultimi quelli riconducibili ai modi e alle forme, secondo le quali gli studenti vivono all’università. Nella contemporaneità, la residenzialità universitaria è diventata un tema sfidante di progetto, che esplora la rivisitazione dei tradizionali modelli abitativi, quali collegi, dormitori, studentati ecc., per promuovere soluzioni innovative, basate su una maggiore attenzione all’individuo, all’inclusività e all’integrazione con il contesto. Fra gli interventi che stanno sperimentando questo approccio, si può considerare la residenza Campus Hall dello studio danese C.F. Møller Architects, dove i paradigmi guida del progetto sono stati i concetti di privacy, spirito comunitario, dimensione relazionale, contestualizzazione e sostenibilità ambientale. Lo spirito comunitario e la dimensione relazionale si sono tradotti nel principio di gradualità che nel progetto ha portato a un progressivo passaggio dalla dimensione di privacy a quella relazionale, riconnettendo l’individuo al collettivo e cercando l’equilibrio fra l’io e l’altro. L’organizzazione ai piani è stata pertanto definita tramite prestabilite gerarchizzazioni spaziali, consentendo allo studente di passare dalle zone private delle camere a quelle semipubbliche degli spazi condivisi, fino alle zone pubbliche dei sistemi di distribuzione, offrendo una pluralità di dimensioni abitative. Al centro di ogni piano, fra alloggi e connettivi
With its highly innovative morpho-techno-typological characteristics, the university residence Campus Hall is an unusual landmark that connotes and denotes the horizon of the University of Southern Denmark in Odense. It is a massive tower divided into parts, lacking front and back sides; a totemic object and an unavoidable reference point for students and guests at the eastern end of the campus.
verticali, è presente una zona buffer destinata ai servizi comuni, con cucine e soggiorni condivisi, perimetrata con specchiature che massimizzano gli apporti di luce e aria e valorizzano le viste. Lo schema tipologico, ripetuto dal primo al dodicesimo piano, genera un ambito di socializzazione su cui gravita un cluster di sette camere con bagno privato. Al piano terra, sono presenti una caffetteria, sale comuni e aree studio, mentre gli spazi per le feste sono ai piani superiori. In copertura, le terrazze verdi gradonate ospitano una sky-lounge con vista panoramica sulla città e sul campus, offrendo agli ospiti uno spazio outdoor dove trascorrere piacevoli momenti in compagnia.
Campus Hall è una massiccia torre di 15 piani, che possiede 250 unità alloggiative, distribuite su tre blocchi interconnessi e ruotati tra loro, che crea un landmark facilmente riconoscibile all’interno di Cortex Park, la struttura scientifica e di ricerca progettata nel 2009 da C.F. Møller Architects.
Un totem, che emergendo da una radura periurbana, digrada a sud verso una zona umida e si confronta silenziosamente con un contesto ricco di boschi, prati, specchi d’acqua, canneti ma anche attrezzature per lo sport e spazi multifunzionali. Questo paesaggio è stato ridisegnato secondo i principi di sostenibilità, dove uso del suolo, precipitazioni e habitat della fauna selvatica ricercano il corretto equilibrio fra biodiversità, naturalità e antropizzazione.
La sostenibilità ambientale è stata perseguita realizzando un manufatto con materiali di qualità e a basso consumo energetico, conforme ai severi codici ambientali ed energetici danesi. I parametri di progettazione passiva sono stati ottimizzati per forma, orientamento, adattamento alle condizioni climatiche, illuminazione diurna, massa, isolamento termico, cross ventilation, recupero del calore e riciclo delle acque reflue.
Nell’immagine iconica della torre, svolge un ruolo ineludibile il trattamento della finitura esterna in classici laterizi faccia a vista; questa scelta crea un involucro vagamente grigiastro dai toni caldi e sfumati, dove i mattoni, po-
C.F. Møller | Campus Hall. Residenze universitarie per la University of Southern Denmark | Odense, Danimarca

sati con giunti in malta leggermente pronunciati, disegnano una texture che, in alcuni casi, si trasforma in un elegante brise-soleil. Questa scelta progettuale è efficace non solo perché esalta le peculiarità estetiche del laterizio a vista, ma conferisce anche all’architettura un’identità prontamente riconoscibile. L’immagine risultante è accattivante e convincente, in perfetta sintonia percettiva e cromatica con il paesaggio. In quanto materiale completamente naturale, il laterizio, svolge un ruolo positivo sull’ambiente, poiché non richiede processi di produzione complessi o l’impiego di sostanze chimiche nocive. Inoltre, è altamente resistente e prevede una bassa manutenzione nel tempo. Così impiegato, si associa con garbo ed eleganza ai profili in legno duro e ai pannelli in lega di rame e zinco del resto della facciata.
Una scelta che, nel complesso, restituisce all’intervento una familiarità che genera un’at-
mosfera accogliente, confortevole e familiare, aiutando gli studenti ospiti a sentirsi a proprio agio, come fossero “nella loro casa”.
Oggetto Residenza universitaria a torre
Località University of Southern Denmark, Odense, Danimarca
Committente A.P. Møller and Chastine Mc-Kinney Møller Foundation
Progetto Architettonico C.F. Møller Architects
Collaboratori Mårten Leringe, Jonas Toft Lehmann, Franz C. A. Ødum, Lone Bendorff, Lone Wiggers, Rune Bjerno Nielsen, Thue Borgen Hasløv, Ola Jonsson, Mads Mandrup Hansen, Julian Weyer, Michael Kruse & Klaus Toustrup
Progetto strutturale Niras
Cronologia 2012 (progettazione), 2015 (realizzazione)
Superficie 15.900 m², 250 alloggi + 20.000 m² di area esterna
Fotografie © Torben Eskerod
Inserimento del campus all'interno di boschi, parchi e zone umide e laghetti


I tre distinti volumi nelle differenti direzioni


Ogni cluster, formato da sette alloggi al piano, dispone di spazi comuni di pertinenza, mentre al centro del piano si aprono visuali verso la città, la natura e l’Università
C.F. Møller | Campus Hall. Residenze universitarie per la University of Southern Denmark | Odense, Danimarca

Rosaria Revellini, PhD, Assegnista di Ricerca, Università Iuav di Venezia

KEYWORDS
Residenze universitarie
Campus di San Giobbe
Venezia
University residences
San Giobbe Campus
Venice
Massimiliano Condotta (Venezia, 1973). Architetto e dottore di ricerca in “Architettura, città e design” presso l’Università Iuav di Venezia, è attualmente professore Associato in Tecnologia dell’architettura presso lo stesso ateneo.
Svolge attività di ricerca su temi relativi a sostenibilità e progettazione ambientale e all’uso di tecnologie innovative e ICT per l’ambiente costruito. Negli anni ha lavorato anche come libero professionista in qualità di progettista e responsabile del coordinamento di diverse competenze specialistiche.
A Venezia, come nel resto del Paese, nell’ultimo periodo si sta cercando di dare risposta a una domanda da tempo irrisolta, quella dell’accoglienza studentesca. L’Italia è molto indietro rispetto a Paesi come la Francia e la Germania, anche se aumentano i finanziamenti europei e nazionali per la costruzione di residenze universitarie. Qual è il suo parere in merito? In che modo il progetto delle residenze di San Giobbe si inserisce in tale contesto?
Il progetto delle residenze di San Giobbe è stato possibile grazie a un finanziamento ministeriale (Legge 338/2000 – Richiesta cofinanziamento per alloggi e residenza per studenti universitari) senza il quale lo stesso non sa-
The University residences volumes in the San Giobbe campus in Venice are a contemporary architecture capable of building new physical and social connections in the lagoon context. At the same time, these volumes are well integrated within the urban fabric of Venice also because of the use of brick face-view, which already characterized the Nineteenth-century industrial buildings in that area.
rebbe stato immaginabile. Lo studio di fattibilità tecnico-economica aveva evidenziato fin da subito il fatto che l’investimento non avrebbe ripagato i costi di costruzione nel medio-lungo periodo a partire da una prima fondamentale considerazione, ovvero che i costi di realizzazione di un qualsiasi edificio costruito nella Venezia insulare risultano in media più alti del 30% rispetto a quelli per la costruzione di un edificio sulla terraferma. Inoltre, il contributo dell’allora MIUR e una progettazione attenta all’ottimizzazione degli spazi, al fine di ricavarne il maggior numero possibile di alloggi e di conseguenza garantire più introiti, non sarebbero bastati per consentire la gestione della residenza e assicurare tariffe adeguate agli studenti. Per questo motivo, nei periodi estivi l’ente gestore tiene aperta la possibilità di fittare a turisti le stanze non occupate, una scelta eticamente discutibile ma necessaria per assicurare un equilibrio economico complessivo.
A seguito di queste considerazioni sulle residenze di San Giobbe si deduce quanto finanziamenti europei e nazionali – non ultimo lo stesso PNRR con la Riforma 1.7 della Missione 4 Componente 1 – svolgano un ruolo essenziale per consentire, anche nel nostro Paese, un incremento di posti letto e spazi residenziali di qualità per la popolazione studentesca, in lento ma costante aumento.
Oltre a essere progettista, svolge attività di ricerca e di didattica come professore associato presso l’Università Iuav di Venezia. Dalla sua esperienza di docente, sono emersi spunti e suggestioni

nel corso di questi anni per comprendere meglio le esigenze della popolazione studentesca? In merito al team di progetto, invece, quale ruolo ha svolto e in che modo è stato coinvolto nell’iter progettuale?
La conoscenza del mondo degli studenti è di certo servita durante la progettazione delle residenze, fase in cui si è cercato di conciliare dimensioni degli spazi e tipologie di servizi che si stavano pensando per il campus e le residenze. Il progetto del campus, in particolare il progetto relativo agli edifici per aule, biblioteca e dipartimenti, è durato a lungo nel tempo e negli anni la stessa Università Ca’ Foscari – committente del progetto – ha modificato le sue richieste in termini di nuove esigenze, come ad esempio la necessità, legata alla programmazione didattica e non solo, di nuovi spazi o comunque diversi da come erano stati pensati in origine (il n. di aule, la dimensione dei posti all’interno delle aule, nuove strumentazioni, ecc.), motivo per cui tali edifici sono stati oggetto di aggiornamento specifico del progetto. Successivamente si è aggiunto l’ultimo tassello al progetto, ovvero le residenze universitarie
A partire dal 2002, in quanto collaboratore presso lo studio del prof.re arch. ing. V. Spigai, sono stato coinvolto con ruolo di coordinaMassimiliano Condotta
Identificazione dell’area di intervento del campus di San Giobbe. Foto aerea Bing Maps 2024. © Rosaria Revellini
inaugurate poi nel dicembre 2021, data a partire dalla quale sono stati accolti i primi ospiti. Si tratta infatti di un progetto unitario complesso nato nel 1986, anno in cui Ca’ Foscari decide di insediare l’intero campus di Economia, la facoltà storica dell’ateneo veneziano, nell’area di San Giobbe con l’obiettivo principale di riunificare le numerose sedi di economia in previsione dell’arrivo in quell’anno di oltre 6.000 nuovi iscritti. L’area individuata necessitava essa stessa di importanti operazioni di riqualificazione e recupero del tessuto urbano. Il progetto viene affidato agli architetti Romeo Ballardini e Vittorio Spigai, entrambi professori presso lo IUAV in quegli anni, ed è articolato in tre fasi attuative che hanno previsto sia opere di recupero-restauro di alcuni ex edifici industriali che di nuova edificazione. L’intervento è quindi diventato via via sempre più complesso, richiedendo nuove figure e competenze specialistiche, tra cui ingegneri strutturisti e impiantisti, figure fondamentali per la definizione dell’intero progetto.

Il complesso delle residenze universitarie visto dall’area della stazione FS di Venezia Santa Lucia. © Rosaria Revellini
mento del progetto esecutivo-architettonico e dell’integrazione delle attività specialistiche degli altri professionisti (tra cui arch. Maurizio Brufatto, ing. Fausto Frezza e ing. Pierluigi Da Col rispettivamente per atti amministrativi e progettazione esecutiva, progettazione strutturale, progettazione impiantistica e prevenzione incendi).
L’area in cui sorge il campus di San Giobbe è stata spesso considerata geograficamente “marginale” anche se viene annoverata come la “porta” di Venezia insulare dalla terraferma. Un’area, inoltre, intrisa di valore architettonico visto che qui Le Corbusier aveva immaginato il nuovo ospedale della città. Qual è stata la relazione con l’area e con questo passato progettuale così importante e in che modo l’intervento – che è durato oltre 30 anni – ha affrontato le nuove e antiche sfide rispetto a questa parte di città?
L’allora rettore di Ca’ Foscari Giovanni Castellani aveva scelto l’area di San Giobbe, marginale e degradata fino agli anni Ottanta, consapevole che la realizzazione del campus e delle residenze avrebbero permesso di dare una
nuova vita a tutta la zona. Di fatto, l’intervento ha permesso la riqualificazione dell’area e restituito una sua dignità a una delle prime zone della città lagunare chiaramente visibili lungo il Ponte della Libertà dalla terraferma.
Allo stesso tempo proprio qui, circa due decenni prima, era stato previsto il nuovo ospedale di Le Corbusier, un progetto che si inseriva nell’area in maniera indifferente al tessuto urbano minore e alle architetture preesistenti e che, inoltre, si estendeva sulla laguna verso il canale. Per tale grande edificio, l’architetto prevedeva l’uso di tecniche costruttive che molto probabilmente non sarebbero poi risultate adeguate al contesto veneziano, specie rispetto al tema della durabilità, come per esempio la presenza di numerosi pilotis in calcestruzzo armato direttamente in acqua, in una zona della laguna molto aperta e soggetta ai venti e alla salinità.
Il progetto del campus di San Giobbe si contrappone completamente a quello di Le Corbusier, volendo conservare e preservare tanto gli edifici esistenti quanto il tessuto urbano. In quegli anni, tale pensiero progettuale viene inoltre avallato dagli studi e dalle ricerche sull’importanza dell’edilizia minore nelle città storiche (in
Condotta | Le residenze di San Giobbe: una nuova “porta” per Venezia
particolare grazie al lavoro di Egle Renata Trincanato) e dell’archeologia industriale, confermando che il nuovo ospedale sarebbe risultato troppo invasivo nella città insulare. Il campus di San Giobbe, rispettando le peculiarità del luogo, risulta avere oltretutto un forte contenuto ideologico: dalle antiche architetture di una delle più grandi industrie di Venezia nasce una nuova “industria” veneziana, l’industria del sapere ovvero l’università.
L’uso del laterizio in un luogo come il centro storico di Venezia sembra quasi una scelta obbligata, eppure immagino sia stato piuttosto sfidante dal punto di vista progettuale e tecnologico. In che modo è stata affrontata questa scelta e con quale consapevolezza ci si è confrontati tanto con il patrimonio storico in laterizio quanto con le architetture moderne e contemporanee (penso principalmente alle residenze progettate da Gino Valle alla Giudecca)?
I materiali tipici di Venezia sono principalmente tre: laterizio, pietra d’Istria e trachite. Tuttavia, nell’architettura storica il laterizio non viene utilizzato faccia-vista in quanto l’intonaco (o altri tipi di rivestimento di facciata come la pietra) costituiva un ulteriore elemento caratterizzante l’edilizia veneziana. Degrado e salinità, con conseguente distacco dell’intonaco su gran parte delle facciate degli edifici lagunari, hanno permesso oggi di vedere direttamente il muro in laterizio.
Gli edifici dell’ex Macello presentavano invece una muratura in mattoni faccia-vista sui fronti verso le corti interne e intonaco a bugnato solo sui fronti verso la laguna. Per il restauro-recupero di tali edifici, al fine di mantenere la muratura esistente all’esterno, sono stati previste operazioni di cuci-scuci, di stilatura dei giunti e interventi specifici per evitare la risalita capillare dell’umidità tramite tecniche sperimentali basate sull’inversione della polarità all’interno della muratura. Di contro, all’interno sono stati realizzati impalcati e strutture in materiali diversi da quelli storici, ossia acciaio e vetro anche per rendere evidente l’intervento di recupero.
Analogamente, i nuovi edifici sono stati realizzati con strutture puntuali in calcestruzzo armato e in acciaio e muratura in laterizio con rivestimento in mattoni faccia-vista per le chiusure. In particolare, si tratta di una facciata microventilata in quanto è presente uno strato di separazione tra isolante e laterizio e vengono alternate ai giunti in malta piccole griglie che garantiscono la microventilazione e favoriscono l’isolamento dell’edificio stesso. Più nello specifico, la stratigrafia della chiusura verticale opaca è così caratterizzata (dall’interno verso l’esterno, laddove il rivestimento esterno è in mattoni faccia a vista): intonaco di finitura, tamponamento in blocchi in laterizio alleggerito in pasta da 30 cm, strato isolante (spessore variabile dai 5 cm agli 8 cm), intercapedine d’aria da 3 cm, facciata microventilata con mattoni in laterizio1
La scelta del tipo di mattone, della malta, nonché la stilatura dei giunti è stata molto curata al fine di poter avere una superficie muraria quasi con-
La sequenzialità delle aperture e degli elementi in rame sulla facciata. © Rosaria Revellini

Attacco a terra e relazione tra pavimentazione e facciata.
© Massimiliano Condotta
tinua, massiva, anche in contrapposizione con le strutture puntuali interne. La malta, infatti, contiene inerti di laterizio per avere una colorazione molto simile a quella del mattone utilizzato. Il mattone UNI è stato un elemento fondamentale per lo studio sia planimetrico che in alzato: lesene, piani, dimensioni della foratura delle finestre, e altri particolari sono stati dimensionati sulle note misure 5,5 cm x 12 cm x 25 cm.
Oltre al laterizio, le residenze presentano un coronamento in rame, materiale poi ripreso per parapetti, cornici, pluviali e davanzali, e infissi in alluminio verniciato rosso, infissi che caratterizzano tutto il progetto del campus (biblioteca, aule, residenze) con il colore rosso che identifica l’ateneo cafoscarino ma che riprende anche le storiche finestrature dell’edilizia industriale veneziana.
L’intervento del campus e delle nuove residenze universitarie hanno permesso di attivare nuovi percorsi (per esempio dalla stazione, con la costruzione del ponte Va-
leria Solesin) e nuove aree a servizio anche della popolazione residente nell’area di Cannaregio. Secondo lei, l’uso del laterizio ha permesso di rendere più apprezzabile e vivibile, quindi più familiare, questo intervento da parte della comunità? Fin dall’inizio del progetto il campus si configura come spazio aperto a servizio di tutta la città nonchè come volano per la riqualificazione dell’intera area. Essendo stato pensato come parte integrante del quartiere, il disegno dell’impianto urbano prova a ricreare una sequenzialità tra calli, campi e campielli anche grazie allo studio della pavimentazione e all’uso quindi di trachite e pietra d’Istria. Questi spazi, che in successione si contraggono e si aprono con un ritmo costante, sono caratterizzati dai volumi in laterizio, materiale che definisce e caratterizza anche gli spazi esterni. Il laterizio ha pertanto un duplice “valore”: delimitare e creare gli spazi entro i volumi chiusi e disegnare e identificare gli spazi pubblici aperti nei percorsi e negli spazi della socialità. Inoltre, in que -

sta sequenzialità si collocano una serie di servizi previsti per il campus (ristorante, bar, e così via) e che di fatto sono utilizzati da tutta la comunità residente, rendendosi così promotori di una riqualificazione anche sociale del quartiere.
Infine, il nuovo ponte – che si è deciso di dedicare poi a Valeria Solesin – era già stato previsto nel masterplan originario e realizzato successivamente grazie all’accordo con Ferrovie dello Stato, dal momento che viene incluso un percorso interno alla stazione di Venezia Santa Lucia. Tale ponte consente di connettere due parti della città molto vicine ma prima della sua costruzione fruite dai pedoni in tempi piuttosto lunghi.
Laterizio e sfide ambientali: in che modo il progetto delle residenze universitarie di San Giobbe affrontano i temi della sostenibilità in particolare rispetto all’uso del laterizio?
Il progetto si è esteso negli anni, come detto, e quindi anche il tema della sostenibilità si è

evoluto nel frattempo. Nello specifico le residenze sono state progettate per essere in classe energetica A, grazie all’uso di sistemi impiantistici a pompe di calore e fotovoltaico, ovvero di guaina fotovoltaica in copertura che rimane nascosta alla vista. Il tema della sostenibilità è stato affrontato piuttosto rispetto all’obiettivo di preservare il contesto urbano e a quello di limitare l’uso delle risorse. A ciò si aggiunge il tema del tempo: si tratta di edifici che sono stati progettati per durare a lungo in analogia a quelli esistenti, che sono stati riqualificati dopo oltre due secoli dalla loro originaria costruzione. Ragionare in tal senso significa considerare il fatto che l’energia spesa per costruire i nuovi edifici sarà recuperata negli anni a venire. L’uso sostenibile del laterizio può essere quindi letto rispetto a questi obiettivi.
Note
1. La direzione lavori degli edifici destinati alle residenze è stata affidata a uno studio terzo, a differenza di quella dell’intero campus affidata all’arch. Brufatto e agli ingg. Frezza e Da Col.

La stratigrafia della chiusura verticale opaca caratterizzata da: blocchi in laterizio da 30 cm; pannello isolante da 5 cm; intercapedine d’aria da 3 cm; facciata microventilata in mattoni in laterizio con giunti di malta orizzontali e verticali, ancorata tramite zanche metalliche.
A sinistra, foto di cantiere (dicembre 2019): partizione interna verticale, con foratura per l’inserimento del serramento interno, e chiusura verticale opaca, con foratura per l’alloggiamento del serramento esterno, entrambe realizzati con blocchi forati in laterizio alleggerito in pasta da 30 cm. © Rosaria Revellini
Chiara Testoni, Architetto, PhD
KEYWORDS
Stratificazione
Memoria
Contemporaneità
Contrasti
Mattoni di recupero
Durabilità
Stratification
Memory
Contemporaneity
Contrasts
Reclaimed bricks
Durability
DA P studio ha realizzato un intervento sensibile ed elegante di recupero di un complesso storico a Torino, precedentemente adibito a sede di uffici e convertito in residenza studentesca con servizi e spazi comuni.
L’e dificio, all’angolo tra Corso Palestro e via Bertrandi, è caratterizzato da un impianto ad “L” attorno ad una corte centrale e si sviluppa su cinque piani fuori terra, oltre a un piano mansardato e a un piano interrato.
Una fisionomia composta ed austera caratterizza i fronti su strada, impostati su un basamento a bugnato rustico e scanditi regolarmente da un ordine gigante di paraste che prosegue in un ordine minore nel coronamento. Un androne di accesso, sia pedonale sia carrabile, funge da “cannocchiale” urbano che connette percettivamente la strada al giardino interno e conduce agli ambienti.
L’intervento ha inteso preservare e valorizzare i caratteri di pregio del fabbricato storico, innescando una potente dialettica espressiva tra preesistenza e intervento contemporaneo.
An intervention of renovation and change of use in a historical building in Turin enhances, in the interiors, a poetic of contrasts between past and present, materiality and lightness, different colours and textures, bringing out the building’s original valuable features without renouncing an essential and balanced contemporary lexicon
Negli esterni, sono state intraprese operazioni di minima, funzionali a preservare il carattere consolidato del fabbricato, tra cui la sostituzione di serramenti, pluviali e canali di gronda, tinteggi in coerenza con le cromie esistenti, recupero di scuri, parapetti, davanzali e soglie, nuova illuminazione).
Negli interni, invece, lo studio ha optato per una radicale trasformazione degli spazi che, a seguito di ripetuti cambi di destinazione d’uso, erano stati completamente manomessi e privati di ogni elemento di pregio visibile. Il progetto ha mantenuto l’impianto distributivo originario, introducendo tre corpi scala ex novo: due, disposti ai lati opposti dell’androne (a sudest e a nord-ovest) che conducono rispettivamente al piano interrato e ai piani superiori; un terzo che conduce dal cortile ai locali di servizio interrati.
Le aree funzionali risultano chiaramente ripartite. Il piano terra ospita la reception e gli spazi distributivi; il piano interrato gli ambienti comuni (una palestra ad uso dei residenti, tre sale polivalenti, locali tecnici e di servizio). Ai piani superiori, si situano 19 appartamenti (4 ad ogni piano e 3 nel sottotetto) di varia tipologia, tra camere singole, doppie e doppie con servizi privati, per ospitare fino a 82 utenti.
Tutte le partizioni, gli arredi, i controsoffitti, i serramenti interni sono stati rimossi e gli involucri strutturali liberati dagli intonaci, in modo
Oggetto Recupero e conversione di edificio storico
Località via Palestro 3 - Torino, Italia
Committente Reale Immobili Spa
Progetto Architettonico DAP studio/Elena Sacco, Paolo Danelli
Coordinamento Pierpaolo Danelli, Dap Studio
Progetto strutture e impianti Proges srl
Direzione lavori Antonio Presicce, 3+Progetti
Direzione Operativa Impianti Giorgio Colletti, Colletti Ingegneria
Direzione artistica Pierpaolo Danelli, Dap Studio
Impresa esecutrice Gruppo Tecnoimprese srl (opere edili), Artespazio srl (arredi)
Cronologia 2017-2018
Superficie 2500 m2
Fotografie Barbara Corsico
da riportare alla luce la corposa muratura di mattoni pieni con spessore variabile tra i 75 ed i 65 cm, le volte a botte nell’interrato e a crociera al secondo e terzo piano.
Negli spazi comuni al piano terra e interrato, a segnalare con chiarezza il gesto contemporaneo rispetto alle murature storiche a vista, sono gli elementi d’arredo, strutturali e di finitura (dalle strutture ai parapetti delle scale, ai rivestimenti parietali) in metallo dai toni scuri, realizzati con tecnologie a secco e dunque reversibili, che creano un acceso contrasto con le superfici ruvide e massive in laterizio. Ai piani superiori, il carattere “cavernoso” degli spazi di relazione ai piani terra e interrato si stempera in ambienti residenziali nitidi e radiosi, dove prevalgono le superfici lisce e i toni chiari.
Come per il design degli elementi ex novo, così anche per il recupero e l’integrazione della struttura in muratura a vista lo studio ha adottato un approccio attento e scrupoloso. Dopo l’eliminazione dello strato superficiale di intonaco (con cura per i mattoni sottostanti) e la depolverizzazione ad aria compressa di fughe e fessure e il loro risarcimento nelle parti

mancanti, lo studio ha optato per la ricucitura delle porzioni murarie che necessitavano di una sostituzione attraverso altri mattoni di recupero provenienti da demolizioni parziali in breccia, effettuate in situ e finalizzate all’apertura di porte e di vani di passaggio. La selezione dei laterizi di recupero è avvenuta con particolare attenzione alla durabilità e integrità degli elementi ma senza specifiche indagini strutturali, in considerazione del riutilizzo al solo scopo di risarcimento delle lacune superficiali. Sfumature di tono e porosità diverse sono state ritenute accettabili in quanto proprie della vecchia muratura, di cui il progetto ha posto in luce le tracce evolutive, gli aspetti tessiturali e cromatici variegati (tra cui la presenza di elementi lapidei, in alcune parti) e le irregolarità come segno del processo naturale di stratificazione storica. Un intervento raffinato ed efficace, che propone la poetica dei contrasti come strumento compositivo di lettura e significazione dello spazio storicizzato e di affermazione del gesto contemporaneo come atto dichiarato ma non prevaricante sulla longevità dell’esistente.
Vista dei fronti dell’edificio storico all’incrocio tra Corso Palestro e via Bertrandi




L’articolo presenta il caso della residenza universitaria progettata da Giovanni Muzio tra il 1953 e il 1956 per l’Università Bocconi a Milano, con un particolare approfondimento sull’uso di materiali litoceramici nei rivestimenti esterni e in alcune decorazioni interne.
Urbani, Politecnico di Milano
KEYWORDS
Residenza universitaria
Bocconi
Giovanni Muzio
Litoceramica
Student housing
Bocconi
Giovanni Muzio litoceramica
Introduzione
I rivestimenti ceramici costituiscono un elemento ricorrente e rappresentativo del campus Bocconi a Milano: come un filo rosso hanno contraddistinto l’espansione di questo complesso, durata per quasi un secolo. Il campus che vediamo oggi è il risultato, infatti, di aggiunte e trasformazioni che si sono susseguite in parallelo rispetto allo sviluppo urbano di questa zona della città, che ha progressivamente assorbito i diciassette edifici universitari in un tessuto costruito ormai consolidato [1,2].
Nel 1937 l’università Bocconi decide di realizzare una nuova sede in un’area fuori dal centro cittadino, la cui progettazione viene affidata a Giuseppe Pagano [3, 4, 5]. L’edificio in via Sar-
fatti 25 costituisce la prima di una lunga serie di sperimentazioni e declinazioni dell’uso dei rivestimenti realizzati con quel materiale che in Italia è stato inizialmente definito come litoceramica. Nei decenni successivi, molte sono state nel campus le reinterpretazioni del rivestimento ceramico a firma di architetti illustri quali Giovanni Muzio, Ignazio Gardella e Ferdinando Reggiori [6, 7, 8]. Negli anni più recenti, il complesso universitario ha subito trasformazioni e ampliamenti per rispondere a nuovi usi ed esigenze, anche attraverso interventi di manutenzione ordinaria e straordinaria [9].
L’obiettivo di questo contributo è approfondire un preciso episodio dello sviluppo di questo complesso, la residenza universitaria pro-
The article examines the case of the Bocconi campus in Milan, with a specific focus on the use of lithoceramic materials in the cladding of the various buildings that have formed the extensive university complex over the last century. Specifically, the university
residence designed by Giovanni Muzio between 1953 and 1956 will be investigated, highlighting interesting typologies of lithoceramics used in the external cladding and some internal decorations. Furthermore, the positioning of this building within the development of the
university campus will be explored, emphasizing synergies with preexisting structures. The contribution will address the material and construction characteristics of the building, highlighting the intervening transformations and its current state of preservation.
Rivestimenti e decorazioni litoceramici: il caso della residenza dell’università Bocconi di Giovanni Muzio

gettata da Giovanni Muzio negli anni Cinquanta, ripercorrendo non tanto gli aspetti compositivi e storici1, già largamente indagati [10, 11], ma soprattutto le vicende intercorse dalla costruzione ad oggi, con particolare attenzione all’evoluzione delle condizioni d’uso e i conseguenti effetti sui rivestimenti ceramici che caratterizzano sia l’esterno che l’interno di questo edificio (fig. 1) [12].
Lo studentato dell’università Bocconi a firma di Giovanni Muzio (1953-1956) e il rapporto con le preesistenze
La residenza universitaria progettata da Giovanni Muzio tra il 1953 e il 1956 costituisce il primo di numerosi ampliamenti del campus che si sono succeduti nel corso dell’ultimo se-
colo, in risposta all’aumento degli iscritti alle facoltà di economia e lingue e dell’istituzione di un nuovo corso di laurea. L’edificio di via Bocconi 12 rappresenta uno dei primi segnali della ricostruzione di Milano a seguito del secondo conflitto mondiale, quale tentativo di rinascita dalle «macerie materiali e morali della guerra» [13] in un’area caratterizzata da attività industriali in espansione.
Lo studentato, che occupa un’area di circa 5.500 mq, si sviluppa in tre corpi di fabbrica, un edificio basso in linea lungo via Bocconi e via Toniolo, adibito a servizi comuni (mensa, attività sportive e di aggregazione) che funge da collegamento tra i due edifici di cinque piani con pianta a trifoglio nei quali sono disposte le camere singole [14] (fig. 2). Inizialmente, l’edi-
2.
©Caterina Valiante
ficio è concepito per ospitare 360 pensionanti, ma le attività ricreative e il refettorio sono pensati per essere utilizzati anche dal resto della comunità studentesca [15]. In questo progetto, Muzio affronta il tema della residenza universitaria sperimentando soluzioni tecniche anche molto innovative, come il solaio di copertura di una delle sale mensa, caratterizzato da prismi cavi autoportanti in cemento armato precompresso (in collaborazione con l’ingegnere Aldo Favini), tuttavia, non manca di confrontarsi con la “preesistenza”, ovvero la sede “storica” di Giuseppe Pagano. Dal punto di vista compositivo e materico, in-
©
3.


fatti, numerosi sono i richiami con la contigua sede progettata da Pagano negli anni Trenta, con cui l’edificio di Muzio si pone in relazione diretta. Rivestimenti e decorazioni in laterizio costituiscono i termini più evidenti di questo dialogo. Gli elementi ceramici bicolore, la cui disposizione forma un decoro a spina di pesce, scelti per il rivestimento esterno dell’edificio richiamano la «stereometria solare» della sede di via Sarfatti [16] (fig. 3). Questo tipo di rivestimento, già ampiamente utilizzato da Muzio in larga parte della sua produzione, viene qui adattato al purismo di Pagano. L’architetto, pur essendo stato nella sua lunga carriera piuttosto lontano alle sperimentazioni d’avanguardia dei razionalisti, decide di rinunciare alle citazioni neoclassiche tipiche delle sue architetture progettate nel periodo tra le due guerre, per adottare un linguaggio moderno caratterizzato da geometrie semplici e scansioni ritmate di rivestimenti e aperture [13].
Un altro elemento che pone in stretta correlazione i diversi edifici del campus, e che verrà riproposto anche dai successivi architetti chiamati a progettare gli ampliamenti dell’università, è il rapporto tra architettura e opere d’arte. Muzio raccoglie il testimone lasciato da Pagano e ripropone, anche nel suo progetto, elementi decorativi e bassorilievi su formelle in ceramica, la cui realizzazione è affidata all’artista Cesare Bianchini [17]. In questo caso è l’architetto milanese a definire insieme a Bianchini questi elementi, includendoli nella fase di progettazione vera e propria [18]. La collaborazione con artisti, soprattutto scultori, all’interno delle sedi universitarie costituisce un tratto distintivo di tutti gli edifici del campus bocconiano.
Nel corpo di fabbrica più basso, adibito a servizi comuni, utilizzato come cortina muraria e filtro tra la pubblica via e le due torri degli alloggi viene sottolineato un altro tratto comune con la sede di Pagano: la spiccata attenzione per le istanze funzionali, con l’obiettivo di soddisfare le esigenze pratiche della committenza. In questo contesto, Muzio introduce un tema che ricorrerà nella sua produzione degli anni successivi: la «concretezza e totale adesione alle necessità pratiche della committenza, in perfetta
Il Thermopolium ostiense: storia e restauro di un wine-bar di età imperiale
continuità – culturale anziché superficialmente manieristica – con lo spirito dell’impianto originario di Giuseppe Pagano» [19]. In questo edificio, inoltre, il materiale ceramico viene ulteriormente declinato negli elementi frangisole, nove grigliati realizzati in litoceramica (fig. 4), chiaro rimando all’architettura tradizionale lombarda ricorrente nelle architetture di Muzio in quel periodo, posizionati sul lato prospiciente via Toniolo, in forte contrapposizione con le adiacenti pareti d’angolo che definiscono l’ingresso dell’edificio, caratterizzate da una fitta serie di aperture e da setti in vetrocemento [2].
Il linguaggio di Muzio, sebbene fosse già largamente consolidato, sembra adattarsi a quello di Pagano, aprendo un dialogo diretto, al fine di richiamare quegli elementi che avevano caratterizzato la prima sede di via Sarfatti. Il riferimento teorico non è più la città storica ma il funzionalismo della sede di via Sarfatti. In questo caso «Muzio si appropria in modo personale della modernità: ne avverte l’intrinseca tensione verso il raggiungimento di una condizione apodittica della forma e dello spazio, e la restituisce in termini di nudità della costruzione e di rigore distributivo dei volumi» [19].
Varianti e proprietà delle finiture ceramiche
Le diverse declinazioni dei rivestimenti ceramici, come si è detto, rappresentano un elemento distintivo di buona parte del campus Bocconi. Dall’uso della litoceramica scelta da Giuseppe Pagano negli anni Trenta, alla versione ceramica ‘dura’ (denominata clinker) utilizzata da Giovanni e Lorenzo Muzio negli anni Cinquanta e Sessanta [20], fino ad arrivare al mattone a vista del Velodromo di Ignazio Gardella negli anni Duemila2 . L’utilizzo di questo tipo di rivestimento nella residenza progettata da Muzio risulta particolarmente interessante sia come momento intermedio nello sviluppo del complesso universitario, sia come fase peculiare nell’opera dell’architetto milanese. Appare significativo innanzitutto operare una distinzione tra i termini “litoceramica” e “clinker”. Questo materiale, prodotto ceramico a pasta compatta di elevata durezza e vetrifica-

zione avanzata, viene definito litoceramica, ovvero “pietra ceramica”, quando, per la prima volta, viene prodotto in Italia nel 1933. A causa dell’autarchia imposta dal regime fascista, infatti, l’equivalente “clinker”, o “klinker”, già largamente diffuso nel nord Europa (soprattutto in Olanda, Germania e Inghilterra), non poteva essere importato. Sembra vi sia proprio Giovanni Muzio fra i primi architetti italiani a scoprire questo materiale durante alcune visite presso dei cantieri ad Amburgo negli anni Venti. Una prima produzione sperimentale era stata avviata dall’Industria Ceramica Piccinelli di Bergamo già verso la fine dell’Ottocento3, dagli anni Trenta che il materiale inizia ad essere prodotto in larga misura, in particolare con la registrazione del nome depositato dalla ditta: “Litoceramica” [16]. Questo materiale, molto innovativo negli anni Trenta, è divenuto di uso comune soprattutto a Milano, negli anni Sessanta e Settanta. Muzio è considerato non solo il primo ad aver sperimentato questo materiale in Italia, nel progetto per il Palazzo dell’Arte (l’attuale Triennale di Milano), ma anche uno degli architetti che, nella sua lunga carriera, ne ha fatto maggiormente uso, secondo il principio formale della “pelle” come rivestimento dello “scheletro” costruttivo di cemento armato [21]. Egli introduce la cosiddetta ceramica ‘dura’ come materiale ceramico moderno dal punto di vista tecnologico, mantenendo così una stretta connessione con la tradizione lombarda del mattone,
4. Particolare dei grigliati frangisole. @Caterina Valiante

con l’obiettivo di accentuare il carattere geometrico e monolitico dell’edificio [21]. Muzio accoglie dunque «gli ultimi ritrovati tecnici […] senza ricopiarne le forme estetiche», ma interpretandolo attraverso continui richiami alla tradizione costruttiva e formale italiana [10].
Nella residenza dell’università Bocconi si possono osservare non solo degli evidenti rimandi alla tradizione lombarda, ad esempio nel grigliato frangisole, ma anche dei precisi riferimenti alla sede preesistente, in modo particolare nell’utilizzo del rivestimento litoceramico nella versione moderna di consistenza dura, ormai ampiamente noto anche in Italia negli anni Cinquanta, in omaggio alle finiture litoceramiche di Pagano.
Stato di conservazione e usi attuali
La residenza universitaria, ancora oggi in funzione con la medesima destinazione d’uso, pre-

senta un buono stato di conservazione. I periodici interventi di manutenzione ordinaria ed un esteso intervento di ristrutturazione, che ha modificato soprattutto la distribuzione interna, consentono oggi di apprezzare, almeno esteriormente, l’edificio nella sua configurazione iniziale [19]. Il rivestimento esterno in tessere laterizie di “pietra ceramica” risulta, in generale, ben conservato. Si rilevano soltanto alcune zone, circoscritte al prospetto nord-est, in cui si concentrano dei fenomeni di colatura in prossimità degli aggetti (fig. 5). Gli elementi grigliati frangisole sono ancora osservabili e si presentano in buone condizioni, così come le decorazioni in formelle ceramiche nell’atrio di ingresso (fig. 6). Si rileva, infatti, una certa attenzione della proprietà nella conservazione e gestione delle varie strutture del campus. Ciononostante, numerose sono state le trasformazioni della configurazione interna ed estese le sostituzioni di elementi di finitura e chiusure. Nella ristrutturazione effettuata nel 2007, infatti, si è operata una totale ridistribuzione degli ambienti interni destinati agli alloggi, portando la capienza del pensionato da 360 a 260 camere singole. Diversamente, il piano terra destinato a spazi comuni è stato modificato solo in alcune destinazioni d’uso: la mensa, ad esempio, è diventata oggi una palestra. Gran parte delle finiture interne è stata sostituita, così come la totalità dei serramenti.
Tra gli interventi di manutenzione ordinaria, si segnala un’altra operazione impropria condotta per eliminare i graffiti vandalici sulla zona basamentale, dove, in luogo di una pulitura, sopra il rivestimento esterno ceramico è stata applicata una tinta acrilica, al momento già in fase di esfoliazione (fig. 7).
In generale, dunque, l’approccio finora adottato per la conservazione e, soprattutto, manutenzione dell’edificio – così come del resto è stato osservato anche negli altri edifici del campus [9] – risulta da un lato certamente attento alla valorizzazione delle stratificazioni del complesso universitario che si è sviluppato, edificio dopo edificio, nel corso di quasi cent’anni. Anche l’attuale strategia comunicativa dell’ateneo si concentra sul
Rivestimenti e decorazioni litoceramici: il caso della residenza dell’università Bocconi di Giovanni Muzio

portato culturale insito nelle sedi “storiche” del campus che contribuiscono a definire “l’identità” dell’università 4 . Dall’altro, tuttavia, non sempre le scelte fatte hanno perseguito la conservazione anche materiale del manufatto, che hanno portato anche a diverse trasformazioni negli interni e ad alcune sostituzioni negli esterni. Pertanto, quello che vediamo oggi è il risultato di una serie di interventi manutentivi che hanno fatto perdere alcuni degli elementi del progetto iniziale di Muzio, tuttavia consentono ancora di apprezzare l’edificio nel suo insieme grazie a trasformazioni nel complesso limitate. Ciononostante, uno degli elementi che maggiormente ha contribuito alla salvaguardia di questo edificio, e del resto del campus, va ricercato nella strategia di valorizzazione che riconosce una grande importanza al costruito nello sviluppo della storia e cultura di questa istituzione universitaria. Sebbene questa residenza non rientri tra le architetture più studiate di Muzio [10, 11, 15, 19], riveste un ruolo significativo nell’espansione dell’ateneo, in quanto costituisce il secondo edificio del complesso in ordine di costruzione, instaura sinergie con la preesistente sede di Pagano e il tessuto urbano in evoluzione in cui si inserisce. Così come le diverse declinazioni dei rivestimenti ceramici, sia negli esterni che negli interni, ed in particolare negli apparati decorativi, caratterizzano una fase intermedia rilevante nello sviluppo del campus , poiché creano collegamenti e continui rimandi fra la sede “storica” e i successivi ampliamenti.
7. E sfoliazione della tinta acrilica applicata sulla zona basamentale. © Caterina Valiante
[1] S. Casciani, Un cuore di cristallo per Milano. La nuova università Bocconi, Editoriale Domus, Milano, 2008.
[2] A. Castellano, M. A. Romano (a cura di), Architetture bocconiane, Università Bocconi Editore, Milano, 2016.
[3] G. Pagano, La nuova sede dell’Università Commerciale Luigi Bocconi, Casabella 170-171(1942), pp. 2-80.
[4] F. Brunetti, Giuseppe Pagano. L’Università Bocconi di Milano, Alinea, Firenze,1997.
[5] V. Ceretti, Il restauro dell’università Bocconi di Milano, in AA. VV., Il progetto dell’università Bocconi nel quadro dell’attività milanese di Pagano, Giuseppe Pagano. Architettura tra guerre e polemiche, Alinea, Firenze, 1991, pp. 59-64.
[6] G. Gramigna, S. Mazza, Milano. Un secolo di architettura milanese dal Cordusio alla Bicocca, Hoepli, Milano, 2001.
[7] M. Grandi, A. Pracchi, Milano. Guida all’architettura moderna, Zanichelli, Bologna, 1980.
[8] M. Biraghi, G. Lo Ricco, S. Micheli, Guida all’architettura di Milano 1954-2014, Hoepli, Milano, 2013.
[9] C. Valiante, Il campus Bocconi in Milano. Architetture, materiali e tecniche in un secolo di trasformazioni, Materiali e Strutture 23 (2023), pp. 47-58.
[10] G. Gambirasio, B. Minardi (a cura di), Giovanni Muzio: opere e scritti, Franco Angeli, Milano, 1982.
[11] F. Irace, Giovanni Muzio 1893-1982: Opere, Electa, Milano, 1994.
[12] C. Murua, Il laterizio nelle opere milanesi di Giovanni Muzio, Costruire in Laterizio (169) 2016, pp. 86-89.
[13] S. Casciani, Da Pagano al campus che verrà, in A. Castellano, M. A. Romano (a cura di), Architetture bocconiane, Università Bocconi Editore, Milano, 2016, pp. 185-220.
[14] L. Spinelli, La costruzione di un frammento di città, in S. Casciani, Un cuore di cristallo per Milano. La nuova università Bocconi, Editoriale Domus, Milano, 2008, pp. 55-70.
[15] AA. VV., L’architettura di Giovanni Muzio, Abitare Segesta Cataloghi, Milano, 1994.
[16] V. Bernardini, Litoceramica, in L. Cupelloni (a cura di), I materiali del moderno. Campo, temi e modi del progetto di riqualificazione, Gangemi, Roma, 2017.
[17] L. Spinelli, Una sommatoria di architetture all’interno della città, in AA. VV., Ampliamento dell’Università Bocconi di Milano (numero monografico), Domus (846) 2002.
[18] Cartelle D17, D18 Pensionati e mense dell'Università Bocconi di Milano, via Sarfatti 1953-1956, XXII.
[19] S. Boidi, F. Buzzi Ceriani, L’architettura di Giovanni Muzio. Catalogo della mostra (Milano, Triennale, 1994), Abitare Segesta, Milano, 1994.
[20] E. D. Bona, Ampliamento dell’Università Bocconi di Milano, Casabella (312) 1967, pp. 46-65.
[21] A. Burg, Novecento milanese: i novecentisti e il rinnovamento dell’architettura a Milano fra il 1920 e il 1940, Federico Motta, Milano, 1991.
Note
1. Gli aspetti storici e compositivi sono stati ampiamente indagati in relazione alla produzione di Giovanni Muzio. Si vedano i riferimenti bibliografici [10; 11; 12; 15].
2. Per una più approfondita analisi dei diversi edifici che compongono il campus Bocconi si vedano i riferimenti [1; 2; 9].
3. Sulla vicenda si veda il Dizionario Biografico degli Italiani, Volume 83, 2015, voce “Piccinelli, Pietro Bortolo”, https://www.treccani.it/enciclopedia/pietro-bortolopiccinelli_(Dizionario-Biografico)/ [02/05/2024].
4. Nel sito internet del campus Bocconi si trovano sezioni dedicate alla storia anche “architettonica” dell’università. L’ateneo organizza anche dei tour guidati, aperti a tutti, che ripercorrono tutte le tappe dello sviluppo del campus, con spiegazioni specifiche per ogni edificio. Si veda https://www.unibocconi.it/ [02/05/2024].
La Legge n. 338/00 e i cosiddetti bandi PNRR per gli student housing hanno avuto il merito di incrementare il numero di posti alloggio disponibili nel nostro Paese. L’articolo riporta lo stato dell’arte della normativa italiana in ambito di residenzialità studentesca universitaria
KEYWORDS
Legge n. 338/00
Studenti universitari
student housing
Programmi pluriennali di intervento
PNRR
Law n. 338/00
University students
Student housing
Multi-year implementation programmes
PNRR
Con l’obiettivo di rispondere all’incremento della mobilità studentesca nazionale e internazionale e al conseguente aumento della richiesta di posti alloggi, molti Paesi europei, a partire dal 2000, hanno intrapreso politiche finalizzate alla realizzazione di alloggi e residenze universitarie, attraverso differenti tipologie di programmi pluriennali di finanziamento.
L’Italia, all’inizio del secolo, era la Nazione che presentavano il rapporto più basso tra studenti universitari e disponibilità di posti alloggio (fig.1).
La legge del 14 novembre 2000, n. 338, in abbinamento con la Legge del 23 dicembre 2000, n. 388, costituisce, per il nostro Paese, il primo programma di finanziamento pubblico finalizzato all’adeguamento e all’incremento del numero di posti alloggio per studenti universitari (Piferi, 2022).
L’apparato normativo ha avuto un’importanza
strategica in quanto da un lato ha permesso l’incremento del numero di posti alloggio disponibili, dall’altro ha sancito il passaggio dalla residenza dormitorio alla residenza incubatore (Piferi, 2021): inoltre ha innescato un ulteriore processo virtuoso contribuendo alla riqualificazione di edifici dismessi e alla rigenerazione urbana e sociale di molte aree degradate (Bologna, 2022). Questo è stato possibile perché la norma, oltre a definire standard minimi quali-quantitativi, affronta ambiti più ampi quali la compatibilità ambientale, l’integrazione con la città, la compresenza di livelli di individualità e socialità e l’integrazione delle tecnologie informatiche e multimediali (Del Nord, 2014).
In estrema sintesi, la legge prevede, per alcuni soggetti statali (regioni, province autonome, organismi regionali per il diritto allo studio universitario, università statali) e non statali (università non statali, istituzioni dell’alta formazione artistica e musicale, collegi universitari,
The increase in national and international student mobility has led, since the late twentieth century, to a considerable increase in the demand for housing places in the member countries of the European Union. With the aim of responding to this demand with an adequate supply of housing, many countries have undertaken
policies aimed at creating university housing and residences, through programs involving public and private entities. In Italy, L. 338/00 constitutes a first example of an organic multi-year program specifically dedicated to state co-financing for interventions aimed at upgrading existing housing places and increasing the number of housing places
for university students. Starting in 2022, new public intervention instruments linked to specific resources and investments of the NRP were introduced. In addition to reporting the updated state of the art of Italian legislation in the field of university student housing, the article describes the status of implementation of publicly funded interventions.

cooperative di studenti, organizzazioni non lucrative di utilità sociale, fondazioni e istituzioni senza scopo di lucro), la possibilità di richiedere un finanziamento pubblico per realizzare, riqualificare o mettere a norma posti alloggio e residenze universitarie. Attraverso l’emanazione di specifici Decreti Ministeriali vengono definite le procedure e le modalità per la presentazione delle richieste e i parametri tecnici ed economici da rispettare per poter essere ammessi all’ottenimento del contributo.
I bandi di attuazione della legge 338/00
Il Ministero dell’Università e della Ricerca (MUR) ha pubblicato, fino ad ora, cinque bandi
attuativi della legge1, ognuno dei quali ha previsto una disponibilità economica divisa in tre annualità e un finanziamento pari al 50% (75% dal V bando) del costo complessivo dell’intervento che, oltre ai lavori, può comprendere il valore dell’immobile, il costo dell’edificio e parte del costo degli arredi.
Allo scadere dei termini previsti dai bandi, una Commissione 2 , valuta le richieste e propone al Ministro la graduatoria degli interventi ammessi al finanziamento: tale graduatoria, una volta accettata, viene pubblicata in appositi Decreti Ministeriali di Piano 3, che ripartiscono gli interventi tra quelli ammessi con disponibilità immediata dei fondi e quelli ammessi ma in attesa delle risorse necessarie (fig. 2).

1. Disponibilità di posti alloggi in relazione alla popolazione studentesca in Europa ai primi anni del 2000 (fonte: Eurostudent Report 2005) (rielaborazione arch. Valentina Spagnoli).
2. Decreti attuativi e Decreti di Piano nei cinque bandi della legge n. 338/00 (rielaborazione arch. Valentina Spagnoli).
3. Disponibilità economiche dei cinque bandi della legge n. 338/00 (rielaborazione arch. Valentina Spagnoli).
Il cofinanziamento concesso viene erogato ai soggetti per mezzo della Cassa Depositi e Prestiti S.p.A., successivamente alla stipula di un’apposita convenzione tra MUR e soggetto beneficiario (fino al IV bando), e previa verifica della documentazione di spesa effettivamente sostenuta.
Complessivamente, per i primi quattro bandi è stato stanziato circa un miliardo di euro: 450 milioni di euro per il primo, 240 milioni di euro (di cui 120 milioni derivanti da residui) per il secondo, oltre 105 milioni (di cui 53 milioni derivanti da residui) per il terzo e oltre 135 milioni (di cui 40 milioni derivanti da residui) per il quarto. Per il quinto bando sono stati stanziati complessivamente circa 490 milioni di euro (di cui 28 milioni circa provenienti da residui)4 (fig. 3).
Il quinto bando della legge n. 338/00
Negli anni di attuazione della legge, ai Decreti Attuativi sono state apportate alcune modifiche dovute sia all’evoluzione normativa (in ambito di appalti, di requisiti di accessibilità e di sicurezza, di efficientamento energetico e di sostenibilità ambientale) sia all’esigenza di superare alcune delle criticità manifestatesi durante il processo attuativo.
Nel 2021, e nel febbraio del 2024, sono state introdotte, inoltre, significative modifiche alla stessa Legge n. 338/005 che, oltre ad incrementare l’importo cofinanziabile fino al 75% del costo complessivo dell’intervento e semplificare
le procedure, introducono specifici riferimenti ai temi della transizione digitale ed ecologica, e al recupero del patrimonio edilizio secondo il principio del green field.
Le innovazioni principali introdotte nel quinto bando riguardano la completa digitalizzazione del processo, obbligando i soggetti richiedenti all’uso del Building Information Modeling (BIM), e al rispetto dei Criteri Ambientali Minimi (CAM)6 e del principio del Do No Significant Harm (DNSH), fondamentale per accedere ai finanziamenti del Recovery and Resilience Facility. Alcune delle modifiche introdotte, infatti, erano finalizzate all’uso di parte delle risorse stanziate dal PNRR (300 milioni di euro), nell’ambito del programma Next generation Europe, che prevede 960 milioni di euro per incrementare fino a 100.000 la disponibilità complessiva di posti alloggio (7).
Altre variazioni significative riguardano la possibilità di allegare alla richiesta di finanziamento un Progetto di Fattibilità Tecnico Economica, l’introduzione di un fondo specifico destinato alle regioni del Mezzogiorno (40%), l’abolizione della trasmissione della documentazione integrativa e della stipula della convenzione tra MUR e soggetto beneficiario.
Lo stato di attuazione degli interventi finanziati ai sensi della legge n. 338/00 Complessivamente, per i primi quattro bandi, gli interventi attivi sono 315 per un numero

complessivo di 37.393 posti alloggio (31.001 in funzione), dei quali 23.127 (62%) di nuova realizzazione (fig.4).
Per il V bando, ad oggi, possiamo documentare soltanto gli esiti della fase istruttoria, in quanto i Decreti di Piano n. 1483, e n. 1488, sono stati pubblicati recentemente.
Complessivamente sono stati ammessi 136 interventi per 17.064 posti alloggio di cui 11.445 di nuova realizzazione per un cofinanziamento complessivo concesso pari a € 1.134.127.635.
Tutti gli interventi di efficientamento energetico sono stati ammessi immediatamente al finanziamento per un totale di 2.478 posti alloggio, mentre per le altre tipologie di interventi ne sono stati ammessi definitivamente n. 57, per complessivi 6.810 posti alloggio (5.396 di nuova realizzazione) e un cofinanziamento complessivo di € 478.926.002. I rimanenti 61 interventi, 7.776 posti alloggio (6.049 di nuova realizzazione) e un cofinanziamento complessivo di € 641.340.794, sono stati ammessi al cofinanziamento con riserva, subordinatamente alla disponibilità di ulteriori risorse.
Se sommiamo i posti alloggio ammessi al cofinanziamento con il quinto bando, a quelli finanziati con i bandi precedenti, il numero comples-
sivo dei posti alloggio cofinanzianti ammonta a 54.457, di cui 34.572 di nuova realizzazione.
Con l’obiettivo di raggiungere il target M4C128, previsto per il quarto trimestre del 2022 “Almeno 7.500 posti letto aggiuntivi creati e assegnati grazie alla Legge 338/00, come revisionata, entro il 31 dicembre 2022”, il 26 agosto 2022 il MUR ha pubblicato il D.M. n. 1046 (aggiornato il 19 settembre 2022 con il D.M. n. 1089) che, ai sensi dell’art. 19, stralcia dal quinto bando della L. n. 338 i 300 milioni provenienti dai fondi PNRR per destinarli ad un’altra specifica linea di finanziamento riportando l’importo complessivo del finanziamento disponibile per il V bando della L. n. 338/00, a circa 167 milioni di euro 8 Il bando ripercorre l’impianto dei decreti attuativi della L. n. 338 ma, per la prima volta, introduce la possibilità di finanziare le spese per affitti, purché novennali, e apre a una platea più ampia di soggetti privati la possibilità di richiedere il finanziamento. Il bando è essenzialmente rivolto agli acquisti di strutture esistenti, alle locazioni e al finanziamento dei lavori, purché realizzabili entro marzo 2024.

4. Stato di Attuazione. jpg Stato di attuazione degli interventi e disponibilità di posti alloggio per i primi quattro bandi della legge n. 338/00 (rielaborazione arch. Valentina Spagnoli).
5. Grafici bandi PNRR. jpg
Decreti attuativi e Decreti di Finanziamento nei tre bandi PNRRM4C1 (rielaborazione arch. Valentina Spagnoli).

Il bando di finanziamento introduce inoltre significative riduzioni degli standard quali-quantitativi minimi richiesti, riducendo del 20% le superfici minime ed eliminando l’obbligatorietà delle aree funzionali di servizio. Anche per l’istruttoria delle richieste presentate ai sensi del suddetto Decreto, il MUR ha nominato un’apposita Commissione9
Grazie alla mediazione con la Comunità Europea, che ha permesso di posticipare i tempi di messa in esercizio dei posti alloggio dal 31 dicembre 2022 al 28 febbraio 2023, il MUR ha pubblicato il D.M. 1252/22
con l’obiettivo di impiegare i 150 milioni di euro, non utilizzati con il D.M. 1046/22, per finanziare ulteriori posti alloggio. Per la gestione dei restanti 660 milioni di euro, il MUR ha nominato, con D.M. n. 59/22 del 13 gennaio 2022, uno specifico gruppo di lavoro per elaborare proposte finalizzate a una revisione più strutturale della legge stessa e, il 27 dicembre dello stesso anno, ha emanato il D.M. 1437/22 che definisce le modalità di partecipazione al finanziamento. Successivamente, il 12 maggio 2023, ha pubblicato il D.M. n. 469, finalizzato all’individuazione di manifestazioni di in-
6. Finanziamenti PNRR.jpg
Interventi e posti alloggio cofinanziati con i DD.MM. 1046 e 1252 del 2022 (rielaborazione arch. Valentina Spagnoli).


teresse da parte di soggetti che intendano rendere disponibili immobili da destinare ad alloggi o residenze universitarie, e per dare seguito alle manifestazioni di interesse presentate, il 26 febbraio 2024, il D.M. n. 481 che stanzia oltre un milione di euro per finanziare almeno 60.000 posti letto aggiuntivi entro il 30 giugno 2026 (fig.5).
Le risorse destinate dal disposto normativo sono finalizzate al rimborso delle spese di ge-
stione, o parte di esso, dovuto per il godimento dei posti alloggio resi disponibili presso alloggi o residenze per i primi tre anni dalla effettiva fruibilità degli stessi. I soggetti proponenti devono assicurare la destinazione d’uso prevalente degli immobili utilizzati ad alloggio o residenza per studenti per un periodo pari ad almeno nove anni successivi al terzo, con possibilità di destinazione a

7. Residenza ex convento Domenicano a Lucca (Arch. Stefano Dini). Il finanziamento derivante dalla legge n. 338/2000 ha permesso la riqualificazione dell’ex convento domenicano di Lucca per la realizzazione di 100 posti alloggio a servizio dell’IMT Scuola Alti Studi di Lucca. Il progetto recupera due palazzine fatiscenti e le mette in comunicazione con il progetto di un nuovo blocco di collegamento. Le murature esistenti in laterizio e pietra sono state recuperate e integrate, dove necessario, con blocchi in laterizio alleggerito in pasta. I blocchi di 41x25x19 cm a fori verticali sono idonei per zone sismiche ed hanno una percentuale di foratura inferiore al 45%.
Anche le coperture a coppi e tegole in laterizio sono state riproposte come negli edifici originari.

8. Residenza Ca’
Longa a Santa Marta, Venezia (arch. Alberto Albertini-Consorzio di Progettazione).
La residenza universitaria, finanziata con la legge n. 338/2000, su proposta dell’università Ca’
Foscari di Venezia, ospita 136 studenti e nasce dal recupero di un ex cotonificio del XIX secolo.
Esternamente la struttura conserva l’aspetto di un edificio industriale in mattoni con ampie aperture vetrate in grado di instaurare un dialogo con il giardino di pertinenza e permettendo l’ingresso della luce naturale. L’edificio si inserisce in un’area fortemente densificata da ex edifici industriali che nei recenti anni sono stati recuperati e trasformati in poli didattici garantendo la rigenerazione urbana e sociale dell’intera zona.
ulteriore finalità, anche a titolo oneroso, delle parti della struttura eventualmente non utilizzate, ovvero degli stessi alloggi o residenze in relazione ai periodi non correlati allo svolgimento delle attività didattiche. Anche per la verifica e monitoraggio degli interventi da finanziare ai sensi del D.M. 481/24 il MUR ha nominato un’apposita commissione10
Lo stato di attuazione degli interventi finanziati con i bandi PNRR
A seguito dell’emanazione del D.M. n. 1046/22, sono state presentate 61 richieste: al termine dei lavori, la Commissione ha ritenuto ammis-
sibili al finanziamento 44 interventi per un importo complessivo di circa 141 milioni di euro e oltre 4.200 posti alloggio: di questi interventi, 27 riguardano locazioni ultra-novennali per oltre 3.000 posti alloggi.
I risultati dell’attività istruttoria e l’elenco degli ammessi sono stati pubblicati nel D.M. n. 1246 del 28 novembre 2022.
A seguito del bando previsto con il D.M. 1252/22 sono state presentate ulteriori 44 richieste e ne sono state ammesse 37, per un finanziamento statale di oltre 135 milioni di euro e circa 4.700 posti alloggio: 24 domande accolte riguardavano locazioni a lungo termine per circa 3.500 posti alloggio e 93 milioni di euro di finanziamenti concessi. I risultati di questo secondo bando sono stati pubblicati nel D.M. n. 77 del 14 febbraio 2023 (fig. 6).
Per quanto riguarda le manifestazioni di interesse, nell’agosto 2023 sono pervenute 396 candidature per un totale di 686 immobili e 78.450 posti alloggio.
Al termine dell’istruttoria delle manifestazioni di interesse sono state individuate tre categorie di immobili:
• idonei, 594 immobili per 67.332 posti alloggio;

• idonei con riserva ovvero che hanno evidenziato delle criticità ma che possono essere candidati al successivo bando, 27 immobili per 2.580 posti alloggio;
• non ricevibili o non idonei, 65 immobili per 8.538 posti alloggio.
Conclusioni
Il programma di attuazione della L. n. 338 si è dimostrato, quindi, un apparato flessibile, in grado di progredire in funzione dell’evoluzione normativa e in linea con un quadro esigenziale in continuo mutamento. L’incremento da parte del Parlamento delle risorse annuali e l’inserimento di uno specifico capitolo di finanziamento all’interno del PNRR contribuiscono ulteriormente a certificare la validità della legge, una best practice per il nostro Paese.
Il monitoraggio dei venticinque anni di attuazione della legge11 evidenzia come la contrazione della tempistica, l’attuazione di specifici strumenti a supporto delle aree del Mezzogiorno, l’identificazione di costi standard di costruzione e di gestione, la ridefinizione delle tipologie distributive, l’adeguamento degli standard, la strutturazione di procedure più snelle e il maggior coinvolgimento dei soggetti privati, siano solo alcuni degli obiettivi futuri sui quali sarebbe auspicabile lavorare per permettere ai programmi pluriennali di proiettarsi nei prossimi decenni con l’innovatività che ne ha contraddistinto gli esordi. L’uso di programmi estemporanei come i bandi PNRR, sebbene finalizzati a un obiettivo specifico limitato nel tempo, non appaiono in grado di incrementare il livello qualitativo della residenzialità studentesca, ma, anzi, introducono ulteriori elementi di criticità. Uno degli obiettivi raggiunti negli ultimi anni dall’apparato normativo, ovvero la trasformazione degli alloggi per studenti da dormitori a veri e propri incubatori sociali, si è scontrata, infatti, con un’esigenza più pressante, ovvero il raggiungimento del maggior numero possibile di posti alloggio (indicati, non a caso, come “posti letto” nei bandi) entro il 2026. La priorità, quindi, si è spostata
sugli aspetti quantitativi, economici e gestionali, tralasciando quelli qualitativi, architettonici e sociali. La riduzione degli spazi e l’eliminazione di specifiche aree funzionali rischiano di interrompere bruscamente un processo culturale in atto che pone lo studente, e il suo benessere, al centro del processo educativo generando un inevitabile abbassamento della qualità offerta anche in termini di integrazione con il contesto, condivisione degli spazi, riqualificazione del patrimonio edilizio esistente e rigenerazione urbana.
[1] C. Piferi. Processi innovativi per l’abitare sociale. I programmi pluriennali di finanziamento della L 338. TECHNE, vol. 24 (2022), pp. 207-217.
[2] C. Piferi, La qualità dell’abitare a servizio del diritto allo studio, Edizioni Opera Universitaria (2021), Trento.
[3] Bologna R. La residenzialità studentesca negli interventi di recupero architettonico e riqualificazione urbana. TECHNE, vol. 24 (2022), pp. 198-206.
[4] R. Del Nord, L’innovazione di processo come strumento per promuovere la qualità delle opere, in Del Nord, R. (ed), Il processo attuativo del piano nazionale di interventi per la realizzazione di residenze universitarie, Edifir (2014), Firenze, pp. 19-27.
Note
1. DD.MM. nn. 116-118/01 (I bando), nn. 42-43/07 (II bando), nn. 26-27/11 (III bando), nn. 936-937/16 (IV bando), DD.MM. nn. 1256-1257/21 (V bando)
2. La commissione è composta da 7 componenti nominati dal MUR e 7 nominati dalla conferenza permanente per i rapporti tra lo Stato, le regioni e le province autonome di Trento e Bolzano (Conferenza Stato-Regioni). I decreti di nomina: DD.MM. n. 117/01, n. 27/05, n. 2/09, n. 245/12, n. 504/15, n. 321/19.
3. DD.MM. n. 40/04 (I bando), nn. 41-72/08 (II bando), n. 246/12 (III bando), nn. 852-853/19 (IV bando), nn. 1483-1488/23 (V bando).
4. Lo stanziamento dei fondi si basa anche sul principio di “scorrimento”, da un Piano all’altro, dei fondi messi a disposizione e delle risorse provenienti da ribassi e/o risparmi, non utilizzati.
5. Modifiche introdotte dal comma 8, art. 64, L. n. 108/21, dall’art. 15. del D.lgs. n. 152/21 e dall’art. 17 del D.lgs. n. 19/24.
6. Art. 18, L. n. 221/15 e art. 34, D.lgs. 50/16 (modificato dal D.lgs. 56/2017)
7. Missione 4, componente 1, Riforma 1.7 del PNRR – Alloggi per studenti e riforma della legislazione sugli alloggi per studenti.
8. Successivamente il Parlamento, con la Legge 29 dicembre 2022, n. 197, Bilancio di previsione dello Stato per l’anno finanziario 2023, ha approvato lo stanziamento di ulteriori risorse per circa € 300 milioni, compensando la quota dei fondi PNRR stralciati e riportando la disponibilità del V bando alla cifra originariamente stanziata.
9. La commissione è composta da tre membri nominati dal MUR. I decreti di nomina: D.M. del 12 ottobre 2022, n. 1169 e D.M. del 29 dicembre 2022, n. 1438
10. La commissione è composta da sette membri nominati dal MUR. Il decreto di nomina: D.M. del 28 marzo 2024, n. 547
11. La raccolta e strutturazione dei dati è operata da docenti e ricercatori afferenti al Centro Interuniversitario TESIS del Dipartimento di Architettura dell’Università degli Studi di Firenze che a partire dalla prima attuazione supporta il MUR, La Commissione Ministeriale e la CDP S.p.A. nell’istruttoria delle richieste di finanziamento e nel monitoraggio dello stato di attuazione degli interventi finanziati.
Il contributo affronta il tema dell’impatto del cambiamento climatico sulle
tecnologie di copertura e dell’adeguamento della norma UNI 9460 sulle coperture discontinue effettuato ad opera del Gruppo di Lavoro UNI CT/033 Gl 15. La norma
UNI 9460, aggiornata detta le regole relative alla progettazione, l’esecuzione e la manutenzione delle coperture con manto discontinuo
Marco D’Orazio, Ordinario di Architettura Tecnica, Università Politecnica delle Marche
KEYWORDS
Cambiamenti climatici
Temperature
Eventi piovosi
Coperture discontinue
Tetti a falda
Normativa
Climate change
Temperatures
Rain events
Discontinuous mantle
Pitched roofing tiles
Technical codes
Quando nel 1990 la rivista Nature pubblicò i dati relativi a campioni di ghiaccio estratti in profondità al polo sud evidenziando la stretta correlazione tra concentrazione di anidride carbonica in atmosfera e temperatura dell’aria per un periodo di ben 160.000 anni, divenne evidente, all’intera collettività, il particolare impatto delle attività antropiche sul clima del nostro pianeta. A quasi 50 anni di distanza da quello studio, molte sono state purtroppo le evidenze che il mutamento climatico è causa non solo dell’innalzamento delle temperature, ma anche genesi di eventi estremi che sempre più spesso interessano anche il nostro territorio. L’IPCC (International Panel for Climate Change) pubblica annualmente report che
fornisce un quadro sempre più preoccupante. Le cause di questi cambiamenti sono attribuite alla alterazione del ciclo del carbonio, con massiccia introduzione di anidride carbonica in atmosfera per mano dell’uomo, aspetto che rende impossibile, alle specie vegetali l’assorbimento necessario al riequilibrio, anche per effetto della deforestazione in atto. Il rilascio in atmosfera di anidride carbonica avviene per cause sia naturali che antropiche. L’utilizzo di combustibili fossili aggiunge sei miliardi di tonnellate di carbonio all’atmosfera rispetto al flusso naturale. Se i combustibili fossili continueranno ad essere impiegati con i ritmi attuali e se la vegetazione continuerà ad essere distrutta al ritmo attuale, l’anidride carbonica nell’atmosfera raggiun-
This work deals with the impact of climate change on roofing technologies and the related revision of the national standard UNI 9460. The national working group UNI CT/033 GL 15 (CEN TC 128 national mirror group) revised the standard
to consider the new requirements due to the exacerbating weather conditions. Existing requirements (i.e. mechanical resistance, fire resistance, thermal behaviour) were also improved to consider the knowledge advancements and the
issues related to the introduction of new technologies on the rooftop, such as PV panels. The national standard UNI 9460 describes the rules for the design, execution and maintenance of roofs covered by discontinuous mantle (roof tiles)
Note 1. L’autorizzazione di stralci/immagini della norma UNI 9460:2023 è stata autorizzata da UNI Ente Italiano di Normazione esclusivamente per la pubblicazione di immagini. L'unica versione che fa fede è quella originale reperibile in versione integrale presso UNI, Via Sannio, 2 - 20137 Milano - Sito internet www.uni.com

1. Emissioni di CO2 da fonti combustibili fossili e da variazioni nell’uso nel suolo (deforestazione). Fonte: Ritchie, Roser (2020).
gerà, entro il 2100, livelli critici per la vita sul pianeta. Il profondo sbilancio all’interno del ciclo del carbonio crea importanti conseguenze sotto il profilo termico, pluviometrico ed anche sul livello dei mari.
La massiccia introduzione di anidride carbonica in atmosfera, unitamente ad altri gas, forma intorno alla terra una coltre capace di alterare il normale scambio radiativo tra la terra e la volta celeste. Ancora oggi le fonti fossili rappresentano quote importantissime del mix energetico di diversi Paesi, compresa l’Italia. Gli effetti nelle temperature nel ciclo delle acque sono evidenti in ogni parte del pianeta. La NASA mantiene aggiornato il sito “climate. nasa.gov” nel quale è possibile prendere visione, attraverso immagini satellitari della evoluzione delle condizioni ambientali di diverse zone del pianeta. Nonostante l’avvio di processi, negli ultimi 40 anni, che avrebbero dovuto mitigare questi fenomeni, il periodo appena trascorso è stato quello più caldo negli ultimi 1400 anni nell’emisfero nord. La temperatura media combinata della terra e degli oceani mostra un incremento di quasi 1
grado da fine ‘800 a oggi. Dalla rivoluzione industriale la combustione di fonti fossili per la produzione di energia ha determinato un incremento del 26% della concentrazione di anidride carbonica in atmosfera. In aggiunta il miglioramento delle condizioni economiche non solo nei Paesi sviluppati ma anche in quelli emergenti ha determinato un raddoppio delle emissioni di metano collegate alle coltivazioni, agli allevamenti ed alle bio-masse. Il gas metano è un greenhouse gas con effetti superiori al biossido di carbonio. Anche le emissioni di ossidi di azoto sono incrementate (+8%) rispetto al periodo precedente alla rivoluzione industriale. La Cina oggi è il Paese con le maggiori emissioni in atmosfera di anidride carbonica ed altri gas capaci di alterare l’equilibrio ambientale.
Gli effetti del mutamento climatico in Italia
Gli effetti di tali alterazioni sono evidenti purtroppo anche in Italia. Si registrano con maggiore frequenza eventi meteo-climatici estremi
2. Emissioni di CO2 da fonti fossili per area geografica. Fonte: Ritchie,Roser (2020).

i quali hanno effetti negativi sulla società, sulla salute, e sulle attività economiche. Attualmente sul territorio italiano è in corso un aumento delle temperature massime e minime giornaliere, collegato a un aumento della temperatura media e coerente con l’aumento della frequenza delle ondate di calore (triplicatasi negli ultimi 50 anni) e di gelo.
Una ondata di calore viene definita come un periodo di almeno 6 giorni consecutivi durante il quale la temperatura osservata supera il 90mo percentile (stimato su un periodo di riferimento sufficientemente lungo). Un’analisi per il territorio nazionale [1] ha evidenziato una marcata tendenza positiva e statisticamente significativa che ha portato al triplicarsi delle ondate di calore negli ultimi 50 anni. Il riscaldamento del pianeta ha creato effetti importanti anche sul ciclo delle acque. C’è stato un marcato aumento dell’incidenza e della gravità di tempeste negli ultimi decenni. Negli ultimi 50 anni i sistemi di alta pressione sono aumentati di una media di tre millibar mentre le depressioni si sono approfondite della stessa quantità, intensificando la dinamica dei sistemi meteorologici. Questo aumenta la presenza di aree desertiche ed aumenta, per via della modifica dell’intensità piovosa, l’erosione della terra fertile. Numerosi sono stati gli eventi catastrofici registrati
in diverse parti del pianeta. Nell’ultimo decennio numerosissime sono state le inondazioni catastrofiche. Anche l’Italia è stata interessata, con le inondazioni senza precedenti che hanno recentemente interessato Marche ed Emilia-Romagna. Le compagnie di assicurazione, barometri del cambiamento, evidenziano che le richieste di risarcimento dovute alle tempeste sono raddoppiate in ogni decennio dal 1960. Anche sul territorio italiano sono intervenuti cambiamenti importanti. E’ in corso una diminuzione delle precipitazioni totali, una riduzione significativa del numero dei giorni piovosi, un prevalente aumento dell’intensità delle precipitazioni con valori e livelli di significatività variabili a seconda della regione in esame [1]. Molti sono stati gli eventi piovosi estremi che hanno colpito in questi ultimi anni zone del Nord-Est ed anche del Centro Italia. Allo stesso tempo è evidente, soprattutto per il nord-ovest e per il sud, una tendenza verso periodi siccitosi di maggior durata. Questi cambiamenti hanno caratteristiche diverse per temperatura e precipitazioni. L’aumento di temperature minime e massime giornaliere è associato ad una traslazione della distribuzione delle temperature verso valori più caldi, mentre per la precipitazione, la diminuzione della frequenza percentuale degli eventi di
Cambiamenti climatici e coperture.

bassa intensità è il segnale di una importante estremizzazione dei fenomeni.
L’evidenza di questi cambiamenti dovrebbe essere sufficiente per convincerci che solo intervenire sui comportamenti umani può mitigare lo sviluppo del riscaldamento globale e delle conseguenze che stiamo registrando anche nel nostro paese in merito ad eventi climatici estremi, quali le ondate di calore, che si susseguono con sempre maggiore frequenza in periodo estivo, come testimoniato dai bollettini del Ministero della Salute e dagli studi epidemiologici che tracciano la conseguente mortalità nei soggetti più fragili [2], e gli eventi piovosi estremi.
Cambiamenti climatici e coperture
Poiché appare evidente che, nonostante gli sforzi attuati da alcuni paesi, tra cui in primis la Comunità Europea (la quale però conta solo per il 7% sulle emissioni globali), il mutamento di tendenza nella crescita della CO2 è ancora lontano, è necessario affrontare, nel mentre, il tema dei cambiamenti da porre in atto sugli ambienti urbani e sulle tecnologie che oggi utilizziamo per realizzare i nostri edifici, alla luce dei mutamenti oramai intervenuti.
Gli estremi climatici che stiamo registrando
riducono la vivibilità degli ambienti urbani, stressano le infrastrutture [3] e spingono verso soluzioni utili ad “adattare” [4] le città e ad incrementare la loro resilienza rispetto a potenziali impatti.
L’estremizzazione degli eventi piovosi comporta l’immissione in brevi periodi di enormi quantità d’acqua nelle reti fognarie, progettate per condizioni climatiche molto meno estreme. Parte di queste acque insiste sulle coperture, anch’esse storicamente progettate per eventi piovosi meno intensi e smaltita attraverso reti impiantistiche non sempre adeguate.
All’estremizzazione dell’intensità piovosa si associa oramai anche la presenza di eventi meteorologici intensi prima caratteristici dei soli Paesi tropicali e che stressano, per via dell’intensità della pressione del vento, i sistemi di fissaggio previsti nelle diverse tipologie di copertura [5]. L’aumento progressivo delle temperature con le ondate di calore com-
3. Andamento delle anomalie termiche (Global Land-ocean temperature index). Fonte: NASA.
4. Periodi di ritorno a 5 anni (sinistra) ed a 50 anni (destra) di eventi piovosi estremi stimati sulla base dei dati pluviometrici raccolti negli ultimi 50 anni. Fonte: Lionello (2012)

5. Esempi di impianti fotovoltaici in sovrapposizione al manto di copertura in laterizio: sopra, pannelli fotovoltaici per i tetti, colore Vieilli Lauze,delle villette a schiera a Cuneo; sotto, moduli fotovoltaici integrati sulle tegole con mix di colorazioni
“antichizzate” –potenza 6,8 kWp Villa privata –fine ‘800 Pederobba (TV)
porta stress termici di particolare intensità [6] negli ambienti sottotetto in fase estiva data la particolare esposizione della copertura alla radiazione solare. Stress che impattano maggiormente in contesti sociali caratterizzati da particolare povertà energetica [7].
Necessita quindi una riflessione sui modi cui adattare le coperture ai mutamenti climatici in atto, sia dal punto di vista del potenziamento dei requisiti sia anche in relazione a innovative funzionalità e capacità di integrazione con nuove tecnologie, data la ri -


chiesta che viene fatta in ambito comunitario (UE rooftop initiative) alle coperture di essere sede principale di installazione di sistemi di produzione energetica da fonti rinnovabili. Tra queste tecnologie si citano in particolare i sistemi fotovoltaici, le cui prestazioni in termine di efficienza, sicurezza e durata sono significativamente influenzate dal livello di integrazione e risultano migliori se il sistema fotovoltaico è applicato in sovrapposizione al manto, senza la sostituzione delle tegole [8].
Da queste considerazioni è nata l’idea di intervenire sulla UNI 9460, la quale, entrata in fase di revisione quinquennale è stata adeguata allo scopo di tenere conto dei mutamenti operativi introdotti con lo scopo di dare risposta alle condizioni ambientali emergenti.
La norma, intitolata “Coperture discontinue – Istruzioni per la progettazione, l’esecuzione e la manutenzione di coperture realizzate con tegole di laterizio o calcestruzzo” è il documento che, in Italia, disciplina le modalità realizzative delle coperture con manto discontinuo, fornendo regole per quanto concerne la progettazione, l’esecuzione e la manutenzione a regola d’arte.
I temi introdotti dalla nuova UNI 9460
La norma UNI 9460 [9] è stata pubblicata nell’ottobre 2023 dopo un lavoro di revisione che ha interessato il gruppo di lavoro UNI CT033 GL 15, insediato presso l’UNI e comprendente esperti di settore provenienti da associazioni, aziende del settore e da enti di ricerca e certificazione.
La norma definisce le soluzioni costruttive, i criteri di progettazione, esecuzione e manutenzione delle coperture discontinue in cui l’elemento di tenuta è costituito da tegole di laterizio.
La norma mantiene la struttura originaria, ma sono stati ampliati ed adeguati ad oggi i riferimenti normativi, soprattutto per quanto riguarda i componenti, per via dell’aggiornamento e/o introduzione di

nuove norme di prodotto emanate dal CEN.
Anche i termini e le definizioni hanno subito alcuni adeguamenti.
Le maggiori variazioni, proprio alla luce delle diverse condizioni ambientali che oggi sperimentiamo, sono relative alla sezione 4, la quale definisce i requisiti richiesti per le coperture discontinue.
L’adeguamento riguarda i requisiti tecnici, con specifico riferimento alle caratteristiche essenziali disciplinate dal Regolamento CPR (Prodotti da Costruzione) [10], e in particolare:
• il comportamento al fuoco;
• il comportamento agli agenti atmosferici (es. per i carichi da neve);
• la sicurezza e l’accessibilità;
• prestazioni di tipo chimico e fisico.
Più precisamente, sono stati maggiormente esplicitati i requisiti di tipo meccanico e collegati alle più recenti disposizioni normative. Il requisito relativo al comportamento al fuoco comprende ora il riferimento alla le-
6. Esempio di listellatura orizzontale e coppi con nasello (Figura 32 estratta dalla NORMA UNI 9460:2023 @UNI)
LEGENDA
1. Coppi di coperta
2. Coppi di canale con nasello
3. Gancio
4. Listelli paralleli alla gronda a passo coppo
5. Griglia fermapasseri con funzione di aerazionee rialzo prima linea di coppi
6. Listello di contenimento sulla linea di gronda
7. Listellatura verticale
8. Membrana impermeabilizzazione traspirante
9. Doppio strato di pannelli isolanti e giunti sfalsati ed interposti a listelli
10. Gronda
11. Membrana freno a vapore
12. Tavolato
13. Coppi con nasello su listelli
gislazione vigente relativamente all’installazione di elementi fotovoltaici. Nello specifico, in conformità alla norma EN 61730-1 [11] e ai provvedimenti del Ministero dell’Interno – Corpo dei VVF [12, 13] l’installazione dell’impianto fotovoltaico presuppone sempre la garanzia di sicurezza elettrica e meccanica per tutta la durata della vita attesa, attraverso la verifica dei requisiti tecnici di strutture, dei manti di copertura e/o piani d’appoggio. Il requisito relativo al “comportamento agli agenti atmosferici”, con particolare riferimento all’impermeabilità è stato adeguato al fine di tenere conto del mutamento intervenuto negli eventi piovosi e della possibilità di eventi di particolare intensità. In relazione ai requisiti di tipo chimo-fisico, la nuova norma puntualizza il ruolo delle coperture discontinue rispetto alla prestazione energetica degli edifici, per effetto delle apposite caratteristiche termofisiche e della capacità di dissipazione del calore grazie
7. Esempi di realizzazione della linea di gronda (Figura 55 estratta dalla NORMA UNI 9460:2023 @UNI)






alla ventilazione sottomanto e alla permeabilità all’aria tra gli elementi di tenuta.
Le istruzioni di progettazione riportate a seguire nella sezione 5 sono anch’esse state aggiornate alle più gravose sollecitazioni. Si cita al riguardo il prospetto relativo alla pendenza-sovrapposizione dei profili di tegole in laterizio (Tabella I) ed ai consigli per la posa connessi alle più avverse condizioni pluviometriche.
Anche la ricca sezione iconografica della sezione 6 (Composizione del sistema) è stata rinnovata così da tenere conto della complessità derivante dall’aumento degli spessori di materiali isolanti in copertura, della imprescindibile necessità di dissipazione del calore in fase estiva tramite strati di ventilazione ed elementi speciali. Aspetti questi oggi
riconosciuti di particolare rilievo e ribaditi nei CAM Edilizia di cui al DM 256/2023 (2.3.3 Riduzione dell’effetto “isola di calore estiva” e dell’inquinamento atmosferico, laddove si indica la piena equivalenza prestazionale di queste tecnologie con sistemi a elevato SRI (indice di riflettanza solare).
La sezione 6 è stata inoltre adeguata con lo scopo di tenere conto della esigenza di garantire tenuta all’acqua anche in condizioni particolarmente gravose e della necessità, infine, di prevedere idonei sistemi di aggancio e di tenuta.
Gli eventi estremi che sempre più frequentemente viviamo costringono a ripensare le nostre città e le modalità realizzative degli elementi che ci proteggono dagli eventi atmosferici stessi. Pur essendo impegnato, il nostro
Cambiamenti

Tabella I - Pendenza minima e massima comune delle falde con tegole e coppi in laterizio (Prospetto 1 estratto dalla NORMA UNI 9460 :2023 @UNI)
Paese, insieme agli altri Stati della Unione Europea, in importanti azioni indirizzate alla transizione ecologica, il limitato peso dell’Europa stessa sulle emissioni globali non avrà particolare effetto a meno di azioni importanti da parte dei Paesi responsabili delle maggiori emissioni. È necessario, pertanto, con-
siderare azioni di “adattamento” ai cambiamenti climatici, ripensando le tecnologie ed i sistemi costruttivi consolidati. La revisione della norma UNI 9460 va in questa direzione, suggerendo attenzione nella progettazione ad eventi che non possiamo più considerare del tutto eccezionali né così rari.
RIFERIMENTI BIBLIOGRAFICI
[1] P. Lionello, The Climate of the Mediterranean Region: From the Past to the Future, Elsevier Science, 2012. https://books.google.it/ books?id=paKNr0-wdToC.
[2] S. Conti, P. Meli, G. Minelli, R. Solimini, V. Toccaceli, M. Vichi, C. Beltrano, L. Perini, Epidemiologic study of mortality during the Summer 2003 heat wave in Italy, Environ. Res. 98 (2005) 390–399. https://doi.org/10.1016/j.envres.2004.10.009.
[3] B.B. Lin, A. Ossola, M. Alberti, E. Andersson, X. Bai, C. Dobbs, T. Elmqvist, K.L. Evans, N. Frantzeskaki, R.A. Fuller, K.J. Gaston, D. Haase, C.Y. Jim, C. Konijnendijk, H. Nagendra, J. Niemelä, T. McPhearson, W.R. Moomaw, S. Parnell, D. Pataki, W.J. Ripple, P.Y. Tan, Integrating solutions to adapt cities for climate change, Lancet Planet. Heal. 5 (2021) e479–e486. https://doi.org/10.1016/S2542-5196(21)00135-2.
[4] P.F. Smith, Architecture in a Climate of Change, Taylor \& Francis, 2006. https://books.google.it/books?id=qZzKiddjM1oC.
[5] G. Sevieri, C. Galasso, Typhoon risk and climate-change impact assessment for cultural heritage asset roofs, Struct. Saf. 91 (2021). https://doi. org/10.1016/j.strusafe.2020.102065.
[6] J. Li, Z. Zhai, H. Li, Y. Ding, S. Chen, Climate change’s effects on the amount of energy used for cooling in hot, humid office buildings and the solutions, J. Clean. Prod. 442 (2024) 140967. https://doi.org/10.1016/j.jclepro.2024.140967.
[7] G. Maracchini, E. Di Giuseppe, M. D’Orazio, Energy Poverty and Heatwaves. Experimental Investigation on Low-Income Households’ Energy Behavior, in: Sustain. Energy Build. 2022, Springer, 2023: pp. 271–280. https://doi.org/10.1007/978-981-19-8769-4_26.
[8] M. D’Orazio, C. Di Perna, E. Di Giuseppe, Performance assessment of different roof integrated photovoltaic modules under Mediterranean Climate The Mediterranean Green Energy Forum 2013, MGEF-13
[9] UNI 9460:2023 Coperture discontinue - Istruzioni per la progettazione, l’esecuzione e la manutenzione di coperture realizzate con tegole di laterizio o calcestruzzo
[10] CPR- Regolamento (UE) n. 305/2011 del Parlamento europeo e del Consiglio, del 9 marzo 2011
[11] CEI - EN 61730-1 Qualificazione per la sicurezza dei moduli fotovoltaici (FV) - Parte 1: Prescrizioni per la costruzione
[12] Ministero dell’Interno – Corpo dei VVF, Nota 07/02/2012 n. 1324 Guida per l’installazione degli impianti FV – Edizione anno 2012
[13] Ministero dell’Interno – Corpo dei VVF, D.M. 30/3/2022 RTV (Regola Tecnica Verticale) “Chiusure d’ambito”
[14] D.M. 23/06/2022 “Criteri ambientali minimi per l’affidamento del servizio di progettazione di interventi edilizi, per l’affidamento dei lavori per interventi edilizi e per l’affidamento congiunto di progettazione e lavori per interventi edilizi.”
La realizzazione di un nuovo edificio bifamiliare a Caronno Varesino in muratura portante, con l’utilizzo del blocco Normablock Più S40 sismico, ha consentito di raggiungere sicurezza e alta efficienza energetica grazie alla specifica soluzione costruttiva
Pasqualino Solomita, Architetto, PhD, libero professionista
KEYWORDS
Muratura portante
Laterizio
Isolamento termico
Efficienza energetica
Nuova costruzione
Load-bearing masonry
Clay block
Thermal insulation
Energy efficiency
New construction
La costante evoluzione dei blocchi in laterizio ha definito nuovi standard qualitativi nelle soluzioni di involucro edilizio, che consentendo di coniugare elevate prestazioni energetiche con i livelli di sicurezza sismica imposti dalle normative tecniche nel rispetto dei criteri minimi di sostenibilità ambientale.
Oggi è possibile garantire elevato isolamento termo–acustico, resistenza strutturale e al fuoco con murature monostrato anche in zone ad elevata sismicità, grazie all'impiego dei blocchi Normablok Più: blocchi con isolante integrato. La recente realizzazione del nuovo edifico residenziale a Caronno Varesino, su progetto degli architetti Cestarolo e De Galeazzi, è un esempio di struttura in muratura portante con blocchi di laterizio a isolamento diffuso.
I committenti, nella definizione delle istanze minime di progetto, hanno espressamente richiesto che la nuova costruzione dialogasse e si confrontasse con il paesaggio circostante garantendo al contempo comfort ed elevati livelli di efficienza energetica senza l’impiego di isolante a cappotto.
L’adozione del sistema costruttivo in muratura portante, realizzata mediante l’impiego del blocco Normablok Più S40 inc. 40 ad alte prestazioni termiche, ha permesso il pieno soddisfacimento delle istanze dei committenti e il rispetto delle prescrizioni normative in zona sismica (Norme Tecniche per le Costruzioni –NTC2018, di cui al DM 17/01/2018).
Normablok Più S40 inc.40, prodotto sfruttando il guscio Poroton® P700 totalmente
iniettato con il polistirene additivato di grafite ad alte prestazioni Neopor® di BASF, presenta dimensioni nominali di 40x25x24,5 cm e una percentuale di foratura ≤55%. Posto in opera con l’apposita striscia orizzontale di materiale isolante allo scopo di isolare termicamente il giunto di malta orizzontale, consente di realizzare murature con spessore 40 cm portanti (NTC 2018 § 7.8.1.2) per edifici che si sviluppano in elevazione per un massimo di due piani fuori terra, caratterizzate allo SLV (Stato Limite di salvaguardia della Vita) da una agS ≤ 0,075 g. Nelle NTC 2018, infatti, i requisiti e le prescrizioni relative ai blocchi in laterizio, portanti, vengono definite in termini di valori di accelerazione di ancoraggio dello spettro elastico agS allo Stato Limite di Salvaguardia della Vita (SLV), per agS ≤ 0,075 g, 0,075 g ≤ agS ≤ 0,150 g. A Caronno Varesino i progettisti hanno deciso l’impiego del blocco Normablok Più S40 inc. 40, per realizzare un edificio in muratura portante con pareti che intonacate in modo tradizionale, garantiscono una trasmittanza termica U=0,171 W/m²K e uno sfasamento di oltre 30 ore, senza ricorrere alla posa di un cappotto a lastre. Una muratura di questo tipo è in grado, inoltre, di assicurare un potere fonoisolante di 51,9 dB e una resistenza al fuoco REI 240.
I blocchi a incastro, in particolare, hanno consentito di coniugare in unico prodotto praticità, economia e velocità di messa in opera oltre alle già citate alte prestazioni termiche,
resistenza statica, isolamento acustico e protezione dal fuoco, semplificando la progettazione e accelerando i tempi di realizzazione del cantiere.
Il risultato finale conseguito è stato un cantiere efficiente, semplice, che ha portato alla realizzazione di un edificio ad alta efficienza energetica in ottemperanza alle norme sismiche vigenti.
Il progetto
Il nuovo edificio, inserito all’interno di una area di proprietà relativamente grande, in una zona pianeggiante a cavallo tra la zona residenziale e quella agricola, con allo sfondo la catena delle Prealpi Varesine, si compone di due unità abitative autonome, caratterizzate da un appartamento ad un piano, mentre il secondo alloggio si sviluppa su due livelli fuori terra.
L’appartamento ad un piano è un bilocale inserito all’interno di un perimetro murario di forma pressoché quadrata in cui trovano collocazione un soggiorno con angolo cottura, una camera da letto e un bagno.
Il secondo appartamento, sviluppato su due livelli, è composto da ingresso, soggiorno con zona pranzo a doppia altezza e copertura a vista, cucina, bagno ospiti, lavanderia, camera padronale con bagno e cabina armadio.
Il primo piano è accessibile mediante una scala a sbalzo in legno e ballatoio con parapetto in vetro che affaccia sul sottostante soggiorno. Questo livello è stato progettato per garantire una certa privacy e presenta uno studio, un bagno e una camera matrimoniale con cabina armadio. Dallo studio e dalla camera è possibile accedere all’ampio balcone che corre lungo tre lati dell’abitazione.
Il contesto edilizio, la conformazione del lotto ed infine i vincoli edificatori hanno condizionato le scelte progettuali orientate alla valorizzazione dei punti di vista panoramici, mediante la realizzazione di grandi aperture lungo i fronti nord e ovest.
La pianta presenta una forma trapezoidale mentre la copertura movimenta i diversi fronti che presentano quote d’imposta differenti. Le aperture, tutte rettangolari, si presentano ver-


ticalmente allineate conferendo una ottimale scansione dei pieni e dei vuoti ad esclusione del fronte ovest che è caratterizzato, sulla parte sommitale del tetto, da un lucernario trapezoidale che illumina ulteriormente lo spazio a doppio volume del soggiorno.
Sistema costruttivo e soluzione tecnica
L’edificio bifamiliare ricadente in zona a bassa sismicità, suolo di categoria C e categoria Topografica T1, agS= 0,057 g ≤ 0,075 g allo SLV, è stato realizzato con fondazione a travi rovesce in calcestruzzo armato, struttura in elevazione in muratura portante, sormontata da cordoli in cemento armato per tutto il suo sviluppo, solaio di piano in latero-cemento e copertura in legno lamellare.
Nell’analisi generale della struttura, l’edificio si presenta, quindi, irregolare sia in pianta sia in elevazione, la pianta può essere inscritta in un trapezio con il lato maggiore di circa 10 m e quello minore di circa 6 m e una altezza di circa 20 m. In elevazione l’altezza del colmo risulta minore di 7 m.
Le immagini delle fasi di cantiere documentano le scelte del progetto strutturale.
Le fondazioni a travi rovesce a T, impostate a una quota di - 60 cm rispetto al piano di campagna, considerando alla base uno strato di magrone di 10 cm, sono collegate alla pavimentazione rigida in cemento armato che svolge la duplice funzione di solaio controterra e ripartitore degli sforzi orizzontali indotti dal sisma.
La fondazione così configurata si presenta fortemente monolitica per ridurre al minimo i problemi di natura geotecnica e per ottimizzare la struttura in elevazione.
Il pacchetto di fondazione prevede inoltre un vespaio areato realizzato in casseri mo dulari a perdere e getto di completamento in calcestruzzo con rete elettrosaldata.
La muratura perimetrale portante e il setto di visorio della zona giorno della porzione di fab bricato a due piani sono realizzati in blocchi in laterizio alleggerito a fori verticali saturati con polistirene additivato con grafite e con incastro verticale a secco e striscia orizzontale di mate
Oggetto Villa bifamiliare denominata VILLA MARY
Località Caronno Varesino (VA)
Committente Sig.ri Marchesi e Bassani
Progetto Architettonico architetti Stefano De Galeazzi e Sara Cestarollo
Progetto strutturale Rossi Ingegneri Associati
Progetto impiantistico Per. Ind. Termotecnico Stefano Tadiello
Impresa di costruzione impresa edile M.T.S. di Massironi Stefano & C. snc
Cronologia 2018 - 2020
Superficie 170 m2
Costo complessivo 420.000 Euro
Fotografie
Stefano De Galeazzi e Sara Cestarollo
Caratteristiche e prestazioni del sistema costruttivo in laterizio
Tipologia Muratura portante
Spessore 40 cm
Resistenza media a compressione dei blocchi nella direzione dei carichi verticali 9,0 N/mm²
Trasmittanza U 0,171 W/m²K
Massa areica 338 kg/m²
Attenuazione 0,005
Sfasamento 30,35 ore
Potere fonoisolante 51,9 dB
Resistenza al fuoco REI 240



Stratigrafia parete verticale


Sezione longitudinale
riale isolante Normablok più S40 inc.40 e intonaco a civile sia interno sia esterno.
Sono stati inseriti alcuni pilastri in calcestruzzo armato considerati ai fini del calcolo strutturale come elementi strutturali secondari ed allo scopo opportunamente svincolati alla base ed in sommità, progettati per resistere ai soli carichi verticali e assecondare gli spostamenti della struttura senza perdere capacità portante, verificando che il contributo totale alla rigidezza ed alla resistenza sotto azioni orizzontali degli elementi secondari non superasse il 15% dell’analogo contributo degli elementi primari.
Il solaio di piano è stato realizzato in latero-cemento 20+5 cm di cappa collaborante in cemento armato, travetti prefabbricati ad interrasse pari a 50 cm, mentre la copertura è stata progettata con struttura portante in legno costituita da travi e travetti in legno lamellare, assito incrociato di perline in legno, freno vapore, doppio strato di isolante in fibra di legno, telo traspirante, doppia listellatura per la ventilazione e manto di copertura in pannelli coibentati con isolante in lana minerale e lamiera preverniciata.
I balconi e gli aggetti in cemento armato sono stati isolati termicamente mediante l’adozione di disgiuntori termici, posti in corrispondenza delle travi o dei cordoli di piano, per correggere i corrispondenti ponti termici. La dotazione tecnologica ed impiantistica ha contributo ad elevare le prestazioni energetiche dell’intero immobile. L’edificio è stato dotato di una pompa di calore con unità esterna motocondensante e modulo idronico interno abbinato ad una ventilazione meccanica controllata. L'impianto di riscaldamento e raffrescamento a pavimento è coadiuvato da un impianto di deumidificazione per garantire un comfort ottimale durante il periodo estivo. Un impianto fotovoltaico con capacità nominale di 6 kW per la produzione di energia elettrica e un impianto elettrico gestito dalla domotica migliorano la gestione impiantistica dell’intero fabbricato.
Il risultato finale è un edificio classificato in classe A4 ad altissima efficienza energetica.



Il corpo in linea principale della residenza studentesca universitaria Villa Val di Rose a Sesto Fiorentino si caratterizza per un rivestimento in mattoni faccia a vista che si sviluppa senza soluzione di continuità sui quattro fronti, richiamando l’idea del “muro abitato”.
KEYWORDS
Ipostudio
Residenze universitarie
Rivestimento in mattoni faccia a vista
Riqualificazione
Ipostudio
Student housing
Facing bricks cladding
Retraining
Andrea Campioli, Professore ordinario, Dipartimento di Architettura, Ingegneria delle Costruzioni e Ambiente Costruito, Politecnico di Milano. I disegni e le immagini sono stati gentilmente messi a disposizione dall’architetto Pietro Savorelli.
Il progetto per la residenza universitaria
Val di Rose a Sesto Fiorentino è il risultato di un esteso e articolato lavoro di ricerca1 sul tema delle residenze universitarie. L’intervento si articola nella riqualificazione di un edificio esistente e nella realizzazione di un nuovo complesso costituito da tre volumi collegati tra loro: un volume principale di tre piani che ospita glia alloggi per gli studenti, un piccolo volume che ospita la biblioteca e un volume basso che ospita i servizi. I due volumi principali convergono in corrispondenza del volume della biblioteca e si differenziano per scelta materica e livello di apertura al contesto.
Il volume dei servizi è direttamente accessibile dalla strada e si sviluppa su un solo piano relazionandosi in altezza con gli edifici circostanti; lungo la strada presenta un fronte cieco costituito da una muratura continua con rivestimento in pietra che risvolta superiormente.
Il volume delle residenze per gli studenti si caratterizza invece per il rivestimento in mattoni faccia a vista sui quattro fronti e per l’articolato sistema di aperture sui due fronti longitudinali, che mettono in relazione lungo il fronte ovest gli spazi degli alloggi con l’esterno e lungo il fronte est gli ambienti comuni delle residenze con lo spazio della corte interna. Due passarelle collegano direttamente il piano terra del volume dei servizi con il primo piano delle residenze in corrispondenza dei due vani scala.
The main building of the Villa Val di Rose university student residence in Sesto Fiorentino is characterized by facing brick cladding that develops seamlessly on the four fronts, recalling the idea of the “inhabited wall”.
Da un punto di vista distributivo, l’edificio che ospita gli alloggi per gli studenti è organizzato in tre nuclei serviti da due corpi scala. Il nucleo compreso tra i due vani scala presenta un corridoio che serve quattro camere doppie con relativi servizi residenziali (cucine e bagni), mentre i due nuclei laterali ospitano appartamenti con sei camere dotate di spazi comuni che affacciano verso la corte interna. Dal punto di vista compositivo i fronti del volume residenziale sono connotati da due differenti registri. Il fronte interno, esposto a est affacciato sul volume dei servizi, si caratterizza per una doppia sequenza di finestre sovrapposte e sfalsate per ognuno dei tre piani che trafora in modo dinamico la muratura in mattoni. Sette bovindi completamente trasparenti interrompono la regolarità della distribuzione delle aperture. Il fronte esterno, esposto a ovest, si caratterizza invece per la regolare disposizione delle finestre a tutta altezza, interrotta soltanto dalla presenza del tamponamento vetrato che segnala la presenza dei vani scala.
La scelta materica unita alla particolare ricerca di una relazione tra interno ed esterno, sottolineata anche da sette bovindi realizzati in corrispondenza degli spazi comuni, suggerisce nella lettura di questo volume il riferimento al muro abitato: una struttura apparentemente monolitica in laterizio all’interno della quale sono ricavati gli spazi dell’abitare.
Note 1. Carlo Terpolilli - Ipostudio (progetto); Massimo Gennari (recupero Villa Val di Rose); Paolo Felli (responsabile scientifico e coordinatore); Adolfo Baratta (coordinamento gruppo di progettazione), Shira Brad, Tommaso Chiti, Alba Lamacchia, Claudio Piferi, Chiara Remorini (gruppo di progettazione).
Ipostudio, Residenza universitaria Val di Rose, Sesto Fiorentino, 2013

Sezione verticale, orizzontale e prospetto del fronte interno
Il fronte interno, esposto a est, si caratterizza per la muratura in mattoni faccia a vista traforata da una doppia sequenza di finestre sovrapposte e sfalsate per ognuno dei tre piani. La dinamicità del prospetto è rafforzata dalla presenza di bovindi completamente trasparenti che migliorano l’illuminazione della zona di ingresso agli alloggi e che consentono l’espansione degli spazi destinati alle attività comuni.
1. davanzale
2. solaio in laterocemento
3. muratura in blocchi di laterizio
4. isolante
5. muratura in mattoni faccia a vista
6. architrave
7. sostegno in acciaio
8. finestra in alluminio
9. massetto impianti


Ipostudio,

Dettaglio 2
Sezione verticale e prospetto del fronte interno in corrispondenza del coronamento
Una sequenza di finestre sovrapposte e sfalsate movimenta il fronte esterno ma allo stesso tempo caratterizza il corridoio di distribuzione degli alloggi per gli studenti che ospita anche i servizi comuni. Il rivestimento in mattoni prosegue senza soluzione di continuità fino alla linea di coronamento.
Legenda
1. scossalina
2. muratura in mattoni faccia a vista
3. muratura in blocchi di laterizio
4. isolante
5. pavimento sopraelevato
6. sostegno in acciaio
7. solaio in laterocemento
8. finestra in alluminio
9. davanzale
10.massetto impianti


HARQUITECTES , Cantina Clos Pachem, Gratallops, 2019
Ipostudio, Residenza universitaria Val di Rose, Sesto Fiorentino, 2013

Dettaglio 3
Sezione verticale, orizzontale e prospetto del fronte esterno
Gli alloggi degli studenti si affacciano sul fronte esterno, esposto a ovest. In questo caso la continuità del paramento murario in mattoni faccia è interrotta con regolarità dalle finestre a tutta altezza di ampiezza molto più generosa rispetto a quelle del fronte interno. L’omogeneità del fronte si interrompe esclusivamente in corrispondenza dei due vani scala dove la chiusura vetrata, leggermente arretrata, consente l’illuminazione di vani comuni a cui si accede dai due pianerottoli intermedi.
Legenda
1. davanzale
2. solaio in laterocemento
3. muratura in blocchi di laterizio
4. isolante
5. muratura in mattoni faccia a vista
6. sostegno in acciaio
7. finestra in alluminio
8. massetto impianti

Dettaglio del fronte interno (@ Pietro Savorelli) e pianta del piano terra


Il volume fa parte di una ricerca coordinata dall’autore al Politecnico di Bari; rilegge l’evoluzione dei modelli architettonici e d’arredo delle residenze studentesche. Nei saggi introduttivi, Baratta cita scritti dedicati a questo argomento, sottolineando la sistematicità dell’indagine qui raccolta; Piferi indica le normative di riferimento e soluzioni in grado di garantire flessibilità e adattabilità. Poi, in dieci capitoli, si ricostruisce l’evoluzione dei modelli tipologici; si illustrano: il contributo della Bauhaus; le opere di Aino Marsio e di Alvar Aalto in America; la ricerca di Jean Prouvé; l’esperienza della Maison du Brésil; i principali esempi europei (anni Sessanta e Settanta - Ungers, Portaluppi, Aalto e Stirling); l’esperienza italiana (Calza Bini, Muratori, Muzio, Zanuso, Zacchiroli, Grassi e Monestiroli); si analizza lo scenario progettuale che parte dagli anni Novanta, arricchito dal rapporto con la città e da una condizione di ibridazione tipologica e funzionale; si individuano le future direzioni tematiche del design.
Infine, Bellini espone il ruolo taumaturgico di innovatività e produttività dell’Interior an Spatial Design, quando propone atmosfere adeguate riguardo a suono, temperatura, arredo, intimità degli alloggi, luce naturale.
Il design per le residenze universitarie. Il ruolo del design nel progetto degli alloggi studenteschi
Vincenzo Paolo Bagnato
■ Prefazione di Adolfo F.L. Baratta, prologo di Claudio Piferi, postfazione di Oscar E. Bellini Rubbettino Editore (Soveria Mannelli CZ), Pagine 156, € 17,00

Il libro racconta a distanza di cinquant’anni la vicenda del Collegio di Milano, campus universitario, opera di Marco Zanuso.
A esso si aggiunge ora l’edificio dello Studio Piuarch e l’ulteriore ampliamento progettato dal Centro Studi TAT, a cui fanno riferimento i tre autori, già docenti al Politecnico di Milano. Dopo i saggi di presentazione, curati da Salvatore Carruba, ex assessore milanese alla Cultura e da Stefano Blanco, direttore della Fondazione Collegio delle università milanesi, si ripercorre la storia dell’immobile, si affronta il tema della residenza universitaria, il contesto della periferia sud est di Milano, con il Quartiere popolare Sant’Ambrogio, l’Ospedale San Paolo; l’evoluzione del campus, con i concorsi banditi per il suo sviluppo.
Di seguito, Matteo Gambaro sottolinea il valore del progetto originario, realizzato dalla Cassa di Risparmio delle Provincie Lombarde per ospitare il Centro per l’assistenza finanziaria ai paesi africani; Daniela Frascaroli e Silvia Pasolini puntualizzano la funzione del Collegio non solo residenziale, ma di proposta formativa ed educativa; infine, Adolfo F.L. Baratta inquadra la normativa per la residenza universitaria del 2000, considerandone i risultati ottenuti.
Progettare l’abitare. L’architettura del Collegio di Milano
■ Fabrizio Schiaffonati, Arturo Majocchi, Giovanni Castaldo Skira (Milano), 2019 Pagine 176, € 30,00

Angelo Bugatti spiega nella prefazione che questo libro antologico intenzionalmente si esprime senza far prevalere alcuna tesi di architettura; introduce a valutare le opere, secondo giustapposizione, adeguatezza, integrazione, citando dall’antichità filosofi e architetti; esprime una teoria basata sull’eudetismo psicologico tipico dei bambini, secondo cui si percepiscono vivide rappresentazioni della propria memoria. L’integratezza in architettura si misura con un contesto difficile, che primariamente stabilisce un rapporto tra arte storica (perfetta) e contemporaneità (non finita).
Con illustrazioni storiche e contemporanee e riferimenti etimologici alla radice greca delle parole, l’autore, professionista e cultore della scientificità architettonica, distingue tra le ragioni dell’integratezza, il senso della misura dell’integratezza, l’integratezza evolutiva.
Spiega i concetti di archè e tecnè, di realtà, di vitalismo; di ilozoismo (dottrina secondo cui la materia non riceverebbe vita dall’esterno ma da elementi a essa connaturati); suggerisce l’immagine dello “spazio sonoro dell’architettura”; ribadisce la definizione di ciò che si ritiene “bello”; distingue tra tipo urbano e tipometria; commenta architetture dell’attualità.

Sarajevo, “città tra Oriente e Occidente”, fusione di più culture, ha nella cronaca di guerre e domini stranieri la sua configurazione che va da est a ovest.
La guida sull’architettura moderna/contemporanea (a cura di LIFT - Spatial Initiatives, gruppo di giovani architetti, organizzatori nel 2008 del festival Days of Architecture Sarajevo) esplora, scheda e localizza su mappe 150 monumenti costruiti nel ventesimo secolo, suddivisi in quattro capitoli.
La Sarajevo storica (capitolo che non fornisce progetti selezionati) racconta gli inizi della città nel XV secolo e gli influssi orientali (1462-1878) ed europei (1878-1918).
La Sarajevo formale segue l’estensione lineare della città lungo l’asse della valle del fiume Miljacka e la strada principale, ove insistono la maggior parte degli edifici di grandi dimensioni.
La Sarajevo informale cattura la parte costruita verso l’alto e le colline, ove insistono le tipologie dell’espansione controllata e organica; quartieri semiurbani, strade a scaletta, complessi residenziali a schiera, architetture moderniste.
La Sarajevo più ampia comprende le aree al di fuori delle zone amministrative e centrali, estese verso i villaggi vicini e le severe condizioni climatiche delle non lontane montagne. Integratezza architettonica e come riconoscerla. Quando simultaneamente adeguatezza, integrazione e giustapposizione creano solide unioni
■ Massimiliano Bellinzoni Clean Edizioni (Napoli), 2023 Pp. 156, € 28,00
Sarajevo Architectural Guide. Buildings and Projects since 1923
■ LIFT Sarajevo
Dom Publishers (Berlino), 2023 Pp. 240, € 38.00
Direttore responsabile/Editor in Chief
Andrea Serri aserri@confindustriaceramica.it telefono 0536.818280
Direzione editoriale/Editorial Direction Alfonsina Di Fusco adifusco@confindustriaceramica.it tel. +39 (0)644236926
Redazione/Editorial O ffice:
Livia Randaccio (responsabile) Livia@vgambinoeditore.it tel. 02 47761275
Comitato di redazione/Editorial Board
Giovanni D’Anna, Adalgisa Donatelli, Elisa Di Giuseppe, Alberto Ferraresi, Roberto Gamba, Pasqualino Solomita, Igor Maglica, Chiara Testoni
Comitato scientifico/ Scientific Advisory Board
Alfonso Acocella (Università di Ferrara), Adolfo F. L. Baratta (Università Roma Tre), Andrea Campioli (Politecnico di Milano), Jean Luc Chevalier (CSTB Parigi), Marco D’Orazio (Università Politecnica delle Marche, Ancona), Manuel Garcìa Roig (ETSAM Madrid), Zheng Shilling (Tongji University Shanghai), M. Chiara Torricelli (Università di Firenze)
Comitato direttivo/Managing Board
Luigi Di Carlantonio, Vincenzo Briziarelli, Mario Cunial, Roberto Danesi
Coordinamento stampa, grafica e impaginazione/Printing Coordination, Graphic & Editing
Raffaella Sesia
Hanno collaborato a questo fascicolo/ Contributors to This Edition
Adolfo F. L. Baratta (curatore Architettura), Antonio Acocella, Oscar Eugenio Bellini, Andrea Campioli, Marco D’Orazio, Alberto Ferraresi, Roberto Gamba, Nicola Martinelli, Claudio Piferi, Rosaria Revellini, Pasqualino Solomita, Chiara Testoni, Caterina Valiante
Abbonamenti/Subscriptions
Edi.Cer. SpA Società Unipersonale, viale Monte Santo, 40 - 41049 Sassuolo (MO) tel. 0536 804585 - email info@edicer.it
Tariffe per l'Italia
cartaceo annuale € 34,00 (estero € 44,00 ); cartaceo annuale € 34,00 (estero € 44,00 ); cartaceo biennale € 60,00;

digitale annuale € 24,00.; copia singola € 15, 00.
Per abbonarsi a Costruire in Laterizio è sufficiente versare l’importo sul C/C postale n° 10505410 intestato a Edi.Cer. SpA Società Unipersonale, viale Monte Santo, 40 - 41049 Sassuolo (MO) Gli abbonamenti decorrono dal mese successivo al ricevimento del pagamento.
Ufficio commerciale
vendita spazi pubblicitari/ Commercial Department Sale of Advertising Spaces
Mariarosa Morselli (responsabile)
Pool Magazine tel. 059 344455 -335391555 m.morselli@pool.mo.it
Stampa/Printing Pixartprinting S.p.A. stabilimento Lavis – Trento

tradizione e innovazione green
Responsabilità/Responsibility
La riproduzione delle illustrazioni e articoli pubblicatidalla rivista, nonché la loro traduzione è riservata e non può avvenire senza espressa autorizzazione della Casa editrice. I manoscritti e le illustrazioni inviati alla redazione non saranno restituiti, anche se non pubblicati e la Casa editrice non si assume responsabilità nel caso di eventuali errori contenuti negli articoli pubblicati o di errori in cui fosse incorsa nella loro riproduzione sulla rivista.
4 Elementi per divisori
4 Blocchi termici per tamponatura
4 Blocchi ad elevato isolamento acustico
4 Elementi massivi per tamponatura
4 Tramezze a incastro a fori verticali
4 Blocchi acustici
4 Blocchi termici per tamponatura
4 Blocchi DL311 per tamponatura a setti sottili
Periodicità/Frequency of Publication: Quadrimestrale.
Diffusione cartacea 5.000
Diffusione digitale 50.000
Registrazione/Registration: n. 869 del 18/12/1987 - Tribunale di MilanoIscritta al ROC Registro degli Operatori di Comunicazione al numero 6524 (delibera 236/01/ Cons. del 30/6/01 dell’Autorità per le Garanzie nelle Comunicazioni).
Per comunicare con la nostra redazione: costruire@laterizio.it www.laterizio.it


4 Blocchi DL311 incastro a setti sottili per tamponatura a fori verticali
4 Blocchi NZEB incastro a setti sottili per tamponatura a fori verticali
4 Blocchi portanti per zona sismica - Categoria I
4 Pezzi speciali per blocchi portanti Z.S.- Categoria I
4 Blocchi portanti a incastro - Categoria I
4 EVOLATER® per muratura portante ordinaria e armata in zona sismicaNZEB
4 Blocchi interposti per montaggio su travetto
4 Blocchi per solaio gettato in opera - Volterrane
4 Blocchi per solaio gettato in opera - Provera


Sì, desidero abbonarmi per un anno a 34,00 € (car ta + digitale)
Sì, desidero abbonarmi per un anno a 24,00 € (solo digitale)
Cognome Nome
E-mail*
Azienda
Indirizzo
CAP Città Prov Naz
Telefono Fax
Attività/Settore
Cod Fiscale P.IVA
C/C postale n° 10505410 intestato a Edi.Cer. SpA Società Unipersonale, viale Monte Santo, 40 - 41049 Sassuolo (MO)
IBAN EDI.CER. SPA: IT 54 N 05387 67010 0000 0000 7316 - Per info: tel. 0536 804585 - email info@edicer.it
*AT TENZIONE L’indirizzo e-mail è fondamentale per poterti inviare i dati d’accesso alla versione digitale della rivista. Modalità di pagamento
Informativa sulla privacy ai sensi del Regolamento Europeo sulla Protezione dei Dati
Agenzia esclusiva per la pubblicità
In conformità agli art. 13-14 del Regolamento Europeo 2016/679 (di seguito, anche “GDPR”) La informiamo che Edi. Cer. S.p.A., in qualità di Titolare, tratta i Suoi dati per l’erogazione del servizio di abbonamento annuale a CIL come descritto nel presente modulo. Il conferimento dei dati per tale finalità è facoltativo, ma si rende necessario per adempiere alla sua richiesta. I suoi dati personali saranno trattati con modalità elettroniche e/o telematiche, nel rispetto delle misure previste dagli artt. 6, 32 del GDPR e mediante l'adozione delle adeguate misure di sicurezza previste. I dati saranno trattati da personale debitamente autorizzato al trattamento dal Titolare per l'esecuzione delle attività necessarie ad una corretta gestione del servizio e - in caso di abbonamento cartaceo - comunicati ad un soggetto esterno che opera in qualità di Responsabile del trattamento, limitatamente alle attività di lavorazione e spedizione necessarie all'erogazione del servizio. È possibile richiedere informazioni sul Responsabile del trattamento scrivendo al Titolare. I Suoi dati non saranno diffusi. Le segnaliamo che, nel rispetto dei principi di liceità, limitazione delle finalità e minimizzazione dei dati, ai sensi dell’art. 5 del GDPR, i dati conferiti saranno conservati solo per il periodo strettamente necessario all'erogazione del servizio. Titolare: il Titolare del trattamento dei dati è Edi.Cer. S.p.A. - Viale Monte Santo 40 -41049 Sassuolo (MO). Lei ha diritto di ottenere dal Titolare l’informativa estesa ed esercitare i diritti generali previsti dagli artt. 15, 16, 17, 18, 19, 20, 21, 22 del Regolamento Europeo 2016/679 nonché la cancellazione (diritto all'oblio), la limitazione, l'aggiornamento, la rettificazione, la portabilità, l'opposizione al trattamento dei dati personali che La riguardano la possibilitàdi effettuare reclamo presso l’Autorità di controllo scrivendo a info@edicer.it.
Acconsento all’utilizzo dei dati per la finalità di registrazione e fruizione del servizio di abbonamento a CIL
Acconsento all’utilizzo dei dati per inviare aggiornamenti su attività collaterali (ceramica, laterizi e/o arredo bagno) del Titolare del trattamento [SI] [NO]


