Interior Design Portfolio

Page 1

DESIGN 1 SELECTED WORK 2016-2021 PORTFOLIO
2 INTERIOR DESIGN 3 Bio Restaurant Academic Projects Healthcare Residential Retail 01 02 03 INDEX Research Extracurricular Projects 6-11 12-17 18-25 26-31 40-47 Art Gallery SalaFAR 34-39

ACADEMIC PROJECTS

4 INTERIOR DESIGN 5

YAMI SUSHI

SUSHI BAR & RESTAURANT

876 square feet

Restaurant Design Programs Used: AutoCAD, SketchUp, Vray and Illustrator

A small Sushi Restaurant in the heart of the city, inspired by the japanese culture. It offers a exclusive Sushi Bar for a major experience in the preparation of the food. Also, for those who would like a more private ambient the mezzanine seating area offers an exclusive view.

CONCEPT

Traditional Japanese Art

Inspired by the artwork of the of the japanese culture, who emphasizes their mountains. The watercolor art was the major source of inspiration for the project. The selection of natural materials such as wood, natural fabrics and natural stones was a must.

6 INTERIOR DESIGN 7 ISOMETRIC
8 INTERIOR DESIGN 9 N FLOOR PLAN: NTS LEVEL 1 01 Sushi Bar 02 Cashier 03 Bathroom 04 Kitchen 01 Mezzanine Dining LEVEL 2 01 02 03 04 01
1 FIRST FLOOR: NTS
2 SECOND FLOOR: NTS ISOMETRIC Sushi Bar
LEVEL
LEVEL

ELEVATION: NTS

MATERIALS & FINISHES

White Marble Counter Top

White Oak Wire-Brushed Engineered Hardwood

Vertical Cement Subway Tile in Midnight by Zia Tile

Maharam Textile: Talus (Abrasion: 100,000 double rubs, FR Rated, Greenguard and Greenguard Gold Certified)

Maharam Textile: Sycamore (Abrasion: 100,000 double rubs, FR Rated, Greenguard and Greenguard Gold Certified)

Stairs Metal Finish Swatch: Powder Coat Black

Wall Paneling: Ideawood | Slats Lamas by IDEATEC

Wuthering heights by WallPepper (FR Rated, IMO / MED Certification) Chrome Faucets Finish

The spatial distribution of the restaurant has been designed in two spaces, the sushi bar and the dining area. The purpose of creating two areas and interconnecting them with the sculptural staircase is to have an exclusive area for the culinary experience of sushi and a private dining area in which to enjoy the view of the city.

The area of the Mezzanine provides a more close and private experience. In addition, this part of the restaurant has an exclusive view of the city. The space has a custom made high-back seating area, specifically upholstered in the Sycamore textile, wich has about 100,000 double rubs and FR Rated certified.

10 INTERIOR DESIGN 11
MA01 MA02 MA03 MA04 MA05 MA06 MA07 MA08 MA09
MA01 MA02 MA03 MA06 MA07 MA04 MA05 MA08
Sushi Bar Mezzanine

WANDERING FOR A CURE

PEDIATRIC OFFICE

2,000 square feet

Healthcare Design Programs Used: AutoCAD, SketchUp, Vray and Photoshop

A pediatric office with the purpose of having in its waiting area a designated area for the entertainment of children. In addition, implement what would be a Lunch Room area for the medical staff. It is also important to consider the materials and specifications that will be implemented in the space.

CONCEPT

Wandering

Children’s curiosity and imagination is what characterizes them. This concept is one that emphasizes relaxation and tranquility in a unique way. The representation of this has been shown in an abstract way, between simple forms and natural materials.

12 INTERIOR DESIGN 13
INTERIOR
Reception

EXAM ROOM ISOMETIRC

Each exam room is designed to provide the nurse with sufficient storage space and to work comfortably. It is a space with lots of natural light and light tones for the relaxation of patients. The luminaire that has been implemented is one in the form of a cloud to stimulate the child’s imagination.

Additionally, the laminate and counter top are treated to create an antibacterial surface suitable for exam rooms and nurse’s room. Each exam room has 36” wide doors to accommodate a wheelchair comfortably. The exam capacity of each room is 3-4 people.

14 INTERIOR DESIGN 15 N FLOOR PLAN: NTS FIRST FLOOR 01 Reception 02 Waiting Area 03 Nurse Room 04 Doctor’s Office 05 Patients Bathroom 06 Staff Bathroom 07 Staff Lunch Room 08 File Storage 09 Exam Room A SECTION A: NTS 01 02 03 04 05 06 07 08 10 11 09 10 Exam Room B 11 Exam Room C

The design of the pediatric office has been carried out taking into account the specifications of each material in order to comply with the safety of materiality that a hospital grade space requires. The furniture upholstery complies with FR Rated, GreenGuard, Hydrophobic, Hypoallergenic and over 100,000 double rubs.

MATERIALS & FINISHES

Drop It Modern Wallpaper (FR Rated, IMO / MED Certification)

Maharam Textile: Light Blue (Abrasion: 100,000 double rubs, FR Rated, Greenguard and Hydrophobic)

Amstrong Flooring (DecorArt Rejuvenations TimberLine) Maple Lighting 37352

Amstrong Flooring (Slip Retardant Flooring - Safety Zone Sheet) Breeze 31504

Benjamin Moore (Natura Interior Paint Satin-Simply White OC117)

Laminate AB+ (Antibacterial Surfaces) Walnut Magas Irish Walnut 4x8

Counter Top Alaska, Hanex 30” X 145” X 1/2”

Maharam Textile: White (Abrasion: 100,000 double rubs, FR Rated, Greenguard and Hydrophobic)

Additionally, the laminate of the walls panelling is treated to create an antibacterial surfaces, while the floors are commercial slip-retardant. This materials were carefully chosen to comply with the codes and not lose the essence of the design while maintain the concept of the space.

16 INTERIOR DESIGN 17
MA01 MA02 MA03 MA04 MA05 MA06 MA07 MA08
Patient Waiting Area
MA01 MA02 MA08 MA07 MA06
Exam Room

EXTENDED FAMILY HOME

Apartment 3,788 square feet

Residential Design Programs Used: AutoCAD, SketchUp, Vray and Photoshop

This project is located in a two-level apartment, in which a family composed of a lawyer, a graphic designer, their child as well as the grandmother will reside. The space will be designed as one where the main family area and outdoor space interconnect with the rest of the apartment designated for the grandmother, creating shared areas.

CONCEPT

Private co-living

The concept of the project seeks to be implement a completely programmatic for the “private co-living”, integrating their respective professions in the main family’s apartment as required.

ISOMETRIC SPACE PLANING

Family Apartment

Shared Areas

Grandmother Apartment Connection to 2nd floor (stairs)

18 INTERIOR DESIGN 19
18 INTERIOR
20 INTERIOR DESIGN 21 LEVEL 1 01 Living Room 02 Dining 03 Kitchen 04 Family Room 05 Patio LEVEL 2 01 Office 02 Master Bedroom 03 Walk-In Closet 05 Laundry 06 Child Bedroom LEVEL 1 FIRST FLOOR: NTS LEVEL 2 SECOND FLOOR: NTS 06 Grandmother Apt N FLOOR PLAN: NTS 01 02 03 04 06 05 07 Guest Bedroom 08 Guest Bathroom 09 Art Studio 07 09 08 01 02 03 04 04 Master Bathroom 05 06

Dining Area & Kitchen

The area of the living room, kitchen and dining room are double height areas. The dining area features an accent chandelier over the stone table. with dining chairs that have been upholstered in a vibrantly colored textile to balance

MATERIALS & FINISHES

MA01 Laminate Scultura U129 by CLEAF

MA02 Laminate California Walnut by Pfleiderer

MA03 24”x24” Grey Tile for Indoor & Outdoor

MA04 Azteca Wallpaper by Drop it Modern

MA05 Femme Wallpaper by Drop it Modern

MA06 Magma Petite Wallpaper by Drop it Modern

MA07 Brixton Mosaic Tile Zia Tiles

MA08 Flooring Carpet 55501 Castle Grey

MA09 Black Carrara Marble Finish by William Sonoma

MA10 Chrome Finish for Hardware & Faucets

MA11

Grey Carrara Marble Finish by William Sonoma

MA12 Canva Sunbrella Fabrics in Granite, Charcoal, Natural and Rust (Indoor & Outdoor)

the pattern of the kitchen wall wallpaper. The kitchen cabinets are laminated in California Walnut color and the top is one in Gray Carrara Marble finish.

22 INTERIOR DESIGN 23
Family Room
MA05 MA06 MA04 MA01 MA02 MA03 MA07 MA08 MA11 MA09 MA10 MA12

The Master Bedrooom is located in an exclusive area of the apartment with a view of the indoor patio from one of the two balconies. It was design to offer aunique way of relaxation and privacy using dark tones but also being balanced by the balconies and windows that brings natural lighting.

Also, the idea has been implemented in the Master Bathroom this time mixing and matching marbles. The flooring of the master bathroom has been covered in the Brixton Mosaic Tile by Zia Tiles. This combination was made taking into account the different personalities of the couple.

24 INTERIOR DESIGN 25
Master Bedroom Master Bathroom

PURE SKIN

SKIN CARE SHOP

2,000 square feet

Retail Design

Programs Used: AutoCAD, SketchUp, Vray and Photoshop

A lighting project, whose purpose was to design a better workspace. This being carried out with the correct lighting for the place. Being this a store of products for the skin, it is important to be able to see the skin color of the people with the greatest clarity and natural light.

CONCEPT

Daylight

The Daylight concept aims to bring the best possible ambient lighting to the space. This ambient lighting will mimic what sunlight is like within the space and achieve a high CRI.

26 INTERIOR DESIGN 27
ISOMETRIC Areas Show Windows Service | Store Area Cashier Office Storage
28 INTERIOR DESIGN 29 N FLOOR PLAN: NTS FIRST FLOOR 01 Service | Store Area 02 Show Windows 03 Cashier 04 Office 05 Storage SECTION B: NTS 01 02 02 03 04 05 Cashier

Store | Service Area

The design of the store has been made using natural materials and light shades. Each shelf of the wall furniture has an integrated led light to improve the visibility of which product is displayed, also these wall shelves are detailed with a gold metal. All the hardware and faucets that are in the space have a gold finish, these being the Sommerville drawer pull

MATERIALS & FINISHES

MA01

MA02

MA03

MA04

MA05

Wall Paneling: Ideawood | Slats Lamas by IDEATEC

Portlandia Terrazzo Mezzo by Waterworks

Allied Maker ARIA 12” pendant

Sommerville drawer pull by Rejuvenation

Benjamin Moore (Natura Interior Paint Satin-Simply White OC117)

by Rejuvenation. Product sample cabinets feature a Portalandia Terrazzo top by Waterworks. Furthermore, the integrated sink has the function of washing your hands after testing the products.

Above the counter area of the cashier is the Allied Maker ARIA 12 ”pendant, which works as an accent light.

30 INTERIOR DESIGN 31
Transaction Area
Store Area
MA03 MA02 MA01 MA04 MA06
MA06 Benjamin Moore (Natura Interior Paint Satin-Navajo White OC-95)
MA07 MA05
MA07 Benjamin Moore (Natura Interior Paint Satin-Lenox Tan HC-44)

EXTRACURRICULAR PROJECTS

32 INTERIOR DESIGN 33

GALERIA SALAFAR

ART GALLERY

2,000 square feet

Comercial Design

Programs Used: AutoCAD, SketchUp, Vray and Photoshop

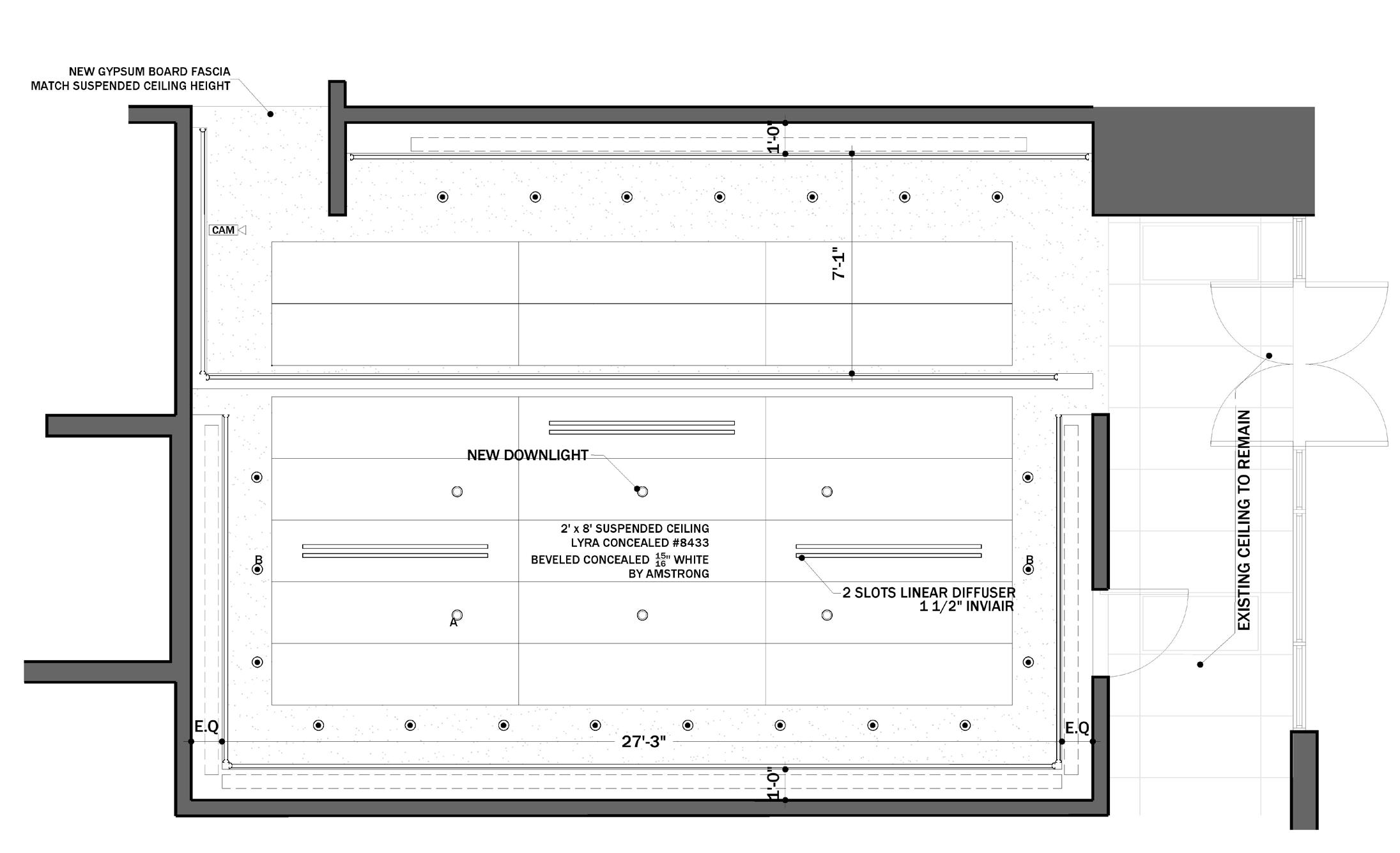
SalaFAR is the Art Gallery of the Angel Ramos Foundation of Puerto Rico. The purpose of this project is to redesign the lighting and ceiling system to a more contemporary one. Part of the challenges of this was not to pierce the marble walls or the terrazzo floor, as well as maintaining access to the ceiling through the Gallery.

CONCEPT

Continiuty

Based on one of the main uses of the space, including constant traffic to the cafeteria. The purpose of this design is to create an experience in which the user can make his tour in the gallery without any obvious boundaries

34 INTERIOR DESIGN 35
INTERIOR

Maintaining the current gallery wall and floor materials such as Marble and Terrazzo is essential to the gallery’s history. This is why it has been decided to polish the materials to revive these and expose them as new. Maintaining these timeless materials has led to the design of continuous panels inspired by Henri Matisse’s The Swimming

Pool exhibition at MoMa. This panel design is floating and exposes the marble at the top and bottom. These 4x8 panels form a continuous one around the gallery. The edge of the panels are metal and would be finished in a silver powder coated finish. In addition, these panels are suspended in a system of steel pipes.

36 INTERIOR DESIGN 37 N
FLOOR PLAN: NTS ELEVATION A: NTS ELEVATION B: NTS
38 INTERIOR DESIGN 39
N CEILING PLAN: NTS ELEVATION D: NTS ELEVATION C: NTS

URBAN INTERIORITY IN INTERSTITIAL SPACES

PASEO DE DIEGO, RIO PIEDRAS

Researcch

Programs Used: AutoCAD, Ilustrator and Photoshop

The intersection between the design and art industries is a powerful tool and can be used to challenge and change the way professionals and the public see, respond and experience designed interiors; a new system that one could visually imagine and physically live (Kitnick 714).

• Through the conjunction of urban planning guides or techniques, together with those of Interior Design, it is possible to rehabilitate spaces to improve the urban environment.

• The creation of the interior is not simply defined within physical limits, interiority and its typologies can be a support to develop interior design in an exterior.

• Interior Urbanism is possible under the interiority and its typologies that allow the exchange of atmosphere, psychological experience, and based on forms in exterior spaces.

These intervention strategies could provide a positive image to the city, in addition to providing security and new experiences for users.

40 INTERIOR DESIGN 41
INTERIOR

PROGRAMMATIC INTERVENTION

Dawn by |

SUMMARY OF METHODS AND TOOLS

To understand and correlate interior design in an urban setting is to understand the functions of the site. The reactivation of the space with a programmatic intervention on different scales creates a new environment, whether it is a long-term or short-term intervention.

SUGGESTED PROGRAM IN BUIDLING

SHOPS

COFFEE SHOPS | RESTAURANTS

ACTIVE ENTERTAINMENT CENTER

CULTURAL CENTER

OFFICES | TECHNOLOGICAL SPACE

LEARNING RESOURCE CENTER

MAIN ROAD

PEDESTRIAN STREET: PASEO DE DIEGO

TYPOLOGIES & HYBRID INTERVENTIONS ON SITE

These on-site interventions have been called Hybrid Interventions, who are the introduction of both short-term and long-term interventions that creates a variety of on-site activities co-related with the suggested programming in the buildings. By introducing the Typologies of Interiority with Hybrid Programmatic Interventions we are creating "urban rooms".

42 INTERIOR DESIGN 43
LIGHTING WI-FI GREEN AREAS FURNITURE WAYFINDING | INFOGRAPHICS ACTIVITIES EXHIBITIONS PROXIMITY

SUGGESTED HYBRID INTERVENTIONS

GASTRONOMIC AREAS

REST AREA

POP-UP SHOPS

SOCIAL ACTIVITIES |CULTURAL | ART

ACTIVE AREA

44 INTERIOR DESIGN 45

INTERVENTION ELEMENTS

TRANSITION MATERIAL “URBAN RUG” PROVIDES THE DISTINCTION OF ZONES, CIRCULATION

REST FURNITURE ATTRACTS PUBLIC BY AREA

FLEXIBLE FURNITURE TO ACCOMMODATE DIFFERENT GROUPS

RHYTHM WITH GREEN INFRASTRUCTURE CREATES VISUAL PATTERNS TO UNDERSTAND SPACE

NIGHT LIGHTING TO CREATE SAFE, AMBIANCED AND VISIBLE SPACES

EPHEMERAL OBJECT MAINTAINS ACTIVITY AND DIVERSITY IN THE AREA

46 INTERIOR DESIGN 47 NTS SECTION Scale | CONCRETE TILE CEMENT TILE HEAVY TIMBER WOOD CEMENT TILE WITH PATTERN CONCRETE TILE HEAVE TIMBER WOOD 1 2 3 4 5 6
1 2 3 4 5 6

Hello, I'm Yamilex Rios

Hello, I'm Yamilex Rios

This portfolio displays a progression of my undergraduate work during my time at the Ana G. Mendez University-Gurabo, obtaining a Bachelor’s of Interior Design. After I graduate in Interior Design, I will then begin working towards my Master of Architecture degree.

This portfolio displays a progression of my undergraduate work during my time at the Ana G. Mendez University-Gurabo, obtaining a Bachelor’s of Interior Design.

My passion lies in at the intersection between Interior Design and Architecture discipline as they both rely heavily on each other and are of equal importance for a great design. I continually push myself to the best of my ability thoughout the design process and focus on incorporating new methods of representation with each project that I’m presented with. As a designer that strive to produce high quality and visionary work, I am eager and excited to improve my knowledge and skill set in the professional world. After I graduate in Interior Design, I will then begin working towards my Master of Architecture degree.

My passion lies in at the intersection between Interior Design and Architecture discipline as they both rely heavily on each other and are of equal importance for a great design. I continually push myself to the best of my ability thoughout the design process and focus on incorporating new methods of representation with each project that I’m presented with. As a designer that strive to produce high quality and visionary work, I am eager and excited to improve my knowledge and skill set in the professional world.

48 INTERIOR DESIGN 49

yamilex.rios@hotmail.com yamilexriosrivera@gmail.com

50 INTERIOR

Turn static files into dynamic content formats.

Create a flipbook
Issuu converts static files into: digital portfolios, online yearbooks, online catalogs, digital photo albums and more. Sign up and create your flipbook.
Interior Design Portfolio by Yamilex Rios Rivera - Issuu