Portfolio_Xushan

Page 1


Landscape Architecture

Xushan Liu xushan_liu@outlook.com

RESUME

CONTENT

EDUCATION

University of Toronto, 2021-2024

South China Agriculture University, 2017-2021 Bachelor of Engineering (Landscape Achitecture)

EXPERIENCE

ROBITAILLECURTIS

Jan.2024-Mar.2024 , Montreal, Canada Landscape designer (Part-time)

ROBITAILLECURTIS

Apr.2023-Aug.2023 , Montreal, Canada Landscape design intern

REMIX STUDIO

May.2022-Aug.2022, Guangdong, China Landscape designer

Aug.2020-Apr.2021, Guangdong, China Research assistant

SKILL

Master of Landscape architecture Adobe

LANGUAGE

Productive Defense | Urban Design

LIVING WITH WATER

LANDSCAPE DESIGN TO NATUALIZE ARTIFICIAL CHANNEL

landscape architecture design

location: toronto, canada type: group work

(my role: investigation, concept and strategy proposal, design and visualizations and construction details) duration: dec./2023-may./2023 area: 21.15 ha

instructor: alissa north, todd douglas

PROJECT STATEMENT

After Hurricane Hazel, the Black Creek River was thoroughly channelized in concrete from just south of Weston Road until the stream outlets to the Humber River in what is now the Lambton Golf Course. However, it’s not the best solution as the channel will draw groundwater beneath the adjacent floodplain, and groundwater storage will then decrease. As a result the soil becomes more compacted, reducing the capacity of soil to store water. Lastly, channelization may worsen the water quality of the river.Smythe Park, at the intersection of Humber River and Black Creek, is facing issues caused by channelization.

By looking into the history, we found there was a time when waterways meandered in this area.(point to water history map) Furthermore, we figured out that flooding and program shortage were the main issues of Smyth Park. The existing site plan completely ignores those issues(point to accessibility), leaving most of the land inaccessible and unusable during the flooding season. That makes us think: How can a resilient park be developed in a way that not only keeps most of the land usable year round, but even flooding can be used as an opportunity not a drawback in the park?

To design a self-sustaining park, the concrete channel will be taken away, which acts as the barrier between human and water currently, we want to transform it into a way of connection, from which a new lifestyle is provided to the residents, a life to live with water.

FEEDING THE FUTURE

URBAN DESIGN TO FACE FOOD INSECURITY

landscape architecture design

location: toronto, canada

type: group work

(my role: investigation, concept and strategy proposal,design of hydro corridor part1 and its schematic representations and renderings)

duration: sept./2022-dec./2022 area: 662.94 ha

instructor: fadi masoud, rob wright

PROJECT STATEMENT

When extreme heat and multi-year droughts in California restrict the export of fresh produce, what happens to Toronto’s residents? Relying primarily on external imports, such as California, for fresh produce, Toronto’s insecure food system is placed under severe threat. In the near future, increasing drought frequency and severity– just one symptom among many of a rapidly burning planet- poses severe challenges to food production within North America. Other emerging food risks made explicit by climate change are food insecurity, decreased arability, increased irrigation, and drastic changes in planting and harvesting techniques. Food insecurity is intimately linked to climate change; when food production buckles in California, in Toronto, low-income, racialized communities are impacted at the outset and at the highest frequency. Our proposal seeks to achieve regional food security, by implementing agriculture production that meets 100% of Jane and Finch's fresh produce requirements.

The site selection process began by mapping food distribution, overlayed a map indicating household income,then a soil zone map illustrating the areas with soil suitable for food production and a map identifying employment areas and schools were added.

This process examined the relationship between tillable soil, household income, and employment areas all in relation to areas lacking food resources.

By overlaying the initial analysis maps, Jane and inch is identified as the zoomed-in design area

The site selection considered neighboring communities, employment areas, transit infrastructure, and existing institutions and initiatives.

Toronto’s current commercial demand for fresh vegetables could, potentially, be supplied through agricultural activities within the city.

Toronto required 23 km2 of food production area to meet current consumption requirements (10%), which comprises 4% of Toronto’s land area

11km2 could be available on

12km2 could be supplemented with

Considering connections between our site, existing residents, and food access, our strategic map identifies existing community hubs and social infrastructure that could be further developed, multiple employment areas that could be transformed into innovative green industries and several potential areas for high-density housing in conjunction with green industries and infrastructure.

To address substantial spatial and social needs, our proposal suggests high-density indoor agricultural production within the existing employment areas and an interconnected web of community networks within the finch hydro corridor.

COASTAL URBAN DESIGN FOR SEA LEVEL RISING PRODUCTIVE DEFENSE

urban design location: guangzhou, china type: group work

(my role: investigation, concept and strategy proposal,diagrams and schematic representations)

duration: mar./2021-jun./2021

instructor: chongxian chen

PROJECT STATEMENT

Nansha is one of the core cities in the center of Greater Bay Area. However, this coastal city is facing increasing risk due to climate change and rising seas. In response to coastal risk and urban expansion, the landscape architects envisioned Productive Defense that could combine the abundant native resources and adapt the city to climate change in future development. The original productive potential is fully realized along the coastline, catering for the need of a reliable coastal defense in Nansha. This proposal enlarges the area of agriculture while integrate defensive capability with agricultural production, enhances the recreational area by introducing productive programs, improves the adaptability in residential areas by providing a nourishing environment in future living zone, and shelters industrial areas by utilizing industial material to create productive buffers against coastal hazards.

PARKSCAPE CINEMA

PARAMETRIC LANDSCAPE DESIGN

landscape architecture design

location: toronto, canada type: group work

(my role: investigation, concept, parametric model buildings, animation and graphics)

duration: sept./2023-dec./2023 area: 26.72 ha

instructor: matthew spremulli, rob wright

PROJECT STATEMENT

This studio explored the convergence of Landscape Architecture and computational design, integrating AI through Generative Design. Using tools like Plant Kit , Lands Design, and Ladybug, I engaged in parametric and performance-based modelling, generating controlled iterations with measured evaluators that are specific to Landscape Architecture.

The site I chose is home to prominent film studio such as Cinespace Studio, Unwin Studio, and Netflix Production office. The latter hosts public events like the Stranger Things Experience, attracting visitors to the site. Despite intentions to draw in more visitors, the site remains largely inaccessible, enclosed by unattractive fencing, and lacking appealing greenery and programming. We recognized a unique opportunity to redesign the space, making it more accessible, attractive, and rooted in its industry through unique film screening events.

With the intention to create more intimate and romantic spaces, we designed two typologies that will be placed throughout the site. The North-South typology places solar panels at a mound facing South, directly powering the film projection on its backside facing North - it becomes a mini amphitheatre with seating extending below grade. Meanwhile, the second East-West typology utilizes mounds to hold stormwater and increase planting areas.

STEP 1: Determine Programming Area

STEP 2: Generate Vector (generator) 6 number sliders determining 3 sets of end points for the vectors

STEP 3: Create Vector Field

STEP 4: Select Lines

STEP 5: Assign Typology

Projection Mound | -45° to 45°

Planting Mound | 45° to 90°

STEP 6: Modify topography

Projection Area (m2) Solar Panel Area (m2)
Seating Area (m2)
Planting Area (m2) Water Storage (m3)
Cut and Fill Difference (m3)

CYCLE OF RESILIENCE

LANDSCAPE DESIGN TO FACE ALLERGY CAUSED BY AFFORESTATION

landscape architecture thesis location: china type: individual work duration: jan./2024-ongoing instructor: peter north

PROJECT STATEMENT

Ecological imbalances caused by intensive logging in during the 1950s have led to widespread desertification in Northern China. In response, the Three North Shelter Forest Program (TNSF) aimed to combat desertification by stabilizing soil through the mass planting of Artemisia but inadvertently triggered a crisis of allergic rhinitis caused by the plant's pollen. My thesis proposes a new approach: designing interventions that could simulate natural succession. By implementing productive sand barriers and urban green infrastructure, pollen dispersal can be reduced while reviving traditional activities and enhancing urban greenery. The goal is to achieve environmental equilibrium while mitigating allergies and desertification.

11.3% for Artemisia genus

6.5% for Ambrosia artemisiifolia

3.5% for mixed grass pollen

2.2% for mixed tree pollen

Mobile Sand Semi- xed Sand Fixed Sand

MONGOLIAN PLATEAU
LOESS PLATEAU

The Three North Shelter Forest (TNSF) program will be 4,500 kilometers long till 2050s

how could human intervention be part of the natural succession?

Human intervention in 1950s breaks the natural succession

Human intervention in 1970s breaks the natural succession The natural succession

create a system from desert edge to urban areas

urbanization a orestation steppe desert desert edge

Datong City
Huairen City
Zuoyun County
Youyu County
Pinglu County
Qingshui County
Zhunger Town
Tuoketuo Town

desert edge sample design

Fangniu Yao Village, Shaanxi Province, China

Datong Middle School, Shanxi Province, China

THE IN COMMON

URBAN DESIGN

urban design location: seattle, us type: group work

(my role: investigation, concept, 3d modeling, renderings)

duration: two weeks

instructor: jonathan kline

PROJECT STATEMENT

The proposal for the redevelopment of King County's site in downtown Seattle integrates four central concepts: Community, Resilience, Economy, and Culture, aiming to transform the 15.4-acre area into a vibrant, mixed-use, and mixed-income neighborhood. Emphasizing Community, the plan includes a Community Center and mixed-use residential spaces to foster social engagement and local commerce, alongside Affordable Housing Complexes to ensure inclusivity. Resilience is prioritized through green spaces, sustainable infrastructure, and environmental education initiatives. Economic vitality is promoted through an Office Tower, Incubator Center, and job training facilities, while Cultural elements such as museums and artist spaces celebrate the area's heritage and promote artistic expression, ensuring accessibility and diversity within the community.

GRADING EXERCISE

PROJECT STATEMENT

For this exercise I have the opportunity to explore complex landform in a precise grading design with clear design documentation. The primary challenge involves safely directing people from the top of a steeply sloping site to a promenade along the waterfront. All site grading and contour manipulation must occur within the site boundaries. The assignment focuses on the use of landform, drainage patterns, planting design, accessibility issues, code requirements and representation in clear and comprehensive technical drawings.

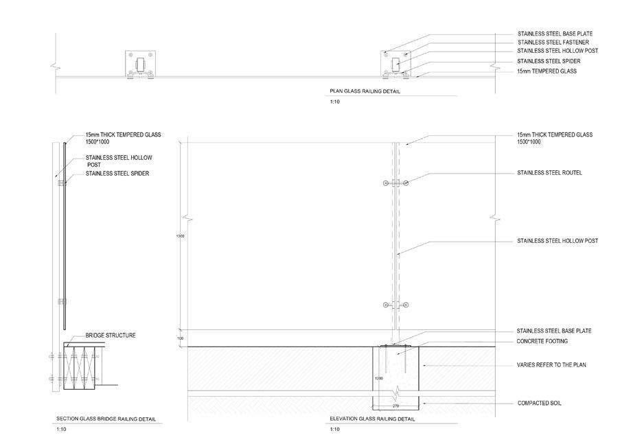
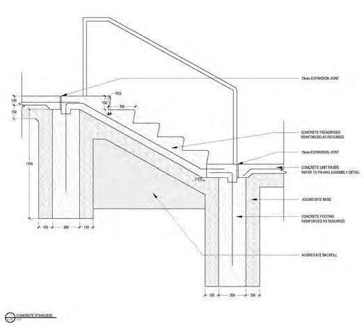
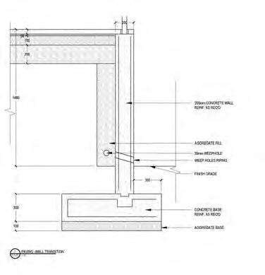
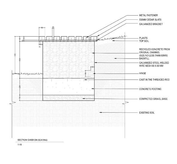
WORKING SAMPLE

PROJECT STATEMENT

This section showcases a selection of the projects I have worked on during my internships, using Rhino, SketchUp and Enscape for 3D modeling and renderings, as well as Adobe Creative Suite for finalizing visualizations.

Turn static files into dynamic content formats.

Create a flipbook
Issuu converts static files into: digital portfolios, online yearbooks, online catalogs, digital photo albums and more. Sign up and create your flipbook.