Sustainable Residential Complex Design-Xutian Huang

Page 1


TERRACE IN THE CITY SUSTAINABILITY STRATEGIES

CONSTRUCTION AND SUSTAINABILITY DESIGN STUDIO [SEZIONE B]

PROF. D. FANZINI, GIULIANO DALL’O

Lecturers: Daniele Fanzini, Giuliano Dall’O

Professional consultants: Gio Gozzi, Carlo Parrinello, Luca Aldrighi

Assistants: Nour Zreika; Samskrth Prabu Thogulva Sundaresan Group 6

Xutian Huang
Hucheng Yang
Derek Lap Yin Wong

PGT RULES

RIC CALCULATION

MINIMIZATION OF CLIMATE ALTERING EMISSION THROUGH TECHNICAL SOLUTION

ENERGY PERFORMANCE OF THE BUILDING ENVELOPE

U TRANSMITTANCES OF THE COMPONENTS OF THE BUILDING ENVELPE

WINTER THERMAL LOADS

GLOBAL THERMAL EXCHANGE COEFFICIENT

SUSTAINABILITY STRATEGIES OPEN

PGT RULE

Achievement of Climate Reduction Index (CRI) (Indice di Riduzione Impatto Climate) (RIC)

Type of interventions

New construction works

Types of green surfaces

Green area semipermeable surfaces

Paved area semipermeable surfaces

Green roofs architecturally integrated into the buildings and equipped with drainage layer

PGT RULE

MINIMIZATION OF CLIMATE ALTERING EMISSION THROUGH TECHNICAL SOLUTION

Measures to minimize emissions

Measures Requirements

Renaturalization installations, including varieties of vegetation incorporated into the buildings

Harvesting of rainwater

Provision of devices for saving water

Total green surfaces > 0.2 of total surfaces of the site

4115.04 m2 > 2460.00 m2

Total annual volume of rainwater collected: 1830.81 m3/year

Total annual volume of water saved by the project > 0.2 of total annual water comsumption

5100.00 m3/yr > 5010.60 m3/yr

CO2eq emissions avoided (kg CO2eq/year)

Provision of suitable spaces for bicycle parking

Installation of electric vehicle charging point

Surface area suitable for bicycle parking > 0.15 of total surface area for parking

621.99 m2 > 582.55 m2

Number of charging point > 0.5 of number of car parking space

40 points > 38 parking spaces

Total CO2eq emissions avoided

Total CO2eq emissions avoided per m2

ENERGY PERFORMANCE OF THE BUILDING

ENVELOPE

U TRANSMITTANCES OF THE COMPONENTS OF THE BUILDING ENVELOPE

External wall

Maximum U value of Milan (climate zone E): 0.26 W/m2K

Window / Sliding door

U value: 0.244 W/m2K

From outside to inside:

Waterproofing plaster

Waterproofing membrane

Gypsum board

PLASTBAU® SIP (structural insulating panel)

Gypsum board

Plaster

PLASTBAU® SIP (structural insulating panel)

Maximum U value of Milan (climate zone E): 1.40 W/m2K

U value: 1.021 W/m2K

Schüco Sliding System ASS 77 PD.SI (Panorama Design Super Insulated)

U value of window: 0.85 W/m2K

U value of frame: 1.80 W/m2K

Floor slab (exposed to outdoor / non-exposed to outdoor)

Maximum U value of Milan (climate zone E): 0.26 W/m2K

U value: 0.183 - 0.188 W/m2K

From top to bottum:

Floor finish

Waterproofing membrane (outdoor)

PLASTBAU® METAL FLOOR

Plaster

PLASTBAU® METAL FLOOR (insulating floor)

ENERGY PERFORMANCE OF THE BUILDING

THERMAL LOADS

Thermal losses calculation

Ti (°C)

Heat losses coefficient for transmission through walls Hd

Description

External wall

Window & sliding door

Total

Heat losses coefficient for transmission through thermal bridges Hpt (W/K)

Design heat losses for transmission QT

Thermal losses coefficient for ventilation H v

Net volumn

Roof floor slab Minimum

Thermal losses coefficient for ventilation H v

Design heat losses for ventilation Qv

Overall design thermal losses

ENERGY PERFORMANCE OF THE BUILDING

GLOBAL THERMAL EXCHANGE COEFFICIENT

Shape coefficient

of the building

Shape coefficient

Maximum allowable value of the global thermal exchange coefficient H’T

Global thermal exchange coefficient H’T

SUSTAINABILITY STRATEGIES

SUSTAINABILITY STRATEGIES

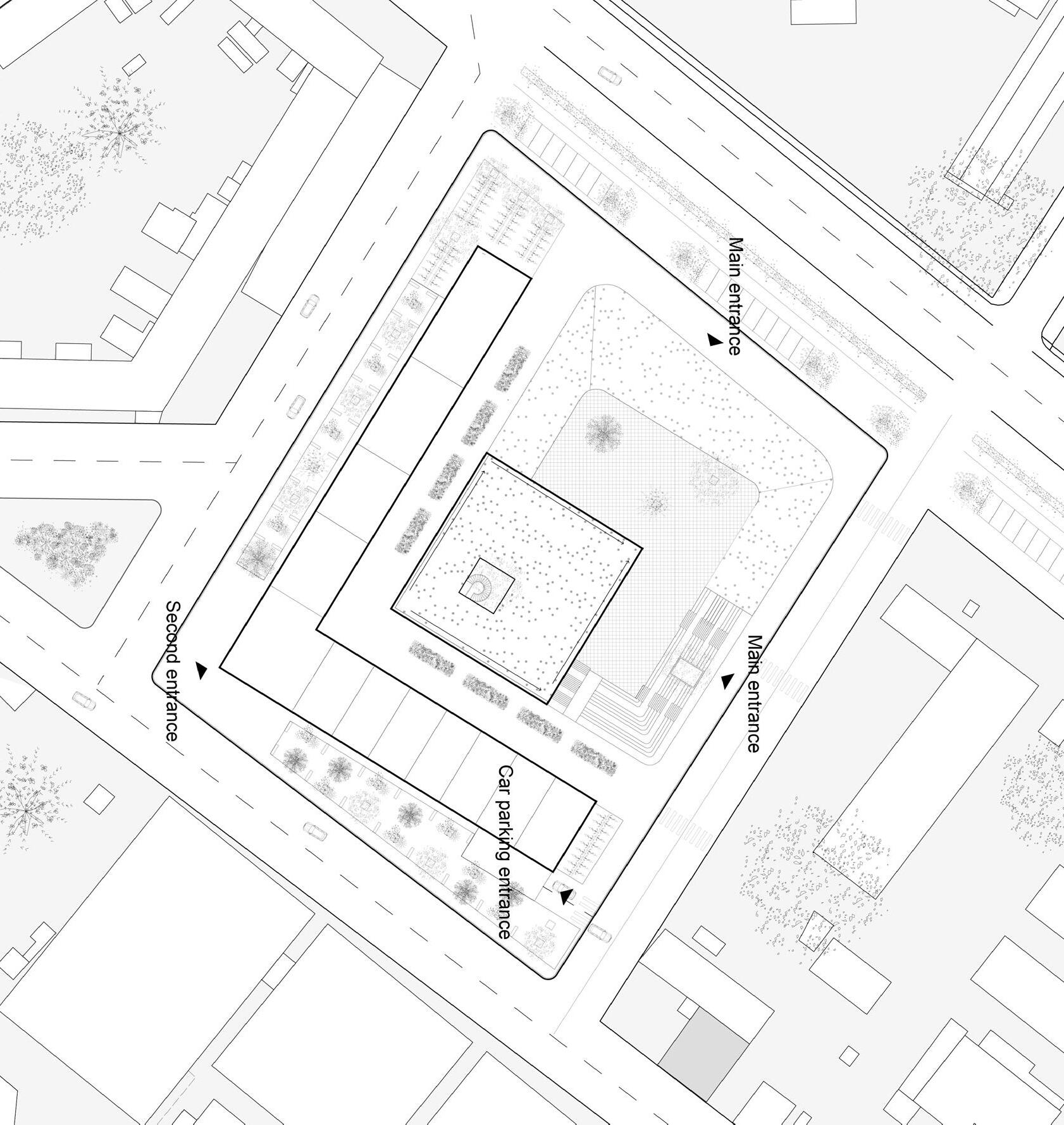
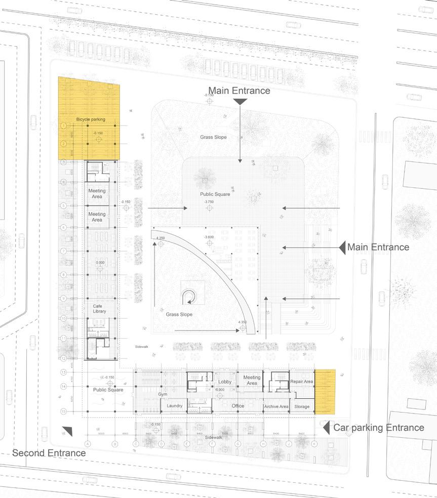
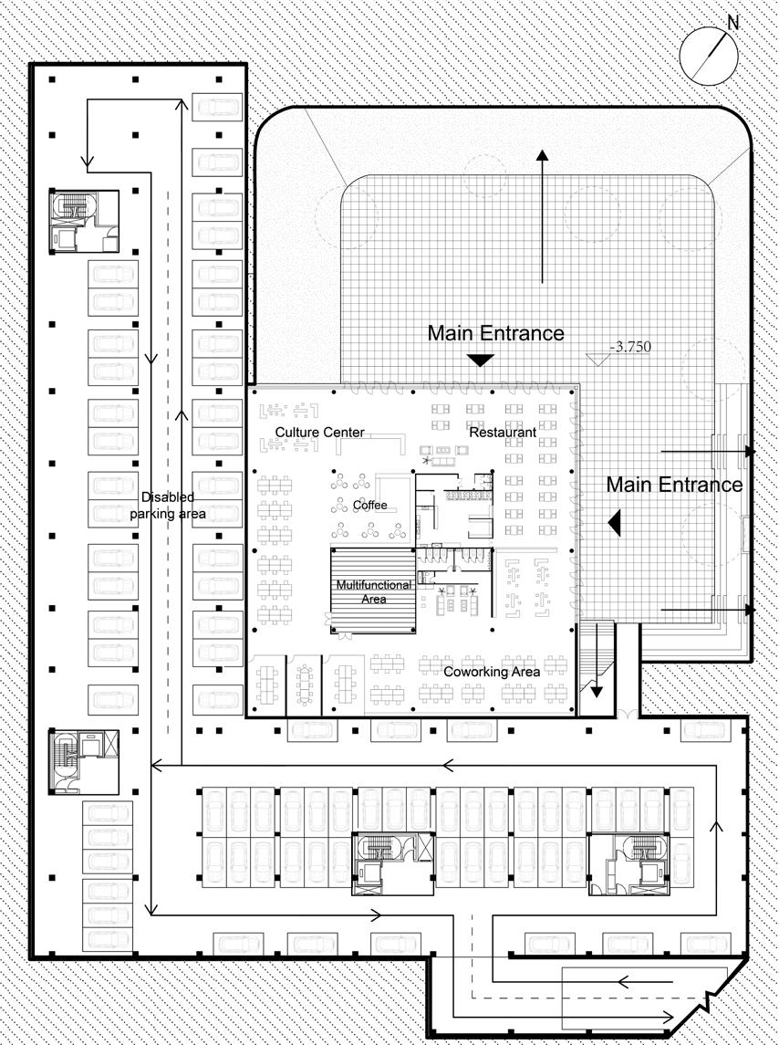
OPEN SPACE (LEED)

To create exterior open space that encourages interaction with the environment, social interaction, passive recreation, and physical activities. Area

SUSTAINABILITY STRATEGIES

WATER EFFICIENCY (LEED)

To reduce outdoor water consumption

Reduced irrigation

Harvesting of rainwater

1830810 L/year

Suction tank

A filter placed in the tank clears the water of impurities

Building roof

To reduce indoor water consumption

Building water use

Lavatory faucets Toilet (water closet)

Baseline: 8.3 lpm

Baseline: 6.0 lpm

Collection tank

A fitted sensor then sends the water to the tank located on the terrace

Showerhead

Baseline: 9.5 lpm

Water storage tank

The water can be used for irrigation

Kitchen faucet

Baseline: 8.3 lpm

Roca Atlas Mezzo basin mixer
Ceramica Catalano WC suites
Sanitana XS shower mixer
Caramicas Lora sink mixer

SUSTAINABILITY STRATEGIES

GREEN TRANSPORTATION (LEED)

To promote bicycling and transportation efficiency and reduce vehicle distance traveled. To improve public health by encouraging utilitarian and recreational physical activity.

Requirements

Provide long-term bicycle storage for at least 30% of all regular building occupants, but no less than one storage space per residential unit.

30% of all regular building occupants: 94 occupants

Number of bicycle storage space to be provided:

To reduce pollution by promoting alternatives to conventionally fueled automobiles.

Requirements

Designate 5% of all parking spaces used by the project as preferred parking for green vehicles.

Install electrical vehicle supply equipment (EVSE) in 2% of all parking spaces used by the project.

Number of parking space to be provided:

Ground

SUSTAINABILITY STRATEGIES

RENEWABLE ENERGY PRODUCTION (LEED)

To reduce the environmental and economic harms associated with fossil fuel energy by increasing self-supply of renewable energy.

PV panel

PV panel
PV panel
PV panel
PV panel

HVAC SYSTEM

Typical schematic HVAC layout (not to scale)

plan (not to scale)

Roof

Turn static files into dynamic content formats.

Create a flipbook
Issuu converts static files into: digital portfolios, online yearbooks, online catalogs, digital photo albums and more. Sign up and create your flipbook.