Xiaoying portfolio sample

Page 1


Xiaoying Li | 李笑莹 PORTFOLIO 2017-2024

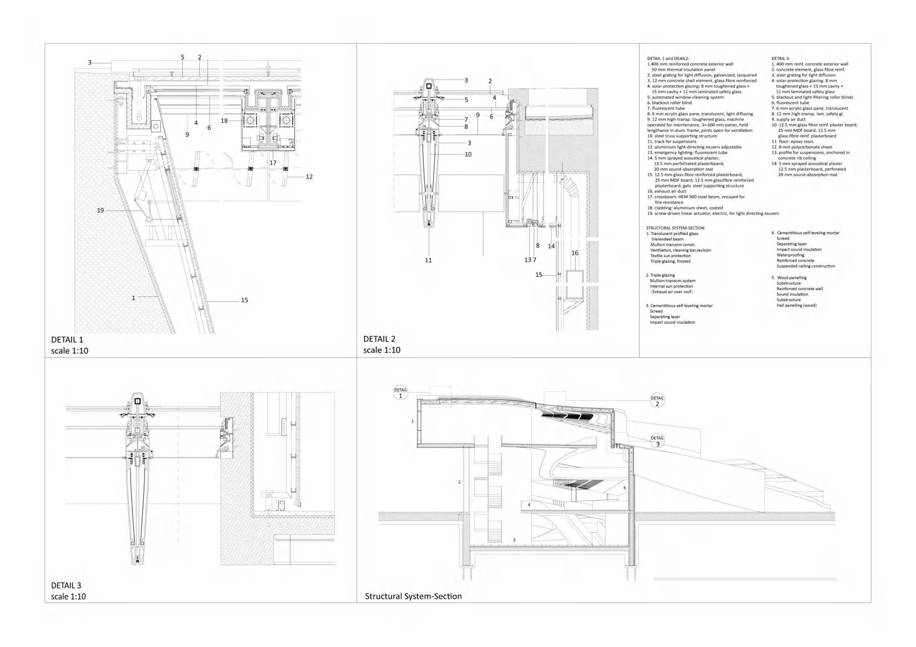
CHEHNGDU SCIENCE FICTION MUSEUM 05/2022-05/2023

Chengdu,China

DD Drawing Set, SD Drawing Set, Main Facade,3D modeling, Lighting compeition,Landscape design Design Proposals

I was honored to participate in the project of the Chengdu Science Fiction Museum during my tenure at Zaha Hadid Architects, and from the end of the competition to the implementation of this project, I learned to deepen and realize complex large-scale landmark buildings. And working with the London team to complete the project has increased my ability to cooperate with the landing project remotely

East View from Huashi Street
Birdseye View from South
Roof Site Plan
Section B-B
Section A-A

屋顶底部及立面

HUGO AWARDS HALL
EXHIBITION LOBBY
The Hugo Awards Hall can accommodate at least 4,000 spectators. The main concept is inspired by the phoenix totem in the Bashu area. The phoenix spreads its wings to embrace the entire stage
The front hall of the exhibition hall is consistent with the overall design tone. The light strip lights on the wall guide the visitor’s sight to the exhibition area. The GRE material creates a sense of future technology

03/2023-NOW

Rebat Precinct,Dubai Masterplan,3D modeling

Design Proposals,SD Drawing set

DFC Gateway is a visionary development that seeks to create a sustainable and innovative community through a design that emphasizes connectivity, vibrancy, and environmental responsibility. The project aims to become a hub for residents, businesses, and visitors, fostering collaboration and creativity while preserving the natural beauty of the area.Our vision for the Rebat Precinct is to create a connected and cohesive community that fosters social interaction and a strong sense of place. The design is responsive to both environmental sustainability and urban context, resulting in a vibrant and livable area for residents and employees.

One of the key design features of DFC Gateway is the elevated bridge links that seamlessly connect the different plots together, creating a sense of continuity and unity throughout the development. The space for the podium parking is created below the elevated public realm that connects to the bridges. This innovative design strategy not only provides a convenient way for residents and visitors to move between different parts of the development but also minimizes the need for basement parking,which in turn reduces the cost of the project. By locating the parking below the public realm, the project maximizes the use of available space, creating a more efficient and sustainable development. This reflects our commitment to creating a development that promotes connectivity, convenience, and environmental responsibility, while also being mindful of the cost-effectiveness of the project.

Zhengzhou, Tongsheng Jianye - Songyuan

08/2021-06/2022

Chengdu,China

DD Drawing Set, SD Drawing Set, Main Facade,3D modeling,Landscape design Design Proposals

I was involved in the SD-DD development phase of this project, mainly assisting the team in revising the design. The difficulty of this project lies in the design of the balcony:

1. the typology of the balcony shape, reducing the type to reduce the difficulty of construction. 2. how to maintain the mushroom shape while having sufficient light and satisfying the visual privacy of the two relative households.

Drawing

Elevation Drawing

Special Balcony Study

Solution:Addition of planter moulding without changing the structure of the planner.

1.NO STEP PLANTER

2.SPECIAL SHAPED BALCONY

White GFRP

1.Light weight and good stain resistance

2.Strong surface modelling capabilities

3.Unlimited dimensions

glass-reinforced plastic (GRP)

FRP

Dimension plate

Glossiness

Dirt resistance

Unlimited size

Template process

Metallic gloss 30-60

good

Substrate not absorbing water

Fluorocarbon coating

Processing technology

fire protection rating

Surface Difficulty

Supplier Domestic

Supplier

Mould Pouring

B1

Flame retardant can be added

Easy

Accuracy depends on the model

Domestic E GROW -

This project was curated in Video Format. To watch, Please scan the QR code, Thank You!

ETERNALHAVEN

08/2023-09/2023

Singapore

3D modelling, Rendering, Viedo,Interaction design Design Proposals

The project was my first meta-universe project used in Terminus, the world’s first web3 game, and I was the eventual winner of the contest they held as well as the MUA DAO Community Award for Most Popular Entry. I was responsible for the design, 3D modelling, UE5 demo and video editing.

ETERNALHAVEN

Considering that current societies are profoundly characterised by a multitude of seemingly ever-emerging instabilities, human societies, and urban societies in particular, appear to be the most affected. Instabilities include socio-economic instability, potential regional security threats, and more pressing ecological and climatic issues. To make urbanised societies resilient in the face of potential threats, we offer a new approach in the metaverse. We build a strong, trusting, interdependent, cooperative and empathic network, independent of culture, social class, beliefs and behavioural styles. We hope that as the times evolve and as human civilisation progresses, we want to move beyond the world of materialism to continue progressing in the world of idealism, exploring quantum entanglement and focusing more on the balance of people’s hearts and intelligence. When the seed germinates to blossom and bear fruits to finally fall into mud and turn into dust, everything goes to the premise of the principle of cyclic conservation, and we hope that we as carriers can enjoy the world to the fullest.

TERMINAL CITY THE GATEWAY PLAYER OPERATION INTERFACE

The metaverse operates similarly to a real-world city, allowing users to use familiar facilities and more to ensure an immersive and thrilling experience. Using UE5, this metaverse will feature realistic models rendered in real time and dynamic lighting.

As a portal, it will connect users to all games on the platform through a gateway. It is our central hub where users can interact with others in real time while browsing and discovering content.

Custom avatars provide users with personalised and immersive experiences across the AI-powered world. Users can upload voice, images, past conversations, knowledge and skill information learned to generate their own personalised avatar through Bodhi Protocol technology.

From 1st July to 1st September 2023, MUA DAO and Ultiverse will be organising the Call for Design: Key Buildings of Ultiverse, a global call for urban architectural design.

The call is judged by : Tony Q.S. Quek, Ph.D., Fellow of IEEE, Fellow of Academy of Eng. Singapore Nicole, Partner @LIF |Ex ED @BinanceLabs Sen Xu, OKX VP of engineering Frank, CEO @Ultiverse

Y Code Studio team’s work was selected as a finalist and won the MUADAO Community Popularity Award.

The project has been successfully deployed in Terminus, the world’s first Web 3.0 blockchain 3A game, and is now in beta!

Terminus is a decentralised virtual metaverse platform built by Ultiverse based on the BNB Chain in UE5. It is the central hub of our community, allowing users to browse and discover content while interacting with others in real-time.

Core Idea

Essentially, Ultiverse has taken the fundamentals of real-world cities and recreated them on the Chain. terminus City will be the first meta-universe platform to use Unreal Engine 5 (UE5), the ground-breaking software Ultiverse is using to create top-notch imagery as a core competency for a 3A immersive gaming platform; and Leveraging new features such as Lumen and Nanite for real-time rendering.

Terminus City consists of eight main zones including the Birth Hall, City Digital Gallery, NFT Gallery, Trade Bazaar, Arcade Gaming Centre, DJ Party (VR implementation), Chain Transportation Hub, and Death Circle Bar. The meta-universe platform is connecting Web 3.0 with an immersive virtual world compatible with VR. It will be home to the first true 3A game built on blockchain technology.

SHEFFIELD

CITY MEMORIES ART GALLERY

12/2023-02/2024

Sheffield,United Kingdom

Schematic Design

Design Proposals

This project was my graduation project, which I redesigned in the winter of 2023, based on new inspirations during my previous employment at Zaha. The design maximises the memory of the steelworks in Sheffield’s old industrial area, Carbrook, and the gallery is deep underground so that the main body of the building doesn’t overshadow the beautiful old steelworks behind it whilst providing a visual contrast between the old and the new.

The long slope gallery links the entire interior of the gallery, allowing people to walk through the exhibition in a free and simple way. The varying heights of the roof echo the sloping roofs of the old industrial area.

SITE EXPLORATION

“Stories are a kind of thing,too. Stories and objects share something, a paana. I thought I had this clear, two years ago before I started, but I am no longer sure how this works. Perhaps a paana is a process of rubbing back so that the essennal is revealed, the way that a striated stone tumbled in a river feels irreducible, the way that this netsuke of a fox has become liile more than a memory of a nose and a tail. But it also seems addiive, in the way that a piece of oak furniture gains over years and years of polishing, and the way the leaves of my medlar shine.” ---Edmund De Waal- The Hare with

1. Site is adjacent to the factory
4. Linear tower, Linear buildings extend along linear terrain
5. View from road, The visual centre follows the whole complex from the top to the bottom.
6. The site alignment shows a zigzag pattern
2. A bar, A potential social space
3. Sheffield Forgemasters, Typical industrial buildings in the Iron City
1.Folds in the site
2.Divided into 4 main spaces
3.Raised corners in response to perimeter sloped roofs
4.Divide out the skylight part

massing design development

AI-based

Exploded Diagram

Player Entrance Portal

Meditation & Indulgence Unit Music

The

Meta-Universe Scene and equipment Introduction Display

Here,

Entrance to the replica of the space theme unit

Lower level roaming space and entrance hall

escalator

Buildtime Nexus

12/2023-NOW

Beijing, China

web design, visual design, meta-universe design

BIM collaborate software developer (seed round financing)

Buildtime Nexus is a multi-programmed, full-cycle, communication and meta-universe based system that my team has developed as a web page or programme, and as a customised presentation and visualisation service for construction projects.Buildtime Nexus not only integrates with a wide range of commonly used construction software, but also provides a revolutionary logic for reporting and presentation of construction and engineering projects. Buildtime Nexus not only integrates a variety of commonly used construction software, can be algorithmically reduced in size, and can be shipped quickly, but also provides a revolutionary logic for reporting and presentation of construction and engineering projects. The project is currently funded by Beijing Architectural Design Institute (BIAD) and won the second place in the final of BIAD’s first Innovation Competition. I was responsible for the visual design, meta-universe spatial design, and custom programming conversion in this project.

Turn static files into dynamic content formats.

Create a flipbook
Issuu converts static files into: digital portfolios, online yearbooks, online catalogs, digital photo albums and more. Sign up and create your flipbook.
Xiaoying portfolio sample by xiaoying3li151 - Issuu