
An ssemblage of PLACES made

Hogan Ecovillage
Mat Building
Set within the Grand Canyon National Park, the Eco Village embraces the opportunity to create a community.
Inspired by the traditional Navajo Hogan, the design uses rammed earth construction with sensitive placement to minimize site impact.
A mat-building typology is implemented to allow the structures to nestle into the terrain, supporting ecological restoration while embracing local cultural elements.









Clusters of ‘hogan’ units come together to form one unified building, thoughtfully positioned to harness prevailing winds for natural ventilation. Doorways face one another in hopes of fostering natural social interactions.
Winding paths meander through rejuvenated landscapes to connect people with nature.


With the integration of community activities of gardening, wildlife habitat restoration, and natural water treatment, this ecological framework springs to life, balancing movement and stillness in the vision of a harmonious and resilient ecovillage.


Ecological Framework Integration


















Mission
Botanical Spur
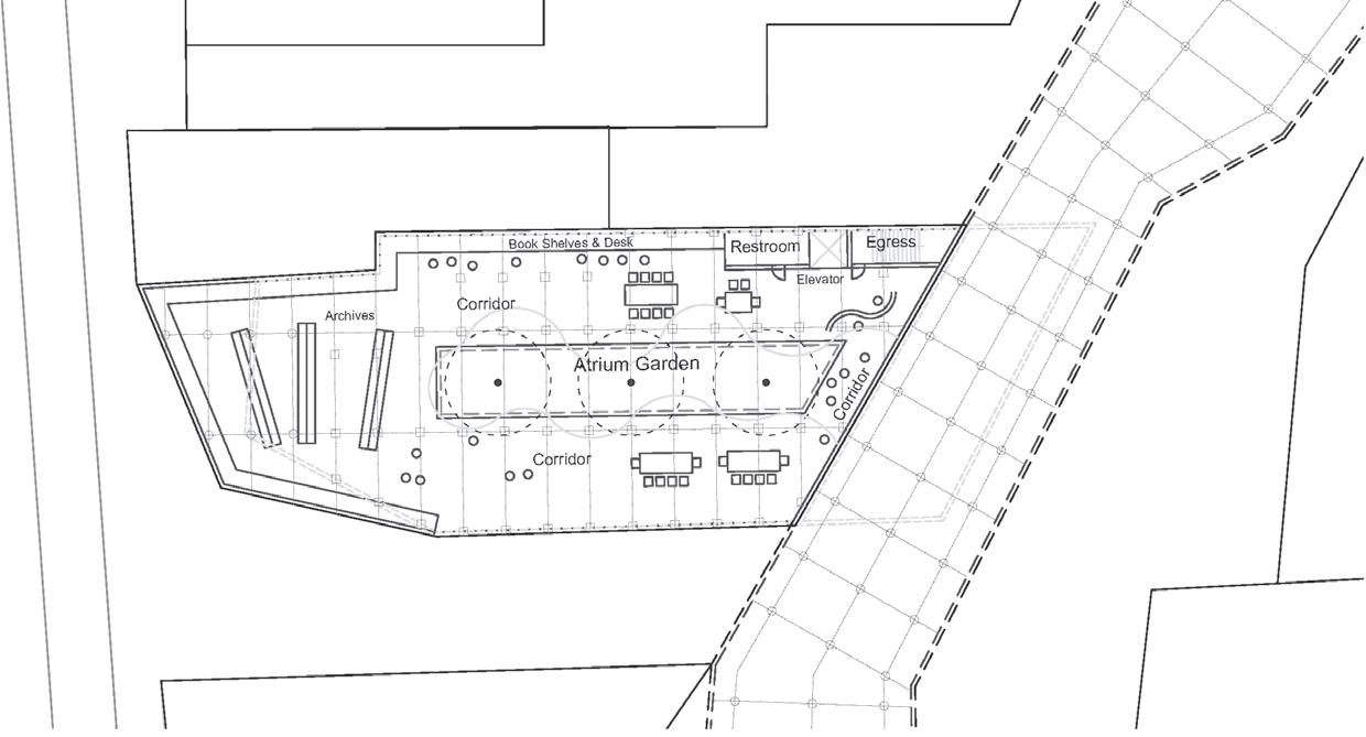
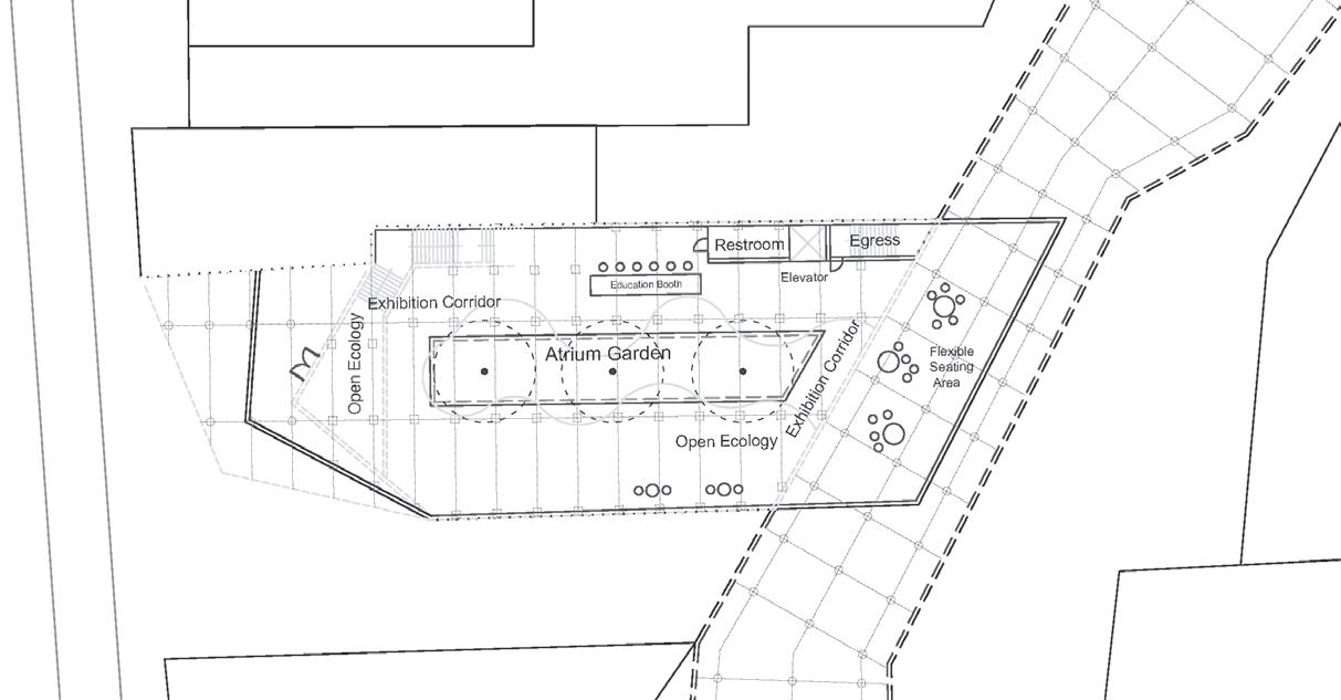
In San Francisco’s Mission District, an abandoned railway spur is transformed into a vibrant community hub.
A seismically compromised building is replaced with a new social center, unified with the landscape through native plantings.
A translucent photovoltaic roofed boardwalk connects indoor and outdoor spaces, serving as both a public path and flood evacuation route, blending architecture and nature for the community.

Identify Opportunities




















Exploring alternative forms and programs through intuitive sketches, contextual site analysis, bioclimatic studies, integrated biotic and abiotic systems, indooroutdoor connectivity, occupancy logic, flood protection, optimal vista, and enhanced experiential qualities.


Union Station Market
A new market emerges as a celebration of Phoenix’s revitalized historic landscape. The project addresses urgent needs for heat relief, food access, public services, and community engagement, while also offering passive recreation and local economic opportunities.
By repurposing the historic Phoenix Union Station with contemporary architectural elements, the design reclaims and redefines the area’s authentic identity.











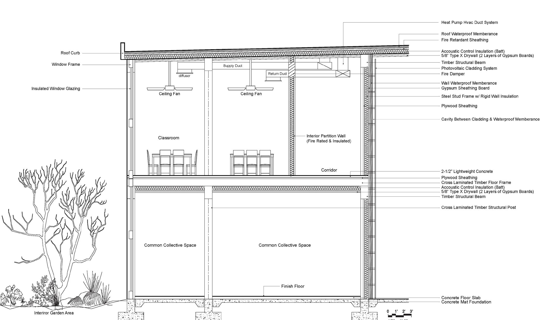
Ninth Ward School of Technology
One of New Orleans’ most vulnerable neighborhoods faces persistent economic, environmental, and social challenges, which includes poor housing, hurricane risks, and population decline.
In response to a struggling school system with low academic performance, a technology focused school is proposed to restore educational stability, deliver workforce training and community revitalization.




Building Programs














Landscape Architecture
From a love of nature to a growing enthusiasm for landscape architecture and urban design, I’ve had the honor to contribute to the creation of some of the most meaningful projects, including micro gardens, city parks, streetscapes, and large-scale community open space planning.
Some have come to life, some were experimental and valuable learning experiences, and some still remain dreams waiting to be realized.






















